PORTAFOLIO ARQUITECTÓNICO

Page 1

Entregado a las áreas afines con el arte y con fuerte orientación hacia el diseño arquitectónico y la obra civil, permito definirme como un joven con amplias intenciones de aprender, innovar, crecer laboralmente y consolidar cada vez más el conocimiento adquirido en la academia.

Soy una persona entregada a sus labores, creativo, decidido, ordenado y con buenas habilidades para liderar

Solución de preguntas problémicas referentes al manejo y uso correcto del Lugar, Espacio y Hábitat. Habilidades en técnica de dibujo a mano alzada y pintura

EXPERIENCIA DOMINIO DE PROGRAMAS BIM 3D Y 2D HERRAMIENTAS DE EDICIÓN Y REPRESENTACIÓN * Ilustrator * Photoshop * Office * Archicad * Revit * Sketchup * Rhinoceros CAPACITACIÓN ACADÉMICA Universidad
de Colombia SEXTO
EN
FACULTAD DE DISEÑO ABRIL
HABILIDADES * Trabajo en equipo * Solución
* Buena
Cra 102a #131 28
ANDRÉS FABIAN ROA ABRIL APTITUDES
Católica
SEMESTRE
CURSO
2022 - NOVIEMBRE 2022
de problemas
comunicación + 57 3045226049 andresfabianroa@gmail.com Bogotá
IDIOMAS ESPAÑOL nativo CONTACTO ARQUITECTURA APRENDIZAJE EN CURSO Curso avanzado de Autocad

TABLA DE CONTENIDO

TABLA DE CONTENIDO HOJA DE VIDA INTRODUCCIÓN PROYECTOS ACADÉMICOS REPRESENTACIÓN DIGITAL
PROYECTO 1ER SEMESTRE PROYECTO 2DO SEMESTRE REPRESENTACIÓN AXONOMÉTRICA PHOTOSHOP REPRESENTACIÓN AXONOMÉTRICA ILUSTRATOR PROYECTO 3ER SEMESTRE PROYECTO 4TO SEMESTRE PROYECTO 5TO SEMESTRE PROTECTO 6TO SEMESTRE

INTRODUCCIÓN

Se realiza este portafolio arquitectónico con el objetivo de enseñar cual ha sido el proceso académico durante los tres años transcurridos haciendo parte de la Facultad de Diseño Arquitectónico; programa adscrito a la Universidad Católica de Colombia.

Las bases del primer ejercicio de diseño están cimentadas en el aprendizaje respecto al correcto uso y manejo del espacio. En este punto se empiezan a implementar principios de diseño como la axialidad, jerarquía.

También se tiene en cuenta la materialidad, factor que posteriormente marcará las pautas para la ejecución y desarrollo del proyecto.

MEMORIA

EXPLOTADA

PLANTA DE CUBIERTAS

Vacío/ agujero: se genera a partir de la compresión de la rejilla a 2/3. Este espacio es usado como patio posterior, además se encarga de conectar el exterior con el punto de ingreso de la composición.

Voladizos: se generan a partir de la dilatación de la rejilla a m y 1,60 m en dirección horizontal. Celosía:

PLANTA SEGUNDO NIVEL

PERSPECTIVA N°2

PLANTA PRIMER NIVEL

PERSPECTIVA N°3

PERSPECTIVA N°1
fin
obstruir
Permanencias y recorridos Fluido Determinado Confinado Axialidad MEMORIA COMPOSITIVA
estructura de madera implementada con el
de
el ingreso de luz a la composición y aportar mayor privacidad. Axialidad: principio de orden.

MEMORIA ESTRUCTURAL

AXONOMETRÍA

MEMORIA DE MATERIALIDAD

Voladizos: elemento estructural que sobresale más allá de la pared o del elemento que lo sostiene.

Escaleras: comunican por medio de escalones o peldaños distintos desniveles.

PLANO TRANSPARENTE: material que permite el paso de luz en proporciones apreciables.

Columnas: elementos estructurales de 3m de alto x 30 cm de ancho encargadas de transmitir cargas hacia los cimientos.

Vigas: elementos estructurales diseñados para soportar cargas lineales, concentradas, o uniformes, en una sola dirección.

Viguetas: elementos usados para aportar mayor resistencia a la estructura.

Columnas redondas: al igual que las columnas cuadradas se encargan de transmitir cargas.

Muro estructural doble: se encarga de transmitir cargas verticales a los cimientos, en este caso desde la cimentación hasta la segunda planta.

Dilatación: se genera al contraer la última sección de la rejilla por aproximadamente 2/3

Muros estructurales: sistema estructural (no necesariamente aporticado) encargado de soportar cargas verticales.

Zapata corrida: se generan al unir dos zapatas aisladas cercanas, esto se hace para generar mayor estabilidad en la cimentación

Zapatas aisladas: generalmente se usan para cimientos poco profundos.

Concentran las cargas transmitidas por las columnas.

PLANO OPACO: material que no permite el paso natural y óptimo de la luz.

PLANTA PRIMER NIVEL PLANTA SEGUNDO NIVEL DETALLE AXONOMÉTRICO SECCIÓN A-A’

CELOSÍAS: elaboradas generalmente en metal o madera impiden u obstaculizan el paso de luz a los espacios interiores.

Armado de viga Concreto Armado entrepiso Armado de
Nudo o amarre Placa colaborante
columna
Vigueta

IMPLANTACIÓN

Terreno nivelado con ubicación frontal a la sede El Claustro perteneciente a la universidad Católica. Cuenta con construcciones de preservación.

EXTRUIR

Se genera un volúmen correpondiente a la superficie del terreno.

Luego será modificado puesto que deben haber 3m de aislamiento.

ATRAVESAR

Se extraen volúmenes del elemento principal; esto con el fin de generar recorridos y puntos de ingreso acordes al diseño ubano.

EXTRUIR VOLÚMENES

Además de dar altura a algunos volúmenes, se extraen otros para generar puntos fijos (circulaciones verticales) Y otros lugares de permanencia.

DISLOCAR

Se desplazan elementos 1m hacia el exterior, alternando los recorridos internos y generando ritmos, dándole carácter especial a la composición..

El colegio está diseñado de manera en que se pueda obtener el máximo provecho de la luz solar y a su vez de la sensación térmica que proporciona el mismo. Teniendo en cuenta que el proyecto se encientra ubicado en una ciudad con una tempertura media de 19°C es de suma importancia ofrecer a los estudiantes un ambiente cálido y confortable en el cual puedan desarrollar cómodamente sus actividades diarias.

PREDIO

EXTRACCIÓN VACÍOS VACIADO CENTRALIDAD DEL PROYECTO

IDENTIFICACIÓN DE ESPACIOS JERARQUICOS

INTEGRACIÓN CON PLANTEAMIENTO URBANO

SISTEMA DE RECORRIDOS

ENLACE URBANO PLANTEAMIENTO PROGRAMATICO ZONIFICACIÓN

MEMORIA COMPOSITIVA
AXONOMETRÍA N° 1 RELACIONESFACHADAVERTICALESORIENTAL FACHADA OCCIDENTAL AXONOMETRÍA N° 2 AXONOMETRÍA N° 3 AXONOMETRÍA N° 4 FACHADA SUR FACHADA NORTE

La función ecológica de los patios dentro de la edificación consiste en aportar espacios de esparcimiento completamente abiertos en su parte superior permitiendo la circulación de corrientes de viento tanto caliente como frío; regulando la sensació térmica dentro de todos los espacios de la construcción. Por otra parte permite el ingreso de luz solar directa a diversos espacios, esto también gracias al uso de distintos materiales como el vidrio

relacionados directamente con el apartado arquitectónico y constructivo.

CERRAMIENTO CLIMÁTICO

SONIDO Y

LUZ DIURNA Permite la reducción de la temperatura ambiente dentro del edificio y estrecha la relación entre lo antrópico y la biodiversidad

Se implementan elementos como celosías los cuales funcionan como parasoles y elementos decorativos; además en espacios interiores permiten separarlos por actividades

CORTE
1. Generación de terrazas Terraceo Río Arzobispo Carrera 2. Espacios de relación urbana 3. Vegetación (fitotectura) Perspectiva interior 3 Perspectiva interior 1 4. Recorridos exteriores 5. Puntos de acceso urbano 6. Desarrollo final Proceso 1. La masa - Terrazas Proceso 2. Patios Sustracción Proceso 3. Plantas diferentes Proceso 4. Proyecto actual
3D EN PERSPECTIVA
.
Espacios
Río
Carrera Caucho del tequendama Cedro Acceso secundario Acceso principal Se evidencia el espacio realizado conjuntamente,
espacios
Conexiones externas Perspectiva interior 2
COMPOSITIVA
intersticiales
Arzobispo
puesto que los
se ven
MEMORIA

Una de las cualidades al hacer uso del concreto es que se obtiene mayor durabilidad puesto que es apto para estar expuestro a la intemperie; se tiene buena resistencia ante fuerzas de compresión; cuenta con determinado grado de hermeticida, esto dependiendo de distintos factores como la relación agua-cemento, tiempo de curado, relación arena-cemento.

Los espacios intersticiales permiten generar puntos de interacción entre los visitantes del proyecto. Por otra parte, está diseñado en base a la morfología del terreno, por ende cuenta con distintas plataformas y vegetación que integran el proyecto con su entorno.

Emplazado en el interior del Parque Nacional Enrique Olaya Herrera busca promover y relacionar a los visitantes con la cultura precolombina y sus antepasados.

Orientado en su totalidad hacia la recreación y el aprendizaje proyecto cuenta con distintas aulas en donde desarrollar nuevos co|nocimientos y diversos espacios de recreación pasiva los cuales a su vez permiten la integración con la naturaleza.

PERSPECTIVAS INTERIORES

MEMORIA COMPOSITIVA
Espacio intersticial Recorridos Manzana Chorro de Quevedo Patio central transversal Patios internos aislados Espacio total Manzana CORTE LONGITUDINAL CORTE CONSTRUCTIVO LONGITUDINAL
PLANTA DE
SOTANO PLANTA DE PRIMER NIVEL PLANTA DE SEGUNDO NIVEL PLANTA DE TERCER NIVEL PLANTA DE CUARTO NIVEL
El Centro de Artes Visuales consta de multiples instalaciones dedicadas a la educación y promoción de conocimiento respecto al ámbito audiovisual. Debido a la tipología de fachada y al análisis de gamas cromáticas en el entorno se opta por desarrollar una propuesta moderna pero sencilla la cual pueda garantizar la continuidad visual preexistente . El emplazamiento en el sector además de impulsar la actividad turística y económica de la zona, esto teniendo en cuenta la alta insidencia de estudiantes y extranjeros además de los residentes del sector.

El proyecto urbanoarquitectónico responde a las necesidades existentes en el barrio La Concordia tales como la falta de equipamientos públicos de carácter institucional además de la reducida cantidad de zonas verdes/parques dentro del barrio. Este equipamiento garantiza la mejora en la interacción entre población residente y flotante.

Desde el apartado urbano se promueve la integración de espacios vegetativos dentro de los patios internos generados al interior de la manzana. Es de resaltar que estos fueron generados a partir de llenos y vaciós existentes en la manzana.

El espacio urbano cuenta con espacios destinados al uso recreativo y pasivo, todo esto teniendo en cuenta los indices poblacionales del sector, donde habitan en su mayoría personas entre los 40 y 60 años.

Respecto a la materialidad, para complementar la implantación de especies vegetativas se hace uso de pisos en madera, teniendo en cuenta que dispersan la isla de calor generada al hacer uso excesivo de materiales como el contreto.

El proyecto de vivienda situado en el Barrio Santa Fé, localidad de los Los Martires plantea contribuir a la mejora del factor económico y social del sector mediante la implantación de espacios públicos y semipublicos como locales comerciales y parques además de apartamentos.

Por medio de distintos análisis en el sector fue posible evidenciar las problemáticas y a partir de estas mediante la propuesta de diseño mitigar los diversos flajelos; uno de los metodos consta en poner a disposición de la población vulnerable unidades residenciales de bajo costo pensadas para garantizar el optimo desarrollo de las familias.

FACHADA ORIENTAL FACHADA OCCIDENTAL FACHADA SUR
MEMORIA COMPOSITIVA
sustraida
sustraida
verticales
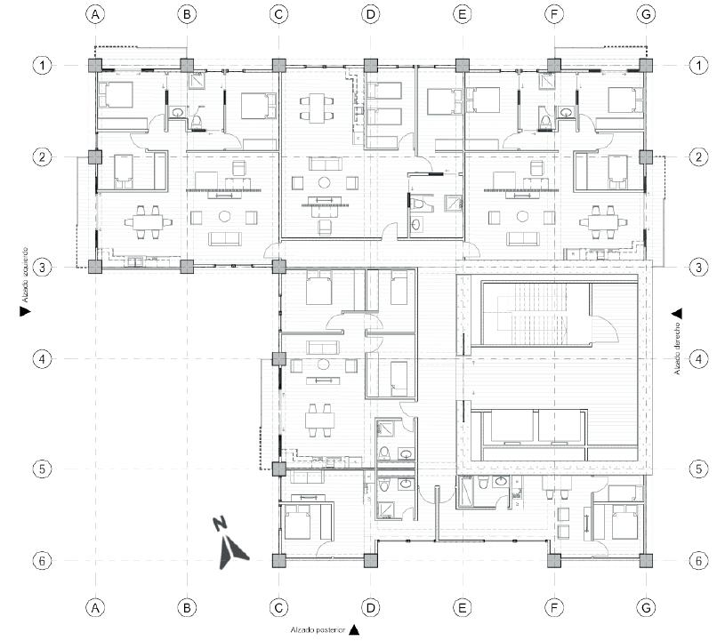
Alzado costado izquierdo Fachada 2 ESC 1:200 Alzado frontal Fachada ESC 1:200 Alzado posterior Fachada 4 ESC 1:200 Alzado costado derecho Fachada 3 ESC 1:200
Volumetría
Uso público interior Volumen de proyecto Espacio público Volumetría
Circulaciones
Volumen de proyecto Espacio público
PLANTA DE APARTAMENTO TIPO 1
Sección A-A’ Sección B-B’ PERSPECTIVA PEATONAL

ADICIÒN

PROPORCIÒN

Yuxtaposiciòn Yuxtaposiciòn Espacio urbano

El planteamiento inicial del proyecto consiste en proporcionar a la poblaciòn residente y flotante un espacio apto para el esparcimiento y el aprendizaje, esto por medio de un conjunto de instalaciones pensadas para garantizar el confort dentro del mismo.

Gracias al anàlisis de diversos factores bioticos, abioticos y antropicos permitieron orientar la funciòn y las caracterìsticas morfològicas del proyecto, por ende se toman decisiònes respecto al manejo de fachadas, proporciòn de espacios y volùmenes entre otros.

JERARQUÌA

CERRAMIENTO EN FACHADAS

urbano
Adiciòn Volumen general Espacio urbano Volùmen A
Espacio
Espacio urbano
VOLÙMEN BASE
Volumen B Volùmen C Volùmen A Volumen B Espacio
Fachadas
MEMORIA COMPOSITIVA
urbano
cerradas

El encontrarse a un lado del río orienta la concepción del diseño hacia la apertura de la fachada por el costado occidental, aprovechando la visual hacia el cuerpo de agua y la vegetación; colaborando con la idea original que es la conexión del equipamiento con la naturaleza colindante.

El Centro de integración ambiental ubicado sobre la ronda del río Arzobispo tiene como objetivo permitir a la población residente y flotante el acceso a la las instalaciones las cuales disponen de espacios destinados a la educación y aprendizaje sobre el cuidado y optimo mantenimiento del medio ambiente.

Las cubiertas inclinadas colaboran con las características ambientales del entorno; donde la lluvia es recurrente.

Por otra parte colaboran con la integración del proyecto donde el oontexto inmediato está basado en existencia de casas republicanas, con techos de dos y cuatro aguas.

Las distintas salas cuentan con mobiliario apto para el desarrollo de distintas actividades como la ejecución de manualidades, la lectura, escritura e incluso el trabajo digital

Los espacios con los que cuenta el equipamiento están destinados al optimo aprendizaje. Cuentan con luz cenital y materiales como la madera y el concreto aparente, los cuales minimizan la brecha entre los equipamientos modernos y la naturaleza.

Los espacios de aprendizaje correctamente diseñados y amoblados garantizan que el conocimiento adquirido sea recibido de la mejor manera.

Los espacios bien iluminados también colaboran con la reducción respecto al uso de luz artificial y en consecuencia el aporte respecto a la disminución de la contaminación lumínica.

REPRESENTACIÒN AXONOMÈTRICA
PHOTOSHOP
REPRESENTACIÒN AXONOMÈTRICA
ILUSTRATOR

Turn static files into dynamic content formats.

Create a flipbook
Issuu converts static files into: digital portfolios, online yearbooks, online catalogs, digital photo albums and more. Sign up and create your flipbook.