Portfolio Architecture

Page 1

O R T F O L I O

P
ARCHITECTURE AFIYATIN

Intern & kurus/pelatihan-pelatihan

Ayatin Ayatin KONTEN
Casa de louvre 12
01 03 05 02 04 06
Student center UIN Walisogo Semarang Arcadia cabin Abhinaya hotel syariah bintang 3 SMK Bumi Sholawat

CASA DE LOUVRE 12

KOS-KOSAN PUTRI

Pendekatan Arsitektur Semi Industrial

BRANDING

Status : Proyek

Site : Sardonoharjo, Kec. Ngaglik, Kabupaten Sleman, Daerah Istimewa Yogyakarta

Tahun : 2023

Casa de Louvre merupakan bisnis yang bergerak pada bidang penyewaan Guesthouse dan Kostkostan. Ciri khas dari Casa de Louvre adalah desain bangunan dan interior yang bertema american style, namun pada casa de louvre 12 ini dibuat berbeda dari biasnya yakni mulai menggunakan style semi industrial. Dengan desain classic minimalis akan semakin memanjakan mata dan membuat kamu lebih nyaman Desain american classic mebuat suasana menjadi lebih hommy dan tentunya instagramable biar kamu bisa eksist terus pap selfie di post ke media sosial kamu.

01
Ayatin Ayatin
Ayatin Ayatin

KERAMIK DAN CAT

REVISI KAMAR 20

Ayatin Ayatin
bata expose tempel
REVISI PANTRY
Total Rp. 3.054.000 Total Rp. 2.444.000 TOTO
KERAMIK DAN SANITARY

STUDENT CENTER

UIN WALISONGO SEMARANG

Pendekatan Arsitektur Bioklimatik

02

BRANDING

Status : Tugas Akhir

Site : Jl. Tanjungsari Utara, Ngaliyan, Semarang Tahun : 2023

UIN Walisongo Semarang adalah perguruan tinggi Negeri di Kota Semarang, Jawa Tengah. Mahasiswa di UIN Walisongo Semarang aktif dalam bidang akademik dan non-akademik, termasuk diskusi dan kegiatan organisasi. Untuk mendukung kegiatan mahasiswa, diperlukan pengembangan Student Center atau biasa disebut PKM. Mahasiswa memiliki hak atas pendidikan sesuai bakat dan minatnya. Kehidupan mahasiswa melibatkan Tri Dharma perguruan tinggi: pendidikan berkualitas, penelitian, dan pengabdian pada masyarakat. Di UIN Walisongo, terdapat budaya akademik yang kuat dengan "Tri Etika Kampus" yang mencerminkan nilai-nilai Islam Terdapat erbagai UKM di UIN Walisongo Semarang yang menawarkan kegiatan ekstrakurikuler. Saat ini PKM UIN Walisongo memiliki kondisi yang kurang memadai, sehingga perlu dibangun gedung PKM yang baru.

Adapun prinsip arsitektur bioklimatik yang perlu di perhatikan pada perancangan Student Center UIN Walisongo Semarang di antaranya: a. Balkon.

b. Optimalisasi kenyamanan termal.

c.Area servis di posisikan pada sisi luar bangunan.

d. Bentuk masa bangunan memiliki perbandingan1: 3.

e. Core di sisi barat.

f. Solid void bukaan.

g. Bentuk bangunan lengkung.

h. Penggunaan secondary skin.

Ayatin Ayatin

TRANSFORMASI BENTUK

bentuk persegi panjang yang berada di tengah.

ZONASI

RUANG

pemisahan ruang pada area tengah yang nantinya digunakan sebagai void.

KETERANGAN

Toilet

Mushola

Student lounge

Tangga darurat

R. panel

Tangga utama

Lift

Komersial

Pengelola & Kantor alumni

Olahraga& kesehatan mental

ORMAWA

Fasilitas penunjang

R. Rapat

R.Teater

R. CCTV

penambahan masa pada bagian belakang guna sebagai core untuk penghalang sinar matahari pada sore hari.

samping kanan dan kiri di push keluar untuk digunakan sebagai tangga darurat.

Ayatin Ayatin
Ayatin Ayatin
Ayatin Ayatin

INSTALASI AIR BERSIH

INSTALASI AIR KOTOR

INSTALASI LISTRIK

INSTALASI HYDRANT

Ayatin Ayatin
UTILITAS
Panel Genset Trafo PLN Tangga darurat GroundThank 120 m3 Reservoir Hydran Box UnitTekan Jangkauan SemprotanAir TitikAPAR Titik Kumpul

DETAIL ARSITEKTUR

Gunungan pada wayang kulit berbentuk kerucut (lancip ke atas) melambangkan kehidupan manusia. Semakin tinggi ilmu dan semakin tua usia, manusia harus semakin mengkerucut (golong gilig) manunggaling Jiwa, Rasa, Cipta, Karsa, dan Karya dalam kehidupan kita (semakin dekat dengan Sang Pencipta).

4 FASAD GUNUNGAN

4 disini memiliki makna kepemimpinan terbaik pasaca rasulullah, yaitu Khulafaur Rasyidin yang berjumlah 4: Abu Bakar, As-Shidiq, Umar Bin Khatab, Usman BinAffan danAli BinAbiThalib.

Dua bentuk yang menyatu dipisah melambangkan kesadaran dan pengalaman: Filoso fidi balik pemisahan dan penyatuan dua bentuk ini dapat berhubungan dengan kesadaran dan pengalaman manusia, pemisahan dua bentuk dengan posisi yang berbeda juga bisa mencerminkan perbedaan dalam perspektif atau sudut pandang

DETAIL PEMASANGAN FASAD

Fasad di pasang menempel ke balok dengan menggunakan material hollow.

KI

AGENG PANDAN ARANG

FASAD CENTER

Fasad pada bagian tengah bangunan menggunakan ornamen geometri (Arabesque), yang merupakan salah satu aspek penting dalam arsitektur islam. Seni Arabesque memilikifungsi sebagai pengingat tauhid.

Material fasad menggunakanACP(Alumunium Composite Panel) dan pemasangan menggunakan besi hollow 40x40mm.

Bentuk fasad persegi enam ini terinspirasi dari sarang lebah, Lebah memiliki makna kolaborasi, pekerja keras, dan semangat pantang menyerah.

WARNA BANGUNAN

Kuning : keceriaan, kegembiraan, energi positif, kecerdasan dan kreativitas

Hijau : kesehatan, kelestarian lingkungan, dan keseimbangan

Abu- abu : kebijaksanaan dan kedewasaan

Putih : kesederhanaan dan kebersihan

PEREDEAM SUARA

Ornamen yang di gunakan merupakan logo uin yang pada bagian tengah logo ukurannya dibuat lebih besar dari aslinya sehinga tercipta ornamen yang terlihat berbeda padahal aslinya sama dengan logo UIN Walisongo.

Ornamen Geomerti ini sangat khas, mewakili islamic art nusantara klasik, la memiliki empat ruas yang sating bersinggungan dan berpadu, Empat ruas tersebut mewakili empat aspek utama pengembangan UIN Walisongo: theo-anthroposentris; humanisasi ilmu-ilmu keislaman; spiritualisasi ilmu-ilmu modern; dan revitalisasi local wisdom.

Nama Student Center mengambil dari nama KiAgeng PandanArang, Ki Ageng Pandan Arang (disebut juga Pandanaran, Pandanaran I) adalah bupati pertama Semarang, yang diangkat oleh Sultan Demak Bintara. Konon nama Semarang diberikan olehnya, karena di tempat tinggal ditumbuhi oleh pohon asam yang jarang-jarang (bahasa Jawa: asem arang). Ki Ageng Pandan Arang juga dikenal sebagai tokoh penyebaran Islam di daerah tersebut. Meskipun sezaman dengan para Wali Sanga, ia tidak termasuk di dalamnya. Berdasarkan arsip De Gouverneur Van Java, dia pun dikenal sebagai sultan bajat atau kiyai gede semarang.

Adapun penggunaan peredam suara ini digunakan pada ruangan yang cukup bising agar tidak mengganggu aktivitas diluar ruangan diantaranya pada ruang teater, ruang musik dan ruang studio rekaman.

Rockwool adalah serat mineral yang terbuat dari bahan dasar bebatuan yang sengaja dirancang sebagai bahan peredam atau penyerap suara, serta isolasi terhadap panas. Rockwool tidak mudah terbakar sehingga cocok digunakan untuk isolasi termal, perlindungan kebakaran, dan penyerapan suara, serta juga pengurangan kebisingan.

Ayatin Ayatin

ARCADIA CABIN

PENGINAPAN | RESTO&CAFE | HEALING CENTER

Pendekatan Arsitektur Futuristik

BRANDING

Status : Studio Perancangan Arsitektur 4

Site : Jl. Watusambang, Dusun Cumpleng, Desa Plumbon, Kec. Tawangmangu, Kab. Karanganyar Tahun : 2022

Arcadia berasal dari bahasa yunani kuno yang berarti tempat yang indah dan damai. Arcadia cabin merupakan penginapan dengan tema glamping yaitu "glamour" dan "camping" yang diartikan sebagai kegiatan berkemah dengan cara yang mewah dan dengan konsep futuristik Konsep healing ini diterapkan dalam healing center dan keindahan alam sekitar. Di healing center ini terdapat beberapa fasilitas dan kegiatan diantara nya meditasi, Sauna dan melukis Meditasi sendiri dapat membantu menenangkan pikiran dan meningkatkan kulaitas tidur, sauna dapat membantu meningkatkan kesehatan secara keseluruhan termasuk mengurangi stres dan meningkatkan sistem kekebalan tubuh, serta melukis untuk mengekspresikan perasaan dan emosi seseorang Disini juga memanfaatkan sumber air belerang yang terdapat di area sekitar sebagai metode Relaksasi. Bangunan pada kawasan ini menggunakan akomodasi outdoor dengan memadukan penggunaan teknologi Internet of things dan keindahan alam sekitar Adapun Dari iot yaitu penggunaan smart windows, smart home serta qr code dalam membuka pintu.

Ayatin Ayatin
Ayatin 03

TRANSFORMASI BENTUK

Gubahan resepsionis

Gubahan healing center

Gubahan resto & café

Gubahan penginapan (cabin)

KETERANGAN :

Gubahan masa mengambil transformasi dari bentuk sarang lebah, yang di susun secara vertikal dan horizontal. Diketahui di daerah Tawangmangu terdapat banyak tanaman hias sehingga mengundang lebah ke area tersebut. Sarang lebah adalah tempat lebah menghasilkan madu, madu dapat menjaga kesehatan mental. Madu mengandung gula yang dapat membuat seseorang merasa lebih baik secara fisik dan mental, serta meningkatkan produksi serotonin yang dapat membantu meningkatkan mood dan mengurangi stres.

1. Resepsionis

2. Cabin- cabin (penginapan)

3. Healing center (Meditasi, sauna, melukis)

4. Resto & café

5.Taman

6. Parkir motor

7. Parkir mobil

Ayatin Ayatin

HEALING CENTER CABIN

Fasad berbentuk segitiga disini menekankan bahwa tiga elemen yaitu pikiran, tubuh dan jiwa harus seimbang untuk mencapai kesehatan yang optimal. jika salah satu elemen tersebut tidak seimbang, itu dapat mempengaruhi kesehatan mental seseorang. Dengan mempertimbangkan ketiga elemen ini dan mencoba untuk menjaga keseimbangannya, seseorang dapat mencapai kesehatan mental yang lebih baik.

Ayatin Ayatin
Ayatin Ayatin RESEPSIONIS
RESTO & CAFÉ
Ayatin Ayatin

SMK BUMI SHOLAWAT

SEKOLAH SMK | ASRAMA | MASJID | KANTIN | RUMAH PENGASUH | PENDOPO | GAZEBO

Pendekatan Arsitektur Modern

BRANDING

Status : Project client

Site : Ungaran, Semarang, Jawa Tengah Tahun : 2022

Ayatin
Ayatin Ayatin 04
Ayatin Ayatin
DENAH MASJID LANTAI 1 DENAH MASJID LANTAI 2 DENAH ASRAMA LAKI-LAKI LANTAI 1 DENAH ASRAMA LAKI-LAKI LANTAI 2-3 DENAH SEKOLAH LANTAI 1 DENAH SEKOLAH LANTAI 2-4 DENAH ASRAMA PEREMPUAN LANTAI 1 DENAH RUMAH PENGASUH LANTAI 1 DENAH ASRAMA PEREMPUAN LANTAI 2-3 DENAH RUMAH PENGASUH LANTAI 2
Ayatin Ayatin

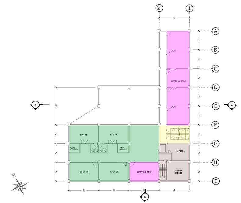
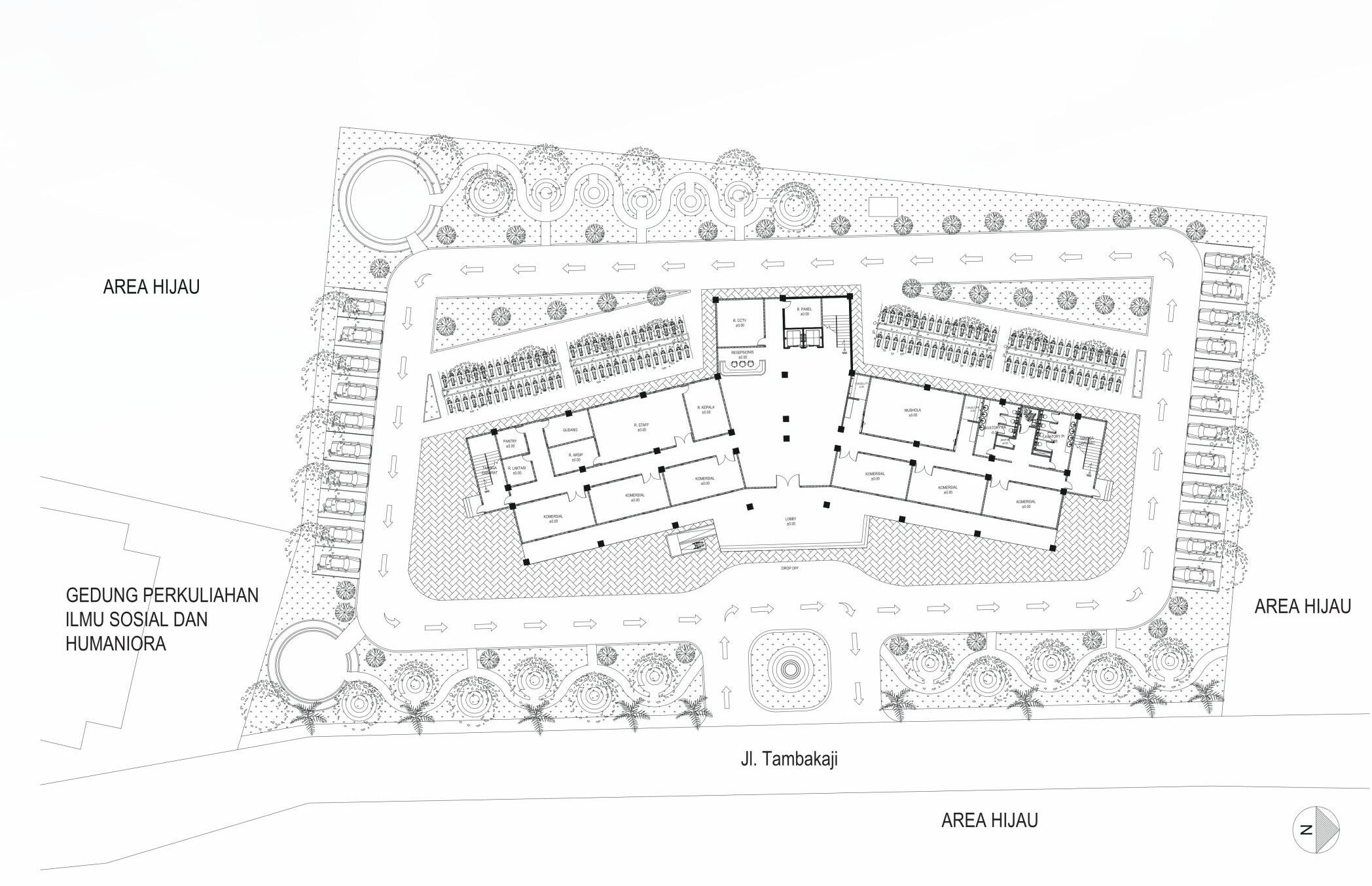
ABHINAYA

HOTEL SYARIAH BINTANG 3

Pendekatan Arsitektur Modern

BRANDING

Status : Studio Perancangan Arsitektur 3

Site : Jl. Imam Bonjol, Purwosari, Semarang Utara, Kota Semarang, Jawa Tengah 50132

Tahun : 2022

Lokasi site yang berdekatan dengan

strategis untuk di

hotel. jarak antar stasiun poncol ke lokasi site sangat mudah ditempuh, cukup dengan berjalan khaki beberapa langkah saja Ketika malam han sekitar lokasi site banyak para pekerja prostitusi yang berlalu lalang dan biasanya hotel yang dijadikan tempat menginap mereka hal tersebut tentu membuat tidak nyaman, takut, dll sehingga dibuatlah konsep syariah.

Ayatin
Ayatin Ayatin 05
stasiun poncol sehingga sanga
bangun sebuah

EXPLODAMETRI

BENTUK

Kesederhanaan dan ketenangan “Frank Lioyd Wright”

Penampilan bukan jaminan kenyamanan

Leter L: Love, cinta

ZONASI RUANG

Keterangan

parkir

service dan MEP resepsionis

Kantor

sport dan spa

Restoran

meeting room

guest room

Ayatin Ayatin
TRANSFORMASI

DETAIL ARSITEKTURAL

Elang & sarang lebah = semangat, pantang menyerah, meninggalkan hal negatif.

Abhinaya, berasal dari bahasa sansekerta yang artinya semangat.

Semangat pantang menyerah

--> Fungsi sun shading

Ayatin Ayatin
Lebah memiliki makna : Pekerja keras Fasad bangunan
Ayatin Ayatin
DENAH BASEMENT DENAH LANTAI 1 DENAHLANTAI 2 DENAH LANTAI 3 DENAH LANTAI 4-5 DENAH LANTAI 6 DENAH LANTAI 7 TAMPAK DEPAN TAMPAK SAMPING KIRI TAMPAK BELAKANG
POTONGAN A-A POTONGAN B-B
TAMPAK SAMPING KANAN
Ayatin Ayatin

ARSISTEN ACADEMY

Enscape Masterclass: Exterior Rendering for Intermediate

BRANDING

Status : 3d model by arsisten academy

Site :Tahun : 2024

Ayatin Ayatin
Ayatin
06

ARSISTEN ACADEMY BRANDING

Interior Rendering with Enscape

Status : 3d model by arsisten academy

Site :Tahun : 2024

Ayatin Ayatin
Ayatin

KURSUS REVIT INDONESIA BRANDING

Pelatihan Online Autodesk Revit Arsitektur, Struktur, MEP

Status : 3 studi kasus berbeda

Site : -

Tahun : 2024

Ayatin Ayatin
Ayatin

INTERN R&D DESAIN INTERIOR

Product Furniture di Garvani Furniture

BRANDING

Status : Project Hotel, Produksi pabrik

Site : -

Tahun : 2024

Ayatin Ayatin
Ayatin
Scan QR Detail furniture

Turn static files into dynamic content formats.

Create a flipbook
Issuu converts static files into: digital portfolios, online yearbooks, online catalogs, digital photo albums and more. Sign up and create your flipbook.
Portfolio Architecture by Afiyatin - Issuu