Portafolio Andres Caicedo

Page 1

2 Portafolio Andres Caicedo

PROPUESTA

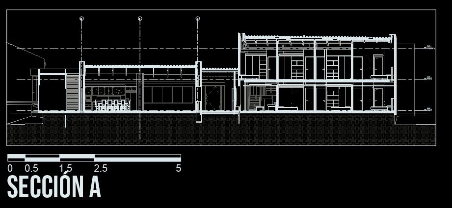
Con la propuesta se busca minimizar al maximo las modificaciones al terreno jugando con quiebres y un gran puente que se levanta sobre el terreno que proporcionan, recorridos y perspectivas entre el interior y exterior dejando expuestas vistas panoramicas hacia la ciudad. Se plantea una gran plataforma que amarra los 2 tanques existentes reduciendoles la escala, sin robarles el protagonismo y este a su vez crea un umbral de acceso sobre el cual se dispone la biblioteca en 2 niveles, siendo esta la actividad de caracter mas publico, que a su vez es dotada de establecimientos comerciales que ayudarian a suplir los costos de mantenieto del edificio.

Se tiene como estrategia proyectual aislar los edificios para generar transpirabilidad y aprovechar al maximo la ventilacion cruzada. Un po rcentaje de las cubiertas se plantea como colectoras de aguas lluvia para utilizacion en baños y riego en zonas verdes, también se plantean cubiertas verdes para disminuir la temperatura al interior de los espacios además de responder al déficit de espacio público propagando las como una extensión que se vuelve un gran paso permitiendo una coneccion urbana a traves de un gran puente con amplias zonas verdes permitiendo una coexistencia entre los elementos arquitectonicos y la naturaleza.

CENTRO CULTURAL DE ARTE POPULAR SILOE

Proyecto de grado Univerdidad de san Buenaventura Cali

AREA: 14.863m2

UBICACION: Cali

AÑO: 2022

DISEÑO: Andres Caicedo

Portafolio Andres Caicedo

PROGRAMAS: Revit Lumion Photoshop

4
5 Portafolio Andres Caicedo
6 Portafolio Andres Caicedo ABAJO ABAJO ABAJO 0 5 10 30 1 : 500 A_Seccion 10 1 : 1000 Implantación ABAJO ABAJO ABAJO A_Biblioteca Nivel 2.60 A_Biblioteca Nivel 7.00 0 1 5 15 0 10 30 1 500 A_Seccion 10 1 1000 Implantación AUDITORIO
7 Portafolio Andres Caicedo
8 Portafolio Andres Caicedo

PROYECTOS de vivienda

9 Portafolio Andres Caicedo
10 Portafolio
1
Andres Caicedo

CASA KM 30

PROYECTO DESARROLLADO EN APONTE ARQUITECTOS

AREA: 620m2

UBICACION: Km 30 Cali

AÑO: 2021

ALCANCE: Diseño Y coordinacion tecnica

11 Portafolio
Andres Caicedo
Planta implantación Planta cubierta VES Planta segundo piso 0 0.5 1.5 2.5 5 sección b 0 0.5 1.5 2.5 5 sección c 0 0.5 1.5 sección c2.5 Planta cubierta 0 0.5 1.5 2.5 5 Planta primer piso 0 0.5 1.5 2.5 5 sección a 0 0.5 1.5 2.5 5 fachada a 0 0.5 1.5 2.5 5 Planta implantación Planta cubierta 0 0.5 1.5 2.5 5
12
Portafolio Andres Caicedo
13 Portafolio Andres Caicedo
14 Portafolio Andres
2
Caicedo

CASA 34 ALTOS DE GUADALUPE

PROYECTO DESARROLLADO EN APONTE ARQUITECTOS

AREA: 152,3m2

UBICACION: Cali

AÑO: 2022

ALCANCE: Diseño remodelación

PROGRAMAS: Revit

15
Portafolio Andres Caicedo
16
Portafolio Andres Caicedo
17 Portafolio Andres Caicedo
18 Portafolio Andres
3
Caicedo

casa alameda de la rivera

PROYECTO DESARROLLADO EN APONTE ARQUITECTOS

AREA: 890m2

UBICACION: Cali

AÑO: 2021

ALCANCE: Diseño, representación coordinacion tecnica

PROGRAMAS: Revit Photoshop

19
Portafolio Andres Caicedo
20
Portafolio Andres Caicedo
21 Portafolio Andres Caicedo
22 Portafolio Andres Caicedo 4

Planta primer piso

Planta primer piso

Planta segundo piso

Planta segundo piso

Planta cubierta

Planta cubierta

SECCIÓN A

SECCIÓN A

Planta cubierta

CASAs la cangrejera

FACHADA B

FACHADA B

AREA: 160M2

UBICACION: Cali

AÑO: 2021

CLIENTE: Constructora Amarilo

ALCANCE: Diseño y representación

FACHADA C

FACHADA C

PROYECTO DESARROLLADO EN APONTE ARQUITECTOS

PROGRAMAS: Photoshop

23
Portafolio Andres Caicedo
L01 ---
---
-L02 --
24
Portafolio Andres Caicedo
25 Portafolio Andres Caicedo
26 Portafolio Andres Caicedo 5

PLANTA PRIMER PISO

PLANTA PRIMER PISO

PLANTA cubierta

PLANTA cubierta

fachada a

fachada a

PLANTA PRIMER PISO

PLANTA segundo PISO

PLANTA segundo PISO

PLANTA cubierta

fachada a

fachada b

fachada c

fachada b

fachada c

PLANTA segundo PISO

PLANTA PRIMER PISO

PLANTA tercer PISO

PLANTA tercer PISO

fachada b

PLANTA cubierta

fachada a

fachada c

sección a

sección b

sección b

condominio townhouses canfrejera

PROYECTO DESARROLLADO EN APONTE ARQUITECTOS

PLANTA tercer PISO

PLANTA segundo PISO

fachada b

fachada c

sección b

27 Portafolio Andres Caicedo
CU
CU CU CU
28
Portafolio Andres Caicedo
29
RENDERS SALA DE VENTAS CANGREJERAS
Portafolio Andres Caicedo implantacion sala de ventas cangrejeras

El desarrollo de estas dos viviendas se conceptualizó como dos bloques prismáticos de igual carácter y forma, los cuales se orientan en correspondencia con los niveles y curvas topográcas, cada unidad de vivienda organiza su programa a partir de un planteamiento lineal donde se conectan los espacios y las circulaciones. La materialidad de las viviendas en su gran mayoría concreto, piedra, vidrio y madera permite unas viviendas adaptadas al entorno y de acogedora en su habitabilidad.

30
6
Portafolio Andres Caicedo

CASAs la reforma

PROYECTO DESARROLLADO EN APONTE ARQUITECTOS

AREA: 14.863m2

UBICACION: Cali

AÑO: 2021

ALCANCE: Diseño Y coordinacion tecnica

PROGRAMAS: Revit

31
Portafolio Andres Caicedo
32
Portafolio Andres Caicedo
33 Portafolio Andres Caicedo
34 Portafolio Andres Caicedo

PROYECTOS INSTITUCIONALES

35 Portafolio Andres Caicedo
36 Portafolio Andres Caicedo 7

CENTRO CULTURAL CIUDAD VERDE

PROYECTO DESARROLLADO EN APONTE ARQUITECTOS

AREA: 2.100m2

UBICACION: Cali

AÑO: 2021

ALCANCE: Diseño, Representacion 3d y maqueta

PROGRAMAS:

Revit

Lumion

Photoshop

Sketchup

37 Portafolio Andres Caicedo
6.95 0.00 SEGUNDO PISO 3.60 CUBIERTA 6.95 PRIMER PISO 0.00 SEGUNDO PISO CUBIERTA PRIMER PISO 3.60 CUBIERTA 6.95 PRIMER PISO 0.00 CUBIERTA PRIMER PISO CUBIERTA 6.95 PRIMER PISO 0.00 SEGUNDO PISO 3.60 V 0.00 SEGUNDO PISO PRIMER PISO 0.00 SEGUNDO PISO CUBIERTA SEGUNDO PISO 3.60 0.00 SEGUNDO PISO
38
Portafolio Andres Caicedo
39 Portafolio Andres Caicedo
40 Portafolio Andres Caicedo

PROYECTOS COMERCIALES

41 Portafolio Andres Caicedo
42 Portafolio Andres Caicedo

CENTRO CULTURAL CIUDAD VERDE

PROYECTO DESARROLLADO EN APONTE ARQUITECTOS

AREA: .m2

UBICACION: Cali

AÑO: 2021

ALCANCE: Diseño, Representacion 3d y maqueta

PROGRAMAS:

Revit Lumion

Photoshop

Sketchup

43 Portafolio Andres Caicedo
44
Portafolio Andres Caicedo
45 Portafolio Andres Caicedo

Turn static files into dynamic content formats.

Create a flipbook
Issuu converts static files into: digital portfolios, online yearbooks, online catalogs, digital photo albums and more. Sign up and create your flipbook.