Portofolio

Page 1

portofolio aef saepudin

Alamat :

Gg. Maleber Barat 1 No.14a Bandung

Ponsel : +6282115450194

Email : Aeps510@gmail.com

pendidikan

UNIVERSITAS KEBANGSAAN REPUBLIK INDONESIA

Prodi Arsitektur (2019 - 2023)

IPK : 3.40

pengalaman

SIXTEENTH ARCHITECTURE - BANDUNG, INDONESIA

Arsitek - Agustus 2022 s/d Juli 2023

* Membut Desain untuk proyek konstruksi baru, perubahan, dan renovasi rumah tinggal.

SMK N 1 SUMEDANG

Teknik Gambar Bangunan (2012 - 2015)

kemampuan

Autocad

SketchUp

Adobe Photoshop & Illustrator

CorelDraw Enscape Microsoft O ce

* Melakukan pengecekan terhadap shopdrawing di lapangan

PT. HAKA KARYA PUTRA - BANDUNG, INDONESIA

Drafter - MEI 2016 s/d Agustus 2022

* Membuat Shopdrawing Pekerjaan Jalan Nasional diwilayah

Banten, Jawa Timur, Bali, Sumatera Utara, Kepulauan Riau dan Kalimantan Utara.

PT. MITRAPLAN KONS - JAKARTA, INDONESIA

Drafter - Juli 2015 s/d September 2015

* Sebagai asisten arsitek dalam peroyek Pembangunan Unit

Sekolah Baru dan Revitlisasi di pulau Sumatera.

GRIYA OMEGA ESTETIKA - BANDUNG, INDONESIA

Drafter - April 2014 s/d Mei 2014

* Membuat Shopdrawing Perumahan de Green Mansion, Cilengkrang - Bandung

* Membuat Shopdrawing Perumahan Griya Pesona

Hijau, Manonjaya - Bandung

* Membuat Shopdrawing Masjid di de Green Grande

Residence, Ciwastra

HB House

Lokasi : Singgasana Pradana, Bandung

Luas : 610 M2

Proyek : Rumah Tinggal

1 2 3
Persfektif
Denah

GP House

Lokasi : Singgasana Pradana, Bandung

Luas : 310 M2

Proyek : Rumah Tinggal

MKJ House

Lokasi : Mekarwangi, Bandung

Luas : 210 M2

Proyek : Rumah Tinggal

Lokasi : Bumi Panyileukan, Bandung

Luas : 90 M2

Proyek : Rumah Tinggal

masjid

Lokasi : Jl. Terusan Halimun No.37, Lkr. Sel., Kec. Lengkong, Kota Bandung, Jawa Barat

40263

Luas Bangunan : 711 m2

Luas Lahan : 1.100 m2

Proyek : Tugas Studio Perancangan Arsitektur 4

konsep

Perancangan masjid dengan konsep TERAKOTA

Roaster dengan bentuk segi 5 dan dikelilingi oleh penyangga sebagai satu kesatuan

- Segi 5 Melambangan Rukun Islam

- 5 penyangga Melambangkan Sholat 5 Waktu

denah lantai 1 isometri denah
2
lantai

SMPN 3

Muara Pinang

Lokasi : Ds. Gedung Agung, Kec. Muara Pinang, Kab. Empat Lawang, Sumatera Utara

Luas Lahan : 6.250 m2

Proyek : Unit Sekolah Baru

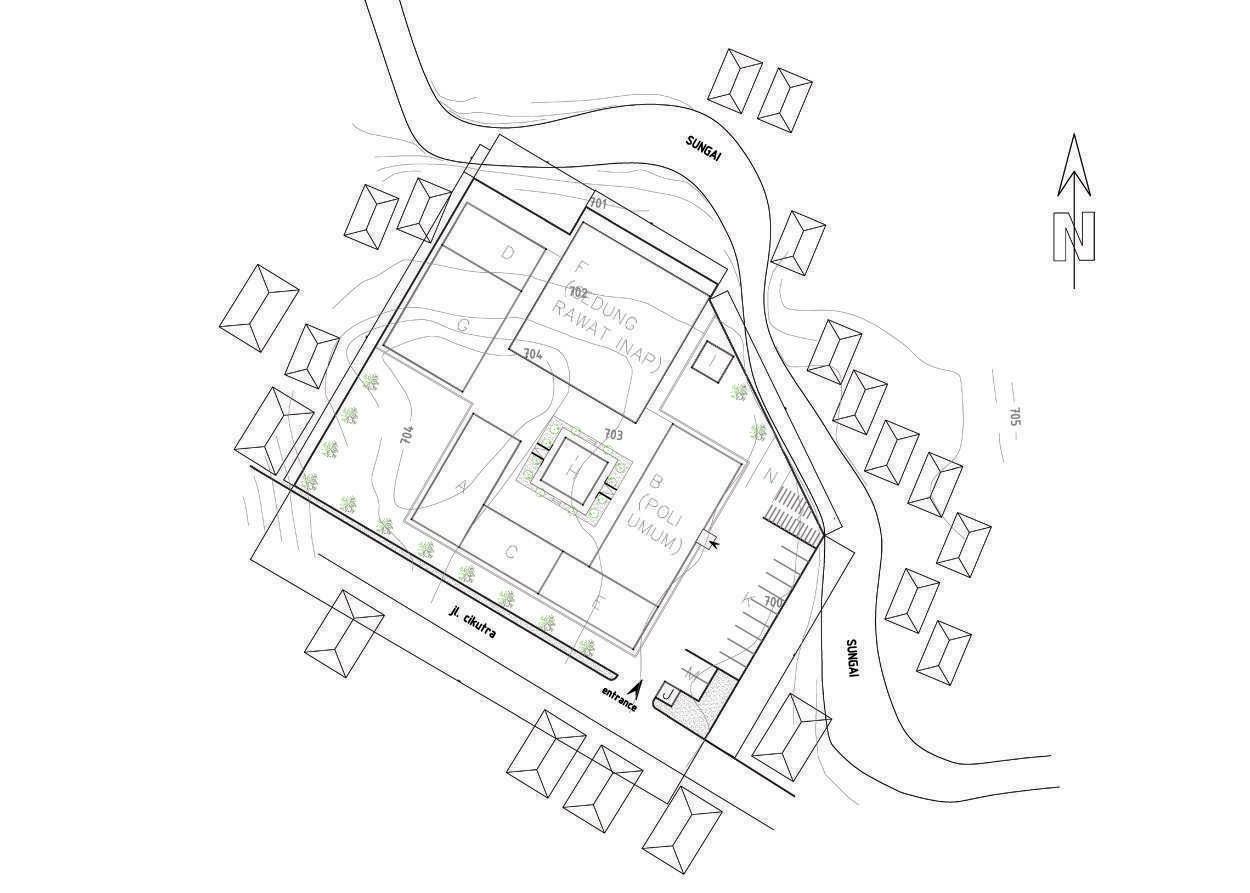
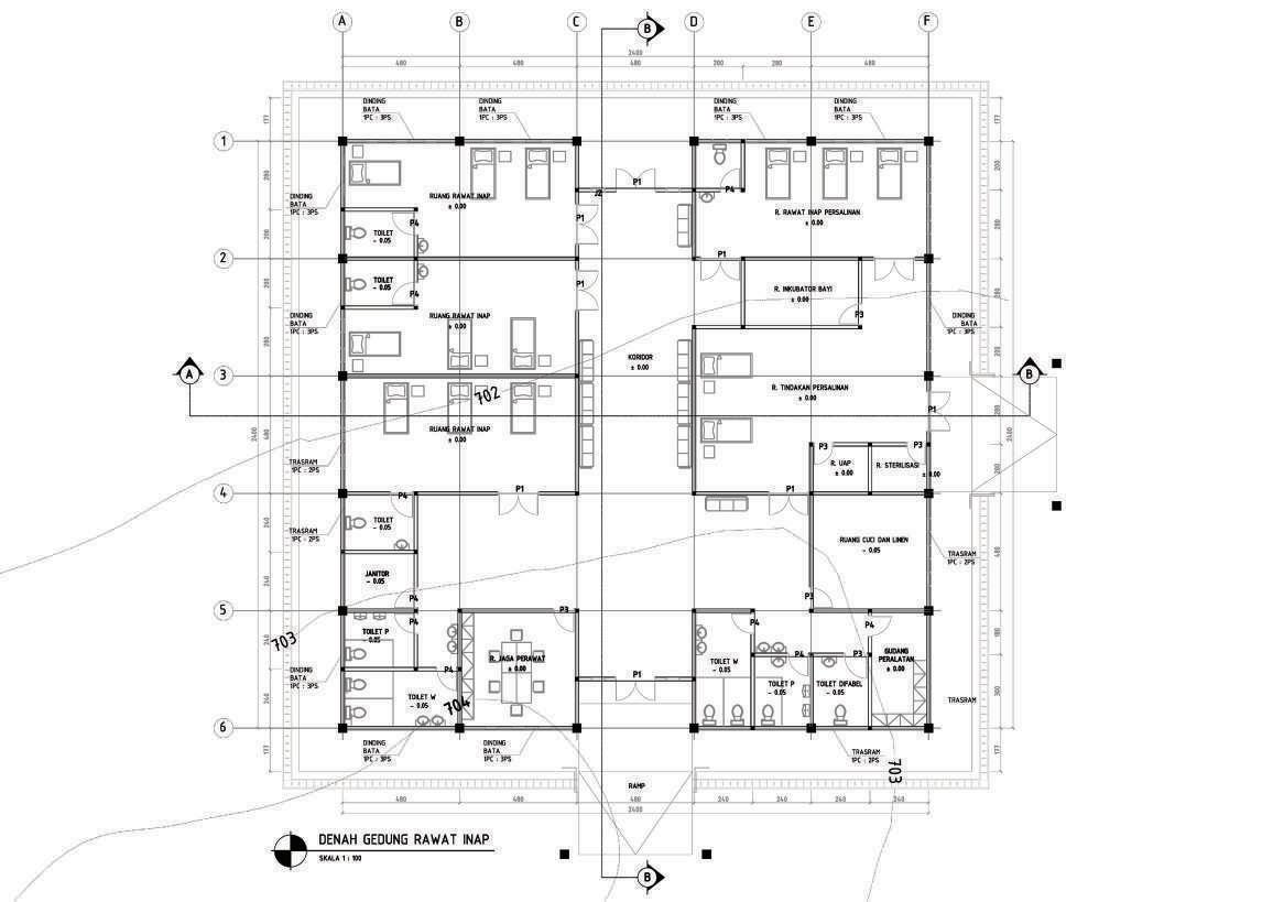
puskesmas

Lokasi : Jl. Cikutra No.270, Bandung

Luas : 3900 M2

Proyek : Tugas Struktur & Konstruksi 4

Keterangan :

A. Pengelola UPT

B. Poli Umum

C. Poli Gigi dan Mulut

D. Poli Penyakit Menular

E. Poli Kesehatan Ibu dan Anak

F. Gedung Rawat Inap

G. Laboratorium

H. Mushola

I. Ruang Genset

J. Pos Satpam

K. Tempat Parkir

L. Parkir Ambulan

M. Parkir Mobil Dinas

Gedung Poli Umum
Gedung Poli Umum
Gedung Rawat Inap
Gedung Rawat Inap
cube house

Rumah berkonsep tropis dengan menonjolkan material bata. Fasad memakai susunan bata renggang yang diaplikasikan sebagai kulit kedua untuk mereduksi panas matahari, akses pencahayaan, dan srkulasi udara alami agar udara di dalam rumah terasa lebih sejuk.

konsep denah

isometri tampak depan

Turn static files into dynamic content formats.

Create a flipbook
Issuu converts static files into: digital portfolios, online yearbooks, online catalogs, digital photo albums and more. Sign up and create your flipbook.