Adriana Lovera_Portfolio

Page 1

Portfolio | Adriana Loveravan den Bussche

Wallace Building

The University of Alabama at Birmingham

Birmingham, AL

Scope of work: The UAB Athletics department had been looking to renovate the sports facility buildings across campus to accommodate the new sports program. At Davis Architects worked on this building since the start. The main concept was to change the location of the basketball coaches’ offices from a separate building to where the men’s and women’s basketball teams hold their practice meetings. The challenge was to adapt the new program to the limited existing square footage. But with the client giving us as much freedom as we needed, I was able to compromise between excess space and not enough space to provide a balanced layout for both teams.

Project role: drafter

Year: 2015

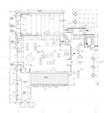
Scope of work: An interior renovation of 4,672 SF. in an existing restaurant and kitchen facility, with modifications to dining room and existing equipment.

Project

APPLICABLE CODES 2015 EPCOT BUILDING CODE WITH 2016 AMENDMENTS 2015 EPCOT ELECTRICAL CODE WITH 2016 AMENDMENTS 2015 EPCOT MECHANICAL CODE WITH 2016 AMENDMENTS 2015 EPCOT PLUMBING CODE WITH 2016 AMENDMENTS 2015 EPCOT FIRE PREVENTION CODE WITH 2016 AMENDMENTS 2015 EPCOT ACCESSIBILITY CODE WITH 2016 AMENDMENTS 2015 FLORIDA BUILDING CODE: ACCESSIBILITY 2012 NATIONAL FIRE PROTECTION ASSOCIATION LIST OF DRAWINGS & REVISION STATUS GASPARILLA GRILL GRAND FLORIDIAN RESORT LOCATION MAP INTERIOR RENOVATION 23 SEPTEMBER 2016 EXISTING BUILDING CONSTRUCTION TYPE I- THIS SPACE IS PROTECTED THROUGHOUT WITH SPRINKLER SYSTEM EXIT SHEET WHICH ELECTRICAL FIXTURE MOUNTING SPECIALTY ITEMS ROOM NUMBER SPECIAL FINISHES INTERIOR/EXTERIOR FINISHES FIXTURE IDENTIFICATION ROOM DETAIL/SECTION CROSS REFERENCE FIXTURE NUMBER INTERIOR ELEVATION ELEVATION NUMBER SHEET NUMBER NUMBER FOR DETAIL LETTER SECTION SHEET(S) WHERE REFERENCED FROM SHEET WHICH CONCRETE MASONRY COMPRESSIBLE FILLER PORTLAND CEMENT PORTLAND BATT INSULATION ACOUSTICAL ACOUSTICAL INSULATION MOTOR CONTROL CENTER MATERIAL MODIFIED BITUMINOUS SHEET ROOFING HOSE BIBB HOLLOW METAL INSIDE DIAMETER HEATING VENTILATING AIR CONDITIONING LAVATORY MAX MCC MBSR MATL LAV MAXIMUM INT HVAC HB JOINT INTERIOR FINISH SYSTEM PLYWOOD WOOD BLOCKING FINISHED WOOD MEMBER GLASS GYPSUM BOARD RIGID INSULATION METAL WATER RESISTANT WORK POINT WALL COVERING VINYL COMPOSITION UPHOLSTERY TOP PARAPET TOP WALL UNLESS NOTED OTHERWISE TOP STEEL WR WP W/O WC WITH WIDE WITHOUT UPH UNO TOP TOS TOW WALL SECTION ELEVATION NUMBER FOR DETAILS SHEET WHICH DETAIL OCCURS LETTER ENLARGED PLANS NUMBER CARPET CPT EXPOSED GLASS FIBER REINFORCED CONCRETE FLOOR DRAIN FACE CONCRETE FACE FINISH FACE MASONRY FACE STUD FIBERGLASS REINFORCED PLASTIC GLASS FIBER REINFORCED GYPSUM FOS GFRG GFRC FRP GAUGE HIGH FOF FOC FOM FIN FLR FBR EXT FINISH FLOOR EXTERIOR FABRIC DISTRESSED WOOD PROCESS CERAMIC DISNEY'S CALIFORNIA ADVENTURE DOWN SPOUT DISTRESSED METAL PROCESS ELECTRICAL DRINKING FOUNTAIN DIAGONAL EXTERIOR INSULATION FINISH SYSTEM EXPANSION JOINT ELECTRICAL ELECTRONIC EQUIPMENT ROOM EER ELEC EIFS EDF EQUAL EACH DMP DWP DIAG DCA DBL DOWN DEPTH DOUBLE ACRYLIC RESIN FLOORING CONCRETE MASONRY UNIT ABOVE FINISHED FLOOR AREA DRAIN AREA DEVELOPMENT CONDITIONING CONTROL JOINT CONCRETE CLG COL CONC CMU CLR BLDG CEILING CLEAR COLUMN BUILDING ARF AFF A/C OWNER FURNISHED REF REFERENCE SANITARY SHEET PLASTIC TOP MASONRY SURFACED FOUR SIDES SPECIAL FINISH RESILIENT FLOOR SQUARE FEET STONE FACE SOLID CORE STANDARD SUSPENDED TONGUE GROOVE TELEPHONE TOP CONCRETE CURB SQUARE SQ T&G TOM TOC TEL STD S4S SUSP SSP SPF SIM SHT REQD SIMILAR SHEET REQUIRED RESILIENT BASE STRAIGHT REFLECTED CEILING PLAN RESILIENT BASE COVE OWNER FURNISHED CONTRACTOR INSTALLED QUARRY TILE ROOF DRAIN RBS RCP RD RBC OPPOSITE DETAIL EXIT SIGNS SPEAKER MOUNTING LOCATION (ELEVATION) LIGHTNING ROD ARRESTER DIAMETER ROUND WALL MOUNTED WORK POINT ELEV. BENCH MARK PLATE SQUARE CHANNEL ANGLE OPERATOR CONTROL PANEL OPERATOR CONTROL CONSOLE MECHANICAL MEZZANINE MOISTURE RESISTANT TREATMENT MISCELLANEOUS OUTSIDE DIAMETER OVERFLOW DRAIN CENTER MRT MIN MISC. MECH. MEZZ MINIMUM WINDOW NUMBER MATCH TICK INDICATES TOP SURFACE SHOWN WALL SCHEDULE COLUMN LINES SCHEDULED PARTITION WALL TYPE NUMBER SPRINKLER HEAD 12"X12" HEAT BAFFLE SPRINKLER HEAD WALL MOUNTED SMOKE/HEAT DETECTOR-SURFACE JUNCTION BOX-FLUSH FLOOR UNO TELEPHONE OUTLET-WALL MOUNTED JUNCTION BOX-RECESSED CEILING MOUNTED UPRIGHT SPRINKLER HEAD THERMOSTAT MOUNTED FLUORESCENT LIGHT FIXTURE FLUORESCENT FIXTURE-PENDANT CHAIN FLUORESCENT FIXTURE-SURFACE CEILING CEILING MOUNTED CEILING MOUNTED MANUAL PULL STATION PUBLIC ADDRESS SPEAKER OVERHEAD SPEAKER WALL MOUNTED FLUORESCENT FIXTURE-RECESS XXXXX DOOR FENCE GATE NUMBER LOUVER NUMBER SQUARE FEET PENNY @ NUMBER POUND A-541 A-501 A-611 FENCE GATE LOUVER WINDOW WALL TYPE TOILET ACCESSORIES REVISION SF-XXX MATCHLINE DRAWING A-201 PENDANT SPRINKLER HEAD ABBREVIATIONS MATERIALS LEGEND SYMBOLS CEMENT PLASTER A-501 A-501 WDF WOOD FLOOR OVERALL BUILDING SECTION SHEET WHICH STONE METAL MET BRICK FACE METAL FACE ELEVATION MASONRY OPENING MO ACCENT LIGHT FIXTURE A-691 A-201 ACOUSTICAL TREATMENT POINT SALE POINT CONNECTION PREPARATION PREP POC POS PLYWD PNT PLYWOOD PAINT PAIR PLASTER FACE CEILING MOUNTED LOCATION (ELEVATION) F.E.C. FIRE EXTINGUISHER CABINET FIRE EXTINGUISHER DIRECTIONAL EXIT SIGN NEW SPEAKER NEW CHANDELIER, PROVIDE JUNCTION BOX CENTERED CEILING DESIGN RECESSED DOWNLIGHT FIXTURES SPRINKLER HEAD, NONCORROSIVE ESCUTCHEONS WALL WASHER EXISTING FIXTURE RELOCATED BUG LIGHT World Resort © Disney CONTACTS LIST DWG NO. DRAWING TITLE ORIG. ISSUE REV. LATEST ISSUE 01-GENERAL CVR COVER SHEET 02-LIFE SAFETY LS101 LIFE SAFETY PLAN 04-ARCHITECTURAL A201 DIMENSIONED-NOTED PLAN A221 REFLECTED CEILING PLAN A410 A411 A601 FURNITURE PLAN A605 FLOOR FINISH PLAN A611 INTERIOR ELEVATIONS A101 SCOPE WORK A412 INTERIOR FINISHES LS102 ALTERNATE SEATING LAYOUT INTERIOR FINISHES INTERIOR FINISHES A612 MILLWORK DETAILS 05-MECHANICAL AC-201 RENOVATION FLOOR PLAN MECHANICAL AC-301 SYMBOLS SCHEDULE AND DETAILS AC-101 SYMBOLS LEGEND 06-ELECTRICAL E-201 RENOVATION FLOOR PLAN POWER AND SYSTEMS E-202 E-101 SYMBOLS LEGEND RENOVATION FLOOR PLAN LIGHTING 07-FIRE PROTECTION FP-201 RENO FLOOR PLAN FIRE PROTECTION 08-PLUMBING P-201 RENOVATION FLOOR PLAN PLUMBING P-601 P-101 SYMBOL LEGEND SCHEDULES PLUMBING 09/23/16 09/23/16 09/23/16 09/23/16 09/23/16 09/23/16 09/23/16 09/23/16 09/23/16 09/23/16 09/23/16 09/23/16 09/23/16 09/23/16 09/23/16 09/23/16 09/23/16 09/23/16 09/23/16 09/23/16 09/23/16 09/23/16 09/23/16 09-FOOD SERVICES FOR REFERENCE ONLY EQUIPMENT SCHEDULE PLUMBING DRAIN PLAN SODA/BEER CHASE PLAN ELECTRICAL PLAN SECTIONS K1 FLOOR PLAN PLUMBING PLAN ELEVATIONS ELEVATIONS 09/23/16 09/23/16 09/23/16 09/23/16 09/23/16 09/23/16 09/23/16 09/23/16 09/23/16 AN INTERIOR RENOVATION OF 4672 SQ FT. IN AN EXISTING RESTAURANT AND KITCHEN FACILITY, WITH MODIFICATIONS TO DINING ROOM AND EXISTING KITCHEN EQUIPMENT. E-401 DETAILS ELECTRICAL E-501 E-301 RISER AND SCHEDULES ELECTRICAL SPECIFICATIONS ELECTRICAL 09/23/16 09/23/16 09/23/16 1925 Prospect Ave. Orlando, FL 32814 (407) 661-9100 (407) 661-9101 Florida Corporate Certificate C000526
Gasparilla Grill Grand floridian Resort Orlando, FL
UP DN UP DN DN DN NOT IN SCOPE NOT IN SCOPE NOT IN SCOPE NOT SCOPE NOT IN SCOPE NOT IN SCOPE NOT IN SCOPE NOT IN SCOPE 48 30 48 30 48 30 48 30 48 30 48 30 24X30 24 30 24X30 24 30 3'-8" 3'-8" 3'-8" 79'-3" 136'-10 1/3DISTANCE45'-7" General Notes Symbols EXIT LIGHTS SHALL BE PROVIDED AT ALL DOORS ALONG THE EGRESS PATH. RE: ELEC. DWGS. EMERGENCY LIGHTING SHALL BE PROVIDED AS REQUIRED BY CODE. RE: ELEC. DWGS. LIFE SAFETY LEGEND MAXIMUM TRAVEL DISTANCE DURING AN EMERGENCY Life Safety Plan 1 Scale 1/4"=1'-0" K FIRE VALVE CABINET FIRST FLOOR AREA NUMBER OF OCCUPANTS AREA/ OCCUPANT EXISTING OCCUPANT CALCULATION AND ASSUMPTION GROUP A-5 ASSEMBLY 3'-8" 3'-8" FIRST FLOOR AREA NUMBER OF OCCUPANTS AREA/ OCCUPANT NEW OCCUPANT CALCULATION AND ASSUMPTION GROUP A-5 ASSEMBLY 10 Parks and Resorts U.S.,Inc. WHOLE OR IN PART, NOR DISCLOSED TO OTHERS, WITHOUT THE WRITTEN MEN STAIR #8 A1139 WOMEN A1144 108 A1145 SMALL DINING DINING A107 STAIR #7 A1136 LOBBY A1155 STORAGE A1137 CHEF'S OFFICE A1143 Reflected Ceiling Plan 1 Scale 1/4"=1'-0" Key Notes NEW FINISH CEILING AND CEILING HEIGHTS NEW EXPANDED DINING AREA, NEW CEILING MATCH EXISTING CEILING EXISTING DINING ROOM 11'-10" AFF TILE 10'-0" AFF GYP. SOFFIT 10'-0" NEW GYP. SOFFIT EMERGENCY LIGHT FIXTURE. ELECTRICAL DRAWINGS LIGHT FIXTURE. RE: ELECTRICAL DRAWINGS LIGHT FIXTURE. RE: ELECTRICAL DRAWINGS LIGHT FIXTURE. RE: ELECTRICAL DRAWINGS LIGHT FIXTURE. RE: ELECTRICAL DRAWINGS LIGHT FIXTURE. RE: ELECTRICAL DRAWINGS LIGHT FIXTURE. RE: ELECTRICAL DRAWINGS LIGHT FIXTURE. RE: ELECTRICAL DRAWINGS LIGHT FIXTURE. RE: ELECTRICAL DRAWINGS LIGHT FIXTURE. RE: ELECTRICAL DRAWINGS EXIT LIGHT FIXTURE. RE: ELECTRICAL DRAWINGS EXIT LIGHT FIXTURE. RE: ELECTRICAL DRAWINGS EXIT LIGHT FIXTURE. RE: ELECTRICAL DRAWINGS RETURN GRILLE. RE: MECHANICAL DRAWINGS SUPPLY DIFFUSER. RE: MECHANICAL DRAWINGS SUPPLY DIFFUSER. RE: MECHANICAL DRAWINGS EXHAUST AIR GRILLE. MECHANICAL DRAWINGS PATTERN INDICATES ACOUSTICAL CEILING USG. SANDSTONE GLACIER, GRID COLOR MATCH. PATTERN INDICATES ACOUSTICAL CEILING USG. VINYL ROCK, WHITE MILL FIN. ALUMINUM GRID (SATIN SILVER). PATTERN INDICATES MOISTURE RESISTANT GYP BOARD CEILINGS: PAINTED SW-699 "SAND DOLLAR" THE RESTROOMS AND ENTRANCE VESTIBULE. PAINTED SEMI-GLOSS ENAMEL, COLOR: WHITE, THE OFFICE LIQUOR STORAGE, AND BRINE TANK CLOSET. EMERGENCY LIGHT FIXTURE. ELECTRICAL DRAWINGS LIGHT FIXTURE. RE: ELECTRICAL DRAWINGS FEATURE LIGHT FIXTURE. ELECTRICAL DRAWINGS Ceiling Plan Legend UP DN UP DN DN DN NOT SCOPE NOT IN SCOPE NOT IN SCOPE NOT IN SCOPE NOT SCOPE NOT IN SCOPE NOT SCOPE NOT SCOPE 11'-10" CLG TILE DIGITAL MENU DISPLAY RELOCATED EXISTING EXIT SIGN A613-5 NEW PILASTER 10'-0" EXISTING GYP. SOFFIT 13'-6" AFF EXISTING GYP. SOFFIT 14'-10" EXISTING REMOVE EXISTING ACT CEILING REPLACE WITH NEW CEILING PER FINISH SCHEDULE. NEW GYPSUM BOARD SOFFIT EXTENSION. ALIGN WITH EXIT. DRAWING REVISION PHASE: PROJECT/EDMS CODE 1925 Prospect Ave. Orlando, FL 32814 (407) 661-9100 (407) 661-9101 Florida Corporate Certificate #AA C000526 A.99 A.100 A.101 A.104 A.105 I.110 A.99 A.100 A.101 A.104 A.105 I.110 EXISTING FIRE VALVE CABINET REMAIN EXISTING EXTERIOR DOOR REMAIN EXISTING DOOR REMAIN EXISTING DOOR REMAIN FINISHED FLOOR AFF FINISHED FLOOR AFF FINISHED FLOOR 0'-0" FINISHED FLOOR New Seating Area Elevations 1/2"=1'-0" CEILING HT. 11'-10" SOFFIT HT. CEILING 11'-10" AFF SOFFIT HT. 10'-0" FINISH CASE OPENING AFF WAINSCOT AFF CEILING 11'-10" SOFFIT 10'-0" AFF FINISH CASE OPENING 8'-0" T/O WAINSCOT 3'-0" WC-1.1 PT-1.4 PT-1.4 PT-1.5 PT-1.4 PT-1.4 PT-1.4 PT-1.4 PT-1.5 PT-1.4 PT-1.4 WC-1.1 PT-1.4 PT-1.4 REMOVE BASE AND REPLACE MILLWORK MATCH ADJACENT BASE PT-1.1 PT-1.1 PT-1.5 PT-1.5 PT-1.5 PT-1.5 PT-1.5 PT-1.3 PT-1.3 TYP. TYP. PT-1.3 PT-1.3 PT-1.3 PT-1.3 PT-1.5 PT-1.5 PT-1.4 PT-1.4 PT-1.4 PT-1.5 PT-1.5 PT-1.3 TYP. PT-1.3 TYP. PT-1.3 TYP. PT-1.4 6'-0" SM-1.7 CEILING TILE 11'-10" SOFFIT 10'-0" AFF A C PT-1.3 PT-1.3 PT-1.3 PT-1.3 PT-1.3 A.99 A.100 A.101 A.104 A.105 I.110 A.99 A.100 A.101 A.104 A.105 I.110 EXISTING FIRE VALVE CABINET REMAIN EXISTING EXTERIOR DOOR REMAIN EXISTING DOOR REMAIN EXISTING DOOR REMAIN FINISHED FLOOR AFF FINISHED FLOOR AFF FINISHED FLOOR 0'-0" FINISHED FLOOR AFF New Seating Area Elevations 1/2"=1'-0" CEILING 11'-10" SOFFIT HT. CEILING 11'-10" AFF SOFFIT HT. FINISH CASE OPENING AFF WAINSCOT AFF CEILING HT. 11'-10" SOFFIT 10'-0" AFF FINISH CASE OPENING 8'-0" T/O WAINSCOT 3'-0" WC-1.1 PT-1.4 PT-1.4 PT-1.5 PT-1.4 PT-1.4 PT-1.4 PT-1.4 PT-1.5 PT-1.4 PT-1.4 WC-1.1 PT-1.4 PT-1.4 REMOVE BASE AND REPLACE WITH MILLWORK MATCH ADJACENT BASE PT-1.1 PT-1.1 PT-1.5 PT-1.5 PT-1.5 PT-1.5 PT-1.5 PT-1.3 PT-1.3 TYP. TYP. PT-1.3 PT-1.3 TYP. PT-1.3 PT-1.3 TYP. TYP. PT-1.5 PT-1.5 PT-1.4 PT-1.4 PT-1.4 PT-1.5 PT-1.5 PT-1.5 PT-1.5 PT-1.5 PT-1.3 TYP. PT-1.3 TYP. PT-1.5 PT-1.3 TYP. PT-1.4 6'-0" SM-1.7 CEILING TILE 11'-10" AFF SOFFIT A C PT-1.3 PT-1.3 PT-1.3 PT-1.3 PT-1.3 A.99 A.100 A.101 A.104 A.105 I.110 A.99 A.100 A.101 A.104 A.105 I.110 EXISTING VALVE CABINET REMAIN EXISTING EXTERIOR DOOR REMAIN EXISTING DOOR REMAIN EXISTING DOOR REMAIN FINISHED FLOOR 0'-0" FINISHED FLOOR FINISHED FLOOR FINISHED FLOOR New Seating Area Elevations 1/2"=1'-0" CEILING TILE 11'-10" SOFFIT 10'-0" AFF CEILING TILE 11'-10" AFF SOFFIT 10'-0" FINISH CASE OPENING 8'-0" WAINSCOT 3'-0" CEILING TILE 11'-10" SOFFIT 10'-0" AFF FINISH CASE OPENING 8'-0" WAINSCOT 3'-0" WC-1.1 PT-1.4 PT-1.4 PT-1.5 PT-1.4 PT-1.4 PT-1.4 PT-1.4 PT-1.5 PT-1.4 WC-1.1 PT-1.4 PT-1.4 REMOVE BASE AND REPLACE MILLWORK MATCH ADJACENT BASE General Notes MOLDING, TRIM WAINSCOT WALL BASE MATCH EXISTING DINING ROOM PT-1.1 PT-1.1 PT-1.5 PT-1.5 PT-1.5 PT-1.5 PT-1.5 PT-1.3 PT-1.3 TYP. TYP. PT-1.3 PT-1.3 PT-1.3 PT-1.3 TYP. PT-1.5 PT-1.5 PT-1.5 PT-1.5 PT-1.5 PT-1.5 PT-1.5 PT-1.3 TYP. PT-1.3 TYP. PT-1.5 PT-1.3 TYP. PT-1.4 6'-0" 6'-0" SM-1.7 CEILING TILE 11'-10" SOFFIT 10'-0" AFF FINISHED FLOOR Arcade Wall Millwork Section 2 Scale 1/2"=1'-0" A C PT-1.3 PT-1.3 PT-1.3 PT-1.3 PT-1.3 SEE SHEET A612 FOR DETAILS A613-5 PL-1.1 PL-1.1 PL-1.1 PL-1.1 EXISTING GYP. BD. SOFFIT, CONTRACTOR VERIFY LOCATION RELATION TO NEW FOOD SERVICE COUNTER BELOW ACCOUSTICAL CLG. 14'-10" AFF GYP. BD. COFFER 13'-6" AFF C DIGITAL MENU DISPLAY MODIFY BASE HEIGHTS PER SECTION K-9 "V.I.F. Millwork Elevations 1 Scale 3/4"=1'-0" B-1.1 PL-1.1 PL-1.1 2.1 B-1.1 PL-1.1 EXISTING GYP. SOFFIT, CONTRACTOR VERIFY LOCATION RELATION NEW FOOD SERVICE COUNTER BELOW ACCOUSTICAL CLG. 14'-10" AFF GYP. BD. COFFER 13'-6" AFF F DIGITAL MENU DISPLAY MODIFY BASE HEIGHTS PER SECTION SNEEZE GUARDS NEW TRAY RAIL NEW MILLWORK PANELS
role: drafter Year: 2016

Panda Express

Prototype Program Winder, GA

Scope of work: Design and production of compliant construction documents for a ground up 2,300 SF building, including kitchen and furniture layout design.

Project role: project coordinator and point of contact (since 2018)

Year: 2020

FOR ENLARGED DRIVE THROUGH PLAN, SEE 1/ A-405 A-100 1 Scale= 1/16" 1'-0" SITE PLAN UGE-S UGE-S HW A-407 10 11 13 14 15 16 18 19 20 21 22 24 26 28 29 30 32 33 35 36 10 12 12 12 12 12 27 17 17 17 17 17 18 19 20 23 23 23 24 24 24 25 22 25 27 27 32 32 36 36 36 37 EXCHANGEBOULEVARD 38 37 37 36 36 RAMP DOWN RAMP DOWN RAMPDOWN RAMPDOWN RAMPDOWN RAMPDOWN RAMP DOWN C&P PROJECT PANDA PROJECT #: DRAWN BY: ISSUE DATE: REVISIONS: All ideas, designs, arrangement and plans indicated or represented this drawing are the property Panda Express Inc. and were created for use on this specific project. None of these ideas, designs, arrangements plans may be used disclosed any person, firm, or corporation without the written permission Panda Express Inc. 1683 Walnut Grove Ave. Rosemead, California 91770 Telephone: 626.799.9898 Facsimile: 626.372.8288 PANDA RESTAURANT GROUP INC. PANDA EXPRESS TRUE WARM AND WELCOME 2300 EXCHANGE BLVD AT LOGANVILLE HWY BETHLEHEM, GA 306201925 Prospect Ave. Orlando, FL 32814 (407) 661-9100 (407) 661-9101 Florida Corporate Certificate #AA C000526 06.04.2020 2200025 S8-21-D7630 1 02.21.2020 ISSUE FOR PERMIT 2 04.23.2020 ISSUE FOR BID 3 06.04.2020 ISSUE FOR CONSTRUCTION A-100 ARCHITECTURAL SITE PLAN N A-100 A Scale= NTS KEY NOTES DEMOLITION NOTE: G.C. TO REMOVE ALL EXISTING ABOVE/UNDER GROUND STRUCTURAL WALLS, FOUNDATION, ASPHALT, CONC. CURBS AND DEBRIS PRIOR TO NEW CONSTRUCTION. GENERAL NOTE: G.C. TO VERIFY AND PROVIDE ALL UNDERGROUND WIRING AND CONDUIT(INSTALLED BY LOCAL UTILITY COMPANY) FROM TRANSFORMER TO ELECTRICAL MAIN SWITCHGEAR. DRIVE THRU. MENU BOARD, BY G.C.. VERIFY WITH PANDA PM. 2. WATER METER FOR IRRIGATION SHALL BE SEPARATE METER THAN MAIN WATER METER. G.C. TO COORDINATE WITH LANDSCAPE/IRRIGATION CONTRACTOR TO INSTALL SEPARATE METER. 3. PROVIDE INSTALL CAGE AND COVER FOR THE BACK-FLOW PREVENTER AT CONCRETE CURB IN LANDSCAPE AREA; GORILLA CAGE, MANUFACTURED BY HOUSTON IRRIGATION SERVICES SPRING, TEXAS (281-705-9701). PROVIDE INSULATED COVER, 'AQUA SHIELD' MODEL BFP1-S FOR COLDER REGIONS OF US. COORDINATE WITH PANDA PM. REFER TO DETAIL 11/ A-407 4. FOR HORIZONTAL CONTROL PLAN REFER TO CIVIL DRAWINGS 5. KEY SYMBOLS UNDERGROUND GREASE INTERCEPTOR SEE PLUMBING/CIVIL DRAWINGS STEEL PIPE BOLLARD. BOLLARDS TO BE PAINTED SAFETY YELLOW PRIOR TO APPLICATION OF LDPE SLEEVE. CONCRETE CURB AT LANDSCAPE AREA. EDGE OF SIDEWALK AT PLANTER CONC. DRIVEWAY IRRIGATED LANDSCAPING, REFER TO LANDSCAPE DRAWINGS DESIGNATED HANDICAP PARKING SPACE PAINT 4" WIDE SOLID PARKING STRIPPING W/ TWO (2) COATS HIGHWAY WHITE PAINT ACCESSIBLE PARKING SPACE AND LOADING ZONE PAINT LOADING ZONE W/ WIDE STRIPES @3'-0" O.C. INTERNATIONAL ACCESSIBILITY SYMBOL PARKING SPACE ACCESSIBLE PARKING POLE SIGN ACCESSIBLE PATH OF TRAVEL DIRECTIONAL ARROW DRIVE THROUGH MENU BOARD-INSTALLED BY SIGN COMPANY. VERIFY WITH PANDA PM (SEE GENERAL NOTE ABOVE) DRIVE THRU LANE SENSOR LOOP SEE DETAIL TRASH ENCLOSURE CONC. APRON, REFERENCE CIVIL DRAWINGS PAVING SEE CIVIL PLAN NEW SWITCHGEAR NOT USED DUMPSTER DRAIN SEE CIVIL DRAWINGS ACCESSIBLE RAMP EXPANSION JOINT 20'-0" O.C. MAX. REF. CIVIL DRAWINGS TOOLED JOINTS @ 5'-0"X5'-0" O.C. EXPANSION JOINT 20'-0" O.C. NOT USED CLEARANCE BAR/BASE INSTALLED BY SIGN VENDOR. PROPERTY LINE ORDER CONFIRMATION BOARD RUBBER WHEEL STOP, REF. CIVIL DRAWINGS GC TO COORDINATE LOCATION OF SIGN WITH SIGN CO. PROVIDE ELECTRICAL AS NEEDED SEALED CONC SIDEWALK. (AQUA MIX SEALER'S CHOICE GOLD). CONCRETE TO BE LIGHT BROOM TEXTURE FINISH. PROVIDE UNDER SLAB TREATMENT PER SOIL REPORT. PROVIDE POSITIVE DRAINAGE AWAY FROM BLDG. A-407 15 A-107 A-405 01 A-407 NOT USED ELEC TRANSFORMER CONC PAD W/ EA BOLLARDS. REF CIVIL DRAWINGS ROOF DRAIN AND OVERFLOW SCUPPER TO EXIT TO DAYLIGHT THROUGH FACE OF WALL. RE: PLUMBING NEW SITE LIGHTING. RE: CIVIL AND ELECTRICAL DRAWINGS MAIN ROOF DRAIN TO STORM SYSTEM. REFER TO CIVIL. OVERFLOW DRAIN TO DAYLIGHT BUILDING SETBACK. RE: CIVIL DRAWINGS 04.23.2020 ISSUE FOR BID JDV 10 11 12 13 14 15 16 17 18 19 20 21 22 23 24 25 26 27 28 29 30 31 32 33 34 35 36 37 5' LANDSCAPE STRIP. RE: CIVIL DRAWINGS 38 FOR REFERENCE ONLY FINISH PLAN AND SCHEDULE SEE SHEET A-104 DINING ROOM 100 A-501 A-500 A-500 WP2 WP3 UNDER HOOD SERVING AREA 101 DRIVE-THRU STATION 102 KITCHEN PREP 104 WOMEN'S ROOM 107 MEN'S ROOM 106 VESTIBULE 108 KITCHEN 103 WALK-IN COOLER 105 WALK-IN FREEZER 105A A-503 6B A-502 A-502 A-502 A-502 6A WALK-IN COOLER PROVIDED BY OWNER, INSTALLED G.C. A-502 A-201 A-200 A-201 A-200 WALK-IN FREEZER PROVIDED BY OWNER, INSTALLED G.C. W1 A-403 3A A-500 04 A-502 02 A-503 A-500 A-403 6C A-502 STORAGE ROOM 109 MOP SINK D1 A-404 W5 WC-1 WC-1 CG-2 1'-6" A-501 8" HIGH CONC. CURB 20 A-404 W1 6D A-502 A-501 A-502 WC-1 WC-1 SERVICE COUNTER LOW WALL TO BE APPLIED AFTER GYP. BD. APPLIED TO INTERIOR WALL 01 A-404 W5 W7 W4 W1 A-502 8B 8A A-502 02 A-402 W1 NOTE: REFER TO SHEET A-503 FOR ENLARGED RESTROOM PLANS 38'-3" 7'-10" 3'-10" 8'-11" 43'-5" 3'-0" 16'-9" 20'-8" 3'-0" 4'-9 4'-9 4'-9 1'-0" 1'-0" WC-1 A-401 04 A-401 A-401 A-401 A-401 A-401 A-401 A-401 D3 D3 01 A-402 5'-10" 7'-0 3/4" 7 1/4" 6'-0" CG-1 3'-6" 4 3'-11" 2'-5 1'-1 9'-5" HOLD 7'-1 THESE DIMENSIONS ARE FROM FACE OF GYP. BD. FACE OF PLYWOOD LOW WALL. REF. DETAIL 04/A-403 FOR PLACEMENT LOW WALL. 5'-11 2'-10" CG-1 2'-11" 02 A-503 1'-2 14'-7" A-401 SIM. WC-1 W5 W1 4'-0" W6 W1 6" HIGH CONC. CURB 2'-0" A-401 ALIGN 1'-4" 2'-10" CG-1 1'-2" CG-1 6'-4" 11" 12'-0" 5'-8" EXT. STORAGE 110 W3 CG-1A CG-1A WC-1 3'-10 1/4" 4'-9 3'-4" W5 W1 W2 W5 W2 W1 A-502 07 A-502 CG-1 6'-11" ALIGN 3'-2" 10 A-502 A-408 A-500 W2 W1 7'-7" 2'-0" A-502 07 A-502 NOTE: G.C. TO INSTALL MIN 3-1/2" NON-COMBUSTIBLE MINERAL FIBERGLASS BATT SOUND INSTULATION AT ALL RESTROOM PARTITIONS AND CEILINGS. W8 9" 7'-0" HIGH CONC. CURB 3 2'-0" 6'-11 1/2" A-403 WALL LEGEND NEW EXTERIOR WALL FRAMED WITH STRUCTURAL STEEL STUDS NEW INTERIOR WALL (FULL HT.) WALK-IN BOX PANEL NEW EXTERIOR WALL MANUFACTURER NO MFG COLOR FINISH REMARK P101 P103 P104 P106 MANUFACTURER NO PRODUCT MFG STAIN COLOR FINIISH REMARK MANUFACTURER WP1 NO DESCRIPTION COLOR FINISH MFG REMARK WP2 WP3 FRAME DOOR MATERIAL NO. SIZE FACE/EDGE THK. CORE LITE RATE ROOM NAME FLOOR BASE WALL CEILING P9B P9As QZ-5 ROOM WOMEN'S VESTIBULE ROOM 108 107 AREA SERVING DINING ROOM STATION KITCHEN DRIVE-THRU MEN'S WALK-IN FREEZER COOLER WALK-IN 105 105A 106 104 103 102 100 101 PREP. KITCHEN INSTALLED AND FURNISHED BY. G.C. UNLESS NOTED OTHERWISE INSTALLED AND FURNISHED BY. G.C. UNLESS NOTED OTHERWISE INSTALLED AND FURNISHED BY. G.C. UNLESS NOTED OTHERWISE T200 24" TILE T109 6" 36" TILE P101, P104 PAINT T109 TILE W102 WALL COVERING C1 ARMSTRONG, SEPIA #PN91311 C3 GYP BOARD W/ PAINT P103 T109 TILE C3 GYP BOARD W/ SMOOTH WASHABLE PAINT WP1 FRP PANEL C2 SUSPENDED GRID WASHABLE VINYL COATED GYP BOARD PANELS WP3 S.S. BEHIND COOK LINE WP1 FRP PANEL C2 SUSPENDED GRID WASHABLE VINYL COATED GYP BOARD PANELS WP1 FRP PANEL C2 SUSPENDED GRID WASHABLE VINYL COATED GYP BOARD PANELS S.S. ALUMINUM WITH RADIUS EXT S.S. INT ALUMINUM GALVANIZED S.S. S.S. ALUMINUM WITH RADIUS EXT S.S. INT ALUMINUM GALVANIZED S.S. ALUMINUM GALVANIZED STAINLESS STEEL ALUMINUM GALVANIZED STAINLESS STEEL T200 24" TILE SCHLUTER T108 TILE C3 GYB BOARD W/ P101 SMOOTH WASHABLE PAINT T200 24" TILE SCHLUTER T108 TILE C3 GYB BOARD W/ P101 SMOOTH WASHABLE PAINT T200 24" TILE T109 6" 36" TILE P104 PAINT GYB BOARD T109 TILE C3 GYB BOARD W/ P101 SMOOTH WASHABLE PAINT ALUMINUM STOREFRONT 3'-0" 7'-0" ALUM. DARK BRONZE ANODIZED ALUM. HOLLOW GLASS3'-6" 7'-0" HOLLOW GLASS---ALUMINUM STOREFRONT SOLID SOLID INSUL. PLASTIC LAMINATE PRE-FINISHED PAINTED MTL. 3'-0" 7'-0" 3'-0" 7'-0" 3'-6" 7'-0" S.C. WOOD S.C. WOOD CRANE COMPOSITES INC. F.R.P. THICKNESS: .075 - S.S. PANEL GA) - S.S. PANEL GA) LBCS.14#636 (GRAY), SM/SM BRUSHED FINISH DIAMOND PATTERN FINISH CONTACT: LINDA RUSE 310.857.9036 FURNISHED BY PX, INSTALLED G.C. FURNISHED BY PX, INSTALLED G.C. NOT USED SHERWIN-WILLIAMS SHERWIN-WILLIAMS SHERWIN-WILLIAMS SHERWIN-WILLIAMS SHERWIN-WILLIAMS SW 7065 SW 7032 SW 6252 SW 6155 SW 7020 ARGOS WARM STONE ICE CUBE RICE GRAIN BLACK FOX PROMAR 200, ZERO VOC, LATEX SEMI-GLOSS PROMAR 200, ZERO VOC, LATEX EGG-SHELL PROMAR 200, ZERO VOC, LATEX EGG-SHELL PROMAR 200, ZERO VOC, LATEX EGG-SHELL DTM ACRYLIC GLOSS, LOW VOC REAR SERVICE DOOR DROPPED SOFFITS RESTROOM RESTROOM VESTIBULE CEILING, DINING RM. WALLS, RESTROOM VESTIBULE WALLS RESTROOM DOOR FRAMES LCD NICHE (BACK WALL) STORAGE 109 ROOM T200 24" TILE T109 6" 36" TILE C3 GYB BOARD W/ P101 SMOOTH WASHABLE PAINT INSTALLED AND FURNISHED BY. G.C. UNLESS NOTED OTHERWISE NOTE: THE FOLLOWING STAINLESS STEEL PROVIDED PX--INSTALLED BY G.C.: 1. PANEL DIVIDERS WP3 INSIDE CORNER AT WP3 TO WP2 FLASHING TOP OF BASE WP3 WP2 PIECE AT LENGTH OF WALL NOTE: THE FOLLOWING STAINLESS STEEL PROVIDED G.C.-INSTALLED BY G.C.: INSTALL 18 GA STAINLESS STEEL CORNER GUARD WALL CAP INSIDE KITCHEN 01-11-19 CG-1 GA. STAINLESS STEEL CORNER GUARD FULL HT. WC-1 GA. STAINLESS STEEL WALL CAP CG-2 GA. STAINLESS STEEL CORNER GUARD/FRAME ALL AROUND PERIMETER OF OPENING FRAME TO BE WELDED WITH MITERED CORNERS TO FORM SINGLE UNIT. FINISH SCHEDULE DOOR HARDWARE SCHEDULE WALL PANEL SCHEDULE SPECIAL SURFACE SCHEDULE INTERIOR PAINT SCHEDULE TILE SCHEDULE (SEE SHEET A-104) 110 W101 W102 WP6 WOLF GORDON -P205 SHERWIN-WILLIAMS SW 7675 SEALSKIN PROMAR 200, ZERO VOC, LATEX EGG-SHELL NEW INTERIOR WALL (LOW WALL - REF. ELEV. & DETAILS) WP4 WP1 FRP PANEL P102 NOT USED INSTALLED AND FURNISHED BY. G.C. UNLESS NOTED OTHERWISE DESCRIPTION NO. 3-5/8" 20GA. METAL STUD WALL W/ TYPE GYP. BOARD BOTH SIDES (SEE ARCHITECTURAL DETAILS ELEVATIONS) 20GA. METAL STUD WALL W/ TYPE GYP. BOARD ONE SIDE (SEE ARCHITECTURAL DETAILS ELEVATIONS) 3-5/8" 20GA. METAL STUD WALL W/ TYPE GYP. BOARD ON ONE SIDE (SEE ARCHITECTURAL DETAILS ELEVATIONS) 3-5/8" 20GA. METAL STUD WALLS W/ TYPE GYP. BOARD BOTH SIDES (SEE ARCHITECTURAL DETAILS ELEVATIONS) 20GA. METAL STUD WALL W/ TYPE GYP. BOARD BOTH SIDES (SEE ARCHITECTURAL DETAILS ELEVATIONS) WALL SCHEDULE 3-5/8" 20GA. METAL STUD LOW WALL TYPE "X" GYP. BD BOTH SIDES. PROVIDE KNEE-WALL BRACE/POST CORNERS AND O.C. P105 NOT USED NOT USED NOT USED NOT USED CONTACT: CATHY DY 310.770.1165 cathy.dy@wolfgordon.com MTL. DARK BRONZE ANODIZED ALUM. NOT USED 20GA. METAL STUD LOW WALL W/ TYPE GYP. BOARD BOTH SIDES. PROVIDE KNEE-WALL BRACE/POST @ CORNERS AND 48" O.C SERVICE LINE SOFFIT ALUM. MTL. HOLLOW METAL BUTT HARDWARE HINGE STOP ACCESSORIES REMARKS KICKPLATE ON EACH SIDE OF DOOR KICKPLATE ON INT. SIDE OF DOOR CONTRACTOR TO PURCHASE DOOR HARDWARE FRAME DIRECTLY FROM PANDA'S NATIONAL ACCOUNT SUPPLIER. SUPPLIER PROVIDE ALL STOREFRONT DOOR HARDWARE, P-LAM DOORS FRAMES AND HM DOORS FRAMES CONTACT FOR QUOTING, ORDERING LOGISTICS JERRY JACOBS, PROJECT MANAGER 800-887-4307 EXT. 220 PHONE jerryj@locknet.com, panda@locknet.com CONTACT FOR GENERAL ACCOUNT NEEDS ANGIE HAINES, ACCOUNT MANAGER 800-887-4307 EXT. 145 PHONE 859-509-4031 MOBILE AngieH@locknet.com, panda@locknet.com ADDITIONAL CONTACTS: THOMAS DOWNS, SALES MANAGER; ThomasD@locknet.com; 800-887-4307 x116 ROB OWEN, DIR. BUSINESS DEVELOPMENT; RobO@locknet.com; 606-748-2065 PLASTIC LAMINATE PRE-FINISHED SEALED CONCRETE, SMOOTH FINISH -EXTERIOR STORAGE HOLLOW METAL PAINTED 3'-0" 7'-0" MTL. INSUL. WP1 FRP PANELC3 GYB BOARD W/ P101 SMOOTH WASHABLE PAINT CG-1A GA. STAINLESS STEEL CORNER GUARD 4'-0" HIGH PROVIDE PULL EXTERIOR SIDE 111 ENTRY VESTIBULE C3 GYB BOARD W/ P101 SMOOTH WASHABLE PAINT T200 24" TILE M100 MAT T109 6" 36" TILE P104 PAINT T109 TILE ALUM. STORE. VESTIBULE 3'-0" 7'-0" ALUM. DARK BRONZE ANODIZED ALUM. HOLLOW GLASS-HOLLOW METAL PAINTED 3'-0" 7'-0" MTL. INSUL. QZ-6 QZ-7 CORIAN ARTIFICIAL QUARTZ - LONDON SKY POLISHED SERVICE COUNTER DRINK STATION PROVIDED PX, INSTALLED G.C. W103 WOLF GORDON CLOUD WALLCOVERING - - CONTACT: CATHY DY 310.770.1165 cathy.dy@wolfgordon.com NOTE!!!! CONTRACTOR HAS THE OPTION PURCHASE STOREFRONT HARDWARE FROM OTHER SOURCE, PROVIDED THE HARDWARE PER SPECS, SUBSTITUTIONS ALLOWED. STOREFRONT HARDWARE SPECS ARE PROVIDED THE PROJECT PACKAGE. COORDINATE WITH PANDA PROJECT MANAGER LISTED SHEET G-001 ALL OTHER STAINLESS STEEL BY G.C. NOTE: *ALL INTERIOR DIMENSIONS ARE FACE OF GYPSUM BOARD TO GYPSUM BOARD 1/2" 20GA. METAL STUD FURRING TYPE "X" GYP. BOARD ON ONE SIDE. REFER DETAILS FOR FURRING DISTANCE WITH LOUVERED VENT BUG SCREEN KICKPLATE ON VESTIBULE SIDE DOOR CORIAN ARTIFICIAL QUARTZ - PORTORO POLISHED S1 PLAIN S2 ABRASIVE HIGH TRAFFIC AREAS S1 6" CONT. (KITCHEN EQUIPMENT ON NSF APPROVED LEGS) GALVANIZED STAINLESS STEEL S1 SILIKAL UNDER WIF SUBFLOOR S1 PLAIN S2 ABRASIVE HIGH TRAFFIC AREAS S1 PLAIN S2 ABRASIVE HIGH TRAFFIC AREAS S1 PLAIN S2 ABRASIVE HIGH TRAFFIC AREAS S1 PLAIN S2 ABRASIVE HIGH TRAFFIC AREAS S1 6" CONT. (KITCHEN EQUIPMENT ON NSF APPROVED LEGS) S1 6" CONT. (KITCHEN EQUIPMENT ON NSF APPROVED LEGS) S1 6" CONT. (KITCHEN EQUIPMENT ON NSF APPROVED LEGS) RED BAMBOO C&P PANDA DRAWN ISSUE REVISIONS: Express None A-103 1 Scale= 1/4" 1'-0" FLOOR PLAN NOTE: SEE SHEET A-000 FOR ADDITIONAL INFORMATION LSP-101 1 Scale= 1/4" 1'-0" LIFE SAFETY PLAN 165 33" 195 39" 195 3'-8" 69'-0" 3'-5" > > > > > > > > > > > > > > > > > > > > > > 34'-1" > > > > > > > > > > > > > > 41'-1" 3'-8" 3'-8" > > > > > 3'-8" 3'-2" 60'-4" 1/2DIAGONALDISTANCE30'-2" PROVIDE ONE TACTILE SIGN STATING "EXIT" NEXT EACH EXIT DOOR. SIGN SHALL COMPLY WITH ANSI A117.1 SIGNS SHALL LETTERS AND CHARACTERS SHALL BE WHITE. BACKGROUND SHALL BE BLACK LETTER WIDTH TO HEIGHT RATIO 3:5 MIN., 1:1 MAX. STROKE WIDTH TO HEIGHT RATIO MIN., 1:10 MAX. LETTERS SHALL BE SIMPLE SERIF TYPE, UPPERCASE, HIGH, AND SHALL RAISED 1/32". BRAILLE CHARACTERS SHALL BE GRADE BRAILLE. DOTS SHALL 1/10" CENTER EACH CELL, WITH 2/10" SPACE BETWEEN CELLS. DOTS SHALL BE RAISED MINIMUM 1/40" ABOVE THE BACKGROUND. SIGNS SHALL MOUNTED ON THE LATCH SIDE OF THE DOOR. SIGNS SHALL BE 60" AFF AND FROM DOOR OPENING (EACH MEASURED CENTER OF SIGN). TYPE SEATING TOP TABLES TOP TABLES TOP TABLES GRAND TOTAL HANDICAP SEAT CALCULATION INTERIOR: TOTAL SEATS 5% REQUIRED PROVIDED SEATS) SEATS SEATS) SEATS SEATS) SEATS SEATS SYMBOL INDICATES ACCESSIBLE SEATING. AT EACH ACCESSIBLE SEAT, THE UNDERSIDE OF THE TABLE WILL BE 27" AFF MIN. THE TOP THE TABLE WILL 34" AFF MAX. 30" WIDE WHEEL CHAIR WILL ABLE EXTEND UNDER THE TABLE MIN. OF 19" FROM THE EDGE OF THE TABLE TOP. SYMBOL INDICATES FIRE EXTINGUISHER (10 LB-4A40BC) WITH MOUNTING BRACKET. ONE EACH TO BE MOUNTED NEXT THE MAIN EXIT DOORS FROM THE MAIN BUILDING. MOUNT 44" AFF MAX. PROVIDE BLOCKING WALL FOR MOUNTING SUPPORT NEEDED. GC TO COORDINATE EXACT TYPE, LOCATION, AND MOUNTING HEIGHT WITH LOCAL FIRE OFFICIAL AS REQUIRED. SYMBOL INDICATES TYPE FIRE EXTINGUISHER WITH MOUNTING BRACKET. BE MOUNTED KITCHEN IN THE LOCATIONS INDICATED. MOUNT 44" AFF MAX. PROVIDE BLOCKING WALL FOR MOUNTING SUPPORT AS NEEDED. GC TO COORDINATE EXACT TYPE, LOCATION, AND MOUNTING HEIGHT WITH LOCAL FIRE OFFICIAL AS REQUIRED. SYMBOL INDICATES EMERGENCY "EXIT" ILLUMINATED SIGN FIXTURE. STARTING POINT MOST REMOTE POINT EGRESS DOOR CLEAR OPENING EGRESS CAPACITY (PEOPLE) 200 EGRESS PATH KNOX BOX > PROVIDE WALL BLOCKING SUPPORT WHERE REQUIRED FINISH FLOOR WALL MOUNTED CLASS FIRE EXTINGUISHER AMEREX LITER 2A:K MODEL #B260 WITH MOUNTING BRACKET LOCATED KITCHEN. PUBLIC AREAS PROVIDE INDICATED PLANS AMEREX 10LB 4A:80B:C MODEL B456 FIRE EXTINGUISHERS WITH MOUNTING BRACKET (COORDINATE LOCATIONS WITH FIRE MARSHAL) EXIT LIGHTS SHALL BE PROVIDED AT ALL EXTERIOR DOORS ALONG THE EGRESS PATH. EMERGENCY LIGHTING SHALL BE PROVIDED AS REQUIRED CODE. REFER ELECTRICAL LIGHTING PLAN. ALL DOOR HARDWARE SHALL MEET ALL APPLICABLE CODE REQUIREMENTS FOR EGRESS AND HANDICAP ACCESSIBILITY. ALL DIMENSIONS SHOWN THIS PLAN ARE MINIMUM CLEAR DIMENSIONS. SHALL INSTALL KNOX BOX AT THE MAIN ENTRANCE. GC SHALL COORDINATE THE EXACT LOCATION, MOUNTING HEIGHT, AND TYPE WITH THE LOCAL FIRE OFFICIAL. POST OCCUPANT LOAD PER LOCAL CODE. SEE COVER SHEET G-001 FOR OCCUPANT BREAKDOWN. L4HO LSP-101 2 NTS LIFE SAFETY PLAN LSP-101 3 NTS SEATING CALCULATIONS LSP-101 4 NTS SYMBOLS LSP-101 5 NTS FIRE EXTINGUISHER DETAILS LSP-101 6 NTS GENERAL NOTES LSP-101 LIFE SAFETY PLAN C&P PROJECT #: PANDA PROJECT DRAWN BY: ISSUE DATE: REVISIONS: ideas, designs, arrangement and plans indicated represented by this drawing are property Panda Express Inc. and were created for use this specific project. None these ideas, designs, arrangements plans may be used disclosed to any person, firm, corporation without the written permission Panda Express Inc. 1683 Walnut Grove Ave. Rosemead, California 91770 Telephone: 626.799.9898 Facsimile: 626.372.8288 PANDA RESTAURANT GROUP INC. PANDA EXPRESS TRUE WARM AND WELCOME 2300 EXCHANGE BLVD AT LOGANVILLE HWY BETHLEHEM, GA 306201925 Prospect Ave. Orlando, FL 32814 (407) 661-9100 (407) 661-9101 Florida Corporate Certificate #AA C000526 06.04.2020 2200025 S8-21-D7630 TRUE WARM & WELCOME 2300 R2 02.21.2020 ISSUE FOR PERMIT 04.23.2020 ISSUE FOR BID 06.04.2020 ISSUE FOR CONSTRUCTION N 04.23.2020 ISSUE FOR BID JDV NOTE: SEE SHEET A-000 FOR ADDITIONAL INFORMATION

Hard Rock Cafe - Atlanta

Remodel

Atlanta, GA

Scope of work: New remodel of existing Hard Rock Cafe Atlanta space. Remodel work includes main bar relocation. Complete renovation of the existing pass through area to the kitchen preparation area, expansion to the existing Rock Shop with updated lighting and finishes, and expansion of the Velvet Underground entry. Minor exterior work includes removing existing fabric awnings and renovation/repair of cantilevered cable overhang.

Project role: project coordinator and point of contact

Year: 2019-2020

N.I.C. STAIRS N.I.C. N.I.C. VELVET UNDERGROUND 115 ROCK SHOP MAIN BAR 103 KITCHEN PREP 109 DINING ROOM 104 BACK HOUSE 110 COVERED STOOP VELVET UNDERGROUND BAR 114 STAGE 111 VELVET MEN'S 113 VELVET WOMEN'S 112 PRIVATE DINING 105 WOMEN'S RESTROOMS 108 MEN'S RESTROOMS 107 RESTROOMS VESTIBULE 106 VESTIBULE 100 CHANGING ROOM 119 ENTRY BAR LOUNGE 102 ROCK SHOP ENTRY GREEN ROOM DESCRIPTION SYMBOL KEYNOTE LEGEND ACCESSIBLE PATH OF TRAVEL A100 AWA, ER N 1/8" 1'-0" ARCHITECTURAL SITE PLAN PEACHTREE STREET ANDREW YOUNG INTERNATIONAL BLVD ALLEY SITE PLAN KEYNOTE KEYNOTE DESCRIPTION 1EXISTING SIDEWALK REMAIN 2EXISTING COVERED ENRY AREA TO REMAIN 3EXISTING PLANTER AREA REMAIN 4EXISTING TREE TO REMAIN 5MAIN ENTRY REMAIN 6EXISTING STREET LIGHT TO REMAIN 7EXSITNG CANOPY REMAIN TYP. TYP. NOTE: -NO BUILDING ELEMENTS PROTRUDE INTO EXISTING SIDEWALK. ALL EXISTING CLEARANCE TO REMAIN. -GC PROVIDE EXTERIOR BARRICADE WALL DURING ANY A EXTERIOR CONSTRUCTION PROTECT GENERAL PUBLIC FROM HAZARD. -ANY NECESSARY SCAFOLDING DURING CONSTRUCTION HARD CEILING FOR PEDESTRIANS TO WALK UNDER. TYP. 1 2 A C D E B3 B2 A405 A123 MAIN BAR 103 A405 A405 A405 TYP. TYP. TYP. TYP. B3 TYP. N.I.C. 1/2" 17' 1/2" A303 1/2" 10 1/2" 17' 9" 4" 10" A406 A406 BAR LOUNGE 102 A406 A406 B8 TYP. VESTIBULE 100 100B 100C 100A 11" 8" 1/2" TO WALL STUD 1/2" CONC. CURB1 3 4 3.1 4.1 F G TYP. TYP. A405 KITCHEN PREP 109 C5 C6 1/2" 1/2" C6 1/2" B6 C7 BACK HOUSE 110 RESTROOMS VESTIBULE ROOM ABOVE 104A 10 1/2" A406 A407 A701 A501 2 C A501 TO CONC. CURB 1/2" 1" 12' 10 1/2" B6 B10FACE OF CONC. CURB 30' 1/2" FACE OF CONC. 36' 11" 1/2"1/2" 37' 11"2"1/4" 1'-0" ENLARGED FLOOR PLANS -MAIN BAR 1/4" 1'-0" ENLARGED FLOOR PLANS -KITCHEN PREP KEYNOTE ROCK SHOP A1NEW A2NEW A3COLUMN A4NEW A5NEW A6NEW A7NEW A8NEW A9NEW A10FIXED A11NEW A12EXISTING A13NO A14RELOCATED A15NEW A16NEW A17NEW A18NEW MAIN BAR B1NEW B2NEW B3FURNITURE B4NEW B5NEW B6NEW B7NEW B8COLUMN B9NEW B10NEW KITCHEN PREP C1NEW C2RELOCATED C3NEW C4NEW C5NEW C6NEW C7REUPHOLSTERED C8MOBILE 3/8" 1'-0" ENLARGED MAIN BAR A C D E B3 A405 A123 MAIN BAR 103 A405 A405 A405 TYP. TYP. B3 TYP. B3 TYP. B3 TYP. 6' 3 1/2" 1/2" 15' 17' 1/2" A3 A303 11 1/2" 10 11 10 1/2" 4" 17' 4" 17' 10" A406 A406 BAR LOUNGE A406 A406 TYP. B9 B5 B5 VESTIBULE 100 100B 100C 100A 11" 1/2" TO WALL STUD 1/2" TO CONC. CURB2 3 4 3.1 4.1 G TYP. C1 TYP. A405 KITCHEN PREP 109 C2 C5 C2 1/2" 1/2" C1 1/2" B6 BACK HOUSE 110 RESTROOMS VESTIBULE 106 DJ ROOM ABOVE 104A 10 1/2" A406 A407 A701 A501 5.LABEL/ IDENTIFY ALL PIPES AND DATA TO SOURCE EQUIRED. 6.THE CONTRACTOR RESPONSIBLE FOR ALL COORDINATIO BETWEEN SUBCONTRACTORS ON THE ENTIRE SET OF THESE DOCUMENTS. EXTRA COMPENSATION WILL GIVEN TO BIDDER OR SUPPLIER WHO HAS BID FROM AN INCOMPLETE SET CONSTRUCTION DOCUMENTS. IN CASE OF INCONSISTENCIES DISCREPANCIES BETWEEN DRAWINGS MOST STRINGENT NOTE OR CONDITION SHALL APPLY. THE CONTRACTOR SHALL NOTIFY THE ARCHITECT IMMEDIATELY OF SUCH DISCREPANCIES. 7.IT THE RESPONSIBILITY THE CONTRACTOR LD VERIFY ALL SITE CONDITIONS AND DIMENSIONS PRIOR TO STARTING CONSTRUCTION. THE CONTRACTOR SHALL NOTIFY THE ARCHITECT IMMEDIATELY ANY DISCREPANCIES. 8.THE CONTRACTOR RESPONSIBLE FOR MAINTAINING URRENT SET CONSTRUCTION DRAWINGS ON SITE DURING CONSTRUCTION. THE CONTRACTO SHALL INDICATE ON THESE DRAWINGS ALL APPROVED CHANGES TO THE WORK. THIS SET DRAWINGS SHALL BE TURNED OVER TO THE ARCHITECT WHEN THE PROJECT COMPLETE. 9.IF ANY ERRORS, DISCREPANCIES OMISSIONS APPEAR THESE DRAWINGS, SPECIFICATIONS OTHER CONTRACT DOCUMENTS, THE CONTRACTOR SHALL OTIFY THE ARCHITECT IMMEDIATELY. 10.NO MATERIAL SUBSTITUTIONS WILL BE ALLOWED UNLESS SUBMITTED WRITING THE ARCHITECT FOR APPROVAL WRITING. 11.THE CONTRACTOR SHALL BE RESPONSIBLE FOR THE CLEA UP OF ALL TRADES. 12.THE CONSTRUCTION DOCUMENTS ARE NOT SCALED. 13.UPON COMPLETION CONSTRUCTION, WILL BE THE RESPONSIBILITY OF THE CONTRACTOR LEAVE THE AREA DUST FREE AND CLEAN. 14.ALL CONSTRUCTION TO CONFORM TO ALL APPLICABLE CODES AND ORDINANCES. 15.ALL WORK SHOWN ON THESE DRAWINGS PERFORMED BY THE GENERAL CONTRACTOR UNLESS NOTED OTHERWISE. 16.DURING CONSTRUCTION, GC SHALL PROVIDE AND MAINTA FIRE EXTINGUISHERS REQUIRED THE LOCAL FIRE DEPARTMENT FIELD INSPECTOR. LOCATION FIRE EXTINGUISHER DIRECTED FIRE MARSHALL. 17.ALL ITEMS LABELED "PROVIDED OWNER" PURCHAS THE OWNER AND INSTALLED BY THE CONTRACTOR. 18.GENERAL CONTRACTOR SHALL COMPLY WITH ALL REQUIREMENTS OF THE AMERICANS WITH DISABILITIES ACT AND ANY ACCESSIBILITY CODES. WHEN CONFLICT, THE MORE STRINGENT OF THE TWO STANDARDS SHALL GOVERN. ALL ITEMS TO INCLUDE BID PRICE. 19.INSTALL ALL WORK WITH APPROVED FASTENERS, AS REQUIRED TO HOLD WORK SECURE, LEVEL, PLUMB AND TRUE TO LINE. FASTENERS BE SET BELOW HE FINISHED SURFACES, FILL HOLES WITH WOOD PUTTY OR OTHER APPROVED MATERIALS, SAND FLUSH WITH THE SURFACE TO BE UNDETECTABLE THE FINISH. BLIND NAIL WHENEVER POSSIBLE. ROUND ALL EXPOSED EDGES ASSEMBLES TO RADIUS. 20.ALL WOOD AND PLYWOOD FIRE RETARDANT AND BELED ACCORDINGLY REQUIRED KITCHEN AREAS. 21.GC SHALL PROVIDE ALL FLOOR LEVELING, PATCHING, ND REMEDIAL REPAIRS REASONABLY REQUIRED BY THE SCOPE OF WORK. "REPAIRS" INCLUDE, ARE NOT LIMITED TO, WORK REQUIRED PROVIDE SMOOTH AND EVEN TRANSITION BETWEEN SPACES, AND TO PREPARE ROUGH SURFACES FOR NEW FINISHES. PATCH AND REPAIR EXISTIN SURFACES TO MATCH SIMILAR ADJACENT SURFACES ALL ASPECTS. 22.PROVIDE AND/ OR MAINTAIN FIRE RATED ASSEMBLES WHERE SHOWN, OR REQUIRED. SHALL SEAL AROUND ALL WALL FLOOR AND CEILING PENETRATIONS WITH FIRE RESISTANT PUTTY. 23.GC RESPONSIBLE TO PROVIDE AND INSTALL ANY AND ALL ACCESS PANELS AS REQUIRED. 24.ALL EXPOSED WOODWORK TO RECEIVE PAINT FINISH SHA BE SANDED SMOOTH PRIOR FINISHING WITH SAND PAPER NO COARSER THAN NO. ILL OPEN JOISTS AND SAND SMOOTH AND FLUSH. 25.PROVIDE ALL NECESSARY AND FILLERS. CONCEAL ALL FASTENERS UNLESS OTHERWISE NOTED. 26.DAMAGE DURING CONSTRUCTION WILL BE THE CONTRACTOR'S EXPENSE. SURVEY THE PROJECT PRIOR TO DEMOLITION. REPORT EXISTING DAMAGE TO ARCHITECT PRIOR TO STARTING THE WORK. 27.INSTALL FIE RATED BLOCKING/ PLYWOOD IN AREAS REQUIRING SHELVING. ALL PLYWOOD/ WOOD BLOCKING TO FIRE RESISTANT TREATED WOOD. 28.PROVIDE FIRE DAMPERS ALL TRANSFER DUCTS THROUGH RATED PARTITIONS. COORDINATE WITH MECHANICAL DRAWINGS. 29.METAL REVEALS SHALL BE FRY REGLET OR APPROVED EQUAL MILL FINISH, UNPAINTED. ALL INTERSECTIONS SHALL BE MITERED CORRECTLY. 30.THE GC RESPONSIBLE FOR THE PURCHASE AND INSTALLATION OF ALL ITEMS SHOWN ON THE ENTIRE SET DOCUMENTS UNLESS LISTED "BY OTHERS OR "NOT CONTRACT". 31.GC TO VERIFY THAT SIDE-FOLDING GRILLES HAVE THUMB-TURNS ON TENANT SIDE FOR SAFE OCCUPANTS EGRESS OR NOT RETRO-FIT THE EXISTIN DEAD BOLT LOCKS WITH THUMB TURN FEATURES. 32.GC TO VERIFY THAT ALL EXISTING FINISHES ARE OOD CONDITIONS 33.GC SHALL PROVIDE TRANSITION STRIPS ALL LOCATIONS WHERE DIFFERENT FLOOR MATERIALS ARE SPECIFIED AND LOCATED. 34.FLOOR PENETRATIONS REQUIRE X-RAY AND APPROVAL IOR DRILLING OR CUTTING SLABS. PENETRATIONS OF THE FLOOR GREATER THEN 1/2" REQUIRE X-RAY, REVIEW, AND OWNER APPROVAL. ON-SITE PHYSICAL LAYOUT OF SIZE AND LOCATION SHALL BE REVIEWED APPROPRIATE OWNER REPRESENTATIVE "BEFORE" ANY PENETRATIONS ARE ALLOWED. 2 C D A501 TO CONC. CURB 1/2" 6' 12' 10 1/2" 3' 11" 1/2" B6 B6 B6 A501 B10FACE OF CONC. CURB 30' 1/2" FACE OF CONC. CURB 1/2" 1/2"FACE OF CONC. CURB 36' 11" 1/2"30' 1/2" 11" 1/2"-37' 11"2"DESCRIPTION SYMBOL KEYNOTE A1 WINDOW TAG. SEE A601 WALL TYPE. SEE A701 LEGEND DOOR TAG. SEE A601 ## A123 ENLARGED FLOOR PLANS -MAIN BAR, KITCHEN PREP, AND ENLARGED BA R HARD ROCK CAFE ATLANTA, GA 30303 HARD ROCK INTERNATIONAL 5701 STIRLING RD. DAVIE, FL 33314 1/4" 1'-0" ENLARGED FLOOR PLANS -MAIN BAR 1/4" 1'-0" ENLARGED FLOOR PLANS -KITCHEN PREP AND CORE DRILLED BASE PLATE A9NEW WALL FURR OUT. SEE INTERIOR ELEVATIONS FOR DIRIONAL INFOMATION. A10FIXED WINDOWS ALUMINUM FRAMES. REF: A601 A11NEW FLOOR SLAB INFILL TO MATCH EXISTING ROCK SHO FLOOR ELEVATION A12EXISTING ELECTRICAL PANEL TO REMAIN GC TO PROTEC DURING CONSTRUCTION. SEE ELECTRICAL DRAWINGS FOR ADDITIONAL INFORMATION. A13NO CONSTRUCTION WORK THIS AREA A14RELOCATED FIRE EXTINGUISHER SEE A101 FOR MOUNTIN HEIGHT A15NEW FINISH TO MATCH ADJACENT FINISHES EXISTING SAME WALL. SEE INTERIOR ELEVATIONS FOR ADDITIONAL INFORMATION. A16NEW EXTERIOR POST AND CABLE RAILING AT LANDING STAIRS. STAINLESS STEEL, DECK CORE DRILLED WITH FLAT BVRUSHED FINISH TOP RAI AND STEM REDUCER. A17NEW WALL OVER 1/2" AIR GAP OVER EXISTING CMU WALL WITH 5/8" GYP BOARD FINISH ON ONE SIDE FOR GUITAR FEATURE SUPPORT. A18NEW AUGMENTED REALITY GUITAR FEATURE. DRAWINGS NDER SEPARATE COVER MAIN BAR B1NEW BAR COUNTER AND WALL. B2NEW LOW WALL. SEE INTERIOR ELEVATION AND WALL TYPES FOR ADDITIONAL INFORMATION. B3FURNITURE BY OWNER B4NEW BAR EQUIPMENT. SEE FOOD SERVICE DRAWINGS FOR ADDITIONAL INFORMATION. B5NEW FLOORING SEE FINSH SCHEDULES B6NEW FLOOR DRAIN/SINK. RE: PLUMBING FOR MORE INFORMATION B7NEW AUGMENTED REALITY FEATURE. DRAWINGS UNDER SEPARATE COVER B8COLUMN RECEIVE NEW PAINT. REF: FINISH SCHEUDLE B9NEW WALL INFILL. B10NEW CONCRETE BASE KITCHEN PREP C1NEW KITCHEN EQUIPMENT. SEE FOOD SERVICE DRAWINGS FOR EQUIPMENT SCHEDULES AND ADDITIONAL INFORMATION.SEE MECHANICAL ELECTRICAL, PLUMBING DRAWINGS FOR ADDITIONAL INFO. C2RELOCATED ELECTRICAL PANEL TO REMAIN. SEE ELECTRICAL DRAWINGS FOR ADDITIONAL INFORMATION C3NEW SERVER COUNTER AND DIE WALL. C4NEW POS COUNTER C5NEW FULL HEIGHT WALL. RE: INTERIOR ELEVATIONS FOR ADDITIONAL INFORMATION C6NEW LOW WALL. SEE INTERIOR ELEVATION AND WALL TYPES FOR ADDITIONAL INFORMATION. C7REUPHOLSTERED BOOTH AND TABLE. FINISH STAIN MEDIUM WALNUT 20% GLOSS, (WITH EPOXY RESIN AND SCRATCH RESISTANT NISH). SEE FINISH SCHEDULE FOR ADDITIONAL INFOMATION C8MOBILE EXPO COUNTER. SEE FOOD SERVICE DRAWINGS MORE INFOMATION 3/8" 1'-0" ENLARGED MAIN BAR O S C O D

9'10 1/2" E.Q. SK.05.1 3 5

1 TUNNEL PLAN

3/32" = 1'-0"

8"

9'

- 4"

2 TUNNEL ELEVATION B

3/32" = 1'-0"

4 VELVET UNDERGROUND TUNNEL

2 1/2"

VELVET UNDERGROUND RIBS TUNNEL

ROCK CAFE 215 PEACHTREE STREET ATLANTA, GA 30303 AWA, ER

SHEET TITLE PROJECT NAME CLIENT NAME CHECKED DRAWN 8 / 8 / 2 0 1 9 1 0 : 2 0 : 4 5 A M HARD

BAR SEATING -2' - 4"

3 TUNNEL ELEVATION C

3/32" = 1'-0"

3 TUNNEL ELEVATION C

3/32"

5 TUNNEL ELEVATION A

3/16" = 1'-0"

RGBW 5.8W LED TAPE-IP20. SEE CUTSHEETS ATTACHED FOR HOUSING AND TAPE

PL-03 BLOCKING

2X8 FRT BLOCKING

0.43" BLOCKING RECESS

2X4 FRT BLOCKING

2X8 FRT BLOCKING

SEE FINISH SCHEDULE PL-03

2X8 FRT BLOCKING

2X4 FRT BLOCKING

BLOCKING

RECESS 0.63"

SQUARE FLANGED

EXTRUSION HOUSING WITH SQUARE ENDCAP

WOOD FASTENERS

2X8 FRT BLOCKING

2X4 FRT BLOCKING

2X8 FRT BLOCKING

SEE FINISH SCHEDULE PL-03

INDIVIDUAL TRANSFORMER REQUIRED FOR EACH RIB SYSTEM ABOVE CEILING.

CONTINUOUS STEEL FLAT BAR STOCK TO RUN OVER AND ATTACH TO ALL RIBS.

PL-04

SEALANT

1x1x1/8 BRASS SQUARE TUBE

SEALANT

LED LIGHT

3/4" PLYWOOD

SEE FINISIH SCHEDULE

2x4 FRT WOOD BLOCKING

CONTINUOUS 1/2 1 1/2 x 1/8 BRASS ANGLE

7 1/2"

2X BLOCKING

1/2 1 1/2 x 1/8 BRASS ANGLE. CUT TO CONCEAL BEHIND POST

MF-04

MF-06

MF-05

1/2" = 1'-0" 2 SECTION AT BEAM -B 1 1/2" = 1'-0" 1 SECTION AT BEAM -A 1 1/2" = 1'-0" 3 BEAM -POST CONNECTION SEATING -2' - 4" 14' - 2 1/2" 9'5 1/2" BAR SEATING -2' - 4" OPEN TO BEYOND 2 SK.05.2 SK.05.2 1 SK.05.2 5A 14'2 1/2" E.Q. 9'10 1/2" E.Q. 10'2 1/2" SHEET TITLE PROJECT NAME CLIENT NAME 8 / 8 / 2 0 1 9 1 0 : 2 0 : 4 5 A M HARD ROCK CAFE 215 PEACHTREE STREET ATLANTA, GA 30303 07/17/19 AWA, ER HARD ROCK INTERNATIONAL 5701 STIRLING RD. DAVIE, FL 33314 SK.05.1 VELVET UNDERGROUND RIBS TUNNEL 3/16" = 1'-0" 5 TUNNEL ELEVATION A 4 VELVET UNDERGROUND TUNNEL BAR SEATING 0'-0" T.O. CEILING 12'-4" EXISTING EQUIPMENT TO REMAIN 1'2 1/2" 1'3" 1'3" 1'3" 2'1 1/2" 7'

1

2" ROCK INTERNATIONAL RD. TUNNEL

3/4" = 1'-0" 4 BAR SECTION 3"

WC-05

2 BACK BAR WOOD TRIM DETAIL

BAR COUNTER SOLID SURFACE TO REMAIN

SHEET TITLE PROJECT NAME CLIENT NAME PROJECT NO. 8 / 8 2 0 1 9 1 0 2 9 1 7 A M HARD ROCK CAFE 215 PEACHTREE STREET ATLANTA, GA 30303 07/17/19 HARD ROCK INTERNATIONAL 5701 STIRLING RD. DAVIE, FL 33314 SK.09 VELVET UNDERGROUND BAR 1/2" = 1'-0" 1 VELVET UNDERGROUND BAR 3" =

9'5 1/2" BAR SEATING -2' - 4" 10'2 1/2" 8" 14' - 2 1/2" 2 SK.05.2 SK.05.2 1 TYP. 3' - 10 1/2" EQ EQ 14'2 1/2" 2' - 0" E.Q. 9'10 1/2" E.Q. SK.05.1 3 2 5 TITLE NAME CLIENT NAME field data, notes and other documents are instruments of service preparedby: Cuhaci & Pe terson, (C & P) as instruments of service remain he property of C & P. C & P shall retain all commo n law, statutory and other reserved rights, includi ng the copyright thereto. Any use or reproduction of this Federal copyright laws. ROCK CAFE PEACHTREE STREET GA 30303 HARD ROCK INTERNATIONAL 5701 STIRLING RD. DAVIE, FL 33314 VELVET UNDERGROUND RIBS TUNNEL 3/32" = 1'-0" TUNNEL ELEVATION B 3/32" = 1'-0" TUNNEL PLAN 4 VELVET UNDERGROUND TUNNEL 9'5 1/2" BAR SEATING -2' - 4" 10'2 1/2" 8" 14' 2 1/2" 9'5 1/2" BAR SEATING -2' - 4" OPEN TO BEYOND 2 SK.05.2 SK.05.2 1 SK.05.2 5A TYP. 3' - 10 1/2" EQ EQ 14'2 1/2" 2' 0" E.Q. 9'10 1/2" E.Q. SK.05.1 2 5 BAR SEATING -2' - 4" 9'5 1/2" 10'2 1/2" SHEET TITLE PROJECT NAME CLIENT NAME CHECKED DRAWN document without written permission from C & P is a violation of Federal copyright laws. 8 / 8 / 2 0 1 9 1 0 : 2 0 : 4 5 A M HARD ROCK CAFE ATLANTA, GA 30303 AWA, ER HARD ROCK INTERNATIONAL 5701 STIRLING RD. DAVIE, FL 33314 SK.05.1 VELVET UNDERGROUND RIBS TUNNEL
= 1'-0" 2 TUNNEL ELEVATION B
= 1'-0" 5 TUNNEL ELEVATION A
3/32"
3/16"
TUNNEL PLAN
3/32" = 1'-0" 1
= 1'-0"
BAR SEATING -2'
10'
14'
9'5 1/2" BAR SEATING -2' - 4" OPEN TO BEYOND
SK.05.2
4 VELVET UNDERGROUND TUNNEL SK.05.2
5 1/2"
2 1/2"
2
SK.05.2 1
5A
TYP. E.Q.
3' 10 1/2" EQ EQ 14'2 1/2" 2' 0"
10'
HARD
9'5 1/2"
2 1/2"
ROCK INTERNATIONAL 5701 STIRLING RD. DAVIE, FL 33314
SK.05.1
TYP. 1 1/2" 2 SK.09 2 SK.09 5' 3" 2 SK.09 A503
PAINT TO MATCH CEILING
1/2"
1"
2
3 1/2"
A503
3/8" BLOCK TO MAKE BRASS FLUSH WC-05
EXISTING
4
EXISTING WALL
1'-0"
= 1'-0" 3 BAR SHELF DETAIL
119 PT-01 WC-04 PTROCK SHOPT.O. CEILINGPTWB-03 TYP. EQ EQ CHANGING ROOM SIGN. SEE A405NEW ROCK SHOP SIGNAGE BY OTHERS 11' 1/2"PT- PT-01 PTROCK SHOPT.O. CEILINGWB- TYP. AUGMENTED REALITY FEATURE BY OTHERS PTPTOPEN TO BEYOND MAIN DININGT.O. CEILINGNEW GLASS RAILING ELECTRICAL FIXTURES, SEE ELECTRICAL DRAWINGS PTWB112 PT-02 PT-02 PTPT-MAIN DININGT.O. CEILING 10'PT-01WB-03 TYP. OPEN BEYOND PT- PTROCK SHOPT.O. CEILINGMAIN DININGELECTRICAL FIXTURE, TYP. SEE ELECTRICAL DRAWINGS RELOCATED FIRE EXTINGUISHER NEW GLASS RAILING, TYP. WB-03 PT-01 - PTPTROCK SHOPT.O. CEILINGMAIN DININGNEW GLASS RAILING WB- TYP. MAIN DININGT.O. CEILINGOPEN TO BEYOND WB- TYP. MAIN DININGT.O. CEILINGOPEN BEYOND PT-01 PT-02 NEW GLASS RAILING 112 VELVET UNDERGROUNDT.O. CEILING 11'STAGERELOCATED FIRE EXTINGUISHERPTPTPT-02 PT-02PTNEW GLASS RAILING WB- TYP.A404 INTERIOR ELEVATIONS HARD ROCK CAFE 215 PEACHTREE STREET ATLANTA, GA 30303 HARD ROCK INTERNATIONAL 5701 STIRLING RD. DAVIE, FL 33314 3/8" 1'-0" INTERIOR ELEVATION -ROCK SHOP 3/8" 1'-0" INTERIOR ELEVATION -ROCK SHOP 3/8" 1'-0" INTERIOR ELEVATION -ROCK SHOP ENTRANCE 3/8" 1'-0" INTERIOR ELEVATION -MAIN DINING ROOM 3/8" 1'-0" INTERIOR ELEVATION -ROCK SHOP 3/8" 1'-0" INTERIOR ELEVATION -ROCK SHOP 3/8" 1'-0" INTERIOR ELEVATION-MAIN DINING ROOM 3/8" 1'-0" MAIN DINING INTERIOR ELEVATION NOTE: SEE SHEETS AND A127 FOR FINISH SCHEDULE. GLASS RAILINGS ALUMINUM TUBE RAILINGS ATR TECHNOLOGIES, INC. – MODEL - HAVE 1/4" CLEAR TEMPERED GLASS PANEL, AND RAILING FINISH TO BE BRUSHED ALUMINUM. 3/8" 1'-0" INTERIOR ELEVATION -VELVET UNDERGROUND PT-01 PT- PT-01ROCK SHOPT.O. CEILINGWB-03 TYP. AUGMENTED REALITY FEATURE OTHERSOPEN BEYOND MAIN DININGT.O. CEILINGNEW GLASS RAILING ELECTRICAL FIXTURES, SEE ELECTRICAL DRAWINGSWB-03 112-PTPT-02 MAIN DININGT.O. CEILINGPT-02 WB-03 TYP. PT-01 PT-PTROCK SHOPT.O. CEILINGMAIN DININGNEW GLASS RAILING WB- TYP. MAIN DININGT.O. CEILINGOPEN TO BEYOND WB-03 TYP. MAIN DININGT.O. CEILING 11'OPEN TO BEYOND PT-01 PT-02 NEW GLASS RAILING 112 VELVET UNDERGROUNDT.O. CEILINGSTAGERELOCATED FIRE EXTINGUISHERPT-02 PT-01PT- PT-02 PTNEW GLASS RAILING WB- TYP. PT-02 SHEET TITLE PROJECT NAME PROJECT NO. A404 INTERIOR ELEVATIONS HARD ROCK CAFE 215 PEACHTREE STREET ATLANTA, GA 30303 HARD ROCK INTERNATIONAL DAVIE, FL 33314 3/8" 1'-0" INTERIOR ELEVATION -ROCK SHOP 3/8" 1'-0" INTERIOR ELEVATION -ROCK SHOP 3/8" 1'-0" INTERIOR ELEVATION -ROCK SHOP ENTRANCE 3/8" 1'-0" INTERIOR ELEVATION -MAIN DINING ROOM 3/8" 1'-0" INTERIOR ELEVATION -ROCK SHOP 3/8" 1'-0" INTERIOR ELEVATION -ROCK SHOP 3/8" 1'-0" INTERIOR ELEVATION-MAIN DINING ROOM 3/8" 1'-0" MAIN DINING INTERIOR ELEVATION 3/8" 1'-0" INTERIOR ELEVATION -VELVET UNDERGROUND PT-01 PT- PT-01ROCK SHOPT.O. CEILINGWB-03 TYP. AUGMENTED REALITY FEATURE OTHERSOPEN BEYOND MAIN DININGT.O. CEILINGNEW GLASS RAILING ELECTRICAL FIXTURES, SEE ELECTRICAL DRAWINGSWB-03 112-PTPT-02 MAIN DININGT.O. CEILINGPT-02 WB-03 TYP. PT-01 PT-PTROCK SHOPT.O. CEILINGMAIN DININGNEW GLASS RAILING WB- TYP. MAIN DININGT.O. CEILINGOPEN TO BEYOND WB-03 TYP. MAIN DININGT.O. CEILING 11'OPEN TO BEYOND PT-01 PT-02 NEW GLASS RAILING 112 VELVET UNDERGROUNDT.O. CEILINGSTAGERELOCATED FIRE EXTINGUISHERPT-02 PT-01PT- PT-02 PTNEW GLASS RAILING WB- TYP. PT-02 SHEET TITLE PROJECT NO. A404 INTERIOR ELEVATIONS HARD ROCK CAFE 215 PEACHTREE STREET ATLANTA, GA 30303 HARD ROCK INTERNATIONAL DAVIE, FL 33314 3/8" 1'-0" 3/8" 1'-0" INTERIOR ELEVATION -ROCK SHOP 3/8" 1'-0" INTERIOR ELEVATION -ROCK SHOP ENTRANCE 3/8" 1'-0" INTERIOR ELEVATION -MAIN DINING ROOM 3/8" 1'-0" 3/8" 1'-0" INTERIOR ELEVATION -ROCK SHOP 3/8" 1'-0" INTERIOR ELEVATION-MAIN DINING ROOM 3/8" 1'-0" MAIN DINING INTERIOR ELEVATION 3/8" 1'-0" INTERIOR ELEVATION -VELVET UNDERGROUND VELVET UNDERGROUNDT.O. CEILINGEXISTING FINISH TO REMAIN-PT-01 PT-02 PT-02 PT-EXISTING FINISH REMAIN EXISTING FINISH REMAIN PT-02 PTOPEN TO BEYOND VELVET UNDERGROUNDT.O. CEILINGEXISTING FINISH TO REMAIN VELVET UNDERGROUNDT.O. CEILINGT.O. CEILINGOPEN TO BEYOND PT- - PT-02 - -PT-01 NEW SOLID BACK DISPLAY CASING. SURFACE TO FLUSH WITH ADJACENT WALL NEW SOLID BACK AT DISPLAY CASING. SURFACE TO FLUSH WITH ADJACENT WALL-OPEN BEYOND PT-01 PT-02 MAIN DININGT.O. CEILING 11'PT-02 T.O. CEILING 16'NEW MANTRA SIGNAGE OTHERS CENTERED SOFFIT CURVE PT-02 PTPT-03 PT- PT-03 PT-01 PT-EQ. 1/2" EQ. - PT-03 PT-02 PT-02PT- PT-01 PRIVATE DININGT.O. CEILING 10'-PROJECTOR AND RECESSED SCREEN, PROVIDED OWNER PRIVATE DININGT.O. CEILINGPT-02 PT-02 PTPT-02 PT-02 PRIVATE DININGT.O. CEILINGPT-02PT-02 EXISTING FIRE PLACE MAIN DININGB.O. SOFFIT- - PTPT-03EQ. 15' EQ. PTNEW MANTRA SIGNAGE OTHERS CENTERED SOFFIT OPEN TO BEYOND OPEN BEYOND A407 INTERIOR ELEVATIONS HARD ROCK CAFE 215 PEACHTREE STREET ATLANTA, GA 30303 HARD ROCK INTERNATIONAL DAVIE, FL 33314 3/8" 1'-0" VELVET UNDERGROUND BAR FRONT ELEVATION 3/8" 1'-0" VELVET UNDERGROUND BAR REAR ELEVATION 3/8" 1'-0" VELVET UNDERGROUND INTERIOR ELEVATION 3/8" 1'-0" INTERIOR ELEVATION -MAIN DINING ROOM 3/8" 1'-0" PRIVATE DINING INTERIOR ELEVATION 3/8" 1'-0" PRIVATE DINING INTERIOR ELEVATION 3/8" 1'-0" PRIVATE DINING INTERIOR ELEVATION NOTE: SEE SHEETS 126 AND A127 FOR FINISH SCHEDULE. GLASS RAILINGS ALUMINUM TUBE RAILINGS ATR TECHNOLOGIES, INC. – GLASS PANEL RAIL WITH EMBEDDED BASEPLATE ALL EXISTING DARK COLOR WALL SURFACES RECEIVE NEW PAINT COLOR -02 ALL EXISTING LIGHT COLOR WALL SURFACES RECEIVE NEW PAINT COLOEAGLE TOTEM POLES TO REMAIN. GC PROTECT DURING CONSTRUCTION. 3/8" 1'-0" KITCHEN PREP SOFFIT PT-02 MAIN BART.O. CEILINGANGLED HANGER, TYP. SEE AV AND ELECTRICAL DRAWINGS FOR ADDITIONAL INFORMATION 11- PT-02PT-02 OPEN TO BEYOND MAIN BART.O. CEILING 11'WB-O3 SS-02MAIN BART.O. CEILINGOPEN TO BEYONDPL-01MAIN BART.O. CEILING 11'OPEN TO BEYONDKITCHEN PREPT.O. CEILING - 1/2" POS STATION. SEE A303 OPEN TO BEYOND 16' HARD ROCK INTERNATIONAL DAVIE, FL 33314 3/8" 1'-0" MAIN BAR ELEVATION 3/8" 1'-0" BAR-LEFT ELEVATION 3/8" 1'-0" BAR-RIGHT ELEVATION 3/8" 1'-0" MAIN BAR REAR ELEVATION NOTE: SEE SHEETS 126 AND A127 FOR FINISH SCHEDULE. NEW WALL SURFACES AT INTERIOR OF KITCHEN AREA RECEIVE FRP3/8" 1'-0" KITCHEN PREP ELEVATION -A ENTRYT.O. CEILINGOPEN TO BEYOND WC-02 AUGMENTED REALITY GUITAR FEATURE OTHERS 28' 1/2" OPEN TO BEYOND PT-02 BAR LOUNGET.O. CEILINGFURNITURE BY OWNER SEE FINISH SCHEDULE FOR ADDITIONAL INFORMATION WBOPEN TO BEYOND WC-03BAR LOUNGET.O. CEILING 11'FURNITURE BY OWNER SEE FINISH SCHEDULE FOR ADDITIONAL INFORMATION WB-03 TYP. EXISTING WALL BE BROUGHT TO SMOOTH SURFACE AND PREPARED RECEIVE NEW WALL COVERING. FIELD VEIFY LOCATION OF EXISTING DISPLAY CASING ACCESS PANEL AND PROVIDE SAME CONDITION ACCESS COVER.OPEN TO BEYOND ENTRYT.O. CEILING 11'HOST STAND, SEE A303AUGMENTED REALITY GUITAR FEATURE BY OTHERS FURNITURE BY OWNER PT-01 PT-02 PT- PTPT-01 PTMAIN BART.O. CEILING 11'WB- TYP. PT-01 11 FURNITURE OWNER FURNITURE OWNER AUGMENTED REALITY FEATURE OTHERS INTERIOR ELEVATIONS HARD ROCK CAFE 215 PEACHTREE STREET ATLANTA, GA 30303 HARD ROCK INTERNATIONAL 5701 STIRLING RD. DAVIE, FL 33314 3/8" = 1'-0" AUGMENTED REALITY FEATURE WALL INTERIOR ELEVATION 3/8" 1'-0" BAR LOUNGE ELEVATION -A 3/8" 1'-0" BAR LOUNGE ELEVATION -B 3/8" 1'-0" HOST STAND ELEVATION -A 3/8" 1'-0" MAIN BAR ELEVATION -A NOTE: SEE SHEETS 126 AND A127 FOR FINISH SCHEDULE. PT-02 PT-01 PTENTRYT.O. CEILINGWB-03 WBAUGMENTED REALITY GUITAR FEATURE BY OTHERS ENTRYT.O. CEILING 11'OPEN BEYOND WC-02 AUGMENTED REALITY GUITAR FEATURE OTHERS 1/2" OPEN TO BEYOND PT-02 BAR LOUNGET.O. CEILINGFURNITURE OWNER SEE FINISH SCHEDULE FOR ADDITIONAL INFORMATION WB-03 OPEN TO BEYOND WC-03 PT-02 BAR LOUNGET.O. CEILINGFURNITURE OWNER SEE FINISH SCHEDULE FOR ADDITIONAL INFORMATION WB-03 TYP. EXISTING WALL TO BROUGHT SMOOTH SURFACE AND PREPARED TO RECEIVE NEW WALL COVERING. FIELD VEIFY LOCATION EXISTING DISPLAY CASING ACCESS PANEL AND PROVIDE SAME CONDITION TO ACCESS COVER. PT-02 OPEN TO BEYOND ENTRYT.O. CEILING 11'HOST STAND, SEE A303AUGMENTED REALITY GUITAR FEATURE BY OTHERS PT-02 ENTRYT.O. CEILINGWB-03 HOST STAND, SEE A303 11 BAR LOUNGET.O. CEILING 11'FURNITURE OWNER FURNITURE BY OWNER AUGMENTED REALITY FEATURE BY OTHERSPT- PTPT-02PT- PT-01 MAIN BART.O. CEILING 11'WB-03 TYP. PT-01 FURNITURE OWNER FURNITURE BY OWNER AUGMENTED REALITY FEATURE BY OTHERS PTNEW FIRE EXTINGUISHER MAIN BARWB-03 PT-02PT-02 PT-PT-02-07 OPEN TO BEYOND PT-02 PTPT-02 PT- PTMAIN DININGT.O. CEILING 11'WBCARRY WAINSCOTT TRIM TO MEET ADJACENT COLUMN WB-03 PTTYP. PT-01 PT-02 PTMAIN DININGT.O. CEILING 11'PTPT-02 PT-02 PT-02 PT-PT-02 TYP. A406 INTERIOR ELEVATIONS HARD ROCK CAFE ATLANTA, GA 30303 HARD ROCK INTERNATIONAL 5701 STIRLING RD. DAVIE, FL 33314 3/8" 1'-0" ENTRY INTERIOR ELEVATION 3/8" 1'-0" AUGMENTED REALITY FEATURE WALL INTERIOR ELEVATION 3/8" 1'-0" BAR LOUNGE ELEVATION -A 3/8" 1'-0" BAR LOUNGE ELEVATION -B 3/8" 1'-0" HOST STAND ELEVATION -A 3/8" 1'-0" HOST STAND ELEVATION -B 3/8" 1'-0" BAR LOUNGE ELEVATION -C 3/8" 1'-0" MAIN BAR ELEVATION -A 3/8" 1'-0" MAIN BAR ELEVATION -B 3/8" 1'-0" 10 MAIN DINING ELEVATION -A 3/8" 1'-0" 11 MAIN DINING ELEVATION -B NOTE: SEE SHEETS 126 AND A127 FOR FINISH SCHEDULE. UPT-ENTRYT.O. CEILINGWB-03 WB-03 AUGMENTED REALITY GUITAR FEATURE OTHERS ENTRYT.O. CEILINGOPEN BEYOND WCAUGMENTED REALITY GUITAR FEATURE BY OTHERS 28' 1/2" OPEN BEYOND PTBAR LOUNGET.O. CEILINGFURNITURE BY OWNER SEE FINISH SCHEDULE FOR ADDITIONAL INFORMATION WBOPEN BEYOND WCPT-02 BAR LOUNGET.O. CEILINGFURNITURE OWNER SEE FINISH SCHEDULE FOR ADDITIONAL INFORMATION WB- TYP. EXISTING WALL BROUGHT SMOOTH SURFACE AND PREPARED TO RECEIVE NEW WALL COVERING. FIELD VEIFY LOCATION EXISTING DISPLAY CASING ACCESS PANEL AND PROVIDE SAME CONDITION TO ACCESS COVER. PT-02 OPEN BEYOND ENTRYT.O. CEILINGHOST STAND, SEE A303AUGMENTED REALITY GUITAR FEATURE OTHERS PT-02 ENTRYWBHOST STAND, SEE A303 BAR LOUNGET.O. CEILING 11'FURNITURE OWNER FURNITURE OWNER AUGMENTED REALITY FEATURE OTHERS PTPT-01 PT-02 PT- PT-02 PT-01 PTMAIN BART.O. CEILING 11'WB- TYP.FURNITURE OWNER FURNITURE OWNER AUGMENTED REALITY FEATURE BY OTHERSNEW FIRE EXTINGUISHER MAIN BARWBPTPT-02 PT-02 PT-02 PT-02PT-OPEN BEYOND PT-02 PTPT- PTMAIN DININGT.O. CEILING 11'WBCARRY WAINSCOTT TRIM TO MEET ADJACENT COLUMN WBPTTYP. PT-01 PT-02 PTMAIN DININGT.O. CEILING 11'PT-02 PT-02 PT-02PT-02TYP. A406 INTERIOR ELEVATIONS HARD ROCK CAFE 215 PEACHTREE STREET ATLANTA, GA 30303 HARD ROCK INTERNATIONAL DAVIE, FL 33314 3/8" 1'-0" ENTRY INTERIOR ELEVATION 3/8" = 1'-0" AUGMENTED REALITY FEATURE WALL INTERIOR ELEVATION 3/8" 1'-0" BAR LOUNGE ELEVATION -A 3/8" 1'-0" BAR LOUNGE ELEVATION -B 3/8" 1'-0" HOST STAND ELEVATION -A 3/8" 1'-0" HOST STAND ELEVATION -B 3/8" 1'-0" BAR LOUNGE ELEVATION -C 3/8" 1'-0" MAIN BAR ELEVATION -A 3/8" 1'-0" MAIN BAR ELEVATION -B 3/8" 1'-0" 10 MAIN DINING ELEVATION -A 3/8" 1'-0" 11 MAIN DINING ELEVATION -B NOTE: SEE SHEETS 126 AND A127 FOR FINISH SCHEDULE. PT-02 PT-01 PT-01 ENTRYT.O. CEILINGWB- WB-03 AUGMENTED REALITY GUITAR FEATURE OTHERS ENTRYT.O. CEILINGOPEN TO BEYOND WCAUGMENTED REALITY GUITAR FEATURE BY OTHERS 28' 1/2" OPEN TO BEYOND PT-02 BAR LOUNGET.O. CEILINGFURNITURE BY OWNER SEE FINISH SCHEDULE FOR ADDITIONAL INFORMATION WBOPEN TO BEYOND WC-03 PT-02 BAR LOUNGET.O. CEILINGFURNITURE OWNER SEE FINISH SCHEDULE FOR ADDITIONAL INFORMATION WB- TYP. EXISTING WALL BROUGHT SMOOTH SURFACE AND PREPARED TO RECEIVE NEW WALL COVERING. FIELD VEIFY LOCATION EXISTING DISPLAY CASING ACCESS PANEL AND PROVIDE SAME CONDITION TO ACCESS COVER. PT-02 OPEN BEYOND ENTRYT.O. CEILING 11'HOST STAND, SEE A303AUGMENTED REALITY GUITAR FEATURE OTHERS PT-02 ENTRYT.O. CEILINGWBHOST STAND, SEE A303 BAR LOUNGET.O. CEILING 11'FURNITURE BY OWNER FURNITURE OWNER AUGMENTED REALITY FEATURE OTHERS PT-01 PT-- PT-02MAIN BART.O. CEILING 11'WB-03 TYP.FURNITURE OWNER FURNITURE BY OWNER AUGMENTED REALITY FEATURE BY OTHERS PT-01 NEW FIRE EXTINGUISHER MAIN BARWB-03 PT-02 PT-02 PT-02 PTPT-02 PT-02 PT-02 -07 OPEN BEYOND PT-02 PT-02 PTPT-01 PT-01 MAIN DINING -0" T.O. CEILING 11'WBCARRY WAINSCOTT TRIM TO MEET ADJACENT COLUMN WB-03 PT-02 TYP. PTPTPTMAIN DININGT.O. CEILING 11'PT-02 PT-02 PT-02 PT-02 PT-TYP. PROJECT NAME PROJECT NO. A406 INTERIOR ELEVATIONS HARD ROCK CAFE 215 PEACHTREE STREET ATLANTA, GA 30303 HARD ROCK INTERNATIONAL DAVIE, FL 33314 3/8" 1'-0" ENTRY INTERIOR ELEVATION 3/8" 1'-0" AUGMENTED REALITY FEATURE WALL INTERIOR ELEVATION 3/8" 1'-0" BAR LOUNGE ELEVATION -A 3/8" 1'-0" BAR LOUNGE ELEVATION -B 3/8" 1'-0" HOST STAND ELEVATION -A 3/8" 1'-0" HOST STAND ELEVATION -B 3/8" 1'-0" BAR LOUNGE ELEVATION -C 3/8" 1'-0" MAIN BAR ELEVATION -A 3/8" 1'-0" MAIN BAR ELEVATION -B 3/8" 1'-0" 10 MAIN DINING ELEVATION -A 3/8" 1'-0" 11 MAIN DINING ELEVATION -B NOTE: SEE SHEETS 126 AND A127 FOR FINISH SCHEDULE.PT-01ENTRYT.O. CEILINGWB-03 WBAUGMENTED REALITY GUITAR FEATURE BY OTHERS ENTRYT.O. CEILINGOPEN TO BEYOND WC-02 AUGMENTED REALITY GUITAR FEATURE OTHERS 1/2" OPEN TO BEYOND PT-02 BAR LOUNGET.O. CEILING 11'FURNITURE BY OWNER SEE FINISH SCHEDULE FOR ADDITIONAL INFORMATION WB-03 OPEN BEYOND WC-03 PT-02 BAR LOUNGET.O. CEILINGFURNITURE BY OWNER SEE FINISH SCHEDULE FOR ADDITIONAL INFORMATION WB-03 TYP. EXISTING WALL BE BROUGHT TO SMOOTH SURFACE AND PREPARED RECEIVE NEW WALL COVERING. FIELD VEIFY LOCATION OF EXISTING DISPLAY CASING ACCESS PANEL AND PROVIDE SAME CONDITION ACCESS COVER.OPEN BEYOND ENTRYT.O. CEILINGHOST STAND, SEE A303AUGMENTED REALITY GUITAR FEATURE BY OTHERS PT-02 ENTRYT.O. CEILINGWB-03 HOST STAND, SEE A303 BAR LOUNGET.O. CEILING 11'FURNITURE BY OWNER FURNITURE BY OWNER AUGMENTED REALITY FEATURE BY OTHERSPT-01 PT-02 PT- PT-02 PT- PTMAIN BART.O. CEILINGWB- TYP. PTFURNITURE OWNER FURNITURE OWNER AUGMENTED REALITY FEATURE OTHERS PT-01 NEW FIRE EXTINGUISHER MAIN BARWBPT-02 PT-02 PT-02 PT-02PT-02 PT-07 OPEN TO BEYOND PT-02 PT-02 PT-02 - PT-01 MAIN DININGT.O. CEILINGWB-03 CARRY WAINSCOTT TRIM TO MEET ADJACENT COLUMN WB-03 PT-02 TYP. PT-01 PT-02 PT-02 MAIN DININGT.O. CEILINGPT-02 PT-02 PT-02 PT-02 PT-02PTTYP. A406 INTERIOR ELEVATIONS HARD ROCK CAFE 215 PEACHTREE STREET ATLANTA, GA 30303 HARD ROCK INTERNATIONAL 5701 STIRLING RD. DAVIE, FL 33314 3/8" = 1'-0" ENTRY INTERIOR ELEVATION 3/8" 1'-0" AUGMENTED REALITY FEATURE WALL INTERIOR ELEVATION 3/8" 1'-0" BAR LOUNGE ELEVATION -A 3/8" 1'-0" BAR LOUNGE ELEVATION -B 3/8" 1'-0" HOST STAND ELEVATION -A 3/8" = 1'-0" HOST STAND ELEVATION -B 3/8" = 1'-0" BAR LOUNGE ELEVATION -C 3/8" 1'-0" MAIN BAR ELEVATION -A 3/8" 1'-0" MAIN BAR ELEVATION -B 3/8" 1'-0" 10 MAIN DINING ELEVATION -A 3/8" 1'-0" 11 MAIN DINING ELEVATION -B NOTE: SEE SHEETS 126 AND A127 FOR FINISH SCHEDULE. S S U R E V S I O N S C H E D U E3D.01 ROCK SHOP HARD ROCK CAFE HARD ROCK INTERNATIONAL3D.03 PRIVATE DINING ROOM HARD ROCK INTERNATIONAL3D.02 MAIN BAR HARD ROCK CAFE HARD ROCK INTERNATIONAL3D.04 VELVET UNDERGROUND BAR HARD ROCK CAFE HARD ROCK INTERNATIONAL

Hard Rock Cafe - San Antonio

Remodel

San Antonio, TX

Scope of work: New remodel of existing Hard Rock Cafe San Antonio space. Remodel work includes a renovation of the Rock Shop, converting river level interior space to patio opening a viewing window into the river level kitchen, converting street level interior space to patio, creating new interior seating area on street level by closing in floor opening, adding a new bar to street level, modifying third level restrooms, replacing third floor fabric awning with standing seam awning, adding and replacing some storefront at street level and river levels, replacing some awnings at street level and river levels with metal canopies, and lowering tower signage to above canopies at street level.

Project role: project coordinator and point of contact

A.REFER TO FOOD SERVICE PLANS FOR EQUIPMENT SCHEDULES AND FOOD SERVICE EQUIPMENT ELEVATIONS. B.REFER TO ELECTRICAL AND PLUMBING PLANS FOR ADDITIONAL INFORMATION. C.SEE A102 FOR WALL TYPES. D.THE SITE AND BUILDING SHALL BE LEFT IN A NEAT, CLEAN AND SAFE CONDITION AT THE COMPLETION OF EACH WORK DAY. E.LABEL/ IDENTIFY ALL PIPES AND DATA TO SOURCE AS EQUIRED. F.THE CONTRACTOR RESPONSIBLE FOR ALL COORDINATIO BETWEEN SUBCONTRACTORS ON THE ENTIRE SET OF THESE DOCUMENTS. NO EXTRA COMPENSATION WILL BE GIVEN TO BIDDER OR SUPPLIER WHO HAS BID FROM AN INCOMPLETE SET OF ONSTRUCTION DOCUMENTS. IN CASE OF INCONSISTENCIES OR DISCREPANCIES BETWEEN DRAWINGS THE MOST STRINGENT NOTE OR CONDITION SHALL APPLY. THE CONTRACTOR SHALL NOTIFY THE ARCHITECT MMEDIATELY OF SUCH DISCREPANCIES. G.IT THE RESPONSIBILITY OF THE CONTRACTOR TO FIELD VERIFY ALL SITE CONDITIONS AND DIMENSIONS PRIOR TO STARTING CONSTRUCTIONS. THE CONTRACTOR SHALL NOTIFY THE ARCHITECT IMMEDIATELY OF ANY DISCREPANCIES. H.THE CONTRACTOR RESPONSIBLE FOR MAINTAINING URRENT SET OF CONSTRUCTION DRAWINGS ON SITE DURING CONSTRUCTION. THE CONTRACTO SHALL INDICATE ON THESE DRAWINGS ALL APPROVED CHANGES TO THE WORK. THIS SET OF DRAWINGS SHALL BE TURNED OVER TO THE ARCHITECT WHEN THE PROJECT IS COMPLETE. I.IF ANY ERRORS, DISCREPANCIES OR OMISSIONS APPEAR ON THESE DRAWINGS, SPECIFICATIONS OR OTHER CONTRACT DOCUMENTS, THE CONTRACTOR SHALL OTIFY THE ARCHITECT MMEDIATELY. J.NO MATERIAL SUBSTITUTIONS WILL BE ALLOWED UNLESS SUBMITTED IN WRITING TO THE ARCHITECT FOR APPROVAL WRITING. K.THE CONTRACTOR SHALL BE RESPONSIBLE FOR THE CLEAN UP OF ALL TRADES. L.THE CONSTRUCTION DOCUMENTS ARE NOT TO BE SCALED. M.UPON COMPLETION OF CONSTRUCTION, WILL BE THE ESPONSIBILITY OF THE CONTRACTOR TO LEAVE THE AREA DUST FREE AND CLEAN. N.ALL CONSTRUCTION TO CONFORM TO ALL APPLICABLE CODES AND ORDINANCES. O.ALL WORK SHOWN ON THESE DRAWINGS TO BE PERFORMED BY THE GENERAL CONTRACTOR UNLESS NOTED OTHERWISE. P.DURING CONSTRUCTION, GC SHALL PROVIDE AND MAINTAIN FIRE EXTINGUISHERS AS REQUIRED BY THE LOCAL FIRE DEPARTMENT FIELD INSPECTOR. LOCATION OF FIRE EXTINGUISHER AS DIRECTED BY FIRE MARSHALL. Q.ALL ITEMS LABELED "PROVIDED BY OWNER" PURCHASE BY THE OWNER AND INSTALLED BY THE CONTRACTOR. R.GENERAL CONTRACTOR SHALL COMPLY WITH ALL REQUIREMENTS OF THE AMERICANS WITH DISABILITIES ACT AND ANY ACCESSIBILITY CODES. WHEN CONFLICT, THE MORE STRINGENT OF THE TWO STANDARDS SHALL GOVERN. ALL ITEMS TO BE INCLUDED BID PRICE. S.INSTALL ALL WORK WITH APPROVED FASTENERS, AS REQUIRED TO HOLD WORK SECURE, LEVEL, PLUMB AND TRUE TO LINE. FASTENERS TO BE SET BELOW HE FINISHED SURFACES, FILL HOLES WITH WOOD PUTTY OR OTHER APPROVED MATERIALS, SAND LUSH WITH THE SURFACE SO AS TO BE UNDETECTABLE THE FINISH. BLIND NAIL WHENEVER POSSIBLE. ROUND ALL EXPOSED EDGES OF ASSEMBLES TO 1/8 RADIUS. T.ALL WOOD AND PLYWOOD TO BE FIRE RETARDANT AND LABELED ACCORDINGLY AT REQUIRED KITCHEN AREAS. U.GC SHALL PROVIDE ALL FLOOR LEVELING, PATCHING, AN REMEDIAL REPAIRS AS REASONABLY REQUIRED BY THE SCOPE OF WORK. "REPAIRS" INCLUDE, UT ARE NOT LIMITED TO, WORK REQUIRED TO PROVIDE A SMOOTH AND EVEN TRANSITION BETWEEN SPACES, AND TO PREPARE ROUGH SURFACES FOR NEW FINISHES. PATCH AND REPAIR XISTING SURFACES TO MATCH SIMILAR ADJACENT SURFACES IN ALL ASPECTS. V.PROVIDE AND/ OR MAINTAIN FIRE RATED ASSEMBLES WHERE SHOWN, OR REQUIRED. GC SHALL SEAL AROUND ALL WALL FLOOR AND CEILING PENETRATIONS WITH FIRE RESISTANT PUTTY. W.GC RESPONSIBLE TO PROVIDE AND INSTALL ANY AND ALL ACCESS PANELS AS REQUIRED. X.ALL EXPOSED WOODWORK TO RECEIVE PAINT FINISH SHAL BE SANDED SMOOTH PRIOR TO FINISHING WITH SAND PAPER NO COARSER THAN NO. 80. ILL OPEN JOISTS AND SAND SMOOTH AND FLUSH. Y.PROVIDE ALL NECESSARY SHIMS AND FILLERS. CONCEAL ALL FASTENERS UNLESS OTHERWISE NOTED. Z.DAMAGE DURING CONSTRUCTION WILL BE AT THE CONTRACTOR'S EXPENSE. SURVEY THE PROJECT PRIOR TO DEMOLITION. REPORT EXISTING DAMAGE TO ARCHITECT PRIOR TO STARTING THE WORK. Z1.INSTALL FIRE RATED BLOCKING/ PLYWOOD IN AREAS REQUIRING SHELVING. ALL PLYWOOD/ WOOD BLOCKING TO BE FIRE RESISTANT TREATED WOOD. Z2.PROVIDE FIRE DAMPERS AT ALL TRANSFER DUCTS PASSING THROUGH RATED PARTITIONS. COORDINATE WITH MECHANICAL DRAWINGS. Z3.METAL REVEALS SHALL BE FRY REGLET OR APPROVED EQUAL MILL FINISH, UNPAINTED. ALL INTERSECTIONS SHALL BE MITERED CORRECTLY. Z4.GC TO VERIFY THAT SIDE-FOLDING GRILLES HAVE THUMB-TURNS ON TENANT SIDE FOR SAFE OCCUPANTS EGRESS OR NOT TO RETRO-FIT THE EXISTING DEAD BOLT LOCKS WITH THUMB TURN FEATURES. Z5.GC TO VERIFY THAT ALL EXISTING FINISHES ARE OOD CONDITIONS Z6.GC SHALL PROVIDE TRANSITION STRIPS AT ALL LOCATIONS WHERE DIFFERENT FLOOR MATERIALS ARE SPECIFIED AND LOCATED. Z7.FLOOR PENETRATIONS REQUIRE X-RAY AND APPROVAL PRIOR TO DRILLING OR CUTTING SLABS. PENETRATIONS OF THE FLOOR GREATER THEN 1/2" REQUIRE X-RAY, REVIEW, AND OWNER APPROVAL. ON-SITE PHYSICAL LAYOUT OF SIZE AND LOCATION SHALL BE REVIEWED BY APPROPRIATE OWNER REPRESENTATIVE "BEFORE" ANY PENETRATIONS ARE ALLOWED. A2011 A301-A601-1 A6012 A602602-DINING 101 ROCK SHOP 102 KITCHEN 103 WASH ROOM 104 STORAGE 105 WOMEN'S 106 MEN'S 107 PATIO 109 OFFICE 108 UP UP UP 7' 11" ADJACENT TENANT SPACE ADJACENT TENANT SPACE A151 A151 EXISTINGSIDEWALK EXISTINGSIDEWALK EXISTNGLANDSCAPE EXISTING PLANTER 18'4" 3'10" 6'2 1/2" 1601/ 27'-6" 9 8" 24'-31/2" 8-41/2" A602601A601605 A602A202108 ELEVATOR STAIR BAR 113 STAIR 10 TYP 13 13 15 14 16 ELEVATOR AV ROOM 123 103 SANANTONIORIVER 17 ELECTRICAL 110 STORAGE 111 COOLER 115 102 101 DRESSING ROOM 114 TYP. 114 Keyed Construction Notes: NEW CASED OPENING. SEE INTERIOR ELEVATIONS AND DETAILS NEW CANOPY BY OTHERS. SEE STRUCTURAL DRAWINGS FOR ONNECTION TO WALL. SEE ELECTRICAL DRAWINGS FOR LIGHTING AND POWER. CASHWRAP BY OTHERS. EXISTING MONUMENT SIGN TO REMAIN EXISTING STRUCTURAL COLUMN TO REMAIN RELOCATED SODA CHASE. SEE FOOD SERVICE AND PLUMBING DRAWINGS NEW KITCHEN EQUIPMENT. SEE FOOD SERVICE DRAWINGS NEW TRENCH DRAIN. SEE ARCHITECTURAL SITE PLAN AND PLUMBING DRAWINGS NEW RETAIL FIXTURES. BY OTHERS SOFFIT ABOVE WITH "SAVE THE PLANET" BACK LIT SIGNAG BY OTHERS. SEE ELCTRICAL DRAWINGS. NEW 24"X48"X12" MEMORABILIA DISPLAY SPACE NEW 48"X48"X12" MEMORABILIA DISPLAY SPACE NEW 36"X24" MANNEQUIN DISPLAY SPACE NEW 24"X60"X12" MEMORABILIA DISPLAY SPACE NEW HOST STAND. SEE DETAILS SHEET A505. NEW DESKTOP AND SHELVING. SEE INTERIOR ELEVATION DETAILS. JOHN BOOS 12" 24" STAINLESS URINAL TROUGH WITH SUBWAY STYLE STAINLESS STELL GRATING. CONTRACTOR TO X-RAY SLAB PRIOR TO CUTTING SLAB PER GENERL DEMOLITION NOTE 'X' ON DEMOLITION SHEETS. DESCRIPTION SYMBOL STOREFRONT TAG. SEE A701 LEGEND DOOR TAG. SEE A701 ## WALL TYPE. SEE A102 EXTERIOR GRADE GYP. BOARD SHEET TITLE PROJECT DATE PROJECT NO.5701 Sterling Road Davie, Florida 33314 A111 2180714 JDV,JR RA, ER, AWA Floor Plan -Level 1 Hard Rock Cafe 111 W Crockett Street San Antonio, Texas 78205 Hard Rock Internacional Owner Changes -Revision 3 09/24/2019 General Notes: 1/8" = 1'-0" 1 Floor Plan -Level 1 N D i t i D t 1 P e r m C o m t 0 7 1 9 2 0 1 9 p 3 O C h 0 9 2 4 2 0 1 9 2 2
2019 - 2020 A301-PATIO 301 WOMEN'S 303 MEN'S 304 DOWN DOWN A152 311 A2021 A201A2011 A202HALLWAY 318 318 OFFICE 311 OFFICE 312 KITCHEN 313 COOLER 314 STORAGE 315 OFFICE COOLER 317 FREEZER 312 UTILITIES 307 ELEVATOR A401 1/8" = 1'-0" 1 Floor Plan -Level 3 N TYP. TYP. A.REFER TO FOOD SERVICE PLANS FOR EQUIPMENT SCHEDULES AND FOOD SERVICE EQUIPMENT ELEVATIONS. B.REFER TO ELECTRICAL AND PLUMBING PLANS FOR ADDITIONAL INFORMATION. C.SEE A102 FOR WALL TYPES. D.THE SITE AND BUILDING SHALL BE LEFT NEAT, CLEAN AND SAFE CONDITION AT THE COMPLETION OF EACH WORK DAY. E.LABEL/ IDENTIFY ALL PIPES AND DATA TO SOURCE AS EQUIRED. F.THE CONTRACTOR IS RESPONSIBLE FOR ALL COORDINATIO BETWEEN SUBCONTRACTORS ON THE ENTIRE SET OF THESE DOCUMENTS. NO EXTRA COMPENSATION WILL BE GIVEN TO BIDDER OR SUPPLIER WHO HAS BID FROM AN INCOMPLETE SET OF ONSTRUCTION DOCUMENTS. CASE OF INCONSISTENCIES OR DISCREPANCIES BETWEEN DRAWINGS THE MOST STRINGENT NOTE OR CONDITION SHALL APPLY. THE CONTRACTOR SHALL NOTIFY THE ARCHITECT MMEDIATELY OF SUCH DISCREPANCIES. G.IT THE RESPONSIBILITY OF THE CONTRACTOR TO FIELD VERIFY ALL SITE CONDITIONS AND DIMENSIONS PRIOR TO STARTING CONSTRUCTIONS. THE CONTRACTOR SHALL NOTIFY THE ARCHITECT IMMEDIATELY OF ANY DISCREPANCIES. H.THE CONTRACTOR IS RESPONSIBLE FOR MAINTAINING URRENT SET OF CONSTRUCTION DRAWINGS ON SITE DURING CONSTRUCTION. THE CONTRACTO SHALL INDICATE ON THESE DRAWINGS ALL APPROVED CHANGES TO THE WORK. THIS SET OF DRAWINGS SHALL BE TURNED OVER TO THE ARCHITECT WHEN THE PROJECT COMPLETE. I.IF ANY ERRORS, DISCREPANCIES OR OMISSIONS APPEAR ON THESE DRAWINGS, SPECIFICATIONS OR OTHER CONTRACT DOCUMENTS, THE CONTRACTOR SHALL OTIFY THE ARCHITECT MMEDIATELY. J.NO MATERIAL SUBSTITUTIONS WILL BE ALLOWED UNLESS SUBMITTED WRITING TO THE ARCHITECT FOR APPROVAL IN WRITING. K.THE CONTRACTOR SHALL BE RESPONSIBLE FOR THE CLEAN UP OF ALL TRADES. L.THE CONSTRUCTION DOCUMENTS ARE NOT TO BE SCALED. M.UPON COMPLETION OF CONSTRUCTION, IT WILL BE THE ESPONSIBILITY OF THE CONTRACTOR TO LEAVE THE AREA DUST FREE AND CLEAN. N.ALL CONSTRUCTION TO CONFORM TO ALL APPLICABLE CODES AND ORDINANCES. O.ALL WORK SHOWN ON THESE DRAWINGS TO BE PERFORMED BY THE GENERAL CONTRACTOR UNLESS NOTED OTHERWISE. P.DURING CONSTRUCTION, GC SHALL PROVIDE AND MAINTAI FIRE EXTINGUISHERS AS REQUIRED BY THE LOCAL FIRE DEPARTMENT FIELD INSPECTOR. LOCATION OF FIRE EXTINGUISHER AS DIRECTED BY FIRE MARSHALL. Q.ALL ITEMS LABELED "PROVIDED BY OWNER" IS PURCHASE BY THE OWNER AND INSTALLED BY THE CONTRACTOR. R.GENERAL CONTRACTOR SHALL COMPLY WITH ALL REQUIREMENTS OF THE AMERICANS WITH DISABILITIES ACT AND ANY ACCESSIBILITY CODES. WHEN CONFLICT, THE MORE STRINGENT OF THE TWO STANDARDS SHALL GOVERN. ALL ITEMS TO BE INCLUDED BID PRICE. S.INSTALL ALL WORK WITH APPROVED FASTENERS, AS REQUIRED TO HOLD WORK SECURE, LEVEL, PLUMB AND TRUE TO LINE. FASTENERS TO BE SET BELOW HE FINISHED SURFACES, FILL HOLES WITH WOOD PUTTY OR OTHER APPROVED MATERIALS, SAND LUSH WITH THE SURFACE SO AS TO BE UNDETECTABLE IN THE FINISH. BLIND NAIL WHENEVER POSSIBLE. ROUND ALL EXPOSED EDGES OF ASSEMBLES TO 1/8 RADIUS. T.ALL WOOD AND PLYWOOD TO BE FIRE RETARDANT AND LABELED ACCORDINGLY AT REQUIRED KITCHEN AREAS. U.GC SHALL PROVIDE ALL FLOOR LEVELING, PATCHING, AN REMEDIAL REPAIRS AS REASONABLY REQUIRED BY THE SCOPE OF WORK. "REPAIRS" INCLUDE, UT ARE NOT LIMITED TO, WORK REQUIRED TO PROVIDE SMOOTH AND EVEN TRANSITION BETWEEN SPACES, AND TO PREPARE ROUGH SURFACES FOR NEW FINISHES. PATCH AND REPAIR XISTING SURFACES TO MATCH SIMILAR ADJACENT SURFACES ALL ASPECTS. V.PROVIDE AND/ OR MAINTAIN FIRE RATED ASSEMBLES WHERE SHOWN, OR REQUIRED. GC SHALL SEAL AROUND ALL WALL FLOOR AND CEILING PENETRATIONS WITH FIRE RESISTANT PUTTY. W.GC RESPONSIBLE TO PROVIDE AND INSTALL ANY AND ALL ACCESS PANELS AS REQUIRED. X.ALL EXPOSED WOODWORK TO RECEIVE PAINT FINISH SHAL BE SANDED SMOOTH PRIOR TO FINISHING WITH SAND PAPER NO COARSER THAN NO. 80. ILL OPEN JOISTS AND SAND SMOOTH AND FLUSH. Y.PROVIDE ALL NECESSARY SHIMS AND FILLERS. CONCEAL ALL FASTENERS UNLESS OTHERWISE NOTED. Z.DAMAGE DURING CONSTRUCTION WILL BE AT THE CONTRACTOR'S EXPENSE. SURVEY THE PROJECT PRIOR TO DEMOLITION. REPORT EXISTING DAMAGE TO ARCHITECT PRIOR TO STARTING THE WORK. Z1.INSTALL FIRE RATED BLOCKING/ PLYWOOD IN AREAS REQUIRING SHELVING. ALL PLYWOOD/ WOOD BLOCKING TO BE FIRE RESISTANT TREATED WOOD. Z2.PROVIDE FIRE DAMPERS AT ALL TRANSFER DUCTS PASSING THROUGH RATED PARTITIONS. COORDINATE WITH MECHANICAL DRAWINGS. Z3.METAL REVEALS SHALL BE FRY REGLET OR APPROVED EQUAL MILL FINISH, UNPAINTED. ALL INTERSECTIONS SHALL BE MITERED CORRECTLY. Z4.GC TO VERIFY THAT SIDE-FOLDING GRILLES HAVE THUMB-TURNS ON TENANT SIDE FOR SAFE OCCUPANTS EGRESS OR IF NOT TO RETRO-FIT THE EXISTIN DEAD BOLT LOCKS WITH THUMB TURN FEATURES. Z5.GC TO VERIFY THAT ALL EXISTING FINISHES ARE IN OOD CONDITIONS Z6.GC SHALL PROVIDE TRANSITION STRIPS AT ALL LOCATIONS WHERE DIFFERENT FLOOR MATERIALS ARE SPECIFIED AND LOCATED. Z7.FLOOR PENETRATIONS REQUIRE X-RAY AND APPROVAL PRIOR TO DRILLING OR CUTTING SLABS. PENETRATIONS OF THE FLOOR GREATER THEN 1/2" REQUIRE X-RAY, REVIEW, AND OWNER APPROVAL. ON-SITE PHYSICAL LAYOUT OF SIZE AND LOCATION SHALL BE REVIEWED BY APPROPRIATE OWNER REPRESENTATIVE "BEFORE" ANY PENETRATIONS ARE ALLOWED. A301-A603A604A604A604-3 KITCHEN 203 WASH ROOM 205 KITCHEN VESTIBULE 204 WOMEN'S 206 MEN'S 207 STORAGE 208 PATIO 209 WN DOWN DOWN UP UP A152 2 6' 2' 11" 12' F.V. A201A202-A6045 A604-A603510 12 A152 10 STAIR 10 11 10 12 ELEVATOR ELEVATOR TYP 15 14 15 TYP 3' 4" 6'6 1/2" 6'6" 10'2" 3'11" 16'6 1/2" 5'5 1/2" 7'8" 2" 17' 2" 4' 1/2" 11 1/2" 1/2" 11" 3' 2" 3' 2" 17' 16' 1/2" 13 205 1 16 1/2" 10' 1/2" 16' 1/2" 0" 201A 209209209C 15 A401 DESCRIPTION SYMBOL STOREFRONT TAG. SEE A701 LEGEND DOOR TAG. SEE A701 ## WALL TYPE. SEE A102 EXTERIOR GRADE GYP. BOARD SHEET TITLE CLIENT PROJECT NO.5701 Sterling Road Davie, Florida 33314 A112 JDV,JR Floor Plan -Level 2 Hard Rock Cafe 111 W Crockett Street San Antonio, Texas 78205 Hard Rock Internacional Owner Changes -Revision 3 N General Notes: Keyed Construction Notes: 13 NEW 48" 48" 12" MEMORABILIA DISPLAY SPACE. NEW FLOORING TO FILL-IN EXISTING HOLE. SEE STRUCTURAL DRAWINGS. SEE FINISH FLOOR PLAN ON A132. NEW KITCHEN EQUIPMENT. SEE FOOD SERVICE DRAWINGS. NEW PERGOLA AND CEILING ABOVE. SEE A122. NEW OPERABLE WALL SYSTEM WITH EGRESS DOOR. BASIS OF DESIGN HUFCOR NEW OVERHEAD OPERABLE WALL. BASIS OF DESIGN HUFCOR. NEW BAR AREA AND EQUIPMENT. SEE FOOD SERVICE AND PLUMBING DRAWINGS. LOW FLAME FIRE URNS WITH TEMPERED GLASS ENCLOSURE ER MANUFACUTER'S RECOMENDATIONS. B.O.D: PALOFORM SOBA. SEE PLUMBING DRAWINGS FOR GAS LINE AND CONNECTIONS. 10 11 12 REPAIR FINISH ON EXISTING METAL GUITAR RAILING. NEW OR RELOCATED SALVAGED AND REFINISHED GUITAR RAILING. NEW CANOPY BY OTHERS. SEE STRUCTURAL DRAWINGS FOR ONNECTION TO WALL. SEE ELECTRICAL DRAWINGS FOR LIGHTING AND POWER. NEW GATE WITH EGRESS HARDWARE LOW WALL WITH CAP FINISHES TO MATCH EXISTING ADJACENT. 14 EXISTING FDC TO REMAIN. 15 HALO LIGHTING AT WINDOWS. SEE ARCHITECURAL DETAIL ---. SEE ELECTRICAL DRAWINGS. 1/8" = 1'-0" 1 Floor Plan -Level 2 R i S h d p 1 P i C t 0 7 / 1 9 / 2 0 1 9 p 16 RELOCATED SODA CHASE. SEE FOOD SERVICE AND PLUMBING DRAWINGS
Year:

6 1/2"

SC-03

4' 11 1/2"

16' 3"

2" 6 -51/2" 6'6 1/2" 3'0 1/2"2'5" 2' 1/2"1' 7 1/2"

3' 4 1/2" 5'1" 10'2" 3'11" 16'6 1/2" 5'5 1/2"

5 1/2" 7'8"

ROOM
WASH
205
7'8"
4' 3" 4' 2" 17' 1" 6'6" 4'0" 4'
4' 5 1/2" 4'
0
0
3' 0"1' 1" 1' 2"3' 0"
-7
-7 "
SHEET TITLE PROJECT NAME CLIENT NAME 1 0 / 3 0 2 0 1 9 1 0 5 3 0 2 A M Hard Rock Cafe 111 W Crockett Street San Antonio, Texas 78205 AWA, ALV Hard Rock Internacional SK.05.1 HUFCOR OPERABLE WALLS COORDINATION 1/8" = 1'-0" 1 Floor Plan -Level 2
ROOM 205
5'
4' 5" 0'
11" 3'0" 1'6"
WASH
3' - 4 1/2" 5'1" 10'2" 3'11" 16'6 1/2"
3" 4' 2" 17' 1" 6'6" 4'0" 4'6 1/2" 4' - 11 1/2" 4' 5 1/2" 16' 3" 4' 2" 6 -51/2 6'6 1/2" 3'0 1/2"2'5" 2' 9 1/2"1' 1/2" 3' 0"1' 1" 1' 2"3' 0" 0 -7 0 ' -7 4' 5" 0'11" 3'0" 1'6" DINING 201 SC-03 EXISTING FINISH TO REMAIN TI-05 TI-06 TI-07 SC-03 SC-03 SC-03 SC-03 ALIGN ALIGN ALIGN ALIGN 9' - 3 3/4" 12' 4 3/4" 9' 9" 9' 9" 3' 9" 4' 2" 5'8 1/2" EXISTING SOFFIT FACE TO REMAIN EXISTING SOFFIT FACE TO REMAIN ALIGN ALIGN ALIGN ALIGN 4'2 1/2" NEW SOFFIT FACE NEW SOFFIT FACE NEW SOFFIT FACE NEW SOFFIT FACE SHEET TITLE CHECKED DRAWN Hard Rock Cafe San Antonio, Texas 78205 2180714 ALV, JDV Hard Rock Internacional SK.05.1 HUFCOR OPERABLE WALLS COORDINATION 1/8" = 1'-0" 1 Floor Plan -Level 2 1/8" = 1'-0" 2 Finish Floor Plan -Level 2 1/8" = 1'-0" 3 Reflected Ceiling Plan -Level 2 NOTE: GC TO COORDINATE ACCESS PANELS WITH HUFCOR PACKAGE WASH ROOM 205 3' 4 1/2" 5'1" 10'2" 3'11" 16'6 1/2" 5'5 1/2" 7'8" 4' 3" 4' 2" 17' - 1" 6'6" 4'0" 4'6 1/2" 4' 11 1/2" 4' - 5 1/2" 16' 3" 4' 2" 6 -51/2" 6'6 1/2" 3'0 1/2"2'5" 2' 9 1/2"1' 1/2" 3' 0"1' 1" 1' 2"3' 0" 0 -7 0 -7 " 4' 5" 0'11" 3'0" 1'6" DINING 201 SC-03 EXISTING FINISH TO REMAIN TI-05 TI-06 TI-07 SC-03 SC-03 SC-03 SC-03 ALIGN ALIGN ALIGN ALIGN 9' 3 3/4" 12' 4 3/4" 9' 9" 9' 9" 3' 9" 4' 2" 5'8 1/2" EXISTING SOFFIT FACE TO REMAIN EXISTING SOFFIT FACE TO REMAIN ALIGN ALIGN ALIGN ALIGN 4'2 1/2" NEW SOFFIT FACE NEW SOFFIT FACE NEW SOFFIT FACE NEW SOFFIT FACE SHEET TITLE PROJECT NAME CLIENT NAME 0 / 3 0 0 1 9 1 0 : 5 3 : 0 2 A M Hard Rock Cafe 111 W Crockett Street San Antonio, Texas 78205 10/29/19 ALV, JDV AWA, ALV Hard Rock Internacional SK.05.1 HUFCOR OPERABLE WALLS COORDINATION 1/8" = 1'-0" 1 Floor Plan -Level 2 1/8" = 1'-0" 2 Finish Floor Plan -Level 2 1/8" = 1'-0" 3 Reflected Ceiling Plan -Level 2 NOTE: GC TO COORDINATE ACCESS PANELS WITH HUFCOR PACKAGE Finish Floor -Level 1 EL: 0' - 0" Finish Floor -Level 2 EL: 12' - 6" Finish Floor -Level 3 EL: 28' - 8 3/4" KITCHEN 103 WASH ROOM WASH ROOM 104 KITCHEN 203 DINING 201 B/CANOPY B/AWNING A502 A402 A501 1/2" SHEET TITLE DRAWN PROJECT NO.5701 Sterling Road Davie, Florida 33314 ER, AWA Building Section Hard Rock Cafe 111 W Crockett Street San Antonio, Texas 78205 Hard Rock Internacional Owner Changes -Revision 3 3/16" = 1'-0" 1 Building Section General Notes: REFER TO ARCHITECTURAL FLOOR PLANS FOR ADDITIONAL DIMENSIONS. ALL HEIGHT REFERENCES ARE TAKEN FROM DATUM-TOP OF FINISH FLOOR FOR AREA INDICATED. REFER TO WINDOW SCHEDULE FOR WINDOW FINISHES AND WINDOW TYPES. REFER TO DOOR SCHEDULE FOR DOOR FINISHES AND DOOR YPES. BUILDING SIGNAGE UNDER SEPARATE PERMIT AND SUBMITTA ALL SIGNS AND LOGOS SIGN VENDOR. LIGHTING FIXTURES PER ELECTRICAL LIGHTING SCHEDULE. REFER TO FOOD SERVICE PLANS FOR EQUIPMENT SCHEDULE AND FOOD SERVICE EQUIPMENT ELEVATIONS. REFER TO ELECTRICAL AND PLUMBING PLANS FOR ADDITION INFORMATION. SEE 102 FOR WALL TYPES. THE SITE AND BUILDING SHALL LEFT IN NEAT, CLEA AND SAFE CONDITION AT THE COMPLETION OF EACH WORK DAY. LABEL/ IDENTIFY ALL PIPES AND DATA TO SOURCE AS REQUIRED. THE CONTRACTOR RESPONSIBLE FOR ALL COORDINATION BETWEEN SUBCONTRACTORS ON THE ENTIRE SET OF THESE DOCUMENTS. NO EXTRA COMPENSATION WILL BE GIVEN TO BIDDER SUPPLIER WHO HAS BID FROM AN INCOMPLETE SET ONSTRUCTION DOCUMENTS. IN CASE INCONSISTENCIES OR DISCREPANCIES BETWEEN DRAWING THE MOST STRINGENT NOTE OR CONDITION SHALL APPLY. THE CONTRACTOR SHALL NOTIFY THE ARCHITECT IMMEDIATELY OF SUCH DISCREPANCIES. THE RESPONSIBILITY THE CONTRACTOR TO FIELD VERIFY ALL SITE CONDITIONS AND DIMENSIONS PRIOR STARTING CONSTRUCTIONS. THE CONTRACTOR SHALL NOTIFY THE ARCHITECT IMMEDIATELY OF ANY DISCREPANCIES. THE CONTRACTOR RESPONSIBLE FOR MAINTAINING CURRENT SET CONSTRUCTION DRAWINGS ON SITE DURING CONSTRUCTION. THE CONTRACTO SHALL INDICATE ON THESE DRAWINGS ALL APPROVED CHANGES TO THE WORK. THIS SET OF DRAWINGS SHALL BE TURNED OVER THE ARCHITECT WHEN THE PROJECT COMPLETE. ANY ERRORS, DISCREPANCIES OR OMISSIONS APPEAR ON THESE DRAWINGS, SPECIFICATIONS OTHER CONTRACT DOCUMENTS, THE CONTRACTOR SHALL OTIFY THE ARCHITECT IMMEDIATELY. MATERIAL SUBSTITUTIONS WILL ALLOWED UNLESS SUBMITTED WRITING TO THE ARCHITECT FOR APPROVAL WRITING. THE CONTRACTOR SHALL BE RESPONSIBLE FOR THE CLEAN OF ALL TRADES. THE CONSTRUCTION DOCUMENTS ARE NOT TO BE SCALED. UPON COMPLETION CONSTRUCTION, WILL THE RESPONSIBILITY OF THE CONTRACTOR LEAVE THE AREA DUST FREE AND CLEAN. ALL CONSTRUCTION TO CONFORM TO ALL APPLICABLE CODES AND ORDINANCES. ALL WORK SHOWN ON THESE DRAWINGS TO BE PERFORMED THE GENERAL CONTRACTOR UNLESS NOTED OTHERWISE. DURING CONSTRUCTION, GC SHALL PROVIDE AND MAINTAIN FIRE EXTINGUISHERS AS REQUIRED THE LOCAL FIRE DEPARTMENT FIELD INSPECTOR. LOCATION OF FIRE EXTINGUISHER AS DIRECTED BY FIRE MARSHALL. ALL ITEMS LABELED "PROVIDED BY OWNER" PURCHASED BY THE OWNER AND INSTALLED THE CONTRACTOR. GENERAL CONTRACTOR SHALL COMPLY WITH ALL REQUIREMEN OF THE AMERICANS WITH DISABILITIES ACT AND ANY ACCESSIBILITY CODES. WHEN CONFLICT, THE MORE STRINGENT THE TWO STANDARDS SHALL GOVERN. ALL ITEMS TO BE INCLUDED BID PRICE. INSTALL ALL WORK WITH APPROVED FASTENERS, REQUIRED TO HOLD WORK SECURE, LEVEL, PLUMB AND TRUE TO LINE. FASTENERS TO BE SET BELOW HE FINISHED SURFACES, FILL HOLES WITH WOOD PUTTY OR OTHER APPROVED MATERIALS, SAND LUSH WITH THE SURFACE SO AS UNDETECTABLE IN THE FINISH. BLIND NAIL WHENEVER POSSIBLE. ROUND ALL EXPOSED EDGES OF ASSEMBLES TO 1/8 RADIUS. Z1. ALL WOOD AND PLYWOOD BE FIRE RETARDANT AND LABEL ACCORDINGLY REQUIRED KITCHEN AREAS. Z2. SHALL PROVIDE ALL FLOOR LEVELING, PATCHING, AND REMEDIAL REPAIRS AS REASONABLY REQUIRED THE SCOPE WORK. "REPAIRS" INCLUDE, ARE NOT LIMITED TO, WORK REQUIRED PROVIDE SMOOTH AND EVEN TRANSITION BETWEEN SPACES, AND TO PREPARE ROUGH SURFACES FOR NEW FINISHES. PATCH AND REPAIR XISTING SURFACES TO MATCH SIMILAR ADJACENT SURFACES ALL ASPECTS. Z3. PROVIDE AND/ OR MAINTAIN FIRE RATED ASSEMBLES WHERE SHOWN, OR REQUIRED. GC SHALL SEAL AROUND ALL WALL FLOOR AND CEILING PENETRATIONS WITH FIRE RESISTANT PUTTY. Z4. RESPONSIBLE TO PROVIDE AND INSTALL ANY AND AL ACCESS PANELS REQUIRED. Z5. ALL EXPOSED WOODWORK TO RECEIVE PAINT FINISH SHALL SANDED SMOOTH PRIOR TO FINISHING WITH SAND PAPER NO COARSER THAN NO. 80. ILL OPEN JOISTS AND SAND SMOOTH AND FLUSH. Z6. PROVIDE ALL NECESSARY SHIMS AND FILLERS. CONCEAL FASTENERS UNLESS OTHERWISE NOTED. Z7. DAMAGE DURING CONSTRUCTION WILL BE AT THE CONTRACTOR'S EXPENSE. SURVEY THE PROJECT PRIOR TO DEMOLITION. REPORT EXISTING DAMAGE TO ARCHITECT PRIOR TO STARTING THE WORK. Z8. INSTALL FIRE RATED BLOCKING/ PLYWOOD AREAS REQUIRING SHELVING. ALL PLYWOOD/ WOOD BLOCKING TO BE FIRE RESISTANT TREATED WOOD. Z9. PROVIDE FIRE DAMPERS ALL TRANSFER DUCTS PASSING THROUGH RATED PARTITIONS. COORDINATE WITH MECHANICAL DRAWINGS. Z10. METAL REVEALS SHALL BE FRY REGLET OR APPROVED EQUAL MILL FINISH, UNPAINTED. ALL INTERSECTIONS SHALL BE MITERED CORRECTLY. Z11. THE GC RESPONSIBLE FOR THE PURCHASE AND INSTALLATION OF ALL ITEMS SHOWN ON THE ENTIRE SET DOCUMENTS UNLESS LISTED "BY OTHERS OR "NOT IN CONTRACT". Z12. TO VERIFY THAT SIDE-FOLDING GRILLES HAVE THUMB-TURNS ON TENANT SIDE FOR SAFE OCCUPANTS EGRESS OR NOT RETRO-FIT THE EXISTING DEAD BOLT LOCKS WITH THUMB TURN FEATURES. Z13. TO VERIFY THAT ALL EXISTING FINISHES ARE GOOD CONDITIONS Z14. SHALL PROVIDE TRANSITION STRIPS ALL LOCATIONS WHERE DIFFERENT FLOOR MATERIALS ARE SPECIFIED AND LOCATED. Z15. FLOOR PENETRATIONS REQUIRE -RAY AND APPROVAL PRIOR TO DRILLING OR CUTTING SLABS PENETRATIONS OF THE FLOOR GREATER THEN 1/2" REQUIRE -RAY, REVIEW, AND OWNER APPROVAL. ON-SITE PHYSICAL LAYOUT OF SIZE AND LOCATION SHALL BE REVIEWED BY APPROPRIATE OWNER REPRESENTATIVE "BEFORE" ANY PENETRATIONS ARE ALLOWED. N D t i D EXISTING PARAPET TO REMAIN DEMOLISH AWNING FABRIC. EXISTING FRAME TO REMAIN EXISTING COLUMNS TO REMAIN EXISTING HSS TO REMAIN EXISTING AWNING FRAME TO REMAIN EXISTING FLOOR TO REMAIN METAL GUITAR RAILING TO REMAIN METAL COLUMNS SEE FINISH SCHEDULE EXISTING STRUCTURE TO REMAIN REMOVE EXISTING GUITAR RAILING SALVAGE FOR REUSE SEE DEMOLITION PLAN FOR EXTENT OF DEMOLITION EXISTING STONE PILLARS TO REMAIN CUT AND PATCH AS NECESSARY FOR GAS LINE AND FIRE URN INSTALLATION DEMOLISH PAVERS AND PREPARE FOR NEW TILE FLOORING MATCH EXISTING ADJACENT INTERIOR TILE. ADD LIGHT WEIGHT ONCRETE AS NECESSARY. FLUSH TRANSITION BETWEEN EXISTING AND W FLOORING DEMOLISH EXISTING STOREFRONT REPAIR AND REFINISH EXISTING METAL COLUMNS SEE FINISH SCHEDULE EXISTING METAL PANEL TO REMAIN DEMOLISH EXISTING CEILING EXISITNG CEILING TO REMAIN DEMOLISH EXISTING STOREFRONT EXISITNG WALL TO REMAIN EXISTING CEILING TO REMAIN DEMOLISH PORTIONS EXISTING CEILING SEE DEMOLITION CEILING PLAN DEMOLISH EXISITNG WALL DEMOLISH EXISTING FLOORING AND PREPARE FOR NEW TILE FINISH DEMOLISH LIGHTING SEE ELECTRICAL DRAWINGS REMOVE EXISTING MEMORABILIA AND TURN OVER TO OWNER DEMOLISH EXISTING AWNING DEMOLISH EXISTING GYP BD CAREFULLY REMOVE EXISTING STONE VENEER AT JAMBS AND SALVAGE FOR REUSE DEMOLISH EXISTING STOREFRONT DEMOLISH EXISTING PAVERS AND PREPARE FOR NEW SLAB AND FLOORING TILE SEE STURCTURAL DRAWINGS FOR CONCRETE, ISOLATION JOINT, AND DOWELING EXISTING PAVERS TO REMAIN FINISHED FLOOR LEVEL EL: 28'-8 3/4" FINISHED FLOOR LEVEL EL: 12'-6" B/ EXISTING AWNING FRAME EL: 9' -4" AFF FINISHED FLOOR LEVEL EL: 0'-0" EL: 43' -11 3/4" TOP OF EXISTING ROOF WALL SECTION -DEMOLITION EXISTING PARAPET TO REMAIN. REMOVE AND REINSTALL EXISTING BRICK AS NEEDED IN ORDER TO MODIFY AND REDIRECT CAVITY DRAINAGE TO ABOVE AWNING. STANDING SEAM METAL ROOFING ATTACH NEW 1/2" MARINE GRADE PLYWOOD SHEATHING TO EXISTING AWNING FRAME REPAIR AND REFINISH EXISTING METAL COLUMNS SEE FINISH SCHEDULE ALUTECH ZIPTEX ROLL DOWN SHADE HUNTER DOUGLAS METAL CEILING 84C.SEE FINISH SCHEDULE EXISTING AWNING FRAME TO REMAIN. LOWER EXISTING ELECTRICAL PLUMBING AND ELECTRICAL TO BOTTOM OF NEW CEILING. FIRE PROTECTION AND FIRE ALARM MODIFICATION DESIGN OTHERS REPAIR AND REFINISH EXISTING HSS REPAIR AND REFINISH EXISTING METAL GUITAR RAILING REMAIN EXISTING PAVERS TO REMAIN EXISTING STRUCTURE TO REMAIN LIGHTING FIXTURE TRUSS, GLOBAL TRUSS SEE ELECTRICAL DRAWINGS FOR LIGHTING FIXTURES AND LOCATION OF TRUSS. PROVIDE BLOCKING AND ACCESSORIES AS RECOMMENDED BY MANUFACTURER EXISTING CEILING TO REMAIN PROJECTOR SEE ELECTRICAL DRAWINGS WALL BEYOND TO REMAIN FLOORING TILE MATCH EXISTING ADJACENT EXISTING STRUCTURE TO REMAIN DEMOLISH PORTIONS OF EXISTING CEILING SEE DEMOLITION CEILING PLAN FLOORING TILE SEE FINISH SCHEDULE EXISTING PANEL TO REMAIN REPAIR AND REFINISH EXISTING METAL COLUMNS SEE FINISH SCHEDULE C.R.LAWRENCE ENTICE SERIES STOREFRONT SYSTEM WITH INSULATED GUARDIAN GLAZING SEE A701 FOR WINDOW SCHEDULE R19 INSULATION SPAN CHANNEL BETWEEN EXISTING COLUMNS SEE STRUCTURAL DRAWINGS FOR SIZE, PLACEMENT, AND CONNECTIONS WALL WASH LED SEE ELECTRICAL DRAWINGS PREFAB METAL CANOPY WITH CABLE STAYS, ARCADIA (STRUXURE OUTDOOR) CANOPIES SEE STRUCTURAL FOR ATTACHMENT LIGHTING FIXUTRE AT UNDERSIDE PREFAB CANOPY SEE ELECTRICAL DRAWINGS WRAP EXPOSED SURFACES OF 1/2" MARINE GRADE PLYWOOD WITH BREAKER METAL FINISH METAL MATCH PREFAB CANOPY EXISTING PAVERS TO REMAIN NEW SLAB AND FLOORING TILE. SEE STRUCTURAL DRAWINGS FOR CONCRETE, ISOLATION JOINT, AND DOWELING C.R.LAWRENCE ENTICE SERIE STOREFRONT SYSTEM WITH INSULATED GARDIAN GLAZING SEE A701 FOR WINDOW SCHEDULE 5/8" GYPSUM WALL BOARD AT INTERIOR SIDE COLUMN BEYOND SEE FINISH SCHEDULE A503 A503 FINISHED FLOOR LEVEL EL: 0'-0" FINISHED FLOOR LEVEL EL: 12'-6" FINISHED FLOOR LEVEL EL: 28'-8 3/4" B/ CANOPY EL: 8'-7" AFF B/ EXISTING AWNING FRAME EL: 9'-4" AFF A503 A506 TOP OF EXISTING ROOF EL: 43' -11 3/4" EXISING BRICK WALL WINDOW TO REMAIN WALL SECTION -NEW FLASHING PER STANDING SEAM SPECIFICATION. 5/8 METAL STUD NEW CEILING Owner Changes -Revision 3 3/8" 1'-0" 1 WALL SECTIONS-DEMOLITON ROCK SHOP DINING PATIO ROCK SHOP DINING PATIO 3/8" 1'-0" 2 WALL SECTION NEW 109 102 201 301 201 301
4'

Hash House A Go Go

Tenant Fit Out

Flaming Crossings - Orlando, FL

Scope of work: Tenant build-out of an existing cold, dark shell building of approximately 7,500 GSF. Including work to slab-on-grade, interior metal framed non-bearing partitions, new finishes, new electrical fixtures and distribution from the existing electrical panels, and new mechanical, plumbing, and fire protection systems associated with the reconfigured layout of the restaurant.

Project role: project coordinator and point of contact

Year:

2021 APPROVED THE OWNER. ALL DIMENSIONS AND CONDITIONS SHOULD BE FIELD RIFIED, AND THE ARCHITECT SHOULD NOTIFIED ERRORS, OMISSIONS, INCONSISTENCIES OTHER PROBLEMS IMMEDIATELY UPON DISCOVERY AND BEFORE PROCEEDING WITH THE WORK. DIMENSIONS ARE TAKEN FROM COLUMN CENTER LINES FROM FACE STUD UNLESS NOTED OTHERWISE. CLEAR DIMENSIONS ARE TO FINISHED ACE CONSTRUCTION AND SHALL TAKE PRECEDENCE OVER ANY OTHER DIMENSION. LATICRETE 923 WATERPROOFING MEMBRANE, ON ON FLOOR, BETWEEN GYP AND SEAMLESS FLOORING SYSTEM AND BASE 6.5 4.7--201- -111 2976 DINING ROOM SF MEN'S RESTROOM 106 SF WOMEN'S RESTROOM 107 FAMILY RESTROOM 108 RESTROOM VESTIBULE 105 SERVICE AREA 104 115 DRY STORAGE 111 OFFICE 1809 BOH 109 ENTRY VESTIBULE 100 160 POS AREA 502 MAIN BAR 103-351-351108 COOLER PRODUCE COOLER 113 SF FREEZER -352 -351 -3511/2" 1/2" 82' 5/8" 111 110 OUTDOOR BOH 115 102A-04SF OUTDOOR DINING AREA 116 691 OUTDOOR DINING AREA -351 -352 SLAB108 3A 76' 3/4" 13' 1/2" 7/8" 1/2" 1/4" 1/4" A1 A2 REFER TO FOOD SERVICE PLANS FOR EQUIPMENT SCHEDULES AND FOOD SERVICE EQUIPMENT ELEVATIONS. REFER TO MECHANICAL, ELECTRICAL, AND PLUMBING ANS FOR ADDITIONAL INFORMATION. ALL PARTITIONS ARE "PARTITION TYPE P-1" UNLESS NOTED OTHERWISE. THE SITE AND BUILDING SHALL LEFT NEAT, LEAN AND SAFE CONDITION AT THE COMPLETION OF EACH WORK DAY. LABEL/ IDENTIFY ALL PIPES AND DATA SOURCE REQUIRED. THE CONTRACTOR RESPONSIBLE FOR ALL COORDINATI BETWEEN SUBCONTRACTORS THE ENTIRE SET THESE DOCUMENTS. EXTRA COMPENSATION WILL GIVEN BIDDER SUPPLIER WHO HAS BID FROM INCOMPLETE CONSTRUCTION DOCUMENTS. CASE INCONSISTENCIES DISCREPANC BETWEEN DRAWINGS MOST STRINGENT NOTE OR CONDITION SHALL APPLY. THE ONTRACTOR SHALL NOTIFY THE ARCHITECT IMMEDIATELY SUCH DISCREPANCIES. THE RESPONSIBILITY OF THE CONTRACTOR ELD VERIFY ALL SITE CONDITIONS AND DIMENSIONS PRIOR STARTING CONSTRUCTION. THE CONTRACTOR SHALL NOTIFY THE ARCHITECT IMMEDIATELY OF ANY DISCREPANCIES. THE CONTRACTOR RESPONSIBLE FOR MAINTAINING CURRENT SET OF CONSTRUCTION DRAWINGS ON SITE DURING CONSTRUCTION. THE CONTRACTO SHALL INDICATE THESE DRAWINGS ALL APPROVED CHANGES THE WORK. THIS SET DRAWINGS SHALL TURNED OVER ARCHITECT WHEN THE PROJECT COMPLETE. ANY DISCREPANCIES APPEAR ON THESE DRAWINGS, PECIFICATIONS OTHER CONTRACT DOCUMENTS, THE CONTRACTOR SHALL NOTIFY THE ARCHITECT IMMEDIATELY. MATERIAL SUBSTITUTIONS WILL ALLOWED UNLES SUBMITTED WRITING THE ARCHITECT FOR APPROVAL WRITING. THE CONTRACTOR SHALL RESPONSIBLE FOR THE CLE ALL TRADES. THE CONSTRUCTION DOCUMENTS ARE NOT SCALED UPON COMPLETION OF CONSTRUCTION, WILL BE THE RESPONSIBILITY CONTRACTOR LEAVE THE AREA DUST FREE AND CLEAN. ALL CONSTRUCTION CONFORM TO ALL APPLICABLE ODES AND ORDINANCES. ALL WORK SHOWN THESE DRAWINGS TO PERFORMED THE GENERAL CONTRACTOR UNLESS NOTED OTHERWISE. DURING CONSTRUCTION, SHALL PROVIDE AND MAINTAIN FIRE EXTINGUISHERS AS REQUIRED THE LOCAL FIRE DEPARTMENT FIELD INSPECTOR. LOCATION FIRE EXTINGUISHER DIRECTED FIRE MARSHALL. ALL ITEMS LABELED "PROVIDED OWNER" PURCHASED THE OWNER AND INSTALLED CONTRACTOR. GENERAL CONTRACTOR SHALL COMPLY WITH REQUIREMENTS THE AMERICANS WITH DISABILITIES ACT AND ACCESSIBILITY CODES. WHEN CONFLICT, THE MORE STRINGENT THE TWO STANDARDS SHALL GOVERN. EMS INCLUDED PRICE. INSTALL ALL WORK WITH APPROVED FASTENERS, QUIRED HOLD WORK SECURE, LEVEL, PLUMB AND TRUE LINE. FASTENERS BE SET BELOW FINISHED SURFACES, FILL HOLES WITH WOOD PUTTY OTHER APPROVED MATERIALS, SAND FLUSH WITH THE SURFACE AS BE UNDETECTABLE THE FINISH. BLI NAIL WHENEVER POSSIBLE. ROUND EXPOSED EDGES ASSEMBLES TO RADIU ALL WOOD AND PLYWOOD TO FIRE RETARDANT AND ABELED ACCORDINGLY AT REQUIRED KITCHEN AREAS. SHALL PROVIDE ALL FLOOR LEVELING, PATCHING, AND REMEDIAL REPAIRS REASONABLY REQUIRED THE SCOPE WORK. "REPAIRS" INCLUDE, BUT NOT LIMITED TO, WORK REQUIRED PROVIDE SMOOTH AND VEN TRANSITION BETWEEN SPACES, AND PREPARE ROUGH SURFACES FOR NEW FINISHES. PATCH AND REPAIR EXISTING SURFACES MATCH SIMILAR ADJACENT SURFACE ASPECTS. PROVIDE AND/ MAINTAIN FIRE RATED ASSEMBLES HERE SHOWN, REQUIRED. SHALL SEAL AROUND ALL WALL FLOOR AND CEILING PENETRATIONS WITH FIRE RESISTANT PUTTY. RESPONSIBLE PROVIDE AND INSTALL ANY ALL ACCESS PANELS REQUIRED. ALL EXPOSED WOODWORK RECEIVE PAINT FINISH ALL SANDED SMOOTH PRIOR TO FINISHING WITH SAND PAPER COARSER THAN NO. ILL OPEN JOISTS AND SAND SMOOTH AND FLUSH. PROVIDE ALL NECESSARY SHIMS AND FILLERS. CONCEA FASTENERS UNLESS OTHERWISE NOTED. DAMAGE DURING CONSTRUCTION WILL BE THE CONTRACTOR'S EXPENSE. SURVEY THE PROJECT PRIOR DEMOLITION. REPORT EXISTING DAMAGE ARCHITECT PRIOR STARTING THE WORK. INSTALL FIRE RATED BLOCKING/ PLYWOOD AREAS EQUIRING SHELVING. PLYWOOD/ WOOD BLOCKING TO FIRE RESISTANT TREATED WOOD. PROVIDE FIRE DAMPERS TRANSFER DUCTS THROUGH RATED PARTITIONS. COORDINATE WITH MECHANICAL DRAWINGS. METAL REVEALS SHALL REGLET APPROVED QUAL MILL FINISH, UNPAINTED. ALL INTERSECTIONS SHALL MITERED CORRECTLY. THE GC RESPONSIBLE FOR THE PURCHASE INSTALLATION ALL ITEMS SHOWN THE ENTIRE SET DOCUMENTS UNLESS LISTED HERS" "NOT CONTRACT". VERIFY THAT SIDE-FOLDING GRILLES HAVE THUMB-TURNS ON TENANT SIDE FOR SAFE OCCUPANTS EGRESS NOT RETRO-FIT THE ISTING DEAD BOLT LOCKS WITH THUMB TURN FEATURES. VERIFY THAT EXISTING FINISHES ARE GOOD CONDITIONS SHALL PROVIDE TRANSITION STRIPS ALL LOCATIONS WHERE DIFFERENT FLOOR MATERIALS SPECIFIED AND LOCATED. 161 FAMILY RESTROOM 108 108 CL 3/4"A-111 FLOOR PLAN HASH HOUSE A GO GO WINTER GARDEN, FL 34787 RUN FLAMINGO, LLC LAS VEGAS, NV 89146 ISSUE FOR PERMIT SCALE: 3/16" - 1 FLOOR PLAN CONSTRUCTION PLAN GENERAL NOTES N SCALE: 1/4" - 2 ENLARGED RESTROOM DIMENSION PLAN 7.5 4.2 OPEN TO ABOVE OPEN ABOVE 1/2" OPEN ABOVE 3/4" 1/4" 1/2" 3/4" 1/2" 3/4" 1/2" 10" 10" 10" 12' 10" 1/2" 1/2" 11" 5/8" 10 10 1/2" 11 1/4" 3/4" 1/4" 1/2" 1/2" 10" 1/2" 1/2" 1/2" WD-1 L-12 11' PT-02 PT-03 PT-02 PT-02 OPEN TO ABOVE PT-02 PT-02 PT-02 PT-02 PT-02 PT-02 PT-02 ACT-01 PT-02 PT-03 OPEN ABOVE PT-03 PT-02 L-5 L-3 L-6 L-6 C1 C2 C3 C11 C12 L-1 L-1 L-1 L-1 L-1 L-1 L-1 L-1 L-1 L2 L2 L2 L2 L2 L-3 L-3 L-3 KK KE KE KK KE KE L-3 L-1 L-1 L-1 L-1 L-3 L-3 L-3 L-3 L-3 L-3 L-3 L-3 L-3 L-5 L-5 L-5 L-12 L-12L-12 L-12 L-12 L-12 L-12 L-12 L-12 L-5 L-5 L-5 L2 L2 L2 L2 L2 L2 C13 L-6 L-6 C13 C14 L2C15 C11 C16 C16 C16 10' C16 C17 17' 35' 1/4" 10" EQ 10 1/4" EQ 1/2"5' 10 3/4" REFER ALL REFER COORDINATE EQUIPMENT. ALL ACOUSTICAL EXPOSED EXPOSED CEILING SYMBOL ITEM WD-01 ACTKE LIGHTING SYMBOL ITEM PROVIDED FOR SUSPENDED CEILING GRID SYSTEM G.C. TO APPLY CONTINUOUS CLEAR SILICONE SEALANT PERIMETER GRID FRP JOINT. TYPICAL THROUGHOUT B.O.H. CEILING FURRING CHANNEL 150F125-33 O.C. MAX. CEILING/SOFFIT BOARD SCALE: 3/16" - 1 Reflected Ceiling Plan GENERAL SCALE: - 2 TYP LIGHT FIXTURE IN CEILING GRID SCALE: - 3 CEILING GRID DETAIL SCALE: 3/4" - 4 FURRING CHANNEL DETAIL H F.3 D.2 D.7 F.8 F.9 F.2 AA 125' T.O. WATERTABLE T.O. FRAMING T.O. FINISH FLOOR T.O. STEEL 120' T.O. PILASTER 130' NEW STOREFRONT AND DOOR NEW RAILING NEW CANOPY SYSTEM HHAGG SIGN, COORDINATE WITH SIGN VENDOR FOR INSTALLATION- -601 EXTERIOR WALL MOUNTED LIGHTS RE: ELECTRICAL EQ EQ EQ EQ EQ EQ EQ EQ EQ EQ 7'4" 104' 0" 100' 0" WALL INFILL REQUIRED. MATCH EXISTING CONDITION E- -12 6.5 7.5 4.2 4.7 6.1 7.4 111' 100' 0" 125' 126' T.O. FINISH FLOOR T.O. STOREFRONT T.O. FRAMING T.O. FRAMING 120' 6" T.O. PILASTER 117' 6" B.O. FRAMING 125' 121' B.O. STOREFRONT T.O. STOREFRONT 130' 0" T.O. STEEL NEW STOREFRONT AND DOOR NEW RAILING NEW CANOPY SYSTEM S2 HHAGG SIGN, COORDINATE WITH SIGN VENDOR FOR INSTALLATION P- EXTERIOR WALL MOUNTED LIGHTS RE: ELECTRICAL EQ EQ EQ EQ EQ EQ EQ EQ EQ EQ EQ EQ 6.5 7.5 INCHES 24" INCHES R SCALE: 3/16" -0" 1 EAST ELEVATION SCALE: 3/16" = 1'-0" 2 NORTH ELEVATION

Orange Technical College Higher Education Orlando, FL

Scope of work: New campus of the Orlando Technical College located in the existing property of University High School in east Orlando. In accordance with the Orange County Public Schools Educational Specification

Conformance, this campus was designed to host trade career fields of computer science and all the requirements from the client.

Project role: architectural suppport

Year: 2022

ELECTRICAL CHAIR STO MAT STO CORRIDOR 143 240 SF 72 SF 228 SF 222 201A 306A 402 PORTABLE PORTABLE PORTABLE PORTABLE GENERAL ARCHITECTURAL NOTES WALL TYPES SHALL BE DESIGNATED ON FLOOR PLANS TH PARTITIONS ARE WALL TYPE SA.3.20 UNLESS NOTED OTHERWISE. ALL INTERIOR STUD WALLS SHALL EXTEND TO UNDERSID FLOOR OR ROOF DECK ABOVE UNLESS NOTED OTHERWISE. SEE REFLECTED CEILING PLAN NOTES. PROVISIONS SHALL MADE AT ALL FULL HEIGHT NONBEARING WALLS FOR 1-INCH VERTICAL MOVEMENT THE BUILDING STRUCTURE WITHOUT TRANSFER OF COMPRESSIVE LOADS TO WALL. FILL IRREGULARITIES BETWEEN TOP OF AND DECK ABOVE WITH MINERAL WOOL INSULATION OR FIRE STOPPING MATERIALS REQUIRED TO MEET FIRE RATING RESPECTIVE WALLS. SEE DETAILS ON SHEET Y205. FURNISH AND INSTALL FIRE-TREATED WOOD BLOCKING METAL BACKING PLATE METAL STUD PARTITIONS FOR TH PROPER ANCHORAGE OF ALL WALL ATTACHED ITEMS; I.E. TOILET ACCESSORIES, CASEWORK, MILLWORK, WALLMOUNTED FIXTURES, MARKER BOARDS, TACK BOARDS, DOOR STOPS, AUDIO VISUAL BRACKETS, AND OTHER WALL ATTACH ITEMS. GYPSUM BOARD SURFACES SHALL BE ISOLATED WITH CONTROL JOINTS WHERE SHOWN ON DRAWINGS AND DESCRIBED THE SPECIFICATIONS. "MBD" AND "TBD" INDICATE MARKER BOARDS AND TACK BOARDS ON PLANS. THE LENGTH PRECEDES THE DESIGNATION (EXAMPLE 16' MBD). ALL BOARDS ARE 4'-0 SEE WALL ELEVATIONS OR SPECIFICATIONS FOR MOUNTING HEIGHT. EXTEND FURRING CHANNELS AND GYPSUM BOARD INCHES ABOVE FINISHED CEILING ON CONCRETE PANEL WAL SCRIBE GYPSUM WALL BOARD OF WALLS AND PARTITIONS IRREGULARITIES OF DECK ABOVE. SEAL TIGHTLY AROUND PENETRATIONS. ALL DOOR JAMBS SHALL BE FROM FACE OF STUD U.N GWB PARTITIONS. 10. ALL PRIMARY STEEL FRAMING RECIEVE 2-HR SPRAY APPLIED FIRE PROOFING. PAINT ALL EXPOSED SPRAY-APPL FIREPROOFING TO MATCH SURROUNDINGS U.N.O. XX. X. XX 20 A501 1/4"3' 6"11' 1"7 1/4"18 STAIR 107A ELEV 100G MECHANICAL 119 PUBLIC 100H PUBLIC 100J ELECTRICAL 100C STUDENT COMMONS 107 CUST 107B CUST 100E CORRIDOR 111B TESTING CENTER 110A RECEPTION/ TESTING ADMIN 110 DATABASE CLERK 111G WORK RM 111E ADMIN STOR. 111T WORKSPACE 118 BUSINESS MGR. 111F ELEV. MRM 100F MDF 100D DEMONSTRATION LAB HYBRID LABS 102 MOTION CAPTURE 104 SOUND STAGE 103 PROP STORAGE 103A FITTING ROOM 101C FITTING ROOM 101D ELECTRICAL 123 A500 A500 A500 A501 VESTIBULE 101B STORAGE 104A IDF 104B LOBBY 100 PUBLIC 101G PUBLIC 101F VENDING 101H RECEIVING STAFF RR (F) 124A STAFF RR (M) 124B CUST 124C KITCHEN WARMING 105A MECHANICAL SECURITY OFFICE 100L GRAB GO/ BOOKSTORE RACKS 106A EMERGENCY ELECTRICAL 121 HVAC PUMPS 120 CAREER SER. 107Q CAREER SPECIALIST 107S IND. OFFICE 107R CONFERENCE RM 107P CONFERENCE TRAINING ROOM 107C CORRIDOR 107E COPY 108A ACCOUNTING COMPUTER LAB 108 ADMIN OFFICE COMPUTER LAB 109 DIRECTOR 107F ASSIST. DIR. 107G ASSIST DIR. 107H ASSIST DIR. 107J SECRETARY 107N CRT 107M CRT 107L STF RR (M) 107K STAIR 100B GENERAL CLASSROOM 112 GENERAL CLASSROOM 113 GENERAL CLASSROOM 114 GENERAL CLASSROOM 115 TEACHERS WORKROOM 116 GENERAL CLASSROOM MATERIAL STORAGE 111A STAIR STOR. 118A ADVISOR 111H ADVISOR 111J REGISTRAR 111K CLERK REGISTRAR 111L CLERK 111M DEAN 111N BOOKKEEPERS 111P FINANCIAL AID 111Q FINANCIAL AID 111R RECEPTION 100K WAITING 107D VESTIBULE 101E A200 A200 A200 A200 FLAMMABLE STORAGE 122 ENTRANCE 100A UTILITY YARD VESTIBULE 101A17.5 17.6---55' 1/2" 115' 1/2"----- 139' 1/4"13' 3/4"7 1/4"BUSINESS STORAGE 111S STF (W) 111C STF (M) 111D CORRIDOR 111 EXPANSION JOINT OVERHEAD CANOPY OVERHEAD CANOPY OVERHEAD CANOPY O D O G1 G2 G3 G4-F A C I L I T I E S G A N D G O V E R E C O U N T Y P A M E L I A S T 3 R D F L SCALE: 1/16" 1'-0" ARCHITECTURAL FIRST FLOOR PLAN -OVERALL
Rendering by others
VAULT T PLANN WORKROOM VAULT MECH OFFICE OFFICE 43 SF 109 111 114 PORTABLE PORTABLE PORTABLE PORTABLE A201 A510 A510 A601 A510 A511 A511 A705 A511 ELEV 100G CORRIDOR 111B DEAN 111N DATABASE CLERK WORK ADMIN STOR. BUSINESS MGR. 111F CLERK REGISTRAR REGISTRAR ELEV. 100F PUBLIC PUBLIC 100J GENERAL CLASSROOM ADVISOR 111J ADVISOR 111H CLERK 111M FINANCIAL SECURITY OFFICE FINANCIAL 111R LOBBY MATERIAL STORAGE 111A STAIR TEACHERS WORKROOM GENERAL CLASSROOM GENERAL CLASSROOM GENERAL CLASSROOM 114 GENERAL CLASSROOM BOOKKEEPERS 111P 100B 100D 100C 111-A 100J 118A 100H 100F 100E 100A-A 111-C 100A-B RECEPTION 111-B SS. SS. SS. SS. SA. SS. SA. SS. SS. SS. SS. SA. SS. SA. SA. SA. SS. SA. SA. SA. SA. SA. SS. 10' 1/8" 7/8" 10" 11" 10' TYP. 11' SA. SS. SA. SA. SS. SA. SA. SS. SS. SA. SS. SS. SA. SS. SS. TYP A1 A513 100A-C ENTRANCE 100A VESTIBULE 101A A201 A201 A600 A600 A601 SB. A603 A900 A900 A901 A901 A901 A901 A901 A901 A901 A901 100L A901 STF 111C STF 111D 111D 111C BUSINESS STORAGE 111S STOR. 118A CORRIDOR A701 A701 A201 A203 A002 A913 27'10' 7/8" 6"10' ALIGN ALIGN 12' 100A-D 5/8" PANEL1/4" 3/8" EXPANSION JOINT 101A CONCRETE FINISH -SEE THE FINISH PLAN/S FOR ALL EXPOSED CONCRETE LOCATIONS A805 A805 A805 A901 A605A705 A705 A514 A514 A514 SA. SA. SS. SA. SA. SA. SA. SA. PD TYP EL TYP SB.GENERAL ARCHITECTURAL NOTES WALL TYPES SHALL DESIGNATED FLOOR PLANS US: SEE SHEET A802 WALL TYPES. INTERIOR PARTITIONS ARE WALL TYPE SA.3.20 UNLESS NOTED OTHERWISE. ALL INTERIOR STUD WALLS SHALL EXTEND UNDERSID FLOOR ROOF DECK ABOVE UNLESS NOTED OTHERWISE. SEE REFLECTED CEILING PLAN NOTES. PROVISIONS SHALL MADE ALL FULL HEIGHT NONBEARING WALLS FOR 1-INCH VERTICAL MOVEMENT OF THE BUILDING STRUCTURE WITHOUT TRANSFER OF COMPRESSIVE LOADS WALL. FILL IRREGULARITIES BETWEEN TOP WALL AND DECK ABOVE WITH MINERAL WOOL INSULATION STOPPING MATERIALS REQUIRED TO MEET FIRE RATING RESPECTIVE WALLS. DETAILS ON SHEET Y205. FURNISH INSTALL FIRE-TREATED WOOD BLOCKING METAL BACKING PLATE METAL STUD PARTITIONS PROPER ANCHORAGE WALL ATTACHED ITEMS; TOILET ACCESSORIES, CASEWORK, MILLWORK, WALLMOUNTED FIXTURES, MARKER BOARDS, TACK BOARDS, DOOR STOPS, AUDIO VISUAL BRACKETS, AND OTHER WALL ATTACHED ITEMS. GYPSUM BOARD SURFACES SHALL ISOLATED WITH CONTROL JOINTS WHERE SHOWN DRAWINGS AND DESCRIBED SPECIFICATIONS. "MBD" AND "TBD" INDICATE MARKER BOARDS AND TACK BOARDS ON PLANS. THE LENGTH PRECEDES THE DESIGNATION (EXAMPLE MBD). ALL BOARDS ARE TALL. SEE WALL ELEVATIONS SPECIFICATIONS FOR MOUNTING HEIGHT. EXTEND FURRING CHANNELS AND GYPSUM BOARD UP INCHES ABOVE FINISHED CEILING CONCRETE PANEL LS. SCRIBE GYPSUM WALL BOARD WALLS AND PARTITIONS IRREGULARITIES DECK ABOVE. SEAL TIGHTLY AROUND PENETRATIONS. ALL DOOR JAMBS SHALL FROM FACE STUD .O., GWB PARTITIONS. ALL PRIMARY STEEL FRAMING TO RECIEVE 2-HR SPRAYAPPLIED FIRE PROOFING. PAINT ALL EXPOSED SPRAY-APPL FIREPROOFING MATCH SURROUNDINGS U.N.O. DIMENSION PLAN NOTES THE RESPONSIBILITY OF THE CONTRACTOR ELD VERIFY SITE CONDITIONS AND DIMENSIONS PRIOR STARTING CONSTRUCTION. CONTRACTOR SHALL NOTIFY THE ARCHITECT IMMEDIATELY OF ANY DISCREPANCIES, ERRORS, OMISSIONS INCONSISTENCIES OR OTHER PROBLEMS IMMEDIATELY UPON DISCOVERY BEFORE PROCEEDING WITH THE WORK. DIMENSIONS ARE TAKEN FROM COLUMN CENTER LINES FROM FACE STUD UNLESS NOTED OTHERWISE. CLEAR DIMENSIO ARE TO FINISHED FACE OF CONSTRUCTION AND SHALL TAKE CEDENCE OVER ANY OTHER DIMENSION. THE CONSTRUCTION DOCUMENTS ARE NOT SCALED. ALL CONSTRUCTION CONFORM TO APPLICABLE DES AND ORDINANCES. GENERAL CONTRACTOR SHALL COMPLY WITH ALL REQUIREMENTS THE AMERICANS WITH DISABILITIES ACCESSIBILITY CODES. WHEN CONFLICT, MORE STRINGENT THE TWO STANDARDS SHALL GOVERN. I N G A N D G O V E R N M E N T A L R E L A T I O N S O R A N G E C O U N T Y P U B L I C S C H O O L S SHEET NUMBER: (Total): OCPS DRAWING FILE NAME: DATE: PLT SCALE: CHECKED: DRAWN: KEY PLAN indicated East Campus_AR_2020_detached.rvt A111 Author Checker 08/24/2022 S0090: OTC EAST CAMPUSPhase 3 R2 SITE 512UE1 SCALE: 1'-0" ARCHITECTURAL FIRST FLOOR PLAN -AREA A CHAIR STO DRESSING RECEPTION GEN SPACE ARTS CORRIDOR 382 SF 308 SF 363 SF 240 SF 380 SF 676 SF 168 SF 200A 206 201B 201A 202A 403E 403 200F A203 20 18 23 A512 A512 A512 A513 A513 AREA A AREA B C A AR UTILITY YARD HVAC PUMPS 120 ELECTRICAL 123 EMERGENCY ELECTRICAL 121 DEMONSTRATION LAB 106 KITCHEN WARMING 105A GRAB GO/ BOOKSTORE 105 RECEIVING 124 RACKS 106A VENDING 101H PUBLIC RR (F) 101G PUBLIC RR (M) 101F STAFF RR (F) 124A STAFF RR (M) 124B CUST 124C MECHANICAL 125 MOTION CAPTURE 104 STORAGE 104A PROP STORAGE 103A FITTING ROOM 101D FITTING ROOM 101C VESTIBULE 101B SOUND STAGE 103 HYBRID LABS 102 103A 103-A 104-B 121 120 106A 101G 101F 104B 124A 124B 124C 104-A 104A IDF 104B VESTIBULE 101E A705 A704 A704 A703 A705--FLAMMABLE STORAGE 122-----SA. SA. C1. 00 SA. S1. D6. 40 S1. D6. SB. SA. SA. 20 SA. SB. 22 SA. SA. SA. SS. 28 SB. SB. 10 SS. SA. 12 SA. SA. 20 SA. SA. SA. 20 SA. 12 SA. 12 SS. S1. D6. 40 SA. 28 SA. 20 SD. SA. SA. S1. D6.3SS. 17.5 17.6 A600 33 C1. A901 44 A901 45 A901 55 A901 21 11 A901 A901 A901 A900 A203 SA. 3. A901 ABOVE DOOR ABOVE DOOR78-8 2-34--A1 2 49---N E 9---581-A605 EXPANSION JOINT EXPANSION JOINT A901 56 CHASE ABOVE TRANSFORMER PAD GENERATOR PAD CHILLER PADS 105A A805 16 A805 SA. C1. 00 C1.-A901 44 A703 A703 A514 SA. SA. SA. 16 SA. SA. 10 SD. 48 SA. SA. SA. 10 SA. 18 SS. SS. SA. SA. 16 SA. 16 SA. 16 SA. SA. 18 SA. SA. 16 105-A FEC GENERAL ARCHITECTURAL NOTES WALL TYPES SHALL BE DESIGNATED ON FLOOR PLANS THUS: SEE SHEET A802 FOR WALL TYPES. ALL INTERIOR PARTITIONS ARE WALL TYPE SA.3.20 UNLESS NOTED OTHERWISE. ALL INTERIOR STUD WALLS SHALL EXTEND TO UNDERSID FLOOR ROOF DECK ABOVE UNLESS NOTED OTHERWISE. SEE REFLECTED CEILING PLAN NOTES. PROVISIONS SHALL BE MADE AT ALL FULL HEIGHT NONBEARING WALLS FOR 1-INCH VERTICAL MOVEMENT OF THE BUILDING STRUCTURE WITHOUT TRANSFER OF COMPRESSIVE LOADS TO WALL. FILL IRREGULARITIES BETWEEN TOP OF WALL AND DECK ABOVE WITH MINERAL WOOL INSULATION OR FIRE STOPPING MATERIALS AS REQUIRED TO MEET FIRE RATING OF RESPECTIVE WALLS. SEE DETAILS ON SHEET Y205. FURNISH AND INSTALL FIRE-TREATED WOOD BLOCKING METAL BACKING PLATE METAL STUD PARTITIONS FOR TH PROPER ANCHORAGE OF ALL WALL ATTACHED ITEMS; I.E. TOILET ACCESSORIES, CASEWORK, MILLWORK, WALLMOUNTED FIXTURES, MARKER BOARDS, TACK BOARDS, DOOR STOPS, AUDIO VISUAL BRACKETS, AND OTHER WALL ATTACHED ITEMS. GYPSUM BOARD SURFACES SHALL BE ISOLATED WITH CONTROL JOINTS WHERE SHOWN ON DRAWINGS AND AS DESCRIBED THE SPECIFICATIONS. "MBD" AND "TBD" INDICATE MARKER BOARDS AND TACK BOARDS PLANS. THE LENGTH PRECEDES THE DESIGNATION (EXAMPLE 16' MBD). ALL BOARDS ARE 4'-0 TALL. SEE WALL ELEVATIONS OR SPECIFICATIONS FOR MOUNTING HEIGHT. EXTEND FURRING CHANNELS AND GYPSUM BOARD UP INCHES ABOVE FINISHED CEILING ON CONCRETE PANEL WALLS. SCRIBE GYPSUM WALL BOARD OF WALLS AND PARTITIONS TO IRREGULARITIES DECK ABOVE. SEAL TIGHTLY AROUND ALL PENETRATIONS. ALL DOOR JAMBS SHALL BE 4" FROM FACE STUD U.N.O., GWB PARTITIONS. ALL PRIMARY STEEL FRAMING TO RECIEVE 2-HR SPRAYAPPLIED FIRE PROOFING. PAINT ALL EXPOSED SPRAY-APPLIED FIREPROOFING MATCH SURROUNDINGS U.N.O. XX. XX DIMENSION PLAN NOTES THE RESPONSIBILITY THE CONTRACTOR ELD VERIFY ALL SITE CONDITIONS AND DIMENSIONS PRIOR TO STARTING CONSTRUCTION. THE CONTRACTOR SHALL NOTIFY THE ARCHITECT IMMEDIATELY OF ANY DISCREPANCIES, ERRORS, OMISSIONS INCONSISTENCIES OR OTHER PROBLEMS IMMEDIATELY UPON DISCOVERY AND BEFORE PROCEEDING WITH THE WORK. DIMENSIONS ARE TAKEN FROM COLUMN CENTER LINES AN FROM FACE OF STUD UNLESS NOTED OTHERWISE. CLEAR DIMENSIONS ARE TO FINISHED FACE OF CONSTRUCTION AND SHALL TAKE PRECEDENCE OVER ANY OTHER DIMENSION. THE CONSTRUCTION DOCUMENTS ARE NOT TO BE SCALED. ALL CONSTRUCTION TO CONFORM TO ALL APPLICABLE CODES AND ORDINANCES. GENERAL CONTRACTOR SHALL COMPLY WITH ALL REQUIREMENTS OF THE AMERICANS WITH DISABILITIES ACT AND ANY ACCESSIBILITY CODES. WHEN CONFLICT, THE MORE STRINGENT THE TWO STANDARDS SHALL GOVERN. © DLR Group F A C I L I T I E S S E R V I C E S N N I N G A N D G O V E R N M E N T A L R E L A T I O N S R A N G E C O U N T Y P U B L I C S C H O O L S 4 5 W A M E L I A S T 3 R D F L O O R O R L A N D O F L 3 2 8 0 1 Revisions S0090: OTC EAST CAMPUS 2450 Cougar Way, Orlando FL 32817 ARCHITECTURAL FIRST FLOOR PLANAREA C Phase 3 R2 SITE 512UE1 ARCHITECTURAL FIRST FLOOR PLAN -AREA C ELECTRICAL SPACE DRESSING 100 SF 90 SF 143 SF 366 SF 200C 222 202B 1.1 A511 A511 A511 A512 A512 A512 A513 STAIR MECHANICAL STUDENT COMMONS CUST 107B ACCOUNTING COMPUTER LAB 108 ADMIN OFFICE COMPUTER ELECTRICAL CONFERENCE TRAINING ROOM 107C TESTING CENTER 110A RECEPTION/ TESTING ADMIN STAIR 100B COPY ASSIST 107J ASSIST DIR. 107H DIRECTOR 107F CAREER SPECIALIST OFFICE 107R CAREER SER. 107Q 107K CORRIDOR 107E ASSIST. DIR. 107M CRT 107L SECRETARY CONFERENCE 107P WAITING 107D 107B 107A-B 100B 100D 100C 107-A 107C-B 107Q-A 107P 107D 107-B SA. SA. 10" 11"13' 1/8" 1/8" 1/2" 5/8" SA. S1. SS. SA. S1. SA. SA. SA. SA. SA. SA. SS. SS. SA. SA. 3'-6"11'-0" 28'-6" 28'-6" 28'-6" 28'-6" 28'-6" SB. SB. CA. SB. SB. C1. SA. SA. SA. SB. SA. S1. SA. SA. SA. SS. SA. SS. SA. SA. A600 A604 A602 A901 A901 A901 A901 A901 A901 A901 A901 A901 A901 SS. SS. ABOVE DOOR 3/8" 5/8" 1/8" 7/8" 8"3' EXPANSION JOINT A901 CONCRETE FINISH -SEE THE FINISH PLAN/S EXPOSED CONCRETE LOCATIONS CONCRETE FINISH -SEE THE FINISH PLAN/S EXPOSED CONCRETE LOCATIONS A901 CORRIDOR A703 A703 A903 SA. A705 SB. SA. SA. SA. ALIGN A512GENERAL ARCHITECTURAL NOTES WALL TYPES SHALL DESIGNATED FLOOR PLANS SEE SHEET A802 FOR WALL TYPES. ALL INTERIOR PARTITIONS ARE WALL TYPE SA.3.20 UNLESS NOTED OTHERWISE. ALL INTERIOR STUD WALLS SHALL EXTEND UNDERSID FLOOR OR ROOF DECK ABOVE UNLESS NOTED OTHERWISE. SEE REFLECTED CEILING PLAN NOTES. PROVISIONS SHALL MADE ALL FULL HEIGHT NONBEARING WALLS FOR 1-INCH VERTICAL MOVEMENT BUILDING STRUCTURE WITHOUT TRANSFER COMPRESSIVE LOADS WALL. IRREGULARITIES BETWEEN WALL AND DECK ABOVE WITH MINERAL WOOL INSULATION FIRE STOPPING MATERIALS REQUIRED MEET FIRE RATING RESPECTIVE WALLS. SEE DETAILS SHEET Y205. FURNISH AND INSTALL FIRE-TREATED WOOD BLOCKING METAL BACKING PLATE METAL STUD PARTITIONS FOR TH PROPER ANCHORAGE ALL WALL ATTACHED ITEMS; TOILET ACCESSORIES, CASEWORK, MILLWORK, WALLMOUNTED FIXTURES, MARKER BOARDS, TACK BOARDS, DOOR STOPS, AUDIO VISUAL BRACKETS, AND OTHER WALL ATTACH ITEMS. GYPSUM BOARD SURFACES SHALL ISOLATED WITH CONTROL JOINTS WHERE SHOWN DRAWINGS AND AS DESCRIBED THE SPECIFICATIONS. "MBD" AND "TBD" INDICATE MARKER BOARDS AND TACK BOARDS PLANS. THE LENGTH PRECEDES DESIGNATION (EXAMPLE MBD). ALL BOARDS TALL. SEE WALL ELEVATIONS OR SPECIFICATIONS FOR MOUNTING HEIGHT. EXTEND FURRING CHANNELS AND GYPSUM BOARD INCHES ABOVE FINISHED CEILING CONCRETE PANEL WAL SCRIBE GYPSUM WALL BOARD OF WALLS AND PARTITIONS TO IRREGULARITIES OF DECK ABOVE. SEAL TIGHTLY AROUND ALL PENETRATIONS. ALL DOOR JAMBS SHALL FROM FACE OF STUD U.N GWB PARTITIONS. ALL PRIMARY STEEL FRAMING RECIEVE 2-HR SPRAYAPPLIED FIRE PROOFING. PAINT EXPOSED SPRAY-APPLIED FIREPROOFING MATCH SURROUNDINGS U.N.O. XX. DIMENSION PLAN NOTES THE RESPONSIBILITY CONTRACTOR ELD VERIFY ALL SITE CONDITIONS DIMENSIONS PRIOR STARTING CONSTRUCTION. THE CONTRACTOR SHALL NOTIFY THE ARCHITECT IMMEDIATELY ANY DISCREPANCIES, ERRORS, OMISSIONS INCONSISTENCIES OTHER PROBLEMS IMMEDIATELY UPON DISCOVERY AND BEFORE PROCEEDING WITH THE WORK. DIMENSIONS TAKEN FROM COLUMN CENTER LINES FROM FACE OF STUD UNLESS NOTED OTHERWISE. CLEAR DIMENSIONS ARE FINISHED FACE CONSTRUCTION SHALL TAKE PRECEDENCE OVER OTHER DIMENSION. THE CONSTRUCTION DOCUMENTS ARE NOT SCALED. CONSTRUCTION CONFORM ALL APPLICABLE DES AND ORDINANCES. GENERAL CONTRACTOR SHALL COMPLY WITH REQUIREMENTS THE AMERICANS WITH DISABILITIES ACT AND ANY ACCESSIBILITY CODES. WHEN CONFLICT, THE MORE STRINGENT TWO STANDARDS SHALL GOVERN. C L indicated C:\Users\alovera\Documents\36-21133-00_OCPS A112 S0090: OTC EAST CAMPUS ESCALE: 1/8" 1'-0" ARCHITECTURAL FIRST FLOOR PLAN -AREA B 11 12 13 SCALE: 1/16" = 1'-0" A200 EXTERIOR ELEVATION -WEST EXTERIOR ELEVATION -NORTH EXTERIOR ELEVATION -SOUTH SCALE: 1/16" = 1'-0" A200 EXTERIOR ELEVATION -EAST 10 11 12 13 14 A 10'0" 12'0" 20 SCALE: 1/16" 1'-0" A200 EXTERIOR ELEVATION -WEST SCALE:1/16" 1'-0" EXTERIOR ELEVATION -NORTH EXTERIOR ELEVATION -SOUTH SCALE: 1/16" 1'-0" A200 EXTERIOR ELEVATION -EAST 10 11 12 13 14 A SCALE: 1/16" 1'-0" A200 EXTERIOR ELEVATION -WEST EXTERIOR ELEVATION -NORTH EXTERIOR ELEVATION -SOUTH SCALE: 1/16" 1'-0" A200 EXTERIOR ELEVATION -EAST 11 12 13 B C 10' 0" C 20 18 19 17 17.5 17.6 13' 1" 12'9" SCALE: 1/16" 1'-0" A200 EXTERIOR ELEVATION -WEST SCALE:1/16" 1'-0" A200 EXTERIOR ELEVATION -NORTH SCALE:1/16" 1'-0" A200 EXTERIOR ELEVATION -SOUTH SCALE: 1/16" 1'-0" A200 EXTERIOR ELEVATION -EAST

Gulf Shores High School K-12

Gulf Shores, FL

Scope of work: New campus of the Orlando Technical College located in the existing property of University High School in east Orlando. In accordance with the Orange County Public Schools Educational Specification Conformance, this campus was designed to host trade career fields of computer science and all the requirements from the client.

Project role: architectural suppport

Year: 2022

Rendering by others R A N O FURNITURE SHOWN FOR REFERENCE ONLY. NOT CONTRAC REFER FINISH LEGEND FOR PAINT COLORS CALLED OUT REFLECTED CEILING PLANS AND FINISH PLANS. UNLESS OTHERWISE NOTED, ALL FLOOR TILE SHALL BE CENTERED ROOM. UNLESS OTHERWISE NOTED, ALL CEILING GRID AND LIGHT FIXTURES SHALL BE CENTERED ROOM/OPENING. CONTRACTOR REVIEW WITH ARCHITECT, SITE, AREAS WITH MULTIPLE CEILING, WALL, AND FLOOR FINISHES BEFORE FINISH WOR BEGINS. REFER LEGEND OVERALL REFLECTED CEILING ANS FOR RCP ABBREVIATIONS AND FINISHES. WALL TILE AND BASE GROUT LINES SHALL ALIGN WITH FLOOR TILE. PROVIDE BLOCKING FOR GRAB BARS AND TOILET ACCESSORI RESTROOMS. CONF. CAMERA STOR STUDIO SENSORY OFFICE CUSTODIAL STORAGE FLEX TOILET SUITE SERVICE COURT PRAC. OFFICE LOBBY SOUND DRESSING DRESSING ROOM MAKEUP SHOP STOR. HANGOUT STUDIO TEXTBOOK STORAGE KITCHEN ELEC. GREAT HALL CORRIDOR COURTYARD AMPITHEATER ENTRY OFFICE GREEN HOUSE CONCESSIONS 71'-0" 115'-2" 79'-6" 34'-8"19'-4" 54'-8" 56'-0" 50'-0" 77'-0" 33'-8" 44'-8" 635'-8" 61'-1" 118'-9" 50'-4"16'-0" 216'-4" 34'-8"8'-4"2'-0" 507'-6"OFFICE LAUNDRY/LOCKERS STORAGE BBALL CORR CORRIDOR -VOLLEYBALL ICE/WET AREA LAUNDRY LARGE VIDEO/MEETING FIRST AIDSTOR CONFERENCE COACHES GYM CAMERA ROOMVEST TOILET 627'-7" 134'-4" 88'-4" 26'-4"63'-4" 11'-0"42'-0" 365'-4" 206'-8" 54'-4" 16'-2" 24'-4"29'-0"28'-4"29'-4"26'-0"16'-6"28'-0"14'-10" 198'-8" VEST ISSUE DATE 1 2 / 5 / 2 0 2 2 1 1 0 7 1 0 A M -LEVEL 1 A0.1.1 SPECIALTY EQUIPMENT SCHEDULE ID DESCRIPTION <varies> MOP SINK [TAG]URINAL PARTITION SCREEN FECFIRE EXTINGUISHER CABINET S7REFRIGERATOR/FREEZER SIDE SIDE S9ICE MACHINE OFCI COORDINATE WITH MEP S17WASHING MACHINE UNIMAC UFNE5BJP115TW01 S18DRYER UNIMAC UDEE5BGS173CW01 S[N]<varies> SH1 SPECIALTY EQUIPMEN <varies> TRUE NORTH KEY NOTES GENERAL CONSTRUCTION KEY KEYNOTE G1[ENTER INSTRUCTIONS] Copy/paste plan needed Delete needed Starter Note A4A A7 STORM SHELTER (ALT) SCALE: 30'-0" OVERALL FLOOR PLANS -LEVEL A1
O ---OUse the "SYMBOL-KEY views. The plan notes GUIDE TO KEYED PLAN The Keys in the Building Example: B1, B2, B3, you see blank line instructions. Keynote schedule does not itemize To fix blank line conflict, verify that your Keynote itemizes every instance, SCALE:1" 30'-0" OVERALL BUILDING SECTION SCALE:1" 30'-0" OVERALL BUILDING SECTION SCALE:1" 30'-0" OVERALL BUILDING SECTION OVERALL GYM & FIELD HOUSE SECTION SCALE:1" 30'-0" OVERALL ACADEMIC BUILDING SECTION J1 --5 11 TEMPLATE VERSION: 2021.1 SCALE:1" 30'-0" OVERALL BUILDING SECTION SCALE:1" 30'-0" OVERALL BUILDING SECTION SCALE:1" 30'-0" OVERALL BUILDING SECTION SCALE:1" 30'-0" OVERALL BUILDING SECTION SCALE:1" 30'-0" OVERALL GYM & FIELD HOUSE SECTION H1 W0 ---- OWKEY B1[ENTER Use the "SYMBOL-KEY views. The plan notes GUIDE TO KEYED PLAN The Keys in the Building Example: B1, B2, B3, you see blank line instructions. Keynote schedule does not itemize To fix blank line conflict, verify that your Keynote itemizes every instance, SCALE:1" 30'-0" OVERALL BUILDING SECTION F1 SCALE:1" 30'-0" OVERALL BUILDING SECTION D1 OVERALL GYM & FIELD HOUSE SECTION H1 OVERALL ACADEMIC BUILDING SECTION --WW0 --O5 1 --- OW--OO-Use the "SYMBOL-KEY views. The plan notes GUIDE TO KEYED PLAN The Keys in the Building Example: B1, B2, B3, you see blank line instructions. Keynote schedule does not itemize To fix blank line conflict, verify that your Keynote itemizes every instance, SCALE:1" 30'-0" OVERALL BUILDING SECTION C1 F1 SCALE:1" 30'-0" OVERALL BUILDING SECTION D1 SCALE:1" 30'-0" OVERALL GYM & FIELD HOUSE SECTION H1 SCALE:1" 30'-0" OVERALL ACADEMIC BUILDING SECTION J1 6'-8"11'-5" 13'-0" 9'-4" 17'-4" 21'-7" 13'-9" 16'-4" 10'-8 13'-5" 11'-0 5/8" 21'-1" 8'-8"6'-6"8'-8" 10'-8" 9'-4"7'-0"10'24'-8 5/8" 15'-8" 15'-8" 15'-8" 15'-8" 12'-0" 10'-0" 15'-1 16'-8" 15'-8" 15'-8" 10'-10" 16'-0" 16'-0" 79'-6" 34'-8" 19'-4" 3'-0"7'-0"3'-0" 17'-0" 3'-0"12'-0"3'-0"7'-0"3'-0"2'-0"3'-0" 17'-0" 3'-0" 1'-0"3'-4"6'-10"3'-0"7'-0"3'-0"2'-0"3'-0"15'-0"3'-0"2'-0"3'-0"2'-0"3'-0"7'-0"3'-0"2'-0"3'-0"2'-0"3'-0"2'-4"1'-8"14'-1" 6'-4"10"6'-6"4'-3"1'-0" AREA A2-1 PLAN A1.1a2 SBC # DCM -2022356 GULF SHORES HIGH SCHOOL SCALE:1/8" LEVEL -AREA A2 A1 NORTH OUTDOORSTAGE 12'-8" 16'-10" 3'-0"2'-0"3'-0"2'-0"3'-0" 62'-0" 3'-0"7'-0"3'-0" 17'-0" 3'-0"12'-0"3'-0"7'-0"3'-0"2'-0"3'-0" 17'-0" 3'-0"-11'-0 3/8"--------10'-8" 10'-0" 17'-8" 4'-8" A1.1a5 SBC # DCM -2022356 A4A STORM SHELTER (ALT) (ALT) SCALE:1/8" 1'-0" LEVEL -AREA A5 A1 TRUE NORTH

Turn static files into dynamic content formats.

Create a flipbook
Issuu converts static files into: digital portfolios, online yearbooks, online catalogs, digital photo albums and more. Sign up and create your flipbook.