adriana zancani - portfolio

Page 1

04
MDC APARTMENT INTERIOR
Triplex Arquitetura são paulo
04 Arquitetura paulo | b APARTMENT DESIGN

01

GUARAREMA CENTRAL HUB | URBAN DESIGN + ARCHITECTURE STUDIES

URBAN INFRASTRUCTURE

The proposed project is located in Guararema, a city strategically positioned between two important regions for the economic development of the state of São Paulo – Alto Tietê and Vale do Paraíba, it is preparing for several investments in innovative projects that will bring great advances to the municipality, generating employment , income, quality of life, economic movement and social development.

The area designed for the project has approximately 13,000m2 and is at the highest point of the city, providing a 360º view of the city, visual enjoyment of the Paraíba River and the surrounding nature.

This project, designed to accommodate a creative centre, will integrate activities such as art and culture, innovation and technology, gastronomy and tourism.

The project started with access from both sides of the land, one by a panoramic elevator on the river side and another access, for vehicles, from the already existing access to the Municipal hospital, which is attached to the ground.

The programs already available to the maximum visual enjoyment of the surroundings are available by the city hall taking the usefulness of the land.

team: fernando forte, lourenço gimenes, rodrigo marcondes, sônia gouveia, phillipe metropollo, adriana zancani, gabriel batista, andrei krokhn

FGMF Arquitetos | guararema/ brazil - 2022 (in development)

AXONOMETRIC DIAGRAM OF ARCHITECTURAL VOLUMES AND PROGRAMS

top floor: spaces for learning arts and their derivations

second floor: spaces for technical learning and amfitheater

administrative spaces and theater

vertical and panoramic access connecting the architectural complex with the river

lower floor plan

ESCOCA HOUSE

The house is located in an upscale neighborhood of São Paulo, designed for a young couple who prioritize their social life. With an open layout on the ground floor, the almost total integration of the environments on this level was chosen, providing a complete view of the garden area and the swimming pool.

On the upper level, the private area such as bedrooms and an office is located. The volumetry of this level was conceived as an overlay of blocks, creating dynamism in the facade and favoring greater solar incidence and light in the internal spaces.

In contrast to the rigidity of the house, the pool in curved shapes complements the project and brings to mind a Burle Marx pattern of landscaping and design.

team: fernando forte, lourenço gimenes, rodrigo marcondes, sônia gouveia, eduardo piovesan, adriana zancani, júlia spadari

FGMF Arquitetos | são paulo | brazil - 2022
RESIDENTIAL 02
street view
ground floor plan firstfloor plan

48/18mm battens

moisture diffuse membrane

thermal insulation

alwitra roofing membrane

10mm protetive EDPM waterproof membrame

20mm mineral wool insulation

10mm TRESPA METEON WOOD PANEL boarding

Aluminium profile substructure

45/30/2mm

aluminium frame double insulated glazing

18mm parket flooring

80mm cement screed

230mm reinforced concrete slab

aluminium frame double insulated glazing

20mm stone flooring

80mm cement screed separating layer

250mm

2. 3. 4. 5. 6. 7. 8. 1. 3. 2.
4. 5.
8.
1.
7.
6.
aluminium coping titanium-zinc sheeting
10mm TRESPA METEON WOOD PANEL boarding
.5 1 façade section garden view
sand fill compacted soil 0

03

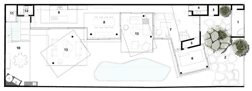
SJA HOUSE

RESIDENTIAL + INTERIOR DESIGN

A countryside home located in the countryside of São Paulo was meticulously designed with the core principle of seamlessly blending indoor spaces with the surrounding landscape. This design feature not only offers expansive views of the natural surroundings but also ensures well-lit interiors.

By prioritizing a flexible layout in the social areas, we achieved a harmonious integration between the living, dining, and gourmet spaces, effortlessly connecting them with the pool area, game room, and spa block, all accessible from the garden. The upper floor seamlessly merges with the outdoors through a spacious balcony and bench spanning the entire facade.

Taking advantage of the terrain’s slope, we opted for a two-level structure. From the street, the house presents as on one level. promoting good permeability of the surrounding area to pedestrians.

Employing natural, locally sourced materials such as fragmented stone flooring and bespoke wood’s panels, we curated a warm and inviting atmosphere with minimal environmental impact. The decor, blending rustic charm with timeless elegance, seamlessly weaves together Brazilian and international design classics alongside contemporary creations by renowned Brazilian designers.

team: carolina oliveira, adriana helú, marina lobo, aline bianca, gabriela zorello, everton lobo, adriana tavares, danilo rocha, julia vaccari

Triplex Arquitetura | porto feliz | brazil - 2019 AXONOMETRIC DIAGRAM OF THE ARCHITECTURE
0 5 10 ground floor plan
0 5 10 first floor plan

longitudinal section

façade north-east view of the nord façade from pool
living room
area
SPA and sauna
tv room and playroom dining room and gourmet
living and dining room

MDC APARTMENT

Designed for a young, newlywed couple who revel in hosting friends and family, this project transmits sophistication and timelessness. Its feature lies in the illuminated carpentry ceiling adorned with synthetic straw screens, seamlessly uniting all social spaces within the apartment and fostering a heightened defining sense of reception and hospitality.

The project’s integration and harmony are masterfully achieved through bespoke carpentry panels, custom-fit to merge every corner of the home, including the suites area. Incorporating natural materials like wood and limestone, along with the soft textures of linen fabrics and meticulously crafted furniture by esteemed designers, brings refinement and comfort to the ambiance.

team: carolina oliveira, adriana helú, marina lobo, aline bianca, gabriela zorello, adriana tavares, danilo rocha, julia vaccari

Triplex Arquitetura | são paulo | brazil - 2020
INTERIOR
DESIGN 04
Living room with illumination in ceiling’s panels
0 1 5 hall | entrance living | dining room lounge | bar tv room toilet bedroom suite master bedroom walk-in closet bathroom staff bedroom staff wc laundry room kitchen storage room technical area 1 2 3 4 5 6 7 8 9 10 11 12 13 14 15 1 3 2 4 5 6 6 6 10 11 12 13 15 14 9 9 9 9 8 7 floor
plan
| bar area Dining room tv room
Lounge
kitchen suite master bedroom toilet
Living room

This project was conceived in one of São Paulo’s most exclusive neighborhoods and was developed by the renowned Pininfarina studio, responsible for the uniqueness of the architectural plan.

The interior design was crafted to meet the needs of a couple with three children who enjoy hosting guests and have an active social life.

For this reason, priority was given to creating spacious and inviting social spaces.

With the aim of creating an atmosphere that is simultaneously cozy, sophisticated, and with a rustic touch, reminiscent of a home, a wide variety of natural materials were used. The careful selection of furniture by recognized designers, combined with the owners’ art collections, reflects the essence of contemporary Brazilian interior design, blending modern and classic elements harmoniously. The result is a true work of art, unique in its composition.

team: carolina oliveira, adriana helú, marina lobo, aline bianca, gabriela zorello, adriana tavares, julia vaccari ARH

Triplex Arquitetura | são paulo | brazil - 2020
INTERIOR DESIGN
APARTMENT
05
floor plan 0 1 5 10 hall | entrance living | social dining room lounge and terrace area tv room toilet bedroom suite master bedroom walk-in closet playroom staff bedroom staff wc laundry room kitchen storage room terrace office room dining room 1 2 3 4 5 6 7 8 9 10 11 12 13 14 15 16 17 6 6 7 15 16 8 8 1 2 4 3 3 13 12 9 5 14 17 14 10 11
living room playroom
hall and living room terrace area dining room

06

BETWEEN RIVERS AND TRACKS

URBAN RESTRUCTURING AND LANDSCAPE

final project

The choice of the area to be worked was based on the potential for connecting the urban space that the river and the railway can offer. These two structuring and defining elements of the urban layout, today forgotten and abandoned, return to their function “to connect spaces” of one side of the city to the other, through new routes.

The residual railway space between the tracks and the river, currently considered as an urban and insurmountable scar, in this project, starts to be considered the space of connections and urban continuity, through new routes and transpositions that become part of the daily path of the citizens.

Within a system of free spaces in the city, the worked area determines a fundamental role in the process of structuring the urban landscape, as it includes new forms of space appropriation. A way of articulating the different spaces, themes and uses that each location needs was studied, although it is understood that the punctual intervention of some places can already generate recognition and urban gains for such areas.

mentor: Prof. Dr. Fábio Mariz Gonçalves

bachelor’s FAU-USP | jundiaí - são paulo | brazil - 2013-2014

CURRENT SITUATION:

river and the train track create a true physical barrier between two areas of the city location of jundiaí city in São

Paulo State jundiaí city and delimitation study area

PROJECT GUIDELINES

to the city through the reintegration of the existing residual landscape – between the Jundiaí river and the railway line – with the urban landscape and the routes of the city.

urban continuity

To promote urban continuity between the two sides of the city, through systems of transpositions and paths capable of softening the character of urban barriers assumed by the river and the railway. Enabling the population’s access to the area through the reintegration of the existing residual landscape – between the Jundiaí River and the railway line – into the urban landscape and the city’s routes, enabling its insertion into people’s daily lives.

mobility system

Improve urban mobility, through new, more sustainable mobility options within the city, such as cycle paths, spaces, and crossings exclusively for pedestrians and bicycles, and use of the VLT and BRT.

Urban mobility will be prioritized in this order: pedestrian, cyclist, public transport, and motor vehicles.

uses sectorization

Seek to identify and understand the specific needs and potential of/and for each area to be worked on, to integrate the proposed uses into the daily lives of people and the neighborhood.

S

diagram transformation of the jundiai river through the years

PRIORITY IN GREEN SPACES AND APPROACHING PEOPLE TO THE RIVERS

CURRENT CONDITION

PROJECT PROPOSAL - PHASE 1

short term

PROJECT PROPOSAL - PHASE 2

long term

PRIORITY IN TRANSPORTATION SYSTEM:

PROJECT PROPOSAL

masterplan project
Guapeva River Guapeva River project proposal project proposal avenue avenue guapeva river natural courses multi-sport court guapeva river new proposals part of channeled river
project
Section Detail - New Fepasa Complex Park

STATION SQUARE

In this section, we sought to connect the station with the new trade and services center, serving train and bus users. In the old abandoned railroad shed, a cover will be proposed to receive fairs, events, and free trade.

WATER SQUARE

So called for the direct contact with the Jundiaí River, comprising wide staggered squares that take the population to the contact with the water. In order to have greater contact, some parts will have ground water sources - the squirts, so that people and children can cool off and enjoy.

RIVER SPORTS SQUARE

The new sports and river park, in addition to receiving sports equipment that serve the population and nearby schools, has as its focal element the river beach, which can be used with the increase in the level of the Jundiaí river, during the dry season it can be used as a place of rest and contemplation.

0 50 100 200m 0 50 100 200m 0 50 100 200m
LEAK FLOOD

WATERFRONT PROJECT

developed during exchange study at: Politecnico di Milano | genoa | italy - 2013

The present project is located in the industrial zone of Cornigliano in Genova, which proposes the urban and spatial requalification and the re-functionalization of a deactivated section of the city’s port area. From some analyzes made about the place, such as spaces of relationships, spatial evolution of the city, it can be verified the distance between the old city and the sea and its relations caused by the advance of the port area on the coastal coast. This sector of the city, far from the tourist center and the old center of the city, is currently in a situation of abandonment of the urban space.

The project proposes the return of city/population relations with the sea and as well as a requalification of urban space, creating workshop spaces, a new market square, a sports center and expanding the green space with the creation of a park.

mentors: marcos bozzola, renzo rosso, carlo ezechieli

masterplan team: adriana zancani, fulvia proserpio and laura colosi

CULTURE + URBAN INFRASTRUCTURE 07

ANALYZES OF THE SURROUNDINGS AREA - GENOA, IT

CONETIONS AND MEANS OF TRANSPORTATION GREEN AREAS

CONSOLIDATED URBAN AREAS

STEPS STUDY AREA CONCEPT

green area open area with new squares to integrated industrial spaces Villa Bombrini area: cultural and historic area

sport and parking area

cultural hub: cinema laboratory auditorium circulation with contact with the water extation of Villa Bombrini’s space

green area integrated with the sea

pb^=sfbt
WA TER dobbk o^fit^ v efdet^ v R e ^o l o
efpqlof`= ^ob^
masterplan
model’s masterplan model’s auditorium project model’s auditorium project
0 50 10 first floor plan ground floor plan
squematic section masterplan
0 10 20 5

Turn static files into dynamic content formats.

Create a flipbook
Issuu converts static files into: digital portfolios, online yearbooks, online catalogs, digital photo albums and more. Sign up and create your flipbook.