Portafolio Arquitectonico Wabissuke

Page 1

A c adem i c P o rt f o l i o P o n t i f i c i a U nivesida d C
l i c a d
l E c uad o
Vol. 3 12/2023
a t ò
e
r

pontificia universidad catolica del ecuador

Facultad de arquitectura diseño y artes

/Curr i culu m perfil /

hoj a de v i d a

Ro m mel Adr i a n

flores ponc e

23/ 11 /9 7

‘’en algun lugar estan las respuestas de lo que hacemos la curiosidad es el motor de busqueda que necesitamos’’

qu i to/ecu a do r

wabissuke@icloud.com

+593 98 3598 23 6

for m ación / exp

H a b i l i d a de s

softwares

2009

ecuela pri ma ri a

u . e borj a n 3 cav a ni s

2009

secundar i a

U . e . m San pedro p a scu a l

2016

B a chillerato gener a l unificad o

c i encia s

u . e olg a meza s a ntan a - MAnta

2018

Pontificia uni v ersid a d catolic a

f a cultad de a rquitectur a ,diseñ o

arte s

2021

2022

Asociac i ón Escuela FAD A

2022

Certificado Academ i a Pixe l

photoshop / V-ra y

2023

Arq. Hernan orbea

maqueteria - proyecto urbano La Mariscalidad

H a b i l i d a de s

aptitudes

proyecc i ó n bocetaj e/dibujo a mano curiosidad

idiomas

español/ nativo ingles/ b2

. contenid o

0 1 02

Talleres de d i señ o

diseño arqu i tectón i co y urb a n o concepc i one s

exper im enta l v i v iend a

0 0

03

Expresion gr á fic a

bocetos ent i nt a dos H i stor i a

un a cubierta cubiert a

04

Encuentro con l a Fotografí a

a prec ia c i ón fotogr á f i ca a trave z

del estud ia nt e

vi v iendo la a rquitectur a

recop i l a c i ón de fotogr a f í a s

a dí a de l a c a rrer a

0 1

Talleres de d i señ o t a ller de arquitectura

/re m odel a c i ón f a d a pontifici a un i vers i dad catol i c a del ecuado r

/expositor m ult i usos fada - puc e

/v i v i end a colect iva hueco s santa clar a de mi la n

rediseño fada

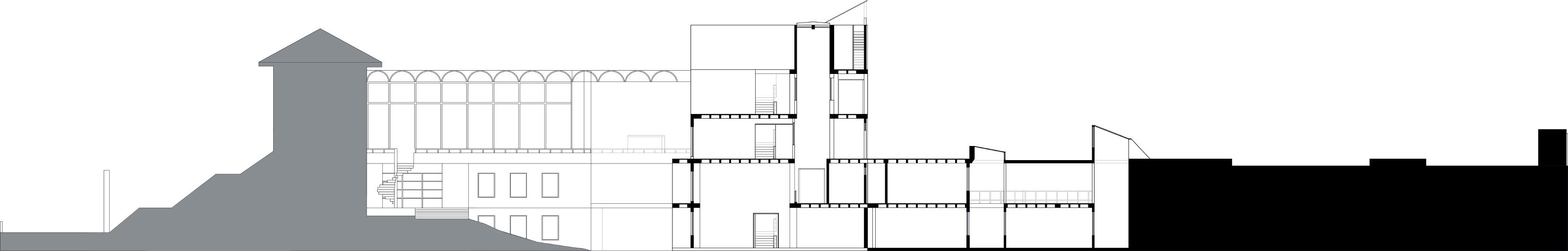
Un ejercicio cuyo principio es la intervención directa de los espacios mediante unas perforaciones al lleno.

corte 05

propuesta

La experiencia del juego esta en poder tener la pre existencia de la fada siendo atravezada por una serie de subtraciones que permitan reinventar los espacios con lo que ya hay, luego adherir una circulacion mas amplia, usamos espacios renegados para darles un adecuado uso como es la sala de expociciones de la actual ASO cediendo este espacio que se ubica ahora lejos de la incomoda situación generada por el calor.

Segunda planta Nv. -3.19
06
07 av. 12 de octubre

corte huecos

08 parqueadero pasaje españa

expositor multi proposito multiteca

fada - puce

La propuesta para este espacio es que se sienta sobre la delgadez acristalada, el espacio del conocimiento, macizo, brinda una dualidad del espacio desde el arte del consumir, el ofrecer, un alargado proyecto que apuesta por la inclusión de una ciclovia interna como una invitacion por parte de la PUCE a la comunidad que cuenta con amplias zonas que pueden transformase en la planta superior de acuerdo a las necesidades.

Un espacio que encierra a la vista con el unico proposito de encontrar iluminacion y que mejor guia que el camino del conocimiento.

09

fachada material

10 Av. Ladron de Guevara Pasaje España Ciclovia PUCE P3-G8P8 P3-G7P8 P3-G6P8 P3-G5P8 Cubierta que con sustracciones Permiten el paso de luz al nivel inferior. Para conservar luces mas amplias se opta por una estructura mas ´´industrial´´ compensando asi la aparente falta estructural. Cubierta que con sustracciones Permiten el paso de luz al nivel inferior Pimer cimentacion colocada a nivel para un desarollo optimo del proyecto.
implantacion - planta isometria espacios

REFERENTE

ESCUELA ARQUITECTURA

eSTRAUSBURG

Descripción enviada por el equipo del proyecto. Las salas de clases de La Fabrique se proyectan en el paisaje urbano, animando a los estudiantes a comprometerse con el contexto del edificio y permitiendo a la ciudad observar el interior del edificio a través del velo estriado de la fachada. Mediante un zócalo transparente el proyecto da la sensación de estar suspendido en el aire, descansando sobre tacones aguja, permitiendo que la ciudad se filtre bajo él conocimiento.

paltaforma de arquitectura

11
12
multiteca 2020
13

vivienda colectiva huecos

santa clara de milan uio

johana pacheco-adrian flores

detalle

La finalidad de usar los huecos que tiene la ciudad. los des usos que se van generando y el caso en especial de el sector de santa clara mostraba una oportunidad de utilizar un pryecto que responde a la necesidad de habitar y convivir. Mediante una propuesta urbana dentro de un emplazamiento vacio ubicado en medio de un hueco podemos conectar un barrio con tradición mediante unos espacios entendiento el contexto y las necesidades del barrio y sus arededores. Se propone así mismo unos volumenes que serán sustraidos de la misma manera en la que los huecos en la manzana van apareciendo, esto para llevar una uniformidad y un sentido en el concepto. se levantan sobre el proyecto unas esbeltas torres que conectaran visualmente el entorno con el proyecto.

14

sección longitudinal

14 implantación
AV. 10 DE AGOSTO AV.ALFREDOPEREZGUERRERO AV.PATRIA AV. AMERICA NOIRRAC OMINÓREJ SOLAVÁD ZERÍMAR A B C D E F G N +/- 0.00 N +3.00m N +6.00m N +9.00m N +12.00m N +15.00m N +18.00m N +21.00m N +24.00m +27.00m
15

FACHADA FRONTAL

ESC: 1/200

16

ESPACIOS

2 Salas

3 Oficinas de estudio

2 Áreas verdes

2 habitaciones

2 baños completos

17 detalle departamento duplex
Cocina - comedor

02expresión gráfica

bocetos entintados historia

/bocetos 1950/1969

/una cubierta cubierta basílica del voto nacional 2020

clorindo testa ex banco de londes

Tinta a mano alzada

ministerio de salud plan brasilia

Tinta a mano alzada

20

ex residencia de lorenzo tous residencia embajador argentino

Tinta a mano alzada

edificio caja de pensiones

Tinta a mano alzada

21

club nocturno la jacaranda

Tinta a mano alzada

restaurante los manantiales

de tinta a digital

solucion los manantiales

de tinta a digital

22

residencia emilio isaias

Tinta a mano alzada

casa vera

schiller de khon

Tinta a mano alzada

23

Proyecto personal cubierta cubierta

grafito y tinta

24

Proyecto personal cubierta cubierta grafito y tinta

Proyecto personal cubierta cubierta grafito y tinta

25

03encuentro con la fotografía apreciación de la fotografía a través del estudiante

/ciudad y adentro random fotográfico

centros

cielos cubierta manabí

tonos tierra verde

28
frente arriba
tonos rosa,amarillo azul 29
alto

r. fotográfico

ojo menos entrenado

centro historico - uio

La fotografía es una pequeña muestra que nos permite grabar un momento, una instancia sobre un lugar representando de la manera mas fiel posible, aquello que probablemente nuestra frágil mente no logre recordar con los años.

El centro histórico siempre ha sido foco de inspiración para aquellos un poco entendidos de la fotografía, sensíbles y entusiastas, recordandonos un poco los días que nos cuentan nuestros abuelos, un relato contra la fiel prueba del tiempo transformando lo conocido.

30
31
00especialLevantamiento de información

ejercicio de uso espacial propuesta

/casa josé Lugar situación simulación

Casa josé

La Floresta uio contexto

ubicada en la floresta, la construcción es un bien patrimonial con especificaciones de uso y no cuenta con permisos de modificacion del inmueble, se le explica a josé y se propone remodelar y reutilizar los espacios interiores sin comprometer la estructura.

se corrige trabajo de levantamiento previo y se levanta un 3d para pre visualizar paleta de colores, tipo de mobiliario, iluminación y el uso de la distribución existente, tomando en cuenta las reglas que prohibien cualquier tipo de modificación fuera de las normas del instituto nacional de patrimonio.

0

Casa josé

Plantas

implantación

0
1 2 3 A B C D A B C D 1 2 3 A A' 1 1' 1 2 3 A C D A C D 1 2 3 A A' 1' 1

Casa josé

Cortes / fachada

contraste

Una vez se entendió los espacios y como funcionarian, se avanza la parte de como va a ver josé y su familia este espacio,

tercer nivel : Arriendo / vivienda

segundo nivel: administración / oficinas

en un principio se exigia bodegaje, pero se explica la necesidad de un espacio administrativo para conveniencia de los locales comerciales + los actuales

primer nivel: Comercio

minima intervención PB, caracteristicas dependen del uso del local.

0
N 0.00 N 3.79 N ± 7.03 N 5.23 A C D B N ± 3.79 7.03 1 2 3

visualización

El proyecto no tuvo una siguiente etapa debido a inconsistencias sobre el proceso, asi que sirvió como ejercicio

0

04viviendo la arquiectura recopilación de fotografías a día de la carrera

/tributo al estudiante ejercicios e intentos en la carrera - procesos

/tributo al estudiante

gracias

por ser parte del proceso

Esta es una manera de agradecer a los estudiantes que todos los días trabajamos por entender y aprender aquello que nos gusta, nunca es realmente verdad el hecho de que todo sale bien a la primera, el proceso es una parte fundamental para llegar al resultado pero quizá nunca se lo ha tomado en cuenta de esta manera tan aleatoria y simple, los estudiantes, es decir; todos porque realmente nunca dejamos de aprender, guardamos tanta informació n que es almacenada como borrador, post producida, esquematizada y puesta sobre una escena, ahora yo plasmare en estas hojas parte de mis procesos y errores, de los que realmente aprendemos mas, aquellos estudiantes que son profesores también se les agradece, ellos permiten que nosotros desarollemos elecciones que nos llevan a resultados, tantos como podamos pero siguiendo un sentido. Habrá imágenes que sin un contexto podrían no tener un sentido, pero este portafolio es una constancia de el seguir aprendiendo, de continuar buscando procesos que nos lleven a resultados, cada vez mas cerca de lo que realmente queremos, por eso se agradece el momento y se identifica con el en diferentes instancias.

34
35
Aquitectura
I O
/PORT A FoL

Turn static files into dynamic content formats.

Create a flipbook
Issuu converts static files into: digital portfolios, online yearbooks, online catalogs, digital photo albums and more. Sign up and create your flipbook.