Architecture Portfolio

Page 1


Architecture Portfolio

Selected Works- 2018-2024

ADITHYA SHARMA

Adithya Sharma

I am a Graduate Archietct from Manipal School of Architecture and Planning, Manipal. Currently I’m a Junior Architect in Colliers under the Design team where I worked on Commercial, Institutional and Residential projects. Journey so far in the field of Architecture has allowed me to think in different perspective and creatively. I am always open for new learnings in

DETAILS

November 27, 2000

linkedin.com/in/adithya-sharma-3a12151b4

+91 8861450764

adithyas.620@gmail.com

Manipal,Udupi, Karnataka-576107

EDUCATION

10th 2016 Madhava Kripa School,Manipal 12th 2018 Madhava Kripa School,Manipal BArch 2023 Manipal School of Architecture and Planning,Manipal

LANGUAGES

English Kannada Hindi Tulu

INTERESTS

Sports Sketching Adventure and Trekking

EXTRA CURRICULAR

Karate Budokan-Black Belt

Karnataka Music Grade- Junior

CBSE Cluster VIII Table tennis-3rd place-Boys U19 Represented U14 Udupi District Cricket team

SOFTWARES

SKILLS

Team Work and Management

Responsibility

Time Management

WORKSHOPS

Mud Architecture Workshop-Manu Shilpa 2020 IIDE Online Digital Marketing

Wood Workshop

Design Exploration 2021-1 month

EXPERIENCE

Summer Intern-KALPAKRT

July 2022-April 2023 -1 academic year

Student Intern-VENKATARAMANAN ASSOCIATES

June 2023-December 2023-7 months

Junior Architect-V&ST Architects

January 2024-Present

Junior Architect-Colliers

BIM Application for Engineers- Coursera CERTIFICATIONS

BIM Fundamentals for Engineers- Coursera

2 4 3 5 7 8

INSTITUTIONAL BUILDING 1

Hanger and Training centre| Bengaluru

Professional work | Colliers

KALASIPALYA

Artists Village| Manipal

Academic | Residential

Commercial building| Bengaluru

Professional | Colliers

Residence for elderly couple | Manipal

Summer Internship | Residential

Pg-04

Pg-08

Pg-12

Pg-16

Pg-19

Professional work and Internship

V&ST Architects | Venkataramanan Asociates

Pg-25

Prison Design | Adaptivve Reuse | Iconic Tower

Pg-29

Sketches | Models

INSTITUTIONAL BUILDING 1

Hanger and Training centre

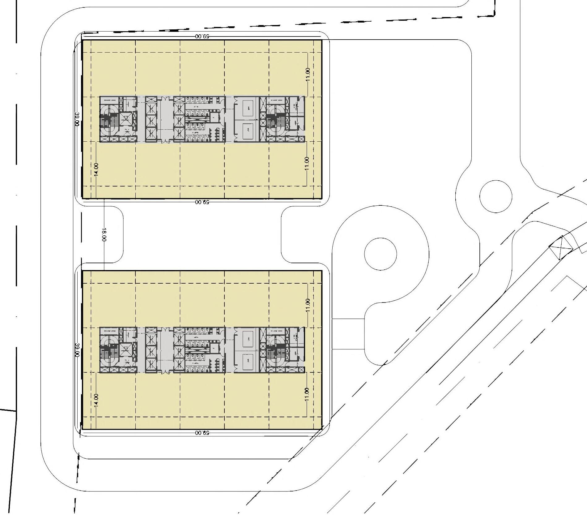
An Institute plans to set up training school for aircraft maintenance . Institute will provide best in class taining to students having 10+2 to groom them as an airline professional

Project- Professional work |Colliers

Softwares used- Autocad, Sketchup, Photoshop

Aim- To design Aircraft hanger and training centre keeping in mind the experience for students within a constrained site.

Objectives- To achieve good daylighting.

-Achieve client’s targeted FAR

-Fast-track project to be completed

Scope-To create a scheme such that project has 86000 sqft of builtup area (builder will be paid only for that if overdone) by incorporating all spaces required by keeping efficiency of close to 75%.

Site Details-

Bengaluru

Site Area-1 acre | 4060 sqm

Ground Coverage- % FAR achieved-1.97 (targeted FAR)

Ideologies / Concept

Understanding there are a lot of requirements compared to traditional G+1 and huge expanse projects in this small site.

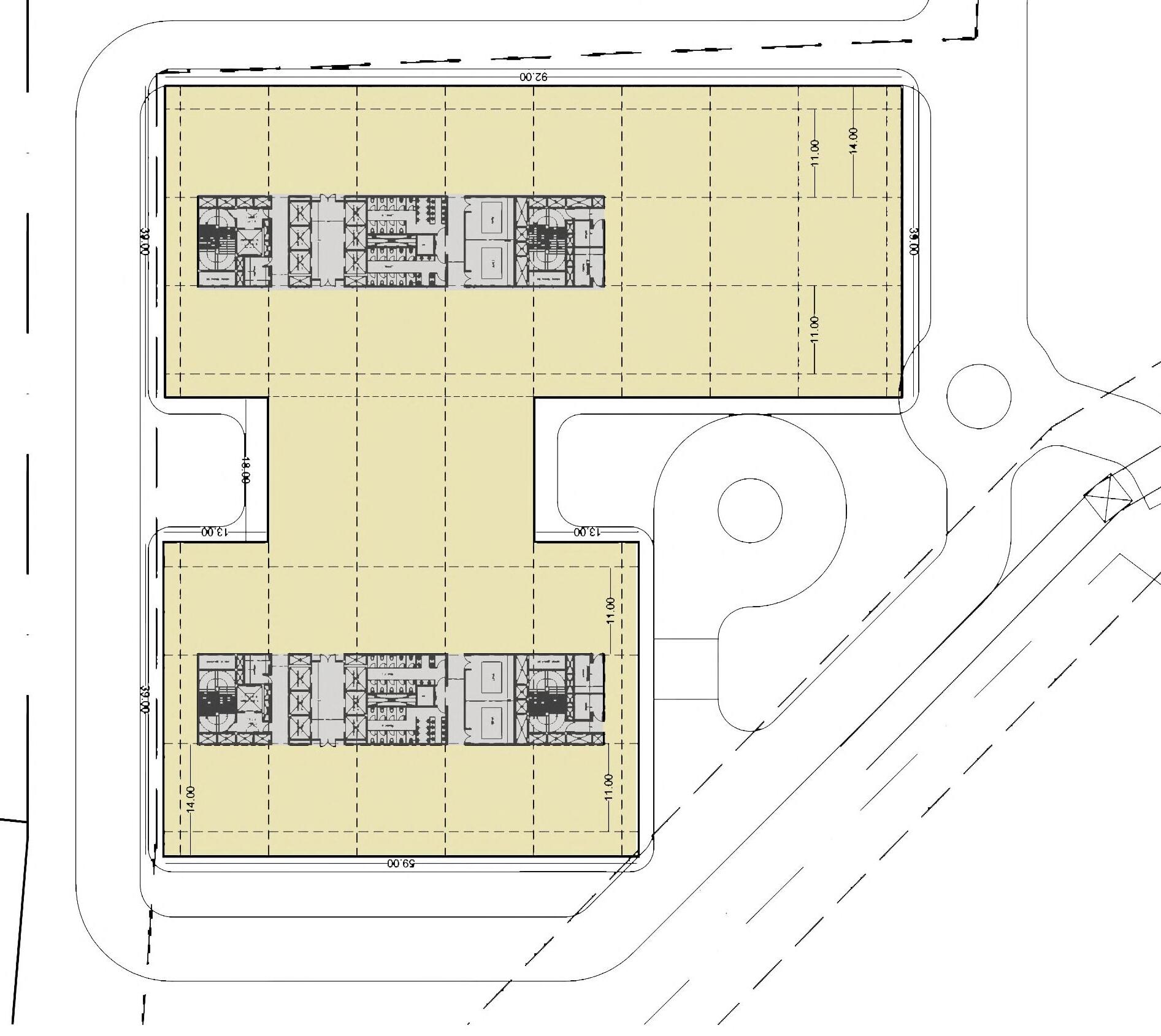
Central Atrium- To cater the daylighting needs of Hanger space and rooms with no natural ventilation

Huge span- Columns of 20m clear span are used in the project to accomodate Donier D0228 within

Breakout Spaces- Breathing pockets within this dense building and having informal activities for students

Segregation of spaces - Keeping away high noise spaces from low noise spaces for better functioning

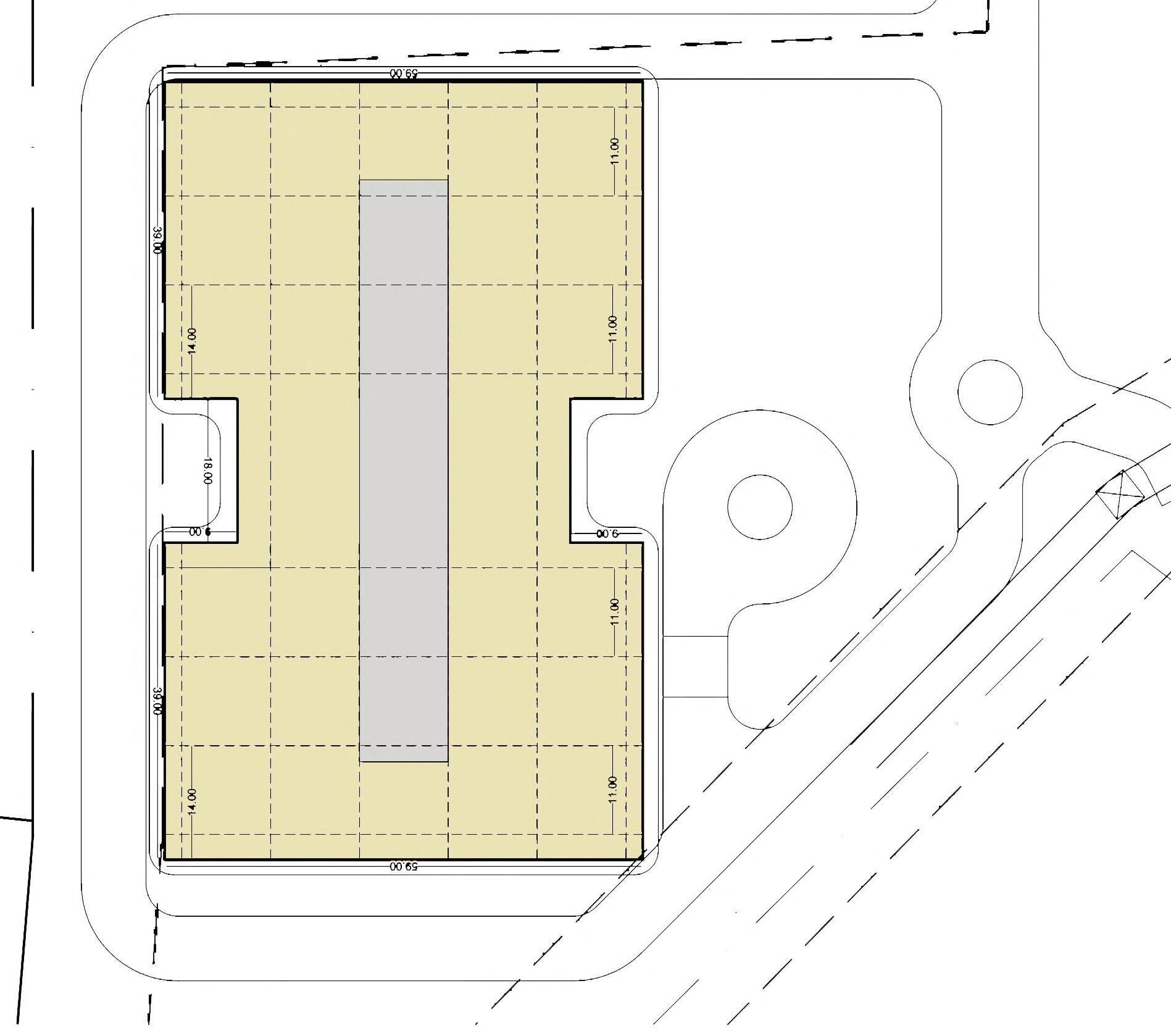
SITE PLAN

LEGENDS

1. Entry/exit

2. Drop off

3. Auditorium roof

4 Atrium

5. To basement

6. POS (10% of site)

7. 2-way vehicular ramp

Vehicular movement to the basement Vehicular movement from the basement

*Renders not prepared by Author **Building designed by Author while overseen by the Design Director

KALASIPALYA

A setup that facilitates budding Artists to come together and improve their skillset by sharing knowledge and helping each other for a few weeks until the exhibition.

Artists Village

Task- To design Artists village in steep contoured site

Project- Academic | Sem3

Team- Individual

Softwares used- Autocad, Sketchup, Lumion

Site Details

Location- Perampalli, Manipal, Karnataka, 576104

Site Area-12556 sqm

Ground Coverage-6.2%

Ground coverage is very low since the site is sloping and more than 30% of the site falls under less than 1:6 gradient

Built up area-1179 sqm

Concept

FREE FLOW

Creating a free flow design in a steep contoured site with least intervention as possible.

Movement friendly1:8+ slope roads & ramps, elevators, cut and fill,etc

Native- The site is surrounded with vegetation, water drain & contours

Vernacular-sloping roof, manglore tiles, timber truss, courtyard, etc

Local materials-Timber, laterite stone, manglore tiles, etc

Contour

ARATT COMMERCIAL BUILDING

Concept-Schematic stage

Commercial building in a Master Plan comprising Residences, Hotel and Commercial builings.

Identifying site conditions Identifying site conditions

Task- To do feasibility study and scheme for a commercial building

Project- Professional work| Colliers

Softwares used- Autocad, Sketchup, Photoshop

Ideology- Maximize daylighting for offices-keeping in mind harsh sunlight - Future ready workspaces- flexible floor plate divisibility

*Renders not prepared by Author **Building designed by Author while overseen by the Design Director

MANE

Residence for Elderly Couple

DESIGN DEVELOPMENT

A 3BHK residence designed for an elderly couple who expect a brother to stay along for long and also frequent guests. The client wanted the building to be distinct and be unalike from the neighbouring ones and to follow sustainable approach.

Identifying Setbacks Approx mass based on areas
Less Habitable spaces in 1st floor (old couple)
Play in levels with less cut and fill
Final form with sloping roofs

Task- To design a Residence for elderly couple

Project- Summer Internship work

Team- Individual(under a mentor)

Softwares used- Autocad, Revit, Sketchup, Lumion

Site Details

Location-Manipal, Karnataka, 576104

Site Area-400 sqm

Ground Coverage-31%

Built up area-171 sqm

Concept

STAND OUT

Using different techniques that are not very conventional , far from comfort zone to bring in stand out design

CSEB-aesthetically pleasing, thermal comfort and low embodied energy Sustainabilitycut and fill, exposed materials, orientation

Cut & fill- Min land excavation & play in levels

Play of lightSkylights, casement fenestrations etc

ROUGH SKETCH TO BE TRANSLATED

(Note- Sketched by Senior Architect)

ROUGH SKETCH TO BE TRANSLATED

(Note- Sketched by Senior

DIGITAL DRAWING OPTION 1 OPTION 2

DIGITAL DRAWING

SKETCH TO BE TRANSLATED

(Note- Sketched by Senior Architect)

(Note- Sketched by Senior Architect)

SKETCH TO BE TRANSLATED

(Note- Sketched by Senior Architect)

(Note- Sketched by Senior Architect)

(Note- Model developed by Trainee, rendered by Senior Architect)

(Note- Sketched by Senior Architect)

(Note- Sketched by Senior Architect)

Group of 3- Adithya, Nidhisha, Vachan
Group of 4- Adithya, Sanmathi, Srinidhi, Susan
Group of 4- Adithya, Sanmathi, Srinidhi, Susan
Group of 4- Adithya, Sanmathi, Srinidhi, Susan
an Iconic Structure where Central Vista Culminates
ADITHYA SHARMA

Turn static files into dynamic content formats.

Create a flipbook
Issuu converts static files into: digital portfolios, online yearbooks, online catalogs, digital photo albums and more. Sign up and create your flipbook.