MARCH Portfolio UEdinburgh, Adelaide Phillips

Page 1


ADELAIDE PHILLIPS

Learning about other countries’ cultural relationships to architecture can give designers meaningful insight into different methods of building, paving the way for a more innovative, sustainable, and equitable built environment. Two seemingly opposing cultures align more than one would think, and can even become stronger by learning from one another. While we all have inherent biases about cultures outside of our own, I see value in researching ways we can connect through architecture and progress as one. I aim to recognize my mixedrace identity as an opportunity to bridge connections between cultures and contribute to a dialogue on tackling global issues together.

EDUCATION

University of California, Berkeley | College of Environmental Design

Bachelor of Arts in Architecture, Minor in Sustainable Design GPA: 3.655 Aug 2020 - May 2024

University of California, Davis Summer Abroad | Sweden, Denmark, Germany

Sustainable Cities of Northern Europe July 2022

STUDENT ORGANIZATIONS

The American Institute for Architecture Students (AIAS)

Internal Affairs Officer + Intern Director Dec 2021 - Dec 2023

Ballet Company at Berkeley (BC@B)

Performing Member Jan 2022 - May 2024

EXPERIENCE Junglim Architecture | Seoul, South Korea

Architecture Intern in Advanced Design Mobility Business Unit Oct 2024 - Feb 2025

Undergraduate Library Research Fellowship | Doe Library at UC Berkeley

Makerspace Fellow 2022-23 Academic Year + 2023-24 Academic Year

ADELAIDE PHILLIPS

adelaidehphillips@gmail.com

(516)-273-2295

www.linkedin.com/in/adelaide-phillips/

4 Broad Path

Lloyd Harbor, New York 11743

USA

Studio Sarah Willmer Architecture + Interiors | San Francisco, California

Architecture Intern June 2023 - Aug 2023

101 architects | Seoul, South Korea

Architecture Intern July 2021 - Aug 2021

Facing Future.Earth | remote (based in Scotts Valley, CA)

Video Editing and Social Media/ Communications Intern Sep 2021 - May 2022

STUDENT

Gradient | Spring 24

Nest in the Machine | Fall 23

Performance Dynamics | Spring 23

Construction Pavillions | Spring 23

PROFESSIONAL

Studio Sarah Willmer | Summer 23

PERSONAL

GRADIENT

Gradient is a glass blowing studio in San Francisco on a bussling corner in the Mission District. This building gives artists a space to produce and exhibit their work to the public.

The varying levels of opacity in the facade inform the organization of program. Public spaces occupy the most transparent form while private (staff only) spaces occupy the opaque form towards the rear.

The concept for this building reflects the process of glass making which begins with (opaque) raw materials, like sand. It undergos a series of chemical reactions that causes the molecules to break down and gradually transition into an increasingly transparent material: glass.

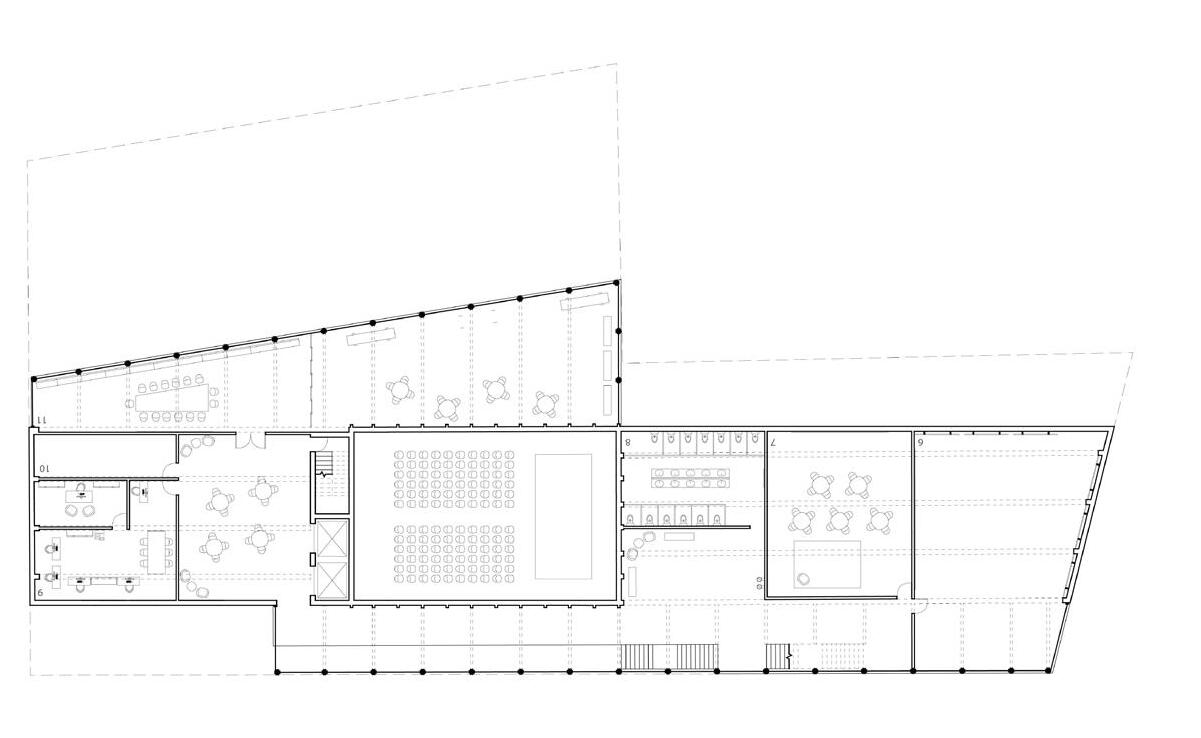
GROUND FLOOR PLAN

Operable elements such as center pivot doors, a sliding wood slat facade, and pivot windows transition the gradient and help blur the lines between spaces. The center pivot doors connect the exhibition space to the glass blowing studio in cases where exhibitions want to showcase live glass blowing processes.

Visitors and artists can manipulate these doors as they wish.

The center pivot doors and windows also provide necessary cross ventilation to exhaust heat from glass blowing processes.

Construction Method: Mass Timber

SITE MODEL

NEST IN THE MACHINE

Nest in the Machine is an adaptive reuse project for an abandoned power plant in Xi’an, China. In partnership with the Northwestern Polytecnic University, this studio aimed at reimagining this historic site into a community center.

In an effort to preserve the history and integrity of the site, the primary focus was not to change the architecture, rather, to better connect the exisiting buildings and design a comprehensive experience for the surrounding community.

Mass timber construction offers the warm and welcoming characteristics of wood particularly in contrast with the brick and steel power plant.

BOILER
PHYSICAL
BOILER
BELT CONVEYER
SMOKE STACK
WOVEN WOOD SLAT

BADMINTON COURTS + FITNESS CENTER

COMMUNITY GARDEN

THIRD FLOOR PLAN

A network of catwalks stretch and filter into various buildings to connect the different program on the site.

AUDITORIUM

SECTION MODEL THROUGH CATWALK

STUDY

MODEL ON WEAVING

EXPLODED AXON

Inspired by the natural strength and intricate technique of Chinese bamboo basket weaving, I developed a woven wood slat facade applied to the network of catwalks. The woven materiality adds a complexity and softness to the rectilinear geometry.

RENDER

PERFORMANCE DYNAMICS

Performance Dynamics is an arts center in Oakland, CA with program such as dance studios, music studios, and an auditorium. This building is centered on training in the performing arts aswell as hosting performances and community events.

Growing up as a ballet dancer myself, my goal was to represent the relationship between movement and architecture utilizing my own experience in the dance community.

ISOMETRIC RENDER

The systematic nature of ballet is reflected in the rigid structural grids of the design. Two modules, one for dance, one for music, intersect to define the auditorium space thus representing the coming together of these art forms into one shared space.

MUSIC WING

DANCE WING

AUDITORIUM

GROUND
ANALYTICAL STRUCTURAL DIAGRAM
FLOOR

The angle of the shed roofs was based on a study of movement using my own body’s proportions. Here, I chose to incorporate the angles of an iconic ballet position: the arabesque.

After rotating and manipuating geometry pulled from this photograph, the angle of the roof not only provides drainage to the central rooftop garden, but also highlights the importance of lines and extensions in ballet.

BALLET COMPANY AT BERKELEY

[(54) Patent for “Curved Bridle Joint”

(54) CURVED CANTILEVER INTERLOCKING INTO VERTICAL MEMBER THROUGH SLOTTING SYSTEM USING GLULAM

(21) Inventor(s): Kirra Lindman, Eloise Toner, Adelaide Phillips

Correspondence Address College of Environmental Design

(54) Initial Application: Outdoor wooden pavillion in Berkeley, CA

Filed

PERSPECTIVE

WOOD

CONSTRUCTION PAVILLION

During the Intro to Construction course at Berkeley, we were instructed to fabricate a wood pavillion and concrete pavillion to study the attributes and building techniques of each material.

In an effort to push the limitations of wood, we designed a Glulam tear drop shaped archway unit connected with a bridal joint. This simple design and construction can be easily mass produced and used for various projects.

Group Members: Eloise Toner, Kirra Lindman

Personal Tasks:

- Dimensioning members to be processed in the shop - Assembled units into finished product

CURING PROCESS IN 3D PRINTED FORMWORK

CONCRETE

CONSTRUCTION PAVILLION

Since concrete can be easily sculpted and molded, we wanted to take advantage of this and create a unique curved pavillion.

We utilized 3D printers to create the formwork with punch out rectangular apertures.

Group Members: Eloise Toner, Kirra Lindman

Personal Tasks:

- 3D printing formwork

- Gathering supplies

- Wait for curing, and demold

PERSPECTIVE

NAPA RESIDENCE

“If you can understand how to build a model, you can understand how to build a building.”

During my summer internship at Studio Sarah Willmer in San Francisco, my primary task was to build a detailed physical model of the ongoing private luxury residence in Napa County. Napa is known for its rolling hills and wine vineyards, therefore, accurate togophraical information was essential to anaylze how the architecture interacted with the landscape. PHYSICAL

CLOSE-UP OF GUEST HOUSE
CURRENT CONSTRUCTION OF GUEST HOUSE

JUNGLIM ARCHITECTURE

HYUNDAI HIGHTECH CENTER

During my current work experience at Junglim Architecture, I had the priviledge of working on a series of Hyundai Hightech Centers designed by Bjarke Ingels Group. These Hightech Centers throughout Korea are designed for maintenance of Hyundai and Genesis cars. This building features advanced technology such as Automated Guide Vehicles, Vehicle Lifts, and Autonomous Mobile Robots. I was assigned to create a comprehensive 3D model highlighting customer vs. staff circulation.

FLOOR 4 ISOMETRIC DIAGRAM

PHOTOGRAPHY

Architecture isn’t just about creating, but being able to see the world through a different lense. My love for film photography has helped me frame my environment with a different perspective. Sometimes looking through that little lense can actually make you see past the horizon.

These photos are part of a short collection of pictures taken on Contax T3 camera passed down by my grandfather. These photos capture some of the most beautiful places I have traveled so far, and I like to think that there is beauty in seeing the world as he once did.

THE POSTCARD PROJECT

During my study abroad and recent travels, I gained an interest in toursim media. With a growing collection of postcards, I decided to collage them together with my personal photography. This, not only, became a personal documentation of the places I have been, but an interesting study on how cities are marketing their architecture and cultural experiences to foreigners. By collaging them together, you can create a relationship between representation and reality, noting contrasts and parallels.

Building off this initial project could produce an interesting research topic in how people’s relationship to architecture varies across the world.

Turn static files into dynamic content formats.

Create a flipbook
Issuu converts static files into: digital portfolios, online yearbooks, online catalogs, digital photo albums and more. Sign up and create your flipbook.
MARCH Portfolio UEdinburgh, Adelaide Phillips by Adelaide Helen Phillips - Issuu