Addison Kinsey Portfolio - Drexel University 2021-2023

Page 1

ADDISON KINSEY

ARCHITECTURE PORTFOLIO 2023

CONTACT adkmb12@gmail.com linkedin.com/in/addison-kinsey-a17211229 1
CONTENTS THE WELL HOUSE 4 PCR BOATHOUSE 12 ARK APARTMENTS 20 MISC. WORK 27 2

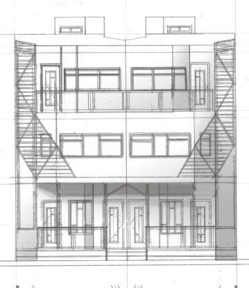
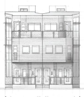
THE WELL HOUSE

Second Year Fall Studio

The Well House is an owner + renter rowhome in Mantua, Philadelphia designed to take advantage of light and a connection to the outdoors. The rowhome has a rental unit that fills the first floor and a homeowner unit that occupies the second and third floors. Both units have separate entrances off of the shared front porch, as well as access to their own private outdoor spaces with the home owners having a large deck space and the renters having a backyard. The form of the rowhouse cuts in and out, creating slender lightwells that create small courtyards when placed next to other Well House rowhomes.

3
5

The facade has large screens bridging the gap between rowhouses created by the front lightwells. These screens also serve to provide some privacy for the common spaces connected to the lightwells.

6

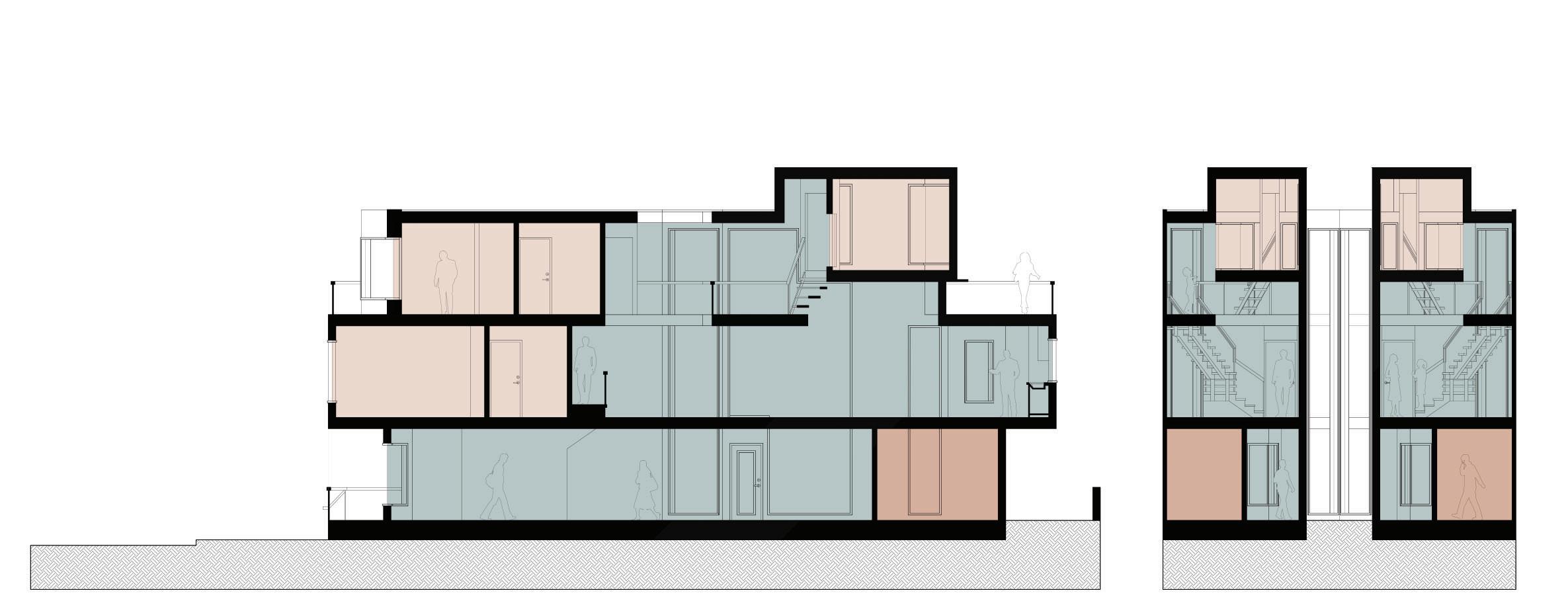
LONGITUDINAL

RENTAL: PRIVATE

COMMON SPACE

VERTICAL CIRCULATION

OUTDOOR

KEY SECTIONCROSS SECTION 1ST FLOOR PLAN ROOF PLAN 3RD FLOOR LOFT PLAN 3RD FLOOR PLAN 2ND FLOOR PLAN 7

OWNER: PRIVATE

DETAIL SECTION PERSPECTIVE

ELEVATION ITERATIONS

SECTION PERSPECTIVE 9
10

PCR BOATHOUSE

First Year Spring Studio

The PCR Boathouse was designed for Philadelphia City Rowing, a community rowing team. The boathouse places a focus on light and the lifting of space. Due to the boatstorage being more private, the base has the least amount of windows and heaviest material. This also serves to ground the building and to make the upper floors seem lighter and more airy in comparison. Large deck spaces wrap around the building with operable floor to ceiling windows that help to connect the building to the river. The shape of the building with the curves and triangular windows was born out a desire to capture views of Waterworks, Center City, and the Schuykill River. The curved shape responds to the fluid nature of the river as well as a juxtaposition between it and the rest of Boathouse Row.

11

WEST FACING SECTION

GROUND FLOOR PLAN
13

SECTION SUN DIAGRAM

KEY

COMON SPACE

TRAINING

BOAT STORAGE

VERTICAL CIRCULATION

CHANGING

PRIVATE OUTDOOR

2ND AND 3RD FLOOR PLANS

14

BOAT STORAGE

COMMUNITY ROOM

APPROACH

WATERFRONT PERSPECTIVE

The PCR Rowhouse uses natural materials for the facade in order to better connect to the surroundings. The boathouse storage uses river rocks, tying the base to the river and its rocky shores. The two upper floors use wood siding. connecting to the trees on the site and allowing for the building to weather with time, better showing how it is influencing the site and the site is influencing it. In order to connect to the city and sky, large bands of windows wrap around the river side of the building, providing light and allowing for visual connection to views and the building’s surroundings.

16
DAY PHOTO MONTAGE WITH INTERVENTION NIGHT PHOTO MONTAGE WITH INTERVENTION

ARK APARTMENTS

Second Year Winter Studio

The Ark Apartment are an urban sanctuary, adding large green spaces to Francisville. The Ark Apartments are located across from the Francisville Park, connecting it to the attatched branch library on the basement and ground floor levels of the apartments. The apartments themselves are suspendded over the site, allowing for greater amounts of space for community members to gather, as well as to provide a quieter park space than the one across the street. The apartment twists above in order to capture light and views for the residents. Multiple roof gardens sit on top of the building, providing residents with better views and more private access to green space. The library sits underneath, providing a community focused base for the entire structure and site.

19

APARTMENTS

LIBRARY

VERTICAL CIRCULATION

COMMON SPACE

GREEN SPACE

LIBRARY SECTION A

INTERSECTION SECTION B

PARKING SECTION C

LOWER LIBRARY ENTRY 1LOWER LIBRARY ENTRY 2LOWER LIBRARY ENTRY 3
21
KEY
A C B
BASEMENT PLAN GROUND
22
2ND FLOOR PLAN 3RD FLOOR PLAN4TH FLOOR PLAN
FLOOR PLAN
WEST
SITE PLAN
ELEVATION

FRONT LIBRARY PERSPECTIVE

Movement is integral to the design of the ARK Apartments. In order to accentuate movement and connection, the stair wells of the building are pulled out and encapsulated in glassy geometric towers. These towers contrast with the pill like shape of the apartments and their more solid walls. The living room windows have large sun shades that are curved in such a way as to provide shade while still provide and retain views to Center City.

24
SECTION PERSPECTIVE

MISC. WORK

RENDER
DREXEL MAIN BUILDING SECTION PERSPECTIVE MASSING

STEEL WIDE FLANGE BEAM W/ TIMBER

VERTICAL WOOD SUPPORTS

BAMBOO PLYWOOD

HORIZONTAL WOOD MESH

MORTAR

TILE ROOF SHINGLES

BRICK STEEL PLATING

SINGLE PANE GLASS

FINISH WOOD CAST-IN-PLACE CONCRETE

WALL DETAIL SECTION PERSPECTIVE 28
DRAFTED TOOL DRAFTED FACADE
2`
URBN SKETCHED PERSPECTIVE
1 29
URBN SKETCHED PERSPECTIVE

CROSS SECTION A

CROSS SECTION B

CROSS SECTION C

CROSS SECTION D

SECTION ABCD 30
LONGITUDINAL

Turn static files into dynamic content formats.

Create a flipbook
Issuu converts static files into: digital portfolios, online yearbooks, online catalogs, digital photo albums and more. Sign up and create your flipbook.