PORTFOLIO
ADAM BROADBENT
BSC (HONS), M.ARCH


am an architecture graduate with two years of experience working on housing projects, a commercial refurbishment and a school building.
Through integrated work placements during my university studies, I gained practical construction experience. I approach design logically, ensuring that structure, spatial requirements, servicing and sustainability work holistically.
I have specific skills in Revit modeling and computer visualisation.

SOFTWARE EXPERIENCE
Lumion/Enscape Archicad Rhino 1 9 yrs 5
SketchUp
Autocad
CC Indesign
CC Photoshop Revit
CC Illustrator
(+44) 07578 662872
adamrbroadbent@gmail.com
Find more of my work on Instagram:

31 Chapman St Shadwell, London
EDUCATION
EXPERIENCE
MASTER OF ARCHITECTURE
University of Nottingham 2021 - 2023
Classification: 2:1


PART 2 ASSISTANT / TATEHINDLE
London, UK
Oct 2023 - Present
Assisted in completion of feasibility report for 20,000m 2 CAT A office refurbishment in the City of London.
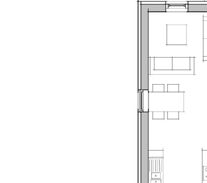
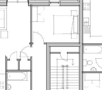
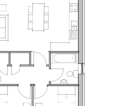
Finalised stage 4 package for 149-unit apartment scheme in Beckenham, using Revit to amend construction drawings and schedules.
Produced stage 3 planning drawings for a redesign of an extension to the Institute of Physics, King's Cross.
Produced concept models using 3D printers.
BSC (HONS) ARCHITECTURE
University of Bath 2016 - 2021
Classification: 2:1
(Including Full-time Placements)


PART 1 ASSISTANT / HATCHER PRICHARD ARCHITECTS
Bristol, UK
June - Aug 2021 (3 months)
Assisted with the concept design for Shrivenham Primary School in Oxfordshire.

WORK PLACEMENT / RIDGE + PARTNERS LLP
Reading, UK
Aug 2019 - Apr 2020 (9 months)
Used Revit to produce planning drawings for low-rise residential masterplans in Radley and Longwick villages.
Feasibility studies for recladding to Broadwater Farm Estate, London.

WORK PLACEMENT / MPN + PARTNERS
Hanoi, Vietnam
Mar - Aug 2018 (6 months)
Design for Dar Al-Uloum Cultural Campus, a competition in Saudi Arabia for the renovation of a library.
Finalist award for competition to reimagine high-rise design in Nanjing, China.
Used Lumion to render concept for a lakeside resort in Northern Vietnam.
EDGBARROW SCHOOL
Crowthorne, Berkshire 2009 - 2016
A-levels: A*A*AA
GCSE: 6A* 4A

BECKENHAM APARTMENTS
UNITED NATIONS LIBRARY LIVE - WORK HOUSE HAND SKETCHES 2 1 4 3 5 7 6 8 9
RADLEY + LONGWICK VILLAGE HOUSING
DAR AL-ULOUM CAMPUS COMPETITION
CAMDEN ESTATE REGENERATION COMMUNITY HOUSING LEISURE CENTRE


















































































































































































