Adam Beaulieu Portfolio

Page 1


BETANCES SENIOR RESIDENCE

Location: Bronx, NY

Year: 2018 - 2022

Role: Project Manager, COOKFOX Architects

Budget: $65 million

Size: 120,000gsf, 152 units

Client: Breaking Ground

Certifications: Passive House (PassivHaus), Enterprise Green Communities

Awards: 2023 Design Award of Excellence, SARA NY (Society of Registered Architects NY) 2023 Winner Planet Positive Award, Best Social Impact, Innovation Category, Metropolis Magazine

My role on this project began at Schematic Design and have managed the architectural scope throughout design and construction. Occupancy of the building began in early 2022.

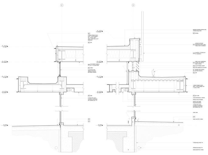
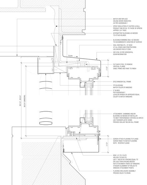
The overall project emphasizes sustainability, comfort and wellness. A high perfomance Passive House-compliant envelope and mechanical system is significant to achieving these goals. Well insulated, airtight walls and windows, besides their energy efficiency, greatly improve thermal and acoustic comfort. The mechanical systems deliver steady, filtered fresh air to all units and throughout the building (critical in this known asthma corridor).

Circulation is organized around a central garden that offers a connection to nature, an opportunity for social gathering, and a wayfinding landmark. The garden is visible from the lobby during the entry sequence and helps draw residents along the path of circulation. Along with natural light in all of the residential corridors and stairwells, this is part of the building’s strategy to encourage mild physical activity, i.e. ‘Active Design’. The garden is also visible through the building from the street creating a more transparent connection with the community.

The facades are a combination of patinated zinc cladding and ironspot brick. The zinc is corrugated which helps minimize the gauge of material needed while also picking up the change in light and shadow during the day. The ironspot brick takes advantage of varying coursing at the horizontal movement joints/ relieving angles, vertical movement joints and window sills for additional articulation and play of light and shadow.

All of the facade types, details and components were designed through multiple cycles of research, design and energy modelling (especially for Passive House compliance). The project uses some of the economical conventions typical for affordable housing but is a unique hybrid in order to achieve its goal.

FACADE: ZINC PANEL

Precast Concrete Plank and Concrete Block Superstructure

FACADE: ZINC PANEL

345 HUDSON STREET

Location: New York, NY

Year: 2023 -

Role: Project Manager, COOKFOX Architects

Client: Hudson Square Properties (Hines / Norges Bank / Trinity)

My role on this project began during the course of construction (though certain portions of scope are still in design and coordination), taking over for a colleague’s absence but ultimately extending for an indeterminate duration.

The project is several different interventions to renovate a 1930 Benjamin Whinston building originally designed for printing presses, now used as offices (including for tenants such as Google and CBS Radio).

Part of the coordination is the direct connection to the newly constructed adjacent 555 (561) Greenwich Street, also by COOKFOX. Each floor aligns to 555 Greenwich with fire shutters negotiated with the Department of Buildings by special consideration at the lot line conditions. Of particular significance is that the lobby at 345 Hudson will be reconfigured and renovated, with finishes similar to 555, and a ‘Connector’ space between the lobbies will help the two buildings function programmatically more holistically as one.

New amenities, such as multi-purpose tenant amenity spaces and exterior terrace spaces at the roof, and new interior amenity spaces are also underway.

Also at the roof, the team is in the process of designing an entirely new high efficiency all electric HVAC system that can take advantage of energy recovery and direct (filtered) outside air. Some energy recovery with 555 Greenwich (and its geothermal system) is in consideration as well).

TITUS MOUNTAIN HOUSE

Location: Malone, NY

Year: 2021 - 2022

Role: Project Manager, Owner’s Reprentative/Construction Manager, COOKFOX Architects

Client: Not Disclosed

Working directly with the owner, we developed a design for as unique, comfortable and familyfriendly a design for a ski getaway house as possible given tight budget constraints. Sited along a slope at Titus Mountain in northern New York, the house and is geared for skiing: the custom guardrail and ski-rack include common ski trail references (circle, square, diamond), the walkin cellar includes ample racks, hangers and custom shelving for ski gear and furnishings were considered to accommodate large family gatherings.

While not Passive House, the house does have some energy saving-measures such heat recovery ventilation, insulated concrete formwork and is very air-tight.

lead the effort, preparing research, documentation and approvals. Then, in an effort to maximize savings, we coordinated the owner contracting trades (from foundation to electrical) themselves and purchased finishes and fixtures themselves. lead the effort to track, purchase, sequence and coordinate this direct management of the construction. Working with our in-house Interiors team, we ultimately coordinated specifying and purchasing all furniture and furnishings as well.

DOMINO

SUGAR SITE A:

1 SOUTH FIRST 10 GRAND

Location: Brooklyn, NY

Year: 2016 - 2019

Role: Architect, COOKFOX Architects

Client: Two Trees

Awards:

2023 Merit Award, AIANY

2018 Best of Design: Digital Fabrication, Architect’s Newspaper

was involved from early in Schematic Design for this unique combination of commercial and residential towers, 42 stories overall, placed atop a multi-use podium. My role focused on developing the facade as well as coordinating the superstructure and mechanical systems with the client, consultants and contractors.

The deep facade provides shading, varying at each facade depending on solar exposure. In addition, there are non-repeating, biophilic variations in the facets of the facade that play off the sparkle and semi-irregular cubic forms of sugar cubes, referencing the former Domino Sugar refinery on the site.

The two towers share some common elements. Heat exchanging between the commercial and residential mechanical systems is intended to take advantage of the different programs where possible - for example, excess heat from the commercial tower can help heat the residential tower. In addition, a special bicycle-only entry serves bicycle parking for both towers and some gym and work area amenities are shared.

301 EAST 50TH STREET

Location: New York, NY

Year: 2014 - 2016

Role: Project Manager, COOKFOX Architects.

Budget: $61 million

Client: CB / SK / Ironstate

Certification: LEED Gold

301 East is a 27-story condominium project in midtown Manhattan. I joined this team during construction of the superstructure, taking over for a colleague stepping away.

The facade design uses limestone-clad precast concrete wall panels with custom windows and shading elements. The building core and elevator bulkhead are clad with a pre-patinated zinc rainscreen system. The mechanical system uses a variable-refrigerant-flow (VRF) system to maximize efficiency. The interiors use a variety of natural, recycled and low VOC materials.

The building was one of the first to take advantage of New York City’s ‘Zone Green’ zoning regulations that allow zoning deductions for exceeding code requirements for insulation and also allowed sun shading outside the zoning limits.

My role focused on construction administration, continuing coordination of systems that my colleague had started before me and reviewing quality in the field. That role included oversight of structural, mechanical, facade coordination. In addition, I reviewed the interiors and coordinated facade and mechanical systems with colleagues overseeing the interior scope.

512 WEST 22ND STREET

Location: New York, NY

Year: 2014-2017

Role: Architect, COOKFOX Architects

Budget: $60 million

Client: Albanese Organization / Vornado Certification: LEED Gold

This is a 12-story commercial workplace building located adjacent to the Highline. A central design concept is to Introduce green space at every floor, linking natural spaces and systems throughout the building with the Highline.

The facade uses natural materials with ‘living’ finishes such as terracotta and zinc. Interior spaces make both natural and industrial references using stone, reclaimed wood and blackened steel.

I joined this team at the start of Design Development. Some notable accomplishments of the design include the facade’s custom terracotta and mulion profiles that follow the curves of the building, the various landscaped roof spaces, the curved exposed concrete ‘mushroom’ columns and the lobby that can be opened up to the sidewalk for gallery-style events.

In addition, the building is a combination of an existing building and new superstructure, all of which is in a flood zone so the structure needed to be designed to coordinate between existing and new and maintain the required flood protection.

301 EAST 99TH STREET

Location: New York, NY

Year: 2013 - Current

Role: Project Manager, Procida Construction Corp. (GC)

Budget: $35 million

Owner: SKA Marin/NYC HHC/NYC HPD

Architect: Dattner Architects

301 East 99th Street is my second project with Procida Construction building for the developer SKA Marin (in conjunction with several public agencies). It is a 10 story, 176 unit residential building for low income residents being displaced from Goldwater Hospital on Roosevelt Island. The construction, similar to my previous project at 230 Riverdale Avenue in Brooklyn, is concrete block and precast hollow-core plank faced with brick.

Hurricane Sandy has had a significant impact on the project, prompting the addition of a rooftop emergency generator and a significant design modification during construction to increase the first floor elevation.

My role as Project Manager has been to manage and coordinate all trades on site while corresponding with the architect, engineers and ownership team to administer the project. My responsibilities include billing, managing the project budget, distributing updated project schedules and, along with the Site Supervisor, directly overseeing work taking place on site.

230 RIVERDALE AVENUE

Location: Brooklyn, NY

Year: 2012 - 2013

Role: Project Manager, Procida Construction Corp. (GC)

Budget: $24 million

Owner: SKA Marin/NYC HPD

Architect: Terjesen Architects

Constructed of block and precast hollowcore plank, 230 Riverdale Avenue is a 7 story, 115 unit apartment building for low income senior citizens in the Brownsville neighborhood of Brooklyn. As Project Manager, I scheduled, budgeted, coordinated and directed all trades on site. In addition, I managed all correspondence with the owner as well as architect for submittals, shop drawings, requests for information and billing. My role sometimes involved working through the constructability of details.

EAST ELMHURST LIBRARY EXPANSION

Location: Queens, NY

Year: 2010 - 2012

Role: Project Architect, Garrison Architects

Budget: Approximately $4 million, scope and budget later revised and increased

Client: Queens Public Library

The existing East Elmhurst Community Library is housed in an uninviting brick structure with few windows. The expansion included a new meeting space for up to 120 people, a dedicated teen room and new utility spaces. It also opens up the existing library with new glass facades and a sky-lit interior courtyard. The expansion’s roof, as a floating plane, organizes these elements. I was the primary designer during pre-design, schematic design,design development and construction documents. Construction began after my time at the office - and was completed in 2019.

BEDFORD-STUYVESANT RESTORATION PLAZA

Location: Brooklyn, NY

Year: 2010 - 2012

Role: Project Architect, Garrison Architects

Budget: Approximately $6 million

Client: Bedford-Stuyvesant Restoration Corporation

Work at Bedford-Stuyvesant Restoration Plaza focused on revitalizing and reconnecting the public plaza. The plaza was opened to Fulton Street, new paving and seating areas were built, windows and facades of buildings adjoining the plaza were renovated and a new steel structure and a glass screen (with printed ‘Wall of Fame’ panels) was installed across several facades and walkways. Involved only after construction started, I became the primary architect during the facade renovations, plaza construction, steel construction, glass fabrication and installation.

MODULAR HOUSING PROTOTYPES

Locations: Montana, Arizona, Texas

Year: 2009 2010

Role: Project Architect, Garrison Architects

Client: US GSA, US Customs & Border Patrol

This project for US Customs and Border Protection (CBP) aims to provide affordable, rapidly deployable, durable, comfortable, low-energy housing for CBP staff and their families in remote border locations with extreme climates. All of the proposed prototypes utilize wood-framed modular construction to reduce construction time while improving overall quality. As Project Architect throughout the project, I researched components, utilized energy models to develop payback projections, prepared presentations and drafted extensive, detailed kit-of-part drawing sets.

HUDSON RISE

Location: New York, NY

Year: 2009

Role: Consultant, Zakrzewski + Hyde Architects

Developed from an earlier competition, the current RISE is an alternative to the facility proposed by New York’s Department of Sanitation. Hudson RISE satisfies the requirements of housing two districts of Sanitation vehicles while providing valuable public greenspace. The RISE could make possible additional square footage above the facility for housing, educational or commercial uses. Working as a consultant/freelancer, researched programmatic requirements, developed the design, prepared computer models and ultimately assembled a promotional video for the project.

WOODSTOCK INN SPA

Location: Woodstock, VT

Year: 2007 - 2009

Role: Junior Architect, Asfour Guzy & Associates, New York

Client: Woodstock Inn

This new spa building is an addition the aging Woodstock Inn complex. Reinventing the Inn as a destination in itself, the spa also spurs a major renovation of the Inn’s courtyard and outdoor facilities. Initially conceptualized as a garden wall with a floating roof and glass walls that allow the interior spaces to spill out to the landscape, strict local regulations for traditional architecture drove the project’s formal spareness and simplicity. Working closely with principal Peter Guzy, I developed drawings and computer models for the spa design through construction drawings.

THE RED ROOSTER AT WOODSTOCK INN

Location: Woodstock, VT

Year: 2007 2008

Role: Junior Architect, Asfour Guzy & Associates, New York

Client: Woodstock Inn

The Red Rooster serves as a catalyst for a larger transformation of the Woodstock Inn. Several factors differentiate it from the previous Woodstock Inn Cafe: it is more open and casual, it is suitable for groups of varying sizes and is activated by the bar to maintain business throughout the year. The renovation adresses a number of difficult constraints, especially low ceilings and limited access to views, by adding a skylight and fountain as a central focus.

STONE BARNS CENTER EVENT SPACE

Pocantico Hills, NY

Year: 2006 2008

Role: Junior Architect, Asfour Guzy & Assoc., New York

Phase II of the work at Stone Barns Center includes an extensive catering kitchen and administrative suite but is centered around an event space located in the former hay barn. The new work in the hay barn maintains the existing Depression-era enclosure, carefully adding new elements to accommodate mechanical, acoustical, audio/visual and lighting needs (including custom chandeliers).

NEW HAZLETT THEATER

Pittsburgh, PA

Year: 2005 2006

Role: Junior Architect, EDGE Studio, Pittsburgh

Work for the New Hazlett Theater focused on the lobby, adding a new box office, concession stand and rest rooms. The new elements are very distinct from the existing theater but work to unify a disparate group of spaces, structural components, mechanical services and lighting.

GATEWAY STATION

Pittsburgh, PA

Year: 2004 2006

Role: Junior Architect, EDGE Studio, Pittsburgh

Gateway Station replaces the final stop of the Pittsburgh Light Rail and links to a new network serving the city’s North Side. The station takes advantage of an under-used parcel of land to create a public space in the center of downtown Pittsburgh. By recessing this public space and enclosing the station in glass, Gateway Station opens up - admitting natural light and offering views out to the nearby hillsides while presenting views into this vibrant new transit hub.

INTERSECTIONS:

GRAND CONCOURSE BEYOND 100

Bronx, NY

Year: 2009

competition entry with Deniz Secilmis Beaulieu, Jonathan Scelsa and Elizabeth MacWillie

Celebrating the 100th anniversary of the Grand Concourse in the Bronx, this competition sought to find ideas for the evolution of this large boulevard for the 21st century. Our team emphasized a solution that is active, green, and both pedestrian and bicyclistfriendly. By reclaiming only a portion of the Concourse’s generous width, a vegetated promenade and bike path could travel the length of the Grand Concourse. At certain points, the vegetated promenade crosses over the Concourse and provides space for various community activities. Here, where the Concourse meets Fordham Road, is an open-air market. Along the length of the promenade, a cellular motif differentiates planting areas and also serves as structural diagram.

URBAN AND ECOLOGICAL REGENERATION

Strip District, Pittsburgh, PA student project with Jaime Donate Carnegie Mellon Univ. Year: 2003 (5th year)

This projects seeks to stimulate regeneration and entice residents in a mostly industrial/commercial area by means of daylit stormwater systems, green spaces, walking paths and lighting.

CARNEGIE LIBRARY OF PITTSBURGH

Pittsburgh, PA student project, Carnegie Mellon University Year: 2002 (4th year)

This project is a proposed new main branch for the Carnegie Library of Pittsburgh. The library’s stacks are manifested as an exposed tower, showcasing the library’s collection. Reading, viewing, listening and gathering spaces hang above a large public lobby; these spaces are connected by a diverse collection of elevators, ramps and stairs. A steel and glass enclosure wraps the entire library.

BROWNFIELD NATURE PRESERVE

Pittsburgh, PA

student project with Matt Ames and Thomas Brown

Carnegie Mellon Univ.

Year: 2001 (3rd year)

Utilizing the former site of LTV Steel in the Hazelwood neighborhood, the nature preserve reconstructs the site on a grid in order to decontaminate soil and provide a wide variety of ecological conditions.

SKETCHES

(clockwise from top left)

Glasgow, Scotland Pittsburgh, PA

Paris, France (center) Istanbul, Turkey

Turn static files into dynamic content formats.

Create a flipbook
Issuu converts static files into: digital portfolios, online yearbooks, online catalogs, digital photo albums and more. Sign up and create your flipbook.