Mölndals stad 2023

Page 1

Mölndal

VI BYGGER EN HÅLLBAR STAD

UNGDOMARNAS

MÖJLIGA LINDOME

SÅ BIDROG UNGA TILL NYA AKTIVITETSPARKEN

NU LÄGGS DE SISTA

PUSSELBITARNA

SID 14

LINDOME FÖRNYAS

INNERSTADEN SID 8

Premiärdopp i sommar

Nya porten till Mölndal

Viktig aspekt i stadsbyggandet

Många utmaningar att balansera

HELA DENNA TIDNING ÄR EN ANNONS
FRÅN MÖLNDALS STAD
Medföljer som bilaga i Göteborgs-Posten 31 januari 2023.
PEDAGOGEN PARK ENERGIFRÅGAN LUNNAGÅRDEN NYA ÅBYBADET
Trivsel, stadsmässighet och trygghet i fokus när centrum utvecklas SID 4 SID 22 SID 16 SID 18
EXTRAJOBB: BÄSTA

VÄLKOMMEN

”Samverkan för Mölndal”

Nu ska saker börja hända

Vi har under 2022 firat Mölndals 100-årsjubileum som stad och blickar nu framåt med tillförsikt. Och det gör vi med en stark politisk majoritet där vi socialdemokrater tillsammans med Moderaterna kommer att leda Mölndals stad under de kommande fyra åren.

Vi kallar det ”Samverkan för Mölndal”. S+M är en för Mölndal helt ny konstellation som först kanske kan tyckas förvånande. Ska två partier som ideologiskt står så långt ifrån varandra verkligen kunna styra tillsammans? Det undrade nog också vi själva tills vi började samtala med varandra och såg till vår förvåning att vi faktiskt hade samma syn i många viktiga frågor, främst inom stadsbyggnad.

Vi upplevde båda en frustration över att viktiga framtidsprojekt ofta gick i stå på grund av småpartiers veto i små frågor. Det har gjort att detaljplaner för till exempel Forsåker, Lunnagården, Lindome och GoCo, som det berättas om i den här tidningen, inte kommit fram tillräckligt snabbt. Det kommer vi nu tillsammans att ändra på. Vi har samma ambition att få fart på stadsbyggnadsprocesserna. Där överensstämmer våra åsikter till 90 procent. Det var en aha-upplevelse när vi insåg det.

När det gäller andra frågor, där vi står långt från varandra, om skattesatser och huruvida verksamheter ska bedrivas i offentlig regi eller inte, där har vi beslutat att inte göra några förändringar under mandatperioden. Jag personligen känner därför stor glädje, trygghet och inspiration att leda det politiska arbetet i Mölndals stad under de kommande fyra åren.

Vi har givetvis många stora utmaningar, som alla andra är vi påverkade av omvärldsproblem och osäkerheten i världen. Samtidigt står vi starka med en stabil grund att bygga vidare på. Intresset är fortsatt stort för vår kommun, att både bo och verka här. I den här tidningen får du som läsare möjligheten att få en inblick i några av alla de spännande projekt och planer som just ju pågår i vår fina hundraåriga stad.

Stadens nya vision

Med sikte mot 2040

”Mölndal är den hållbara staden där vi lär hela livet. Med kunskap, mod och kreativitet förstärker vi Västsverige.”

Ja, så inleds Mölndals nya vision som stadsdirektör Mio Saba Sjösten beskriver som en gemensam och tydlig framtidsbild av hur Mölndal ska vara år 2040.

– Vår vision ger oss vägledning i hur stadens olika delar ska utvecklas och bebyggas för att möta nuvarande och kommande behov.

Det är lång tid till 2040, mycket kan hända, så det kommer säkert finnas anledning att aktualitetspröva visionen innan dess. Det är samtidigt viktigt att våga tänka och planera långsiktigt, säger Mio Saba Sjösten.

Hon betonar betydelsen av att veta vad politiken vill, vad som är prioriterat, vad är inriktningen och målen i vårt arbete, nu och framöver?

– Det är också roligt och inspire-

MÖLNDAL VISION 2040

”Mölndal är den hållbara staden där vi lär hela livet. Med kunskap, mod och kreativitet förstärker vi Västsverige.

Vi är en levande kommun där människor möts och är delaktiga.

God livskvalitet är den

rande att ha en genomtänkt och fungerande vision. Det skapar en kraft att få ihop en helhet av både mjuka och hårda värden i samhällsbyggandet.

Visionen är för övrigt till för alla Mölndalsbor, näringslivet och civilsamhället men ska också stödja alla oss anställda i stadens olika förvaltningar, säger Mio Saba Sjösten.

Den nya visionen antogs av kommunfullmäktige våren 2022. Och det i bred politisk enighet efter ett gediget förarbete med workshops och arbetsmöten. Den gamla visionen från 2013 fungerade som utmärkt förlaga.

– Med sitt fokus på Mölndal som en hållbar, kreativt och modig kommun med en tät, trivsam och sammanhållen stadskärna, har den varit en oerhört värdefull hjälp att docka an till i det fortsatta samhällsbyggandet. Den har varit en ledstjärna och ett stöd för alla oss som jobbar inom stadens förvaltningar, även i vår kommunikation med civilsamhället.

övergripande strävan som genomsyrar allt, från stadsplanering till utbildning och omsorg. Idrott och ett rikt kulturliv är tillgängligt för alla.

I Mölndal kan du styra dina livsval och nå din fulla potential. Vem du än

Så vad är då nytt? Det handlar framför allt om ett tydligare fokus på hållbarhet i alla dess aspekter. Den trycker också extra på kunskap och livslångt lärande. Har också större betoning på näringslivet och på god livskvalitet. – Det är ett dokument som andas att det ska vara gott att leva och verka i Mölndal, säger Mio Saba Sjösten.

Visionen som alltså fick liv för snart ett år sedan har lanserats på olika sätt, bland annat via en film på stadens hemsida. Den har också rullats ut inom stadens egen organisation och ut mot kommuninvånarna via annonser och sociala media.

– Nu gäller det att göra verkstad av den. Att i handling visa att Mölndals stad verkligen värnar om alla som bor och verkar här. En sak är säker, det är gott att ha en god vision som siktar framåt och som vill allt väl för alla sin invånare.

Text: Per-Åke Hultberg

Foto: Julia Sjöberg

är. Vare sig du vill bo med naturen runt hörnet eller mitt i ett stadsliv.

Vårt innovativa näringsliv är ett av de ledande i utvecklingen av Göteborgsregionen. Hållbara kommunikationer gör det enkelt att leva, verka i och

besöka Mölndal. Tillsammans utvecklar vi vår kommun för kommande generationer.”

Se visionsfilmen: molndal.se/vision

Producerad av: Active MediaPartner Nordic AB

Projektledare: Set Fyrmark

Redaktör: Per-Åke Hultberg

Omslag: Julia Sjöberg

Formgivning: Joakim Forsberg

Tryck: Bold Printing Mitt, Sundsvall

För tidningar kontakta: Set Fyrmark, tel. 070-388 07 40 set.fyrmark@activemediapartner.com www.activemediapartner.com

Mölndals stad Besöksadress stadshuset, Göteborgsvägen 11-17, 431 82 Mölndal kontakt@molndal.se • 031-315 10 00 www.molndal.se

HELA DENNA TIDNING ÄR EN ANNONS FRÅN MÖLNDALS STAD
Framsida: Therése Hognert och Irma Linlycke Hillum är Mölndals stads områdessamordnare Lindome. Konstverk bakgrunden: Arti Om & Sara Swati 2013.
molndalsstad molndalsstad 2
Vill du hellre läsa tidningen digitalt? Scanna QR-koden med din mobil. Stefan Gustafsson (S) Kommunstyrelsens ordförande Foto: Julia Sjöberg – Vår nya vision andas att det ska vara gott att leva och verka i Mölndal, säger Mio Saba Sjösten, stadsdirektör i Mölndals stad.

Unika boendemiljöer

för dig som älskar Mölndal

Riksbyggen slutför just nu två långsiktiga engagemang i Mölndal. Det gäller dels två högkvalitativa kvarter med totalt 328 bostadsrätter i Mölndals innerstad. Dessutom ett helt nytt bostadsområde med både flerbostadshus och småhus i ett mycket attraktivt naturnära läge på höjden över Stensjön.

I omvandlingen av Mölndals innerstad har Riksbyggen från start varit en aktiv och engagerad partner. Det började med tre bostadsrättsföreningar med 145 lägenheter ovanpå Mölndal Galleria. De stod färdiga 2019.

Det fortsatte sedan med ett närliggande kvarter på totalt 183 lägenheter, där sista etappen Brf Browallia med 55 lägenheter nu står inflyttningsklara. I bottenplanet ska nu tre lokaler lämpliga för mindre verksamheter fyllas med liv, exempelvis café, frisör och kontor.

– Det känns fantastiskt att vi nu är i mål och inte minst att vi med våra enormt fina bostadsmiljöer har fått ge vårt avtryck till den närmast unika omvandlingen av Mölndals innerstad, säger Fabian Billing, sälj- och marknadsansvarig för Riksbyggen i StorGöteborg.

Fördelarna för bostadsköparna är flera, påpekar han. Och det utöver det självklara att bo mitt i en levande stadsmiljö med restauranger och all tänkbar shopping alldeles utanför dörren. Och inte minst, ett av regionens bästa kollektivtrafiklägen.

– Vi erbjuder nu dessutom alla nya bostadsrättsinnehavare en unik mobilitetslösning. Eller vad sägs om bilpool med medlemskap i fem år. Betala bara när bilen används. I köpet ingår även elcykelpool i fem år till mycket låg kostnad. Alla får även ett årskort från Västtrafik, berättar Fabian Billing.

Sedan var det då det nya bostadsområdet som växt fram under de senaste tio åren vid natursköna Stensjön. Här lägger Riksbyggen nu sista pusselbiten, Stensjöparken med planerad säljstart under 2023. I en första etapp byggs 20 radhus med två våningar, 110–120 kvm, 4–5 rok. Samtliga med trygg och säker fjärrvärme. Projektet i sin helhet består av 66 friköpta radhus, kedjehus och villor, samtliga med bilplats direkt utanför dörren.

– Hela bostadsområdet vid Stensjön kompletterar den äldre befintliga villabebyggelsen på ett fint sätt och har blivit mycket populärt. Inte direkt förvånande. Hela området är högt beläget med en vacker utsikt mot sjön.

Det är lugnt och fridfullt med närhet till både skogspromenader och bad. Här finns också både förskola och skola, säger Fabian Billing.

Med kollektivtrafik, cykel eller bil går det snabbt och enkelt att ta sig till både centrala Mölndal och Göteborg. Det är även nära till Mölnlycke, Landvetter och Borås.

Fabian Billing konstaterar att Riksbyggens båda projekt i Mölndal ligger helt i linje med bolagets grundidéer om att alltid bygga med fokus på

långsiktig hållbarhet. Det handlar om kvalitet och energieffektivitet, en rad åtgärder som sammantaget minskar miljö- och klimatpåverkan.

Alla bostadsrättslägenheter certifieras till exempel minst enligt Miljöbyggnad nivå silver. Det innebär hårda krav på energianvändning, sunda material och tyst inomhusmiljö.

– Men långsiktigheten sträcker sig längre än så, påpekar Fabian Billing. Visst, vi utvecklar och bygger bostäder, men vi tar också hand om den fortsatta förvaltningen. Det är inte alla bostadsutvecklare som erbjuder den möjligheten. Tillsammans med respektive bostadsrättsförening har vi en gemensam hållbarhetsambition om ett hundraårigt förvaltande. Det om något är utmärkande för Riksbyggen, ända sedan starten 1940. I det fallet är vi ganska unika.

Läs mer på riksbyggen.se/browallia riksbyggen.se/stensjoparken

3 HELA DENNA TIDNING ÄR EN ANNONS FRÅN MÖLNDALS STAD
I Riksbyggens bostadsområde vid natursköna Stensjön läggs nu sista pusselbiten, Stensjöparken med säljstart 2023. I en första etapp byggs 20 radhus med två våningar, 110–120 kvm, 4–5 rok. Samtliga med trygg och säker fjärrvärme. Nu är det dags för inflyttning i BRF Browallia, den sista etappen av Riksbyggens bostadskvarter i Mölndals innerstad. Fabian Billing, sälj­ och marknadsansvarig Riksbyggen Storgöteborg.
ANNONS

enhetschef för Åbybadet inom kultur och fritidsförvaltningen, berättar att Nya Åbybadet, som blir färdigt till sommaren, blir ett stort toppmodernt badhus med ovanligt många vattenytor. Dessutom försett med fyra vattenrutschbanor.

Nya Åbybadet snart klart

Premiärdopp i sommar

Åby Arenastad förstärks i sommar då nya Åbybadet är färdigt att tas i bruk. Äntligen, är det nog väldigt många bad- och simsugna, både Mölndalsbor och andra, som tänker. Lilla Åbybadet har visserligen varit i gång under hela byggperioden, men det som nu tar form är något helt annat.

– Det är en stor toppmodern badanläggning med ovanligt många vattenytor, säger Johan Bjerklund, som är enhetschef för Åbybadet inom kultur- och fritidsförvaltningen. Att han är nöjd med det som Mölndals stad snart kan erbjuda den stora allmänheten, går inte att ta miste på.

Gamla Åbybadet som byggdes på 1970-talet hade tjänat ut sin roll. Det var ingen tvekan om det, badhuset hade uppnått sin tekniska livslängd.

– Ja, anläggningen var helt slut, rent fysiskt. Men det var samtidigt ett mycket

populärt bad som hade slagit i taket även besöksmässigt. Så behovet av en stor och modern badanläggning har varit uppenbart under många år, säger Johan Bjerklund.

Nya Åbybadet är, förklarar han, ett familjebad i ordets rätta bemärkelse, det vill säga en trivsam och inbjudande badanläggning med bred verksamhet för alla åldrar. Från de allra minsta och hela vägen uppåt, både för motion, rekreation, lek och vattenvana. Det är självklart också en anläggning för simskolor och det lokala föreningslivet.

På tal om många vattenytor, vad sägs om både 50-meters- och 25-metersbassäng, båda med läktare för tävlingar med fokus på ungdomar. Här finns också två så kallade multibassänger med höj- och sänkbara golv för babysim, simskola och rehab.

En badanläggning av klass har givetvis också vattenrutschbanor. Här finns två inomhus, anpassad för de små, och två stora utomhus. Här finns också strömmande vattenfall och fontän. Som sig bör

Ny isstadion i Åby Arenastad

Efter att vintersäsongen är avslutad påbörjas arbetet med att färdigställa Åby Arenastads nya isstadion. Anläggningen som beräknas vara färdig hösten 2023 kommer att vara en isolerad hall, inklusive sex omklädningsrum, kanslilokal, skridskouthyrning och mindre café.

även en avdelning med bastu och utvändig bubbelpool.

Ett gym etableras på badhusets övervåning som kommer att drivas av extern entreprenör. I övrigt är Åbybadet i Mölndals stads ägo. Café kommer för övrigt att finnas på både den blöta och torra sidan.

– Det känns oerhört roligt att vi nu snart är i mål. Jag är helt övertygad om att nya Åbybadet kommer att bli väldigt bra och uppskattat, både av Mölndalsbor och besökare från våra grannkommuner.

Text: Per-Åke Hultberg

Foto: Julia Sjöberg

VISSTE DU ATT ...

Badhuset har två vattenrutschbanor inomhus, anpassad för de små barnen.

... det i Mölndal finns närmre 8 000 arbetsställen, fördelat på över 500 branscher. Drygt 44 000 personer har sin arbetsplats här. Få koll på vad som är på gång och tips om event för dig som företagare.

Prenumerera på: molndal.se/naringslivsnytt

4 HELA DENNA TIDNING ÄR EN ANNONS FRÅN MÖLNDALS STAD
”Nya Åbybadet blir ett familjebad i ordets rätta bemärkelse”
KULTUR & FRITID
Johan Bjerklund, som är

TRIVSAM STADSBY LEVANDE KVARTER

I Lindome planerar vi ett område med bostäder och äldreboende. Husen kommer ha olika karaktär som tillsammans skapar en lugn men modern plats med stora gemensamma gårdar och närhet till naturen. På cykelavstånd ligger pendlingsstationen.

Vi är en stadsutvecklare med hjärta och erfarenhet i hur man skapar trivsamma områden. Vi är långsiktiga ägare som skapar varierade områden med bostäder, arbetsplatser och service. Vi tar ett helhetsansvar för hela kvarteret och människorna.

Vi är en del av Pedagogen Park där vi planerar att bygga kvarteret Koltrasten. Koltrasten består av hyresrätter i trä, med stora balkonger eller uteplatser. På taket installeras solceller och ett batterilager lagrar överflödig solenergi. Utemiljöerna formas för att främja gemenskap och möjligheterna till att odla, återbruka och dela saker med varandra blir stora. Bland annat blir det långbord på gården, växthus, delningsbod och plats för cykelfix.

Huset kommer till viss del byggas med återbrukade material. Bland annat återanvänds tegel till fasaden på entréplan.

Vi på Stena Fastigheter vill stärka de städer vi finns i, och för oss är ansvarsfulla och långsiktiga relationer grunden för ett hållbart samhälle. Där vi har våra hus vill vi stanna länge och vara en drivkraft för att hela området ska utvecklas.”

Agneta Kores, VD Stena Fastigheter

Nytt Campus ska uppmuntra till att studera i Mölndal

Mölndals stad planerar för ett helt nytt campusområde nära innerstaden som gör det mer attraktivt att studera vidare på hemmaplan.

I dag är de olika enheterna, gymnasieskolor, yrkeshögskola och vuxenutbildning, spridda i hyrda lokaler runt om i staden.

– Vi är trångbodda och har samtidigt ett mycket högt söktryck till våra populära utbildningar, säger Carina Bergsman, verksamhetsledare på utbildningsförvaltningen.

Den tänkta platsen är en befintlig parkering och gräsyta, nära Fässbergs kyrka intill idrottshuset Aktiviteten. Viktor Brandt Johnson har i ett tidigt skede arbetat med en analys över platsen där ett nytt campus kan ligga.

– Ett nytt Campus i detta läge kan ge många positiva effekter för Mölndal. Det blir en pusselbit som binder ihop innerstaden med Åby Stallbacke, vilket ger mer liv och rörelse i centrum. Här finns också goda möjligheter till hållbara transporter med spårvagn, buss och tåg, säger Viktor Brandt Johnson, planarkitekt på stadsbyggnadsförvaltningen.

Tanken enligt förslaget är att med gemensamma utrymmen och funktioner samlade kunna prioritera resurser och få en ändamålsenlig skolbyggnad.

– Vi vill uppmuntra våra egna ungdomar att utbilda sig på hemmaplan. Vi tittar också på möjligheten att i anläggningen skapa ett konferensnav först och främst för Mölndals stads egna behov, säger Carina Bergsman.

Studera i Mölndal – så här är utbildningarna utspridda i dag

När Campus är klart samlas alla utbildningar utom Franklins gymnasium under samma tak.

• Vuxenutbildningen – 2 000 elever (vid Krokslätts Fabriker).

• Yrkeshögskolan – 225 studerande med behov av plats för 300 (vid Krokslätts Fabriker).

• Krokslättsgymnasiet – 370 elever, kommer att ha 550 inom några år.

• Franklins Gymnasium – 246 elever, kommer att ta emot 450 inom några år (i Folkets Hus invid stadshuset, kommer inte att flytta till Campus).

• Frejagymnasiet, anpassad gymnasieskola – 44 elever, 65 inom ett par år (intill idrottshuset Aktiviteten).

Marknaden har fortsatt tilltro till att satsa i Mölndal

Energiförsörjning är enviktig pusselbit i byggandet av en hållbar stad. Björn Marklund, stadsbyggnadschef i Mölndals stad, berättar om hur nuvarande omvärldsfaktorer påverkar Mölndals stads fortsatta arbete med att planera för en växande kommun.

– Vi ser fortsatt tilltro till Mölndal, det finns en vilja att satsa här. Marknaden har inte tappat tron på oss, men det är ingen tvekan om att kriget i Ukraina påverkat både bostadsköpare och byggare. Både privatpersoner och företag tvekar. Projekten går inte i gång som planerat, vilket är helt naturligt med räntor många aldrig varit med om, för att inte tala om inflationen, säger Björn Marklund.

Energifrågan har visserligen alltid stor bäring på stadsbygget. Att ha kapacitet är något att ta hänsyn till vid all stadsplanering, till bostäder, skolor, förskolor, äldreboenden och verksamhetsområden.

– Men det är nu ändå som ett uppvaknande, att alla blivit medvetna om att energifrågan är en strukturerande faktor vi måste förhålla oss till. Vi kan inte bygga var som helst och inte anlägga vilka verksamheter som helst. Vi måste nu se till att det kommer att finnas tillgång till el. Det har tidigare inte varit något vi behövt bekymra oss om.

Björn Marklund nämner energikrävande etableringar som batterifabriker och serverhallar, som de flesta kommuner tidigare gärna tagit emot. Här gäller det nu att tänka om. Klarar vi det? När det gäller nu aktuella verksamhetsprojekt, som GoCo och Lunnagården, så gäller det att se till att det finns energi redan från början. Även vara öppna för nya idéer och ny teknik kring just energiförsörjningen.

– Att vi här i Mölndal har ett eget kommunalt energibolag, en aktör i samma koncern, ser jag som en stor fördel. Vi har ett nära samarbete med Mölndals Energi

och planerar ingenting utan dem. Det är oerhört betydelsefullt, både för vår egen förvaltning och inte minst för invånarna, säger Björn Marklund och lyfter speciellt fördelen med den fjärrvärme som förser stora delar av Mölndals fastighetsbestånd med både värme och varmvatten.

”Vi kan inte bygga var som helst och inte anlägga vilka verksamheter som helst”

– Fjärrvärme är en säker och trygg energikälla. Den är dessutom baserad på förbränning på ett hållbart sätt i Riskulla kraftvärmeverk, samtidigt som el produceras.

Men det är inte bara energifrågan som är på tapeten – vad händer med alla byggplaner, de nya bostäderna i inner-

6 HELA DENNA TIDNING ÄR EN ANNONS FRÅN MÖLNDALS STAD
STADSBYGGNAD

staden till exempel, läggs de nu i malpåse och finns det nu efter pandemin verkligen efterfrågan på nya kontorslokaler?

– Det är på många sätt en intressant tid nu efter pandemin, poängterar Björn Marklund. Kontorshuset MIMO med sina 17 våningar är nu på väg upp, den sista stora pusselbiten i innerstaden. Alla förväntade sig nya arbetsrutiner med fokus på hemarbete, att alla ville bo större och flytta ut från stan.

– Det har varit mycket diskussioner om nya trender. Kontorsprojekten rullar ändå på och stadsmiljöer har fortsatt attraktionskraft, säger Björn Marklund och konstaterar att Wallenstams nya hyresrätter i innerstaden byggstartas under 2023.

Kriget i Ukraina har ändå gett en omedelbar effekt, ett tydligt hack i byggmaskineriet. Men byggbolagen har fortsatt planerandet, de vill köpa mark och tänka långsiktigt.

– I korta perspektivet finns en tveksamhet. Men framåt fortsätter vi, tillsammans

– Vi har ett nära samarbete med Mölndals Energi och planerar ingenting utan dem. Det är oerhört betydelsefullt, både för vår egen förvaltning och inte minst för invånarna, säger Björn Marklund, stadsbyggnadschef Mölndals stad.

med bygg- och fastighetsbolagen, att planera för att ha en bra position inför framtiden.

Just nu har stadsbyggnadsförvaltningen ett 30-tal planprojekt i full gång i olika skeden, runt om i hela kommunen, både stora och små planer. I centrala Mölndal, även i Lindome och Kållered, både bostäder och verksamheter. I Balltorp nära GoCo-området finns en stor intressant markreserv för flera tusen bostäder. Även i västra delen av Eklanda längs Söderleden mot Göteborg finns bra möjligheter för bostadsbyggande.

– Att det just nu finns en tveksamhet på marknaden innebär ju inte att behoven av nya bostäder och verksamhetslokaler har upphört. Det är därför viktigt för oss att fortsätta hålla tempot i planeringsarbetet. Rätt vad det är så rullar det i gång igen. För det är som jag redan sagt, marknaden har fortsatt tilltro till Mölndal.

Text: Per-Åke Hultberg

Foto: Julia Sjöberg

Mölndal har något för alla, här finns det alltid mer att uppleva! Mölndals mest kända besöksmål är 1700-talsanläggningen Gunnebo Slott och Trädgårdar, ansedda Hills Golf & Sports Club, Mölndals innerstad och Åby Arena.

Förutom dessa pärlor finns pittoreska och unika Kvarnbyn – Mölndals industrihistoriska vagga. Här, vid de gamla industrierna utmed forsen, ligger en rad charmiga besöksmål och på toppen av fallen hittar du Mölndals stadsmuseum.

Vill du få en shoppingupplevelse utöver det vanliga ska du bege dig till Lindome och Spinneriet, här hittar du trendiga butiker som tillsammans skapar en spännande atmosfär i denna historiska tegelbyggnad.

Från centrala Göteborg tar det bara 10-15 min med spårvagn till Mölndals innerstad. Väl i innerstaden hittar du Mölndal Galleria som ligger bara någon minuts promenad från spårvagnen.

Läs mer om vad som finns att se och göra i Mölndal på upplevmolndal.se

7 HELA DENNA TIDNING ÄR EN ANNONS FRÅN MÖLNDALS STAD
Foto: Camilla Elisasson

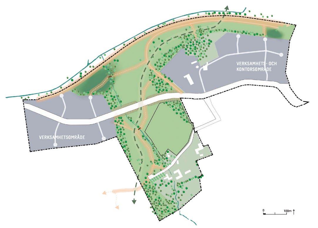
Lindome uppgraderas

Ökad stadsmässighet och trygghet

Lindome centrum ska förstärkas, förnyas och kompletteras med nya lägenheter, radhus, handel och verksamheter. Det handlar om ett helhetsgrepp med fokus på ökad stadsmässighet, trivsel och trygghet, samtidigt som områdets tidstypiska arv från 1960och 70-talen bevaras.

I stationssamhället Lindome är det nära till mycket: affärer, restauranger, vårdcentral, skolor, bibliotek, idrottsliv, gårdsbutiker, bad och friluftsliv. Utbudet i Kungsbacka, Kållered köpstad eller Mölndals innerstad är bara några minuters tågresa bort och till Göteborg tar det en kvart.

Nu står bostadsområdena Dotegården och Smörkullegården i Lindome centrum inför en omfattande utveckling. De befintliga 344 lägenheterna är i behov av en gedigen upprustning. I samband med detta ser fastighetsägaren Förbo möjligheten att ersätta några av de befintliga husen och komplettera med nya flerbostadshus och radhus på tidigare obebyggd mark.

I samarbete med fastighetsägaren Förbo har Mölndal stad arbetat fram en detaljplan som varit ute på samråd under oktober–november 2022. Förslaget togs fram efter en digital dialog med boende i området. Utöver omfattande renoveringar av de befintliga bostadshusen innebär nybyggnationen ett tillskott på 120 nya bostäder i området. Det planeras också för en aktivitetspark som kan fungera både som mötesplats och besöksmål.

En majoritet av beståndet ska bevaras och renoveras, vilket kommer att ge bättre boendemiljö för hyresgästerna och mer energieffektiva hus. För att bereda väg för fler lägenheter i området behöver en tredjedel av de husen ersättas med nya.

De nya husen anpassas till befintlig byggnation i antal våningar och bjuder på tillgängliga lägenheter med hiss som tidigare inte funnits i Lindome centrum.

– Lindome centrum har många kvaliteter att bygga vidare på. Järnvägsstationen ligger i nära anslutning, vilket är en stor tillgång och en viktig förutsättning för hållbart stadsbyggande, säger Stina Nilsson, planarkitekt i Mölndals stad, som har arbetat med detaljplanen tillsammans med planarkitekt Alexandra Romanov.

Hon ser förnyelsen av Lindome som en ny årsring i stadsbyggandet som kompletterar den stadsmiljö som skapades i miljonprogrammets slutskede.

– Lindome är redan i dag ett samhälle med ett rikt innehåll, och det finns på sikt möjligheter att utveckla ännu mer med fler bostäder, både småhus och lägenheter i flerbostadshus, säger Stina Nilsson.

Den nya bebyggelsen innebär ökad variation av arkitekturuttryck när radhus och lägenheter blandas och de befintliga 70-talshusen kompletteras med ny utformning. Två huskroppar i direkt anslutning till centrum kommer att bidra till ökad känsla av stadskärna med lokaler för handel och service i bottenvåning med entréer mot ett torg.

Ambitionen är också att med fler entréer och stråk skapa större tillgänglighet från centrum till bostadsområdet. Tanken är att ett större flöde av människor ska bidra till ökad trygghet och samtidigt till känslan av en större sammanhållen stadsdel.

– Allt sammantaget innebär att Lindome centrum blir mer attraktivt och varierande än i dag. Det blir ökad social mångfald och trygghet med mer liv och rörelse. Nya bostäder i ett centralt läge med närhet till kollektivtrafik, främjar dessutom hållbart resande, avslutar Stina Nilsson.

Text: Per-Åke Hultberg

Visionsbild: Liljewall arkitekter

Foto: Mölndals stad

Ungdomarnas extrajobb: bästa möjliga Lindome

2023 kommer 60 ungdomar att jobba ihop med kommunen för ökad trygghet, trivsel och stärkt demokrati. Unga kommunutvecklare, som extrajobbet heter, var med och tyckte till om utformningen av Förbos planerade aktivitetspark.

– Aktivitetsparken blir en viktig mötesplats som sätter människor i olika åldrar i rörelse. Vi hoppas att den blir utflyktsmål även för de som bor utanför Lindome, berättar Therése Hognert, områdessamordnare i Lindome, Mölndals stad. Hon berättar att unga kommunutvecklare kan ge en bild av vad barn, vuxna och äldre i området saknar.

– Ungdomarna berättar vad de saknade när de var barn, vilka behov de har nu och vad de hör från vänner och familj i alla åldrar. Deras kontaktnät är ovärderligt. För ungdomarna betyder extrajobbet hos oss inte bara inflytande, det är också en merit när de söker jobb i framtiden,

I Lindome extraknäcker i år femton unga kommunutvecklare med att fånga upp behov och arrangera event. Förra året arrangerades bland mycket annat Lindomedagen, barnaktiviteter, generationsmöten, träffar för motorburen ungdom, danskvällar och aktiviteter på äldreboende Brogården. Områdesarbete pågår även i Balltorp, Bifrost och Åby.

Läs mer på: molndal.se/omradesarbete

8 HELA DENNA TIDNING ÄR EN ANNONS FRÅN MÖLNDALS STAD
I LINDOME
Lindomes befintliga bostadsområden Dotegården och Smörkullegården i Lindome centrum står inför en omfattande utveckling. Lindome har många kvaliteter att bygga vidare på, säger planarkitekt Stina Nilsson.

ALLA VÄGAR

BÄR TILL VGON

Den historiska industrikärnan Forsåker i Mölndal får nu nytt liv. Det blir en plats präglat av nya idéer.

VGON med sina tolv våningar och 12 000 kvadratmeter kontor blir en viktig del av utvecklingen. Allt från den välkomnande entrén till terrasser i alla väderstreck. Den spännande arkitekturen är genomtänkt, estetiskt och hållbar. Huset får den modernaste tänkbara utformningen med smarta gemensamma ytor för flexibla människor. En arbetsplats att vara stolt över.

MÖLNDAL
K O N T O R V I D M Ö L N D A L S B R O
För mer information kontakta Robert Bolmgren, 070-601 77 87

GoCo Health Innovation City

Stadsdelens hjärta är redo att tas i bruk

Med oförminskad styrka fortsätter den rekordsnabba processen att intill Astra Zeneca i Mölndal skapa en ny stadsdel där hundratals verksamheter inom hälsa, medicinsk utveckling och digitala hälsotjänster samlas i ett gemensamt innovationskluster. Det geografiska läget intill E6 och Söderleden kunde knappast vara bättre.

Ett flertal byggnader är nu under full byggnation. Det första, en avancerad medicinteknikbyggnad, var för övrigt inflyttad och klar redan för ett år sedan. Och nu i dagarna är stadsdelens portalbyggnad, GoCo House, redo att tas i bruk. Här talar vi om själva hjärtat i GoCo Health Innovation City.

Här i huset kommer cirka 1 000 personer i ett 30-tal olika verksamheter att ha sin arbetsplats och då ha tillgång till restaurang, café, konferenslokaler och lobbyytor.

– Det blir en gemenskapsfrämjande mötesplats för alla som bor och verkar här, som en förebild för den fortsatta utbyggnaden, säger Anna Eckerstig, fastighetsutvecklingschef, GoCo.

Lisa Östman, planchef Mölndals stad, ser den GoCo Health Innovation City som nu snabbt växer fram i Åbroområdet som ett utmärkt exempel på stadsutveckling, där staden samarbetar med drivande aktörer inom näringslivet för att tillsammans göra det möjligt att förstärka Mölndal med nya attraktiva och hållbara stadsdelar.

Utöver stort fokus på verksamheter inom Life Science och hälsa kommer det även att byggas bostäder. Just nu produceras 170 hyreslägenheter för bland andra studenter och gästforskare. Ett äldreboende kommer att vara färdigt att tas i bruk 2024. Längre fram blir det även bostadsrätter i området där man räknar med att det blir cirka 450 lägenheter.

skapar ett sammanhang där kreativa möten gör att goda forskningsidéer kan förverkligas och därmed driva på innovationskraften och tillväxttakten inom regionens redan starka hälsosektor.

Redan inom tre till fyra år kommer merparten av stadsdelens första tio tomter att vara bebyggda. Nu under året flyttar en vårdaktör till en nyuppförd byggnad. De utför bland annat dagoperationer inom hand- och fotkirurgi. Nästa år, 2024, flyttar välkända Mölnlycke Healthcare, som i dag har sitt huvudkontor i Göteborgs innerstad, till sina nya lokaler. Men det är ändå bara början.

Den rekordsnabba utvecklingsresan beräknas vara i mål kring 2030, då med plats för 350 företag med totalt uppåt 7 000 arbetsplatser, kanske fler. På plats alldeles intill, finns som sagt medaktören Astra Zeneca med sin globala forskningsanläggning, en arbetsplats för cirka 3 000 anställda.

kunna ta sig till och från området med snabba och kapacitetsstarka mobilitetslösningar, utan att behöva ta bilen, säger Lisa Östman.

GoCo Health Innovation City

– Det innebär att människor av alla slag kan välja att bo mitt i hjärtat av ett spännande internationellt kluster, vars mål är att attrahera entreprenörer, forskare och talanger från hela världen, säger Anna Eckerstig.

I fråga om själva stadsmiljön är ambitionen att skapa en levande kvartersstad med liv och rörelse dygnet runt. De olika kvarteren har därför publika lokaler i gatuplanet, caféer och restauranger, gym och annan service. På sikt planeras även ett hotell.

Men det är framför allt en stadsdel där företag och verksamheter inom Life Science

– En så snabb tillväxt med så många människor förutsätter en väl genomtänkt och planerad stadsutveckling. Det är jätteviktigt att området dockar an med den övriga staden, betonar Lisa Östman.

Hon nämner speciellt betydelsen av att skapa en attraktiv omgivande miljö. Att de som ska leva, bo och verka här ska ha ett bra och fungerande liv i vardagen. Här har Mölndals stad en självklar och viktig roll. Det handlar om att med olika kommunala insatser skapa bra förutsättningar, inte minst för trafiklösningar och hållbart resande.

– Det är en grundförutsättning för en så här pass stor expansion. Man måste

Läget, intill E6 och Söderleden in till Göteborg, är minst sagt strategiskt. Samtidigt är det viktigt att inte täppa till systemet med för mycket trafik. Kollektivtrafiken behöver därför förstärkas med ett stombussystem med hög turtäthet, kopplad till Göteborg. I detaljplanen för GoCo har staden och Västtrafik beslutat om buss var femte minut till Åbroområdet.

– Det gynnar alla, både dem som bor och verkar i stadsdelen, alla Mölndalsbor och hela regionen, säger Lisa Östman.

Text: Per-Åke Hultberg

Visionsbilder: Semrén & Månsson (GoCo House) samt Gehl (Flygkarta)

• Är en miljardsatsning på 100 000 kvm nya forskningsoch utvecklingsmiljöer i anslutning till Astra Zenecas anläggning i Mölndal.

• Inom fem till åtta år ska ett företagskluster ha växt fram med 350 företag, forskare och studenter.

• Första utbyggnadsetappen ska stå klar 2025.

• Bakom satsningen står Next Step Group och Vectura Fastigheter. www.goco.se

10 HELA DENNA TIDNING ÄR EN ANNONS FRÅN MÖLNDALS STAD
INNOVATION
GoCo Health Innovation Citys geografiska läge, intill E6 och Söderleden, kunde knappast vara bättre.
”Det är jätteviktigt att området dockar an med den övriga staden”
GoCo Health Innovation City är en stor och viktig investering i Göteborgsregionen och hela Sveriges framtid.

GoCo Health Innovation City – A city district that saves lives

GoCo Health Innovation City is the new urban city center, located in connection to AstraZeneca’s global R&D site in Mölndal. Over 200 000 square meters are being developed to attract researchers, entrepreneurs, and talents from around the world. The vision is to create a world-class innovation cluster for health, where collaboration is built into the core.

Are you interested in new office space? Visit GoCo.se

En helt ny byggnad med tre våningar, totalt 11 000 kvm varav 7 000 kvm verksamhetsyta, håller nu på att färdigställas i Lackarebäck där ett nytt modernt specialistdjursjukhus utvecklas i nära samarbete mellan Blå Stjärnans Djursjukhus och fastighetsägaren Castellum. Inflyttning är beräknad till årsskiftet 2024–2025.

Sveriges största sjukhus för smådjur byggs just nu i Mölndal

– Vi känner stor stolthet och glädje över att Blå Stjärnan valt oss som samarbetspartner i sin framtida satsning att fortsatt vara ett av Sveriges ledande djursjukhus. Gestaltningsmässigt handlar det om en mycket tilltalande byggnad som kommer att ge ett mäktigt intryck i bästa skyltläge vid entrén till Lackarebäck i Mölndal, säger Mariette Hilmersson vd för Castellum region Väst.

Det nya djursjukhuset kommer med avancerad medicinsk praktik, kirurgi, akut- och intensivvård att bli Sveriges största och mest kompetenta sjukhus för smådjur. Dessutom är det ett av Sveriges få dygnet-runt-öppna djursjukhus.

– Vi har väntat och längtat i tio år att kunna hitta en bra plats där vi i nya ändamålsenliga lokaler kan erbjuda toppmodern djursjukvård. Allt precis som hittills med djurvälfärd och djurskydd som viktiga och självklara byggstenar, säger Christina von Dorrien, vd, Blå Stjärnans Djursjukhus AB.

Hon betonar det enorma lyft det betyder för sjukhusets omfattande verksamhet att nästa år kunna flytta från de gamla lokalerna på Ringön i Göteborg till en toppmodern miljö i Lackarebäck i Mölndal. Områdets strategiska läge vid de stora trafiklederna, nära både E6 och riksväg 40 mot Landvetter och Borås är ett stort plus.

Med bara tio minuter med bil in till Göteborg och tio minuter åt andra hållet ut från Mölndal, är det lätt och smidigt för djursjukhusets alla besökare från hela landet att hitta hit. Här finns också ett stort antal parkeringsplatser vilket är en stor fördel även för Blå Stjärnans över 200 medarbetare. Castellum utökar dessutom antalet laddplatser i området för att kunna hantera den anstormning av elbilar som nu kommer.

Det geografiska läget kunde som sagt knappast vara bättre, vilket Blå Stjärnan är långt ifrån ensamma om att inse. Här kan man verkligen

tala om guldläge, perfekt för verksamheter av skilda slag. I synnerhet som Castellum nu är i full gång med en omfattande upprustning som tar bolagets befintliga byggnader in i 2020-talet. Det är i den miljön, som även är nära till vacker natur, som djursjukhuset kommer att bedriva sin framtida verksamhet.

– Vi har i 90 år behandlat alla våra vanligaste husdjur, hundar, katter, gnagare, reptiler och fåglar, berättar Christina von Dorrien. Som fa-

miljemedlemmar erbjuds de självklar vård därefter. I stort sett på samma nivå som humansjukvården med avancerad teknik och medicinsk utrustning.

– Vi hjälper dagligen sjuka och skadade sällskapsdjur från hela landet. I våra nya lokaler kommer vi att kunna utöva trygg, effektiv och specialiserad vård, säger veterinär Gustaf Svensson, kirurgspecialist och projektledare.

Byggnaden i sin helhet utvecklas med höga ambitioner kring hållbarhet och klassas som Miljöbyggnad Silver. Nedersta plan blir parkeringsgarage följt av två plan med djursjukhusets olika avdelningar. En viktig del i planeringsarbetet har varit möjligheten att kunna skilja flöden av olika djurarter för att garantera trygghet hos patienterna, samtidigt som medicinska funktioner ska kunna samutnyttjas.

Att Blå Stjärnans etablering i Lackarebäck har stor betydelse även för Mölndals stad säger sig självt. Det handlar om nya arbetstillfällen men också om möjligheten att ta emot och erbjuda handel och övrig service för de över 40 000 besökare från hela landet som årligen reser till Blå Stjärnan med sina smådjur. Dessutom och inte minst, vad innebär det inte i fråga om snabb och bra vård för kommunens egna invånares alla smådjur?

– Jag måste här ge en extra eloge till både Mölndals stad och Castellum för det fina samarbetet, deras lyhördhet och bemötande. Det har fungerat fantastiskt bra under hela planeringsprocessen och fortsatt under själva byggnationen. Kommunen har hjälpt oss hela vägen, de har tydligt och klart visat oss vad som fungerar och är möjligt att genomföra. Det är vi väldigt tacksamma för. Det om något visar att de vill ha oss här. Det känns jätteroligt, avslutar Christina von Dorrien.

12 HELA DENNA TIDNING ÄR EN ANNONS FRÅN MÖLNDALS STAD
Blå Stjärnans Djursjukhus, som är ett av Sveriges få dygnet-runt-öppna djursjukhus, har i 90 år behandlat alla våra vanligaste husdjur, hundar, katter, gnagare, reptiler och fåglar.

Om Castellum

Castellum är ett av Nordens största börsnoterade fastighetsbolag som utvecklar flexibla arbetsplatser och smarta logistiklösningar. Per den 30 september 2022 uppgick fastighetsvärdet till ca 186 miljarder, inklusive ägarandelen i norska Entra ASA. Vi finns i attraktiva nordiska tillväxtregioner. Ett av våra hållbarhetsmål är att vara helt klimatneutrala senast 2030. Castellum är det enda nordiska fastighets- och byggbolag som är invalt i Dow Jones Sustainability Index (DJSI). Castellumaktien är noterad på Nasdaq Stockholm Large Cap.

En värd bortom det förväntade. www.castellum.se

13 HELA DENNA TIDNING ÄR EN ANNONS FRÅN MÖLNDALS STAD ANNONS
I Castellums gestaltningsmässigt tilltalande nya byggnad i Lackarebäck kommer Blå Stjärnans Djursjukhus fortsatt kunna erbjuda avancerad medicinsk praktik, kirurgi, akut- och intensivvård. Här i Sveriges största och mest kompetenta djursjukhus kan besökare från hela landet få bästa tänkbara behandling för sina älskade smådjur.

STADSOMVANDLING

Mölndals innerstad

Nu läggs de sista pusselbitarna

Samtidigt som senaste tillskottet i Mölndals innerstad uppenbarar sig med sina 17 våningar sker det i kontorshusets skugga en annan förvandling – där den första etappen innebär cirka 250 nya bostäder och en helt ny gatubild som knyter ihop Nygatan med Mölndals bro.

MIMO-huset blir ett av de landmärken som resenärerna möts av när de kliver av i Mölndal. Toppmoderna kontorsarbetsplatser och ett helt nytt kvarter tillför aktivitet i markplan med utrymmen för handel och service.

Runt kontorsbyggnaden och under Mölndals bro börjar nu en förändring som länkar samman hela kvarteret med resecentrum.

– Det blir mer naturligt att röra sig här än tidigare. Den största skillnaden blir den nya breda trappa som knyter samman kvarteret med resecentrum. Ett gångstråk längs MIMO:s fasad i markplan där ny markbeläggning mer belysning, cykelparkeringar med mera ska anläggas. När fler personer rör sig på platsen ökar tryggheten, berättar Frida Forsman, planarkitekt, Mölndals stad.

Det finns också planer som möjliggör för fler att bo i centrum. Längs Åbybergsgatan ska det stora tillskottet av nya bostäder kompletteras med ytterligare 400 lägenheter. Byggstart för cirka 250 av dessa kan ske redan under 2023.

– Det blir som en ytterligare ring i utvecklingen av innerstaden. Här finns möjligheter att fortsätta bygga stad. Söder om Åbybergsgatan planeras nu för etapp två med stadsbebyggelse med stort fokus på gestaltad livsmiljö, säger Frida Forsman.

Samtidigt pågår planeringen för att skapa ett stadsstråk längs Frölundagatan, mellan Åby Stallbacke med sin blandade nya bebyggelse och innerstaden. I för-

Mölndals

Mölndals resecentrum är en av Göteborgsregionens mest trafikerade platser – här sker 27 500 resor per vardagsdygn. Den spännande stationsbyggnaden som invigdes i

längningen även med Pedagogen Park. I ett första skede handlar det om cirka 150–160 bostäder utefter Frölundagatan, merparten flerbostadshus som kompletteras med ett mindre antal radhus.

– Avsikten från Mölndals stads sida är att länka samman olika stadsdelar och på det sättet skapa en sammanhållen och levande stadsbebyggelse, som ju handlar mycket om att skapa plats för livet mellan husen, berättar Frida Forsman.

Text: Per-Åke Hultberg

Foto: Julia Sjöberg

april 2003 är ritad av Wingårdhs arkitektkontor och har blivit något av ett landmärke för Mölndal. Byggnaden vann 2004 Svenska Stadskärnors pris

Visionsbild: TMRW

för god design. De spännande glasfasaderna höjde ribban för hur kollektivtrafikens vänthallar kan se ut.

14 HELA DENNA TIDNING ÄR EN ANNONS FRÅN MÖLNDALS STAD
Under året kommer ytterligare 250 nya lägenheter att byggstartas i centrala Mölndal. – Det blir som ytterligare en ring i utvecklingen av innerstaden, säger Frida Forsman, planarkitekt, Mölndals stad. Från Mölndals stationsbyggnad ser man nu hur kontorshuset MIMO med sina 17 våningar växer upp mot skyn. Den 27 september 2018 slog den då nybyggda Mölndal Galleria upp sina portar för första gången. Ett populärt och viktigt tillskott i omvandlingen av Mölndals innerstad.
”Levande stadsbebyggelse handlar mycket om att skapa plats för livet mellan husen”
resecentrum fyller 20 år
Foto: Julia Sjöberg Visionsbild: Liljewall arkitekter

”Att vara familjehem ger så ofantligt mycket tillbaka”

Har du någon gång funderat på att bli familjehem? Gör som Jessica och Milan som har flera års erfarenhet av uppdrag åt Mölndals stad!

Ibland kan barn och unga inte bo kvar hemma av olika skäl. Därför behövs familjehem som kan ta emot ett barn för en längre eller kortare tid, och som kan ge barnet trygghet och omvårdnad.

Jessica och Milan har flera års erfarenhet av uppdrag som familjehem åt Mölndals stad. Jessica berättar att de är väldigt nöjda med stödet de har fått av sin familjehemssekreterare:

– Maria har varit fantastisk. Bara att veta att hon finns där, har bidragit till att jag känt att ”det här klarar vi”.

Det var när paret flyttade till Lindome som de tog kontakt med familjehemssekreterarna i Mölndals stad. Det ledde till ett antal uppdrag av olika slag. När deras biologiska barn var sju och nio år

gamla kände de sig redo att ta emot ett annat barn på heltid, vilket man gör som familjehem.

I deras fall gick det snabbt från att utredningen var klar och de blivit godkända som familjehem, till att de tog emot en liten flicka. Hon har nu hunnit fylla sju år och är en självklar del av familjen.

Familjehem kan se ut på olika sätt. Det kan finnas en eller två vuxna i familjen, och det kan finnas barn eller inte. Du kan bo i lägenhet eller, som Jessica och Milan, i hus.

Du behöver inte ha någon särskild utbildning. Det viktiga är att du är en trygg vuxen med en stabil tillvaro, med tid och kärlek att ge. Och så behöver det finnas möjlighet för barnet att få ett eget rum.

Milan har ett råd till dig som funderar på att bli familjehem: – Våga ta det där första steget! Det kan vara lite läskigt, men det ger så ofantligt mycket tillbaka.

SÅ BLIR DU FAMILJEHEM

Anmäl intresse via e-tjänsten som finns på webben: molndal.se/familjehem

Du kan också ringa kontaktcenter: 031–315 10 00

En intresseanmälan är inte bindande. Innan det kan bli dags för ett uppdrag görs en utredning. Ni får också genomgå en familjehemsutbildning.

Göteborgs nya stadsdel

Bo i bostadsrätt vid foten av Änggårdsbergen i nya stadsdelen Södra Änggården. Närhet till skog, bad och citypuls. Linné och Slottsskogen en kort cykeltur bort. Stor variation av lägenheter, gemensam takterrass med växthus och ett skönt stadsliv.

Säljstart januari 2023.

Bostadstyp: Bostadsrätt | Antal rum: 1-5 | Storlek: 32-135 kvm

Läs mer: hokerumbygg.se/odhners-fabrik

15 HELA DENNA TIDNING ÄR EN ANNONS FRÅN MÖLNDALS STAD
Jessica och Milan tycker att det berikar livet att vara familjehem.
ANNONS
Köp tryggt. Bo tryggt. Lev tryggt.

På tidigare depåyta som inte kan utnyttjas för något annat kommer Mölndals Energi att anlägga Solparken Kikås, som invigs under sommaren 2023. – Det blir ett viktigt tillskott till den el och fjärrvärme som vi redan producerar, säger bolagets vd Christian Schwartz.

Mölndal Energi –

en viktig spelare i hållbart stadsbyggande

Från det att den invigts under sommaren 2023 kommer Mölndals första solcellspark att bidra med ytterligare lokal förnybar energi. Solparken i Kikås blir ett viktigt komplement till den el och fjärrvärme som Mölndal Energi redan producerar.

– Det är ett betydelsefullt steg i omställningen till ett hållbart samhälle, säger Christian Schwartz, vd för Mölndal Energi. Bolaget, som ägs av Mölndals stad, har i nära samarbete med staden en viktig roll i stadsbyggandet, påpekar han.

– Den el, fjärrvärme och kyla som vi producerar gör det möjligt för Mölndal att växa och utvecklas. Energifrågan är med andra ord helt avgörande för stadens fortsatta tillväxt. Det handlar om att hitta bra lösningar tillsammans med stadsbyggnads-

förvaltningen och de exploatörer och företag som bygger och etablerar verksamhet här i kommunen.

Christian Schwartz pekar på tre viktiga hörnstenar i det uppdraget: hållbarhet, uthållig ekonomi och leveranssäkerhet. Utöver att förse majoriteten av Mölndals befintliga fastigheter med energi är bolaget alltid med i planeringen av nya områden. Då handlar det först och främst om att bygga ut fjärrvärmenätet så att nya stadsdelar, som GoCo Health Innovation City och Forsåker, inte ska behöva använda elvärme. Här är det viktigt att vara medveten om att även värmepumpar drivs av el, påpekar Christian Schwartz.

– Dagens höga elpriser gör att många ser sig om efter alternativ till elvärme. Med vår fjärrvärme kan vi erbjuda ett prisvärt, enkelt och klimatsmart alternativ. Och det har vi gjort i decennier, poängterar Christian Schwartz.

Solenergi utan bygglov, går det?

Ja! Du behöver oftast inte söka bygglov om du installerar solceller, solpaneler eller solfångare på tak eller fasad om de följer byggnadens form/taklutning. Kolla hela checklistan på molndal.se/solenergi

I kommunen finns det hela 15 mil fjärrvärmeledningar som ser till att en stor andel av alla fastigheter i Mölndal, Kållered och Lindome får en trygg och leveranssäker värme till sina element och kranar.

– Vi levererar värme från restprodukter som annars inte skulle ha kommit till användning. Det är i sig ett viktigt bidrag till den gröna omställningen, betonar Christian Schwartz.

tion. Det vill säga att både elkraft och fjärrvärme produceras i kraftvärmeverket. Bolaget har dessutom tre vindkraftverk.

– En stor fördel med den el vi producerar är att den inte behöver transporteras från Norrland. Att vi nu med den nya solparken i Kikås utökar vår lokala och förnybara elproduktion känns fantastiskt roligt. Det är också ett bra nyttjande av mark på tidigare deponi som inte kan användas för något annat, säger Christian Schwartz, som här vill passa på att uppmuntra fler till att satsa på solpaneler.

– Vi märker av ett jättestort intresse, både bland privatpersoner och företag. Tillsammans kan vi göra en stor lokal insats i omställningen till ett mer hållbart samhälle.

Men det är inte bara värme och kyla som produceras. Sedan det egna kraftvärmeverket togs i drift 2010 har Mölndal Energi även bidragit med lokal elproduk-

Text: Per-Åke Hultberg

Foto: Rickard Olausson, Skvader Media

48 %

– så många fler invånare i Mölndals stad ville installera kamin jämfört med året innan.

Planerar du vårens byggprojekt?

16 HELA DENNA TIDNING ÄR EN ANNONS FRÅN MÖLNDALS STAD
Kolla om du behöver bygglov på molndal.se/bygglov
NY ENERGI
”Energifrågan är helt avgörande för stadens fortsatta tillväxt”

Mölndal – Pedagogen Park

Ännu finns chans att hitta din drömlägenhet.

Byggnationen är i full gång i Brf Prefekten i Pedagogen Park. Vill du också bo i bästa läge nära service och kommunikationer och i ett kvarter med en lummig innergård med växthus? Det finns fortfarande lägenheter kvar till försäljning – inflyttning är planerad till våren 2024.

Kontakta våra mäklare för mer information!

Patrik Teply, 031-746 49 40, patrik.teply@fastighetsbyran.se

Charlotte Johansson, 031-746 49 44, charlotte.johansson@fastighetsbyran.se

Välkommen att hitta din drömbostad på obos.se/prefekten

1 948 000 kr

Pris från

NÄRINGSLIV

Nya näringslivsområdet Lunnagården

Knyter samman Åbro med Sisjön

Nu börjar utvecklingen av näringslivsområdet Lunnagården, på gränsen mellan stad och landsbygd, med optimala logistik- och skyltlägen söder om Söderleden. Mitt emellan bebyggelsen bevaras en värdefull grön korridor.

Platsens unika läge med närhet till naturen skapar förutsättningar för friluftsliv och rekreation sida vid sida med ett expansivt näringsliv. De nya verksamhetsområdena kommer med ny lokalgata att länka ihop Riskulla på Mölndals sida med Sisjön i Göteborg och därmed avlasta trafiken på Söderleden.

– Det är en av de största satsningarna någonsin i Mölndal på ett helt nytt näringslivsområde med många utmaningar att balansera. Här ska vi både bevara och utveckla, vilket kanske kan låta som en motsättning, men mycket kan lösas med genomtänkt detaljplanering för att anpassa ny bebyggelse till de värden som finns i området i dag, säger Lisa Östman, planchef Mölndals stad.

I området finns viktiga natur- och kulturmiljövärden. Den äldre bebyggelsen vid Lunnagården är omgiven av stallar och ängsmarker, befintliga gårdar kommer att finnas kvar och kulturmiljön bevaras och utvecklas. I närheten finns också ett skogsparti med rid- och promenadväg som leder rakt ut mot värdefulla naturområden.

Grönområdet, som delar upp bebyggelsen i två delar, är en del av ett grönt stråk kallat ”Tremilaparken” som sträcker sig från Änggårdsbergen i norr till Sandsjöbacka naturreservat i söder. Det är ett av flera gröna stråk som pekats ut i Göteborgsregionens strukturbild.

– I detaljplanen säkerställer vi detta grönstråk samtidigt som vi möjliggör två intilliggande verksamhetsområden med olika inriktning. En med på betoning på produktion, logistik med mera i väster mot Sisjöområdet i Göteborg. Den andra

– Det är en av de största satsningarna någonsin i Mölndal på ett helt nytt näringslivsområde, säger Lisa Östman, planchef Mölndals stad.

i öster länkar mot Åbro och AstraZeneca i Mölndal och har mer blandat innehåll förklarar Lisa Östman.

Platsen är infrastrukturmässigt attraktiv och detaljplanen skapar goda förutsättningar för nya näringslivsetableringar, vilket gynnar hela regionen. Nu när detaljplanen är antagen, december 2022, står ett stort antal företag i begrepp att bygga och etablera sig och sin verksamhet i området.

Text: Per-Åke Hultberg

Foto: Stina Nilsson/Mölndals stad

Karta: Sweco

Ny översiktsplan – framtidens Mölndal i breda penseldrag

En ny översiktsplan för Mölndals stad, den första kommunövergripande sedan 2006, är just nu i slutfasen av en process mot antagande av kommunfullmäktige, en process som även innehållit medborgardialoger, samråd och granskning.

Genom översiktsplanen talar Mölndals stad om hur bebyggelse, markoch vattenanvändning kan utvecklas på lång sikt. Den är sedan vägledande för kommande detaljplaner och bygglov. Den nya planen blickar mot 2050 utan att ha det som ett givet slutmål, berättar Elisabet

Börlin, översiktsplanerare Mölndals stad. – Grundläggande ska den nya översiktsplanen visa hur kommunen ska växa på bästa sätt, så att alla, både privatpersoner och verksamheter, får ett fungerande vardagsliv med viktiga funktioner, säger Elisabet Börlin.

Den nya planen har sitt fokus på fortsatt förtätning av kommunens stationssamhällen. Det vill säga på komplettering med olika bostadstyper utifrån givna förutsättningar i främst Mölndal, Lindome och Kållered.

Planen pekar även på en möjlig förstärkning av Hällesåker med servicefunktioner och ny bostadsbebyggelse.

Även arbetsplatser ska förläggas inom

och i anslutning till befintliga områden och stadsdelar. Det vill säga inom den befintliga strukturen med redan utbyggd infrastruktur.

– Ambitionen är alltså att förädla och utveckla de områden vi redan har med ett varierat innehåll, i nya årsringar som dockar an det redan bebyggda, inifrån och ut. Här ser vi en gradvis utveckling med mixade områden. Till exempel att Åbro-området, som ligger mitt i Mölndal, nära innerstaden, utvecklas till mer av en blandstad, med både arbetsplatser, bostäder och service, säger Elisabet Börlin.

Text: Per-Åke Hultberg

Nya området Lunnagården byggs i optimalt logistik­ och skyltläge söder om Söderleden. En grön värdefull korridor kommer att bevaras mitt emellan den nya bebyggelsen.

Planområdet som ligger i anslutning till Söderleden och Sisjöns industriområde, innebär 155 000 kvadratmeter för nya verksamheter i Mölndal.

Det här är en översiktsplan:

• Alla kommuner ska ha en översiktsplan. Den anger hur kommunens mark och vatten ska användas samt hur bebyggelsen ska utvecklas i ett långsiktigt perspektiv.

• I översiktsplanen kan du bland annat se var nya bostads-, handels- och industriområden föreslås ligga i framtiden.

• Översiktsplanen ger vägledning för all detaljplanering som i sin tur ligger till grund för exempelvis beslut om bygglov.

18 HELA DENNA TIDNING ÄR EN ANNONS FRÅN MÖLNDALS STAD
Fakta Söderleden Sisjöns industriområde Åbro

Med arkitektur skapar vi en bättre stad för alla

Vi är det personliga och familjära arkitektkontoret som finns där våra kunder behöver oss.

Läs mer på fredblad.se

Från pappersbruk till ny stadsdel

Kraftverket får nytt liv

Det gamla fabriksområdet Forsåker med anrika Kvarnbyn som granne står inför en gigantisk omvandling. Forsen som i århundraden försörjt pappersbruket med kraft, kommer nu lyftas fram och få en framträdande roll i stadsmiljön. Även för att förse stadsdelens bostäder med el via eget kraftverk.

På en yta stor som 34 fotbollsplaner kommer en pulserande stadsmiljö här att växa fram. Det handlar om ett av de största stadsutvecklingsprojekten i Göteborgsregionen med på sikt uppemot 12 000 personer som bor och arbetar i stadsdelen. I väntan på byggstart pågår en helt nödvändig ombyggnad av Mölndalsån som rinner igenom området, främst för att förhindra framtida översvämningar.

– Tanken är att Mölndalsån ska lyftas fram och få en betydelsefull roll i stadsdelens framtida attraktionskraft och trivsel, säger Johan Lejonthun, projektledare på det kommunala bolaget MölnDala Fastighets AB, som tillsammans med

Trollängen Bostad AB har konkreta planer för fabriksområdets gamla vattenkraftverk. Det togs i drift 1896 och kom sedan att försörja pappersbruket med elkraft fram till 1988.

– Vi har nu planer på att återstarta kraftverket och då i ett första skede kunna försörja 1 000 lägenheter med närproducerad förnyelsebar el. På sikt förhoppningsvis stadsdelens samtliga 3 000 hushåll, säger Johan Lejonthun.

Tanken var först att använda den befintliga kraftverksbyggnaden men det visade sig inte vara möjligt. Den gamla stommen visade sig vara i alldeles för dåligt skick efter att ha förfallit under många år. Turbinen är för övrigt bortfraktad och måste alltså ersättas med en ny.

Byggnaden ska byggas upp igen så att den liknar den gamla.

– Nu väntar vi på besked att få återstarta kraftverket, säger Johan Lejonthun.

Under tiden pågår arbetet med att frilägga årännan. Tidigare har Mölndalsån till stor del runnit under mark genom fabriksområdet, överbyggd av en 200 meter lång betongplatta bebyggd med industrifastigheter. Åns vatten lyfts nu

fram i dagen och kommer om några år kunna erbjuda attraktiva mötesplatser vid vattnet. Bland annat ett torg med en större vattenspegel. Det tidigare forsande vattnet kommer efter ombyggnaden att flyta fram lugnare än i dag.

Utöver den synliga delen av Mölndalsån byggs två bypass-ledningar under jord så att den ovanpåliggande synliga delen inte får alltför stora vattenflöden genom stadsbebyggelsen. Ett viktigt syfte med de här åtgärderna är alltså att reglera vattnets hastighet, få en säkrare å och därmed förhindra framtida översvämningar.

Förhoppningsvis blir det nu som sagt även möjligt att ge nytt liv åt det gamla vattenkraftverket som skulle kunna producera el motsvarande vad som förbrukas inom delar av området. Och det mitt i en ny stadsbebyggelse med höga miljö- och hållbarhetsmål.

– Det är givetvis ett stort plus för alla dem som kommer att bosätta sig här i Forsåker. För att inte tala om de nya sköna vattenmiljöerna, avslutar Johan Lejonthun.

Text: Per-Åke Hultberg

Visionsbild: TMRW

Projektet är en del i utvecklingen av en tät och sammanhållen stadskärna som består av Mölndals innerstad, Forsåker och Kvarnbyn. Stadsdelen kommer att bestå av närmare 3 000 bostäder, antalet boende beräknas bli ca 6 000. Av bostäderna planeras en tredjedel bli hyresrätter. Det planeras också för ca 100 000 kvm bruttoarea för kontor, handel, service och kultur.

Läs mer på forsaker.se En första detaljplan, som omfattar ca två tredjedelar av området väntas bli antagen nu under våren.

Läs mer på: molndal.se/stadsbyggnad

20 HELA DENNA TIDNING ÄR EN ANNONS FRÅN MÖLNDALS STAD FORSÅKER
Fakta om Forsåker Här började papper tillverkas redan 1653.

BRF PRISMA, MÖLNDAL

LÄNGTA HEM TILL PRISMA!

Snart säljstartar vi brf Prisma. På Kämpegatan i Krokslätt skapar unik arkitektur nya möjligheter i en modern bostadsrättsförening.

Här planeras för ett sextiotal lägenheter, vissa i etage eller med loft. Garage under husen, tvattstudio, hobby-yta och utrymme för coworking, övernattning, festliga firanden med mera.

Anmäl ditt intresse för en inbjudan till säljstarten som planeras till kvartal 2, 2023! Välkommen att hitta hem!

LÄS MER OCH ANMÄL INTRESSE
SÄLJSTART VÅREN 2023

Pedagogen Park

Nya porten till Mölndal

Våren 2023 är det inflyttning i centrumkvarteret, en spektakulär huskropp, själva hjärtat i den nya gröna stadsdelen Pedagogen Park, nära innerstaden. Samtidigt som bygget av nya bostadskvarter fortsätter omvandlingen av stadsdelens gemensamma ytor med fokus gröna stråk och hållbart resande.

För tio år sedan började Mölndals stad och Aspelin Ramm Fastigheter skissa på möjligheten att utveckla en levande stadsdel med stort fokus på attraktiva miljöer för både boende och näringsliv.

– Det här är en stadsdel där vardagslivet nu ska ta plats på ett helt annat sätt än tidigare. Vi har velat skapa en stadsdel där allt finns, det ska vara lätt att gå eller ta cykeln till exempelvis förskolan i det gröna stråk som löper genom hela stadsdelen, berättar Frida Forsman, planarkitekt, Mölndals stad.

Målet har varit att skapa en stadsmiljö som på allvar minskar behovet av bil i vardagen och som premierar att åka kollektivt, gå eller cykla. Och precis så är det nu på väg att bli.

– Bifrostgatan har byggts om till stads-

gata för lägre hastigheter och vi kommer att bygga nytt bullerskydd. Nya passager knyter ihop olika stadsdelar och en helt ny gång- och cykelbana som ökar framkomligheten markant, berättar Daniel Nyqvist, projektledare tekniska förvaltningen, Mölndals stad.

Området som ligger drygt en kilometer från Mölndals innerstad med Åby Arenastad som nära granne, är unikt på flera sätt. Inte minst det faktum att hela området har sjudit av liv och rörelse i flera år, långt innan ett enda bostadshus varit på plats.

– Vi är jätteglada över det stora intresset att bosätta sig här, även att hyra lokaler för olika verksamheter, och det mitt i all osäkerhet på marknaden. Det känns fantastiskt inspirerande, säger Mathias Vårström, bygg- och projektchef på Aspelin Ramm Fastigheter, som varit med från starten för 2012.

De gamla skolbyggnaderna är i dag ett modernt företagscentrum med ett 40-tal olika verksamheter, totalt cirka 800 arbetsplatser. Här finns också skola med 300 elever. Alldeles intill, vid entrén till Pedagogen Park, är stadsdelens centrumkvarter snart färdigt att tas i bruk.

– De blir själva motorn, som ger liv och rörelse till hela stadsdelen, dygnet runt, påpekar Mathias Vårström.

Byggnaden har ritats av Wingårdh Arkitekter och är minst sagt ganska spektakulär med två våningar bostäder, 42 lägenheter, längst upp på våning fem och sex. Bottenplanet fylls med service och butiker som kompletterar det som redan finns, bland annat en ICA-butik. Där emellan blir det tre våningar garage.

”Nästan all allmän plats i stadsdelen kommer att ha gröna inslag”

– Vi har jobbat mycket aktivt med gestaltningen. Garagedelen kommer till exempel att döljas med en fasad inbäddad i grönska och med en stomme delvis i trä. Just miljöaspekten präglar hela stadsdelen, det gör även arkitekturen. Vi vill att allt vi bygger ska vara gestaltningsmässigt tilltalande, poängterar Mathias Vårström.

Alldeles intill centrumkvarteret byggs just nu en lika iögonenfallande kontorsbyggnad. Samtidigt bygger Aspelin Ramms 48 bostadsrätter med Änggårdsbergen i ryggen. Parallellt pågår flera andra bostadsprojekt med olika bygg-

aktörer, Skanska och OBOS Kärnhem på Aspelin Ramms sida om Bifrostgatan. Mölndals stad tog tidigt i processen fram en vision tillsammans med fastighetsutvecklaren Aspelin Ramm. Stadsdelen Pedagogen Park ska upplevas som en levande, grön, tillgänglig och välkomnande blandstad. Här blir den stora stadsdelsparken på cirka 6 000 kvm ett viktigt tillskott och en naturlig samlingspunkt i området. – Nästan all allmän plats i stadsdelen kommer att ha gröna inslag, vi planterar fler träd än vad som tidigare funnits i området. Den största skillnaden mot tidigare blir definitivt stadsdelsparken. Parken kommer att ha viss trädgårdskaraktär med både fruktträd och bärbuskar, det kommer finnas öppna ytor för lek och gemensamma uteplatser, berättar Kay Jägrud, projektledare på tekniska förvaltningen som jobbat många år med att planera och genomföra förändringen av allmän plats i området.

– Det vi gör tillsammans är verkligen stadsförnyelse på riktigt, en stadsdel med få liknande exempel. Målet är helt klart att skapa regionens bästa och mest trivsamma stadsdel, både för boende och företag, säger Mathias Vårström.

Text: Per-Åke Hultberg

Visionsbild: Wingårdhs

STADSUTVECKLING 22 HELA DENNA TIDNING ÄR EN ANNONS FRÅN MÖLNDALS STAD
Pedagogen Park, som ligger drygt en kilometer från Mölndals innerstad, är unik på flera sätt. Inte minst det faktum att stadsdelen har sjudit av liv och rörelse i flera år, långt innan ett enda bostadshus varit på plats.
Slut på tomater? Ta hissen ner till ICA. Eller upp till växthuset. Vill du bo på första våningen, fem våningar upp – med hiss direkt ner till ICA, takterrass med växthus och Änggårdsbergen runt knuten? Nu pågår försäljningen av unika lägenheter i Brf Växthuset i Pedagogen Park. Intresserad? Kontakta Pernilla Tilly Meijer på Bjurfors: Pernilla.t.meijer@bjurfors.se 031-733 20 27 Läs mer på pedagogenpark.se/brf-vaxthuset

Turn static files into dynamic content formats.

Create a flipbook
Issuu converts static files into: digital portfolios, online yearbooks, online catalogs, digital photo albums and more. Sign up and create your flipbook.