K22
Cestovni poklopci i slivne rešetke
Cestovni i mosni slivnici
Infrastrukturni, kabelski i specijalni poklopci
Sustav zaštite stabala
![]()
Cestovni poklopci i slivne rešetke
Cestovni i mosni slivnici
Infrastrukturni, kabelski i specijalni poklopci
Sustav zaštite stabala




Kada je potrebno primijeniti površinsku odvodnju vode?
n linijska i točkasta odvodnja n poklopci za okna n odvodnja sportskih objekata n sanitarna odvodnja n odvodnja u industriji
Kada je potrebno pročišćavati vodu?
n separatori lakih tekućina n separatori masnoća n uređaji za biološki tretman
n sanitarnih voda
n otacijski uređaji
Kada je potrebno zadržavati vodu?
n linijska odvodnja s integriranom retencijom n retencijski blokovi n protupovratne zaklopke n svjetlosna okna
Kada je potrebno infiltrirati vodu?
n retencijski blokovi n samostojeće prepumpne stanice n prepumpna okna
Integrirana rješenja za buduće klimatske uvjete








ACO Grupa jedan je od lidera na svjetskom tržištu po proizvodnji sustava za površinsku odvodnju. Klimatske promjene dovode nas oči u oči s brojnim izazovima kako bi ponudili kvalitetna i inovativna rješenja kao odgovor na novo nametnute ekološke uvjete okoline. Svojim integriranim pristupom, ACO se zalaže za profesionalnu odvodnju, ekonomično pročišćavanje, te kontrolirano otpuštanje i ponovno korištenje vode.
Odvodne sustave proizvodimo preradom od polimerbetona, nehrđajućeg čelika, vruće cinčanog čelika, lijevanog željeza, aluminija, armiranog betona, stakloplastike i plastike. Proizvodnja je temeljna na isključivo ekološki prihvatljivim procesima. Kreativnost i estetika kod nas se pišu velikim slovima. Tehničkim inovacijama uz naglašenu ekonomičnost razvijamo proizvode za suvremenu održivu gradnju.

5.200
zaposlenika u više od 47 zemalja (Europa, Amerika, Azija, Australija, Afrika)
1 Mlrd.
Eura prometa u 2021.
37
proizvodnih pogona u 18 zemalja


ACO Academy
Naše mjesto za razmjenu znanja i iskustava



Cestovni poklopci CityTop HR
Poklopac se može potpuno izvaditi što pogoduje neometanom održavanju
Moguće je koristiti uobičajene podizne poluge

CityTop® poklopac se može isporučiti izliven s izgledom po želji naručitelja
Okviri su izvedeni s utorima za ovješenje sakupljača nečistoća ili biofiltera
Svojim dimenzijama CityTop® okviri odgovaraju standardnim AB konusnim završecima kanalizacijskih okana (DIN 4034), ali se jednostavno mogu ugraditi i na AB rasteretne ploče plastičnih kanalizacijskih okana
Zbog kružnog oblika poklopci se ne mogu krivo orijentirati pri ugradnji, a penjalice u oknu uvijek ostaju lako dostupne
Oblik te povećane visina i masa okvira omogućavaju kvalitetniju ugradnju CityTop® poklopaca i asfaltnog zastora u punoj visini odmah do okvira


Mogućnost izgleda poklopca prema specifičnom zahtjevu naručitelja.




Poklopac
Svijetli otvor 605 mm, iz lijevanog željeza EN-GJS-500-7 (nodularni lijev), s/bez ventilacijskih otvora prema HRN EN 1242:2015








Cestovni poklopci CityTop HR Informacije o proizvodima
vrsta okvira
BEGUPLAN
za razrede opterećenja D400 / F900, iz lijevanog željeza EN-GJL-200 (sivi lijev) obloženog betonom C35/45, okrugli, visine 160 mm
BITUPLAN
za razred opterećenja D400, iz lijevanog željeza EN-GJL-200 (sivi lijev), okrugli, za ugradnju utiskivanjem u asfalt, visine 140 mm (visina ugradnje 150–200 mm) ili 160 mm (visina ugradnje 170–240 mm)
LIFT okrugli
za razred opterećenja D400, iz lijevanog željeza EN-GJL-200 (sivi lijev) obloženog betonom, okrugli, visine 125 mm
LIFT kvadratni
za razrede opterećenja D400 / F900, iz lijevanog željeza EN-GJL-200 (sivi lijev) obloženog betonom C35/45, kvadratni, visine 125 mm
VG
za razred opterećenja D400, iz lijevanog željeza EN-GJL-200 (sivi lijev), okrugli, visine 125 mm
FIX
za razred opterećenja D400, iz lijevanog željeza EN-GJL-200 (sivi lijev), okrugli, visine 150 mm
Cestovni poklopci CityTop HR
Informacije o proizvodima
više za infrastrukturu budućnosti
Razred opterećenja
n A15
n B125 n C250 n D400 n E600 n F900 prema HRN EN 124 i RAL-GZ 692
Materijal
n lijevano željezo EN-GJS / EN-GJL n beton C35/45
Mjesta primjene
n pješačke zone, biciklističke staze
n javni prostori i trgovi
n cestovna odvodnja n industrijske zone i terminali n zračne luke
visoko prijanjanje bez obzira na ugradnju i smjer vožnje zbog profilirane površine

visina reljefa površine od 5 mm doprinosi protukliznosti poklopca


4 utora za stabilizaciju poklopca od rotacije

Cestovni poklopci CityTop HR
svi okviri izvedeni su s utorom za prihvat čeličnog oslonca za pomoć prilikom silaska u okno



dostupni su i poklopci s ventilacijskim otvorima, prema zahtjevu
masivni elastomerni uložak, smješten u utor u okviru smanjuje trošenje, prijenos vibracija i buku
2 kopče na ulošku trajno ga stabiliziraju i brinu da ostane u svome ležištu
strojno obrađeno ležište elastomernog uloška, za optimalno nalijeganje poklopca

2 pune TPU kopče za zaključavanje poklopca ne zahtijevaju održavanje i u potpunosti osiguravaju poklopac od iskakanja uslijed prometa

jednostavna ugradnja u prometnicu zbog kružnog oblika poklopca, neovisna o smjeru vožnje
Cestovni poklopci CityTop HR
Masivni elastomerni uložak kao treći, najmekši element, smješten između poklopca i okvira, preuzima habanje dodirnih površina te ublažava prijenos vibracija i smanjuje količinu buke

PEWEPREN uložak protiv lupanja od SBR gume tvrdoće 93 (Shore A), debljine 10 mm, stabiliziran je mehaničkim utiskivanjem kopči uloška. Ležište je prethodno strojno obrađeno čime se osigurava optimalno nalijeganje. Moguća je zamjena bez mogućnosti ispadanja.

TPU kopče za zaključavanje izrađene su od masivnog TPU poliuretana tvrdoće 90 (Shore A) radi smanjenja nastanka buke jer se izbjegava dodir metala u metal.
Cestovni poklopci CityTop HR Informacije o proizvodima
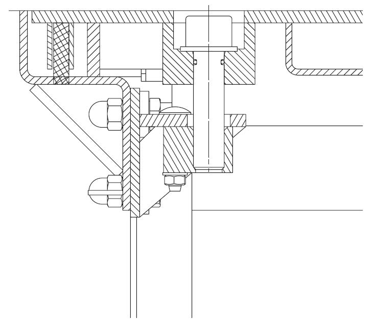
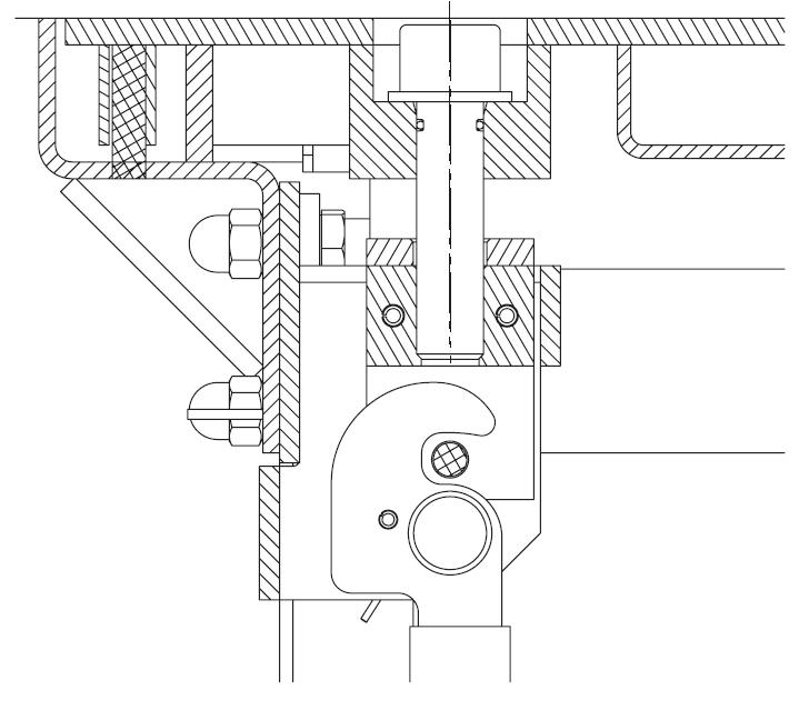
Integrirani sustav za pomoć prilikom silaska u okno
Kanalizacijsko okno je najčešći tip zatvorenog prostora u koji izvođači radova, prilikom radova na prometnicama, mogu ulaziti. Osiguravanjem jednostavnog pristupa u revizijsko okno povećava se sigurnost.

Bez smetnji za lagano otvaranje i zatvaranje CityTop ® HR poklopca, sustav za pomoć pri silasku daje izvođaču radova odgovarajuću potporu koja zadovoljava sve sigurnosne zahtjeve.
ACO CityTop ® HR okviri opremljeni su integriranim sustavom za pomoć prilikom silaska u okno. U utor na okviru čvrsto se uglavljuje čelični oslonac koji izvođaču radova pruža potporu prilikom silaska i izlaza iz kanalizacijskog okna.

Cestovni poklopci CityTop HR
Važan zadatak kod planiranja, izgradnje i održavanja cesta je prepoznati sve veće zahtjeve nastale povećanjem intenziteta i brzina prometovanja, ali i probleme (narušena sigurnost, onečišćenje) koji nastaju smanjenjem protočnosti uslijed zatvaranja dijela ili cijele prometnice zbog oštećenja ili radova sanacije, te izbjeći takve slabe točke.
S ekonomskog gledišta cestu treba promatrati kao cjelokupni sustav. Savršeni asfaltni slojevi nisu od koristi ako su zbog oštećenih poklopaca okana, kratko nakon otvaranja nove prometnice, potrebne mjere obnove. Kolnik prometnice pretvara se u pokrivač od zakrpa.
Ispravan odabir poklopaca i njihova profesionalna ugradnja presudni su za trajnost konstrukcije. Spoj krune okna i okvira poklopca je prva slaba točka. Uz to, kod standardne konstrukcije okna, okvir poklopca okna manjeg je promjera od samoga okna. Još jedna slaba točka. Stoga se opterećenje prometnice uz okno prenosi na okno. U usporedbi s površinom ceste, nosiva ploča okna je kruta i vibrira pod prometom. Rezultat su pukotine na području oko poklopca okna.

oštećenje

Pukotine na standardnim poklopcima okana uzrokovane vibracijama i udarima
Rasterećenje i trajnost spojnog morta može se postići povećanjem površine dosjeda okvira. U slučaju korištenja skupih habajućih slojeva asfalta (asfaltbetoni za vrlo tanke slojeve - BBTM, bitumenske mješavine od splitmastiksasfalta SMA ili bitumenske mješavine od poroznog asfalta PA), naknadna ugradnja novih zakrpa nije uvijek ekonomična niti učinkovita. Ovdje su razumna alternativa poklopci okana s velikom dodirnom površinom okvira. Opterećenje spoja s oknom smanjuje se
proporcionalno veličini dodirne površine. Zapravo se u detalju događa više: poklopac je čvrsto postavljen na duboku strukturu okna. U usporedbi s krutom strukturom, površina ceste pod prometom relativno snažno vodoravno vibrira. Međutim, više se okvir ne oslanja na okno kao kod standardne konstrukcije, već se može vodoravno pomicati po okomitom vanjskom oblogu okna bez ikakvih posljedičnih oštećenja. Spoj je trajno elastičan zahvaljujući brtvljenju spoja.


povećani okvir: vanjski promjer Ø960 mm, visina okvira 160 mm
Cestovni poklopci CityTop HR Informacije o proizvodima
za trajnu sigurnost prometnice







Trajno elastični spoj brtvi i spriječava prodiranje vode te nastanak oštećenja uslijed smrzavanja.
Odvajanje od kolnika omogućeno je bočnim spojem koji izolira okvir poklopca i okno od vibrirajuće površine kolnika. Time se spriječava nastanak pukotina u asfaltnom zastoru.
Rasterećenje podložnog morta
Beguplan
uobičajeni okviri
Pritisak Beguplan okvira na dosjednu površinu iznosi najviše 0,96 N/mm2
Pritisak na dosjednu površinu prema HRN EN 124-2:2015 ograničen je na 7,5 N/mm2
Rasterećenje podložnog morta od ca. 60%
Smanjeni pritisak Posmična opterećenja koja proizlaze iz sila kočenja i ubrzanja bolje su raspoređena na okolnu površinu zahvaljujući većem promjeru okvira.
Cestovni poklopci CityTop HR
Informacije o proizvodima
Zaštitni pokrov privremeno prekriva okno te sprječava urušavanje asfaltne mješavine tijekom asfaltiranja


Teleskopski prsten neizravno povezuje samonivelirajući Bituplan ® okvir i okno, ne prenoseći pritom sile na okno
Instalacijski kalup omogućuje oblikovanje otvora u habajućem sloju asfalta u koji se ubacuje okvir s poklopcem


CityTop sustav Bituplan ®

Okvir i poklopac samonivelirajući Bituplan ® okvir sa CityTop ® poklopcem
Standardni poklopac
Cestovni poklopci CityTop HR Informacije o proizvodima
Ugradnja ACO Bituplan ® poklopca
Optimalni slijed ugradnje primjenjiv je na svim prometnicama neovisno o debljinama izvedenih slojeva. Gornji rub okna ili rasteretne AB ploče postavlja se od 150 do 200 mm ispod kote habajućeg sloja. Unutarnji promjer okna ili rasteretne AB ploče ne smije biti veći od 700 mm.


Postaviti teleskopski prsten na gornji rub okna ili rasteretne AB ploče te ga učvrstiti za okno kako bi se izbjeglo horizontalno pomicanje prstena (sidrenje u 4 točke).
Zatvoriti teleskopski prsten zaštitnim pokrovom pazeći pritom da se zaštitni pokrov nalazi ispod razine razastiranja nosivog asfaltnog sloja.

Zapuniti nastalu prazninu asfaltnom mješavinom, poravnati ju uz rub instalacijskog kalupa te ju predzbiti vibro pločom. Oprezno ukloniti instalacijski kalup iz predzbijenog habajućeg sloja, ostavljajući pravilan otvor u asfaltu.


Položiti i uvaljati nosivi sloj valjkom dok je zaštitni pokrov još na teleskopskom prstenu pa po završetku valjanja osloboditi zaštitni pokrov. Položiti habajući sloj asfalta preko zaštitnog pokrova. Očistiti višak asfaltne mješavine sa zaštitnog pokrova te ukloniti zaštitni pokrov s teleskopskog prstena. Postaviti instalacijski kalup na teleskopski prsten.

Ubaciti okvir s poklopcem u otvor u asfaltu te ga vibro pločom utisnuti u razinu s povučenim habajućim slojem. Uvaljati sve zajedno - okolni habajući sloj asfalta i okvir s poklopcem - koristeći valjak, do potrebne zbijenosti.
Nakon valjanja habajućeg sloja, instalirani poklopac je postavljen u razini s habajućim slojem asfalta. Istovremeno se, zbog svojstava samoniveliranja, okvir oslanja na habajući sloj te uslijed eventualnog slijeganja terena uz okno prati slijeganje habajućeg sloja i ostaje u razini s njim. Dinamičke sile uslijed prometa ne prenose se izravno na okno.
ACO prednosti proizvoda
n Tih: bez lupanja, zahvaljujući masivnom PEWEPREN ulošku i njegovom strojno obrađenom ležištu u okviru
n Protuklizan: visina reljefa površine osigurava visoko prijanjanje, neovisno o smjeru ugradnje
n poklopac iz nodularnog lijeva EN-GJS-500-7
n povećana masa samog poklopca ca. 56 kg
n okvir povećanog promjera i visine, iz sivog lijeva EN-GJL-200 obloženog betonom C35/45
n okvir izveden s utorom za prihvat oslonca za siguran i olakšan silazak u okno
n okvir s utorima za ovješenje sakupljača nečistoće ili biofiltera
n siguran za promet zahvaljujući povećanoj masi poklopca i zaključavanju punim TPU kopčama visoke tvrdoće
n Prema propisima o kvaliteti i osiguranju kvalitete RAL-GZ 692
n Poklopci prema HRN EN 124-2:2015
n Okvir obložen betonom povećanog promjera, mase i visine za stabilnost i smanjeni pritisak


Visina okvira
Ventilacijski otvori
Masa poklopca Ukupna masa
Razred opterećenja Art.br. [mm] [kg] [kg]

Hibridni biofilter za uklanjanje neugodnih mirisa
n s EPDM brtvom na dosjedu

Kanta za hvatanje nečistoća n pocinčani čelik
n s ovjesom za umetanje u okvir


Oslonac za pomoć pri silasku n nehrđajući čelik
Set za ugradnju n Sastoji se od: o 3 nosača o 3 podložne pločice o 1 imbus ključ o 1 okasti ključ
Elastomerni uložak
n 436,9 x 29 mm (d x š)
n sve okvire iz programa CityTop HR i Multitop BEGU
n sve okvire iz programa CityTop HR i Multitop BEGU
n sve okvire iz programa CityTop HR i Multitop BEGU
n za ugradnju poklopaca sustava Beguplan
n sve okvire iz programa CityTop HR i Multitop BEGU
ACO prednosti proizvoda
n Tih: bez lupanja, zahvaljujući masivnom
PEWEPREN ulošku i njegovom strojno obrađenom ležištu u okviru
n Protuklizan: visina reljefa površine osigurava visoko prijanjanje, neovisno o smjeru ugradnje
n poklopac iz nodularnog lijeva EN-GJS-500-7
n povećana masa samog poklopca ca. 56 kg
n okvir iz sivog lijeva EN-GJL-200
n samonivelirajući okvir s teleskopskim prstenom za neizravni spoj s oknom
n okvir izveden s utorom za prihvat oslonca za siguran i olakšan silazak u okno
n okvir s utorima za ovješenje sakupljača nečistoće ili biofiltera
n teleskopski prsten iz nodularnog lijeva EN-GJS-500-7
n siguran za promet zahvaljujući povećanoj masi poklopca i zaključavanju punim TPU kopčama visoke tvrdoće
Visina ugradnje: 150 – 200 mm
n Prema propisima o kvaliteti i osiguranju kvalitete RAL-GZ 692
n Poklopci prema HRN EN 124-2:2015
n Za izravnu ugradnju u asfaltni zastor

Visina okvira Ventilacijski otvori Masa poklopca Ukupna masa
Razred opterećenja Art.br. [mm] [kg] [kg]
Visina ugradnje: 170 – 240 mm
Visina okvira Ventilacijski otvori Masa poklopca Ukupna masa
Razred opterećenja Art.br. [mm] [kg] [kg]

Hibridni biofilter za uklanjanje neugodnih mirisa n s EPDM brtvom na dosjedu



Kanta za hvatanje nečistoća n pocinčani čelik n s ovjesom za umetanje u okvir
Oslonac za pomoć pri silasku n nehrđajući
Instalacijski kalup
Elastomerni uložak
x
ACO prednosti proizvoda
n Tih: bez lupanja, zahvaljujući masivnom
PEWEPREN ulošku i njegovom strojno obrađenom ležištu u okviru
n Protuklizan: visina reljefa površine osigurava visoko prijanjanje, neovisno o smjeru ugradnje
n poklopac iz nodularnog lijeva EN-GJS-500-7
n povećana masa samog poklopca ca. 56 kg
n okvir iz sivog lijeva EN-GJL-200 obloženog betonom C35/45
n okvir izveden s utorom za prihvat oslonca za siguran i olakšan silazak u okno
n okvir s utorima za ovješenje sakupljača nečistoće ili biofiltera
n siguran za promet zahvaljujući povećanoj masi poklopca i zaključavanju punim TPU kopčama visoke tvrdoće
n Prema propisima o kvaliteti i osiguranju kvalitete RAL-GZ 692
n Poklopci prema HRN EN 124-2:2015
n Okvir obložen betonom povećane mase za stabilnost i smanjeni pritisak

Visina okvira
Ventilacijski otvori
Masa poklopca Ukupna masa
Razred opterećenja Art.br. [mm] [kg] [kg]
Poklopci CityTop HR D400 Svijetli otvor:
Visina okvira Ventilacijski
Masa poklopca Ukupna masa Razred opterećenja Art.br. [mm] [kg] [kg]
otvori

Hibridni biofilter za uklanjanje neugodnih mirisa n s EPDM brtvom na dosjedu



Kanta za hvatanje nečistoća
n pocinčani čelik n s ovjesom za umetanje u okvir
Oslonac za pomoć pri silasku n nehrđajući čelik
Klinovi n za postavljanje i podešavanje okvira na konstrukciju okna (prema DIN 4034 T1)
Elastomerni uložak n 436,9 x 29 mm (d x š)
ACO prednosti proizvoda
n Tih: bez lupanja, zahvaljujući masivnom
PEWEPREN ulošku i njegovom strojno obrađenom ležištu u okviru
n Protuklizan: visina reljefa površine osigurava visoko prijanjanje, neovisno o smjeru ugradnje
n poklopac iz nodularnog lijeva EN-GJS-500-7
n povećana masa samog poklopca ca. 56 kg
n okvir iz sivog lijeva EN-GJL-200 obloženog betonom C35/45
n okvir izveden s utorom za prihvat oslonca za siguran i olakšan silazak u okno
n okvir s utorima za ovješenje sakupljača nečistoće ili biofiltera
n siguran za promet zahvaljujući povećanoj masi poklopca i zaključavanju punim TPU kopčama visoke tvrdoće
n Prema propisima o kvaliteti i osiguranju kvalitete RAL-GZ 692
n Poklopci prema HRN EN 124-2:2015
n Okvir obložen betonom povećane mase za stabilnost i smanjeni pritisak

Visina okvira Ventilacijski otvori Masa poklopca Ukupna masa
Razred opterećenja Art.br. [mm] [kg] [kg]

Hibridni biofilter za uklanjanje neugodnih mirisa
n s EPDM brtvom na dosjedu



Kanta za hvatanje nečistoća n pocinčani čelik
n s ovjesom za umetanje u okvir
Oslonac za pomoć pri silasku n nehrđajući čelik
Klinovi n za postavljanje i podešavanje okvira na konstrukciju okna (prema DIN 4034 T1)
n sve okvire iz programa CityTop HR i Multitop BEGU
n sve okvire iz programa CityTop HR i Multitop BEGU
Elastomerni uložak
n 436,9 x 29 mm (d x š)
n sve okvire iz programa CityTop HR i Multitop BEGU
n tip A, za visinu zazora 25-35 mm
n tip B, za visinu zazora 45-55 mm
n sve okvire iz programa CityTop HR i Multitop BEGU
ACO prednosti proizvoda
n Tih: bez lupanja, zahvaljujući masivnom
PEWEPREN ulošku i njegovom strojno obrađenom ležištu u okviru
n Protuklizan: visina reljefa površine osigurava visoko prijanjanje, neovisno o smjeru ugradnje
n poklopac iz nodularnog lijeva EN-GJS-500-7
n povećana masa samog poklopca ca. 56 kg
n okvir iz sivog lijeva EN-GJL-200, ravne bočne stjenke
n okvir izveden s utorom za prihvat oslonca za siguran i olakšan silazak u okno
n okvir s utorima za ovješenje sakupljača nečistoće ili biofiltera
n siguran za promet zahvaljujući povećanoj masi poklopca i zaključavanju punim TPU kopčama visoke tvrdoće
n Prema propisima o kvaliteti i osiguranju kvalitete RAL-GZ 692
n Poklopci prema HRN EN 124-2:2015
n Okvir ravne bočne stjenke, za kvalitetniju ugradnju asfaltnih slojeva

Visina okvira
Ventilacijski otvori
Masa poklopca Ukupna masa
Razred opterećenja Art.br. [mm] [kg] [kg]

Hibridni biofilter za uklanjanje neugodnih mirisa
n s EPDM brtvom na dosjedu



Kanta za hvatanje nečistoća n pocinčani čelik
n s ovjesom za umetanje u okvir
Oslonac za pomoć pri silasku n nehrđajući čelik
Klinovi n za postavljanje i podešavanje okvira na konstrukciju okna (prema DIN 4034 T1)
n sve okvire iz programa CityTop HR i Multitop BEGU
n sve okvire iz programa CityTop HR i Multitop BEGU
Elastomerni uložak
n 436,9 x 29 mm (d x š)
n sve okvire iz programa CityTop HR i Multitop BEGU
n tip A, za visinu zazora 25-35 mm
n tip B, za visinu zazora 45-55 mm
n sve okvire iz programa CityTop HR i Multitop BEGU
ACO prednosti proizvoda
n Tih: bez lupanja, zahvaljujući masivnom
PEWEPREN ulošku i njegovom strojno obrađenom ležištu u okviru
n Protuklizan: visina reljefa površine osigurava visoko prijanjanje, neovisno o smjeru ugradnje
n poklopac iz nodularnog lijeva EN-GJS-500-7
n povećana masa samog poklopca ca. 56 kg
n povišeni okvir iz sivog lijeva EN-GJL-200, s dosjednom stopom
n okvir izveden s utorom za prihvat oslonca za siguran i olakšan silazak u okno
n okvir s utorima za ovješenje sakupljača nečistoće ili biofiltera
n siguran za promet zahvaljujući povećanoj masi poklopca i zaključavanju punim TPU kopčama visoke tvrdoće
n Prema propisima o kvaliteti i osiguranju kvalitete RAL-GZ 692
n Poklopci prema HRN EN 124-2:2015
n Standardni okvir s dosjednom stopom povećane visine, za kvalitetniju ugradnju i smanjeni pritisak

Visina okvira
Ventilacijski otvori
Masa poklopca Ukupna masa
Razred opterećenja Art.br. [mm] [kg] [kg]

Hibridni biofilter za uklanjanje neugodnih mirisa
n s EPDM brtvom na dosjedu



Kanta za hvatanje nečistoća n pocinčani čelik
n s ovjesom za umetanje u okvir
Oslonac za pomoć pri silasku n nehrđajući čelik
Klinovi n za postavljanje i podešavanje okvira na konstrukciju okna (prema DIN 4034 T1)
n sve okvire iz programa CityTop HR i Multitop BEGU
n sve okvire iz programa CityTop HR i Multitop BEGU
Elastomerni uložak
n 436,9 x 29 mm (d x š)
n sve okvire iz programa CityTop HR i Multitop BEGU
n tip A, za visinu zazora 25-35 mm
n tip B, za visinu zazora 45-55 mm
n sve okvire iz programa CityTop HR i Multitop BEGU
ACO prednosti proizvoda
n Tih: bez lupanja, zahvaljujući masivnom
PEWEPREN ulošku i njegovom strojno obrađenom ležištu u okviru
n Protuklizan: visina reljefa površine osigurava visoko prijanjanje, neovisno o smjeru ugradnje
n poklopac iz nodularnog lijeva EN-GJS-500-7
n površina upoja slivnog poklopca 1198 cm2
n okvir iz sivog lijeva EN-GJL-200, obloženog betonom C35/45
n okvir izveden s utorom za prihvat oslonca za siguran i olakšan silazak u okno
n okvir s utorima za ovješenje sakupljača nečistoće ili biofiltera
n siguran za promet zahvaljujući zaključavanju punim TPU kopčama visoke tvrdoće
n Prema propisima o kvaliteti i osiguranju kvalitete RAL-GZ 692
n Poklopci prema HRN EN 124-2:2015
n Okvir obložen betonom povećane mase za stabilnost i smanjeni pritisak

Visina okvira Ventilacijski otvori Masa poklopca Ukupna masa
Razred opterećenja Art.br. [mm] [kg] [kg]

Hibridni biofilter za uklanjanje neugodnih mirisa
n s EPDM brtvom na dosjedu



Kanta za hvatanje nečistoća n pocinčani čelik
n s ovjesom za umetanje u okvir
Oslonac za pomoć pri silasku n nehrđajući čelik
Klinovi n za postavljanje i podešavanje okvira na konstrukciju okna (prema DIN 4034 T1)
n sve okvire iz programa CityTop HR i Multitop BEGU
n sve okvire iz programa CityTop HR i Multitop BEGU
Elastomerni uložak
n 436,9 x 29 mm (d x š)
n sve okvire iz programa CityTop HR i Multitop BEGU
n tip A, za visinu zazora 25-35 mm
n tip B, za visinu zazora 45-55 mm
n sve okvire iz programa CityTop HR i Multitop BEGU
ACO prednosti proizvoda
n Tih: bez lupanja, zahvaljujući masivnom
PEWEPREN ulošku i njegovom strojno obrađenom ležištu u okviru
n Protuklizan: visina reljefa površine osigurava visoko prijanjanje, neovisno o smjeru ugradnje
n poklopac iz nodularnog lijeva EN-GJS-500-7
n povećana masa samog poklopca ca. 74 kg
n okvir iz sivog lijeva EN-GJL-200
n samonivelirajući okvir s teleskopskim prstenom za neizravni spoj s oknom
n okvir izveden s utorom za prihvat oslonca za siguran i olakšan silazak u okno
n okvir s utorima za ovješenje sakupljača nečistoće
n teleskopski prsten visine 100 mm
n siguran za promet zahvaljujući povećanoj masi poklopca i zaključavanju punim TPU kopčama visoke tvrdoće
n Prema propisima o kvaliteti i osiguranju kvalitete RAL-GZ 692
n Poklopci prema HRN EN 124-2:2015
n Za izravnu ugradnju u asfaltni zastor

Visina okvira
Ventilacijski otvori
Masa poklopca Ukupna masa
Razred opterećenja Art.br. [mm] [kg] [kg]



Kanta za hvatanje nečistoća
n pocinčani čelik
n s ovjesom za umetanje u okvir n sve okvire iz programa CityTop HR 800
Oslonac za pomoć pri silasku n nehrđajući čelik n sve okvire iz programa CityTop HR i Multitop BEGU
Instalacijski kalup n za ugradnju poklopaca sustava Bituplan 800
ACO prednosti proizvoda
n Tih: bez lupanja, zahvaljujući masivnom
PEWEPREN ulošku i njegovom strojno obrađenom ležištu u okviru
n Protuklizan: visina reljefa površine osigurava visoko prijanjanje, neovisno o smjeru ugradnje
n poklopac iz nodularnog lijeva EN-GJS-500-7
n povećana masa samog poklopca ca. 74 kg
n okvir iz sivog lijeva EN-GJL-200, ravne bočne stjenke
n okvir izveden s utorom za prihvat oslonca za siguran i olakšan silazak u okno
n okvir s utorima za ovješenje sakupljača nečistoće
n siguran za promet zahvaljujući povećanoj masi poklopca i zaključavanju punim TPU kopčama visoke tvrdoće
n Prema propisima o kvaliteti i osiguranju kvalitete RAL-GZ 692
n Poklopci prema HRN EN 124-2:2015
n Okvir ravne bočne stjenke, za kvalitetniju ugradnju asfaltnih slojeva

Visina okvira
Ventilacijski otvori
Masa poklopca Ukupna masa
Razred opterećenja Art.br. [mm] [kg] [kg]

Kanta za hvatanje nečistoća n pocinčani čelik n s ovjesom za umetanje u okvir


n sve okvire iz programa CityTop HR 800
Oslonac za pomoć pri silasku n nehrđajući čelik n sve okvire iz programa CityTop HR i Multitop BEGU
Klinovi n za postavljanje i podešavanje okvira na konstrukciju okna (prema DIN 4034 T1)
n tip A, za visinu zazora 25-35 mm
n tip B, za visinu zazora 45-55 mm
ACO prednosti proizvoda
n Tih: bez lupanja, zahvaljujući masivnom
PEWEPREN ulošku i njegovom strojno obrađenom ležištu u poklopcu
n Protuklizan: visina reljefa površine osigurava visoko prijanjanje, neovisno o smjeru ugradnje
n poklopac iz sivog lijeva EN-GJL-200
n velika masa samog poklopca ca. 80 kg
n rebrasti okvir iz sivog lijeva EN-GJL-200
s utorima za izravnu ugradnju u beton i sidrenje
n vodotijesan pri atmosferskom tlaku
n siguran za promet pri najvišim brzinama zahvaljujući velikoj masi poklopca i vijčanom zaključavanju u 3 točke
n Vijčano zaključavanje u 3 točke je brtvljeno i opremljeno zaštitnom kapicom protiv nečistoće
n Poklopci prema HRN EN 124-2:2015
n Rebrasti okvir s utorima za ugradnju u beton i sidrenje

Vijčano zaključavanje

Masa poklopca Ukupna masa
Razred opterećenja Art.br. [mm] [kg] [kg]



Set za vijčano zaključavanje
Sastoji se od:
n 3 vijka
n 3 podložne pločice
n 3 brtve vijka



Zaštitna kapica zaključavanja n protiv nečistoće
PEWEPREN uložak n zamjenski uložak protiv lupanja n za poklopce Multitop TNL
Ključ za otvaranje n veličina 18/22 mm n sva zaključavanja na poklopcima iz programa CityTop HR, CityTop M i Multitop
ACO prednosti proizvoda
n Tih: bez lupanja, zahvaljujući masivnom
PEWEPREN ulošku i njegovom strojno obrađenom ležištu u okviru
n Protuklizan: visina reljefa površine osigurava visoko prijanjanje, neovisno o smjeru ugradnje
n poklopac iz nodularnog lijeva EN-GJS-500-7
n povećana masa samog poklopca ca. 56 kg
n okvir povećanog promjera i visine, iz sivog lijeva EN-GJL-200 obloženog betonom C35/45
n okvir izveden s utorom za prihvat oslonca za siguran i olakšan silazak u okno
n okvir s utorima za ovješenje sakupljača nečistoće ili biofiltera
n siguran za promet zahvaljujući povećanoj masi poklopca i zaključavanju punim TPU kopčama visoke tvrdoće
n Prema propisima o kvaliteti i osiguranju kvalitete RAL-GZ 692
n Poklopci prema HRN EN 124-2:2015
n Okvir obložen betonom povećanog promjera, mase i visine za stabilnost i smanjeni pritisak


Visina okvira
Ventilacijski otvori Masa poklopca Ukupna masa
Razred opterećenja Art.br. [mm] [kg] [kg]

Hibridni biofilter za uklanjanje neugodnih mirisa
n s EPDM brtvom na dosjedu

Kanta za hvatanje nečistoća n pocinčani čelik
n s ovjesom za umetanje u okvir


Oslonac za pomoć pri silasku n nehrđajući čelik
Set za ugradnju n Sastoji se od: o 3 nosača o 3 podložne pločice o 1 imbus ključ
o 1 okasti ključ
Elastomerni uložak
n 436,9 x 29 mm (d x š)
n sve okvire iz programa CityTop HR i Multitop BEGU
n sve okvire iz programa CityTop HR i Multitop BEGU
n sve okvire iz programa CityTop HR i Multitop BEGU
n za ugradnju poklopaca sustava Beguplan
n sve okvire iz programa CityTop HR i Multitop BEGU
ACO prednosti proizvoda
n Tih: bez lupanja, zahvaljujući masivnom
PEWEPREN ulošku i njegovom strojno obrađenom ležištu u okviru
n Protuklizan: visina reljefa površine osigurava visoko prijanjanje, neovisno o smjeru ugradnje
n poklopac iz nodularnog lijeva EN-GJS-500-7
n povećana masa samog poklopca ca. 56 kg
n BEGU okvir iz sivog lijeva EN-GJL-200 obloženog betonom C35/45
n okvir izveden s utorom za prihvat oslonca za siguran i olakšan silazak u okno
n okvir s utorima za ovješenje sakupljača nečistoće ili biofiltera
n siguran za promet zahvaljujući povećanoj masi poklopca i zaključavanju punim TPU kopčama visoke tvrdoće
n Prema propisima o kvaliteti i osiguranju kvalitete RAL-GZ 692
n Poklopci prema HRN EN 124-2:2015
n Okvir obložen betonom povećane mase za stabilnost i smanjeni pritisak

Visina okvira
Ventilacijski otvori
Masa poklopca Ukupna masa
Razred opterećenja Art.br. [mm] [kg] [kg]

Hibridni biofilter za uklanjanje neugodnih mirisa
n s EPDM brtvom na dosjedu



Kanta za hvatanje nečistoća n pocinčani čelik n s ovjesom za umetanje u okvir
Oslonac za pomoć pri silasku n nehrđajući čelik
Klinovi n za postavljanje i podešavanje okvira na konstrukciju okna (prema DIN 4034 T1)
n sve okvire iz programa CityTop HR i Multitop BEGU
n sve okvire iz programa CityTop HR i Multitop BEGU
Elastomerni uložak
n 436,9 x 29 mm (d x š)
n sve okvire iz programa CityTop HR i Multitop BEGU
n tip A, za visinu zazora 25-35 mm
n tip B, za visinu zazora 45-55 mm
n sve okvire iz programa CityTop HR i Multitop BEGU
ACO prednosti proizvoda
n Tih: bez lupanja, zahvaljujući masivnom
PEWEPREN ulošku stabiliziranom trnovima u ležištu uloška u okviru
n Protuklizan: visina reljefa površine osigurava visoko prijanjanje, neovisno o smjeru ugradnje
n poklopac iz nodularnog lijeva EN-GJS-500-7
n masa samog poklopca ca. 42 kg
n okvir iz sivog lijeva EN-GJL-200
n samonivelirajući okvir s teleskopskim prstenom za neizravni spoj s oknom
n okvir s utorima za ovješenje sakupljača nečistoće ili biofiltera
n teleskopski prsten iz nodularnog lijeva
EN-GJS-500-7
n zaključavanje profiliranim TPU kopčama visoke tvrdoće
Visina ugradnje: 150 – 200 mm
okvira
n Prema propisima o kvaliteti i osiguranju kvalitete RAL-GZ 692
n Poklopci prema HRN EN 124-2:2015
n Za izravnu ugradnju u asfaltni zastor


Ventilacijski otvori Masa poklopca Ukupna masa
Razred opterećenja Art.br. [mm] [kg] [kg]
Visina ugradnje: 170 – 240 mm

Visina okvira Ventilacijski otvori Masa poklopca Ukupna masa
Razred opterećenja Art.br. [mm] [kg] [kg]

Hibridni biofilter za uklanjanje neugodnih mirisa n s EPDM brtvom na dosjedu

Kanta za hvatanje nečistoća n pocinčani čelik n s ovjesom za umetanje u okvir

ACO prednosti proizvoda
n Tih: bez lupanja, zahvaljujući masivnom neprekinutom PEWEPREN ulošku u ležištu uloška u okviru
n Protuklizan: visina reljefa površine osigurava visoko prijanjanje, neovisno o smjeru ugradnje
n poklopac iz nodularnog lijeva EN-GJS-500-7
n masa samog poklopca ca. 42 kg
n okvir s dosjednom stopom iz sivog lijeva EN-GJL-200
n zaključavanje profiliranim TPU kopčama visoke tvrdoće


n Prema propisima o kvaliteti i osiguranju kvalitete RAL-GZ 692
n Poklopci prema HRN EN 124-2:2015
n Standardni okvir s dosjednom stopom

ACO prednosti proizvoda
n Tih: bez lupanja, zahvaljujući masivnom neprekinutom PEWEPREN ulošku u ležištu uloška u okviru
n Protuklizan: visina reljefa površine osigurava visoko prijanjanje, neovisno o smjeru ugradnje
n poklopac iz nodularnog lijeva EN-GJS-500-7
n masa samog poklopca ca. 16 kg
n površina upoja slivnog poklopca 374 cm2
n okvir s dosjednom stopom iz sivog lijeva EN-GJL-200
n zaključavanje s profiliranim TPU kopčama visoke tvrdoće
n Prema propisima o kvaliteti i osiguranju kvalitete RAL-GZ 692
n Poklopci prema HRN EN 124-2:2015
n Standardni okvir s dosjednom stopom

Masa poklopca Ukupna masa
Razred opterećenja Art.br. [mm] [kg] [kg]

ACO prednosti proizvoda
n Tih: bez lupanja, zahvaljujući masivnom
PEWEPREN ulošku i njegovom strojno obrađenom ležištu u okviru
n Protuklizan: visina reljefa površine osigurava visoko prijanjanje, neovisno o smjeru ugradnje
n poklopac iz nodularnog lijeva EN-GJS-500-7
n masa samog poklopca ca. 42 kg
n okvir iz sivog lijeva EN-GJL-200 obloženog betonom C35/45
n okvir izveden s utorom za prihvat oslonca za siguran i olakšan silazak u okno
n okvir s utorima za ovješenje sakupljača nečistoće ili biofiltera
n zaključavanje profiliranim TPU kopčama visoke tvrdoće
n Prema propisima o kvaliteti i osiguranju kvalitete RAL-GZ 692
n Poklopci prema HRN EN 124-2:2015
n Okvir obložen betonom povećane mase za stabilnost i smanjeni pritisak

poklopca Ukupna masa Razred opterećenja Art.br. [mm] [kg] [kg]

Hibridni biofilter za uklanjanje neugodnih mirisa
n s EPDM brtvom na dosjedu



Kanta za hvatanje nečistoća
n pocinčani čelik
n sve okvire iz programa CityTop HR i Multitop BEGU
n s ovjesom za umetanje u okvir n sve okvire iz programa CityTop HR i Multitop BEGU
Oslonac za pomoć pri silasku
n nehrđajući čelik
n sve okvire iz programa CityTop HR i Multitop BEGU
Klinovi n za postavljanje i podešavanje okvira na konstrukciju okna (prema DIN 4034 T1) n tip A, za visinu zazora
Elastomerni uložak
n 436,9 x 29 mm (d x š)
n sve okvire iz programa CityTop HR i Multitop BEGU
ACO prednosti proizvoda
n Tih: bez lupanja, zahvaljujući masivnom
PEWEPREN ulošku i njegovom strojno obrađenom ležištu u okviru
n Protuklizan: visina reljefa površine osigurava visoko prijanjanje, neovisno o smjeru ugradnje
n poklopac iz nodularnog lijeva EN-GJS-500-7
n masa samog poklopca ca. 42 kg
n okvir iz sivog lijeva EN-GJL-200 obloženog betonom C35/45
n okvir izveden s utorom za prihvat oslonca za siguran i olakšan silazak u okno
n okvir s utorima za ovješenje sakupljača nečistoće ili biofiltera
n zaključavanje profiliranim TPU kopčama visoke tvrdoće
n Prema propisima o kvaliteti i osiguranju kvalitete RAL-GZ 692
n Poklopci prema HRN EN 124-2:2015
n Okvir obložen betonom povećane mase za stabilnost i smanjeni pritisak

[kg] [kg]

Hibridni biofilter za uklanjanje neugodnih mirisa
n s EPDM brtvom na dosjedu



Kanta za hvatanje nečistoća n pocinčani čelik
n s ovjesom za umetanje u okvir
Oslonac za pomoć pri silasku n nehrđajući čelik
Klinovi n za postavljanje i podešavanje okvira na konstrukciju okna (prema DIN 4034 T1)
n sve okvire iz programa CityTop HR i Multitop BEGU
n sve okvire iz programa CityTop HR i Multitop BEGU
Elastomerni uložak
n 436,9 x 29 mm (d x š)
n sve okvire iz programa CityTop HR i Multitop BEGU
n tip A, za visinu zazora 25-35 mm
n tip B, za visinu zazora 45-55 mm
n sve okvire iz programa CityTop HR i Multitop BEGU
ACO prednosti proizvoda
n poklopac iz nodularnog lijeva EN-GJS-500-7
n masa samog poklopca ca. 45 kg
n okvir iz sivog lijeva EN-GJL-200 s dosjednom stopom za sidrenje
n s vijčanim zaključavanjem u 3 točke
n Prema propisima o kvaliteti i osiguranju kvalitete RAL-GZ 692
n Vodotijesan do 2 bara
n Svi poklopci prema HRN EN 124-2:2015
n S brtvom otpornom na ulja i benzine
n Plinotijesan pri atmosferskom tlaku


Ključ za otvaranje n veličina 18/22 mm
n sva zaključavanja na poklopcima iz programa CityTop HR, CityTop M i Multitop
Poklopci CityTop D400
Svijetli
ACO prednosti proizvoda
n poklopac iz nodularnog lijeva EN-GJS-500-7
n masa samog poklopca ca. 80 kg
n okvir iz sivog lijeva EN-GJL-200, ravne bočne stijenke, za sidrenje
n s vijčanim zaključavanjem u 4 točke
n Prema propisima o kvaliteti i osiguranju kvalitete RAL-GZ 692
n Vodotijesan do 1 bar
n Svi poklopci prema HRN EN 124-2:2015
n Plinotijesan pri atmosferskom tlaku
n S brtvom otpornom na ulja i benzine
n Ugradnja s namjenom zadržavanje povratnih voda zahtjeva korištenje pričvrsnih pločica (art.br. 57184)

Ventilacijski otvori Masa poklopca Ukupna masa
Razred opterećenja Art.br. [mm] [kg] [kg]
[kg]


Ključ za otvaranje n veličina 18/22 mm
Pričvrsne pločice n za dodatno sidrenje n set sadrži 8 pločica i vijke
n sva zaključavanja na poklopcima iz programa CityTop HR, CityTop M i Multitop
n CityTop RSS poklopac svijetli otvor 800
ACO prednosti proizvoda
n poklopac iz nodularnog lijeva EN-GJS-500-7
n masa samog poklopca ca. 69 kg
n poklopac s ventilacijskim otvorima koji se mogu zatvoriti kako bi se spriječio prodor poplavnih voda u sustav odvodnje
n okvir iz sivog lijeva EN-GJL-200 s dosjednom stopom za sidrenje
n s vijčanim zaključavanjem u 3 točke
n Svi poklopci prema HRN EN 124-2:2015
n S brtvom otpornom na ulja i benzine
n Ventilirana površina: 171 cm2

[kg] [kg]
110 sa/bez 69114D4001206385


Ključ za otvaranje
n veličina 18/22 mm
Klinovi
n za postavljanje i podešavanje okvira na konstrukciju okna (prema DIN 4034 T1)
n sva zaključavanja na poklopcima iz programa CityTop HR, CityTop M i Multitop
n tip A, za visinu zazora 25-35 mm
03097
n tip B, za visinu zazora 45-55 mm 1,0 03098
ACO prednosti proizvoda
n poklopac iz nodularnog lijeva EN-GJS-500-7
n masa samog poklopca ca. 86 kg
n poklopac s ventilacijskim otvorima koji se mogu zatvoriti kako bi se spriječio prodor poplavnih voda u sustav odvodnje
n okvir od sivog lijeva EN-GJL-200, ravne bočne stijenke, za sidrenje
n s vijčanim zaključavanjem u 6 točaka


Ključ za otvaranje
n veličina 18/22 mm
Klinovi
n za postavljanje i podešavanje okvira na konstrukciju okna (prema DIN 4034 T1)
n Svi poklopci prema HRN EN 124-2:2015
n S brtvom otpornom na ulja i benzine
n Ventilirana površina: 171 cm2

sa/bez
[kg] [kg]
n sva zaključavanja na poklopcima iz programa CityTop HR, CityTop M i Multitop
n tip A, za visinu zazora 25-35 mm
n tip B, za visinu zazora 45-55 mm 1,0 03098







Poluga za otvaranje n dužina: 600 mm
Ključ za otvaranje n veličina 18/22 mm
Kuka n dužina: 800 mm n pocinčani čelik
Kratka kuka n dužina: 230 mm n pocinčani čelik
n poklopce CityTop HR, CityTop M i Multitop BEGU n slivne rešetke Multitop n mosne slivnike HSD-2
n sva zaključavanja na poklopcima iz programa CityTop HR, CityTop M i Multitop
n poklopce CityTop HR, CityTop M i Multitop BEGU
n poklopce CityTop HR, CityTop M i Multitop BEGU
Oslonac za pomoć pri silasku n nehrđajući čelik
n sve okvire iz programa CityTop HR i Multitop BEGU
Set za dodatno zaključavanje
n Sastoji se od:
o 2 zakretna klina o 2 vijka o 2 podložne pločice o 2 zatika

Betonski prsten za niveliranje poklopaca (DIN 4034)
n Unutarnji promjer 625 mm: o visina 60 mm
o visina 80 mm
o visina 100 mm
o visina 200 mm

Betonski teleskopski prsten
n Unutarnji promjer 708 mm: o visina 80 mm
n poklopce CityTop HR, CityTop M i Multitop BEGU
n sve okrugle okvire iz programa CityTop
Opis

Klinovi
n za postavljanje i podešavanje okvira na konstrukciju okna (prema DIN 4034 T1)

Hibridni biofilter za uklanjanje neugodnih mirisa
n s EPDM brtvom na dosjedu
Kanta za hvatanje nečistoća / svijetli otvor 600
n pocinčani čelik
n s ovjesom za umetanje u okvir

Kanta za hvatanje nečistoća / svijetli otvor 800
n pocinčani čelik
n s ovjesom za umetanje u okvir
n tip A, za visinu zazora 25-35 mm
n tip B, za visinu zazora 45-55 mm
n sve okvire iz programa CityTop HR i Multitop BEGU
n sve okvire iz programa
CityTop HR i Multitop BEGU
n sve okvire iz programa CityTop HR 800

Instalacijski kalup n za ugradnju poklopaca sustava Bituplan 600
Instalacijski kalup n za ugradnju poklopaca sustava Bituplan 800

Pričvrsne pločice
n za dodatno sidrenje
n set sadrži 8 pločica i vijke

Set za ugradnju
n Sastoji se od: o 3 nosača o 3 podložne pločice
o 1 imbus ključ o 1 okasti ključ
n CityTop RSS poklopac svijetli otvor 800
n za ugradnju poklopaca sustava Beguplan


Slivne rešetke Multitop Informacije o proizvodima
ACO Multitop slivne rešetke svojim detaljima i olakšanom uporabom predstavljaju inovaciju u usporedbi s uobičajenim slivnim rešetkama.
Razredi opterećenja
n A15 n B125 n C250 n D400
prema HRN EN 124 i RAL-GZ 692 Izvedbe
300 x 500 mm ili 500 x 500 mm, ravne ili upuštene
Materijali
lijevano željezo EN-GJS/EN-GJL i beton C35/45
Mjesta primjene
n pješačke zone, biciklističke staze n cestovna odvodnja
n javni prostori i trgovi n industrijske zone
n parkirališta n autoceste
Svestrana primjena

Zahvaljujući jedinstvenoj geometriji upojnih otvora, Multitop dizajn je pogodan za sve primjene: prometnice, pješačke zone i biciklističke staze








Slivne rešetke Multitop Informacije o proizvodima
A ua Plus dizajn za primjenu na površinama s učestalom pojavom nečistoća ili u zonama opasnosti od poplava







Standardna rješenja s dodatnom opremom (umetci za sifoniranje slivnika ili kante za hvatanje nečistoća) Dodatna oprema





Slivne rešetke Multitop Informacije o proizvodima
Obostrano otvoriva rešetka
Višenamjenski, neizravni obostrani zglobovi nisu osjetljivi na blato ili smeće i sigurani su od loma. Omogućavaju otvaranje rešetke do 110° u oba smjera. U okomitom položaju rešetku je moguće potpuno izvaditi. Moguća je ugradnja neovisna o smjeru vožnje i smjeru nagiba prometnice.

Olakšana uporaba

Rešetka se može u potpunosti ukloniti iz okvira kako ne bi smetala kod održavanja.

Oslabljeni dio bočne strane okvira može se izbiti pa je moguće koristiti slivnu rešetku i u fazi gradnje, prije nanošenja habajućeg sloja asfalta.


Kao dodatna oprema mogu se koristiti kante za hvatanje nečistoća ili umetci za sifoniranje slivnika.
Slivne rešetke Multitop Informacije o proizvodima

Elastomerni ulošci stabilizirani trnovima preuzimaju opterećenje te smanjuju buku, trošenje i prijenos vibracija.

Povećana površina oslona okvira osigurava smanjenje pritiska na podlogu i produljuje vijek trajanja ugrađene slivne rešetke.


Zaključavanje TPU kopčama osigurava rešetku od iskakanja uslijed prometa, ne zahtijeva održavanje, ali i pomaže u smanjenju buke jer se izbjegava kontakt metal-metal

ACO prednosti proizvoda
n masivni PEWEPREN elastomerni ulošci u ležištu u okviru, stabilizirani trnovima, smanjuju prijenos vibracija i buku
n rešetka od nodularnog lijeva EN-GJS-500-7
n oslabljeni dio bočne strane okvira koji se može izbiti za privremenu odvodnju
n zaključavanje TPU kopčama pojednostavljuje uporabu i ne zahtjeva održavanje te smanjuje buku i prijenos vibracija
n okvir od sivog lijeva EN-GJL-200, ravne bočne stjenke
n neizravni zglobovi nisu osjetljivi na blato ili smeće i sigurani su od loma, za obostrano otvaranje rešetke do 110°
n Prema propisima o kvaliteti i osiguranju kvalitete RAL-GZ-692
n Slivne rešetke prema HRN EN 124-2:2015
n Moguće korištenje kante za nečistoću prema DIN 4052-4 ili umetka za sifoniranje slivnika
n Nekoliko dizajna pogodnih za ugradnju u pješačke zone, biciklističke staze, prometne površine, površine s velikim udjelom grubih nečistoća ili u pojasu autocesta

n Pogodne za ugradnju u pješačke zone, biciklističke staze te prometne površine
Dimenzije Progib
Površina upojaMasa Razred opterećenja Art.br.
Multitop - upuštena

Slivne rešetke Multitop 300x500
n Pogodne za ugradnju u pješačke zone, biciklističke staze te prometne površine
Dimenzije Progib Površina upojaMasa Razred opterećenja Art.br.
irinaDužinaVisina
Multitop Standard


[mm][mm][mm][mm][cm ][kg]
3005241251565041,4
3005241251565041,5D40089406
n Pogodne za prometne površine, bez zaključavanja (osiguranje uležištenja masom, prema DIN 1229)
Dimenzije Progib Površina upojaMasa Razred opterećenja Art.br.
irinaDužinaVisina
[mm][mm][mm][mm][cm ][kg]
300500100-60054,5D4001200476
Slivne rešetke Multitop
Multitop Aqua Plus

n Pogodne za ugradnju u prometne površine i zone s velikim udjelom grubih nečistoća
Dimenzije Progib Površina upojaMasa Razred opterećenja Art.br.
irinaDužinaVisina
Multitop Aqua Plus - sa zglobom

[mm][mm][mm][mm][cm ][kg]
300524100-83534,7D40089440
n Pogodne za ugradnju u prometne površine, zone s velikim udjelom grubih nečistoća te na svim površinama u pojasu autocesta
Dimenzije Zglob Površina upojaMasa Razred opterećenja Art.br. irinaDužinaVisina

Pločice za zatvaranje privremenih otvora n set = 2 komada


Poluga za otvaranje
n dužina: 600 mm
Umetci za si oniranje slivnika
n dosjed umetka u okvir rešetke je brtvljen
n naglavak umetka se produlji s C cijevi DN200 kojoj je donji kraj ispod razine izljeva slivnika
n slivne rešetke Multitop n mosne slivnike HSD-2
n poklopce CityTop HR, CityTop M i Multitop BEGU
n slivne rešetke Multitop
n mosne slivnike HSD-2
ACO prednosti proizvoda
n masivni PEWEPREN elastomerni ulošci u ležištu u okviru, stabilizirani trnovima, smanjuju prijenos vibracija i buku
n rešetka od nodularnog lijeva EN-GJS-500-7 (Multitop Standard iz sivog lijeva EN-GJL-200)
n oslabljeni dio bočne strane okvira koji se može izbiti za privremenu odvodnju
n zaključavanje TPU kopčama pojednostavljuje uporabu i ne zahtjeva održavanje te smanjuje buku i prijenos vibracija
n okvir od sivog lijeva EN-GJL-200, obloženog betonom C35/45, ravne bočne stjenke
n neizravni zglobovi nisu osjetljivi na blato ili smeće i sigurani su od loma, za obostrano otvaranje rešetke do 110°
Multitop - ravna

n Prema propisima o kvaliteti i osiguranju kvalitete RAL-GZ-692
n Slivne rešetke prema HRN EN 124-2:2015
n Moguće korištenje kante za nečistoću prema DIN 4052-4 ili umetka za sifoniranje slivnika
n Nekoliko dizajna pogodnih za ugradnju u pješačke zone, biciklističke staze, prometne površine, površine s velikim udjelom grubih nečistoća ili u pojasu autocesta
n Okvir povećane mase, površine oslona i visine za smanjeni pritisak
n Pogodne za ugradnju u pješačke zone, biciklističke staze te prometne površine
Dimenzije Progib
Površina upojaMasa Razred opterećenja Art.br.
[mm][mm][mm][mm][cm ][kg]
Multitop - upuštena

Slivne rešetke Multitop 500x500
n Pogodne za ugradnju u pješačke zone, biciklističke staze te prometne površine
Dimenzije Progib Površina upojaMasa Razred opterećenja Art.br. irinaDužinaVisina
[mm][mm][mm][mm][cm ][kg]
50052417525111375,5
Multitop Standard

n Pogodne za prometne površine, bez zaključavanja (osiguranje uležištenja masom, prema DIN 1229)
Dimenzije Progib Površina upojaMasa Razred opterećenja Art.br. irinaDužinaVisina

[mm][mm][mm][mm][cm ][kg]
500500150-1080101,0D400607637
Multitop Aqua Plus

n Pogodne za ugradnju u prometne površine i zone s velikim udjelom grubih nečistoća
Dimenzije Progib Površina upojaMasa Razred opterećenja Art.br.
irinaDužinaVisina
[mm][mm][mm][mm][cm ][kg]
Multitop Aqua Plus - sa zglobom

500524150-147775,7D40089441
n Pogodne za ugradnju u prometne površine, zone s velikim udjelom grubih nečistoća te na svim površinama u pojasu autocesta
Dimenzije Zglob Površina upojaMasa
irinaDužinaVisina
[mm][mm][mm] [cm ][kg]
Razred opterećenja Art.br.
500559160sa152891,5D40089527

Pločice za zatvaranje privremenih otvora n set = 2 komada


Poluga za otvaranje
n dužina: 600 mm
Umetci za si oniranje slivnika
n dosjed umetka u okvir rešetke je brtvljen
n naglavak umetka se produlji s C cijevi DN200 kojoj je donji kraj ispod razine izljeva slivnika
n slivne rešetke Multitop n mosne slivnike HSD-2
n poklopce CityTop HR, CityTop M i Multitop BEGU
n slivne rešetke Multitop
n mosne slivnike HSD-2


Cestovni slivnici
Informacije o proizvodima
Podesivi nagib
Gornji dijelovi se u spoju mogu prilagoditi uzdužnom i poprečnom nagibu (otklon do 8%).

Zakretan
Izljevni dio se može rotirati oko vertikalne osi slivnika neovisno o ostalim elementima.
Prednost pri montaži i ugradnji je svakako i mala masa pojedinih elemenata, što osigurava bržu i jednostavnu ugradnje bez korištenja građevinskih strojeva.


Svaki okvir izveden je s lijevkom s donje strane kako bi se precizno povezao s tijelom slivnika.
Optimalno visinsko poravnavanje pojedinih elemenata zahvaljujući teleskopskom kliznom spoju elemenata. Teleskopski

±3 cm
Vodonepropusni spojevi elemenata do 0,5 bara, zahvaljujući integriranoj EPDM brtvi. Vodotijesan

Jednodijelni slivnik od polietilena
ACO Combipoint PE
Zavarivanje
Jednodijelni cestovni slivnik Combipoint PE dolazi u nekoliko visina i opcija, a spoj s PE cijevima može se zavariti.


Jednodijelni slivnik od polietilena
ACO Combipoint SSA sa smirivačem protoka
n zadržava najmanje 32% krutih čestica više u odnosu na standarni cestovni slivnik s taložnicom
n zadržava najmanje 71% krutih čestica više u odnosu na standarni cestovni slivnik bez taložnice
Rešetka
Kanta za nečistoću Smirivač protoka (smanjuje turbulencije)
Cestovni slivnici
Informacije o proizvodima


ACO prednosti proizvoda
n prilagodljivi i lagani elementi omogućavaju modularan dizajn
n tijelo slivnika izvedeno iz poliprolilena PP otpornog na sredstva protiv smrzavanja te visoke kemijske otpornosti
n zaštićen od prometnog opterećenja zbog teleskopije složenih elemenata
n zakretan
n jednostavan za ugradnju
n vodotijesan do 0,5 bara zbog EPDM brtve na spojevima elemenata
n prilagodljiv uzdužnom i poprečnom nagibu do 8%
n Slivnicima odgovaraju Multitop slivne rešetke s okvirima izvedenim s dosjedom za Combipoint slivnike n Izljev slivnika DN150

VisinaKorisna visinaMasaArt.br. [mm] [mm] [kg]

element bez izljeva

Gornji element za prihvat rešetke

Cestovni slivnici Combipoint PP
VisinaKorisna visinaMasaArt.br. [mm] [mm] [kg]
Središnji element

Središnji element s izljevom DN150


Element za nadvišenje
n visina: 120 mm
n moguće ga je skratiti

Ø437
n cestovne slivnike Combipoint
o 300x500 mm 1,589063
o 500x500 mm 1,589064
Zatvarač izljeva n DN150 n cestovne slivnike Combipoint 0,389062
Prijelazni element prema DIN 4052
n od plastike
n cestovne slivnike Combipoint PP
1,689019 NOVO

n za sanaciju slivnika izvedenih od betonskih elemenata
n omogućuje nadgradnju postojećeg tijela betonskog slivnika s Combipoint PP elementima

ACO prednosti proizvoda
n izveden iz polietilena PE
n lagan i jednostavan za ugradnju
n izljevna cijev pogodna za varenje s odvodnim cijevima
n monolitna konstrukcija slivnika jamči vodotijesnost
Slivnik bez taložnice


n Slivnicima odgovaraju Multitop slivne rešetke s okvirima izvedenim s dosjedom za Combipoint slivnike
n Izljev slivnika DN150

OblikVisinaMasaArt.br. [mm] [kg]
OblikVisinaMasaArt.br. [mm] [kg]

Opis Pogodan za MasaArt.br. [kg]

Element za nadvišenje
n visina: 120 mm
n moguće ga je skratiti

Zatvarač izljeva n DN150 n cestovne slivnike Combipoint 0,389062 Cestovni slivnici
n cestovne slivnike Combipoint
o 300 x 500 mm 1,589063
o 500 x 500 mm 1,589064
ACO prednosti proizvoda
n masivni PEWEPREN elastomerni ulošci
u ležištu u okviru, stabilizirani trnovima, smanjuju prijenos vibracija i buku
n rešetka od nodularnog lijeva EN-GJS-500-7
n oslabljeni dio bočne strane okvira koji se može izbiti za privremenu odvodnju
n zaključavanje TPU kopčama pojednostavljuje uporabu i ne zahtjeva održavanje te smanjuje buku i prijenos vibracija
n okvir od sivog lijeva EN-GJL-200, ravne bočne stjenke
n neizravni zglobovi nisu osjetljivi na blato ili smeće i sigurani su od loma, za obostrano otvaranje rešetke do 110
Multitop - ravna



n Prema propisima o kvaliteti i osiguranju
kvalitete RAL-GZ-692
n Slivne rešetke prema HRN EN 124-2:2015
n Moguće korištenje kante za nečistoću prema DIN 4052-4 ili umetka za sifoniranje slivnika
n Nekoliko dizajna pogodnih za ugradnju u pješačke zone, biciklističke staze, prometne površine, površine s velikim udjelom grubih nečistoća ili u pojasu autocesta
n Pogodne za ugradnju u pješačke zone, biciklističke staze te prometne površine
Dimenzije Progib Površina upojaMasa Razred opterećenja Art.br. Širina Dužina Visina
rešetke
Multitop - upuštena



n Pogodne za ugradnju u pješačke zone, biciklističke staze te prometne površine
Dimenzije Progib Površina upojaMasa Razred opterećenja Art.br.
Širina Dužina Visina
Multitop Standard


[mm][mm][mm][mm] [cm ] [kg]
3005241251565043,0C25089112
3005241251565043,0D40089116
n Pogodne za prometne površine, bez zaključavanja (osiguranje uležištenja masom, prema DIN 1229)
Dimenzije Progib Površina upojaMasa Razred opterećenja Art.br.
Širina Dužina Visina
[mm][mm][mm][mm] [cm ] [kg]
300500100-60054,5D4001200476
Multitop Aqua Plus


n Pogodne za ugradnju u prometne površine i zone s velikim udjelom grubih nečistoća
Dimenzije Progib Površina upojaMasa Razred opterećenja Art.br.
Širina Dužina Visina
Multitop Aqua Plus - sa zglobom

[mm][mm][mm][mm] [cm ] [kg]
300524100-83536,1D40089442
n Pogodne za ugradnju u prometne površine, zone s velikim udjelom grubih nečistoća te na svim površinama u pojasu autocesta
Dimenzije Zglob Površina upojaMasa Razred opterećenja Art.br.
Širina Dužina Visina

[mm][mm][mm] [cm ] [kg]

Pločice za zatvaranje privremenih otvora
n set = 2 komada


Poluga za otvaranje
n dužina: 600 mm
Umetci za si oniranje slivnika
n dosjed umetka u okvir rešetke je brtvljen
n slivne rešetke Multitop n mosne slivnike HSD-2
n poklopce CityTop HR, CityTop M i Multitop BEGU
n slivne rešetke Multitop
n mosne slivnike HSD-2
n naglavak umetka se produlji s PVC cijevi DN200 kojoj je donji kraj ispod razine izljeva slivnika n slivne rešetke Multitop

ACO prednosti proizvoda
n izdvajanje krupnih nečistoća i krutih čestica iz oborinskih voda na samom početku odvodnje
n jednostavno za održavanje i servisiranje
n izveden iz polietilena (PE)
n rešetka iz odularnog lijeva EN-GJS-500-7 (Multitop Standard iz sivog lijeva EN-GJL-200)
n trajno riješenje jer nema prijenosa opterećenja na slivnik
n okvir iz sivog lijeva EN-GJL-200, obloženog betonom C35/45, ravne bočne stjenke
n monolitna konstrukcija slivnika jamči vodotijesnost
n prema DWA-M 153: tip D26 s protokom 0,6
n Slivnicima odgovaraju Multitop slivne rešetke 500 500, s okvirima izvedenim s dosjedom za Combipoint slivnike
n Izljev slivnika DN150


Dimenzije Progib Površina upojaMasa Razred opterećenja Art.br.
Širina Dužina Visina
[mm][mm][mm][mm] [cm ] [kg]
Multitop - ravna

Multitop - upuštena

Multitop Standard

Multitop - Aqua Plus

500524150-1125
89113
500524175251113
500500150-1080104,0D400 1201559
500524150-147779,6D400 89443
Dimenzije Progib
Širina Dužina Visina
Cestovni slivnici Combipoint SSA
Površina upojaMasa Razred opterećenja Art.br.
[mm][mm][mm][mm] [cm ] [kg]
Multitop - Aqua Plus (sa zglobom)

500559150-152890,5D400 89528
Tijelo slivnika SSA --1750--22,0- 0170.40.00

Pribor
Opis Pogodan zaMasaArt.br. [kg]





Sigurnosni preljev n u slučaju velikih padalina n slivnik Combipoint SSA 1,0 89052
SSA umetak n smirivač protoka, izrađen od nehrđajučeg čelika n slivnik Combipoint SSA 3,5 89053
Pločice za zatvaranje privremenih otvora n set = 2 komada
Poluga za otvaranje n dužina: 600 mm
Umetci za si oniranje slivnika
n dosjed umetka u okvir rešetke je brtvljen n naglavak umetka se produlji s PVC cijevi DN200 kojoj je donji kraj ispod razine izljeva slivnika
n slivne rešetke Multitop n mosne slivnike HSD-2 0,5 67308
n poklopce CityTop HR, CityTop M i Multitop BEGU n slivne rešetke Multitop n mosne slivnike HSD-2 1,5 600643
n slivne rešetke Multitop 500x500 2,1 133781


Mosni slivnici
Razredi opterećenja
Ukoliko sanacija mosta zahtjeva zamjenu samo gornjeg dijela mosnog slivnika, moguće je koristiti HSD-2 Universal. Ovaj proizvod moguće je upariti s mnogim prethodno ugrađenim slivnicima, a njegova konstrukcija omogućuje procijeđivanje vode nakupljene na hidroizolaciji sve do slivnika.
Ukoliko su betonska konstrukcija mosta i hidroizolacija mosta u zadovoljavajućem stanju i sanira se samo asfaltni zastor, ili su gornji dijelovi slivnika (rešetke) u lošem stanju i potrebno ih je zamijeniti, moguće je zadržati i iskoristiti donje dijelove slivnika i postojeći cjevovod.
Gornji dio HSD-2 Universal razreda opterećenja D400 moguće je upariti s mnogim prethodno ugrađenim slivnicima te pritom osigurati procijeđivanje vode nakupljene na sloju hidroizolacije sve do slivnika.
n A15
n B125 n C250 n D400
prema DIN EN 124 Materijal
Lijevano željezo EN-GJS / EN-GJL
Mjesta primjene
n cestovni mostovi AB ili čelične konstrukcije
n željeznički mostovi s tucaničkim zastorom n sanacije mostova n parkirališta n industrijske hale n odvodnja tunela
Niski okvir rešetke, velika nosiva prirubnica i višenamjenska pokrovna ploča s procijednim otvorima mogu se ugraditi iznad postojećih slivnika različitih geometrijskih oblika i dimenzija.
Koristeći tek nekoliko dijelova, ACO nudi učinkovito i brzo rješenje za obnovu mosta s gornjim dijelom slivnika HSD-2 Universal. Gornji dio slivnika može se pojedinačno prilagoditi pojedinim uvjetima pomoću pokrovne ploče koja se može pričvrstiti s desne ili lijeve strane.













Mosni slivnici Informacije o proizvodima

pokrovna ploča desno


pokrovna ploča lijevo

spajanje pokrovne ploče s nosivom prirubnicom

Prednosti
n može se koristiti s lijeve ili desne strane u smjeru vožnje postavljenjem pokrovne ploče prema potrebi
n najveća prilagodljivost s najmanje dijelova
n također se može koristiti za pješačke i biciklističke zone zahvaljujući širini proreza od 23 mm i duljini proreza manjoj od 170 mm
n pogodna za ugradnje u prometnice
n jednostrani zglob i zaključavanje kopčom od nehrđajućeg čelika koja ne zahtijeva održavanje čine ju jednostavnom za održavanje
Mosni slivnici
Informacije o proizvodima
Promišljeni detalji za optimalnu uporabljivost
vruće cinčana kanta za nečistoću
elastomerni ulošci protiv lupanja u utorima u okviru, stabilizirani trnovima
n gornji dio podesiv po visini, bočno i uzdužno podesiv, s mogućnošću uzdužnog i poprečnog nagiba te zakretan oko vertikalne osi
n slivnik s prirubnicom za prihvat hidroizolacije


n brzo i jednostavno otvaranje i zatvaranje

n zaključavanje kopčom od nehrđajućeg čelika (bez vijaka), otporno na prljavštinu
n rešetka zglobom povezana s okvirom
n oslabljeni dio bočne strane okvira može se izbiti pa je moguće koristiti slivnu rešetku i u fazi gradnje
n pritezni prsten za stabilizaciju gornjeg dijela slivnika za vrijeme ugradnje
n prirubnica sa ili bez priteznih vijaka, za uklještenje ili lijepljenje hidroizolacije (opcija)
n nosači za ugradnju (dodatna oprema)
n siguran položaj otvorene rešetke zahvaljujući kutu otvaranja od 110 110°
Mosni slivnici Informacije o proizvodima
Mosni slivnici za cestovne mostove armirano betonske konstrukcije sastoje od donjeg izljevnog tijela s prirubnicom za prihvat hidroizolacije te gornjeg dijela s rešetkom, kantom za nečistoću i priteznim prstenom.
Donji dio je ubetoniran u konstrukciju mosta.
Prirubnica omogućuje sigurno postavljanje hidroizolacijske membrane (opcija za uklještenje može primiti hidroizolacijske membrane debljine do najviše 12 mm).
Gornji dio se može pomicati za 10 mm ekscentrično u svakom smjeru u odnosu na donji dio, zakretati oko vertikalne osi te naginjati uzdužno i poprečno za /-4 . Također je i kontinuirano visinski podesiv. Pritezni prsten stabilizira gornji dio za vrijeme ugradnje na zadanoj visini i nagibu, a oslanja se na donji dio.
za čelične mostove
Mosni slivnici za čelične cestovne mostove imaju tijelo izvedeno iz vruće cinčanog čelika S 235 JR u koji je umetnuta lijevano željezna rešetka i vruće cinčana kanta za nečistoću. Ugrađuju se tako da se vare za konstrukciju mosta. Tijelo je izvedeno s procijednim otvorima koji se otvaraju po potrebi. Rešetka je s tijelom povezana jednostranim zglobom, a osigurana je od prometa vijčanim zaključavanjem.

ACO HSD-2 mosni slivnik za mostove AB konstrukcije, dimenzija 300 480 mm, iz lijevanog željeza, razreda opterećenja D400 prema HRN EN 124-2:2015, prema smjernicama Was 1

ACO HSD-2 mosni slivnik za čelične mostove dimenzija 260 500 mm, tijelo iz vruće cinčanog čelika, rešetka iz lijevanog željeza, razreda opterećenja D400 prema HRN EN 124-2:2015, prema smjernicama Was 1
HS za željezničke mostove
Mosni slivnici za željezničke mostove armirano betonske konstrukcije, za prihvat procjednih voda iz tucaničkog zastora, sastoje od donjeg izljevnog tijela s prirubnicom za prihvat hodroizolacije i gornjeg dijela s kuglastom procijednom rešetkom. Donji dio je ubetoniran u konstrukciju mosta. Prirubnica omogućuje sigurno postavljanje hidroizolacijske membrane.

ACO HSD-2 mosni slivnik za željezničke mostove s tucaničkim zastorom, promjera 585 mm, s kuglastom procijednom rešetkom, iz lijevanog željeza, sukladno DB Netz, Deutsche Bahn Group, M-ENT 804.9020
Mosni slivnici HSD-2
ACO prednosti proizvoda
n pogodna za ugradnju s lijeve ili desne
strane kolnika, neovisno o smjeru vožnje, zahvaljujući pokrovnoj ploči koja se orijentira prema potrebi
n najveća prilagodljivost s najmanje dijelova
n pogodna za korištenje u pješačkim i biciklističkim zonama zahvaljujući otvorima širine 23 mm i dužine do najviše 170 mm
n sigurna za korištenje na prometnicama zahvaljujući jednostranom zglobu i zaključavanju kopčom od nehrđajučeg čelika, bez vijka, bez potrebe za održavanjem
n Mosni slivnik prema HRN EN 124-2:2015
n Razred opterećenja D400
n Vanjske mjere okvira 300 480 mm
n Okvir od sivog lijeva EN-GJL-200
n Rešetka od nodularnog lijeva EN-GJS-500-7
n Širina otvora 23 mm
n Dužina otvora do najviše 170 mm
n Površina upoja 523 cm²

lijevo ili desno
n S masivnim uloškom protiv lupanja smještenim u ležištu u okviru, stabiliziran trnovima
n Rešetka se otvara do 110
n Vruće cinčana košara za nečistoću
Dimenzije
Površina upojaMasa Razred opterećenja Art.br. irinaDužinaVisina [mm][mm][mm][cm2][kg]
Pribor

Pokrovna ploča s procijednim otvorima
n lijeva ili desna orijentacija
n sadrži pribor za pričvršćivanje


Poluga za otvaranje
n dužina: 600 mm
Mosni slivnici HSD-2 Sanacija mostova
n mosne slivnike HSD-2 Universal 8,91203478
n poklopce CityTop HR, CityTop M i Multitop BEG
n slivne rešetke Multitop
n mosne slivnike HSD-2
1,5600643
Košara za nečistoću n vruće cinčana
n mosne slivnike HSD-2 1,758268
ACO prednosti proizvoda
n sigurna za korištenje na prometnicama zahvaljujući jednostranom zglobu i zaključavanju kopčom od nehrđajućeg čelika, bez vijaka, bez potrebe za održavanjem
n s masivnim elastomernim PEWEPREN uloškom protiv lupanja, smještenim u utoru u okviru, stabiliziran trnovima
n oslabljeni dio bočne strane okvira koji se može izbiti za privremenu odvodnju
n gornji dio kontinuirano podesiv po visini, zakretan, podesiv prema uzdužnom i poprečnom nagibu
n rešetka se otvara do 110
DN100
n Mosni slivnik prema HRN EN 124-2:2015
n Razred opterećenja D400
n Vanjske mjere okvira 300 480 mm
n Okvir od sivog lijeva EN-GJL-200
n Rešetka od nodularnog lijeva EN-GJS-500-7
n Širina otvora 23 mm
n Dužina otvora do najviše 170 mm
n Površina upoja 523 cm²
n Vruće cinčana košara za nečistoću

ornji dio podesiv po visiniPrirubnicaPovršina upojaMasa Art.br. [mm] [cm2] [kg]
Izvedba s prirubnicom za lijepljenje ili uklještenje hidroizolacije (s priteznim vijcima opcija)
ornji dio podesiv po visiniPrirubnicaPovršina upojaMasa Art.br. [mm] [cm2] [kg]
Izvedba s prirubnicom za lijepljenje ili uklještenje hidroizolacije (s priteznim vijcima opcija)
Montagestützen
Nosači za ugradnju (dodatna oprema)
Pribor Opis



Pločice za zatvaranje privremenih otvora n set = 2 komada n slivne rešetke Multitop n mosne slivnike HSD-2 0,567308
Poluga za otvaranje n dužina: 600 mm n poklopce CityTop HR, CityTop M i Multitop BEG n slivne rešetke Multitop n mosne slivnike HSD-2 1,5600643
Košara za nečistoću n vruće cinčana n mosne slivnike HSD-2 1,758268
ACO prednosti proizvoda
n sigurna za korištenje na prometnicama zahvaljujući jednostranom zglobu i zaključavanju kopčom od nehrđajućeg čelika, bez vijaka, bez potrebe za održavanjem
n s masivnim elastomernim PEWEPREN uloškom protiv lupanja, smještenim u utoru u okviru, stabiliziran trnovima
n oslabljeni dio bočne strane okvira koji se može izbiti za privremenu odvodnju
n gornji dio kontinuirano podesiv po visini, zakretan, podesiv prema uzdužnom i poprečnom nagibu
n rešetka se otvara do 110
DN100
n Mosni slivnik prema HRN EN 124-2:2015
n Razred opterećenja D400
n Vanjske mjere okvira 300 480 mm
n Okvir od sivog lijeva EN-GJL-200
n Rešetka od nodularnog lijeva EN-GJS-500-7
n Širina otvora 23 mm
n Dužina otvora do najviše 170 mm
n Površina upoja 523 cm²
n Vruće cinčana košara za nečistoću

Visina slivnika od osi izljeva ornji dio podesiv po visiniPrirubnica Površina upojaMasa Art.br. [mm] [mm] [cm2][kg]
Izvedba s prirubnicom za lijepljenje ili uklještenje hidroizolacije (s priteznim vijcima opcija)
Visina slivnika od osi izljeva ornji dio podesiv po visiniPrirubnica
Površina upojaMasa
[mm] [mm] [cm2][kg]
Izvedba s prirubnicom za lijepljenje ili uklještenje hidroizolacije (s priteznim vijcima opcija)
Montagestützen
Pribor Opis Pogodan za



Pločice za zatvaranje privremenih otvora n set = 2 komada n slivne rešetke Multitop n mosne slivnike HSD-2 0,567308
Poluga za otvaranje n dužina: 600 mm n poklopce CityTop HR, CityTop M i Multitop BEG n slivne rešetke Multitop n mosne slivnike HSD-2 1,5600643
Košara za nečistoću n vruće cinčana n mosne slivnike HSD-2 1,758268
Mosni slivnici HSD-2 elični mostovi
ACO prednosti proizvoda
n sigurna za korištenje na prometnicama zahvaljujući jednostranom zglobu i vijčanom zaključavanju, bez potrebe za održavanjem
n jednodijelni okvir iz vruće cinčanog čelika
S 235 JR
n procjedni otvori na bočnim stjenkama okvira
n dosjedne površine rešetke strojno obražene za optimalno nalijeganje
n rešetka se otvara do 110
n rešetka iz nodularnog lijeva EN-GJS-500-7
Izvedba za čelične mostove

n Mosni slivnik prema HRN EN 124-2:2015
n Razred opterećenja D400
n Vanjske mjere okvira 260 500 mm
n Širina otvora 38 mm
n Površina upoja 610 cm
n Vruće cinčana košara za nečistoću
n Razina kvalitete zavara B prema HRN EN 1090-2 za klasu izvedbe E C4

Dimenzije Površina upojaMasa Razred opterećenja Art.br. irinaDužinaVisina [mm] [cm2][kg]
Opis


Ključ za otvaranje
n veličina 18/22 mm
Košara za nečistoću n vruće cinčana
26050035561060,0D4004929.09.00
Pogodan za
n mosne slivnike HSD-2 n sva zaključavanja na poklopcima iz programa CityTop HR, CityTop M i Multitop
Masa Art.br. [kg]
1,54143.00.00
n mosne slivnike HSD-2 1,758268
Mosni slivnici HSD-2 eljeznički mostovi Ø585 mm
ACO prednosti proizvoda
n mosni slivnik za armirano betonske
željezničke mostove, s procijednom kuglastom rešetkom, za ugradnju ispod tucaničkog zastora
n prirubnica za prihvat hidroizolacije izvedena sa 6 procijednih otvora za propuštanje vode nakupljene na hidroizolaciji
n kuglasta rešetka promjera 450 mm pričvršćena za tijelo slivnika vijkom M15
n ekološka izvedba bez završnog premaza
n vertikalni izljev DN200 za spoj na SML/BML cijev
Izvedba za željezničke mostove

n Vanjski promjer 585 mm
n Od sivog lijeva EN-GJL-200
n Površina upoja 240 cm
n Pričvrsni vijak izveden od nehrđajućeg čelika 1.4301
n Sukladan smjernici DB Netz, Deutsche Bahn Group, M-ENT 804.9020

Dimenzije Površina upojaMasa Razred opterećenja Art.br. irinaDužinaVisina [mm] [cm2][kg]
260500355240130,0D4004905.90.00

Infrastrukturni poklopci Secant
Infrastrukturni poklopci Secant

Infrastrukturni poklopci Secant Informacije o proizvodima
ACO Secant poklopci okana idealni su za ugradnju na okna za upravljanje, održavanje, opskrbu i odlaganje, kao i okna kabelskih kanala u industrijskim, javnim ili privatnim zonama.
Secant poklopci okana su modularni sustav. Omogućuju neograničenu zasebnu primjenu. Program nudi rješenje za gotovo svako okno kvadratnog ili pravokutnog otvora. BEGU poklopci tvornički zapunjeni betonom, poklopci za biranu završnu ispunu ili poklopci od lijevanog željeza omogućuju jedinstvenu primjenu zavisno o područjima ugradnje. Razred opterećenja B125, D400 i F 900 prema HRN EN 124-2:2015 U središtu svakog poklopca moguće, zavisno o vrsti poklopca, zalijepiti ili umetnuti u beton oznaku identifikacije ili namjene okna ili vlasnika (operatera) okna.
konična bočna stranica poklopca
poklopci utora za otvaranje n za jednostavniju uporabu
n za olakšano čišćenje
Razredi opterećenja
n A15 n B125 n C250 n D400 n E600 n F900
prema HRN EN 124 i DIN 1229 Izvedbe
lijevano željezni poklopci za in-situ ispunu, tvornički zapunjeni betonom C35/45 (BEG ) ili standardni (SOL D) lijevano željezni Materijali
lijevano željezo EN-GJL/EN-GJS i beton C35/45
Mjesta primjene
n kontejnerski terminali i manipulacijske površine






n industrijske zone n zračne luke n željeznice










poklopac
n otvaraju se neovisno, uzimajući u obzir smjer otvaranja
Infrastrukturni poklopci Secant Informacije o proizvodima
n BEGU poklopac
n tvornički zapunjen betonom C35/45
okvir iz sivog lijeva EN-GJL 200 za razrede opterećenja B125, D400 ili F900
poklopac iz lijevanog željeza
n BEGU poklopac i poklopac za ispunu B125 i D400 iz sivog lijeva EN-GJL-200
n lijevano željezni poklopac F900 iz nodularnog lijeva EN-GJS-500-7


kompozitni dilatacijski umetci
n osiguravaju optimalno naslijeganje poklopca u okvir n prihvatljivi za okoliš

birana završna ispuna



bez buke i trošenja
n zahvaljujući visokoj kvaliteti strojne obrade koja jamči stabilnost poklopca u okviru

n osiguranje protiv uzgona n otežano neovlašteno otvaranje

Kako bi uklopili poklopac u okolni pod, moguće je birati završnu ispunu poklopca.
Na gradilištu je moguće izvesti ispunu bojanim ili dekorativnim betonom, asfaltbetonom ili industrijskim pločicama.
Razred opterećenja prema HRN EN 124 postiže se bez ikakve ispune.
Infrastrukturni poklopci Secant Informacije o proizvodima
ACO Secant višedijelni poklopci omogućavaju zatvaranje velikih otvora korištenih za smještaj velikih pumpi ili prepumpnih postrojenja, pripadajuće armature te generatora, transformatora ili sličnih uređaja u javnim ili industrijskim zonama.
Poklopci se sastoje od okvira iz lijevanog željeza, jednog ili više poprečnih nosača i više segmenata poklopaca. Visoka kvaliteta mehaničke obrade dodirnih površina i površina oslona poklopaca, okvira i poprečnih nosača osiguravaju da sve komponente optimalno nasjedaju jedna u drugu, bez zazora. ACO Secant poklopci, stoga, ne stvaraju buke prilikom prelaska vozila, a trošenje dodirnih površina i površina oslona je u potpunosti izbjegnuto. Secant višedijelni AREA poklopci mogu se ugraditi iznad okana velikih otvora, širine do 2900 mm i gotovo neograničene duljine. Svi poklopci, kao i poprečni nosači potrebni za takve veličine pokrova, mogu se potpuno ukloniti.

izvadivi poprečni nosači
n mogu se izvaditi nakon uklanjanja svih poklopaca i osiguravaju puni svijetli otvor u okviru

Razredi opterećenja
n A15 n B125 n C250 n D400 (do 30 km/h) prema HRN EN 124-2 i DIN 1229 Izvedbe
s N-S T poklopcima za biranu završnu ispunu, te BEG poklopcima tvornički zapunjenima betonom ili SOL D lijevano željeznim poklopcima prema zahtjevu Materijali
lijevano željezo EN-GJL/EN-GJS beton C35/45





Mjesta primjene n okna velikih okvira n parkirališta i terminali















pojedini poklopci se otvaraju neovisno o ostalima



n uzimajući u obzir smjer otvaranja







Infrastrukturni poklopci Secant Informacije o proizvodima
za područja ugradnje razreda opterećenja B125 do D400 – 30 km/h




završna ispuna poklopca izvodi se na gradilištu prilikom ugradnje

poklopci utora za otvaranje



















bez buke i bez trošenja dodirnih površina
n zahvaljujući visokoj kvaliteti strojne obrade koja jamči stabilnost poklopca u okviru

Infrastrukturni poklopci Secant
BEGU poklopac
B125
ACO prednosti proizvoda
n visoka kvaliteta strojne obrade dosjeda poklopca i okvira jamči stabilnost poklopca
n kompozitni dilatacijski umetci osiguravaju optimalno naslijeganje poklopca u okvir
n okvir i poklopac iz sivog lijeva EN-GJL-200
n opcija vijčanog zaključavanja
BEGU poklopac
n Poklopci prema HRN EN 124-2:2015 i DIN 1229
n Komplet ključeva za otvaranje (1000 41 45) se isporučuje zasebno
n poklopac iz sivog lijeva EN-GJL-200 tvornički zapunjen betonom C35/45
Smjer otvaranja

Svijetli otvor Vanjske mjere VisinaMasa
[mm] [mm] [mm] [mm][mm][kg]
Bez vijčanog zaključavanja S vijčanim zaključavanjem
Svijetli
otvor
Vanjske
mjere VisinaMasa
vijčanog zaključavanja S vijčanim zaključavanjem
Svijetli otvor Vanjske mjere
VisinaMasa
vijčanog zaključavanja S vijčanim zaključavanjem
Svijetli otvor Vanjske mjere VisinaMasa
Svijetli otvor
Vanjske mjere VisinaMasa
Svijetli otvor Vanjske mjere VisinaMasa
Infrastrukturni poklopci Secant
IN-SITU poklopac B125
ACO prednosti proizvoda
n visoka kvaliteta strojne obrade dosjeda poklopca i okvira jamči stabilnost poklopca
n kompozitni dilatacijski umetci osiguravaju optimalno naslijeganje poklopca u okvir
n okvir i poklopac iz sivog lijeva EN-GJL-200
n opcija vijčanog zaključavanja
n moguće izvesti ispunu bojanim ili dekorativnim betonom, asfaltbetonom ili industrijskim pločicama
IN-SITU poklopac
n Poklopci prema HRN EN 124-2:2015 i DIN 1229
n Komplet ključeva za otvaranje (1000 41 45) se isporučuje zasebno
n poklopac iz sivog lijeva EN-GJL-200 za biranu završnu ispunu
(d)
(b)
Smjer otvaranja užina (b) užina (d)

Svijetli otvor Vanjske mjere VisinaMasa Bez vijčanog zaključavanja S vijčanim zaključavanjem irina (a) Dužina (b) irina (c) Dužina (d)
[mm] [mm] [mm] [mm][mm][kg]
Svijetli
otvor Vanjske mjere VisinaMasa
Svijetli
otvor Vanjske mjere VisinaMasa
zaključavanja
zaključavanjem
Svijetli
otvor Vanjske mjere VisinaMasa
Svijetli otvor Vanjske mjere VisinaMasa Bez vijčanog zaključavanja S vijčanim zaključavanjem
Infrastrukturni poklopci Secant
SOLID poklopac
ACO prednosti proizvoda
n visoka kvaliteta strojne obrade dosjeda poklopca i okvira jamči stabilnost poklopca
n kompozitni dilatacijski umetci osiguravaju optimalno naslijeganje poklopca u okvir
n okvir iz sivog lijeva EN-GJL-200, poklopac iz nodularnog lijeva EN-GJS-500-7
n opcija vijčanog zaključavanja
SOLID poklopac
n poklopac iz nodularnog lijeva EN-GJS-500-7
Öffnungsrichtung
Svijetli otvor
n Poklopci prema HRN EN 124-2:2015 i DIN 1229
n Komplet ključeva za otvaranje (1000 41 45) se isporučuje zasebno

Vanjske mjere VisinaMasa
Bez vijčanog zaključavanja S vijčanim zaključavanjem
Svijetli otvor
mjere VisinaMasa
2220 6131609.20.051609.20.06
ACO prednosti proizvoda
n zahvaljujući visokoj kvaliteti strojne obrade koja jamči stabilnost poklopca u okviru, bez buke i bez trošenja dodirnih površina
n jednostavno otvaranje zbog koničnih stranica poklopaca
n razred opterećenja prema HRN EN 1242:2015 postiže se bez ikakve ispune
n poprečni nosači mogu se potpuno izvaditi čime se osigurava puni svijetli otvor poklopca
višedijelni poklopac
n Poklopci prema HRN EN 124-2:2015
n Poklopci i okvir iz sivog lijeva EN-GJL-200
n Poprečni nosači iz vruće cinčanog čelika
n Komplet ključeva za otvaranje (1000 41 45) se isporučuje zasebno
n Preostale dostupne veličine na upit
n poklopac iz sivog lijeva EN-GJL-200 za biranu završnu ispunu

vijčanim

Poklopac utora za otvaranje n in rastrukturne poklopce Secant 0,01




Komplet ključeva za otvaranje
n Sastoji se od: o 2 ručke za podizanje o ključ
o 2 ručke za nošenje
Ručka za podizanje n in rastrukturne poklopce Secant
Ključ
Ručka za nošenje n in rastrukturne poklopce Secant


Kabelski poklopci Trigona / KSA
Informacije o proizvodima
Sukladan normi. Inovativan. Ekonomičan u korištenju.
Kabelski poklopac Trigona s trobridnim segmentnim poklopcima ne impresionira samo svojim jednostavnim upravljanjem i funkcionalnošću. Optimalnim dizajnom, inovativnom tehnologijom i učinkovitim izborom materijala, osigurava jednostavno otvaranje i zatvaranje poklopca koji se pojedinačno može skinuti. Nastanak buke kod prelaska vozila je smanjen na najmanju moguću mjeru zahvaljujući potpori u tri točke.
prihvat kopče za transport

n protuklizna struktura površine


Razredi opterećenja n A15 n B125 n C250 n D400 prema HRN EN 124 i RAL-GZ 692
Materijali
lijevano željezo EN-GJS / EN-GJL beton C35/45
Mjesta primjene
n pješačke zone, biciklističke n javni prostori i trgovi

dostupan za ugradnju u površine razreda opterećenja B125 i D400






Kabelski poklopci Trigona / KSA Informacije o proizvodima
zaključavanje
n standardno zaključavanje punom TPU kopčom ne zahtjeva održavanje
poklopac
n siguran samozatvarajući segmentni poklopac

uložak u tri točke
n uložak u ležištu u okviru stabiliziran je trnovima

n opcije zaključavanja sa zakretnim klinom
segment br. 1
n samo prvi segment ima zaključavanje, ostale na mjestu osigurava redoslijed otvaranja


n samočisteći zglob s kutom otvaranja od 100°
okvir obložen betonom
n otporan na uvijanje
n dostupan i kao samonivelirajući Bituplan
Kabelski poklopci Trigona / KSA
Informacije o proizvodima
ACO kabelski poklopci svoju namjenu, prije svega, pronalaze u području telekomunikacija, posebno za reviziju elektrotehničkih sklopova i optičkih kabela, ali i na području gradskih rasvjeta, za signalne sustave i za sustave daljinskog grijanja. Također su prikladni za pokrivanje okana crpnih stanica, transformatorskih sustava te upravljačkih okana u mnogim drugim područjima primjene.
Razredi opterećenja
n A15 n B125 n C250 n D400 n E600 n F900
prema HRN EN 124/D N 1229 i RAL-G 692
Izvedbe
lijevano željezni poklopci za in-situ ispunu, tvornički zapunjeni betonom C35/45, vodotijesni modeli
Materijali
lijevano željezno EN-GJL/EN-GJS beton C35/45
Mjesta primjene
n kontejnerski terminali i manipulacijske površine
n industrijske zone n zračne luke n željeznice
osiguranje uležištenja masom
n velika masa poklopca osigurava veliku stabilnost poklopca




uložak protiv lupanja








Kabelski poklopci Trigona / KSA Informacije o proizvodima
visoki okviri ravne bočne stijenke
n BEGU okviri idealni su za ugradnju u površine ili kolnike s opločenjem





prihvat kopče za transport














masivni okvir otporan na uvijanje


n velika masa i visina okvira te njegove ravne bočne stjenke jamac su dugotrajnosti, bez potrebe za sanacijom




poklopci
ACO prednosti proizvoda
n segmentni trobridni poklopci olakšavaju uporabu krajnjem korisniku
n poklopci iz nodularnog lijeva EN-GJS-500-7
n visoki, masivni BEGU okviri iz sivog lijeva EN-GJL-200 obloženog betonom C35/45 jamče dugotrajnost, a zbog ravne bočne stjenke pogodni su za ugradnju u opločenje
n samonivelirajući BITUPLAN okviri jamče preciznu ugradnju u asfaltni kolnik i prate njegove deformacije te spriječavaju prijenos opterećenja na okno
BEGU okvir 700x700
n Poklopci prema HRN EN 124-2:2015 i RAL-GZ 692
n Opcija zaključavanja zakretnim klinom
n Dostupni u samonivelirajućem BITUPLAN okviru
n Samočisteći zglobovi i zaključavanje punom TPU kopčom te uvjetovano redoslijedom otvaranja osiguravaju poklopce u okviru
n okvir iz sivog lijeva EN-GJL-200 obložen betonom C35/45

BEGU okvir 1400x700
n okvir iz sivog lijeva EN-GJL-200 obložen betonom C35/45

Svijetli otvor
Vanjske mjere


Zaključavanje PU kopčom
Zaključavanje zakretnim klinom
BITUPLAN okvir 700x700
n samonivelirajući okvir iz sivog lijeva EN-GJL-200 za ugradnju izravno u asfalt

BITUPLAN okvir 1400x700
n samonivelirajući okvir iz sivog lijeva EN-GJL-200 za ugradnju izravno u asfalt

Svijetli otvor
Vanjske mjere
Zaključavanje PU kopčom Zaključavanje zakretnim klinom
irina (a)Dužina (b) irina (c)Dužina (d)Visina Art.br. Art.br. [mm] [mm][mm][mm][mm][kg]
ACO prednosti proizvoda
n visoka stabilnost poklopca u okviru osigurana je velikom masom samog poklopca
n poklopci iz sivog lijeva EN-GJL-200 zapunjeni betonom C35/45 ili za biranu završnu ispunu
n visoki, masivni BEGU okviri iz sivog lijeva EN-GJL-200 obloženog betonom C35/45 jamče dugotrajnost, a zbog ravne bočne stjenke pogodni su za ugradnju u opločenje
n opcija vodotijesnog poklopca s dodatnim vijčanim zaključavanjem
FIX okvir 700x700
n okvir iz sivog lijeva EN-GJL-200 s dosjednom stopom
n Poklopci prema HRN EN 124-2:2015/ DIN 1229 i RAL-GZ 692

FIX okvir 1400x700
n okvir iz sivog lijeva EN-GJL-200 s dosjednom stopom

irina (a)Dužina (b) irina (c)Dužina (d)Visina
[mm] [mm][mm][mm][mm][kg]
BEGU okvir 700x700
n okvir iz sivog lijeva EN-GJL-200 obložen betonom C35/45

BEGU okvir 1400x700
n okvir iz sivog lijeva EN-GJL-200 obložen betonom C35/45

Svijetli otvor Vanjske mjere MasaVentiliraniBez ventilacijeVodotijesni
irina (a)Dužina (b) irina (c)Dužina (d)Visina Art.br.Art.br.Art.br. [mm] [mm][mm][mm][mm][kg] D400
700 700 890 890 160 181120113012011291201136 1470 1630 282120122412012221201226 F900 700 700 890 890 160 254120122012012191201221 1470 1630 407120122512012231201227
IN-SITU poklopac
n poklopac iz sivog lijeva EN-GJL-200 za biranu završnu ispunu
n okvir iz sivog lijeva EN-GJL-200 obložen betonom C35/45

Svijetli otvor
Vanjske mjere

MasaOkvirPoklopac irina (a)Dužina (b) irina (c)Dužina (d)Visina Art.br.Art.br. [mm] [mm] [mm] [mm] [mm] [kg]
D400 600 650 750 800 175 15186130602054





Poluga za otvaranje n dužina: 600 mm n poklopce Trigona i SA 1,5 600643
Ključ za otvaranje n veličina 18/22 mm n poklopce Trigona i SA 1,5 4143.00.00
Kuka n dužina: 800 mm n pocinlani čelik n poklopce Trigona i SA 1,5 57191
Set za transport n Sastoji se od: o 4 očna vijka o 1 imbus ključ n sve okvire Trigona i SA 1,5 1201331
Ključ za vodotijesne poklopce o krom-vanadij čelik o mjere: 70 x 291 mm o D N 911 S 14 n vodotijesne poklopce SA 1,5 1015463

Specijalni poklopci Servokat-GD
Specijalni poklopci Servokat-GD Za okna i opskrbne kanale
Specijalni poklopci Servokat-GD Informacije o proizvodima
ACO specijalni poklopci Servokat-GD (Gasdruck) pravo su rješenje za slučaj potrebe čestog pristupa oknu zbog pregleda ili održavanja. Poklopac opremljen plinskim oprugama može otvoriti samo jedna osoba, bez dodatne pomoći.
Zavisno o potrebama i namjeni, poklopac može biti opremljen mehanizmom za sigurnosni izlaz iz okna. Kod takvih poklopaca zaključavanjem se upravlja s gornje, ali i donje strane poklopca.
Također je moguće, na zahtjev kupca, isporučiti poklopac za ispunu keramikom, kao okolni pod.
protuklizna površina
n poklopci izvedeni od rebrastog lima
plinska opruga
n za pomoć kod otvaranja

Razredi opterećenja
n A15 n B125 n C250 n D400
prema HRN EN 124-3
Izvedba
plino/vodotijesan pri atmosferskom tlaku
Materijali
vruće cinčani čelik 1 0037 nehrđajući čelik 1 4301 (A S 304)
Mjesta primjene
n javne prometne površine
n željeznički kolodvori

n terminali za opskrbu n zračne luke

poklopac osiguran od zatvaranja
n sigurnosna kopča koja se automatski uglavljuje kada se poklopac otvori

ravna površina okvira
n jednostavna za čišćenje







Specijalni poklopci Servokat-GD Informacije o proizvodima




vijčano zaključavanje









n otvaranje i zatvaranje ključem s gornje strane
n opcija sa sigurnosnim otvaranjem iz okna – za brzo oslobađanje poklopca polugom s donje strane poklopca
plino/vodotijesan
n kontinuirana brtva u poklopcu
88 °
n kut otvaranja od ca. 88° za brz i siguran ulaz/izlaz iz okna












materijali:
- vruće cinčani čelik 1.0037 - nehrđajući čelik 1.4301 (AISI 304)
ACO prednosti proizvoda
n poklopci od vruće cinčanog čelika 1.0037 ili nehrđajućeg čelika 1.4301
n plino/vodotijesan pri atmosferskom tlaku
n sa zglobom
n s vijčanim zaključavanjem

n Poklopac prema HRN EN 124-3:2015
n Opcija sa sigurnosnim otvaranjem za brzo oslobađanje poklopca polugom, iz okna
n S plinskim oprugama za olakšano upravljanje
n Ključ za otvaranje - dodatna oprema
n Ostale dimenzije materijali te izvedba za ispunu kao okolni pod na upit
r

Dodatna oprema
Ključ za otvaranje masa ca 1,5 kg art br 4143 00 00

Standardno vijčano zaključavanje

Svijetli otvor
Sigurnosno otvaranje iz okna

Standardno vijčano zaključavanje Sigurnosno otvaranje iz okna irina (a)Dužina (b) irina (c)Dužina (d)Visina Art.br. Art.br. [mm] [mm][mm][mm][mm][kg]
Vruće cinčani čelik 1 0037
Nehr ajući čelik 1 4301
Vanjske mjere
Masa
ACO prednosti proizvoda
n poklopci od vruće cinčanog čelika 1.0037
ili nehrđajućeg čelika 1.4301
n plino/vodotijesan pri atmosferskom tlaku
n sa zglobom
n s vijčanim zaključavanjem
n Poklopac prema HRN EN 124-3:2015
n Opcija sa sigurnosnim otvaranjem za brzo oslobađanje poklopca polugom, iz okna
n S plinskim oprugama za olakšano upravljanje
n Ključ za otvaranje - dodatna oprema
n Ostale dimenzije materijali te izvedba za ispunu kao okolni pod na upit
ruće cinčani čelik e r ajući čelik


Dodatna oprema
Ključ za otvaranje masa ca 1,5 kg art br 4143 00 00

Standardno vijčano zaključavanje

Sigurnosno otvaranje iz okna

Svijetli otvor Vanjske mjere Masa
Standardno vijčano zaključavanje
Sigurnosno otvaranje iz okna irina (a)Dužina (b) irina (c)Dužina (d)Visina
[mm] [mm][mm][mm][mm][kg]
Vruće cinčani čelik 1 0037
Nehr ajući čelik 1 4301


Sustav zaštite stabala Wotan
Drveće je nezamijenjivo i neophodno za kreiranje zdravih prostora za življenje. ACO drvne rešetke i ACO ograda za zaštitu stabala osigurava prostor za život drveća, naročito u gradovima. Ograde spriječavaju oštećenje debla, a rešetke štite područje korijena od zbijanja, osiguravajući dovoljnu opskrbu kisikom i ventilaciju područja korijena.
Stabla su u naseljenim mjestima izložena brojnim vanjskim utjecajima (vožnja preko korijenja, zapinjanje i udaranje o stablo ili naslanjanje bicikala) koji mogu uzrokovati:
n zbijanje tla u prostoru korijenja koje može utjecati na opskrbu korijena kisikom i vodom
n oštećenje kore stabla čime se prekidaju vodovi opskrbe stabla.
Takvi stresori koji uzrokuju mehanička oštećenja stabala mogu se spriječiti postavljenjem zaštitnih drvnih rešetki i ograda ACO Wotan.
Wotan sustavom zaštite stabala ACO nudi sve tehničke preduvjete za optimalnu zaštitu životnog prostora gradskog drveća. Zdravo i lijepo zelenilo: oba zahtjeva mogu se optimalno zadovoljiti koristeći sustav zaštite stabala ACO Wotan. Kako drvne rešetke tako i ograde za zaštitu stabala pružaju stablima sigurno stanište čak i u gusto naseljenim područjima gradova.
ašto drveće
n smanjuju količinu onečišćenja i prašine u zraku
n proizvode kisik
n smanjuju temperaturu zraka n isparavaju vodu povećavajući vlažnost zraka
n smanjuju buku
n dovode prirodu i zelenilo u gradove
n oblikuju grad i usmjeravaju gradske prometne tokove
n stabla poboljšavaju kvalitetu života
U novije vrijeme sve su češće rasprave o potrebi sadnje drveća u gradovima zbog njihovog učinka na smanjenje onečišćenja zraka sitnim česticama. U nekim slučajevima sadnja drveća je čak i predviđena legislativom.
Važno je uskladiti estetski ugodna rješenja s trajnim i tehnički izvedivima za sve građevinske namjene.

Sustav zaštite stabala Wotan
ACO drvne rešetke štite prostor korijenja drveća od zbijanja, čime se omogućuje prozračnost prostora i
dostatna opskrba korijena kisikom i vodom.
Dostupni su različiti oblici i veličine, kako bi se zadovoljile sve pojedine potrebe.
n 50 kN
Opterećenje
Oblik
kvadratni, pravokutni, okrugli
Materijal
Lijevano željezo EN-GJS-400-15
Mjesta primjene
n ulice
n parkirališta
n benzinske postaje
i odmorišta
n željeznički kolodvodri
n školska igrališta
n središta gradova
i stare gradske jezgre
n parkovi i prostori za rekreaciju
Samonosiva, bez podkonstrukcije, krajnje izdržljiva
ACO drvna rešetka koristiti se bez podkonstrukcije, a s odgovarajućim temeljima može podnijeti opterećenja do 50 kN.
Niska visina konstrukcije, između ostalog, olakšava i premošćavanje postojećeg prostora korijenja stabala.
Obzirom da se sastoji od pojedinih djelomičnih segmenata rešetke koji su međusobno sigurno povezani preklopnim spojnicama, sustav zaštite stabala Wotan je modularni sustav koji omogućuje različite varijacije oblika i veličina.
irina otvora na Wotan drvnim rešetkama je 18 mm. 6 cm visoki segmenti rešetke izrađeni su od nodularnog lijeva EN-GJS-400-15, visoko kvalitetnog materijala koji se odlikuje svojstvima sličnima čeliku (visoka vlačna čvrstoća, visoka granica izdržljivosti).
Nodularni lijev je otporan na koroziju, bez potrebe za održavanjem.
Segmenti drvnih rešetki Wotan sastavljaju se na gradilištu.
Svi elementi zaštite stabala Wotan obloženi su crnim završnim premazom na bazi vode.






Konzolna konstrukcija
Sustav zaštite stabala Wotan Informacije o proizvodima

Novo zasađena
ACO prednosti proizvoda
n mnoge varijacije oblika i veličina
n veličine otvora preko 4,0 m
n samonosiva, bez podkonstrukcije
n niska visina ugradnje (6 cm)
n unutarnji otvor može se prilagođavati povećanom opsegu stabla kroz godine rasta
n širina otvora 18 mm
n drvne rešetke izvedene od nodularnog lijeva EN-GJS-400-15
n opterećenja do 50 kN
n dostupne ograde za zaštitu stabala


Drvne rešetke Wotan
Samonosive, bez podkonstrukcije
50 kN
ACO prednosti proizvoda
n samonosive, bez podkonstrukcije, do 50 kN
n Nodularni lijev EN-GJS-400-15
n Visina: 60 mm
n Jednostavno i sigurno učvršćivanje spojnicama
n Dostupne ograde za zaštitu stabala

Drvne rešetke Wotan
Samonosive, bez podkonstrukcije 50 kN
Pribor
Ključ za montažu
7,4 56237
Vijak s kukom za podizanje 0,9 56687
n drvnu rešetku Wotan
Kopča za zaključavanje 1,0 56656
Poklopac otvora 1,0 61496
Drvne rešetke Wotan
Samonosive, bez podkonstrukcije
ACO prednosti proizvoda
n samonosive, bez podkonstrukcije, do 50 kN
n Nodularni lijev EN-GJS-400-15
n Visina: 60 mm
n Jednostavno i sigurno učvršćivanje spojnicama
n Dostupne ograde za zaštitu stabala

Beispielzeichnung Typ 12
Primjer, tip 12
x 3200320 x
x 2880640 x 640192
x 3200640 x 640118
x 1920960 x 960317
x 1600640 x 640318
x 1280640 x 640323
x 19201920 x 960307
x 35201600 x 96025
x 19202240 x 960306
x 25601280 x 640302
3200 x 2240960 x 960322
3520 x 1920960 x 960
3840 x 960640 x 640320
4160 x 1600960 x 640311
x 28802880 x 1600303
x 3200960 x 960313
Ključ za montažu
Vijak s kukom za podizanje
Kopča za zaključavanje
n drvnu rešetku Wotan
Drvne rešetke Wotan Samonosive, bez podkonstrukcije
7,4 56237
56687
56656
Poklopac otvora 1,0 61496
Drvne rešetke Wotan
Samonosive, bez podkonstrukcije
kN
ACO prednosti proizvoda
n samonosive, bez podkonstrukcije, do 50 kN
n Nodularni lijev EN-GJS-400-15
n Visina: 60 mm
n Jednostavno i sigurno učvršćivanje spojnicama
n Dostupne ograde za zaštitu stabala

Beispielzeichnung Typ 44
Ključ za montažu
Vijak s kukom za podizanje
Kopča za zaključavanje
n drvnu rešetku Wotan
Drvne rešetke Wotan Samonosive, bez podkonstrukcije
7,4 56237
56687
56656
Poklopac otvora 1,0 61496
ACO prednosti proizvoda
n dostupno nekoliko različitih dizajna
n mogućnost kompenzacije pada
n Pocinčani čelik
n Premaz na bazi vode, RAL 9005
n 2-dijelne
n Sadrži pribor za učvršćivanje

Mjere Promjer visinapri dnupri dnuna vrhu [mm] [mm] [mm][mm] [kg]
Pribor
3135171820–118055034
3135161820 1180 x 1180 –55034
Kvaliteta i pouzdanost
Lijevani proizvodi iz asortimana ACO niskogradnje proizvode se u vlastitoj ljevaonici tvrtke ACO
Guss GmbH. Podliježu strogim kontrolama kvalitete. Proizvodnja je pod vanjskim nadzorom od strane Ureda za ispitivanje materijala u Kaiserslauternu u skladu s relevantnim standardima.

ACO tehnologija lijevanja na najvišoj razini
ACO lijevanje – kvalitetno lijevanje za sve zahtjeve
Kada je u ACO-u potrebna vještina izrade, s povjerenjem se oslanjamo na mnoge generacije dobro utemeljenog ljevaoničkog iskustva - i kombiniramo ga s najnovijom tehnologijom. Modernim srednjefrekventnim talionicama u našim pogonima proizvodimo sivi lijev s lamelarnim grafitom i nodularni lijev s nodularnim grafitom. ak i prije same proizvodnje odljevka, provode se računalne simulacije lijevanja te hlađenja i skrućivanja kako bi se optimizirao tehnički dizajn i proizvodni proces. ACO-ov kno ho , uparen s dugogodišnjim iskustvom tržišnog lidera, karakterizira naše proizvode za niskogradnju, baš kao i tehnologiju gradnje i odvodnje. Proizvodi su izvrsne kvalitete, a funkcionalna svojstva se stalno poboljšavaju.
Koji materijal je bolji?
Za lijevanje kanalskih proizvoda oba materijala, lijevano željezo s lamelarnim grafitom (sivi lijev) EN-GJL prema HRN EN 1561:2011 i lijevano željezo s nodularnim grafitom (nodularni lijev) prema HRN EN 1563:2018 pokazali su se uspješnim. Oba materijala karakteriziraju visoka otpornost na koroziju i gotovo neograničene mogućnosti oblikovanja. Zbog svoje mikrostrukture, sivi lijev ima izvrsna svojstva prigušenja. U usporedbi sa sivim lijevanim željezom, nodularni lijev ima znatno veće vrijednosti čvrstoće istezanja. Stoga je posebno prikladan za područja primjene u kojima su potrebni dijelovi pod visokim opterećenjem s malom vlastitom masom. Oba materijala imaju prednosti specifične za materijal. Stoga se ne postavlja pitanje Koji je materijal bolji , već Koji je materijal optimalan za odgovarajuću primjenu .
ACO može proizvoditi i prerađivati oba materijala u vlastitim ljevaonicama opremljenim najsuvremenijim talionicama.

ijevano željezo s lamelarnim grafitom
Moderne srednjefrekventne indukcijske peći za taljenje, pogon ACO Kaiserslautern
ijevano željezo s nodularnim grafitom (sivi lijev) EN prema HRN EN 1561:2011 (nodularni lijev) prema HRN EN 1563:2018
n Visoka otpornost na koroziju od kanalizacije, sredstava za odleđivanje i drugih utjecaja okoline
n Visoka tlačna čvrstoća 600 do 1080 N/mm2
n Optimalna svojstva prigušivanja
n Vlačna čvrstoća 100 do 350 N/mm2
n Nisko istezanje pri prekidu, mala elastična deformacija
n Zbog ovih svojstava, sivi lijev je idealan materijal za okvire poklopaca okana i slivnih rešetki
Zaštita okoliša tema je koju nitko više ne može zanemariti, pa tako ni proizvođači poklopaca okana i slivnih rešetki za odvodnju prometnih površina. Proizvodi za odvodnju prometnih površina obično se izrađuju od lijevanog željeza. Lijevano željezo se kroz desetljeća dokazalo kao materijal pogodan za odvodnju prometnih površina. Jedan od razloga je njegova visoka otpornost na koroziju. Zbog svoje savitljivosti i zavarljivosti, čelik je prikladniji za posebne poklopce u malim količinama.
Međutim, u usporedbi s lijevanim željezom, konstrukcijski čelici koji se obično koriste imaju znatno nižu otpornost na koroziju. Kako bi se izbjegla kratkotrajna oštećenja i slabljenje konstrukcije korozijom, kod korištenja čelika u području odvodnje nužna je učinkovita zaštita od korozije nanošenjem premaza. Ovdje je nedostatak što je oštećenje premaza praktički neizbježno. Zaštitni učinak premaza može biti dobar onoliko koliko je dobra njegova najslabija točka, tj. za održavanje učinkovite zaštite od korozije potrebno je kontinuirano praćenje zaštitnog sloja i otklanjanje oštećenja. To značajno povećava napore i troškove održavanja.
Za razliku od toga, nakon početnog korodiranja lijevanog željeza, površinskom oksidacijom stvara se zaštitni sloj koji se uglavnom temelji na grafitu i perlitu. Taj zaštitni sloj
n Visoka otpornost na koroziju od oborina, sredstava za odleđivanje i drugih utjecaja okoline
n Visoka tlačna čvrstoća 700 do 1150 N/mm2
n Umjerena svojstva prigušivanja
n Visoka vlačna čvrstoća 350 do 900 N/mm2
n Visoko istezanje pri prekidu, velika elastična deformacija
n Zbog ovih svojstava, nodularni lijev je idealan materijal za poklopce okana i slivne rešetke u zonama visokog intenziteta prometa
sprječava daljnje prodiranje korozije u strukturu materijala. Lijevano željezo je praktički neosjetljivo na vanjske utjecaje, npr. otopine soli koje zimi nastaju uslijed korištenja cestovne soli. Stoga premaz kao zaštita od korozije nije potreban!!
Premazivanje poklopaca okana i slivnih rešetki iz lijevanog željeza u funkciji odvodnje prometnih površina stoga ima isključivo vizualnu funkciju.
Ako se premaz nanosi iz vizualnih razloga, treba imati na umu da to nije trajno, posebno u prometnim površinama, te da ga je potrebno redovito obnavljati kako bi se očuvao izgled. Odluka da se koristi prirodni lijev ne samo da štiti okoliš već i smanjuje troškove održavanja.
Izostavljanje površinskog premaza poklopaca okana i slivnih rešetki iz lijevanog željeza za odvodnju prometnih površina je u skladu sa standardima (HRN EN 124-2:2015, DIN 19584, itd.). Premazi iz vizualnih razloga su prije iznimka nego pravilo za proizvode od lijevanog željeza. Ako se premazi koriste iz vizualnih razloga, prema RAL GZ 692 smjernici kvalitete za proizvode zaštićene premazima nisu dopuštene boje i lakovi koji sadrže tvari koje onečišćuju vodu. Neophodan je certificirani sustav upravljanja okolišem HRN EN ISO 14001:2015.
Plastične komponente nude najveću moguću slobodu dizajna u smislu oblika i funkcije. Koristimo ovaj potencijal kako bismo izbjegli skupe kombinacije materijala i procesa spajanja. Plastiku koju koristi ACO odlikuje visoka otpornost na lomljenje i izvrsna otpornost na utjecaje okoline.
Jednostavna mogućnost obrade i mala masa opravdavaju iznimnu jednostavnost naših rješenja.

Inovativna i prilagodljiva
Beton igra ključnu ulogu kao materijal u proizvodnji ACO okvira poklopaca i slivnih rešetki, ali i za izgradnju spremnika u tehnologiji separacije i odvodnje. ACO BEGU okviri i poklopci te spremnici u tehnologiji separacije izrađeni su od visoko vodonepropusnog betona, imaju vrlo visoku elastičnost i stabilnost.

Važeće izdanje norme HRN EN 124-1:2015 zamjenilo je prethodno izdanje norme HRN EN 124:2005 i sastoji se od 6 dijelova.
Dio 1 sadrži opća načela izrade i tehničke karakteristike izvedbi, a dijelovi 2 - 6 sadržavaju tehničke karakteristike izvedbi za poklopce i slivne rešetke izrađene od specifičnih materijala.
n HRN EN 124–1 slivne rešetke i poklopci za okna za prometne i pješačke površine o definicije, razredi opterećenja, opća načela izrade tehničke karakteristike izvedbi, metode ispitivanje
n HRN EN 124–2 slivne rešetke i poklopci za okna za prometne i pješačke površine o slivne rešetke i poklopci iz lijevanog željeza
n HRN EN 124–3 slivne rešetke i poklopci za okna za prometne i pješačke površine o slivne rešetke i poklopci iz čelika ili aluminijske legure
n HRN EN 124–4 slivne rešetke i poklopci za okna za prometne i pješačke površine o slivne rešetke i poklopci iz armiranog betona
n HRN EN 124–5 slivne rešetke i poklopci za okna za prometne i pješačke površine o slivne rešetke i poklopci iz kompozitnih materijala
n HRN EN 124–6 slivne rešetke i poklopci za okna za prometne i pješačke površine o slivne rešetke i poklopci iz polipropilena (PP), polietilena (PE) ili polivinil klorida bez dodatka plastifikatora (PVC-U)
Harmonizirana norma je europska norma prihvaćena na temelju normizacijskoga zahtjeva koji je Europska komisija dala priznatim europskim organizacijama za normizaciju (CEN, CENELEC ili ETSI) za primjenu usklađenoga zakonodavstva Unije. Za normu EN 124-1:2015 Komisija EU je odbila usklađenje iz formalnih razloga i još ju nije objavila u Službenom listu EU. Prilog ZA u kojem je npr. sadržaj za CE oznaku, Izjavu o svojstvima proizvoda i početno ispitivanje tipa nisu regulirani. Stoga je CE oznaka za proizvode prema HRN EN 124-1:2015 izostavljena.
lokacija razreda opterećenja po mjestu u radnje prema
Grupa 1 (razred opterećenja A15) rometne površine samo za pješake i bicikliste
Grupa 2 (razred opterećenja B125)
Grupa 3 (razred opterećenja C250)
Grupa 4 (razred opterećenja D400)
Grupa 5 (razred opterećenja E600)
Grupa 6 (razred opterećenja 900)
Nogostupi, pješačke zone1) i slična područja, parkirališta te rampe i plat orme za osobne automobile
a slivne rešetke u zoni rubnjaka koja, mjereno od rubnjaka, seže najviše 0,5 m u kolnik i 0,2 m u nogostup
rometne trake (uključujući pješačke ulice), bankine i parkirališna mjesta odobrena za sve vrste cestovnih vozila
odručja na kojima se odvija promet s visokim osovinskim pritiskom npr kontejnerski terminali, industrijske manipulacijske površine
odručja na kojima se odvija promet s najvišim osovinskim pritiskom npr zračne luke (Airside)
1) ovršine rezervirane za pješački promet, koji se povremeno koristi za opskrbu ili čišćenje te u slučaju nužde
Buderus Kanalguss GmbH www.buderus-kanalguss.de
LOROWERK
K.H. Vahlbrauk GmbH & Co. KG www.loro.de

fbr-Fachvereinigung Betriebs- und Regenwassernutzung e. V. www.fbr.de
Dallmer GmbH Co. KG www.dallmer.de
Kessel GmbH www.kessel.de
ACO podržava rad asocijacije GET (G tegemeinschaft Ent sserungstechnik) - Asocijacije za kvalitetu tehnologije odvodnje. Zahtjevi visoke kvalitete i stroge neutralnosti RAL Instituta za osiguranje kvalitete i označavanje svrstavaju RAL oznake kvalitete među najvažnije oznake kvalitete u Njemačkoj.
Mall GmbH www.mall.info
LGA QualiTest GmbH www.lga.de
ACO proizvodi nose oznaku njemačkog Zavoda za osiguranje kvalitete čime su priznati kao kvalitetni kanalizacijski odljevci. Dodijeljeni su od strane Asocijacije za kvalitetu tehnologije odvodnje.
Sita Bauelemente GmbH www.sita-bauelemente.de Stadtentwässerung Braunschweig GmbH www.stadtentwaesserung-braunschweig.de
Überwachungsgemeinschaft Entwässerungstechnik
Herausgeber: GET-Fachverband Gütesicherung Entwässerungstechnik e.V.
RAL G 9 oznaka kvalitete za
ACO poklopce i slivne rešetke
Geschäftsstelle:
Fachverband GET Postfach 1213 65771 Diez/Lahn
Visoki zahtjevi kvalitete i stroga neutralnost RAL Instituta za osiguranje kvalitete i označavanje svrstavaju RAL oznaku kvalitete među najvažnije oznake kvalitete u Njemačkoj.
Tel.: (0 64 32) 9 36 80
Fax: (0 64 32) 93 68 25
Email: info@fv-get.de Internet: www.fv-get.de
RAL osiguranje kvalitete ispunjava sve zahtjeve i propise o nabavi, kao npr. transparentnost ponude, svojstva proizvoda te ekonomičnost ponude.
Geschäftsführer:
Dipl.-Ing. Ulrich Bachon
Nadležna tijela koja se oslanjaju na RAL oznaku kvalitete zasigurno su na sigurnoj strani zakona. tedite vrijeme i novac.
Grafische Gestaltung, Satz und Lithografie: K13 Werbung und Medien, Wetzlar
Možete biti sigurni da je oznaka kvalitete RAL ažurna i pouzdana.
6 ACO Passavant GmbH
© GET-Fachverband Gütesicherung Entwässerungstechnik e.V. Ausblick
Osim preostalih visokih zahtjeva proizvodnje, proizvodi su prema sustavu upravljanja kvalitetom HRN EN ISO 9001:2015 i neizostavnom sustavu upravljanja okolišem prema HRN EN 14001:2015.
Svi zahtjevi su kontinuirano nadzirani od strane neutralnih, za ispitivanje akreditiranih certifikacijskih tijela.
Samo poklopci okana, slivne rešetke i mosni slivnici koji odgovaraju visokim zahtjevima RAL kvalitete za sigurnost, trajnost i održivost nose oznaku kvalitete RAL GZ 692.
Im nächsten GET-info werden wir über zwei wichtige Neuerscheinungen des DWA-Regelwerks berichten: Entwurf der Merkblattreihe DWA-M 167: “Abscheiderund Rückstausicherungsanlagen in der Grundstücks entwässerung“ wird demnächst in 5 Teilen im Weisdruck vorliegen. Die Merkblattreihe umfasst die Darstellung relevanten Bestimmungen für die jeweiligen Anlagearten mit praxisorientierten Hinweisen zu Einbau, Betrieb, War tung, Kontrolle und Überwachung.
Pri tome se ispituje sigurnost uležištenja, ponašanje poklopaca i rešetki pri nagibu, ponašanje umetka za amortizaciju pri opterećenju te otpornost proizvoda protiv leda i utjecaja atmosferilija.
Certificiranje prema važećoj HRN EN 124-1:2015 izvodi se zasebno i neovisno je o RAL oznaci.
Više dodatnih naprednih tehničkih informacija na: et uete de ili www.aco.hr
Im Entwurf des DWA-M 190: „Eignung von Unternehmen für Herstellung, liche Unterhaltung, Sanierung und Prüfung von Grundstücksentwässerungsan lagen“ sollen einheitlich geltende Kriterien für die Feststellung der Eignung der Unternehmen, die diesbezüglich in der Grundstücksentwässerung tätig sind, zusammensgestellt werden. Im Bereich Abscheiderprüfung stützen sich die Anforderungen im Wesentlichen auf die GET-Güterichtlinien.
Proizvodi s oznakom kvalitete jamče: n visoku kvalitetu n visoku uporabljivost n sigurnost pri korištenju i upravljanju n trajnost i održivost
ACO proizvodi iz lijevanog željeza su certificirani prema HRN EN 124-2:2015 i označeni RAL-GZ 692 oznakom kvalitete.
Obuka i daljnja edukacija
U ACO Akademiji dijelimo znanje i iskustvo s arhitektima, projektantima, proizvođačima i distributerima koji cijene ACO kvalitetu. Pozivamo vas da i vi sudjelujete.
Svaki je projekt drugačiji, ima svoje zahtjeve i svoje izazove. Osim naših proizvoda, nudimo vam naše znanje i usluge kako bismo zajednički razvili prilagođena rješenja - od planiranja do održavanja.
Projektiranje i optimizacija
Natječaji i projektiranje odvodnih rješenja nude brojne mogućnosti. Ali koji koncept dovodi do ekonomski najisplativijeg i tehnički najsigurnijeg rješenja Pomoći ćemo vam da pronađete pravi odgovor.
Savjetovanje i podrška na terenu
Kako bismo osigurali izostanak neugodnih iznenađenja
između projektiranja i primjene rješenja za odvodnju, nudimo vam stručno savjetovanje i podršku na gradilištu.
Održavanje i servis
ACO proizvodi dizajnirani su i proizvedeni da traju.
Našom ponudom ispunjavamo visoko postavljene standarde kvalitete čak i nakon mnogo godina korištenja.
Vaš prvi korak prema uspješnom projektiranju.
Svaki proizvod ACO Niskogradnje integriran je u ACO sustav
Linijski kanali za odvodnju
Cestovni i dvorišni slivnici
Slivne rešetke
Poklopci
Separatori
Havarijski sustavi
Sedimentacijski i filtracijski sustavi
Infiltracijski blokovi
Retencijski blokovi
Regulatori protoka
Prepumpni sustavi
Sustavi zaštite stabala
Zaštita vodozemaca
ACO Građevinski elementi d.o.o.
Savska cesta 103A
10360 Sesvete
Hrvatska
Tel. 00 385 1 2700 140
Fax 00 385 1 2700 141
aco@aco.hr www.aco.hr
ACO. creating the future of drainage