Oakland, CA
Est. 2023

![]()
Oakland, CA
Est. 2023

Portico transforms a former industrial site into a vibrant mixeduse community, contributing to the larger vision for Brooklyn Basin. This new residential neighborhood reconnects Oakland residents with their waterfront, creating a thriving destination featuring public parks, retail spaces, and waterfront amenities.
Project Overview
Portico is a market-rate residential mixed-use development bringing 378 new living units to the area with modern amenities. The site placement is designed creatively for maximum yeild of waterfront views from as many units as possible, as well as from the many amenity decks. The project draws inspiration from Oakland’s storied legacy as a waterfront city and powerhouse shipping port, with a contemporary interpretation of features from the historic 9th Avenue Terminal Building and the old lighthouse that used to live at the mouth of the harbor. Portico is a love letter to Oakland’s waterfront, providing residents a life away from the hustle rooted in community, public space, and environmental health.
SIZE
384,000 sf
378 units
Project Goal Oakland, California 2023
TEAM
Jeff Mertzel, Hyo Hong, Janet Cheng, Felix Lim
CLIENT
CityView

Parcel J carries a rich history tied to Oakland’s industrial and maritime legacy. Originally home to the 9th Avenue Terminal, a state-of-theart addition to the Port of Oakland’s harbor infrastructure in 1930, the site played a crucial role in the city's shipping industry. Initially serving as a bulk cargo terminal, it later functioned as a warehouse storage facility for decades, standing as a prime example of pre-war municipal port architecture. Its symmetrical design, steel industrial windows, and grand entrance framed by towering concrete pilasters reflected the era’s utilitarian yet striking aesthetic.
Adding to the site’s historical significance, the Oakland Harbor Light once stood at the estuary’s entrance, guiding vessels safely into port. Built in 1890 on wooden pilings, the lighthouse was later relocated near Brooklyn Basin due to structural concerns and eventually repurposed as a waterfront restaurant. These remnants of Oakland’s maritime past have influenced the site’s transformation, ensuring that Brooklyn Basin’s redevelopment honors its industrial roots while embracing a new future as a thriving waterfront community.


Source: U.S. Coast Guard Historian’s Office



The project draws inspiration from Oakland’s storied legacy as a waterfront city and powerhouse shipping port, with a contemporary interpretation of features from the historic 9th Avenue Terminal Building and the old lighthouse that used to live at the mouth of the harbor.

"Amidst the overall master planned development of Brooklyn Basin, Portico is the absolute best site - we're the tip of Tritan's spear!"
- ADAM PERRY SVP, Development & Construction,
CityView


The redevelopment of Brooklyn Basin transforms 65 acres of former industrial waterfront into a vibrant, mixed-use community shaped by years of planning and public input.
With sweeping views from San Francisco to the East Bay Hills, the master plan includes 3,700 homes, local shops, a grocery store, and 30 acres of parks and open space. Developed by CityView, the 12-building project introduces new energy to the area—Portico, completed in 2023 on Parcel J, is a key part of this evolving neighborhood.
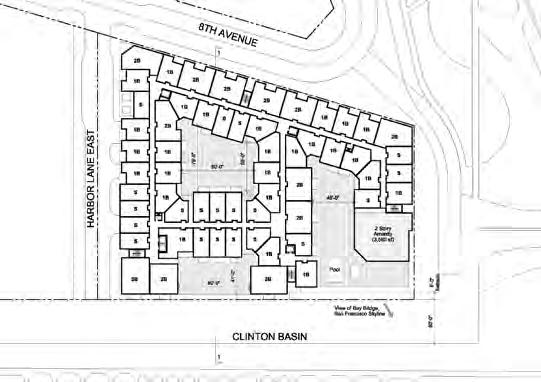
Parcel J sits in one of the most in the development, bordered and offering rare, direct access and nearby boardwalk.

Positioned along two low-traffic serve this site, Portico residents privacy, walkability, and sweeping them at the intersection of everyday convenience.
most sought-after locations bordered by water on two sides access to the shoreline park

low-traffic roads that primarily residents enjoy a balance of sweeping views—placing natural beauty and

Parcel J sits at the tip of the development, offering the most expansive harbor views on site—a unique opportunity we prioritized from the beginning. Every design decision stemmed from a simple question: what would it feel like to live here?
From the placement of the building on the site to the orientation of each water-facing unit, the layout was carefully crafted to maximize views. Generous windows, rooftop decks, and even the lobby were all strategically designed to connect residents to the surrounding harbor at every opportunity.

The pre-war terminal building stood out as the most architecturally distinctive structure in the port. Our design draws inspiration from its symmetry, deep recesses, and concrete paneling system, incorporating these elements to create a sense of continuity with the site’s history. Additionally, industrial buildings across the port commonly feature tall windows, a characteristic we embraced in our design. Given our site’s prime location, we oriented the layout of industrial-style windows toward the park and harbor, maximizing natural light and framing expansive views for both individual units and common spaces.

The master plan identified locations for Beacons, leading us to draw inspiration from the construction of the lens within the original Oakland Harbor Light. The faceted lens, rotating around a single light source, informed our design approach, abstracting this concept to create a focal point within our building. Much like the lighthouse once served as a beacon from the bay, our design aims to establish a visible landmark from the shoreline park.

In the San Francisco Bay Area, driftwood is a familiar sight along the shoreline, shaped by time, tides, and resilience. As a design inspiration, it evokes strength, grounding, and the beauty of natural imperfection, offering a metaphor for an architectural base that is both rooted and adaptive, shaped by its environment.

Our design draws inspiration from Oakland’s location on the bay, where bridges emerge through the region’s signature fog. To reflect this atmospheric quality, we chose to layer materials such as metal panels, white plaster, and strategically placed balconiesreinforcing the views of the bridge among fog and a sense of lightness as the building rises. This interplay of materials enhanses the experience of the surrounding landscape, framing the views from San Francisco to the East Bay Hills while creating a dynamic connection to the ever-changing Bay Area skyline.
Strategic site studies shaped every decision—maximizing views, enhancing livability, and unlocking the full potential of Parcel J.
We conducted a series of yield studies early in the process to test multiple site layouts, carefully analyzing building orientation, unit placement, and amenity locations. These studies helped us understand how to best position the building to maximize water views, preserve sightlines, and ensure that key shared spaces—like the rooftop decks and lobby— could take full advantage of the harbor’s natural beauty. This iterative approach allowed us to align our design strategy with the unique opportunities of the site.








Ultimately, after extensive studies of the orientation of the building and amenities, we landed on the layout built today and the last study was further developed.

A bold, modern design rooted in rhythm, scale, and the spirit of the working waterfront.
This early design option embraced a more modern, contemporary architectural language, characterized by clean lines, simple forms, and bold, intentional use of color. The massing and articulation drew inspiration from the industrial elements surrounding the site—shipping containers, cargo ships, cranes, and exposed steel structures. Blocks of color and material variation were used to echo the rhythm and modularity of stacked containers, while the overall composition referenced the scale and geometry of working port infrastructure. The result was a concept that felt rooted in its context, while offering a fresh and refined take on the area's industrial heritage.




interpretation of the site's industrial heritage—honoring the past while shaping what’s next.
This design direction—ultimately the path we pursued—took a more contextual and historically grounded approach. Rather than contrast with its surroundings, it draws from the architectural language of the adjacent historic port building. We looked closely at its structural elements— beams, columns, and detailing—and reinterpreted them in a contemporary way, deconstructing their forms and reapplying them to the new building’s façade and massing. The result is a design that feels rooted in place, respectful of its past, and seamlessly connected to the site's evolving future.



















The amenities at Portico go beyond your standard residential building - they compliment the buzzing waterfront lifestyle.
LOBBY
Leasing Office
Bike Parking
AMENITIES
Fitness Center
Pool & Spa Deck
Outdoor Lounge with Firepits, BBQ’s & Games
Clubhouse/Indoor Lounge with Kitchen, Wine Room & Fireplace
Co-Working Spaces
Pet Spa & Pet Park
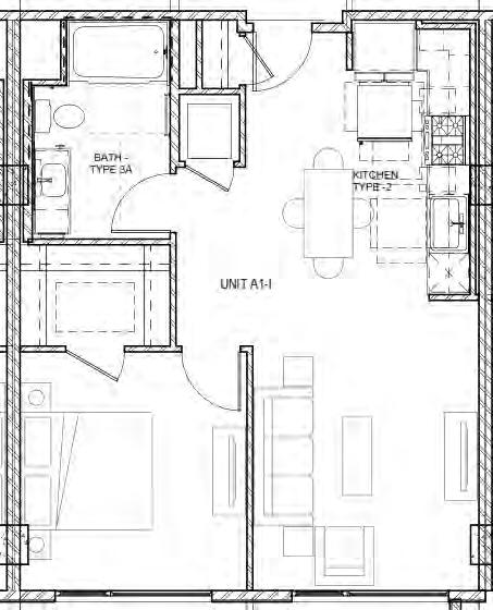
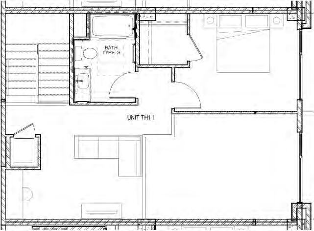
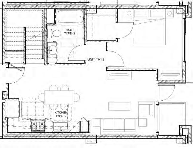
UNIT MIX
Studio - 3BD
Townhomes with Street Access
PARKING
Automated Parking
Charging Stations





As the central entry point to the building, the leasing lobby’s corner location must carefully balance pedestrian safety, walkable access, and smooth vehicular circulation within the new residential neighborhood.


The leasing lobby is the front door to Portico providing space for residents and prospective residents alike to connect and entertain. This is the front door to the controlled access community that provides.


The Clubhouse, community wine room, and game room offer residents inviting spaces to gather, unwind, and entertain, all while enjoying stunning harbor views that seamlessly extend their living spaces. Complementing these social areas, the indoor/outdoor fitness center features state-of-the-art equipment and a dedicated movement studio, providing a dynamic space for wellness and exercise.





Portico’s outdoor lounges are thoughtfully layered throughout the building, offering a variety of interconnected spaces that cater to different needs and experiences. The central courtyard provides a park-like setting with fireplaces, outdoor games, and a community garden, blending social and active areas with quieter, more intimate retreats. Enhancing vertical connectivity, the rooftop sky lounge is positioned to take full advantage of panoramic city views, giving residents yet another inviting gathering space. Designed with pet owners in mind, this elevated retreat also features a dedicated dog run and outdoor pet bath, reinforcing Portico’s commitment to a pet-friendly community.


Like the other amenities, the pool and spa deck was strategically designed to maximize the site's breathtaking views. Perched on the 4th floor, this resort-style retreat offers residents a serene space to relax and recharge while overlooking the park to the southwest and the harbor to the northwest. Framing stunning vistas of San Francisco and Oakland across the water, the deck seamlessly integrates with the surrounding landscape, enhancing the waterfront living experience.


With 306,063 SF of total residential space, units are made up of 1-B, 2-BD, and 3-BD layouts. While each unit type varies, every layout was thoughtfully designed for its placement on the site to elevate the residential experience.

The site was planned to maximize views from the most amount of units. Within each unit, we designed with residents in mind: maximizing daylight with floor to ceiling windows, large closets, functional kitchens, and intentional lighting.

Because the site is built on water, subterranean parking was not possible, requiring us to build parking above grade. To accommodate this, the first three floors of the project were designed around parking. Units, utilities, trash, and other building systems were pushed to the perimeter, which created a more efficient core and maximized usable residential space above.






*Model A is slightly longer than Model B.
We selected the semi-automated CARMATRIX parking system for its ability to optimize space in this constrained condition. The system operates with grade-level platforms that move laterally, while middle-level platforms move both vertically and laterally. With one fewer platform at each level, upper-level parking is accessed by shifting the platform beneath horizontally and lowering the required platform into position.
This approach allowed us to deliver the necessary parking capacity within a compact footprint while ensuring the building layout above remained efficient and functional for residents

The first three levels of the building are intentionally designed with a distinct architectural expression—featuring stone cladding and a more articulated, pedestrian-friendly façade.



Differentiating the townhome-style residences with the stone facade evokes the feel of classic walk-ups or brownstones along the boardwalk, while the upper levels transition to a more streamlined high-rise aesthetic above the podium.




Ground-floor units are designed with direct access to the sidewalk, featuring private patios that face outward. This approach enhances connectivity to nearby amenities; residents can step right out their front door and easily reach the marina, walking paths, and parks without needing to pass through the interior of the building.

Thoughtfully positioned on the corner so all deck amenities face out to the park, boarwalk, and waterfront.





Reconnecting Oakland to its waterfront, Portico residents have access to Brooklyn Basin's extensive amenities including its network of waterfront parks, promenade, restored wetlands, pedestrian and bicycle trail system, event space for concerts and art exhibits, and 200,000 sf of retail, dining, and shopping.


PORTICO
Oakland, CA
Est. 2023