


Adaptive Reuse ]








[ Graphic Design + Self Portait ]



![]()



Adaptive Reuse ]








[ Graphic Design + Self Portait ]



This sustainable resilience hub allows residents of Ward 7 to utilize this space for community gatherings and accessing resources to bridge the financial gap that residents experience, all through the notion of hierarchy. Nearly one quarter of Ward 7 residents live below the poverty line, and less than thirty-two percent of Ward 7 has attained a bachelor’s degree or higher. Residents have been disproportionately affected by policies and living conditions that further marginalizes the community. Elevating the community and flipping the script not only pushes the current residents of Ward 7 to grow and better support themselves, but pushes for change in the next generations as well.



The rooftop of the resilience hub offers not only a large space for community usage, but also offers vital resources such as urban farming courses, solar energy collection, as well as greywater systems. This ensures that at all times, residents of Ward 7 have consistent access to food, water, and energy when in need.





PROGRAMMING
COMPUTER LAB
COMMUNICATIONS
STORAGE
RESTROOMS
MULTIPURPOSE SPACE
OUTDOOR ROOFTOP
PROGRAMMING
HOUSING OFFICE
RESTROOMS
OPEN SEATING AREA
FINANCIAL OFFICES

MJLTIPURPOSE ROOMS
RESTROOMS
OUTDOOR ROOFTOP
PROGRAMMING
ADMIN OFFICES
STAFF OFFICES
STORAGE
CONFERENCE ROOMS
KITCHEN
FOOD PANTRY
RESTROOMS
OPEN SEATING AREA
PROGRAMMING
LOADING DOCK
COUNSELING ROOMS
SHOWERS
RESTROOMS
LOBBY
INFORMATION DESK
STORAGE



















TOOLS: REVIT | TWINMOTION | PHOTOSHOP
DESIGNED WITH ANIYAH NORMAN & KINAYA SMITH

Washington, D.C.
F25
This project reimagines cities as spaces in motion, where commuting becomes a cared-for experience rather than a burden. Focusing on those who rely on walking and public transit—workers, students, residents, and tourists—it addresses the health and comfort issues caused by prolonged sun exposure. Recognizing that many urban residents lack car access and that cities prioritize vehicles over people, the design proposes shaded, ventilated rest stops along sidewalks, plazas, and transit routes. These structures aim to create healthier, more comfortable commutes and promote walkable cities, reducing car dependency and fostering stronger community engagement in public spaces. Reconsidering ordinary facilities and the way in which people interact with them was our main focus for this design. This design relies on a solar powered clock attached to a gear
STRATEGY MATRIX

Reduce temperatures in and around rest stops compared to adjoining uncovered areas


Provide shaded, ventilated areas that block direct sun exposure
Make each unit serve 4-8 users at a time, including people with limited mobility


To decrease electricity use and carbon footprint
Set up modular units to be built in less than three days with local labor and minimal tools


Allow pedestrians to choose the type of experience at the rest stop with minimal mechanical use
Increase pedestrian foot traffic while reducing sun-related medical emergency calls







PLAN
SECTION A SECTION A B A 5PM



I G H T & W E A T H E R S T U D I E S RAIN

12PM













TWINMOTION | PHOTOSHOP







S25
Archive 16 – The Hip Hop Library in Shaw, located at 1900 7th Street NW in Washington D.C., is a 48,414 square foot space dedicated to hip hop history and culture. Blending traditional and modern library features, it fosters creative freedom and expression for all ages. Visitors can enjoy indoor and outdoor reading areas, a rooftop garden, and digital galleries that showcase hip hop-inspired art and media. More than just a library, Archive 16 is a vibrant space for learning, storytelling, and cultural celebration.







GALLERY SPACE


*PLUS SPACE - AUDITORIUM
ROOFTOP GARDEN
GREEN ROOF
RESTROOMS


LARGE CONFERENCE ROOM


OPEN PRACTICE + DANCE ROOM
RECORDING STUDIOS
*DIGITAL GALLERY SPACE
COMPUTER LAB
READING AREAS
STAFF AREAS
RESTROOMS
REFERENCES AND PERIODICALS
SMALL CONFERENCE ROOM

READING AREAS
*LARGE CONFERENCE ROOM
PRIVATE SPACES
COLLECTIONS
STAFF AREAS
RESTROOMS




*REFERENCES AND PERIODICALS
COLLECTIONS
READING AREAS

CAFE
PRIVATE SPACES
STAFF AREAS
RESTROOMS
























































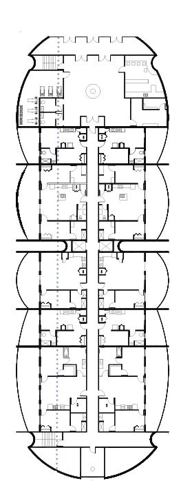
Greenleaf Gardens, a neighborhood in Southwest Washington, D.C., is one of the few areas near The Wharf—a prominent tourist destination—that has yet to undergo redevelopment. The goal of this project is to revitalize the neighborhood through a cohesive apartment complex design that enhances the area’s overall aesthetic and functionality. Learning the essence of detailed site analysis, planning and design were all core lessons learned


















The Reflection of Icarus is a Museum designed to evoke emotions of “pride” and “shame” within the people visiting the space, located in the urban environment of Washington D.C. This museum is centered around story of Icarus, commonly known as the myth of the man who “flew too close to the sun,”. This museum reenacts the very story of falling from grace.






HAND-DRAWN



As the Public Relations Director for the Ethiopian Eritrean Student Association, I am responsible for creating high-quality promotional materials, including posters, to effectively communicate events, announcements, and important information. These materials are designed for both print and digital platforms, ensuring a strong and engaging presence on social media.



















