UNL 2024 Undergraduate Portfolio

Page 1

2023 - 2024 UNDERGRADUATE PORTFOLIO 20 30 40 50 60 10
Missouri River

RESUME

SCHOOL EMAIL:

PERSONAL EMAIL:

INSTAGRAM:

awilson56@huskers.unl.edu

wilsonabriana@gmail.com

@abriana.arch

EDUCATION

2020 - Current : University Nebraska - Lincoln

• Architecture Major

• Spanish Minor

• Member of UNL Honors

Summer 2023 : Universidad de Deusto - Bilbao, Spain

2018 - 2020 : Lincoln North Star High School

• National Honors Society

• Honor Roll

WORK EXPERIENCE

2023 - Current : Trader Joe’s

• Crew Member

• Strong collaboration and communication skills, able to work effectively as part of a team to achieve common goals.

Summer 2021: UNL HALO Mentor

• Designed and implemented creative and educational games, ensuring a fun and stimulating environment for students.

SKILLS

RHINOCEROS

ADOBE ILLUSTRATOR

ADOBE PHOTOSHOP

ADOBE INDESIGN

MS OFFICE

REVIT

GRASSHOPPER

MODEL MAKING

SKETCHING

INVOLVEMENT

Intermediate Advanced Advanced Advanced Advanced Beginner Beginner Intermediate Advanced

National Society of Black Engineers (NSBE)

• Chapter Secretary

National Organization of Minority Architecture Students (NOMAS)

Associated General Contractors

American Institute of Architecture Students

Afrikan People’s Union

AWARDS / RECOGNIITON

BVH ARCH - Ochsner Scholarship

Emerging Leaders Scholarship

Husker Power Scholarship

NSBE Apex Scholar

UNL Dean’s List 2020, 2023

01.

SELECTED WORK

All projects chosen show a wide range of scale, program, and style.

03 04 05
01 02
KCAI Do. ARCH Niobrara Visitor Center Technology Rehab Niobrara Pavillion
Personal Work Competition Academic - Studio 02.
Academic - Studio Academic - Studio Academic - Studio

01. KCAI Do. ARCH

ARCH 311 | Dr. Peter Olshavsky | Partners : Jessie Grieser, Kendall Hartley, Halima Moore

Located in downtown Kansas City is the KCAI campus. Kansas City Art Institute is a private art school that was founded in 1885. KCAI has a direct connection to Kansas City’s rich history and constantly promotes art throughout its community. KCAI’s mission is “To prepare gifted students to transform the world creatively through art and design”. The KCAI campus is situated between The Nelson Atkins Museum of Art, the Kemper Museum of Contemporary Art, and an encyclopedic museum.

The culture at KCAI is one that believes in giving back to its community, students, and alumni. There are currently 13 majors being offered at the college ranging from animation, graphic design, to film and photography. Due to KCAI’s strong influence in the arts, the school does not have a current architecture program. Not only is this project adding a new building, it is adding a new discipline.

03.
04.
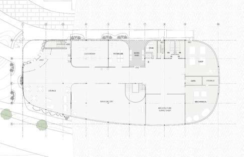
MAIN GALLERY LOUNGE CLASSROOM MEDIA LAB WORK YARD STOR. RR RR SHOP DATA STORAGE MECHANICAL ARCHITECTURE SUPPLY SHOP +910’ 910’ 910’ +910’ +910’ 1 2 3 4 5 6 8 9 10 A B C D E 7 UP UP UP
PLAN EXTERIOR FACADE
05.
FIRST FLOOR
SOUTH ELEVATION
CRIT STUDIO STOR. RR RR +924’ +924’ 1 2 3 4 5 6 8 9 10 A B C D E 7 UP
HALF LEVEL FLOOR PLAN 06.
RENDER

This project explores the consideration of mental well-being in architectural education in connection to sustainable systems.

07.

PROGRAM DIAGRAM

1.STUDY ROOM

2.EGRESS

3.STUDENT LOUNGE

4. RESEARCH CENTER

5. GREEN SPACE

6.STORAGE

7. RESTROOMS

8. 9. 4TH YR STUDIO CRIT SPACE

10.FACULTY OFFICES

11.GREEN SPACE

ADMIN

13. STAFF OFFICE

14.

12. 3RD YR STUDIO

15. WORKROOM

16. 17. 15. 16.

KITCHEN HEAD OFFICE CONFERENCE ROOM NURSING ROOM

17. LIBRARY

18. OPEN TO BELOW

19.2ND YR STUDIO

20.1ST YR STUDIO

21. MAIN ENTRANCE

22.LOBBY/MAIN LOUNGE

23.CLASSROOM

24.MEDIA CENTER

25. SHOP YARD

26.

27.CUSTODIAL

28. 29.

30.

DATA ROOM

SHOP MAIN GALLERY SUPPLY SHOP

1 1 2 3 5 4 6 7 8 7 2 9 1 16 2 3 11 6 7 7 2 9 10 10 12 13 14 15 1 1 2 3 5 4 6 19 7 2 9 18 2 3 6 20 7 2 9 21 2 23 25 24 6 26 7 2 27 7 7 7 28 31 22 30 24 23 18 21
29 PUBLIC SOCIAL PRIVATE 10 10 10 10 10 13 16 15 17
31. MECHANICAL 08.

THIRD FLOOR PLAN

+952’ +952’ STOR. RR RR STUDIO CRIT LOUNGE STUDY STUDY CONFERENCE WORKROOM BREAK/ LOUNGE HEAD DIRECTOR GREEN SPACE 1 2 3 4 5 6 8 9 10 A B C D E 7 OPEN TO BELOW STAFF & ADMIN OFFICES UP UP UP UP 09.
GREEN SPACE RENDER

SOUTH SECTION

10.
GREEN SPACE DIAGRAM
Parking 11.
Tree Canopy Prarie Grass Exterior Balcony
12.
Entry Landscape
PLAN 13.
SITE
14. 4'8' 16' 0 2" 01/16"=1'-0" N
FLOOR PLAN

03. Technology Rehab

The Null Island is located on the 0,0 coordinates, located near the Gulf of Guinea and surrounded by the South Atlantic Ocean. The terrain is most likened to that of Ghana, with the vegetation being populated with trees and bushes among the grass. The island experiences 70 feet of elevation from sea level, there is a forest that occupies the north and southwest side of the island while there is a beach on the southeast side. The only indentation within the highest elevation is that of a built environment add on, the center’s terrace. The island is remote, and travel would be limited to boat or helicopter.

With this in mind the opportunity of isolation seems prime. The building function is suggested to form out the living and balance of life without technology. Rehabilitaion is a word that signifies a need to recover and to aim to manage a quality better. As society ages, technology advances and it has made itself a part of everyday life. The design works to rediscover the balance of technology in connection to other aspects of living. This project explores how architectural design and concepts can develop to stimulate collaboration, interact with the environment, and provide comfort to individuals. To do this effectively, our building uses the architectural strategies of form, organization, use of light, rhythm, and repitition.

15.
16.

04. Niobrara Pavillion

This project explores different ways the human experience can be influenced by nature. This is done by creating a pavilion that prioritizes multi-use spaces. Our event space allows visitors to gather and learn about their surroundings while being immersed in it. The hammock area provides both relaxation and comfort to those enjoying the park.

To divide our program, we created two hammock areas that separate our multi-use area into two separate spaces When the hammocks are removed, the multi-use area becomes one space allowing for larger gatherings. There are bathrooms located on both ends of the pavilion to allow visitors to use the pavilion as a rest stop as well. The two bathrooms also act as anchoring points for our structure. Looking up, our pavilion has ceiling cutouts above our seating areas to promote activities like stargazing. The columns in our pavilion are structural but also prioritize certain views of the Niobrara park.

17.
ARCH 410 | Michael Harpster & Sarah Karle | Partners : Jessie Grieser
18.

EXTERIOR PAVILLION VIEW

19.
EXPLODED AXONOMETRIC AXONOMETRIC VIEW

05. Personal Project

Summer 2023 | Study Abroad: Singapore & Spain

In summer 2023 I was given the opportunity to study abroad in both Singapore and Spain. My study abroad journey became more than an academic endeavor, but a way of capturing architectural marvels, cultural immersion, innovation and diverse communities. My photography captures the true essence of this transformative journey. I believe that each snapchot tells a story, a memory, a learning moment, and a new found perspective.

21.
Fruit Market in Little India Kam Pong Glam Outdoor Museum Taoist Temple 22.
23.
Sultan Mosque in Arab Street
24.
Buddha Tooth Relic Temple Sagrada Familia in Barcelona The Guggenheim in Bilbao
25.
Parc de la Ciutadella View from Fort Canning, Singapore Guggenheim Art Installation View of Malaysia Streets of Singapore View of Catedral de Barcelona Streets of Barcelona 26.
THANKYOU ABRIANA WILSON 2023 - 2024 UNDERGRADUATE PORTFOLIO SCHOOL EMAIL: PERSONAL EMAIL: INSTAGRAM: awilson56@huskers.unl.edu wilsonabriana@gmail.com @abriana.arch

Turn static files into dynamic content formats.

Create a flipbook
Issuu converts static files into: digital portfolios, online yearbooks, online catalogs, digital photo albums and more. Sign up and create your flipbook.