Architecture Portfolio

Page 1

1
Architecture Portfolio Abraham Simon

LAWRENCE MUSEUM OF IMMIGRATION 4-15

OKLAHOMA CITY CENTRAL COMMUNITY COLLEGE

Professor Armstrong | ARCH 508

Professor Moddrell | ARCH 608 16-35

2
3 VANCOUVER INTERNATIONAL VERTIPORT Professor Moddrell | ARCH 609 36-45 46-49 EXTRACURRICULARS
Lawrence Museum of Immigration Professor Armstrong - ARCH 508 | Fall 2021

Immigration

MASSACHUSETTSST.

6 Site Sketch Site
Residential Commercial
NEWHAMPSHIREST. RHODEISLANDST. CONNECTICUTST. 11THST. 10THST.

OPEN FACADE TO NORTH FOOT TRAFFIC

DRAW CENTRAL ATTENTION

RECONNECT FORM

7

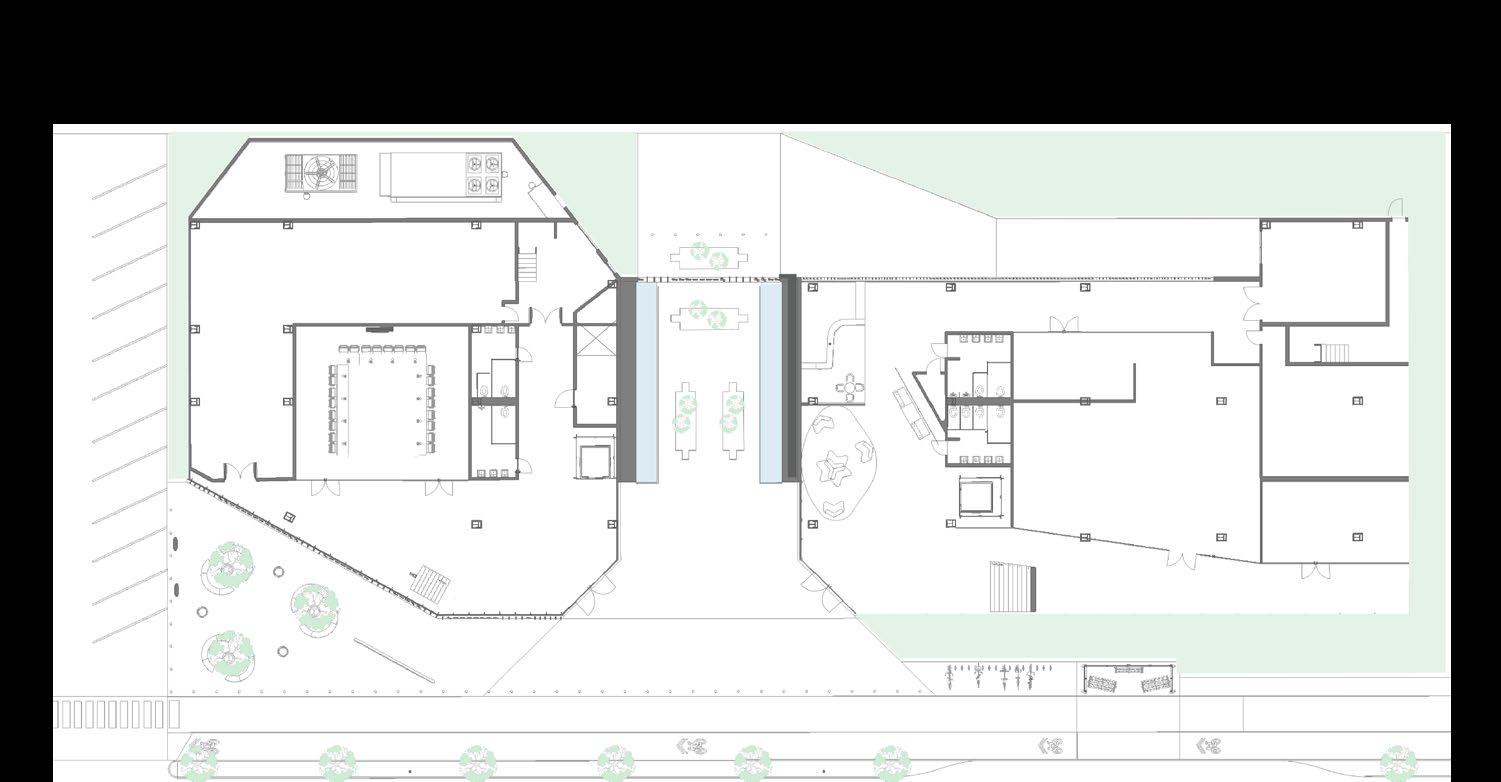
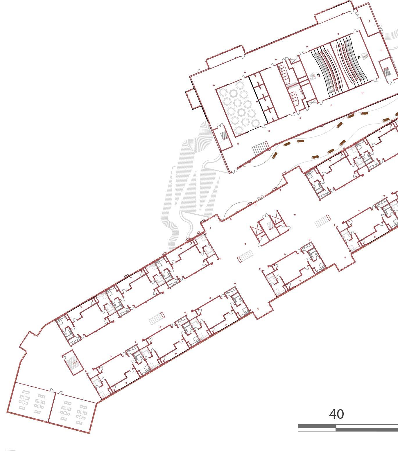
Floor Plans

8 1 2 3 4 5 6 7 8 9 10 11 12 13 14 15 16 Collection Storage/Maintenance Room Mechanical Space Restroom Single/Double Classroom Elevator Restroom Service Elevator Lounge Seating Outdoor Memorial Space Cafe Reception Emergency Exit Gift Shop Temporary Exhibit Space Loading Dock/Service Access Preparation Area
1 2 3 3 4 4 5 6 7 8 9 10 11 11 12 13 14 15 16 10’ 20’ 40’ Level 1
9 1 2 3 4 5 6 7 8 10 9 Research Library Resting Area Restroom Chase Administrative Office Suite Service Elevator Gathering Space Elevator Emergency Exit Permanent Exhibit Space 1 2 3 3 4 5 6 7 7 8 10 9 10’ 20’ 40’ Level 2
REFLECTION PERSPECTIVE
Southern US Border Death Memorials

PERSPECTIVE DEATH MEMORIALS

11
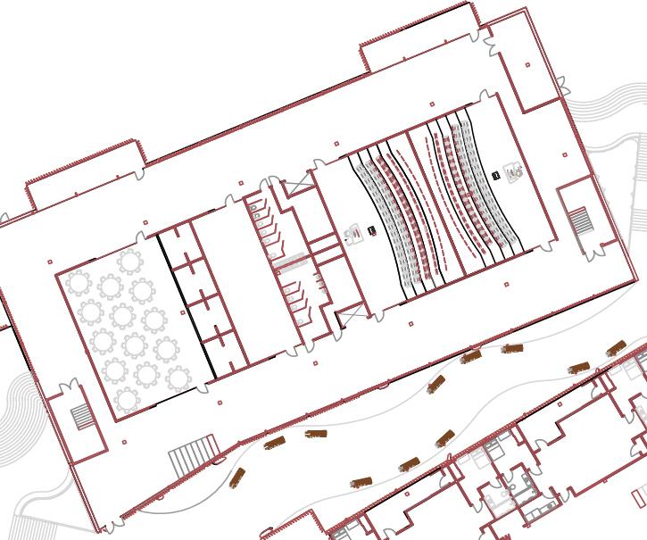
12 Main Gallery Space
13

Oklahoma City Central Community

Professor Moddrell - ARCH 608 | Fall 2022

Community College
EMPTY
C a m e ra : 3 , 0 3 2 f t 3 5 ° 2 7 ' 0 2 " N 9 7 ° 3 1 ' 1 6 " W 1 , 1 9 3 f t 3 0 0 f t
ISOLATED EMPTY LOTS
ABANDONED

Living and Learning

Connect forms for accessability

22

Create

spaces

23
“study”
24 Floor 2

LIVING COMMUNITY CONNECT

25
26
-
2-bedroom apartments 2 Bedroom Apartments - 49,470 GSF
26 Floor 4
27
13
apartments
49,470
-
4-bedroom
4 Bedroom Apartments -
GSF

LIFESTYLE HEALTH CONNECTING

28

CONNECTING

29

LEARNING COMMUNITY OPEN

30 Community Spaces Small Lecture Halls 4 floors of classrooms, 14 classrooms total Restrooms Loading Dock Office Spaces Daycare Dining Area 6 1 7 2 3 4 5
31 1 1 3 4 5 6 7 3 2 2
34
35

VIEWS TO HARBOR RECONNECT

38 PUBLIC PARK

RECONNECT HARBOR

39
PARK

CURRENT ALLEY

ROTATING EVENTS ENTERTAINMENT

40

LOCAL SHOPS PROMENADE

42
AL-ANI FLOOR
NADIA
PLANS
43
44 EXTERIOR INTERIOR 3' X 2' COLUMN 10' TRUSS 12" JOIST AT EVERY 5' METAL DECKING 2" EXTERIOR RIGID FOAM INSULATION 5 3/8" ALUM HELIDECK 4" CONCRETE VAPOR BARRIER MOISTURE BARRIER CAVITY FOR INTERNAL SNOW MELT HYDRONIC HEATIGN SNOW MELT ELECTRIC MI CABLE EXTERNAL SNOW MELT HYDRONIC TUBE 3/4" = 1'-0" COLUMN TRUSS UNDER AIRDECK EXTERIOR INTERIOR WINDOW ALUM FIXED WINDOW SILL STEEL PLATE VAPOR BARRIER 1/2" TILE FLOOR 3" CONCRETE 2" RIGID FOAM INSULATION METAL DECKING 2" x 4" STUD 5/8" GYPSUM BOARD INTERIOR MOISTURE BARRIER 3' X 2' COLUMN 10' TRUSS 12" JOIST AT EVERY 5' EXPANSION JOINT ALUM HELIDECK 4" CONCRETE 2" EXTERIOR RIGID FOAM INSULATION 1/2" BACKER ROD 1/2" METAL SHEET GAMAFLOR RAISED FLOOR PEDESTAL 3/4" = 1'-0" RAILROAD SIDE LEVEL 4 ALUMINUM LOUVERS 1.5" HSS STEEL TUBE 3' X 2' HOLLOW SQUARE TUBE FLASHING STAINLESS STEEL PLATE CONNECTIONS STAINLESS STEEL SPIDER CONNECTION 3" X 8" HOLLOW 1' STRUCTURAL NADIA AL-ANI DETAILS (2)
45 HOLLOW STEEL TUBE STEEL CONNECTIONS STEEL CONNECTION HOLLOW STEEL CHANNEL STRUCTURAL GLASS FIN 2' SKYLIGHT TRUSS 2 X 2.5' HOLLOW STEEL CHANNEL 3/4" GLASS MULLION SYSTEM VELUX E-CLASS FIXED IMPACT RATED SKYLIGHT 1/2" GOLD BOND XP GYPSUM BOARD WATER RUNOFF PIPE 1' REINFORCED CONCRETE COLUMN 3' TRUSS 3.5' TRUSS SKYLIGHT FLASHING RIGID FOAM INSULATION HEATED DECKING METAL DECKING REINFORCED CONCRETE 5' TRUSS 1' JOIST 3' X HOLLOW STEEL SQUARE TUBE LIGHT GAUGE STEEL FRAMING 1/2" GOLD BOND XP GYPSUM BOARD 1' X 9" STEEL PLATE FABRIC WRAPPED PERFORATED PIPE CONCRETE

DOWNTOWN VANCOUVER AQUARIUM

46
LUNCH
47 VANCOUVER LUNCH BREAK

2700K TEMPERATURE LIGHT

WOODWORKING

T10 LIGHTBULB

LANTERN INSPIRATION

INSPIRATION

Turn static files into dynamic content formats.

Create a flipbook
Issuu converts static files into: digital portfolios, online yearbooks, online catalogs, digital photo albums and more. Sign up and create your flipbook.
Architecture Portfolio by abraham - Issuu