MUSEO NACIONAL CHAVÍN DE HUANTAR

Page 1

MUSEO NACIONAL

DE HUANTAR

CHAVIN
TALLER ARQUITECTÓNICO III GRUPO 3 DOCENTES: ARQ. BRIAN SANCHEZ INTEGRANTES: AMIRA ANEL AYLAS HUANACHIN ABIGAIL KIARA JACAY CHIQUILLAN BRITNEY ANGHELA FERNANDEZ RIOS MAYRA ALCANTARA CAMPOS JOSE LUIS NUÑEZ RODRIGUEZ ALVARO PEÑA MEDINA ARQ. VANESSA GUZMAN

A N Á L I S I S

C O N T E X T U A L

CHAVÍN DE HUANTA

PLANO DE UBICACIÓN

DE

C R O TALLER ARQUITECTÓNICO III GRUPO M3 USEO DE SITIO DOCENTES ARQ VANESSA GÚZMAN ARQ. BRIAN SÁNCHEZ FECHA: 13/10/22 LAMINALOCALIZACIÓN Y UBICACIÓN PLANO
LOCALIZACIÓN DEPARTAMENTO DE ANCASH PERÚ PAÍS: PERÚ UBICACIÓN: DEPARTAMENTO DE ANCASH, PROVINCIA DE HUARI DIRECCIÓN: AV. 17 DE ENERO, DISTRITO CHAVÍN DE HUÁNTAR PROPIETARIO: ESTADO PERUANO DISEÑO: ARQ RICARDO JAXA INAUGURACIÓN: 18 DE JULIO DEL 2008
MUSEO RÍ O MOSNA EL MUSEO NACIONAL CHAVÍN DE HUÁNTAR SE ENCUENTRA UBICADA EN EL DISTRITO CHAVÍN DE HUÁNTAR, PROVINCIA DE HUARI, DEPARTAMENTO DE ANCASH, PERÚ SE ENCUENTRA EN LA AV. PRINCIPAL JULIO C. TELLO QUE CONECTA CON LA AV. 17 DE ENERO CONCLUSIONES: 1
A N Á L I S I S M A C R O 1 2 3 4 5 7 6 8 1 2 4 7 8 TALLER ARQUITECTÓNICO III GRUPO M3 USEO DE SITIO DOCENTES ARQ VANESSA GÚZMAN ARQ. BRIAN SÁNCHEZ ESCALA FECHA: LAMINACONTEXTO MEDIATO NODOS PARQUE DE LAS VIVIENDAS PLAZA DE ARMAS CHAVIN DE HUANTAR HITOS CHAVIN DE HUANTA PLAZA DE TOROS MONUMENTO ARQUEOLÓGICO DE CHAVIN DE HUANTAR I.E. CARLOS ALBERTO IZAGUIRRE CENTRO DE SALUD CHAVIN DE HUANTAR COMISARIA RURAL CHAVIN DE HUANTAR LEYENDAGENERAL EDUCACIÓN SALUD MUSEO NACIONAL CHAVÍN LEYENDADE EQUIPAMIENTOS CONCLUSIÓN: DENTRO DE ESTE ANÁLISIS SE PUDO EVIDENCIAR QUE EN EL RADIO DE INFLUENCIA ES UNA ZONA TURÍSTICA, CON DIVERSOS HITOS Y CUENTA CON LOS EQUIPAMIENTOS RBÁSICOS. IO MOSNA 21/10000 17/10/22

ÁREA

RÍOMOSNA

ANÁLISIS

DENTRO DEL SECTOR ESTUDIADO SE IDENTIFICO QUE LAS DECONTRUCCIONES QUE PREDOMINA SON EL USO DE VIVIENDAS CON UN 23%.

SE LOCALIZA EL SECTOR CON MAS COMERCIO DE LA ZONA QUE SE ENCUENTRA EN LA AVENIDA PRINCIPAL JULIO CESAR TELLO, EN DONDE SE CONSTRUYO EL MERCADO MAS GRANDE DEL SECTOR ESTUDIADO QUE AVASTECE A GRAN PARTE DELA POBLACIÓN

EXISTEN ÁREAS DE SALUD, QUE SE LOCALIZAN EN EL CENTRO DEL SECTOR, ESTOS ESTAN PROXIMOS A INSTITUCIONES EDUCATIVAS.

SE IDENTIFICARON APROXIMADAMENTE 875LOTES EN EL SECTOR ESTUDIADO.

A N Á L I S I S M A C R O GRÁFICO DE PORCENTAJE SOBRE EL USO DEL SUELO VIVIENDA TALLER TALLER ARQUITECTÓNICO III GRUPO M3 USEO DE SITIO DOCENTES: ARQ VANESSA GÚZMAN ARQ BRIAN SÁNCHEZ ESCALA FECHA: 17/10/22 LAMINAUSO DE SUELOS MUSEO NACIONAL CHAVÍN VIVIENDAS SALUD EDUCACIÓN COMERCIO RECREACIÓN ÁREA AGRICOLA OTROS USOS LEYENDA: CONCLUSIONES: EL SECTOR ESTUDIADO PRESENTA DIVERSAS TIPOS DE USOS, LOS CUALES REFLEJARIA EL CRECIMIENTO POBLACIONAL, YA QUE SE AVAZTECEN CON AREAS DE COMERCIO, ASI COMO EDUCACION Y SALUD
31/10000
ARQUEOLÓGICA 51% VIVIENDA 29% EDUCACIÓN 1% VIVIENDA TALLER 1% OTROS USOS 7% SALUD 3% COMERC O 3% RECREACIÓN 5%
A N Á L I S I S M A C R O GRUPO 3 AV. JULIO C. TELLO ES LA AVENIDA MÁS IMPORTANTE , YA QUE LLEVA DIRECTO AL MUSEO Y CONECTA CON TODAS LAS CALLES Y ES POR DONDE MAS TRANSCURREN LOS VEHÍCULOS ASIMISMO DE GUIAR DIRECTO AL COMPLEJO ARQUEOLÓGICO. JR.17 DE ENERO NTE. ESTE JIRÓN SECUNDARIO QUE CONECTA CON LA AVENIDA PRINCIPAL ES UNA RUTA CON UN TRAFICO MODERADO , YA QUE VEHÍCULOS LO USAN COMO ATAJO. TALLER ARQUITECTÓNICO III MUSEO DE SITIO DOCENTES: ARQ VANESSA GÚZMAN ARQ BRIAN SÁNCHEZ ESCALA: FECHA: LAMINAANÁLISIS DE VIAS TRAFICO MODERADO TRAFICO DENSO TRAFICO LIGERO CONCLUSIÓN: LAS VIAS SECUNDARIAS HACEN QUE AYUDE ALIGERAR EL TRAFICO Y PODER LLEGAR MAS RAPIDO AL MUSEO Y AL SITIO ARQUEOLOGICO LEYENDA : Jr. TUPAC AMARU ESTE JIRON ES EL MENOS TRANSITADO, YA QUE NO DIRECCIONA A LUGARES IMPORTANTES 41/10000 A B C A B C 17/10/22
A N Á L I S I S M A C R O GRUPO 3 TERMINAL TERRESTRE CHAVIN DE HUANTAR ESTE ES EL PARADERO SE ENCUENTRA EN LA AV. JULIO C. TELLO Y ES DONDE TODOS LOS BUSES ENTRAN Y SALEN, ASIMISMO ESTOS PARTEN EN HORARIOS ESPECIFICOS. INTERSECCIÒN ENTRE LA AV. JULIO C. TELLO Y EL JIRON HUAYNA CAPAC EL CRUCE DE ESTAS DOS AVENIDAS GENERAN UN PAREDERO INFORMAL, LO CUAL OCACIONA TRAFICO. TALLER ARQUITECTÓNICO III MUSEO DE SITIO DOCENTES: ARQ VANESSA GÚZMAN ARQ BRIAN SÁNCHEZ ESCALA: FECHA: LAMINAANALISIS DE VIAS PARADERO FORMAL PARADERO INFORMAL CONCLUSIÓN: LOS PARADEROS INFOMRALES GENERAN TRAFICO, MIENTRAS QUE EL PARADERO FORMAL EL USUARIO ESPERA UNA HORA ESPECIFICA PARA QUE SALGA EL BUSS. LEYENDA : 51/10000 A B A B 17/10/22
GRUPO 3 6100100 00 4400 00 TALLER ARQUITECTÓNICO III MUSEO DE SITIO DOCENTES: ARQ VANESSA GÚZMAN ARQ BRIAN SÁNCHEZ ESCALA: FECHA: LAMINAANALISIS DE VIAS ALIGERAR EL TRAFICO Y PODER LELGAR MAS RAPIDO AL MUSEO LEYENDA : Calles Vía Secundaria Jiron Huayna Capac Jr. Tupac Amaru Jr17 de Enero NTE LEYENDA : vereda Pista Inmuebble 6100100 00 4500 00 Jr. Julio C. Tello Jr.17 de Enero Nte. B C E 61/10000 1600 1700F Manco Capac A D B C E F 17/10/22
A N Á L I S I S M I C R O LEYENDA DE EQUIPAMIENTOS: 3 1 1 2 TALLER ARQUITECTÓNICO III GRUPO M3 USEO DE SITIO DOCENTES: ARQ VANESSA GÚZMAN ARQ BRIAN SÁNCHEZ ESCALA: FECHA: LAMINACONTEXTO INMEDIATO LEYENDAGENERAL: Museo Nacional Chavín HITOS: I.E. NEW SCHOOL CHAVIN EDUCACIÓN OTROS USOS CAMPO SANTO CHAVIN CHAVIN DE HUANTA CONCLUSION: EL 19 DE OCTUBRE DEL 2021 SE REALIZÓ LA PUESTA DE PRIMERA PIEDRA DE LA OBRA: “MEJORAMIENTO Y AMPLIACION DEL CAMPO SANTO CHAVIN ES UN CENTRO EDUCATIVO QUE PERTENECE A LA POBLACIÓN URBANA, UBICADA A DOS CUADRAS DEL MUSEO NACIONAL CHAVIN 7 TEMPLO CEREMONIAL, DECLARADO PATRIMONIO CULTURAL DE LA HUMANIDAD POR LA UNESCO EN 1985, FUE HALLADO EN 1919 POR EL ANTROPÓLOGO JULIO C TELLO RÍ O MOSNA RIO MOSNA EL RECONOCIMIENTO DEL LUGAR A NIVEL MICRO NOS PERMITE IR ENTENDIENDO LA RELACIÓN DE LOS DISTINTOS LUGARES REPRESENTATIVOS DE LA ZONA CON EL MUSEO, PARTIENDO DESDE LO GENERAL QUE VENDRÍA SIENDO EL PLANO EN MACRO A LO PARTICULAR PARA RELACIONAR Y ENTENDER EL MUSEO EN EL CONTEXTO Y SU RELACIÓN CON LA CIUDAD 1/2500 3 17/10/22
3 2 TALLER ARQUITECTÓNICO III GRUPO M3 USEO DE SITIO DOCENTES: ARQ VANESSA GÚZMAN ARQ BRIAN SÁNCHEZ ESCALA: FECHA: LAMINAÁREAS VERDES 8 LEYENDA: HUERTAS Y SEMBRIOS MUSEO NACIONAL CHAVÍN CONCLUSIONES: LAS ÁREAS VERDES ESTAN MAYORITARIAMENTE CONFORMADOS POR SEMBRIOS Y HUERTAS,, YA QUE EL PUEBLO DE CHAVIN SE ENCUENTRA UBICADA AL ESTE DE LA CORDILLERA BLANCA. ESTA ENTRE DOS MONTAÑAS (CORDILLERA BLANCA) 1 HUERTA1. 2. HUERTA 3. VEGETACIÓN NATURAL 4. HUERTA VEGETACIÓN NATURAL 1/2500 FORESTAS DE EUCALIPTOS 17/10/22

MUSEO

GRÁFICO DE

ANÁLISIS

EL MUSEO NACIONAL DE CHAVIN SE ENCUENTRA RODEADA DE CHACRAS, ESTO PREDOMINA EN TODA EL ÁREA ESTUDIADA.

EL ÁREA COMERCIAL ESTA PRESENTE, ESTOS DESARROLLAN DIVERSOS RUBROS, ENTRE ELLOS LOS RESTAURANTE, ZAPATERIAS, MERCADOS, TEXTILERIA ENTRE OTROS.

EL MUSEO NACIONAL CHAVIN SE ENCUENTRE EN LA AVENIDA PRINCIPAL JULIO CESAR TELLO, ESTO PERMITE LA FACIL ACCESIBILIDAD AL CENTRO TURISTICO.

SE IDENTIFICARON APROXIMADAMENTE 137 LOCES HABITABLES.

A N Á L I S I S M I C R O TALLER ARQUITECTÓNICO III GRUPO M3 USEO DE SITIO DOCENTES: ARQ VANESSA GÚZMAN ARQ BRIAN SÁNCHEZ ESCALA: FECHA: LAMINAUSO DE SUELOS 9
PORCENTAJE SOBRE EL USO DEL SUELO
NACIONAL CHAVÍN VIVIENDAS COMERCIO ÁREA ARGRICOLA OTROS USOS LEYENDA: CONCLUSIONES: DENTRO DEL RADIO DEL OBJETO ARQUITECTÓNICO PREDOMINA LAS ÁREAS AGRICOLAS. ESTA UBICADA EN UNA ZONA AISLADA EN LA AVENIDA PRINCIPAL. RÍ O MOSNA EDUCACIÓN 1/2500 ÁREA AGRICOLA 76% OTROS USOS 1% VIVIENDAS 21% COMERCIO 2% 17/10/22
AV. JULIO C. TELLO ESTA AVENIDA SE ENCUENTRA CARACTERIZADA POR TENER UN MAYOR FLUJO VEHICUALR, DEBIDO A QUE ES LA CARRETERA PRINCIPAL JR.17 de ENERO NTE ESTE JIRON SE CARATERIZA POR SER UNA RUTA ALTERNA PARA EVITAR EL TRANSITO DE LA AVENIDA PRINCIPAL Jr. SIMON BOLIVAR ESTE JIRON AL IGUAL QUE LA VIA DE LA IZQUIERDA ,SE CARATERIZA POR SER UNA RUTA ALTERNA PARA EVITAR EL TRANSITO DE LA AVENIDA TALLER ARQUITECTÓNICO III GRUPO M3 USEO DE SITIO DOCENTES: ARQ VANESSA GÚZMAN ARQ BRIAN SÁNCHEZ ESCALA: FECHA: LAMINAACCESIBLIDAD Y TRANSPORTE 10 RÍ O MOSNA FLUJO VEHICULAR ALTO FLUJO VEHICULAR MEDIO FLUJO VEHICULAR BAJO LEYENDA :CONCLUSIÓN ESTAS AVENIDAS SON USADAS MAYORMENTE POR LAS PERSONAS QUE VIVEN EN LA CIUDAD Y VISITANTES. 1/2500 A B C BA C 17/10/22
A VIA TIENE UN FLUJO VEHICULAR BAJO , YA QUE SOLO LLEVA A QUEÑOS PUEBLITOS QUE VIVEN DE TALLER ARQUITECTÓNICO III GRUPO M3 USEO DE SITIO DOCENTES: ARQ VANESSA GÚZMAN ARQ BRIAN SÁNCHEZ ESCALA: FECHA: LAMINAACCESIBLIDAD Y TRANSPORTE 11 FLUJO VEHICULAR ALTO FLUJO VEHICULAR MEDIO FLUJO VEHICULAR BAJO LEYENDA C: ONCLUSIÓN LAS VIAS SECUNDRIAS SON USASDAS MAYORMENTE POR LOS POBLADORES PARA VER SUS CULTIVOS Jr. TUPAC AMARU A VIA TIENE UN FLUJO VEHICULAR BAJO, QUE SOLO LO USAN LOS POBLADORES PARA IR A SUS CULTIVOS VIAS SECUNDARIAS 1/2500 RÍ O MOSNA A B B A 17/10/22

A N Á L I S I S

F O R M A L

PLATAFORMAS

ESCALONADAS

REPRESENTA UN CONJUNTO DE EDIFICIOS PIRAMIDALES CON GALERIAS EN SU INTERIOR

ANÁLISIS

REPRESENTA A LA PLAZA CIRCULAR HUNDIDA DEL TEMPLO VIEJO, ESTA TENIA LAS PAREDES ENCHAPADAS CON PIEDRAS QUE ESTABAN FINAMENTE PULIDAS Y DECORADAS CON IMÁGENES DE SERES MÍTICOS, EN EL MUSEO REPRESENTA UN ACCESO HACIA EL TEMPLO CHAVÍN DE HUÁNTAR

EL ACABADO EN QUE LE DIERON A

LOS MUROS REPRESENTAN A LAS GRANDES PIEDRAS DE FORMA RECTANGULAR USADAS EN LA CONSTRUCCIÓN DEL TEMPLO CHAVIN

TAMBIEN A LOS MUROS DE MAMPOSTERIA LAS CUALES UNÍAN CON TIERRA ARCILLOSA

REPRESENTAN UNA PROCESIÓN DE SERES MÍSTICOS CAMINANDO HACIA LA PIRÁMIDE PRINCIPAL

CONCLUSIONES

PARA LA CONSTRUCCIÓN DEL MUSEO SE

UTILIZARON VARIOS REFERENTES DE LA ARQUITECTURA CHAVIN, LO QUE LE DA UN VALOR DE COHERENCIA, YA QUE TIENE UNA RELACIÓN DESDE UN SENTIDO TANTO FUNCIONAL COMO FORMAL.

A N Á L I S I S F ESCALINATAS T1 4 1 PLAZA CIRCULAR2 2 3 3 4 5 4 4 EN LA ARQUITECTURA CHAVIN SE EVIDENCIAN UN CONJUNTO DE EDIFICIOS PIRAMIDALES, EN EL MUSEO REPRESENTA UNA EXTENSA RED DE GALERÍAS SUBTERRÁNEAS CON VARIOS NIVELES 5 ACABADO EN PIEDRA ESTAS REPRESENTAN A LAS ESCALINATAS UBICADAS EN LOS LADOS OPUESTOS DE LA PLAZA CIRCULAR DEL TEMPLO VIEJO EN ESTE SE ADOPTA EL ESTILO DE LA PLAZA CIRCULAR DEL TEMPLO VIEJO. -INFORME DE LA AGENCIA DE COOPERACIÓN INTERNACIONAL DE JAPÓN, MARZO DE 2006. EN: HTTPS://OPENJICAREPORT.JICA.GO.JP/PDF/11819646_01.PDF ANALISIS DE CODIGOS TALLER ARQUITECTÓNICO III GRUPO M3 USEO DE SITIO DOCENTES ARQ VANESSA GÚZMAN ARQ BRIAN SÁNCHEZ FECHA: LAMINAESTRATEGIAS PROYECTUALES 12 CON FORMA DE PLATAFORMA EN LA ENTRADA DEL MUSEO. REPRESENTARON CON ESTO LAS GRANDES PIEDRAS QUE SE USARON EN LA CONSTRUCIÓN DEL TEMPLO CHAVIN.
17/10/22

RITMO Y REPETICIÓN

LA ARQUITECTURA CHAVÍN ESTABA REPRESENTADA POR EL ESPACIO CENTRAL PRINCIPAL, PUESTO QUE DE AHI PARTIA TODA LA CONSTRUCCIÓN SE ORDENA APARTIR DE LA PLAZA CIRCULAR

A ELEMENTO TIENE ANERA FORMAL MBIEN QUE LOS ORMAN EL MUSEO COMPOSICIÓN.

NOS PERMITE ORGANIZAR LOS ESPACIOS, EN EL MUSEO EL EJE ESTA CONECTANDO TAMBIEN LAS MONTAÑAS Y EL VALLE

EN LA OBRA SE HACE SENCILLO PODER

IDENTIFICAR LA FUNCION Y UTILIDAD DE CADA ELEMENTO, PUESTO QUE ESTOS ELEMENTOS TIENEN UN SIGNIFICADO Y REPRESENTACIÓN ESPECIFICA DE LA CULTURA CHAVIN.

SE ENCUENTRA EN LA PARTE CENTRAL, ES UN TIPO DE RITMO Y REPETICIÓN MONÓTONO PORQUE LOS ELEMENTOS QUE SE REPITEN SON IGUALES Y TIENEN UN INTERVALO DE SEPARACIÓN CONSTANTE

ARMONÍA

TODA LA OBRA EN CONJUNTO TIENE PROPORCIÓN, INTEGRACIÓN Y CONCORDANCIA

UNA COSA CON OTRA.

SE PUEDE EVIDENCIAR QUE TODA LA CONSTRUCCION TIENE UN INTEGRACIÓN ARMONIOSA, CADA COSA TIENE UNA CONCORDANCIA CON OTRA.

CONCLUSIONES

SE HIZO UTILIZACIÓN DE DIVERSOS PRINCIPIOS ORDENADORES LOS CUALES HACEN QUE TODA LA CONSTRUCCIÓN, LOGRE CON ELLO LA UNIDAD ENTRE TODOS SUS ELEMENTOS.

L I S I S F O R M A L O TER TALLER ARQUITECTÓNICO III GRUPO M3 USEO DE SITIO DOCENTES ARQ VANESSA GÚZMAN ARQ. BRIAN SÁNCHEZ FECHA: LAMINAESTRATEGIAS PROYECTUALES 13
ESTE EJE ESTA CONECTANDO LAS MONTAÑAS CON EL VALLE.
COHERENCIA POR SU UBICACIÓN, FORMA Y TAMAÑO.
PUESTO QUE NOS ESTA PERMITIENDO IDENTIFIC LA FUNCIÓN Y UTILIDAD ESPACIO A SIEMPLE VIST
S
1 2 INFORME DE LA AGENCIA DE COOPERACIÓN INTERNACIONAL DE JAPÓN, MARZO DE 2006. EN: HTTPS://OPENJICAREPORT.JICA.GO.JP/PDF/11819646_01.PDF
PORQUE
DE
3 4 6 2 3 4 5 5 6 1
PORQUE REPRESENTA AL ESPACIO CENTRAL PRINCIPAL QUE ERA MUY REPRESENTATIVO EN LA ARQUITECTURA CHAVÍN. 2 4 5 2 2 17/10/22

ORGANIZACIÒN EN TRAMA (RETICULAR )

ESTÁS ESTÁN GENERADAS HACIA EL INTERIOR DE UNA RETÍCULA

TRIDIMENSIONAL DE UNA RETÍCULA

QUE ESTA COMPUESTA POR PUNTOS Y CAMPOS DE FORMA REGULAR

DONDE LO MAS COMÚN ES TRABAJAR

CON LAS FORMAS CUADRADAS. CUANDO ESTÉ SE PROYECTA EN TRES

DIMENSIONES CREA UNA ESPECIÉ DE

RED ESPACIAL COMPUESTAS POR LÍNEAS Y PUNTOS DENTRO DE LOS CUALES SE ORGANIZAN ESTAS

FORMAS Y ESPACIOS, ADEMÁS

SE CONFIGURA A TRAVÉS DEL SISTEMA ESTRUCTURAL DE LAS VIGAS

Y DE LAS COLUMNAS CUALQUIER

TRAMA QUE SE UTILICÉ PUEDE PRESENTAR TRANFORMACIONES.

A N Á L I S I S F O R M A L TALLER ARQUITECTÓNICO III GRUPO M3 USEO DE SITIO DOCENTES: ARQ VANESSA GÚZMAN ARQ BRIAN SÁNCHEZ FECHA: LAMINAORGANIZACIÓN FORMAL 14
LEYENDA : COLUMNAS GRILLA LA ORGANIZACIÓN EN TRAMA FACILITA LA DISTRIBUCIÓN DE LOS ESPACIOS Y DE LAS COLUMNAS Y VIGAS CONCLUSIÒN 17/10/22

INICIALMENTE SE HIZO EL RECONOCIMIENTO DE LA TRAMA PARA PODER ENCONTRAR LOS MÓDULOS Y RESPECTO A ELLO SE PUDO RECONOCER DÓS MÓDULOS UNO DE 3.60 Y OTRO DE 7.20

CON AYUDA DE LOS CORTES SE PUEDE EVIDENCIAR QUE EXISTEN TRES ALTURAS REPETIDAS EN EL PROYECTO +9 50, +4 00, +6 80

RELACIÓN MODULAR

DEL MÓDULO 7.20X7.20

LA PLAZA CIRCULAR HUNDIDA TIENE UNA RELACIÓN DE 6 X 6.

LAS ÁREAS EXPOSITIVAS VARÍAN ENTRE 2X2, 2X1 Y 1X3, ADEMÁS EN ELLAS SE USA UNA ALTURA DE +6.80M.

LA GALERIA DE CABEZAS CLAVAS

TIENE UNA RELACION DE 2X1 Y

SE USÓ UNA ALTURA DE 4 METROS

RESPECTO AL HALL DE INGRESO Y TALLER EDUCATIVO SE HACE EL USO DE AMBOS MÓDULOS, TENIENDO AMBOS ESPACIOS UNA ALTURA DE +9.50.

DEL MÓDULO 3.60 X 3.60

EL HALL DEL OBELISCO TIENE UNA RELACIÓN DE 2 A 1

LAS DEMÁS ÁREAS, COMO LA COCINA, BOLETERÍA Y ÁREA DE DESCANSO TIENEN UNA ALTURA DE +4.00M .

CONCLUSION:

SE PUDO RECONOCER DOS MÓDULOS DE LOS CUALES SE ADICIONARON A OTROS PARA FORMAR ESPACIOS CON DISTINTOS TAMAÑOS Y FUNCIONES, SIN AFECTAR AL RESTO DEL SISTEMA

A N Á L I S I S F O R M A I L TALLER ARQUITECTÓNICO III GRUPO M3 USEO DE SITIO DOCENTES: ARQ VANESSA GÚZMAN ARQ BRIAN SÁNCHEZ ESCALA: FECHA: LAMINAMODULACIÓN DE ESPACIOS 15
17/10/22

AGREGADOS

ARENAS DE RÍO, GRAVAS.

PIEDRAS TRITURADAS

GRANITO MEDIA PULGADA

COMPUESTA POR COLUMNAS Y

VIGAS DE CONCRETO ARMADO SITU. PISO

CONCRETO Y EN LA AZOTEA

TIPO PLANO DE CONCRETO IN SITU MURO LADRILLOS ALIVIANADOS

MUROS

EXTERIORES

PARED DE ADOBE O LADRILLOS. PARED DE CONCRETO ARMADO

ACABADOS

REVESTIMIENTO DE MORTERO, MAMPOSTERÍA TIPO NATURAL

ANALISIS

EL MUSEO NACIONAL DE CHAVIN DE HUANTAR ESTA ZONA ESTA UBICADA EN LA VERTIENTE ORIENTAL DEL MACIZO

MONTAÑOSO FORMADO ENTRE LA CORDILLERA BLANCA Y EL RÍO MOSNA.

EXSISTE UNA VARIACIÓN DE FRIO ENTRE EL DIA Y LA LA NOCHE

SE CONSIDERO LA ALTURA

APROPIADA DEL TECHO ASI COMO LA DURABILIDAD Y EL COSTO.

SISTEMA QUE PERMITE

IMPERMEABILIDAD, TRABAJABILIDAD Y AISLAMIENTO TÉRMICO.

ADQUISICIÓN FÁCIL CON BAJO COSTO, COLOCACIÓN DOBLE DE LADRILLOS PARA EL AISLAMIENTO TÉRMICO.

USO DE PIEDRAS NATURALES DURABLES PARA COMPONENTES

PRINCIPALES SEGÚN EL CRITERIO DE DISEÑO, APLICACIÓN DEL SISTEMA LOCAL CON FACILIDAD DE MANTENIMIENTO

CONCLUSIONES

CON EL FIN DE PERSEVERAR SE CONSIDERO MATERIALES NACIONALES QUE SE ADQUIERAN EN LIMA Y LAS NORMAS TECNICAS DEL PERÚ.

LAMINA

A N Á L I S I S F O R M A L CONDICION NATURALES TEMPERATURAS ESTA MINIMAS DE 2° A 5° Y MAXIMO DE 19° A 22° EXTRUCTURA PRINCIPAL EXTERIOR LOSAS MACIZAS DE CONCRETO ARMADO TALLER ARQUITECTÓNICO III GRUPO M3 USEO DE SITIO DOCENTES ARQ VANESSA GÚZMAN ARQ. BRIAN SÁNCHEZ FECHA: 17/10/22
16 MATERIALIDAD
ESTRUCTURA DEL TECHO
TIPO V
INFORME DE LA AGENCIA DE COOPERACIÓN INTERNACIONAL DE JAPÓN, MARZO DE 2006 EN: HTTPS://OPENJICAREPORT.JICA.GO.JP/PDF/11819646 01.PDF

VISTA INTERNA

ACABADO

TECHO PARED

AZULEJO DE CERÁMICA

VISTA EXTERNA

LA FINALIDAD DE USAR MARCOS DE ALUMINIO Y ACERO

ES EL LOGRO DE HERMETICIDAD, SEGURIDAD Y DURABILIDAD.

ESPECIFICACIONES DE ALTO GRADO CON EL BAJO COSTO, MANTENIMIENTO FÁCIL Y FLEXIBILIDAD DE EXHIBICIÓN.

CUESTIÓN DE DURABILIDAD, DISEÑO Y FACILIDAD DE ADQUISICIÓN.

INSTALACIONES

LAS INSTALACIONES DEL MUSEO NACIONAL CHAVÍN DEBEN SER APTAS T SATISFACTORIAS PARA

EL USO DEL HORMBRE, ESTO CONSIDERANDO LAS CONDICIONES NATURALES DEL MEDIO AMBIENTE,

A N Á L I S I S F O R M A L MARCOS DE ALUMINO PUERTAS DE ACERO PISO TOMACORRIENTES VITRINAS PANELES ENCHUFES. MAQUETAS. ETC TALLER ARQUITECTÓNICO III GRUPO M3 USEO DE SITIO DOCENTES ARQ VANESSA GÚZMAN ARQ. BRIAN SÁNCHEZ FECHA: 17/10/22 LAMINA 17 MATERIALIDAD CONCLUSIONES ANALISIS ABERTURAS
INTERIOR VENTANAS PUERTAS
MARCOS DE ACERO VERTIDO DE CONCRETO SIN PROCESAR, ARREGLO MÁS PINTURA TECHO CON BARRAS T DE ALUMINIO / ACERO MÁS TABLEROS, MORTERO MÁS PINTURA MORTERO MÁS PINTURA. MATERIAL DE ENLUCIDO. PARED SECA DE TABLEROS DE YESO MÁS PINTURA
TERRAZO.
INFORME DE LA AGENCIA DE COOPERACIÓN INTERNACIONAL DE JAPÓN, MARZO DE 2006. EN: HTTPS://OPENJICAREPORT.JICA.GO.JP/PDF/11819646 01.PDF

A N Á L I S I S

F U N C I O N A L

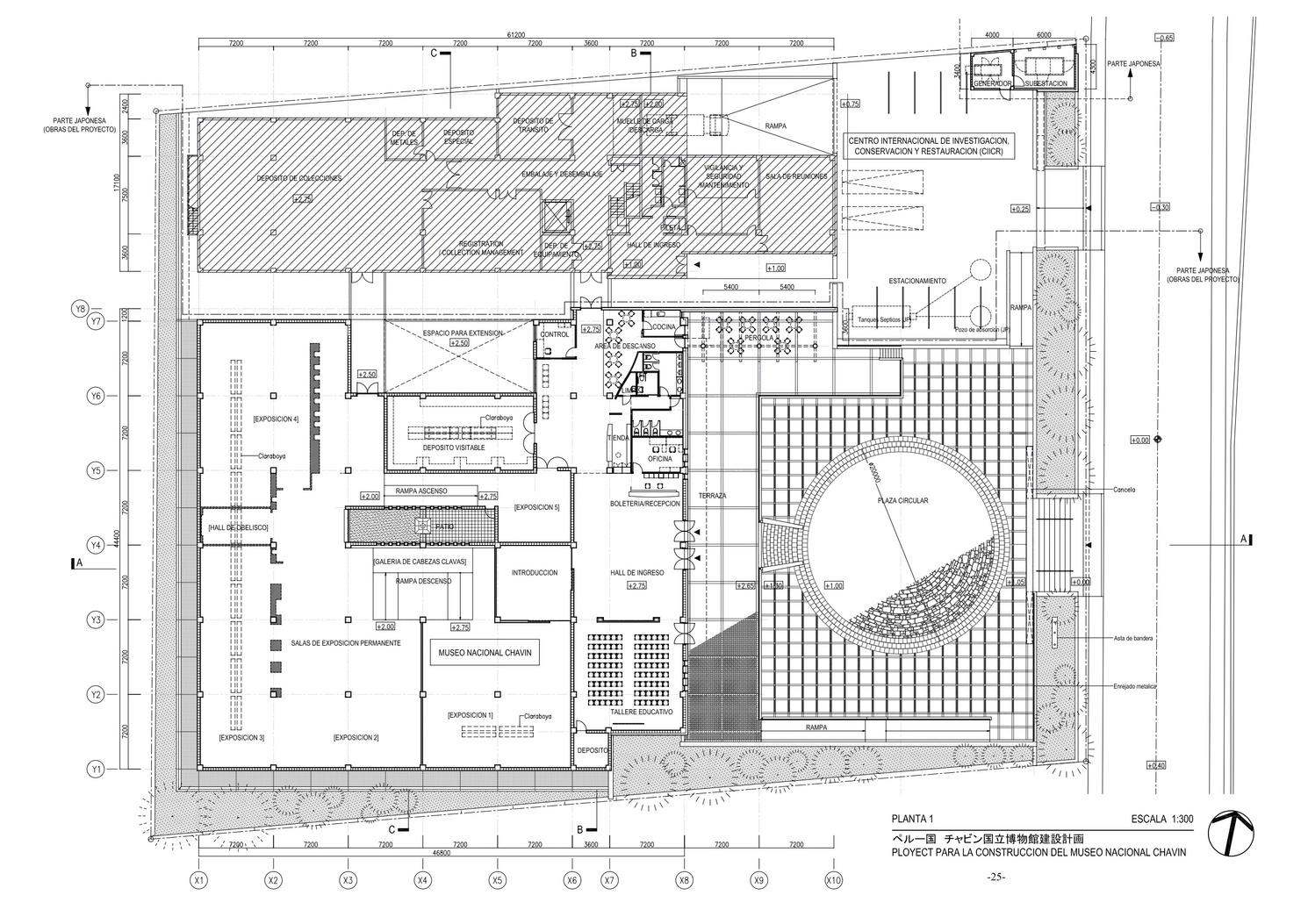
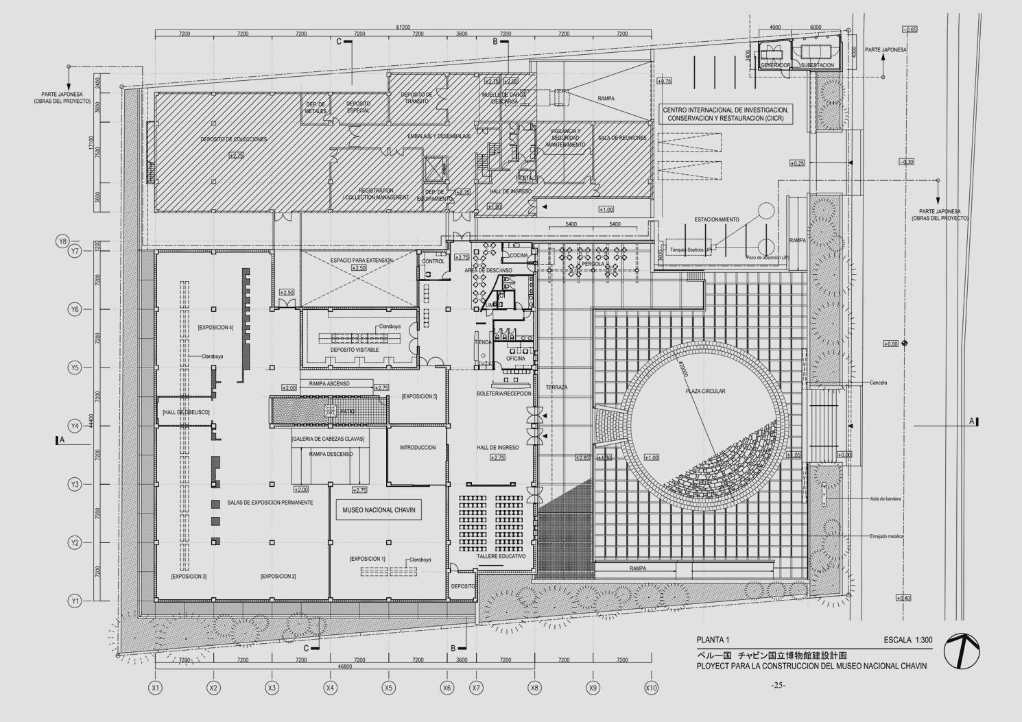
A N Á L I S I S F U N C I O N A L CTÓNICO III GRUPO M3 USEO DE SITIO DOCENTES ARQ VANESSA GÚZMAN ARQ. BRIAN SÁNCHEZ FECHA: LAMINA ZONIFICACIÓN Y DISTRIBUCION AMBIENTES LEYENDA DE ZONIFICACIÓN : DISTRIBUCIÓN DE AMBIENTES : 1 2 3 4 5 6 7 8 9 88 8 8 10 11 12 13 14 15 16 17 18 19 20 21 22121 1 21 1 2 3 4 5 6 7 8 9 10 11 12 13 14 15 16 17 18 19 PUBLICO ADMINISTRATIVO 20 21 PLAZA CIRCULAR ESTACIONAMIENTO HALL DE ENTRADA TALLER EDUCATIVO SS.HH TIENDA COCINA SALAS DE EXPOSICIÓN INTRODUCCIÓN DEPOSITO VISITABLE PLAZA / PATIO GALERIA DE CABEZAS CLAVAS HALL OVELISCO DEPOSITO RECEPCIÓN Y OFICINA ÁREA DE CONTROL ESPACIO DE EXTENSIÓN SALA DE REUNIONES GENERADOR / SUBESTACIÓN MUELLE DE CARGA ALMACENES Y DEPOSITOS CONCLUSIONES : LAS AREAS ADMINISTRATIVAS SE ENCUENTRAN SEPARADAS DE LAS PUBLICAS , PARA PERMITIR UN MEJOR CONTROL SOBRE ESTAS. 1817/10/22
A N Á L I S I S F U N C I O N A L PLANO DE PLANTA DE PRIMER NIVEL TALLER ARQUITECTÓNICO III GRUPO M3 USEO DE SITIO DOCENTE S: ARQ VANESSA GÚZMAN ARQ BRIAN SÁNCHEZ FECHA: LAMINA 19 ACCESOS LEYENDA DE ACCESOS: CONCLUSIONES: INGRESO PRINCIPAL PEATONAL INGRESO DE SERVICIO RUTA PRINCIPAL A . V J U L I O C . T E L L O INGRESO PRINCIPAL PEATONAL INGRESO DE SERVICIO RUTA PRINCIPAL EL ACCESO PRINCIPAL NOS PERMITE DIRIGIRNOS RECORRER DIRECTAMENTE LAS INSTALACIONES DEL MUSEO. A.V JULIO C. TELLO RUTA DIRECTA QUE NOS DIRIJE DESDE EL MONUMENTO CHAVIN DE HUANTAR HACIA EL MUSEO NACIONAL EL ACCESO PRINCIPAL ESTA UBICADO EN EL CENTRO , TIENE COMO BIENVENIDA UNA PLAZA CIRCULAR. UBICADA AL LADO DEL INGRESO PRINCIPAL. 17/10/22

LEYENDA :

Circulación

Escaleras

Ingreso

estacionamiento

EL MUSEO NO CUENTA CON CIRCULACIONES

VERTICALES, YA QUE ES DE UN SOLO NIVEL, LOS VISITANTES SE MOVILIZAN A TRAVEZ DE RAMPAS Y ESCALERAS COMO SE APRECIA EN EL CORTE

TIPO DE RECORRIDO: LINEAL

PORQUE TIENE UN PUNTO DE PARTIDA (PLAZA CIRCULAR) DESDE EL CUAL SE LLEVA A LOS VISITANTES A TRAVÉS DE UNA SERIE DE SECUENCIAS ESPACIALES

CONCLUSIONES:

EL MUSEO NACIONAL CHAVÍN DE HUÁNTAR CUENTA CON ESCALERAS Y RAMPAS TENIENDO UNA CIRCULACIÓN ACCESIBLE HACIA EL PUBLICO. LA CIRCULACIÓN DE LOS VISITANTES NO SE INTERRUMPE CON LA CIRCULACIÓN DE LOS TRABAJADORES.

A N Á L I S I S F U N C I O N A L TALLER ARQUITECTÓNICO III GRUPO M3 USEO DE SITIO DOCENTES: ARQ VANESSA GÚZMAN ARQ BRIAN SÁNCHEZ FECHA: LAMINACIRCULACIONES
Rampa
trabajadores Circulación visitantes
Ingreso principal
a
Ruta principal
20
17/10/22
A N Á L I S I S F U N C I O N A L HALL DE INGRESO TALLER ARQUITECTÓNICO III GRUPO M3 USEO DE SITIO DOCENTES ARQ VANESSA GÚZMAN ARQ. BRIAN SÁNCHEZ FECHA: LAMINASECUENCIA ESPACIAL INGRESO PLAZA CIRCULAR HUNDIDA TALLER EDUCATIVO BOLETERIA OFICINA ÁREA DE DESCANSO DEPOSITO DE CERAMICAS VISITABLE ÁREA DE EXPOSICIÓN 5 ÁREA DE EXPOSICIÓ N 4 ÁREA DE EXPOSICIÓN 1 ÁREA DE EXPOSICIÓN 2 Y 3 EXPOSICION CABEZAS CLAVAS ÁREA DE EXPOSICIÓN 6 INTRODUCCIÒN 21 LEYENDA :: FLUJO CBAJO ONCLUSIONES: LA SECUENCIA ESPACIAL ES MUY LIGERA, ORDENADA Y HACE QUE LA PERSONA NO SE PIERDA . ESPACIO 17/10/22 FLUJO MEDIO FLUJO ALTO

EL ANÁLISIS CONTEXTUAL NOS AYUDA A REFORZAR NUESTRO CONOCIMIENTO EN RELACIONES VOLUMETRICAS ESPACIALES APROPIADOS AL ENTORNO ESPECÍFICO.

U A N

TIENE COMO OBJETIVO ENGROSAR NUESTRO LENGUAJE ARQUITECTONICO MEDIANTE ANALISIS GRAFICOS E INVESTIGACIÓN DEL PROYECTO.

D

EN EL ANALISIS FORMAL NOS DIMOS CUENTA QUE ES

NECESARIO CONOCER LAS CARACTERISTICAS DEL MUSEO PARA ASI RECONOCER LOS ELEMENTOS QUE LA CONSTITUYEN

EL ANALISIS FUNCIONAL PERMITE ANALIZAR LOS ASPECTOS FUNCIONALES (DISTRIBUCIÓN, ACCESOS, CIRCULACIONES Y SECUENCIA ESPACIAL) QUE PRESENTA LA VIVIENDA

PRIMERO EMPEZAR POR ESTUDIAR SU HISTORIA

DEL SITIO PARA UN ANALISIS CONTEXTUAL

ANALIZAR CON MAYOR DETENIMIENTO Y BUSCAR

-PARA REALIZAR LA INTERVENCIÓN URBANA

PRIMERO SE DEBE TENER UNA EVALUACIÓN ADECUADA DEL LUGAR EN SUS DIFERENTES ASPECTOS, PORQUE ESTO PERMITIRA GENERAR ESTRATEGIAS QUE RESPONDAN ADECUADAMENTE AL ENTORNO.

REFERENCIAS:

INFORME DE LA AGENCIA DE COOPERACIÓN INTERNACIONAL DE JAPÓN, MARZO DE 2006. EN: HTTPS://OPENJICAREPORT.JICA.GO.JP/PDF/11819646_01.PDF

LA CONSTRUCCIÓN EN EL ANTIGUO PERÚ, JUAN LUIS BOUSO ARAGONÉS EN: HTTPS://MINASYENERGIA.UPM.ES/ATTACHMENTS/ARTICLE/631/BOUSO.PDF

LA RAZON DE, PORQUE LA VOLUMETRIA CON EL ENTORNO HTTP://APUNTESDEARQUITECTURADIGITAL.BLOGSPOT.COM/2021/08/LAS CONSTRUCCIONES-DE-CHAVIN-DEHUANTAR.HTML#:~:TEXT=EL%20CONJUNTO%20ARQUITECTÓNICO%20DE%20C HAVÍN,CON%20SU%20PLAZA%20CIRCULAR%20HUNDIDA.

M U S E O N A C I O N A L C H A V I N
E H
T A R TALLER ARQUITECTÓNICO III GRUPO M3 USEO DE SITIO DOCENTES ARQ. VANESSA GÚZMAN ARQ BRIAN SÁNCHEZ FECHA: LAMINACONCLUSIONES CONCLUSIONES: RECOMENDACIONES:
22
17/10/22

Turn static files into dynamic content formats.

Create a flipbook
Issuu converts static files into: digital portfolios, online yearbooks, online catalogs, digital photo albums and more. Sign up and create your flipbook.