Abigail Pablo Portfolio

Page 1

PORTFOLIO

Interior Design Portfolio Spring 2024 College of DuPage

THE ADKIN’S RESIDENCE

RESIDENTIAL DESIGN DEMOLITION, CONSTRUCTION PLANS & ELEVATIONS

KRAVET INC.

DESIGN OF DISTINCTION AWARD WINNER

Design Goals Design Accomplishments

• Preserve Traditional Brownstone Elements

• Update Layout for Modern Living and Entertaining Guests

• Source Furniture from Kravet, INC.

• Balance Classic Features with Contemporary Pieces

• Interior Re-Design with Functional and Spacious Layout

• Salvaged Ornate Crown Molding and Classic Architectural Millwork

• Updated Kitchen and Laundry Room with Maximized Usage and Storage

1
LIVING ROOM 2-POINT PERSPECTIVE Produced in Sketchup and Rendered in Enscape. Enhanced in Adobe Photoshop. N Drawings Produced in Autodesk AutoCAD. NOT TO SCALE. Original Scale is Representative of Industry Standards 1 3 2 5 6 8 9 10 Furniture
1. Kravet- Ling Ottoman 2. Kravet- Tabriz Rug 3. Kravet- Grace Loveseat 4. Arhaus- Claudette 12 Chandelier 5. Kravet- Coopenhagen Lounge Chair 6. Kravet- Russ Side Table 7. Arhaus- Archer Table Lamp 8. Sherwin WIlliams- Agreeable Gray 9. Sherwin Williams- Origami White 10. MinWax- Early American
Vignette
Kravet, Inc. Furniture Pieces Embody Classical and Periodical Silhouettes in Historical Brownstone Interiors. A Mixture Between Contemporary Silhouettes with Pieces Crafted with Detail Elevates This Historical Home to Modern Living. 4 67'-2" 6'-7" 2'-10" 17'-0 4 22'-8" 21'-6" 13'-8" LIVING ROOM FOYER DINING ROOM KITCHEN BATH FULL BATH BEDROOM LAUNDRY KEYNOTE #1 KEYNOTE #2 2'-6" 8 2 KEYNOTE #3 DINING ROOM LIVING ROOM FOYER KITCHEN BATH LAUNDRY/MUD ROOM OFFICE 10'-6" 3'-6" 1'-0" 6'-7" 2'-10" 6'-1" 15'-112" 17'-0" 6" 8'-93 4 " 5" 8'-23 4 " 5" 7'-6" 7'-0" 5'-6" 8'-6" 6'-0" 5'-6" 4'-9" 3'-0" 4'-8" 4'-0" 8'-4" 17'-0 1 4 " 3'-0" 8 2 " 17'-52" 25'-7" 8'-82" D.W M R 8'-93 4 " 5'-73 4 " 4'-7 4 7'-8 3 4 12'-4" D W P 5" KEYNOTE #6 KEYNOTE #2 KEYNOTE #3 SHEET: DEMOLITION AND CONSTRUCTION PLANS ADKIN'S REMODEL PROJECT #2 INTERIORS 2410 DATE: SCALE: REVISIONS: 1 2 3 ABIGAIL PABLO 3-28-22 3/16"=1'-0" 1 DEMOLITION PLAN SCALE: 3/16"=1'-0" 2 CONSTRUCTION PLAN SCALE: 3/16"=1'-0" DEMOLITION LEGEND: EXISTING WALLS TO BE REMOVED DEMOLITION KEYNOTES: CONSTRUCTION LEGEND: EXISTING WALLS NEW FULL HEIGHT WALL PATCH WALL W/ PRESERVED MASONRY. MATCH EXISTING CONDITIONS CONSTRUCTION KEYNOTES: KEYNOTE #1: DOORS TO BE REMOVED AND REUSE. SEE CONSTRUCTION PLAN KEYNOTE KEYNOTE #2: EAST DOOR TO BE REMOVED. PATCH WALL TO MATCH EXISTING. SEE CONSTRUCTION PLAN KEYNOTE #2. KEYNOTE #4: ALL CROWN MOLDING TO FOR NEW LAYOUT INSTALLATION. KEYNOTE #5: ALL BASE MOLDING TO BE FOR NEW LAYOUT INSTALLATION. KEYNOTE #6: EXISTING FLOORING TO REMAIN. PATCH AND REPAIR AS NEEDED. KEYNOTE #1: SAVED DOORS TO BE USED BATHROOM, DINING ROOM. AND KITCHEN. KEYNOTE #2: WALL REPAIR AT EAST EXIT REMOVAL. MATCH TO EXISTING. KEYNOTE #4: ADD NEW CROWN MOLDING EXISTING AS NEEDED THROUGHOUT. KEYNOTE #5: ADD NEW BASE MOLDING EXISTING AS NEEDED THROUGHOUT. KEYNOTE #3: WIDEN DOORWAY TO 36". SEE CONSTRUCTION PLAN. KEYNOTE #3: REINSTALL 36" PRESERVED DOOR IN WIDENED OPENING. NOTES: CEILING HEIGHT- 10'-0" KEYNOTE #6: CLERESTORY WINDOW 8'-0" KEYNOTE #7: EXISTING FLOORING SANDED STAINED IN MINWAX OIL STAIN- "EARLY AMERICAN" 67'-2" 6'-7" 2'-10" 17'-0 1 4 22'-8" 21'-6" 13'-8" LIVING ROOM FOYER DINING ROOM KITCHEN BATH FULL BATH BEDROOM LAUNDRY KEYNOTE #1 KEYNOTE #2 2'-6" KEYNOTE #3 DINING ROOM LIVING ROOM FOYER KITCHEN BATH LAUNDRY/MUD ROOM OFFICE 10'-6" 3'-6" 1'-0" 6'-7" 2'-10" 6'-1" 15'-112" 17'-0" 6" 8'-93 4 " 5" 8'-23 4 " 5" 7'-6" 7'-0" 5'-6" 8'-6" 6'-0" 5'-6" 4'-9" 3'-0" 4'-8" 4'-0" 8'-4" 17'-0 4 " 3'-0" 8 1 2 " 17'-52" 25'-7" 8'-82" D.W M R 8'-93 4 5'-73 4 4'-7 1 4 7'-8 3 4 12'-4" D W P 5" KEYNOTE #6 KEYNOTE #2 KEYNOTE #3 SHEET: DEMOLITION AND CONSTRUCTION PLANS ADKIN'S REMODEL PROJECT #2 INTERIORS 2410 DATE: SCALE: REVISIONS: 1 2 3 ABIGAIL PABLO 3-28-22 3/16"=1'-0" 1 DEMOLITION PLAN SCALE: 3/16"=1'-0" 2 CONSTRUCTION PLAN SCALE: 3/16"=1'-0" EXISTING WALLS TO BE REMOVED DEMOLITION KEYNOTES: CONSTRUCTION LEGEND: EXISTING WALLS NEW FULL HEIGHT WALL PATCH WALL W/ PRESERVED MASONRY. MATCH EXISTING CONDITIONS CONSTRUCTION KEYNOTES: KEYNOTE #1: DOORS TO BE REMOVED AND REUSE. SEE CONSTRUCTION PLAN KEYNOTE KEYNOTE #2: EAST DOOR TO BE REMOVED. PATCH WALL TO MATCH EXISTING. SEE CONSTRUCTION PLAN KEYNOTE #2. KEYNOTE #4: ALL CROWN MOLDING TO FOR NEW LAYOUT INSTALLATION. KEYNOTE #5: ALL BASE MOLDING TO BE FOR NEW LAYOUT INSTALLATION. KEYNOTE #6: EXISTING FLOORING TO REMAIN. PATCH AND REPAIR AS NEEDED. KEYNOTE #1: SAVED DOORS TO BE USED BATHROOM, DINING ROOM. AND KITCHEN. KEYNOTE #2: WALL REPAIR AT EAST EXIT REMOVAL. MATCH TO EXISTING. KEYNOTE #4: ADD NEW CROWN MOLDING EXISTING AS NEEDED THROUGHOUT. KEYNOTE #5: ADD NEW BASE MOLDING EXISTING AS NEEDED THROUGHOUT. KEYNOTE #3: WIDEN DOORWAY TO 36". SEE CONSTRUCTION PLAN. KEYNOTE #3: REINSTALL 36" PRESERVED DOOR IN WIDENED OPENING. NOTES: CEILING HEIGHT- 10'-0" KEYNOTE #6: CLERESTORY WINDOW 8'-0" KEYNOTE #7: EXISTING FLOORING SANDED STAINED IN MINWAX OIL STAIN- "EARLY AMERICAN" 67'-2" 6'-7" 2'-10" 17'-0 4 22'-8" 21'-6" 13'-8" LIVING ROOM FOYER DINING ROOM KITCHEN BATH FULL BATH BEDROOM LAUNDRY KEYNOTE #1 KEYNOTE #2 2'-6" 8 2 KEYNOTE #3 DINING ROOM LIVING ROOM FOYER KITCHEN BATH LAUNDRY/MUD ROOM OFFICE 10'-6" 3'-6" 1'-0" 6'-7" 2'-10" 6'-1" 15'-112" 17'-0" 6" 8'-94" 5" 8'-23 4 " 5" 7'-6" 7'-0" 5'-6" 8'-6" 6'-0" 5'-6" 4'-9" 3'-0" 4'-8" 4'-0" 8'-4" 17'-0 4 3'-0" 8 1 2 17'-5 25'-7" 8'-82 D.W M R 8'-94" 5'-73 4 " 4'-7 1 4 7'-8 3 4 12'-4" W P 5" KEYNOTE #6 KEYNOTE #2 KEYNOTE #3 SHEET: DEMOLITION AND CONSTRUCTION PLANS ADKIN'S REMODEL PROJECT #2 INTERIORS 2410 DATE: SCALE: REVISIONS: 2 3 1 ABIGAIL PABLO 3-28-22 3/16"=1'-0" 1 DEMOLITION PLAN SCALE: 3/16"=1'-0" 2 CONSTRUCTION PLAN SCALE: 3/16"=1'-0" DEMOLITION LEGEND: EXISTING WALLS TO BE REMOVED DEMOLITION KEYNOTES: CONSTRUCTION LEGEND: EXISTING WALLS NEW FULL HEIGHT WALL PATCH WALL W/ PRESERVED MASONRY. MATCH EXISTING CONDITIONS CONSTRUCTION KEYNOTES: KEYNOTE #1: DOORS TO BE REMOVED AND SAVED FOR REUSE. SEE CONSTRUCTION PLAN KEYNOTE #1. KEYNOTE #2: EAST DOOR TO BE REMOVED. PATCH WALL TO MATCH EXISTING. SEE CONSTRUCTION PLAN KEYNOTE #2. KEYNOTE #4: ALL CROWN MOLDING TO BE SALVAGED FOR NEW LAYOUT INSTALLATION. KEYNOTE #5: ALL BASE MOLDING TO BE SALVAGED FOR NEW LAYOUT INSTALLATION. KEYNOTE #6: EXISTING FLOORING TO REMAIN. PATCH AND REPAIR AS NEEDED. KEYNOTE #1: SAVED DOORS TO BE USED IN OFFICE, BATHROOM, DINING ROOM. AND KITCHEN. KEYNOTE #2: WALL REPAIR AT EAST EXIT DOOR REMOVAL. MATCH TO EXISTING. KEYNOTE #4: ADD NEW CROWN MOLDING TO MATCH EXISTING AS NEEDED THROUGHOUT. KEYNOTE #5: ADD NEW BASE MOLDING TO MATCH EXISTING AS NEEDED THROUGHOUT. KEYNOTE #3: WIDEN DOORWAY TO 36". SEE CONSTRUCTION PLAN. KEYNOTE #3: REINSTALL 36" PRESERVED ETERIOR DOOR IN WIDENED OPENING. NOTES: CEILING HEIGHT- 10'-0" KEYNOTE #6: CLERESTORY WINDOW 8'-0" A.F.F KEYNOTE #7: EXISTING FLOORING SANDED AND STAINED IN MINWAX OIL STAIN- "EARLY AMERICAN"

7 WEST WALL-KITCHEN ELEVATION

SCALE: 1/2"=1'-0"

8

NORTH WALL- KITCHEN ELEVATION

SCALE: 1/2"=1'-0"

ADKIN'S REMODEL

PROJECT #2 DATE: SCALE: REVISIONS: 1 4

ABIGAIL PABLO 3-28-22 1/2"=1'-0"

DINING ROOM 2-POINT PERSPECTIVE Produced in Sketchup and Rendered in Enscape. Enhanced in Adobe Photoshop. 10'-0" A.F.F 2 1 2 " 2'-24" 22" 53 4 " 6'-0" 53 4 " 22" 2'-24" 2 1 2 " 6 1 4 " 2 1 2 2'-0" 2 1 2 " 1" 7'-5 1 4 " 5 3 4 " 3'-0" 1" 1'-4 3 4 " 7 1 2 " 9
SCALE: 1/2"=1'-0" 1'-6" 3'-0" 1'-6" 3'-0" DETAIL DRAWINGS
INTERIORS 2410 DATE: SCALE: REVISIONS: 1 2 3 ABIGAIL PABLO 3-28-22 AS NOTED 10 DINING ROOM- CEILING MEDALLION DETAIL SCALE: 1"=1'-0" 11 LIVING ROOM- CEILING MEDALLION DETAIL SCALE: 1"=1'-0" 2'-24" 22" 1'-6" 3'-0" 9 10 DINING ROOM- CEILING MEDALLION DETAIL SCALE: 1"=1'-0" 2'-94" 2'-7" 2'-94" 1'-6" 3'-73 4 " 1'-5" 5 1 4 " 2'-73 4 " 34" 2'-4" 63 4 " 1'-3 1 2 " 4" 1'-32" 1'-112" 8" 42" 7'-4 1 2 " 3'-53 4 " 1'-83 4 " 5 1 2 " 6 1 4 " 2'-10 3 4 " 1 1 4 " 3'-53 4 " 3'-6" 1 1 2 " 1" 3 4 1'-1 1 4 " 10'-0" A.F.F 3" 2'-11" 2 " 1'-11" 4'-0" 1'-8" 1'-9 1 2 " 1 2 " 1 2 " 2 " 2'-10 3 4 1 1 4 1'-6" 2'-11" 1" 1'-6 1 4 1 2 3'-33 4 " 2'-33 4 " 2'-33 4 " 32" 1" 3 4 " 10'-0" A.F.F SHEET: ELEVATIONS
KITCHEN- POCKET DOORS DETAILS
ADKIN'S REMODEL PROJECT #2

JOHNSON’S KITCHEN

Design Goals

• Ample Storage Solutions

• Efficient Workflow

• Effective Work Triangle

• Cohesive Material Selections

• High-Quality

• Functional

• Achieves Aesthetic

Design Accomplishments

• Large Cabinetry & Storage Compartments for Cookware

• Cabinet Layout Facilitates Smooth Workflow

• Appliance Placement Achieves Effective Work Triangle

• Kitchen Appliances & Selections Look Cohesive

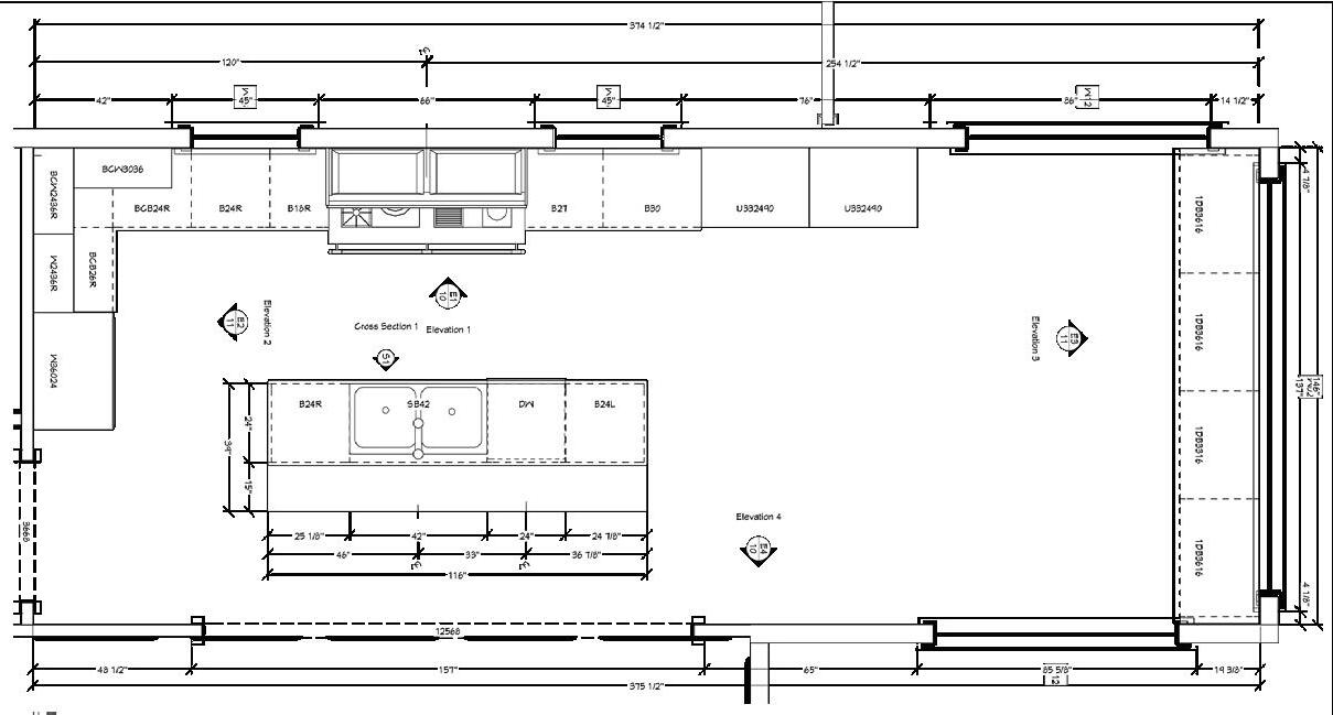
7012 36" 77" 54" 18312 1912 38" 551 1043 4 25 8 212 9712 2841 2014 4712 25 8 233 4 7812 236" 4314 18" 865 8 72" KITCHEN 96" CEILING TO MUDROOM TO ENTRY TO DINING ROOM 253 " 34 H 843 81" 6214 Countertop Bracket (3) 30"x50" 29.5" A.F.F 38"x36"41.5"A.F.F 37" Doorway widened to 36" PANTRY 96" CEILING CONSTRUCTION LEGEND EXISTING WALL WALL REMOVED WALL ADDED OPENING CLOSED PLUMBING WALL CONSTRUCTION PLAN SHEET: DATE: SCALE: REVISIONS: 1 2 3 1 2"=1'-0" JOHNSON'S KITCHEN REMODEL SB36 B15 DB12D3 BC36FH DB21D3 WER2436 W3336 W1236L W1836R 4DB18 4DB18 WO4536 INTEGRATED WINE FRIDGE B15FHL DB15D3 OC309624 B12L BK2436 BK4036 BK3036 BK3036 19" CL 7812 55" 40" 72" 5218 197 8 CL 34" CL 45" 3312 54" BK27 BK18 BK18 BK36 B15FHL DW W2436DD W1836R W1836L B12L W1536R B15R BMW30 DB12D3 B24DD W/ CD W/ SR 9 10 BF3 BF3 BF3 BF3 BF3 BF3 WF3 WF3 WF3 BF3 W/ CD 47" 395 8 CL 7812 30" 225 8 865 8 25 8 25 110" 9712 BF3 WF3 BF3 BF3 DBR DTR DTL DBR 283 38" DWR BEP3/4 BF3 WF3 WF3 WF3 DBL DWL 7012 36" 2" 7412 12 8 1705 8 18312 212 37" 5512 CL 38" 92" 28412 14 2 2214 43" 412 6518 CL 155 8 6214 155 8 9312 CL DWR W3036 397 8 B12R W/ WB B15FHL RCS RCS 96" CEILING KITCHEN DRAWER-BASE CABINET WITH CUTLERY DIVIDER FLOOR PLAN NOTES WALL CABINET- W1836L- WITH SPICE RACK FISHER AND PAYKEL- 36" DUAL FUEL RANGE 36" 18" CUSTOM RANGE HOOD- FISHER AND PAYKEL 32"x 11" HOOD INSERT FENIX 36" 21" INTEGRATED SINK FISHER AND PAYKEL- 24" INTEGRATED DISH WASHER- DIVIDED WASHERS FISHER AND PAYKEL- Integrated French Door Refrigerator Freezer, 36", Ice FISHER AND PAYKEL- Double Oven, 30", 10 Function, Self-cleaning FISHER AND PAYKEL- Combination Microwave Oven, 24" FISHER AND PAYKEL- Integrated Column Wine Cabinet, 24" 10 BEP3/4- BASE END PANEL AT THICKNESS WEP3/4- WALL END PANEL AT THICKNESS TEP3/4- TALL END PANEL AT THICKNESS 11 FLOOR PLAN W/SPECIFICATIONS SHEET: DATE: SCALE: REVISIONS: 1 2 3 1 2"=1'-0" 12 A 10 F 8 D 11 G 12 6 B C 12 2 JOHNSON'S KITCHEN REMODEL N Drawings Produced in Autodesk AutoCAD. NOT TO SCALE. Original Scale is Representative of Industry Standards
KITCHEN
BATH DESIGN DEMOLITION & CONSTRUCTION DRAWINGS 2
&
KITCHEN 2-POINT PERSPECTIVE Produced in Sketchup and Rendered in Enscape. Enhanced in Adobe Photoshop. Materials Selections
• Durable
Easy Cleanability
• Minimal Maintenance
4" 1" 5" 96" 2414 1" 3514 1" 30 2414 16" 351 23 4 28412 787 8 741 13112 CL CL 751 714 812 5" 96" 54" 38" 303 4 3" 32" 5" 351 28412 301 112 18" 36" 36" 393 8 217 8 2414 38" 40" 5 A KITCHEN- NORTH WALL 1/2" = 1'-0" 405 23 8 72" 19 4 5214 4" 3012 18" 36" 1" 5" 614 18" 24" 23 4 72" 112 96" CL 8" 6 B KITCHEN- EAST WALL 1/2" = 1'-0" EAST WALL ELEVATION SHEET: DATE: SCALE: REVISIONS: 1 2 3 6 1 2"=1'-0" 06-05-23 JOHNSON'S KITCHEN REMODEL 73 4 137 8 353 4 155 8 1312 395 8 47" 865 8 4" 30 1 2 112 18" 36" 1" 5" 96" 63 8 18" 1" 4314 11 123 4 35 8 865 CL 7 C KITCHEN- ANGLED WALL 1/2" = 1'-0" FISHER AND PAYKEL 13" 1312 37" 15" 1912 35" 19" 22" 2512 447 8 19118 236" 2 8 1043 4 25 8 22" 2512 15" 1812 2018 63 8 236" 36" 1" 5" 96" 3012 4" 5414 13 4 1 4 2012 714 15 8 3" 212 5" 96" 1" 3512 112 18" CL 1812 CL 8 D KITCHEN- SOUTH WALL 1/2" = 1'-0" 4" 3012 11 18" 30" 1" 5" 96" 714 723 4 11" 5" 6" 96" 1" 233 4 16" 1412 1514 32" 2" 212 16" 714 24" 291 123 4 1703 4 18312" 9 E KITCHEN- WEST WALL 1/2" = 1'-0" 43" 9312 34" 11 3212 15 62 4 155 8 9312 43" 1412 1 2 4" 36" 112 2812 65" 12" 13" 3" 36" 1 36" 112 34 2 93 24" 4" 2512 312 112 4" 2" 212 1914 3" 191 2" 19 4 3" 193 8 21 1 15 8 CL 12 1 12 3 12 2 12 4 ISLAND TOP VIEW 1/2" = 1'-0" ISLAND FRONT VIEW 1/2" = 1'-0" ISLAND SIDE VIEW 1/2" = 1'-0" ISLAND BACK VIEW 1/2" = 1'-0" ISLAND ELEVATIONS SHEET: DATE: SCALE: REVISIONS: 1 2 3 12 1 2"=1'-0" 06-05-23 JOHNSON'S KITCHEN REMODEL 73 4 137 8 353 4 155 8 1312 395 8 47" 865 8 4" 30 1 112 18" 36" 1" 5" 96" 63 8 " 18" 1" 4314 112 123 4 35 8 865 8 " CL 7 C KITCHEN- ANGLED WALL 1/2" = 1'-0" 405 8 " 233 8 72" 193 4 5214 4" 3012 18" 36" 1" 5" 614" 18" 24" 233 4 72" 112 96" CL 8" 6 B KITCHEN- EAST WALL 1/2" = 1'-0" EAST WALL ELEVATION SHEET: DATE: SCALE: REVISIONS: 1 2 3 6 1 2"=1'-0" 06-05-23 JOHNSON'S KITCHEN REMODEL 4" 1" 5" 96" 2414 1" 3514 1" 303 4 2414 16" 3514 23 4 2841 787 8 7418 13112 CL CL 7514 714 812 5" 96" 54" 38" 303 4 3" 32" 5" 3514 2841 3012 112 18" 36" 36" 393 8 217 8 " 2414 38" 40" 5 A KITCHEN- NORTH WALL 1/2" = 1'-0" 43" 931 34" 1 2 32 155 8 621 15 931 43" 141 1 4" 36" 1 28 65" 12" 1 2 13" 3" 36" 112 36" 11 3412 9312 24" 4" 25 31 1 4" 2" 21 19 4 3" 19 4 2" 191 3" 193 8 2 2 15 8 1 8 CL 12 1 12 3 12 2 12 4 ISLAND TOP VIEW 1/2" = 1'-0" ISLAND FRONT VIEW 1/2" = 1'-0" ISLAND SIDE VIEW 1/2" = 1'-0" ISLAND BACK VIEW 1/2" = 1'-0" ISLAND ELEVATIONS SHEET: DATE: SCALE: REVISIONS: 1 2 3 12 1 2"=1'-0" 06-05-23 JOHNSON'S KITCHEN REMODEL 34" 112 32 2 155 8 621 15 93 43" 141 1 4" 36" 1 2 28 2 65" 12" 1 2 13" 3" 36" 112 24" 4" 25 2 3 1 2 4" 2" 212 CL 12 1 12 3 12 2 12 4 ISLAND TOP VIEW 1/2" = 1'-0" ISLAND FRONT VIEW 1/2" = 1'-0" ISLAND SIDE VIEW 1/2" = 1'-0" ISLAND BACK VIEW 1/2" = 1'-0" ISLAND ELEVATIONS DATE: SCALE: REVISIONS: 1 2 3 1 2"=1'-0" 06-05-23 JOHNSON'S KITCHEN REMODEL 34" 1 321 155 6214 155 8 9312 43" 1412 1 2 4" 36" 11 281 65" 12" 1 2 13" 3" 36" 1 2 24" 4" 251 31 11 4" 2" CL 12 1 12 3 12 2 12 4 ISLAND TOP VIEW 1/2" = 1'-0" ISLAND FRONT VIEW 1/2" = 1'-0" ISLAND SIDE VIEW 1/2" = 1'-0" ISLAND BACK VIEW 1/2" = 1'-0" ISLAND ELEVATIONS DATE: SCALE: REVISIONS: 1 2"=1'-0" 06-05-23 JOHNSON'S KITCHEN REMODEL ISLAND ORTHOGRAPHIC VIEW KITCHEN ELEVATIONS

JOHNSON’S BATHROOM REMODEL

CHIEF ARCHITECT COLLABORATIVE BATHROOM DESIGN

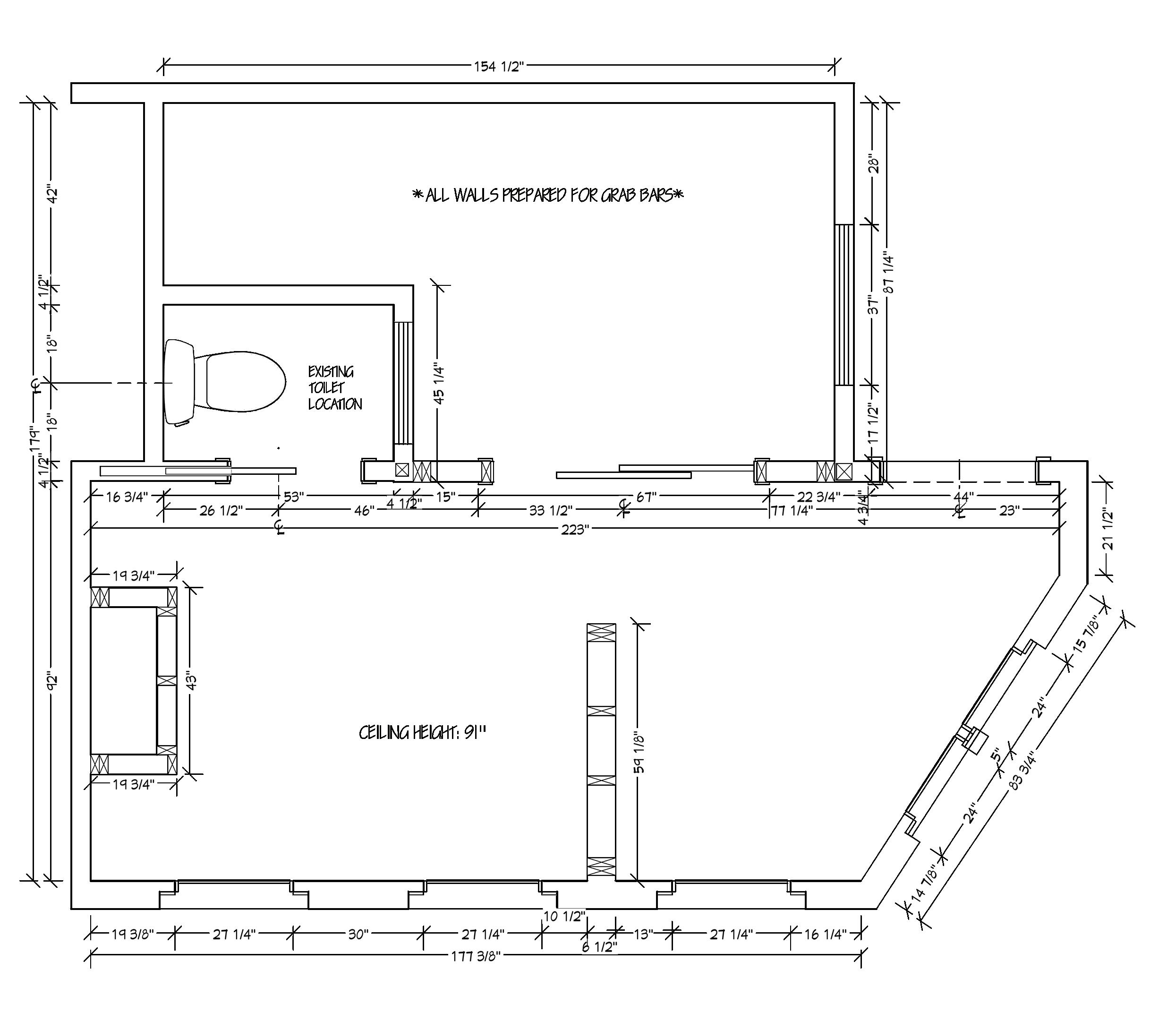
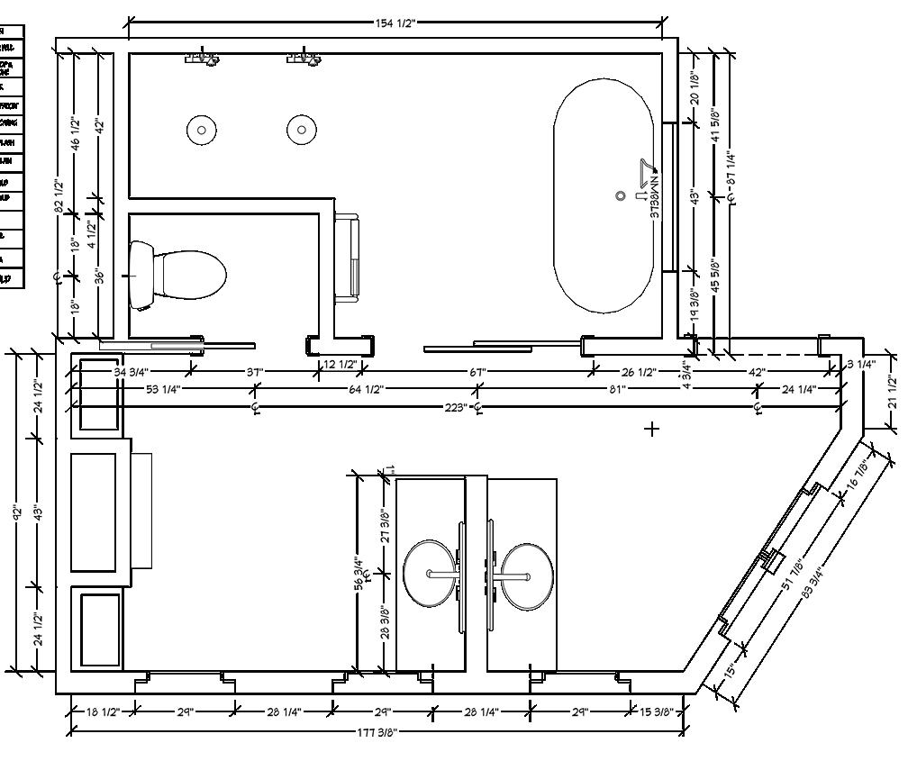
Lauren And Calvin Johnson Renovate Their Primary Bathroom to Fulfill Their Needs and Wants for This Space. The Design Needed to Be Efficient, Designed Around Their Aging Needs, Follow A Transitional Style While Still Having a Unique Charm. The Project Was Co-Designed with Fellow Student Peer Huda Irfan. The Floor Plan Was Provided by The NKBA Student Design Competition, And Restrictions Were Placed on Moving Walls and Windows.

Group Contributions

Abigail Pablo

-Contributed To Creating Floorplans, Elevations and Renderings -Contributed To Selecting Fixtures and Finishes

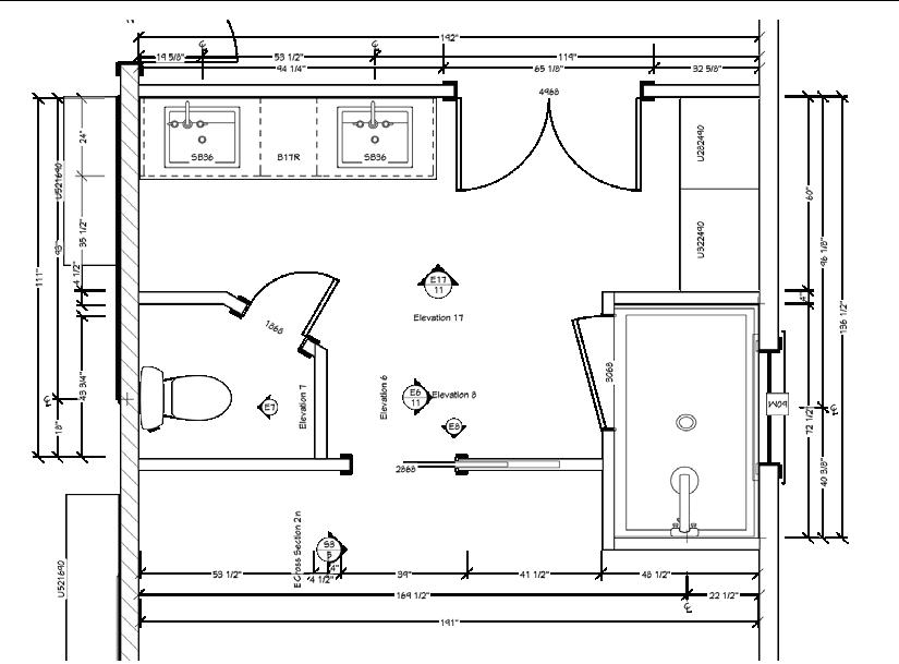
The Layout Follows NKBA Guidelines and Embraces

Universal Design Principles. A No-Threshold Shower Provides an Ease-Free Entrance to The Shower Room. Wide Pathways and Clearances for Easy Wheelchair Accessibility. Adjustable Water Fixtures That Provide Multiple Positions and Settings.

Huda Irfan

-Contributed To Space Planning & Design Aesthetics

-Contributed To Creating The Design Board

Lighting Selections Fulfill Three Types of Lighting:

Ambient Lighting, Task Lighting, and Accent Lighting. Efficient Details Like Dimmable Switches, Lighting Accent Pieces with Integrated Lights, And Decorative Lighting Add to The Style. This Brings Ease of Vision for Aging Eyes and Better Helps Groom Oneself in This Space.

Bathroom Material Budget

3 N
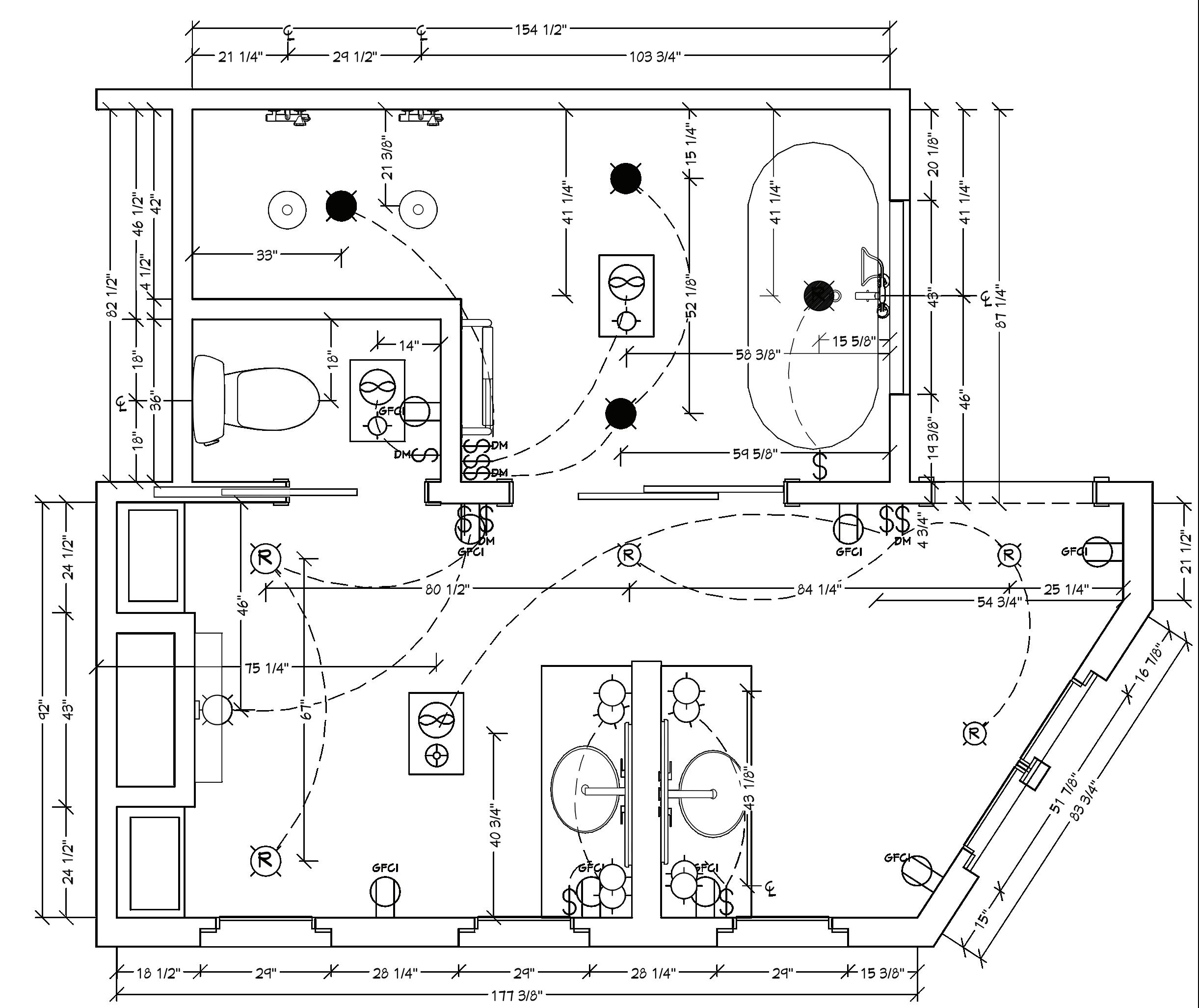
Demolition Plan Scale: 1/2”=1’-0” Mechanical Plan Scale: 1/2”=1’-0”
Partial Schedules, Elevations, And Budgets Are Shown. Full Drawing Set Available Upon Request. CONSTRUCTION DRAWINGS
Floor Plan
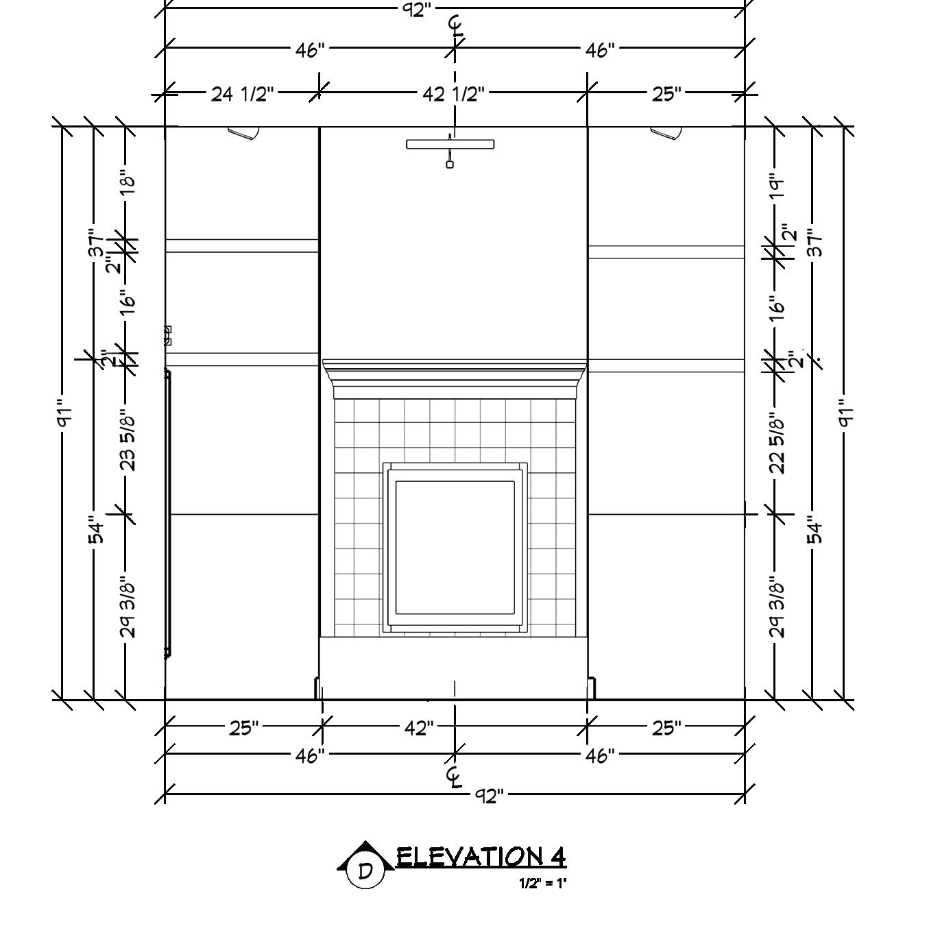
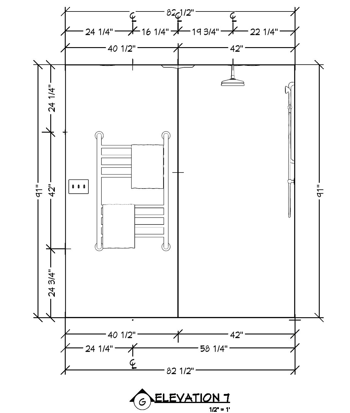
Scale: 1/2”=1’-0” South Wall Elevation Scale: 1/2”=1’-0” West Vanity Elevation Scale: 1/2”=1’-0” West Fireplace Wall Elevation Scale: 1/2”=1’-0” East Steam Room Wall Elevation Scale: 1/2”=1’-0”
Drawings Produced in Autodesk AutoCAD. NOT TO SCALE. Original Scale is Representative of Industry Standards
West Steam Room Wall Elevation Scale: 1/2”=1’-0”

WASHINGTON RETREAT

3D VISUALIZATION TECHNIQUE

HOSPITALITY

4 EXTERIOR 2-POINT PERSPECTIVE Produced in Sketchup and Rendered in Enscape. Enhanced in Adobe Photoshop.

Location Olympia, Washington

Client: Young Couple Turning Winter Home into AirBnB Summer Retreat

Design Considerations

Open Concept: Open Dining and Living Space Flow Together to Entertain Guests

Comfortable and Warm Interior Space by Using Soft Neutral Colors

Target Market: Millennials, Young Adults and Families

Step 1

Step 2

3

Software Used

Autodesk AutoCAD

Preparing Plan to be Imported into SketchUp by Purging It and Adding It to One Layer.

SketchUp

Building 3D Models by Tracing Walls, Building Roof and Opening Doors and Windows. Customizing Kitchen Island and Fireplace. Importing Furniture and Accessories from 3D Warehouse.

Enscape for SketchUp

Applying and Editing Materials, Adding Lighting, and Set Render Settings. Importing Furniture from Enscape Warehouse.

Adobe Photoshop Space Planning- Drafting Walls and Furniture to Scale.

Enhancing Renderings by Adding Dramatic Lighting Brushes. Adjusting Image Brightness and Exposure for Better Image Quality. Bringing In People Cutouts and Objects.

Day Time Render Night Time Render
Step
KITCHEN ISLAND STEP BY STEP
N
Drawings Produced in Autodesk AutoCAD. NOT TO SCALE. Original Scale is Representative of Industry Standards

CHIEF PLATEAU ESTATES

CHIEF ARCHITECT CONSTRUCTION DOCUMENTS

Chief Plateau Estates Was Designed Entirely in Chief Architect. The Floor Plan Was Provided and the Drawing Process Started from Scratch to Learn This BIM Tool Of Chief Architect. The Drawing Started with Drawing the Walls Except For Moving Load-Bearing Walls. The Program Divides the Process into Two, A 2D Model and A 3D Model Where Both Screens Can Be Seen Simultaneously Working With The Scalable Items On One Side While Being Able To See The Space In 3D To Make Visible Changes To The Space. Furniture, Lighting, Fixtures, And Accessories Were Also Added to Enhance the Look. The Project Included A 2D Site Plan and Landscape, A Floor Plan, A Furniture Plan, A Mechanical Plan, And A Kitchen and Bath Plan. The 3D Model Helped Create the Elevations, Cross Sections, And 3D Renderings.

Chief Architect Allows for A Seamless Transition Between 2D And 3D Models. When Working in Either 2D Or 3D Models, The Program Makes It Easy to Make Automatic Alterations to The Floor Plan, Walls, Cabinets, Light Fixtures, Etc. This In Turn Allows the Design to Be Updated Immediately in The Floor Plan as Well as In the Elevation. BIM Tools Like Chief Architect Make Detailed Drawings Easier and More Efficient Which in Turn Saves the Designer Time and The Client More Expenses.

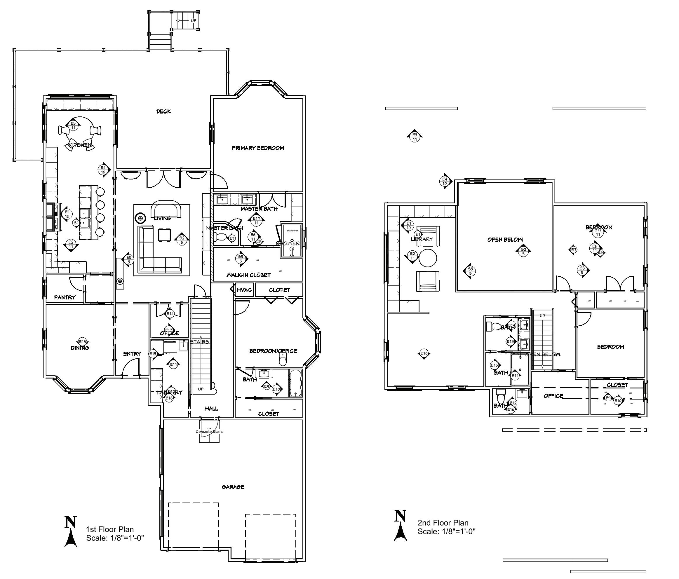
5 N N Drawings Produced in Autodesk AutoCAD. NOT TO SCALE. Original Scale is Representative of Industry Standards
Floor Plan Scale: 1/8”=1’-0” 1st Floor Plan Scale: 1/8”=1’-0”
2nd
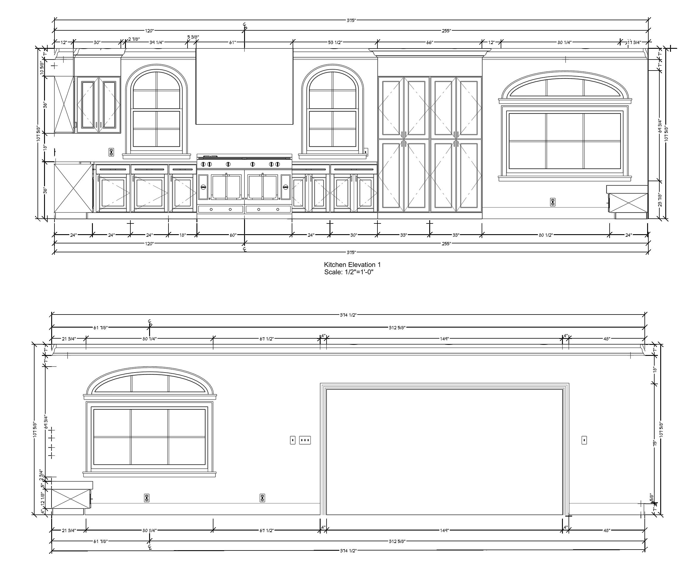
Exterior Elevation: West Scale: 1/8”=1’-0” Exterior Elevation: East Scale: 1/8”=1’-0” Exterior Elevation: South Scale: 1/8”=1’-0” Exterior Elevation: North Scale: 1/8”=1’-0”
CONSTRUCTION DRAWINGS
Kitchen Elevation: East Wall Scale: 1/2”=1’-0” Kitchen Elevation: West Wall Scale: 1/2”=1’-0” Kitchen Elevation: South Wall Scale: 1/2”=1’-0”
N N
Kitchen Elevation: North Wall Scale: 1/2”=1’-0” Primary Bathroom Cabinet Plan Scale: 1/2”=1’-0” Kitchen Cabinet Plan Scale: 1/2”=1’-0”

CURIOSITEA TEA STORE

RETAIL DESIGN DESIGN DEVELOPMENT

Curiositea Is Focused on Creating A Space That Showcases The Wellness And Holistic Benefits Of Tea, Providing Knowledge And Information About The Product And Curating A Memorable Shopping Experience. Location and Demographics

West Loop. Chicago, IL

• Serving the Chicago Public in the Center of a Dining and Drink Hotspot

• 73% of West Loop’s population are Millennials

• High Affluence Area of $154K Annual Income

Why Curiositea?

• Wide Range of Tea Selections

• Quality Handcrafted Products

• Reliable Tea Sourcing

• Informative and Educational Guidance Towards Tea Benefits

Specialty Service

• Tea Tasting Bar

• Informative Events and Seminars

Target Market

• Health-Conscious Individuals

• Tea Enthusiasts

Mission

• Provide The General Public Sustainably Sourced Tea Leaves and Handcrafted Products

• Promote An Inclusive Shopping Experience for All Shoppers

• Guide Customers to A Holistic Understanding of Tea Benefits

• Create Memorable Shopping Experiences Through Informational and Tasting Events

Packaging

Design Considerations

6 21'-6" 86'-11" 1'-6" 10'-4" 7'-0" 5'-11" 7'-0" 7'-0" 4'-11" 6'-0" 4'-1" 7'-0" 5'-11" 7'-0" 2'-1" 2'-1" 7'-0" 3'-7" STEEL METAL AWNING AGED RED BRICK CONCRETE BASE FOOTING-PAINTED BLACK 10'-0" 2'-4" 4'-8" 1'-6" 1'-6" GRAPHIC GRAPHIC GRAPHIC GRAPHIC GRAPHIC GRAPHIC CURIOSITEA RETAIL STORE URBAN WAREHOUSE ABIGAIL PABLO INTERIORS 2430 REVISIONS: DATE: SCALE: TITLE: MAIN ENTRANCE- EXTERIOR ELEVATION 2 3 1 SHEET: 05/18/23 8" = 1'-0" Scale: 1/8"=1'-0" MAIN ENTRANCE- EXTERIOR ELEVATION A A-7
ADA 44” Wide Main Access Aisle- 36” min. Pathways. - 5’ Turning Radius in Bathroom and Cashwrap Functionality in Identifying Merchandise Zones for Ease of Browsing Ceiling and Flooring Design to Ensure Wayfinding Flexibility in Rea-arranging Product and Space Plan Durability with Easy Maintenance and Commercial Grade Finishes
EAST WALL 2-POINT PERSPECTIVE
Produced in Sketchup and Rendered in Enscape. Enhanced in Adobe Photoshop.
3'-8" 3'-8" 3'-8" 3'-0" 3'-0" MAIN ENTRANCE STORAGE A A-5 B A-6 CASHWRAP 5'-9" 8'-0" 5'-9" OFFICE ADA W.R. 3'-8" 3'-10" D A-8 C A-7 468 sq. ft. SECOND ENTRANCE ALIGN A-1 SHEET: CURIOSITEA RETAIL STORE WEST LOOP, CHICAGO, IL INTERIORS 2430 Scale: 1/8"=1'-0" FLOOR PLAN 1 N A B C D E Fixture Legend A- ALU-Autopole-KIT 4 B-OPTO-Classic Collection Round tables and Display cubes C-OPTO-Edge Collection Rectangle Laminated Nesting Tables D- OPTO-Evolve Collection Double Drawer Locking Glass Showcase E-OPTO-Reveal Collection Cube Tables Rendered Floorplan Produced and Enhanced in Adobe Photoshop. NORTH WALL 2-POINT PERSPECTIVE Produced in Sketchup and Rendered in Enscape. Enhanced in Adobe Photoshop. Drawings Produced in Autodesk AutoCAD. NOT TO SCALE. Original Scale is Representative of Industry Standards
GRAPHIC GRAPHIC TURF- "BEAM" IN THE "PLANKED OAK" FELT FINISH WOLF GORDON- ZURA-"BARLEY" OPTO- REVEAL COLLECTION WALL MOUNTED SHADOW BOX IN THE "KARISMA-FASHIONISTA" LAMINATE FINISH BY TAFISA FAUX COLUMNS WITH WEATHERED BRICK CLADDING DROPPED CEILING AT 12'-6" A.F.F. 12'-4" 9'-0" 3'-4" CURIOSITEA RETAIL STORE URBAN WAREHOUSE ABIGAIL PABLO INTERIORS 2430 REVISIONS: DATE: SCALE: NORTH WALL- SHADOW BOX WALL ELEVATION 2 3 1 05/18/23 4 " = 1'-0" Scale: 1/4"=1'-0" NORTH WALL-SHADOW BOX WALL ELEVATION D 12'-0" GRAPHIC GRAPHIC GRAPHIC GRAPHIC GRAPHIC ALU- "ALU AUTOPOLE KIT 4" STYLENATIONS- "ZAVIER BAR STOOL" GLOBAL LIGHTING- "ARIGATO PENDANT" 3'-0" 6" 8'-6" Scale: 1/4"=1'-0" SOUTH WALL-TASTING BAR ELEVATION D 12'-0" GRAPHIC GRAPHIC GRAPHIC GRAPHIC GRAPHIC ALU- "ALU - AUTOPOLE KIT 4" STYLENATIONS- "ZAVIER BAR STOOL" GLOBAL LIGHTING- "ARIGATO PENDANT" 3'-0" 6" 8'-6" Scale: 1/4"=1'-0" SOUTH WALL-TASTING BAR ELEVATION D 9'-10" 10'-8" 8'-11" 9" 9" 3" PORCELANOSA- "RODANO LINEAL ACERO" TILE CLADDING B&N INDUSTRIES- FORTINA STEEL FAUX WOOD SLATS DEKTON- "Tk05 SABBIA" 2'-2" 12'-0" CURIOSITEA RETAIL STORE URBAN WAREHOUSE ABIGAIL PABLO INTERIORS 2430 REVISIONS: DATE: SCALE: NORTH WALL- CASH WRAP ELEVATION 2 3 1 SHEET: 05/18/23 4 " = 1'-0" Scale: 1/4"=1'-0" NORTH WALL-CASHWRAP ELEVATION B A-8 9'-10" 10'-8" 8'-11" 9" 9" 3" PORCELANOSA- "RODANO LINEAL ACERO" TILE CLADDING B&N INDUSTRIES- FORTINA STEEL FAUX WOOD SLATS DEKTON- "Tk05 SABBIA" 2'-2" 12'-0" CURIOSITEA RETAIL STORE URBAN WAREHOUSE ABIGAIL PABLO INTERIORS 2430 REVISIONS: DATE: SCALE: NORTH WALL- CASH WRAP ELEVATION 2 3 1 SHEET: 05/18/23 4 " = 1'-0" Scale: 1/4"=1'-0" NORTH WALL-CASHWRAP ELEVATION B A-8 GRAPHIC GRAPHIC TURF- "BEAM" IN THE "PLANKED OAK" FELT FINISH WOLF GORDON- ZURA-"BARLEY" OPTO- REVEAL COLLECTION WALL MOUNTED SHADOW BOX IN THE "KARISMA-FASHIONISTA" LAMINATE FINISH BY TAFISA FAUX COLUMNS WITH WEATHERED BRICK CLADDING DROPPED CEILING AT 12'-6" A.F.F. 12'-4" 9'-0" 3'-4" CURIOSITEA RETAIL STORE URBAN WAREHOUSE ABIGAIL PABLO INTERIORS 2430 REVISIONS: DATE: SCALE: NORTH WALL- SHADOW BOX WALL ELEVATION 2 3 1 05/18/23 1 4 " = 1'-0" Scale: 1/4"=1'-0" NORTH WALL-SHADOW BOX WALL ELEVATION D Finish Selections
- Formica- English Wood 1 4 5 6 2 3 2- Greenlam Laminate- Dark Grey
- Tafsia Laminate- Karisma
- Armstrong- Concrete Finish 5- Formica- Woodland Marble 6- Armstrong- Classic Black Lighting Selections 1- Designhuere- “Pendant Light Grand Paris — HANOÏ” 2- Global Lighting- “Arigato Pendant” 3- Bruck Lighting- “GX15 Pendant” 4- XAL Lighting- “BO 70” 1 2 3 4 7 8 9
- Formica- Woodland Marble
- Porcelanosa- Rodano Linear Tile
- Armstrong- Geome Obsidian
1
3
4
7
8
9

SOLSTICE RESTAURANT

RESTAURANT

DESIGN DESIGN DEVELOPMENT

Location West Loop. Chicago, IL

Target Market Millennials/Generation Z

The interior Design is Centered Around Displaying Live Biophilia as a Focal Point, Incorporating Organic Motifs, and a Warm Color Scheme.

The Interior Experience is Enhanced by Maximizing Daylighting, Incoportaing Rustic and Organic Materials and Having Variety of Textures.

Total Square Footage 4500 sq. ft.

Solstice Restaurant is Inspired by the Growing and Flourishing World Around Us that is Changing Every Second of the Day. Emulating Our Changing Llives Every Day. Seating Capacity

Waiting Area Seats 10 People

Bar/Open Seating Seats 27 People

Booth Seating Seats 24 People

Banquette Seating Seats 32 People

2 Top Seating Seats 12 People

4 Top Seating Seats 14 People

Private Dining Party Seats 8 People

TOTAL= Seat 119 Dining Seats

(Does Not Include Wait Seating)

Design Considerations

44” Wide Main Access Aisle

min. Pathways 5’ Turning Radius 5% of Dining Tables are Accessible

Functionality is Achieved By Having Variety of Seating with Multiple Seating Arrangments to Accomidate Large Seating Groups

Sustainability Using Low VOC

Materials, Maximize Daylighting, Acoustic Mateials and Efficient Lighting

Brand Identity Clear Display of Restaurant Logo and Constant Use of Brand Colors Through Materials and Organic Shapes

7 N Drawings Produced in Autodesk AutoCAD. NOT TO SCALE. Original Scale is Representative of Industry Standards
Bubble Diagram Block Plan
N DESIGN DEVELOPMENT
ADA
36”

1.

2.

3.

4.

5.

6.

7.

8.

Arteriors- Tapio Large Pendant
Muuto- “Under the Bell” Pendant
Et2- Revolver Wall light
BFM Seating- Emma Chair
Beaufurn- Lotus Bar Seat
Arktura- “Bloom” Wall Panel
Tilebar- “Nature Loving” Flat Oval Stone
Anzia- “Watercress” Upholstery FURNITURE AND FIXTURE SELECTIONS 1 2 3 4 5 6 7 10 8 9 11 12 13 14 15 16 9. Anzia- “Island” Upholstery
Nemo Tile- Black & White Stone Mosaics
MDC Interior Solutions- “Amadia”
MDC Interior Solutions- “Concrete”
Virginia Tile- “Stripes” Wall Tile
Artistic Tile- “Corda Serpentine”
Armstrong Flooring- “Montane Uluru”
Phoenix Marble Company- Tumbled Natural stone Veneer Produced in Sketchup and Rendered in Enscape. Enhanced in Adobe Photoshop. WAITING AREA 2-POINT PERSPECTIVE DINING AREA 2-POINT PERSPECTIVE BAR AREA 2-POINT PERSPECTIVE
10.
11.
12.
13.
14.
15.
16.

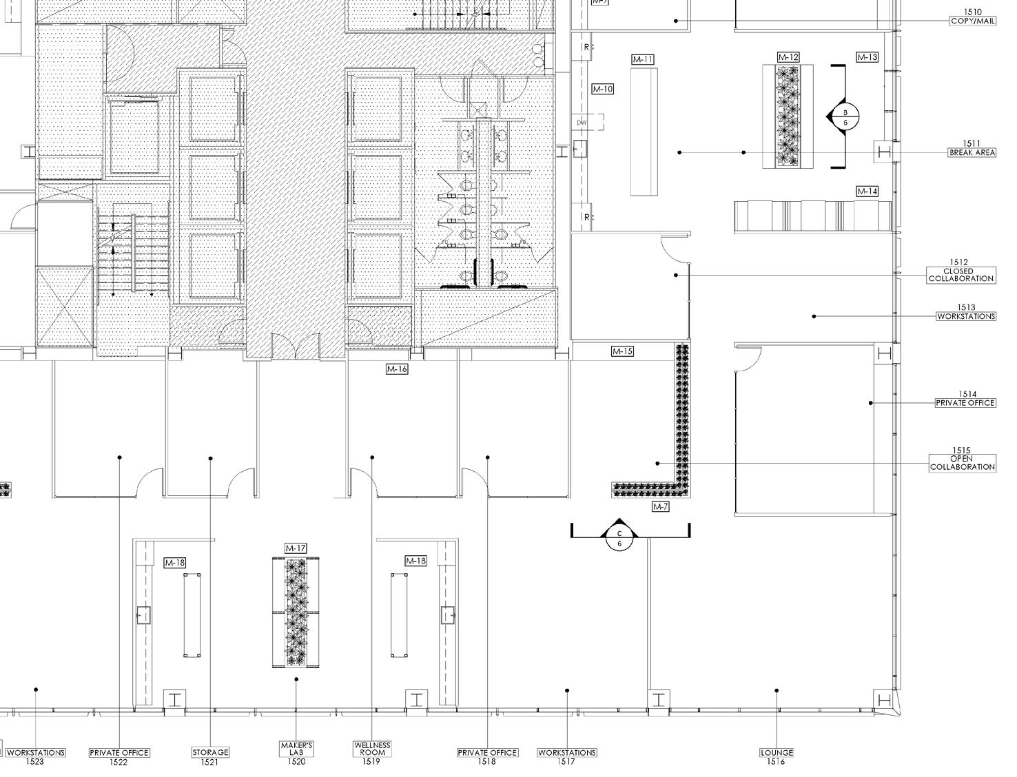
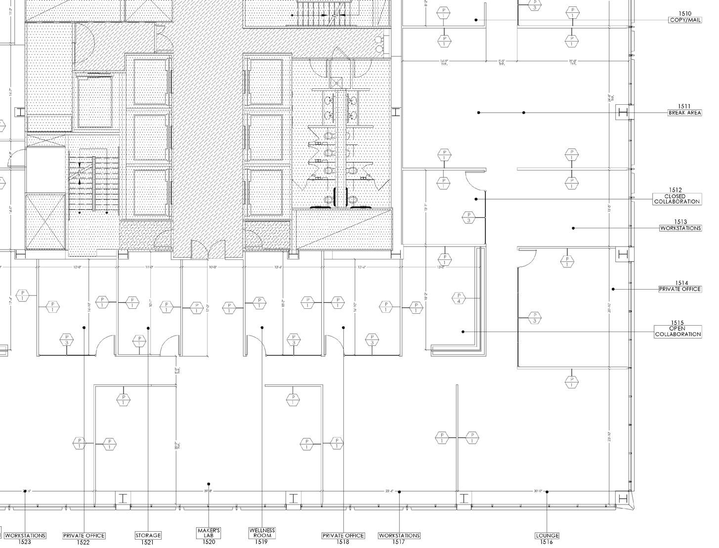
COLLECTIVE CUBE CO-WORKING OFFICE SPACE

OFFICE DESIGN DESIGN DEVELOPMENT

Location Union Tower - Chicago, IL

Target Market Entrepreneurs & Small Businesses

Collective Cube Is a Large Scale Co-Working Office Space Where Small Businesses and Entrepreneurs Can Have the Office Space to Work Together and Collaborate in A Lively and Ease Free Environment.

Members Can Use the Facilities Private Offices, Open Meeting Spaces and Enjoy Of The Many Benefits Of Working Here All While Collectively Working To Achieve Their Goals.

Adjacency Matrix

8 ENTRY LOUNGE 2-POINT PERSPECTIVE Produced in Sketchup and Rendered in Enscape. Enhanced in Adobe Photoshop.
LUMENWERX Audia- Echocore Pendant Knoll Regeneration- Ergonomic Chair Herman Miller OE-Rectangular Table
USG Barz
Produced in
and
in Enscape. Enhanced
BENCHING DESK AREA 2-POINT PERSPECTIVE
Sketchup
Rendered
in Adobe Photoshop.
CORNER COLLAB ROOM 2-POINT PERSPECTIVE Produced in Sketchup and Rendered in Enscape. Enhanced in Adobe Photoshop. N Herman Miller Canvas Vista Partition Plan Furniture Plan Millwork Plan Reflected Ceiling Plan Mohawk Group Threaded Craft USG Wood Grilles MDC Interior Solutions “Spero” KB Contract Textiles “Seduction” Laminart “American Elm” Wilsonart “Sea Wall” MDC Interior Solutions “Turn to Stone”
Drawings Produced in Autodesk AutoCAD. NOT TO SCALE. Original Scale is Representative of Industry Standards

Abigail Pablo graduated from the College of DuPage, with an Associate of Applied Science in Interior Design, a Kitchen & Bath Certificate, and a Computer Applications Certificate. She is a diligent and detail-oriented individual who prides herself on working collectively with others and continuously learning. Designing spaces and working alongside others ignites her passion for creating beautiful and functional spaces with originality. During her time at the College of DuPage, she actively pursued perfecting her craft, her active involvement in professional organizations like the American Society of Interior Designers (ASID), and the International Interior Design Association (IIDA) and a student member of the College of DuPage Interior Design Student Society. In her time as a student, she took any chance to give back, tutoring classmates in several rendering and drafting software and participating as a student judge for the FCCLA (Family, Career, Community Leaders of America) Interior Design Competition for high schoolers. She is well-versed in various drafting and rendering software such as Autodesk AutoCAD & Revit, Sketchup with Enscape & V-Ray, Adobe Photoshop, Adobe InDesign, & Chief Architect. As she worked on her design projects, she gained an ample understanding of space planning, codes and standards, material selections, and specifications. So much so, that Abigail was awarded the Kravet Design of Distinction Award for her Adkin’s Residence Design Solution in May of 2022.

+ (630)-550-3426 abbypab123@gmail.com linkedin.com/in/abigailpablo

Turn static files into dynamic content formats.

Create a flipbook
Issuu converts static files into: digital portfolios, online yearbooks, online catalogs, digital photo albums and more. Sign up and create your flipbook.