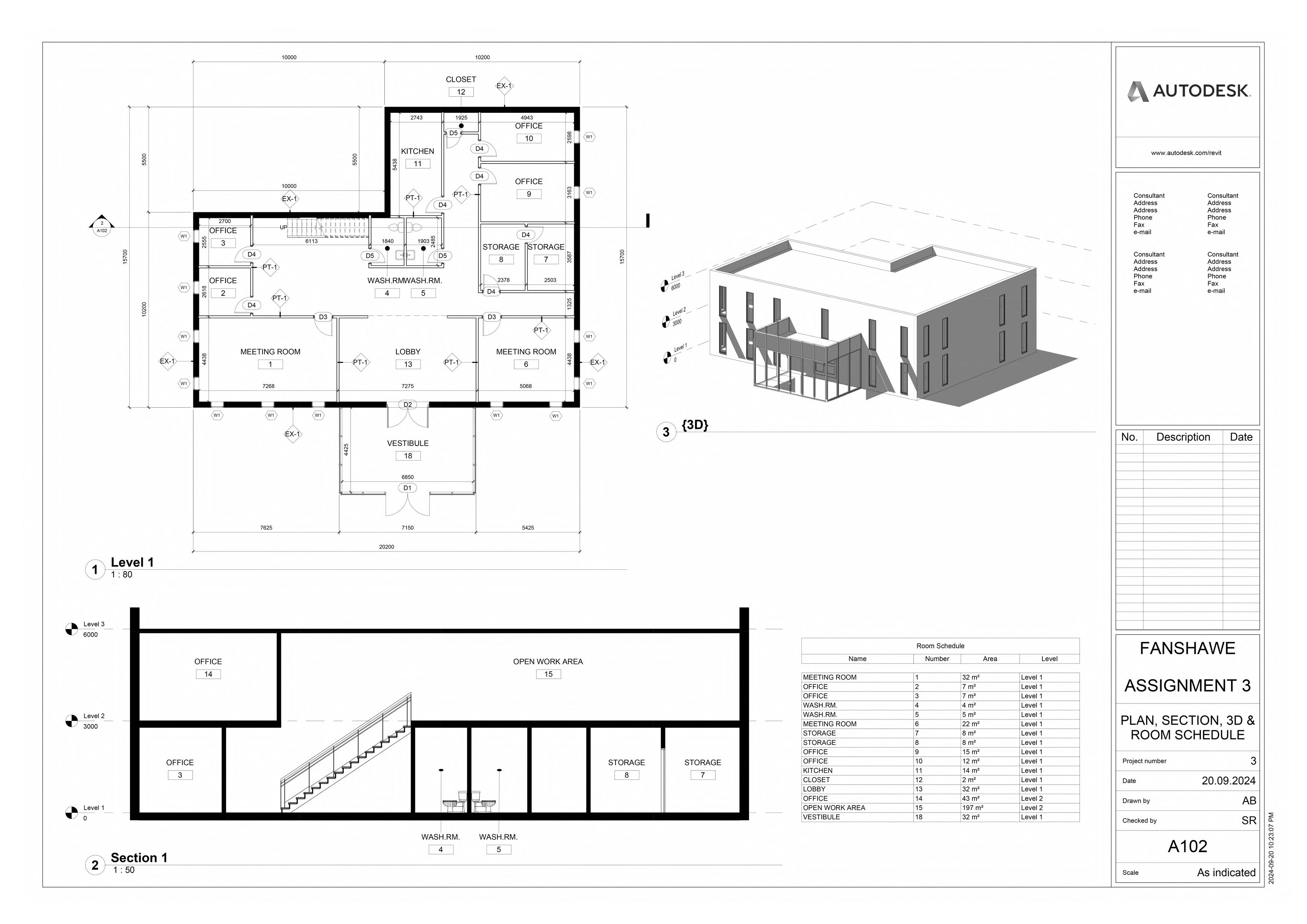
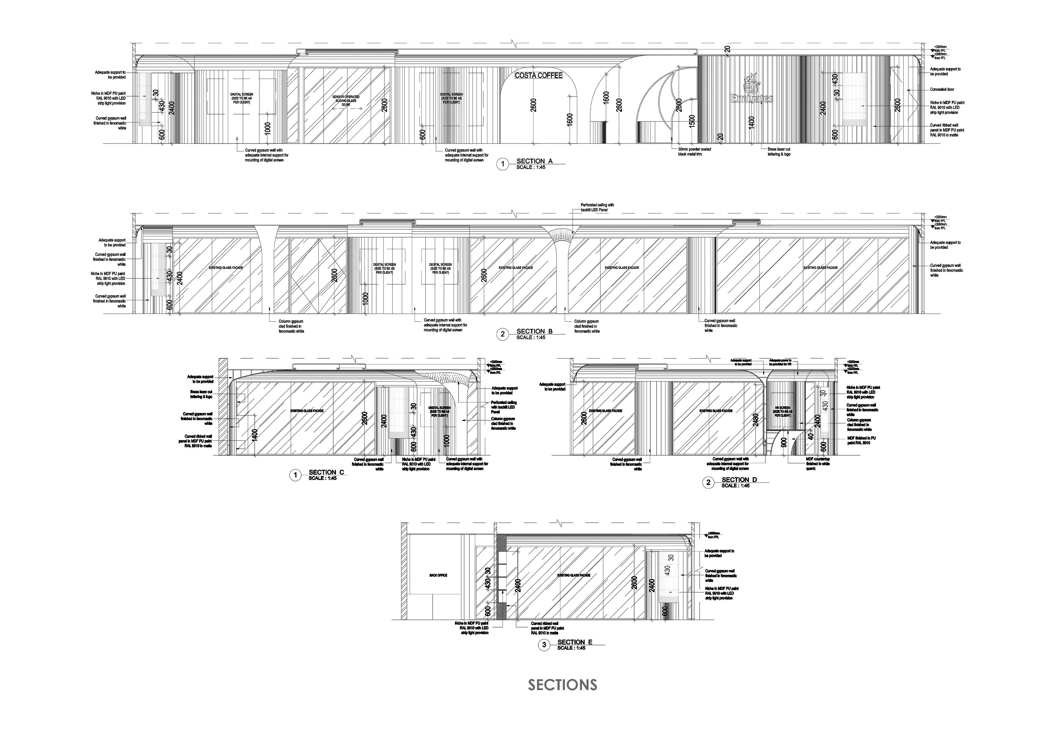
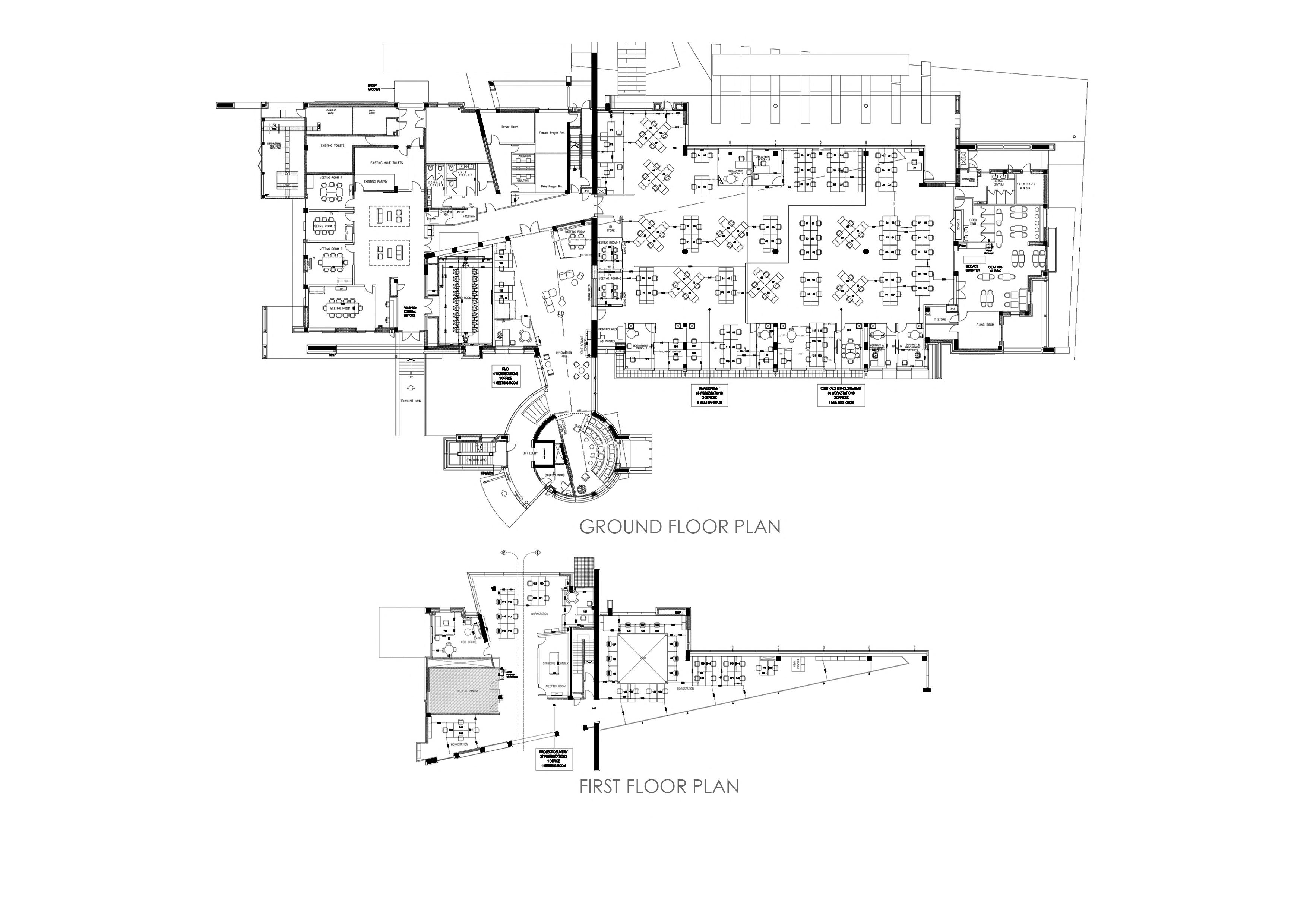
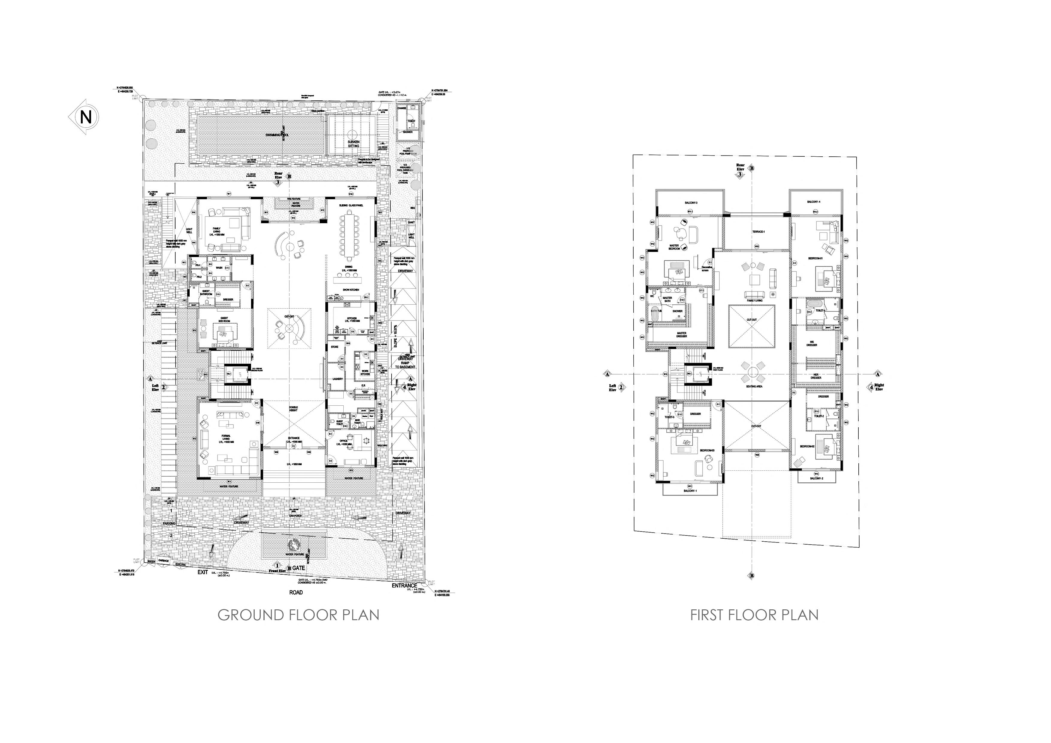
This portfolio showcases a curated selection of architectural and interior design works developed across diverse project typologies in Dubai, UAE, and the USA. It includes residential, commercial, hospitality, and luxury villa designs, reflecting a strong focus on detail, functionality, and aesthetics. Additionally, it features academic BIM projects that demonstrate technical proficiency in Building Information Modelling, model coordination, and digital workflows.