ABHIJAY JAIN PORTFOLIO

Page 1

ARCHITECTURE

P RTF LIO

ABHIJAY JAIN
PORTFOLIO CONTENTS 2. MIXED USED PROJECT SEMESTER 5 1.EXHIBITION CENTER SEMESTER 4 3. HOSPITAL DESIGN SEMESTER 6 4. VILLA, DEHRADUN FREELANCE 5.PRIMARY SCHOOL FREELANCE 6.INTERIOR DESIGN 7.NET ZERO ENERGY , TU DELFT, NETHERLANDS 8.MISCELLANOUS

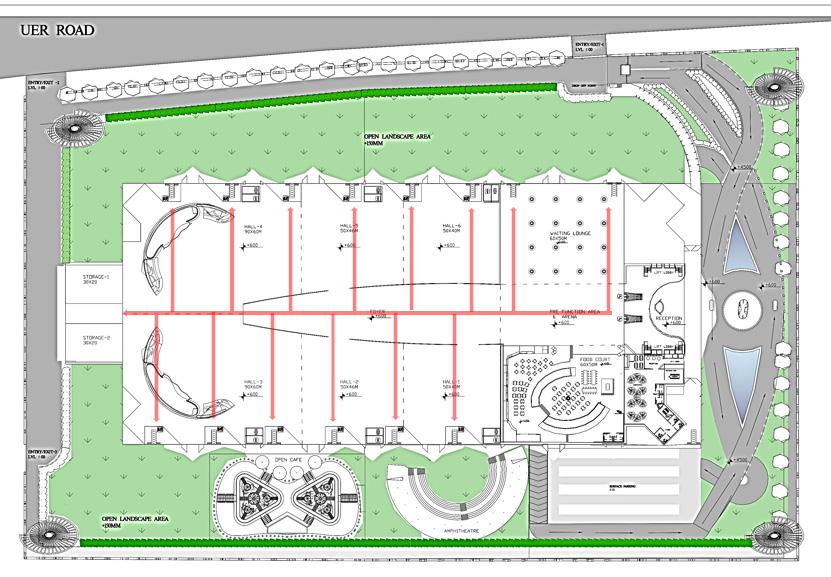
EXHIBITION CENTER

SEMESTER 4

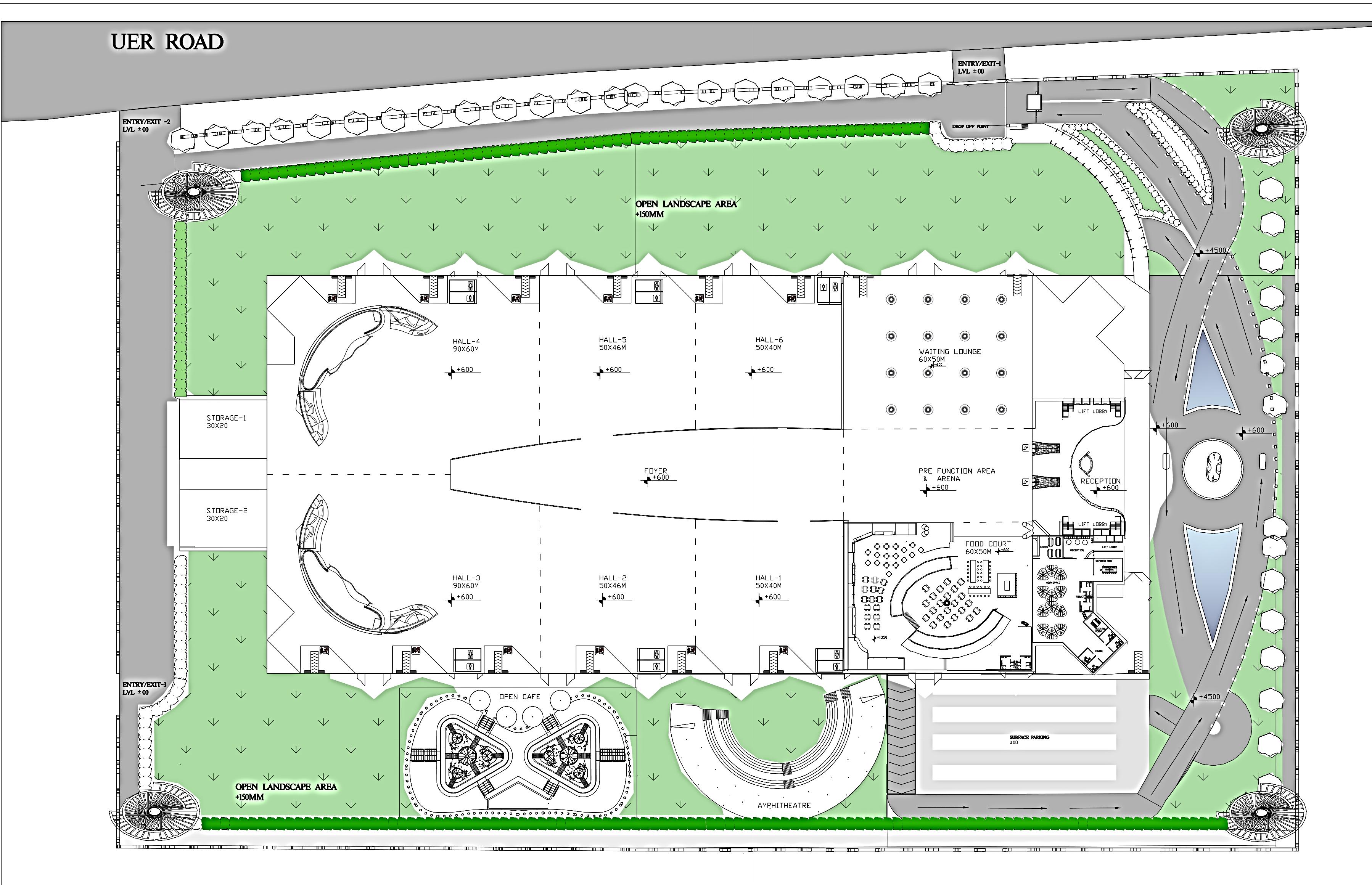
SITE LOCATION - DWARKA,DELHI SITE AREA - 23.17 ACRE

ABOUT - EXHIBITION CENTER WAS CREATED TAKING INSPIRATION FROM FOLDED PLATE STRUCTURE AND QUASI BRICK

THIS CENTER HAS FLEXIBLE HALLS THAT CAN BE USED AS PER EVENT ALONG WITH THAT ENTERTAINMENT ZONE FOR PUBLIC TO ENJOY THE AMBIENCE AND STRUCTURE

ZONING
FIRE EXIT LAYOUT
FIRE EXIT LAYOUT
ADMIN BLOCK OFFICE INTERIOR
CAFE VIEW AMPHITHEATRE VIEW

MIXED

USED PROJECT
5 SITE LOCATION - MAYUR
PHASE 1,DELHI SITE AREA - 10.5 ACRE ABOUT - MIXED USED PROJECT WITH OFFICE , RETAIL AND ENTERTAINMENT ZONE. 70% OF PERMISSIBLE FAR IS BEEN USED FOR OFFICE AND 30% FOR RETAIL AND ENTERTAINMENT. CENTRAL SPACE IS BEEN CREATED FOR CUTURAL ACTIVITY AND EVENTS TO INCREASE SOCIAL INCLUSIVENESS WHICH MADE THIS BUILDING “HOBNOB”
SEMESTER
VIHAR
OFFICE BLOCK FLOOR PLANS

HOSPITAL DESIGN

SEMESTER 6

SITE LOCATION - OMICRON , GREATER NOIDA SITE AREA - 3.6 ACRE

ABOUT - 100 BED MULTI SPECIALITY HOSPITAL WAS CREATED KEEPING NATURE AND HUMAN IN MIND.NATURE HAS ALWAYS BEEN THE BEST MEDICENE FOR HUMAN.HOSPITAL IS BEEN DESIGNED IN A WAY THAT PEOPLE INSIDE IT FEEL MORE LIVELY INSTEAD OF BEING TENSED AND WORRIED CENTRAL HEALING GARDEN AND THERAPEUTIC GARDEN AT EACH FLOOR IS BEEN CREATED USING ELEMENT WATER,PLANTS AND OTHER NATURAL ELEMENTS

SITE
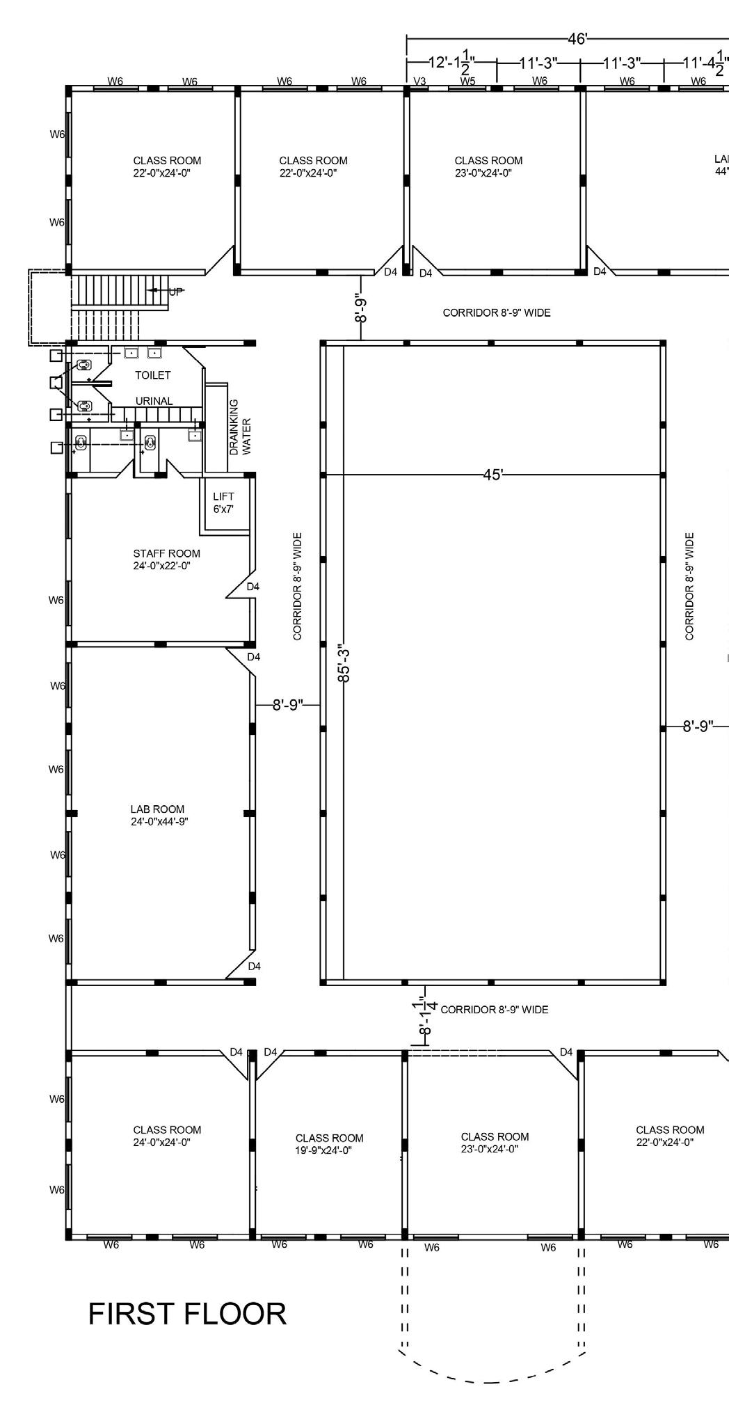
FIRST FLOOR
PLAN
SECOND FLOOR
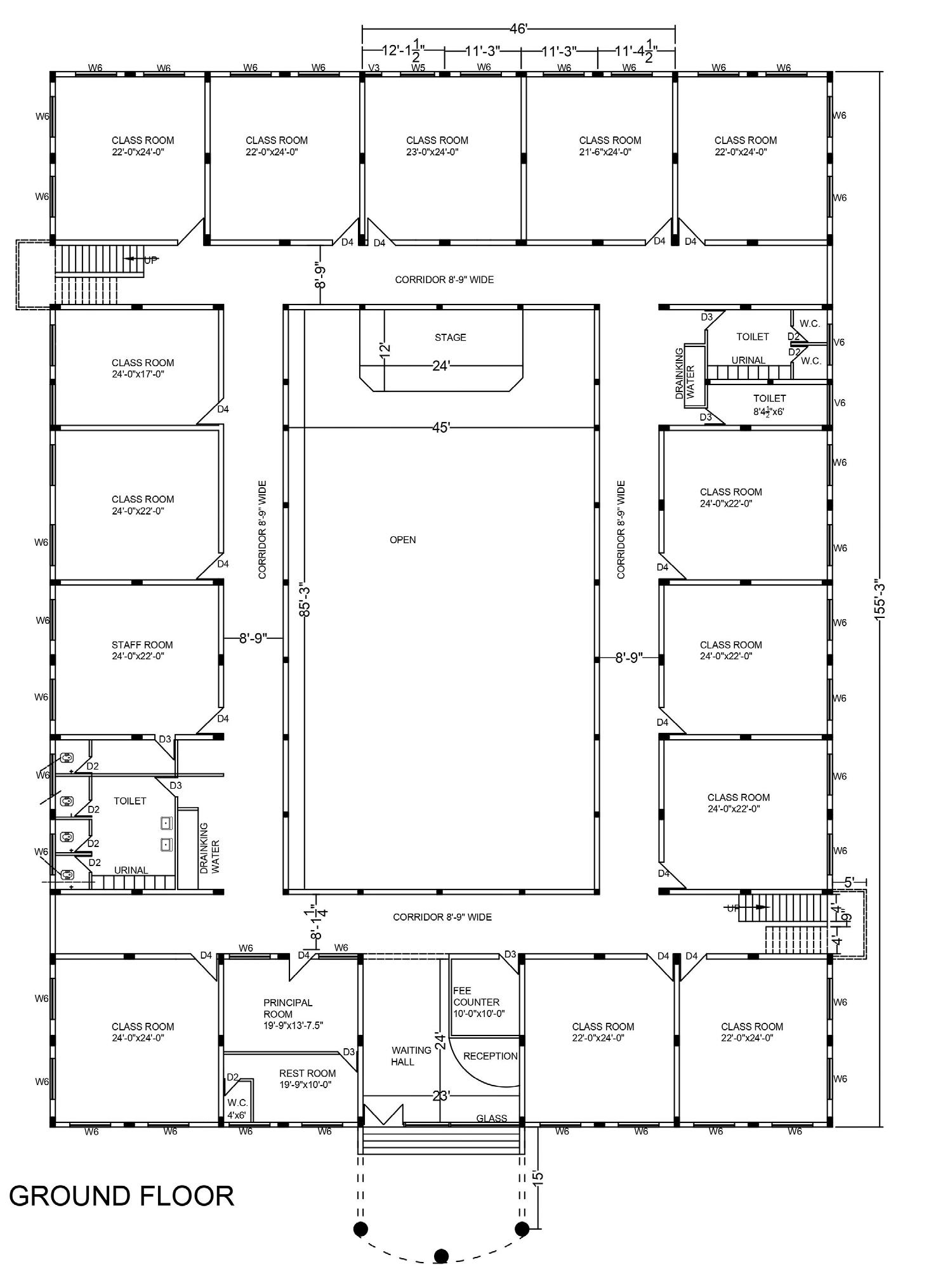
GROUND FLOOR

VILLA DEHRADUN

FREELANCE

, 2022

ABOUT - RESIDENCE CONSTRUCTED IN DEHRADUN UTTRAKHAND, THIS VILLA WAS CRAFTED OUT KEEPING BRUTAL ARCHITECTURE KEEPING IT SIMPLE AND STURDY. AS PER CLIENT WISH THERE IS USE OF ANTIQUE , RUSTIC AND NATURAL ELEMENTS WITH HINT OF MORDERN ARCHITECTURE IN THE INTERIOR AND EXTERIOR OF THE PROJECT.

TAILS,PLANS,SECTION AND OTHER DETAILED DRAWING

GFC DRAWINGS - WORKING
OF THE
FOUNDATION DE -
DRAWINGS
PROJECT SHOWING

SECOND FLOOR PLAN

GROUND FLOOR PLAN

TERRACE FLOOR PLAN

FIRST FLOOR PLAN
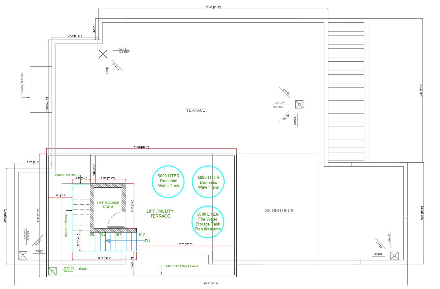
MUMTY AND LIFT ROOM FLOOR PLAN
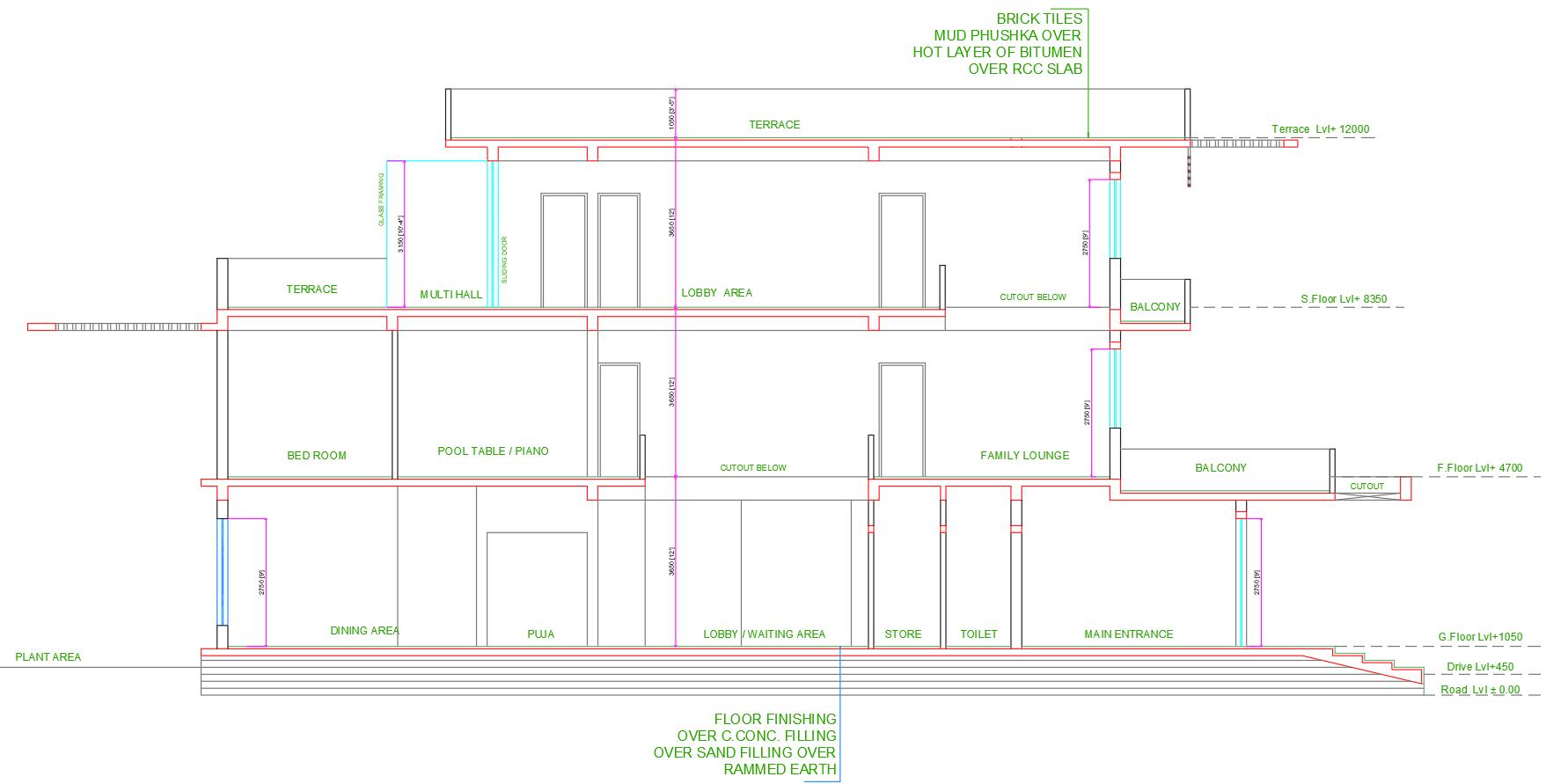
SECTION C-C
SECTION A-A
SECTION B-B

PRIMARY SCHOOL

FREELANCE , 2019

ABOUT - THIS PROJECT IS LOCATED IN LAKHNADON, MADHYA PRADESH , THIS PROJECT WAS EXECUTED BY SUNNY AND ASSOCIATES. MY CONTRIBUTION IN THIS PROJECT WAS PRIMARILY IN PLANNING AND 3D MODELING.

SUNNY BUILDERS

NET ZERO ENERGY ( TU DELFT UNIVERSITY , NETHERLANDS) MICELLANEOUS

INTERIOR DESIGNING
ILLUSTRATOR

MICELLANEOUS

PHYSICAL MODEL MAKING

PH - 8076885599 EMAIL - abhijay.jain14@gmail.com AJ ABHIJAY JAIN

Turn static files into dynamic content formats.

Create a flipbook
Issuu converts static files into: digital portfolios, online yearbooks, online catalogs, digital photo albums and more. Sign up and create your flipbook.