Abeer M.D. Portfolio 2025

Page 1


As an architect enthusiast, I have led and completed 5+ projects in diverse locations, including Delhi, Kashmir, Nepal, Dehradun, and Noida.

With an accumulated 16+ months of work experience, I have learned to work effectively as part of a team and tackle individually assigned tasks.

Architecture and interior spaces, as well as their impact on users, have long piqued my curiosity, and finding innovative ideas to save space while ensuring comfort for users is something I strive to learn. I enjoy being creative, reading, and learning in my free time.

056111217636

abeerdedmari1@gmail.com

linkedin.com/in/abeer

Jumeirah1Village1Circle,1Dubai

ABEER MUKHTAR DEDMARI

2019-2024

New Delhi, India

2017-2019

Aligarh, India

2015-2017 Riyadh, KSA

PROFESSIONAL EXPERIENCE

Design Workshop

Kalkaji, New Delhi

Architect

06/2024 - 03/2025

Bachelor of Architecture (B. Arch.), Jamia Millia Islamia

Upper Secondary Grade, Aligarh Muslim University

Lower Secondary Grade, New Middle East International School

• Led the designing and sanctioning of a dormitory and school project in Bodhgaya, Bihar, a house cum hall in Greater Noida, and a residence in Dehradun.

• Responsible for the designing and planning of 5+ projects in the company.

• Led the development of design narratives and project documentation for client review and approval.

• Supported the preparation of client presentations and design proposals by generating visual aids, renderings, and drawings.

INTERNSHIP EXPERIENCE

Design Workshop

Kalkaji, New Delhi

Architectural Intern

01/2024 - 05/2024

• Actively participated in internal design reviews and critiques, seeking feedback and guidance from senior team members to enhance design quality and clarity.

• Worked closely with the principal architect to facilitate and design during the project development.

Threads & Needles

Srinagar, Kashmir

Interior and Graphic Designer

04/2022 - 07/2022

• Designed a boutique and coordinated with details, materials, fixtures, retail signs, logos, and the space layout.

• Conducted site visits, gathered relevant data, and worked closely with boutique owners and stakeholders.

Writer and Editor of WallPost

Architecture and Ekistics Department, JMI 2019 – 2024

• Contributed original article features to the newsletter, showcasing insights and research on architectural theory, practice, and industry trends.

• Conducted interviews with guest speakers, faculty members, and industry professionals.

• Persian and Kashmiri Carpets 2021

• The Old Shrine of Dastgeer Sahib

• Mesmerizing: The British Legacy of New Delhi

AUTOCAD REVIT SKETCHUP (6 YEARS) (3 YEARS) (4 YEARS) (5 YEARS) (2 YEARS) (3 YEARS)

ADOBE PHOTOSHOP ADOBE ILLUSTRATOR ADOBE INDESIGN

TWIN MOTION MS OFFICE

LUMION VRAY ENSCAPE (2 YEARS) (2 YEARS) (2 YEARS) (1 YEARS) (9+ YEARS)

Presentation

Communication

Creativity

Teamwork

Research

Organization Writing

KNACK Studios

Mayur Vihar, New Delhi

Interior and Graphic Designer

06/2023 - 10/2023

• Leading the design of restaurants, apartments, offices, furniture, ceiling designs, and working drawings.

• Accomplished the designing of a restaurant from its inception to the completion of the project in Delhi.

• Worked in space planning and layout development, refining design layouts and furniture arrangements.

• Supported the selection of materials, finishes, and furnishings through research and sourcing samples.

• Created 3D visualizations and renders

Aesthetics Srinagar, Kashmir

Architectural Intern 08/2021 - 10/2021

• Prepared architectural and working drawings like site plans, floor plans, sections and elevations.

• Modeling the project on BIM softwares like SketchUp & Revit.

• Participated in design reviews and critiques with the designers and project stakeholders.

Guest House

Srinagar, Kashmir

Architect 03/2024 – 09/2024

Greening the Economy: Sustainable Cities

Lund University Course 2021

• Worked with a client on a small guesthouse and collaborated with them to understand their vision and requirements.

• Generated conceptual design proposals and presented multiple design options for client review and feedback.

• Studied case studies and best practices from around the world, analyzing successful examples of sustainable urban design, green infrastructure, and community resilience.

CONTENTS.

A RESORT : AN ARCHITECTURAL OASIS

THESIS | SEMESTER IX | DECEMBER 2023

SRINAGAR, KASHMIR | 20639 sqm (5.1 acres) | HYPOTHETICAL

Nestled in the picturesque landscape of Srinagar, the proposed architectural thesis project aims to envision a resort on an area of 20639 sqm (5.1 acres) that seamlessly blends modern luxury with the rich cultural and natural tapestry that defines the Kashmir Valley. Srinagar, renowned for its breathtaking scenery, centuries-old heritage, and warm hospitality, serves as an ideal canvas for the creation of a resort that not only offers a serene retreat for visitors but also celebrates and preserves the unique traditions of the region.

The resort is strategically situated along Boulevard road, opposite the great Dal Lake, to capture the essence of the locale, offering panoramic views of the surrounding mountains and water bodies. The choice of location is not merely geographical; it's a conscious decision to weave the resort into the cultural and natural fabric of Srinagar.

The rationale behind this project is multi-faceted. Beyond catering to the growing demand for high-quality accommodations, the resort seeks to contribute positively to the local economy, promote sustainable tourism practices, and become a cultural ambassador for the region. By preserving and showcasing the traditions of Kashmir, the resort aims to offer guests an authentic experience while fostering a sense of pride and ownership among the local community.

The architectural design draws inspiration from traditional Kashmiri elements, incorporating local materials and craftsmanship. Sustainability will be at the forefront, integrating eco-friendly practices and collaborating with local artisans, while the incorporation of modern amenities will elevate the overall guest experience

In essence, this architectural thesis project is a testament to the belief that a resort in Srinagar can be more than just a destination; it can be a cultural bridge, a sustainable haven, and a harmonious coexistence with the enchanting surroundings. Through a thoughtful exploration of the what, where, why, and how, this project aspires to contribute to the evolving narrative of architectural excellence in the heart of Kashmir.

Nestled in the picturesque landscape of Srinagar, the proposed architectural thesis project aims to envision a resort that seamlessly blends modern luxury with the rich cultural and natural tapestry that defines the Kashmir Valley. Srinagar, renowned for its breathtaking scenery, centuries-old heritage, and warm hospitality, serves as an ideal canvas fozr the creation of a resort that not only offers a serene retreat for visitors but also celebrates and preserves the unique traditions of the region. GREEN

INTERACTIVE SPACES

ADMINISTRATION BLOCK

RESTAURANT

SPA AND WELLNESS BLOCK

COTTAGE 1

COTTAGE 2

COTTAGE 3

The three-story traditional cottage is designed to offer tourists an authentic experience that connects them deeply to the cultural and natural beauty of the region. With an emphasis on blending local architectural styles and modern comforts, the cottage aims to create a warm, inviting retreat for visitors seeking relaxation and immersion in Kashmiri heritage. The cottage embraces the region's architectural heritage, using local materials, intricate woodwork, and traditional craftsmanship while ensuring that the needs of contemporary travelers are met.

The cottage draws inspiration from traditional Kashmiri-style houses, with steeply pitched gabled roofs, bay windows designed to offer elaborate views of the breathtaking surroundings, khatam band ceilings, and wooden interiors. Using locally sourced deodar wood for the taq elements for the exterior creates a seamless connection with the natural environment while also reflecting the region's craftsmanship and architectural heritage.

The one-story and single cottage integrates traditional Kashmiri aesthetics with contemporary amenities, offering a unique and memorable stay that enhances the connection between guests and the local city and culture.

Each story has a bedroom space and a traditional floor seating arrangement area inspired by Kashmir's traditional bay window areas.By seamlessly blending traditional architecture with modern conveniences, the design invites visitors to immerse themselves in the local way of life, offering a peaceful retreat that strengthens their connection to the city they visit. This project highlights the beauty of cultural preservation and the importance of creating spaces that allow visitors to experience the region's beauty and traditions.

Ground floor
Ground floor Roof plan
Roof plan
Section
Axonometric view
Facade elevation
First floor

• A green space at a small, quiet part of the resort, inspired by the gardens of Kashmir.

• A timber platform at the gardens of the cottages, the form takes inspiration from the shape of a khatamband.

• Green arches along the pathways.

• Greenhouses for placing plants and greenery throughout the year, similar to Kashmiri households

02

THE URBAN RISE

ARCHITECT | SEMESTER VIII | MARCH 2023

NOIDA, INDIA | 202343 sqm (50 acres) | HYPOTHETICAL

Located in the rapidly developing urban fabric of Noida, Sector 42, we took on the challenging task of recreating an urban landscape and district center, envisioned as a vibrant and inclusive mixed-use development. Strategically positioned within a key growth corridor, the project aspires to serve as a socio-cultural, economic, and civic nucleus for the surrounding neighborhoods while seamlessly integrating modern urban design with accessibility.

The design approach prioritizes connectivity—both spatial and social. Through that, we aimed to build a center that met the ever-growing urban development needs and embraced ecological conscience and sustainability. The design's conceptual cornerstone was the creation of a multilayered ecosystem through the thoughtful integration of green spaces at different levels of the built environment based on the psychological study of high-rise buildings and stressful environments. Using this strategy, we could dynamically add flora to offset the buildings' footprint and achieve the ideal balance between open space and natural activity.

Elevated open spaces were incorporated into our design for environmental and recreational reasons. In addition to giving the general public access to aesthetically beautiful spaces, the green lanes enhanced the district center's general biodiversity. We created a sense of connectedness between the various levels of the urban environment by thoughtfully integrating these elevated spaces, encouraging a smooth and beautiful flow throughout the district.

Various space typologies were implemented in the design to meet the community's varied needs. Institutional spaces facilitated cultural and educational endeavors; commercial zones were positioned to promote economic activities, while parks and playgrounds were examples of recreational areas skillfully integrated into the district center. The inclusive public areas also functioned as community involvement hubs, demonstrating our dedication to developing a thriving and sustainable urban area in Noida.

Architecturally, the built form is a vision of the plans and hopes of the quickly developing and modernizing city of Noida. "The Urban Rise" at Sector 42 is more than a collection of buildings—it catalyzes community growth, urban vitality, and sustainable development. It responds to the needs of a diverse urban population and anticipates the challenges of tomorrow, making it a dynamic model for future urban centers in India.

Currently, there will ultimately be an extreme lack of open spaces in the world of construction and living.

The site areas will not be sufficient to meet the ideal requirements if we try to give the estimated population the recommended 9 sqm per person space on the ground.

An alternative scenario would be one in which we continue to strive for the ideal living standards and bring people to higher levels. At the same time, they remain ecologically active and open to everyone and are part of a multilayered ecosystem.

Seamless connection with nature
Promotes visual connectivity
Promotes prominent air circulation
O1
(Retail & Corporate )
O2
(Retail & Corporate )

ARCHITECTURAL CONTROLS

Dynamic screen, operating as a curtain wall, sitting one meter outside the building's exterior on an independent frame. Each triangle is coated with fiberglass and programmed to respond to the movement of the sun as a way to reduce solar gain and glare. In the evening, all the screens close.

INTERSTITIAL GREENS

Designed with interstitial greens, it seamlessly integrates nature into its architectural fabric, creating pockets of greenery between functional spaces.

THE DHAMMA VIHAR

ARCHITECT | DESIGN WORKSHOP | JANUARY 2025

BIHAR, INDIA | 12348.6 sqm (3.1 acres) | ONGOING CONSTRUCTION

Designed a classroom cum dormitory block for the Tergar Monastery located in Bihar. The project encompasses the requirements of approximately 100 students who will remain at the location for a few months a year for their training. This project embodies a harmonious blend of educational and residential spaces to foster an enriching academic and personal growth environment. The school and dormitory complex aims to serve as a modern and functional facility that meets the diverse needs of students, educators, and residential life. The design focuses on creating a space that encourages learning, interaction, and well-being while respecting the surrounding environment. Traditional Buddhist designs inspire the elevational views of the building, incorporating intricate patterns and cultural elements.

The design concept revolves around the idea of connectivity — both physically and socially. The design seamlessly integrates the spaces to create a cohesive atmosphere where users can experience a balanced life of study, rest, and recreation. By carefully considering the layout and functionality, they ensure that each area complements the others, promoting a harmonious blend of activities catering to productivity and relaxation. The layout of the complex prioritizes accessibility and flow, with classrooms, communal areas, and dormitories positioned for maximum interaction, engagement, and convenience, with productive segregation between the two spaces.

The classrooms are designed to be spacious and flexible teaching spaces. A minimum of two windows have been added to allow for natural light and ventilation in the classrooms, making the environment more open and inviting. The classrooms have a long bifold door to combine two classes for unique and required teachings and lessons. The dormitories are designed based on Buddhist values by providing the students with only the basics and necessities of space. Rooms for the staff have also been provided, with amenities like extra space and private toilets. The project also included working on details and the structural drawings of the building. Service requirements like FHC, plumbing, electrical shafts, and outlets are provided and made.

This school and dormitory block is a carefully designed facility that balances academic functionality with comfortable living accommodations. The project creates an environment where students can thrive academically and socially through thoughtful integration of spaces and an emphasis on student well-being. By blending educational and residential spaces, the design fosters a sense of community, supports collaboration, and creates a foundation for personal growth.

THE RUSTIC HAVEN

HEAD INTERIOR & GRAPHIC DESIGNER | KNACK STUDIOS | JULY 2023

NEW DELHI, INDIA | 45 sqm | COMPLTED

Welcome to Indian Oven, where the culinary traditions of North India are celebrated in a space that embodies warmth, elegance, and a touch of contemporary flair. Located in the vibrant city of Delhi, Indian Oven is not just a restaurant; it's an experience designed to engage all your senses, from the rich aromas of their dishes to the carefully crafted ambiance surrounding the diners.

As the interior designer of Indian Oven, my goal was to create a space that resonates with the cultural richness of North Indian cuisine while introducing a modern, sophisticated aesthetic. The design is centered around a palette of warm colors intertwined with soothing blue and green tones, creating an inviting and tranquil atmosphere.

The warm hues evoke the rich spices and earthy flavors that define North Indian food, providing a comforting and familiar backdrop. These tones complement the deep blues and serene greens, which bring a refreshing balance reminiscent of the natural beauty of India's diverse landscapes. The interplay of these colors creates a dynamic yet harmonious environment that evolves throughout the day—from the gentle morning light that softens the space to the evening glow that deepens its warmth.

The restaurant layout is designed to accommodate various dining experiences, whether it's an intimate dinner for two or a lively gathering with friends. Attention to detail was paramount in every aspect of the design. From the bamboo lanterns that echo traditional Indian craftsmanship to the modern lighting fixtures that add a contemporary edge, each piece was selected to enhance the dining experience. The use of textured fabrics and intricate patterns is inspired by the rich textile heritage of India, adding layers of depth and character to the space. Each element is a nod to the history and traditions that inspire our cuisine, creating a seamless connection between the food on your plate and the surrounding environment.

Creating the visual identity for "Indian Oven" has been a journey of blending tradition with modern design to capture the essence of North Indian cuisine. My goal was to craft promotional materials, posters, and menus that communicate the restaurant's flavors and ambiance and resonate deeply with its cultural roots.

The design approach for Indian Oven is grounded in a rich, warm color palette that mirrors the earthy spices and bold flavors of North Indian food. The typography is carefully chosen to blend modern sensibilities with a hint of traditional elegance.

LOGO | SHOP BOARD | PROMOTIONAL POSTERS

05

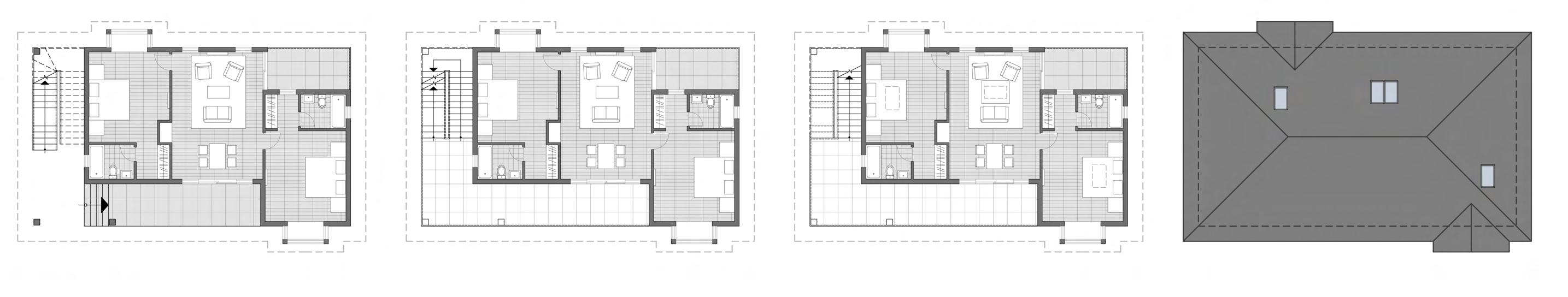
THE BRAHMA KUMARIS RESIDENCE

ARCHITECT | DESIGN WORKSHOP | MARCH 2025

GREATER NOIDA, INDIA | 233.12 sqm | ONGOING

The clients are part of the Brahma Kumaris movement and needed a building that worked as a house and a meeting area. It is envisioned as a peaceful, spiritually-aligned habitat for the members, designed to reflect their values of purity, simplicity, and inner harmony. Located in Greater Noida, the project responds to the site's physical context and the movement's philosophical context.

The Brahma Kumaris emphasize a lifestyle centered around meditation, introspection, and detachment from material excess. These core values guided the design approach, leading to a minimalist yet warm architecture that encourages stillness and contemplation. The layout is rooted in the traditional ashram typology, where communal life and individual reflection coexist harmoniously.

Locally sourced stone, lime plaster finishes, and whitewashed walls create a serene environment. White, significant in the movement for its association with purity and spiritual clarity, dominates the palette, enhancing natural light and creating a sense of openness and calm. Thick walls, shaded balconies, and jaali screens provide thermal comfort, enabling filtered light and air circulation.

The residential units are modestly sized and arranged in clusters to foster a sense of community while allowing space for solitude. Each unit includes a balcony space for meditation, aligning with the daily spiritual practices of the residents. The orientation of spaces is carefully calibrated to align with natural rhythms—particularly the east-west axis—to support early morning and evening meditation routines. The project also incorporates a small communal prayer hall and Satsang space, designed with high ceilings and filtered light to evoke a sense of transcendence. These shared spiritual spaces intend to strengthen collective energy and reinforce the ideals of unity and elevated consciousness.

This residence is more than a functional living space—it is a contemplative environment designed to nurture the spirit. Through a balance of form, function, and philosophy, the architecture is a silent facilitator of the Brahma Kumaris' vision: a life of inner peace, divine connection, and sustainable simplicity.

1FirstFloor SCHEDULEOFDOORS-FIRSTFLOOR

1ThirdFloor

1ThirdFloor

1ThirdFloor

SCHEDULEOFDOORS-THIRDFLOOR

SCHEDULEOFDOORS-THIRDFLOOR

DoorTypeWidthHeight Head HeightSillHeightCount 3800.02100.02100.00.05 4900.02100.02100.00.01 122000.02100.02100.00.01 131000.02100.02100.00.01 141700.02100.02100.00.01 Grandtotal9

SCHEDULEOFDOORS-THIRDFLOOR

DoorTypeWidthHeight Head HeightSillHeightCount 3800.02100.02100.00.05 4900.02100.02100.00.01 122000.02100.02100.00.01 131000.02100.02100.00.01 141700.02100.02100.00.01 Grandtotal9

DoorTypeWidthHeight Head HeightSillHeightCount 3800.02100.02100.00.05 4900.02100.02100.00.01 122000.02100.02100.00.01 131000.02100.02100.00.01 141700.02100.02100.00.01 Grandtotal9

SCHEDULEOFWINDOWS-THIRDFLOOR

SCHEDULEOFWINDOWS-THIRDFLOOR

MarkWidthHeight Head HeightSillHeightCount 12000.01200.02100.0900.01 3900.0900.02100.01200.04 41200.01200.02100.0900.02 9600.0900.02100.01200.01 Grandtotal8

MarkWidthHeight Head HeightSillHeightCount 12000.01200.02100.0900.01 3900.0900.02100.01200.04 41200.01200.02100.0900.02 9600.0900.02100.01200.01 Grandtotal8

SCHEDULEOFWINDOWS-THIRDFLOOR MarkWidthHeight

12000.01200.02100.0900.01 3900.0900.02100.01200.04 41200.01200.02100.0900.02 9600.0900.02100.01200.01 Grandtotal8

SUNRISE AND THE SEA

HEAD INTERIOR DESIGNER | KNACK STUDIOS | SEPTEMBER 2023

GREATER NOIDA, INDIA | 8.6 sqm | COMPLETED

Designing a kitchen in the vibrant city of Delhi, where the energy and spirit of the city inspire every element, was an exciting challenge. The client wanted to create a space that feels fresh, welcoming, and full of life, leading to the harmony of the coolness of blue, the warmth of yellow, and the subtle elegance of cream.

The choice of colors was central to the design concept. Blue brings a sense of calm and serenity to the kitchen, creating a soothing environment amidst the hustle and bustle of daily life. It is a backdrop that encourages relaxation and focus, making the kitchen a peaceful retreat where cooking becomes a joyful experience. The yellow tones introduce warmth and energy, infusing the space with a cheerful and uplifting vibe. Its color naturally draws the eye and brings a sense of brightness, making the kitchen feel lively and inviting. We chose the cream to balance these vibrant colors, adding a touch of sophistication and softness. It ties the palette together, ensuring the space feels cohesive and harmonious.

The interplay of these colors is carefully orchestrated to enhance the kitchen's functionality and aesthetics. Blue cabinetry provides a striking contrast against cream countertops, while yellow accents add pops of color that catch the eye without overwhelming the senses. The materials and finishes were selected to complement this palette, making the kitchen feel open and airy. At the same time, the Morocoan-inspired backsplash adds a creative and engaging element to the space.

The kitchen layout was designed with both practicality and style in mind. Ample storage, efficient workspaces, and thoughtfully placed appliances ensure the kitchen is as functional as visually appealing. Integrating these colors into the design is subtle yet impactful, creating a space that is not only aesthetically pleasing but also deeply personal and reflective of the lively spirit of Delhi.

In designing this kitchen, I aimed to create a space that feels like the heart of the home— where colors and design come together to create an energizing and serene environment. It's a kitchen where cooking, gathering, and living blend seamlessly, reflecting the warmth and vibrancy of the colors that define it.

Integrating the colors into the kitchen design is subtle yet impactful, creating a space that is not only aesthetically pleasing but also deeply personal and reflective of the lively spirit of Delhi. The layout was designed with both practicality and style in mind. Ample storage, efficient workspaces, and thoughtfully placed appliances ensure the kitchen is as functional as visually appealing.

Plan
Elevation 1
Elevation
Elevation

THE MAURITIUS MEADOWS

ARCHITECT | DESIGN WORKSHOP | MARCH 2024

MAURITIUS | DESIGN ONGOING

Designing a resort with a mix of villas and apartments in Mauritius that offers a truly premium experience requires a meticulous approach, focusing on enhancing both the natural environment and the overall guest experience and using space effectively to get monetary value for the clients. From an architect's perspective, the vision for this project centers around creating a seamless blend between the lush, tropical surroundings and the required amenities, ensuring that every aspect of the resort not only reflects the beauty of Mauritius but also elevates the sense of luxury for its guests.

A significant emphasis must be placed on expanding and enriching the green spaces throughout the resort. By carefully integrating gardens, natural landscapes, and water features, we can create an oasis that extends the island's natural beauty. These green spaces enhance the visual appeal and contribute to a serene atmosphere where guests can escape.

By thoughtfully integrating these elements, we aim to increase the resort's selling price and create a destination that offers unparalleled luxury and a deep connection to the natural beauty of Mauritius. This holistic approach resulted in a resort that stands out as a premium offering in the market, where every detail is designed to provide an unforgettable experience.

The site is located between Pointe Aux Piments and Pointe Aux Biches in North-West Mauritius. It is roughly rectangular, measuring 23.62 Arpents or 99,598 square meters. The clients wanted to provide approximately 100 Villas and 200 apartments as a baseline.

VILLA TYPE B

Site Area: 30 x 13m = 390 sqm

LEGEND

CAR PARKING ENTRY

LIVING AND DINING KITCHEN

POWDER ROOM

BEDROOM

TOILET

MASTER BEDROOM

VERANDAH

DRESSER

HOME OFFICE

POOL DECK

LAWN

AREAS

AREA AT GROUND =147.2 sqm

VILLA TYPE D

Site Area: 30 x 22.5m = 675 sqm

LEGEND

CAR PARKING ENTRY

LIVING AND DINING KITCHEN

POWDER ROOM

BEDROOM

TOILET

MASTER BEDROOM

VERANDAH

DRESSER

UTILITY/STORE POOL

DECK

LAWN

HOME OFFICE

AREAS AREA AT GROUND =209.3 sqm

VILLA TYPE A

Site Area: 30 x 10m = 300 sqm

LEGEND

CAR PARKING ENTRY

LIVING AND DINING

KITCHEN

POWDER ROOM

BEDROOM

TOILET

MASTER BEDROOM

VERANDAH

DRESSER

TERRACE

POOL

DECK

LAWN STAIR

AREAS:

AREA AT GROUND =83.3 sqm

AREA AT FIRST =72.0 sqm

TOTAL AREA =155.3 sqm

VILLA TYPE C

Site Area: 30 x 17m = 510 sqm

LEGEND

CAR PARKING ENTRY

LIVING AND DINING

KITCHEN

POWDER ROOM

BEDROOM

TOILET

MASTER BEDROOM

VERANDAH

DRESSER

UTILITY/STORE

POOL

DECK

LAWN

AREAS:

AREA AT GROUND =174.8 sqm

RENDERED REALITIES

ARCHITECT | DESIGN WORKSHOP | JANUARY 2025

BEYOND BOUNDARIES

Say Hello!

E mail : abeerdedmari1@gmail.com

Linkedin : abeer m. d.

Whatsapp : +91 778 094 2456

Phone : 056 112 7636

Turn static files into dynamic content formats.

Create a flipbook
Issuu converts static files into: digital portfolios, online yearbooks, online catalogs, digital photo albums and more. Sign up and create your flipbook.