Architecture portfolio abeer azzouqa

Page 1

ARCHITECTURE PORTFOLIO

ABEER AZZOUQA - Senior Architect /Lead Interior Designer

Abeer Azzouqa

Architect/Interior Dsigner

University of Jordan

BSC Architectural Engineering

Behance: https://www.behance.net/abeeraz1992

: LOCATION

DUBAI

UAE

CONTENT:

EXTERIOR PROJECTS:

HEALTHCARE PROJECTS:

1.Al-bashir hospital

COMMERCIAL PROJECTS

1.Cafe Dubai

2.shihadeh commercial building

3.medical village

4.Time Center

INDUSTRIAL PROJECTS:

1. al sandabel industries complex

2.oman central market

3.al-faqeer hangar

4.asad hangar

RESIDENTIAL AND VILLAS :

1.SAKHRA VILLA.

2. ABDEL-MASEEH VILLA.

3. Z.H VILLA.

4. Jumairah Villa.

5. TAREQ KAYALI VILLA

6. BADER RESIDENTIAL VILLA.

7. al-HAKKAK VILLa.

8. kayali villa.

9. villa khawam.

10. Alwasel farm house.

11. the rift house.

Interior projects:

1. Emirates NBD Cafeteria .

2. BREWER CAFE.

3. container kiosk.

4. BAFLEH JEWELERY SHOP.

5. doner & gyros kiosk

6. Deli marche coffee shop.

7. elysian offices.

8. nad el-shiba clinics.

9. adnec head offices.

10. tawam hospital cafeteria.

11. villa.

12. Source cafe.

13. laquila cafe.

14. Dubai Majlis.

15. Nad El-shiba viila.

16. shehadeh commercial.

17. bader residential building.

18. oman masqat villa.

19. abu shehab villa.

20. dental clinics.

21 . Aljabali viila

22. wedding hall.

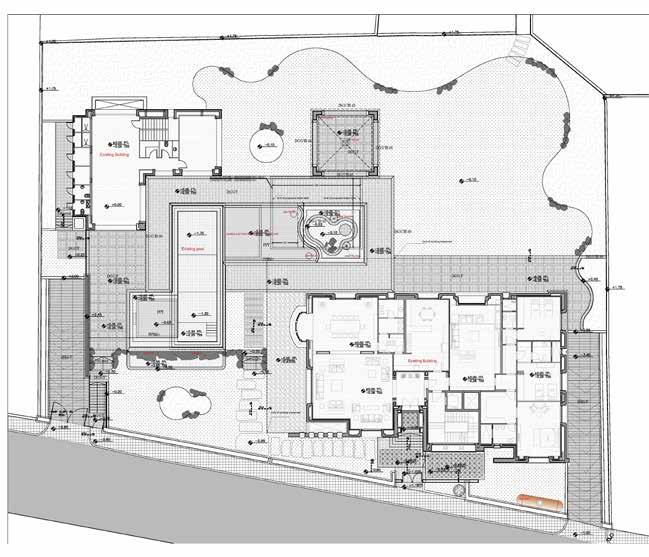
LANDSCAPE PROJECTS\

1.SAHER VILLA

2.AL-ABEIR RESIDENTIAL TOWER

3.ZAABI VILLA

4.SAJAN VILLA

5.AL-BARSHA2 VILLA

6.CLEMENT BASHI VILLA

GRADUATION PROJECT

CONSTRUCTION DRAWINGS:

1. wall sections.

2.ceiling details

3.Toilet drawings

4. Landscape Details

Feb2016 - June2021

1. Al- Bashir Hospital

Location : JVC -DUBAI- UAE

Phone: +971 52 684 6501 Email: abeer.az@hotmail.com

Gender: Female Nationality: Jordanian D.O.B: 15/09/1992

LOCATION:

Al-ashrafieh, Amman ,Jordan.

Renovation project for Al-bashir surgical building in Al-ashrafieh, Amman ,Jordan. this building was established in 1954,and was abandoned for the past 10 years .It was the vision of the health prime minister to reopen a public surgical with open heart sugery ,cath-lab and other services that wasn’t provided by the public services

PROJECT DURATION :

Mrch 2020 - January 2021

ROLE :

head of Renovation Design,3d modeling, Rendering ,facade design, interior design ,preparing construction drawings for (Toilets,ceiling,tiling,and interior elevations).coordination with contactors MEP and structual engineers . site visits with contractors to follow up and solve any arose problems.

Healthcare
.
Podium Architecture and Interiors ABEER AZZOUQA SeniorArchitect /Lead Interior designer Healthcare Senior Architect /Lead Interior designer

ABEER AZZOUQA

SeniorArchitect /Lead Interior designer

COMMERCIAL

Senior Architect /Lead Interior designer

Feb2016 - Sep2021

1.Cafe Dubai

LOCATION: Hussah street, Dubai.UAE

PROJECT DURATION : may 2020- Sep 2021

Location : JVC -DUBAI- UAE

Phone: +971 52 684 6501 Email: abeer.az@hotmail.com

Gender: Female Nationality: Jordanian D.O.B: 15/09/1992

The project is set on two attached pieces of land; one of them is for Café with an area of 1400 m2, the other is a parking lot with green areas to serve the café with an areaof 929 m2.

role : Senior Architect undertaking the design phase ,Rendering ,taking part in the Detailed construction drawings production, Coordination with MEP and structural engineers .coordination with suppliers and submit offers to the client .Taking part in the Interior phase and preparing full shop drawings. Weekly Site visits for construction follow ups.

Podium Architecture and Interiors

ABEER AZZOUQA

SeniorArchitect /Lead Interior designer

COMMERCIAL

Location : JVC -DUBAI- UAE

Phone: +971 52 684 6501 Email: abeer.az@hotmail.com

Gender: Female Nationality: Jordanian D.O.B: 15/09/1992

Feb2016 - Sep2021

1.Cafe Dubai

LOCATION: Hussah street, Dubai.UAE

PROJECT DURATION : may 2020- Sep 2021

The project is set on two attached pieces of land; one of them is for Café with an area of 1400 m2, the other is a parking lot with green areas to serve the café with an areaof 929 m2.

role : Senior Architect undertaking the design phase ,Rendering ,taking part in the Detailed construction drawings production, Coordination with MEP and structural engineers .coordination with suppliers and submit offers to the client .Taking part in the Interior phase and preparing full shop drawings.

Podium Architecture and Interiors Senior Architect /Lead Interior designer

SeniorArchitect

COMMERCIAL

Location : JVC -DUBAI- UAE

Phone: +971 52 684 6501 Email: abeer.az@hotmail.com

Gender: Female Nationality: Jordanian D.O.B: 15/09/1992

Feb2016 - Sep2021

LOCATION:

Khalda,Amman Jordan.

Project Area:

30,000 m2

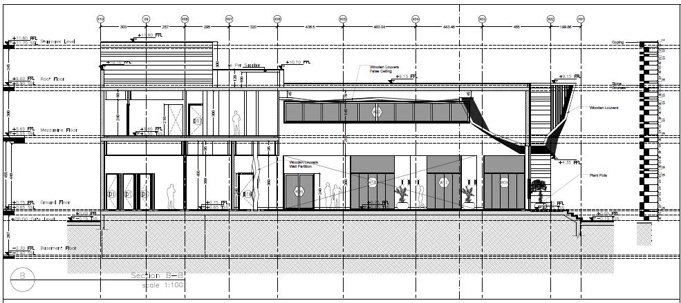
this is a commercial building located in khalda amman. it contains multiple functions :Wedding halls in the basement with lobby and reception in the ground floor level .retail shops in the ground and first floor.second floor having a restaurant while the 3rd to 5th floor accomodating offices reaching the 7th floor that has hotel like rooms.

PROJECT DURATION :

Oct 2018 - DEC 2021

ROLE :Senior Architect in the design team,Exterior Facades design while coordination with leed requirements, being the main interior designer for this project from concept design to fit-out selection

the perforated metal sheets at the roof top is part of the building green design as it acts as sun sheild for the roof top garden and it holds the solar system units ,providing the building with the needed electricity and hot water . the louvers of the facade was also studied to minimise the energy consumed by the air conditioning during the summer.

ABEER AZZOUQA Podium Architecture and Interiors Senior Architect /Lead Interior designer 2.Shihadeh Commercial building green building certified

SeniorArchitect

/Lead Interior designer

COMMERCIAL

Senior Architect

/Lead Interior designer COMMERCIAL

3. MEDICAL VILLAGE

LOCATION:

Khalda, Amman ,Jordan.

Area:14,000 m²

Location : JVC -DUBAI- UAE

Phone: +971 52 684 6501 Email: abeer.az@hotmail.com

Gender: Female Nationality: Jordanian D.O.B: 15/09/1992

this is a commercial Medical project located in khalda circle ,amman. it’s consitant of 4 main buildings ,these buildings are Consistant of clinics with retail shops , pharmacy in the ground level ,a hospital ,and a hotel.

PROJECT DURATION : May 2017 - sep 2021

ROLE :Senior Architect in the design team ,3d modeling ,taking part in the production of constuction drawings and Coordination with MEP and structural engineers.

ABEER AZZOUQA Podium Architecture and Interiors

ABEER AZZOUQA

SeniorArchitect /Lead Interior designer

commercial

Podium Architecture and Interiors

Senior Architect /Lead Interior designer

Feb2016 - Sep2021

COMMERCIAL

4. Time center Commercial building

LOCATION: Um Utheinah, Amman, Jordan.

Location : JVC -DUBAI- UAE

Phone: +971 52 684 6501 Email: abeer.az@hotmail.com

Gender: Female Nationality: Jordanian D.O.B: 15/09/1992

PROJECT DURATION : Oct2018 - present

ROLE :Senior Architect in the design team ,3d modeling ,taking part in the production of constuction drawings and Coordination with MEP and structural engineers.

ABEER AZZOUQA

SeniorArchitect

/Lead Interior designerr

industrial

Architect /Interior designer

Feb2016 - Sep2021

Location : JVC -DUBAI- UAE

Phone: +971 52 684 6501 Email: abeer.az@hotmail.com

Gender: Female Nationality: Jordanian D.O.B: 15/09/1992

Podium Architecture and Interiors

INDUSTRIAL PROJECTS

1. Al-Qastal Hangar

LOCATION:

Amman,Jordan:

Um El-Emad , Amman ,Jordan. this is an industrial building located in Um-Alamad, amman. it’s consists of three attached hangars and an administrative building linked to the hangars, in addition to labour accommodations .

Project Area:

40,000 m2

PROJECT DURATION :

Oct2018 - present

ROLE :

Senior Architect in the design team, participating in the concept design phase ,3d modeling ,taking part in the production of constuction drawings and Coordination with MEP and structural engineers .

ABEER AZZOUQA

SeniorArchitect

/Lead Interior designer

industrial

Senior Architect

/Lead Interior designer

Feb2016 - Sep2021

INDUSTRIAL

3. Al-Faqeer Aluminum Hangar LOCATION:

Amman ,Jordan. AREA: 8,000m2

Location : JVC -DUBAI- UAE

Phone: +971 52 684 6501 Email: abeer.az@hotmail.com

Gender: Female Nationality: Jordanian D.O.B: 15/09/1992

This is an industrial building located in Al-mukabaleen Amman. It’s An Aluminum company that’s why we made a suspended Aluminum mass protruded from the hangar holding the administrative functions looking over the production line beneath.

ROJECT DURATION :

Nov 2018 - 2019

4. Asad plastic industries hangar LOCATION:

Um El-Emad , Amman ,Jordan. this is an industrial building located in Um-Alamad, amman. it’s consists of three attached hangars and an administrative building linked to the hangars

PROJECT DURATION : Feb 2017- 2019

ROLE :Senior Architect in the design team participating in the concept design phase ,visualization ,participating in the production of constuction drawings and Coordination with MEP and structural engineers .

Podium Architecture and Interiors
99.42 99.52 1030 1030 slope 1% slope 1% 1200 1572 1200 3109 200 200

ABEER AZZOUQA

SeniorArchitect /Lead Interior designerr

Location : JVC -DUBAI- UAE

Phone: +971 52 684 6501 Email: abeer.az@hotmail.com

Gender: Female Nationality: Jordanian D.O.B: 15/09/1992

residential

Architecture

Podium Architecture and Interiors

Senior Architect

/Lead Interior designer Feb2016 - Sep2021

1. SAKHRAH VILLA

LOCATION:

AJLOUAN,Jordan:

this is a vacation house located in Ajloun.

ROLE :

Senior Architect in the design team, participating in the concept design phase ,3d modeling ,taking part in the production of constuction drawings and Coordination with MEP and structural engineers .

ABEER AZZOUQA

SeniorArchitect

/Lead

Interior designer

Podium Architecture and Interiors

Senior Architect

/Lead Interior designer

Feb2016 - Sep2021

LOCATION:

Amman,Jordan:

ROLE :

Location : JVC -DUBAI- UAE

Phone: +971 52 684 6501 Email: abeer.az@hotmail.com

Gender: Female Nationality: Jordanian D.O.B: 15/09/1992

Senior Architect in the design team, participating in the concept design phase ,3d modeling ,taking part in the production of constuction drawings and Coordination with MEP and structural engineers .

residential
2. abdel maseeh Villa

ABEER AZZOUQA

SeniorArchitect

/Lead Interior designerr

Location : JVC -DUBAI- UAE

Phone: +971 52 684 6501 Email: abeer.az@hotmail.com

Gender: Female Nationality: Jordanian D.O.B: 15/09/1992

residential

Architecture

Podium Architecture and Interiors

Senior Architect

/Lead Interior designer Feb2016 - Sep2021

RESIDENTIAL PROJECTS

Z.H VILLA

Hangar

LOCATION:

Rajm Emaish,Amman,Jordan.:

this is a modern design villa in al-buniat .

Project duration:

may 2017- nov 2019

ROLE :

Senior Architect in the design team, participating in the concept design phase ,3d modeling ,taking part in the production of constuction drawings and Coordination with MEP and structural engineers .

3.

ABEER AZZOUQA

SeniorArchitect

/Lead Interior designer

residential

Architect /Interior designer

Feb2016 - Sep2021

Location : JVC -DUBAI- UAE

Phone: +971 52 684 6501 Email: abeer.az@hotmail.com

Gender: Female Nationality: Jordanian D.O.B: 15/09/1992

Podium Architecture and Interiors

Residential 4. Jumairah villa

LOCATION: Jumairah 2,Dubai,UAE.

this is a residential villa located in Jumairah 2.

ROLE : participating in the early concept Design phase, 3d Modeling, visualization,preparing construction drawings for the required authorities while coordinationg with structural and mechanical engineers to acheive best result.Interior design and furniture selection.

SeniorArchitect

residential

Architect /Interior designer

Feb2016 - Sep2021

Location : JVC -DUBAI- UAE

Phone: +971 52 684 6501 Email: abeer.az@hotmail.com

Gender: Female Nationality: Jordanian D.O.B: 15/09/1992

Residential

Villa

LOCATION:

Rajm Emaish, Amman ,Jordan.

this is a spanish style villa in al-bunaiat ,amman.

PROJECT DURATION : Oct2017-Oct2019

ROLE :participating in the early concept Design phase, 3d Modeling, visualization,preparing construction drawings for the required authorities, while coordinationg with structural and mechanical engineers to acheive best result.Interior design and furniture selection.Landscape design and preparing full construction drawings for the landscape details.

ABEER AZZOUQA /Lead Interior designer Podium Architecture and Interiors 5. Tareq Kayali

ABEER AZZOUQA

SeniorArchitect

/Lead Interior designer

residential

Architect /Interior designer

Feb2016 - Sep2021

Residential

Location : JVC -DUBAI- UAE

Phone: +971 52 684 6501 Email: abeer.az@hotmail.com

Gender: Female Nationality: Jordanian D.O.B: 15/09/1992

Podium Architecture and Interiors

6. Bader residential appartments

LOCATION:

Bader, Amman ,Jordan.

this is a modern design residentail appartments overlooking an amazing view to the mountains across ,that’s why the design intended to maximize the views to the surroundings.

ROJECT DURATION : may 2017- nov 2019

ROLE : participating in the early concept Design phase ,3d Modeling, visualization.Interior design and furniture selection.preparing full presentation for the client.

ABEER AZZOUQA

SeniorArchitect

/Lead Interior designer

Location : JVC -DUBAI- UAE

Phone: +971 52 684 6501 Email: abeer.az@hotmail.com

Gender: Female Nationality: Jordanian D.O.B: 15/09/1992

Podium Architecture and Interiors

Architect /Interior designer

Feb2016 - Sep2021

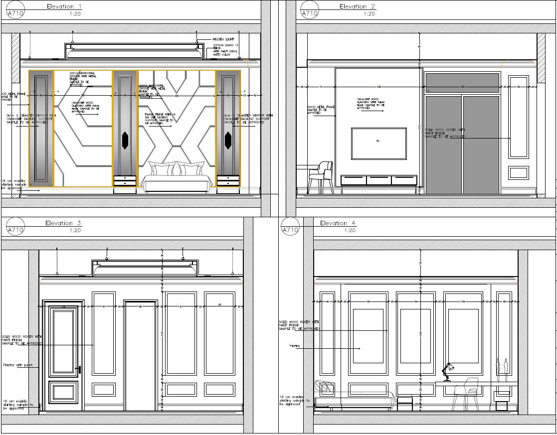
7. hakkak villas

appartments

LOCATION:

Dabouqe, Amman ,Jordan.

this is a modern design residentail Villas overlooking an amazing view to the mountains across ,that’s why the design intended to maximize the views to the surroundings.

ROLE : participating in the early concept Design phase ,3d Modeling, visualization.Interior design and furniture selection.preparing full presentation for the client.

8.Kayali Villas

Project Duration : Oct2018 - present

Project Area: 2,000 m²

ROJECT DURATION : may 2017- nov 2019

Role :Senior Architect in the design team,Exterior Facades design. 3d Modeling, preparing full presentation for the client.

residential

SeniorArchitect

Feb2016 - Sep2021

Location : JVC -DUBAI- UAE

Phone: +971 52 684 6501 Email: abeer.az@hotmail.com

Gender: Female Nationality: Jordanian D.O.B: 15/09/1992

LOCATION:

ROLE : participating in the early concept Design phase ,3d Modeling, visualization.preparing full presentation for the client.

ABEER AZZOUQA /Lead Interior designer Podium Architecture and Interiors Architect /Interior designer 9. villa khawam Dabouqe, Amman ,Jordan.
residential -1.5 F.L. -3.00 -3.00 450 F.L. -1.5 -2.00 500 450 450 700 640 1500 F.L. -7.65 100 1187 901 110 665 880 100 1685 830 1250 917.5 -6.5 725 510 1165 2002 1605 1910

ABEER AZZOUQA

SeniorArchitect

/Lead Interior designer

residential

Podium Architecture and Interiors

Senior Architect

/Lead Interior designer Feb2016 - Sep2021

Location : JVC -DUBAI- UAE

Phone: +971 52 684 6501 Email: abeer.az@hotmail.com

Gender: Female Nationality: Jordanian D.O.B: 15/09/1992

10. AL-WASEEL FARM HOUSE BY BADRAN DESIGN TEAM

LOCATION: Saudi Arabia.

PROJECT DURATION : December 2016-2018

ROLE : participating in the early concept Design phase ,3d Modeling, rendering ,Landscape design .preparing full presentaions for client.

ABEER AZZOUQA

SeniorArchitect

/Lead Interior designer

residential

BADRAN DESIGN STUDIO

Architect /Interior designer

Feb2016 - Sep2021

11. The Rift House .

LOCATION: Saudi Arabia.

PROJECT DURATION : Jul 2015

Location : JVC -DUBAI- UAE

Phone: +971 52 684 6501 Email: abeer.az@hotmail.com

Gender: Female Nationality: Jordanian D.O.B: 15/09/1992

ROLE : participating in the early concept Design phase ,3d Modeling, rendering ,Landscape design .preparing full presentaions for client.

Girls main building Boys main building Family and guest buildings

Location : JVC -DUBAI- UAE

Location : JVC -DUBAI- UAE

Phone: +971 52 684 6501 Email: abeer.az@hotmail.com

Phone: +971 52 684 6501 Email: abeer.az@hotmail.com

Gender: Female Nationality: Jordanian D.O.B: 15/09/1992

Gender: Female Nationality: Jordanian D.O.B: 15/09/1992

graduation Project

Graduation project

University of Jordan

sep2010-Jun2015

CONCEPT:

Rebuilding the Key-stones

Of the Child’s personality based on Maslow’s hierarchy of needs.it predicts that children will react to sequence of the building layers which will have an impact on the child mindset helping them overcome their bad experience,adapt and regain trust in people through engaging the community ,which will help them reach their full potential.

The project tries to engage the neighborhood in a design that is vague and intriguing that draws the community in to help spread awareness simultaneously in a poor urban context where extroverted views aren’t appealing we decided to create an introverted design.

ABEER AZZOUQA Architect & Interior designer Kids Roof lounge ( reinforced truss bracing) Group therapy room ABEER AZZOUQA SeniorArchitect /Lead Interior designer

ABEER AZZOUQA

SeniorArchitect

/Lead Interior designer

Interior Design

Location : JVC -DUBAI- UAE

Phone: +971 52 684 6501 Email: abeer.az@hotmail.com

Gender: Female Nationality: Jordanian D.O.B: 15/09/1992

Veloche Contracting And Technical Services LLC

Senior Architect

/Lead Interior designer

May 2021 - Present

INTERIOR PROJECTS:

1.EMIRATES NBD CAFETERIA

Location: Dubai.UAE

Role :Interior Renovation Design ,Modeling, Rendering, Providing all drawings to get DM approval ,Material selection ,construction drawings with full details , providing mechanical and electrical drawings, Follow-up site visits to solve any site problem and check that everything is going according to plan and design.

fit-outs ,lighting and all finishes selection.

ABEER AZZOUQA

SeniorArchitect

/Lead Interior designerr

Interior

Senior Architect

/Lead Interior designer

INTERIOR PROJECTS:

Location : JVC -DUBAI- UAE

Phone: +971 52 684 6501 Email: abeer.az@hotmail.com

Gender: Female Nationality: Jordanian D.O.B: 15/09/1992

2. brewers cafe .

Location: Dubai.UAE

Role : Lead Interior Designer ,Concept design , modeling , rendering and preparing full construction package.

Design 2000 1200 1000 10499 4801 950 3000 400 PICK UP POINT 1216 1316 1100 2400 1860 1272 600 1200 2400 600 1212 600 2500 140 2500 305 2400 600 1400 1030
2022
Present
Contracting
Technical
May
-
Veloche
And
Services LLC

ABEER AZZOUQA

SeniorArchitect /Lead Interior designer

Interior Design

Location : JVC -DUBAI- UAE

Phone: +971 52 684 6501 Email: abeer.az@hotmail.com

Gender: Female Nationality: Jordanian D.O.B: 15/09/1992

Veloche Contracting And Technical Services LLC

Senior Architect /Lead Interior designer

May 2022 - Present

INTERIOR PROJECTS:

3. container kiosk.

Location: CDA.Dubai.UAE

Role : Lead Interior Designer ,Concept design , modeling , rendering and preparing full construction package.

MERRYCHEF BLENDER PANTRY DISPLAY CHILLER 150CM UNDER COUNTER STORAGE SYRUP DISPLAY PANINI GRILL UNDER COUNTER WATER FILTER UNDER COUNTER STORAGE UNDER COUNTER DOUBLE DOOR CHILLER 140 CM PANTRY DISPLAY CHILLER 150CM DRAWER CHIPS& SWEETS DISPLAY POS PICK UP POINT 1500 1500 1970 930 5900 2400 H/W SINK 700 900 EQUIPMENT SINK COFFEE MACHINE MACHINE U/C ICE

ABEER AZZOUQA

SeniorArchitect /Lead Interior designer

Interior Design

Senior Architect /Lead Interior designer

INTERIOR PROJECTS:

Location : JVC -DUBAI- UAE

Phone: +971 52 684 6501 Email: abeer.az@hotmail.com

Gender: Female Nationality: Jordanian D.O.B: 15/09/1992

4. bafleh jewelery shop .

Location: Dubai.UAE

Role : Lead Interior Designer ,Concept design , modeling , rendering and preparing of construction package.

1360 1200 1200 1200 500 1200 1200 2660 1110 626 1200 1200 1200 1200 1200 1200 1200 400 2000 1100 2364 7360 510 400 11334 400 1588 1588 3176 510 440 500 1100 1100 1100 500 1400 1400 546 300 770 600 1200 1200 1200 900 1120 UP STORAGE SERVER ROOM DECOWALL 18K DECOWALL 18K DECOWALL 18K DECOWALL 18K NECKLACE STORAGE CASHIER 900 DOWN GLASS EXISTING FILING CUPBOARD STORAGE 1200 1500 2100 SERVER ROOM 1297 WASHROOM SLIDING DOOR METAL DOOR DIAMOND DISPLAY DIAMOND DISPLAY DIAMOND DISPLAY DIAMOND DISPLAY WALL DISPLAY DIAMOND WALL DISPLAY DIAMOND WALL DISPLAY DIAMOND MAINRENANCE WORK TABLE CUPBOARD STORAGE SHOP FRONT DISPLAY DIAMOND NECKLACE GOLD NECKLACE GOLD & DIAMOND GOLD CHAIN NECKLACE NECKLACE GOLD & DIAMOND NECKLACE BANGLE & BRACELET DIAMOND DIAMOND RINGS DIAMOND EARRINGS GOLD NECKLACE NECKLACE GOLD CHAIN NECKLACE CHAIN NECKLACE GOLD BANGLE BRACELET BRACELET DIAMOND EARRINGS DIAMOND BRACELET GM OFFICE GOLD BANGLE 4720 5405 1000 11334 Drawing No. Scale: Drawn By: Status: NOTES : THE COPYRIGHT OF THIS DRAWING REMAINS WITH Veloce Interiors AND MAY NOT BE REPRODUCED WITHOUT PRIOR WRITTEN CONSENT.FIGURED DIMENSIONS ARE TO BE USED IN PREFERENCES TO SCALED SIZES. ALL DIMENSIONS MUST BE CHECKED BEFORE COMMENCING WORK ON SITE. THIS DRAWING IS TO BE READ IN CONJUNCTION WITH ALL OTHER RELEVANT DRAWINGS. Contractor: Drawing Title: Project Name: Project Location:AS SHOWN @ A3 - FOR APPROVAL-BAFLEH JEWELLERY BAFLEH JEWELLERY SHOP 02 LAYOUT Veloche Contracting And Technical Services LLC May 2022 - Present

ABEER AZZOUQA

SeniorArchitect /Lead Interior designer

Interior Design

Location : JVC -DUBAI- UAE

Phone: +971 52 684 6501 Email: abeer.az@hotmail.com

Gender: Female Nationality: Jordanian D.O.B: 15/09/1992

Veloche Contracting And Technical Services LLC

Senior Architect /Lead Interior designer

May 2022 - Present

INTERIOR PROJECTS:

5.doner & gyros kiosk.

Location: Nakheel Mall.Dubai.UAE

Role : Lead Interior Designer ,Concept design , modeling , rendering and preparing of construction package.

Project Name: NAKHEEL MALL PROPOSED EQUIPMENT LAYOUT NOTES THE COPYRIGHT OF THIS DRAWING REMAINS WITH DIMENSIONS ARE TO BE USED IN PREFERENCES TO SCALED SIZES. COMMENCING WORK ON SITE. LEGEND: 03.04.2023 04 DONER & GYROS + THE VEGAN GRILL DONER & GYROS NO DESCRIPTION D & G + THE VEGAN GRILL SIZE DUMP STATION 40X76CM BAIN MARIE 10 17 LEMONADE DISPENSER CASH COUNTER 50X45CM 70X55CM GO & GRAB DISPLAY NOTE : ALL THE GIVEN MEASUREMENTS ARE NOT ACCURATE . ACTUAL SITE MEASUREMENT TO BE CONSIDERED. O/H HOOD 19 SHOP FRONT SIDE 21 22 GARBAGE 36X36CM 40X40CM DOUBLE DOOR UPRIGHT FREEZER 21 8199 JUICE DISPENSER 12 10 18 SINGLE DOOR UPRIGHT FREEZER 22 30 23 19 19 800 1403 3367 900 AREA THE VEGAN GRILL AREA D & G 11 12 SS TABLE GRAB & GO DISPLAY 3 2 GRAB & GO DISPLAY POS 1 SS TABLE 2 COLA RACK MACHINE 60X70CM 25 26 8 27 CONVECTION POS 1 13 15 17 8 8199 7958 10 15 15 28 29 29 1927 1846 3830 3830 0 3033 2149 1353 2946 600 1000 850 700 1925 20 4 16 17 20 700 906 28 32 31 775 35 31 32 MANAGER DESK 33 MOP SINK IN THE GROUND 3123 800 1827 23 34 34 18 18 700 35 HAND WASH 823

ABEER AZZOUQA

SeniorArchitect

/Lead Interior designer

Interior Design

Location : JVC -DUBAI- UAE

Phone: +971 52 684 6501 Email: abeer.az@hotmail.com

Gender: Female Nationality: Jordanian D.O.B: 15/09/1992

Veloche Contracting And Technical Services LLC

Senior Architect

/Lead Interior designer

May 2022 - Present

INTERIOR PROJECTS:

7. ELYSIAN OFFICES.

Location: Dubai.UAE

Role : Lead Interior Designer ,Concept design , modeling , rendering and preparing full construction package.

The project is real estate office located in Dubai, we've used neutral earthy design while integrating new technologies with interactive & translucent screens.

ABEER AZZOUQA

SeniorArchitect

/Lead Interior designer

Interior Design

Location : JVC -DUBAI- UAE

Phone: +971 52 684 6501 Email: abeer.az@hotmail.com

Gender: Female Nationality: Jordanian D.O.B: 15/09/1992

Veloche Contracting And Technical Services LLC

Senior Architect

/Lead Interior designer

May 2022 - Present

INTERIOR PROJECTS:

8. Nad el-shiba clinics .

Location: Dubai.UAE

Role : Main Interior Designer ,from Concept design to modeling and rendering and preparing full construction package.

ABEER AZZOUQA

SeniorArchitect

/Lead Interior designer

Interior Design

Location : JVC -DUBAI- UAE

Phone: +971 52 684 6501 Email: abeer.az@hotmail.com

Gender: Female Nationality: Jordanian D.O.B: 15/09/1992

Veloche Contracting And Technical Services LLC

Senior Architect

/Lead Interior designer

May 2022 - Present

INTERIOR PROJECTS:

9. adnec head offices .

Location: Dubai.UAE.

Role : Lead Interior Design , Furniture layout ,Modeling, Rendering, Material selection ,full detailed construction drawings , coordination with mechanical and electrical engineers to achieve best solutions that best suits our design, Follow-up site visits to solve any site problem and check that everything is going according to plan and design.

fit-outs ,lighting and all finishes selection.

ABEER AZZOUQA

SeniorArchitect

/Lead Interior designer

Interior Design

Location : JVC -DUBAI- UAE

Phone: +971 52 684 6501 Email: abeer.az@hotmail.com

Gender: Female Nationality: Jordanian D.O.B: 15/09/1992

Veloche Contracting And Technical Services LLC

Senior Architect

/Lead Interior designer

May 2022 - Present

INTERIOR PROJECTS:

9 . adnec head offices .

Location: Dubai.UAE

Role : Main Interior Designer ,from Concept design to modeling and rendering and preparing full construction package.

ABEER AZZOUQA

SeniorArchitect

/Lead Interior designer

Interior Design

Location : JVC -DUBAI- UAE

Phone: +971 52 684 6501 Email: abeer.az@hotmail.com

Gender: Female Nationality: Jordanian D.O.B: 15/09/1992

Veloche Contracting And Technical Services LLC

Senior Architect

/Lead Interior designer

May 2022 - Present

INTERIOR PROJECTS:

11 . VILLA.

Location: Dubai.UAE

Role : Main Interior Designer ,from Concept design to modeling and rendering and preparing full construction package.

ABEER AZZOUQA

SeniorArchitect /Lead Interior designer

Interior Design

Location : JVC -DUBAI- UAE

Phone: +971 52 684 6501 Email: abeer.az@hotmail.com

Gender: Female Nationality: Jordanian D.O.B: 15/09/1992

Veloche Contracting And Technical Services LLC

Senior Architect /Lead Interior designer

May 2022 - Present

LANDSCAPE DESIGN:

12 . SOURCE CAFE.

Location: MEDICLINIC , AUH, UAE.

Role :Interior Design Partition Layout , Interior design ,Modeling Rendering, Material selection ,construction drawings with full details , coordination with mechanical and electrical engineers to achieve best solutions that best suits our design, Follow-upsite visits to solve any site problem and check that everything is going according to plan and design. fit-outs ,lighting and all finishes selection.

ABEER AZZOUQA

SeniorArchitect

/Lead Interior designer

Interior Design

Senior Architect

/Lead Interior designer

Feb2020 - Present

Location : JVC -DUBAI- UAE

Phone: +971 52 684 6501 Email: abeer.az@hotmail.com

Gender: Female Nationality: Jordanian D.O.B: 15/09/1992

Podium Architecture and Interiors

INTERIOR PROJECTS:

13. L'Aqula Cafe

Location: Al-hessah street, Dubai.UAE

Role :Architecture design from concept design phase up until last interior Detail, Rendering, Material selection ,construction drawings with full details , coordination with mechanical and electrical engineers to achieve best solutions that best suits our design, Follow-up site visits to solve any site problem . contacting all suppliers, providing them with detailed drawings all interior works.prepare the BOQ for each supplier . fit-outs ,lighting and all finishes selection.

ABEER AZZOUQA

SeniorArchitect

/Lead Interior designer

Interior Design

Senior Architect /Lead Interior designer

Location : JVC -DUBAI- UAE

Phone: +971 52 684 6501 Email: abeer.az@hotmail.com

Gender: Female Nationality: Jordanian D.O.B: 15/09/1992

Podium Architecture and Interiors

INTERIOR PROJECTS:

14.Dubai Majlis

Location: Dubai.UAE

Role : Main Interior Designer ,from Concept design to modeling and rendering and preparing full construction package.

ABEER AZZOUQA

SeniorArchitect

/Lead Interior designer

Interior Design

Senior Architect

/Lead Interior designer

Location : JVC -DUBAI- UAE

Phone: +971 52 684 6501 Email: abeer.az@hotmail.com

Gender: Female Nationality: Jordanian D.O.B: 15/09/1992

Podium Architecture and Interiors

INTERIOR PROJECTS:

15 . Nad El-shiba Villa

Location: Nadd el-shiba, Dubai.UAE

Role :Interior Design Partition Layout , Interior design ,Modeling Rendering, Material selection ,construction drawings with full details , coordination with mechanical and electrical engineers to achieve best solutions that best suits our design, Follow-upsite visits to solve any site problem and check that everything is going according to plan and design. fit-outs ,lighting and all finishes selection.

ABEER AZZOUQA

SeniorArchitect

/Lead Interior designer

Interior Design

Senior Architect

/Lead Interior designer

Location : JVC -DUBAI- UAE

Phone: +971 52 684 6501 Email: abeer.az@hotmail.com

Gender: Female Nationality: Jordanian D.O.B: 15/09/1992

Podium Architecture and Interiors

INTERIOR PROJECTS:

16 . Shehadeh commercial building

Location: Amman, Jordan

Role: Main facade Architect, Interior Designer ,preparing sketches for concept Interior Design to 3d modeling and preparing presentation for the client. Providing the electrical and mechanical team of the lighting layout, power layout, supply and return air outlets layout.

ABEER AZZOUQA

SeniorArchitect

/Lead Interior designer

Interior Design

Senior Architect

/Lead Interior designer

Location : JVC -DUBAI- UAE

Phone: +971 52 684 6501 Email: abeer.az@hotmail.com

Gender: Female Nationality: Jordanian D.O.B: 15/09/1992

Podium Architecture and Interiors

INTERIOR PROJECTS:

17. Bader residential appartments

Location: Amman, Jordan

Role: Main Interior Designer ,preparing sketches for concept Interior Design to 3d modeling and preparing presentation for the client.

The reception & dining have the most spectacular mountain views of the area with its famous cypress trees.

The entrance to the apartment is distinguished by its elegance and simple design.

ABEER AZZOUQA

SeniorArchitect

/Lead Interior designer

Interior Design

Senior Architect

/Lead Interior designer

Location : JVC -DUBAI- UAE

Phone: +971 52 684 6501 Email: abeer.az@hotmail.com

Gender: Female Nationality: Jordanian D.O.B: 15/09/1992

Podium Architecture and Interiors

INTERIOR PROJECTS:

19. Oman Masqat Villa

Location:Oman,Masqat

Role:resposible for full interior design scope from concept Interior Design phase to 3d modeling and preparing full detailed shop drawings .

ABEER AZZOUQA

SeniorArchitect

/Lead Interior designer

Interior Design

Senior Architect

/Lead Interior designer

INTERIOR PROJECTS:

Location : JVC -DUBAI- UAE

Phone: +971 52 684 6501 Email: abeer.az@hotmail.com

Gender: Female Nationality: Jordanian D.O.B: 15/09/1992

20. Abu shehab Offices

Location:Amman,Jordan

Role: resposible for full interior design scope from concept Interior Design phase to 3d modeling ,presentation and preparing full detailed shop drawings .Lighting and furniture selection , on-site follow up to solve any encountered problem.coordination with contractor ,structural and MEP engineers.

Podium Architecture and Interiors

ABEER AZZOUQA

SeniorArchitect

/Lead Interior designer

Interior Design

Architect /Interior designer

Feb2016 - Present

INTERIOR PROJECTS:

21. Dental clinic

Location:Amman,Jordan

Location : JVC -DUBAI- UAE

Phone: +971 52 684 6501 Email: abeer.az@hotmail.com

Gender: Female Nationality: Jordanian D.O.B: 15/09/1992

Role :resposible for full interior design scope from concept Interior Design phase to 3d modeling ,presentation and preparing full detailed shop drawings .Lighting and furniture selection , onsite follow up to solve any encountered problem.coordination with contractor ,structural and MEP engineers.

Podium Architecture and Interiors

ABEER AZZOUQA

SeniorArchitect

/Lead Interior designer

Interior Design

Architect

/Interior designer

Feb2016 - Present

Location : JVC -DUBAI- UAE

Phone: +971 52 684 6501 Email: abeer.az@hotmail.com

Gender: Female Nationality: Jordanian D.O.B: 15/09/1992

Podium Architecture and Interiors

INTERIOR PROJECTS:

22. Aljabali Villa

Location: Amman, Jordan

Role: resposible for full interior design scope from concept Interior Design phase to 3d modeling ,presentation and preparing full detailed shop drawings .Lighting and furniture selection , on-site follow up to solve any encountered problem.coordination with contractor ,structural and MEP engineers.ordination with mechanical and electrical engineers ,follow up with on-site engineers to solve any encountered problem.

ABEER AZZOUQA

SeniorArchitect

/Lead Interior designer

Interior Design

Architect

/Interior designer

Feb2016 - Present

INTERIOR PROJECTS:

22. wedding hall

Location:Amman,Jordan

Location : JVC -DUBAI- UAE

Phone: +971 52 684 6501 Email: abeer.az@hotmail.com

Gender: Female Nationality: Jordanian D.O.B: 15/09/1992

Role :resposible for full interior design scope from concept Interior Design phase to 3d modeling ,presentation and preparing full detailed shop drawings .Lighting and furniture selection , onsite follow up to solve any encountered problem.coordination with contractor ,structural and MEP engineers.

Podium Architecture and Interiors

ABEER AZZOUQA

SeniorArchitect

/Lead Interior designer

LANDSCAPE PROJECTS

Casa Milano (Danube Group)

Senior Architect /Lead Interior designer

1. Saher Villa

LOCATION: Nad Elshiba ,Grand Views

Location : JVC -DUBAI- UAE

Phone: +971 52 684 6501 Email: abeer.az@hotmail.com

Gender: Female Nationality: Jordanian D.O.B: 15/09/1992

June2021 - May 2022

ROLE :

Landscape design , modeling ,rendering ,preperation of construction Drawings

2. Al-Abeir residential tower

ROLE :

Landscape design , modeling ,rendering ,preperation of construction Drawings

Location : JVC -DUBAI- UAE

Phone: +971 52 684 6501 Email: abeer.az@hotmail.com

Gender: Female Nationality: Jordanian D.O.B: 15/09/1992

LANDSCAPE PROJECTS

June2021 - May 2022

LOCATION:

ROLE :

Landscape design , modeling ,rendering ,preperation of construction Drawings

ROLE :

Landscape design , modeling ,rendering ,preperation of construction Drawings

4. sajan villa 3. Zaabi Villa Reyad city, Abu Dhabi.UAE Casa Milano (Danube Group) Senior Architect /Lead Interior designer ABEER AZZOUQA SeniorArchitect /Lead Interior designer

ABEER AZZOUQA

SeniorArchitect

/Lead Interior designer L

Location : JVC -DUBAI- UAE

Phone: +971 52 684 6501 Email: abeer.az@hotmail.com

Gender: Female Nationality: Jordanian D.O.B: 15/09/1992

ANDSCAPE PROJECTS

Podium Architecture and Interiors

Senior Architect

/Lead Interior designer

December 2019 - Jan 2021

LANDSCAPE DESIGN:

5 . AL-BARSHA2 Villa

Location: Nadd el-shiba, Dubai.UAE

Role :Interior Design Partition Layout , Interior design ,Modeling Rendering, Material selection ,construction drawings with full details , coordination with mechanical and electrical engineers to achieve best solutions that best suits our design, Follow-upsite visits to solve any site problem and check that everything is going according to plan and design. fit-outs ,lighting and all finishes selection.

F.F.L ± 00.00 4000 1000 Green House GYM'S ROOM Outdoor BBQ area POOL AREA P.O BOX 9343 DUBAI U.A.E TEL +97144221864 PROJECT: CLIENT:- LOCATION DATE DRAWN BY CHECK BY APPROVED BY SITE PLAN- OF 3 FOR APPROVALSITE PLAN LAYOUT DIRECTOR GENERAL VILLA AL-BARSHA 2 DUBAI OPTION 01 F.F.L + 00.90 F.F.L ± 00.00 ± 00.00 F.F.L + 00.54 F.F.L + 00.54 F.F.L +00.15 F.F.L -00.20 F.F.L + 00.90 F.F.L + 00.90 F.F.L + 00.90 GUARD'S ROOM wpc pool decking area 6000 7226 Gas Tank Under Ground Water Tank Cat ladder Shower KITCHEN Laundry &IRON gas tank Storage WC MAID'S ROOM TOLT Towels&water 2000 Mech. room 5700 5900 2600 water sprout feature 17000 5200 2 cm porcelain tiles 1200x60 2800 1500 1900 4600 5700 6600 4100 2600 2200 2400 3200 5700 4700 F.F.L +00.15 F.F.L + 00.54 -0.90 CM SHALLOW -1.50 CM DEEP 1250 1600 1700

ABEER AZZOUQA

SeniorArchitect

/Lead Interior designer

Location : JVC -DUBAI- UAE

Phone: +971 52 684 6501 Email: abeer.az@hotmail.com

Gender: Female Nationality: Jordanian D.O.B: 15/09/1992

LANDSCAPE PROJECTS

Podium Architecture and Interiors

Architect /Interior designer

Feb2016 - Sep2021

Residential

6. Clement Bachi

Landscape

LOCATION:

Abdoun , Amman ,Jordan.

PROJECT DURATION : Oct 2019-Present

ROLE :Landscape design ,3d modeling ,visualization , construction drawings ,coordination with structural ,MEP Engineers,following up with site engineers.

Location : JVC -DUBAI- UAE

Phone: +971 52 684 6501 Email: abeer.az@hotmail.com

Gender: Female Nationality: Jordanian D.O.B: 15/09/1992

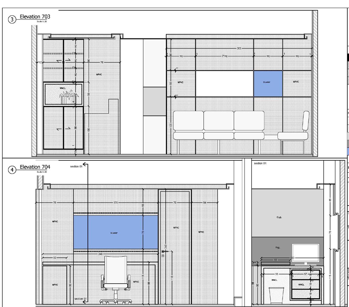
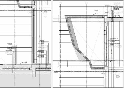
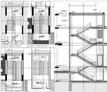
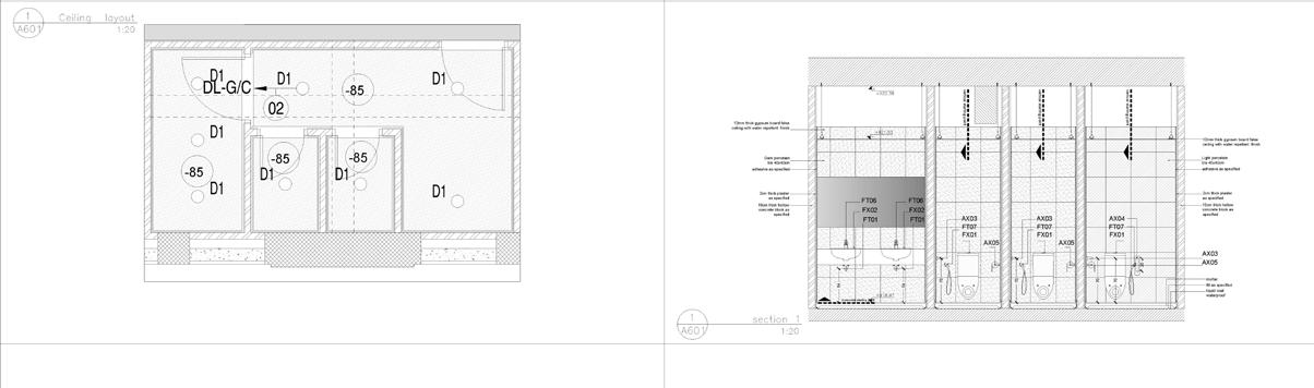
ABEER AZZOUQA SeniorArchitect /Lead Interior designer Construction Drawings

Location : JVC -DUBAI- UAE

Phone: +971 52 684 6501 Email: abeer.az@hotmail.com

Gender: Female Nationality: Jordanian D.O.B: 15/09/1992

ABEER AZZOUQA SeniorArchitect /Lead Interior designer Construction Drawings

Location : JVC -DUBAI- UAE

Phone: +971 52 684 6501 Email: abeer.az@hotmail.com

Gender: Female Nationality: Jordanian D.O.B: 15/09/1992

ABEER AZZOUQA SeniorArchitect /Lead Interior designer Construction Drawings

ABEER AZZOUQA

SeniorArchitect

/Lead Interior designer rendered videos

ANIMATED MOVIES LINKS:

Mr.george Villa: https://drive.google.com/file/d/1DaiqVWo6a1xLEhFOJMwlKpqoEVjQSEem/ view?usp=sharing

Kawam Villas: https://drive.google.com/file/d/1nsHklwrl52XywywhrG-mM0X2r3uSecdv/ view?usp=sharing

Alhakkak Villas: https://drive.google.com/ file/d/1OteYKPFVeUH1CXuVB7Q2RTHkq-x8Dgp5/view?usp=sharing

L'aquila Cafe Dubai: https://drive.google.com/file/d/1rycYm_u1k8_ZO91k6lylxyQLeZSxwIEA/ view?usp=sharing

Sakhrah Villa: https://1drv.ms/v/s!Aqpvt6nNggvSkhbX8yJj3yBZAaWN?e=dTLR91

Landscape project Dubai: https://drive.google.com/file/d/1S4J8yAMTU8EUBHiWMJNafqx-gEV6f0vq/ Landscape project Amman: https://1drv.ms/v/s!Aqpvt6nNggvSjWKwHRqSXbJPX5kh?e=IExGZiview?usp=sharing

Ajloun visitor center: https://1drv.ms/v/s!Aqpvt6nNggvSjWGR3SVHsmYQHJ8b?e=5KAH2Z

Abdoun Villas : https://1drv.ms/v/s!Aqpvt6nNggvSjV-MaPyHWWtnAeQQ?e=uAuGDo

Oman central Market : https://1drv.ms/v/s!Aqpvt6nNggvSjAi6f_1R62mcieVI?e=xfUBHF

PDF PROJECT SUBMISSION

SAMPLE LINKS:

Oman central Market : https://1drv.ms/b/s!Aqpvt6nNggvSjAd5qgpimmqy0lUl?e=zfIOis

Location : JVC -DUBAI- UAE

Phone: +971 52 684 6501 Email: abeer.az@hotmail.com

Gender: Female Nationality: Jordanian D.O.B: 15/09/1992

Construction Drawings

Construction Drawings

Wall sections & Toilet layout

Turn static files into dynamic content formats.

Create a flipbook
Issuu converts static files into: digital portfolios, online yearbooks, online catalogs, digital photo albums and more. Sign up and create your flipbook.