Internship Architectural Portfolio - Abdul Qayoom A

Page 1

ARCHITECTURAL

PORT FOLIO

WHAT ENTICE PEOPLE ?
Curriculum Vitae | 02
MIXED USE DEVELOPMENT
03 Content | 03
CULTURAL CENTRE

PHYSICAL MODELS

MISCELLANEOUS

MONTESSORI SCHOOL
04 06
05 Content | 04

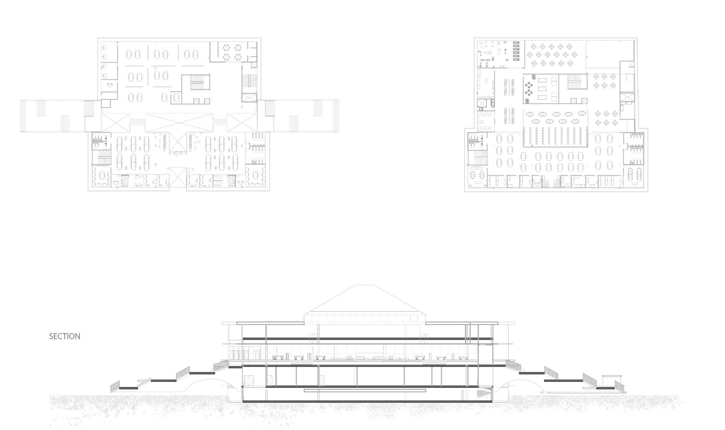
Co - Working Hub

ide areas, in-

Co-working hub | 05
Co-working hub| 06

Two different spaces

Form Generation

Intersecting two spaces to gain the common space

Intersecting two spaces to gain the common space

MASTER PLAN 1.
4.
Entrance Open working area 6. Play area 7. Open amphitheatre 8. Open cafeteria 9. Public Toilet
Co-working hub | 08 1 2 3 5 6 8
10. Geodesic space 11. Seating area
1 1 2 14 3 8 7 1 1
12. Open office area

COWORKING HUB

A CONCEPT OF SPATIAL ORGANIZATION IN ARCHITECTURE FOCUSED ON PLANNING AND ORGANISATION

Co-working hub | 10

CAFETERIA

A PLACE WHERE THE EMPLOYEES OF OFFICE CAN HAVE OPEN ENVIRONMENTAL WORKING AREA

Co-working hub | 12
OUTDOOR
GEODESIC SPACE  A OPEN SPACE FOR GATHERING, WORKING AND A MEETING SPACE Co-working hub | 11

Cultural Centre

Re-imagination of cultural centre that promotes culture and , dance, music,

To visualize and represent cultural spaces and incorporate the ange and trends

Cultural Centre | 14

Central space for social activities

Making a common space in Connection

Same voids sapce for both oors

Form Generation
Cultural centre | 16 1 2 14 15 3 10
6. Fire Escape 1 2 3 4 7 2 3 4 5 6 7 8 9 10 11 12 13 15 18
Cultural centre | 18
CULTURAL CENTRE AT MADURAI CITY  A PLACE FOR CULTURE  A CULTURAL PLATFORM TO EXHIBIT, EXPLORE AND LEARN AT MADURAI

Mixed Use Development

spaces, creat’ increas-

Mixed use development | 20
10 11 6 13
5 3 4 6 7 8 9 10 7 Mixed use development | 22
SECTION A A’ SECTION B B’ 1 2 5 1.
Theatre 1 5. Office staircase
VALUE
INCREASING MOBILITY BY IN CREASING
Mixed use development | 24
A MIXED USE DEVELOPMENT
CREATING
THROUGH INCREASED INTERACTION AND UTILITY OF URBAN ACTIVITIES,
PROXIMITY AND ACCESSIBILITY, ACCOMMODATING A DIVERSITY OF POPULATIONS

A MIXED USE DEVELOPMENT  CREATING VALUE THROUGH INCREASED INTERACTION AND UTILITY OF URBAN ACTIVITIES, INCREASING MOBILITY BY INCREASING PROXIMITY AND ACCESSIBILITY, ACCOMMODATING A DIVERSITY OF POPULATIONS

Mixed use development | 25

GARDEN  A PLANNED SPACE, SET ASIDE FOR THE DISPLAY AND ENJOYMENT OF PLANTS AND OTHER FORM OF NATURE, AS AN IDEAL SETTING FOR SOCIAL

Content | 02 Mixed use development | 26

Montessori School

, dance, music,

To visualize and represent cultural spaces and incorporate the ange and trends

Montessori school | 28
12 16 17 19 11 10 Montessori school | 29

MONTESORI SCHOOL AT METTUPALAYAM  A METHOD OF EDUCATION THAT IS BASED ON SELFDIRECTED ACTIVITY, HANDSON LEARNING AND COL LABORATIVE PLAY.

Montessori school | 30

Miscellaneous

Miscellaneous | 32
Digital arts

Physical Models

Sem: 08 Physical models Physical Model | 34
THANK YOU
LOVE TO HEAR FROM YOU +91 98949 34786 qayumag@gmail.com
WOULD

Turn static files into dynamic content formats.

Create a flipbook
Issuu converts static files into: digital portfolios, online yearbooks, online catalogs, digital photo albums and more. Sign up and create your flipbook.