ABDUL RAHMAN. TA | INTERNSHIP PORTFOLIO | CAAD COLLEGE

Page 1

FOLIO

ABDUL RAHMAN T A
2|
Less is

More -mies van der rohe

| 3

ABDUL RAHMAN

Ph.no: +917708363610

D.O.B: 16th Aug 2001

Age: 21 years Old Chennai

Clg Mail: abdulrahman.ta@caad.ac.in

Pvt mail: abdulakt2001@gmail.com

ABOUT ME

As an aspiring architect, I have a keen eye for detail and a passion for creating innovative and functional designs. I possess excellent technical skills, including proficiency in various architectural software programs and drafting techniques. In addition, I have a strong understanding of design principles and the ability to think critically to solve complex design problems. Throughout my academic journey, I have demonstrated a commitment to excellence by consistently producing high-quality work and participating in extracurricular activities that showcase myvv creativity and leadership skills.

4|

LANGUAGES

HOBBY

Traveling

Gaming

Editing

Listining to Music

EDUCATION

Muna Australian Matriculation higher secondary school

Parangipettai | LKG to 12th Standarad | Completed at 2019

CAAD-Chennai Academy of Architecture and Design

AutoCad Photoshop

WORKSHOP

S.W.A.T - Manual Workshop

Lines to Lens- photography

Revit

Indesign

Software-Revit

Roots- Urban Design

Rhino

Premiere Pro

LECTURE SERIES

Lecture at college

Design of Green Building Ar.H.Gowri

Sketchup

Illustrator

Going Beyong Efficiency... by Ar.Kimmy El-Dash

Reclaim Streets for Public... by Ar.Nashwa Naushad

Preception of Public Space... by Ar.Helena Szewiola

Lumion

Vray

Ground Conditions on capital Centralism...by Ar.Victor Sardenberg

Percieved Geometries... by Ar. Woon Chung Yen

Enscape

Blender

Architecture and the Senses of Encounter...by Ar.Daniel Corsi

Co-Creating Circular cities...by Ar.Bala Nagendran.M

| 5
English Tamil SKILL
6| CONTEXT >> TRANQUIL FAREWELL NID THARAMANI CREMATORIUM SEM:07
NO: 09 NID SEM:07
: 15 01 02
PG
PG NO

PG NO: 21

LOFT

PG NO: 27

PG NO: 35

| 7
HARMONY HEIGHTS MISCELLANEOUS
SAVOR
BIOPHILIC SEM:06
APARTMENT SEM:04
03 04 05

BUILDING TYPE: CREMATORIUM

SITE AREA:34508 SQ.M/8.5 ACRES

SITE:KANNAMAPETTAI,CHENNAI

THE CREMATORIUM FOR THE MUSLIM COMMUNITY IS A TESTAMENT TO THE POWER OF ARCHITECTURE TO HONOR DIVERSE TRADITIONS AND CREATE SPACES THAT OFFER SOLACE AND COMFORT. IT SERVES AS A PLACE OF UNITY, WHERE THE PAST AND THE PRESENT HARMONIOUSLY CONVERGE, ALLOWING FAMILIES AND FRIENDS TO BID FAREWELL TO THEIR LOVED ONES IN AN ENVIRONMENT THAT RESPECTS THEIR RELIGIOUS AND CULTURAL VALUES. WITH EVERY DETAIL CAREFULLY CONSIDERED, THIS CREMATORIUM STANDS AS A HAVEN OF SERENITY, A SPACE THAT EMBODIES THE TIMELESS TRADITIONS OF THE ISLAMIC FAITH WHILE PROVIDING SOLACE IN THE FACE OF LOSS.

| 9 01
LUMION PHOTOSHOP
TRANQUIL FAREWELL REVIT

CONCEPT DEVELOPMENT

YIN AND YANG OR YIN-YANG REFERS TO A CONCEPT ORIGINATING IN ANCIENT CHINESE PHILOSOPHY WHERE OPPOSITE VFORCES ARE SEEN AS

THE BALANCE OF LIFE CAN BE DIVIDED INTO TWO DISTINCT REALMS, EACH REPRESENTING CONTRASTING DESTINATIONS: THE ETHEREAL REALM OF HEAVEN AND THE TUMULTUOUS ABYSS OF HELL.

10|
| 11
SECTION
SECTION-AA’ SECTION-BB’

ELEVATIONS

12|
| 13

NID THARAMANI

BUILDING TYPE: INSTITUTIONAL BUILDING

SITE AREA: 34000 SQ.M/9.9 ACRES

SITE: TARAMANI,CHENNAI

NATIONAL INSTITUTE OF DESIGN (NID), A CAMPUS THAT EXEMPLIFIES THE HARMONIOUS FUSION OF CREATIVITY, INNOVATION, AND FUNCTIONALITY. NESTLED AMIDST LUSH GREEN SURROUNDINGS, THE NID CAMPUS IS A TESTAMENT TO THE INSTITUTE’S COMMITMENT TO NURTURING TALENT AND FOSTERING A VIBRANT DESIGN COMMUNITY.

AS YOU STEP ONTO THE CAMPUS, YOU ARE GREETED BY A SYMPHONY OF ARCHITECTURAL MARVELS THAT SEAMLESSLY BLEND MODERNITY WITH ELEMENTS OF TRADITIONAL DESIGN. THE CAMPUS DESIGN EMBODIES THE ETHOS OF NID, WHERE CREATIVITY KNOWS NO BOUNDS AND DESIGN IS CELEBRATED IN ALL ITS FORMS.

REVIT ENSCAPE PHOTOSHOP

| 15
02

SITE STUDY

CHENNAI’S CLIMATE IS CHARACTERIZED BY HOT AND HUMID SUMMERS, WITH TEMPERATURES OFTEN SOARING ABOVE 40 DEGREES CELSIUS (104 DEGREES FAHRENHEIT). THE SUMMER SEASON TYPICALLY LASTS FROM MARCH TO JUNE. MONSOON SEASON ARRIVES IN LATE JUNE OR EARLY JULY AND LASTS UNTIL SEPTEMBER, BRINGING HEAVY RAINFALL AND PROVIDING RELIEF FROM THE SCORCHING HEAT

16|
| 17

EXTERIOR VIEW OF LIBRARY

18|

ACADEMIC BLOCK

Exterior View

LIBRARY

Interior View

| 19

SAVOR

BUILDING TYPE: INSTITUTIONAL BUILDING

SITE AREA: 34000 SQ.M/9.9 ACRES

SITE: TARAMANI,CHENNAI

IN THIS SANCTUARY OF DESIGN, EVERY ELEMENT IS THOUGHTFULLY CURATED TO EVOKE A SENSE OF HARMONY AND WELL-BEING. SOFT, EARTHY TONES AND NATURAL MATERIALS CREATE A GROUNDING AMBIANCE

BIOPHILIC DESIGN GOES BEYOND AESTHETICS. IT SEEKS TO NOURISH THE MIND, BODY, AND SOUL. ABUNDANT NATURAL LIGHT FILTERS THROUGH LARGE WINDOWS, ENERGIZING AND UPLIFTING, WHILE LUSH GREENERY SURROUNDS YOU, PURIFYING THE AIR AND CREATING A REFRESHING OASIS. THIS BIOPHILIC DESIGN NOT ONLY AWAKENS YOUR SENSES BUT ALSO SUPPORTS YOUR WELL-BEING. IT PROMOTES A HEALTHIER LIFESTYLE, REDUCING STRESS AND ENHANCING PRODUCTIVITY. IT CREATES SPACES FOR RELAXATION, REFLECTION, AND REJUVENATION, ALLOWING YOU TO RECONNECT WITH YOUR NATURAL ESSENCE.

| 21 03
REVIT LUMION PHOTOSHOP
FLOOR PLAN
FLOOR PLAN
FLOOR PLAN
PLAN GROUND
FIRST
SECOND

CONCEPT DEVELOPMENT

ELEVATION

SOUTH ELEVATION

WEST ELEVATION

24| OPEN SPACE Exterior
AND WATING Interior
View RECEPTION
view
| 25
MAIN ENTRY TO THE BUILDING Exterior View

HARMONY HEIGHTS

A LOFT APARTMENT NESTLED ATOP AN EXISTING HOUSE TERRACE. WITHIN THE COMPACT SPACE OF 2.5 X 5 METERS BLOCKS, A WORLD OF POSSIBILITIES UNFOLDS. STEP INTO THE OPEN-PLAN LIVING CUM DINING AREA, FLOODED WITH NATURAL LIGHT AND ADORNED WITH SLEEK, CONTEMPORARY FURNISHINGS. THE KITCHEN BOASTS EFFICIENT DESIGN, MAXIMIZING EVERY INCH TO CREATE A CULINARY HAVEN. RETREAT TO THE COZY BEDROOM, A SANCTUARY OF TRANQUILITY, WHILE THE KIDS’ ROOM SPARKS IMAGINATION AND PLAYFULNESS. FIND FOCUS IN THE DEDICATED WORKSPACE, WHERE PRODUCTIVITY MEETS CREATIVITY. IN THIS INGENIOUSLY CRAFTED LOFT APARTMENT, EVERY CORNER TELLS A STORY OF INNOVATIVE DESIGN AND MODERN LIVING, OFFERING COMFORT AND STYLE IN PERFECT HARMONY.

| 27 04
REVIT LUMION PHOTOSHOP

CONCEPTUAL MODEL

OPTION 1

OPTION 2

OPTION 3

| 29
KIDS ROOM BEDROOM
CUM DINING KITCHEN
TOILET
WORKSPACE LIVING
PLAN
FLOOR PLAN
FLOOR PLANS GROUND FLOOR
FIRST

OHP OVERLAY

CONSTRUCTION DETAILS
| 31 SECTIONS 01 GRD 02 GRD FLOOR 0.45 m 03 FIRST FL 2.95 m Level 3 5.45 m 01 GRD 0.00 m 02 GRD FLOOR 0.45 m 2.95 m Level 3 5.45 m Level 2
SECTION-AA’ SECTION-BB’

WORK SPACE

Interior View

LIVING CUM DINING

Interior view

32|
| 33
34|
| 35
05 MISCELLANEOUS
36|

VALLUVARPURAM HOUSING

LIG BLOCK

BUILDING TYPE: RESIDENTIAL

SITE AREA: 58289 SQ.M/14.4

ACRES SITE: TIRUVALLUR,CHENNAI

UP DN 1 2 3 4 5 6 25 m² living cum kitchen 7 m² Bedroom 3 m² toilet 25 m² Living cum kitchen 8 m² Bedroom 3 m² Toilet 4.01 2.42 9.02 13.83 4.99 9.17 7 A A' B B' DN 1 2 3 4 5 6 7 22 m² Living cum kitchen 11 m² Bedroom 4 m² Toilet 8 m² Bedroom 3 m² Toilet 20 m² Living cum kitchen 3.87 A A' B B' Balcony Balcony
FIRST FLOOR PLAN
GROUND FLOOR PLAN
| 37
38|
| 39

GROUND FLOOR PLAN

FIRST FLOOR PLAN

40| UP DN 13 m² LIVING CUM KITCHEN 13 m² LIVING CUM KITCHEN 3 m² TOILET 9 m² BEDROOM m² BEDROOM 13 m² LIVING CUM KITCHEN m² BED ROOM 3 m² TOILET 13 m² LIVING CUM KITCHEN 3 m² TOILET m² BEDROOM 3 m² TOILET 2.94 A A' B B' A 1 2 3 4 5 B C D E DN A A' A A' 13 m² LIVING CUM KITCHEN 13 m² LIVING CUM KITCHEN m² TOILET 9 m² BEDROOM 13 m² LIVING CUM KITCHEN 9 m² BED ROOM 3 m² TOILET 13 m² LIVING CUM KITCHEN 3 m² TOILET 8 m² BEDROOM m² TOILET 9 m² BEDROOM YOGA SPACE GYM 24.01 m² A B C D E 1 2 3 4 5
EWS BLOCK

THE EWS BLOCK IS MORE THAN JUST A COLLECTION OF HOUSING UNITS; IT IS A VIBRANT NEIGHBORHOOD THAT FOSTERS A STRONG SENSE OF COMMUNITY. HERE, RESIDENTS COME TOGETHER, SUPPORTING AND UPLIFTING ONE ANOTHER, SHARING STORIES OF TRIUMPH AND LENDING A HELPING `HAND. THE COURTYARD SERVES AS A GATHERING PLACE, ALIVE WITH LAUGHTER AND SHARED EXPERIENCES, CREATING BONDS THAT TRANSCEND SOCIOECONOMIC BARRIERS.

| 41

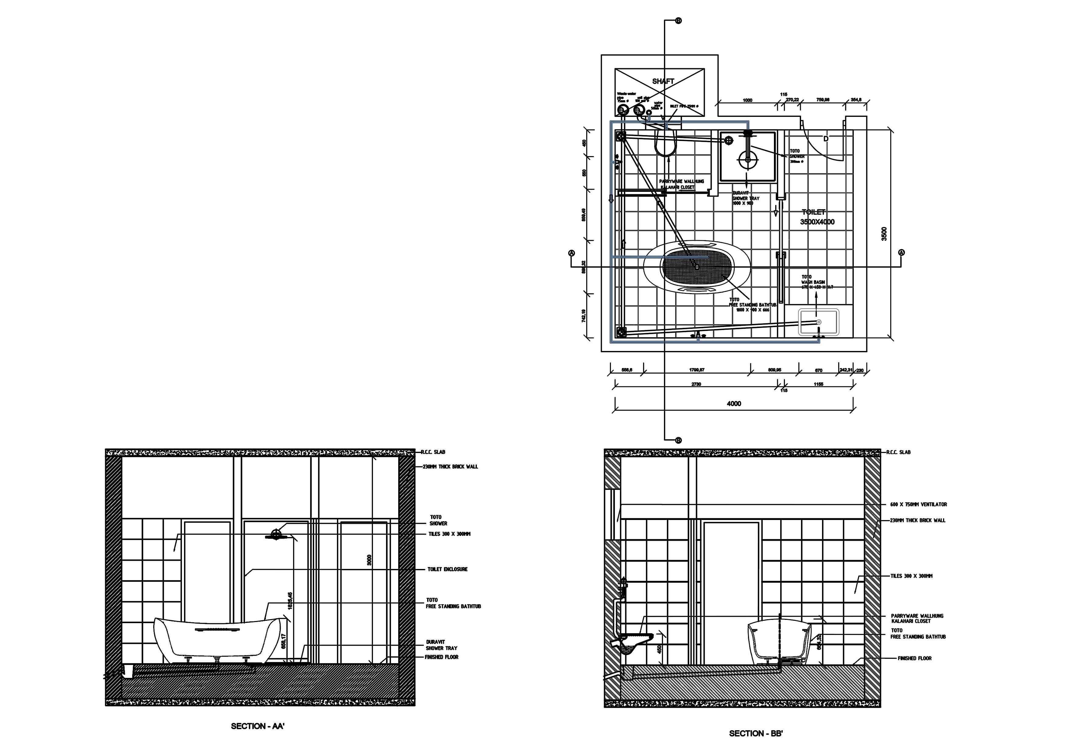
06

DETAIL DRAWINGS

SEM: 07

SOFTWARE: AUTOCAD

TOILET DETAILING

BEDROOM DETAILING KITCHEN DETAILING

PHOTOSHOP MANIPULATION

44|
| 45
46| Email: abdulrahman.ta@caad.ac.in Ph.no: 7708363610

Turn static files into dynamic content formats.

Create a flipbook
Issuu converts static files into: digital portfolios, online yearbooks, online catalogs, digital photo albums and more. Sign up and create your flipbook.