Portfolio 2

Page 1

PORTFOLIO

SELECTED WORK ABDELRAHMAN AHMED

Abdelrahman Ahmed

I believe in the hidden life of architecture. That everything builds its own structure and that everything is constructed to neighbour everything else, and the world forms one giant cascade of living fabric.

March 25th 1996

Egyptian Sharm Alshiekh, Egypt

Abdelrahman.ahmed.elborady@gmail (+20) 109-888-1443

https://www.behance.net/abdelrahmab57e

https://instagr.am/abdelrahman_elborady

Curriculum Vitae

Education

2003-2015 Manara/Egyptian British International School

2015-2020 German University in Cairo

2018, 2019 GUC Berlin ( 2 Semesters Abroad )

Work Experience

2018 ( 3 Month ) Archiform Design Agency Internship

2019 ( 2 Month ) Emerald for Realestate Development

2019 ( 2 Month ) Egyptian for Housing & Development

2020 ( Present ) Freelance Graphic Design

2021 ( Present ) Sunny Beach Development

Program Proficiency

Autodesk Autocad, Autodesk 3ds Max, Autodesk Revit, Rhinocerous 3D, Grasshopper, Adobe Photoshop, Adobe Illustrator, Adobe Indesign, Sketchup, Lumion, Vray, Corona.

Language Proficiency

English, Arabic ( Fluent )

German ( Conversational )

Italian ( Beginner )

Achievement

2020 B.Arch

2022 M6 Masterclass

Undergraduate Thesis P roject Table
Content Undergraduate Thesis Project 01 Cubist Vocational School 02-07 Academic Projects 02 Neue Bauakademie 08-11 03 Shimmering Glass Car Exhibit 12-15 04 The Green Expanse 16-19 Professional & Freelance Projects 05 Royal Sunny Beach Design 20-23 06 Dahab Commercial Centre 24-25 07 Interior Design 26-31 08 Conceptual Imitation 32-35
of

01

Cubist Vocational School

Year Location 2019 Hurghada, Egypt

Type

Undergraduate Thesis Project

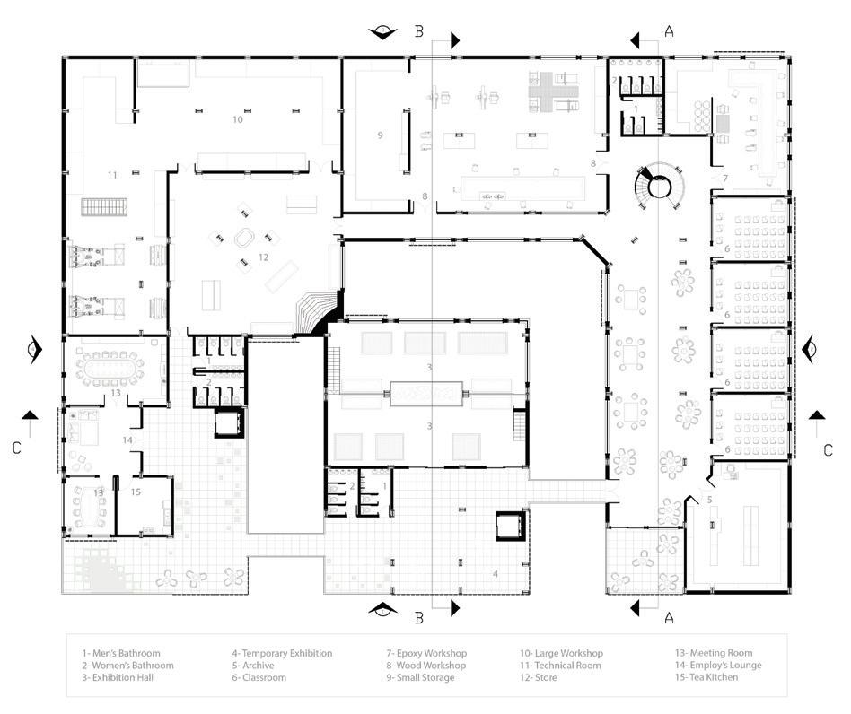
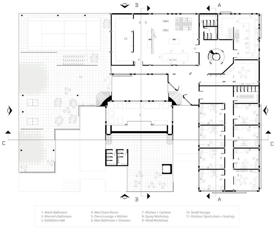
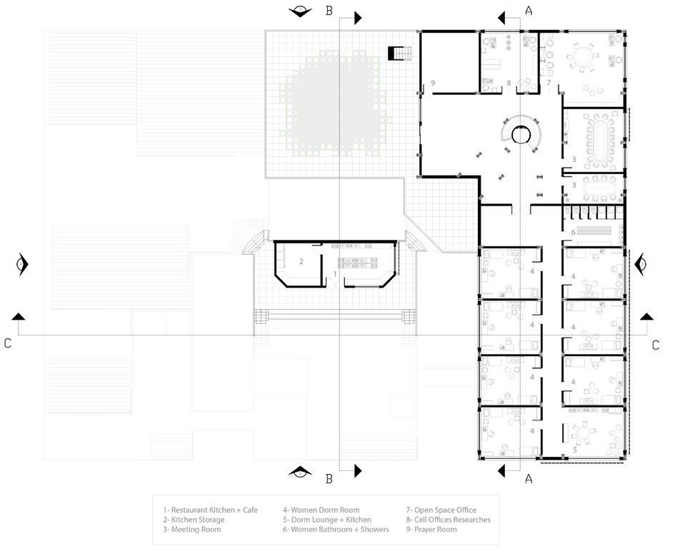
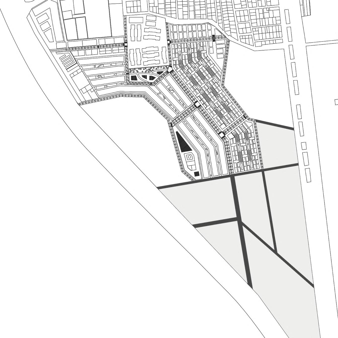
Creating a vocational school that respects the surrounding architecture typologies and site history, understand the atmosphere and the culture of the area, offers adequate circulation and functional space programming that encompasses the relations between different functions.

Hurghada proved to be a diverse site of cultures and capable of housing different architectural styles in one building. The preferred approach was creating a vernacular design that incorporates the materiality of traditional hurghada and adheres to the sun direction and wind passage.

2 _____ Hurghada Vocational School
____ 3 Undergraduate Thesis P roject
4 _____ Hurghada Vocational School
____ 5 Undergraduate Thesis P roject
6 _____ Hurghada Vocational School
____ 7 Undergraduate Thesis P roject

02 Neue Bauakademie

Year Location 2018 Berlin, Germany

Type

Academic Project

Designing a new bauakademie on the site of the old schinkel bauakadmie, one that would respect the history of the site and the typology of architecture surrounding the site, and integerate schinkel’s style in architecture with a more modern approach. Karl friedrich schinkel’s architectural style is one that enjoys deisplaying strong patterns to the architecture and respects geometrical ratios and classic orders.

The route chosen to build the design was recreating the pattern in a transparent and open arrangement.

The structural approach of the building depended on creating a dense core capable of elevating the basic structure of the building. The building itself is built as large trusses carrying slabs and the life of the building passes throught the structure.

8 _____
Neue Bauakademie
____ 9 Academic P rojects
10 _____ Neue Bauakademie
____ 11 Academic P rojects

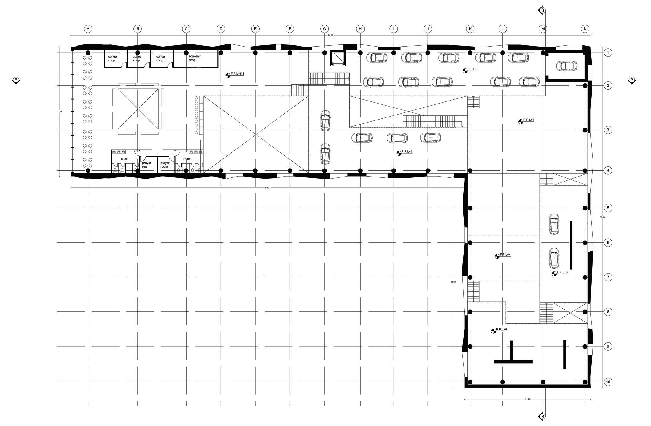
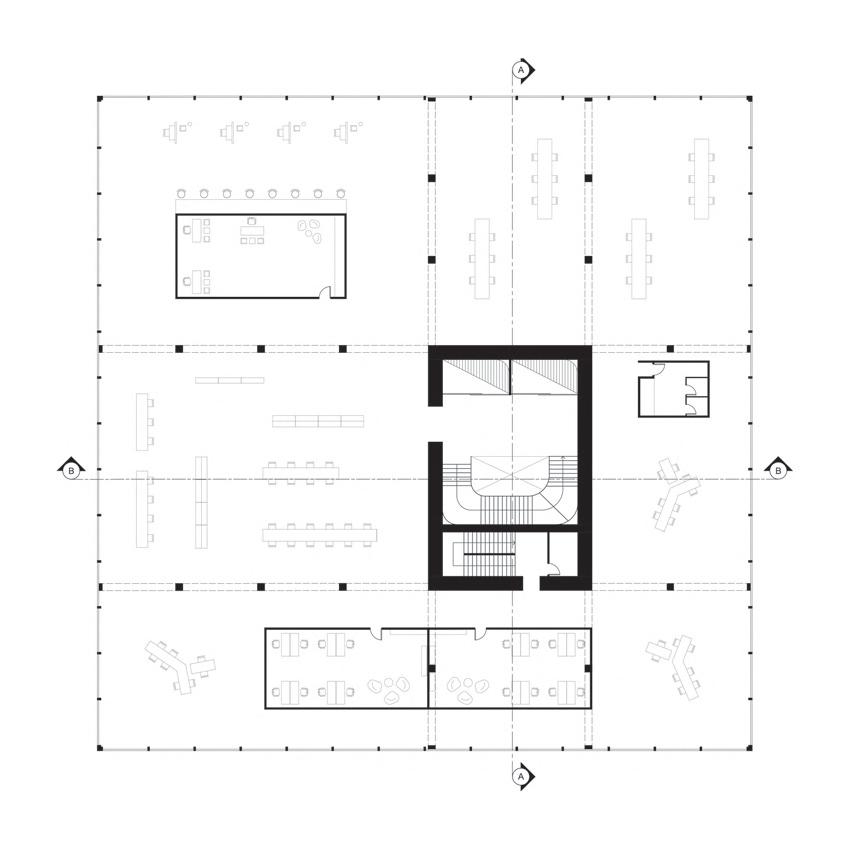
Shimmering Glass Car Exhibit

Year Location 2017 New Capital, Egypt Type Academic Project

Creating a car exhibit that has a distinguishable facade and architecture that can work as a landmark facing the main street.

The site is still young and in development and the expected surroundings are highrise buildings and commercial centers.

The chosen method to approach the design is creating an open free flowing interior design that ensures the visibility of the showcased merchandise throughout the whole building, along with a mechanical ceter that doubles as a teaching center and is also visible for visitors and a youth entertainment center.

The prefered facade design was polygonal cutouts that created a sense of wonder and availability to the exhibit.

12 _____ 03
Shimmering Glass Car Exhibit
____ 13 Academic P roject
14 _____ Shimmering Glass Car Exhibit
____ 15 Academic P rojects

The Green Expanse

Year Location

2017 Qalubeya, Egypt

Type Academic Project

Developing an urban expansion that is capable of containing the increasing population of the city of Qaha.

The design would have to integerate the agricultural nature of the city of qaha while considering the units created would have to be able to contain larger density than the units already built in the city. The most explored aspect of the city of qaha is the effect of sunlight and how the city developed to deal with it.

One retitive method was the use of greenery which are not visible from aireal perspective but is hidden in the street level providing needed shading.

16 _____
04
The Green Expanse
____ 17 Academic P rojects

The more interesting method was how the city developed to have tighter more compact streets and structures creating it’s own self shading elements, since the buidings are mostly 2-3 stories tall the complexity of the compact structure didn’t create a claustrophobic feel to the streets.

So the challege was creating a compact city that is much more dense yet doesn’t clog up the open air and constrict the freedom of the city.

The design created, aimed at creating a replicable module that can stacked several times above itself and can connect either through inner passage or bridges that create a living fibre to the complex.

The design integrates social areas and greenery connecting the module closer together and does encompass a range of functions alongside the residential partitions.

18 _____
The Green Expanse
____ 19 Academic P rojects

05 Royal Sunny Beach Design

Year Location

2021 Sharm Alshiekh, Egypt

Type Professional Project

The first task i was given when joining the construction company. The task was to redesign the used urban landscape and remodel it to fit the typology and the pattern of the buildings.

Work done

Conceptualization of the project.

Designing the entire layout

Modelling and rendering the shots

20 _____
Royal Sunny Beach Design
____ 21 Professional & Freelance
22 _____ Royal Sunny Beach Design
____ 23 Professional & Freelance
360 Shot 1 360 Shot 2 360 Shot 4 Promotional video 360 Shot 3

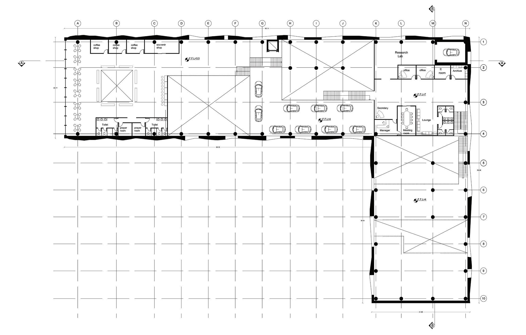
06 Dahab Commercial Centre

Year Location

2021 South Sinai, Egypt

Type Professional Project

Tasked with recreating the feels and the vibes of Soho Square, Sharm el Sheikh. A piece of land with given to us to design an urban landscape for multiple uses for the project.

The site required careful consideration for it’s sloped nature , for that purpose the site was designed as a large stepped area.

Work done:

Complete design of the landscape and zoning of the land. Complete modelling of the project.

24 _____
Dahab Commercial Center
____ 25 Professional & Freelance

07 Interior Design

Year Location

2021 Sharm Alshiekh, Egypt

Type Professional & Freelance Projects

Several projects worked on as a part of an interior design firm and several other freelance projects and trials with interior design and visualization.

26 _____ Interior
Design
____ 27 Professional & Freelance
28 _____ Interior Design
____ 29 Professional & Freelance
30 _____
Interior Design
____ 31 Professional & Freelance

Conceptual Imitations

Year 2021

Type Freelance Projects

A varity of projects which are conceptual in nature and imitate some artist works

1- Imitaion of Mi Ritorni in Mente by Cristina La Porta

2- Imitation of Biku Treehouse in Bocas del Toro by Baca Architects ( Final Project for M6 Masterclass 33 )

3- Imitation of Mexican House by Uli Architects

32 _____
Cover Photo by:
____ 33 Professional & Freelance 1
34 _____ 2 3 Conceptual Imitations
____ 35 Professional & Freelance

Turn static files into dynamic content formats.

Create a flipbook
Issuu converts static files into: digital portfolios, online yearbooks, online catalogs, digital photo albums and more. Sign up and create your flipbook.