Abdallah Mouselly's Portfolio 2022

Page 1


Portfolio

INTRODUCTION

I am an Urban Planner and Resilience Consultant with a Master's degree in Sustainable Critical Infrastructure from Khalifa University. My work focuses on designing resilient, sustainable, and people-centered urban environments. I bring a multidisciplinary approach to urban development, blending strategic planning, GIS-based analysis, policy research, and spatial design.

Throughout my career, I have contributed to transformative projects across the Middle East, including a confidential giga-city development in Saudi Arabia, where I helped shape security and resilience frameworks at the city scale. My portfolio reflects a commitment to integrating infrastructure, resilience, accessibility, and livability into holistic urban systems.

I am passionate about creating cities that are adaptable, inclusive, and future-ready—balancing innovation with practicality through collaboration, research, and thoughtful design.

CURRICULUM VITAE

EDUCATION

January 2021

December 2022

September 2015

July 2020

EXPERIENCE

June 2023

Present

Jan 2023

May 2023

January 2020

December 2022

Master in Sustainable Critical Infrastructure Planning

Khalifa University CGPA: 3.74

Bachelor’s in Architectural Engineering

University of Sharjah CGPA: 3.78

October 2020

December 2020

Urban Crisis & Risk Consultant (23 Months)

Control Risks (Middle East) Limited - Dubai, UAE

• Developed a city-wide security and resilience master plan and city security framework plan for Qiddiya City, covering 256 km², serving over 600,000 residents and 2 million visitors annually.

• Optimized security asset distribution through GIS and data-driven analysis and spatial modeling, improving emergency response times by 50%.

• Created conceptual layouts and schematic designs for future KSA MOI and PSS facilities, integrated into city district masterplans.

• Led coordination with City Development Master Planners (i.e. AS+P) to ensure resilience strategies aligned with land use and infrastructure frameworks.

• Authored technical reviews of design submissions for compliance with Qiddiya’s planning standards and operational goals.

Real Estate Advisory (5 Months)

fam Properties - Dubai, UAE

• Analyzed urban development trends, zoning frameworks, and investment strategies across Dubai’s key districts.

• Negotiated strategic property transactions, including Downtown Dubai plot deals, applying regulatory knowledge and urban growth insights.

• Built a trusted network of investors by delivering data-driven market analyses linked to future urban development plans.

Urban Planning Researcher (24 Months)

Khalifa University - Abu Dhabi, UAE

• Conducted spatial and morphological analysis of suburban neighborhoods in Abu Dhabi and Dubai to enhance accessibility and pedestrian connectivity.

• Key Findings:

- Suburban redevelopment requires a combination of alleyways and street networks for effective walkability.

- Single-design interventions are insufficient—urban frameworks must integrate multiple morphological attributes.

- Published research in a Q1-ranked journal and contributed to a leading academic book on sustainable urban design.

- Led field research campaigns, conducted stakeholder interviews, and produced GIS-based urban simulations using Rhino and ArcGIS.

Junior Architect Intern (3 Months)

Innovo Group - Dubai, UAE

• Created and modified Revit families and templates for use in future projects.

• Developed architectural plans for the ASU Factory Project.

• Designed the conceptual model for the ENBD Parking Project.

ACTIVITIES & CERTIFICATES

September 2019

LEED Green Associate

Green Business Certification Inc. (GBCI) 11328401-GREEN-ASSOCIATE

APA Member

May 2023

September 2019

American Planning Association Member ID: 385611

KEF Prefab Home Design Challenge 2019

KEF Holdings

PUBLICATIONS

October 2022

Planning in the Age of Pandemics: Renewing Suburban Design

Sustainable Cities and Society Journal

This study offers an alternative, evidence-based suburban design model for post-pandemic cities.

March 2022

User Satisfaction of the Majaz Waterfront Park in Sharjah City

2022 Advances in Science and Engineering Technology International Conferences (ASET) This study investigates the visitors’ satisfaction with Al Majaz Waterfront Park using the pull and push factor approach.

Nov 2024

Rethinking Suburbs: Morphological and Network Analysis Review

Contributed to the book contents in collaboration with Urban Research Studio at Khalifa University

SKILLS & INTERESTS

Modeling Tools

ArcGIS · QGIS · Sketch Up · AutoCAD · Revit · Lumion · Enscape · Rhino

Graphics

Adobe InDesign · Illustrator · Photoshop

Soft Skills

Communication · Teamwork · Problem-solving · Time management · Critical thinking · Data Management

Professional Skills

Crime Prevention Through Environmental Design (CPTED) · Risk-based Planning · Risk Assessment

Languages Arabic (Native) · English (Full Proficiency )

p. 8 | Urban Resilience Planning | Qiddiya City

p. 10 | Urban Planning | The Future of Suburbia

p. 18 | Urban Design & Architecture | Dubai Innovation District

p. 28 | Architecture | Modern Arts Museum

p. 34 | Architecture | Al Wasl Hotel

Qiddiya City: City Security Framework Plan

Location: Dhurma, KSA

Year: 2023-Present

Category: Urban Planning & Resilience Project

As part of a confidential city development in Saudi Arabia (256 km² urban area, projected 600,000+ residents, 2 million annual visitors), I contributed to the development of a city-wide security and resilience framework. Developed a strategic model for security asset distribution across diverse land uses and risk profiles, using GIS-based spatial analysis, risk mapping, and accessibility modeling. Supported the integration of resilience strategies into the Land Use Budget and District Development Programs by collaborating closely with city master planners. Designed conceptual layouts for public safety facilities and coordinated their preliminary integration into district plans. Contributed to the development of a city resilience guideline document outlining security, emergency response, and accessibility standards for future asset planning. Reviewed masterplan submissions to ensure alignment with the resilience and security framework developed for the city. The project aimed to create a benchmark for safe, sustainable, and adaptable urban environments, aligning with global best practices in resilience, mobility, and smart infrastructure.

Client: Qiddiya Investment Company

The Future of Suburbia: The Case of Dubai

Location: Dubai, UAE

Year: 2021-2022

Category: Urban Planning Project

There is an urgent need to design cities to accommodate pandemic-control measures while attending to people’s daily needs, including access to outdoor spaces for physical, social, and mental well-being. These requirements for post-pandemic cities have positioned suburbs as a more attractive and viable alternative to compact urban cores. However, the conventional suburban model of low-density, automobile- centric development with fragmented streets cannot foster high levels of accessibility within neighborhoods. This project offers an alternative, evidence-based suburban design model for post-pandemic cities.

Urban Planner: Abdallah Mouselly

Line Manager: Professor Khaled Al Awadi

Al Barsha Sample 2

Existing Layout

Streets & Alleys

Sample Scale

Morphological Attributes

Plots Size: 45 x 30 m Count: 1184 Plots

Density: 4.625

Streets Length: 62.46 km

Intersections: 306

Intersection density: 1.19

Alleys Length: 17.25 km

Intersections: 32

Intersection density: 0.125

Streets & Alleys Length: 79.69 km

Intersections: 593

Intersection density: 2.32

Design Iteration

Existing Layout

Sample Scale

Sample Scale

Morphological Attributes

Morphological Attributes

Plots Size: 25 x 30 m

Plots Size: 45 x 30 m

Count: 2341 Plots

Count: 1184 Plots

Density: 9.14

Density: 4.625

Streets Length: 75 km

Streets Length: 62.46 km

Intersections: 453

Intersections: 306

Intersection density: 1.77

Intersection density: 1.19

Alleys Length: 8.80 km

Alleys Length: 17.25 km

Intersections: 0

Intersections: 32

Intersection density: 0.0

Intersection density: 0.125

Streets & Alleys Length: 83.62 km

Streets & Alleys Length: 79.69 km

Intersections: 605

Intersections: 593

Intersection density: 2.36

Intersection density: 2.32

Design Iteration

Al Barsha Sample 2
Al Barsha Sample 2

Al Barsha Sample 2

Existing Layout

Existing

Layout

Design Iteration

Design Iteration

Sample Scale

Morphological Attributes

Plots Size:

Plots Size: 45 x 30 m Count: 1184 Plots

Density: 4.625

Streets Length: 62.46 km

Intersections:

Intersection

Intersections: 306

Intersection density: 1.19

Alleys

Alleys Length: 17.25 km

Intersections: 32

Intersections: 32

Intersection density: 0.125

Streets & Alleys Length: 79.69 km

Intersections: 593

Streets & Alleys Length: 79.69 km

Intersection density: 2.32

Intersections: 593

Intersection density: 2.32

Sample Scale

Morphological Attributes

Plots

Plots Size: 25 x 30 m

Count: 2341 Plots

Density: 9.14

Streets Length: 75 km

Intersections: 453

Intersections: 453

Intersection density: 1.77

Alleys Length: 8.80 km

Intersections: 0

Alleys Length: 8.80 km

Intersection density: 0.0

Intersections: 0

Intersection density: 0.0

Streets & Alleys Length: 83.62 km

Intersections: 605

Streets & Alleys Length: 83.62 km

Intersection density: 2.36

Intersections: 605

Intersection density: 2.36

Al Barsha Sample 2

Al Warqa Sample 2

Al Barsha Sample 2

Existing Layout

Streets & Alleys

length: 78.84 km

Plots Width: 30 m Length: 36 m Total count: 1302 Plots Plot density: 5.09

Park & Mixed-use

Warqa Sample 2 Alleys

Design Iteration

Existing Layout

Design Iteration

intersections: 36 Intersection density: 0.14 Blocks Block size: 300 m x 83 m

length: 15.11 km

Sample Scale

Morphological Attributes

Plots Size: 45 x 30 m Count: 1184 Plots

Density: 4.625

Streets Length: 62.46 km

Intersections: 306

Intersection density: 1.19

Alleys Length: 17.25 km

Intersections: 32

Intersection density: 0.125

Streets & Alleys Length: 79.69 km

Intersections: 593

Intersection density: 2.32

Sample Scale

Sample Scale

Morphological Attributes

Morphological Attributes

Plots Size: 36 x 30 m

Plots Size: 25 x 30 m

Count: 2341 Plots

Count: 1302 Plots

Density: 9.14

Density: 5.09

Streets Length: 63.73 km

Streets Length: 75 km

Intersections: 453

Intersections: 320

Intersection density: 1.77

Intersection density: 1.25

Alleys Length: 15.11 km

Alleys Length: 8.80 km

Intersections: 0

Intersections: 36

Intersection density: 0.0

Intersection density: 0.14

Streets & Alleys Length: 78.84 km

Streets & Alleys Length: 83.62 km

Intersections: 605

Intersections: 510

Intersection density: 2.36

Intersection density: 1.99

Al Barsha Sample 2

Existing Layout

Existing Layout

Plots

Design Iteration

Design Iteration

Sample Scale

Sample Scale Morphological Attributes

Morphological Attributes

Plots Size: 36 x 30 m Count: 1302 Plots

Plots Size: 45 x 30 m Count: 1184 Plots Density: 4.625

Density: 5.09

Streets Length: 63.73 km

Streets Length: 62.46 km

Intersections: 306

Intersections: 320

Intersection density: 1.19

Intersection density: 1.25

Alleys Length: 17.25 km

Alleys Length: 15.11 km

Intersections: 32

Intersections: 36

Intersection density: 0.125

Intersection density: 0.14

Streets & Alleys Length: 79.69 km

Streets & Alleys

Streets & Alleys Length: 78.84 km

Intersections: 593

Intersections: 510

Intersection density: 2.32

Intersection density: 1.99

1.73

Sample Scale

Sample Scale

Morphological Attributes

Morphological Attributes

Plots Size: 25 x 30 m

Count: 2618 Plots

Plots Size: 25 x 30 m Count: 2341 Plots Density: 9.14

Density: 10.23

Streets Length: 74.38 km

Streets Length: 75 km

Intersections: 453

Intersections: 343

Intersection density: 1.77

Intersection density: 1.34

Alleys Length: 7.45 km

Alleys Length: 8.80 km

Intersections: 0

Intersections: 0

Intersection density: 0.0

Intersection density: 0.00

Streets & Alleys Length: 83.62 km

Streets & Alleys Length: 81.83 km

Intersections: 605

Intersections: 443

Intersection density: 2.36

Intersection density: 1.73

Dubai Innovation District

Location: Dubai, UAE

Year: 2020-2019

Category: Urban Design & Architecture Project

Innovation districts are mash ups of entrepreneurs, governments, people and educational institutes. They give the chance for everyone to show the world how they think, how they could innovate to change the world. It is not just a place of working for a living anymore, yet it is about thinking for a living. Innovation districts allow people to communicate their ideas and grow their knowledge, to shift their ideas into the real world. Innovation districts usually reflect the culture and norms of the country they are built in.

Urban Designer: Abdallah Mouselly

Co-Urban Designers: Mahmoud Zreik, Amani Awni

Assembly Points

The selected site

1- Matching the height of the surroundings.

2- Connecting an axis to the neighboring community

4- Splitting with a Creek Tower axis

3- Splitting with a Burj Khalifa axis

5- Subtracting masses to define the plazas

6- Creating multilevel masses that connects to the plaza

Modern Arts Museum

Location: Sharjah, UAE

Year: 2018

Category: Architecture Project

The museum in Al Qasba is a visually striking building that incorporates elements of Islamic architecture into its modern design. Its layout was carefully planned to integrate with the surrounding landscape and buildings, with intersecting lines forming the main space at the center. This open, welcoming shape serves as a hub for a variety of activities and events aimed at engaging the youth of Sharjah, including workshops, exhibitions, shows, and seminars. The museum's unique design and diverse programming make it a destination for visitors looking to experience something new and exciting in Sharjah.

Designer: Abdallah Mouselly

Co-Designer: Mahmoud Zreik

1- Responding to the site factors and surroundings.

2- Pointing the central mass to the Qasba main landscape.

3- Raising part of the central mass to expose the main entrance.

4- The result is a new icon in Sharjah for modern arts.

1- Lobby, Reception & Open gallery

2- Washrooms

3- Service Corridor

4- Storage Rooms

5- Kitchen

6- Cafe’ & Restaurant

7- Souvenir Shop

8- Auditorium Lobby

9- Auditorium

10- Workshop

11- Gallery

Second Floor Plan

12- Multi-Purpose Gallery

13- Learning Facility

14- Projector Room

15- Seminar Lobby

16- Seminar Room

17- Research Center & Archives

18- Media Center

19- Meeting Rooms

20- Offices

21- Coordinator’s Offices

22- Mechanical Room

First Floor Plan
Ground Floor Plan
Main Elevation
Section A-A
Side Elevation
Section B-B

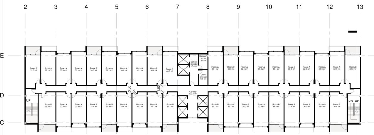
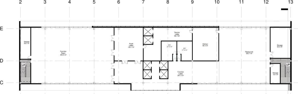
Al Wasl Hotel

Location: Dubai, UAE

Year: 2017

Category: Architecture Project

Modern buildings require modern solutions. In this project the idea was to turn each function into a mass that has the same volume. Try to fit as much masses as possible in the acquired area. Then, find the best arrangement according to the site factors and the best view and orientation. Nowadays, many corporations are looking for the best solution to achieve the highest possible efficiency.

Designer: Abdallah Mouselly

Supervisor: Graham McKay

Ground Floor

Typical Floor

Total Area: 1638.1 m2

Room count: 38 for each floor

Rooms Area: 1283.44 m2

Internal Gross Area: 100% - 78.35% = 21.65%

Total Area: 7028.9 m2

Car Parks: 214 car

Efficiency: 32.8 m2/car

Eighth Floor
Basement Floor
1- Each unit = One room
2- One floor = 40 Room Units
3- Two units from each floor was used as an emergency stairs and lifts with lift lobby was provided as shown in green and gray.
4- Adding the ground floor and the events floor. Room

Turn static files into dynamic content formats.

Create a flipbook
Issuu converts static files into: digital portfolios, online yearbooks, online catalogs, digital photo albums and more. Sign up and create your flipbook.