STUDENT PORTFOLIO

Page 1

PORTFOLIO

A A R Y A A C H A R Y A
ABOUT
I am Aarya Acharya, currently pursuing a bachelor's degree in architecture. My curiosity and fondness towards design and art lead me to join architecture. I am highly motivated and equally excited to gain practical knowledge in this field. CONTACT PHONE: 9843929896 EMAIL: aaryaacharya312@gmail.com
ME
01. RESIDENCE 02. BISHRAAM | LANDSCAPE 03. COMMUNITY CENTER 04. DRISHYA | SCHOOL O5. WORKING DRAWINGS 06. INTERIOR DESIGN 07. MISCELLANEOUS
SELECTED WORKS

01. RESIDENCE

DESIGN STUDIO - IV

LOCATION: BHAKTAPUR

THIS DESIGN IS AIMED TOWARDS A NUCLEAR FAMILY, PROVIDING BOTH FUNCTIONAL AND THE AESTHETIC ASPECTS IN THE BUILT ENVIRONMENT. THROUGH THE COMBINATION OF MODERN TECHNOLOGY AND TRADITIONAL FINISHING METHODS.

RESIDENCE

CONCEPT AND INSPIRATIO

regural geometric shape maximizes functionality addition of similar volumes vertically and horizontally breaking the large facad by creating " spaces and voids"

aditional newari house ad taken as inspiration

wooden posts on the exterior exposed brick facade gives more traditional look

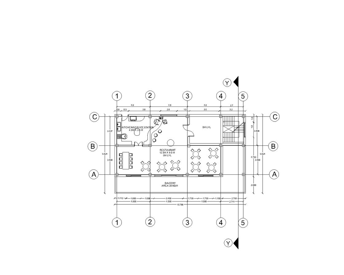
FLOOR PLANS

R
D E N C E
E S I

SOUTH ELEVATION

EAST ELEVATION

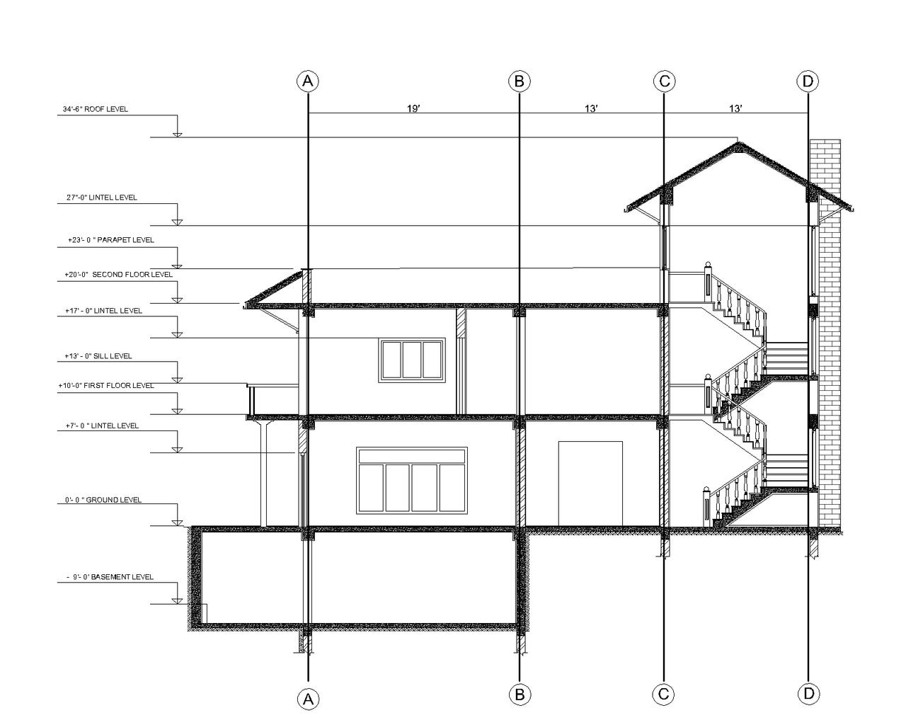
SECTION XX

WEST ELEVATION

R
D E N C E
E S I

बाम | BISHRAAM LANDSCAPE DESIGN

Site Location: Bhaktapur

The landscape of a residential home , designed to provide rest, calmness and compliment the natural terrain of the site.

02.

BISHRAAM | LANDSCAPE DESIGN

L
N D S C A P E
A

| LANDSCAPE DESIGN

SITE SECTIONS PERSPECTIVE VIEWS
E
BISHRAAM
L A N D S C A P

03. RURAL COMMUNITY CENTER

LOCATION: GELAL GAUN, BHAKTAPUR

DESIGN STUDIO VI

A COLLABORATIVE SPACE FOR SOCIALIZATION, SKILL DEVELOPMENT, AND INCOME GENERATION FOR A COMMUNITY IN BHAKTAPUR.

The main inspiration of the design was derived from traditional Nepalese temples, found all around the valley where the site is located.

ADMINISTRATION

SHOPS

Complimentary to the natrural terrain of the site, the different built forms are placed on different levels, maximizing the use of the site.

Use of modern technology encorporated with traditional elements creates an identity of the space.

R E S T A U R A N T / F I T N E S S C E N T E R EXISTING HEALTH POST
MULTIPURPOSE BLOCK
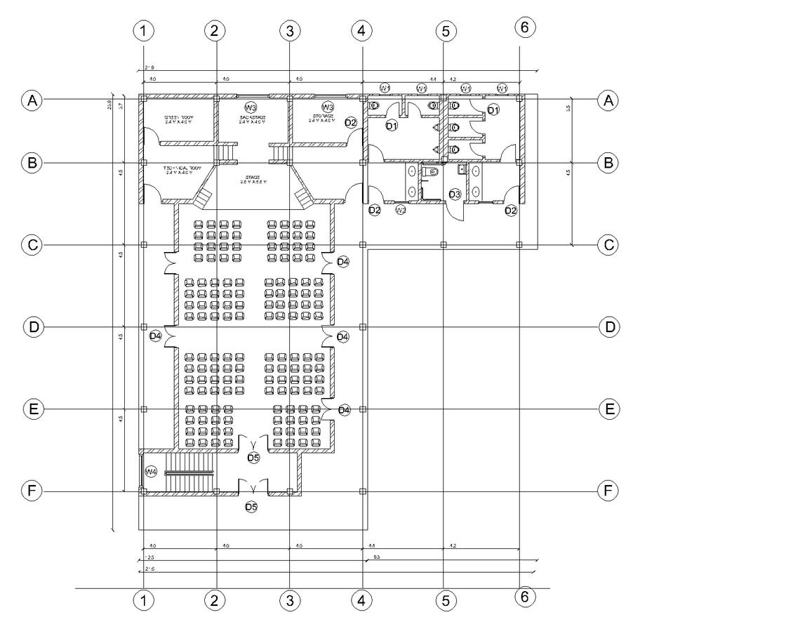
M A S T E R P L A N C O M M U N I T Y C E N T E R
C O M M U N I T Y C E N T E R

PERSPECTIVE VIEW

C
U N I T Y
T E R
O M M
C E N

AMPHITHEATRE

DIFFERENTLY ABLED

FRIENDLY DESIGN VIA RAMPS

CHILDRENS PARK

OF THE DESIGN IS TO MMUNIAL SPACE FOR PEROLE LIVING IN THE AREA “GELAL GAUN”.

THE DESIGN IS ALSO DISABLED FRIENDLY, WHICH CREATES A EQUAL OPPORTUNITY FOR ALL TO ENJOY THE SPACE.

THE SITE DESIGN ALSO ENCORPORATES A SPACIOUS CHILDRENS PARK, TO ENCOURAGE MORE OUTDOOR

ACTIVITIES AMONG CHILDREN AS WELL.

C O M M U N I T Y C E N T E R
DRISHYSA PRIMARY SCHOOL DESIGN DESIGN STUDIO- V LOCATION: MULPANI 04 य PRIMARY SCHOOL DESIGN DRISHYSA य 04

THE PROJECT ENCAPSULATED THE IDEA OF AN EYE, PROVIDING VISION, LIKEWISE SCHOOL GIVING THE NECESSARY GUIDANCE AND SUPPORT TO CHILDREN OF AGE 3- 14

THE PLAN MIMICS THE SHAPE OF AN EYE, WITH A CENTRAL COURTYARD, WHILE THE TWO WINGS ARE CONNECTED TO EACH OTHER VIA THE COURTYARD.

GROUND FLOOR PLAN DRISYA | PRIMARY SCHOOL P R I M A R Y S C H O O L

NTIRE SCHOOL BUILDING IS ED INTO TWO DISTINCT KS:

E PRIMARY BLOCK: DEFINED A COLOURFUL FACAD CONDARY BLOCK : FACAD EATED WITH COLOURFUL ONGATED ELEMENTS

THE PLAY OF COLOUR IN THE FACAD IS IN RESPONSE TO THE STIMULATION CREATED DUE TO IT, ALSO CREATING A PLAYFUL AND INVITING ENVIRONMENT.

P R I M A R Y S C H O O L

SECTIONALELEVATION

WESTELEVATION

NORTHELEVATION

DRISYA | PRIMARY SCHOOL P R I M A R Y S C H O O L
SECTION

05.

WORKING DRAWING

WORKING DRAWING

SANITARY DETAILS

WALL SECTION

W O R K I N G D R
W
N G
A
I
W O
K
N G
W
R
I
D R A
I N G SECTIONAL DETAILS

06.

INTERIOR DESIGN

lIVING ROOM DESIGN

BEDROOM DESIGN

MISCALLENOUS 07.

BUILDING SKETCHES

FREE HAND SKETCH:

NORTH-SOUTH SECTION

KASTHAMANDAP

PEN AND INK ON PAPER

LIVE SKETCHING:

CHANGUNARAYAN

PENCIL ON PAPER

STILL LIFE SKETCH

STILL LIFE SKETCHES FOCUSES OVER THE STILL INANIMATED OBJECTS.

THE END

Turn static files into dynamic content formats.

Create a flipbook
Issuu converts static files into: digital portfolios, online yearbooks, online catalogs, digital photo albums and more. Sign up and create your flipbook.