University of Idaho - Art & Architecture Portfolio

Page 1


Aaron Logan University of Idaho Art & Architecture

TABLE OF CONTENTS

NEW WORLD DESIGN BUILD

A Picnic Shelter in Troy, Idaho

ARCHITECTURE WEST

An Evolution of Time FIRE STATION NO. 5 How Water Flows

SILO CONDOMINIUMS

A Gesture to Before PARAMETRIC LAMPS

Endless Possibilities

Heidegger’s Earth & World The Pursuit of Knowing

FLEETING MOMENTS

A Lens for the Phenomenal

DRAWING IS SEEING A Tool of Understanding

NEW WORLD DESIGN BUILD

A Picnic Shelter in Troy, Idaho

The chosen site for the shelter is located about 1.5 miles from the trail head, at which point the view opens up from a narrow portion of the canyon. The main idea of the shelter was to allow it to open up to views just as the canyon does as you move through it.

The shelter was designed and constructed by New World Design Build, a student organized club of which I am Co-founder and President. I was lead designer and project manager for the shelter which required generating construction documents, ordering materials, fabrication of parts, organizing tools and equipment, and leading and overseeing construction.

Typical picnic shelter design.

Pull shelter apart to allow views outward and to invite trail users in.

ARCHITECTURE WEST

An Evolution of Time

Architecture West is an expansion to the existing College of Architecture at the University of Idaho. The concept of this new addition was to create an architectural timeline spanning over 100 years of architectural history. Currently the college is comprised of two buildings; Architecture North and South. The form of Architecture West draws cues from the existing tree line and the sloping topography of the site it rests on. With modernity in mind, and respect towards preserving the integrity of existing facilities, the new addition clings to the west face of Architecture North and gently connects to Architecture South via a long-span elevated walkway. This gesture allows the college a sense of unity with an seamless flow of circulation from one building to the next.

Unify new circulation routes to existing.

Define new program arrangement.

Allow existing trees and topography to suggest form.

FIRE STATION NO. 5

How Water Flows

Fire Station N0. 5 reflects a firefighter’s workday through a metaphoric interpretation of the ways in which water flows. In Idaho, water rages and falls from mountains. The training tower is the most active component of the fire station, so it represents a waterfall. Water glides over rock. The cantilevered living component is a place of rejuvenation and is enveloped in a thin layer of water as if gently flowing over smoothed rock. It pools and comes to rest in anticipation of its next journey. Resting pools flank the perimeter of the fire station and anchor the building to the landscape.

SILO CONDOMINIUMS

A Gesture to Before

In this group project, we master-planned a 20-acre swath of land between downtown Moscow, ID and the University of Idaho. This site was once the agricultural hub of the area, once occupied by a dense population of grain silos and supporting structures. Today, only one group of silos remain which was the driving inspiration for the silo condominiums.

The courtyard for this particular block was a collaborative effort between myself and Jacob Liddicoat. The courtyard was defined by circulation paths existing currently on site. An interactive sculpture was placed along the intersection of pedestrian traffic as a node of intensity used to promote interaction between users.

Seven existing silos adjacent to site.

Arrange seven silos according to site conditions.

Keep 3:4 ratio of adjacent silo arrangement.

Establish program uses for new silo arrangement. Give definition to masses inspired by angularity of old grain tower structures.

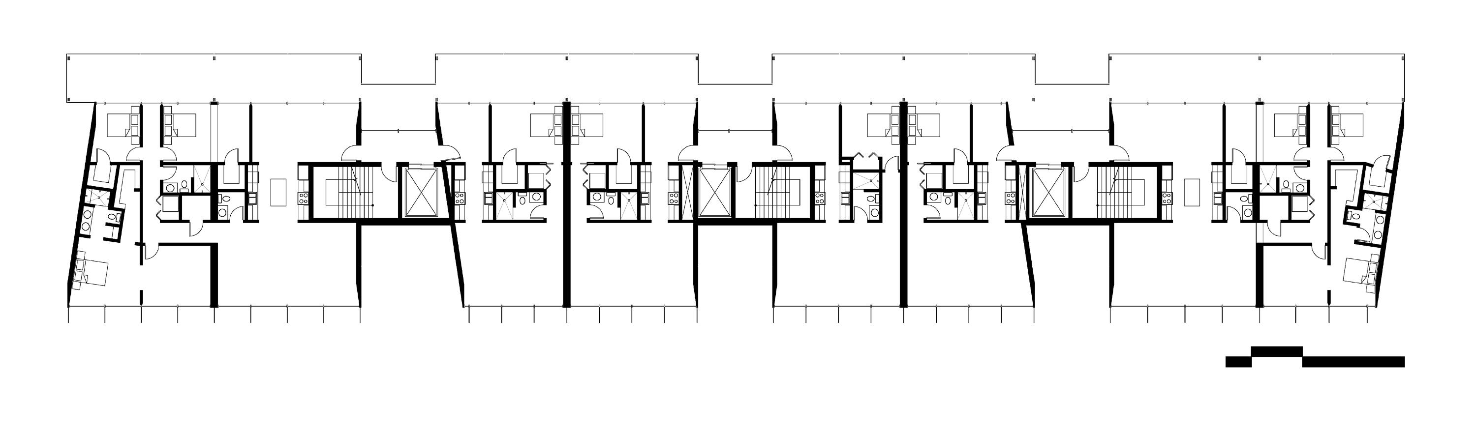
Residential Floor Plan. Typical

Conceptual Sketch

PARAMETRIC LAMPS

Endless Possibilities

This is an ongoing exploration stemming from a special topics class taught at the University of Idaho. The goal of the class was to create a parametric definition of our choosing, with the premise that our design be able to be mass produced, yet individually customizable by the consumer.

The parameters of this lamp allow customers to define a contour profile, the number of rows and columns desired, and the shape of the piece that makes up the lamp. As a result, this lamp’s outcome has endless possibilities.

Define profile of desired lamp.

Define shape of pieces to make up the lamp.

Generate lamp iteration based on data inputs.

Heidegger’s Earth & World

The Pursuit of Knowing

This project was the result of a semester-long study of German philosopher Martin Heidegger. The task was to explore a chosen Heideggerian concept and breathe life into it by way of an art piece. I chose to explore Heidegger’s ‘Earth’ & ‘World’ concept. ‘Earth’ is a material readily available to a given culture. Their built environment is their ‘World’ and is constructed of ‘Earth’. Constructing a ‘World’ requires the manipulation of ‘Earth’. This requires an acute knowledge of a material’s limits, acquired through a great deal of strife to understand its properties. Steam bending Western Red Cedar became my ‘pursuit of knowing’ for this project. After many failed attempts in trying to understanding how to steam bend wood, I was able to strike a balance between my intentions and what the wood allowed me to do.

FLEETING MOMENTS

A Lens For The Phenomenal

A camera allows me to capture moments of natural phenomena. Having a camera with me gives a heightened visual awareness and openness to my surroundings; an attunement to nature and its fleeting moments.

DRAWING IS SEEING

A Tool of Understanding

Drawing is a place of contemplative thought. It is more than a medium, it is a way of seeing and interpreting the world around us. It is the probity of art.

I have always enjoyed drawing. Over the years, my technique and ability has developed, allowing drawing to become a powerful tool for me to use when working through an idea.

Thank you for your time and consideration. I look forward to studying with you.

Turn static files into dynamic content formats.

Create a flipbook
Issuu converts static files into: digital portfolios, online yearbooks, online catalogs, digital photo albums and more. Sign up and create your flipbook.