[OUTDATED] Aaron Wong | University of Waterloo Architecture Portfolio (Winter 2023)

Page 1

SELECTED WORKS AARON WONG VOL.3 / 2023 1
2
TABLE OF CONTENTS CURRICULUM VITAE CROSSROADS THEATRE GUADALUPE RIVER REFUGE ACTIVATING FAIRWAY [DYS]ORDER INVESTIGATION: CHINESE GARDEN WINDOWS 05 08 16 26 36 46 3

HI THERE, I’M AARON!

I am currently a third year student attending the University of Waterloo’s Architecture Program.

Architecture is such a comprehensive and versatile profession that has the ability to touch the lives of many people in ways that most don’t notice. That is something that I realized early on as I began studying and that potential to impact the way people live and move in a positive manner is something that has kept me interested in pursuing this profession.

I am excited to continue to learn, discover, and work on creating change in the built environment for the future.

Phone: (780) 680-7380

Email: a332wong@uwaterloo.ca

4

CURRICULUM VITAE

EDUCATION

University of Waterloo, Cambridge ON — Honours Bachelor of Architectural Studies

SEPTEMBER 2020 - PRESENT

Old Scona Academic High School, Edmonton — Alberta Diploma

SEPTEMBER 2017 - JUNE 2020

WORK EXPERIENCE

Perkins & Will, Vancouver - Student Intern Designer

SEPT 2022- DEC 2022

Wallman Architects, Toronto - Architectural Assistant

JAN 2022- MAY 2022

VOLUNTEER EXPERIENCE

Speechdojo, Nonprofit Organization, Edmonton — Graphic Designer and Videographer

JULY 2020 - MAY 2022

RootUp Organization, Edmonton - Graphic Designer

SEPTEMBER 2020 - AUGUST 2021

AWANA Christian Youth Outreach Program, North Edmonton Alliance Church — Group Leader and Secretary

SEPTEMBER 2014 - MARCH 2020

EXTRA-CURRICULAR ACTIVITIES

F_RMLab Design and Fabrication Group, Waterloo Architecture, Waterloo— Member

SEPT -DEC 2021, PRESENT

Old Scona Academic High School Graduation Council, Edmonton— Executive member

MAY 2019 - JUNE 2020

North Edmonton Alliance Church’s Youth Group Committee, Edmonton — Chairman

MAY 2016 - JUNE 2020

DIGITAL SKILLS

Adobe Photoshop

Adobe Illustrator

Adobe Indesign

Adobe Premiere Pro

Rhinoceros 3D

Grasshopper (Basic)

Enscape

Lumion

Revit

BIM360

Autocad

Microsoft Suite

ANALOG SKILLS

Hand Drafting

Model Making

Laser Cutting

CNC Milling

3D Printing

ACHIEVEMENTS

President’s Scholarship - University of Waterloo

JUNE 2020

Academic Honours with Distinction Award - Old Scona Academic High School

JUNE 2018, 2019, 2020

Honourable Mention - Arch8 “The Callow” Competition

DECEMBER 2022

5

Date: 1.9.2023

Re: Letter of reference

To whom it may concern,

Aaron worked in our Vancouver studio for a duration of approximately 3 months. During his term he joined our team on the Brentwood project; a complicated 1.5 million sf development with office, civic, retail, and residential tenures.

Aaron has a strong work ethic, excellent rigor, and is a quick learner; as demonstrated with his project delivery through a platform that was new to him (REVIT). He has very good verbal and graphic-communications skills; and is an excellent team player. He is proactive, and inquisitive; asking questions when clarity is required. This is a critical character trait that is important for growth, and it will serve him well as he continues to develop in his career.

I would highly recommend him for future placement at work terms.

Sincerely,

1220 Homer Street Vancouver, BC V6B 2Y5
www.perkinswill.com
6

June 1st, 2022

Re: Employment Reference Letter for Aaron Wong

June 1st, 2022

To Whom it May Concern,

Re: Employment Reference Letter for Aaron Wong

June 1st, 2022

To Whom it May Concern,

I would like to recommend Aaron Wong as a candidate for a position with your organization. In his position as Architectural Assistant, Aaron was employed at our firm from January 2022 – May 2022. During that time, he worked on a variety of mid, and high‐rise residential projects located in the City of Toronto; primarily, he was involved in design development and the preparation of Marketing drawings including unit plan design and marketing layouts, Rezoning and Site Plan Approval drawings.

Re: Employment Reference Letter for Aaron Wong

I would like to recommend Aaron Wong as a candidate for a position with your organization. In his position as Architectural Assistant, Aaron was employed at our firm from January 2022 – May 2022. During that time, he worked on a variety of mid, and high‐rise residential projects located in the City of Toronto; primarily, he was involved in design development and the preparation of Marketing drawings including unit plan design and marketing layouts, Rezoning and Site Plan Approval drawings.

Aaron has been more than capable and extremely conscientious in all his tasks. He is a great team member, always willing and wanting to learn and contributing positively to our work environment. He utilized his abilities, curiosity, and positive attitude to the benefit of the projects and project team he was involved in. He has a great design sense and quickly adapted to the challenges of the work. He would be an asset to any employer, and I recommend him for any endeavour he chooses to pursue. He moved on from our office to continue his undergraduate education and we wish him well in all his future efforts.

To Whom it May Concern,

I would like to recommend Aaron Wong as a candidate for a position with your organization.

Aaron has been more than capable and extremely conscientious in all his tasks. He is a great team member, always willing and wanting to learn and contributing positively to our work environment. He utilized his abilities, curiosity, and positive attitude to the benefit of the projects and project team he was involved in. He has a great design sense and quickly adapted to the challenges of the work. He would be an asset to any employer, and I recommend him for any endeavour he chooses to pursue. He moved on from our office to continue his undergraduate education and we wish him well in all his future efforts.

If you would care to contact me directly, I would be more than happy to provide a personal and more in‐depth recommendation.

Architectural Assistant, Aaron was employed at our firm from January 2022 – May 2022. During worked on a variety of mid, and high‐rise residential projects located in the City of Toronto; involved in design development and the preparation of Marketing drawings including unit marketing layouts, Rezoning and Site Plan Approval drawings.

Sincerely,

If you would care to contact me directly, I would be more than happy to provide a personal and more in‐depth recommendation.

Sincerely, Wallman

Aaron has been more than capable and extremely conscientious in all his tasks. He is a great willing and wanting to learn and contributing positively to our work environment. He utilized and positive attitude to the benefit of the projects and project team he was involved in. He sense and quickly adapted to the challenges of the work. He would be an asset to any employer, him for any endeavour he chooses to pursue. He moved on from our office to continue his education and we wish him well in all his future efforts.

416‐340‐1870 ext 227

If you would care to contact me directly, I would be more than happy to provide a personal recommendation.

Sincerely,

0M3

t: 416 340 1870

www.wallmanarchitects.com

Peter Street, Suite 208 Toronto, ON M5V 0M3
416 340 1870 www.wallmanarchitects.com
117
t:
Architects
Peter Street, Suite 208 Toronto, ON M5V
Michael Panacci 416
340
1870 ext 227 117
7

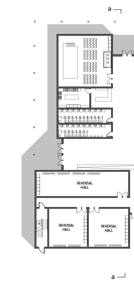
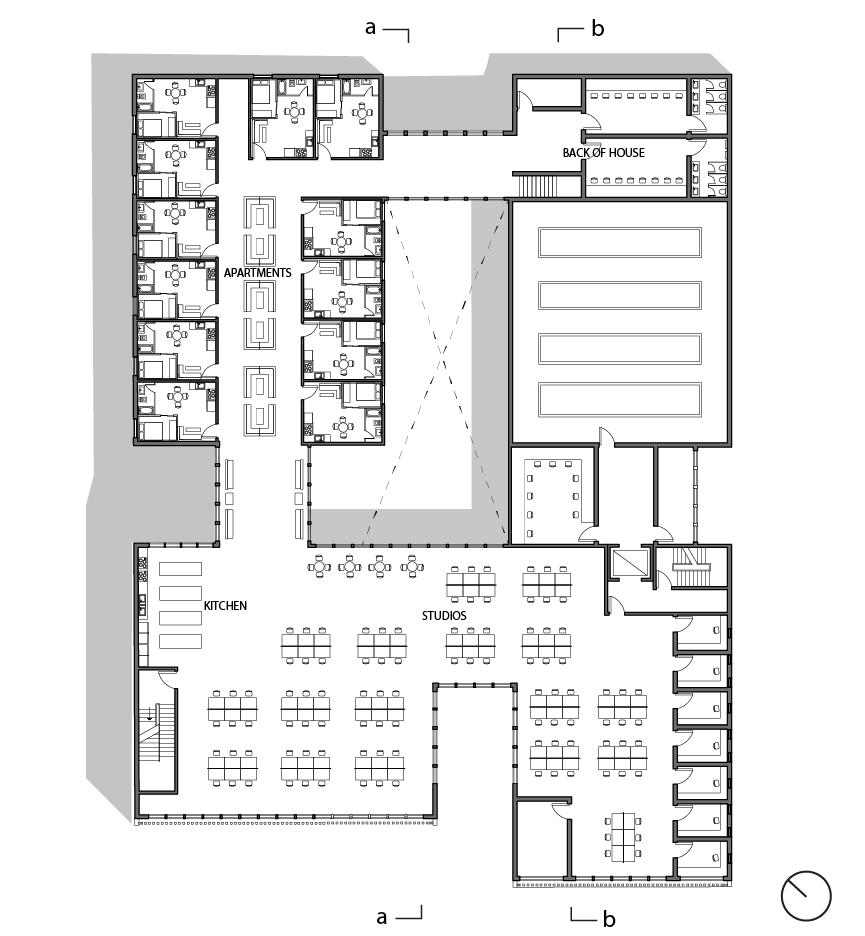
CROSSROADS THEATRE

ADAPTIVE REUSE

December 2021

crossroads theatre aims to break down preexising notions of judiciary spaces and their impact on the urban fabric a city. kitchener’s civic centre square is a space that is in need of revitialization, with the potential to be a vibrant and engaging public space. this theatre removes the imposing face of the existing police building and instead invites the public to flow through and interact in a performing arts and community space.

Class

1
Photoshop / Illustrator / Enscape / Indesign / Rhino 2A Design Studio Coordinated by Rick Haldenby Kitchener, Waterloo
Skills 8
9

PUBLIC: PERFORMING ARTS

ELEVATED: STUDIO/ APARTMENTS

PERMEABLE BOUNDARIES

SITE CONTEXT

METHOD OF REUSE

10
EXISITNG BUILDING CARVING OUT ADDITION
PROGRAM
ELEVATED
11
12 BASEMENT PLAN SECTION GROUND FLOOR
13 SECTION AA FLOOR PLAN
FLOOR PLAN
SECOND
14
15

GUADALUPE RIVER REFUGE

JUSTICE & REHABILITATION

November 2022

The Guadalupe River Refuge rethinks the American penitentiary system from one that is based in punishment to one that is based on wellbeing and education. This site is based North of San Antonio, Texas, by the Guadalupe River. This site was chosen because Texas’s juvenile system is currently nearing total collapse.

Having the site organized like a campus allows for the juveniles to have a “commute” to their daily activies where the planned circulation will take them through plenty of native vegetation and natural breezeways coming from the dam. The a humane approach is used in the design. Spaces are more generous so not to trigger any anxiety or fear, and warm and neutral materials are used across all the buildings. Direct visual access to outdoors are available in all rooms and buildings and access to water on site exist to instill peace and wellbeing into the juveniles.

Competition

Received an Honourable Mention in the Arch8 “The Callow” Competition 2022

San Antonio, Texas

In Collaboration with Andrew McDonald

Skills

Photoshop / Illustrator / Enscape / Indesign / Rhino

2
16
18
19
LIBRARY & COMPUTER LAB CAFETERIA GATHERING LONG SECTION

JUVENILE QUARTERS

/ CENTRAL GATHERING
SECTION

REACTIVATING FAIRWAY

URBAN MASTERPLANNING

FEBRUARY 2023

The Waterloo Region’s ION LRT system is a recently completed rapid transit system for the greater municipality. Regional authorities are looking to future planning and strategies to develop strong transit oriented design along this LRT corridor and its various stops. Fairway station is the terminus station along the track, currently servicing a large shopping mall and other plazes and strip malls. This neighbourhood development vision seeks to transform the neighbourhood and commercial area around the station into a vibrant multigenerational community.

These design principles guide the project’s development:

1. Develop Fairway into a transportation and community hub

2. Create substantial connectivity between surrounding communities and the central hub for both pedestrians, cyclists, and motorists.

3. Construct safe, direct, and convenient pedestrian access to all amenities.

4. Establish a multi-generational diverse community where residents are encouraged to linger and socialize.

5. Provide ample support for the Indigenous community in the surrounding area.

Class

In collaboration with Brianna Klei, Naya Sanchez, and Nathan Choi

3
Photoshop / Illustrator / Enscape / Indesign / Rhino
Equitable Tranist Oriented Design Studio coordinated by David Fortin Kitchener, Waterloo Skills 26
27
16 17 15 5 6 FAIRWAYROAD KINGSWAYDRIVE WILSONAVENUE INDIGENOUSLANDBACK 1 1 2 3 3 3 3 7 12 13 14 16 17 15 11 18 8 9 4 5 5 6 1 2 3 4 5 6 7 8 9 10 10 12 13 14 16 15 11 17 18 LIVE-WORK HOUSING TRANSIT STATION MIXED USE CO-OP HOUSING FAMILY-ORIENTED HOUSING SENIOR HOUSING GALLERY + STUDIO SPACES INDIGENOUS CENTRE COMMUNITY KITCHEN + CLASSROOMS ARENA INDOOR RECREATIONAL POOL MEDICAL CLINIC + RESEARCH LABS COMMUNITY CENTRE + LIBRARY + COUNSELING FITNESS CENTRE SENIOR CENTRE FINANCIAL INSTITUTION MOVIE AND COMMUNITY THEATRE PUBLIC PARK 28
MOXIES SHOPPERS DRUGMART WALMART FARM BOY MOVIE THEATRE MEDICAL CLINIC
29
EXISTING SITE PROPOSED SITE
30
31
32
33

ATERIAL ROAD

MAJOR COLLECTOR ROAD

MINOR COLLECTOR ROAD

LOCAL ROAD 34
35

MUSEUM & EXHIBITION

June 2022

A museum that hosts architectural experimentations and moments as the work of an exhibition. The 2 halls explore Chaos and Calm as architectural drivers. The design questions architectural organizations, geometries, and ideas of order and disorder through a socio-political lens. What does a calm space afford us? What does a chaotic space take from us? Can architecture truly be driven by chaos or is that notion contradictory? Is there an intersection of order and disorder, calm and chaos. Can one be found in the other? The spaces use light, circulation, viewpoints, planes of a wall, floor, and thresholds to manifest both emotions in tectonic experiences.

Competition

Submitted to Bee Breeders Museum of Emotions Competition 2022 Washington, D.C.

In Collaboration with Jenny Chen & Lydia Xia

Skills

Photoshop / Illustrator / Lumion / Indesign / Rhino

[DYS]ORDER
4
36
37

STACK HALLS

LIFT VERTICES

POTOMAC RIVER
TIDAL BASIN SITE CONTEXT ARLINGTONMEMORIALBRIDGE THEODORE ROOSEVELT BRIDGE 1 2 3 6 7 5 8 9 14 13 12 10 11 4
- WASHINGTON D.C.USA 1. Lincoln Memorial 4. Vietnam Veterans Memorial 7. Korean War Veterans Memorial 10. General Jose de San Martin Memorial 2. Signers’ Memorial 5. Martin Luther King, Jr. Memorial 8. Albert Einstein Memorial 11. World War ll Memorial 3. John Paul Jones Memorial 6. Washington Monument 9. US Navy Memorial Plaza 12. Navy - Merchant Marine Memorial 13. Gerorge Mason Memorial
FRAGMENT GEOMETRY ADD INTERMEDIARY
38
14. Thomas Jefferson Memorial
FLOOR PLAN
FLOOR PLAN
FLOOR PLAN A Choice of Space Organized Linear Geometries Light Filtraton Neutral Reception Circulation The Bathhouse The Garden The Church A Confrontation Landscaped Terrace Invisible Thresholds Planes of a Wall Ground Surfaces Colonnade Labyrinth 39
SECOND
GROUND
BASEMENT
40
41
42
43

INVESTIGATION: CHINESE GARDEN WINDOWS RESEACH & FABRICATION

AUGUST 2022

The Chinese Garden window is an architectural element that possesses functional purposes of providing light, ventilation, and framing views. However, it also has experiential and ideological purpose in composing a sequential unfolding narrative. These complex windows have cultural, historical, and artistic significance that has been lost in modern landscape architecture. Contemporary design seeks to return to an ideology grounded in the built environment’s connection with nature. To inherit the tradition of Chinese window design and to understand the principles behind that design are both integral parts of this return to the natural environment. This exploration investigates the origins of these Chinese garden window designs with the intention to recreate, further elaborate, and reestablish them within contemporary contexts. After initial analysis, the project turns towards parametric models of pattern generation and digital fabrication methods to improve efficiency and add complexity.

Cultural History and Iconography of the Enlightnemend Period with Val Rynnimeri

In Collaboration with Lydia Xia

5
Photoshop / Illustrator / Enscape / Indesign / Rhino Skills Class
44
45
46
47
(780) 680-7380 A332WONG@UWATERLOO.CA PORTFOLIO 2023 AARON WONG | THANK YOU!

Turn static files into dynamic content formats.

Create a flipbook
Issuu converts static files into: digital portfolios, online yearbooks, online catalogs, digital photo albums and more. Sign up and create your flipbook.