SELECTED WORKS FROM 2023-2025

Page 1


O R T F O L I O

R

5th Year Architecture Student

I’m Aarjinayakam R, a 5th-year architecture student at VIT Vellore with a passion for designing high-rise commercial buildings, urban landscapes, and large-scale infrastructure. My design philosophy revolves around pushing the boundaries of form while ensuring that functionality remains at the core of every space.

+919500124902

aarjinayakam@gmail.com

Tenkasi, Tamil Nadu, India

https://www.instagram.com/ _._aarji_._?igsh=Y3k4ZHJldD VlZ3Zl www.linkedin.com/in/aarji-r

https://www.behance.net/aa rjir

EDUCATION

• Hilton Matric Hr Sec School, Old Courtallam, Tenkasi, Tamil Nadu, India

2006-2021

• Vellore Institute Of Technology, Vellore, Tamil Nadu, India

2021-present

SKILLS

Rhino

DIGITAL ANALOG

Auto CAD

Grasshopper

Enscape

Photoshop

Indesign

• Sketching

• Painting

• Short film making

• Story boarding

ACADEMIC & EXTRACURRICULAR

• Team Member – Solar Decathlon India, VIT Vellore

| Aug 2023 – Mar 2024 & Aug 2024 – Feb 2025

Represented VIT Vellore in the Solar Decathlon India competition under the architectural design domain.

• Team Manager – Sangamam (Cultural Fest):

VIT Vellore

| Jan 2024 – Mar 2024 |

Led the publicity and marketing efforts for Sangamam, the university’s cultural festival.

PROFESSIONAL EXPERIENCE

• Architectural Intern: WhiteBOX Inc. Architecture + Design

| Pavoorchatram, Tamil Nadu, India | Jun 2024 – Jul 2024 (2 months).

Assisted the architectural team with 3D modeling and technical detailing.

• Architectural Intern: Trisquare Properties Private Limited

| Coimbatore, Tamil Nadu, India | Jul 2023 – Aug 2023 (2 months).

Worked as an architectural design associate, assisting in structural planning.

LANGUAGES

• English

• Tamil

• Hindi (Beginner)

• Architectural Intern: Jawahar Associates

| Madurai, Tamil Nadu, India | May 2023 – Jun 2023 (2 months).

Contributed to an educational institution project in Courtallam.

01. DRDO HEADQUARTERS

Project Title: DRDO Headquarters Building

Location: Kothapet, Hyderabad, Telangana

Client: Defence Research and Development Organisation (DRDO)

Project Type: Government Institutional Building (Headquarters)

Floors: G+15 with helipad and control room

Project Description:

The proposed DRDO Headquarters at Kothapet, Hyderabad, is envisioned as a landmark institutional structure that reflects India’s strength in research and innovation in defense technologies. The building is designed as a 15-storey high rise, cohesive tower Taking inspiration from aeronautical design elements, the building adopts a tail-fin-inspired form a symbolic expression of flight and agility mirroring the core mission of DRDO

B U I L T F O R M E V O L U T I O N

DRDOHEADQUARTERS

TheselectionofDRDOTownshipin Kothapet,Hyderabad,asthesiteforthe DRDOHeadquartersisawell-calculated decisiondrivenbystrategic,logistical, and functional considerations. Hyderabadhasestablisheditselfasa leadinghubfordefenseandaerospace researchinIndia,housingmultiple criticaldefenseinstitutionssuchasthe DefenceResearchandDevelopment Laboratory(DRDL),theResearchCentre Imarat(RCI),andBharatDynamics Limited(BDL).BysituatingtheDRDO Headquarterswithinthisecosystem,the organizationcanleverageproximityto existingresearchandmanufacturing facilities, ensuring seamless coordinationbetweenvariousdefense research wings. This enhances efficiency in project execution, acceleratesinnovation,andreduces logistical constraints in interdepartmentalcollaborations. ThesiteinKothapetisalsohighly accessibleduetoitsconnectivitywith majortransportroutes.TheInnerRing RoadandNH65providedirectaccessto keypartsofthecityandthecountry, facilitatingthemovementofpersonnel, equipment,andresources.Additionally, theRajivGandhiInternationalAirport, locatedataconvenientdistance, ensures smooth national and internationalconnectivity.

FloorsandStructuralLayout:Eachfloorhasaconsistent structure,withmultiplehorizontalbeamsandfloorslabs,showing atypicalofficeorlabspaceconfiguration.Thefloorlayoutappears openandmodular,whichwouldallowflexibleinteriorlayouts

SupportColumns:Theimageshowsrobustsupportcolumns, especiallyaroundthehelipadarea,whichprovidestructural stabilitytotheelevatedhelipadplatform.

ExteriorPanelingandWindows:Thefaçadehasgrid-likepanels, possiblyindicatingwindowplacementsorsolarshading structures,whichareessentialfordaylightingandenergy efficiencyinahigh-risebuilding.

AdditionalProtrudingFeatures:Thereisanadditionalextended sectionalongonesideofthebuilding,possiblyintendedfor specializedequipmentorsignage.

BIM Output Data:

TheArea,Volume,andCentroid datayou'vehighlightedinthe modelaretypicallyderivedfrom BIM'scomputationaltools(like Revit,ArchiCAD,orRhino).Here's howthisdataisuseful:

Area:Totalusablefloorarea isessentialforcostestimation, spaceallocation,andbuilding codecompliance.

Volume:Helpsincalculating HVACloadrequirements,energy modeling,andmaterialestimates.

Centroid:Establishingthe centroidiscriticalforbalanceand structuralanalysis,especially withacomplexmassinganda helipad.

TheBIM(BuildingInformation Modeling)workflowshowninthe imagesrepresentsahighly integratedprocessthatbridges thegapbetweendesignand construction,enhancingoverall projectefficiencyandaccuracy. Thearchitecturalmodelservesas thefoundationofthedesign phase,providingadetailedand realistic3Drepresentationofthe building.Thisallowsarchitects, engineers,andstakeholdersto visualizetheprojectmore effectively, facilitating better decision-making and early identificationofdesignconflicts. Thespatialcoordinationachieved throughthearchitecturalmodel ensuresthattheinternallayout, roomdimensions,andcirculation flowareoptimized,reducingthe likelihoodofchangesduringthe construction phase. The architecturalmodelalsocarries rich metadata, including information about materials, finishes,androomfunctions, whichcanbeextractedfor performanceanalysis,suchas energyefficiency,firesafety,and acoustics.Thislevelofdetail enablesprecisecostestimation andmaterialplanning,improving theaccuracyofprocurementand reducingwaste.

Staircase:

CumulativeArea1359.81636(+/1e-06)squaremeters

CumulativeAreaCentroid 38.2375551,35.8107 491,29.4376079 (+/1e-08,1e-08,1e-08) Volume85.7269551(+/-1e-08) cubicmeters

Elevator:

CumulativeArea=2559.60904 (+/-1e-06)squaremeters

CumulativeAreaCentroid= 26.7646258,36.5227922,31.8 440403(+/-1e-08,1e-08,1e-08) Volume=175.083862(+/1e-07)cubicmeters

washroom service:

CumulativeArea2256.46503 (+/-1e-06)squaremeters

CumulativeAreaCentroid= 16.3711395,36.2288987,28. ]5845767 (+/1e-08,1e-08,1e-08) Volume=163.19329(+/-1e-07) cubicmeters

StructuralColumn:

CumulativeArea=3662.17307(+/-1e-06)squaremeters CumulativeAreaCentroid=26.8086102,38.6703187,28.9191654 (+/-1e-08,1e-08,1e-08) Volume=504.240545(+/-1e-07)cubicmeters

StructuralBeam:

CumulativeArea=5375.98295(+/-1e-06)squaremeters

CumulativeAreaCentroid=26.7892868,38.7688485,31.281388 (+/-1e-08,1e-08,1e-08) Volume=537.061674(+/-1e-07)cubicmeters

CumulativeArea=34899.8073(+/-1e-05)squaremeters CumulativeAreaCentroid=26.7099211,38.937395,30.8529865 (+/-1e-08,1e-08,1e-08) Volume=6701.23752(+/-1e-06)cubicmeters

AuditoriumatDRDOHyderabadSite,Kothapet forProductLaunchesandPressConferences

TheauditoriumattheDRDOHyderabadsiteinKothapetishighlysuitable forhostingproductlaunchesandpressconferencesduetoitssecure, professional,andtechnicallyequippedenvironment.Beinglocatedwithin aprestigiousR&Dcampus,itprovidesanimmediateassociationwith innovationandcredibility,whileensuringstrictsecurityprotocols necessaryforsensitivedefense-relatedproducts.Theauditorium’s designsupportshigh-qualityacoustics,advancedaudiovisualsetups,and modularstagearrangements,makingitidealforformalpresentations, livedemonstrations,andofficialmediainteractions.Itsproximityto DRDO’scorelaboratoriesandleadershipteamsallowsforseamless technicaldiscussions,real-timeproductshowcases,andrapidexpert engagementduringevents.

Additionally,thesiteoffersexcellentlogisticaladvantageswithstrong connectivitytoHyderabad’smajortransporthubs,ensuringeaseof accessfornationalandinternationaldelegateswhilemaintaining controlledentry.Theprofessionalsetting,adequateseatingcapacity, climatecontrol,andsupportingamenitiescreateacomfortable environmentforlargeaudiences,pressrepresentatives,and dignitaries.Hostingproductlaunchesandpressconferencesatthis venuenotonlyenhancestheorganization'simagebutalsoensures thateventsareconductedsmoothly,securely,andwithahighstandard oftechnicalexcellence.

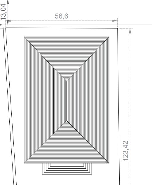
Programmatic Breakdown: Functional Layers of the DRDO HQ

15th Floor –Helipad

The helipad, situated on the 15th floor, provides a strategic advantage for emergency evacuations, VIP transport, and rapid deployment of personnel Given its elevated position, the helipad ensures uninterrupted aerial access

In addition, the helipad’s integration with the rooftop architecture provides seamless connectivity to the helipad control room

8th Floor –Cafeteria:

Located on the 8th floor, the cafeteria serves as a crucial recreational and social space for employees

4th Floor –Demonstration Theatre: The demonstration theatre on the 5th floor is a specialized presentation & briefing space

Ground Floor –

DRDO War Room:

The DRDO War Room, located at the ground level, serves as the command centre

16th Floor: helipad control room:

Positioned at the highest level, the helipad control room serves as the command center.

11th, 12th, and 13th Floors – Conference Halls:

These floors house three distinct highsecurity conference halls

•DRDO Conference Hall – Used for internal defense research discussions.

• Ministry of Defense Conference Hall – A highly secure meeting space for policy discussions

5TH Floor: jamming units

Housing electronic jamming units that play a critical role in defense communications and threat mitigation

1st and 2nd Floors –DRDO Data Center

These floors serve as the technological backbone of the headquarters, hosting the DRDO Data Center, which stores, processes, and secures critical defense intelligence and research data Designed with redundant power supplies, advanced cooling systems, and high-level encryption, the data center ensures seamless storage and retrieval of classified information

Project Title: Visionarium – A Cultural and Immersive Arts Hub; Performing Arts Centre

Design studio: Civic design studio

Location: Kancheepuram, Tamil Nadu

Project Type: Civic & Cultural Centre | Auditorium & Amphitheatre Complex

02. VISIONARIUM

Project Description:

The Visionarium in Kancheepuram is designed as a dynamic cultural hub, seamlessly integrating performing arts, immersive experiences, and architectural innovation. This avant-garde structure houses a grand auditorium and multiple amphitheaters, creating a space where artistic expression and immersive storytelling converge.

1. Cultural and Social Relevance

Theselectedsiteissituatedin anareawitharichcultural inclinationtowardmusicand performingarts.Locatingthe centrewithinacommunitythat valuesmusicensuresorganic public engagement, fosters localtalent,andpreservesthe region’sartisticidentity.A music-specificauditoriumwill resonatestronglywithan audiencethatalreadyhasan appreciation for musical performances.

2.AcousticEnvironment

Thesiteislocatedawayfrom high-noisezonessuchasbusy highways, airports, and industrialareas.Aquieter ambientenvironmentiscrucial forachievingpristinesound quality inside the music auditorium, where every nuanceofinstrumentaland vocalperformanceneedstobe heardclearly. Thisnaturalquietnessreduces the need for extensive external soundproofing, allowingthedesigntofocus purelyonrefiningtheinternal acoustics.

3. Accessibility and Connectivity

Thesiteiswell-connected throughpublictransportation, includingbuses,metrolines, andpedestrianaccessroutes, makingiteasilyreachablefor both performers and audiences.However,itavoids excessivetrafficcongestion immediately around the buildingtomaintainacalm arrivalexperience,intunewith theserenenatureofmusic performances.

4.UrbanContextandVisibility

Thesiteoccupiesaprominent yetpeacefullocationwithin thecity perhapsnear culturaldistricts,parks,or universities ratherthan chaotic commercial zones. ThispositionsthePerforming ArtsCentreasacultural landmark,whilethequieter surroundings maintain the integrity of musical performances without disruptiveurbannoise.

ARCHITECTURALFORMEVOLUTION

Thearchitecturalformofthisbuildingdrawsinspirationfromthecaptivating andexpressivedesignofthehumaneye.Whenviewedfromthetop,the structuremirrorstheintricateanddynamiccompositionofaneye,reflecting theessenceofperceptionandvisualexperience.Thisintentionaldesign choiceisparticularlyfittingforaperformingartscenter,wherethepower ofvisualexpressionplaysapivotalrole.Theeye-inspiredformservesasa metaphoricalgateway,symbolizingtheaudience'sentryintoaworldof artisticsensations.Justastheeyeisthewindowtothesoul,this architecturalconceptemphasizesthatthevisualencounterwithinthe performingartscenteristhekeytounlockingprofoundandmemorable experiences.Thethoughtfulintegrationoftheeyemotifnotonlyaddsa uniqueaestheticdimensiontothebuildingbutalsounderscoresits commitmenttoprovidingavisuallyimmersiveandcaptivatingenvironment fortheappreciationoftheperformingarts.

KAUFFMANCENTREFORPERFORMINGARTS

P E R F O R M I N G A R T S P L A N

Theauditorium'sarchitectural planplaysacriticalrolein enhancingtheexperienceof performingartsbyensuring optimal acoustics, audience visibility, and spatial organization.Herearesomekey aspectsofitssignificance:

AcousticOptimization:

Theellipticalformoftheplan appears to enhance sound distribution, ensuring clear audio projection for both performersandtheaudience.

Thetieredseatingarrangement helps in minimizing sound obstructions,reducingecho,and providinganimmersiveauditory experience.

SeatingandVisibility:

The layout demonstrates a well-structured seating arrangementthatmaximizes audienceengagementwiththe stage.

Thecurvatureoftheseating ensuresthatallspectatorshave anunobstructedview,crucial forliveperformances.

CirculationandAccessibility:

Thewell-plannedentryandexit points facilitate smooth movement,crucialforlarge gatherings.

Theuseoframpsandmultiple levelsindicatesconsiderations foruniversalaccessibility.

AXANOMETRICVIEWOF

OFAUDITORIUMSPACE

Programmatic Breakdown: Functional Layers of the VISIONARIUM

Grand Entry to the Auditorium – A Monumental Approach:

The entrance to the Visionarium’s auditorium is designed as an immersive transition space, setting the stage for an extraordinary spatial experience A massive cascading staircase, sculpted with fluid, organic contours, acts as both a circulation element and a gathering space

Open-Air Theatre (OAT) on the First Floor :

A Spatially Engaging Performance Zone

The first-floor Open-Air Theatre (OAT) is an architectural spectacle, seamlessly integrating natural elements with a layered, amphitheater-like seating arrangement Designed to offer 360degree audience engagement, this space becomes a dynamic venue for live performances, cultural gatherings, and interactive storytelling The fluidic, stepped seating enhances acoustics while providing spectators with unobstructed views of the central stage

PROGRAMMETIC

The presence of escalators suggests a premium design approach, elevating the functionality of the basement beyond traditional parking It serves as a key transition zone that links the parking to other major programmatic components

Auditorium:

The auditorium within the Visionarium is not merely a seating shell it's a multilayered performance chamber crafted to immerse the audience in both sound and spectacle

The split-level seating arrangement integrates balconies, mezzanines, and ramps to create a spatial rhythm that encourages both vertical and horizontal movement, while also responding to varying programmatic demands This form ensures dynamic sightlines and allows the audience to feel closer to the performer, regardless of their location within the space

Underground Parking and Circulation Hub:

The underground parking area is strategically located at the basement level of the building, serving as a functional zone that seamlessly integrates with the overall structure Planned vehicular circulation bays supported by regularly spaced columns, ensuring efficient movement and parking of vehicles

Artist Wall Gallery – 2nd Floor

The Artist Wall Gallery located on the second floor serves as a transitional and contemplative space that bridges performance with visual storytelling Positioned away from the primary hustle of the auditorium and rehearsal areas

03. ELEVATE PLAZA RESIDENCE

Project Title: Elevate Plaza Residence – A Mixed-Use Vertical Community

Location: Katpadi, Vellore, Tamil Nadu

Project Type: Mixed-Use Development | Commercial & Residential Tower

Total Floors: 18 (G+3 Commercial, 14 Residential)

Built-Up Area: [Specify Area]

Status: Conceptual / Proposed Design

Project Description:

Elevate Plaza Residence is a landmark mixed-use development in Katpadi, Vellore, seamlessly integrating commercial vibrancy with elevated urban living Designed to be a self-sustaining vertical community, the tower redefines the modern lifestyle by offering a dynamic synergy between work, retail, and residential spaces within a single architectural entity.

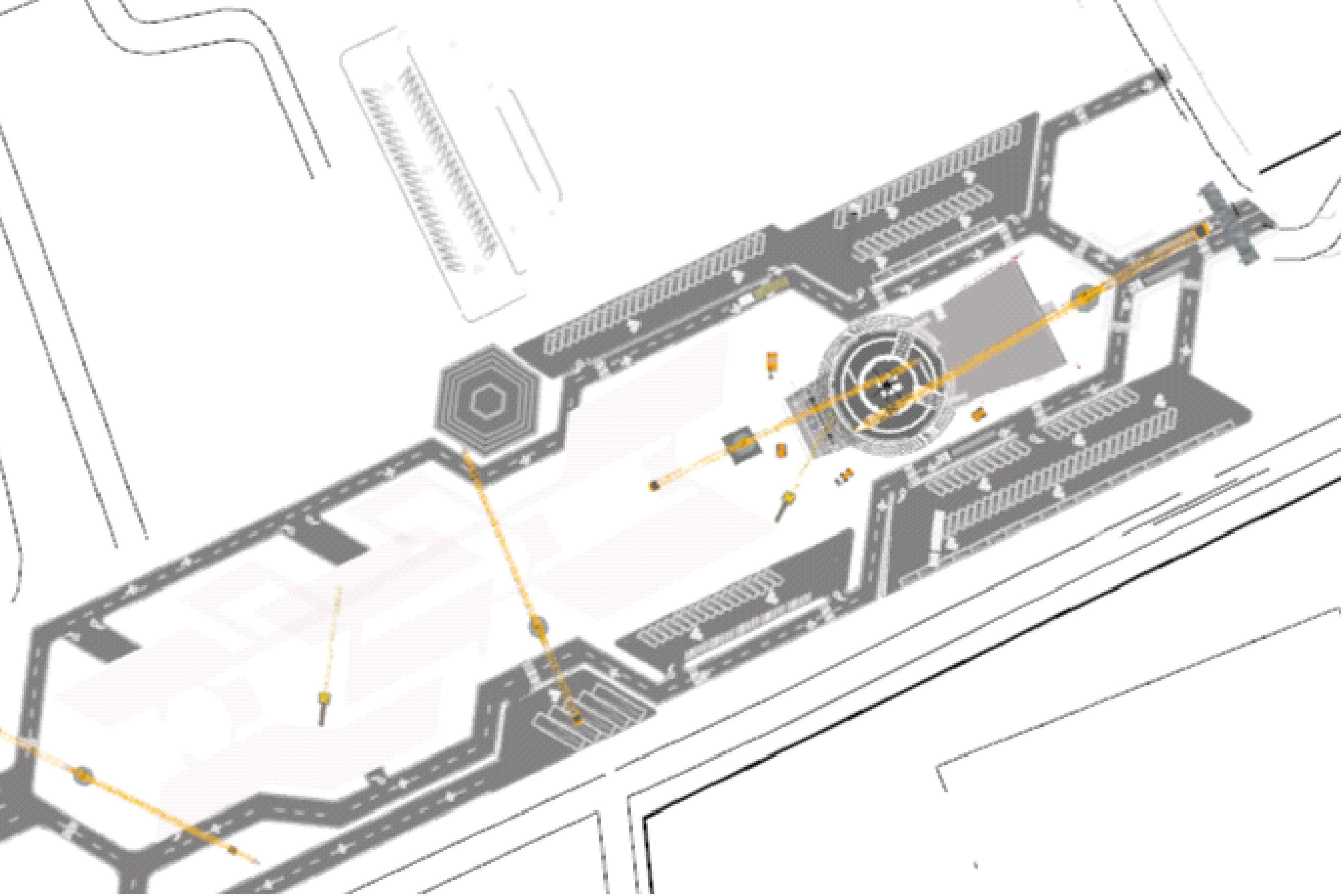
SITEJUSTIFICATION:

Vellorepresentstheright balanceofeconomic growth, educational excellence, medical tourism,connectivity,and lifestyledemands,making itanintelligentand sustainablechoicefor setting up a residential-commercial mixed-usedevelopment.

Vellorearestillrelatively affordablecomparedto Tier-1 cities, making development more feasiblewhileoffering high return-on-investment prospectsinthemedium tolongterm.Theurban developmentauthorities alsoactivelypromote plannedgrowthinthe region,ensuringthat infrastructure like sewage,watersupply, androadswillcontinue improving, thus supporting sustainable livingandcommercial activities.

SITEPLAN

G-1BASEMENTFLOOR

JustificationforSiteLocationinVelloreforaMixed-Use Structure:

Vellore,situatedstrategicallybetweenChennaiandBangalore alongthemajorNationalHighway(NH-48),offersanideal settingforaresidential-commercialmixed-usedevelopment. Asanemergingurbanhub,Velloreisexperiencingsteady economicgrowth,primarilyduetoitsstronghealthcare, educational,andtourismsectors.Majorinstitutionslikethe ChristianMedicalCollege(CMC)andVITUniversitydrive significantpopulationinflux,creatingaconsistentdemandfor bothqualityhousingandcommercialinfrastructure.

Thecity’sevolvingurbanfabricshowcasesagrowingneedfor integratedspacesthatcombineresidentialconveniencewith commercialvibrancy.Inparticular,areasaroundKatpadi, Bagayam,andthenewlydevelopingpocketsnearVIThave seenincreasingrealestateactivity,indicatingafavorable environmentformixed-useprojects.Thesiteselection leveragestheadvantageofbeingclosetoeducationalcenters andhospitals,ensuringadiverseuserbase students, healthcareprofessionals,corporateemployees,andtourists allseekingaccommodation,shopping,dining,andleisure activitieswithinaccessibledistances.

Fromaconnectivityperspective,Velloreiswell-servedby bothrailwaysandroadways,linkingitefficientlytolarger metropolitancitiesandnearbytowns.TheupcomingVellore Airportprojectaddstothecity'slong-termdevelopment potential,makingitanattractiveoptionforinvestorsand residentsalike.Moreover,theclimateinVellore,being semi-aridbutmanageable,supportsconstructionand long-termbuildingmaintenancewithfewerrisksrelatedto heavyrainsorfloodingcomparedtocoastalcities.

G-2,3BASEMENTFLOOR

VerticalCirculation&StructuralSystem:

Thesectionaldrawingsillustratetheinternallayoutand structuralframeworkofElevatePlazaResidence.Thecorevertical circulationelements,includingelevatorsandstaircases,are prominentlyhighlightedinred,ensuringeasyaccessibilityand firesafetycompliance.Thestructuralcolumnsandbeams,shown inacombinationofredandblue,formtheprimaryload-bearing system,supportingthehigh-riseresidentialcomplex.

Podium&BasementLevels:

Thebasementaccommodatesparkingfacilities,optimizingspace efficiencyforresidentsandvisitors.Thelowerfloorshouseretail orcommercialspaces,fosteringamixed-usedevelopmentthat integratesresidentialandcommercialactivitiesseamlessly.

Mid&Upper-LevelResidences:

Themid-to-uppersectionsofthebuildingprimarilyconsistof residentialunits,arrangedinarepetitivemodularformatfor efficientspatialplanning.

Façade&Design

Language:

Theeastandsouthelevationviewsexhibita contemporaryhigh-riseaestheticwitha grid-likearrangementofwindowsand balconies.

Theuniformfenestrationpatternensuresan organizedvisualappealwhilemaximizing daylightpenetration.

VerticalEmphasis&ToweringForm: Thetowermaintainsasleek,verticalprofile, reinforcingitsprominencewithintheskyline.

Theexternalelevatorshaft,markedinred, addsadynamiccontrast,servingboth functionalandaestheticpurposes.

Programmatic Breakdown: Functional

Layers of the ELEVATE PLAZA

RESIDENCE

The basement's functionality is elevated beyond that of standard parking by the presence of escalators, which suggest a high-end design approach It serves as a key transition zone that links the parking

Premium

Residential Living:

The 8th to 12th floors of Elevate Plaza Residence are dedicated to mid-level residential units, designed to offer comfort, privacy, and scenic urban views Each floor follows a standardized configuration, thoughtfully planned to balance density and livability

These mid-tower levels form the heart of the residential stack, offering the perfect balance between connection to communal amenities below and privacy from the upper luxury tiers

Sky Deck Pool Zone:

Positioned at an elevated level, the Sky Deck Pool Zone on the 6th floor serves as a recreational oasis for residents, offering a break from the verticality of urban living The pool is semiindoor with an extended deck that opens to panoramic city views

7th floor above the pool is designated as the Aqua Utility Zone, functioning as the Swimming Pool Backup Area

5ht floor Dedicated entirely as a Mechanical Core Zone, the 5th floor houses the Motor and Pump Room that powers the pool system and associated waterworks

Compact Urban Residences:

The top six floors of Elevate Plaza Residence offer a selection of efficient, elevated living spaces designed for working professionals, couples, and individuals who value compact luxury and panoramic views With fewer units per floor, this zone fosters a quieter, more private residential experience above the bustling mixed-use levels below

These upper-tier homes in Elevate Plaza Residence embrace the concept of vertical simplicity and compact luxury,

Commercial Space :

The lower four levels are dedicated to retail and community engagement, crafted to enhance foot traffic, ease of circulation, and visual connectivity across the shopping experience

•Dedicated service cores for commercial levels, separate from residential circulation to ensure privacy and operational efficiency

•Fire safety zoning, retail service access, and loading/unloading bays integrated at the rear side

•Transitional lobby on the 4th floor to buffer and separate the commercial and residential functions, ensuring acoustic and experiential separation

04. MISCELLANEOUS

4.1. Crocodile Park Revitalization Project, Hogenakkal

Project Description:

As part of my 3rd-year Bachelor of Architecture coursework, I undertook the design and development of a Crocodile Park at Hogenakkal, a project conceptualized under the collaboration and guidance of the Forest Department of Hogenakkal and mentored by my faculty members

This project focuses on creating a vibrant, educational, and ecosensitive recreational space that harmonizes with the natural environment of Hogenakkal Designed with an emphasis on biodiversity and conservation awareness, the park features thematic landscapes, butterfly gardens, shaded pathways, observation towers, interactive green zones, and nature-inspired installations

The design approach blends functionality with aesthetics, ensuring that visitors experience a seamless journey through curated ecological zones, while also promoting environmental education and wildlife protection Each zone was carefully thought out to encourage an immersive connection between visitors and nature, offering experiences such as wildlife observation decks, sensory gardens, and informative trails that highlight the region’s unique flora and fauna

This project not only enhanced my understanding of landscape architecture and environmental design but also instilled in me a deeper respect for responsible, sustainable architecture in protected ecological zones.

Project done under rhino 7 and enhanced the renders through enscape

SITE PLAN

4.2. Lodge Aruvi Community Hall –Courtallam

As part of my 4th-year architecture journey, I undertook the planning and design of a small yet significant community hall for Lodge Aruvi, located near Old Courtallam in Tenkasi District, Tamil Nadu, India

The project site is nestled in the lush backdrop of Courtallam's natural beauty, offering a serene environment ideal for gatherings Designed to serve the needs of a local business community, the hall will host bimonthly meetings, fostering interaction, collaboration, and community building.

The planning emphasizes functionality, simplicity, and climatic responsiveness, with a layout that accommodates formal meetings while maintaining a connection with the surrounding landscape. The hall's structure is planned with clear spatial zoning.

PLAN VIEW

Turn static files into dynamic content formats.

Create a flipbook
Issuu converts static files into: digital portfolios, online yearbooks, online catalogs, digital photo albums and more. Sign up and create your flipbook.