Portfolio Aapo Kekäläinen

Page 1

PORTFOLIO

AAPO KEKÄLÄINEN

SISÄLLYSLUETTELO 4 CURRICULUM VITAE 6 OPISKELIJAHOTELLI 10 MUOTOILUN PORRASKURSSI 14 REVONTULIOBSERVATORIO 18 VANHAN KAUPPALAN ASEMAKAAVAUUDISTUS

Hei, olen Aapo Kekäläinen, kolmannen vuoden arkkitehtiopiskelija Oulun yliopistosta. Pyrin arkkitehtuurissa luomisen ja itseilmaisun vapauteen sekä järkevien ja kestävien ratkaisujen toteuttamiseen.

Olen mukavaa seuraa ja luonteenpiirteisiini kuuluvat muun muassa ystävällisyys, tarkkaavaisuus ja tiedonhaluisuus.

Työntekijänä olen luotettava, ahkera sekä kunnianhimoinen, ja haluan saattaa asiat kunnolla loppuun.

Vapaa aikaani vietän kitaraa soitellen, ystävien kanssa aikaa viettäen, laadukkaita elokuvia katsellen sekä shakkia pelaillen.

OLEN:

- Luotettava

- Nopeasti oppiva

- Halukas oppimaan uutta

- Innokas

- Kunnianhimoinen

- Omatoiminen

OSAAN:

- Pyörittää tietomallinnusohjelmia

- Kysyä apua tarvittaessa

- Toimia ihmisten kanssa

- Luoda hyvää ja rentoa ilmapiiriä

4

Curriculum Vitae

Yhteystiedot

Puhelin: 044 291 3439

aapo.kekalainen@gmail.com

Torikatu 7 B 6, 90100 Oulu

TYÖKOKEMUS

TIETOTEKNINEN OSAAMINEN

Archicad

Revit

AutoCAD

Sketchup

Enscape

Lumion

Photoshop

Indesign

Microsoft Office

Cetopo

AKATEEMINEN PROFIILI

OULUN YLIOPISTO

Tekniikan kandidaatti ja arkkitehti, opinnot meneillään

Kilta aktiivi

Opiskelija SAFA toimihenkilö

Oulun Arkkitehtikillan raadin liikuntavastaava

Pienryhmäohjaaja

KUOPION KLASSILLINEN LUKIO

Valmistunut ylioppilaaksi vuonna 2020

Luokan varapuheenjohtaja

Välituntiliikunnan järjestäjä

RAKENNUSAPUMIES

Jatke, Rakennustyömaa, Helsinki • 2022

Kaksi kuukautta Helsingin Kaisaniemenpuiston laitaan valmistuvan hotellirakennuksen työmaalla rakennusapumiehenä.

PAKETTILAJITTELU

SOL, Postin lajittelukeskus, Kuopio • 2020

Kuukausi raskaan puolen pakettilajittelussa.

LUOKANOPETTAJAN SIJAINEN

Martti Ahtisaaren koulu, Kuopio • 2020

Kaksi päivää luokanopettajan sijaisena opettaen eri kouluaineita, kuten matematiikkaa, äidinkieltä ja liikuntaa.

HOITOAPULAINEN/VIRIKETYÖNTEKIJÄ

Harjulan sairaala, Kuopio • 2018

Kuukausi muistisairaiden osastolla viihdyttämässä

vanhuksia ja auttamassa heitä arkisissa askareissa liikuntaa.

5

NYKYARKKITEHTUURI II, PERUSTEET OPISKELIJAHOTELLI / TORIGALLERIA

Sonja Juutinen

Aapo Kekäläinen

Aapo Lappalainen

Peppi Takala

Samuel Ylimäki

6
7
8

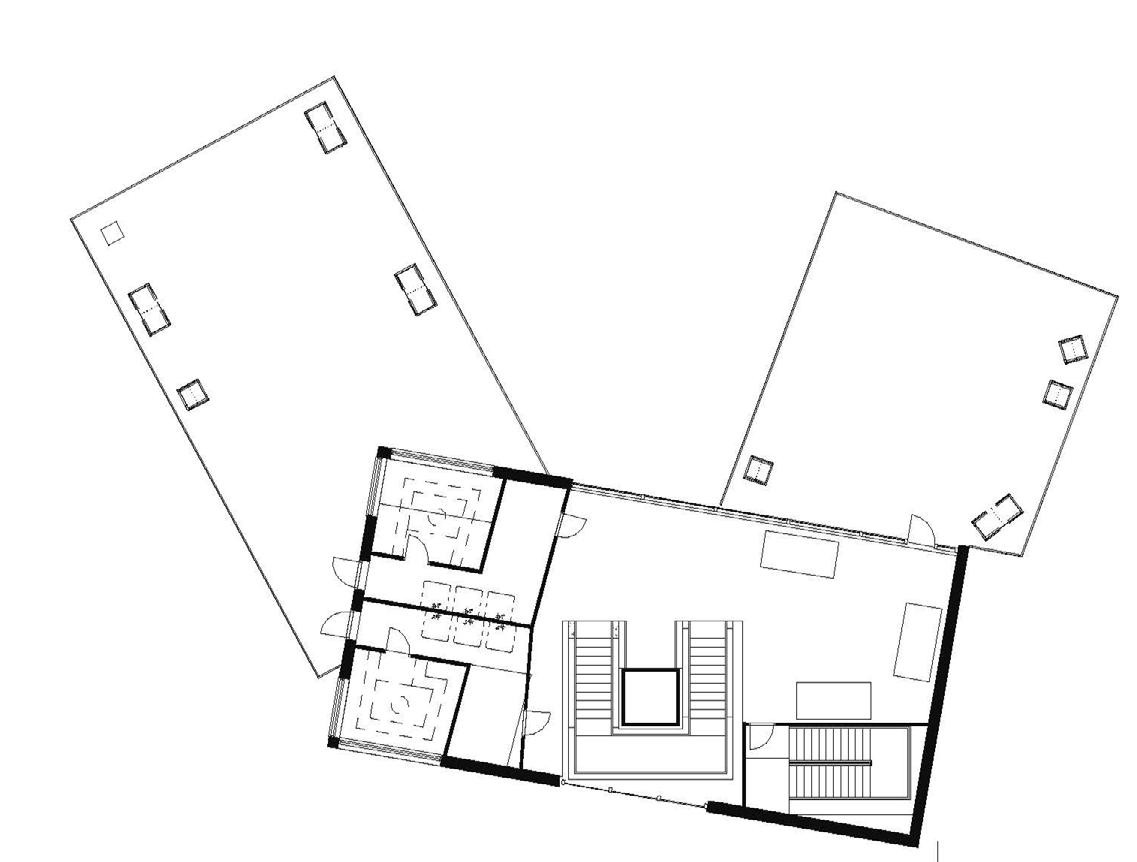
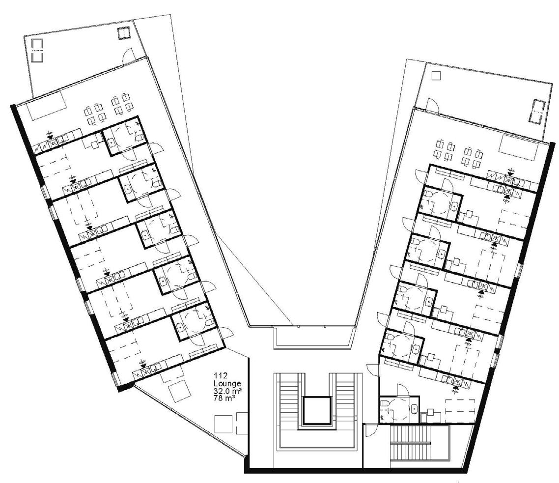
Nykyaikaisen arkkitehtuurin harjoitustyökurssilla suunnittelimme pienessä ryhmässä torigallerian/ opiskelijahotellin Oulun torin läheisyyteen.

Suunnitelmassa lähdimme työstämään rakennukselle porrastuvaa, monikerroksista, kattoterasseja hyödyntävää kiertyvää massaa maksimoidaksemme tonttitehokkuuden. Massan porrastuminen loi rakennukselle myös mielenkiintoista muotokieltä ja toi toimivaa kontrastia alueen toistuvaan blokkimaiseen kaupunkirakenteeseen.

Arkkitehtoniseksi pääideaksi muodostui simpukkamainen olemus, joka toteutui herkän, lasisen, suuri-ikkunaisen sisäpihan puolen ja kovan, järeän, betonisen kadun puolen sekä rakennuksen kaartuvan muodon vuorovaikutuksesta.

Julkisivumateriaaleiksi valikoitui paikallavalubetonin lisäksi siperiankuusi, jota esiintyy ikkunakarmituksessa ja kattoterassien käsijohteissa. Suurien ikkunoiden ja lasiseinien karmit koostuvat mattamustaksi maalatusta alumiinista. Kattoterassien laudoitus koostuu harmaasävyisestä komposiittilaudasta.

Pohjakerros on varattu taidegallerialle, pienelle kahvilalle sekä opiskelijahotellin asukkaiden yhteisessä käytössä olevalle opiskelutilalle. Ylemmät kerrokset koostuvat hotellihuoneista ja niiden yhteiskeittiöistä lukuun ottamatta ylintä

9

MUOTOILUN PERUSTEET PORTAAT OPISKELIJAHOTELLIIN

10
11

Muotoilun kurssilla suunniteltiin itsenäisenä jatkotyönä portaat aiemmin esiteltyyn taidegalleriaan/ opiskelijahotelliin. Suunnittelin portaat yhteiseen opiskelutilaan sen henkeen sopiviksi.

A-A A-A 12
LEIKKAUS A-A

Lähestyin harjoitustyötä mielikuvituksellisesti sekä kokeellisuuden näkökulmasta, ja otinkin lähtökohdakseni luoda jylhä monumentaalinen portaikko. Materiaaliksi kehkeytyi heti alusta lähtien betoni sen raskaan ja kylmän olemuksen vuoksi. Päädyin lopulta neljäsosapyramidin muotoiseen massiiviseen betonielementtiportaaseen, joka kohoaa kahdelta pohjan neliön sivulta kohti toisen kerroksen pohjoisen suuntaista kulmaa. Portaikko piilottaa sisäänsä funktionaalisen ominaisuuden; “flow-tilana” toimivan syvennyksen, joka mahdollistaa opiskelijoille rauhallisemman ja suljetumman ympäristön.

13
14
REVONTULIOBSERVATORIO
15
16

Ensin nykyarkkitehtuurin kurssilla ryhmätyöna alustavasti suunniteltua Kiilopään tunturille sijoittuvaa revontuliobservatoriota lähdettiin jatkojalostamaan tietomalliksi yksilötyönä. Pienen mittakaavan kompleksi koostuu julkisesta observatoriorakennuksesta sekä vuokrattavista tupa- ja saunarakennuksesta. Työprosessiin kuului rakennetyyppien suunnittelu detaljitasolla, tietomallin muodostaminen, sekä työkuvien tekeminen.

Rakennusten kattojen spiraalimainen muotokieli rajaa suojaisan terassialueen, mutta takaa kuitenkin taivaan näkyvyyden observatoriosta. Komleksi liittyy kahteen pitkospuureittiin, joista toinnen johtaa läheisen lammen rantaan ja toinen luontopolulle.

17

VANHAN KAUPPALAN ASEMAKAAVAUUDISTUS

18
19
20

Asemakaavasuunnittelun kurssilla tehtävänä oli suunnitella asemakaavamuutos Vanhan Kauppalan kaupunginosaan Ikaalisten kaupungissa. Tehtävän alusta lähtien keskityin aktiviteettien ja ulkoilun mahdollistamiseen optimaalisesti. Suunnitelman avainsanoihin kuuluu muun muassa: jatkuvuus, johtavuus, rauhallisuus, käytännöllisyys, yhdistävyys, vehreys sekä värikkyys ja viihtyvyys

Kantavana pääideana suunnittelualueella toimii viherpolku, joka kulkee koko suunnittelualueen pituudella rantaviivaa pitkin, erossa liikenteen hälinästä, mutta kuitenkin loogisesti ja funktionaalisesti johdatellen kulkijan lopulta Toivolansaaren retkeilyalueelle ja sen vieressä sijaitsevalle maisematornille.

Sunnittelin uuden kerrostaloalueen vanhan pesäpallokentän kohdalle lähelle Vanhan Kauppalan länsirantaa. Alueelle on kaavoitettu kaksi puukerrostaloa.

21

MIELENKIINNOSTANNE KIITOS

Turn static files into dynamic content formats.

Create a flipbook
Issuu converts static files into: digital portfolios, online yearbooks, online catalogs, digital photo albums and more. Sign up and create your flipbook.