PORTFOLIO
AaNiah Sanders

![]()
AaNiah Sanders

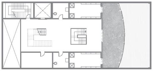
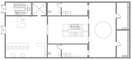
The obejective of the assignment was to design a spa in Georgetown, D.C. I designed Secret Garden Spa to provide privacy and wonder in the city. The intentional use of flower, water, wood, and stone materials were important in capture the garden like esscence. Additionally, the utilization of romatic and Georgian styles allow the building to complement the existing structures surrounding it. Each floor is designed with a linear circulation with different thresholds to seperate the experiences of each program.




CONCEPTUAL COLLAGE


















Located on the corner of Hst and 12th St, Motion Apartments serves as an affordable living option for locals and new comers. The building is designed to not only fit into the historc city scape of the area, but also provide a way for teneants to easily form a community within. All community centered places are located in the core of the building to draw the tenants into interacting with one another and give a neighborly warmth.

















































The design of the Naval Yard Interpretive Center mimics the ship building process. It is designed to educate visitors on the history of Navy Yard while also guiding them through the experience. The circulation of the Interpretive center mimics the movement of a ship through the building from back in the 1900s. This is an adaptive reuse project where the existing structure and exterior is preserved and the inner core is developed.



ROOF

PRE-EXISTING TRUSSES
ADDITION THEATER


In honor of the famous performer Pearl Primus, a self taught dancer from U st., the museum acts as a theater, dance school, and art gallery all in one. This all inclusive space gives locals the opportunity to learn new moves while also taking a step back in the past. Additionally, the buidling circulation is designed to mimic the shape of Pearl Primus’s famous image of her performing. Where the entrance is her “head” and the primary programs are her “feet”.
Revit | Lumion | Illustrator | Photoshop

















Outside of architecture I enjoy painting. My typical mediums are acrylic and oil paint on canvas. As you may notice, I enjoy playing around with the color orange.
Oil paint on a 4’ x 2’ canvas. It depicts a wildfire beiginning in the woods as 3 ballerinas dance around it. The fire represents the chaos going on in the world and the dancers represents the carefree joy people find in these moments of chaos. It represents the pursuit of happiness admist the danger at hand.



Acrylic on 8.5” x 11” canvas. Depicting a lone castle in a red sea. Oil paint on 2’ x 2” canvas. Portrait of a friend.

