2022 LG Award - Online magazine

Page 1

LIEUTENANT GOVERNOR’S AWARD OF EXCELLENCE IN ARCHITECTURE 2022 PRIX D’EXCELLENCE DU LIEUTENANT GOUVERNEUR EN ARCHITECTURE

Lieutenant Governor’s Award of Excellence

MAISON DU BOCAGE

“The inversion of a typical heritage conservation project, where the building exterior is more greatly valued than the interior is a refreshing contrast to the typical solution.”

This rehabilitation of the oldest house of the Caraquet region (estimated at 200 years old) is an exceptional example of dialogue between past and present Acadian know-how. The intention of this project was to highlight the quality of the spaces and materials of this abandoned house, while marking the catalytic role architecture can play in preserving and enhancing local culture, heritage, and skills in rural projects Location: Caraquet, New Brunswick Photography | Photographe : Félix Michaud(couleurs), Nordais Architecture(N&B) Builder | Constructeur: Construction Rénovation Jacques Gionet Consulting team | Équipe de consultants : STR ingénerie (Steve Robichaud, Trusko, Armoires Qualitek)

Lieutenant Governor’s Award of Merit Sanaz Shirshekar STUDIO SHIRSHEKAR INC.

PETITCODIAC BAPTIST CHURCH ADDITION

“An effective and important visual element in the community which balances the needs of the end user while effectively addressing the community’s need for historical and possibly spiritual, recollection.”

Other Architectural credits | Autres members de l’équipe d’architecture : DES-TEK Inc. Location: Petitcodiac, New Brunswick Photography | Photographe : Julian Parkinson Builder | Constructeur: Rice Contracting Consulting team | Équipe de consultants : o DES-TEK Inc. (Francis Malley) o Hatch Engineering (Elizabeth McPhail, Serge Doucet, Michael Brown, Bruce Colpitts)

Lieutenant Governor’s Award of Merit

RUN RAGGED

“What a pleasure it was to glimpse into the life of this house which is situated on a fantastic site in a larger wooded UNESCO community.”

Designed to encourage outdoor living in snowy winters and rainy days, the theatre-like covered deck embraces nature and instills the value that connecting with community can happen in any weather. A sliding wall opens into the playful interior where a hanging net over the living room, monkey bars along the children’s hall, and a light installation in the form of the Orion constellation are but a few of the playful storied elements that capture the ethos of the design–We are what we create.

Location: Saint John, New Brunswick Photography | Photographe : Mark Hemmings Builder | Constructeur : RIVIR Builders (w/Integral Builders) Consulting team | Équipe de consultants : Bill Mayberry Engineering

Lieutenant Governor’s Award of Merit

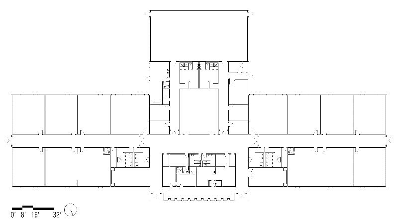
Elsipogtog Community School

“The dynamic floor plan blended culture, nature and learning into a cohesive environment.”

features include students beginning their journey in the East pod and graduating in the West pod like the sun, flowing floor patterns simulating water, and structural components

trees. Advanced technological energy systems, such as in direct and LED lighting, in-floor heating, energyefficient boilers, and automated controls were also used.

Location: Elsipogtog First Nation, New Brunswick Photography | Photographe : Dale Preston Photography Builder | Constructeur: Foulem Construction Ltee Consulting team | Équipe de consultants o Taylor Architecture Group (Simon Taylor, Ksenia Eic) o Design Plus Architecture (Christian Hébert) o Glenn Group (Daniel Glenn) o Gas Design Communications (Michael Malloy) Key
simulating

62 Water Street, Saint John

Lead Architect | Architecte principal du projet : Sanaz Shirshekar Firm Name | Nom de la firme : Studio Shirshekar Inc. Photography | Photographe : Kelly Lawson Builder | Constructeur : Avant Garde Construction Management

AC

Stevenson & Partners Office

Lead Architect | Architecte principal du projet : (late) Andrew

McGillivary

Firm Name| Nom de la firme : Architects Four Limited

Location: Riverview, New Brunswick

Photography | Photographe : Alain Malenfant

Builder | Constructeur: Rice Contracting Ltd.

Consulting team | Équipe de consultants

o Lisa Grasse (Crandall Engineering Ltd.)

o Steve Tweedie (Tweedie & Associates Consulting Engineers Ltd.)

o Tracey McDade (RSEI Consultants Ltd.)

o John Green (J.M. Giffin Engineering Inc.)

Chignecto South Multi-Purpose Building

Lead Architect | Architecte principal du projet : Alain Malenfant Firm Name| Nom de la firme : Architects Four Limited Location: Fundy National Park, New Brunswick Photography | Photographe : Alain Malenfant Builder | Constructeur: Bay Construction + Management Inc. Consulting team | Équipe de consultants o EXP Services Inc. (Angela Murray) o MCW Maricor (Robert J. McEwen, Gardiner A. MacNeil) o JOMA Engineering Group (Josée Martin-Leblanc)

Bathurst Regional Airport Addition

Lead Architect | Architecte principal du projet : Sylvain Lagacé

Firm Name| Nom de la firme : Caron Lagacé Architecture + Design

Location: Bathurst, New Brunswick

Photography | Photographe : Robert Fisher Photography

Builder | Constructeur: GeniBuild Construction Ltée LTD

Consulting team | Équipe de consultants

o Roy Consultants (Philippe Doucet, P. Eng., Guy Arseneau, P. Eng., Serge Landry P. Eng., Michelle Roy, P. Eng.)

o NATECH Environmental Servcies Inc. (Jochen Schroer, P. Eng.)

Le Galion des Appalaches K-8 School

Lead Architect

| Architecte principal du projet : Alain Malenfant Firm Name| Nom de la firme : Architects Four Limited Location: Campbellton, New Brunswick Photography | Photographe : Alain Malenfant Builder | Constructeur: Foulem Construction Ltee Consulting team | Équipe de consultants o Boissonnault McGraw & associates (Jacques Boissonnault) o MCW Maricor (Scptt Mowrey & Claude Dupuis) o JOMA Engineering Group (Martin Gionet) o BDA Landscape Architects (Jim Sackville)

Belledune Municipal Building Renovation

Lead Architect | Architecte principal du projet : Sylvain Lagacé Firm Name| Nom de la firme : Caron Lagacé Architecture + Design Location: Belledune, New Brunswick Photography | Photographe : Jean-Sébastien Chiasson (WebSolutions) Builder | Constructeur: GeniBuild Construction Ltée LTD Consulting team | Équipe de consultants o F.C. O’Neil Scriven & Assoc’s Limited (G. Scott Moore, R. Glen Rockett) o JOMA Engineering Group (Josée Martin-Leblanc) o NATECH Environmental Service Inc. (Jochen Schroer) o A Day In Life, Foodservice Development (Patrick Watt)

Fundy National Park Change House

Rehabilitation Lead Architect | Architecte principal du projet : Melissa Wakefield Firm Name| Nom de la firme : EXP Architects Inc. Location: Alma, New Brunswick Photography | Photographe : Mark Hemmings Builder | Constructeur: Maritech Construction Inc. Consulting team | Équipe de consultants o EXP Services (Scott Porter, Chris Gardiner, Ryan Johnson)

Hawthorne House

Lead Architect | Architecte principal du projet : Darroch White Firm Name| Nom de la firme : D.M. White Architecture Inc. Location: Fredericton, New Brunswick Photography | Photographe : Matthew Gorveatte Builder | Constructeur: King Construction Consulting team | Équipe de consultants o Phillips Engineering (Mike Phillips, P.Eng) o Josie Majury Design (Josie Majury)

Hyatt

Place Lead Architect | Architecte principal du projet : Andrew McGillivary (late) Firm Name| Nom de la firme : Architects Four Limited Location: Moncton, New Brunswick Photography | Photographe : Julian Parkinson Builder | Constructeur: Rice Contracting Ltd. Consulting team | Équipe de consultants o Crandall Engineering Ltd. (Shawn Burke, Michael McCabe) o RSEI Consultants Ltd. (Tracey McDade) o J.M. Giffin Engineering Inc. (John Green) o Virdis Design Studio Ltd. (Tina Beers)

Imperial Theatre Lobby & Marquee Renovation

Lead Architect | Architecte principal du projet : Melissa Wakefield Firm Name| Nom de la firme : EXP Architects Inc. Location: Moncton, New Brunswick Photography | Photographe : Mark Hemmings Builder | Constructeur: Avant Garde Construction Management Consulting team | Équipe de consultants o EXP Services (Eric Lidstone, Chris Gardener, Scott Porter)
Irving Oil Home Office Lead Architect | Architecte principal du projet : Patrick Fejér Firm Name| Nom de la firme : B + H Architects Inc. Location: Saint John, New Brunswick Photography | Photographe : Ema Peter Photography Consulting team | Équipe de consultants o B+H Architects Inc. o RJC o TMP o MBII o FCC Ellis Don Joint Venture

Municipal Operations Centre

Lead Architect | Architecte principal du projet : Alain Malenfant

Firm Name| Nom de la firme : Architects Four Limited

Location: Shediac, New Brunswick

Photography | Photographe : Alain Malenfant

Builder | Constructeur: J.W. Lindsay Enterprises Ltd.

Consulting team | Équipe de consultants

o Crandall Engineering (Shawn Burke)

o MCW Maricor (Michael Gillis)

o MCW Maricor (David D. McPherson)

o JOMA Engineering Group (Martin Gionet)

o BDA Landscape Architects (Jim Sakcville)

Office

New
Building–467 Main Street Lead Architect | Architecte principal du projet : Sylvain Lagacé Firm Name| Nom de la firme : Caron Lagacé Architecture + Design Location: Bathurst, New Brunswick Photography | Photographe : Robert Fisher Photography Builder | Constructeur: Consilio Development Consulting team | Équipe de consultants o JOMA Engineering Group (Marc LeBlanc) o Valancorp Group (Serge Landry) o Viridis (Tina Beers)

On The Boardwalk

Lead Architect | Architecte principal du projet : Monica Adair & Stephen Kopp

Firm Name| Nom de la firme : Acre Architects Inc.

Location: Florenceville-Bristol, New Brunswick Photography | Photographe : Mark Hemmings

Builder | Constructeur: Rob Roy Builders & Rivir Builders, Matt Hussey Consulting team | Équipe de consultants

o Mayberry Engineering (Bill Mayberry)

o Fundy Engineering (Ryan Gosson, Ken Carson)

Restigouche River Experience Centre

Lead Architect | Architecte principal du projet : Carole Caron

Firm Name| Nom de la firme : Caron Lagacé Architecture + Design

Location: Campbellton, New Brunswick Photography | Photographe : Christopher Lovegrove

Builder | Constructeur: Rivac Construction Inc. Consulting team | Équipe de consultants

o CYR Engineering (Rogers Cyr)

o MCW Maricor (Michael Gillie, Claude Dupuis)

o Groupe GID Design

Picaroons General Store

Lead

Firm

Architect | Architecte principal du projet : Monica Adair & Stephen Kopp
Name| Nom de la firme : Acre Architects Inc. Location: Saint John, New Brunswick Photography | Photographe : Mark Hemmings Builder | Constructeur: Elevation Contractors, Jonathan Dutra

Sommarhus

Lead Architect | Architecte principal du projet : Mathieu Boucher-Côté

Other Architectural credits | Autres members de l’équipe d’architecture : Marika Drolet-Ferguson

Firm Name| Nom de la firme : Nordais Architecture Inc.

Location: Tracadie, New Brunswick

Photography | Photographe : Félix Michaud

Consulting team | Équipe de consultants

o Vertex Solar Solutions (Annie Haddad)

o Armoires Qualitek

The Gallery

Lead

House
Architect | Architecte principal du projet : Monica Adair & Stephen Kopp Firm Name| Nom de la firme : Acre Architects Inc. Location: Renforth, New Brunswick Photography | Photographe : Julian Parkinson Builder | Constructeur : RIVIR Builders, Matt Hussey & Todd Waller Consulting team | Équipe de consultants o Bill Mayberry Engineering (Bill Mayberry)

UNB Centre for Healthy Living

Lead Architect | Architecte principal du projet : (late) Andrew McGillivary

Firm Name| Nom de la firme : Architects Four Limited

Location: Fredericton, New Brunswick

Photography | Photographe : Julian Parkinson, (late) Andrew McGillivary, Alain Malenfant

Builder | Constructeur : Bird Construction

Consulting team | Équipe de consultants

o CBCL Limited (Mark Kohler)

o MCW Maricor (Scott Shreenan, Claude Dupuis)

o Eastern Designers & Company Limited (Deborah VanSluke)

o A Day in Life Foodservice Development (Patrick Watt)

The Sheds of

Charlotte County Lead Architect | Architecte principal du projet : Monica Adair & Stephen Kopp Firm Name| Nom de la firme : Acre Architects Inc. Location: L’Etete, New Brunswick Photography | Photographe : Double Space Builder | Constructeur : Rob Roy Builders, Matt Hussey Consulting team | Équipe de consultants o Bill Mayberry Engineering (Bill Mayberry)

Lead Architect

UNBSJ Beckett Residence
| Architecte principal du projet : Darroch White Firm Name| Nom de la firme : D.M. White Architecture Inc. Location: Saint John, New Brunswick Photography | Photographe : M.E. Swain / D.M. White Builder | Constructeur : Maxim Construction Consulting team | Équipe de consultants o MCW Maricor (Steven Erb) o TEK Consultants (Brandon Fictorie) o CBCL Limited (David Parsons) o R.A. Lawrence Engineering (Graham Lawrence) o Atlantic Hardware Consultants (Graham Beaney)

Unbridled

Path Lead Architect | Architecte principal du projet : Monica Adair & Stephen Kopp Firm Name| Nom de la firme : Acre Architects Inc. Location: Rothesay, New Brunswick Photography | Photographe : Julian Parkinson Builder | Constructeur : MRB Contracting, Mike Burns Consulting team | Équipe de consultants o Mayberry Engineering (Bill Mayberry)

Whitebone

UNBSJ
Pizzeria Renovation Lead Architect | Architecte principal du projet : Sanaz Shirshekar Firm Name| Nom de la firme : Studio Shirshekar Inc. Location: Saint John, New Brunswick Photography | Photographe : Mark Hemmings Builder | Constructeur : Kustom General Contracting Ltd. Consulting team | Équipe de consultants o MCW Maricor (Dan O’Rourke, Stephen Erb) o R.A. Lawrence Engineering Ltd (Graham Lawrence)
UNI Lead Architect | Architecte principal du projet : Maxime Riopel Firm Name| Nom de la firme : CARTA, atelier d’architecture inc. Location: Petit Rocher, New Brunswick Photography | Photographe : Julian Parkinson Builder | Constructeur : Foulem Construction Consulting team | Équipe de consultants o Roy Consultants (Michel Dufresne)

USVA Nordik Spa

Lead Architect | Architecte principal du projet : Christian Hébert

Other Architectural credits | Autres members de l’équipe d’architecture : Léo Goguen

Firm Name| Nom de la firme : Design Plus Architecture Inc.

Location : Moncton, New Brunswick

Photography | Photographe : Geneviève Nolet

Builder | Constructeur : Bay Construction + Management Consulting team | Équipe de consultants

o Virdis Design Studio (Tina Beers)

o MATCH Engineering (Hélène Thériault)

o Englobe Engineering (Shawn Burke, Eric Woodworth, Esad Bahtijarevic)

Windsor Hall Residence Lead Architect | Architecte principal du projet : Stephen Outerbridge Firm Name| Nom de la firme : EXP Architects Inc. Location: Sackville, New Brunswick Photography | Photographe : Julian Parkinson Consulting team | Équipe de consultants o EXP Services (Stacy Muse, Eric Lidstone, Gregory Spears, Scott Porter)

Special thanks to our Jury Members

James Wagner: Architect and practitioner in Manitoba. Former Chair of the Committee for the Examination for Architects in Canada; Director with the Winnipeg Architecture Foundation; and former President of the MAA.

Julie Scriver: Creative Director and Senior Designer at Goose Lane Editions

Holly Hinds: Architect and member of the Architects Association of Prince Edward Island. Holly has served in various capacities on AAPEI Council and is Manager, Building Maintenance and Accommodations with the Department of Transportation & Infrastructure PEI.

Turn static files into dynamic content formats.

Create a flipbook
Issuu converts static files into: digital portfolios, online yearbooks, online catalogs, digital photo albums and more. Sign up and create your flipbook.