Aakash Gupta - Graduate Portfolio

Page 1


AAKASH GUPTA

PERSONAL STATEMENT

The architect, in essence, plays the role of a curator. They bestow sanctity upon and celebrate a phenomenon that existed long before their involvement. While the architect takes full authorship in the sense that their intervention enables the subject’s appreciation, it’s important to recognize that the subject possesses its own authenticity regardless of architectural influence. It’s this enduring authenticity, rooted in the events and social context of the past, that lends substance and significance to the subject.

AAKASH SANTOSH GUPTA

EDUCATION

Master of Architecture (Advanced Standing) | January 2022 - December 2023

Illinois Institute of Technolohy

Academic achievement GPA: 4.0 | 2023

Bachelor of Architecture | August 2016 - June 2021

Thakur School of Architecture and Planning

Academic achievement GPA: 3.2

SKILLS SUMMARY

Rhinoceros

3D modeling

Revit

Autocad

RELEVANT EXPERIENCE

Corgan, Dallas| Project Specialist - Education Sector| February 2024 - Present

https://www.linkedin.com/in/aakash-gupta-19b426141/ agupta133@hawk.iit.edu

• Engaged in construction documentation and administration for educational projects, ensuring timely delivery and adherence to budget.

• Utilized Rhino, Grasshopper, and Python for advanced 3D modeling and automation, enhancing design efficiency.

• Coordinated stakeholder communications, translating requirements into actionable project plans.

• Developed high-quality visualizations using Revit, Enscape, and Lumion, effectively communicating design concepts.

JLK, Chicago| September 2023 - December 2023

• Spearheaded the redevelopment of the Chicago Botanical Garden, drafting detailed construction drawings in Revit.

• Created interior concepts and photo-realistic renders for high-profile projects like Robbie House and Chicago Brew House using Rhino and Lumion.

Fujikawa Johnson Gobel, Chicago| June 2023 - August 2023

• Contributed to major aviation projects in Chicago, focusing on interior renovations and new facade designs for airports.

• Enhanced client meetings by integrating detachable features into scaled model facades.

ACHIEVEMENTS

Spring Student Awards, Illinois Institute of Technology | June 2022

First place winner of the competition and honored for Best Original Design Idea

Led a team of 3 students to design or our project “Synchronicity: An Aviary and Bird Conservation Center”- 2022

Won the Brother’s Finfer Scholarship for the project and was awarded the Best Design in M-Arch studio

Peterhans Awards, Illniois Institute of technology | June 2023

Runner Up for Best Sustainable Design Competition

Led a team of 3 students to design or our project Anastomosis - Hybrid Mixed Housing In Chicago,” -2022

Runner Up For the Individual Project nominated from course Design visualization -2023

Chicago Award in Architecture , AIA Chicago Foundation | October 2022

Honorable mention - 1 out of 10 mentions out of 200 entrants

Proficient use of Revit, Photoshop and InDesign to produce drawings in timely manner

International Design Competition, Archdaily| 2020

Honorable mention - Rethinking Office Build Spaces 2019-2020

I envisioned the future of office spaces, utilizing Lumion and Revit to produce realistic renderings of these innovative concepts.

First Place Runner Up
Honorable Mentions
Honorable Mention

SELECTED PROJECTS

TRILLIUM [COMMERCIAL]

Pg- 6 -15

ANOSTOMOSIS [HYBRID HOUSING]

ECOVARCITY [URBAN PLANNING] Pg- 16-23

URBAN OASIS [ONGOING PROJECT]

SYNCHRONICTY [INSTITUTIONAL]

Pg- 24-35

HORIZON [HIGHRISE RESIDENTIAL]

T-HUB [INCUBATOR]

AAROGYA [NEUROREHAB CENTRE] Pg- 36-45

COMMUNITY CENTRE [INSTITUTIONAL]

DOLCE AND GABBANA [INTERIOR DESIGN]

TRILLIUM

MULTI MODAL TRANSPORTATION HUB

ACADEMIC TERM: ARCHITECTURAL DESIGN | 2020

PROFESSOR: AR. SUVARNA LELE

TYPE: COMMERCIAL

SITE: BANDRA, MUMBAI, INDIA INDIVIDUAL PROJECT

“I really believe in the idea of the future. It’s a wonderful possibility. I love the idea that our cities can be more beautiful, more logical, more functional, more green, and more sustainable.”

The name “Trillium” is not just a geographical reference but also a symbol of spiritual embodiment and conscientiousness. It represents precision, elegance, and grace in its architectural concept. At the core of this design philosophy is the idea of connectivity and centrality. Just like a Trillium flower has a focal element from which its petals radiate, the building’s design revolves around a central concept.

The choice of locating the multi-modal transit hub at the junction of Bandra East and West signifies a sustainable urban planning approach. By centralizing transportation services, it promotes the use of public transit and reduces individual vehicle emissions.

The building’s layout is carefully designed to maximize natural ventilation and daylighting. Well-placed openings and windows facilitate crossventilation, reducing the need for mechanical cooling and ventilation systems during favorable weather conditions. Abundant natural light reduces the dependence on artificial lighting, saving energy. High-efficiency insulation, energy-efficient windows, and smart building control systems contribute to reduced energy consumption. The design may also incorporate renewable energy sources, such as solar panels, to further lower its carbon footprint.

The building’s materials includes thermal mass elements, which help regulate indoor temperatures by absorbing excess heat during the day and releasing it at night, maintaining a comfortable environment.

Trillium embodies a holistic approach to sustainable architecture. It not only aims to create a visually striking and functional space but also strives to minimize its environmental impact through thoughtful and integrated passive design strategies. This commitment to sustainability aligns with the growing global emphasis on responsible and eco-conscious architecture.

1. Typical Program
3. Linearized Ritual
5. Subliminal Structure
2. Orientation
6. Extend Openings
4. Accessing the Vertical

1 - STAGGARED PROJECTIONS

Staggered projections on the West, South, and East sides of the commercial building dissipate heat and glare throughout the day, keeping office spaces cooler.

2 - GREEN POCKETS PROVIDED IN THE STRUCTURE

Green pockets and interior green spaces are strategically integrated into the structure to create a seamless connection between the built environment and the natural surroundings. This infusion of greenery not only enhances the liveliness of the space but also serves a functional purpose. Specifically, the green floors located adjacent to openings on the North and South Western facades play a crucial role in cooling the incoming winds, thereby optimizing the building’s environmental sustainability.

3 - EXPLODED

The Incorporation used for the functionality dense concrete

EXPLODED VIEW OF THE

Incorporation of various deign techniques and passive design ideas functionality of the building sets the building apart from the concrete fabric of Bandra and adds a greener touch to the indoors.

4 - PASSENGER AREA VENTILATION

The ground level passeneger facility has various openings and many passive cooling fixtures on the soth west side such as fins and louvers which allows the utmost wind inside the structure futhermore redcucing the solar glare coming from the west.

Some openings are even provided on the nothern side to facilitate cross ventilation . The trees are used to cool the humid winds coming from the south west

TRILLIUM

The roof profile is made from Space frame supported by Truss System resting on column and covered by PTFE sheet which will ecourage more daylight inside the structure and also bring compartively less heat inside the building

Openings on the South West side provide cross ventilation, harnessing prevailing winds. Northern openings maximize natural light intake. These openings double as seating and recreational spaces, enhancing both sustainability and user experience.

The Focal Void which has been provided at the center of the passenger facility of the Trillium will not only make daylight more accessible to the structure but also act as an element of human experience which would persuade people to visit the transit hub.

Staggered projections on the West, South, and East sides of the commercial building dissipate heat and glare throughout the day, keeping office spaces cooler.

Ventilated Parking Tower Facade -The facade is wherein the lovers allow the light to penetrate the parking tower while at the same time keeping it ventilated, enabling the gas to expand in the tower to escape.

FOCAL VOID- LIGHT WELL
PARKING TOWER ENTRANCE
ENTRANCE TO PASSENGER FACILITY
ENTRANCE TO TRILLIUM
PASSENGER FACILITY

The solar heat study conducted on the structure revealed that despite direct sunlight exposure, there is remarkably low heat gain within the building. This is attributed to the materials used and the passive design strategies incorporated in the project.

Study Done Through : Revit Plugin - Solar Analysis

ECOVARcITY

UNIVERSITY CAMPUS REIMAGINED

ACADEMIC TERM: SPRING SEMESTER | 2023

PROFESSOR: CHRISTOPHER GROSEBACK, VEDRAN MIMICA

TYPE: URBAN PLANNING

SITE: RIJEKA, CROATIA

COLLABORAOR: MILY NASIT, BILLY LABUD

PROJECT STATEMENT

The proposal “Quad.Ran. Gle” seeks to transform the underdeveloped University of Rijeka campus in Croatia. This initiative aligns with Rijeka’s status as the European City of Culture in 2020 and its focus on art and culture. Key elements of the proposal include repositioning the university to integrate emerging technologies and create a network of “multiversities” in the EU, as advocated by Emmanuel Macron. The central concept, Quad.Ran. Gle, is a flexible block system that combines university and community programs. The goal is to make the campus a hub for innovation, referred to as “Fantastk Zones,” and promote the idea of “University as City and City as University.”

CONCEPTUAL COLLAGE

THE INTERIOR VIEW FROM THE LIBRARY, AS IT GAZES OUT TOWARD THE PLAZA AND ITS SURROUNDINGS, EXUDES A REMARKABLE TRANSPARENCY THAT ELEVATES THE SPATIAL AMBIANCE OF THE AREA.

LIBRARY

The library is at the heart of our vision for a vibrant student and community hub. It serves as a gateway to the undeveloped north side of the campus and functions as a bridge, connecting various areas of the campus. It also acts as a visual link to the broader City of Rijeka.

Inside, the library is designed to foster interdisciplinary connections, creating a bridge within a bridge that celebrates the integration of all academic disciplines into a cohesive whole. This space serves both as a serious research and study area and as a social and collaborative space for groups.

Physical model

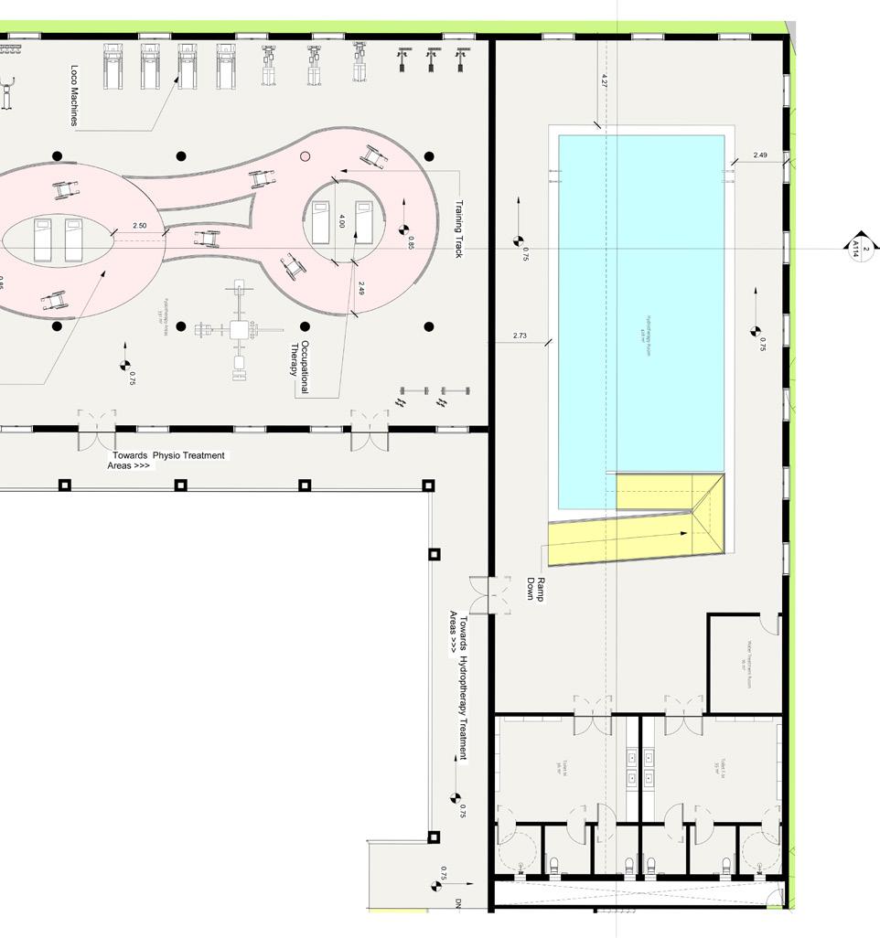
Recreational Centre

Fitness Centre - Pool

RECREATIONAL CENTRE

The recreational center boasts a pavilionlike design, featuring expansive open spaces that invite building occupants to engage fully. Spanning the height of the entire structure, a central enclosed void serves as the architectural centerpiece, allowing abundant natural light to permeate the space. An environmentally separated pool area not only enhances the visual appeal but also establishes a dynamic connection among various functions. The result is a spectacular panorama that showcases the metropolitan areas and landscapes of this unique location.

This central void doubles as a magnificent space for the fitness center, offering a grandiose view that elevates the exercise experience. Encircling the recreational center are two residential buildings, their structures echoing the landscape steps found in the library. The open expanse between the residential buildings and the fitness center guides you toward an integrated stadium seamlessly woven into the landscape. This thoughtful arrangement completes the central spine of our campus, harmonizing nature, community, and activity in a captivating blend.

Stepped Landscape Between Rec Centrer and Adjacent Resedential

“Our proposal rethinks the role of the isolated single purpose building and transforms this to the multi-purpose block that is defined by its open space and its ability to allow multiple programs that complement each other and forms a future city both connected and open that reinforces the social and cultural connections so threatened by Global Capitalism that seeks to “homogenize the world versus extracting the “genius loci” and genius of place.”

AVIARY DESIGN SYNCHRONICITY

ACADEMIC TERM: SPRING SEMESTER | 2022

PROFESSOR: ANDREW METTER AIA, DAVID BRININSTOOL

TYPE: AVIARY- INSTITUTIONAL

SITE: CHICAGO, ILLINOIS, USA

COLLABORATOR : GABIJA ZEMAITIS, ORE OLAYINKA

WINNER BROTHER’SFINFER SCHOLARSHIP 2022

FEATURED PROJECT AIA CHICAGO OPEN HOUSE 2022

Excellence Award BEST DESIGN OF COLLEGE 2022

FEATURED PROJECT

Peterhans Award 2023

SYNCOPATION

Syncopation, a musical concept, involves disrupting the regular rhythmic pattern by accenting off-beat notes or creating unexpected pauses. In this design, the application of syncopation introduces disruptions and variations in visual elements to create a sense of rhythm and engagement. The goal is to evoke emotions, direct the viewer’s attention, and make their spatial experience more memorable and distinctive.

INTRODUCTION

The project is conceived as an amalgamation of exhibitions, embracing the intersection of various systems, demographics, programs, and activities. The building simply manifests the complex nature and needs of the site into a built form, result in a chain reaction of unexpected events and situations. Our aviary design strategy is characterized as syncopation. Syncopation

Architecture is the frame of life. It is the background to all the subtle and fundamental expressions of human life.

is defned as “the displacement of regular accents associated with given metrical patterns, resulting in a dis-displacement of regular accents associated with given metrical patterns, resulting in a dis-ruption the Users expectations”. The spaces and elements in the aviary are aranged in such a way that it is meant to create an experience at every point for its user. While the mat building doesn’t offer a complex shape, it allows for the roof strucutre to become the focal point of the design. Our hope is to create an area that feels seamless to the inside and outside for both the birds as well as the visitors of the aviary.

SITE

ISOMETRIC VIEW

SUNPATH

SITE PLAN

FIRST FLOOR PLAN

EXPLODED AXINOMETRIC VIEW

PROGRAMS DIAGRAM

CIRCULATION

ROOF PLAN

NORTH - SOUTH SECTION
EAST - WEST SECTION

STRUCTURAL CONCEPT

The combination of Geodesic dome structures, fabric coverings, and ETFE technology presents an innovative approach to architectural design. These domes create large span openings that are versatile and functional for a wide range of applications. Additionally, the use of ETFE in one of the domes ensures

precise temperature control and energy efficiency, making it a sustainable and adaptable solution. Coupled with a green slab foundation, this concept represents a harmonious blend of structural efficiency and environmental consciousness in modern architecture.

12” SOIL

1/2” FILTER FABRIC

1/2” MOISTURE RETENTION LAYER

1/2” AERATION LAYER

4 1/2” THERMAL INSULATION

1” DRAINAGE LAYER

1” ROOT BARRIER

1” MEMBRANE PROTECTION

1” WATERPROOFING MEMBRANE

14” CONCRETE

CASE 1
CASE 2
GRASS

Each program block has its own floor plate, and facade that expresses its nature and purpose. Not only does it promote diversity, it allows for intuitive way finding. Public spaces enclosed within these blocks of program blocks result in urban living rooms with textured wallpapers. These rooms are scaled in between urban and architecture, enabling a new public strata for interaction and meeting for visitors and users alike.

Rendered view of atrium

AAROGYA

NEURO- REHABILITATION CENTRE

ACADEMIC TERM: BACHELOR THESIS | 2021

PROFESSOR: AR. MELISSA PEREIRA

TYPE: HEALTHCARE

SITE: THIRUVANANTHAPURAM, KERALA, INDIA

INDIVIDUAL PROJECT

India ranks fourth globally in neurological disorder-related deaths (GBD 2017), yet this issue remains largely unaddressed in the country’s acute care sector. While neurorehabilitation services exist, their quality is hindered by the absence of a well-structured infrastructure, impacting the delivery of comprehensive rehabilitation. Addressing this issue is vital for improving neurological care in India.

The GBD 2017 study underscores Kerala’s prolonged battle with neurological disorders, underscoring the need for a NeuroRehabilitation Center, benefiting patients not only locally but nationally. Kerala’s distinctive features, like its pleasant climate, scenic backwaters, and Ayurvedic heritage, provide an ideal backdrop for healing architecture. Being the birthplace of Ayurveda further amplifies the appeal of establishing a neuro rehab center in the state.

The key concept of Neuro Rehabilitation in Kerala integrates vernacular architecture, using locally sourced materials like Mangalore tiles and bricks to enhance sustainability and a sense of belonging. Given that the neuro rehabilitation model represents a relatively novel concept in India, it became crucial to design the building in a way that exudes an inviting atmosphere, ensuring that patients feel welcomed and comfortable within this innovative healing environment

INTRODUCTION

This project is deeply rooted in the principles and potential of “Healing Architecture,” specifically as it pertains to a Neuro Rehabilitation Centre. In this context, our foremost concerns are accessibility and the spatial quality of the environment, both of which play a pivotal role in shaping the overall design of the facility.

“An elevator, which is well marked and easy to find, is accessible, but ,not applicable, if the control panel is not designed for everyone to use. In anaccessible and applicable environment, any person without help from another person can move from one place to another, and spontaneously be able to gather the necessary functions“

Our project’s vision is to create a building that goes beyond mere functionality; it’s about establishing a space where universal accessibility is at its core, allowing each person to move through it effortlessly. This emphasis on accessibility is not merely a matter of convenience; it’s a profound means of granting patients a newfound sense of independence, which can be life-changing.

More significantly, our project is a dedicated endeavor to significantly improve the quality of life for neuro patients in India. Often overlooked, they bear the heavy burden of suffering due to a lack of specialized care tailored to their unique needs. We see our mission as mending these invisible wounds and shining a beacon of hope and recovery for those who are often left behind by healthcare systems. It’s about acknowledging their struggles and ensuring they receive the support they need to regain a meaningful and fulfilling life.

This is the entrance to the Rehabilitation Center, with the Visitors Block serving as a gateway to the Administrative Block, Cafe, and Restaurant, all dedicated to the use of patients, doctors, and visitors. The Visitors Block connects to the doctors’ cabins and various treatment areas. It’s designed to create a welcoming atmosphere, with ample natural light and lush green spaces integrated throughout the area.

PHYSIOTHERAPY

OCCUPATIONAL

HYDROTHERAPY

This block houses the treatment occupational therapy, physiotherapy, all equipped with cutting-edge apparatus for patient care. It is amenities and therapeutic gardens, healing environment.

CAFE
VISITORS BLOCK TREATMENT
ADMIN
RESTAURANT
SECTION THROUGH THE VISITORS BLOCK
SECTION THROUGH

TREATMENT BLOCK

treatment zones, encompassing physiotherapy, and hydrotherapy spaces, techniques and essential is enveloped by recreational gardens, enhancing the overall

The Ayurveda Block is designed to authentically embody Kerala’s traditional aesthetics, featuring an inner courtyard and encircled by therapeutic spaces. It includes massage and sauna areas with cross ventilation and lush green surroundings. Additionally, the block incorporates mud bath zones and is complemented by doctors’ consulting spaces.

AYURVEDIC BLOCK
MASSAGE + SAUNA
MUD BATH
SPINAL ROOM
THROUGH THE TREATMENT BLOCK
SECTION THROUGH THE AYURVEDIC BLOCK

The Neuro Rehabilitation Centre has been designed with Kerala’s vernacular architecture, using Mangalore tiles and load-bearing walls for the roof’s support. Various truss systems were employed, enhancing the structure’s sustainability. This approach reduces the carbon footprint, and promotes a more eco-friendly and culturally relevant healthcare facility.

Sky Light Fixing at Hip
Wall Connection to Tie Beam
Exploded Axinometric View Of The Visitors Block
Valley Board
Gusset Plate
VALLEY DETAIL
SLOPING ROOF CONNECTION

DESIGN COMMUNICATION THE PORTAL

ACADEMIC TERM: FALL SEMESTER 2022

PROFESSOR: DANIEL CAVEN

TYPE: COURSE-WORK

INDIVIDUAL PROJECT

SCULPTURE DESIGN

The sculpture’s dynamic elements is evolving over time, the Multiverse Portal Sculpture is a captivating and thought-provoking public art installation that bridges the gap between art and science. This could include different lighting patterns, soundscapes, or even artistic reinterpretations to keep the installation fresh and intriguing for both newcomers and repeat visitors.

Softwares used- Rhino 7.0, Grasshopper, Lumion, Photoshop, AI generated Pattern

AI Generated Pattern

Contact:

agupta133@hawk.iit.edu

https://www.linkedin.com/in/aakash-gupta-19b426141/

Turn static files into dynamic content formats.

Create a flipbook
Issuu converts static files into: digital portfolios, online yearbooks, online catalogs, digital photo albums and more. Sign up and create your flipbook.