




Sistemas para fachadas translucidas en policarbonato






















constructora.casas@gmail.com www.casasnovas.com.do
@constructora_casasnovas_srl




























www.aaamag.com |

@revista.aaa


Clasificados Profesionales
![]()





Sistemas para fachadas translucidas en policarbonato






















constructora.casas@gmail.com www.casasnovas.com.do
@constructora_casasnovas_srl




























www.aaamag.com |

@revista.aaa


Clasificados Profesionales
Daniel Bermúdez, Ramón Bermúdez y Diego Bermúdez

Bermúdez Arquitectos es una empresa familiar radicada en Colombia. Fue fundada por el Arquitecto Daniel Bermúdez Samper hace más de 40 años. Su amplia experiencia en proyectos de arquitectura le ha aportado reconocimiento nacional e internacional. En el año 2015 se unieron a la sociedad dos de sus hijos, Ramón y Diego, para abarcar trabajos de diseño arquitectónico, urbanístico y de paisaje.
B|A es ampliamente reconocida por proyectos de gran escala como las Bibliotecas del Tintal y Julio Mario Santo Domingo, los edificios realizados en la Universidad de los Andes y la Jorge Tadeo Lozano, y el Ágora Bogotá Centro de Convenciones.
En los últimos años la oficina ha ganado concursos y recibido encargos, que incluyen el diseño de grandes zonas exteriores. Destacamos entre ellos proyectos como el ETCAN, las cuatro sedes de la Universidad Minuto de Dios en Villavicencio, Neiva, Ibagué y Bogotá, el hotel Astronómico de Villa de Leyva y el proyecto de adaptación al cambio climático del barrio Boston de Cartagena.
Entender a cabalidad cada problema y encontrarle solución es uno de los cometidos principales de Bermúdez Arquitectos. Para tal fin se requiere la colaboración de muchos expertos, cada uno de los cuales aporta su conocimiento específico, guiados por los arquitectos y su equipo de trabajo. Las respuestas provistas definen espacios para llevar a cabo actividades humanas en circunstancias de seguridad, confort y belleza. Los edificios resultantes tienden a la comprensión, conducción y resolución del conjunto de condiciones y contradicciones que rodean los procesos de diseño, atendiendo en primer orden los requerimientos de la ciudad y de la sociedad. Sus obras han desencadenado importantes procesos de regeneración urbana en las ciudades en las que se emplazan y se han convertido en íconos y símbolos de importancia institucional y cultural.

Correo: info@bermudezarquitectos.com
Página web: www.bermudezarquitectos.com Instagram: @bermudezarquitectos





Portada: The Greater Accra
Regional Hospital at Ridge en Accra, Ghana obra de Perkins+Will
Foto: Mark Herboth
ARCHIVOS DE ARQUITECTURA
ANTILLANA
Director/Editor
Gustavo Luis Moré
Coeditor
Marcos A. Blonda
Consultor de Diseño
Massimo Vignelli (†)
Directora de Arte
Chinel Lantigua
Diseño Gráfico Editorial
Jhosua Rodríguez
Sección Interiores
María del Mar Moré
Asistentes Gráficos
Manuel Flores
Fotografía
Gustavo José Moré (Photogum)
Ricardo Briones / Luis Nova
Gerente Administrativa
Madeline Espinal
Gerente de Ventas y Mercadeo
Patricia Reynoso
Consultora de Mercadeo
María Elena Moré
Corrección de Estilo
Raquel Pellerano
Gustavo Luis Moré
Traducción
Dolly Pellerano
Asistente
Luis Checo
Preprensa e Impresión
Serigraf
Santo Domingo, RD
Suscripción, venta y publicidad
Santo Domingo, RD
Patricia Reynoso
Tel 809 687 8073 / Fax 809 687 2686
Miami, Fl
Laura Stefan
Cel 786 553 4284
San Juan, PR
Emilio Martínez
Tel 787 726 7966
Santiago de Chile
Humberto Eliash
56 22 480 3892
Antillas Francesas: Gustavo Torres, Serge Letchimy, Jack Sainsily, Bruno Carrer
Argentina: Ramón Gutiérrez, Fernando Diez, Mario Sabugo, Cayetana Mercé, Jorge Ramos (†)
Bahamas: Diane Phillips
Bolivia: Javier Bedoya, Gustavo Medeiros
Brasil: Ruth Verde Zein, Hugo Segawa, Roberto Segre (†)
Chile: Humberto Eliash, Andrés Téllez, Sebastián Irarrázabal, Horacio Torrent, María de Lourdes Muñoz
Colombia: Silvia Arango, Carlos Niño Murcia, Alberto Saldarriaga Roa, Sergio Trujillo, Claudia Fadul, Daniel Bermúdez, Lorenzo Fonseca, Gilberto Martínez
Costa Rica: Bruno Stagno, Luis Diego Barahona
Cuba: Eduardo Luis Rodríguez, José Antonio Choy, Omar López, Mario Coyula (†)
Curazao: Ronald Gill, Sofía Saavedra, Ronny Lobo, Michael Newton
Ecuador: Sebastián Ordóñez
El Salvador: Francisco Rodríguez
Guatemala: Blanca Niño Norton, Ana Ingrid Padilla, Cristian Vela, Raúl Monterroso
Jamaica: Patricia Green, Jaquiann Lawson, Patrick Stanigar, Mark Taylor, Robert Woodstock
México: Louise Noelle, Fernando Winfeld, Jaime García, Eliana Martínez, Carlos Flores M. (†)
Panamá: Silvia Vega, Eduardo Tejeira Davis (†), Sebastián Paniza, Carlos Morales
Paraguay: Jorge Rubiani
Perú: Pedro Belaúnde
Puerto Rico: Manuel Bermúdez, Segundo Cardona, Luis Flores (†), Emilio Martínez, Ricardo Medina, Andrés Mignucci, Jorge Rigau, Enrique Vivoni
Rep. Dominicana: Rafael Calventi, Eugenio Pérez Montás, Esteban Prieto Vicioso, Mauricia Domínguez, Omar Rancier, José Enrique Delmonte, Lowell Whipple, George Latour, Marianne de Tolentino
Suriname: Jacqueline Woei A. Sioe
Trinidad y Tobago: Mark Raymond, Jenifer Smith
Uruguay: Sebastián Schelotto, Conrado Pintos, Nelson Inda
Venezuela: Carola Barrios, Francisco Feaugás, Ramón Paolini, Enrique Larrañaga, Martín Padrón, David Gouverneur, Federico Vegas
ESTADOS UNIDOS DE AMÉRICA
Honolulu: William Chapman
Miami: Roberto Behar, Andrés Duany, Elizabeth Plater-Zyberk, Rafael Fornés, Carmen Guerrero, Luis Trelles, Teófilo Victoria, José Gelabert Navia, Jean François Lejeune
New York: Joaquín Collado, Rafael Albert, Germán Pérez, Rafael Álvarez
Washington D.C.: Aurelio Grisanti, Francisco Ruiz
COMUNIDAD EUROPEA
Austria: Mayra Winter
España: Antonio Vélez, Lluis Hortet, Oswaldo Román, Víctor Pérez Escolano, Juan Antonio Zapata
Francia: Kyra Ogando
Italia: Carmen Amelia Corsani, Stefano Topuntoli, Julia Vicioso
Suiza: Marilí Santos Munné
Japón: Cathelijne Nuijsink
AAA © es una edición trimestral. Publicada en marzo, junio, septiembre y diciembre.
Santo Domingo: Número 70, septiembre 2019.
Para envío de colaboraciones, cartas o informaciones favor contactar al editor en: Gustavo Luis Moré / AAA, E.P.S. P-4777, 8260 NW 14th st. Miami, Florida 33191 USA.
Dirección oficinas de redacción: Calle Benigno Filomeno Rojas #6, Penthouse 7 Norte, Torre San Francisco. Santo Domingo, República Dominicana.
Tel.: 809 687 8073. Fax: 809 687 2686.
E-mail: gustavoluismore@gmail.com Sitio Internet: www.archivosdearquitecturaantillana.com
Permitida la reproducción parcial siempre que se admita la fuente.
El editor no se hace responsable de los conceptos emitidos por los articulistas.
Publicación registrada con el No. 83238 del 15/4/96 en el Ministerio de Industria y Comercio de la República Dominicana ©. ISSN 1028-3072. LCCN 99110069 sn 98026218 OCLC number (OCoLC) ocm 40640773
Gustavo Luis Moré
CARIBBEANA
ReconocimientoAAA50+:
CasaBarlettaRainieridelArq.MarcialPouRicart
Gustavo Luis Moré/ Marcos A. Blonda
ReseñadeObra:PremioLatinoamericanodeArquitecturaRogelio
Salmona:espaciosabiertos/espacioscolectivos,TercerCiclo2018
Fundación Rogelio Salmona
ReseñadeObra:MaríaCantisano a la WesAnderson
María Cantisano/ Marcos A. Blonda
Marcos A. Blonda
OBRAS
TorreBancoPanamá,CiudaddePanamá,Panamá
Estudio Herreros con la colaboración de Mallol y Mallol
Estudio Herreros
Bermúdez Arquitectos y Estudio Herreros
delaUniversidaddelosAndes, Bogotá,Colombia
Bermúdez
Bogotá,Colombia
Bermúdez Arquitectos EstacióndePolicíaLaMacarena,
Bogotá,Colombia Bermúdez
Bogotá,Colombia
Bermúdez
Bermúdez Arquitectos
CementerioenLaCalera,LaCalera,Colombia
EspaciopúblicoenLaTebadia,Colombia
Bermúdez Arquitectos
TheGreaterAccraRegionalHospitalAtRidge,Accra,Ghana
ResidenciaAltodePinheiros,SãoPaulo,Brasil 130
Perkins+Will
PlazadelaRevoluciónAntonioMaceo,
SantiagodeCuba
Choy-León Arquitectos
RemodelaciónyampliacióndelHotelHabanaRiviera, 152 LaHabana,Cuba
Choy-León Arquitectos
TerminaldeFerrocarriles,LaHabana,Cuba 158
Choy-León Arquitectos
ConjuntoResidencialTarará,LaHabana,Cuba 164
Choy-León Arquitectos
GVA Arquitectos
CampusQuerétaro,ArkansasStateUniversity,Querétaro,México 176
GVA Arquitectos
Dossier:
HelipuertoSantoDomingo,SantoDomingo,RepúblicaDominicana 180
Christiern H. Broberg
Gustavo Luis Moré
Tema raro este, pero frecuentísimo: ha sido práctica común, a todo lo largo de la historia, el que arquitectos de determinada procedencia ejecuten obras en lugares distantes a su origen. Alguna vez escribimos sobre los maestros góticos y los alarifes árabes, ni hablar de los arquitectos de la colonización ibérica en América.
Con el advenimiento de la modernidad y el establecimiento de gremios profesionales sustentados por las normativas oficiales, se pretendió definir fronteras en las que los autores de un lugar fueran los únicos vindicados para practicar allí. Decimos pretender, pues es harto conocida la presencia tanto física como cultural de infinidad de arquitectos en territorios ajenos a través de su influencia cada vez mayor, debido al aumento del flujo mediático en el mundo. Valga recordar la penetración del organicismo Wrightiano en Europa gracias al portafolio Wasmuth, o de las prédicas racionalistas de Gropius, Le Corbusier, Mies etc., en todo el mundo y en particular en el continente americano. Hoy en día es prácticamente imposible determinar el origen de las soluciones formales, e incluso de las corrientes filosóficas —si las hubiese— que las sustentan. El mundo se ha convertido en la verdadera aldea global, en un encuentro de vectores relacionados de infinitas maneras entre sí.
Esta edición AAA070, aborda, ya que aún podemos, un grupo de obras realizadas por autores de la más variopinta procedencia, que tiene entre ellos un rasgo en común: todos han elaborado proyectos previstos a ser ejecutados en la República Dominicana, o de hecho, de obras ya realizadas aquí. Este denominador común extrapola nexos quizás inexistentes entre ellos, excepto por aquellos que pudiéramos hilvanar en esta edición. Lo interesante recae en atisbar con curiosidad e imaginación, el enorme bloque de hielo que se sitúa bajo la punta del iceberg de la obra de cada autor. Además de las propuestas dominicanas, ¿qué otros intereses ocupan su cuerpo crítico? Qué caminos recorren sus especulaciones arquitectónicas?
Ese es el interés de la edición, brindar al lector un panorama de miradas a diversos contextos y de paso, explorar algunos de los proyectos y obras internacionales de alta calidad, que ocupan a estos destacados colegas.
El inventarios de arquitectos extranjeros que ha dejado su huella en la RD es amplio y meritorio. Para no irnos muy lejos, valga recordar en los inicios del siglo XX, la extraordinaria obra del checo Antonín Nechodoma, quien apuntala el eclecticismo local e introduce en la República Dominicana y Puerto Rico, el Prairie Style; pocos años después el boricua Pedro de Castro diseña y ejecuta obras de enorme sensibilidad en el lenguaje del Mediterráneo o Neohispánico, tan de moda en toda América a partir de la segunda década del mismo siglo.
La modernidad que se afinca junto a la dictadura trujillista a partir del 1930, recurre más bien a arquitectos e ingenieros locales; muchos de ellos sin embargo, demuestran una acusadísima influencia de los patrones arquitectónicos en boga en sus lugares de formación académica, tal es el caso de González, Caro, Ruiz Castillo, Gazón, los Pou Ricart, Hernández, etc. A pesar de la diversidad estilística que se evidencia en las obras de estos y otros diseñadores, a lo largo de más de 3 décadas, se logra percibir un sello particular y una afiliación a los esquemas propios de la época; como en muchos otros lugares, la arquitectura moderna penetra en la cultura local, adaptándose no solo a las condiciones climáticas, geográficas y culturales, sino hasta al marco político, por distante a las condiciones originales del fenómeno que este sea.
En dos de las convocatorias a concursos más sonadas en la República Dominicana, dos arquitectos internacionales resultan ganadores: el inglés Joseph Lea Gleave y el francés
André Dunoyer de Segonzac, son galardonados y logran completar, después de décadas de laboriosa incertidumbre, sus proyectos para el Faro a Colón, y la Basílica Nuestra Señora de la Altagracia, en Santo Domingo e Higuey, respectivamente, ambas obras muy emblemáticas de la cultura dominicana.
El español Javier Barroso, restaura en el año 1955 uno de los más reconocidos edificios de la colonia, el Alcázar de Colón, que también fue posteriormente intervenido después de la vicisitudes sufridas en el conflicto bélico del 1965, por el maestro mexicano Carlos Flores Marini. En otro tenor, el norteamericano William Cox se convierte en el pionero de los autores que han desarrollado por más de 40 años, las obras de Casa de Campo, en la Romana, el resort vacacional más prestigioso del país en el que también han realizado obras de gran calidad los arquitectos Joaquín Torres de ACero, Hugh Newell Jacobsen, Marco Aldaco, Roberto Coppa, Duccio Hermenegildo, Gianfranco Fini, Savin Coelle, Francisco Feaugás, y un largo etc.
En la ciudad capital de Santo Domingo y en otras localidades, muchos arquitectos han podido proponer proyectos de la más variada índole. El maestro mexicano Pedro Ramírez Vázquez diseña el monumento a Fray Antón de Montesinos; el colombiano Daniel Bermúdez realiza su obra para la empresa Koala; Richard Knoor, de Chicago, construye el Centro Acrópolis y especula en torno a varios desarrollos turísticos; el cubano José Antonio Choy plantea su esquema para unas edificaciones en la Cancillería Nacional; Perkins and Will de Miami, construye en la actualidad la clínica CEMDOE; la firma de Guadalajara GVA, ha montado una operación muy exitosa en Santo Domingo, actuando sobre todo en el ámbito inmobiliario; el dominico español Antonio Vélez Catrain ha hecho varias propuestas para obras en el país. El llamado a concurso del MITUR para las ruinas del Monasterio de San Francisco convocó a célebres autores internacionales: Juan Herreros, Rafael Moneo, Gonzalo Byrne, Nieto Sobejano, Paredes Pedrosa, el Consorcio Ingennus-Tecnalia, Consorcio ElementalArup, Shankland Cox, Epsa Labco- Euroconsult, Consorcio DSDHA-Inconserca, entre otros quienes no entregaron sus propuestas. El universo turístico ha visto innumerables propuestas de arquitectos extranjeros naturalizadas en el país; de hecho los arquitecos locales podrían ser la excepción. Las más cualificadas y de gran escala son las encabezadas por el Arq, Jaime Torrens y su equipo, para la cadena Barceló.
La gran escala del diseño urbano y la planificación ha sido abordada también por extranjeros: la firma EDSA ha redactado varios proyectos urbanos, sobre todo para el sector turístico; los puertorriqueños Andrés Mignucci y Emilio Martínez ganan concursos para desarrollos urbanísticos de relevancia asociados a Moré Arquitectos; Ricardo Boffill, con Borrell y Moré produjo el polémico proyecto esquemático para Ciudamar; Bruno Stagno, de Costa Rica plantea un plan turístico normativo para el sur del país; Giorgio Lombardi dirige el equipo que plantea un nuevo plan ordenador para el centro histórico de Santo Domingo; Bernard Tschumi esboza un ambicioso plan para una ciudad tecnológica en el entorno de Juan Dolio; los milaneses de ItalConsult ponen en marcha un plan de ordenamiento de gran impacto en la ciudad capital, con los auspicios del Ayuntamiento del Distrito Nacional; Jaime Lerner intenta sustituir el proyecto ganador del concurso para el Parque Central de Santiago, sin mucha suerte; un llamado a proponer 28 ideas para la ciudad de Santo Domingo, organizado por el ADN en el año de 2002, concitó la presencia de nombres como Clorindo Testa, Henk Doll Mecanoo, Sebastián Irarrázabal, Manuel de Solá Morales, entre otros
En fin, esta lista, seguramente incompleta, demuestra la importancia que tienen en la escena local, y nos atrevemos a señalar, en toda escena propia a cada nación, las actuaciones de arquitectos internacionales. A esta relevancia obedece modestamente este número de AAA.
Reconocimiento AAA 50+
Gustavo Luis Moré/ Marcos A. Blonda
Reseña del Premio
Fundación Rogelio Salmona
Reseña
María Cantisano/ Marcos A. Blonda
Biblioteca
Marcos A. Blonda
CasaBarlettaRainieridelArq.MarcialPouRicart
PremioLatinoamericanodeArquitecturaRogelioSalmona: espaciosabiertos/espacioscolectivos,TercerCiclo2018
MaríaCantisano a la WesAnderson
Design:Vignelli
ArchitectureinthePhilippines
TENArquitectos/EnriqueNorten/Líneasdeinvestigación
CasaModerna,latinamericanliving
Gustavo Luis Moré/ Marcos A. Blonda Fotos de Gustavo José Moré y Marcos A. Blonda
Esta es la primera entrega de una nueva sección de AAA, dedicada a reconocer piezas del invetario de la arquitectura local de valor artístico e histórico, capaces de ser intergradas al catálogo patrimonial nacional. En cada edición presentaremos obras meritorias dentro del potencial universo de futuros monumentos nacionales.
La casa Barletta Rainieri fue diseñada por Marcial Pou Ricart a mediados de la década de 1940 y es hoy quizás una de las ultimas grandes casas modernas de esos años que aún existe en Santo Domingo. La vivienda, posee una relación muy orgánica con el lugar, se emplaza en un eje este-oeste perpendicular a la dirección primaria del solar y sobre el cambio de nivel que se produce en una de las terrazas que caracterizan el relieve de la ciudad a la altura de la calle José Contreras. Este “escalón” es aprovechado para acomodar el programa de la casa. En un piso alto se desarrolla la vivienda propiamente dicha con sus espacios sociales, de servicio y espacios íntimos y en el piso bajo un área donde el propietario tenía su despacho y áreas de trabajo. Esta división en ritmos diferentes de actividad fue favorable cuando la casa estuvo alquilada a la Embajada del Perú permitiendo al embajador residir en la vivienda y tener la planta baja para las oficinas de la legación diplomática.
Durante la década de 1950 se hizo un anexo que se encargó al Arq. José Manuel Reyes Valdez (Nani) y consistió en un dormitorio principal con baño y vestidor integrados. Este agregado se funde con la vivienda original de manera que su condición de adición posterior se vuelve imperceptible. Un gazebo de estilo neo vernáculo y una piscina completan el conjunto. Los interiores son amplios y de techos altos. Toda los espacios de la casa se comunican hacia un amplio balcón frontal, gran evento espacial que sirve de transición al exterior.
La propuesta estética es interesante pues se trata de una casa que, como dijimos antes se plantea en un eje paralelo a la calle, esa linealidad se refuerza con un alargado balcón que ocupa todo el frente de la casa y termina en una curva en uno da sus extremos que da la impresión de perderse en lo infinito, un recurso que Pou Ricart utilizó en muchas de sus obras. Llaman la atención los muros revestidos de la piedra caliza del sitio, algo que se escapa a la propuesta de la “arquitectura blanca” propia del racionalismo caribeño y latinoamericano de esos años y que anuncia una relación más intima con el lugar y sus especificidades. De igual manera puede decirse que se trata de una casa caracterizada por ciertos acentos, ciertos detalles que agregan puntos brillantes a una obra de por si hermosa. Un exuberante jardín tropical sirve de entorno a esta pieza de arquitectura caribeña engastada, cual piedra preciosa, en el rocoso farallón de la avenida José Contreras.
Gracias al Arq. Amaury Pou por el contacto con la señora María Filomena Barletta, hija de los propietarios originales, por su amable apertura a conocer esta maravillosa residencia.
©Marcos A. Blonda
















Reseña de Obra
Fundación Rogelio Salmona
abiertos / espacios colectivos
Obra Ganadora del tercer ciclo: Parque Cultural Valparaíso en Cerro Cárcel. Valparaíso, Chile. Autor: HLPS Arquitectos - Martín Labbé, Carolina Portugueis, Osvaldo Spichiger, Jonathan Holmes.
El Jurado otorgó igualmente 3 Menciones Honoríficas
Se dio apertura en la Biblioteca pública Virgilio Barco a la exposición itinerante, de las 20 obras participantes en este ciclo.
Obra Ganadora 2018:
El pasado lunes 3 de septiembre, en la Biblioteca púbica Virgilio Barco de Bogotá, Colombia, luego de un conversatorio sobre Arquitectura Latinoamericana Contemporánea a cargo de los miembros del Jurado del Premio, arquitectos Silvia Arango Cardinal (COL), Klaske Havik (HOL), Felipe Leal (MEX), Alexandre Ribeiro Gonçalves (BRS) y Fernando Pérez-Oyarzún (CHL), la Fundación Rogelio Salmona dio a conocer la obra ganadora del tercer ciclo del “Premio Latinoamericano de Arquitectura Rogelio Salmona: espacios abiertos/espacios colectivos”.
Se trata del Parque Cultural Valparaíso en Cerro Cárcel, ubicada en Valparaíso, Chile y cuyos autores son HLPS Arquitectos - Martín Labbé, Carolina Portugueis, Osvaldo Spichiger, Jonathan Holmes.
El parque ofrece un nuevo espacio público tanto a la ciudad como a la comunidad de habitantes del Cerro Cárcel en que se localiza. Sus autores se plantearon el desafío de concebir un nuevo espacio de encuentro e interacción que contradijera el uso original como prisión. Teniendo en cuenta ese objetivo, la obra propone un gran espacio abierto que actúa como un oasis público en medio de la apretada y laberíntica trama de Valparaíso, que favorece tanto la reunión de vecinos y visitantes como una contemplación privilegiada del anfiteatro del puerto.
La obra debió encarar las dificultades de la topografía del terreno y el diálogo con preexistencias tan significativas como los muros perimetrales del entorno y algunas de las antiguas construcciones carcelarias. Se combinan así en este nuevo proyecto: espacios urbanos, nuevos edificios y la renovación de las construcciones previas.
El gran espacio público responde a la condición de parque y actúa como un excepcional espacio verde en el área. El nuevo edificio, una sencilla estructura de concreto, resuelve una diferencia de niveles del terreno y genera un rico juego de espacios de encuentro y circulaciones. La antigua construcción carcelaria conserva el volumen y fachada original, incursionando de manera creativa con elementos estructurales y produciendo una espacialidad interior radicalmente nueva.
La obra ganadora deriva su valor no solo de la suma de estos elementos, sino de la forma como ellos se articulan, al ofrecer a Valparaíso una inédita instancia pública de gran calidad arquitectónica.
Menciones Honoríficas:
El jurado consideró importante destacar tres obras a las cuales otorgó menciones honoríficas por sus muy diversos pero valorables méritos:
Parque Biblioteca Tomás Carrasquilla. La Quintana, Medellín, Colombia
Autor: Ricardo La Rotta Caballero
La mayor virtud de este conjunto parque-biblioteca, es su permeabilidad y capacidad de crear espacios públicos comunitarios al articular una plaza longitudinal como calle abierta en un fluir natural, pese a lo accidentado de la topografía. Se conforma por una biblioteca y zonas de intercambio social activas que ofrecen espacios de transición, convivencia y de observación del paisaje. Es una plataforma tipo pabellón que por su adecuada ubicación y composición crea comunidad.
Centro Académico y Cultural San Pablo. Oaxaca, México
Autor: Taller Mauricio Rocha + Gabriela Carrillo
La cuidadosa restauración del templo y el claustro se conjuga con la inserción de acentos nuevos y pequeños edificios complementarios. El conjunto conforma un espacio interior que a la manera de calle atraviesa la manzana, a la vez que posee un tratamiento que captura el sorprendente y discreto espíritu de la ciudad de Oaxaca.
Capilla San Miguel Arcángel de Cerrito. Asunción, Paraguay
Autor: Laboratorio de Arquitectura - Javier Corvalán
Esta capilla y espacio comunitario ofrecen una intervención modesta de alta calidad arquitectónica. El jurado aprecia la contribución de los arquitectos en la creación de un espacio significativo para y con la comunidad. El proyecto es un ejemplo inspirador de una arquitectura comprometida, que responde a la escasez de recursos y al desafío de mitigar la topografía y el clima. Utilizando materiales de construcción simples y accesibles, el resultado es poético y tiene sentido para la comunidad.
El Galardón:
La obra ganadora recibe un galardón en bronce que evoca la obra de Rogelio Salmona. El objetivo es que sea fijada en un lugar visible de la obra edificada. Una réplica más pequeña e igualmente en bronce, es entregada al autor o representante del grupo diseñador como reconocimiento por su trabajo.
Menciones honorificas: Arriba izquierda, Parque Biblioteca Tomás Carrasquilla. La Quintana, Medellín, Colombia.
Autor: Ricardo La Rotta Caballero.
Centro arriba, Centro Académico y Cultural San Pablo. Oaxaca, México.
Autor: Taller Mauricio Rocha + Gabriela Carrillo.

Arriba derecha, Capilla San Miguel Arcángel de Cerrito. Asunción, Paraguay.
Autor: Laboratorio de Arquitectura - Javier Corvalán.
Centro: Vista del Parque Cultural Valparaíso en Cerro Cárcel, Obra Ganadora del tercer ciclo.
Abajo: Plano del Parque Cultural Valparaíso en Cerro Cárcel, Obra Ganadora del tercer ciclo



En esta oportunidad el Arquitecto Martín Labbé del equipo de autores de la obra ganadora no pudo asistir a la Ceremonia, por lo cual la Fundación Rogelio Salmona hizo entrega simbólica al arquitecto Fernando Pérez-Oyarzún, Jurado del Premio. Posteriormente será enviada a sus autores.
La Exposición Itinerante
Luego de conocer la obra ganadora la Fundación Rogelio Salmona abrió oficialmente la exposición itinerante en la Biblioteca pública Virgilio Barco, la cual recoge detalles y fotografías de las 20 obras participantes.
Estará abierta al público en este recinto hasta el día miércoles 19 de septiembre y posteriormente será expuesta en al menos 7 escenarios culturales y académicos de Bogotá.





María Cantisano / Marcos A. Blonda
Las creaciones cinematográficas de Wes Anderson usualmente recrean un sentimiento, una personalidad, una actividad o provocan un recuerdo. Esto se logra combinando los espacios interiores con la apariencia de los personajes, basando estas decoraciones en el trabajo o pasatiempos de estos o jugando con los tonos para evocar cierto sentimiento. Sus conjuntos sublimes también son de alguna manera familiares y lo suficientemente ambiguos como para existir en cualquier lugar y cualquier momento. Por eso mucho de nosotros hemos dicho: “Este lugar podría estar en una película de Wes Anderson”.
Su estilo visual nos recuerda algo “universal”, que aunque nunca hayamos estado en un lugar con estética similar podemos sentir cierta conexión. De todo lo anterior surge “Arquitectura Dominicana a lo Wes Anderson”, una exploración conceptual acerca de como las obras arquitectónicas seleccionadas pueden existir en cualquier parte del mundo y comparten cierta similitudes entre ellas, pudiendo transformarse con facilidad al estilo universal y juguetón de Wes Anderson. Al publicarlas en mis redes sociales, pude ver como las personas conectaban mas con estas visuales ya que:
Conectaban con la obra por su geografía
Conectaban por la obra por su nueva “cara”
Conectaban con la obra por su conexión a la nostalgia de Wes Anderson.
Aquí una muestra de los edificios transformados según la estética del este singular cineasta.
Biografía
Maria Cantisano (Santo Domingo 1992) es una Arquitecta y artista visual dominicana. Egresada de la Carrera de Arquitectura de la Universidad Iberoamericana de Santo Domingo en 2015 y de la Maestría Advanced Design and Digital Architecture en ELISAVA (Escuela Superior de Ingeniería y Diseño) de Barcelona, España en 2016. Posee experiencia en las áreas de arquitectura, interiores, programación, diseño gráfico, fabricación digital e ilustración. Actualmente vive y trabaja en Detroit, Michigan en la firma de arquitectura Undecorated.





Marcos A. Blonda

Massimo Vignelli
Design:Vignelli Ryzzoli New York, 2018
Massimo Vignelli (1931-2014) fue uno de los más importantes diseñadores del siglo XX. Su obra, realizada siempre con la colaboración de su esposa Lella cubre casi todos los aspectos del diseño y se muestra de manera comprehensiva y bellamente presentada en el libro design: Vignelli, 1954-2014 (Rizzolli, 2018). El volumen, diseñado de manera conjunta por el propio Vignelli y Beatriz Cifuentes Caballero cubre toda la carrera de este destacado creador, su compañera y su firma.
El libro es, más que una muestra de trabajos una guía a través de la filosofía de diseño de Massimo Vignelli. Se trata de un proyecto iniciado antes de la muerte del artista y que posee un antecedente en un libro con el mismo título publicado en 1990 con la colaboración de Germano Celant. Este incluía una serie de ensayos que se reeditan en la nueva versión con la finalidad de preservar la voz de Vignelli en tiempo presente. Es el propio autor quien introduce un primer ensayo titulado Long Live Modernism! publicado originalmente en el AIGA Journal of Graphic Design en 1991. Se trata de un manifiesto que pondera los aportes del Movimiento Moderno al diseño, entendiendolo como una actividad totalizadora, que enriquece y estimula. El moderno, para Vignelli, no es un estilo, es una actitud. Sin embargo, en el texto se desliga del programa utópico que caracterizó al modernismo ortodoxo y opta por permanecer fiel a la relevancia cultural de la propuesta. En este corto texto acepta las criticas que se le hacían al modernismo como una oportunidad para enriquecer el legado y considera como negativa la confusión introducida por el posmodernismo debido a sus fallas ideológicas. Concluye con un “¡Larga vida al Movimiento Moderno!”, una expresión que suma al libro y nos prepara para asumir una posición abierta a su aproximación al diseño.
Los capítulos siguientes se dedican a ensayos de destacados autores que tratan la manera de trabajar, la vida de Vignelli, la obra temprana del autor y varios capítulos dedicados a las diferentes líneas de acción de la firma con imágenes detalladas y poco texto; sólo el necesario para situar cada producto en su contexto. Todo el universo Vignelli documentado de manera excelente con breves notas explicativas que complementan unas propuestas que hablan por si solas como todo el legado de esta pareja singular y su equipo.
A nosotros en Archivos de Arquitectura Antillana los Vignelli nos son muy queridos pues el propio Massimo es el autor de la maqueta de nuestra revista tal como se muestra en la paginas 198 y 199 de este magnifico libro.
Design: Vignelli, 1954-2014 , que Massimo no pudo ver en vida, es un documento que hace justicia a una tradición de diseño coherente. Se trata de un producto digno de Vignelli como libro, profundamente bien concebido como esfuerzo documental y divertido para leer.

Domus
Architecture in the Philippines
Diciembre 2018
Las Filipinas no nos quedan lejos a nosotros los caribeños. No es exagerado decir esto si nos referimos al suplemento del número 1030 que ha lanzado en su edición de diciembre de 2018 la conocida revista DOMUS. Esta monografía ha sido publicada como un proyecto de la Comisión Nacional para la Cultura y las Artes, el Comité Coordinador de las Artes Filipinas en la Bienal de Venecia y la oficina de la activista y senadora Loren Legarda. La publicación tiene como objetivo, según dice el editorial firmado por Patrick D. Flores, ser un mapa que muestre una historia de construcción de lugares, ambientes y mundos. Este numero cubre de manera comprehensiva el pasado, presente y da un atisbo al futuro de la arquitectura en este país.
Las filipinas poseen características comunes que las hacen muy comprensibles a los habitantes del Caribe. Se trata de islas, miles de islas que una vez fueron parte del imperio español. Al igual que el Caribe, fue frontera imperial cuando los Estados Unidos las tomaron de España en 1898. Se trata además de un espacio de convivencia cultural y religiosa donde conviven un arraigado y muy peculiar catolicismo, las denominaciones protestantes en auge y el islam. Uno de los redactores de esta edición, Gerard Lico dedica un excelente ensayo al devenir filipino desde la prehistoria hasta la posmodernidad usando a la arquitectura como hilo conductor. En pocas páginas ofrece un panorama certero que permite situarnos dentro del contexto. El mismo Lico, aporta un segundo ensayo dedicado a seis arquitectos filipinos que conformaron la propuesta moderna del país durante el pasado siglo.
Las dificultades para definir una identidad, otro tema común que tenemos con el país asiático es tratado a través de la mirada arrojada sobre la obra de Leandro Locsin (19281994), importante forjador de la modernidad filipina.
La ciudad española en América fue la base institucional y espacial de la conquista y el control del territorio. Quizás no sepamos que la misma función realizó en Manila, puesto de avanzada del imperio español en el sudeste asiático fundada por López de Legazpi a orillas del río Pasig en 1571. La agenda espacial imperial se prolonga en la historia y es asumida de manera diferente por los Estados Unidos a partir del siglo XX. El desarrollo de la ciudad es mostrado por Lucas Mangulabnan en un ensayo de fácil lectura, sobre todo para quienes vivimos en ciudades fundadas por los españoles durante la colonia.
Cultura, identidad, la conservación del patrimonio arquitectónico colonial, el problema de la vivienda, la calidad de los espacios urbanos son otros de los temas que cubre este ejemplar sin desperdicios y en el que yo particularmente escucho una voz que me es familiar. Ha sido divertido leerlo y creo que vale la pena contar con él en la biblioteca.

Enrique Norten/Ten Arquitectos
TEN Arquitectos/ Enrique Norten/ Líneas de investigación Princeton Arcgitectural Press New York, 2018
México es a la vez país y mundo, se manifiesta en lo local y se sitúa de manera singular en lo global. Esto no siempre fue asi, es algo nuevo, y quizás un arquitecto que representa esa actitud es Enrique Norten quien publica TEN Arquitectos / Enrique Norten Líneas de investigación. Este volumen, que recoge 18 proyectos de su firma se edita para celebrar los 30 años de práctica de este autor considerado como uno de los mejores de América del Norte.
El libro se desarrolla teniendo las líneas que han definido la práctica de Norten como elementos organizadores de la obra, estas son: la arquitectura como espacio público, la arquitectura como territorio y la arquitectura como infraestructura. Luego de un prólogo de Norten donde expone, a manera de manifiesto personal, cada una de las líneas de investigación y sitúa el origen en su práctica, se desarrolla el cuerpo de la obra. A cada línea corresponde una parte del libro que se insertan en orden con textos de análisis o diálogos que dan paso a la muestra de los proyectos. Ninguno de los apartados lleva un título que indique la temática sino que queda para el lector ubicarse en el contexto de la misma, la relación que se establece con el documento es entonces dinámica y de descubrimiento, lo que a nuestro juicio se constituye en una bondad.
Alejandro Hernández Gálvez provee un enjundioso ensayo titulado Actualidad y originalidad que además de arrojar luz sobre la obra de Norten realiza un recorrido por la modernidad mexicana abordándola de manera crítica y certera. Reconoce la problemática relación entre tradición y modernidad que permea toda la arquitectura moderna mexicana marcando adecuadamente momentos y protagonistas hasta llegar a Enrique Norten de quien ofrece un panorama de su formación para citar sus influencias universales y locales y el peso que estas han tenido en su producción tanto en México como en otros países. Los proyectos listados e ilustrados más adelante en el capítulo son obras construidas en México y los Estados Unidos.
La segunda linea de investigación abre con un dialogo con Elizabeth Diller y Thom Mayne con la moderación de Cathy Lang Ho y Julia van den Hout. Norten y los demás aportan su parecer sobre la práctica y es que este libro trata de eso, del ejercicio de la arquitectura por parte de un arquitecto que plantea una posición propia acerca de las demandas de la profesión en la epoca actual.
El tercer apartado de la obra tiene como preludio un dialogo moderado por Xavier Guzmán Urbiola en el que participan Enrique Norten y Enrique Krauze y aparece el tema de las generaciones en la arquitectura mexicana. Cierra el diálogo una reflexión acerca de las nuevas genraciones, los millenials que ya no ven el pasado ni el futuro sino un solo y único presente.

Philip Jodidio
Casa Moderna, Latin American living
Thames & Hudson 2018
La fascinación de los países centrales con la arquitectura moderna de América Latina viene de muy lejos en el siglo XX. Esa actitud generó una serie de publicaciones de la que ejemplos tempranos son Brazil Builds de la autoría de Philip L. Goodwin con fotografías de G.E. Kidder Smith y Latin American Architecture since 1945 de Henry Russell Hitchcock. Ambos volúmenes fueron publicados por el MOMA en 1943 y 1955 respectivamente. Desde entonces han abundado las monografías, publicaciones comprehensivas, discusiones académicas y ensayos acerca de la arquitectura situada al sur del rio Bravo. Casa Moderna Latin American living de Philip Jodidio se suma a esa cadena de documentos que buscan dar a las grandes audiencias de los países occidentales un atisbo de la riqueza arquitectónica de un continente que posee una propuesta singular muy marcada por el paisaje, las desigualdades sociales y económicas y una interpretación muy particular de la modernidad.
En esta obra Jodidio, quien es uno de los más importantes divulgadores de temas de arquitectura de la actualidad elige como tema central la arquitectura doméstica contemporánea de América Latina y de entrada reconoce aspectos fundamentales para ofrecer una interpretación con sentido para sus lectores. Uno de estos aspectos reconoce de entrada la dificultad de adscribir la propuesta arquitectónica actual a un estilo concreto el otro es admitir la profunda carga que el paisaje y el clima del continente tienen sobre esta.
La intención del libro queda expuesta en un ensayo inicial que propone los apartados de la obra destacados como encabezados marcados por el entorno físico de las casas reseñadas: la montaña, la casa de ciudad, la vivienda en los trópicos, la costa y el bosque. En este ensayo el autor recorre las opiniones que algunos importantes críticos y diseñadores expresaron entre las décadas de 1950 y 1980. Por otra parte expone las características que son comunes a todos los países de América Latina y que ya se toman como supuestos: la pobreza, los profundos niveles de desigualdad social, la rápida urbanización y además hace énfasis en la herencia arquitectónica tanto antigua como moderna. La mención de un grupo de arquitectos emergentes prepara al lector para lo que va a encontrar en las paginas interiores y es una de las bondades de este libro, se trata de arquitectos que trabajan actualmente, de una herencia que se construye. Ya en el cuerpo del volumen se ve como alternan autores de varias generaciones todos laborando en la actualidad.
Casa Moderna, Latin American living es un libro acerca de lo que está sucediendo hoy y eso se manifiesta en los textos y las imágenes. Se trata de una obra de divulgación, correcta en su factura, con magnificas fotografías. Un excelente ejemplar para acercar un poco a la mirada de occidente la arquitectura de un continente que sigue exhibiendo en la era globalizada los males que e han caracterizado pero que a la vez propone, como lo ha hecho siempre, productos culturales muy singulares y casi siempre fascinantes.
Estudio Herreros con la colaboración de Mallol y Mallol
Estudio Herreros
Estudio Herreros con la colaboración de DiVece Arquitectos
Estudio Herreros
Bermúdez Arquitectos y Estudio Herreros
Bermúdez Arquitectos
Perkins+Will
Choy-León Arquitectos
TorreBancoPanamá,CiudaddePanamá,Panamá
MuseoEdwardMunch,Oslo,Noruega
ComplejoHíbridoTAP,Guadalajara,México
ConjuntoResidencialEcocité.Marsella,Francia
CentrodeEventosMultiformatoÁgora,Bogotá,Colombia
EdificioEnriqueCavelier,Facultad deArtesdelaUniversidaddelosAndes, Bogotá,Colombia
BloqueC,FacultaddeArquitectura delaUniversidaddelosAndes
EstacióndePolicíaLaMacarena, Bogotá,Colombia
CampusUniversitarioTropical, Villavicencio,Colombia
NuevasedeGubernamentalenelCAN, Bogotá,Colombia
BarriodeBoston,Cartagena,Colombia
CementerioenLaCalera,LaCalera,Colombia
EspaciopúblicoenLaTebaida,Colombia
TheGreaterAccraRegionalHospitalAtRidge, Accra,Ghana
ResidenciaAltodePinheiros,SãoPaulo,Brasil L’Oreal,RiodeJaneiro,Brasil
PlazadelaRevoluciónAntonioMaceo,SantiagodeCuba RemodelaciónyampliacióndelHotelHabanaRiviera, LaHabana,Cuba
TerminaldeFerrocarriles,LaHabana,Cuba
ConjuntoResidencialTarará,LaHabana,Cuba
IPADE,Jalisco,México
CampusQueretaro,ArkansasStateUniversity,Querétaro,México
Juan Herreros y Jens Richter
Invenciones Tipológicas
Hace años no era habitual disponer un hotel entre las plantas 10 y 20 de un edificio de otros usos; ni aglutinar vivienda de mercado libre y social en el mismo inmueble compartiendo sus servicios; ni construir un museo en altura; ni apilar pequeños edificios de oficinas en un desarrollo vertical que multiplica los vestíbulos y los espacios exteriores de recepción; y menos aún pervertir la ortodoxia del centro de convenciones abriendo su programa a multitud de formatos eliminando los auditorios y poniendo el más concurrido a 30 metros del suelo. La sección híbrida de TAP en Zapopan-México, el complejo residencial que se levanta como parte del proyecto Eco Cité en Marsella, la torre de oficinas Banco Panamá y el centro de eventos Ágora-Bogotá en Colombia responden al reto de la invención tipológica, aquella motivada por la puesta en crisis de los modelos establecidos y por un ahondamiento en el compromiso que cada edificio debe establecer con la ciudad que lo aloja.
En nuestra condición de extranjeros, cada día damos más valor a esa mirada desprejuiciada que desde la fascinación y el respeto despliega el viajero asombrado sobre el territorio inexplorado. México, Francia, Noruega, Panamá y Colombia tienen una arquitectura de calidad y un contexto profesional muy bien estructurado. En estos lugares hemos encontrado la oportunidad para desplegar un operar experimental y arriesgado que nos permite pensar que aún queda terreno fértil para la invención y para ayudar a nuestra disciplina en un avance cada día más lastrado por la convención y los modelos fuera de contexto.
En esta aventura nos han acompañado buenos colegas con los que hemos juntado nuestras fuerzas buscando su buen hacer profesional pero también intelectual junto a su conocimiento de los contextos de trabajo. Ellos nos han ayudado a ser locales en cada uno de los enclaves y a desplegar una forma global de pensar que no contradice la atención a los climas, las materialidades y las coordenadas culturales, políticas y sociales de cada instante. Con ellos hemos redescrito los fundamentos de una práctica colaborativa que se extiende a las especialidades técnicas y las relaciones con nuestros clientes. Todos ellos tienen un lugar necesario en nuestros organigramas que nacieron en la Bienal de Venecia de 2012 bajo el lema Dialogue Architecture, y a las relaciones de créditos de los proyectos nos remitimos.
Consumada la escisión de una supuesta hermandad ente tipo y programa que nunca existió, la arquitectura conquista una nueva libertad de acción en la que las múltiples preguntas se superponen hasta crear un amasijo de complejidades que solo el proyecto es capaz de ordenar, sintetizar y materializar en algo aparentemente sencillo y comprensible. Así queremos que se lea nuestra arquitectura, desposeída de todos los esfuerzos y dolores invertidos en su producción, como algo realizado sin contenido épico, con la naturalidad de las cosas que siempre debieron estar ahí pero que apuntan hacia un futuro mejor para cuya construcción somos todos necesarios, pero sobre todo lo es la energía y el optimismo que activan la convicción de que es posible.

Estudio Herreros con la colaboración de Mallol y Mallol


Estudio Herreros con la colaboración de Mallol y Mallol
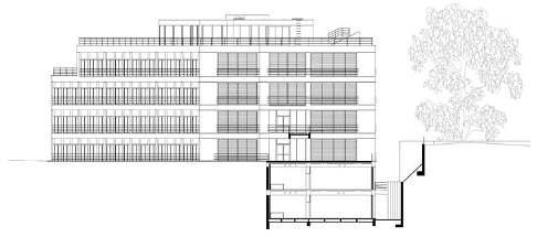
La sección de la torre se organiza como el apilado escalonado de cuatro edificios independientes. El primero recibe a la ciudad en planta baja con las oficinas bancarias sobre las que se levanta el aparcamiento de seis plantas. Los tres restantes son prismas de diferentes dimensiones que se van retranqueando respecto del anterior liberando sendas terrazas que se reparten las orientaciones y las vistas sobre el mar y el Centro Histórico generando otros tantos usos compartidos por todos los usuarios del edificio: un restaurante, un gimnasio y una sala de descanso/club. Cada prisma puede leerse como un pequeño edificio canónico de oficinas con su lobby en doble altura y su espacio exterior representativo tratado como un jardín privado. En el remate, un Salón representativo se ofrece visible desde toda la ciudad. La envolvente se resuelve con un muro cortina implementado con vidrios de diferentes tonalidades y transparencias que introducen un factor aleatorio y vibrante en la lectura del juego de volúmenes, no solo por el juego entre opacidad aparente y reflexión sino también por la ambigüedad escalar del elemento tipo que evita revelar las líneas horizontales del edificio.















Proyecto
Torre Banco Panamá
Cliente
C. García de Paredes, B. Henne, C. Fernández (CAO) y Banco de Panamá
Responsable del proyecto
Gonzalo Rivas (HA), Ignacio Mallol (MyM) Equipo de proyecto
Carmen Antón, Joanna Socha (HA); Amilton Jaramillo, Rubén Taboada (MyM) Sostenibilidad Cener
Consultoría de fachadas Grupo Entesa


Estudio Herreros
El futuro Munch Museum no es sólo un equipamiento para la salvaguarda y difusión de un patrimonio fundamental de la historia y el carácter de la cultura noruega. Nos encontramos ante una oportunidad única para desarrollar un concepto contemporáneo de museo nutrido de un trascendental rol urbano y una responsabilidad histórica como elemento cohesivo de la comunidad no solo de Oslo sino de toda la nación. Su programa trasciende los contenidos museográficos enriqueciéndolos con programas educativos, de investigación, culturales, etc. Las razones para visitar el Museo una y otra vez se multiplican cada día actuando como lugar de encuentro ciudadano y de descubrimiento del otro. El recorrido ascendente conecta el espacio público cubierto del vestíbulo que aloja usos lúdicos, comerciales, culturales y de restauración, con las terrazas/observatorio/club de la cubierta, ofreciendo en paralelo el descubrimiento de la obra de Edward Munch y el entendimiento de los diferentes estratos históricos de la ciudad de Oslo construyendo una trascendente relación entre arte y cultura urbana. Las fachadas,terminadas en una aleación ligera de metal perforado ondulado con diferentes ondas y grados de trasparencia, ofrecen una percepción enigmática y evanescente del edificio que reacciona a los leves estímulos del clima de Oslo ofreciendo imágenes muy diferentes según el momento. El edificio responde a una exigente implicación en los aspectos energéticos y de sensibilidad medioambiental integrando construcción, estructuras e instalaciones en una concepción holística según el modelo passive house.
Premios
Concurso Internacional por invitación / 1er premio Premio XI BEAU 2011 modalidad Proyecto Urbano













Proyecto
Museo Edward Munch
Cliente
Oslo Kommune
Superficie
24,500 m2
Responsable del proyecto
Gonzalo Rivas
Equipo de proyecto
Beatriz Salinas, Carlos Lozano, Andrea Molina, Ana Torrecilla, Carlos Ramos, Iván Guerrero, María Franco, Raúl García, Frank Müller, Víctor Lacima, Carmen Antón, Ramón Bermúdez, Paola Simone, Margarita Martínez, Luis Berríos-Negrón, Spencer Leaf, Verónica Meléndez, Xavier Robledo, Ricardo Robustini, Paula Vega
Oficina local
LPO
Ingeniería general
Kulturplan Bjørvika: Multiconsult | Hjellnes
Consult | Brekke & Strand Akustikk
Ingeniería (concurso)
IDOM
Fachadas (anteproyecto) ARUP
Fachadas (proyecto básico)
Bollinger + Grohmann
Sostenibilidad
Asplan Viak ICT
Rambøll Norge
Seguridad COWI
Paisajista (concurso)
Thorbjörn Andersson

Estudio Herreros con la colaboración de DiVece Arquitectos



Estudio Herreros con la colaboración de DiVece Arquitectos
El proyecto de la Torre Américas-Patria responde con la máxima ambición a una ubicación privilegiadayunprogramaquehibridaunaparcamientorobotizado,espacioscomercialesyde restauración, diversos tipos de oficinas y un hotel urbano. Su imagen pretende constituirse en nuevo icono para las ciudades de Zapopán y Guadalajara inmersas en un dinámico proceso de densificación. La complejidad que demanda la compatibilidad de los diferentes usos y la geometría del lote inducen un diseño que busca la eficiencia de la geometría ortogonal y prismática multiplicando las esquinas y con ello los momentos singulares y representativos. La volumetría resultante persigue la construcción de un elemento emblemático del paisaje urbano de Zapopán para lo que se apoya en una fachada que resuelve todos los casos particulares con pequeños matices según los usos en la que prevalecen las líneas verticales y las sombras de sus profundos montantes para negociar junto con los serigrafiados de las partes soleadas las diferentes orientaciones de la torre.
Para el desarrollo de un proyecto como la torre TAP que demanda compartir decisiones de diseño entre dos oficinas de arquitectura y un número significativo de consultores, Estudio Herreros ha implementado su sistema de trabajo basado en plataformas BIM y sistemas de reunión por videoconferencia que permiten que todos los colaboradores pueden revisar y retroalimentar los documentos del proyecto compartiendo sus aportes al instante.









Proyecto
Complejo Híbrido TAP
Superficie
20,000 m2
Responsables del proyecto
Beatriz Salinas (eH) y Germán Álvarez (DV)
Equipo de proyecto
Gonzalo Rivas, Paloma García
Interiorismo
Bibiana Huber
Gerencia del proyecto
Grupo DEO
Ingeniería de estructuras
Best
Consultoría de fachadas
IAC Constructa
Hidrosanitaria e incendio
Delta Climatización
IDSAA
Instalaciones especiales
Amcorp Security Group México



Estudio Herreros
El Plan urbanístico para Euromed desarrolla el concepto de EcoCité que persigue un plano del suelo bien asentado, de una cierta densidad, en el que las calles y las plazas queden dibujadas con claridad, y un plano aéreo en el que los edificios van reduciendo sus plantas y aumentando las distancias entre ellos de manera que las viviendas puedan beneficiarse de la riqueza y profundidad de unas fachadas que crearán una pieza esencial del planteamiento arquitectónico: las logias con las que cada unidad establece un espacio de transición entre el interior y el exterior. Queremos que vivir en Euromed ofrezca el valor añadido del sentimiento de pertenencia a un enclave urbano para el que nuestro proyecto ha elegido la sucesión calle bulliciosa-jardín frondoso-azotea colectiva-logia íntima- como el gran argumento arquitectónico para hacer del acto de vivir aquí una experiencia contemporánea llena de emociones. Para ello se explota al máximo la condición tectónica de los volúmenes edificados y se basa en su potencia la realización de un paisaje urbano diverso, vibrante, optimista, reactivo a la luz natural y con una importante presencia de la naturaleza.
Premios
Concurso Internacional por selección de CV / 1er premio
Primer Premio Salon de l’immobilier de Marseille 2016 Grand Prix Régional Pyramides d’argent de Provence 2017


















Proyecto
Conjunto Residencial Ecocité
Cliente
Quartus, Pitch Promotion
Superficie
23,300 m2
Responsables del proyecto
Esteban Salcedo, Abraham Piñate Equipo de proyecto
Martha Sosa Días, Emma García, Irene Botas, Andrea Molina, Paloma García, María Díaz, María Domínguez, Adrián López, Martín Sastre, José Baldó, Frank Müller, Ramón Bermúdez, Raúl García Asistencia dirección de obra Carta Associés
Ingeniería de estructuras
Projex
Paisajismo
Base
Sostenibilidad ITF

Bermúdez Arquitectos y Estudio Herreros

Bermúdez Arquitectos y Estudio Herreros

Portada de la revista
Arquitectura Viva, edición #205.6 / 2018, titulada América Importa, Trayectos transatlánticos
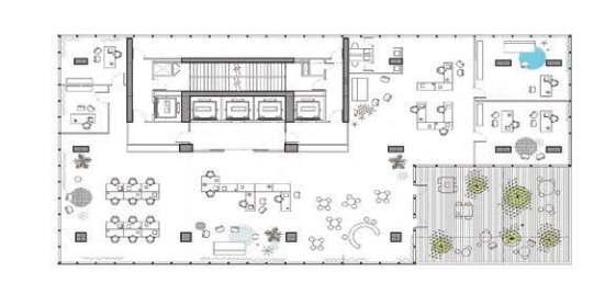
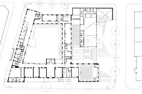
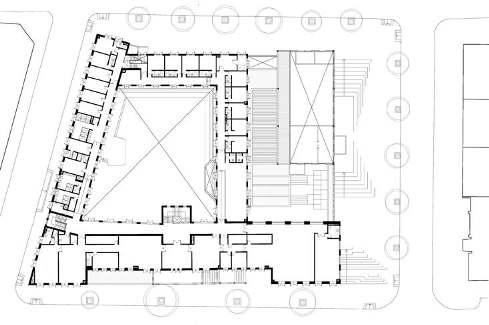
Ágora-Bogotá no debería conformarse con ser un simple centro de convenciones utilizado por visitantes esporádicos que apenas tienen contacto con la ciudad, sino ascender a la categoría de edificio público incorporado al imaginario de todos los ciudadanos. Para ello, los esfuerzos del proyecto se han centrado en atender exigencias colectivas por un lado y especializadas por otro. Entre las primeras se cuenta la necesidad de ofrecer una imagen capaz de representar las aspiraciones de una sociedad en transformación, la de convocar una sensibilidad medioambiental y una ambición tecnológica que inscriba el edificio en las inquietudes del presente. Las segundas se centran en aspectos prácticos como son un sistema de circulaciones, tanto del público como de los suministros y el personal, fácilmente comprensible; una distribución invisible pero jerarquizada e interconectada de todos los servicios internos que es en sí misma el esquema logístico del edificio; y una flexibilidad que acepte la programación de formatos muy diversos, desde un concierto a una feria de muestras, desde un congreso a un festival de cine, desde un gran banquete a un campeonato mundial de ajedrez. Gracias a la facilidad para adaptar los salones a las diferentes necesidades, dividiéndolos o permitiendo su uso simultáneo, los bogotanos tendrán frecuentes motivos para usar su edificio. Para ello se adoptan dos novedosas decisiones: la de organizar el esquema logístico en torno a 4 grandes núcleos verticales de circulaciones, servicios y áreas técnicas que desde las esquinas atienden y hacen posibles los programas más variados; y la de eliminar los suelos inclinados en los auditorios y su mobiliario fijo habitual para poder describir ÁGORA-BOGOTÁ como un lugar de encuentros y actividades tan diversas como la imaginación de sus programadores y las demandas del mercado sean capaces de generar.
La escala del complejo y la riqueza de sus recorridos interiores permiten concebirlo como un fragmento de ciudad encapsulado. En este concepto, un monumental zaguán cubierto recibe a los usuarios aprovechando el benevolente clima bogotano del que sólo la lluvia necesita protección y da acceso al gran vestíbulo que funciona como una plaza mayor rodeada por una corona de lugares de reunión conformando una huella en planta del edificio cuyas dimensiones no es casual que coincidan con las de las manzanas del centro histórico que se remontan a la fundación de la ciudad. La secuencia zaguán-vestíbulo es el arranque de un esquema espiral ascendente jalonado por una serie de plazas-vestíbulo que en realidad son miradores volcados sobre las cuatro ecologías que conforman la ciudad —los Cerros, el Centro Histórico, la Sabana y los nuevos desarrollos camino del aeropuerto— . Desde estos observatorios privilegiados, el edificio se convierte en un dispositivo para contemplar y entender Bogotá y su geografía. Además, la configuración densa y vertical permiten liberar una cantidad notable de espacio público estancial que es devuelto a los ciudadanos y que ofrece un significativo aparcamiento de bicicletas en una ciudad que no tiene esta tradición como reclamo de “la ciudad de los peatones” que viene.
En cuanto a su construcción y tecnologías empleadas, es evidente el empeño por lograr una confluencia holística entre los esquemas estructurales, las instalaciones y los sistemas constructivos en un conjunto unitario en el que no hay acontecimientos aislados. La confluencia de los tres capítulos técnicos mencionados se materializa en una serie de espacios diáfanos con un avanzado sistema de climatización pasiva que destierra toda máquina de aire acondicionado, y sus costes energéticos asociados, en favor de la ventilación natural que aprovecha el clima bogotano creando una feliz simbiosis del edificio con el ecosistema que habita. Los materiales empleados se caracterizan por la sobriedad —pavimentos pétreos de gran formato, techos técnicos de malla ligera registrable que aloja todos los recursos necesarios, paramentos translúcidos en vidrio serigrafiado y tabiquería opaca, de paneles de cemento-madera— y revelan con claridad el funcionamiento del edificio cediendo todo el protagonismo al espacio que se entrega a los usuarios, sus verdaderos actores principales.
La fachada es sin duda la pieza clave de este conjunto técnico. Construida a base de marcos de gran tamaño que incorporan la subestructura, los vidrios de diferentes tamaños y tratamientos y las branquias reguladas electrónicamente que toman el aire exterior, se comporta como una piel sensible de respuesta variable que reacciona a las condiciones cambiantes en temperatura, asoleamiento y humedad del clima local. La fachada es, en fin, la expresión en la ciudad de la complejidad con la que opera la arquitectura y la simplicidad que está obligada a devolver como respuesta.




















Proyecto
Centro de Eventos Multiformato Ágora
Cliente
Cámara de Comercio de Bogotá (CCB), Corferias
Área
70,000 m2
Autores del Proyecto
Bermúdez Arquitectos y Estudio Herreros
Juan Herreros, Daniel Bermúdez, Jens Richter
Directores
Ramón Bermúdez, Gonzalo Rivas, Stan Van der Maas
Equipo
Juan Carlos Ardila, David Barbosa, Jaime Barrera, Julián Beltrán, Camilo Brito, David Caballero, Laura Dorado, Andrés Gutiérrez, Ana María Noriega, Juan Camilo Ortegón, Juan Reyes, Sergio Jiménez, Fernando Martínez, Paula Sopó, David Gómez, Alberto Roa, Luis Ángel Rivera, Catalina Venegas (BA), María Franco, Raúl García, Airam González, Iván Guerrero, Víctor Lacima, Margarita Martínez, Mª Ángeles Peñalver, Abraham Piñate, María Ríus, Beatriz Salinas, Martha Sosa Dias, Carmen Antón (eH).
Proyecto Estructural
Consorcio P y P (A. Palomino, C. Palomino), CNI (N. Parra), BAC ECG (L. Moya, X. Aguiló, C. Gastelbondo).
Bioclimática y Sostenibilidad ARUP (R. Rodríguez). Arquitectura & Bioclimática (J. Ramírez, S. Varón).
Paisajismo
Diana Wiesner
Fachadas
Arup (I. Fernández Solla).
Identidad
OAC (N. Chaves y J. Gallego)
Señalización
Fotoletras (C. Mondragón, D. Gómez)
Iluminación
ALS (A. Aman, M. Juarrero), MTS (M. T. Sierra, J. Laverde).
Redes Eléctricas y de Datos
SM&A (J. Sánchez, H. Jiménez)
Seguridad y Automatización
AGR & Cía Ltda. (J. Andrés)
Hidrosanitario, Incendio, VM y A/A Álvaro Tapias & Cía (Mauricio Gómez)
Organización
Conventional Wisdom (R. Schmidt)
Cocinas
Motta & Rodríguez (D. Motta)
Acústica / Audiovisuales
ADT (D. Duplat), Akustiks (J. Soler, C. Blair, S. Brandt)
Presupuesto, programación
y Gerencia Integral
PAYC SAS

Edificio
Bermúdez Arquitectos
Colombia

Bermúdez Arquitectos
El lugar de intervención en el campus de la Universidad de Los Andes es un espacio representativo de la historia económica del país. Aquí se implantaron los primeros molinos del S. XVI, industrias de comienzos del S. XIX y un equipamiento de salud del S.XX, el Campito de San José.
Para albergar aulas, talleres y estudios para los departamentos de artes y diseño industrial, el proyecto interviene dos Bloques existentes de la Universidad. La intervención sobre el Bloque R-213 busca la conservación de la fachada norte y el portal original de entrada al Campito San José sobre la calle 19A y la recuperación de las fachadas este y sur.
El existente Bloque S1 es demolido y la nueva construcción continúa la volumetría del bloque R, mediante una estructura en concreto ocre que da estabilidad al conjunto. Se integra espacial y funcionalmente con el Bloque R y utiliza un lenguaje con proporciones y materiales similares a los existentes. Un sistema de tráfico vertical sirve a todos los pisos que se conectan con los diferentes niveles del contexto inmediato.
Hacia el interior del campus, la fuerte inclinación del terreno se maneja con un patio de acceso, trayendo luz y ventilación a los pisos inferiores, una zona de servicios sanitarios bajo la plazoleta Richard. Frente a la fachada urbana de la calle 19A, la construcción paramenta el eje y genera mayor actividad sobre este tramo de la calle. Volumétricamente, consolida la calle y define la perspectiva urbana del lugar.























Proyecto
Edificio Enrique Cavelier, Facultad de Artes de la Universidad de los Andes
Cliente
Universidad de los Andes
Área
2,750 m2
Jefe de diseño
Daniel Bermúdez Samper
Equipo de diseño
John Oscar Pinzón, Alejandra Carmona, Juan Camilo Brito, Andrés Gutiérrez, Jorge Andrés Pardo, Alejandra Novoa, Stan van der Maas, Diego Soto, Jaime Barrera.
Cálculo Estructural
CNI Ingenieros Consultores Ltda.
Estudio de suelos
Alfonso Uribe S. y Cia. S.A.
Instalación hidráulica y sanitaria
Hidroobras
Presupuesto y programación
Payc Ltda.
Proyecto acústico
ADT Diseño & Tecnología
Diseño de iluminación
Arq. Carmenza Henao Londoño
Estudio de tráfico vertical
Ing. Rafael Beltrán
Diseño Paisajístico
Arq. Diana Wiesner
Fotografía
Enrique Guzmán
Bloque
Bogotá Colombia
Bermúdez Arquitectos


Bermúdez Arquitectos
Algunas reflexiones sobre un edificio que enseña: En el proceso de diseño del edificio C de la Universidad de los Andes, Bermúdez Arquitectos ha intentado acercarse a la noción del “edificio que puede enseñar”. Son muchas las lecciones que un edificio puede dar, el problema es que normalmente estos conocimientos son invisibles para los estudiantes. Una de las intenciones de este edificio es que pueda enseñarle a los estudiantes algunas lecciones claves sobre los sistemas técnicos que componen un edificio. HACER VISIBLE LO INVISIBLE. Enseñar -que significa dar signo, dar significado- supone que se debe mostrar y explicar lo que se quiere que el estudiante aprenda.
La nueva Facultad de Arquitectura está ubicada en la parte central del campus y cumple un papel relevante en la conexión tanto vertical (occidente-oriente) como horizontal (sur-norte) del mismo. Es un conector en diferentes niveles de la topografía que busca replicar las relaciones y espacios abiertos que son característicos en el lugar. Para esto conecta los diferentes niveles topográficos y permite la continuidad de las circulaciones existentes proponiendo la unión entre los espacios abiertos y conexiones que generan los edificios tradicionales con la eficiencia de los grandes bloques desarrollados durante los últimos años.
El proyecto se fundamenta en 4 principios: El principio pedagógico, porque busca reflejar los elementos esenciales de la práctica de la enseñanza de la arquitectura y el diseño. El principio Integrador, porque promueve la interacción entre los estudiantes de esta facultad, con el resto de la universidad y genera espacios específicos para la generación de comunidad entre los mismos integrantes de la facultad. La flexibilidad, al promover diversos usos de sus espacios educativos a partir de la incorporación de elementos móviles y mobiliario que promueve este valor. El principio Orgánico, porque integra variables ambientales, elementos pre-existentes en el paisaje y componentes espaciales presentes en la memoria colectiva de la institución.
El patio central, espacio representativo y de encuentro de la facultad, es un espacio de integración que actualmente no existe. A partir del segundo piso aparecen los espacios pedagógicos especializados para la enseñanza de la arquitectura: Las aulas polivalentes son espacios que permiten la aplicación de diversos métodos gracias a su flexibilidad. La circulación es un espacio de trabajo e interacción, que se puede integrar a los salones de clase, gracias al sistema de divisiones móviles. El aula polivalente es un espacio compuesto por seis módulos independiente para trabajo de un profesor de diseño o arquitectura con un grupo de máximo 20 estudiantes. Los dos módulos centrales se pueden integrar para poder impartir clases magistrales a los 100 estudiantes de un mismo taller de proyectos.
La cubierta es el espacio final de este recorrido. Es un lugar en el que el estudiante se conecta con la ciudad, con el campus, con la presencia de la estructura ecológica principal. Es donde se descansa, se come y en general donde ocurre una parte importante de la vida del edificio y de la facultad. Un auditorio al aire libre, un espacio para aprovecharlo con montajes de los estudiantes de arquitectura y diseño. Un espacio para volver a descubrir el skyline de la ciudad y los cerros.




















Proyecto
Bloque C, Facultad de Arquitectura de la Universidad de los Andes
Cliente
Universidad de los Andes
Área
8,560 m2
Jefe de Diseño
Daniel Bermúdez Samper
Equipo de Diseño
David Caballero, Paula Sopó, Eduardo Sánchez, Santiago Salazar
Cálculo Estructural
CNI Ingenieros Consultores Ltda., Nicolás Parra.
Instalación Hidráulica y Sanitaria
Hidroobras
Presupuesto y Programación
Payc Ltda.
Proyecto Acústico
ADT Diseño & Tecnología
Diseño de iIuminación
María Teresa Sierra Consultoría de Iluminación y Cia. S.A.S.
Estudio de Tráfico Vertical
Ing. Rafael Beltrán
Diseño Paisajístico
Arq. Diana Wiesner
Fotografía
Enrique Guzmán
Texto
Rafael Villazón
Bermúdez Arquitectos


Bermúdez Arquitectos
La estación, catalogada como Bien de Interés Cultural, es un ejemplo de los edificios destinados a las instituciones militares y de policía realizadas por el Ministerio de Obras Públicas durante la primera mitad del siglo XX. Delimitado entre carreras 4ª y 5ª y calles 29 y 30, fue proyectado por Rocha, Santander & Cia en 1940. El proyecto original se organizaba en torno a un claustro de dos pisos de altura con una fachada de acceso de tres pisos. A través de los años ha conservado su tipo y forma arquitectónica.
En años posteriores se añadieron construcciones en el costado sur, organizadas alrededor de dos patios secundarios, llenos de añadidos de baja calidad. Luego de un análisis exhaustivo se concluyó que sólo se debía conservar y restaurar la parte original.
La intervención abarca la restauración integral del edificio original, con una reorganización total de sus espacios para albergar las funciones de una estación de policía moderna; el reforzamiento estructural del edificio; la ampliación en varios niveles del sótano para localizar la totalidad de los vehículos de servicio, liberando calles y espacio colindante; la demolición de las adiciones posteriores para generar un área de cesión al espacio público y construir un nuevo edificio de atención al ciudadano. Asimismo comprende la reconstrucción de los andenes existentes, conserva e incorpora la arborización e integra espacialmente la nueva plazoleta de acceso a la Estación sobre la calle 29 a la ciudad.

















Proyecto
Estación de Policía La Macarena
Cliente
Policía Nacional de Colombia
Área
7,700 m2
Jefe de diseño
Daniel Bermúdez Samper
Equipo de diseño
Stan van der Maas, David Caballero, Julián Beltrán, David Gómez, Andrés Gutiérrez, Catalina Venegas, Juan Fernando Martínez
Cálculo Estructural
P&P Proyectos S.A.S.
Estudio de Suelos
E Y R Espinosa y Restrepo S.A.
Diseño Eléctrico
SM&A - Jaime Sánchez
Asesoría Bioclimática
AgustínAdarve Gómez
Instalación Hidráulica y Sanitaria
Ing. Álvaro Tapias
Presupuesto y Programación
Payc Ltda.
Proyecto Acústico
ADT Diseño & Tecnología
Diseño de Iluminación
Maria Teresa Sierra Consultoría de Iluminación y Cia. S.A.S.
Estudio de Tráfico Vertical Ing. Rafael Beltrán
Asesor Arquitectónico Especial y Estudio de Valoración Patrimonial
Arq. Carlos Niño Murcia
Fotografía
Enrique Guzmán
Bermúdez Arquitectos


Bermúdez Arquitectos
La pregunta que este encargo nos obliga a hacernos es cómo se puede hacer una Universidad en el Trópico sin tener recurrir a enormes gastos energéticos debidos al uso de la climatización artificial. El cliente, muy interesado en promover la construcción sostenible y con sedes en muchas zonas tropicales del país, nos impulsa a proponer un proyecto modelo de edificaciones adaptadas al clima sin recurrir al costoso aire acondicionado.
El clima de la ciudad de Villavicencio puede considerarse como un caso tipo de estudio para las zonas cálidas de la geografía colombiana. Situada a 450 msnm, con una temperatura promedio anual de 25.5° C y una sensación térmica acrecentada por una humedad relativa cercana al 80%, necesariamente requiere de unas estrategias para atemperar los espacios del campus. La arquitectura está en capacidad de proveer un confort térmico suficiente tanto al interior de los salones como en los espacios públicos del campus y ese es el cometido de este proyecto. Con este reto en mente se han planteado una serie de estrategias espaciales conducentes a lograr el lugar más cómodo posible para estudiantes, docentes y personal administrativo. Por un lado, la orientación de los diferentes volúmenes en el solar para que los edificios de 5 pisos de aulas tengan la mejor relación de soleamiento. La administración de 4 niveles se paramenta con la vía de acceso y por lo tanto requiere de una segunda piel en calado para protegerse del sol de mañana y tarde.
Por otro, la ventilación natural permite escuchar el ruido del campus que debe ser controlado ya que las aulas necesitan de silencio para lograr condiciones óptimas de confort. Para esto se han propuesto unos patios de silencio hacia donde abren todas las aulas y unas trampas acústicas entre las circulaciones y los salones de clase que permiten el paso del aire, pero no del ruido. Los edificios de aulas no tienen vidrio y el límite entre interior y exterior se define a través de calados, persianas y puerta-ventanas deslizantes.
El manejo del espacio público en el proyecto se desarrolla en dos plazoletas principales ubicadas entre las edificaciones en donde se proyectan suelos permeables y vegetación autóctona para aportar al componente bioclimático de los espacios interiores. El agua es el asunto central del proyecto de exteriores y se convierte en el material de diseño siempre cambiante para definir zonas secas (edificaciones) , zonas de escorrentías (plazas y zonas de estar) y zonas inundables (jardines de lluvia y estanques).









Administación Nivel 1

Administación Nivel 2

Administación Nivel 3

Administación Nivel 4

Administación Fachada Oriental

Administación

Administación Fachada Norte

Administación Corte 1




Proyecto
Campus Universitario Tropical
Cliente
Corporación Universitaria Minuto de Dios Área
17,000 m2
Jefe de diseño
Daniel Bermúdez, Ramón Bermúdez
Equipo de Diseño
Luis Ángel Rivera, Juan Camilo Ortegón, Daniela Almansa, Juan Antonio Olarte, Ricardo Antonio Ariza, David Caballero, Laura Dorado, Santiago Salazar, Juan Fernando Martínez, Sergio Jiménez, Eduardo Sánchez.
Urbanismo, Zonas Exteriores y Paisajismo
Diego Bermúdez
Cálculo Estructural
SOIC Ingenieros Civiles
Estudio de Suelos
Alfonso Uribe S. y Cía. S.A
Instalación Hidráulica y Sanitaria
I.H.G S.A Ingeniería Hidráulica
Proyecto Eléctrico y Datos
SM&A Ltda. Ingeniería Eléctrica y mecánica
Presupuesto y Programación: Asinter Ingenieros Ltda.
Proyecto Acústico
ADT Diseño & Tecnología Daniel Duplat Diseño de Iluminación
MTS, María Teresa Sierra
Asesor Bioclimática y Sostenibilidad Arquitectura & Bioclimática Jorge Ramírez
Estudio de Tráfico Vertical Ing. Rafael Beltrán
Renders
Ricardo López
Bermúdez Arquitectos


Bermúdez Arquitectos
Este edificio se construirá en el centro geográfico de Bogotá en la zona del CAN (Centro Administrativo Nacional), y es el primer eslabón de la renovación de todo el complejo gubernamental siguiendo el plan maestro propuesto por OMA y Lorenzo Castro. Por esta razón, el proyecto está pensado como un edificio de transición que albergue temporalmente una gran diversidad de instituciones gubernamentales durante los procesos de construcción de las nuevas sedes de los ministerios nacionales. Se trata de una estructura absolutamente racional que dota de extrema notoriedad al conjunto a la vez que propone el proyecto más eficienteposibleconmirasaunaflexibilidadtotal.Laplantatipo,perfectamenteacondicionada para el confort total de los trabajadores a través del aprovechamiento de la ventilación y la iluminación natural, con una crujía de 18.90 metros. sin columnas intermedias, se repite en todo el proyecto, de tal manera que cada planta tipo es capaz de albergar infinidad de tipos de amueblamiento que se adapten a múltiples estructuras organizacionales modificables con el paso del tiempo.
El proyecto acude a la fórmula de repetición simbólica para dotar al conjunto de la solemnidad que requiere un edificio público de esta magnitud, diferenciándose de un edificio de oficinas convencional.
El programa detallado del edificio consta de 3 torres idénticas con 14 pisos de oficinas más una gran plataforma de 115 metros. de largo con un gran centro de atención al público, nueva cara de un gobierno cercano al ciudadano. Alrededor de la plataforma se han diseñado amplios espacios exteriores con locales comerciales que abastezcan la enorme demanda de los 6.000 funcionarios que van a trabajar allí.
Al interior de las torres cada piso tipo tiene 1015 metros cuadrados de superficie útil de oficinas, una zona de baños, una cocineta y zonas exteriores como balcones y terraza además de las zonas técnicas y de circulación propias de un edificio en altura (ascensores y vestíbulos, escaleras de emergencia, cuartos técnicos). Cada una de las torres tiene en el último piso una zona habilitada de 580 metros cuadrados para el bienestar de los trabajadores con zonas de almuerzo, de esparcimiento y ocio, así como algunas zonas deportivas.















Proyecto
Nueva sede Gubernamental en el CAN
Cliente
Agencia Nacional Inmobiliaria
Virgilio Barco Vargas
Área
102,000 m2
Jefe de Diseño
Daniel Bermúdez Samper, Ramón Bermúdez Obregón
Equipo de diseño
Luis Ángel Rivera, David Barbosa, Juan Camilo Ortegón, Sergio Jiménez, Juan Carlos Ardila, Natalia Rodríguez, Laura Dorado, Laura Quintero, Arq. David Caballero, Paola Castañeda, Silvia Rueda, Jaime Barrera, Stan van der Maas, Juan Fernando Martínez, Santiago Salazar, Paula Sopó.
Cálculo Estructural
P&P Proyectos, Armando Palomino
Estudio de Suelos
LFO Ingenieros de Suelos, Luis Fernando Orozco
Instalación Hidráulica y Sanitaria
IHG. Ingeniería Hidráulica y Gas
Proyecto Eléctrico y Datos
OTUM
Diseño Paisajístico
Diego Bermúdez
Proyecto Ventilación Mecánica
Álvaro Tapias & Cía
Presupuesto y Programación
Payc Ltda.
Proyecto Acústico
ADT Diseño & Tecnología
Diseño de Iluminación
María Teresa Sierra Consultoría de Iluminación y Cía. S.A.S.
Estudio de Tráfico Vertical
Ing. Rafael Beltrán
Gestión Normativa
Trayectoria S.A
Asesor Bioclimática y Sostenibilidad Arquitectura & Bioclimática
Asesor LEED
Setri
Renders
5inco Arquitectos
Bermúdez Arquitectos




Bermúdez Arquitectos
El área de intervención comprende el Barrio Boston y parte del barrio República del Líbano de la ciudad de Cartagena de Indias, en Colombia. Los límites de la intervención son, al norte la ciénaga de la Virgen, al sur la vía Pedro de Heredia, al occidente el canal Barcelona y al oriente el canal San Martín. Según la planimetría del Plan de Ordenamiento Territorial, este barrio está localizado en un área propensa a las inundaciones causadas por las lluvias más intensas a lo largo de los canales y por el aumento del nivel del mar en el frente de la ciénaga. Sin embargo, no posee peligro de erosión en su borde con la ciénaga.
La propuesta se centra en los espacios públicos del barrio para ser reutilizados como protección de las inundaciones previstas. Canales, vías, zonas verdes y otros espacios abiertos, son susceptibles de funcionar como diques, estanques de retención de agua y zonas inundables, imitando el funcionamiento natural del playón intermareal de la ciénaga.
Por medio de infraestructura verde repartida por el barrio, logramos establecer jerarquías en el espacio público, mitigar los efectos de las lluvias más intensas, proteger el sector del aumento del nivel del mar y reducir de esta manera la frecuencia de las inundaciones. Por su localización, estos canales reciben agua de la ciénaga cuando sube la marea y por lo tanto tienen un funcionamiento de humedal más que de drenaje. Esto quiere decir que se debe ser extremadamente cuidadoso con la limpieza y manutención de los cauces. Para este fin, sólo la comunidad tiene el poder, por medio de programas que vayan en este sentido.
Pormediodelreconocimientodelfuncionamientodeestoscanalescomoejesestructuradores del espacio público, movilidad, paisaje y ecología, le devolvemos la merecida atención al sistema hídrico de este sector, dignificando estos espacios abandonados, para dar un paso hacia el cambio de percepción que tenemos hoy con respecto al agua. Los perfiles de los canales y su ronda, hoy clasificados como zonas de protección son una gran oportunidad para proveer espacios de socialización y encuentro para la ciudadanía. Es necesario concentrar la intensidad de actividades, recorridos, generación potencial de ingresos a lo largo de los canales para lograr su apropiación por parte de los habitantes del sector. Estos canales pasaran de ser barreras a ser puentes que conectan los barrios, construyendo así un tejido social resistente y dispuesto a adaptarse. La propuesta toma el nombre “De Frente al Agua” porque debemos, de ahora en adelante, estar siempre en estrecho contacto con ella para poder adaptarnos al cambio climático.




















Proyecto
Barrio de Boston
Cliente
Invest in Cartagena Área
243,355 m2
Jefe de Diseño
Diego Bermúdez Obregón
Equipo de Diseño
Arq. Diana Barrera Salazar, Arq. Paola
Castañeda, Arq. Natalia Rodríguez, Arq.
Juan Camilo Obregón.
Diseños Técnicos
Topografía
Topógrafos del Caribe
Estudio Hidráulico e Hidrológico
Ing. Germán Monsalve
Estudio de Confort Térmico
Arquitectura & Bioclimatica
Presupuesto y Programación
Asinter Ingenieros Ltda
Estudio de Cobertura Vegetal
Jardín Botánico de Cartagena “Guillermo Piñeres”
Urbanismo
Arq. María Luisa Vela
Bermúdez Arquitectos



Bermúdez Arquitectos
La idea de la muerte ha sufrido un desalojo de su significado espiritual y los cementerios se han vuelto, en cierta medida, lugares tabú, funcionales y protocolarios. Para el diseño de este proyecto se considera que el cementerio contemporáneo debe darle un vuelco a esta idea estéril de la muerte para transformarse en un lugar de conmemoración de la vida, que atraiga la visita constante, no sólo de los familiares, sino también de paseantes, turistas, viajantes, excursionistas y peregrinos.
El lote resulta ideal para este objetivo. Un terreno escarpado, en el valle del río Teusacá, enfrentado a una montaña grandiosa en su forma y recubierta por una reserva forestal magnífica, que asegura la conservación del paisaje que adquiere una importancia trascendental en el proyecto desde dos puntos de vista. Primero, las vistas se vuelven un eje articulador del diseño acompañando el valor simbólico de la arquitectura.
Se proponen edificios compactos, de gran tamaño y gran valor simbólico. Primero, en la parte alta del lote, cercano a la carretera y a los accesos, se localiza el edificio de servicios que, muy eficiente en su funcionamiento, cubre lo anterior al rito y el rito fúnebre en sí. La capilla, las salas de despedida y las salas de velación son espacios flexibles que, a través de un sistema tecnológico de descensores para cajones, se conectan con un espacio moderno e ideal para la tanatopraxia, los laboratorios y los hornos crematorios con sus sistemas mecánicos. Estas especificaciones son necesarias para un proyecto funerario de esta envergadura.
La otra parte del proyecto arquitectónico está conformada por las 18.000 bóvedas que se agrupan en varios volúmenes separados que responden a las fases de construcción requeridas y que están bien integrados y articulados con la topografía, garantizando espacios monumentales de conmemoración y recorridos paisajísticos, tanto por encima como por debajo de sus cubiertas.
La concentración del programa en estos volúmenes compactos, permite un gran espacio para la restauración del bosque nativo, con la localización de los cinco mil lotes funerarios. Entre los árboles aparecen senderos y recorridos de gran valor ecológico.
El complejo funerario es uno y varios monumentos al mismo tiempo: un anfiteatro griego que exalta el paisaje como telón de fondo, un obelisco que orienta el espacio y un hito para una sociedad, un mausoleo que rememora la vida y dignifica la muerte y un parque natural que incita a la visita, a la conciencia ecológica, al disfrute del paisaje y conmemora la muerte a través de la vida.













Proyecto
Cementerio en La Calera
Cliente
Capillas La Fe
Área
24,200 m2
Jefe de diseño
Daniel Bermúdez, Antonio Bermúdez, Ramón Bermúdez
Equipo de diseño
Santiago Salazar, Sergio Jiménez, Juan Camilo Ortegón, Luis Ángel Rivera, Paula Sopó, Silvia Rueda, Laura Dorado, Paola Castañeda
Cálculo Estructural
Soic Ingenieros Civiles Ltda.
Sistema Constructivo y prefabricado
Incol Ltda. y Forsa Formaletas
Diseño Sostenible
Bioclimática – Arq. Jorge Ramírez
Diseño Eléctrico
Grupo SM&A
Ventilación Mecánica
A. Gamboa Ingeniería
Presupuesto y programación
Asinter Ingenieros Ltda
Diseño Hidráulico y Sanitario
I.H.G S.A Ingeniería Hidráulica
Diseño Paisajístico
Diego Bermúdez
Renders
Cinco Arquitectos
Bermúdez Arquitectos




Bermúdez Arquitectos
La Tebaida duplicará su población y es necesario plantear desde hoy una ciudad organizada, verde, saludable, competitiva y bella. La propuesta mejora la accesibilidad y circulación de habitantes y visitantes a La Tebaida. Para esto, es necesaria la pacificación de las vías aledañas a las plazas y la peatonalización de las vías que sirven como antesala a espacios de mayor importancia en el pueblo; la carrera 6 respondiendo a la gran cantidad de personas que convocan lugares como la iglesia y la alcaldía, y la carrera 8 promoviendo la plaza de mercado como espacio esencial para la actividad pública. Los circuitos de circulación se reorganizan para mejorar la movilidad tanto del transporte público como privado. Las áreas de parqueo se reubican para responder al nuevo esquema de movilidad que le da prioridad al peatón.
La Tebaida tiene la responsabilidad de integrar las quebradas La Jaramilla y La Tulia a su tejido urbano, convirténdolas en un atractivo turístico que aumente su competitividad y a la vez promueva la sostenibilidad y el cuidado del medio ambiente.
Un circuito de vegetación que surge de las trazas de espacios verdes, disponibles, públicos, recreativos y contemplativos también funciona como un sistema de manejo de aguas que permite regular las crisis que se avecinan con el cambio climático. Además, esta nueva red verde permite mantener un territorio vivo y saludable, mejorando la calidad de vida de los habitantes.
Proponemos un aumento significativo del área destinada a peatones con respecto al área destinada a vehículos de motor. Pasamos del 50% hoy, al 90% en el proyecto. Esto quiere decir que de los 10874 m2 con los que cuenta la plaza de Bolívar, podríamos dejar 9839 m2 para peatones, nuevas actividades, eventos y el refuerzo de la arborización.
Siguiendo las trazas de arborización, usos, aglomeración de personas y actividades diversas, proponemos dos espacios públicos de carácter diferente, igual de importantes para una ciudad que llegará a tener 40.000 habitantes en poco tiempo. La Plaza Cívica (Bolívar) y el parque (Plaza Nueva), más íntimo y más diverso.
La Tebaida tiene la ventaja de poder dejar entrar el paisaje cafetero hasta el corazón de la ciudad, sin ser parte de la denominación de la UNESCO. Por medio de vías principalmente peatonalizadas o pacificadas, conectadas a las quebradas de la Jaramilla y la Tulia, es posible hacer un circuito natural, peatonal y turístico que rodea La Tebaida a manera de anillo verde haciendo de este un territorio vivo. Para esto es necesario repensar los senderos ecológicos de las quebradas y promover una conexión con espacios públicos diversos, bien diseñados y atractivos.
Por medio del entendimiento de la estructura vial y de llenos y vacíos de la tebaida se revelan oportunidades urbanísticas para la ciudad, que mejoraran la habitabilidad del territorio. El hecho de conectar espacios abiertos, por medio de vías arborizadas permite tener un marco de ciudad amable y atractiva. Este nuevo sistema de espacio público permite a La Tebaida ser un nuevo polo de atracción turística poniendo en valor su estructura existente.

Plano plaza de Bolivar






Proyecto
Concurso público de anteproyecto para el diseño del espacio público en La Tebaida, Quindío: Plaza de Bolívar, Plaza Nueva (Luis Arango Cardona) y sus conexiones. Mención de Honor.
Ubicación
La Tebaida, Quindío Área
24,000 m2
Jefe de Diseño
Diego Bermúdez Obregón
Equipo de Diseño
Arq. Diana Barrera Salazar, Arq Santiago Izquierdo Montoya, Arq Juan Camilo Ortegón, Arq Jaime Andres Barrera.
Perkins+Will


Perkins+Will
El gobierno de Ghana buscaba reemplazar las facilidades existentes en el Ghana Ridge Hospital con un hospital moderno que reflejara las aspiraciones de este país africano en rápido desarrollo. El Ministerio de Salud identificó este hospital como la facilidad principal de cuidado de la salud en la ciudad de Accra y expandió sus facilidades en un plan maestro completo que aumentaba el programa a 600 camas y a más de 12 salas de cirugía totalizando 43,201 metros cuadrados. En su Fase 1, la facilidad de 28,522 metros cuadrados contiene aproximadamente 400 camas y más especialidades médicas incluyendo Salud Pública, Unidad de A&E e imágenes, Pediatría, OB/Gin, Dental, maternidad, guardería, cirugías ambulatorias, NICU, HDU, Administración, Laboratorios, ICU y Terapia Respiratoria.
Programado en dos fases, su desarrollo permitió la continuación de las operaciones del hospital existente. La expansión del nuevo hospital entrega a la ciudad facilidades modernas de cuidado de la salud y se convierte en el hospital más innovador en el país a la fecha.
El proyecto se compromete con las características de la ubicación y del lugar ajustando la forma en que responde a los requerimientos y expectativas de los pacientes y sus familias, personal médico, administrativo y de apoyo. Pasillos techados, corredores públicos y áreas de espera pasivamente enfriados por ventilación natural están formalmente articulados como una serie de capas reinterpretando la respuesta vernácula al lugar, donde los espacios de transición para reunión tienen un significado cultural. El envolvente del edificio a mayor escala proporciona sombreado solar con grandes voladizos de hormigón, toldos a menor escala y brise soléis (parasoles) para los cristales. El hospital se compone de cinco niveles donde un zócalo es creado por los primeros tres pisos el que luego es coronado con cuatro torres para hospitalización de dos niveles aprovechando la pendiente natural del terreno. La parte frontal se enfrenta audazmente a la vía pública en el sur con dirección del noroeste al sureste y se convierte en un dato que presta organización a la circulación y función del edificio en la escala del terreno. Las actividades de llegada flanquean el edificio en el noreste y en el sudoeste. El transporte público lleva a los pacientes a través de un área pública que culmina en un área de espera ventilada naturalmente. Otras llegadas pueden ocurrir en un área localizada en un lugar interno.
El diseño del programa está planeado para mantener una operación simple y eficiente del edificio, donde el edificio está diseñado como un robusto sistema de componentes que funcionan con un mantenimiento mínimo. Se integran a este estilo de vida las estrategias sostenibles que incluyen enfriamiento pasivo, recolección de agua de lluvia, reutilización del agua condensada, acabados exteriores de color claro con productos específicos adquiridos localmente, captura controlada de la luz diurna y calentamiento solar del agua.
Premios
AIA Miami Chapter – Premio de Excelencia, <50,000 SF 2017
AIA Florida Chapter – Premio al Mérito por Nuevo Trabajo, 2017 Cumbre Africana de la Salud, Diseño de Hospital del Año, 2016
Proyecto de Salud Futuro, Premio Internacional de Diseño + Salud, 2014
AIA Florida Chapter, Premio de Honor por Diseño sin Construir, 2014



















Proyecto
The Greater Accra Regional Hospital Localización
Accra, Republica de Ghana
Fecha de Terminación
Feb 2017
Superficie
43,201 m2
LEED
LEED for Healthcare, Silver


Perkins+Will
Perkins+Will fue escogida por una familia de São Paulo para construir su nueva residencia localizada en Alto de Pinheiros; un distrito tradicional de la ciudad y predominantemente residencial. El terreno, con aproximadamente 1,000 metros cuadrados, fue adquirido por los clientes debido a sus características naturales, con alrededor del 50% ocupado por un gran jardín, incluyendo un imponente Flamboyán. Por esta razón, el respeto a las condiciones existentes seria un gran reto en este proyecto.
La primera iniciativa fue comprender las características allí presentes, más que cualquier otra definición. Se decidió asumir el Flamboyán como la característica principal haciendo que las demás soluciones fueran pensadas y modeladas de acuerdo con sus características. Localizado en la parte este del terreno, el Flamboyán fue escaneado digitalmente, incluyendo sus ramas, pudiendo así establecer lineamientos de construcción sin amenazar su bienestar. Luego de definido el protagonista, este debía ser visible para todos. De acuerdo con este principio, la sala / comedor y el balcón gourmet (áreas comunes y de recepción) deberían estar estrechamente vinculados a él. Estas áreas fueron cubiertas por una rejilla estructural de madera (desarrollada junto al ingeniero estructural Hélio Olga) que las entrelazaba y conectaba al jardín desde el suelo hasta la calle, lo cual es el elemento arquitectónico más atractivo. El diseño de esta estructura solo fue posible gracias al mapeo tridimensional en el inicio del proceso, por lo que las dimensiones y altura de la rejilla se definieron para reducir el impacto en el paisaje.


















Proyecto Residencia Alto de Pinheiros Localización
São Paulo, Brazil
Fecha de Terminación
2016
Superficie
1,500 m2
Perkins+Will


Perkins+Will
El nuevo Centro de Innovación e Investigación de L’Oreal aloja la investigación, prueba y producción de productos cosméticos, el primero en su clase en Latinoamérica. Diseñado por la empresa cosmética mundial, la instalación transforma los procesos de investigación de la empresa y los modelos de colaboración para permitir enfoques más dinámicos e integrados en la producción y en las pruebas.
Inspirado en el legado poético de la relación de la arquitectura brasileña con la naturaleza, el edificio se amolda al paisaje, emergiendo como un objeto sinuoso dentro de ella. Interfiriendo con la ecología existente tan mínimamente como fue posible, la ubicación del diseño y la forma general responden a una colina existente, mientras que su estructura de dos pisos se eleva por encima del estacionamiento.
La instalación propuesta de carbono neutral muestra enfoques sostenibles que proporcionan nuevas tecnologías para el terreno y el contexto, fuentes de energía, el uso del agua, las credenciales medioambientales de los materiales, y la salud de sus ocupantes y del paisaje circundante. Los jardines de filtración de agua y el impacto cero en la topografía existente proporcionan un enfoque integrado para el diseño sostenible enfocado en los principales subsistemas – terreno y hábitat, agua, energía y materiales – para lograr los estándares LEED Gold, así como permitir la aplicación de los criterios de Living Building Challenge.
La epidermis del edificio representa el compromiso de la empresa con la innovación en relación con la piel humana y su salud frente al empoderamiento de las mujeres. Como un edificio social y ambientalmente responsable que regenera su contexto natural, el proyecto encarna la misión y visión de la empresa como una entidad mundial comprometida con el bienestar global.
Premios
Premio de Honor de Arquitectura de la Bienal de Perkins+Will, 2018 Premios de Soluciones Verdes, Gran Premio de Infraestructura, 2017 AIA Florida Chapter, Premio de Honor para Diseño sin Construir, 2016 WAF, Preseleccionado para Futuros Proyectos, 2015 AIA Miami Chapter, Premio de Honor para Diseño sin Construir, 2013









Proyecto L’Oreal
Localización
Rio de Janeiro
Fecha de Terminación
2016
Superficie
13,936 m2
LEED
Targeting Gold
Choy-León Arquitectos


Choy-León
Arquitectos
La Plaza de la Revolución Antonio Maceo fue el resultado de un concurso nacional, premiado por el proyecto que lideró el escultor Alberto Lescay, autor de la memorable figura ecuestre de Antonio Maceo, acompañado por el también escultor Guarionex Ferrer, creador del valioso Conjunto de Machetes, y por el arquitecto José Antonio Choy, proyectista general de la obra.
El basamento conceptual de todo el conjunto es la Protesta de Baraguá, hecho protagonizado por Antonio Maceo y demostración histórica de su intransigencia ética, al negarse a aceptar el Pacto del Zanjón, que establecía la culminación de la Guerrra de Independencia.
La plaza fue imaginada como un amplio espacio verde, de congregación cívica, participación social, juegos lúdicos y actividades culturales. A un extremo crece un bosque de palmas reales. Al otro, se extiende una colina verde donde se asienta el conjunto monumental que da fundamento a la poética de la Plaza: Antonio Maceo enérgico, convocando a la marcha indetenible de la nación, siendo respaldado por veintiocho machetes que se van levantando desde el terreno hacia la verticalidad, en alusión a la frase “el 28 se rompe el Corojo”, día en el que se romperían las hostilidades.
La escultura ecuestre y los machetes en movimiento, representan el gesto de indoblegable voluntad de la gesta libertadora. El telón de fondo del paisaje mediato de las estribaciones de la Sierra Maestra, completan la alegoría.
Bajolacolinasehaconstruidounespaciopolifuncional,queagrupadiversasinstalacionespropias del programa: salas de exposiciones holográficas, archivos, sala de conferencias múltiples y un jardín soterrado, que ilumina todo el lugar a través de un vitral de la artista Julia Valdés. Sobre este se ha diseñado una escalinata de mármol verde, que sirve de acceso al conjunto, a la vez funciona como tribuna para actos cívicos y escenario para funciones culturales.

el material extraído de la obra y aqui reseñado.











Proyecto
Plaza de la Revolución Antonio Maceo
Ubicación
Avenida de los Desfiles, entre Avenida de las Américas y carretera Central. Santiago de Cuba.
Inversionista
Gobierno de Santiago de Cuba
Fecha de proyecto
1989
Fecha de construcción
1991
Escultor y coordinador general de toda la Plaza
Alberto Lescay
Escultor del conjunto de los machetes
Guarionex Ferrer
Proyectista general
Arq. José A. Choy López
Proyectistas de arquitectura e ingenierías
Emproy 15, Micons, Santiago de Cuba
Choy-León Arquitectos


Choy-León Arquitectos
BasándonosenlaexcelenteinvestigacióndelaDra.Arq.IsabelRigolSavio,paralaDeclaratoria de Monumento Nacional del hotel Habana Riviera construido en 1957, proponemos el rescate de la imagen, de la obra del Arq. Igor Polevitzky. Esta será la operación cultural más significativa de una de las obras más importantes de la arquitectura del Movimiento Moderno cubano.
La relación con el paisaje se establece a partir de dos elementos contrapuestos: la torre en forma de Y, y el basamento, tipología distintiva que se adelanta a la tradicional composición común en la época.
La intervención se propone deshacer acciones que en el tiempo, han afectado la imagen original del hotel. Los conceptos principales son:
Alcanzar la categoría solicitada por el cliente, a partir del beneficio obtenido por la preexistencia de un hotel histórico de carácter patrimonial. El hotel Habana Riviera entraría en el circuito de hoteles famosos, en el área del Caribe y Norteamérica.
Salvar el acceso original de la Avenida Malecón a través de una plaza a desnivel vial, para acceder a los servicios del semisótano público.
Restituir el carácter urbano de la torre de alojamiento y recuperar las columnas perimetrales por la Avenida Malecón.
Rediseñar el sistema de alojamiento para la categoría propuesta.
Renovar los sistemas públicos comerciales y de alojamiento. Conservar piezas valiosas del mobiliario y la decoración. Completar este patrimonio con piezas de alta calidad de diseño del Movimiento Moderno. En el diseño interior tomar como referencia el diseño original desde la contemporaneidad. Preservar el valioso arte que atesora el hotel. Reconvertir el inmueble en un edificio sano.
¿Sobrevivirá el Habana Riviera?, se pregunta la arquitecta Isabel Rigol, al final de su excelente defensa. Confiamos en que así sea.











Proyecto
Remodelación y ampliación del Hotel Habana Riviera
Ubicación
Avenida Paseo entre Avenida Malecón y Avenida Primera, El Vedado, La Habana.
Solicitado por Iberostar, Hotels & Resorts
Fecha de proyecto
2016
Proyectista
Choy-León Arquitectos Proyectistas principales
Arq. José Antonio Choy López / Arq. Julia León Lacher
Proyectistas de arquitectura:
Arq. Adriana Choy / Arq. Jorge Luis Sam / Arq. Raúl Cruz Espinosa / Arq. Rafael Aleaga / Arq. Claudia Bergantiños
Ilustradores
Arq. David Labrador / Arq. Alexis Silva
Choy-León Arquitectos





Choy-León Arquitectos
El edificio de la Estación Central de La Habana, inaugurado en noviembre de 1912, fue proyectado por el arquitecto Kenneth M. Murchison y construido por la Snare & Triest Company durante la intervención norteamericana. Por sus múltiples valores patrimoniales está declarado Monumento Nacional. Forma parte del Centro Histórico de La Habana, Patrimonio de la Humanidad. Ocupa un territorio de 25 hectáreas, en un terreno privilegiado al sur del Capitolio Nacional, el Parque de la Fraternidad, y al borde de la bahía. La principal decisión de la inversión, asumida por el proyecto y su Plan General, fue declarar al edificio patrimonial y todo su entorno como la futura Estación Intermodal Nacional, al quedar sin uso los patios de carga y descarga, por el traslado de estas funciones al nuevo Puerto del Mariel.
El Plan General se basa, entre otros, en los siguientes principios:
Integrar en un solo conjunto: La Estación de Lejanía, La Estación de Cercanías, La Estación Nacional de Ómnibus, los taxis, los ómnibus urbanos y una Estación Marítima al borde este del Plan General.
Revitalizar todo el entorno inmediato, sumamente deteriorado por la falta de mantenimiento. RealizarelPlanGeneralentresetapas,segúnaconsejanlosestudiosdefactibilidadeconómica.
Convertir este Plan General y su materialización en acciones dinamizadoras para el proyecto de La Bahía de La Habana, que sin lugar a dudas es el desafío más grande de la ciudad en el siglo XXI.












Proyecto
Terminal de Ferrocarriles de la Habana
Ubicación
Calle Egido entre Arsenal y Avenida del Puerto, Habana Vieja
Inversionista
Unión de Ferrocarriles de Cuba.
Mitrans Plan General. Ampliación y Remodelación
Fecha de proyecto
2014
Proyectista
Choy-León Arquitectos
Proyectistas principales
Arq. José Antonio Choy / Arq. Olivia Choy León / Arq Adriana Choy León / Arq
Claudia Bergantiños
Equipo de arquitectura
Arq. Raúl Cruz Espinosa / Arq. David Labrador / Arq. Gabriel Harryman / Arq. Laura Casanova
Asersor estructural
Ing. Roy Cobos
Colaboradores
Plan Maestro, OHC / Arq. María Teresa
Padrón / Ing. Francisco de la Nuez /Cimab/ Ing. Julio Cabrera / Ing. Germán Moreno
Proyecto ejecutivo
Arq. Michel Martínez / Grupo Cecrea
Choy-León Arquitectos


Choy-León
Arquitectos
El Residencial Tarará, ciudad de descanso situada a 19 kilómetros al Este de La Habana, se urbanizó en los años cuarenta del siglo pasado. Varios factores convierten este sitio en un lugar de excepcionales potencialidades para una inversión inmobiliaria a gran escala. Entre ellos se puede mencionar su cercanía a La Habana, a solo 20 minutos a través de la vía Monumental; la valiosa preexistencia de su urbanismo, por su magnífico trazado entre la costa marítima y el Río Tarará; los recursos naturales de alta calidad en playa, mar, río y montañas cercanas; la infraestructura técnica existente en obras viales, alcantarillado, acueducto y electricidad; y por último, el fondo residencial, con importantes ejemplos de la arquitectura del Movimiento Moderno cubano.
El proyecto propone transformar esta ciudad en un lugar para la recreación y el descanso, donde el uso mixto se convierta en el principal atractivo de su urbanismo, facilitado por el alojamiento en diferentes modalidades, los deportes náuticos, la playa, la marina, el golf en su concepto ecológico, las convenciones, el comercio, la cultura y los espacios públicos de participación ciudadana. Es importante la concepción de proyectos dinamizadores: la marina por sus magníficas condiciones naturales, el campo de golf, los hoteles temáticos, de convenciones y de playa, el Recinto Ferial, entre otros. Los estudios realizados permiten desarrollar el proyecto en tres etapas, según los análisis económicos y de oportunidades de inversión que han sido realizados.













Proyecto
Conjunto Residencial Tarará
Ubicación
Tarará, Habana del Este
Inversionista
Residencial Tarará, Inmobiliaria Cimex
Fecha de proyecto
Diciembre, 2013
Proyectista
Choy-León Arquitectos
Proyectistas principales
Arq. José Antonio Choy / Arq. Julia León Lacher / Arq. Olivia Choy León
Equipo de arquitectura
Arq Rosabel Pino / Arq Adriana Choy León/ Arq Kiovet Sánchez / Arq. Raúl Cruz Espinosa
Consultores
Arq Indalecio Valdivieso (Presupuestos) / Ing. Isabel Alvarez (Hidráulica) / Ing. Luis Ruiz (Electricidad)
Ilustradores
Arq. David Labrador / Iván González
Asesores
Ing. Ángel Valdés (ProNaturaleza) / Arq.
Andrés Duany (DPZ)
GVA Arquitectos


El Proyecto se compone de tres grandes áreas principales: Área de Administración (al sur), Área de Aulas (al noroeste), Área de Comedores (al noreste). En términos generales los edificios de desplantan en dos niveles que se van ajustando a manera de terrazas a la pendiente del terreno (que es de un 10% promedio), logrando así una variedad de espacios, vistas y ambientes.
El programa del proyecto consta de comedores, 3 aulas para 90 personas y una para 200, portico de ingreso, oratorio, área de administración, business center, snack-bar y cocina. De los espacios abiertos: estacionamiento para 215 automóviles, patio de ingreso, explanada de eventos con baños, jardines, y patio de maniobras.
El Pórtico de ingreso se compone de un gran muro cubierto de enredadera hacia el lado de afuera (hacia el estacionamiento) y de un marco y columnas de concreto hacia el interior, que sirve como vestíbulo de bienvenida. La Administración es un edificio independiente de dos plantas en forma cilíndrica que está vinculado al oratorio por medio de un jardín.
El Oratorio es un espacio de planta cuadrada a doble altura. En cada uno de sus lados contiene un ventanal de piso a techo con lambrines de madera, estos sirven también como puertas en dos de sus lados una que ve al norte, hacia el patio de ingreso que sirve como atrio.











Proyecto
IPADE
Ubicación
Av. Carlos Llano Cifuentes No 3000 Fracc. El Río Country Club 45350 El Arenal, Jalisco, México
Construcción
115,000 m2
Superficie
30,000 m2
Tipología
Educación
Fotografía
Fotos cortesía del IPADE y GVA Arquitectos
GVA Arquitectos


GVA Arquitectos
Ubicada en el municipio de Colón en el Estado de Querétaro, contando con una inversión de más de 100 millones de dólares de fondos privados, esperando esto genere empleo para un staff involucrado en el proyecto de más de 1,500 profesionales.
Con un terreno inicial de 149 hectáreas y dos áreas de reserva con las que podrá aumentar 71.5 hectáreas a futuro. Arkansas State University Campus Querétaro contempla una primera etapa para 5,000 alumnos a desarrollarse hasta una población máxima de 20,000 estudiantes.
El proyecto en su primera etapa comprende el área académica donde se localizan las aulas, laboratorios, student union, centro de recursos académicos, área recreativa
cubierta y áreas deportivas descubiertas, Servicios generales y mantenimiento así como el área de alojamiento para profesores y alumnos.
La primera universidad estadounidense en México, con un modelo norteamericano de educación superior que generará servicios académicos de nivel mundial. El campus será transformador para la Universidad de Arkansas y vitalizará la creación de oportunidades competitivas a nivel mundial para los alumnos representa el compromiso de educar a estudiantes que contribuirán a una democracia sustentable y al progreso socioeconómico en México por parte de las empresas y socios gubernamentales que se encuentran involucrados en este proyecto.



Proyecto
Arkansas State University
Campus Querétaro
Ubicación
Querétaro, Querétaro, México
Superficie del terreno
149 Hectáreas
Construcción
64,200 m2
Fotografía
Fotos cortesía de Arkanksas State University y GVA Arquitectos
Christiern H. Broberg


Christiern H. Broberg
El Helipuerto de Santo Domingo fue construido por el Departamento Aeroportuario y puesto en operación el 17 de Julio del 2008. El objetivo de construirlo fue dotar a la Ciudad de Santo Domingo de una facilidad aeroportuaria con capacidad de operaciones simultáneas de aterrizaje, despegue y estacionamiento de helicópteros para brindar servicios a las aeronaves de este tipo que operan en diferentes zonas de la ciudad y que no contaban con las instalaciones acondicionadas para funcionar como helipuerto.
Este helipuerto es de orden público y en él se desarrollan operaciones de helicópteros comerciales, profesionales, ejecutivos, turísticos y de emergencias en un horario operativo, hasta la fecha, desde la salida hasta la puesta del sol.
El proyecto se emplaza sobre en el Litoral del Mar Caribe en un lote de aproximadamente 15,683.53 metros cuadrados ubicado de manera estrategica en la intersección de la Ave. José Núñez de Cáceres y Autopista 30 de Mayo. Esta localización lo convierte en una pieza clave en el manejo de emergencias del Sistema 911 y AeroAmbulancia para la Ciudad de Santo Domingo.
En el año 2018, se decidió llevar a cabo la adecuación del Helipuerto, incluyendo la construcción de todas las facilidades necesarias para que cumpliera con todos los requisitos establecidos por las normativas nacionales e internacionales en cuanto a su configuración y operación, incluyendo la construcción de un edificio terminal con sus facilidades conexas, así como tres (3) plataformas de aterrizaje y despegue (helipads) y 5 posiciones de estacionamiento de aeronaves, dentro de las facilidades existentes.
El proyecto involucró la realización de todas las investigaciones de campo, estudios y diseños técnicos y de instalaciones necesarias para la correcta construcción de todas los espacios, facilidades y ambientes requeridos para requeridos para el adecuado funcionamiento del helipuerto, siguiendo los parámetros indicados en estas especificaciones técnicas establecidas por la Dirección Técnica del Departamento Aeroportuario bajo la coordinación del Arq. Christiern Broberg, Director Técnico de la institución, quien además es el responsable del diseño del mismo.
El proyecto incluyó la construcción de la verja perimetral del complejo, en malla ciclónica galvanizada plastificada, la construcción de Tres (3) plataformas de aterrizaje y despegue para helicópteros (helipads). 2 de 18m x 18m y una de 25m x 25m, todas construidas en hormigón armado, interconectadas mendiante una pasarela entre helipads y edificio terminal consistentes en piezas de hormigón de 1.40m x .40m. Estos helipads contará con un moderno sistema de luces de tecnología de punta el cual podrá ser activado mediante radiofrecuencia directamente desde los helicópteros.
Las cinco (5) posiciones de estacionamiento y sus conexiones a su helipad correspondiente, fueron pavimentadas en adoquines tipo Pavigramas para armonizar con la grama natural del terreno, y no perder la esencia de la naturaleza, además de ser versátiles y económicos al momento de su mantenimiento o reemplazo.
Se construyó además un estacionamiento vehicular con capacidad de 16 vehículos, incluyendo dos (2) para personas con discapacidad, pavimentados igualmente en adoquines tipo Pavigramas. Las vías de acceso internas se construyeron en adoquines tricolor.
La obra central del proyecto es el edificio Terminal con sus facilidades conexas, construida minimizando el impacto de construcción sobre el terreno, construido en estructura metálica debidamente tratada por su proximidad al mar con losas hormigón vaciado sobre metaldeck. El concepto arquitectónico es integrador con el ambiente circundante cubriéndose en su totalidad por grama a fin de crear un efecto visual que no rompa con el verde de la zona. Con un área hábil de 350m2, esta terminal ofrece facilidades no sólo a usuarios y clientes sino también a sus pilotos, los cuales cuentan con una confortable sala privada para ellos, donde disponen de televisión y una computadora con conexión a internet.
Para los usuarios hay dos áreas disponibles. El área de estar general o sala de partida común, y una sala VIP para reuniones de ejecutivos y empresarios.
A nivel gubernamental, esta terminal incluye un área de baño privado solo para uso presidencial.
La arquitectura de esta edificación es original y vanguardista, con una forma aerondinámica completamente revestida de grama, lo cual, aparte de las bondades ofrecidas en términos de ahorro de energía sirve de compensación ecológica sobre el área verde ocupada por el edficio. Cuenta con un sistema de planta de tratamiento de aguas residuales y en una próxima etapa de habilitará un completo sistema de energía fotovoltáica.














Proyecto
Helipuerto Santo Domingo
Localización
Autopista 30 de Mayo casi esq. Av. José Núñez de Cáceres, Distrito Nacional
Propietario
Departamento Aeroportuario
Año inicio / término obra
2018
Área total de construcción
350 m2
Área del solar / lote
15,683.53 m2
Diseño arquitectónico
Arq. Christiern H. Broberg
Colaboradores
Arq. Edgar de la Rosa / Arq. José Durán (Dibujo Técnico y Digitalización de planos)
Diseño estructural
Ing. José Manuel Díaz (Díaz Ingenieros & Consultores)
Diseño eléctrico
Constructora Magón
Diseño sanitario
Díaz Ingenieros & Consultores
Diseño sistema de A/A
Soluciones Comerciales e Industriales
Diseño interior / decoración
Arq. Christiern H. Broberg
Contratista general
Urtecho & Asociados SRL (Edificio Terminal)
Proyectos, Inversiones y Construcciones
SRL (Proinco) (Helipads y Posiciones de Estacionamiento de Aeronaves)
Rent SRL (Verja Perimetral)
Grupo Orbe Dominicano, SRL (Sistema de Luces Aeronáuticas)
Supervisión
Dirección Técnica / Departamento
Aeroportuario
Instalaciones eléctricas
Ingenieros Técnicos y Asociados SRL (INTECA)
Instalaciones sanitarias
COYDISA Instalaciones Técnicas
Instalaciones A/A
Ingenieros Técnicos y Asociados SRL (INTECA)
Hormigón
Proyectos de Ingeniería Romma
Estructuras metálicas
Ing. Loren Tamarez
Materiales de construcción
Industrias Aguayo, Blocks Khoury, DEF
Ingenieros
Luminarias y Materiales eléctricos
Elías Group, Luminatti
Puertas y ventanas, cerramiento vidrio Incamil srl
Barandillas / herrería Incamil Srl
