

![]()


«Los Caro»
Tres generaciones de Arquitectura, Urbanismo y Construcción en la República Dominicana
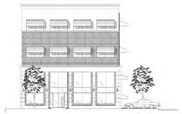
En portada, desde la izquierda el Ing. Jaime Batlle Ginebra, el Arq. José Antonio Caro Ginebra, el Arq. Juan Cristóbal Caro Gómez y el Arq. Danilo Caro Ginebra, en el estudio de Caralva en Santo Domingo. Al fondo, retrato de José Antonio Caro Álvarez, realizado por el célebre muralista español José Vela Zanetti. Fotografía de Luis Nova para AAA.
AAAPro_File 07
Director/Editor
Gustavo Luis Moré
Coeditora
Lorena Tezanos Toral
Consultor de diseño
Massimo Vignelli
Directora de arte
Chinel Lantigua
Asistentes gráficos
María del Mar Moré / Manuel Flores
Fotografía portada
Luis Nova
Fotografías y gráficos
Ricardo Briones, Héctor Vilorio,
Gustavo José Moré, Enrique Penson
Luis Nova, Ricardo Piantini, Onorio Montás
Archivos Caralva / AAA
Archivo General de la Nación
Retoque fotos de archivo
Chinel Lantigua
Corrección de estilo
María Cristina de Moré
Gerente administrativa
María Cristina de Moré
Gerente de ventas y mercadeo
Patricia Reynoso
Consultora de mercadeo
María Elena Moré
Asistente administrativa
Madeline Espinal
Asistente
Luis Checo
Suscripción, venta y publicidad
Santo Domingo, RD
Patricia Reynoso / Madeline Espinal
Tel 809 687 8073 / Fax 809 687 2686
Miami, Fl
Laura Stefan
Cel 786 553 4284
Preprensa e impresión
Editora Corripio. Santo Domingo, RD
AAA agradece de manera especial la enorme colaboración de Juan Cristóbal Caro Gómez, José Antonio «Tony» y Danilo Caro Ginebra, en el desarrollo y documentación de este Pro_File 07. Igualmente al Lic. José Luis Corripio y su equipo en Editora Corripio, por la generosidad recibida en este proceso.
AAA / Pro_File © es una edición especial de AAA. Santo Domingo: Número 07, febrero 2016. Para envío de colaboraciones, cartas o informaciones favor contactar al editor en: Gustavo Luis Moré / AAA, E.P.S. P-4777, 8260 NW 14th st. Doral, Florida 33126 USA. Dirección oficinas de redacción: Calle Benigno Filomeno Rojas #6, Penthouse 7 Norte, Torre San Francisco. Santo Domingo, República Dominicana. Tel.: 809 687 8073. Fax: 809 687 2686. E-mail: gustavoluismore@gmail.com Sitio Internet: www.archivosdearquitecturaantillana.com
Permitida la reproducción parcial siempre que se admita la fuente. El editor no se hace responsable de los conceptos emitidos por los articulistas. Publicación registrada con el No. 83238 del 15/4/96 en el Ministerio de Industria y Comercio de la República Dominicana ©. ISSN 1028-3072. LCCN 99110069 sn 98026218 OCLC number (OCoLC) ocm 40640773





«Los Caro»: tres generaciones de arquitectura, urbanismo y construcción en la República Dominicana

Desde cualquier perspectiva, intuir que en el tiempo tres generaciones sucesivas de sus descendientes serían reconocidos como arquitectos de calidad en la República Dominicana, debió ser un hecho imposible para doña Mercedes Álvarez y don Francisco «Quico» Caro, hijo de inmigrantes españoles cuyo oficio de panadero sentó las bases para el desarrollo de toda su reconocida familia. Don Quico, ya exitosamente establecido en varias propiedades de la calle Padre Billini, en la Zona Colonial de Santo Domingo, embarca —de la mano del Ing. José Turull a quien acompaña hacia Barcelona y luego monta en un tren hacia Bruselas— a su hijo José Antonio, ya graduado de bachiller en ciencias físicas y matemáticas de la Escuela Normal Superior de Santo Domingo. JACA se instala en Gantes, Bélgica, con el propósito de formarse profesionalmente como arquitecto, hecho que finalmente ocurre en 1934, después del traslado del joven a la Escuela Especial de Arquitectura en París, en 1930. La familia Caro Álvarez mientras tanto reside en Barcelona. José Antonio, nacido en Santo Domingo el 7 de junio de 1910, aprovecha esta larga permanencia familiar y su presencia activa en uno de los centros de producción de conocimiento de mayor solvencia de la época, para consolidar una educación amplia y de aguda visión, hecho que demostró con creces durante sus más de cuatro décadas de trabajo profesional y humanista en el desarrollo de la cultura dominicana.
Fue tal su pasión, que sus dos hijos varones, José Antonio «Tony» y Danilo, ambos asumen el llamado de la vocación y realizan sus estudios profesionales en la Universidad de Cornell, y ya en una tercera generación, Juan Cristóbal, hijo de Tony, se forma en la Universidad de Wentwoth también como arquitecto y al igual que su abuelo, su padre y su tío, mantiene una práctica destacada y firme. En verdad toda la familia descendiente de José Antonio Caro Álvarez, se ha dedicado, de una u otra forma, a diversas ramas de la arquitectura, el urbanismo y la construcción, incluyendo al Arq. Antonio Kaparis Caro, nieto de JACA e hijo de Lorraine Caro Ginebra, quien se educó y ha desarrollado su práctica profesional en los EUA
No es extraña en la historia esta continuidad familiar a un mestiere. Una familia de arquitectos flamencos, los Keldermans, se desempeña con prestigio entre 1345 y 1534; en el Véneto, la familia Contín actúa entre 1530 y 1654; desde mediados del siglo XVIII hasta al menos 1925, la familia de arquitectos Balian, se destaca en las cortes otomanas; más recientemente apellidos como el de Wright, Saarinen, Bohm, Neutra, Pei, Pelli, Roca, y Gensler, se extienden más allá de una generación, cada una con su particular visión y a la vez, con un estrato vivencial en común. En la República Dominicana, país en el que la práctica de la arquitectura es un hecho relativamente joven, ya se está evidenciando, cada vez con más notoriedad, este fenómeno de la continuidad profesional familiar.
Más allá de este hecho que podría ser considerado anecdótico, está la obra misma. Desde su regreso al país JACA (nom de plume de José Antonio) se entrega de lleno a la práctica tanto pública como privada; sus primeros proyectos son para la familia misma y, en sociedad con otro dominicano formado en Bélgica paralelamente, Leo Pou Ricart, realiza varias obras de relevante presencia, documentadas en este libro por vez primera. Caro Álvarez se constituye en un pionero de la modernidad dominicana, junto a los hermanos Pou Ricart —Leo y Marcial— y a Guillermo González, diez años mayor, formado en la Universidad de Yale, quien sería, en gran medida, su socio y alter ego como autor y personaje simbólico durante los duros años de la Era de Trujillo (1930-1961).
Este Pro_File 07, ha estado en proceso de edición desde los años 80, años en los que entramos en contacto con los Caro como parte de las investigaciones del Grupo Nuevarquitectura. Ha sido un desarrollo lento, madurado con el pensamiento y consciente del peso histórico que asumimos al resumir, en estas páginas, más de 80 años de afanes ininterrumpidos de toda una familia y en realidad, de toda una sociedad que les distingue.
«Los Caro»: tres generaciones de arquitectura, urbanismo y construcción en la República Dominicana
Gustavo Luis Moré
La edición de este Pro_File 07, como los seis anteriores de la serie asumida por AAA para detallar la obra y el pensamiento de autores sobresalientes en el escenario de la arquitectura y el urbanismo del Gran Caribe, intenta estructurar una visión crítica que sea coherente e integral con la obra misma del protagonista y su realidad histórica. Se trata de extraer de la documentación obtenida y de los relatos orales, la naturaleza propia del autor, intuir los razonamientos, hechos y el sentir que pudo orientar sus actos, tal y como los registró la historia. El carácter de un texto biográfico se hace inevitablemente necesario, al igual que la revisión exhaustiva de toda la documentación de archivo. En este caso el material ha sido extraordinariamente abundante; muchos de los gráficos contenidos aquí son inéditos y representan una cantidad muy limitada de los que pudieron ser publicados. La sola obra de JACA, hubiera dado material suficiente para una obra enciclopédica...
La estructura del libro sigue una ruta naturalmente cronológica. La historia familiar ha sido resumida por el reconocido intelectual dominicano José del Castillo, cercano además a la familia Caro, quien ilustra con elegancia y precisión en su texto JACA, perfil de un humanista, la singular dinámica de tan colorida familia, desde las antológicas canastas metálicas donde se distribuían aún calientes el Pan Quico y sus productos de alta repostería, hasta las últimas actuaciones del hombre multidimensional en que se convirtió don José Antonio, como producto de las circunstancias que le tocó vivir, su alto sentido de la responsabilidad y su inagotable altruismo.
Una de las facetas más valoradas de su trajinar fuera del taller de arquitectura, fue la de la arqueología, disciplina que le apasionaba y que le orientó a gestionar, diseñar, construir, dirigir hasta su muerte y crear la museografía aún en gran medida existente, del Museo del Hombre Dominicano, espacio que reúne en una arquitectura de bellísima modernidad, la colección de objetos prehispánicos más importante de la República Dominicana, y posiblemente del mundo. Este museo, al igual que la Biblioteca Nacional, son dos de las obras que encadenaron generacionalmente a JACA con sus hijos, en una operación que providencialmente permitió al gobierno de turno del Dr. Joaquín Balaguer, (1970-1974), concebir y ejecutar el recinto de la Plaza de la Cultura, en pleno corazón de la ciudad de Santo Domingo, ámbito donde se reúnen las instituciones oficiales más importantes de este universo en el país. Este esfuerzo es plasmado aquí en el texto Un valioso y fecundo aporte a la arqueología nacional del Dr. Manuel García Arévalo, a su
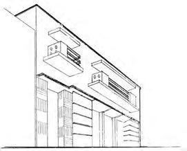
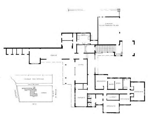
Residencia de Francisco Caro en la calle Dr. Báez esquina César Nicolás Penson, en Santo Domingo. Esta residencia constituye la primera obra de JACA a su regreso al país y data de 1935.

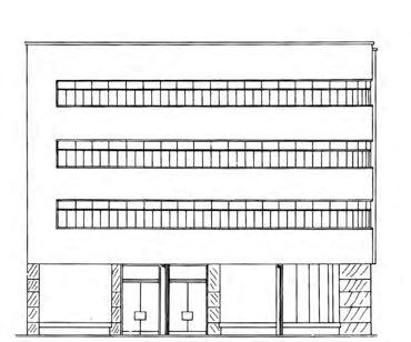
Moderna residencia obra de JACA, hoy inexistente.

vez arqueólogo y coleccionista, quien convivió y colaboró apasionadamente con JACA en esta particular vocación.
Gran parte de la historia de los Caro está en proceso de desarrollo actual. Es por esto que decidimos contarla con las voces mismas de ellos en una serie de entrevistas realizadas a lo largo de la edición, en la que participaron José Antonio «Tony» y Danilo Caro Ginebra (hijos de JACA), el Ing. Jaime Batlle (colaborador protagonista del equipo y miembro integral del núcleo familiar), y Juan Cristóbal Caro Gómez, arquitecto, hijo de Tony Caro y actual director de Caralva en el manejo cotidiano de la empresa. Estas entrevistas han sido editadas y presentadas en un texto continuo, en el que se describe con certeza y fácil lectura, la relación entre los miembros de la familia, los colaboradores, las empresas e iniciativas, e infinidad de anécdotas producto de tan longeva actuación durante más de 8 décadas al frente del mundo de la arquitectura y la construcción en el país.
Desde sus inicios, la firma de Caro Álvarez estuvo consciente de la relevancia de su rol como empresa contratista. En su mente el acto de diseño y el de construcción eran parte de un continuum que garantizaba la calidad y el control de la obra misma. Caro ensambló con los años un equipo de jóvenes colaboradores que posteriormente fueron destacándose individualmente y en asociaciones que hoy se inscriben en las páginas de la mejor práctica profesional del país. La lista de nombres ilustres es larga y resonante. Se ha intentado recoger al final de este volumen, la mayor cantidad de personas vinculadas a través de los años a JACA , y a las otras denominaciones que la empresa ha asumido con el devenir del tiempo: José Antonio Caro y Asociados; Ingeniería y Arquitectura C x A ; Caralva, etc...
Desde su graduación académica en los años 50, el Ing. Milton Ginebra, sobrino de JACA, se convirtió en mano derecha del mismo en el campo y en las labores constructivas. Su participación en obras de gran envergadura en todo el territorio nacional, está estrechamente asociada al éxito de los emprendimientos. Así mismo, el Ing. Jaime Batlle Ginebra, quien se especializa en Río de Janeiro, Brasil, se integra al despacho como contratista principal a partir del regreso de Tony Caro de Cornell, en 1967. El enorme trabajo de la firma a través del tiempo, ha sido presentado en este volumen al final del contenido, para permitir dar continuidad a la lectura visual del diseño como elemento conductor del equipo.
Vista aérea del patio aporticado que demarca la piscina en la antigua residencia de los Trujillo, sede actual de la Cancilleria de la República Dominicana. Tanto este lugar como la ampliación de la casa original de los Michelena, —apreciable a la derecha de la foto— son atribuidos a José Antonio Caro Álvarez.

Hoy puede resultar un tanto ajeno a las generaciones actuales, reconocer la experiencia de Tony y de Danilo Caro Ginebra como arquitectos. A raíz del fallecimiento temprano de don José Antonio, ambos hermanos se debieron dedicar a las actividades empresariales que para JACA eran complementarias a la práctica profesional, pero, debido al éxito de las mismas, fueron exigiendo cada vez más atención. Tony debió asumir el rol de banquero frente a la organización del Banco Hipotecario Dominicano (hoy transformado en Banco BHD León), una de las instituciones financieras de mayor prestigio, líder en el país; Danilo hubo de asumir el comando de varias de las empresas del ramo industrial creadas por JACA, como Cima Industrial y Pinturas Popular, entre otras.
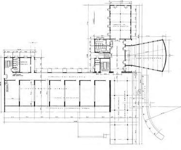
Pero en la década de los 70, el panorama era otro. Tony regresa al país desde Cornell en diciembre del 1967 y Danilo en el 1969. Desde el inicio, se integran al taller de JACA, y asumen sus primeros proyectos: casas, apartamentos y casi de inmediato, la Biblioteca Nacional y el Museo del Hombre Dominicano; proyectos de gran magnitud y responsabilidad, cuidados bajo la tutela de don José Antonio, quien compartía su presencia en I+A con su desempeño como rector de la UNPHU, y como incipiente creador del Museo del Hombre. Las anécdotas de don José Antonio y las fotos de archivo le ilustran como un hombre siempre jovial, despierto y atento a todo... Tony —cuya tesis en Cornell anticipa formalmente tanto el diseño de la Biblioteca como el del Museo— y Danilo, van ganado su confianza y se van haciendo, apoyados por Jaime y por Milton, con uno de los equipos profesionales de mayor calidad y volumen de obras en el país. Los Juegos Panamericanos del 74 ofrecen la oportunidad de realizar, junto al Arq. Fred Goico, el Estadio Olímpico. También de esa misma época es la propuesta ante el concurso para el Banco Central de la República Dominicana, no ganadora, pero que les valió la importante comisión para la construcción de la torre diseñada por el Arq. Rafael Calventi. Muchas otras obras institucionales, domésticas y urbanas se suceden en una dinámica cada vez creciente.
Paralelamente al deceso de don José Antonio en 1978, los Caro se vinculan al empresario norteamericano Charles Bluhdorn, quien a través de la Gulf+Western pone en marcha un desarrollo industrial e inmobiliario que habrá de cambiar la RD: Costa Sur, Casa de Campo, en La Romana, al este del país. I+A prácticamente se establece en el este, con Milton Ginebra a la cabeza, y realiza infinidad de obras vacacionales, cívicas, y planifica el conjunto original de Altos de Chavón, un poblado destinado a artistas y personajes ilustres, situado en el promontorio más
Vivienda de extraordinaria composición, atribuida a JACA, de la que no existe hoy rastro ni documentación alguna. Se aprecia un paisaje costero por la vegetación típica.

alto del desarrollo. El proyecto original se ejecuta con modificaciones sustanciales, obras de Roberto Coppa, escenógrafo contratado para mimetizar in stile toscano la idea original. Entre 1978 y 1982 los Caro realizan una serie de obras que en verdad definen —junto al trabajo del arquitecto norteamericano William Cox— el carácter del conjunto que aún predomina en lo que se ha convertido en el paradigma de la calidad en los ámbitos vacacionales dominicanos.
De esta etapa es también la concreción de la Urbanización Los Pinos, en Santo Domingo, diseñada junto al urbanista Pablo Mella. Este desarrollo situado en unos espectaculares terrenos cercanos al Parque Botánico Nacional, concentró una cantidad significativa de residencias de alto nivel, muchas de las cuales fueron realizadas por I+A.
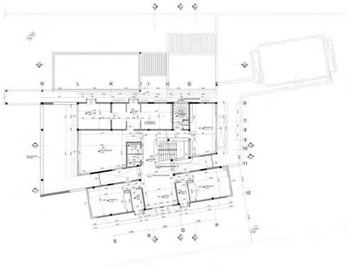
Juan Cristóbal Caro Gómez (1971) soñó desde niño con la construcción y el diseño de obras. De todos los nietos de JACA , fue quien más claramente identificó ese llamado vocacional. Después de cumplir su formación académica en el Wentworth Institute of Technology, en Boston, y de trabajar por dos años en Hammond, Beeby and Babka, en Chicago, se reintegra definitivamente a Caralva en 1997. De inmediato gana, asociado a Gustavo Luis Moré, el concurso interno para la ejecución de una serie de sucursales llamadas Bankágil BHD , que se diseminan en todo el país. Durante este proceso Caralva y Moré Arquitectos se presentan juntos y ganan el concurso nacional de diseño para el edificio sede de la Suprema Corte de Justicia y la Procuraduría General de la República. Esta experiencia ha permitido una serie de proyectos producto de esta asociación estratégica, muchos de los cuales recoge este volumen, además de los ejecutados por Caralva a través de la gestión de Juan Cristóbal. Ambas empresas operan de manera independiente también.
El acercamiento a la lectura crítica de la obra de los Caro ha sido abordado por el Arq. Omar Rancier. Rancier, como conocedor de la arquitectura moderna dominicana y de la obra de los Caro en sí, ha sido imparcial en su visión, relativa a los códigos estéticos manejados por JACA, a su elevada capacidad cultural, a su temperamento franco y emprendedor; logra reinterpretar esa arquitectura blanca, de sutil paleta brutalista, tan frecuente en los USA y en la República Dominicana a caballo entre los 60 y 70, posiblemente introducida aquí por Tony y Danilo y manejada con absoluta propiedad; propone una visión abierta y múltiple de los
Abajo y al centro, casa no identificada de espíritu moderno, parte de la documentación fotográfica de Caro Álvarez que ha sido imposible de identificar.

Abajo a la derecha, otra obra de Caro Álvarez actualmente perdida o transformada hasta convertirla en irreconocible, también de marcada estética moderna. Obsérvense los materiales en los cerramientos de vidrio.

proyectos vacacionales y turísticos ejecutados por I+A; y aborda con gran tino la joven pero madura obra de Juan Cristóbal.
El texto de Rancier complementa la perspectiva histórica desde la crítica; y sitúa la obra de las tres generaciones de los Caro no sólo en la secuencia creada por ellos mismos, sino dentro del contexto general de la arquitectura dominicana en su tránsito desde los años 30 del pasado siglo hasta la actualidad.
La edición del Pro_File 07 se completa con cuatro documentos redactados especialmente para la misma: Una Cronología personal y familiar de los Caro en sus respectivos contextos históricos; el Catálogo de obras y proyectos, todos confirmados documentalmente. Muchas fechas han sido aproximadas y es muy probable que falten proyectos, tal ha sido la magnitud del trabajo de la firma a través del tiempo; una lista —seguramente incompleta— de colaboradores; y una bibliografía compilada entre las obras de los Caro y sobre los mismos.
Abajo, una de las obras cumbres de JACA: La Facultad de Medicina de la Universidad de Santo Domingo. En el respaldo de esta foto, JACA escribió con su puño y letra la siguiente frase: «Espíritu moderno y serenidad griega».

Este volumen ha sido programado para coincidir dentro de los actos que el Centro Cultural de España ha hecho como homenaje al Arq. José Antonio Caro Álvarez y su familia, en gratitud a su participación como gestor instrumental de la institución y de su sede en Santo Domingo. Se ha programado una muestra de objetos, piezas de valor y textos, curados por el Arq. Alex Martínez Suárez, que ocupan los salones del Centro en un recorrido rigurosamente estudiado, representativo del quehacer de esta familia de arquitectos y humanistas que tanto han dado al desarrollo nacional.
Como testimonio valioso, incluimos en la edición, las palabras de apertura al acto de inauguración de la muestra, pronunciadas por el Honorable Embajador de España en la República Dominicana, Sr. Jaime Lacadena.

figura
Jaime Lacadena Higuera
Embajador de España en la República Dominicana

Me cabe el gratísimo honor de participar en este merecido homenaje a la memoria del arquitecto José Antonio Caro Álvarez, figura extraordinaria de la Cultura en su sentido más universal, cuyo nombre quedará ligado para siempre a la promoción y difusión de todas aquellas expresiones de nuestra identidad que revelan el carácter integrador de lo hispano.
Su admirable espíritu renacentista le proporcionó una curiosidad global, capaz de abarcar todos los ámbitos de expresión del ser humano. Y en todos ellos dejó profunda huella. Convencido de que sólo un conocimiento cabal de nuestra historia, de nuestro pasado, nos permitirá afrontar con éxito la construcción del futuro, José Antonio Caro dedicó su vocación investigadora al estudio de las variadas raíces cuyo mestizaje integrador permitió alumbrar el fértil árbol de la dominicaneidad. Y, siempre atento al interés general, no sólo quiso compartir sus conocimientos a través de una fecunda labor docente sino que por intermedio de su generoso mecenazgo enriqueció el patrimonio cultural y artístico de la Nación con un valioso legado del que el Museo del Hombre Dominicano es sólo uno de sus más notables ejemplos.
Como Embajador de España en la República Dominicana he impulsado con entusiasmo este homenaje porque, ciertamente, tanto como la República Dominicana, España le debe al arquitecto Caro este sincero y merecido reconocimiento. De su amor por la Patria de sus mayores no sólo dan cuenta sus largas temporadas en su apartamento madrileño, sino su permanente dedicación a la promoción y difusión de la cultura hispana. Su destacadísima labor al frente del entonces Instituto Dominicano de Cultura Hispánica y su indiscutible liderazgo en todo cuanto permitiera resaltar lo mucho que compartimos dominicanos y españoles le valió en dos ocasiones el reconocimiento de mi Gobierno que le condecoró con nuestras más altas distinciones. Y ya sin cargos públicos, siguió dedicando sus mejores esfuerzos a la causa común de España y la República Dominicana hasta lograr que el Estado Dominicano cediera a mi país la magnífica sede del antiguo Colegio Gorjón para convertirlo en Centro Cultural de España donde hoy, cuarenta años después, rendimos homenaje a su memoria.
A lo largo de las páginas de este catálogo, tanto como en la importante exposición en la que se recogen los principales hitos de la vida y obra de
don José Antonio Caro, nos vamos a encontrar con la dimensión múltiple de su figura, con ese espíritu humanista que siempre volcó sus saberes, su entusiasmo y su pasión en las más variadas iniciativas. Creativo, innovador, prócer, erudito, comprometido con su país y con su gente, el arquitecto Caro, cabeza de una estirpe notable de arquitectos, diseñadores y hombres de empresa, nos guiará siempre con su ejemplo.

José del Castillo
José Antonio Caro Álvarez (1910-78) gustaba llamarse a sí mismo JACA como una forma moderna de abreviar su emblemático nombre, casi como si su persona fuera toda una organización, justamente él quien era hombre de activo perfil multifacético. Hijo de un laborioso e innovador panificador español, don Francisco Caro, familiarmente llamado Quico, empresario que revolucionó en el coloquial Santo Domingo de los inicios del siglo XX el antiguo arte de hacer con la harina amasada junto a otros ingredientes el apetecido manjar cotidiano que alimentaba con puntualidad la mesa dominicana. El popular pan de agua, el suave sobao, la Mallorca dulce que deleitaba a los niños, las crocantes galletas doradas de manteca y otras exquisiteces, eran sinónimo de la excelencia del Pan Quico. Distribuido por toda la ciudad en canastos metálicos que lo conservaban calentito, como recién salido del horno.
Justamente, una de las primeras realizaciones como arquitecto del joven profesional graduado en París fue la construcción de la planta de producción y despacho de la Panadería Quico edificada en la calle Padre Billini. Allí acudía yo desde niño, al igual que al local de la Santomé, a avituallarme de los manjares fabricados por el viejo panadero, una de las figuras simbólicas de la Ciudad Primada, rodeada su existencia de anécdotas y afectos.
Con Caro Álvarez me unió una raigal relación familiar. Concuñado de Jesús del Castillo —un tío que fuera como un segundo padre del mío Francisco, secuestrado al salir de la oficina de abogados de éste y desaparecido por esbirros de la dictadura de Trujillo—, al casar el arquitecto con Marina Ginebra, hermana de Charo, la esposa de Jesús. Obra diseñada y construida por JACA es la que fuera hermosa residencia de Jesús y Charo, levantada a dos plantas, sita en la Benigno del Castillo esquina 30 de Marzo, que todavía permanece y conserva parte de su garbo. En un lugar que alojó la residencia de Eugenio María de Hostos durante su estancia fecunda en tierra dominicana, cuando instituyó la enseñanza normalista, impartió cátedra de Derecho Constitucional, Economía Política, Sociología y Moral Social en el Instituto Profesional y en la Escuela Normal de Varones, en cuya casona de madera solía el Maestro representar pequeñas obras teatrales para disfrute de amigos y vecinos, entre ellos mis familiares que colaboraban con su obra pedagógica.
En una ocasión, el ser humano extraordinario —una verdadera madre coraje— que fuera Charo, nos reunió a todos sus sobrinos que estudiábamos en el
Foto y postal de la famosa Panadería Quico, propiedad de don Francisco Caro (padre de José Antonio Caro Álvarez) localizada en la calle Padre Billini en la Ciudad Colonial.


Colegio de La Salle: a los Caro Ginebra (Tony y Danilo), a los Ginebra Giudicelli (Freddy y José Alberto), José Manuel (Chepe) y Jaime Batlle Ginebra, y a mí. Y allí nos dijo que éramos primos y como tales debíamos tratarnos. Acto seguido, en presencia del querido Hermano Antonio (Raúl Antonio Peguero), lo designó nuestro preceptor, a quien debíamos guardar obediencia. Y así fue, cumpliéndose efectivamente su mandato. Décadas más tarde, afectada su salud por un cáncer, nos reunió en una jornada social a todos los miembros de la familia extendida para despedirse de cada uno y festejar por las bondades de la vida.
Otra proximidad temprana me unió a la familia Caro. Una casa construida por José Antonio en la aristocrática Av. Pasteur con Av. Bolívar, dotada de un bello patio andaluz, servía de morada a su hermana Gladys. Allí acudía jovenzuelo a llevar algunos encargos de la Farmacia Pasteur, propiedad de mis tíos farmacéuticos Pichardo Sardá y Arístides Álvarez Sánchez, ubicada frente al teatro Elite y que abastecía entonces a Gazcue. Las atenciones que recibía por este sencillo servicio en dicha residencia constituyen todavía un grato recuerdo.
Rol armonizador y autonomía universitaria
JACA fue una personalidad jovial, abierta siempre a los jóvenes, cariñoso y paternal. Se convertía con facilidad en interlocutor interesado que «hacía química» perfecta con los miembros de generaciones anteriores a la suya. Ese rasgo le permitió lidiar a la perfección en la Universidad con los enfebrecidos líderes estudiantiles que formaron la Federación de Estudiantes Dominicanos ( FED ) tras el ajusticiamiento de Trujillo, armonizando posiciones encontradas durante la tortuosa etapa de la transición de la dictadura a la liberalización democrática. Un proceso que debió esperar 8 meses en su primera fase, al arribarse a la formación del Consejo de Estado, ya presidido por el Lic. Rafael F. Bonnelly.
En esa etapa crítica que sucedió a la muerte de Trujillo, cuando se desbrozaba el camino hacia la libertad, bajo el gobierno encabezado por el Dr. Balaguer con la presencia del general Ramfis Trujillo en la jefatura militar, los estudiantes se lanzaron valientes a la plaza pública a reclamar la destrujillización de la institución y su democratización. Ante el repudio al rector Machado por parte de los dirigentes de la FED, correspondió al arquitecto Caro Álvarez asumir en 1961 la rectoría,
Francisco Caro García junto a sus dos hijos José Antonio y Francisco Caro Álvarez.
Francisco Caro García y Mercedes Álvarez junto a sus hijos José Antonio, Francisco y Gladys Caro Álvarez.



convirtiéndose en la autoridad máxima que alcanzó mediante ley la entonces anhelada autonomía, cogobierno y fuero universitario. Una cara reivindicación latinoamericana que se iniciara con el movimiento de reforma de la Universidad de Córdoba, Argentina, en 1918. Desde entonces la Universidad de Santo Domingo (USD) pasó a incorporar una A a su sigla. Y la autonomía y el fuero se convirtieron en conquista defendida por los universitarios.
Primer rector de la UNPHU
Esa misma capacidad de articular voluntades para lograr un propósito institucional se hizo manifiesta en otra etapa crítica de la vida nacional, en ocasión de la Ocupación Norteamericana que sucedió a la Guerra Civil de 1965. Tras la formación del Gobierno Provisional presidido por Héctor García Godoy y el inicio de la precaria normalización de los asuntos del país, un sector universitario que había hecho causa con el movimiento constitucionalista lanzó el denominado Movimiento Renovador en la UASD , provocándose un cisma con las autoridades de la institución, que fueron desconocidas.
Esta polarización de las fuerzas académicas por el control del gobierno universitario y las vías de facto empleadas en ello, dio origen a una fractura institucional y a la formación en 1966 de la Universidad Nacional Pedro Henríquez Ureña (UNPHU), de la cual el arquitecto Caro Álvarez sería su primer rector. Una obra escrita por él, ofrece los detalles de este proceso de construcción institucional que ha aportado valiosa contribución al desarrollo dominicano en el campo de la formación de recursos humanos altamente calificados.
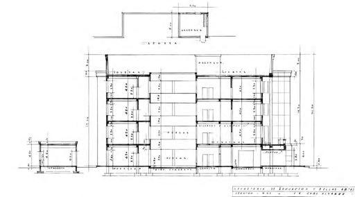
Con ello, JACA coronaba toda una carrera como educador consagrado, iniciada en 1939, cuando se incorporó como profesor de la Facultad de Ciencias Exactas de la Universidad de Santo Domingo, donde llegó a encabezar en 1958 el decanato de la Facultad de Ingeniería y Arquitectura, faceta que supo conciliar con su dinámica presencia en el diseño y la construcción de edificaciones institucionales, comerciales y residenciales, tan señeras a la historia urbana como las facultades de Medicina y de Ingeniería y Arquitectura de la Ciudad Universitaria, la Maternidad y el Hospital Infantil, el Palacio de la Policía Nacional, la Secretaría de Educación, Bellas Artes y Cultos, el Banco Central (antigua sede), la Biblioteca Nacional y el Museo del Hombre Dominicano. Amén de su colaboración con Guillermo González en el Cuartel de Bomberos de la Av. Mella, el Hipódromo Perla Antillana y el Casino
Gladys y José Antonio Caro Álvarez con dos amigos en el

de Güibia. La Casa Plavime (con Leo Pou Ricart), los edificios Ramos y El Palacio, en la calle El Conde, el Instituto del Libro de Escofet Hermanos en la calle Arzobispo Nouel, marcan su huella en las facilidades comerciales del viejo centro de Santo Domingo. La mansión de Francisco Martínez Alba (hoy sede de la Embajada de España) es apenas una muestra de su quehacer en el plano residencial.
Academia de Ciencias
Un destacado grupo de profesionales de diversas disciplinas motivados por el desarrollo de la investigación científica, el debate académico en ambiente pluralista y la difusión del conocimiento, se integró en diciembre de 1974 para formar la Academia de Ciencias de la República Dominicana, bajo la presidencia del Lic. Pedro Troncoso Sánchez y la vicepresidencia del Arq. José Antonio Caro Álvarez. Quienes nuclearon a personalidades de las ciencias naturales como Eugenio de Jesús Marcano, Idelissa Bonnelly de Calventi, Julio Cicero; de la medicina como Hugo Mendoza; de la economía como José Luis Alemán, entre otros.
En esa iniciativa, motorizada por el Dr. Mario Bonetti, me correspondió participar activamente —siendo a la sazón Director de Investigaciones Científicas de la UASD — como miembro de número, ocupando la vicepresidencia y la presidencia de la entidad, y figurando como directivo durante su primera década de existencia. La residencia del Arq. Caro en Los Pinos fue punto focal de reunión inicial, como lo fuera en otras iniciativas culturales que llevan su sello. La Academia es hoy una entidad plenamente consolidada y de prestigio, que cuenta con local propio en la calle Las Damas con El Conde y reúne a un sólido cuerpo de expertos en diferentes ramas del saber, con programa activo de publicaciones de libros y revistas especializadas.
Fondo para el Avance de las Ciencias Sociales
El Fondo para el Avance de las Ciencias Sociales fue otro de los empeños institucionales en que se involucró José Antonio Caro Álvarez. Los encuentros germinales para fraguar esta iniciativa tuvieron lugar en su hogar de Los Pinos —un espacio abierto siempre a las buenas obras— con la presencia de Tomás «Jimmy» Pastoriza y representantes de la Fundación Ford, así como de un grupo de sociólogos, economistas e historiadores. A resultas de este esfuerzo, se constituyó una entidad sin fines de lucro llamada a tener un impacto positivo
José Antonio Caro Álvarez junto a sus estudiantes de la Universidad de Santo Domingo (USD), c. 1942.

José Antonio Caro Álvarez en su oficina de Obras Públicas posiblemente en 1958-1959.

en el patrocinio de investigaciones en los campos demográfico, sociológico, de las ciencias políticas, realizándose verdaderos inventarios del estado de situación de esas disciplinas en el país.
Así como en la ejecución de un proyecto de Informe Anual de la Economía Dominicana, a cargo de los miembros de la Comisión de Economía de la Academia de Ciencias, en cuya matrícula figuraban José Luis Alemán, Gustavo Volmar, Carlos Despradel, Bernardo Vega, Francisco José Castillo, entre otros. Durante varios años —en razón de que el Banco Central no publicaba su Informe Anual sobre la Economía, que permanecía como una especie de top secret — este Informe, publicado escrupulosamente cada año, se convirtió en el referente obligado para evaluar el desempeño de nuestra economía y las perspectivas a futuro; a cargo de un panel independiente de académicos notables. El Fondo operó con un Consejo Académico integrado por el padre Alemán, Gustavo Volmar, José del Castillo Pichardo y un Director Ejecutivo, que fue Frank Moya Pons.
Plaza de la Cultura Juan Pablo Duarte y Museo del Hombre Dominicano Su iniciativa de mayor trascendencia en el plano cultural sería el complejo de edificaciones de la Plaza de la Cultura Juan Pablo Duarte y el Museo del Hombre Dominicano, ambos proyectos concebidos e impulsados por su dínamo innovador bajo la presidencia del Dr. Joaquín Balaguer. El primero integraría un complejo institucional que comprende la Biblioteca Nacional, el Teatro Nacional, la Galería (hoy Museo) de Arte Moderno, y los museos del Hombre Dominicano, de Historia Natural, y de Historia y Geografía. Del Museo del Hombre Dominicano, Caro sería en octubre de 1973 su fundador entusiasta y primer director. Allí me integré a solicitud suya, a título honorífico, como parte del cuerpo de investigadores que dirigió Marcio Veloz Maggiolo como cabeza del departamento correspondiente.
Desde el MHD , Caro Álvarez impulsaría trabajos de investigación arqueológica, antropológica, folklórica e histórica, reuniendo a un sólido equipo de profesionales integrado por los doctores Manuel Mañón Arredondo, Fernando Morbán Laucer, Ing. Elpidio Ortega, Lic. Manuel García Arévalo, Dr. Plinio Pina Peña, Lic. Renato Rímoli, Fernando Luna Calderón, entre otros. Y la colaboración del folklorista Tomás Morel y el etnólogo y arqueólogo José María Cruxent. Desarrollaría asimismo un programa de publicaciones de libros y del
Visita de arqueólogos y expertos latinoamericanos a La Isabela (1945).

Boletín del Museo del Hombre Dominicano, órgano difusor de la institución. Se esmeraría en presentar en sus salas de exhibición permanente una muestra museográfica didáctica de la historia de la isla de Santo Domingo, desde sus primeros poblamientos precolombinos —auxiliándose de cicloramas y una formidable colección de objetos de las culturas aborígenes—, pasando por el aporte hispánico, el papel de las etnias africanas, hasta la formación de la cultura criolla.
La visión humanista de Caro le llevó a fomentar los intercambios y colaboraciones con entidades extranjeras diversas, como el Smithsonian Institution, el Museo del Hombre de París, el Museo Nacional de Antropología de México, la OEA , la UNESCO y el Museo de la ciudad de La Habana. Haciendo del MHD una auténtica ventana de la dominicanidad que se proyectaba hacia el mundo exterior y una puerta de acceso abierta a especialistas extranjeros recibidos bajo el alero del Museo. Se ocupó igualmente el Director Fundador, en dotar al MHD de una Biblioteca muy completa, con valiosas colecciones de obras y revistas especializadas.
Pude apreciar desde dentro del MHD la trascendental obra del Arq. Caro, ya que, aparte de colaborar como investigador y asiduo a sus actividades, me tocó desempeñarme como su tercer Director, al reemplazar al Lic. Bernardo Vega en 1982, quien a su vez había sucedido a Caro en 1978, tras su fallecimiento.
Antes, durante la Era de Trujillo y después, Caro fue un activo en los trabajos que desarrollaba en el país el Instituto de Cultura Hispánica, bajo la dirección ejecutiva del poeta Franklin Mieses Burgos, que editaba la revista Hispaniola , cuya presidencia ocupó. Igualmente, fue miembro de la Logia Cuna de América, una respetable y benemérita entidad de la masonería dominicana que tuvo entre sus hermanos a don Enrique Apolinar Henríquez, José Andrés Aybar Castellanos, Rafael Alburquerque Zayas-Bazán, Gustavo Tavares Espaillat, Frank Logroño, Federico Henríquez Gratereaux. En su confortable Patio Español se celebraban memorables tertulias vespertinas, en el local de la calle José Reyes colindante con el templo de Nuestra Señora de Las Mercedes. Asimismo, fue miembro del Patronato del Teatro Nacional y de la Junta Pro Faro a Colón.
El presidente Joaquín Balaguer durante la inauguración del Museo del Hombre Dominicano.

Promotor del arte público
José Antonio Caro Álvarez durante su juramentación como rector de la USD en el Palacio Nacional (1961).

El arquitecto José Antonio Caro con el pintor muralista español José Vela Zanetti.
Vista de la escalera con el mural pintado por José Vela Zanetti en la antigua sede del Banco Central de la República Dominicana, diseñado por José Antonio Caro en 1956-1957.

Otras facetas destacan en la vida fructífera de JACA. Junto al Lic. Julio Ortega Frier, a la sazón rector de la Universidad de Santo Domingo, al Director de Bellas Artes, Dr. Rafael Díaz Niese, y al Lic. Manuel Arturo Peña Batlle, el Arq. Caro Álvarez es una de las personalidades dominicanas que mayor contribución realizó en la acogida e incorporación de los refugiados españoles de la Guerra Civil, que llegaron desde 1939 y en los inicios de la década del 40 del pasado siglo. Entre los cuales se hallaban eminentes profesores y académicos, periodistas, músicos, gente de teatro, escritores y artistas plásticos, cuya impronta benéfica en la sociedad dominicana pronto se haría patente. Particularmente al crearse instituciones académicas y culturales de gran impacto que han permanecido con el tiempo.
Uno de los núcleos más importante de esta oleada migratoria que alcanzó varios miles, lo fue el de los artistas plásticos, aprovechados para crear la Escuela Nacional de Bellas Artes ( ENBA ). Figuras como la del escultor Manolo Pascual, el pintor José Gausachs Armengol, el multifacético artista Fernández Granel, el muralista José Vela Zanetti, jugaron un papel en la dirección y en la planta docente de esa nueva entidad.
Caro se contó entre los entusiastas del trabajo de estos artistas. Su amor al arte no sólo lo llevó a formar una pinacoteca valiosa que hoy preservan con esmero sus hijos Tony y Danilo —quienes han continuado su contribución en el campo de la arquitectura como empresarios privados— sino que se esforzó como el que más en integrar el arte público en las obras que fueron puestas a su cargo por el Estado y en otras ejecutadas por colegas.
Tal es el caso señero del pintor muralista José Vela Zanetti, cuya monumental obra mural se halla plasmada en importantes instituciones, como el Banco Central, la Facultad de Ingeniería y Arquitectura de la UASD , la Catedral de San Cristóbal, el Banco de Reservas de la calle Isabel la Católica, el Palacio de Justicia de la Feria de la Paz (hoy Centro de los Héroes), la Universidad Apec ( UNAPEC ), que ocupa la residencia que fuera de doña Julia Molina, entre muchas otras sedes institucionales. La última presencia de Vela Zanetti en las paredes institucionales dominicanas, herencia de esta práctica altruista del Arq. Caro Álvarez, es la sede principal del Banco BHD

Por consiguiente, gracias a esta visión, la República Dominicana posee uno de los patrimonios culturales más valiosos del mundo salido de la paleta de un pintor refugiado de la Guerra Civil Española, cuya obra se encuentra representada en el edificio sede de las Naciones Unidas de Nueva York con el monumental mural que ilustra la lucha de la humanidad por la paz, realizado por Vela Zanetti, amparado en pasaporte dominicano, tras ganar un concurso convocado por la entidad mundial.
Columnista en la prensa
José Antonio Caro Álvarez fue un asiduo colaborador de la prensa dominicana y su obra, dispersa en diarios y revistas, está pendiente de un trabajo compilatorio. Su genio erudito y una clara vocación de servicio público lo hicieron incursionar en diferentes materias. De él dijo el director de El Caribe , Germán Ornes, que fue «un colaborador muy estimado» de ese diario. Al igual sucedió con el Listín Diario . Con motivo de su repentino fallecimiento en 1978, ambos matutinos editorializaron ponderando los rasgos de la personalidad multifacética de Caro y sus valiosas contribuciones a la vida dominicana en los ámbitos de la arquitectura, la educación, el servicio público y la cultura, amén de su aporte al desarrollo empresarial.
Para Ornes, «es mucho y muy valioso lo que José Antonio Caro Álvarez ha hecho por la cultura de nuestro país. Son innumerables las obras y las instituciones que deben su existencia a su impulso creador y a su consagración entusiasta y desinteresada». El autor resalta el estudio de las culturas aborígenes y el Museo del Hombre, la UNPHU , y «los vínculos con España a través del Instituto Dominicano de Cultura Hispánica». Acerca de su personalidad, Ornes observó: «De carácter abierto y jovial, tenía en todo momento una palabra amable y una frase de estímulo y de afecto para quienes se acercaban a él».
Rafael Herrera apuntó que Caro Álvarez «fue un arquitecto triunfador e innovador»; de «excelente gusto artístico», resaltando que «su colección de pinturas y esculturas es de las más notables del país». Asimismo, «fue escritor muy fino, tocado de humor y rico en anécdotas». El editorialista del Listín Diario observa que aunque «poseía ricos conocimientos acerca de la arqueología indígena, su visión global era la de un historiador de la cultura. Por eso, el Museo del Hombre, su gran amor, ha estado orientado a ser un muestrario de toda la evolución de la cultura dominicana». Junto a los nexos
José Antonio Caro Álvarez junto al presidente Joaquín Balaguer durante la inauguración de la Universidad Pedro Henríquez Ureña (UNPHU).

José Antonio Caro Álvarez, rector de la UNPHU, durante su discurso de inaguración.

internacionales, Herrera pondera otro aspecto saliente de su personalidad: «el estímulo y protección que dio a talentos jóvenes muy diversos, promoviendo sus estudios y abriéndoles caminos para sus carreras».
Los vespertinos El Nacional y La Noticia también editorializaron ante su sentido deceso. Para el primero, su muerte «viste de luto la cultura nacional». Plumas como las de José Ernesto García Aybar, Enrique de Marchena Dujarric, Manuel García Arévalo, entre otras, patentaron su pesar. Los doctores Rafael Kasse Acta y Fernando Morbán Laucer, ex rector y vicerrector de la UASD y entrañables amigos del arquitecto, calificaron a Caro «como uno de los hombres más preocupado por la cultura dominicana». Mientras el Dr. Pedro Troncoso Sánchez, presidente de la Academia de Ciencias y del Instituto Duartiano, afirmó que «Caro Álvarez se entregó siempre a las causas nobles». El poeta Armando Oscar Pacheco lo llamó «arqueólogo poeta, alfarero del sueño/ en tu tierra natal te conviertes en dueño/ de la cultura autóctona, romántica y taína».
A pocos días antes de su muerte, Caro fue objeto de un reconocimiento del Museo de La Habana en acto celebrado en el MHD con la presencia del ministro de Educación Superior de Cuba, Fernando Vecino Alegret y el Historiador de la Ciudad de La Habana, Dr. Eusebio Leal Spengler. A cuyo juicio, «el Museo del Hombre Dominicano es único en las Antillas y sus trabajos son de conocimiento en toda el área del Caribe, por su seriedad y pujanza».
Escritor afortunado
En 1973 Caro Álvarez compiló unas sabrosas narraciones tocadas de fino humor y llenas de nostalgia por la ciudad que lo vio crecer, sus personajes y sus costumbres. Con prólogo de Héctor Incháustegui Cabral, JACA Cuenta Cuentos reúne relatos salidos de la pluma de pulcro estilo de quien, no conforme con su extraordinaria labor en el campo del diseño arquitectónico y la construcción, incursionaba en la narración para saciar su sed de comunicar experiencias y conocimientos. «JACA contará los cuentos de las personas amables que vivieron y formaron ese mundo que ahora queremos (y lograremos) desguañangar. Cuentos de nuestra tierra». Apuntaba JACA que había que «volver a reír. Hay que reírse de los comunistas, imperialistas y economistas».
Visita oficial de los reyes de España a Santo Domingo (1976).

José Antonio Caro Álvarez siendo condecorado con la Orden de Isabel la Católica por Alfonso de Borbón, duque de Cádiz.

Ese mismo año, ve la luz en Madrid una obra de carácter histórico sobre Las Murallas de Santo Domingo . Estructuras defensivas que brindaron protección a los pobladores de la vieja urbe, no sólo durante su pasado colonial, sino hasta las primeras décadas del siglo XX , cuando fueron objeto de demolición progresiva ante la expansión de los límites de la ciudad. Otro texto de corte histórico de la autoría de Caro es Don Agustín Ignacio Emparán y Orbe y el Código Negro Carolino , editado por el Museo del Hombre Dominicano en su Serie Conferencias No. 4, en 1974. En el mismo se evidencia el interés puesto por el autor en divulgar el Código Negro Carolino o Código Negro Español, 1784, para regular el régimen de esclavitud, rescatado y anotado por el historiador Javier Malagón Barceló.
Nace una Universidad (Santo Domingo, 1975) recoge en prosa ágil y animada el proceso de formación de la Universidad Nacional Pedro Henríquez Ureña ( UNPHU ), de la cual Caro Álvarez fuera su primer rector. Ampliamente documentada, la obra llena plenamente su cometido de ilustrar los motivos y el carácter de esta importante institución académica.
Una trilogía Cemíes. Exposición (Museo del Hombre Dominicano, 1975), Cemíes y Trigonolitos (Museo del Hombre Dominicano, 1977) y La Cohoba (Museo del Hombre Dominicano, 1977), muestra la perceptiva antropológica de Caro Álvarez y su reconocido interés por resaltar aspectos cardinales de la cultura taína.
Caro no sólo hizo su propia obra. También impulsó la de otros. Es el caso del sociólogo de la Universidad de Cornell y luego profesor emérito de la Universidad de Pittsburgh, el Dr. José A. Moreno, quien dedica reconocimientos especiales al Arq. Caro por el apoyo que le brindara durante los trabajos preparatorios de su tesis doctoral sobre el conflicto bélico de 1965. Publicada bajo el título El Pueblo en Armas. Revolución en Santo Domingo, con cinco ediciones.
Otras facetas
Aparte de la firma Ingeniería Dominicana, el nombre de Caro Álvarez está asociado a importantes empresas industriales pioneras en sus respectivos ramos, como Talleres Cima —junto a James Doorly— y Pinturas Popular. Miembro además de la Junta Directiva del Banco Hipotecario Dominicano ( BHD ). En la vida pública, se desempeñó como Secretario de Estado de Obras
Imagen del sepelio del Arq. José Antonio Caro el 13 de febrero de 1978 (Periódico El Caribe).
El presidente Joaquín Balaguer expresando sus condolencias a José Antonio «Tony» Caro durante el sepelio de su padre (El Caribe, 18 febrero de 1978)

Copia mimeografiada de la Cátedra de Urbanismo escrita por JACA para la Universidad de Santo Domingo en 1942.

Públicas y Comunicaciones, Director General de la Reforma Agraria, Miembro de la Junta Monetaria, del Consejo Directivo del Banco Agrícola, de la Comisión Gestora de la Comisión Nacional de Desarrollo y Asesor de la Junta de Planificación. En todas esas funciones, supo José Antonio Caro Álvarez poner su entusiasmo, su capacidad de trabajo y competencia profesional, junto a un espíritu abierto, tolerante y armonizador, que perfilaron su huella entre los que tuvieron la dicha de conocerlo y tratarle.

Dos publicaciones de José A. Caro Álvarez: JACA cuenta cuentos (S.D.: Impresora Nacional, 1973) y Nace una universidad (S.D.: UNPHU, 1975). Debajo: Diploma del grado de Arquitecto a José A. Caro por la École Spéciale d’Architecture.



Manuel García Arévalo
Me resulta de gran satisfacción unirme a este merecido homenaje que se le tributa a José Antonio Caro Álvarez, a quien profesé gran admiración y agradecimiento. Fue un hombre polifacético y de acción que tuvo una trayectoria exitosa en campos tan diversos como la arquitectura, la ingeniería, el urbanismo, la industria, la cátedra universitaria, la política, la administración pública y el mecenazgo, sin olvidar su formidable contribución al arte y la cultura, en particular su papel protagónico en el desarrollo de la arqueología y la antropología dominicanas.
No en vano sus años de estudios universitarios en Europa coincidieron con la creación en París, por parte de Paul Rivet, del Museo del Hombre, ubicado en el Palacio de Chaillot, en la plaza del Trocadero. Fue una labor colosal la acometida entonces por Rivet con el objetivo de reunir todo lo que pudiera definir tanto la evolución biológica como la expresión social y cultural del ser humano. Emulando la obra antropológica y etnográfica del eminente científico francés, que concebía este Museo como «un factor esencial de educación popular», el arquitecto Caro Álvarez, con el oportuno patrocinio del presidente Joaquín Balaguer, afrontó la ingente tarea de fundar el Museo del Hombre Dominicano, construido en 1973, cerca de la Biblioteca Nacional. Fue el artífice de ambas edificaciones, de sobresaliente infraestructura arquitectónica, las cuales se encuentran ubicadas en la Plaza de la Cultura Juan Pablo Duarte en la ciudad de Santo Domingo, que según sus propias palabras: «sirve para unir y magnificar cuantos esfuerzos vienen haciéndose para dar forma y más sentido a la cultura dominicana e incorporarla a la Cultura Universal; para que se haga un recuento amplio y fructífero de lo que en el pasado logró el pueblo dominicano para echar las bases de su tradición cultural; para promover los estudios que permitan que se aprecie en todo su valor esa tradición, (…) y la expresión del espíritu del hombre dominicano en lo universal».
De modo que la sensibilidad humanista de José Antonio Caro y su pasión por el conocimiento del pasado motivan el surgimiento de esa institución museográfica llamada a producir un antes y un después en los estudios arqueológicos, sociológicos y folclóricos nacionales. Gracias a su liderazgo, dinamismo y capacidad de organización fue posible la institucionalización de nuestro acervo cultural prehistórico, a la cual contribuyó la promulgación de leyes destinadas a proteger y valorizar los bienes patrimoniales del período


precolombino y de la época del contacto indohispano, así como los procedentes de los escarpados manieles donde se refugiaban los esclavos cimarrones.
Para ello se formó una promoción de investigadores de un calificado nivel científico, encabezados por Marcio Veloz Maggiolo, quienes emprendieron múltiples campañas de excavaciones arqueológicas de forma sistemática y extensiva, que incluían dataciones de radiocarbono (C14) para lograr interpretaciones correctas del pasado prehistórico, complementadas con los aportes de diversas disciplinas afines, como la antropogenética, la paleobiología, la palinología y la espeleología, entre otras. Además, se impartieron cursos de capacitación para la formación de guías de museo y técnicos en trabajo de campo y labores de salvamento. Paralelamente, se establecieron estrechos vínculos de colaboración institucional con centros de investigación en el exterior como el Instituto Smithsonian, la Universidad de la Florida, el Centro de Investigaciones Arqueológicas y Etnológicas de la Universidad de Puerto Rico, el Centro de Investigaciones Arqueológicas de Haití y la Academia de Ciencias de Cuba.
Caro Álvarez se propuso dar a conocer no sólo la extraordinaria colección arqueológica que se conserva en el Museo del Hombre Dominicano, heredada del antiguo Museo Nacional, sino también la amplia gama de materiales y conocimientos obtenidos por medio de la interdisciplinaridad metodológica del quehacer arqueológico, canalizado y practicado con verdadero rigor científico. Como órgano de divulgación oficial se editó un boletín informativo, que se continúa publicando con un elevado nivel académico, para difundir los avances de las investigaciones emprendidas por el Museo, que, lejos de ser un mero depósito de tesoros artísticos, se convirtió en un lugar interactivo en el cual las creaciones humanas de épocas pasadas conquistan el derecho de aportar su mensaje. En fin, se realizó un programa de promoción y concientización a gran escala, al que don José dedicó mucha energía y buena parte de su tiempo, que incluía, además del Boletín , conferencias y cursos con la participación de connotados especialistas, así como la organización de exposiciones temporales en los principales centros culturales de Europa y Estados Unidos, en las que Caro Álvarez mostró sus extraordinarias dotes de organizador.
Dos publicaciones de José Antonio Caro Álvarez relativas al arte y la mitología taína: La Cohoba (Santo Domingo: Museo del Hombre Dominicano, 1977) y Cemíes y Trigonolitos (Santo Domingo: Museo del Hombre Dominicano, 1977).
Debajo: busto de José Antonio Caro Álvarez realizado por el escultor español Juan Cristóbal.


Ese fue el caso de la magnífica muestra arqueológica de objetos utilitarios y ceremoniales de la cultura taína, instalada con el auspicio del Instituto de Cultura Hispánica en Madrid, en 1977, con motivo de la inauguración del Centro Cultural de la Villa. El evento contó con la presencia de los reyes de España, don Juan Carlos I y doña Sofía. El catálogo de esta soberbia exposición, que recorrió varias ciudades españolas, todavía constituye un referente importante sobre la mitología y el arte de los taínos. Para esa ocasión, además de prologar el catálogo y elaborar un informe sobre los períodos precerámicos aborígenes, Caro Álvarez publicó dos libros: Cemíes y trigonolitos y La cohoba , donde se describen los atributos conferidos a los diversos cemíes o dioses taínos, al igual que otros aspectos de la cosmogonía y la mitología insulares vinculados a la celebración de sus ceremonias rituales mágico-religiosas, donde se establecía la comunicación extática con las divinidades y los espíritus de los antepasados bajo los efectos psicotrópicos producidos por la inhalación de los polvos alucinógenos de la cohoba.
Estas obras de don José marcaron el inicio de una serie de publicaciones con el propósito de valorar y situar en el lugar que por derecho propio le corresponde el legado de nuestros antepasados aborígenes, quienes nos precedieron en el poblamiento de esta isla Española o de Santo Domingo. Sobre mí recayó la responsabilidad de escribir el tercer volumen de la serie titulado Arte taíno de la República Dominicana , el cual, siguiendo las pautas trazadas por el propio Caro Ávarez, fue profusamente ilustrado con fotografías de piezas prehistóricas y grabados de la época, en el mismo formato gráfico de las dos anteriores publicaciones de su autoría. Lamentablemente, esa serie quedó interrumpida con el fallecimiento de don José, acaecido en 1978. También dejó inconcluso un amplio trabajo sobre la historia del arte y la cultura universal, donde hubieran quedado plasmados su erudición y su saber enciclopédico, fruto de los sólidos conocimientos adquiridos por medio de su afición a la lectura y de los múltiples viajes que realizó para visitar museos, galerías y sitios de interés histórico alrededor del mundo.
Tuve la oportunidad de colaborar con don José durante los últimos años de su vida y de contribuir a la consolidación de su gran obra: el Museo del Hombre Dominicano. Un esfuerzo institucional coherente, bien concebido y bien logrado, que se gestó gracias a la visión, la experiencia y el accionar del arquitecto Caro Álvarez, y alcanzó desde sus inicios un merecido reconocimiento


científico y cultural en toda el área del Caribe. Me siento honrado por haber podido acompañarle, junto a tantos otros de sus discípulos y colaboradores, en la cristalización de ese propósito de rescatar del olvido y afianzar las raíces ancestrales de nuestras ricas herencias aborígenes, hispánicas y africanas, las cuales sustentan los rasgos étnicos de carácter sincrético consustanciales a la identidad del pueblo dominicano.

Gustavo Luis Moré / José Enrique Delmonte / Lorena Tezanos
Gustavo Luis Moré / AAA: Me gustaría iniciar con ustedes, no con don José Antonio, porque la historia de ustedes no está escrita. Empezar hablando de cómo ustedes se involucran en la carrera, cómo van entrando al mundo de la arquitectura, cuáles son sus estudios aquí... Quisiera conversar sobre ustedes y el mundo de la arquitectura...
Danilo Caro: En el orden de edad papá fue quien nos incentivó a ambos. A Tony primero, y a mí después...
Tony Caro: No, pero conmigo no fue así. Yo me gradúo en el Colegio de La Salle, de bachiller en 1958. En el tercer año, un hermano de La Salle nos hacía unos tests de aptitud. Y en el perfil mío salió muy claro que yo tenía facilidades para todas las profesiones orientadas hacia las matemáticas y la física. El test se hacía en el tercer año, y entonces tu elegías un cuarto año especializado: en matemáticas, filosofía y letras, o medicina. Si ibas a ser médico tomabas ciencias naturales. Yo escogí matemáticas. Terminé el bachillerato aquí en La Salle, pero no pude asistir a la ceremonia porque me mandaron a Estados Unidos, y tenía que comenzar a principios de septiembre... No me fui directo a la universidad, sino que estuve un año en una escuela de preparación preuniversitaria para afianzar el inglés, en la misma ciudad de Ithaca, donde está la universidad de Cornell. Se llamaba Cascadilla School. Cuando me gradué de ahí ya yo tenía claro qué quería hacer. Cuando se lo dije a papá, él trató de disuadirme de que no cursara esa carrera. Me dijo: «Esa es una carrera que requiere de mucho sacrificio. El dinero no está ahí, está más en la construcción, y si tú tienes aptitud para la ingeniería, pues haz eso». Y yo después de pensarlo un tiempo le dije que no, que yo prefería seguir con mi idea, y él me la aceptó y me la respetó, y nunca en la vida me volvió a tocar más el tema. Y apliqué a cinco o seis universidades y todas me aceptaron pero la única que tenía un programa undergraduate era Cornell, que duraba cinco años. Por ejemplo, Harvard me aceptó, Princeton me aceptó, pero eran universidades donde tú ibas y hacías cuatro años de artes liberales y después tres años del programa de arquitectura en maestría. Esas no me interesaron y me quedé en Cornell porque ya conocía a la gente y tenían una escuela de arquitectura de gran reputación. Y ahí me gradué.
AAA: ¿Estuviste cinco años?
TC: No. Yo estuve siete años. Salí del país en 1958, entré en Cornell en el 1959 y salí en 1964, y después me quedé dos años en una carrera de Diseño Urbano, pero nunca hice la tesis final. Me casé, tuve un hijo y sentí que ya no
debía quedarme más tiempo.
AAA: ¿Venías frecuentemente?
TC: Sí. En las vacaciones veníamos.
DC: Te tocó la Revolución en una época...
TC: Sí. Una vez yo vine en el proceso de pre-tesis, vine a recoger información y ahí me cogió la revolución y estuve un mes aquí. Cuando pude regresar, al mes, tuve que quedarme el verano para recuperarme académicamente.
AAA: Vimos tu tesis... ¿del Museo del Hombre Dominicano?
TC: No. Mi tesis fue una biblioteca y luego usamos los planos, parecidos, para el Museo.
AAA: ¿Qué profesores destacados tuviste en ese momento?
TC: Bueno, la facultad tenía una cantidad de profesores excelentes. Durante mi segundo o tercer año, Cornell tuvo un cambio de profesorado. Ingresó lo que le llamaban los «Texas School». Vinieron dos o tres profesores muy conocidos de la Universidad de Texas, e hicieron una especie de revolución de la enseñanza. Uno de los profesores más destacados era Colin Rowe, que en realidad no era profesor de arquitectura sino de diseño urbano y de historia de la arquitectura. No llegó al principio, sino como en mi tercer o cuarto año, Danilo ya estaba entrando… Habían otros profesores muy buenos... La Escuela estaba muy orientada hacia Le Corbusier.
DC: Sí, mucho hormigón, concreto… En estructura nos daban madera y acero, pero más que nada los profesores tenían mucha orientación hacia la tendencia le-corbusiana. Estaba Martín Domínguez, que era español. El fue quien hizo el hipódromo de Madrid y el Edificio Fox en La Habana. Recuerdo también profesores como Mario Romañach, el cubano, muy bueno! También recuerdo en mi primer año un profesor alemán, Werner Seligmann, y había otro, Lee Hodge.
AAA: ¿Cuándo naciste Tony?
TC: El 17 de septiembre de 1940.
AAA: Te fuiste de dieciocho años... ¿Danilo, y tú, en qué fecha naces?
DC: Yo nací el 3 de septiembre de 1943. Yo tengo 70 años ya cumplidos.
AAA: ¿El día del ciclón San Zenón?
DC: Efectivamente, el día de San Zenón. Yo estudié en el Colegio de La Salle. En mi época pre-universitaria, papá era Ministro de Obras Públicas y para ese entonces, previendo que el final del régimen llegara, papá trata de sacarnos


del ambiente, a la familia entera… Tony se va a estudiar en Cascadilla, y yo lo llevo con papá. Me recuerdo ese día que lo dejamos solo, era la primera vez que Tony se separaba de la familia, era muy joven, recuerdo que papá se emocionó mucho y lo abrazaba... lo íbamos a dejar sólo en aquel pueblecito... Lo que yo no sabía es que después era a mí a quien iban a dejar (risas).
AAA: Estaba ensayando.
DC: Efectivamente. Papá decide sacar a mi mamá, a mi hermana y a mí. Yo tuve que dejar el Colegio La Salle en el tercer año de bachillerato. Y nos fuimos a Nueva York.
AAA: ¿En 1960?
DC: En 1960, sí. Porque en 1961 se graduó mi promoción. A Tony lo mandan para Cascadilla, y a mí me inscriben en una escuela de mecanografía en la ciudad de Nueva York —para sacar la visa de estudiante, la famosa I-20—, no para que yo aprendiera a escribir a máquina, sino para que aprendiera el idioma inglés, del cual nosotros no teníamos conocimiento alguno, porque aquí se impartía inglés y francés en el bachillerato, pero como una materia muy superficial, no como hoy en día, que los muchachos aprenden otro idioma. Y entonces me dejan allá, botado, como digo yo, un poco perdido... y consiguen a través de Johnny Pujadas —que ya trabajaba con papá— ingresarme a un colegio que se llamaba Riverdale Country School, donde Johnny se había graduado. Era un high school , pero cuando llego allá no me reconocen las notas de aquí y tengo que comenzar de cero, a estudiar como si fuera un primer año de bachillerato. Entonces eso me toma dos años, completar lo que normalmente a un estudiante americano le toma cuatro. Parece que yo era buen estudiante porque me gradúo como el mejor de mi clase, desempeñándome en un idioma que no era el mío, y me dan la medalla de sociología, por ser el mejor estudiante del área de ciencias sociales y de historia americana. Tengo eso guardado por ahí. Así que eso me ayuda mucho en mi aplicación a Cornell, cuando quiero seguir los pasos de mi hermano, y naturalmente de papá. También me sentía incentivado porque yo tenía una gran aptitud para el dibujo. Desde pequeño fui alumno de Vela Zanetti y Vela me llevaba siempre a Bellas Artes, donde estudié con Pipe Faxas que era de la generación de estudiantes en ese entonces, cuando Bellas Artes estaba allá en el Museo de las Casas Reales, y después lo trasladaron al edificio de hoy en día. Vela Zanetti era subdirector y decía que yo dibujaba un caballo como él no lo podía dibujar. Eso era historia de muchachos... tenía esa aptitud.
TC: Esos cuadernitos que eran rayados... Danilo se ponía a dibujar y dibujaba

una cantidad de guerreros y vaqueros y cosas... pero fantástico! Unos vaqueros tirando con revólver… pero muy bien!
AAA: ¿O sea que tú siempre pensaste que serías arquitecto?
DC: A mí más bien me incentivó el hecho de que mi padre era arquitecto y mi hermano iba a ser arquitecto. Eso me motivó mucho a seguir los pasos de ellos dos.
AAA: ¿En qué año entras a Cornell?
DC: Yo me gradúo en 1969, menos cinco, 1963-64.
TC: Tres años después que yo.
AAA: O sea, que ustedes coincidieron un par de años allá.
DC: Sí, como tres años.
AAA: ¿Vivían juntos?
DC: Sí, una parte. Durante el final de Tony y el principio mío, y después él se casa. ¿Rosalía estuvo un año allá contigo, no?
TC: Un año y medio. Yo me casé en 1966 y vengo en diciembre de 1967. Déjame yo agregarte algo de la universidad antes de que cambiemos de tema. La universidad era muy demandante, sobre todo en los cursos de diseño. Había mucha gente que entraba y se daba cuenta de que no tenía mucha aptitud o de que no les interesaba y cambiaban de profesión. De los 60 que entraron conmigo, mi clase fue excepcional, nos graduamos 32. Y creo que fue la clase más alta de graduados de la universidad en ese momento y por varios años después. En la de Danilo eran 60 y se graduaron 8 o 10. Había mucha deserción. Hay mucha gente que quiere ser arquitecto pero si tú no sabes lo que quieres y no tienes el talento o disciplina, es muy difícil llegar.
DC: Bueno, naturalmente en esa época no existía la computadora. Todo lo que teníamos que hacer era dibujar, amanecer…
TC: Así mismo. Y las clases de física y de matemáticas eran con las reglas de cálculo.
AAA: Exactamente. ¿Cuál fue tu tesis Danilo?
DC: Yo trabajé una tesis conjunta. En la época mía ya permitían juntarse dos o más personas. Nuestro proyecto fue un teatro para la ciudad de Ithaca, en el Cabo de Cayuga.
TC: Pero cuando tú estabas, ¿no fue cuando eliminaron las tesis?
DC: Eliminaron la presentación, y era un proyecto final de último semestre. Ya no hacen tesis, como en la época de Tony, que era algo más estudiado…







AAA: Entonces tu regresas casado y con José. ¿Qué estaba haciendo tu papá en ese entonces?
TC: Nada de arquitectura. Él había cerrado la oficina.
AAA: ¿Ya estaba aquí en la calle Los Pinos?
TC: Siempre estuvo aquí. Desde antes de nosotros irnos. Pero él ya no estaba trabajando como arquitecto. En ese entonces él estaba dedicado a las universidades y a la antropología. Más que nada a las universidades.
AAA: Ya era rector en la UNPHU
TC: Cuando matan a Trujillo, Balaguer lo nombra rector de la UASD , pero él no pasa mucho tiempo ahí. Parece que papá hizo mucho énfasis en que Balaguer le concediera la autonomía, el fuero, y lo consiguió, y Ramfis, cuando vino de regreso, hizo que lo quitaran, y entonces lo nombraron Director de la Reforma Agraria, cosa de la que él no sabía nada, pero era como para sacarlo de ahí... No sé a quién colocaron después de papá, creo que fue a Machado.
DC: A Castaños. Yo recuerdo haber ido a los mítines en el paraninfo de la universidad, papá rector, encabezando los discursos que hacían Fidelio Despradel, Defilló, y los líderes universitarios de aquel entonces. Todos los que querían una época de cambio. Papá siempre mantuvo muy buenas relaciones con esos grupos. Porque yo recuerdo a Asdrúbal Domínguez, que pertenecía a esos grupos revolucionarios, y cuando habían líos en la universidad, venían corriendo y se subían por aquí por este farallón y papá los escondía aquí en mi casa (…).
TC: Luego se crea la UNPHU , en 1966, cuando Balaguer era Presidente.
DC: Hay un pequeño libro, se llama Nace una Universidad que trata de cómo se crea la UNPHU con los profesores que sacan en la purga universitaria que hubo, entre ellos Mario Penzo, Moncito Báez, Leonte Bernard, Manolito Baquero...
AAA: Guillermo González...
TC: Hay una época vacía ahí para nosotros porque desde que yo me voy en 1959 hasta que regreso, mis visitas no eran frecuentes, por lo tanto, de esa parte de la vida de papá, yo no tengo un archivo muy bueno en la cabeza, porque lo veía esporádicamente. Pero para que tú veas, nosotros nunca estuvimos metidos en ninguna actividad política. Eso no tiene que ver con arquitectura.
AAA: No, pero es bueno que recreemos la atmósfera. ¿Y cómo te insertas a la práctica de la arquitectura? ¿Cuáles fueron tus primeros trabajos?
TC: Yo llego aquí, casado, con un hijo, sin nada. Papá no estaba haciendo nada de arquitectura. Jaime había regresado también casado; él hizo una maestría en Brasil de ingeniero, y estábamos aquí los dos. Yo estuve viviendo par de años en casa de papá, hasta que nos asentamos y construimos las cuatro casitas duplex que están ahí… Me fui insertando poco a poco. Mi primer trabajo fue una casa que le diseñamos a un amigo mío, Tomás Eduardo Sanlley, en la Tetelo Vargas, pero la tumbaron para hacer un edificio. Bueno, esa fue mi primera casa, pero realmente mi primer trabajo importante fue la Biblioteca, en 1970. Danilo estuvo aquí ese verano y también participó mucho, sobre todo en el diseño de la fachada. Yo llego en 1967. Pero en el interim ya yo había hecho algunas casas.
AAA: ¿Tú estabas con tu práctica aquí, en la oficina?
TC: Nosotros abrimos la oficina, Jaime y yo, y la arreglamos. Papá nos ayudó a abrirla, pero nunca se metió con nosotros dentro de la oficina, sino que él tenía su oficina aparte, aquí, pero el trabajaba sus cosas de educación y antropología. Un día nos sentó a Jaime y a mí, frente a él, en el escritorio
de su oficina, y nos dijo: «A ustedes, ya yo les di lo que quería darles que era una educación, y ya ustedes abrieron la oficina, yo quiero que ustedes trabajen en esto solos. Métanse en lo que ustedes se quieran meter, solos. Yo no les voy a decir cómo hacer las cosas, para eso fueron a estudiar. Lo único que yo quiero que ustedes sepan es que si ustedes meten la pata yo estoy aquí para ayudárselas a sacar». (risas) Y así fue. Nos dejó solos. Él sí se involucró bastante en el museo, eso le interesó. Después que se comenzó la construcción, él trabajó mucho en la definición de los interiores, y en la museografía... y terminó siendo su primer director. En la Biblioteca, nos dejó a nosotros. Sí iba a la obra, claro, y peleaba, pero nunca se impuso. Incluso, mucha gente cree que la biblioteca la diseñó él, pero no, la diseñamos nosotros, entre Danilo y yo básicamente. Aunque siempre el nombre de él aparece, porque en una oficina, todo el mundo aporta. No es el trabajo de uno solo. En todos los trabajos que ha habido aquí siempre hemos tenido mucha gente trabajando en el taller.
AAA: ¿Y cómo entra don Jaime al equipo?
Jaime Batlle: A los siete años cuando papá murió. Primero me mandaron a La Romana y a los tres o cuatro meses vine para acá. De ahí para adelante toda la vida. Hasta los 76 que acabo de cumplir. Desde los siete años estoy integrado.
AAA: Pero en términos profesionales ¿cuáles son tus primeros trabajos con ellos? ¿Desde antes de venir Tony y Danilo?
JB: Sí. Desde antes. Yo me gradúo de la UASD en 1962, y en 1963 me fui a Brasil un año, a Río de Janeiro, al Instituto de Pesquisas Rodoviarias, Comunicación y Carreteras, a hacer una especialidad en carreteras. Porque antes de irme a Brasil yo trabajé en la carretera de San Cristóbal a Baní, y me gustó el tema de las carreteras. Me gradué en 1964, y empecé a trabajar en Obras Públicas, en carreteras, con Virgilio Álvarez Saviñón (don Virgilio). Me mandaron para La Romana, y estuve trabajando hasta 1965, cuando termina la revolución. Tan pronto Tony llega, yo salgo de Obras Públicas. Cuando llegaron Tony y Danilo, que eran arquitectos, yo me salí de carreteras para trabajar en edificaciones.
AAA: ¿Pero don José Antonio no estaba trabajando en ese momento aquí?
DC: No. En esa época papá estaba en la Universidad, en la UNPHU .
GM: Tu primera obra con José Antonio, ¿cuál fue?
JB: La Biblioteca.
AAA: Y entonces cuando consiguen el proyecto de la Biblioteca trabajan todos juntos…
DC: Sí, en una empresa que se llama Ingeniería Arquitectura Dominicana, I+A.
AAA: ¿Y tú participaste en los cálculos de la biblioteca?
JB: No, en la construcción.
DC: Los cálculos los hizo Rey, Leonte revisó el vuelo.
AAA: ¿Y ustedes cómo trabajaban? ¿Estaban los tres en el mismo taller o tenía cada cual su oficina?
DC: Bueno, Jaime estaba al frente de la obra. Allá lo asistía Carlos Raúl Hernández.
JB: Yo prácticamente no venía a la oficina, yo iba de mi casa a la obra.
GM/AAA: Una vez tú nos dijiste a Juan y a mí, cuando estábamos trabajando en la remodelación de la Biblioteca, que en aquel entonces algunos miembros
Arriba y abajo dos imágenes del Arq. Caro Álvarez en su taller de arquitectura en la calle Los Pinos. Debajo junto a su equipo de trabajo (Tony Caro, Apolinar Fernández, José Luis Rodríguez, Julio César Francisco y Alejandro García) con la maqueta del Banco Central.

José Antonio Caro Álvarez junto a Orlando Haza, Bebesito Martínez y Wiche García Saleta durante el inicio de los trabajos de construcción del Estadio Olímpico Juan Pablo Duarte.

José Antonio Caro Álvarez junto a Pérez Bernal.


Residencia de Don Enrique De Marchena en Arroyo Hondo, c.


de la Embajada les habían hecho algunos comentarios mientras realizaban el proyecto…
TC: Bueno, como fue el primer edificio que se hizo ahí, había preocupación sobre la seguridad. Fueron al gobierno y se quejaron. Y entonces vinieron y se le presentó lo que se estaba haciendo y dijeron que no había ningún problema.
AAA: ¿Ahí estaba la casa de Trujillo?
TC: Sí. La casa de Trujillo estaba entre la Biblioteca y el Museo.
AAA: ¿Ustedes la demolieron?
TC: Sí. Bueno, se demolió para hacer la plazoleta (…) ¿Tú sabes que tenemos nosotros todavía? Yo tengo en mi casa de La Romana uno de los postes de luz. De esos que tenían los faroles grandes. Pero no había en la casa nada de valor. Ahí llegaron los militares y se metieron y se llevaron todo lo que tenía de valor. Cuando nosotros la recibimos estaba vacía.
DC: (...) Ahí era que quedaba la Secretaría de las Fuerzas Armadas. Cuando nosotros estábamos construyendo la Biblioteca llegaba Pérez y Pérez, que era el jefe de las Fuerzas Armadas, y tocaba el clarín. Cuando entraba el Secretario, tocaban una corneta y llamaban a atención, y todos los guardias se paraban, y entonces él entraba en su carro hasta su despacho. Eso era lo que tocaban, el clarín. Todavía estando nosotros ahí, estaba la secretaría atrás.
AAA: ¿Cómo nace la idea de crear la Plaza de la Cultura?
TC: Bueno, yo diría que no sé de donde sale directamente, pero de los principales contribuyentes a la idea fue papá con Balaguer. Papá le lleva a Balaguer la idea de crear la Plaza de la Cultura, porque era un terreno demasiado bueno para que se fuera a dañar. Pero nunca se hizo un plano de conjunto. Sino que se hace la Biblioteca y casi de una vez se comienza el Museo, entonces ya estaba ahí la Escuela…
DC: Y estaba la casa de don Fello, que Balaguer compró.
TC: Balaguer acababa de comprarle la casa a don Fello y dos casas más que habían, cuando hace el Teatro, que viene mucho después. Donde está el Teatro había una casa que era originalmente de don Baby Ricart y él se la vende a Angelita. Cuando se van los Trujillo, era de Angelita. Y entonces después de un tiempo se muda el Carol Morgan ahí.
DC: Luego, el Carol Morgan hace su nuevo local y tumban la casa, y Teofilito construye el Teatro Nacional. Después se construye el Museo de Arte Moderno que lo hizo Joselyn Miniño, y el de Historia Natural diseño de Héctor Tamburini.

TC: Ahí también estaba la casa de los Schad, de Guillermo González. Muy buena casa, excelente.
AAA: Esa casa era contemporánea de la de Paíno Pichardo.
TC: Sí. Pero era diferente porque don Guillermo trabajaba dos estilos. El trabajaba a veces un estilo muy moderno, avant-garde , como era el Hotel Jaragua y esa casa, pero sin embargo, por el otro lado hacía casas más tradicionales como la de los Vicini, los Troncoso, que eran muy buenas también, excelentes.
AAA: Ustedes cuando se gradúan y llegan aquí asumen ese estilo digamos de Cornell, ¿no? Esas casas blancas, esa arquitectura blanca...
DC: Sí, porque esa es la que conocemos.
TC: Nosotros nunca hicimos algo que no fuera lo que nosotros creíamos que debía ser. Complacíamos al cliente con lo que nosotros creíamos.
AAA: ¿Quiénes trabajaron con ustedes en la Biblioteca? ¿Qué jóvenes estaban aquí?
TC: En la Biblioteca no trabajó mucha gente, lo hicimos nosotros casi todo. Después sí, pasaron por aquí una cantidad de muchachos que han tenido carreras muy exitosas: Toby Valdéz, Nelson Toca, Julio César Francisco, Federico Fondeur, Josie Gómez, Marcelo Alburquerque, Simón López, Alexis Álvarez, y muchos otros que son muy buenos arquitectos y todos pasaron por aquí. Después vinieron una cantidad de muchachas: Maritza Ortiz, Saderi Messina, Argentina de Santos Taveras.
DC: Mira Cuquito, cuando hablamos de esta oficina ya no podemos hablar de cada uno independiente sino como equipo y así es hoy en día, aunque Juan es el que está sólo aquí (…) Pero desde la época de papá, él fue un individuo que trajo a sus estudiantes a hacer prácticas aquí en la oficina. Yo recuerdo que yo llegaba aquí de vacaciones, y recuerdo que de aquí salieron Orlando Haza, Rafelito Pellerano —como compañía de ingenieros—, Pujadas y Armenteros, Reid y Reyes. Nany Reyes creo que participó en el diseño de esas 5 casitas que están ahí adelante, con Billie Reid. También recuerdo a Harold Broberg, a Fidelio Despradel, a Ramón Pastrano, que eran personas que yo veía, que eran estudiantes. En ese entonces, la Facultad de Arquitectura y de Ingeniería de la UASD , no era como hoy en día, era un grupo más pequeño, más seleccionado. Con Manolito Baquero y Gai Vega hubo también una sociedad, aquella compañía de Decoraciones. Papá nunca

tuvo discrepancias con las personas de su misma profesión. Ruiz Castillo era su compadre, porque era el padrino de Tony, que diseñó el Aula Magna, él era ingeniero-arquitecto y estudiaron juntos en París. Antes se graduaban de ingenieros-arquitectos. Como Milton Ginebra, salían con ambos títulos.


DC: Pero usábamos los mismos instrumentos de entonces. Usábamos el papel amarillo, que era difícil conseguirlo aquí. A veces lo traíamos de afuera. Dibujábamos con una felpa negra, como aprendimos allá en Cornell. Se usaba mucho el zip-a-tone para las letras.
AAA: ¿Cómo fue la relación de JACA con otros arquitectos del período? Con Guillermo González por ejemplo, o con los Pou?
TC: Había muy buena relación. Yo creo que papá tuvo una buena relación con todo el mundo, a pesar de que tenía sus críticos, porque él conseguía muchos trabajos. Con Guillermo González hubo afecto, me imagino también que habría cierta competencia, como profesionales, pero hicieron trabajos juntos. Yo sé que en una época había mucha afinidad, cuando vivían en la misma calle. Pero no eran socios, él hacía su trabajo y papá el de él. Papá tenía buenas relaciones, y hacía las cosas bien, quedaba bien.
AAA: Y cuando llega Danilo en 1969-70, ¿también comienzan a hacer proyectos juntos?
TC: Danilo se integra a la oficina de una vez. La oficina trabajaba en base al criterio de que no había imposición, aquí se hacía todo juntos, nosotros dábamos las pautas, pero se le asignaba el proyecto a un equipo de uno o dos y con ellos se trabajaba. Si Danilo estaba encargado de un proyecto, él se encargaba pero nos consultaba a nosotros, y viceversa.
DC: Cuando yo llego ya Jaime y Tony han «chiripeado» en ese entonces par de obras. Pero la primera obra que papá consigue para la compañía, que no se llamaba Caralva como hoy en día, se llamaba Ingeniería y Arquitectura, I+A, es la Biblioteca. Papá consigue la Biblioteca con Balaguer en el poder, y yo recuerdo que nos dijo a Tony y a mí: «Yo ya le he conseguido una obra de importancia. Fájense a construirla. Ya yo hice lo que tenía que hacer. Me voy a dedicar a lo que yo quiero hacer». Que era su arqueología y su educación. Aunque él siempre nos daba la vuelta, porque cruzaba de la casa a la oficina, que era solamente la parte de allá abajo, era un salón grande, como el que tiene Juan hoy día, abajo. La oficina de él era la misma de aquí, donde está el salón de conferencias. Ahí tenía una oficina grande, con sus piezas de arqueología y sus sillones. Y ese salón de abajo, ahí estaban todas las mesas con sus reglas T y un pequeño escritorito.
TC: Pero cuando nosotros llegamos lo modernizamos. Ya habían reglas paralelas.
AAA: ¿Dibujaban a lápiz o a tinta?
DC: Aquí los dibujos finales eran a tinta, con chinógrafo.
TC: Bueno, hay una parte importante, cuando yo llego, para terminar la parte nuestra, yo me siento como responsable de que parte de lo que yo aprendí, porque en esa época no era todo el mundo que podía salir a una escuela, yo quería transmitir eso, y se me acercó gente de la UNPHU , porque papá todavía estaba con la UNPHU en esa época, para ver si yo colaboraba con la Escuela de arquitectura que estaba en mal estado, estaba comenzando, pero no tenía programa y no tenía profesorado, estaba tipo esqueleto. Entonces entró Pedro José Alfonso y fungió como organizador, trayendo nuevas ideas producto de su formación en los USA . Ahí nos reunimos un grupo: eramos él y yo, Cuquito Armenteros, Jochy Veras y Donald Barbel. Nor reuníamos de noche, cuando salíamos de nuestras oficinas y hacíamos unas tandas corridas, hasta las dos y tres de la mañana, y fuimos desarrollando en un rollo de papel amarillo, de esos de dibujo, todo el curriculum de la universidad, lo que nosotros creíamos que debía ser la Escuela de Arquitectura, y eso después lo presentamos y se aceptó y así comenzó la Escuela de Arquitectura. También entre nosotros, con Guillermo González y su grupo, porque habían dos grupos educativos, de profesores, el grupo de los jóvenes que éramos nosotros, y el grupo de los «viejos» que eran Guillermo, Manolito, Roberto Bergés y Eugenio, y esa era la otra generación que habían salido de aquí, que se integraron con nosotros, y funcionaba bien. Ellos tenían casi todas las clases de los más adultos, y nosotros éramos los profesores de los primeros dos o tres años.
AAA: ¿El edificio del Museo del Hombre comienza antes de terminar la Biblioteca?
JB: No. Se termina la Biblioteca y luego se comienza el Museo.
AAA: Aparte de la Biblioteca y el Museo del Hombre como obras públicas, ¿ustedes se dedican básicamente a obras privadas, viviendas, apartamentos?
TC: Lo que pasa es que nosotros teníamos la doble función de arquitectos y de constructores; y entonces había obras donde trabajábamos las dos cosas, o sólo una. Pero por ejemplo, aquí hicimos la Casa España, y el Estadio
(vista aérea del conjunto, vista del andamiaje durante la construcción y vista de la pistas, rampas y luminarias), diseñado por el Arq. Fred Goico y construido por Ingeniería y Arquitectura, I+A en 1974.


Olímpico en 1973. El diseño era básicamente de Fred Goico y nosotros hicimos la construcción.
DC : Sobre el Estadio Olímpico… Fred Goico llega al país y se hace muy amigo de nosotros. El Estadio Olímpico fue parte de un concurso público que hizo Bebecito Martínez para los juegos. Fred Goico y nosotros nos asociamos para el diseño de las obras. Me recuerdo que Fred tenía una pierna rota, de uno de sus accidentes automovilísticos, y nosotros nos mudamos al billar (estábamos construyendo la segunda planta de la oficina y el billar estaba en un edificio atrás, era una especie de club, un salón grande) y ahí llevamos las mesas de dibujo y ahí lo diseñamos. Fred venía y trabajaba con nosotros aquí. Fred era la cabeza del grupo, pero el trabajo fue del equipo de Ingeniería Arquitectura. La parte estructural la hizo Leo Pimentel y era todo con un sistema prefabricado. Ésta fue una de las razones por la cual nos otorgaron la construcción, pues Bebecito vió que nosotros presentamos gráficamente todo el proceso de construcción. Se dio cuenta no solamente de que el diseño era funcional, sino que también el tiempo de construcción era favorable.
TC: Yo recuerdo que Bebecito Martínez dijo: «Yo se lo voy a dar a los Caro porque yo sé que ellos no me van a fallar, me van a quedar bien».
JB: Eso se lo dijo Balaguer a Bebecito.
DC: Entonces el Velódromo lo ganó Haza y Pellerano, junto con una firma colombiana. El asunto es que Jaime es ingeniero jefe del proyecto y ahí se integran a nuestra compañía los ingenieros José Modesto y Valentín Montes de Oca, el ingeniero Ho Bello. La parte eléctrica la hizo Oteica, con los ingenieros Luis Arthur y Enrique Morel. La sanitaria la hicimos nosotros. Para la parte de las pistas internas, vinieron unos americanos, todo tenía que cumplir con los requisitos del Comité Olímpico Internacional, en cuanto al tratado de las pistas, las distancias, todo eso tenía especificaciones muy rígidas.
AAA: ¿En cuánto tiempo construyeron el estadio?
DC: 18 meses. ¡Menos! Yo recuerdo que las partes de las torres de luces tuvieron un problema de salida en Estados Unidos y no iban a llegar, y tuvimos que irlas a buscar. Esas torres eran una pieza tras la otra, unos conos que se van insertando, tres piezas de acero. Cuando se iban a embarcar hubo una huelga de barcos en el puerto de New Orleans y teníamos las torres allá. Tuvimos que intervenir vía la Embajada de Estados Unidos para que nos pudieran despachar el barco. El asunto es que llegaron aquí y Luis Arthur se ingenió un sistema para poner todas las luminarias en el piso, para orientarlas,


porque cada foco iba a iluminar un punto específico del campo...
TC: Él diseñó un aparato para orientar los rayos de las diferentes luminarias.
DC: Esa es una historia bonita, porque intervinieron tantas personas, y cada una aportó algo para solucionar los problemas. Y para subir esas torres fue con una grúa especial de Tage Holteinson, la única grúa que había en el país. Y ya se habían dejado las zapatas con los pernos donde iban a caer directamente las torres, para luego apretarlas con unos tornillos y unas tuercas y dejarlas ya listas, conectadas eléctricamente y orientadas. La última se izó con todos los niños del país, pues al organizador de los juegos se le ocurrió hacer un ensayo de la inauguración con las pancartas, y en el medio, la grúa subiendo con esto.
TC: Cada vez que subía, nosotros nos parábamos abajo para ver que no se fuera a caer…
AAA: ¿Cuál fue la experiencia de ustedes como contratistas del gobierno, son similares a las que hoy en día se tienen?
TC: No, ahí no había problema. Balaguer pagaba mensualmente y te liquidaba inmediatamente.
DC: Y eran tan eficientes que las listas de pago mensuales de todas las obras y contratistas, Balaguer las publicaba mensualmente en los periódicos. Después de Balaguer ningún otro gobierno ha hecho eso. Y ahí las ferreterías y toda la gente a quien tú le debías, sabía que el cheque iba a salir por tanto.
TC: La Biblioteca, por ejemplo, que fue la primera obra nuestra, el presupuesto creo que fue 2.2 millones de pesos dominicanos, incluyendo todo el mobiliario, los estantes, aire acondicionado, todo lo que es decoración interna.
DC: Ahí no había comisión ni sobreprecio…
TC: Y el museo fue un poco más, como 2.7 millones de pesos dominicanos, porque eso incluía toda la museografía y el mobiliario, todos los salones de oficinas, el aire acondicionado, todo eso estaba incluido.
DC: Sí, porque papá hizo toda la museografía interna, involucrando a dos especialistas mexicanos en los dioramas.
AAA: ¿Y ustedes heredaron el equipo de obreros de don José Antonio?
TC: No todos. Muy poca gente. ¿Tú sabes quién ayudó mucho en esa etapa, aunque no trabajó con nosotros en ese momento, sino mucho después?
Milton Ginebra. Y él nos recomendó mucha gente, porque Milton trabajó mucho con papá, desde cuando la Feria.
DC: Esa era la época en que los maestros eran dominicanos. El varillero por excelencia de nosotros se llamaba el Cotorro.
Banco Central de la República Dominicana, diseño de Rafael Calventi, construcción de Ingeniería y Arquitetura (I+A) en 1977-1978.


AAA: Don Jaime, ¿es verdad que hay que tener un temperamento especial para ser buen contratista?
JB: Ahora es peor. En aquella época era más fácil. ¡Ahora sí es difícil!
DC: Fíjate una cosa, en la época de nosotros nos veíamos muy limitados con la disponibilidad de materiales. No es la facilidad que tiene ya el arquitecto de hoy día. El vidrio era un elemento caro dentro de la construcción. Y ya tú ves que hoy todo es grandes pantallas de vidrio. El brise soleil , por ejemplo, era un elemento que no se usaba mucho aquí.
TC: Danilo lo usó mucho en la fachada de la Biblioteca.
DC: Era un elemento arquitectónico que no se usaba. Y la obra de concreto vaciado, que después sí lo usó Cucho Borrell en la obra del Huacal, pero no se usaba, había muchas limitaciones de materiales y de costos.
AAA: ¿Qué recuerdan de los años 70, aparte de las obras de la Plaza de la Cultura y el Estadio Olímpico?
TC: Hicimos muchos trabajos de construcción, todos los bancos de aquí lo hemos hecho nosotros. Casa Haché, Casa de España…
DC: Seguimos el consejo de papá acerca de que «de la arquitectura no se vive, sino de la construcción». (risas).
AAA: ¿Y siempre con Jaime como director de obra?
DC: Sí, y nosotros mismos. Yo me metía en la obra. El Hotel Hamaca me lo tiré yo de arriba abajo, y el Hotel Canoa. Esos fueron como ocho años de mi vida…
TC: Jaime era la constructora. Danilo después se metió más en las construcciones, pero yo no iba mucho. Mira, en los 70 hubo un cambio generacional grande en el país, surgieron una cantidad de muchachos jóvenes en la calle.
AAA: Los Borrell, Plácido, Toby…
TC: Juan, Cuquito… (risas), haciendo trabajos muy impresionantes, yo creo que eso ha sido algo positivo.
AAA: ¿Ustedes ganan el concurso de construcción del Banco Central?
DC: Bueno, no fue un concurso, fue una obra de grado a grado.
TC: Nosotros llegamos en segundo lugar en el concurso de diseño.
DC: Rafael Calventi y Plácido Piña ganan el concurso de diseño, y para compensarnos un poco, porque quedamos en segundo lugar, Diógenes Hernández divide la obra en dos, la torre nos la da a nosotros y la parte
Edificio Goico Castro, diseño de Fred Goico y construido por I+A en 1974.

del auditorio se la da a una compañía creada por un grupo de dos o tres ingenieros, y los parqueos. Le da las excavaciones a otra gente.
AAA: Distribuyeron el pastel. ¿Don Jaime fue quien dirigió la obra del Banco Central?
JB: Sí.
DC: Sí. En ese entonces el concreto de color era una innovación, nosotros nos asistimos mucho de una compañía extranjera que lo vendía, porque ese cemento se trajo de los Estados Unidos. Se hicieron varias muestras, se hizo un acoplo de toda la arena de un mismo lugar, de un mismo sitio, para que no hubieran variaciones, y trajimos un técnico de los Estados Unidos, quien hizo la fórmula para la resistencia del concreto.
TC: La arena la tenían que seleccionar para que los colores no cambiaran. Mira, ese cemento fue Moya que lo vació. Todo el edificio. Y eso no podía quedar mal. Cuando vino el consultor de Dallas, ellos seleccionaron la arena del sitio y acumularon toda la arena, Moya lo compró y lo acumuló. Se trajo el cemento crema. Y entonces se preparaba aquí según las especificaciones. Pero para que el color no variara en todo el edificio, los materiales tenían que ser los mismos y las proporciones medidas.
AAA: ¿Y tenía resistencia real?
DC: Yo recuerdo, Jaime, que antes de vaciar la primera vez, Federico Reid diseñó la mezcla con el americano, porque no le daba la resistencia.
JB: El americano aparentemente diseñó en pie cúbico y Federico lo corrigió.
TC: Pero ahí nunca hubo que desbaratar nada porque todo quedó muy bien.
AAA: ¿Y la idea del color fue de Calventi o de ustedes?
DC: La idea del color fue de Calventi. Era exigencia del arquitecto. El vaciado lo hizo Guin Moya, junto con nosotros.
AAA: ¿Hubo algún prefabricado ahí? ¿Los brise-soleil fueron prefabricados?
JB: Sí. Hubo muchos prefabricados. Nosotros nos asistimos mucho también, para los pretensados y los prefabricados, de un ingeniero puertorriqueño que se llamaba Humberto Otero. Era muy amigo de Tage Holteinson, eran socios, y él le hacía a Tage los pretensados, él le hizo los del puente de San Pedro de Macorís, y los de un puente que estaban haciendo en Jarabacoa. Allí murió Tage... él era asmático.
AAA: ¿Y los prefabricados se soldaban?
JB: Se dejaron unos anclajes arriba y abajo y se soldaban.
AAA: ¿En qué tiempo se hizo el Banco?
Condominio Las Arecas, en la Ave. 27 de Febrero (c. 1986). Caralva participó como contratista, posteriormente fue convertido en oficinas.


Residencia de Jaime Batlle en Los Pinos, Arroyo Hondo, Santo Domingo (1982).

DC: Lo comenzó Diógenes Fernández y lo inauguró Periche Vidal. Lo comenzó Balaguer y lo inauguró Antonio Guzmán en 1978.
TC: La Biblioteca fue en 1970 y el Museo en 1972. El Estadio y el Museo fueron más o menos al mismo tiempo.
DC: Entre una cosa y otra hicimos, con Fred Goico, el edificio comercial que está en la entrada del Hotel Embajador. El diseño fue junto a Fred Goico y la construcción fuimos nosotros. Ese fue otro concurso que hizo Bebecito. Después del Estadio Olímpico, también construimos el edificio de El Caribe, ahí en la Kennedy, (hoy Teleantillas). Ahí trabajó con nosotros José Modesto. Cuando comenzó la obra del Estadio Olímpico, José Modesto compró su primera grúa y él hizo la instalación de los prefabricados (que hizo Mario Penzo). José trabaja también con nosotros en el Embajador, pero el negocio de la grúa lo ocupa y él decide irse y termina Carlos Raúl.
TC: Con él hicimos también el proyecto de los peces, por Boca Chica, que está abandonado, Omny Dominicana, un criadero de peces, pero nunca funcionó.
AAA: ¿Y qué pasó durante los gobiernos del PRD (1978-1986)? ¿Que hicieron ustedes?
TC: ¡Nada! No, espera, hay una situación…. En el gobierno de don Antonio Guzmán, no hacemos nada. Cuando Jorge Blanco es senador, él se hizo muy amigo de nosotros y de papá. Y venía aquí, a la oficina de papá, con Carlos Pérez, los sábados, y gozábamos muchísimo. Carlos Pérez Ricart era el promotor de Salvador Jorge Blanco, íntimo amigo, perredeísta. Y cuando le presentó Jorge Blanco a papá, papá le dijo: «Prepárese que usted va a ser presidente de este país». Cuando él subió a la presidencia quiso hacer un hospital en San Pedro de Macorís. Y Pedritín Delgado Malagón, que era el Ministro de Obras Públicas, nos llama por teléfono un día: «Vengan que quiero hablar con ustedes». Y cuando llegamos allá, estábamos nosotros y Orlando Haza y Rafelito Pellerano esperando a Pedritín. No sabíamos qué era, no nos dijeron nada, ni siquiera sabíamos que era juntos. Yo fui con Jaime y cuando nos recibió Pedritín a los cuatro, nos dice: «Vamos a hacer un hospital regional en San Pedro y el presidente me dijo que los llamara a ustedes cuatro para que se hicieran cargo del proyecto». Y nos da el proyecto, la obra. Lo simpático es que nos dan el trabajo, y en el proceso se decide que Haza y Pellerano iba a ser la firma ejecutora y nosotros le íbamos a dar asistencia. Pasa el tiempo, comenzamos a construir el edificio, pasan los cuatro años de
Proyecto torres de El Embajador, diseño de Fred Goico y construcción de Tony y Danilo Caro (1974).

Salvador, y al final del tiempo, que la cosa se aprieta, no nos pagan y paran el edificio.
DC: A Orlando lo nombran Secretario Técnico de la Presidencia.
TC: Sí. Y ni Orlando podía cobrarlo. El asunto es que paramos la obra. Y se vino a terminar 20 años después. Nunca abandonamos la obra. Llegaba otro gobierno, decían que sí, que iban a trabajar, Balaguer daba dos o tres chelitos... Pero nunca nos quedamos con dinero endeudado, siempre nos pagaban hasta donde hacíamos. El asunto es que pasaron 20 años. Lo terminó Leonel Fernández.
Otra anécdota simpática… Guin Moya nos vaciaba todo el hormigón aquí, eso se comenzaba a las 7 de la mañana y se terminaba a las 3 de la mañana del día siguiente, porque era con cubos, carretilla, un guinche o dos, y ligadora. Y así era que se tiraba el concreto, imagínate eran obras grandes. Y a las siete en punto de la mañana estaba él aquí cobrando el vaciado del día anterior. Y con eso iba a comprar cemento para hacer el próximo trabajo.
DC: En ese entonces, y en la época de papá, los guinches eran una torre de madera con un güinchero y un cable y una plataforma que subía y bajaba y así era que se subían las carretillas y se llevaban, con una tabla. Ya Guin usaba unos guinches de metal. Pero en la biblioteca teníamos uno de madera.
AAA: Cuéntanos de Milton Ginebra. ¿Cómo se acopló al equipo? ¿Qué hacía él? ¿Qué hacías tú?
JB: Milton vino con nosotros después de salir de Obras Públicas (como director de Edificaciones), cuando Balaguer pierde las elecciones en 1978. Él fue el ejecutor del Hotel de Bayahibe.
DC: Cuando él empieza con nosotros participa mucho con Tony en las obras de la Romana, en el Estadio de la Romana…
TC: Ese diseño fue una modificación del estadio del gobierno en Puerto Plata. En La Romana hicimos también como 30 casas.
DC: Milton hizo el Hotel Macorix, que fue diseño de nosotros. Esa fue una obra del gobierno de Balaguer. Se lo dieron a él como contratista. En esa época se pagaba el 5% de indirectos a los contratistas.
AAA: ¿Y cómo ustedes van entrando al mundo empresarial? ¿Cómo asumen CIMA , el BHD …?
TC: Bueno, papá tenía un taller de puertas y ventanas de madera, atrás del edificio original de la San Rafael. Y ese taller papá lo aporta para crear una compañía, y crea entonces lo que se llama talleres CIMA , que fue una empresa


de fabricación de puertas y ventanas de aluminio, en los años 50. Se crea una compañía por acciones, donde estaba mi papá, y un grupo de gente amiga de él, como los Bonetti, José Manuel Bello Cámpora, Rafael Esteva, y Haza y Pellerano. Y de ahí sale la necesidad de crear otras empresas paralelas en el mismo sector de la construcción, y la primera que se crea es la de pintura: Pinturas Popular.
DC: Se llama popular porque eran acciones populares. En ese entonces eso estaba de moda.
TC: Sí, y se vendían a cinco pesos.
AAA: Claro, el Banco Popular lo hizo así también.
DC: El Banco Popular, NEDOCA
TC: Y luego, al final, la tercera compañía se crea con la finalidad de proveer de materia prima a talleres CIMA , que fue Aluminios Dominicanos. Ésta fue la primera constructora de aluminios, supliéndole a talleres CIMA y a otras empresas.
AAA: ¿Y todas esas empresas las funda don José Antonio junto a ustedes? ¿Y después, al llegar los años 70 ustedes asumen su dirección?
DC: No, no, cuando papá muere.
AAA: ¿En qué año murió don José Antonio?
TC: En 1978. Él nos lleva a las reuniones a Danilo y a mí…
DC: Pero no teníamos un rol activo. Después asume la presidencia, en lugar de papá, José Manuel Bello Cámpora, que era también miembro accionista de la empresa.
TC: Nosotros tampoco queríamos meternos a manejar una empresa en ese momento. Nos hemos tenido que meter después por obligaciones porque cuando papá muere nosotros ya teníamos que hacernos cargo de esas cosas. Igual pasó con el Banco, que tú preguntas. Se crea el Banco Hipotecario y papá es uno de los primeros directores y fundadores.
DC: Quien hace la Ley de la Banca Hipotecaria es mi suegro, don Milton Mecías, que viene del BID a trabajar aquí, se independiza y ve la necesidad de una banca hipotecaria. Y él hace la ley. Le ofrecieron la presidencia, pero como es abogado no le interesó, porque él quería seguir su práctica profesional, en la que le iba muy bien.
TC: Se sugiere a Samuel Conde como presidente, don Milton lo sugirió, era amigo de todo el mundo.
DC: El BHD crea un grupo de bancos. Estaban todos, el Citibank, el Nova

Scotia Bank, el Popular, el Central Romana, y un grupo de empresarios como Haché, Rafael Merá, los Perelló y papá.
TC: Cuando se crea el Banco Hipotecario habían 12 o 15 directores, eran muchos, y cada uno tenía un alterno, porque los directores no siempre iban a las reuniones. Papá era director, y me puso a mí como alterno, y yo lo sustituía cuando él no podía ir, que pasaba muy a menudo; y yo fui quedándome, y cuando él murió yo tomé su papel y Danilo se convirtió en mi alterno. Y yo llegué a ser Secretario del Consejo, con Samuel de Presidente, Anthony era vice-presidente, de los consejos, porque ya en esa época eran varios bancos. Y, al morir Samuel, no había una sucesión definida. Y ellos, para resolver el problema, como no había un candidato, decidieron elegir un presidente para cada uno de los diferentes bancos; porque en esa época estaba la banca especializada, con la banca hipotecaria, los bancos de desarrollo, una financiera, la inmobiliaria y el banco comercial. Luis Molina estaba manejando la parte hipotecaria, y a mí me eligieron como presidente del banco comercial, para que, con el gerente Alberto de los Santos, los ayudara a echar eso para adelante, porque estaba comenzando. Marino Ginebra fue para el área de Banca de Desarrollo, Daisy como presidenta del Banco Hipotecario y a Chiche Fondeur lo encargaron de la parte de la Inmobiliaria. Y entonces hubo 5 presidentes y 5 consejos, pero todos éramos miembros de todo. Y así se crea el grupo y así entro yo. Entonces me dieron a mí el trabajo más difícil, que era echar para adelante un banco nuevo, que era muy complicado en esa época.
AAA: Pero te fue bien.
TC: Sí. ¡Bueno!
DC: Yo siempre he dicho que Tony sacrificó su carrera de arquitecto por ser banquero.
AAA: Por eso yo le pregunto, porque yo sé…
TC: Por ser medio banquero porque yo nunca fui banquero.
DC: Porque la gente ya no lo mira como arquitecto. A él lo miran como empresario.
TC: Y nos hizo daño en la empresa de arquitectura, porque ya la gente no nos veía como diseñadores y constructores, diseñadores sí, pero no tanto como constructores. En ese entonces viene la remodelación de todo el sistema financiero, se juntan todos los bancos en uno solo. Luis Molina había traído esa idea después de haberse ido a hacer una maestría en Boston. Se crea una nueva Ley, con Luis Molina y el Banco nuestro como promotor principal,
Dos imágenes de Talleres CIMA, compañía fundada por José Antonio Caro Álvarez en 1958. En la primera imagen vista de la fachada principal, y en la segunda vista de los asistentes a la inauguración del local.

Rolando González Bunster, joven asistente argentino de Charles Bludhorn, hoy exitoso empresario internacional, con José Antonio Caro Álvarez. La foto debe haber sido hecha en 1978, en un encuentro de Bluhdorn con el Lic. Rafael Herrera.

y nos convertimos en el primer banco múltiple del país, consolidando todo lo que era financiero. Y me eligen a mí presidente, y ahí prácticamente acaba mi carrera profesional.
AAA: Y le dan paso a Juan.
TC: No, Juan no ha llegado todavía. Danilo y yo trabajábamos aquí.
DC: Yo me metí más a desarrollar proyectos propios. Por ejemplo, el hotel Hamaca fue un proyecto que nació del Banco, pero con nosotros como socios principales. Y, fue un trabajo de coger el Hotel Hamaca viejo, obra de Guillermo, e integrarlo dentro de una nueva estructura envolvente… recuperar esa torre.
TC: Tú deberías contarle a Cuquito como llega a hacerse eso.
DC: Bueno, el turismo empieza a tener auge… Y un día aparece José Carlos Isaías, que tenía una casa al lado del Club Náutico, y nos lleva a verla, fuimos tú, Luis Molina y yo, con el interés de hacer un hotel al lado del Náutico, pero la casa no tenía espacio… estaba todo tan arrabalizado… Y por casualidad esa tarde alguien dijo de ir a ver el Hotel Hamaca, una obra de Guillermo González que estaba en manos de «todo el mundo», ahí abandonado! Tony y yo echamos nuestra juventud en Boca Chica, teníamos una casa donde nos pasábamos los veranos. El asunto es que llegamos a ver el Hotel Hamaca, descuidado, desbaratado. Y comentamos entre Luis Molina, Tony y yo, que de allí saldría algo mejor de lo que nos estaba mostrando aquel señor. Y pensamos en comprar el hotel al gobierno dominicano. Entonces empezamos a hacer las gestiones necesarias. A Samuel y al consejo del Banco le gustó la idea y procedimos a hacer los trámites para adquirir el hotel. Fuimos donde Fello Suberví, que era ministro de turismo en ese entonces y Fello me dijo: «Bueno, yo tengo un compromiso con un canadiense de venderle el hotel, porque lo va a remodelar. Pero el hombre vino, dio una carta y se ha ido y no aparece. Si él no viene yo le paso el derecho a ustedes». Balaguer no era presidente, era Jorge Blanco. Con Jorge Blanco y Fello Suberví en turismo, con las leyes aquellas de incentivo al turismo, ya existía en el Banco Central, INFRATUR . Nosotros entregamos una carta a Fello Suberví de oferta por la compra del Hotel Hamaca y el parqueo de la parte de atrás, eran unos cinco mil y tantos metros cuadrados… ¿Por qué precio? No me acuerdo ahora mismo…
TC: Doscientos y pico mil dólares.
DC: Sí. Una cosa así. Pero ¿qué pasa? Balaguer gana. Nadie pensaba que

Balaguer iba a ganar!
AAA: Estamos hablando ya de 1986, cuando vuelve Balaguer, después de Jorge Blanco.
DC: El asunto es que gana Balaguer y nosotros tenemos el contrato en el aire. La cuestión es que vamos donde José Manuel Bello Cámpora, que es la persona de contacto con Balaguer, y él le plantea a Balaguer el hecho de que nosotros queremos comprar el Hotel Hamaca. Nos entrevistamos con Balaguer, y él nos dice: «¡Sí, cómo no! Cuando suba a la presidencia se lo vendo a ustedes, pero no firmen nada ahora. Yo me comprometo con ustedes». Se juramenta Balaguer y efectivamente, honra su palabra. Pero cuando nos vende el asunto nos dice: «Miren, yo se los voy a vender con una condición, que ustedes hagan ahí atrás un hotel de 5 estrellas y que se preserve el existente, porque yo recuerdo que ese hotel se mete dentro del mar». Nosotros vimos la posibilidad de hacer algo mayor porque el terreno que colindaba con el parqueo era un terreno de una familia que lo tenía en venta y nosotros se lo compramos. Además de que compramos el terreno de los D’Alessandro (ellos lo aportaron como accionistas) y la casa de Yamil Isaías que estaba al lado. Eso nos dio para la primera fase. Inclusive, el síndico autorizó a desviar la calle. Yo creo que el síndico era el mismo Fello después. Porque eso salió en la prensa y nos criticaron.
TC: Pero mira, una cosa interesante de la compra del Hamaca es que vamos donde el Presidente y le decimos: «Mire, Presidente, nosotros no podemos hacer una inversión en un hotel de cinco estrellas con una playa pública que los domingos se llena de guaguas. Nosotros tenemos que tener cierta protección, nosotros necesitamos que esa playa sea exclusiva del hotel». «Ah, no se preocupen» respondió. Y lo mandó a poner en el contrato de venta de la propiedad. Lo que habíamos hablado primero era hacer un lease , pero después Balaguer nos dijo: «No, cómprenlo. Yo se los vendo, mejor». Y entonces ese contrato, que pasó por el Congreso, tiene la condición de que la playa es exclusiva del hotel. El hotel no valía un chele hasta que nosotros aparecimos y queríamos comprarlo. Ahí se habían robaron hasta los pisos! Es increíble, yo no sé cómo! Lo que había era el cascarón.
DC: Por ahí hay fotos de lo que era el hotel. Y estaba a punto de colapsar porque todas las columnas estaban ya expuestas y el mar lo había socavado.
AAA: ¿Ese proyecto lo dirigiste tú? ¿Con Josie Gómez?
DC: Sí. Eso se hizo aquí todo. Ahí trabajó mucha gente. Josie, Maritza Ortiz,


Otis Liz Liriano, Luis Abreu. Todo el equipo. Teníamos de estructuralista a Sergio López, que era muy amigo de Luis Molina. Usamos elementos prefabricados y concreto vaciado. Nos tocó una época muy difícil, porque vino un colapso de la economía. Y nos dio duro en el costo, el dólar subió, el acero subió, todo subió a finales de los 80.
TC: Y el primer diseño era la «U», y faltaron habitaciones, y entonces se hizo la «U» y la «L».
DC: Y un ala a todo lo largo de la playa, para protegerla del público de la calle.
AAA: ¿Fue exitoso comercialmente?
DC: Comercialmente fue muy exitoso.
TC: De todos los hoteles que hizo el BHD ése fue el único hotel que produjo beneficios.
AAA: ¿Y por qué lo vendieron?
DC: Se vendió porque vino la crisis monetaria de los bancos y el Banco Central ordenó que todas las bancas tenían que vender todo lo que no fuera financiero.
TC: Y hubo una decisión también de los directores, los dueños del Banco.
DC: Y vendimos en buen momento, porque ya venía la competencia del este, los españoles estaban haciendo hoteles de mejor calidad y nosotros teníamos que hacer una reinversión. Habían 670 habitaciones, porque después se hizo una tercera etapa hacia atrás, al norte.
TC: Pero después ese mismo caso se repitió en Canoa, que fueron los dos hoteles en los que nosotros participamos. Nosotros también diseñamos el de Polibio en Puerto Plata.
AAA: ¿Ustedes fueron los autores de Altos de Chavón?
JB: Eso fue Tony.
TC: En los 70, yo entablé amistad con Bluhdorn, muy cercana, me cogió cariño, confianza y le quedamos bien siempre. Le hicimos muchos trabajos allá, a ellos. Cada vez que quería hacer algo me llamaba y me decía que quería hacer tal cosa, tráeme un proyecto, yo vengo en dos semanas. Y yo tenía que llevarle un anteproyecto en dos semanas… Él lo veía, le gustaba, «Sí, hazlo, ¡comienza!» y yo tenía que pelear con La Romana que quería presupuesto y contrato, pero se comenzaba siempre cuando él llegaba. A él se le ocurrió que quería dejar un legado para la República Dominicana que lo había recibido tan bien; y nadie se dio cuenta que era porque se estaba muriendo, tenía cáncer,
El inversionista norteamericano Mr. Charles Bluhdorn, frente a la Iglesia de San Estanislau en Altos de Chavón con su esposa Ivette, Mónica y Rolando González Bunster.

sólo él lo sabía. Él estaba enamorado de Casa de Campo y del proyecto, disfrutaba mucho venir los fines de semana a su casa. Se pasaba el fin de semana en traje de baño, con su carrito de golf y dos perros grandes que tenía, dos gran danés. Un día me llama y me dice: «Yo quiero dejar un legado para la República Dominicana». Y me dice que quiere hacer una ciudad de artistas en algún sitio de La Romana. Y ese mismo día, después de comida, me dice que vaya con él a ver un área de Casa de Campo. Vamos Rolando González Bunster, Bluhdorn, Álvaro Carta y yo. Vamos en el helicóptero porque por ahí no había ni carretera y nos dan una vuelta por el río y nos aterrizan frente a la iglesia. A Bluhdorn le encanta el sitio y me pide que le traiga un anteproyecto. En eso estaba Rosel allá, administrando el Central, Álvaro Carta era su jefe, administraba todo. Y Rosel era muy amigo de Benjamín Paiwonsky, y él y su mujer lo recomiendan a Bluhdorn, y él nos pide que le hagamos un proyecto entre los dos. Pero Paiwonsky dice que él prefiere hacer su proyecto, y yo el mío. Hacemos los dos el proyecto y el que le gusta a Bluhdorn es el mío, y nos da el proyecto a nosotros.
AAA: ¿Y que planteó? ¿Algo muy diferente al de ustedes?
TC: Eran parecidas las dos cosas, pero tal vez nosotros hicimos la perspectiva… Bluhdorn no entendía de planos ni de esas cosas. El vio la presentación que nosotros le llevamos y ése fue el que le gustó. Y dijo: «Éste, tú lo haces». Y comenzó así, nosotros hicimos toda la planificación.
AAA: ¿Y la idea de la estética, de las piedras y eso?
TC: No. Te voy a explicar eso. En eso llega aquí el italiano, Roberto Coppa, traído por Dino de Laurentis, a trabajarle en los interiores de su casa. Bluhdorn quería que el proyecto fuera similar a Saint-Paul-de-Vence, un pueblo en el sur de Francia, en la montaña, cerca de Cannes, una ciudad de artistas. Ése era el modelo que él tenía. Nosotros diseñamos un proyecto como creíamos que debía ser. Yo le decía a Bluhdorn: «Es que usted tiene que entender que éste es un país de origen español, y aquél es un pueblo de origen italianofrancés». A él le gusta nuestro proyecto, modesto, al estilo de la arquitectura colonial de aquí. Pero entonces se involucra en el proyecto Roberto Coppa, porque como él conocía el área de Saint-Paul-de-Vence y había trabajado en sets de películas, lo involucran, y él comienza a cambiar el criterio, a maquillar el proyecto. Yo siempre digo que yo hice el pudín, pero él le puso el suspiro. Estuvimos trabajando mucho tiempo juntos, hasta que él empieza a llenar todo de piedras y bolas y cadenas. Nosotros llegamos hasta cierto punto, nos pusieron un ingeniero del Central para que manejara la parte administrativa y
El despacho privado de José Antonio Caro Alvarez, conservado hoy como sala de reuniones en el primer nivel del edificio de Caralva en la calle Los Pinos en Santo Domingo. Abajo, una imagen del mismo edificio, originalmente concebido en un piso, y posteriormente ampliado.




a color de una residencia en Casa de Campo, La Romana, diseño de Tony y Danilo Caro en la década de los ochenta. A la derecha, vista del proyecto de Altos de Chavón, en Casa de Campo, La Romana, cuyo plan maestro fue diseñado por Tony y Danilo Caro en 1978-1980.

nosotros manejábamos la parte de construcción, se reportaba a esa persona. Yo cometí un error, porque no sabía que Bluhdorn se estaba muriendo, y lo que él quería era ver el proyecto terminado antes de morir, sin interferencias. Pero yo, sin saber eso, fui y le dije: «Yo comencé esto y te ayudo a terminarlo pero no puedo seguir». Cuando la cosa estaba difícil tuvimos una reunión, un sábado después de comida, en casa de Bluhdorn, estaba Rolando González Bunster, Roberto Coppa, Oscar de la Renta —a quien habían involucrado—, y un asesor americano, Larry Levenson. Pero fue imposible buscar una solución. Yo decidí irme. Terminamos, entregamos lo que estábamos haciendo y nos fuimos. Nosotros dejamos listo casi el 70% del proyecto. Toda la planificación y todos los edificios los diseñamos nosotros.
AAA: ¿Ustedes hicieron el anfiteatro también?
TC: No, eso lo hizo Nano Lebrón.
AAA: ¿Y la iglesia?
TC: Sí. La iglesia sí. Eso quedó casi listo. Lo único que él hizo fue unos apartamentos que dan frente al río, y los dormitorios de la Escuela. El anfiteatro fue Nano Lebrón. Nano le dijo un día a Fonso Paniagua: «Vamos a hacer un anfiteatro de éstos», y le enseñó una foto de un anfiteatro griego y a Bluhdorn le gustó la idea. Y le dijeron: «Comienza». Y eso lo hizo Nano. Nosotros remodelamos el estadio de La Romana, el Hotel, el centro comercial al lado del hotel (no el del frente), y rediseñamos toda la piscina. Las primeras villas que hicimos fueron siete, pero esas eran diseño del modelo de allá, porque ellos no querían cambiar el modelo. También hicimos toda la zona que se llama Caralva que son 12 villas, esas sí son diseño nuestro. También hicimos los apartamentos de Chavón: un grupo de apartamentos al sur del anfiteatro, blancos, como un pueblecito, y como 20 casas, algunas las han tumbado. La de Payo Ginebra era preciosa, pero la tumbaron.


Omar Rancier
Pocas veces encontramos en la historia que una familia, a través de las sucesivas generaciones, mantenga un aporte continuo a la sociedad. En la Florencia del Renacimiento los Medici se constituyeron en el referente para el mecenazgo de los grandes artistas italianos que cambiaron el curso de las artes, salvando las diferencias; la labor de los Caro se define en el mismo marco: una familia de creadores, banqueros, emprendedores y mecenas que han definido el perfil urbano, la dirección de las artes, los estudios arqueológicos y la definición del sistema de la academia dominicana.
Desarrollada bajo la tutela del arquitecto José Antonio Caro Álvarez, la familia Caro alberga tres generaciones que, cada una en su tiempo, en su lenguaje, y en su propio estilo han construido parte de la ciudad, de los distritos turísticos y de las plazas culturales y deportivas desde una de las primeras grandes oficinas de arquitectura del país, solo superada, según Eugenio Pérez Montás, por la oficina del arquitecto Henri Gazón Bona1.
Para el presente ensayo abordaremos los aportes de este grupo familiar de arquitectos desde las particularidades de las tres diferentes generaciones que parten del tronco primigenio de JACA
1. José Antonio Caro Álvarez: arquitecto, político, académico y mecenas
Quizás las mejores palabras para definir la arquitectura de Caro Álvarez sean las que escribiera de puño y letra al dorso de una bella foto de su edificio de la Facultad de Medicina de la Universidad de Santo Domingo y que utilizáramos en el afiche de la Segunda Bienal de Arquitectura de Santo Domingo de 1988 que el Grupo Nuevarquitectura dedicara al maestro: «espíritu moderno y serenidad griega»2
Formado en los talleres de la Escuela Especial de Arquitectura de París, e insuflado por el espíritu beaux arts predominante en las academias de principio de los años 30 del pasado siglo, Caro Álvarez, hijo de un acomodado panificador de la bucólica ciudad de Santo Domingo, termina sus estudios en 1934 y debió asombrarse al comparar lo diferente que era la libérrima aproximación moderna de los estrictos códigos clásicos que había aprendido en los talleres parisinos. Sin embargo, antes de amilanarse frente a la nueva arquitectura se apresura a ir incorporando los principios modernos a los instrumentos clásicos aprendidos.
Ya en 1936, en la calle El Conde, realiza el edificio Fermín Fernández (Casa Plavime), en colaboración con Leo Pou Ricart3, una exquisita pieza donde se comienza a ver esa combinación de aproximaciones de diseño «despojada ya de elementos historicistas y apoyada en una estética art déco en la ornamentación de la fachada principal»4. De unas proporciones muy armónicas, el edificio se lee en sus dos propuestas funcionales: la comercial, expresada en un primer piso de doble puntal, y la residencial, con sus balcones corridos; en contraposición: la articulación de la comunicación vertical que sirve de pivote de composición con sus balconcetes cilíndricos y el remate ornamental, todo resuelto en un lote muy estrecho y con un lenguaje que si bien ya despunta como moderno se decanta efectivamente hacia un art déco muy elegante. Este edificio se destaca como una de las piezas de arquitectura de mayor calidad en la principal calle de la Ciudad Colonial de Santo Domingo.
También con Leo Pou, Caro diseña en 1937 el Ayuntamiento de La Romana, y de esa forma inicia su participación en la formulación de los diseños de edificaciones públicas, contribuyendo a definir una de las características más sutiles que se utiliza durante la dictadura de Trujillo para la colonización del territorio que fue la del «doble código»5, que de alguna manera tiene que ver con el proceso de su formación y aprendizaje.
Entre los primeros arquitectos modernos del país, aquella primera generación heroica, formados en el extranjero, en escuelas dominadas por el pensamiento clásico y que fueron poco a poco explorando la modernidad, se dio un fenómeno que se ha llamado en algún momento «versatilidad estilística»6. Fueron arquitectos formados dentro de los preceptos clásicos y que se incorporaron al main stream de la modernidad, desarrollando una capacidad de diseño que les permitió manejar con igual destreza estilos diferentes. Arquitectos como Caro, Guillermo González, Humberto Ruiz Castillo y Henri Gazón Bona desarrollaron obras de gran consistencia en estilos diferentes.
Este doble código se constituyó, por un lado, en una de las cuatro estrategias de la dictadura para colonizar el territorio dominicano, transmitiendo mensajes a través del lenguaje arquitectónico. Cuando el régimen quería aparentar ser «democrático» y abierto, como en hoteles, hospitales y educación, se usó el lenguaje de la modernidad; sin embargo cuando el mensaje era la expresión de poder de la dictadura, como en los edificios gubernamentales, juzgados de paz y
Casino de Güibia, en la Av. George Washington, diseño conjunto de José A. Caro, B. A. Martínez, Guillermo y Alfredo



locales municipales, se utilizó a conciencia el código clasicista que fue refinado por Henri Gazón, quien definiera lo que el llamara la arquitectura de la era de Trujillo7
La arquitectura de Caro Álvarez fluctuó en ese doble código en el cual se movía muy a gusto, y así nos encontramos con proyectos tan disímiles como el fluido y ligero edificio de la Facultad de Medicina de la Universidad de Santo Domingo (1945), y los edificios oficiales que resolvió en una clave historicista. En la Facultad de Medicina, Caro Álvarez maneja otra interpretación del doble código que queda expresa en la escueta nota al dorso de la foto señalada anteriormente: «espíritu moderno y serenidad griega».
Esa frase es casi un manifiesto de la sensibilidad que manejara Caro Álvarez, esa manera de asumir lo clásico a través de lo que llama «serenidad griega» y recordemos que John Summerson había definido el clásico, en su texto El lenguaje de la arquitectura clásica, como todo aquello que hace referencia a los códigos griegos y romanos8. Caro asume ese clasicismo a partir de una modernidad, si se quiere, también clásica, en el sentido meta histórico de Eco9
En 1945, Caro Álvarez, había participado en el diseño del campus de la Universidad de Santo Domingo en colaboración con Guillermo Gonzalez, Leo y Marcial Pou Ricart, Humberto Ruiz Castillo y el Ing. Ramón Báez López-Penha, quien abandona el equipo por desacuerdos con el esquema adoptado —Moncito proponía un esquema con manzanas curvas—.
Para 1955 Caro Álvarez deja en la USD otra pieza moderna muy importante: la Facultad de Ingeniería y Arquitectura, una muestra de la articulación funcional moderna, que nos regala uno de los detalles más sutiles de esa articulación que es la manera como la ligera losa de la marquesina se desliza por debajo del cuerpo principal, sin tocarlo, muy a lo Bauhaus de Walter Gropius.
Esta edificación encarnó quizás el mejor modelo del muro cortina en su fachada este, fachada que ha sido intervenida, como otros edificios del campus de la universidad estatal, sin ninguna sensibilidad ni respeto hacia la obra. Para 1955, el año del jubileo 10 trujillista, Caro trabaja en la propuesta de la Feria de La Paz y Confraternidad del Mundo Libre, con Guillermo González, como «…encargado de la ejecución del Hospital Angelita para Niños, hoy Robert Reid, utilizado como hotel de apoyo durante la realización del evento» 11. Y tiene
Facultad de Ingeniería y Arquitectura de la USD, diseñada por Caro en 1955.

Maqueta para el Monumento a Trujillo para La Feria de la Paz, diseño de Caro y el escultor Juan Cristóbal (1954-55).

a su cargo, con la colaboración del escultor español Juan Cristóbal, el diseño de un enorme monumento clasicista a Trujillo que debía realizar al norte del conjunto de la Feria 12. Ya en 1944 había realizado con González, en el límite noroeste de la Ciudad Colonial, uno de los edificios modernos que maneja el emplazamiento urbano en la ciudad con destreza y fortaleza: el Cuartel de Bomberos. Resuelto a través de la articulación funcional y el nuevo lenguaje, este edificio se convierte en un referente urbano poderoso, justamente por su acertada ubicación, a pesar de estar en un contexto muy comprometido históricamente. El edifico destaca su emplazamiento con una bella torre que domina el eje norte sur de la calle Palo Hincado y le da prestancia al arranque de la Av. Mella, hoy tan deteriorada. Con González realiza también el Casino de Güibia y un anteproyecto de un hotel en una de las islas del Caribe.
En plena madurez profesional, como la llama Moré, José Antonio Caro Álvarez diseña un grupo de obras paradigmáticas como el lamentablemente demolido Palacio de Correos de 1956 que se posaba, austero y ligero a la vez, frente al Alcázar de Colón; el bello edificio mixto del Instituto del Libro en la calle Arzobispo Nouel de la Ciudad Colonial, donde desarrolla uno de los más interesantes zaguanes de la zona y corona con el sutil detalle de los bloques de vidrio ondulados que cierran los modernos huecos alargados cual cortinas vítreas; el Hospital de Maternidad Nuestra Señora de la Altagracia, de una modernidad académica, que comparte el límite noroeste de contexto residencial y burgués de Gazcue con el no tan agraciado Palacio de la Policía Nacional.
Para ese año realiza además, ya en un lenguaje «oficial» neoclásico-moderno, el antiguo edifico del Banco Central, cuyos interiores, realizados por una firma norteamericana 13, aún sorprenden, y donde se usaron los mejores materiales para expresar la fortaleza económica del régimen que llegaba a sus 25 años de dictadura y trataba de presentar la mejor cara y al mismo tiempo consolidar su estrategia de colonización política del espacio dominicano.
El Banco Central de la República Dominicana fue una institución creada para consolidar y organizar las fianzas del gobierno luego que se pagara la deuda con los Estados Unidos y su nueva edificación fue un edificio de fuerza, casi la proyección ortogonal del sitio manejado con un lenguaje clasicista con una expresión adusta y un cuidadoso ritmo marcado por ventanas y falsas ventanas. Sin embargo, su interior es una muestra de la modernidad de los años 50 con
Sede del antiguo
Museo del Hombre Dominicano, en la Plaza de la Cultura, diseño y construcción de José Antonio «Tony» y Danilo Caro Ginebra (1973).

algunos toques art déco ; fue realizado por Decoraciones S.A., junto a Gai Vega y Manolito Baquero. De nuevo presente aqui la versatilidad estilística de los arquitectos que, como Caro Álvarez, se alinean a la modernidad a pesar, o quizás por, su educación beaux arts 14
De la misma línea academicista «oficial» es el edificio de la Secretaria de Educación, igualmente una potente proyección ortogonal del sitio, esta vez flanqueada por dos pabellones pequeños que cierran el ciclo de esa interesante versatilidad de Caro Álvarez.
En la arquitectura de viviendas, JACA produce una serie también mixta de viviendas neo-hispánicas en Gazcue, con algunos edificios de apartamentos muy modernos en Ciudad Nueva y en la Ciudad Colonial.
Doble código o versatilidad, lo cierto es que aquel grupo de arquitectos de la primera generación moderna en la República Dominicana se sintieron a gusto respondiendo a las visiones tradicionales de sus clientes y construyendo fonemas de ese nuevo lenguaje que se le llamó moderno.
JACA fue un interlocutor académico respetado en la dictadura, y como mecenas, le dio cabida a una serie de artistas en sus obras, especialmente a ese grupo de artistas exiliados españoles, muchos de ellos de una ideología de izquierda radicalizada y anarquista, que a partir de 1939 Trujillo permite que ingresen al país en uno de sus intentos de «mejorar la raza». Dentro de ese grupo habría que destacar muy especialmente a Vela Zanetti, considerado uno de los grandes muralistas de todos los tiempos, quien trabajara muchos murales en las obras de Caro y de Gazón.
Como empresario y gestor cultural, Caro creó una serie de empresas comerciales e instituciones culturales que han quedado como un valioso legado a una sociedad en plena crisis de crecimiento adolescente —crisis que aparentemente no hemos superado—. Como académico marcó el rumbo de la academia dominicana, primero logrando el fuero, para la desde ese momento Universidad Autónoma de Santo Domingo ( UASD ), y luego siendo el primer rector de la Universidad Nacional Pedro Henríquez Ureña ( UNPHU ).
Biblioteca Nacional, en la Plaza de la Cultura, diseño y construcción de José Antonio «Tony» y Danilo Caro Ginebra (1970-1971).

Entre sus últimas propuestas se destaca la Plaza de la Cultura, quizás la última operación de resemantización urbana que patrocinara el gobierno del Dr. Balaguer, esta vez convirtiendo los predios donde se emplazó la casa de Trujillo en un impresionante complejo cultural, del cual la oficina de Caro diseñara el plan maestro —aunque sus hijos dicen que realmente no hubo un plan— y dos edificios paradigmáticos, el hermoso Museo del Hombre Dominicano, en el que se introduce certeramente el «promenade architectural» corbusiano con la cómoda rampa que se despliega en el amplio vestíbulo, y el más adusto edificio de la Biblioteca Nacional. Ambos edificios son autoría de Tony y Danilo Caro, en un momento donde Caro Álvarez se dedicaba «a sus cosas»15 como dicen en la entrevista que aparece en esta publicación sus hijos; estas «cosas» fueron la arqueología y la academia, específicamente la UNPHU
A su muerte en 1978, dedicado más a esas cosas otras que a la arquitectura, José Antonio Caro Álvarez dejó un legado importante a la sociedad dominicana y las bases para una de las oficinas más exitosas en el ámbito del diseño y la construcción, actividad esta última donde el Arquitecto entendía, y así aconsejaba a sus hijos, «estaba el dinero» 16 .
2. El legado del mecenas.
La oficina: Tony, Danilo y la generación emergente
Con la Plaza de la Cultura se puede decir que se inicia oficialmente la participación de los hijos de Caro Álvarez, formados en Estados Unidos en una época en que se debatía en armas el destino del país dominicano, y formados en una de las universidades norteamericanas que aún siendo un baluarte de la modernidad en América, se enrola en la evaluación crítica del moderno: Cornell. En esta universidad desarrolla su maravilloso discurso uno de los pensadores arquitectónicos más ilustre e influyente de la segunda mitad del siglo XX, Colín Rowe, irónico y erudito, autor de un libro clásico como Ciudad Collage y quien se refería a la enseñanza de la arquitectura moderna con una de las frases más contundentes: «la ineptitud guiando a la inexperiencia» 17 .
Aunque José Antonio «Tony» tuvo la experiencia con Rowe, el legado moderno de la arquitectura blanca de Cornell ha definido la arquitectura de los hermanos Caro Ginebra, quienes consolidaron la visión, iniciada por su padre en los años 50, de incorporar a su oficina nuevos talentos, conformando quizás la más
Edificio Casa Haché, en la Av. John F. Kennedy, diseño de Fred Goico, construcción de Tony y Danilo Caro Ginebra (1974).

Banco Central de la República Dominicana, localizado en la calle Pedro Henríquez Ureña esquina Leopoldo Navarro, diseño de Rafael Calventi y construcción de Caralva (1977-1978).

versátil oficina de arquitectura dominicana por donde han pasado arquitectos como Toby Valdez, Marcelo Alburquerque, Josie Gómez, y Simón López, solo para mencionar unos pocos.
La oficina de los Caro, en esta segunda etapa, se llamó inicialmente Ingeniería y Arquitectura, I+A, y se definió como una oficina de obras y proyectos. No sólo se limita al diseño y construcción de sus obras sino que se convierten también en contratistas, y construyen importantes proyectos durante los gobiernos del Dr. Balaguer entre ellos, el Estadio Olímpico, junto a Fred Goico, y el Banco Central, de Calventi y Piña. En la parte de la construcción, la oficina de los Caro se mantuvo fiel a su política de incorporación de talentos profesionales, entre ellos sus socios Jaime Batlle y Milton Ginebra, entre otros colaboradores.
Como constructores, esta oficina trabajó en proyectos privados como los del Edificio Haché, diseño de Gay Vega y Manuel «Tin» Polanco y el proyecto de Altos de Chavón, la ciudad de artistas que soñara Bluhdorn, diseño original de Tony Caro que posteriormente se convierte en un pastiche a lo Saint-Paul-de-Vence, en Francia, por el italiano Roberto Coppa. Otros proyectos a destacar en este ámbito son los proyectos del club privado Casa de España, sobre el malecón de Santo Domingo, y el proyecto del Hotel Macorix, en el casco urbano de San Pedro de Macorís, donde exploran el tema de las arcadas rebajadas en clave moderna, definiendo el carácter lúdico de las dos edificaciones.
La arquitectura doméstica de la firma refleja, a pesar del compromiso moderno de los Caro Ginebra, la misma versatilidad de la obra de JACA , los proyectos de una limpia arquitectura moderna se suceden a las propuestas más tradicionales de las villas turísticas y algunas residencias urbanas donde se repiten los techos inclinados que dan la tónica de una arquitectura que se tropicaliza y hace un guiño a lo tradicional, al incorporarle las tejas rojas al diseño, y donde la articulación funcional da una dinámica de ritmos, texturas y paredes blancas. Tony y Danilo Caro dan vida a muchos proyectos importantes de Casa de Campo incluyendo el Centro de Convenciones del complejo, donde se armoniza una ligera estructura de madera que marca la entrada, con esa «arquitectura blanca» de Cornell.
Sin embargo los hermanos Caro finalmente se dedican a los negocios que había dejado su padre y en la entrevista que aparece en este mismo texto, se
Casa de España, en la Av. George Washington, diseñada y construida por Tony y Danilo Caro en 1973.

lamentan de que los negocios lo apartan de la arquitectura, aunque no tanto, afortunadamente, decimos nosotros, y han mantenido uno de los legados más preciados de su padre: esa cultura de la colaboración, esa apertura conceptual que ha recogido Juan Cristóbal, quien viene a representar la tercera generación de esta familia de artistas, arquitectos, mecenas y emprendedores.
Hay una faceta poco conocida de Tony en cuanto a sus aportes a la academia, y es su contribución en los inicios de la Escuela de Arquitectura de la UNPHU . En esos años iniciales de 1966, Tony se acerca la Escuela para contribuir tratando de transmitir lo que había aprendido en Cornell y conjuntamente con Pedro Alfonso, que venía de Portland y que fue, en palabras de Tony, «como un organizador», Cuquito Armenteros, Jochy Veras y Donald Barbel desarrollaron, en largas jornadas corridas al final del día de trabajo, el curriculum de la Escuela.
3. La nueva generación
La oficina de los Caro pasa a llamarse en esta etapa Caralva y quien se pone al frente de la misma es Juan Cristóbal Caro, formado en los Estados Unidos, quien ha recogido la llama del diseño que iniciara hace casi ochenta años ese Hombre del Renacimiento que fuera su abuelo, José Antonio Caro Álvarez: músico, arquitecto, mecenas, académico, entre muchas otras facetas.
El joven Caro se destaca en sus diseños de villas, donde trabaja lo tropical a base de la articulación volumétrica funcional y la expresión de los techos cubiertos de cana, en ese estilo «neo-indio» como lo llamara una vez el cubano Fernando Salinas, que se ha convertido en una especie de marca turística que tan certeramente han manejado Oscar y Antonio Segundo Imbert.
Siguiendo la tradición de trabajo en colaboración —recordemos que Tony y Danilo reivindican que los trabajos de su oficina fueron trabajos de equipo y que Caro Álvarez siempre tuvo su oficina abierta a los jóvenes talentos tanto de la arquitectura como de la ingeniería—, Juan Cristóbal ha producido su obra más relevante en asociación con otro de los arquitectos que, como José Antonio Caro Álvarez, puede ser calificado de Renacentista por la variedad de intereses en los que se ha destacado: Gustavo Luis Moré Guaschino (Cuquito).


Su asociación con Cuquito ha dado una de las líneas de edificios corporativos más atractiva y dinámica de la ciudad. La línea Bankagil del BHD, actualmente BHD León, son una serie de sucursales bancarias donde se explora una espacialidad quebrada que responde a la manera como fluye el movimiento.
Fruto de esa colaboración es también el edificio de la Suprema Corte de Justicia en el Centro de los Héroes, ganado en concurso en 1997, sustituye el edificio de Agricultura diseño de Guillermo González, que se perdiera en un incendio. El edificio de Caro y Moré maneja, en su volumen hacia la avenida, la escala y proporción del desaparecido edificio de González, una manera de respetar la escala de la propuesta de la Feria de la Paz de 1956 y al mismo tiempo un homenaje al arquitecto. De fondo a esta primera lectura, que respeta hasta el uso de los brise-soleils horizontales que caracterizan todas las fachadas este de la Feria, se desarrolla el cuerpo mayor de la edificación, coronado con una aerodinámica pieza en cobre que techa el hermoso patio interior que articula los dos volúmenes. En la ampliación de la Biblioteca Nacional, diseño original de Tony y Danilo Caro, se proponen dos cuerpos que, respetando el diseño original y su simetría, dan carácter y modernizan la imagen de la biblioteca.
En sus propuestas individuales, como la del concurso para el Centro Comunitario, de Juancho, en Pedernales, aparece una arquitectura más telúrica, que saca partido a las texturas, como también se evidencia en el edifico para El Catador, una pieza serena, apaisada y articulada en tres cuerpos que se unifican con la textura y el ritmo de la estructura y los huecos; al interior se manifiesta lo telúrico atemperado por la calidez de la madera.
El uso de la textura aparece también en el pequeño conjunto residencial Palermo Residencies, donde la abstracción moderna-blanca se hace casi coloquial con los volúmenes recubiertos de ladrillo.
Los Aportes de una familia a la Arquitectura Dominicana Sin dudas, la familia Caro ha aportado desde 1936 valores concretos a la sociedad y el país dominicano. Desde el retorno de Jose Antonio Caro Álvarez de su viaje de estudios en Francia y sus inicios asociado a Leo Pou Ricart, el apellido Caro, reconocido anteriormente por la presencia comercial de su padre el panificador español que le puso el nombre al pan del desayuno capitaleño — no olvidemos que en el Cibao se desayuna con víveres— se
Detalle de la ampliación de la Biblioteca Nacional Pedro Henríquez Ureña, diseño y construcción de Juan Caro y Gustavo L. Moré (2004-2012).

convirtió en un activo de la cultura, la arquitectura, el arte, la academia y los negocios. Su influencia en todos esos campos, plantada por JACA , ha sido mantenida y multiplicada por sus descendientes.
Ver en conjunto la producción de esta familia es repasar la historia moderna de las artes y los negocios del país. En el área que nos ocupa, la arquitectura, sus aportes han dado forma a la ciudad de Santo Domingo y han aportado edificaciones emblemáticas a muchas ciudades del interior. El grupo de edificios comerciales y mixtos de la calle El Conde, ayudaron a conformar el perfil cosmopolita de la principal arteria de la Ciudad Colonial. El Edificio Plavime, con su esbelta elegancia Deco, el Edifico El Palacio, que desarrolla ese lenguaje universal del edifico moderno de esquina, con sus vitrinas recesadas desaparecidas, el Edificio Ramos, que rescata el chaflán como tipología comercial, son edificaciones, conjuntamente con el Copello de González, el edificio Saviñón de los hermanos Luis Amable y Ana Iglesias Molina y el edificio González Ramos, con su esquina ondulada y sus interesantes ventanas, dejan la primera impronta de la modernidad de El Conde y del país.
El aporte a la arquitectura institucional ha sido prolífero y continuado, desde la gobernación de La Romana de 1937, en colaboración con Leo Pou, el desaparecido Palacio de Correos, hasta la ampliación de la Biblioteca Nacional, tenemos los Bomberos de Santo Domingo, en colaboración con Guillermo González, el antiguo Banco Central, la Secretaria de Educación, la Plaza de la Cultura y los Edificios de la Biblioteca Nacional y el Museo del Hombre, todas piezas importantes en la historia de la arquitectura dominicana y que forman la mejor parte de lo mejor de la edilicia oficial dominicana.
En la parte académica los aportes han sido por partida doble, la Universidad de Santo Domingo, actual Autónoma, es el mejor ejemplo. Ahí Caro Álvarez diseña el plan maestro y dos de los edificios claves: el bello y horizontal edificio de Medicina, y la Facultad de Ingeniería y Arquitectura con su bella, y hoy muy intervenida, fachada vidriada, violada por la visión determinista climática. Pero además, Caro Álvarez consigue el tan preciado fuero de la primera universidad de América y además es capaz, cuando la intolerancia lo hace dejar la academia oficial, fundar en 1966 en el ámbito privado otra universidad de excelencia: la Universidad Nacional Pedro Henríquez Ureña, cuya Escuela de Arquitectura y Urbanismo, es la segunda fundada en el país.

En la hotelería aportan el Hotel Paz, el Hotel Macorix, la modernización del Hotel Hamaca, la idea inicial de Altos de Chavón y el Hotel Canoa, sin mencionar las numerosas villas residenciales en los principales complejos turísticos del país. A todo esto se le debe incluir una serie de casas y apartamentos que definieron, en su momento, tendencias en el hábitat de la burguesía de la ciudad de Santo Domingo.
Los aportes posteriores de Tony, Danilo, y en la actualidad de Juan Cristóbal, continuaron el camino trazado por su predecesor en cuanto a la calidad de la arquitectura, y en cuanto a los aportes a las artes y las ciencias y en cuanto al desarrollo de negocios exitosos que han cubierto diferentes demandas de la sociedad.
Los aportes a la academia dominicana, a la consolidación de la educación de calidad, y a las estructuras científicas y de investigación, son de los aportes más valorados; así como la protección que diera Caro Álvarez a un grupo de artistas exilados republicanos españoles que recalan a Ciudad Trujillo entre 1939 y 1940 entre los que se destacan Vela Zanetti, Gausach, Manolo Pascual, entre otros muchos, que crearon las bases para las escuelas de Bellas Artes y la Orquesta Sinfónica Nacional 18. Hace varias ediciones, a través de la Fundación José Antonio Caro Álvarez, se premian los 3 mejores proyectos de estudiantes de arquitectura en la Bienal de Arquitectura de Santo Domingo, única institución de de manera militante ha apoyado el crecimiento y consolidación de las BASD.
En términos de cultura , urbanismo, artes, arqueología y negocios, esta familia ha aportado un legado perdurable y valioso y ha escrito historia de calidad en todos esos campos.
El Catador, en la calle José Brea Peña, diseño de Juan Caro y Gustavo Luis Moré (2007).

Notas:
1 Eugenio Pérez Montás, La Ciudad del Ozama. 500 años de historia urbana (Santo Domingo: Centro de Altos Estudios Humanísticos y del Idioma Española, 1998).
2 Omar Rancier, «Afiche de la Segunda Bienal de Arquitectura de Santo Domingo», Grupo Nuevarquitectura 1988 (foto suministrada por Tony Caro).
3 Enrique Penson, Arquitectura Dominicana 1906-1956 (Santo Domingo: Laboratorio de Ingenieria, 2005).
4 José Enrique Delmonte, et al., 60 Años Edificados. Memorias de la Construcción de la Nación (Santo Domingo: Industrias Nacionales, 2007)
5 Omar Rancier, «La Ciudad : Poder y Símbolo», Conferencia, Primera Mesa Academica sobre Semiótica (UNIBE, 2014).
6 Gustavo Moré, «Notas sobre Forma e Identidad en la Arquitectura de la Era de Trujillo», Arquivox 1 (1984): 6.
7 Henri Gazón, La Arquitectura Dominicana en la Era de Trujillo. Album 1 (Ciudad Trujillo: Impresora Dominicana, 1949).
8 John Summerson, El Lenguaje Clásico de la Arquitectura (Barcelona: Gustavo Gili, 1984).
9 Umberto Eco, Apostillas a el Nombre de la Rosa (Barcelona: Editorial Lumen, 1985).
10 «Entre los católicos el jubileo es una celebración que de ordinario tiene 25 años» Wikipedia.
11 Gustavo Luis Moré, «Modernidad y Contradicción en la Arquitectura de la Era de Trujillo. 1930-1961», Historias para la Construcción de la Arquitectura Dominicana. 1942-2008 (Santo Domingo: Grupo León Jimenes, 2008).
12 César Al Martínez y José Enrique Delmonte, «A sesenta años de la Feria de La Paz: Nuevas aportaciones para la historia urbana de Santo Domingo», Conferencia en la Academia Dominicana de la Historia (9 de diciembre de 2015).
13 G. Moré, G., O. Rancier, M. Tolentino, y R. Segre, Banco Central : 60 años de historia, arquitectura y arte (Santo Domingo: Colección del Banco Central, 2007). En los interiores trabajó el arquitecto norteamericano F. Jerace de la firma Bank Building Corporation.
14 Ibíd.
15 Ver entrevista en esta misma edición.
16 Ibíd.
17 Entrevista a Colin Rowe, Revista NYA 7/8 (1994).
18 Jeannette Miller, «El exilio republicano español y sus aportes a la modernidad en el arte dominicano», en Seminario Internacional «El exilio republicano español en la sociedad dominicana» (Marzo 2010). Comisión Permanente de Efemérides Patrias, Archivo General de la Nación , Volumen CXIII, Academia Dominicana de la Historia, Volumen LXXXIX.


Este primer bloque de obras de José Antonio Caro inicia con su llegada al país en 1934, luego de recibir el título de arquitecto de la Escuela Especial de Arquitectura de París, y culmina justo antes del Centenario de la República (1944), hecho que desatará una frenética actividad constructiva en la República Dominicana.
Este bloque incluye sobre todo obras residenciales caracterizadas por un estilo neohispánico, muy arraigado entre los habitantes de la ciudad de Santo Domingo de la época, y edificios multiusos en la Ciudad Colonial. Estos edificios multiusos, entre ellos el Lucas Guerra, el Ramos y el Paliza, manejan una misma solución funcional de comercios en la parte inferior y residencias en los niveles superiores. En su diseño Caro empieza a explorar el lenguaje moderno de plantas libres y ventanas horizontales, pero manteniendo ciertos detalles art déco en el conjunto y cierta complejidad compositiva en el manejo de las fachadas, sobre todo al ser edificios todos ellos en esquina.
• Panadería Quico
• Residencia Fernando Ricart
• Residencia Caro Álvarez
• Urbanización de Ciudad Trujillo
• Edificio Esso Standard Oil (construcción)
• Edificio Fernández (Casa Plavime)
• Ayuntamiento de La Romana
• Bloques de casas Dr. Francisco Benzo
• Edificio Lucas Guerra
• Residencia Flor Trujillo de Brea
• Edificio Paliza
• Edificio La Paloma
• Edificio Ramos
• Residencia Coronel Frank Féliz Miranda
• Residencia Virgilio Díaz Ordóñez
• Residencia Martínez Alba (Embajada de España)
• Residencia Jesús B. del Castillo
• Chalet de Ricardo Mejía
• Edificio de apartamentos Menéndez
• Residencia familia Caro Ginebra
José Antonio Caro Álvarez
Calle Padre Billini #406, Ciudad Colonial, Santo Domingo 1934
Ubicado en la calle Padre Billini #406, en la Ciudad Colonial de Santo Domingo, este edificio constituye el primer diseño de José Antonio Caro al llegar al país. El proyecto consistió en la reconstrucción de un inmueble de la ciudad colonial para albergar la Panadería Quico, propiedad de su padre Francisco Caro. Fue diseñado y construido en 1934.
El edificio, de un solo nivel y con muros de mampostería, albergaba la fábrica de pan y el local comercial para su venta. La fachada se compone de dos cuerpos separados por una amplia cornisa levemente proyectada hacia afuera. En la parte inferior se ubicaban las puertas de acceso al local, en vidrio, junto a una vitrina circular propia de confitería. En la parte superior de la fachada se exhibía el nombre comercial en letras de hormigón sobre superficie cóncava.
Las molduras y cornisas le aportan un aire art déco a la edificación, con cierto criterio academicista en la proporción y la estructuración de la fachada; especialmente en la delimitación de su base mediante molduras sencillas y su coronamiento a través del uso de cornisas proyectadas. La planta, de carácter libre, constituye una muestra de modernidad incipiente.








José Antonio Caro Álvarez
Calle César Nicolás Penson #81, Santo Domingo 1936
Esta residencia, propiedad del señor Fernando Ricart, está ubicada en la calle César Nicolás Penson #81, en la ciudad de Santo Domingo. Su diseño y construcción data de 1936, y formó parte de un trío de casas que se ubicaban en hilera en la calle César Nicolás Penson, entre las calles Pedro A. Lluberes y Rosa Duarte.
Esta residencia constituye un ejemplo representativo del estilo neohispánico, también conocido como estilo mediterráneo o neocolonial, que imperó en la ciudad de Santo Domingo a principios del siglo XX. Se caracteriza por una composición volumétrica formada por distintos cuerpos independientes; superficies lisas o corrugadas, originalmente blancas, con techo de varias aguas con tejas rojas; uso de arcadas en galerías; y elementos decorativos de descendencia española y mudéjar.
En planta, esta residencia también sigue los esquemas tradicionales de las casas suburbanas de Gazcue, usualmente compuestas por jardines al frente, marquesina lateral, una galería al frente, tres aposentos, sala, comedor y áreas de servicio en la parte posterior.
Un cuarto aposento se ubica en un segundo nivel, formando un torreón que sobresale en el extremo izquierdo de la fachada, típico elemento heredado de la arquitectura española. El interior se caracteriza por los espacios fragmentados y claramente delimitados, con un corredor central en forma de martillo que comunica las distintas áreas de la residencia.
La fachada se engalana con elementos decorativos como los arcos de medio punto, las columnas cilíndricas, los balcones de estilo sevillano, los tragaluces sobre ventanas y puertas, y el cordón decorativo sobre la entrada principal.




José Antonio Caro Álvarez Av. Bolívar esquina Pasteur, Santo Domingo 1937
Esta residencia, propiedad de don Francisco Caro —padre de José Antonio Caro Álvarez—, se localiza en la esquina entre la Av. Bolívar y la calle Pasteur, en Gazcue. La familia Caro Álvarez habitó esta residencia a partir de julio de 1937.
La residencia se caracteriza por la distribución de todas sus áreas alrededor de un patio central, cuyos muros internos son recubiertos con finos mosaicos y calados, muy al estilo mudéjar. La distribución espacial se realiza en forma de «L» con un pasillo de calados que bordea el atrio central.
Arcos de medio punto, torreones, techos inclinados con tejas rojas y superficies blancas corrugadas caracterizan el tratamiento formal y volumétrico de esta residencia neohispánica. De clara descendencia mudéjar son los elementos decorativos con arabescos que caracterizan los calados, los mosaicos y los trabajos de herrería en ventanas y balcones.






Guido D’Alessandro / José Antonio Caro Álvarez
1937 (No realizado)
Propuesta para un Centro Cívico diseñado por el ingeniero Guido D’Alessandro y José Antonio Caro en 1937. Este plano es el primer documento que sugiere la necesidad de articular, en Ciudad Trujillo, un conjunto de edificaciones públicas con un carácter simbólico relevante.
Esta idea es planteada sobre la Av. Máximo Gómez, donde los proyectistas proponen concentrar las principales piezas del equipamiento institucional creciente de la administración pública, entre ellas las Secretarías de Estado y el Palacio de Justicia. El eje inicia en la Av.
George Washington (Malecón) y culmina en la Av. Bolívar, donde se crea una gran manzana centralizada que alojaría el Capitolio.
El plano incluye también el Palacio Nacional, cuya construcción aún no se había iniciado para la época, el Faro a Colón y el Parque Ramfis.

José Antonio Caro Álvarez Av. Bolívar, Santo Domingo c. 1938 (Construcción)
Este edificio fue construido por José Antonio Caro, pero se desconoce el autor de su diseño, probablemente pudo haber sido facilitado por la misma empresa de la Esso Standard Oil.
El edificio constituye un volumen sencillo, puro, levantado sobre pilotes en la mayor parte de su primer nivel. El segundo y tercer nivel (posiblemente donde se alojaban las oficinas), se caracterizan por los ornamentos verticales muy al estilo art déco norteamericano.

José Antonio Caro Álvarez / Leo Pou Ricart
Calle El Conde, Ciudad Colonial, Santo Domingo 1936
Edificio de fina terminación que constituye una de las obras más originales en el estilo art déco dominicano. Ubicado en la calle El Conde, en la Ciudad Colonial, el edificio consta de tres niveles: un primer nivel comercial y los dos siguientes residenciales. En su primer piso estuvo ubicado por mucho tiempo una zapatería de donde el edificio toma su nombre. Los amplios apartamentos constan de 350 m2 cada uno, con cinco habitaciones, dos baños, amplias áreas sociales y de servicio.
En términos formales, la caja de escalera es enfatizada verticalmente mediante un volumen superior, mientras que los balcones horizontales protagonizan el resto del volumen. La fachada se engalana con múltiples detalles art déco, entre ellos los ornamentos en el vuelo del primer nivel, en la cornisa superior y en el tope del volumen de la escalera.


José Antonio Caro Álvarez / Leo Pou Ricart
Calle Eugenio A. Miranda esquina Ramón Bergés, La Romana 1937
El proyecto para el Ayuntamiento de La Romana, diseñado por José Antonio Caro junto a Leo Pou Ricart, maneja el clasicismo academicista típico de muchas de las obras públicas erigidas durante el régimen dictatorial de Rafael Leonidas Trujillo Molina. En este caso, la planta se inscribe en un simétrico paralelepípedo donde un gran campanario, en el centro, marca el acceso y se convierte en ícono de gran fuerza. Las medias columnas dóricas antepuestas al muro liso —y que no llegan al techo— junto a la compleja composición de la torre, denotan cierto sentido art déco que convierte en paradoja el clasicismo sugerido.
La planta, bastante sencilla, maneja cuatro oficinas o salones en las esquinas y en el centro, el hall de entrada al frente —coronado por la torre— y las escaleras detrás.

Planta arquitectónica 2do nivel

Planta arquitectónica 1er nivel


José Antonio Caro Álvarez
Calle José Gabriel García, Santo Domingo
1937
Este edificio habitacional ubicado en la calle José Gabriel García, en Santo Domingo, fue propiedad del Dr. Francisco E. Benzo. Diseñado en 1937, este edificio consiste en dos viviendas contiguas de dos niveles cada una, con un acceso central.
Cada vivienda posee una galería frontal, seguida de las áreas sociales (sala y comedor), un aposento y áreas de servicio en la parte posterior. En el segundo nivel se ubican tres aposentos adicionales con un baño común. La distribución lineal de los espacios con un patio central recuerda el esquema tradicional colonial.
La fachada maneja un lenguaje mediterráneo pero de gran influencia mudéjar, por los arcos de herradura y los calados de formas vegetales y geométricas. El proyecto en su conjunto domina una estricta simetría, con un eje central claramente enfatizado por el receso del cuerpo de circulación y acceso.



José Antonio Caro Álvarez
Calle Arzobispo Meriño esquina Av. Mella, Santo Domingo 1938
José Antonio Caro diseñó unos 4 edificios de esquina, explorando diversas soluciones. Este bloque, diseñado para Lucas Guerra en la calle Arzobispo Meriño esquina Av. Mella, fue el primero, con fecha de diseño de 1938. Este edificio combina una planta libre en el primer nivel, posiblemente con fines comerciales, y una vivienda en el segundo.
El tratamiento estilístico es un tanto ecléctico, contrastando con las amplias aperturas del primer nivel, que denotan su función pública, con los reducidos huecos del segundo, dando mayor privacidad a la vivienda. El tratamiento de los balcones, aleros y ventanas redondas, le confieren un cierto aire art déco, en boga para entonces en la ciudad, que asemeja la estética de barcos de los inicios del moderno.




José Antonio Caro Álvarez
Av. Independencia esquina Máximo Gómez, Santo Domingo 1938
Esta residencia, diseñada para la señora Flor de Oro Trujillo de Brea en 1938 y ubicada en la esquina entre las avenidas Independencia y Máximo Gómez, fue probablemente construida en 1939. Al igual que otras residencias diseñadas por Caro en esta época, se caracteriza por un estilo neohispánico que combina diversos volúmenes a distintas alturas con techos inclinados cubiertos de tejas rojas.
A diferencia de otras residencias neohispánicas del momento, ésta no se distribuye espacialmente alrededor de un patio central sino de manera longitudinal. Consta de dos niveles: un primer nivel que aloja las áreas sociales y de servicio; y un segundo nivel donde se ubican tres habitaciones y dos baños.




José Antonio Caro Álvarez
Calle Arzobispo Nouel esquina Palo Hincado, Santo Domingo 1938
Segundo edificio en esquina diseñado por José Antonio Caro donde explora una solución más moderna y atrevida que en el Lucas Guerra. Este bloque, diseñado para Benito Paliza se localiza en la esquina entre las calles Arzobispo Nouel y Palo Hincado, y la construcción, efectuada por el Arq. Caro A., inició en noviembre de 1938.
Al igual que en el Lucas Guerra se maneja una planta libre en el primer nivel, destinada a comercio, y una vivienda en el segundo. Esta vez, y por primera vez en la Ciudad Colonial, Caro explora la solución de una esquina curva con ventanas horizontales en el segundo nivel y pilotis en el primero, muy al estilo de Le Corbusier. Esta solución será magistralmente dominada por Guillermo González en el edificio Copello del mismo año.
Sin embargo, el Edificio Paliza aún conserva cierto eclecticismo de tendencia art déco, sobre todo en el tratamiento de balcones, aleros y cornisas.





José Antonio Caro Álvarez Av. Mella, Santo Domingo 1938-1939
Este edificio de dos plantas, diseñado para Fermín Fernández, se inició en 1938 y se ubicó en la Av. Mella, en Santo Domingo. El edificio, de tendencia art déco, continúa la escala del contexto pero maneja un lenguaje más moderno, de superficies lisas, ventanas circulares y balcones rectangulares. La planta libre para usos comerciales en el primer nivel se combina con una vivienda localizada en los altos, esquema común en los edificios de la zona.





Edificio Ramos
José Antonio Caro Álvarez
Calle El Conde esquina Duarte, Santo Domingo 1939
Tercer edificio en esquina diseñado por Caro, esta vez en la calle El Conde esquina Duarte para la compañía Ramos. Al igual que el resto, plantea usos comerciales en el primer nivel y usos residenciales en el segundo y tercero, con seis apartamentos en total (tres en cada piso). La solución es mucho menos moderna que la propuesta para el Edificio Paliza, pues las ventanas horizontales y los pilotes de clara tendencia moderna son sustituidos por superficies macizas y múltiples aperturas de tamaños variables.
En el libro Arquitectura Dominicana 1906-1950, Enrique Penson menciona que esta edificación se levantó en el sitio donde estaba una casa propiedad de la familia Aybar. En cuanto a los materiales, Penson menciona que en la fachada se utilizaron placas de cerámica sueca, «perla negra», y en la tienda de la primera planta, bloques de cristal belgas y puertas de aluminio.



José Antonio Caro Álvarez Av. Bolívar, Santo Domingo 1941
Esta residencia del teniente coronel Frank Féliz Miranda, que data de 1941, es la primera obra residencial de Caro que prescinde de los techos inclinados y el estilo neohispánico en boga en el momento. En su lugar, la casa se plantea como un bloque moderno de superficies lisas y techos planos con amplios ventanales. La ligereza moderna aún no es aparente en este bloque, que conserva violinados, cornisas y altos antepechos, que confieren un carácter macizo a la edificación. Sin embargo, es importante notar que estos detalles decorativos no son aparentes en los planos, donde la casa aparenta más ligera, moderna y desprovista de ornamentos en su concepción original.
La planta maneja áreas sociales en el primer nivel y áreas privadas en el segundo, ubicando una gran terraza —para el aposento principal— encima de la marquesina.




José Antonio Caro Álvarez
Av. Pasteur, Santo Domingo 1941
La residencia de Virgilio Díaz Ordóñez, en la Av. Pasteur, tiene fecha de licencia de la SEOPC del 17 de noviembre de 1941. Esta residencia también maneja la estética neocolonial o neohispánica, con techos inclinados, arcadas de medio punto y volúmenes a distintas alturas.
La distribución espacial se maneja en dos niveles con un esquema longitudinal de marquesina lateral. El primer nivel incluye áreas sociales, áreas de servicio, dos aposentos y una oficina —con acceso directo desde el exterior—. El segundo nivel, por su parte, aloja una amplia terraza y dos habitaciones con su baño.



José Antonio Caro Álvarez
Av. Independencia, Santo Domingo
1940
Esta residencia ubicada en la Av. Independencia, en Santo Domingo, fue diseñada por José Antonio Caro Álvarez para Francisco Martínez Alba en 1940.
Según el Ing. Enrique Penson en su libro Arquitectura Dominicana 1906-1950 la fachada fue probablemente inspirada en la famosa casa «Twelve Oaks» de la inolvidable película «Lo que el viento se llevó». Lo cierto es que sus características formales son muy similares a las mansiones de estilo Georgiano de las grandes plantaciones de algodón del sur de los Estados Unidos. Siguiendo este estilo, la fachada se estructura de manera simétrica combinando las superficies de ladrillo rojo con superficies neoclásicas blancas, incluyendo una amplia cornisa y un pórtico de entrada con seis columnas jónicas. El pórtico de entrada aloja en el segundo nivel un balcón rodeado de una delicada balaustrada.
En términos planimétricos, la residencia se estructura alrededor de un patio central destechado por donde entra luz y aire a toda la vivienda. Este patio, de forma cuadrada, es definido por cuatro arcadas apoyadas en doce columnas jónicas, repartidas en tríos en las cuatro esquinas. En el centro, se coloca una fuente con una bella escultura de carácter neoclásico. Alrededor de este atrio central se disponen las áreas sociales en el primer nivel y las habitaciones en el segundo nivel. Una impresionante escalera curvada, ubicada en el vestíbulo de entrada, da la bienvenida al visitante.
Actualmente la edificación está incorporada a las instalaciones de la Embajada de España en la República Dominicana.






José Antonio Caro Álvarez
Calle José Dolores Alfonseca, Santo Domingo 1941
Esta residencia de Jesús B. del Castillo, fue diseñada por Caro en 1941 y estuvo ubicada en la calle José Dolores Alfonseca (hoy 30 de Marzo), en Santo Domingo.
Las arcadas, herencia de la arquitectura colonial española, son rescatadas en esta arquitectura neohispánica y caracterizan las fachadas de esta residencia, rodeando la galería perimetral del primer nivel y los accesos a la amplia terraza del segundo nivel. Según el Ing. Enrique Penson, en su libro, Arquitectura Dominicana 1906-1950, las paredes de esta casa, de mampostería de piedra, fueron consecuencia de las limitaciones y escasez del hormigón armado, por los efectos de la segunda Guerra Mundial.




José Antonio Caro Álvarez
Calle Santiago, Santo Domingo 1942
Un chalet se define como una vivienda unifamiliar de madera con jardín y tejado en pendiente y con un alero sobresaliente; es un esquema común en Suiza y otras regiones Alpinas. Estas viviendas carecen de patio interior y poseen en cambio una planta compacta.
Este «chalet» diseñado por Caro para Ricardo Mejía Pittaluga en 1942 sigue este esquema edilicio importado y no tan común en nuestro país. Según Enrique Penson «la falta de disponibilidad de acero para concreto, resultado de la Segunda Guerra Mundial, obligó al diseño de casas de madera», lo que explica la adopción de este modelo.
De planta compacta, este chalet incluye las áreas sociales en el primer nivel y dos aposentos en el segundo. La casa cuenta con una galería frontal y un gran techo inclinado.



José Antonio Caro Álvarez
Av. George Washington #218, Santo Domingo c. 1942
Este edificio consiste en una gran caja blanca donde prima la solidez del volumen, sólo interceptado por los tres planos horizontales de los balcones perimetrales. Estos balcones se detienen ante la caja de escaleras en el centro de la fachada.
Un vuelo protege la escalinata de acceso a la puerta de entrada del edificio. Sobre éste, una franja vertical parte en dos el volumen, acompañada por claraboyas a ambos lados y en cada nivel. El volumen se caracteriza por su simetría perfecta, enfatizada por el eje central de la escalera y su franja vertical.
Como se observa en la foto aérea de la derecha, el entorno de este edificio incluía una casa moderna diseño de Humberto Ruiz Castillo. El edificio Menéndez fue demolido hace varias décadas para construir el Hotel V Centenario. Además, advertimos en la foto que aún no se había construido el famoso edificio El Jaragüita, de Guillermo González, que se levantaría en el solar adyacente en 1942, hoy convertido en parqueo a cielo abierto del mismo hotel.


José Antonio Caro Álvarez
Calle Félix Mariano Lluberes, Santo Domingo c. 1942
Esta residencia es la primera casa de la familia Caro Ginebra, donde se mudaron cuando Tony era un niño. Tanto Danilo como Lorraine Caro Ginebra nacen en esta residencia. En esta casa vivió la familia Caro Ginebra hasta 1949, año en que se mudan a la residencia que realizan en la calle Los Pinos.
La residencia continúa el lenguaje neohispánico de las viviendas diseñadas por Caro en este periodo, combinando varios volúmenes a distintas alturas con techos inclinados cubiertos de tejas. La residencia tenía dos niveles con una marquesina lateral. Al fondo del lote, cerca de la marquesina, se ubicaba el primer taller de arquitectura de José Antonio Caro hasta que se mudó al Edificio El Palacio.
Esta residencia se erige en un entorno de carácter ecléctico, cercana a varios edificios de carácter moderno, entre ellos El Jaragüita y el Edificio de Apartamentos González, ambos diseñados por Guillermo González. En esta misma calle también se erige el Edificio de Apartamentos José A. Caro, también de estilo moderno.


Con la celebración del Primer Centenario de la Independencia de la República Dominicana, el gobierno inicia un amplio programa edilicio de obras públicas, en cuyo diseño y construcción José Antonio Caro juega un papel primordial.
La mayor parte de las obras que Caro asume en este periodo las realiza asociado a otros arquitectos de renombre, entre ellos Guillermo González, Leo y Marcial Pou Ricart, B. A. Martínez Brea, Henri Gazón Bona y José Ramón López-Penha. En su mayoría, estos edificios manejan un lenguaje moderno de formas puras, blancas, desprovistas de ornamento, donde los criterios funcionales y racionales definen las directrices proyectuales de las obras.
En cuanto a las obras residenciales del periodo, asumidas por Caro de manera individual, se nota una dicotomía que oscila entre la racionalidad y el modernismo de los tres edificios de apartamentos construidos (El Palacio, José A. Caro y USAID) y el estilo neohispánico todavía imperante en las viviendas unifamiliares, como la de Julián Barceló, la de Manuel Resumil Aragunde y Enrique Noboa Ortiz.
• Plan maestro Universidad de Santo Domingo (USD)
• Cuartel General del Cuerpo de Bomberos
• Casino de Güibia
• Hipódromo Perla Antillana
• Residencia Enrique Noboa Ortiz
• Santiago Tennis Club, Santiago
• Facultad de Ciencas Médicas Dr. Defilló, Universidad de Santo Domingo (USD)
• Laboratorios de medicina, Universidad de Santo Domingo (USD)
• Cine Colón, Santiago
• Diseño urbano del monumento de Santiago
• Hospital Nuestra Señora de la Altagracia
• Edificio de apartamentos José A. Caro Álvarez
• Edificio de apartamentos (USAID)
• Casino de Puerto Rico, La Romana
• Palacio de la Policía Nacional (construcción)
• Residencia Julián Barceló
• Edificio Rodríguez (El Palacio)
• Residencia Manuel Resumil Aragunde (Pazo de Arosa)
• Residencia Caro Ginebra
Guillermo González Sánchez / José Antonio Caro Álvarez / José Ramón López-Penha / Leo y Marcial Pou Ricart Ciudad Universitaria, Santo Domingo 1942-1945
El plan maestro para el campus de la Universidad de Santo Domingo constituyó una producción urbanística a gran escala y una enorme inversión estatal. Fue construida en 340,000 metros cuadrados de terreno, y a un costo de cinco millones de pesos. Su trazado urbanístico fue obra del equipo configurado por José Antonio Caro, Guillermo González, Leo Pou Ricart, Marcial Pou Ricart y José Ramón López-Penha, todos profesores de la Facultad de Ciencias Exactas.
El esquema de diseño es esencialmente clásico: una avenida central —la Juan Sánchez Ramírez, de 650 metros de longitud— orientada este-oeste, flanqueada por diversas facultades, que termina en el volumen de gran fuerza simbólica del edificio del Aula Magna —posteriormente conocido como Alma Mater—. El acercamiento urbano denota una visión axial, académica y racionalista, en el que el trazado se basa en grandes ejes y cuadrículas rectas, con espacios públicos claros y bloques de geometría pura y equilibrio formal.
Las edificaciones del campo fueron asignadas a distintos arquitectos: Humberto Ruiz Castillo diseña el Aula Magna o Alma Mater (1955) y el Instituto de Anatomía Patológica (1947); Marcial Pou Ricart, la Facultad de Odontología (1944-1945); Leonte Bernard, la Facultad de Farmacia (1947); y José Antonio Caro, la Facultad de Medicina —con sus laboratorios— (1944-1945), y la Facultad de Ingeniería y Arquitectura (1955).



José Antonio Caro Álvarez
/ Guillermo
González
Sánchez / B. A. Martínez Brea / Alfredo González Sánchez Av. Mella esquina Emilio Prud’homme, Santo Domingo 1944
Diseñado también como parte del conjunto de obras para celebrar las fiestas del Centenario de la Independencia, en 1944, este proyecto constituye uno de los ejemplos más importantes del racionalismo del periodo. El edificio se ubica en un lugar alto y accesible, en un montículo en el límite noroeste de la Ciudad Colonial, que cierra la perspectiva entre las calles Palo Hincado y Av. Mella. Es una edificación sencilla, de dos plantas, construida con bloques y hormigón armado.
Contrastan en él los volúmenes cúbicos y curvos con las ventanas abiertas en evidente búsqueda del paisaje circundante. El volumen principal, donde se encuentran las facilidades de alojamiento, se levanta sobre columnas de hormigón armado, de sección variable y perfil inclinado. El ventanal corrido de la fachada principal se corona con un alero que responde a criterios de protección climática como adaptación tropical. Un cuerpo bajo, semicircular y la torre cuadrada, de concreto armado, para ejercicios de práctica de 3 x 3 x 14 m, completan la fachada principal, que puede ser apreciada desde el Parque Independencia.
El conjunto ocupa toda la manzana, con un área total de 557.30 m2, distribuidos alrededor de un patio central que sirve como conector y lugar de prácticas. La planta inferior es abierta, ya que se corresponde con los esquemas convencionales de estaciones de bomberos, donde se ubican los coches bombas. La obra se distingue por su gran simplicidad y pureza de formas. Ha sufrido algunas alteraciones de su aspecto original.






José Antonio Caro Álvarez / Guillermo González Sánchez / Alfredo González Sánchez / B. A. Martínez Brea Av. George Washington, Güibia, Santo Domingo 1944
Otra de la tríada de edificaciones adjudicadas al grupo fue construida para la celebración de las fiestas del Primer Centenario de la República. El Casino consistía en un pabellón recreativo junto al mar Caribe, aprovechando las arenas de la playa de Güibia para crear un balneario privado adyacente a la playa pública. Se convirtió en un lugar de deleite para muchas de las familias capitaleñas que habitaban en Gazcue.
El volumen de un nivel hacia la Av. George Washington oculta un segundo nivel hacia el lado del mar, producto del desnivel existente entre la calle y la playa. Manejado en forma menos rigurosa y académica que las obras anteriores, el Casino se integra al entorno del litoral e incorpora los árboles de almendras para las terrazas al descubierto. Un volumen puro, en forma de cinta, es interceptado por otros planos a distintas alturas y diversas geometrías. El uso de la piedra caliza sirve para contrastar con las superficies pulidas de los paños de hormigón armado.
Un techo inclinado en vuelo, a manera de porche, protege y señala el acceso hacia el interior del edificio. Amplias puertas y ventanas de madera con cuadros de vidrio, permiten el libre paso de la fresca brisa marina. La escala del edificio es doméstica e informal, libre de ataduras oficiales y sumamente acogedora.
En la fachada que da hacia la playa, las columnas cilíndricas del primer nivel soportan la terraza en forma de balcón del segundo nivel. La barandilla del nivel superior es abierta, con escasos elementos metálicos horizontales para no obstaculizar la vista del mar. El techo, en tejas asfálticas sobre madera, diferencia este volumen del inferior blanco de concreto.
En el primer nivel se colocan los servicios y vestidores, y se realiza el acceso a la plataforma donde se ubicó la piscina, equipada con paraguas para el sol y posteriormente con cocotales. Asimismo, desde este nivel también se accede a la arena y a la playa, protegida por una especie de rompeolas. Unos trampolines fueron construidos dentro del mar para el disfrute de clavados conocidos como «Aruba» y «Curazao».
En años subsiguientes fue levantado un anexo hacia el este sin tomar en cuenta los elementos fundamentales del diseño original. El lugar fue cedido en las últimas décadas del siglo XX a la Universidad Autónoma de Santo Domingo para servir como Club de Profesores.




Guillermo González Sánchez / José Antonio Caro Álvarez / B. A. Martínez Brea / Alfredo González Sánchez Av. José Ortega y Gasset esquina Av. San Martín y calle Pepillo Salcedo, Santo Domingo 1943-1944 / Demolido
Localizado al noroeste de la ciudad, el hipódromo ocupaba una súper manzana urbana, que modificó, en parte, la trama regular de la cuadrícula de los sectores aledaños. El ingreso al edificio de graderías se realizaba a través de una plaza abierta, delimitada por muros perforados por huecos circulares y portales con arcos, que rememoran caballerizas españolas, en una mezcla de modernidad austera y regionalismo.
El edificio principal consta de dos niveles y tres cuerpos, uno central más sólido y dos alas laterales más ligeras, pues sus primeros niveles se liberan de la pesadez del muro al dejar visible sólo el intercolumnio. Se percibe una fuerte horizontalidad debido al manejo de las aberturas angostas y alargadas. Al centro, el volumen se abre en la primera planta para conectar el vestíbulo con el acceso a las distintas dependencias, entre ellas la taquilla para apuestas y las casillas de pagos. Las instalaciones ocupan un área total de 1,425 m2. En la segunda planta se ubicaban los palcos, otras casillas de apuestas, y al centro, el palco presidencial con el escudo nacional en el eje axial.
La ubicación del edificio permitía mantener en sombra a los espectadores de las graderías en las tardes de carreras. Además, una marquesina en vuelo de madera y tela asfáltica,
calculada por el Arq. Leonte Bernal V., cubría la mayor parte de las gradas; opuesto estaba la gradería del sol de 300 m2 de superficie. La pista de carreras fue diseñada por Suffolk Downs, de Boston, Estados Unidos con una longitud de 1,000 m y una anchura máxima de 16 m y mínima de 12 m. En su curva noreste la pista interfería con la Av. José Ortega y Gasset, por lo que ésta fue acomodada al desarrollo de la misma, y este cambio aún puede percibirse en la trama urbana. El hipódromo, junto a otras obras, fue inaugurada el 23 de febrero de 1944, con motivo de los festejos del Primer Centenario de la República. La porción central delimitada por la pista, fue utilizada como campo de deportes.
Enrique Penson acata que la construcción del hipódromo Quinto Centenario y su inauguración el 29 de abril de 1995 produjo el cierre del hipódromo Perla Antillana, en cuyos terrenos se encuentra actualmente el Hospital General Plaza de la Salud.








José Antonio Caro Álvarez
Av. Independencia, Santo Domingo 1944
La residencia de Enrique Noboa Ortiz, ubicada en la Av. Independencia, en Santo Domingo, sigue los esquemas tradicionales planimétricos de las casas coloniales, en las que las distintas áreas se distribuyen alrededor de un patio central. De planta compacta y cerrada, la residencia sólo se abre al exterior a través de la galería perimetral en forma de «U». La residencia incluye cinco aposentos con tres baños, sala, comedor, oficina y áreas de servicio.
En términos formales el mayor atractivo radica en la arcada perimetral y en el torreón que domina la entrada a la residencia. Los sillares violinados del primer nivel otorgan cierta fuerza formal enraizada al terreno, que se aligera en el nivel superior gracias a la galería abierta con arcadas de medio punto.
Enrique Penson, en su libro Arquitectura Dominicana 1906-1950 establece que esta residencia tiene fecha de licencia en la SEOPC del 29 de abril de 1944, y que el proyecto original sufrió una drástica modificación en la que se eliminó la primera planta, convirtiéndose la segunda en primera y única.


Guillermo González / José Antonio Caro Álvarez / B. A. Martínez Brea / Alfredo González 1944 / No realizado
Este proyecto del equipo de Caro, González y Martínez Brea, no fue realizado, pero aparentemente formó parte de las obras del Centenario de la República. Consiste en un club de tenis para la ciudad de Santiago, con una planta sumamente sencilla que incluye una pista de baile, un área para bar y baños.
El tratamiento de la fachada combina dos techos a dos aguas con un gran arco rebajado en el centro marcando el acceso.





José Antonio Caro Álvarez
Av. Cristóbal de Llerena, Ciudad Universitaria 1944-1945
Primer edificio del nuevo campus de la Universidad de Santo Domingo, de diseño soberbio y moderno, claro ejemplo de la aplicación de los preceptos del Movimiento Moderno en el Caribe. Junto al Hotel Jaragua es una de las obras de mayor envergadura estilística de la época que marcó en su momento la vanguardia arquitectónica del país. Colocado en una angosta manzana de la avenida principal del campus, el edificio se acopla longitudinalmente y se posa como un enlace entre las calles aledañas con un equilibrio asimétrico.
El volumen principal curvo se levanta sobre pilotes cuadrados recubiertos de mármol dominicano, dejando un vestíbulo abierto que, como arco de triunfo, permite a través suyo la fluidez del espacio. Este amplio espacio llamado por José A. Caro «salón de los pasos perdidos», tiene una longitud de 49 m y una anchura de 8 m. A manera de plaza interna techada, este espacio permite a los estudiantes reunirse entre clases, al mismo tiempo que permite el acceso a cinco aulas de capacidad para 100 estudiantes cada una, a las oficinas para el cuerpo administrativo, a las oficinas del decano de la Facultad, a los depósitos, salones para desahogo y cafetería.
En los extremos del salón de los pasos perdidos, se localizan las escaleras que acceden al piso superior y que conectan con otras cinco aulas con capacidad para 75 estudiantes cada una, orientadas para aprovechar la ventilación natural, y cuyos huecos están enmarcados por aleros perimetrales y protegidos por parasoles verticales. El segundo nivel sobre el vestíbulo abierto, sobresale con una suave curvatura en toda la longitud del espacio, acompañado por un ventanal continuo enmarcado por salientes perimetrales, mecanismo compositivo repetido en cada una de las fachadas.
En cada nivel se desarrolla un auditorio. El del primer nivel destaca por tener en su interior, en la pared oeste, un mural del pintor español Vela Zanetti donde se resume, en tres etapas, la evolución de la medicina. Complementan los servicios un salón para hemeroteca, una sala para preparación de seminarios con capacidad para 60 estudiantes, cuatro aulas para seminarios con cabida para 40 personas, un anfiteatro igual al del primer piso, una sala para reunión de profesores y depósitos. El edifico posee un sótano para depósito general y para vivienda del encargado de custodia del edificio.
La pasarela frontal fue anexada posteriormente por el propio Caro en los años 50. El edificio fue inaugurado el 16 de agosto de 1945 con el nombre de Dr. Fernando A. Defilló.







José Antonio Caro Álvarez Ciudad Universitaria, Santo Domingo c. 1947
Los Laboratorios de Medicina de la USD, se ubican en un edificio longitudinal, independiente de la Facultad de Medicina pero localizado justo en frente de ésta (en su parte de atrás). Su diseño fue asignado también a José Antonio Caro, pero su construcción parece haber sido iniciada luego de concluida la Facultad.

El volumen, más sencillo que el de la Facultad, se compone de un bloque rectangular central de tres niveles con dos bloques cuadrangulares anexos de dos niveles, marcando una simetría ciertamente academicista. Las ventanas rectangulares se enmarcan con aleros en sus cuatro lados en un gesto decorativo que contrasta con la sobriedad del conjunto.


José Antonio Caro Álvarez
Calle 30 de Marzo, Santiago
1946
El cinematógrafo Colón existía ya en 1930 cerca del Parque Duarte en la ciudad de Santiago de los Caballeros. Sobre sus cimientos el Arq. Caro levanta una nueva edificación con mejores facilidades para la proyección de películas y una mayor capacidad, aumentando la platea a 700 asientos y el anfiteatro a 300 espectadores con entrada independiente.
La fachada es de corte simétrico en el segundo piso. Originalmente, el proyecto propuesto manejaba un gran ventanal a lo largo de casi toda la extensión de la fachada. Al construirse se modifica esta concepción reduciendo el ventanal a cinco espacios centrales interrumpido por planos seriados sobre los cuales se colocó el nombre del cine en letras armadas con luces de neón. A los lados se han incorporado dos planos de menor altura y en relieve, con una doble hilera de cinco claraboyas con cristales pivotantes como cierre. En el interior, un porche de acceso comunicaba con la taquilla, el bar y el lobby, delante de la sala de proyecciones. Una circulación perimetral fungía como salida de emergencia y permitía el acceso al camerino posterior y a los servicios.
La espacialidad de la sala de cine se perdió al ser integrado al conjunto de edificios que comprenden el Centro Comercial de La Sirena, ubicado en esta manzana.



José Antonio Caro Álvarez Santiago de los Caballeros 1944
Este proyecto se ubica en una de las colinas más altas de la ciudad de Santiago, en el Cerro del Castillo, por lo que fue necesario ejecutar fuertes trabajos de relleno, movimiento de tierra y adaptación de la topografía durante muchos años. El proyecto fue parte de las obras edilicias desarrolladas para celebrar el Primer Centenario de la Independencia Nacional, y su construcción inició el 30 de abril de 1944. En sus inicios conocido como «Monumento a la Paz de Trujillo» esta estructura fue promovida por Mario Fermín Cabral y Báez para honrar al dictador. El 19 de noviembre de 1961 la estatua de Trujillo que presidía el monumento fue destruida, y el monumento fue consagrado, ese mismo año a la memoria de los héroes de la Restauración. A partir de entonces, se le llamó Monumento a los Héroes de la Restauración.
Para el proyecto se contrató al arquitecto Henri Gazón Bona para diseñar el monumento en sí, y a José Antonio Caro para diseñar el entorno urbano. El conjunto habría de cambiar la fisonomía de la ciudad y su acceso.
La propuesta urbanística de Caro consiste en una planta centralizada, con el monumento como epicentro, y un acceso longitudinal que conecta el monumento con la ciudad. Un esquema aterrazado jerarquiza el monumento, cuyo zócalo es rodeado por una vía de circulación. A partir de esta pirámide escalonada central se desarrollan dos esquemas de jardines diferentes: hacia un lado jardines de trazado geométrico de espíritu italiano renacentista; y hacia el otro, jardines más libres, con circulaciones curvilíneas y orgánicas adaptadas al terreno, que recuerda los jardines pintorescos ingleses.
Edwin Espinal Hernández y César Félix Payamps Fernández son autores de un libro dedicado a esta obra titulado El Monumento a los Héroes de la Restauración: historia y arquitectura (Santo Domingo: Ediciones de la Secretaría de Estado de Cultura, 2008).



José Antonio Caro Álvarez
Ramón Trueba, contrastista asociado Calle Pedro Henríquez Ureña esquina Benito Juárez, Gazcue, Santo Domingo 1944-1949
Diseñado para servicio público de obstetricia, originalmente se llamó Maternidad Julia Molina, en honor a la madre del dictador Trujillo. Su ubicación es contradictoria en el planteamiento urbanístico de la ciudad, ya que se localiza en la parte occidental de Gazcue, lugar de la alta burguesía capitalina. Colindaba con el aeropuerto General Andrews, límite de las conexiones hacia el noroeste, y estaba cerca de varias suntuosas residencias de la familia Trujillo.
Fue diseñado con el frente principal hacia la calle Pedro Henríquez Ureña y la elevación posterior hacia la Av. México. Su ubicación le permite recibir durante el día las brisas del sudeste y durante la noche el terral. La construcción estuvo a cargo del Ing. Boyrie de Moya, y se inició el 1 de julio de 1947. Cuando se inauguró, el 16 de mayo de 1949, era el edificio más grande de la República Dominicana y constaba de cuatro niveles.
En la obra se utiliza el lenguaje sobrio e impecable del estilo moderno y, ante todo, funcionalista, olvidando el esquema academicista. En la fachada, de lineamiento horizontal, se desarrollan pasillos abiertos que discurren a ambos lados del cuerpo central en la totalidad de sus cuatro pisos, aprovechando una efectiva orientación para la circulación de las brisas, en un momento que la climatización artificial no era una costumbre.
Los pasillos reiteran su presencia con los intercolumnios, marcados por el sistema estructural de columnas cilíndricas en los que se apoyan los diferentes niveles. En el manejo de los huecos de ventanas se enfatiza la verticalidad, contrapuesta a los esquemas horizontales de los largos pasillos de circulación. Estas proporciones contrastan con los muros limpios y sin ornamentación.
La entrada principal, hacia oriente, rompe la horizontalidad con huecos verticales cerrados con bloques de vidrio, en la parte donde se desarrollan las amplias escaleras. Al cuerpo central, se adosan dos cuerpos perpendiculares, uno desciende en forma escalonada y el otro es un cubo al que se le ha extraído una de sus esquinas. Esta volumetría, en su parte posterior, ha sufrido diversas alteraciones en el transcurso de los años.
Enrique Penson, en su libro Arquitectura Dominicana, 1906-1950, realiza una perfecta descripción de la distribución espacial del hospital que a continuación transcribimos:
En el primer nivel del edificio, en el ala derecha, se localizan los servicios externos, entre ellos: ocho consultorios, dos salas para consultas, farmacia, servicio de rayos X, laboratorio, vestíbulo y sala de espera para consultantes. En el ala izquierda se ubicaron cuatro salas comunes para parturientas, departamentos para ropa sucia y limpia, sala para recién nacidos y para enfermeras, servicio de emergencia, con un ascensor adjunto y habitaciones para el médico de servicio.
La segunda planta dispone en su parte central de un vestíbulo donde se localiza la oficina de registro del hospital, y el departamento del personal, con sala para biblioteca y dormitorios. En el ala derecha de este piso están las oficinas administrativas y el archivo clínico; y en el ala izquierda, se localizan cuatro salas para parturientas, habitaciones de enfermeras, depósitos de ropa, sala de recién nacidos, habitación para el médico de servicio y sala de enfermeras.
En el tercer piso se instalaron consultorios, salas para la esterilización de instrumentos y preparación de los médicos, sala de conferencias, dormitorios para el personal, pantry, depósitos de ropa, salas para enfermeras, cuatro salas para parturientas con sus correspondientes departamentos para recién nacidos, y habitación para el médico de servicio. La cuarta planta está dedicada a los servicios de parto y pre-parto, con habitaciones para el internamiento, habitaciones de enfermeras, salas de partos y prepartos, sala de operaciones y habitación para médico.
Con el transcurso de los años, la maternidad ha necesitado de ampliaciones y adecuaciones a las nuevas necesidades de la medicina. Entre estas remodelaciones se añadió una nueva entrada de emergencias que fue insertada, con poco tacto, en la cara oeste del edificio existente, sin mucho éxito en su proceso de integración. De igual forma, el perímetro del terreno ha sido intervenido, ocupando los antiguos espacios verdes con parqueos, depósitos y equipamientos. Actualmente, la verja posterior hacia la Av. México ha sido desprovista de los elementos prefabricados originales ubicados en la parte superior del muro.



José Antonio Caro Álvarez
Calle Félix Mariano Lluberes #10, sector La Primavera, Gazcue, Santo Domingo c. 1946
Edificio de apartamentos de tres niveles diseñado con un eje central de acceso enfatizado por la caja de escaleras con muro convexo recubierto con bloques de pavés de vidrio. A los lados, y de manera simétrica, se desarrollan apartamentos de iguales características formales. Una galería en «L» se proyecta en vuelo hacia la calle dejando una horadación horizontal continua a manera de ventana apaisajada, que se enfatiza por los contrastes del plano interior en sombra y el tímido bordillo en relieve en forma de pasamanos.
La simpleza de la composición de franjas horizontales interceptadas por el cuerpo central es contrarrestada por la contraposición de las ventanas interiores verticales. Además, en el primer cuerpo de las fachadas laterales sobresalen unas ventanas cuadradas enmarcadas por un saliente perimetral. Detrás solo se continúan los dos primeros niveles.

José Antonio Caro Álvarez
Calle Leopoldo Navarro esquina César Nicolás Penson, Santo Domingo 1948
Bloque simétrico de tres niveles para apartamentos de tres habitaciones. El arquitecto Caro juega con la composición al colocar una base más angosta que el edificio y que termina en el alfeizar de las ventanas; este efecto disminuye la altura del proyecto y encubre, en parte, el primer nivel. Se accede mediante una marquesina peatonal con varios escalones que conducen al vestíbulo.
En los dos niveles superiores, el tratamiento de las fachadas es diverso, hay balcones frontales horizontales delante de la sala y una de las habitaciones, con un antepecho que combina un paño sólido parcial con baranda metálica de planchuelas. Las habitaciones de los extremos tienen un balcón individual, que permiten, en la fachada, proyectar la franja horizontal. Las ventanas laterales son protegidas en tres de sus lados por un alero de formas oblicuas e irregulares. En esta obra, el arquitecto ha utilizado la línea oblicua en varios elementos arquitectónicos. Para marcar el eje axial del edificio, sobre la marquesina y en los pisos superiores, se han colocado unas franjas verticales a manera de curva.
El edificio tiene en la parte posterior un pasillo de servicio con un área mínima de lavadero. Por este pasillo se accede a una escalera de servicio exenta del cuerpo general. Al final de los años 80 la Embajada Norteamericana adquirió el edificio completo y modificó las aperturas de balcones y ventanas.




José Antonio Caro Álvarez
Calle Benito Monción esquina Av. Libertad, La Romana 1947
Según Enrique Penson, «una porción de terreno con extensión superficial de 6,164 m 2 fue donada por el Estado dominicano, a la Casa de Puerto Rico, Inc., para que construyera su edificio».
Caro diseña un bloque de dos niveles, cada nivel con un tratamiento estilístico distinto. El primero es macizo, recubierto en sillares de piedra y con ventanas cuadradas, mientras que el segundo recesa al frente para dar lugar a una amplia terraza rodeada por una arcada de arcos apuntados. Una gran pista de baile en el segundo nivel es delimitada por las mismas arcadas de la terraza exterior.





Ramón Trueba, diseño / José Antonio Caro Álvarez, contratista Av. Leopoldo Navarro esquina Av. México y calle Francia, Gazcue, Santo Domingo 1947-1949 / Construcción
El diseño del Palacio de la Policía Nacional es atribuido al Arq. Ing. Ramón Trueba. El Arq. José Antonio Caro fue el contratista encargado de su ejecución. La construcción del edificio, cuya fachada se situa hacia la calle Leopoldo Navarro y sus frentes laterales hacia las avenidas México y Francia, inició en junio de 1947 y fue inaugurado el 26 de febrero de 1949.
El edificio cuenta con una planta en forma de herradura, de cuatro niveles, con un gran patio frontal destinado a estacionamientos, y un patio posterior en el que se han construido numerosos anexos. El estilo es de carácter art déco

José Antonio Caro Álvarez
Calle Elvira de Mendoza esquina Juan Sánchez Ramírez, Santo Domingo 1948
Esta residencia para Julián Barceló en el sector de Gazcue, en Santo Domingo, sigue los esquemas tradicionales planimétricos de las casas suburbanas de Gazcue, usualmente compuestas por jardines al frente, marquesina lateral, una galería al frente, aposentos, sala, comedor y áreas de servicio en la parte posterior. En este caso, un segundo nivel, en el centro de la casa, aloja un dormitorio con su baño, creando un juego volumétrico en el conjunto. Asimismo, la tradicional galería frontal es sustituida por un patio o terraza techado, abierto al exterior mediante portones de hierro curvados.

El juego volumétrico es subrayado por los techos a distintas aguas, todos cubiertos con tejas rojas. Los detalles decorativos incluyen delicados trabajos de herrería que protegen cada una de las puertas y ventanas al exterior.





José Antonio Caro Álvarez
Calle El Conde esquina 19 de Marzo, Ciudad Colonial, Santo Domingo 1949
El edificio Rodríguez, diseñado para J. Rodríguez R., se encuentra en la calle El Conde, principal arteria comercial de la ciudad, en el centro histórico de Santo Domingo. Para la década de los cuarenta y cincuenta, esta arteria ostentaba los principales logros de la arquitectura en el país.
Siguiendo la fórmula racionalista implantada por el Edificio Copello —de Guillermo González— unos años antes, el arquitecto José A. Caro también utiliza la atrevida solución estructural de esquina curva en voladizo, con un receso del primer nivel. Este gesto amplía el paseo peatonal creando un zaguán abierto donde pueden observarse los escaparates protegidos del sol y de las inclemencias del tiempo. Cabe destacar la gran calidad espacial del área del vestíbulo, con la inclusión de vitrinas iluminadas que invitan al peatón a acceder a la tienda del primer nivel.
En los pisos superiores, franjas horizontales de ventanas ininterrumpidas discurren por las fachadas. Sólo en el lateral este, las columnas irrumpen los ventanales marcando su ritmo estructural. La primera planta se trató con revestimientos duros, a manera de alto zócalo, que por contraste eleva los pisos superiores. Las plantas superiores se dedicaron a usos mixtos, con oficinas en el segundo y tercer nivel, y vivienda en el cuarto.
En este edificio tuvo José Antonio Caro Álvarez su taller de arquitectura por varios años hasta construir la oficina de la calle Los Pinos, donde aún se mantiene la empresa Caralva.






José Antonio Caro Álvarez
Calles Juan Sánchez Ramírez, Elvira de Mendoza, Ramón Santana y José Desiderio Valverde, Santo Domingo 1949
El Sr. Manuel Resumil Aragunde era contable, oriundo de Villa García de Arosa, provincia de Pontevedra, España, y puso en el portón de su casa: «Pazo de Arosa» —«pazo» en Galicia significa palacio o casa solariega de familia—. La residencia recuerda los castillos medievales, con un torreón de sillares de piedra coronado de almenas ubicadas a la izquierda del acceso principal.
Todos los espacios se organizan en torno a un patio interior rodeado de arcadas, que ilumina y ventila todo el interior de la amplia residencia, que incluye en su primer nivel las áreas sociales y de servicio, y en su segundo nivel las habitaciones. Abundantes y amplias terrazas y galerías conectan la casa con el amplio jardín exterior, mientras que una biblioteca se ubica en el nivel superior del macizo torreón.




José Antonio Caro Álvarez
Calle Los Pinos, La Esperilla, Santo Domingo 1949
Residencia de un sólo nivel y planta irregular que se caracteriza por sus techos inclinados de tejas rojas. La casa se divide en dos áreas claramente diferenciadas: de un lado están las áreas de servicio con la marquesina, porche y cocina, etc.; y del otro, las áreas privadas de las habitaciones con 5 aposentos y un estudio, cada uno con su baño. En el centro, como elemento conector, se ubica el living o sala con una amplia terraza.
La vivienda se ubica en el centro del lote, delimitado por la calle Los Pinos y la Av. Bolívar, con un amplio jardín al frente y un amplio patio trasero.









En este último período de la obra arquitectónica individual de José Antonio Caro Álvarez, el arquitecto maneja lo que Omar Rancier y Gustavo L. Moré han denominado el «doble código» de las edificaciones de la Era de Trujillo, que consiste en una arquitectura clásica implementada en las edificaciones estatales como secretarías de Estado, monumentos y locales de gobernación provincial —como el antiguo Banco Central y la Secretaría de Educación y Bellas Artes— y un lenguaje moderno para edificaciones educativas, hoteleras, y de salud —como el Hotel Paz, el Hospital Angelita y la Facultad de Arquitectura e Ingeniería de la USD.
Las obras neoclásicas manejan una fórmula común de volúmenes puros, superficies cubiertas de travertino, pilares en autorrelieve con fenestraciones intercaladas y, en ocasiones, la inclusión de cúpulas con tambor. En general, la concepción espacial es moderna, con espacios interiores diáfanos, iluminados y de gran funcionalidad. En cuanto a las obras modernas, éstas se caracterizan por la claridad volumétrica, las superficies lisas de hormigón blanco desprovistas de ornamento, los techos planos y la fluidez espacial.
• Sucursal del Banco de Reservas
• Edificio calle El Conde #98
• Instituto del Libro
• Facultad de Arquitectura e Ingeniería, Universidad de Santo Domingo (USD)
• Hospital Angelita (hoy Hospital Infantil Robert Reid Cabral)
• Hotel Paz (hoy Hotel Hispaniola)
• Sederías California
• Anteproyecto Banco Agrícola de Crédito e Industrial
• Anteproyecto Edificio Editora El Caribe
• Anteproyecto capilla del Palacio Nacional
• Palacio de Correos de Santo Domingo
• Anteproyecto Edificio Alma Mater, Universidad de Santo Domingo (USD)
• Secretaría de Estado de Educación y Bellas Artes
• Antiguo Banco Central de la República Dominicana
• Residencia familia Caro Ginebra, Constanza
José Antonio Caro Álvarez
Av. San Martín, Santo Domingo c. 1950
Esta obra constituye una de las primeras sucursales bancarias fuera del Centro Histórico de la ciudad de Santo Domingo. Se ubicó en la extensión de la antigua carretera hacia la región norte o Cibao —hoy Av. San Martín— para dar servicio al creciente sector de los barrios desarrollados en los terrenos al norte del Aeropuerto General Andrews, entre ellos el ensanche La Fe, Villa Juana, Villas Agrícolas, entre otros.
El edificio diseñado por Caro consiste en un bloque rectangular sencillo que inaugura una fórmula que será repetida en numerosos proyectos posteriores de estilo neoclásico: pilastras recubiertas de mármol portoro, vidrieras a dobles alturas entre pilastras y superficies
laterales recubiertas en travertino. Este esquema de austera modernidad será repetido en obras como el Palacio de Correos, la Secretaría de Educación y Bellas Artes y el antiguo Banco Central de la República Dominicana.
En este bloque, la verticalidad de las pilastras es contrarrestada por el vuelo horizontal que marca el acceso y la cornisa que sobresale alrededor del edificio.

José Antonio Caro Álvarez
Calle El Conde #98, Ciudad Colonial, Santo Domingo s.f.
Los planos de este edificio fueron encontrados en el archivo de los Caro. Probablemente este pequeño bloque en la calle El Conde no fue realizado, pero sus planos denotan un edificio de dimensiones reducidas pero dotado de cierta modernidad en su concepción general. El lote, sumamente profundo y de reducida fachada, es resuelto en tres niveles con entrepisos bajos de 2.20 m.
La fachada delimita claramente el área de escaleras mediante un tratamiento liso, vertical, que contrasta con la horizontalidad del otro lado, donde diferentes tipos de aberturas marcan los tres distintos niveles de la edificación. El primer nivel, posiblemente comercial, propone muros cortinas; el segundo nivel posee un amplio ventanal de unidades rectangulares, y el tercer nivel posee balcón con puertas de celosías.




José Antonio Caro Álvarez
Calle Arzobispo Nouel #258, Ciudad Colonial, Santo Domingo 1953
Edificio racionalista entre medianeras, de carácter mixto, erigido para José y Manuel Escofet. Consta de tres niveles, con un comercio en la primera planta y dos apartamentos en los niveles superiores. De carácter simple, el edificio posee formas puras con detalles sutiles pero resueltos con gran ingenio. Es notable su escala pública y su relación con la ciudad. En la composición planimétrica el área comercial se retrae creando un zaguán irregular abierto, donde la vitrina, que parece flotar, asume un ángulo que enfatiza y amplía el área de exhibición. El acceso al interior del local se realiza mediante unos escalones en vuelo.
En esta estructura estuvo ubicado por muchos años una de las principales librerías de la ciudad, «El Instituto del Libro». El perfil moderno del edificio conceptualizaba el carácter vanguardista y actual de los contenidos literarios del interior.
En los niveles superiores, unos balcones hacia el interior del volumen se abren en amplias horadaciones horizontales acompañadas en los extremos por bloques de pavés curvos, cóncavos y convexos, como si fuesen cortinas de cristal a medio abrir o medio cerrar.


José Antonio Caro Álvarez
Av. Cristóbal de Llerena, Ciudad Universitaria, Santo Domingo 1955-1957
Ubicado en la Av. Cristóbal de Llerena, en la Ciudad Universitaria, la Facultad de Ingeniería y Arquitectura fue el segundo edificio diseñado por José Antonio Caro Álvarez para la Universidad de Santo Domingo en 1955. Caracterizado por un marcado estilo internacional, este edificio guarda numerosas similitudes con el edificio sede de la Bauhaus en Dessau, uno de los primeros íconos del movimiento moderno en arquitectura.
La Facultad de Arquitectura e Ingeniería se compone de dos bloques articulados en forma de «L» y con tratamientos distintos tanto en planta como en elevación. El primer bloque, de gran fuerza expresiva, incorporó el primer muro cortina del país en su lado este, con grandes ventanales de piso a techo. Este volumen de tres niveles descansa sobre pilotes, siguiendo los lineamientos planteados por Le Corbusier, y crea un gran espacio abierto que marca el acceso y sirve de punto de encuentro para estudiantes y profesores. Un espacio similar fue incorporado por Caro previamente en el diseño de la Facultad de Ciencias Médicas Dr. Defilló, en la misma Ciudad Universitaria.
La estructura de hormigón y la planta libre característica de este volumen puro, enfatizan la racionalidad y modernidad del diseño. Una escalinata a todo lo ancho del lado corto del paralelepípedo marca el acceso peatonal, enfatizado por un gran muro sólido que actualmente exhibe un mural del pintor dominicano Ramón Oviedo titulado «Las Tres Razas». El acceso vehicular se resuelve hacia el lado este, marcado por una marquesina con pasarela curva.
Lamentablemente, los muros cortina de este edificio fueron destruidos en 1979 por el huracán David y posteriormente sustituidos por ventanales individuales protegidos por quiebra soles que alteran completamente la idea original del proyecto, modificando su aspecto y la trasparencia y ligereza que lo caracterizaron.
El segundo cuerpo, destinado para alojar las aulas, es mucho más macizo, y se caracteriza por sus ventanas horizontales, y su coronamiento mediante un alero perforado que enmarca el volumen en su totalidad. Amplios pasillos comunican las aulas con las escaleras, ubicadas a ambos extremos del volumen. Las aulas se caracterizan por su interior escalonado, para facilitar el desarrollo de las cátedras, y por su ventilación natural y cruzada, mediante ventanales a todo lo ancho del muro.
En una segunda etapa se añadió un tercer bloque paralelo al de las aulas y destinado a laboratorios, conectado con el resto del proyecto mediante un patio interior.














José Antonio Caro Álvarez
Avendida Independencia esquina Abraham Lincoln, Santo Domingo 1954-1955
La realización del evento de la Feria de la Paz y Confraternidad del Mundo Libre, en 1955, requirió de un extraordinario esfuerzo logístico, paralelo a la obra de construcción. Se debió acometer la ejecución de dos hoteles en las cercanías de la Feria, el Hotel Paz y el Hospital Angelita.
El Hospital Angelita fue diseñado por José Antonio Caro, asociado al Ing. Ramón Trueba. Luego de finalizado el evento de la Feria, el hotel asumió su función de hospital para Niños. Actualmente sigue su función original con un nuevo nombre: Hospital Infantil Robert Reid Cabral.
El edificio sigue el esquema horizontal del Hotel Paz y se compone de dos volúmenes, un primer bloque de un nivel, y un segundo de cuatro niveles conectados por una pasarela. Otros bloques más pequeños de un nivel se ubican en la parte trasera del lote.









José Antonio Caro Álvarez / Guillermo González Sánchez Av. Independencia esq. Av. Abraham Lincoln, Santo Domingo 1955-1956
La construcción del Hotel Paz formó parte del conjunto de obras realizadas por el Gobierno Dominicano para celebrar la Feria de la Paz y Confraternidad del Mundo Libre, con la que se conmemoraban los 25 años en el poder del dictador Rafael Leonidas Trujillo. Además de los edificios para albergar las exposiciones, se incluyó la construcción de hoteles para alojar a los miles de visitantes que se esperaban llegaran al país. El Paz, fue el primero de ellos y se ubicó fuera del perímetro de la Feria.
El Hotel Paz, hoy Hotel Hispaniola, constituye una de las grandes obras turísticas cuyo diseño estuvo a cargo del Arq. Guillermo González con la participación del Arq. José Antonio Caro, junto a otros proyectos para la Feria de la Paz, hacia finales de la era de Trujillo. Fue concebido como hotel de ciudad, sobrio en su imagen estilística, pero dentro del lenguaje racionalista imperante en la época.
El esquema lineal ubica el acceso principal hacia el extremo oeste, punto de conexión con la Feria, actual Centro de los Héroes. En el cuerpo longitudinal de escasos cinco niveles de altura, domina el volumen que alberga las habitaciones, dando el frente al borde costero, como lo hiciera el Hotel Jaragua original. La composición del cuerpo de las habitaciones en forma cuadriculada alargada, se adelanta al cuerpo de las circulaciones verticales. Este volumen vertical sobrepasa en altura al anterior y se abre con ventanales esquineros para contemplar los edificios de la Feria desde el vestíbulo de ascensores, en cada uno de los niveles de habitaciones.

Contrasta en el esquema de las terrazas, la inclusión de puertas estrechas en la conexión con las habitaciones, un elemento que está siendo modificado actualmente para aumentar el área de visibilidad desde el interior. En el nivel inferior se ubican todas las áreas sociales, con la piscina al frente, hacia la avenida. El acceso peatonal se realiza a través de una pasarela que va desde la calle hasta el vestíbulo principal, recurso que permite al peatón acceder al edificio protegido de las inclemencias del clima.



José Antonio Caro Álvarez
Av. Trujillo Valdez, Santo Domingo c. 1950
El edificio de Sederías California, ubicado en la Av. Trujillo Valdez, hoy Av. Duarte de Santo Domingo, combina una planta libre y ventanas horizontales de marcado carácter moderno, con elementos claramente clasicistas como las columnas en mármol y la cornisa del coronamiento.
Este edificio maneja el lenguaje tradicional de los locales comerciales de la ciudad colonial, recesando su primer nivel para dar más espacio a la acera, con superfices totalmente acristaladas que funcionan como vitrinas.

José Antonio Caro Álvarez c. 1958 / No realizado
Edificio de marcado carácter moderno compuesto por dos volúmenes claramente diferenciados, uno de dos niveles de marcada horizontalidad, que constituye la base del otro volumen de marcado carácter vertical. Ambos se caracterizan por sus superficies acristaladas de muros cortina de piso a techo. La inclusión de un parqueo techado en el primer nivel bajo una losa suspendida sobre pilotis confiere una gran ligereza al conjunto.

José Antonio Caro Álvarez / Manolito Baquero / Edgardo Vega Malagón c. 1958
Proyecto de gran potencia longitudinal y marcado carácter moderno. Su forma rectangular flotante contrasta con la marquesina en vuelo en forma de «T» de gran audacia. El edificio se caracteriza por una gran ligereza acentuada por el vuelo de entrada, soportado por finos pilotis, y los brise-soleil que protegen la fachada principal.
El esquema planimétrico probablemente combinaba las oficinas y despachos de redacción con la planta de producción o imprenta del periódico.
Se desconoce la fecha y localización original de este edificio, pero se estima que pudo haber sido concebido durante la época de desarrollo de los proyectos de la Feria de la Paz y Confraternidad del Mundo Libre. Esto así, pues fue para esta época que José Antonio Caro, asociado a Manuel «Manolito» Baquero y Edgardo «Gai» Vega Malagón, fundó la oficina de decoraciones. El diseño de este proyecto fue desarrollado por estos tres arquitectos asociados.

José Antonio Caro Álvarez c. 1949 / No realizado
Este anteproyecto no realizado se estima que pudo haber sido una propuesta para la capilla del Palacio Nacional. Se desconoce la fecha pero pudo haber sido posterior a la inauguración del Palacio en 1947. El proyecto, de marcado carácter neoclásico, se compone de tres volúmenes bien diferenciados articulados por un pórtico de circulación.
El volumen central consiste en una iglesia de planta centralizada al estilo renacentista italiano, con cúpula y tambor con peristilo. A su izquierda se encuentra una torre campanario, muy al estilo italiano, y a su derecha un edificio de planta rectangular cubierto de travertino trabajado con el mismo esquema de pórtico en altorrelieve y fenestraciones entre pilastras.

José Antonio Caro Álvarez
Calle Emiliano Tejera esquina Las Damas, Santo Domingo 1957-1958
Este edificio se localiza en el mismo centro de la Ciudad Colonial, en un entorno de gran fuerza histórica, actuando como intermediario entre dos edificios emblemáticos: el Palacio de los Capitanes Generales —hoy Museo de las Casas Reales— y el Alcázar de Colón. José Antonio Caro propone un edificio neutral, sin ornamento, que no compite con su entorno.
La solución consta de dos piezas: un zócalo de piedra que se adapta a la topografía y funciona como nivel semisoterrado, y una pieza superior que en fachada aparenta de un nivel pero que en realidad posee un gran hall al frente a doble altura y un mezzanine en la parte posterior.
El lenguaje formal replica el esquema inaugurado en la sucursal del Banco del Reservas de la Av. San Martín que incluye superficies cubiertas de travertino, y un ritmo aporticado de pilastras en altorrelieve. Una cornisa corona el edificio, siendo la contraparte del zócalo de piedra que hace las veces de base.





José Antonio Caro Álvarez Ciudad Universitaria, Santo Domingo c. 1950-1955
Este anteproyecto para el edificio de la rectoría o Alma Mater de la Universidad de Santo Domingo, sintetiza los criterios neoclásicos bajo los que fue formado José Antonio Caro en París, Francia, en los años treinta. Este edificio retoma elementos presentes en dos obras emblemáticas parisinas de la década de los treinta: el Palais de Chaillot en la Place du Trocadéro; y el Palais de Tokyo, hoy Museo de Arte Moderno de París, ambos erigidos para la Exposición Internacional de Arte y Tecnología de 1937.
La propuesta de Caro, al igual que las dos obras parisinas, maneja un lenguaje sobrio neoclásico, con un elemento central, dos alas laterales y una doble escalinata monumental. Asimismo, las superficies cubiertas de travertino, las grandes pilastras clásicas a doble altura y la cornisa pronunciada asemejan a este estilo neoclásico «moderno» de la década de los treinta.



José Antonio Caro Álvarez
Av. Máximo Gómez esquina calle Arístides Fiallo Cabral, Av. Independencia y calle Mahatma Gandhi, Santo Domingo 1955
La Secretaría de Estado de Educación y Bellas Artes, ocupa una parcela completa, delimitada por la Av. Máximo Gómez al frente, la calle Arístides Fiallo Cabral y la Av. Independencia en sus laterales, y la calle Mahatma Gandhi en su parte posterior. El proyecto se compone de un volumen cúbico principal de cuatro niveles, y dos volúmenes pequeños, tipo satélites, a los lados, de un solo nivel. Estos dos volúmenes secundarios alojan los depósitos de un lado y la intendencia con sus respectivas oficinas del otro.
El volumen principal, un paralelepípedo casi cuadrado, bien proporcionado y simétrico, maneja un código neoclásico en sus fachadas y composición. A nivel planimétrico se organizan los espacios en torno a un patio central abierto. Las pasarelas que rodean este núcleo de gran altura marcan la circulación del edificio, junto al bloque de circulación vertical que se ubica en el centro. La planta baja posee una gran galería o atrio de acceso y en sus laterales se situan la biblioteca, las secciones de archivo y de aprovisionamiento. En el segundo nivel se disponen las oficinas del secretario y sub-secretario, las de los inspectores
y oficiales, y del resto del personal; mientras que en el tercer nivel se emplazan las oficinas de archivo, depósito, estadísticas e impresiones, además de la secretaría técnica y la sala de consejo.
En términos formales, el volumen, de carácter severo y riguroso se sustenta en un amplio basamento y es coronado por una sobresaliente cornisa. Cuatro bloques esquineros sobresalen ligeramente permitiendo un juego adicional de luces y sombras. La fachada frontal se distingue de las demás no sólo por el énfasis del acceso, sino también por los pilares de mármol que se elevan desde el segundo hasta el cuarto nivel encima del atrio de entrada. En todas las fachadas, la repetición y uniformidad de las aperturas crean un ritmo clásico inconfundible. Como aditamentos decorativos se colocan relieves en la base y el nombre de la institución en la cornisa. Varias esculturas en relieve del artista español Benjamín Saúl enriquecen las fachadas.










José Antonio Caro Álvarez
Calle Pedro Henríquez Ureña, Gazcue, Santo Domingo 1956
Este elegante edificio para el Banco Central Dominicano fue inaugurado el 24 de octubre de 1956, durante los festejos de la Feria de la Paz y Confraternidad del Mundo Libre que celebraba los 25 años de dictadura de Trujillo. La obra fue diseñada con un estilo neoclásico, de esquema funcional y espacialidad moderna, con detalles ornamentales de espíritu art déco.
El edificio consta de tres plantas y abarca una manzana completa entre la Av. México y las calles Cordell Hull (hoy Pedro Henríquez Ureña), Nicolás de Bari (hoy Federico Henríquez y Carvajal) y Leopoldo Navarro. El lote tiene un área aproximada de 7,000 m2. Entre las facilidades de que dispone el edificio se encuentran cinco ascensores, estacionamiento interno, seis bóvedas de seguridad y numerosas oficinas.
El edificio, de carácter macizo, tiene una planta rectangular al igual que la forma del lote; su esquema replica el ensayado en obras anteriores como el Palacio de Correos, compuesto por un zócalo con jardinera adaptado a la topografía, pilastra en altorrelieve con ventanas intercaladas, y una fuerte cornisa de coronamiento. La entrada se realza con un gran portal a triple altura, enmarcado por mármol portoro, con una puerta en aluminio macizo de estilo art déco.
En el interior, un vestíbulo de triple altura con dos escaleras a ambos lados es recubierto por un gran mural de Vela Zanetti alegórico a la creación del sistema monetario y bancario del país. Los elegantes interiores del Banco, cuyas terminaciones fueron llevadas a cabo por el norteamericano F. Jerace, de la firma Bank Building Corporation, incluyen pisos de terrazzo, lámparas colgantes de estilo art déco, recubrimientos en madera, entre otros.














Constanza
1959 - 2011


José Antonio Caro Álvarez
Remodelada y ampliada por Tony, Danilo y Juan Caro Constanza
1959 - 2011
Esta casa vacacional en las montañas fue desarrollada en las inmediaciones del Hotel Nueva Suiza, construido durante la era de Trujillo como hotel del Estado. La casa maneja un estilo de montaña con techos inclinados, chimenea y materiales naturales como la piedra y la madera. En sus inicios, la casa diseñada por José Antonio Caro, consistía en una pieza simple de un volumen sencillo a dos aguas con marquesina. Más tarde, la casa ha sido ampliada y remodelada, con un último anexo realizado por Tony, Danilo y Juan Caro, mostrado en estas páginas en las fotos a color.
Cuando la invasión de Constanza, Maimón y Estero Hondo en 1959, organizada para acabar con el régimen de Trujillo, el comando militar destinado a repeler la invasión utilizó esta casa como cuartel general. La casa para entonces estaba recién finalizada, pero aún no había sido usada por la familia Caro Ginebra. El comandante a cargo llamó al arquitecto Caro para informarle que habían ocupado su casa, y así lo hicieron durante varios meses.
Constituye una de las casas más bellas de Constanza. Aún es propiedad de la familia Caro, constituyendo uno de sus patrimonios familiares más preciados.










La obra conjunta de Tony y Danilo Caro Ginebra se caracteriza por su carácter moderno, con influencias de Le Corbusier, donde prevalecen los techos planos, las superficies blancas de hormigón, una gran fluidez espacialidad y una gran racionalidad y funcionalidad en los criterios de diseño. Tony y Danilo también adoptan en sus diseños algunos elementos posteriores como los brise-soleils, el hormigón con textura, los volúmenes semi-cilíndricos y las ventanas enmarcadas que trae el movimiento brutalista y tardomoderno. Sin embargo, ciertos elementos más tradicionales como arcos rebajados y patios interiores como conectores espaciales, heredados de la arquitectura colonial de influencia española y morisca, también caracterizan algunos diseños.
Este apartado inicia con una recopilación de proyectos académicos elaborados por Tony Caro durante sus estudios en la Universidad de Cornell, y luego recoge los proyectos institucionales y residenciales más destacados de la práctica conjunta de Tony y Danilo Caro Ginebra.
• Proyectos académicos José Antonio Caro Ginebra, Universidad de Cornell
• Proyecto Biblioteca para la Universidad de Santo Domingo
• Proyecto Ayuntamiento, Montclair, N.J.
• Factoría de fundición de arte moderno, Long Island, N.Y.
• Torre de apartamentos, Nueva York, N.Y.
• Viviendas prefabricadas
• La práctica conjunta: 1971-1978
• Biblioteca Nacional
• Museo del Hombre Dominicano
• Anteproyecto concurso Banco Central
• Anteproyecto Instituto de Cardiología
• Casa de España
• Hotel Macorix, San Pedro de Macorís
• Edificio de apartamentos duplex
• Residencia Sanlley Contreras
• Residencia Contreras, Santiago
• Urbanización Los Pinos, Santo Domingo
• Residencia Danilo Caro Ginebra, Los Pinos
• Residencia José Antonio «Tony» Caro Ginebra, Los Pinos
• Residencia Federico Schad, Santo Domingo
• Residencia Thimo Pimentel
• Residencia Eladio Fernández
Tesis de grado de José Antonio Caro Ginebra, Universidad de Cornell 1964
Una Biblioteca para la Universidad de Santo Domingo fue el proyecto desarrollado por Tony Caro como tesis de grado para optar por el título de arquitecto en la Universidad de Cornell. Este modelo se constituyó en el referente o base utilizado seis años más tarde para el diseño de la Biblioteca Nacional que él mismo desarrollaría junto a Danilo Caro y Jaime Batlle.











Planta arquitectónica 1er nivel

Planta arquitectónica 2do nivel

Planta arquitectónica 3er nivel
Proyecto universitario José Antonio Caro Ginebra 5to año arquitectura, Universidad de Cornell 1959-1964
Este proyecto para el Ayuntamiento de Montclair, N.J. desarrollado por Tony Caro en su quinto año de arquitectura en Cornell, maneja un lenguaje sumamente moderno. El edificio se descompone en tres bloques bien diferenciados conectados en el primer nivel por una pasarela abierta. El juego volumétrico y los distintos tratamientos de fachada recuerdan el proyecto de la sede de la Bauhaus en Dessau, paradigma de la arquitectura moderna internacional. Igualmente apreciable es la composición, tanto planimétrica como volumétrica, de algunas obras de Alvar Aalto.





Proyecto universitario José Antonio Caro Ginebra 4to año arquitectura, Universidad de Cornell 1959-1964
Este otro proyecto universitario de Tony Caro, desarrollado en su cuarto año de carrera, consiste en una factoría en Long Island, Nueva York. Su planta maneja una distribución cuadricular y geométrica, que denota un gran racionalismo, mientras que la fachada plantea un lenguaje industrial —muy en boga entre los arquitectos modernos de la época— que combina distintas alturas, el uso del ladrillo y la horizontalidad de las superficies acristaladas.








Proyecto universitario José Antonio Caro Ginebra 5to año arquitectura, Universidad de Cornell 1959-1964
Proyecto para una torre de apartamentos que incluyen unidades de una, dos y tres habitaciones. Un primer nivel incluye las áreas de servicio, el lobby de entrada y espacios para almacenaje. Los apartamentos se desarrollan en uno o dos niveles con interesantes espacios a doble altura. El manejo de la fachada nos recuerda a Le Corbusier en la Unidad Habitacional de Marsella por el uso de balcones y brise soleil.





Proyecto universitario José Antonio Caro Ginebra 1er año arquitectura, Universidad de Cornell 1959-1964
Este proyecto de viviendas prefabricadas denota el racionalismo moderno que caracterizaba la enseñanza de la arquitectura en la Universidad de Cornell en los años cincuenta y sesenta. El proyecto desarrollado por Tony Caro en los inicios de su carrera propone tres viviendas diferentes —de una, dos y tres habitaciones— todas ellas de gran racionalismo, espacios mínimos, techos planos y planificadas para ser prefabricadas en hormigón y acero.




1971-1978




José Antonio «Tony» y Danilo Caro Ginebra, arquitectos / Jaime Batlle, construcción Calle César Nicolás Penson esquina Pedro Henríquez Ureña, Plaza de la Cultura, Santo Domingo 1971
La Biblioteca Nacional fue el primer edificio en construirse en la Plaza de la Cultura Juan Pablo Duarte, gran parque verde ubicado en la Av. Máximo Gómez entre las calles César Nicolás Penson y Pedro Henríquez Ureña, en los antiguos terrenos de la residencia del dictador Rafael Leonidas Trujillo y sus familiares. La Plaza alberga instituciones públicas y culturales tales como el Teatro Nacional (1973), el Museo de Historia Natural (1974), el Museo del Hombre Dominicano (1973) y el Museo de Arte Moderno (1976), todo ello estructurado por medio de paseos peatonales, áreas verdes, fuentes y esculturas.
La Biblioteca, diseñada por José Antonio y Danilo Caro Ginebra en el año 1971, ocupa un área de 6,000 m2, y consta de cuatro niveles con planta libre y estructura de hormigón armado. En el primer nivel se ubican los servicios administrativos, las salas para actividades culturales y los servicios; en el segundo y tercer nivel se alojan las salas de lectura y depósitos de libros; y en la cuarta planta se localiza la hemeroteca.
La Biblioteca Nacional es considerada uno de los mejores ejemplos de arquitectura tardomoderna dominicana, con una plástica de transición entre el moderno internacional de los años 50 y el brutalismo incipiente que busca ante todo mayor expresividad e individualidad utilizando los elementos de la modernidad arquitectectónica.
El edificio, de marcado carácter simétrico, sigue el esquema compositivo clásico con una clara definición de la base, formada por una galería aporticada perimetral; el cuerpo central, formado por un rítmico sistema de quiebrasoles verticales; y el coronamiento, enfatizado por un volumen macizo en voladizo. La pureza y monocromía de la composición, libre de cualquier ornamento o reminiscencia del pasado, marcan la fuerza expresiva del conjunto.












José Antonio «Tony» y Danilo Caro Ginebra, arquitectos / Jaime Batlle, construcción Museografía de José Antonio Caro Álvarez

José Antonio «Tony» y Danilo Caro Ginebra, arquitectos / Jaime Batlle, construcción Museografía de José Antonio Caro Álvarez Calle Pedro Henríquez Ureña, Plaza de la Cultura, Santo Domingo 1973
El Museo del Hombre Dominicano, diseñado por José Antonio y Danilo Caro Ginebra y construido bajo la supervisión de Jaime Batlle en 1973, está localizado en la Plaza de la Cultura, con su frente hacia la calle Pedro Henríquez Ureña. El edificio aloja la colección permanente de arqueología prehispánica nacional y exposiciones de investigaciones antropológicas del hombre dominicano. José Antonio Caro Álvarez ha sido considerado el fundador del Museo del Hombre Dominicano por su activa participación en su construcción y equipamiento, desde la concepción del proyecto hasta su rol como director general desde 1973 a 1978.
El edificio consta de tres niveles: en el primer nivel se celebran exposiciones temporales y actividades culturales; y en el segundo y tercer nivel se localizan las salas de exhibición permanente organizadas en torno a varios patios interiores. La planta cuadrangular posee un cuerpo central y cuatro bloques externos de escaleras en sus esquinas, estableciendo un contraste entre la verticalidad y solidez de estos volúmenes y la articulación que caracteriza las caras laterales.
Las fachadas se estructuran en base a pórticos que soportan, mediante ménsulas, el voladizo del último piso, creando una composición rítmica y equilibrada en cada una de las caras. Los tres niveles se manejan con lenguajes propios en el exterior: el nivel inferior maneja un lenguaje transparente y ligero de columnas y cristales recesados, mientras que el segundo nivel crea un juego expresionista de superficies lisas y rugosas y cuerpos cóncavos o rectos. El último nivel funciona como un coronamiento macizo de gran fuerza expresiva.
El pórtico de acceso principal, al norte, crea un profundo espacio de transición entre el exterior y el interior. Un espacio abierto de planta libre recibe al visitante y lo introduce al gran salón del primer nivel, donde se destaca la gran altura y la monumentalidad del espacio interior. En este espacio, las columnas vistas, el artesonado del techo y la combinación de superficies lisas y rugosas de hormigón visto confieren un aire expresionista, casi brutalista, al interior.










José Antonio «Tony» y Danilo Caro Ginebra 1972-1973 / No realizado
La propuesta de los Caro para el concurso del Banco Central se compone —similar a la propuesta ganadora— de dos bloques bien diferenciados: un primer bloque vertical de 13 niveles de altura, y un segundo bloque de dos niveles. Ambos bloques se ubican en una plataforma sobreelevada del nivel del terreno.


El bloque vertical se maneja con sus fachadas laterales totalmente macizas y sus fachadas frontal y posterior caracterizadas por la combinación de superficies acristaladas en los primeros niveles y una retícula de brise-soleils en los siguientes. El segundo bloque se caracteriza por sus muros inclinados a manera de talud.


José Antonio «Tony» y Danilo Caro Ginebra / Federico Fondeur, encargado del proyecto c. 1976 / No realizado
La propuesta de los Caro para el concurso del Instituto de Cardiología se caracteriza por su gran contextualización. Localizado en un terreno inclinado, el edificio se adapta a la topografía y parece salir naturalmente de la tierra. Sus muros inclinados, a manera de talud, junto a las terrazas decrecientes con jardinerías, enraizan el edificio al terreno, en un gesto claramente expresionista.





José Antonio «Tony» y Danilo Caro Ginebra Av. George Washington, Santo Domingo c. 1973
La Casa de España es un edificio inspirado en la tradición de la arquitectura hispánica, concebido como una arquitectura organizada en torno a patios interiores y espacios vacíos. Uno de los patios contiene una fuente central, totalmente rodeado de arcadas, y a su alrededor salones e instalaciones administrativas. Por otro lado, el gran salón de fiesta consiste en un amplio espacio cuadrado totalmente aporticado con un techo a doble altura.
La Casa de España incorpora en su diseño el tradicional arco rebajado, de origen hispánico y morisco, que seguirá protagonizando obras posteriores de los Caro, como
las residencias de Tony y Danilo en Los Pinos, Arroyo Hondo y en el Hotel Macorix, en San Pedro de Macorís. Asimismo, la arquitectura de la Casa de España retoma los lineamientos modernos de la arquitectura blanca, lecorbusiana, imperante en la Universidad de Cornell en los años sesenta.








José Antonio «Tony» y Danilo Caro Ginebra
San Pedro de Macorís
c. 1975
Este hotel está localizado en el malecón de la ciudad de San Pedro de Macorís con vistas al mar. Maneja un esquema longitudinal característico de los hoteles de la época, cuya solución formal se caracteriza por los arcos rebajados también utilizados por los Caro en edificaciones como la Casa de España. El edificio es un volumen sencillo, donde la repetición modular crea un ritmo apacible sólo interrumpido por la marquesina y el bloque macizo del área del restaurante.
Este hotel fue comisionado por el presidente Balaguer en la década de los setenta, junto a otros proyectos de carácter turístico impulsados en la época, entre ellos los de la provincia de Samaná. La construcción del hotel estuvo a cargo de Milton Ginebra, uno de los más importantes ingenieros contratistas que trabajó junto a los Caro.




José Antonio «Tony» y Danilo Caro Ginebra Calle Tetelo Vargas, Santo Domingo 1968-1969
Esta residencia constituye el primer diseño de José Antonio Caro a su regreso al país luego de obtener el título de arquitecto de la Universidad de Cornell. La arquitectura de esta casa sintetiza las influencias modernas y lecorbusianas latentes en la época y, sobre todo, en la enseñanza de la arquitectura en la Universidad de Cornell.
La residencia, de dos niveles, recuerda la famosa Casa Citrohan de Le Corbusier, con su volumen rectangular puro y blanco, su doble altura con amplias superficies acristaladas, y su estética brutalista, industrial. A estos detalles tendríamos que añadir las ventanas enmarcadas, los volúmenes semicilíndricos y los techos inclinados —recurso común en la época para lograr una mejor iluminación de los espacios interiores— que caracterizarán gran parte de la obra posterior de Tony Caro.








José Antonio «Tony» y Danilo Caro Ginebra
Calle Los Pinos, Santo Domingo
1970
Este edificio de apartamentos o residencias duplex constituye una de las primeras obras de Tony Caro a su llegada al país luego de concluir sus estudios universitarios. Consiste en un edificio residencial de casas apareadas del tipo duplex, aunque en realidad cada residencia consta de tres niveles. Este proyecto incluye los mismos elementos ya utilizados en la residencia Sanlley Contreras, típicos de la tradición de arquitectura blanca lecorbusiana enseñados en Cornell; entre ellos las ventanas enmarcadas, los techos planos y los elementos semicirculares.
Es también característico del diseño planimétrico la transparencia espacial y continuidad visual entre el acceso a la residencia y el patio trasero; recurso que retomará Juan Caro en muchos de sus diseños, en especial en Palermo Residence, un complejo de casas duplex similar a este proyecto.
En estas residencias vivieron Tony y Danilo Caro Ginebra, hasta construir sus residencias en la urbanización Los Pinos de Arroyo Hondo en los años ochenta.




José Antonio «Tony» y Danilo Caro Ginebra
Esta residencia para la familia Contreras en la ciudad de Santiago, se caracteriza por su planta en forma de «U» que distribuye las distintas áreas alrededor de un patio central abierto. Las tres alas de la herradura alojan distintas áreas: la primera, las áreas sociales; la segunda, las áreas de servicio; y la tercera, las tres habitaciones.
A nivel volumétrico, la horizontalidad y los muros macizos imperan en esta residencia, siendo su elemento más característico los tres techos inclinados que cubren las habitaciones.















Pablo Mella / José Antonio «Tony» y Danilo Caro Ginebra Arroyo Hondo, Santo Domingo c. 1980
Los Pinos es una de las primeras urbanizaciones privadas en la periferia de Santo Domingo que explora la adaptación natural y orgánica a la topografía como leitmotif del diseño y concepción del proyecto. El diseño estuvo a cargo de Pablo Mella, junto a Tony y Danilo Caro.
Esta urbanización, para una población de alto nivel adquisitivo, está ubicada en un terreno de densa vegetación y se caracteriza por el trazado orgánico de su vialidad, totalmente adaptado a la topografía. Los Pinos está diseñada con un sentido de privacidad inherente a este tipo de ensanches pero articulada de manera magistral al tejido de la ciudad.
La urbanización de Los Pinos fue desarrollada a inicios de los años ochenta. Tony y Danilo, junto a Jaime Batlle construyen sus residencias en este nuevo sector. De igual modo, diseñan muchas otras residencias, entre ellas la de Thimo Pimentel y la de Eladio y Maité Fernández.

Zonificación, vialidad, lotificación y topografía













































El proyecto turístico de Casa de Campo, en la provincia de La Romana, inicia en 1973 cuando la compañía Central Romana / Gulf & Western decide invertir en el desarrollo de bienes raíces vacacionales. El hotel de Casa Campo es diseñado por el norteamericano William Cox, y en seguida el área atrae la atención de un turismo de alto poder adquisitivo. Tony y Danilo Caro jugarán un papel pivotal en el desarrollo del complejo, especialmente en la construcción de numerosas villas y complejos residenciales de magnitud. Sus diseños siguen los lineamientos normativos generales del conjunto, caracterizados por techumbres a varias aguas cubiertas de tejas, espacios amplios y abiertos, y la predominancia de la vegetación, la naturaleza y las impresionantes vistas en todas las obras. La ciudad de los artistas, Altos de Chavón, es otro proyecto relevante de los Caro en el área; toda una empresa urbanística que se ha convertido en destino turístico esencial de la zona.
Tony y Danilo Caro también desarrollan importantes complejos turísticos como el Hotel Hamaca y el Hotel Canoa que se caracterizan por la inclusión de bloques de habitaciones y pabellones recreativos comunicados por espacios fluidos y abiertos.
• Altos de Chavón
• Siete villas de golf
• Apartamentos Playa Minitas
• Apartamentos Vistas de Altos
• Villa Avelot
• Villa Danilo Caro Ginebra
• Villa Porcella
• Centro de Convenciones Hotel Casa de Campo
• Villa Barceló
• Villa Barletta
• Proyecto doce Villas Caralva
• Comedor en el agua, Villa La Favorita
• Villa Wyman
• Villa Mansur Ojjeh
• Villa Caro Gómez «Casa del Sol»
• Villa Rodríguez Villacaña
• Estadio de Baseball, La Romana
• Hotel Hamaca, Boca Chica
• Hotel Canoa, Bayahibe

José Antonio «Tony» y Danilo Caro Ginebra, planificación y diseño original / Roberto Coppa, terminación Casa de Campo, La Romana 1978-1980
El complejo de Casa de Campo, iniciado en 1974 como una inversión orientada a los amantes del golf, pronto atrae un turismo de alto poder adquisitivo, desarrollando el negocio inmobiliario de villas. Dentro del territorio de Casa de Campo fue construido Altos de Chavón, una «Ciudad de Artistas» concebida por Charles Bluhdorn, empresario proveniente de Viena, Austria, que se establece en la República Dominicana e invierte en el desarrollo turístico dominicano, desarrollando el proyecto de Casa de Campo.
Bluhdorn concibe la idea de una ciudad de artistas para regalar al pueblo dominicano, y escoge un impresionante lote en un acantilado sobre el río Chavón. Bluhdorn concibe un proyecto similar al pueblo francés Saint-Paul-de-Vence, en la montaña al sur de Francia, cerca de Cannes. Para el proyecto, Bluhdorn contrata a José Antonio «Tony» Caro, quien
desarrolla toda la planificación original, incluyendo la iglesia de San Estanislao de Cracovia, la escuela, los estudios, restaurantes, galerías, etc. El proyecto replica un pueblo medieval mediterráneo del siglo XVI, con calles estrechas y zigzagueantes, poblada de restaurantes y locales artesanales.
Más tarde el diseñador cinematográfico italiano Roberto Coppa se incorpora al equipo y es contratado para darle terminación al proyecto, añadiendo superficies empedradas, y variados detalles decorativos. El arquitecto Nano Lebrón diseña el anfiteatro inspirado en los teatros griegos.







1978-1982





1978-1982









1978-1982


Punta
1978-1982


1978-1982














1978-1982





1978-1982







1978-1982







José Antonio «Tony» y Danilo Caro Ginebra Juan Dolio, Boca Chica 1988-1989
Desde la década de los setenta, el gobierno dominicano encabezado por el Dr. Joaquín Balaguer tuvo el interés de rescatar las intalaciones originales del Hotel Hamaca, edificio de exquisita factura moderna diseñado por Guillermo González en 1950, y que para el momento estaba en total abandono.
El primer anteproyecto para rescatar el hotel fue desarrollado por el arquitecto Polín Espaillat, desde Infratur, y aunque no fue realizado, su propuesta ya contemplaba la permanencia del bloque original. Los Caro obtienen en los ochenta el proyecto de remodelación y ampliación del hotel, con la condición explícita de mantener la estructura vigente, directriz que marcó toda la esencia del proyecto.
La adición diseñada por los Caro para el Hotel Hamaca respeta el volumen original de Guillermo González y construye un bloque en forma de herradura, a manera de abrazo,
con un patio interior en el centro. Los bloques que dan a la playa y hacen contacto con el edificio de González se diseñan con una fachada aterrazada decreciente, para lograr una mejor transición entre el volumen original de tres niveles y los nuevos de siete.
El proyecto ha incluido sucesivas ampliaciones, también acometidas por los Caro. Una de ellas fue la extensión hacia oeste, con un ala de habitaciones desarrollada de manera longitudinal a la playa. Más tarde se realizaron otros bloques y ampliaciones al norte de la carretera de acceso. El proyecto incluyó también varios volúmenes abiertos en el área de la playa, destinados para áreas sociales y de restaurantes tratados con techos inclinados recubiertos de canas. Estos volúmenes se insertan en el mar a manera de terrazas suspendidas sobre el agua, recordando el gesto original del edificio de González.




José Antonio «Tony» y Danilo Caro Ginebra 1998-1999
El Hotel Canoa, localizado en la playa de Bayahibe, a pocos minutos de la ciudad capital, sigue el esquema desarrollado a partir del boom del turismo dominicano en los años ochenta. A partir de esta década se inicia la construcción masiva de hoteles, con grandes inversiones en el sector turístico. En su mayoría, los hoteles siguen un esquema similar de distribución de áreas, que se divide en tres grandes zonas. La primera es el área de acceso donde se ubican, no solamente la marquesina, el lobby, el vestíbulo y los comercios, sino también las oficinas administrativas y los bloques de servicio, entre ellos cocinas, lavanderías y mantenimiento. A continuación se distribuyen de manera orgánica en el terreno los bloques habitacionales, que en este caso adoptan plantas cruciformes o rectangulares, y se comunican mediante áreas verdes de destacado trabajo paisajístico. Por último, adyacente a la playa, se ubica el área de piscina, con una serie de edificaciones abiertas con techos inclinados y cubiertos de tejas que albergan restaurantes, bares y áreas sociales.
El diseño combina pues elementos de arquitectura moderna, como los bloques de habitaciones, con techos planos y distribución funcional y racional; y elementos de clara herencia indígena con techos inclinados o cónicos cubiertos de tejas, con estructuras de madera y completamente abiertos, como los bohíos taínos.
En años posteriores la administración del hotel amplió su capacidad habitacional añadiendo dos largas barras longitudinales de habitaciones en los linderos del lote que no fueron contemplados en el diseño original realizado por los Caro.




Juan Cristóbal Caro Gómez se incorpora a la oficina de Caralva en 1997, luego de graduarse de arquitecto del Wentworth Institute of Technology. Durante su ejercicio profesional ha asumido numerosos proyectos de los cuales incluimos una selección organizada según sus tipologías funcionales.
Iniciamos con los proyectos institucionales más importantes —usualmente ganados por concursos— que asume junto a su socio Gustavo Luis Moré. Estos proyectos se caracterizan por su imagen sobria, moderna y, sobre todo, por su cuidadosa inserción en el contexto inmediato. A continuación incluimos una selección de proyectos comerciales, caracterizados por espacios diáfanos, de gran funcionalidad, donde se toma en cuenta la imagen corporativa de cada empresa como principio rector del diseño. Culminamos con los más destacados proyectos residenciales asumidos por Juan Caro, donde se combinan residencias individuales, torres de apartamentos o villas vacacionales en Casa de Campo, todas ellas de líneas limpias, volúmenes puros y espacios diáfanos.
• Red de sucursales Bankágil BHD
• Suprema Corte de Justicia
• Edificio de parqueos Suprema Corte de Justicia
• Remodelación Biblioteca Nacional Pedro Henríquez Ureña
• Centro comunitario San Francisco de Macorís
• Centro comunitario Juancho Pedernales
• California Closets
• Centro de ventas Roko Ki
• El Catador
• Edificio Novotempo, Punta Cana
• Banco Mundial, Novocentro
• Torrelli
• Palermo Residences, Los Cacicazgos
• Residencia Schad Fernández
• Residencia Haché Caro
• Villa Punta Minitas 32
• Remodelación Villa Las Lomas 11
• Villa Graciela y Munir Dauhajre Caro
Gustavo Luis Moré / Lorena Tezanos
Gustavo L. Moré: Juan, hemos hablado con Jaime, con Danilo y con tu papá, y la verdad es que la cercanía entre nosotros me había hecho asumir una serie de conceptos, que tú y yo hemos conversado a lo largo del tiempo… pero creo que vale la pena dejar un registro claro y confirmar datos documentalmente. ¿Cómo sentiste tu vocación por la arquitectura? ¿Hubo algún momento en el cual tú te dieras cuenta de que te gustaba o de que tú serías arquitecto? ¿O fue digamos un elemento de inercia que te trajo la vinculación familiar con tu abuelo, con tu papá, con tu tío? ¿Cómo fue eso?
Juan Cristóbal Caro: Mira, había algo de inercia, como tú dices, porque nosotros, bien o mal, nos sentíamos todos, los que vivíamos por aquí (Calle Los Pinos), identificados con la oficina, aunque fuese para venir a hacer maldades (risas) … Cuando éramos niños veníamos y le robábamos los borradores a los dibujantes, y los repuestos de la borra eléctrica, que eran como unos palitos…. y disfrutábamos mucho meternos en la oficina y empezar a hacer maldades. Nuestras casas estaban muy cerca de la oficina y siempre veíamos a mi abuelo, a mi papá, a mi tío y a Jaime trabajar, y esa vinculación la teníamos muy cercana… Yo no te puedo decir que de ahí nació mi vocación, porque yo, para serte sincero, nunca me sentí inclinado hacia la carrera, no era una vocación que yo sentía tan inmediata, a pesar de que sí veía lo que se hacía y tengo todos esos recuerdos… Pero no fue hasta mi último semestre del colegio en el cual me decidí por la carrera de arquitectura. Y después de tomar la decisión, como que sentí que todo estaba claro, que por ahí era que iba la cosa. De hecho, me interesó la carrera que hice, en la Universidad de Wentworth Institute of Technology, en Boston, porque yo siempre tuve el deseo de mezclar un poco la arquitectura con la construcción. Y ese programa tenía las dos, manejaba un primer bachelor de ingeniería, muy orientado en los dos primeros años al cálculo y las estructuras, y después se ramificaba hacia la arquitectura. Y me pareció interesante por eso, porque podía aprender de ambas disciplinas en un breve tiempo. Que en realidad era un poco lo que veía aquí en la oficina cuando iba creciendo, mi visión era que la empresa hacía más construcción que diseño, a pesar de que identificaba que mi abuelo, mi papá y mi tío eran arquitectos. Tengo recuerdos en los que la oficina trabajaba en el Banco Central y otras obras, y los cuentos eran ésos… no necesariamente de la intervención arquitectónica sino de la intervención como contratista general. Entonces me quedé siempre con ese deseo de que podía hacer tanto la una como la otra.
GM: Con respecto a la manera en la cual ustedes, los nietos de don José Antonio, hijos de Tony y Danilo, se fueron ubicando en las diferentes labores vinculadas
a los negocios de la familia, ¿hubo algún acuerdo mediante el cual tú te harías cargo de Caralva, eventualmente, o fue algo casual que fue ocurriendo?
JCC: Yo creo que ellos nos brindaron a todos la libertad de que eligiéramos. En el caso mío, fui el único, entre todos los nietos, que al final, se decidió por la arquitectura. Jaime y Eduardo, hijos de Jaime, se fueron por la ingeniería civil, y también siguieron el proceso de continuidad. Por el lado de Danilo, Francisco se inclinó hacia la ingeniería industrial. Pero no fue en ningún momento algo impuesto, cada quien fue tomando su camino y sus decisiones. Y al final, si yo bien me eduqué en la arquitectura y parecería que iba a caer automáticamente en Caralva (como fue), no necesariamente yo lo veía así cuando me gradué del colegio y me decidí por arquitectura. Quizás mi papá sí me veía en Caralva, pero yo no.
GM: Durante tus estudios, ¿venías frecuentemente a Santo Domingo, no? ¿Venías a la empresa? ¿Cómo la percibías? ¿Qué obras o proyectos se estaban manejando?
JCC: Al principio, uno terminaba agotado de los estudios y en el verano lo que quedaba era más bien un mes de descanso, pero hacia el final de mi carrera, ya la universidad me exigía ciertas prácticas y ciertos horarios que cumplir, y entonces me fui involucrando en algunos proyectos que se estaban haciendo en la oficina. Y recuerdo que se estaba terminando una etapa del Hotel Hamaca y yo me involucré por un mes o más, que era el tiempo que estaba aquí de vacaciones. Me encargaron de una zona, no sé… creo que el área de la cancha de tenis. Si por ejemplo estaban trabajando en terminaciones y acabados, entonces yo me encargaba de un piso… y creo que eso me tocó por dos años consecutivos, porque resulta que al año siguiente se amplió el hotel Hamaca y me encargué de hacer otra fase. Y eso fue muy útil.
GM: Y actualmente, ¿cómo te defines dentro de la empresa? ¿Qué rol has asumido ante la realidad de que Tony y Danilo tienen un papel marginal, si bien presente, pero no están en el día a día?
JCC: Bueno, yo me veo, vamos a decir, como un director de operaciones. Yo soy el que estoy en el día a día. Trato como quiera de consultar casi todos los temas trascendentales, temas grandes. Porque ya lo que es la operación del día a día, decisiones tan sencillas, como si un elevador va aquí o allá, pues obviamente las manejo yo; pero cuando son proyectos de envergadura, donde se necesita siempre escuchar la voz de la experiencia, trato de consultarlo; porque, como

dicen, la experiencia no se improvisa, y el consejo de ellos siempre es bueno. Siempre los tengo a ellos detrás, es como una sombra que tengo y más que de ellos dos, a veces también de mi abuelo… siento que tengo ese peso ahí arriba, que debo rendirle cuentas, rendirle en el sentido de quedar yo bien, para que todo quede bien.
GM: Sí, el deber de continuar una tradición de mérito, de dignidad que has heredado.
JCC: Exactamente. Pero yo te diría que el 95% se maneja en el día a día de lo que yo hago aquí.
GM: Dentro del tiempo que tienes trabajando, tú y yo hemos hecho proyectos juntos, tienes obras con otras personas, en tu oficina, lógicamente, has seguido haciendo tu trabajo. ¿Cómo ves tu obra? Imaginémonos que empiezas a trabajar y la empresa Ingeniería y Arquitectura no existe, ni tu abuelo… A partir del momento en que empiezas a hacer obras, ¿cómo evaluarías tu trabajo, si fueras a verlo en términos críticos? ¿Qué te ha interesado? ¿Qué has explorado?
JCC: Bueno, a mí siempre, desde la Universidad, me enseñaron a ser muy práctico, con el tema de que lo que tú diseñas tenga una racionalidad casi inmediata, que sea real y ejecutable. Y me educaron en ese sentido… y bueno, a veces miro hacia atrás, y digo: «¿Pero por qué no me enseñaron a ser más utópico?» ¡Diseñar algo poético! Pero siento que fui educado en ese racionalismo, sobre las premisas de que si vas a hacer que un vuelo funcione, pues obviamente primero debes calcular el vuelo a ver si es verdad que funciona, no empezar con una diseño irreal y después darte cuenta de que no funciona. Entonces ¿qué busco yo o qué buscaba yo desde aquel entonces y qué es lo que yo entiendo que busco hoy día cada vez que diseño algo? Pues eso mismo, un poco que las cosas se ejecuten, que si yo me siento con un cliente, éste se sienta bien porque le estoy ofreciendo algo que no es descabellado del todo. Creo que hasta ahora me ha funcionado. Obviamente, en la arquitectura pasa que a veces uno hace cinco proyectos y al final se te da sólo uno … pero en el caso de esta oficina hemos tratado de que por lo menos todo lo que pasa por nuestras manos, a la larga, pues se termina ejecutando, se termina haciendo algo, aunque fuese una parte del proyecto… Entonces yo creo que detrás de todo eso está esa racionalidad de hacer proyectos factibles, racionales. Y eso me viene desde la universidad y es lo que yo he tratado de inculcar a los muchachos que pasan por esta oficina; trato de involucrarlos, no sólo en el diseño del taller, sino también en la práctica de la obra. Tratar de que ellos vean que si realmente uno se concentra logra sacar detalles que son ejecutables.


GM: En términos de tu experiencia como arquitecto diseñador, ¿has hecho obra pública, cívica, comercial, turística-habitacional, interiores? ¿Cuál es tu preferencia? ¿Cuáles han sido de gran estímulo?
JCC: Yo creo que ellas van llegando en su momento, no te puedo decir que hay una que me dé más satisfacción que otra porque al final yo veo los proyectos y los trabajos como algo que me toca hacer. Y simplemente cambio el sombrero y trato de hacer lo mejor que pueda con lo que venga. Pensé en un momento que el interiorismo no me podía agradar, pero me ha tocado hacerlo y cuando me tocó pues me fui involucrando e involucrando, hasta el punto que disfruté muchísimo la experiencia. Uno se da cuenta de que si te buscaron para eso, pues entonces hay que hacerlo y ejecutarlo. Es algo en lo que uno usualmente no se involucra, pero si llega, pues uno le busca la vuelta…
GM: Bueno, y el mismo caso de los Bankágiles que fue uno de tus primeros proyectos y fue fundamentalmente de interiores.
JCC: Exactamente. Yo simplemente me meto de lleno en cualquier tipo de proyecto, y si me toca hacerlo, pues trataré siempre de hacer lo mejor. El tema de las obras públicas ha sido interesante. En nuestro país la obra pública es una antítesis de todo lo que uno pudiera entender y ver, sobre todo para uno que está acostumbrado a manejarse en ámbitos comerciales y privados. Pero sin embargo, los proyectos que hicimos juntos, de alguna forma u otra, fueron exitosos, y se llevaron a cabo. Y lo más satisfactorio fue que independientemente de que hayan faltado algunos detalles, yo te diría que las obras que nosotros diseñamos al final han salido en un 90-95% fieles a lo que fue diseñado. Usualmente, muchos colegas con los que hemos colaborado, te terminan contando que sus proyectos se lo desbarataron… Yo creo que al final de cuentas la experiencia nuestra ha sido buena en ese sentido. Y como te digo, yo que pensé que quizás eran situaciones difíciles de manejar, se llevaron a cabo muy bien, y la relación con el gobierno y los clientes ha sido exitosa.
GM: Es cierto. Me gustaría saber cómo se siente, Juan Caro, arquitecto, en la escena actual dominicana, frente a otros arquitectos de su generación. O sea, ¿cómo te sientes, no en términos de competencia, sino en términos de lo que a ti te gustaría hacer como obra con respecto a lo que otros hacen? ¿En qué área te gustaría participar? ¿En qué área crees que puedes hacer algo mejor?
JCC: Mira, yo creo que en general, en nuestro país, deberíamos volver un poco a lo que empezó siendo la arquitectura en la época de los inicios del modernismo. Yo siento que esos arquitectos de aquella época entendían mejor el lenguaje del país, del entorno, del clima. Hoy día noto que los arquitectos están siendo


bombardeados por materiales que existen, materiales que vienen de Europa, y queremos adaptarlos todos, simplemente porque están ahí, sin necesariamente entender si son adecuados, o si no lo son. Entonces hoy día se está viendo una simbiosis de toda esta mezcla, sin prestar atención a la arquitectura funcional. Por eso tenemos obras que parecerían que están localizadas en Alemania, España, Bélgica, o en cualquier país nórdico, cuando aquí vivimos en el trópico y la arquitectura debería ser tropical. Y entonces eso, entiendo yo, desvirtúa un poco, o por lo menos no deja florecer lo que debería ser quizás un arquitecto tropical, de esta zona. Y no es que lo esté criticando, simplemente lo veo en el día a día, y me gustaría, más bien, que todos nos tornáramos más hacia una arquitectura más adaptada a nuestras realidades y a nuestro clima. Si es en el área desértica de Baní, pues adaptada para esa zona; si es en la zona norte, donde llueve más, pues adaptada a esa área. No podemos, por ejemplo, coger lo que diseñamos aquí y llevarlo a Samaná, donde llueve 200 días al año. Ahí hay que hacerlo de otra manera, o manejarlo de otra manera. Entonces yo creo que lo que me gustaría ver es eso, que nos adaptemos más a esas realidades que son las que enfrentamos; y a veces son peticiones incluso del cliente, y habría que hacerle ver o entender que podemos hacer transformaciones a lo que ellos quieren para lograr algo funcional también.
GM: ¿Te gustaría trabajar el tema urbano? Te he visto poco trabajando el tema urbano… ¿Porque no se te ha presentado la oportunidad o porque no te interesa? JCC: Yo creo que no se me ha presentado la oportunidad… a pesar de que me mostré muy interesado cuando un amigo se me acercó hace unos años con un proyecto urbano. Este es un amigo que ni siquiera es arquitecto, más bien es una persona curiosa; y se me acercó preguntándome si yo estaría interesado en hacer propuestas para mejorar los servicios, los sistemas, el tráfico… y más que todo tenía que ver con señalizaciones. Cuando me lo planteó me mostré muy interesado, pero le dije: «Mira, no pensemos en temas urbanos donde debemos hacer una ciudad completa. ¿Tú sabes qué? Vamos a tomar la Lincoln, de aquí a aquí, y hagamos un prototipo que tenga que ver con la mejora de esta zona —unos 200 m o algo así— y que ése sea el prototipo para esa idea que tú estás planteando». O sea, debíamos ser realistas. Me mostré interesado cuando él me lo planteó, y me vi participando junto a él en esa mejora, pero no quería, como te decía, sentirme desinflado por plantear un proyecto mega urbano, más bien, le propuse ubicar tres o cuatro sitios (Ciudad Colonial, Abraham Lincoln…) y diseñar 200 metros lineales en cada uno, de manera que esa idea irradiase una

nueva manera tratar la ciudad y a él le pareció bastante interesante pero nunca trascendió. Pensábamos hacer algo donde se involucrara a varias instituciones para que funcionara, como el Ayuntamiento, Obras Públicas… Pero todo esto se quedó en el aire. Así que creo que quizás no se me ha presentado la oportunidad, o más aún en el día a día de lo que hago —siempre estoy involucrado en una construcción, una obra, un diseño— no he procurado participar en eventos que puedan abrir puertas para este tipo de proyectos.
GM: ¿Cómo ves la empresa Caralva del futuro?
JCC: Me gustaría verla automatizada (institucionalizada), sin que exista una figura como Juan Caro, Tony Caro o Danilo Caro. Me gustaría que se traspasasen esos valores tradicionales —que ya yo me siento que estoy tratando de asumir— hacia los otros profesionales, y que no sea bajo una instrucción de que «mira, hay que hacerlo de esta manera», sino que todo el mundo se sienta identificado con ese racionalismo, de hacer las cosas bien, para que trasciendan… Yo creo que todas las obras que se han hecho en esta oficina han podido trascender, tratamos de trabajar en proyectos que no sean efímeros… Tú sales a la calle y los proyectos de Caralva se sienten sólidos, permanentes, todavía al día de hoy, muchos de ellos. Entonces se trata quizás, no de pasar un mando a una persona, sino de que todos los que trabajen para esta oficina tengan más o menos esa misma filosofía, y que sea algo más institucionalizado. Ya han pasado por nuestras oficinas generaciones de arquitectos e ingenieros que salen con cierta mística, y que hoy en día son profesionales independientes, arquitectos e ingenieros que tienen sus carreras, y creo que al final se sienten muy agradecidos e identificados por lo que vivieron en esta empresa. Estoy seguro de que poco a poco eso que te estoy diciendo acerca del racionalismo, trascendencia, mística, le ha tocado a ellos revivirlo en sus obras y en su práctica profesional, así que podría afirmar que esa automatización está funcionando.

Juan Cristóbal Caro / Gustavo Luis Moré Santo Domingo y Santiago
1996-1997
En el año 1996, el Consejo de Directores del Banco BHD (originalmente Banco Hipotecario Dominicano) llama a un concurso, por invitación, para diseñar una red de sucursales, de pequeña factura y eficiente manejo, que permitiera desarrollar un proyecto de ampliación de sus servicios de banca personalizada. Se estimó necesario dotar a estas instalaciones de un carácter de gran modernidad que reflejara a través del diseño las exigencias de rapidez, eficacia y trato personalizado con las que se operarían estos centros de servicio. Los proyectos serían llevados a cabo en locaciones existentes de no más de 50 m2 a ser remodeladas y adaptadas.
La propuesta ganadora apeló a las ideas de ligereza, movimiento, transparencia, modernidad y agresividad, que, paradójicamente, no obedecen a los esquemas tradicionales con los que suelen darse a conocer las instituciones bancarias. Lo novedoso de la propuesta fue entendido por el insólito jurado, quien supo leer las posibilidades de ofrecer al público instalaciones con una imagen refrescante, joven, elegante y de gran calidad en los acabados, a la vez que cumpliera a cabalidad con todos los requerimientos operativos y de la más alta seguridad.
Se desarrolló un prototipo que pudiera ser aplicado en la mayor variedad de opciones geométricas. El principio geométrico de las plantas se basa en la definición de una línea diagonal imaginaria que organiza la distribución delimitando el área del público y la del personal. Se desarrolló todo el sistema de mobiliarios y equipos, y fueron estudiados aspectos tales como la gráfica, las obras de arte y la relación de cada sucursal con los estacionamientos y las áreas externas. Las obras de arte, comisionadas a artistas de renombre para cada espacio, fueron entendidas y tratadas como ventanas de color más que como objetos de arte en sí mismos. Una vez aprobado el prototipo se procedió a acometer el diseño y la construcción de un primer grupo de 8 unidades, a un ritmo de 2 sucursales cada 2 meses.
Estos elementos arquitectónicos, genéricos y pequeños, transparentes y ligeros, claros y luminosos, se caracterizan por la no ortogonalidad en el diseño: plafond mineral y piso de gres blanco y negro dispuestos en forma trabada; así como luminarias contenidas en rayos de acero esmaltados color naranja a manera de perfil estadístico o relámpago de luz que atraviesa y articula el espacio. Otros materiales utilizados fueron el arce ( maple ), el vidrio esmerilado, el aluminio anodizado, acero inoxidable y el hormigón visto de las paredes.












Proyecto
Red de Sucursales Bankágil BHD
Santo Domingo y Santiago de los Caballeros Arquitectos
Gustavo Luis Moré
Juan Cristóbal Caro
Empresa
Moré Arquitectos
Arquitecto supervisor
Rafael de Peña
Enlace institucional
Sra. Luisa Bergés de Medina
Sra. Diamela Genao de Cabral
Sr. Iñaki Echezarreta, BHD
Colaborador
José Fersobe
Artistas en pintura mural
José Miura
Fernando Valera
Pedro Pablo Álvarez
Contratista en ebanistería
Ing. Eduardo Palacios
Sr. Patricio Rosales
Palacios Comercial
Instalaciones eléctricas
Ing. Mario Almánzar Instalaciones mecánicas
Ing. Manuel Pérez Vázquez
Ingeniería Electromecánica
Contratistas vidrieras
Talleres Cima
Ing. Carlos Pérez
Eduardo Arzeno
Contratistas acero
Sr. José Manuel Cabrera, TAHECA
Ing. Antonio Hernández, La Metalúrgica Mobiliario institucional
Hermann Miller, Antonio P. Haché y Cía. Gráficos
Publicitaria Cumbre
2 Taller Creativo
Moré Arquitectos


Juan Cristóbal Caro / Gustavo Luis Moré Av. Jiménez Moya, Centro de los Héroes, Santo Domingo 1997-2005
La idea de la forma pura, del elemento «claro»: el cuadrado, pieza intrínsecamente perfecta, dotada de las más ricas propiedades de acoplamiento, multiplicación, división, articulación y aprovechamiento, se asumió como silueta periférica y como célula interna; es el borde y es el centro; es el fundamento del «parti» general.
Toda la edificiación se inscribe en un cuadrado, originalmente dividido en 4 cuadrantes. La función propuso tres instituciones, el programa confirma la proporción de volúmenes entre ellas. Esta proporción define una relación de espacios de 1:2:3; dicho de otra forma: la Suprema exigió tres veces más espacio que la Procuraduría (PGR); y ésta, dos veces más que las oficinas de la Escuela Nacional de la Magistratura (ENM).
Esta realidad definió en gran medida la solución propuesta: un diagrama de nueve cuadrados grandes, interconectados jerárquicamente por otros medianos, creando una conveniente malla de espacios principales y de espacios secundarios (de servicios, circulación, etc.); esta malla debió responder a exigencias tan distantes como a un eficiente estacionamiento de vehículos de motor, y a los más nobles espacios del complejo.
El giro de 20 grados que accidenta principalmente a algunos elementos de los bloques de circulación particularmente estudiados, resulta de la apertura del boulevard de la Feria hacia el malecón. Por una coincidencia feliz, el centro del cuadrado que organiza la composición general, una vez girado los 20 grados señalados, dirige un eje de conexión virtual hacia el puro centro del estanque de la Feria.
Así como la geometría planimétrica respondió a una lectura pura y precisa, altimétricamente los resultados fueron similares. Sólo un estudio minucioso y lento de la sección del conjunto pudo revelar las posibilidades de cumplir a cabalidad con el programa dentro del lote asignado y enriquecer al mismo tiempo la calidad del espacio y de la experiencia cotidiana misma. Cada bloque recibió un tratamiento tridimensional agudo, adaptándose con fidelidad y ligereza a la naturaleza de un espacio fluido, transformado de espacio urbano a espacio humano. Los dominios públicos y privados, hasta la más recluida exclusa de seguridad del proyecto, obedecen a una estratificación tanto planimétrica como altimétrica.
La circulación
Una edificación de estas dimensiones (30,000 m2) y con tal complejidad en su emplazamiento necesariamente solicitó una diversidad de posibilidades en cuanto al acceso y a las calidades del mismo. Se ha considerado importante respetar la alineación que acusan los otros edificios del entorno, en el sentido de permitir el acceso público desde el boulevard central, brindando a la vez alternativas de ingreso desde otros puntos.
La ubicación de la entrada principal del complejo adquiere una dimensión especial frente a la lectura de la plástica, por el hecho de que se ubica en un extremo de la fachada del edificio oeste, aparentando una moderna asimetría. Sin embargo, una segunda apreciación demostrará que el ingreso coincide realmente con el eje transversal X de la composición, conectado con el bloque central del cuadrado que gobierna la geometría del conjunto.
La presencia del parqueo público al sur y su eventual congestionamiento, permite suponer que la entrada sur será de gran intensidad. En tal sentido y siguiendo planteamientos anteriores formulados por el Arq. González en su anteproyecto original para la Feria, propusimos originalmente una pasarela de conexión aérea del parqueo con la edificación,
burlando los encuentros con los vehículos de motor en la calle y en el acceso al parqueo del sótano. La entrada al sótano desde este punto, se debe al criterio de unificar la demanda vehicular en un sólo punto, debidamente estudiado, y a producir la rampa con el menor desarrollo posible dentro del parqueo, frente a la ventaja de acceder al mismo desde el punto de más baja cota en la manzana.
Es evidente la conveniencia de separar los accesos verticales públicos, en el bloque sur, de los ejecutivos o de seguridad, en el bloque norte. Este ritual se inicia desde el sótano, donde se discriminan claramente los estacionamientos de los funcionarios más importantes del resto de la empleomanía. Cada piso, en los testeros de conexión del bloque norte, dispone de estaciones de seguridad, que controlan el movimiento a las zonas restringidas de cada institución.
La poca frecuencia de detenidos de alto riesgo para ser juzgados en la Cámara Penal, nos llevó a ubicarles accediendo a los tribunales, debidamente acompañados por agentes de seguridad, por el bloque sur de circulación, conectado al sótano.



































Proyecto
Suprema Corte de Justicia y Procuraduría General de la República Funcionarios 2004-2005
Ing. Manuel de Jesús (Freddy) Pérez
Secretario
Arq. Carlos (Kalil) Michel Presbot Funcionarios 1996-2000
Ing. Diandino Peña C., Secretario
Arq. Carmen Leyda Mora, Sub-Secretaria
Etapa 1997-2005
Diseño arquitectónico y supervisión general
Arq. Gustavo Luis Moré
Arq. Juan Cristóbal Caro
Equipo de diseño etapa concurso
Rubén Hernández Fontana, Elisa Reid, Claudia Mercedes, Sven Eggers, José Fersobe, Karina García, Mónica Sánchez, Tania Salomón.
Equipo de diseño etapa planos ejecutivos
Rubén Hernández Fontana
Roberto Rijo, Denisse Español
Gabriel Castillo
Karina García
Marlene Echavarría
Eladio Sánchez
Lorena de la Mota
Tobías Rijo
Consultores estructurales
Ing. Reginald García
Ing. William Balbuena
Consultores y contratistas sanitarios
Ing. Barón Victoria
Ing. Ramón Manzueta, Dimesa.
Consultor eléctrico etapa concurso
Ing. Alejandro Zeller
CONELCA
Consultores eléctricos y de redes, etapa planos ejecutivos
Ing. Carlos Fernández
Ing. Juan Manuel Castillo
CESA
Consultor y contratista acústico
Ing. Michael Banks
NUTECH
Contratistas eléctricos
Ing. Augusto Jupiter
Omega Eléctrica
Ing. César Ortiz, encargado de obras.
Consultor mecánico etapa concurso
Ing. Manuel Pérez Vázquez
Consultor mecánico etapa planos
ejecutivos y contratista general
Ing. Julio Hiraldo
Consultores presupuestos y especificaciones
Ing. Giovanni Loaces
Arq. Sadery Messina
Consultor tránsito y vialidad
Ing. Miguel Angel Logroño Di Vanna
Consultor equipamiento institucional
Ing. Héctor McDougal
Grupo Institucional del Caribe
Consultor y contratista paisajístico
Rafael Vásquez (primera etapa)
Contratista obra civil
Ing. Christian Maluf, MAPEK
Ings. Nelson Luna
Juan Christian Maluf
Encargados de obras
Sr. Héctor Morillo, maestro
Juan Cristóbal Caro /
Gustavo Luis Moré
Centro de los Héroes, Santo Domingo 2004
Este proyecto fue parte del esquema operativo original para el concurso de la Suprema Corte de Justicia. Consiste en uno de los cuatro edificios de parqueos contemplados para dar servicio al Centro de los Héroes, al mismo tiempo que funcionaría como un edificio de usos múltiples con cafetería y auditorios. El proyecto incluye dos niveles soterrados y un primer nivel de parqueos seguido de un segundo nivel que aloja un gran auditorio y un pequeño auditorio (tipo salón de conferencias), cada uno de ellos con sus acceso y lobby independiente. Los baños y oficinas se ubican en los laterales de la planta.

Planta arquitectónica del sótano

Planta arquitectónica 2do nivel
Este edificio se caracteriza por su contextualización en el lugar, adaptándose y respondiendo a los requerimientos de su emplazamiento. En la esquina, una gran escalinata da acceso a la cafetería que brinda servicio a la Suprema y al resto del conjunto cívico. Una gran vidriera recubre la fachada frente al mar y la plaza del Centro de los Héroes. Y por último, una cubierta en cobre en forma almendrada se asemeja a la de la Suprema. Los materiales y paleta cromática propuesta también replica los del edificio de la Suprema Corte: travertino, vidrio y hormigón visto.

Planta arquitectónica 1er nivel

Planta de techos














Juan Cristóbal Caro / Gustavo Luis Moré
Calle Pedro Henríquez Ureña, Plaza de la Cultura, Santo Domingo 2004-2012
Este proyecto consiste en la remodelación integral de un edificio original de 1971, parte importante del conjunto de la Plaza de la Cultura, en la ciudad de Santo Domingo, espacio de relevancia cívica donde se reúnen las principales facilidades museológicas y artísticas de la nación en la ciudad capital. El esquema contempló además la ampliación en más de 10,000 m2 de nuevas áreas para la operación de la institución, que ha sido entendida como el principal centro de documentación, referencia y estudio de alto nivel del país.
La estructura original, modulada a seis metros, consiste en un paralelepípedo rectangular de proporción dorada de cuatro niveles y empaque clásico en su carácter, si bien moderno en su estilización. Un peristilo de columnas a tres alturas rodea el conjunto original, terminado en un expresivo voladizo del cuarto piso y define el ritmo de todo el blanco edificio, considerado como uno de los principales proyectos de la arquitectura dominicana del siglo XX. Esta modulación promovió la extrapolación de la geometría en dos nuevos bloques, situados al este y al oeste del cuerpo original, concebidos para alojar todos los nuevos espacios complementarios y de gran tamaño, tales como un auditorio y una cafetería de la institución, ambos vinculados a dos patios semienterrados que dan privacidad e iluminación controlada a estos locales.
Todo el esquema parte de la continuidad de un eje de circulación público original situado al norte de la primera crujía sur, que amarra todos los espacios colectivos del edificio. Otro eje vincula las áreas internas de la operación y los stacks, definiendo asi las dos pricipales zonas, privadas y públicas. Producto de este parti, se disponen tres salas de lectura, la original hacia la fachada sur, a doble altura entre el segundo y el tercer nivel, y las dos nuevas contenidas en los bloques este y oeste. Estos dos nuevos espacios resumen gran parte de la expresión arquitectónica del nuevo proyecto, por su gran altura y por medio de diafragmas horizontales de vidrio traslúcido en los entrepisos del tercer nivel, permitiendo el fundamental paso de la luz natural captada por lucernarios orientados al norte, en las cubiertas del cuarto nivel, hasta las salas de lectura del segundo. Este recurso crea espacios de gran luminosidad y dignidad, con un notable ahorro energético durante todo el año, y un sentido social de pertenencia muy distintivo de las mejores bibliotecas del mundo. Tres temas destacados son en verdad clásicos: la luz, controlada y difusa; el sentido del espacio colectivo; y la presencia de libros como elemento de identidad e ilustración.
El conjunto introduce el travertino como sello emblemático de la mejor arquitectura pública dominicana, recubriendo los nuevos volúmenes articulados por el primer nivel del bloque original. Lamentablemente este esquema no fue respetado en la obra, siendo mutilado gran parte del diseño para el revestimiento protectivo pétreo. Otro tema que espera solución es el de una expresiva rampa para impedidos que contempla en acceso al semienterrado de la cafetería y los jardines en el bloque oeste, nunca realizada.
El equipamiento de esta facilidad ha sido trabajado con el mayor cuidado, seleccionando el mobiliario y los sistemas de data, manejo de colecciones y control de incendios por evaporación más apropiados a la naturaleza de esta instalación.


posterior norte

longitudinal 1





longitudinal 2























Diseño edificio original (1971)
José Antonio Caro Álvarez
José Antonio Caro Ginebra
Danilo Caro Ginebra
Jaime Batlle Ginebra (contratista)
Proyecto (2004-2012)
Proyecto de ampliación y remodelación
Biblioteca Nacional Pedro Henríquez Ureña Asesoría institucional
Diómedes Núñez Polanco
Rafael Martínez Alés / Nelson Muñiz
Arquitectos
Gustavo Luis Moré / Juan Cristóbal Caro Colaboradores
Lorena de la Mota / Virginia Camilo
Gipsy Giuliani / María Raquel Pizano
Nelson Velázquez / César Leroux
Katrina Fernández / Cecilia Martínez
Mandy Aybar / María del Mar Moré
Consultor estructural
Reginald García Muñoz
Consultor sanitario e hidráulico
Magda Duarte
Consultor eléctrico
Frank Mella
Consultor mecánico
Fausto Huerta
Consultor audio, video y acústica
Michael Banks
Consultor equipamiento institucional
José Ramón Román
Agrimensura
José Manuel Báez Mueses
Paisajismo
Rosángela Bobea
Presupuesto y especificaciones
Giovanni Loaces
Asesoría equipamientos
Aida Montero
Contratista general
Marrero y Viñas, S.A.
Dirección de obra
José Francisco Tolentino
Supervisión
Marcelo Jorge Arte
Manuel Núñez Polanco
Contratista auditorio
Duluc / Ingeniería Tecnológica
Contratista estructuras metálicas
Moisés Benoit
Contratista mármol
Raymond Camacho, Arte Mármol
Contratista mecánico
Supra, S.A.
Contratista tecnología y redes Quantum, S.A.
Suplidores equipamiento biblioteca
Esquitino, Madrid / Figueras, Madrid
OTIS / TECNAS
Juan Cristóbal Caro / Gustavo Luis Moré San Francisco de Macorís 2005-2006
Este proyecto es el resultado de un llamado a concurso realizado por el Ministerio de Cultura, bajo el mandato de José Rafael Lantigua, para el diseño de cinco centros culturales prototipo para cinco provincias del país. Moré y Caro ganan el concurso pero el proyecto nunca fue realizado.
El diseño consiste en un edificio modular flexible, con capacidad para adaptarse y ampliarse o reducirse según los requerimientos y lotes de cada provincia. El complejo consta de tres bloques bien diferenciados: un bloque para el auditorio, cerrado y con vestíbulo; un



Sección longitudinal 2
bloque administrativo donde también se ubican la cafetería, biblioteca, economato y recursos audiovisuales; y el bloque de aulas, desarrollado de manera longitudinal en la parte posterior, con las áreas de servicio en el centro. Se contempló incluir en el bloque de aulas un gran mural que sería pintado por un artista oriundo de cada provincia; en este caso de San Francisco de Macorís el artista sería Iván Tovar.

Planta arquitectónica 1er nivel

Planta arquitectónica 2do nivel








Juan Cristóbal Caro


Juan Cristóbal Caro Juancho, Pedernales
2012
Espacios abiertos
Crear un espacio abierto, flexible y polifuncional es la principal premisa de nuestra propuesta. En un área aproximada de 1000 metros cuadrados hemos dispuesto el programa para el Centro Comunitario en referencia.
La edificación se divide en tres cuerpos articulados entre sí. En el primer cuerpo se encuentra la zona de recepción y llegada. En el segundo cuerpo, donde se desarrollaran las actividades principales, en esencia, un espacio rectangular con circulación perimetral y abierta que permite el acceso directo a todas las dependencias del centro, estando apenas limitado en el exterior por una malla metálica que permite el crecimiento natural de las plantas. El tercer cuerpo lo constituye el mirador, siendo el elemento más destacable del conjunto, es la estructura que en su interior alberga la rampa para alcanzar la altura de la terraza elevada desde donde es posible apreciar el proyecto del parque eólico en su conjunto.
Materiales ecológicos
Atendiendo a los lineamientos básicos de la arquitectura verde, proponemos la utilización de materiales y productos que impacten lo menos posible el medio ambiente tales como: hormigón armado visto y bloques ecológicos, así como también la aplicación e integración de técnicas constructivas de terminación similares a las típicas del sitio.
Pared verde
Con el objetivo de lograr una integración con el ambiente circundante, contemplamos el cerramiento del centro como un elemento vegetal dinámico mediante la aplicación de paredes vivas (living walls), permitiendo el crecimiento de plantas trepadoras que además de purificar el aire y servir como protección solar natural, también le darán al conjunto una apariencia más armónica y adecuada a las condiciones del paisaje.
Para la comunidad
Queremos que la comunidad se sienta acogida e integrada al centro comunitario, con ese objetivo pensamos más allá de los requerimientos del programa, en la creación de espacios de interacción y encuentro, donde los habitantes de Juancho puedan compartir lo aprendido en el centro e interactuar entre sí, de modo que visitar el centro sea parte de una experiencia de vivencia cotidiana para ellos. Esto ha sido determinante al decidir las características de las áreas de circulación, el patio interior y el diseño exterior del conjunto.







Proyecto
Concurso Centro Comunitario en Juancho Pedernales
Diseño arquitectónico y conceptual
Arq. Juan Cristóbal Caro Gómez (Caralva, SRL)
Colaboradores
Taller de arquitectura
Arq. José Moreno (Caralva, SRL)
Arq. Belkis Espinal (Caralva, SRL)
Imágenes 3D
Arq. Carlos Martínez
Presentación paneles
Juan Carlos Pérez Gómez (Phixar Media)



Proyecto
California Closets & Poggen Pohl
Showroom
Diseño arquitectónico

Caralva, S.A.
Arq. Juan Cristóbal Caro
Arq. Juan Sánchez
Arq. Ivania Cruz
Arq. Mauricio Hernández
Arq. Víctor Tatis
Construcción
Caralva, S.A.
Presupuesto / Programación
Arq. Ivania Cruz / Martínez & Ubiera
Supervisión de obra
Arq. Ivania Cruz
Diseño eléctrico
Djm
Contratistas eléctricos
Diseño Mecánico
Méndez Pichardo & Asocs.
Vidrios
Cima Industrial
Pisos de madera y cortinas
Manrique Industrial
Closets
California Closets











Juan Cristóbal Caro / Gustavo Luis Moré
Calle José Brea Peña, Santo Domingo 2007
Todo comenzó con la solicitud de remodelar la tienda, que debía ser terminada «antes de diciembre», época de mayor movimiento comercial de este reconocido y respetado establecimiento vinícola en Santo Domingo. Sus dueños, Pepino Bonarelli e hijos, tenían una idea bien clara de lo que necesitaban: un lugar de gran calidad ambiental y holgado comfort, de carácter más bien tradicional ma non troppo , representativo de la temática comercial de sus productos.
El principal reto fue el de dar coherencia a una serie de espacios residuales que fueron resultantes de un caótico proceso de crecimiento y aprovechamiento paulatino del edificio. La lectura del lugar ofrecía un aspecto fragmentado y disperso, como se verá en la planta existente previa a la intervención.
La dinámica operativa ya se tornaba imposible en las temporadas de mayor intensidad. Una dirección a seguir pareció inevitable desde el inicio: cumplir con el programa claramente establecido en la obtención de unos nuevos espacios diáfanos, amplios, precisos.
Así se desarrolló una nave longitudinal para la muestra de productos con un testero a doble altura a manera de nártex o vestíbulo, hacia el oeste, enfrentado hacia la compleja esquina citadina. Un bar lounge pequeño se esculpe ligeramente enterrado, en el lugar más comprometido estructuralmente y en consecuencia, de menor altura. Un salón de clases bien equipado y de fácil accesibilidad se instaló como complemento de la operación comercial. La iniciativa exigió, más temprano que tarde, determinar una serie de dispositivos para la correcta funcionalidad de los tres pisos superiores, sin afectar la tienda, proceso que dispuso de una entrada principal claramente definida sobre la fachada sur del bloque, permitiendo el acceso a una nueva escalera y ascensor, y a los servicios sanitarios de cada piso.
La fachada fue producto de varios ensayos, algunos de radical estética contemporánea, ligera, hasta coincidir en un proyecto que se valió del ladrillo y las molduras de hormigón como instrumentos de expresión principales. Un pórtico de plycem sobre estructura galvanizada definió las proporciones de fachada y amarró volumétricamente la nueva esquina conformada por la doble altura del vestíbulo. El estacionamiento vehicular fue tratado a manera de plaza arbolada y adoquinada. Obtener una imagen apropiada requirió de una investigación fatigosa y en ocasiones, aparentemente interminable. Visualizar con el cliente el aspecto final del local se convirtió en un duelo, que sin embargo produjo resultados satisfactorios y exitosos, a juzgar por la recepción del público y la conformidad de los Bonarelli.

















Proyecto
El Catador
Arquitectos
Juan Cristóbal Caro y Gustavo Luis Moré
Colaboradores
Liza Rancier
Juan Ricardo López
Virginia Camilo
Lorena De la Mota
María Raquel Pizano
Nelson Velázquez
Gráfica
Noly Navarro
Presupuestos y control de obras
Giovanni Loaces y Claudia Pérez
Consultor estructural
José Manuel Lockuart
Consultor eléctrico
AS Electricidad
Consultor aires acondicionados
MPG Asociados
Consultor sanitario
José Piccini
Consultor equipamiento de cocina
José Ramón Román
Contratista general
Caralva/ Moré Arquitectos
Ingeniero residente
Yesenia Socías
Ebanistería
AM Diseños
Pujols
Pisos
Cerarte
Granitos y Mármol
Eurostone
Iluminación
Home Center
Supervisor
Mario Ariza
Juan Cristóbal Caro / Gustavo Luis Moré 2009
Edificio de oficinas en Punta Cana diseñado para la familia de Gaetano Bonarelli en el Punta Cana Village. El edificio incluye un primer nivel de parqueos con un área de circulación vertical —escalera y ascensores—, así como un amplio espacio destinado para un local comercial. Los dos niveles siguientes son para oficinas, con un amplio atrio central que permite la entrada de luz a todo el conjunto de la edificación.

















Juan Cristóbal Caro / Gustavo Luis Moré
Calle Alberto Larancuent, Naco, Santo Domingo 2009
Torre de apartamentos de 10 niveles, con tres niveles de parqueos soterrados, dos niveles dedicados a áreas sociales y el resto habitacional. Este edificio maneja dos tipologías planimétricas diferentes: en los primeros niveles se distribuyen dos apartamentos por piso; y en los tres últimos niveles, un apartamento por piso (el último con un piso de terraza).


Esta distribución en planta también define el tratamiento de la fachada, la cual expresa la condición de un apartamento por piso en los niveles superiores, totalmente acristalados, y dos apartamentos por piso en los niveles inferiores, con balcones claramente diferenciados y separados.











Juan Cristóbal Caro Los Cacicazgos, Santo Domingo 2012
Situadas en el lote suroeste de una intersección en el sector de Los Cacicazgos, en la ciudad de Santo Domingo, estas tres residencias configuran un conjunto de bajo perfil y sutil elegancia, tras una discreta verja perforada que defiende los estacionamientos y áreas de entrada principal y de servicios de las mismas. El esquema permite dos casas simétricamente apareadas y una soltera arrimada a la esquina.
Tipológicamente la solución es novedosa, ya que propone los ambientes para el servicio doméstico en el sótano, accesible independientemente desde el costado de las marquesinas, a la vez que se aislan del resto de los demás ambientes domésticos también allí localizados. Un patio de luz aprovecha los linderos a ambos extremos del bloque, o el plano de contacto entre dos de las casas, para iluminar generosamente estos espacios semienterrados, eliminado cualquier posibilidad de sensación de espacio residual o secundario.
La planta a nivel de terrreno dispone de sala y comedor hacia el sur, haciendo uso activo del amplio patio posterior por medio de piscinas y comedores al aire libre, articuladas por una terraza. La cocina, de buen tamaño, se sitúa en la crujía central del conjunto.















Proyecto
Palermo Residences
Diseño arquitectónico
Juan Cristóbal Caro
Colaboradores
Víctor Tatis
Cristóbal Gómez
Belkis Espinal
Construcción
Caralva, S.R.L.
Diseño estructural
Máximo de Soto
Diseño eléctrico
Genca
Jacobo Vanderlinde
Diseño sanitario
José Piccini
Diseño sistema de A/A
Genca
Jacobo Vanderlinde
Juan Cristóbal Caro / Gustavo Luis Moré
Calle César Nicolás Penson, Santo Domingo 2012
Pieza residencial para una pareja joven en uno de los pocos solares que quedan disponibles en el sector de Gazcue. El solar se ocupa contemplando tres grandes patios de vegetación frondosa: uno en el frente de la casa, otro detrás —con piscina— y un tercero en el área de servicio destinado al tratamiento de agua de lluvia para el regadío.
La residencia tiene dos niveles. En un primer nivel la casa se divide en dos áreas bien diferenciadas: el área de servicio a la derecha, y el área social a la izquierda, delimitadas por un pasillo. En el segundo nivel se ubica la habitación principal con un gran alero en voladizo.
La casa Schad es sumamente ligera y parece flotar en el terreno. Sus grandes superficies acristaladas, sus amplios voladizos y sus pilotis le imprimen un espíritu moderno, inspirado en la tradición de arquitectura moderna de Gazcue, específicamente durante los años cincuenta y sesenta, cuando arquitectos de la talla de José Antonio Caro y Guillermo González construyeron residencias como la casa Schad (1939) y la Casa Pichardo (1940) que dieron inicio a la modernidad dominicana.




Sección constructiva 1

Sección constructiva 5

Sección constructiva 6







Juan Cristóbal Caro Los Cacicazgos, Santo Domingo 2012
Si bien esta casa evidencia un esquema axial este-oeste, flexiblemente simétrico en sus dos plantas principales, la manipulación sensible de los bordes externos en tres dominios, es una de sus propuestas de diseño más atractivas: uno para visitas y para la familia, que define la propiedad hacia el sur y el oeste; otro para los vehículos de motor, que quedan confinados en una marquesina orientada al oeste y que sirve de bloqueo al calor de la tarde, al resto del esquema; y unos patios enterrados que definen las áreas de servicio, situadas en el lindero norte y en el nivel de sótano.
Los ambientes familiares se disponen alrededor de un espacio central a doble altura que distribuye la luz natural controladamente, y determina por sí misma el carácter de la elegante vivienda. Este espacio localiza la sala principal que se abre hacia el jardín oriental, creando así una suave iluminación matinal en la zona social. La simetría de este piso se resuelve con un estudio y el comedor para la familia extendida, que se disponen hacia el sur y el norte, respectivamente.
Las áreas son generosas, sin alcanzar excesos innecesarios; las terminaciones, claras y limpias, sin demostrar ostentación, sino buen gusto; el estilo, moderno pero tradicional en sus detalles y cerramientos.
La entrada principal se sitúa hacia la esquina suroeste del lote y crea un deambulatorio procesional vinculado por una fuente al lindero sur, que reposa en el vestíbulo exterior semipúblico. Este espacio crea una suave tensión perpendicular al atravesar el portal azul turquesa que propicia el ingreso a las áreas sociales del primer nivel.
Un escalera muy transparente conecta con el nivel superior de habitaciones y baja a las áreas sociales de apoyo, localizadas en el sótano, parcialmente enterrado bajo la casa. En las fachadas, una serie de muros ciegos han sido enmarcados en relieves longitudinales de hormigón blanco, creando superficies rehundidas recubiertas en madera natural protegida, como elemento decorativo y aislante térmico.

















Proyecto
Residencia Haché-Caro
Diseño arquitectónico
Juan Cristóbal Caro
Colaboradores
José Manuel Álvarez
José Moreno
Eracra Arquitectos
Construcción
Constructora Ginaka, S.R.L.
Diseño estructural
Luis Abbott
Diseño eléctrico
Carlos Llodrá
Diseño sanitario
Rafael Ramírez
Diseño mecánico
Miguel Rodríguez
Sistemas especiales
Intellinet Redes Inteligentes S.A.
Sistema de sonido
César Valverde
Diseño paisajístico
Rosario Bordas de Schad


















La empresa Ingeniería y Arquitectura (I+A), que cambia su nombre a Caralva en 1978, incluye a sus trabajos de diseño, numerosos proyectos de construcción que asumen desde el rol de contratistas generales. El ingeniero Jaime Batlle juega un rol esencial en esta parte constructiva de la empresa, teniendo a su cargo la construcción de los más importantes hoteles, bancos y obras residenciales y comerciales de la ciudad de Santo Domingo.
En esta sección reseñamos algunas de las obras construidas por Tony Caro, Danilo Caro y Jaime Batlle, junto a su equipo de ingenieros y arquitectos, en la ciudad de Santo Domingo. Estas edificaciones fueron diseñadas por un grupo de los más selectos arquitectos de nuestro país y su construcción cambió de manera significativa el perfil de la ciudad.
• Estadio Olímpico
• Centro comercial El Embajador
• Condominio Bella Vista (Cancha de Polo)
• Edificio Antonio P. Haché
• First National City Bank (Proseguros)
• Banco Central de la República Dominicana
• Hotel Lina
• Hotel Continental
• Hotel Marriot
• Banco Hipotecario Dominicano, BHD
• Banco del Comercio (actualmente Scotiabank)
• Torre BHD
• Templo de los Mormones
• Edificio Pan American Life (PALIC)


Fred Goico, diseño
Jaime Batlle / José Antonio «Tony» y Danilo Caro Ginebra, contratistas Av. 27 de Febrero esquina Ortega y Gasset y Máximo Gómez, Santo Domingo 1974















Borrell & Asocs., diseño
Jaime Batlle / José Antonio «Tony» y Danilo Caro Ginebra, contratistas
Propietario: Gobierno Dominicano
Av. Anacaona No. 1, Santo Domingo 1975




Manuel Baquero / Edgardo Vega Malagón / José Amable Frómeta
Jaime Batlle / José Antonio «Tony» y Danilo Caro Ginebra, contratistas
Propietario: Antonio P. Haché & Co.
Av. John F. Kennedy No. 40 esq. El Carmen, Naco, Santo Domingo 1973-1974

Jaime
/ José
y Danilo Caro Ginebra, contratistas Av. John F. Kennedy esq. San Martín, Santo Domingo 1967-1969







Rafael Calventi, diseño
Jaime Batlle / José Antonio «Tony» y Danilo Caro Ginebra, contratistas Av. Pedro Henríquez Ureña esq. Leopoldo Navarro, Santo Domingo 1974-1978






Juan Pujadas / Nelson Marranzini / Carlos Pou / Rafael Martínez / José Ramón Martínez, diseño Jaime Batlle / José Antonio «Tony» y Danilo Caro Ginebra, contratistas Av. Máximo Gómez esquina 27 de Febrero, Santo Domingo 1977-1978

Planta arquitectónica típica


Fred Goico, diseño
Jaime Batlle / José Antonio «Tony» y Danilo Caro Ginebra, contratistas
Av. Máximo Gómez, Santo Domingo
1977-1978
Jaime Batlle, José Antonio «Tony» y Danilo Caro Ginebra, contratistas
Av. Máximo Gómez, Santo Domingo 2000



Plácido
Av.
1980






Pujadas, Armenteros & Asociados, diseño
Jaime Batlle / José Antonio «Tony» y Danilo Caro Ginebra, contratistas Av. 27 de Febrero esquina Winston Churchill, Santo Domingo
1981






Eduardo Selman, diseño
Jaime Batlle / José Antonio «Tony» y Danilo Caro Ginebra, contratistas Av. 27 de Febrero esquina Winston Churchill, Santo Domingo 1977-1978


Planta arquitectónica 1er nivel

The Scott Partnership Architecture, diseño
Av. Bolívar, Santo
c. 1999




Rafael Calventi, diseño
Luis Schiffinio / Juan Mieses / Luz del Alba Reynoso, colaboradores
Jaime Batlle / José Antonio «Tony» y Danilo Caro Ginebra, contratistas
Av. Abraham Lincoln, Santo Domingo c. 1986

Planta arquitectónica 1er nivel


7 de junio de 1910. Nace en Santo Domingo, José Antonio Caro Álvarez, hijo de Francisco Caro y Mercedes Álvarez. 1927. José Antonio Caro Álvarez obtiene el título de bachiller en ciencias físicas y matemáticas de la Escuela Normal Superior de Santo Domingo.
3 de junio de 1930. El padre de José Antonio, Francisco Caro, viaja a Europa con su esposa e hijos y se establecen en Barcelona por dos o tres años.
18 de diciembre de 1934. José Antonio Caro se gradúa de arquitecto en la Escuela Especial de Arquitectura de París. c. 1935. JACA diseña su primera obra: las reformas del edificio comercial Francisco Caro (Panadería Quico) en la calle Padre Billini, S.D. 1935. Empiezan a laborar juntos los arquitectos José A. Caro y Leo Pou Ricart. Diseñan la residencia de Francisco Caro, en la calle Dr. Báez esquina César Nicolás Penson, S.D. y realizan el aislamiento y embellecimiento del Baluarte 27 de Febrero. 1936. También junto a Leo Pou Ricart, JACA diseña la residencia de Fernando Ricart, en la calle César Nicolás Penson; y el Edificio Plavime, en la calle El Conde, ambos en Santo Domingo. 1937. Con la ayuda de Guido D’Alessandro, José Antonio Caro Álvarez prepara un mapa de urbanización de la ciudad capital, donde proyectan un centro cívico. También diseña y construye el bloque de casas de Francisco E. Benzo, en la calle José Gabriel García; y la residencia de la familia Caro Álvarez, en la Av. Bolívar esquina Pasteur, ambas en Santo Domingo. 1937-1938. Diseña junto a Leo Pou Ricart el edificio del Ayuntamiento de La Romana, construido por Flaquer y Co. 1938. JACA diseña y construye la residencia del Dr. Ramón Brea Messina, en la calle Uruguay; el Edificio Lucas Guerra, en la Arzobispo Meriño esquina Mella; el Edificio Benito Paliza, en la Arzobispo Nouel esquina Palo Hincado; la casa de Flor Trujillo de Brea, en la Av. Independencia con Máximo Gómez; y el edificio de la Esso Standard Oil, en la calle Mercedes, todas en Santo Domingo. 8 de septiembre de 1938. JACA es nombrado Miembro de la Comisión Dominicana de Arqueología. 1938-1939. JACA diseña y construye el Edificio Fermín Fernández, en la Av. Mella, Santo Domingo. 26 de agosto de 1939. El Arq. José Antonio Caro Álvarez contrae matrimonio con la Srta. Marina Ginebra de La Rocha.
1942. JACA diseña la residencia Caro Ginebra, en la Félix Mariano Lluberes y se muda en este año.
9 de noviembre de 1939 JACA es nombrado catedrático de la
Facultad de Ciencias Exactas de la USD.
1939. JACA diseña y construye el Edificio Ramos, en la calle El Conde esquina Duarte, S.D.
1940. JACA diseña la residencia de Francisco Martínez Alba, en la Av. Independencia, S.D., hoy la Embajada de España.
17 de septiembre de 1940. Nace José Antonio «Tony» Caro Ginebra.
1941. JACA diseña las residencias de Frank Féliz Miranda, en la Av. Bolívar; de Jesús B. Castillo, en la calle 30 de marzo; y de Virgilio Díaz Ordónez, en la Av. Pasteur, todas en Santo Domingo.
1942 JACA diseña la residencia de Ricardo Mejía Pittaluga, en la calle Santiago, S.D.
1942-1945 JACA participa, junto a un grupo de arquitectos, en el diseño del plan maestro de la Universidad de Santo Domingo (USD).
3 de septiembre de 1943. Nace Danilo Caro Ginebra.
1943-1944. JACA diseña junto a Guillermo y Alfredo González y junto a B. A. Martínez Brea, el Casino de Güibia, el Hipódromo Perla Antillana y el Cuartel General del Cuerpo de Bomberos.
1944. JACA realiza la residencia de Enrique Noboa Ortiz, en la Av. Independencia, S.D., el Santiago Tennis Club, y el diseño urbano del Monumento de Santiago.
16 de agosto de 1945. Se inaugura, en la ciudad universitaria, la Facultad de Medicina Dr. Fernando A. Defilló.
1946. JACA remodela el Cine Colón en Santiago. Aproximadamente para esta fecha JACA realiza el edificio de apartamentos en la Félix Mariano Lluberes, S.D.
26 de marzo de 1947 JACA es nombrado miembro del Instituto de Investigaciones Antropológicas.
Junio 1947 JACA inicia la construcción del edificio para el Cuartel General de la Policía, ubicado en la calle Leopoldo Navarro, entre las avenidas México y Francia.
1947 JACA diseña y construye el edificio Casa de Puerto Rico, en la calle Benito Monción esquina Av. Libertad, en La Romana.
1 de julio de 1947. Inician los trabajos de construcción del Hospital de la Maternidad, diseñado por Caro y construido por el Ing. Boyrie de Moya.
1948. JACA diseña el Edificio de apartamentos José A. Caro Álvarez (USAID), en la calle Leopoldo Navarro; y la casa de Julián Barceló, en la calle Elvira de Mendoza esquina Juan Sánchez Ramírez, S.D. 26 de febrero de 1949. Se inaugura el Cuartel General de la Policía. 16 de mayo de 1949. Se inaugura el Hospital de Maternidad, ubicado en la calle Pedro Henríquez Ureña, Santo Domingo.
1949 JACA diseña la residencia del Dr. Manuel Resumil Arangunde
(Pazo de Arosa), en la calle Juan Sánchez Ramírez; el Edificio Rodríguez (El Palacio) en la calle El Conde; y la residencia de José A. Caro A., en la calle Los Pinos, todos en Santo Domingo.
1950-1951. JACA fue presidente de la ADIA, Asociación Dominicana de Ingenieros y Arquitectos (de la cual fue cofundador). Por esta fecha también realiza el edificio El Gallo, en la calle 30 de marzo, y la sucursal del Banco de Reservas en la Av. San Martín, S.D. 10 de junio de 1952. JACA es nombrado miembro de la Comisión Nacional de Urbanismo.
1953 JACA realiza el Instituto del Libro, en la Ciudad Colonial. 23 de marzo de 1953 JACA es nombrado miembro de la CADSD 4 de marzo de 1954 JACA es nombrado miembro de la Comisión Conservadora de Monumentos.
19 de febrero de 1955 JACA es nombrado miembro de la Comisión Dominicana de Cooperación Intelectual.
1955. JACA diseña y construye la Secretaría de Estado de Educación y Bellas Artes, en la Av. Máximo Gómez. Aproximadamente para la misma fecha, realiza el Hospital Angelita, en la Av. Independencia esquina Abraham Lincoln; y el Edificio de la Facultad de Ingeniería y Arquitectura de la USD.
1955-1956. José Antonio Caro Álvarez y Guillermo González, realizan el Hotel Paz, en la Av. Independencia esquina Abraham Lincoln.
1957. JACA diseña y construye el Antiguo Banco Central de la República Dominicana, en la calle Pedro Henríquez Ureña, S.D.
1958. Tony Caro se gradúa de bachiller del Colegio de La Salle e ingresa en la escuela de preparación pre-universitaria, Cascadilla School, en Ithaca, Nueva York. José Antonio Caro Álvarez es nombrado decano de la Facultad de Ingeniería y Arquitectura de la USD JACA diseña un anteproyecto para la sede del periódico El Caribe, no realizado.
17 de mayo de 1959 JACA es nombrado Secretario de Estado de Obras Públicas, cargo que ocupará hasta 1961.
1959. Tony Caro ingresa a la Escuela de Arquitectura de Cornell University, en Nueva York.
1958. JACA es nombrado decano de la Facultad de Ingeniería y Arquitectura de la USD.
1960. La familia de José Antonio Caro se muda a Nueva York, donde permanecerán hasta 1965.
8 de julio de 1961. JACA es nombrado rector de la Universidad de Santo Domingo, USD; funciones que ejerció hasta el 14 de septiembre de 1961.
1962. Jaime Batlle se gradúa de ingeniero en la Universidad de Santo Domingo (USD).
1962-1963. Jaime Batlle trabaja en la carretera de San Cristóbal a Baní.
1963. Jaime Batlle se va a Río de Janeiro, Brasil, para hacer una especialidad en carreteras.
1963-1964. Danilo Caro Ginebra ingresa a la Escuela de Arquitectura de Cornell University, en Ithaca, Nueva York.
1964. Tony Caro finaliza sus estudios de arquitectura en la Universidad de Cornell, pero continúa con una carrera en Diseño Urbano. Jaime Batlle concluye sus estudios especializados en Río de Janiero, Brasil, y regresa al país, incorporándose a la oficina de carreteras de Obras Públicas. José Antonio Caro Álvarez y su hijo, José Antonio Caro Ginebra, realizan un viaje de tres meses alrededor del mundo.
1966. Se funda la Universidad Nacional Pedro Henríquez Ureña. JACA fue cofundador de la misma y su primer rector.
24 de julio de 1966. Tony Caro contrae matrimonio con Rosalía Gómez García-Godoy.
Diciembre de 1967. Tony Caro regresa a Santo Domingo de manera definitiva.
1968. Nace la empresa Ingeniería y Arquitectura Dominicana, I+A. 1968-1969. Tony Caro diseña y construye sus primeras obras: algunas casas, entre ellas la de Tomás Eduardo Sánlley Pou en la calle Tetelo Vargas, en Santo Domingo.
1969. Danilo Caro Ginebra se gradúa de arquitecto en Cornell University, Nueva York y se incorpora a la empresa ya dirigida por Tony Caro y Jaime Batlle. En julio de este año contrae matrimonio con Susana Messina.
1970. I+A diseña cuatro townhouses en la calle Los Pinos; y la residencia Contreras en Santiago.
1970-1971 . Tony y Danilo diseñan la Biblioteca Nacional, en la Plaza de la Cultura (calle César Nicolás Penson), y la construyen junto a Jaime Batlle.
21 de septiembre de 1971. Nace Juan Cristóbal Caro Gómez.
1972-1973 . I+A diseña y construye el Museo del Hombre Dominicano, en la Plaza de la Cultura (c/Pedro Henríquez Ureña). 1972-1974 . I+A cambia su nombre al de J. Caro Álvarez & Asociados.
1973 . El equipo de J. Caro Álvarez & Asociados asume la construcción del Estadio Olímpico, diseñado por Fred Goico. También se construye la Casa España.
12 de octubre de 1973 . JACA es nombrado fundador del Museo del Hombre Dominicano y su director general hasta su fallecimiento.
1974 . El equipo de J. Caro Álvarez & Asociados asume la
construcción del edificio de El Caribe, en la Av. John F. Kennedy, hoy Teleantillas, así como el Centro Comercial y una de las torres del complejo del Embajador.
Diciembre 1974. José Antonio Caro Álvarez se integra a la comisión formadora de la Academia de Ciencias de la República Dominicana. Se convierte en su primer vice-presidente.
1974-1975. El equipo de J. Caro Álvarez & Asociados construye el edifico de Casa Haché, en la Av. John F. Kennedy. c. 1975. J. Caro Álvarez & Asociados construye el Hotel Macorix, en San Pedro de Macorís.
1977-1978. Caro Álvarez & Asociados construye el Banco Central de la República Dominicana, diseñado por Rafael Calventi y localizado en la Pedro Henríquez Ureña esquina Leopoldo Navarro. En estos mismos años construyen la ampliación del edificio del First National Citibank, en la Av. John F. Kennedy esq. San Martín, diseñado por Fred Goico; la conclusión del complejo del Hotel Lina (torre habitaciones y comedores) y el Hotel Continental. 11 de febrero de 1978. Fallece el Arq. José Antonio Caro Álvarez.
1978. La compañía adopta el nombre actual: Caralva.
1978-1982. Caralva diseña Altos de Chavón y construye alrededor de 30 casas en La Romana.
1980 . Caralva diseña el complejo urbano Los Pinos, en Arroyo Hondo y el Banco Hipotecario Dominicano BHD , diseño de Plácido Piña. También diseñan la casa de Thimo Pimentel.
1980-1981 . Caralva construye la Asociación Popular de Ahorros y Préstamos, en la Av. 27 de Febrero esquina Máximo Gómez (diseño de William Reid Cabral).
1981 . Caralva construye el Banco del Comercio, diseño de Pujadas, Armenteros & Asociados.
1982 . Caralva diseña y construye las residencias de Tony Caro, Danilo Caro y Jaime Batlle en la urbanización Los Pinos, en Arroyo Hondo.
1983 . Caralva construye la torre del BHD , diseño de Eduardo Selman.
1985-1986 . Caralva construye el Hotel en Playa Dorada, Puerto Plata.
1988-1989 . Caralva construye el Hotel Hamaca, en Boca Chica.
1989. Juan Caro se gradúa de bachiller del Colegio Loyola.
1994. Juan Caro se gradúa de arquitecto del Wentworth Institute of Technology.
1994-1997. Juan Caro trabaja en la firma Hammond Beeby Babka, en Chicago.
1997. Juan Caro inicia sus trabajos en la oficina Caralva. J unto
a Gustavo Luis Moré, diseña y construye la red de sucursales Bankágil, del BHD
1998-1999 . Caralva diseña y construye el Hotel Canoa, en Bayahibe.
1999 . Caralva construye el Templo de los Mormones, en la Av. Bolívar.
1997-2005 . Juan Cristóbal Caro, junto a Gustavo Luis Moré, diseña y construye la Suprema Corte de Justicia y Procuraduría General de la República, en la Av. Winston Churchill, S.D.
2003 . Juan Cristóbal Caro diseña y construye California Closets, en La Esperilla, S.D.
2007 . Juan Cristóbal Caro, junto a Gustavo Luis Moré, diseña y construye Viñas de El Catador, en S.D.
2004-2012 . Juan Caro, junto a Gustavo Luis Moré, realiza la remodelación y la ampliación de la Biblioteca Nacional Pedro Henríquez Ureña, en la Plaza de la Cultura, S.D.
2012 . Juan Cristóbal Caro diseña Palermo Residences, en Los Cacicazgos, la casa Haché Caro, y el anteproyecto de un centro comunitario en Juancho, Pedernales.



José Antonio Caro Álvarez
1. Reformas del edificio comercial Francisco Caro (Panadería Quico)
Calle Padre Billini #406, S.D.
Mayo 1934 (fecha de licencia SEOPC)
2. Residencia Francisco Caro
Calle Dr. Báez esquina César Nicolás Penson, S.D.
(junto a Leo Pou Ricart) 1935 (fecha de licencia SEOPC)
3. Residencia familia Caro Álvarez
Av. Bolívar esquina Pasteur 1935
4. Aislamiento y embellecimiento del Baluarte 27 de Febrero
Santo Domingo (con Leo Pou Ricart) 1935
5. Residencia Fernando Ricart
Calle César Nicolás Penson #81, S. D. (junto a Leo Pou Ricart) Septiembre 1936 (fecha de licencia SEOPC)
6. Edificio Fernández (antigua Casa Plavime)
Calle El Conde, S.D. (junto a Leo Pou Ricart) 1936
7. Mapa de urbanización de la ciudad capital (Centro Cívico)
(con Ing. Guido D’ Alessandro) 1937
No realizado
8. Bloque de casas Francisco E. Benzo
Calle José Gabriel García, S. D. 1937
9. Edificio para el Ayuntamiento de La Romana
Calles Eugenio A. Miranda esquina Ramón Bergés, La Romana (junto a Leo Pou Ricart) 1937-1938
10. Residencia Dr. Ramón Brea Messina
Calle Uruguay, S.D. 1938
11. Edificio Lucas Guerra
Calle Arzobispo Meriño esquina Av. Mella, S.D. 1938
12. Edificio Benito Paliza
Calles Arzobispo Nouel esquina Palo Hincado, S.D.
1938
13. Casa Flor Trujillo de Brea Av. Independencia esquina Máximo Gómez, S.D.
1938
14. Edificio de oficinas de la Esso Standard Oil (construcción)
Calles Mercedes (hoy Av. Bolívar), 16 de agosto y Pina, S.D. c. 1938
15. Edificio Fermín Fernández (La Paloma) Av. Mella, S.D. 1938-1939
16. Edificio Ramos
Calle El Conde esquina Duarte, S.D. 1939
17. Residencia Francisco Martínez Alba (Embajada de España) Av. Independencia, S.D. 1940
18. Casa del Coronel Frank Féliz Miranda Av. Bolívar, S.D. 1941
19. Casa Jesús B. Castillo
Calle José Dolores Alfonseca (hoy 30 de Marzo) 1941
20. Residencia Virgilio Díaz Ordónez Av. Pasteur, S.D. 1941
21. Edificio de Apartamentos Menéndez Av. George Washington #218, S.D. c. 1941
22. Residencia Caro Ginebra
Calle Félix Mariano Lluberes 1942
23. Chalet de Ricardo Mejía Pittaluga
Calle Santiago, S.D. 1942
24. Plan maestro Universidad de Santo
Domingo (USD)
Ciudad Universitaria (con Guillermo González, José Ramón Báez López-Penha, Leo y Marcial Pou Ricart) 1942-1945
25. Cuartel General del Cuerpo de Bomberos Av. Mella esquina Emilio Prud’Homme (con Guillermo González, B. A. Martínez Brea y Alfredo González) 1943-1944
26. Hipódromo Perla Antillana
Av. Ortega y Gasset, Av. San Martín y calle
Pepillo Salcedo, S.D.
(con Guillermo González, B. A. Martínez Brea y Alfredo González) 1943-1944
Demolido (en sus terrenos se construyó la Plaza de la Salud)
27. Casino de Güibia
Av. George Washington, S.D. 1943-1944
(con Guillermo González, B. A. Martínez Brea y Alfredo González)
28. Residencia Enrique Noboa Ortiz Av. Independencia, S.D. 1944
29. Anteproyecto Santiago Tennis Club
Santiago (con Guillermo González, B. A. Martínez Brea y Alfredo González) 1944
30. Facultad de Ciencias Médicas Doctor Defilló, USD Av. Cristóbal de Llerena, Ciudad Universitaria, S.D. 1944-1945
31. Diseño urbano del Monumento de Santiago Santiago 1944
32. Cine Colón
Calle 30 de Marzo, Santiago 1946
33. Edificio de apartamentos José A. Caro Álvarez
Calle Félix Mariano Lluberes #10, Gazcue, S.D. c. 1946
34. Edificio de apartamentos José A. Caro Álvarez (USAID)
Calle Leopoldo Navarro esquina César Nicolás Penson, S.D. c. 1946-1947
35. Edificio Casa de Puerto Rico (Casino de Puerto Rico)
Calle Benito Monción esquina Av. Libertad, La Romana 1947
36. Laboratorios de Medicina de la Universidad de Santo Domingo, USD Santo Domingo 1947
37. Hospital de la Maternidad (Hospital Nuestra Señora de la Altagracia)
Calle Pedro Henríquez Ureña esquina Benito Juárez, y Av. México al sur, S.D. 1947-1949
38. Cuartel General de la Policía (Palacio de la Policía Nacional)
Calle Leopoldo Navarro entre Av. México y Av. Francia, S.D. 1947-1949
39. Casa Julián Barceló
Calle Elvira de Mendoza esquina Juan Sánchez Ramírez, S.D. 1948
40. Residencia Dr. Manuel Resumil Arangunde (Pazo de Arosa)
Calles Juan Sánchez Ramírez, Elvira de Mendoza, Ramón Santana y José Desiderio Valverde, S.D. 1949
41. Edificio Rodríguez (El Palacio)
Calle El Conde esquina 19 de marzo, S.D. 1949
42. Residencia José A. Caro A. (Residencia Caro Álvarez)
Calle Los Pinos, S.D. 1949
43. Edificio El Gallo
Calle 30 de Marzo esquina Abreu, S.D. c. 1950
44. Sucursal del Banco de Reservas
Av. San Martín, S.D. c. 1950
45. Edificio de la Caribbean Motors Co.
Av. 30 de Marzo esquina calle Padre García, S.D.
Diseño de Paquito Martínez c. 1950
46. Anteproyecto para el Edificio Alma Mater, USD Ciudad Universitaria, , S.D. c. 1950-1955
47. Oficina Caralva
Calle Los Pinos, S.D. 1950-1955
48. Edificio de dos pisos
Calle Los Pinos #1, S.D. 1950-1955
49. Conjunto 4 casas
Calle Los Pinos #1, S.D. Junto a Reid y Reyes 1950-1955
50. Anteproyecto Capilla del Palacio Nacional c. 1952
51. Instituto del Libro
Calle Arzobispo Nouel #258, Ciudad Colonial, S.D. 1953
52. Casa de Virgilio «Cucho» Álvarez Pina Calle Independencia, S.D. 1954
53. Edificio de Ingeniería y Arquitectura, UASD Av. Cristóbal de Llerena, Ciudad Universitaria, S.D. 1955
54. Secretaría de Estado de Educación, Bellas Artes y Cultos
Av. Máximo Gómez, entre la calle Arístides Fiallo Cabral y la Av. Independencia, S.D. 1955
55. Hospital Angelita (hoy Hospital Infantil Robert Reid Cabral) Av. Independencia esq. Abraham Lincoln, S.D. 1955
56. Hotel Paz (hoy Hotel Hispaniola) Av. Independencia esq. Abraham Lincoln, S.D. (con Guillermo González) 1955-1956
57. Antiguo Banco Central de la República Dominicana
Calle Pedro Henríquez Ureña, Gazcue, S.D. 1956-1957
58. Patio y piscina de la Cancillería Nacional Av. George Washington, S.D. c. 1956-1957
59. Sederías California
Av. Trujillo Valdez (hoy Av. Duarte) 1950s
60. Palacio de Correos de Santo Domingo
Calles Emiliano Tejera y Las Damas, S.D. 1957-1958
61. Secretaría de Estado de Agricultura
Av. George Washington, S.D. 1958
62. Anteproyecto Banco Agrícola de Crédito e Industrial c. 1958
63. Anteproyecto Edificio Editora El Caribe c. 1958
64. Villa Caro Ginebra Constanza 1959
65. Edificio calle El Conde #98 (Bartolo Primero)
Calle El Conde #98, S.D. c. 1968
66. Edificio Espaillat
Calle Sol esquina 30 de Marzo, S.D. s.f.
José Antonio «Tony» y Danilo Caro Ginebra
1. Residencia de Tomás Eduardo Sanlley Pou
(Casa Sanlley Contreras)
Calle Tetelo Vargas, S.D. 1968-1969
2. Ampliación Oficina Caralva (2do nivel)
Calle Los Pinos, S.D. c. 1968-1969
3. Edificio de Oficinas Milton Messina
Av. Fantino Falco 1969
4. Residencia Contreras Santiago 1970
5. Cuatro (4) townhouses
Calle Los Pinos 1970
6. Consulado Norteamericano S.D. Diseño de Manuel del Orbe c. 1970-1980
7. Biblioteca Nacional Pedro Henríquez Ureña
Calle César Nicolás Penson, Plaza de la Cultura 1970-1971
8. Museo del Hombre Dominicano
Calle Pedro Henríquez Ureña, Plaza de la Cultura 1972-1973
9. Anteproyecto para el Concurso del Banco Central 1972-1973
10. Casa de España
Av. George Washington, S.D. c. 1973
11. Estadio Olímpico (construcción)
Av. John F. Kennedy esquina Ortega y Gasset, Centro Olímpico Juan Pablo Duarte, S.D.
Diseño de Fred Goico 1974
12. Centro Comercial y una de las torres del Embajador (construcción)
Calle Embajador y Av. Sarasota, S.D. Centro comercial, diseño de Fred Goico / Torre diseño de Pedro José Borrell 1974
13. Casa Haché (construcción)
Av. John F. Kennedy #40, Naco, S.D. Diseño de Edgardo «Gai» Vega Malagón, Manuel Baquero y José Amable Frómeta 1974-1976
14. Hotel Macorix
San Pedro de Macorís c. 1975
15. Anteproyecto para el Instituto de Cardiología c. 1976
16. Anteproyecto Concurso Hipódromo de Santo Domingo
Con el Arq. Fred Goico Santo Domingo 1976-1978
17. Citybank (construcción) (First National City Bank)
Av. John F. Kennedy esquina San Martín, S.D. Diseño de Fred Goico 1977-1978
18. Banco Central de la República Dominicana (construcción)
Calle Pedro Henríquez Ureña esquina Leopoldo Navarro, S.D.
Diseño de Rafael Calventi 1977-1978
19. Hotel Lina (construcción de torre habitaciones y comedores)
Diseño de Juan Pujadas, Nelson Marranzini, Carlos Pou, Rafael Martínez y José Ramón Martínez
Av. Máximo Gómez esquina John F. Kennedy, S.D. 1977-1978
20. Hotel Continental (construcción) Av. Máximo Gómez, S.D. Diseño de Fred Goico 1977-1978
21. Anteproyecto Restaurant Japonés (JCF) Santo Domingo 1978-1979
22. Altos de Chavón Casa de Campo, La Romana 1978-1980
23. Siete Villas de Golf Casa de Campo, La Romana 1978-1979
24. Villa Duncan, Costa Sur La Romana 1978-1979
25. Apartamentos Playa Minitas Casa de Campo, La Romana 1978-1982
26. Apartamentos Vistas de Altos Casa de Campo, La Romana 1978-1982
27. Villa Avelot Casa de Campo, La Romana 1978-1982
28. Residencia Danilo Caro Ginebra Casa de Campo, La Romana 1978-1982
29. Casa en Punta Águila
Casa de Campo, La Romana 1978-1982
30. Villa Porcella
Punta Águila 25, Casa de Campo, La Romana 1978-1982
31. Centro de Convenciones Hotel Casa de Campo
Casa de Campo, La Romana 1978-1982
32. Villa Barceló
Casa de Campo, La Romana 1978-1982
33. Villa Barletta
Casa de Campo, La Romana 1978-1982
34. Villa Caro Gómez
Punta Minitas 3, Casa de Campo, La Romana 1978-1982
35. Villa familia Rodríguez Villacaña
Punta Minitas 28, Casa de Campo, La Romana 1978-1982
36. Villa Sr. Mansur Ojjeh
Casa de Campo, La Romana 1978-1982
37. Villa típica Punta Minitas A (Sr. Donald Read)
Casa de Campo, La Romana 1978-1982
38. Villa típica Punta Minitas B (Familia Vitienes)
Casa de Campo, La Romana 1978-1982
39. Villa don Payo Ginebra
Punta Minitas, Casa de Campo, La Romana 1978-1982
40. Ampliación Villa típica Minitas A, Barranca, Casa de Campo, La Romana 1978-1982
41. Piscinas Villas Tennis y Villas Golf
Costa Sur, Casa de Campo, La Romana 1978-1982
42. Comedor en el agua, Villa La Favorita
Casa de Campo, La Romana 1978-1982
43. Villa familia Fernández,
Punta Minitas, Casa de Campo, La Romana 1978-1982
44. Villa Reyes de León
Los Cajuiles, Casa de Campo, La Romana 1978-1982
45. Estadio de Baseball de La Romana
La Romana 1979
46. Urbanización Sol y Mar
150 viviendas
Autopista Mella km. 7, Santo Domingo 1979
47. Residencia de Thimo Pimentel
Arroyo Hondo, Santo Domingo c. 1980
48. Urbanización Los Pinos
Arroyo Hondo, S.D.
Diseño de Pablo Mella c. 1980
49. Residencia Sr. Polibio Díaz
Los Pinos, Santo Domingo c. 1980
50. Villas Caralva (12 casas)
Casa de Campo, La Romana c. 1980
51. Banco Hipotecario Dominicano BHD (construcción)
Av. 27 de Febrero esquina Winston Churchill, S.D.
Diseño de Plácido Piña 1980
52. Anteproyecto Centro Cultural La Romana
La Romana 1980-1982
53. Anteproyecto Centro Comercial sobre el lago
Casa de Campo, La Romana 1980-1982
54. Anteproyecto Restaurant sobre el mar La Romana 1980-1982
55. Anteproyecto Hotel Playa del Mar
Playa Minitas, Casa de Campo, La Romana 1980-1982
56. Banco del Comercio (construcción) (actualmente Scotiabank)
Av. 27 de Febrero esquina Winston Churchill, S.D.
Diseño de Pujadas, Armenteros & Asociados 1981
57. Residencia Tony Caro Ginebra (Familia Caro Gómez)
Los Pinos, Arroyo Hondo 1982
58. Residencia Danilo Caro Ginebra (Familia Caro Messina)
Los Pinos, Arroyo Hondo 1982
59. Residencia Jaime Batlle Los Pinos, Arroyo Hondo 1982
60. Villa Wyman
Casa de Campo, La Romana 1982
61. Torre BHD (construcción)
Av. 27 de Febrero esq. Winston Churchill, S.D. Diseño de Eduardo Selman 1983
62. Casa Majluta Villanueva Calle Camino del Oeste, S.D. c. 1984
63. Residencia Federico Schad Calle César Nicolás Penson, S.D. 1985
64. Hotel Radisson, Playa Dorada Puerto Plata c. 1985-1986
65. Anteproyecto Centro Comercial Hoteles en Playa Dorada
Playa Dorada, Puerto Plata 1980s
66. Proyecto 8 escuelas técnico-profesionales, Programa BID
Santo Domingo 1980s
67. Proyecto 10 escuelas técnico-profesionales, Programa BID
Santo Domingo 1980s
68. Ampliación Hotel Hamaca
Boca Chica 1988-1989
69. Residencia familia Ureña Pérez
Cuesta Hermosa II, Santo Domingo c. 1988-1990
70. Anteproyecto apartamentos en la José Contreras
Calle José Contreras, Santo Domingo 1990
71. Residencia familia Rodríguez Villacañas (construcción)
Santo Domingo 1990
72. Residencia Eladio Fernández
Los Pinos, Santo Domingo 1990
73. Anteproyecto Conjunto Comercial, Centro de Convenciones Hotel Santo Domingo
Santo Domingo c. 1990
74. Anteproyecto Torre Apartamentos Hotel
Santo Domingo
Santo Domingo c. 1990
75. Anteproyecto Hipódromo del Caribe
Santo Domingo c. 1993
76. Casa de playa Sr. Fernando Pimentel
Boca Chica c. 1996
77. Hotel Canoa Bayahibe 1998-1999
78. Templo de los Mormones (construcción)
Av. Bolívar, S.D. c. 1999
79. Anteproyecto Escuela de Educación Técnico-Vocacional Politécnico de Azua s.f.
Juan Cristóbal Caro
1. Red de Sucursales Bankagil BHD
Santo Domingo y Santiago (con Gustavo Luis Moré) 1996-1997
2. Suprema Corte de Justicia
Av. Winston Churchill, Centro de los Héroes, S.D.
(con Gustavo Luis Moré) 1997-2005
3. Laboratorios Carol Morgan School (construcción)
Santo Domingo
Diseño de Rodríguez Sandoval 2000
4. California Closets
La Esperilla, S.D. 2003
5. Edificio de Parqueos Suprema Corte de Justicia
Centro de los Héroes, S.D. (con Gustavo Luis Moré) 2004
6. Remodelación Biblioteca Nacional Pedro Henríquez Ureña
Calle Pedro Henríquez Ureña, Plaza de la Cultura, S.D. (con Gustavo Luis Moré) 2004-2012
7. Supermercado La Cadena Ave. Sarasota, S.D. 2005
8. Centro Comunitario San Francisco de Macorís
San Francisco de Macorís (con Gustavo Luis Moré) 2005-2006
9. Centro de Ventas Roko Ki (construcción) Uvero Alto, Macao Diseño de Richard Knorr Intl. 2006
10. El Catador Calle José Brea Peña (con Gustavo Luis Moré) 2007
11. Edificio Novotempo Punta Cana Village (con Gustavo Luis Moré) 2009
12. Oficinas Corporativas Clorox Santo Domingo 2009
13. Torrelli
Calle Alberto Larancuent, Naco, S.D. (con Gustavo Luis Moré) 2009
14. Urbanización Cosal
103 viviendas en San Luis 2010
15. Anteproyecto para el concurso de un Centro Comunitario
Juancho, Pedernales 2012
16. Palermo Residences
Los Cacicazgos, S.D. 2012
17. Residencia Schad Fernández
Calle César Nicolás Penson, S.D. (con Gustavo Luis Moré) 2012
18. Residencia Haché Caro
Los Cacicazgos, S.D. 2013
19. Banco Mundial
Edificio Novocentro, piso 10, S.D. 2013
20. Remodelación Villa Graciela y Munir
Dauhajre-Caro
Casa de Campo, La Romana (Diseño original: Gianfranco Fini) 2013
21. Villa Punta Minitas 32
Casa de Campo, La Romana 2014
22. Remodelación Villa Las Lomas 11
Casa de Campo, La Romana 2014
Colaboradores José Antonio Caro / I+A / 1935-1976
• Arq. Orlando Haza
• Arq. Rafael Pellerano
• Arq. Juan Pujadas
• Arq. Guillermo Armenteros
• Arq. William «Billie» Reid
• Arq. Edgardo «Gai» Vega Malagón
• Arq. Manolito Baquero
• Ing. Leonte Bernard
• Ing. Mario Penzo
• Arq. Padilla
• Arq. Felipe Goico
• Arq. Ramón Pastrano
• Arq. Erwin Cott
• Arq. Manolo García Duvall
• Arq. José Horacio «Sancocho» Marranzini
• Arq. Milton Ginebra
• Arq. Fidelio Despradel
• Arq. Harold Broberg
• Arq. José Manuel «Nani» Reyes
• Ing. Cristóbal Piña
• Ing. Rafael O. «Muñeco» Castillo
• Ing. Máximo de Soto
Asociados de José Antonio Caro
• Leo Pou Ricart
• Marcial Pou Ricart
• Guillermo González Sánchez
• Bienvenido Martínez Brea
• Juan Pérez Bernal
• Samuel Conde
• Guido D’Alessandro
• José Ramón Báez López-Penha
• Ramón Trueba
• Juan Bernal
Colaboradores Caralva / 1976-2002
• Arq. Fred Goico
• Arq. Julio Cesar Francisco
• Arq. Nelson Toca
• Arq. Federico Fondeur
• Arq. Marcelo Alburquerque
• Arq. Cristóbal Valdez
• Arq. José Gómez
• Arq. Esteban Penzo
• Arq. Simón López
• Arq. Víctor Liriano Liz (Ottis)
• Arq. Jesús del Castillo
• Sr. Eduard James Kinsley
• Arq. Argentina Berroa
• Arq. Alexis Álvarez
• Arq. Raúl Pérez
• Arq. Rafael Pablo Barinas
• Arq. Víctor Rodríguez Tatis
• Arq. Pedro García
• Ing. Carlos Ginebra
• Arq. Francisco Javier Caro (Ge)
• Arq. Luis Abreu
• Arq. José Alejandro Fernández
• Arq. Sadery Messina
• Arq. Maritza Ortíz Paredes
• Arq. Evelyn Broberg
• Arq. Virginia García
• Arq. Hortensia Álvarez
• Arq. Josette Peláez
• Arq. Sandra Bernal
• Arq. Leonardo Pérez
• Arq. Roberto Rijo
• Arq. Juan Sánchez
• Arq. Lawrence Beltrán
• Arq. Arístides Ramírez
• Arq. Sarah Hernández
• Arq. Maribel Attías
• Arq. Gustavo Rivera Furet
• Ing. Santiago Vásquez
• Ing. Sergio López
• Ing. Giovanni Loaces Grisolía
• Ing. Elvis Duvergé
• Arq. Tulio Peguero de León
• Arq. Aris Isa
• Ing. Carmen Torres
• Arq. Ana Patricia Rodríguez
• Arq. Claudia Mercedes
• Arq. Elisa Read
• Arq. Lashmi Desangles
• Arq. Denisse Español
• Arq. Olga Alba
• Arq. María Elisa Rodríguez
• Arq. Ivette Sánchez
• Arq. Anabel Martínez
• Arq. Horacio Masara
Contratistas, equipo de construcción
• José Modesto
• Rafael Ho Bello
• Valentín Pérez Montes de Oca
• Humberto Otero
• Ing. Carlos Raúl Hernández
• Ing. Luis Hernández
Colaboradores Caralva / 2002-2015
• Arq. Cristóbal Gómez Shaper
• Arq. Maika Trueba
• Arq. José García
• Arq. Giann Andrea Loaces Desangles
• Arq. José Moreno
• Arq. Wimaldy de la Rosa
Álvarez, Francisco. «Dejan Abierto el Museo Del Hombre Dominicano». Listín Diario. 13 de octubre de 1973.
Álvarez, Mario. «Lo que se Dice…». El Caribe. 13 de febrero de 1978.
Álvarez, Virginia. «Sepultan Restos de José Caro Álvarez». El Caribe. 13 de febrero de 1978.
Archivo General de la Nación (República Dominicana). Obras de Trujillo. Vol. XII. Ciudad Trujillo (Santo Domingo): Editora Montalvo, 1956.
Archivos de Arquitectura Antillana. «Arquitectura Moderna en la República Dominicana 1ra entrega». Archivos de Arquitectura Antillana 53, (Diciembre, 2014): 30-133.
Archivos de Arquitectura Antillana. «Arquitectura Moderna en la República Dominicana 2da entrega: Modernidad Regional». Archivos de Arquitectura Antillana 54, (Marzo, 2015): 56-95.
Archivos de Arquitectura Antillana. «Arquitectura Moderna en la República Dominicana 2da entrega: Modernidad Internacional». Archivos de Arquitectura Antillana 54, (Marzo, 2015): 96-137.
Arquitexto. «Un personaje: Arq. José Antonio Caro Álvarez». Arquitexto 06 (1987): 45-50.
Brea, Emilio José, Mauricia Domínguez, Linda María Roca, Risoris Silvestre, y José Enrique Delmonte. Santo Domingo: guía de arquitectura = an architectural guide. Sevilla: Consejería de Obras Públicas y Transportes, 2006.
Calventi, Rafael. Arquitectura contemporánea en República Dominicana = Contemporary architecture in the Dominican Republic. Santo Domingo: Banco Nacional de la Vivienda, 1986.
Caro, José Antonio. Urbanismo. Santo Domingo, República Dominicana: Facultad de Ciencias Exactas, USD, 1942.
Caro Alvarez, José Antonio. «Facultad de Medicina en Ciudad Trujillo». Arquitectura 20 (México,1946): 302-303.
Caro Ginebra, José Antonio. «Residencia Caro Gómez». Archivos de Arquitectura Antillana 03 (Enero 1997): 64-67.
Caro, Juan Cristóbal. «California Closets en La Esperilla, Santo Domingo». Archivos de Arquitectura Antillana 16 (Junio 2003): 64-66.
Caro, Juan Cristóbal, Caralva. «Proyecto Centro Comunitario y Turístico, Juancho, Pedernales». Archivos de Arquitectura Antillana 43 (Junio 2012): 20-21.
Caro, Juan Cristóbal. «Casa Haché Caro, Los Cacicazgos». Archivos de Arquitectura Antillana 45 (Diciembre 2012): 42-47.
Caro, Juan Cristóbal. «Palermo Residences, Los Cacicazgos». Archivos de Arquitectura Antillana 45 (Diciembre 2012): 48-53.
Delmonte, José Enrique, ed. 60 años edificados: Memorias de la construcción de la nación. Santo Domingo: Industrias Nacionales, 2008.
El Caribe. Editorial. «José Antonio Caro». 13 de febrero de 1978.
El Caribe. «Deploran muerte de Ingeniero Caro». 13 de febrero de 1978.
El Nacional. «Agrávase Estado Salud Arquitecto Caro Álvarez». 11 de febrero de 1978.
El Nacional. Editorial. «Caro Álvarez». 13 de febrero de 1978.
El Nacional. «Rinden Homenaje en Panamá Arq. Caro Álvarez». 10 de marzo de 1978.
El Sol. «Enterraron Ayer los Restos de Caro Álvarez». 13 de febrero de 1978.
Espinal Hernández, Edwin, y César Félix Payamps Fernández. El Monumento a los Héroes de la Restauración: Historia y arquitectura. Santo Domingo: Ediciones de la Secretaría de Estado de Cultura, 2008.
García Arevalo, Manuel. «El Arte Taíno de la República Dominicana». Listín Diario. 16 de marzo de 1978.
García Arévalo, Manuel Ant. «En Memoria del Arquitecto José Antonio Caro Álvarez». Listín Diario. 8 de marzo de 1979.
García Aybar, José E. «La Desaparición de un Gran Dominicano». Temas Nacionales, Listín Diario. 17 de febrero de 1978.
Gazón Bona, Henri. La arquitectura dominicana en la era de Trujillo. Album 1. Ciudad Trujillo (Santo Domingo): Impresora dominicana, 1949.
Grupo Nueva Arquitectura. 100 hojas de arquitectura. San Pedro de Macorís: Universidad Central del Este, 1984.
Herrera, Héctor. «Inauguran Mañana Museo Del Hombre Dominicano». Listín Diario. 11 de octubre de 1973.
Listín Diario. «Establecen Fundación José A. Caro Álvarez». 14 de febrero de 1980.
La Era de Trujillo, 25 años de Historia Dominicana Tomos 11 y 12, «Las Obras Públicas». Ciudad Trujillo (Santo Domingo): Impresora Dominicana, 1955.
La Noticia. «Fallece Arquitecto Caro Álvarez». 13 de febrero de 1978.
La Noticia. «Honran a Caro Álvarez con Cátedra en Museo». 13 de octubre de 1983.
La Noticia. «Multitud doliente despide cadáver de Caro Álvarez». 13 de febrero de 1978.
La Noticia. «Museo de La Habana Reconoce Labor Investigadores de R.D.». 9 de febrero de 1978.
La Noticia. «Prensa Coloca Primer Plano Condición Humana Arq. Caro». 14 de febrero de 1978.
Listín Diario. «La Muerte de Caro». 13 de febrero de 1978.
Listín Diario. «Museo del Hombre Dominicano: Una Obra Concebida para Una Función Propiamente Educativa». 13 de octubre de 1973.
Listín Diario. «Museo homenajea 15 antropólogos». 27 de julio de 1979.
Listín Diario. «Recluyen arquitecto Caro Álvarez». 10 de febrero de 1978.
Marchena Dujarric, Enrique. «José Antonio Caro: el humanista». Evocación, Listín Diario. 18 de febrero de 1978.
Martínez Suárez, Alex. «Universidad de Santo Domingo: Conjunto urbano moderno 1944-1961». Archivos de Arquitectura Antillana 46 (Marzo, 2013): 62-63.
Martínez, César Al. y José Enrique Delmonte Soñé. «Metamensaje visual en la arquitectura del Caribe: La Feria de la Paz y Confraternidad del Mundo Libre. Apuntes para su valoración». Archivos de Arquitectura Antillana 54 (Marzo, 2015): 102-107.
Martínez, Ramón. «Semiótica arquitectónica y poder político en la República Dominicana». La Noticia, Suplemento Cultural (13 de septiembre de 1981).
Martínez Suárez, Alex, Melisa Vargas Rivera, Omar Rancier, y Mauricia Domínguez. Arquitectura en el trayecto del sol: entendiendo la modernidad dominicana = Architecture in the path of the sun: Understanding Dominican modernity. Santo Domingo: Laboratorio de Arquitectura Dominicana (LAD), 2014.
Monteagudo del Río, Antonio M., y Antonio Escámez Gutiérrez. Album de oro de la República Dominicana. La Habana: Artes Gráficas, 1936. Monteagudo del Río, Antonio M., y Antonio Escámez Gutiérrez. Album del Centenario de la República Dominicana. La Habana: Artes Gráficas, c. 1944.
Moré, Gustavo Luis. Historias para la construcción de la arquitectura dominicana, 1492-2008. Santo Domingo: Grupo León Jimenes, 2008.
Moré, Gustavo Luis, Omar Rancier, Marianne de Tolentino, y Roberto Segre. Banco Central: 60 años de historia, arquitectura y arte. Santo Domingo: Publicaciones del Banco Central de la República Dominicana, 2007.
Moré, Gustavo Luis. Trazos en el mar: Guillermo González, Arquitecto de la modernidad dominicana. Santo Domingo: Banco Popular, 2015.
Moré, Gustavo Luis, y Juan Cristóbal Caro. «Cortos metrajes urbanos: Proyecto Bankágil BHD». Archivos de Arquitectura Antillana 04 (Mayo 1997): 68-73.
Moré, Gustavo L., y Juan C. Caro. «Suprema Corte de Justicia y Procuraduría General de la República». Archivos de Arquitectura Antillana 12 (Junio 2001): 132-139.
Moré, Gustavo L., y Juan C. Caro. «Suprema Corte de Justicia y Procuraduría General de la República». Archivos de Arquitectura Antillana 20 (Enero 2005): 84-94.
Moré, Gustavo L., y Juan C. Caro. «La Viña de El Catador». Archivos de Arquitectura Antillana 26 (Enero 2007): 158-163.
Moré, Gustavo L., y Juan C. Caro. «Biblioteca Nacional Pedro Henríquez Ureña». Archivos de Arquitectura Antillana 46 (Marzo 2013): 104-115.
Ortega, Carmen. «Proyecto: Suprema Corte de Justicia y Procuraduría General de la República, de Gustavo L. Moré y Juan Cristóbal Caro». Arquitexto 49 (Marzo 2005): 70-85.
Ortega, Carmen. «Premio estudiantil José A. Caro Álvarez: Ganadores en la VII Bienal». Arquitexto 57 (Marzo 2007): 50-52.
Pujols, Renán. «Consterna la muerte de Caro». Listín Diario. 13 de febrero de 1978.
Ramos, César. «A su memoria». Cortitos, Listín Diario. 15 de febrero de 1978.
Sánchez Córdoba, René, y Arístides Victoria. «La enseñanza de la arquitectura en la República Dominicana». Codia 56 (1978).
Segre, Roberto. Arquitectura antillana del siglo XX La Habana: Arte y Literatura, 2003.
Suero, Joaquín. «Fallece en S.D. arquitecto José Antonio Caro Álvarez». El Nacional. 12 de febrero de 1978.
Thomas, Helen, ed. 20th-Century World Architecture: The Phaidon Atlas. (New York: Phaidon, 2012): 738.
Última Hora. Editorial. «Caro Álvarez». 13 de febrero de 1978.
Vela, María. «A mi buen amigo José Antonio Caro». Península Barataria. 15 de febrero de 1978.
Vercelloni, Virgilio. Atlante storico della città di Santo Domingo / Atlas histórico de la ciudad de Santo Domingo. Milano: Cosmopoli per MM Strutture ed Infrastrutture del Territorio, 1991.
Oscar, Armando. «José Antonio Caro». Listín Diario. 9 de febrero de 1978.
Penson, Enrique. Arquitectura Dominicana 19061950. Santo Domingo: Laboratorio de Ingeniería, 2005.
Pérez, Máximo Manuel. «Notas Educativas». Listín Diario. 19 de febrero de 1980.
Pérez Montás, Eugenio. La ciudad del Ozama: 500 años de historia urbana. Barcelona: Patronato de la Cuidad Colonial de Santo Domingo, 1998.












