







Auto CAD SketchUp Enscape Excel Power Point Illustrator Photoshop Lumion

A B O U T M E




Page 05-41


Page 42-70 Page 71-81






![]()








Auto CAD SketchUp Enscape Excel Power Point Illustrator Photoshop Lumion

A B O U T M E




Page 05-41


Page 42-70 Page 71-81






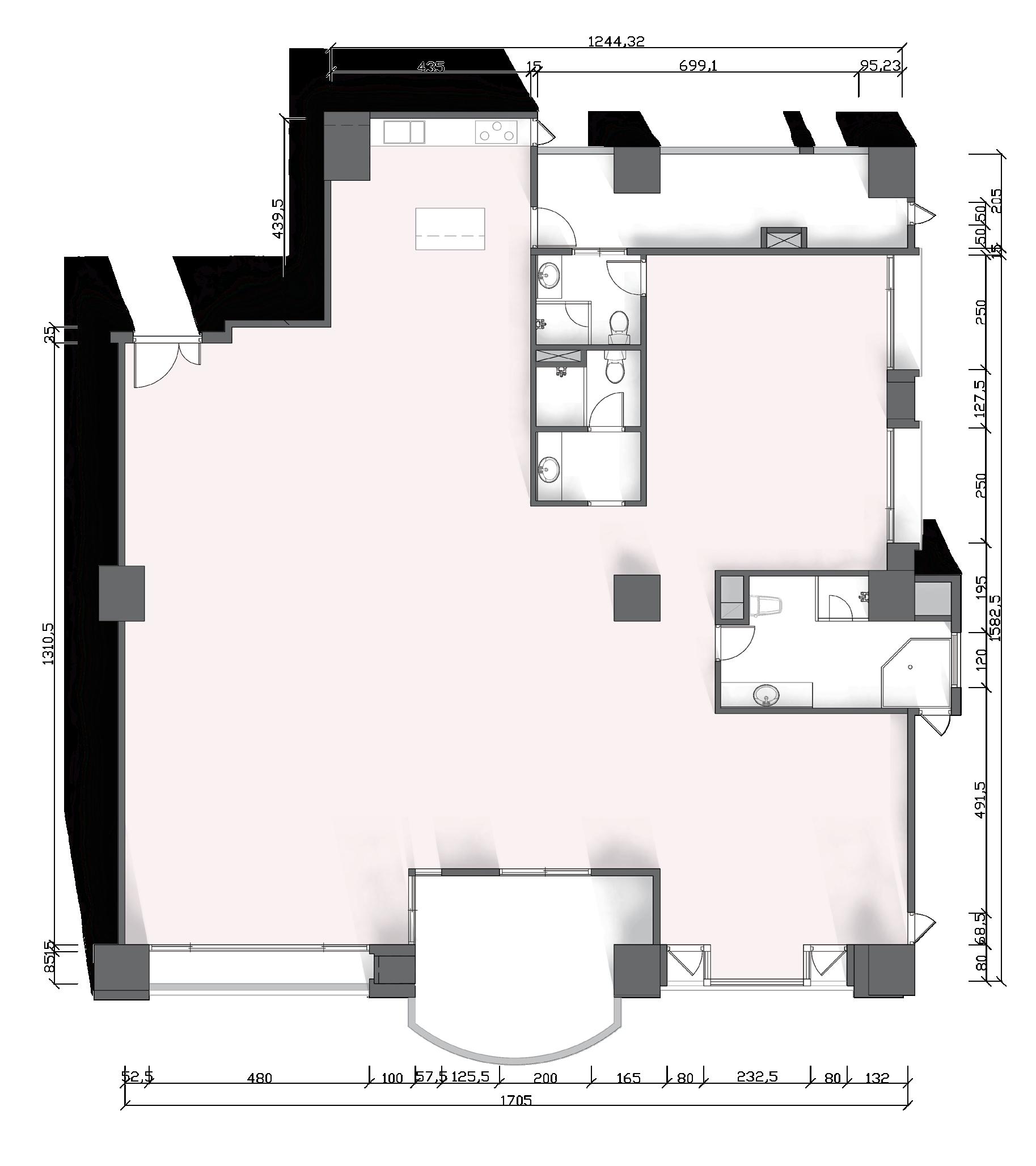
羅 府 設 計
/ L O h o u s e










S=1/500















































A-A′ Elevation S=1/40 U=CM




























KITCHEN / DINING ROOM / WORK ROOM WEST ELEVATION

























S=1/7




KITCHEN / DINING ROOM / LIVING ROOM WEST ELEVATION





























































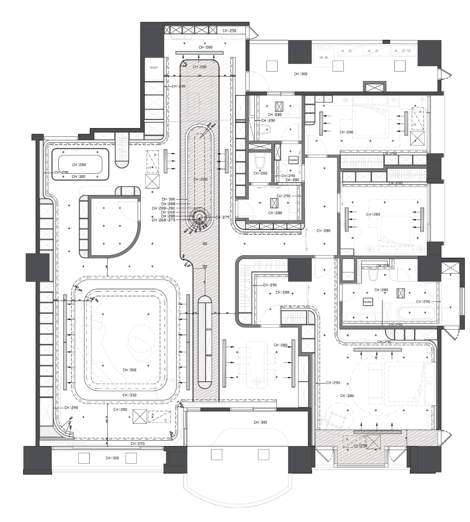
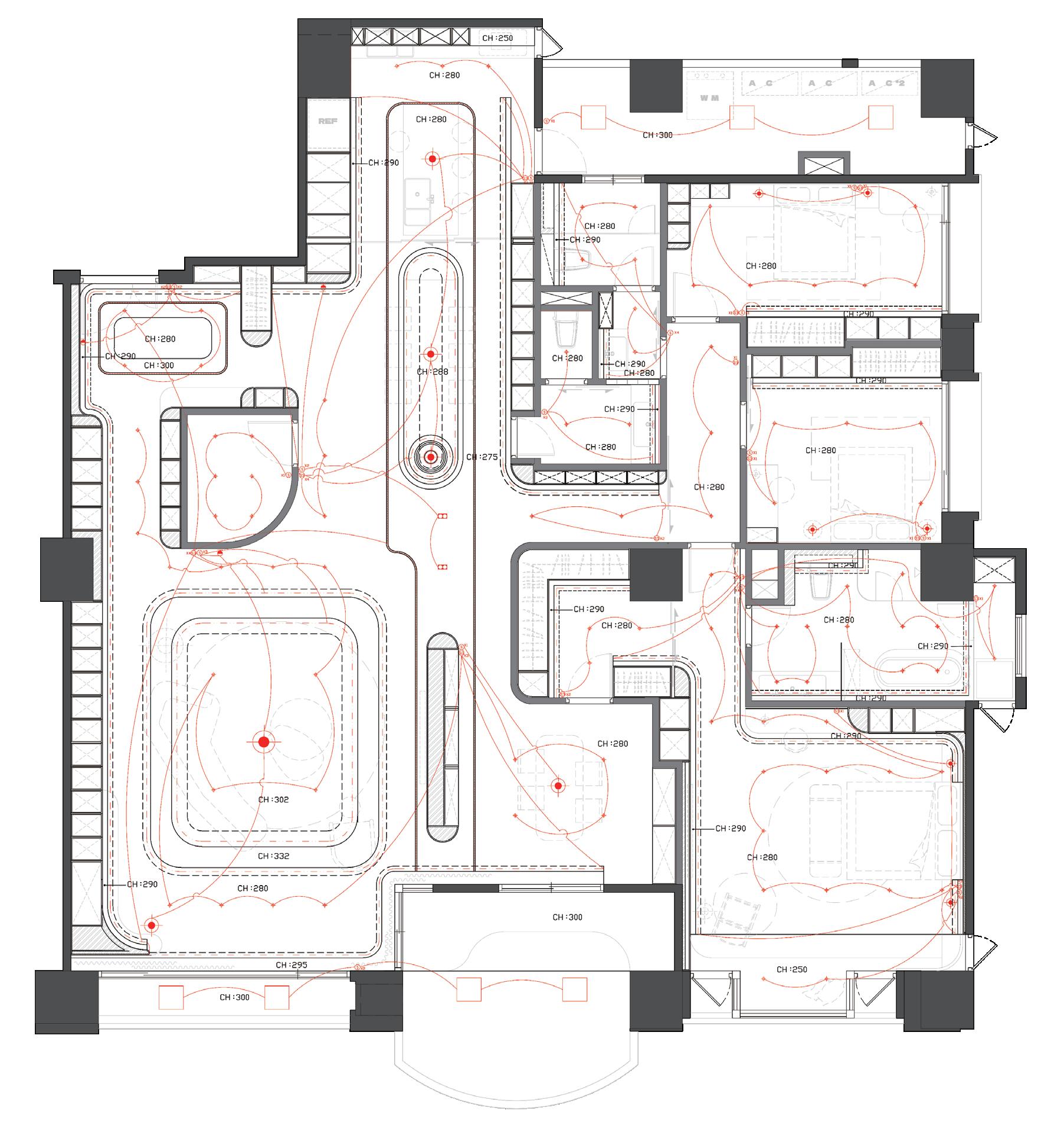
櫃 體 施 工 設 計
/ C a b i n e t
C o n s t r u c t i o n d r a w i n g








Thank you for your attention