Skip to main content

My Portfolio

Page 1

Pranav Kadambi Selected works over the course of 7 semesters 2020-2023 School of Environment and Architecture Mumbai

Hi ! I’m an avid listener of music, appreciate art and culture in any form and i’ve always been intrigued of the thoughts behind anything out-ofthe-box, be it films, books, art or buildings.

I collect random things regarding pop culture, can spend an entire Mumbai local ride eavesdropping an arguement, and can find things to observe even in an empty field.

I see myself exploring and discovering new things on my own- skills, knowledge and even places. Makes it a lot more exciting that way!

Being a keen student of architecture, the interaction between builtform and life intrigues me- the nuances of the smaller details and the effects they have in the everyday of the people fascinates me. The curation of space is a powerful tool.

Education

LKG - Grade 7 | 2006 - 2015

PSBB-LLA, Bangalore

Grade 8 - 10 | 2015 - 2018

AECS Magnolia, Bangalore

Grade 11-12 | 2018 - 2020

Bangalore International Academy (NSV), Bangalore

B.Arch | 2021 onwards

School of Environment and Architecture, Mumbai

Workshops

2021| Useful and Unuseful Objects by Milind Mahale

2021| Inside the Haveli by Anubhav Pradhan

2022 | Illustrations and Storytelling by Sadhana P

2022 | The Self and The Structure by Dipti B

2022 |Disobedient Subjects by Aastha Deshpande

2023 |Printmaking by Sanjana Shelat

Languages

English, Kannada & Hindi (Basic)

Contact Number - +91 7619447773 E-mail - pranavskadambi@gmail.com

Participations

2015 |Represented school in Table Tennis

AECS Magnolia, Interschool tournaments

2016 - 2017 | Represented school in Basketball

AECS Magnolia, Interschool tournaments

2016 - 2018 |Taught Spoken English

At a local NGO, taking 1 class per week

2022 - 2023 | Content Committee

Head of Reflective Blogs

2023 - Present | Council Member

Class representative of the batch and Assembly

Coordinator

Skillsets

AutoCAD Adobe Photoshop Adobe illustrator Adobe InDesign Sketchup Rhino Model Making Microsoft Excel Microsoft Access Good Good Fair Fair Good Basic Good Fair Basic
Instagram - pkads_ Twitter | X - pranavkadambi 1
a20pranav@sea.edu.in

Planet of Creases

1 2 5

Patience

3

Threshold of Twin Identities

Daily Wage Workers

2

Planet of Creases

Form and Space

Semester 2

The first year involved us exploring various mediumsthese included narratives, visual methods of representation, and finally, a physical method of interaction which aims at intertwining both.

Based on reading extracts, I created hand painted visual mediums which represented some of the first thoughts that came to my mind while reading- these being highly free flowing, and in some cases a monotonous texture.

The character sketch is derived from the visual medium created, and what thoughts it induces which further reflects the idea of motion, movement, and self consciousness. This in the form of the narrative.

The physical space is then further derived from the character sketch- what space does the character seem to inhabit? This was derived to be a modulated space with multiple planes.

These initial exercises allowed me to think through various lenses- how to convert perception into a visual form, and further convert that into a physical space.

1 3
What feelings do visuals, and physical space induce ?

“Take it behind and follow through” “down to up, down to up- do it in a sweeping motion”

“focus, come on, focus” “quick, punch it downwards, put some force into it”

“towards the other side” “move your shoulders, do it one motion- in a flow” “run back!”

“bend your knee, be in form” “run front!” “quick, in position” “ move sideways, keep the consistency going” “ah!, I could’ve done that better”

“how can i make my movement refined?”

“don’t get your form wrong”

“i can do this” “you have to place it perfectly- the accuracy is key” “push yourself, you can do better” “Keep practising, no errors”

“okay, one more time, the same routine”

“judge it quickly, analyse its movement”

“how can i improve?” “think one step ahead”

“take it smooth and easy, you know the technique!” “predict the placement, make your move” “do it gradually, don’t rush it”

4

Allied Design | Useful & Unuseful Objects

Semester 3

Given the task of identifying any object or tool in our daily lives that held a memory or recalled certain events over the years, I had chosen a hex key used to tighten bolts in a cycle.

Working on the concept of inducing patience, a quality using a hex key requires, I identified other objects in our daily lives that induced a very similar feeling- the urge to do something quickly but at the same required patience to accomplish.

This quality of patience would then be the prompt to design a product, which was to induce the quality of the same.

I Looked at the idea of dismantling the bicycle in a convenient manner such that it can be portable in small spaces.

Later, taking the idea of Legos and Mechanix kits, which use the same blocks and pieces to create varied products, brought out the idea of converting the basic frame of a cycle into temporary shelters or tent frames,

I further worked on my design idea by working with its form, thinking about its ergonomic aspects, with which the final concept was made.

This module brought out the aspect that even small tools when observed through its form, function and practical use can lead to interesting design ideas that sometimes might not be related to its initial field of use.

Analysing various methods of holdng a hex key, depending on its usage

The

Identifying limitations of a hex key

Patience
2 5
various components of a bicycle, opening the possibily of multiple uses of such components

The Manual

Standardising components along with its specifications

Identifying various joineries and its assembly

Identifying various joineries and its assembly

Identifying various joineries and its assembly

The cycle in its final form, with standardised sizes and components

The conceptual tent that can be created using the frame components of the cycle

6

Threshold of Twin Identities

Genealogy Studio | What is a museum? Semester 4

Hudson Circle, Bangalore

The studio approached the understanding of genealogy through the question- What is a museum? What is the role of a museum in representing culture and community?

The site lies in between what was the old city of Bangalore, and the cantonment which was later set up by the British after the annexation of the city. The Cubbon Park, and Chickpēte are located within a 300 metre radius.

The old city, with its market and organic growth has a very distinct identity compared to the more colonially planned cantonment.

The museum is to blur the threshold between the two areas - with a strategy to create an interface between them by reproducing the inner city streets and in its context, creating an interactive art and museum space.

This studio was the first to help grasp the process of designing a structure, as well as formulating programmes and intents.

3 7 Site Location Design Process

Ground floor plan,

The design follows the language of a grid, creating social spaces in the form of courtyards, terraces and balconies. Alcoves, niches become smaller spaces of gatherings,

First floor plan, Mezzanines , along with large volumes of spaces within, allows to host exhibitions of larger scales, house artefacts and other installations.

Second floor plan,

The higher floors give a sense of the varying size of buildings present within the older city, which rise above the balconies of those around it

8
9
Section through amphitheatre, restrooms and the old city Section through the larger, street facing museum block, showing View from balcony
10
house, showing the mezzanines and double-heighted spaces within showing narrow entrances to the inner courtyards, and steps toward balconies View of the street and courtyard

Gradualities

Environmental Flows

Semester 5

Jampore, Daman

The studio aims to address the environment as a set of interconnected networks.

How does architecture participate in these interconnections that alter, interrupt, break, prolong, hinder, stunt certain cycles that privilege or suppress life forms?

Jampore beach, Daman has a very distinct gradualness in its approach to the waters, with the Saru trees providing shade and instilling activities that extend up to the water, in contrast to the newer promenade that strictly limits certain activities for the locals and tourists alike.

The changing landscape due to tides provides uniqueness in the experience while approaching the water. The newer promenade, however, creates an abrupt change in materiality in the flow of texture and shade one experiences on the beach. How can we create a perforated intervention to blur the abruptness of change? What can be the potential in allowing a conducive environment for people to live and inhabit?

The design explores a language which opens up the existing shacks by rearranging them along the walls within the shade of the trees, and allowing the approach to the beach to be unobstructed.

The curved spaces act as spaces of pause around the trees, and also provide a safer space for the activities of the existing school to spill out beyond its premises as well, while allowing for activities of play.

Partnered with Lohitha Rao
2008 Present High-tide Inter-tide Low Tide
& Textures Change in intensity of shade 4 11
Diagrams of movement on site
Tides

It is one of the last beaches here that still allows for hawkers and shacks on the beachfront, with the coastal road not built to its fulllength. The built promenade here is largely uninhabited during the day, while the unbuilt provides a very porous edge to the beach with the setup of shacks and the movement of hawkers under the Saru trees. The unbuilt is occupied by people hroughout the day, however, this dynamic will change as the road’s construction will eventually lead to the systematic removal of the ecosystem over here.

Conceptual Axos, Canteen spaces and shelter

Conceptual Axos, walls wrapping around trees, steps

Concepts

of elevated walkways

12
13
D’
Sections
A’ A” B’ B” C’ C”
D”
14 Plan

Daily wage workers

Allied Design | Self and the Structure

Semester 5

Borivali West, Mumbai

What is an organisational structure? What does it mean? How does it allow people to hold and design their form of life?

In the ‘informal’ professions we studied we observed how their everyday is structured, their connections within various circles, their method of working, and finally, the inefficiencies noticed in their method of working.

The idea of a narrative to provide context of the everyday for each practice was taken up, and along with it would be illustrations to provide a more visual understanding.

The narrative follows the routines of those needing workers, the routines of these daily wage workers along with their backgrounds, and methods of working.

“You know what? I’ll just ask my dad, he’ll know where they sit ‘’

‘’I think they’re usually at that gully near Krishna Sweets. I’m not really sure though, it’s better to ask someone else”.

I’ve been needing a painter, not very urgent but it would be nice to have someone finishing the job. I asked my neighbours and some colleagues at work and they seem to have second thoughts about really knowing where they are.

“They usually sit near that big tree a little ahead from the junction where the skywalk starts”

I’m pretty sure I know where that is, but it’s better that I check the map to be sure. I got off at the junction and started walking down the street. I went past the big red banner Anish was talking about, and saw a decent crowd sitting by the shed under the Peepal tree. About 8 of them were gathered in a line and talking amongst themselves. With all of them being tightly involved in conversations, it almost felt like I was intruding on their own small corner.

5 15
Partnered with Keerat Kaur Gill

“Bhaiya, painter kidhar milega?”

They were plumbers.

“Usse apna ghar banane me bahut saari thakleefe aayi”

Talking about some gossip from their village back in Bihar. They kindly directed me down the road. As I went a little ahead by about 50 metres, I looked to my right just as I came to the bus stop. Sure enough, I saw a small group of 5 gathered in a circle conversing amongst themselves.

“Aap painter ho?”

“Haan”

We very briefly discussed what work was to be done, and what the problem was, with a quick 2 minute conversation they agreed.

“Hum shaam ke 6 baje ke baad kaam nahi karenge”

The work timings vary with the group, and the work they do. I gave them my number, and told them what time I'd be home in the evening.

“Rakesh ko puch”

They spoke amongst themselves as I left, probably discussing who's doing the job. They usually delegate tasks to each one in the group, generally on the location and duration of work.

16

There were a few food carts nearby where they sat. The vendors set up shop by 7AM as the workers usually have their breakfasts here in the mornings. I packed up a few samosas and pavs and headed back to the bus stop. As I walked past, a few young workers were gathering around their van heading to work, loading their carpentry tools and bags in the back while having a chit chat. A few others sat on the side waiting for other work. There are a few days in the month where they lose out and do not receive work. Overhearing their conversation,

“Kal ka din badi mushkil se nikala, kal kaam nahi mila toh mera nuksan hogaya. Agar yaha kuch suvidhaye hoti taki pure din me kaam mil sake toh bohot accha hota humare liye. Agle mahine apne gaon jane ka soch raha hu, ek do mahino me aa jaunga.”

They usually go back to their hometowns for about 1 and a half to 2 months every year. The months in which they go back home generally varies from the region and community they’re in. Their groups are largely formed by bringing in family and hometown members who are looking for work in the city.

“Accha you found them there? I always thought they were near the jewellers junction”

“Told you they would be near the station area”

I told my neighbours and colleagues I got someone to do the work by going around in the morning, and thanked them.

17

The painter came as expected in the evening, bringing in a large bag, which contained every painting equipment needed- from tiny brushes, to plasters.

“Kidhar?”

Straight to the point, with no unnecessary conversations. I directed him to where and what the problem was, and he immediately got working. 15 minutes into his work, he called a co-worker asking for some fixings he didn't have.

“Me idhar kaam ke liye aaya hun, uske liye thoda saman leke aa”

Not even 10 minutes later, he arrived with what was required, and the work resumed. The worker who brought in the materials seemed to be new in the profession, the more experienced worker gave him small directions for every other step.

“Chai bana sakte ho?”

About halfway through the work, I gave them some biscuits and tea.

“Aaj kal koi ek dusre ko janta hi nahi hai, kon kaha se aaya hai, kidhar rehta hai ..agar hum subhe jab kaam dhunde ke liye rukhte hai tabhi sab naye mazduro ko kaam sikha de toh accha hoga, humari dosti bhi badegi.”

They had their own chit chat during that time, unbothered by me. They finished the work by the evening, after which they cleaned up the material and waste. They pointed out what the problems were, and told me what I had to get changed and Wreplaced to prevent further issues.

“Kitna hua?”

“Aapko jitna lage, utna dedo. ”

“Nahi, jitna har jagah lete ho, utna bata do”

We discussed the cost of materials, and had a few back and forth about how much I needed to pay him. He demanded I pay for the transport he and his co-worker had taken to come home. They usually get 1500 rupees on a good day of work, usually working in 2 or more places.

“Thik he, 1200 de do”

We eventually settled on 1000, and they headed to their next place of work after promptly packing up their tools into the bag.

“Hum idhar aas-paas mein rehte hain, aur kuch kaam hoga toh, humko call karo”

They gave me their contact as they left.

“Hey, do you know where I can find a plumber? I know they’re near the station somewhere, i was hoping you’d know better”

A friend called me up, he needed some touching up in some parts of the house. However, I had the contact of a painter though, so I couldn't help him there.

“No, I'm not sure about plumbers, you can find some workers by the bus stop a little ahead from where the skywalk starts. You can ask them, they’ll know”

A while later he came back to me,

“Turns out they usually gather near that post office building on Mahant Road, there was a bit of asking around to do”

18

Disobedient Subjects

Electives

Semester 5

What is ‘disobedience’? Is disobedience understood as a site of protests and revolutions? Where and why do they emerge? What is disobedient to society? Is it a subject of what is right or what is wrong, or a subject of taboo?

The discussion of ‘Disobedient Subjects’ started with mind mapping a concept or topic which we felt is disobedient, it could be either disobedient to society, a particular person, or oneself.

We then created a mind map on each of these topics and looked at disobedience through the lens of why, when and how.

Each individual mind map was then interlinked with common anchoring points of others’ mind map, to see how each individual idea of disobedience overlaps with one-another.

Taking my ‘disobedient’ practice of procrastination, I further asked- What is productivity? What is time? What is the need for time management?

Overall, the course helped us articulate & introspect our own biases. Words can be used as a powerful medium to change our perspectives and are a tool to make communities and individuals feel included or excluded.

The mind-map 6 19
20

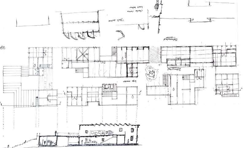
Visible and Invisible Spaces

Building Making | Working Drawings

Semester 6

Trombay, Mumbai

Due to the existing school’s incremental nature, various spaces in the school have opportunities in being used for various purposes thanks to its materiality and temporality. Spaces with more defined intents and fewer affordances for multiple activities tend to be disused, and ends up being used as storage

The incremental built-form has resulted in certain spaces being less visible, and as a result changed the way it has been used and maintained. The library being a recent addition, has covered up the washroom behind it, causing more pile up of trash and items for storage purely because the clutter is not visible to the eye. This has caused highly unhygienic spaces for the students to use.

How do niches, jaalis, columns, plinths and shade form segration of genders and also allows affordances of certain activities, while demarcating spaces for the same. What forms allow for gaze? A sense of security? Conversations? Play? Loitering?

The incremental growth of builtform in the school has resulted in some spaces neglected due to newer structures being built, hiding those spaces behind it

7 21

Concepts

Concepts of plinths, and semi open spaces

Creating spaces of play, intimacy and conversation through the creation of semi-open spaces, plinths and modulations

Designing the plan using a grid, demarcating spaces based on purpose and programme

Physical models, experimenting with form and tensile materials

Sketched sections

22
23 Ground Floor Plan Section

The school is used by the local community for larger events such as festivities or weddings, as it is one of the few spaces with a large open ground.

This provides an oppurtunity for a multi-purpose space which can hold classes, as well as events depending on the requirement, with collapsible, modular walls.

This multi-purpose space in the centre allows for larger gathering to happen around it, taking the typology of stage.

The school also provides niches for community spaces and washing in the gullies behind by having setbacks. This also allows for more light and ventilation to enter, while allowing for a backyard garden space for some indiviual classrooms.

The classrooms follow a typology which has multiple entrances, and keeping the corners open, so as to not provide the feeling of a compartmentalised space, something more open than enclosed.

24 8m
As a classroom As a wedding stage

Working Drawings

Ground Floor Plan

Section

25------SR. PRANAV SCHOOL THIRD ROLL AND 2022 PUBLIC AT W2 CLASSROOM 1 5.77M X 6.76M 1500 500 1500 875 1500 3000 500 1000 3000 1500 2500 1500 4000 1500 1500 2000 1000 1500 3000 1500 1500 2000 1500 1500 1500 3500 1500 1000 2500 1500 1000 1500 500 1500 3000 1500 1500 3000 1500 3000 1000 1000 1500 3500 1 2 3 4 5 6 7 8 9 10 11 12 13 14 15 16 17 18 19 20 21 22 23 24 25 A B C D E G H F I J K L M N O P Q R S T U V W X 1125 1500 500 750 1500 750 CLASSROOM 2 7.77M X 3.27M STAFF ROOM 2.77M X 5.27M MULTI-USE SPACE 6.23M X 7.23M STAFF MEETING ROOM 5.77M X 6.76M CLASSROOM 3 6.27M X 8.25M CLASSROOM 4 7.77M X 6.77M CLASSROOM 5 23.69 SQ.M. CLASSROOM 6 23.69 SQ.M. CLASSROOM 7 7.77M X 6.77M CLASSROOM 8 7.77M X 6.77M CLASSROOM 9 4.76M X 4.77M CLASSROOM 10 5.00M X 4.77M AADHAR OFFICE 4.77M X 4.77M W2 W2 W2 W2 W2 W2 W2 KOTA STONE 300 mm x 300 mm KOTA STONE 300 mm x 300 mm KOTA STONE 300 mm x 300 mm KOTA STONE 300 mm x 300 mm KOTA STONE 300 mm x 300 mm KOTA STONE 300 mm x 300 mm KOTA STONE 300 mm x 300 mm KOTA STONE 300 mm x 300 mm KOTA STONE 300 mm x 300 mm KOTA STONE 300 mm x 300 mm KOTA STONE 300 mm x 300 mm KOTA STONE 300 mm x 300 mm KOTA STONE 300 mm x 300 mm KOTA STONE 300 mm x 300 mm ANTI SKID 300 mm x 300 mm CERAMIC TILE ANTI SKID 300 mm x 300 mm CERAMIC TILE TOILET FOR ANTI SKID 300 mm x 300 mm CERAMIC TILE ANTI SKID 300 mm x 300 mm CERAMIC TILE W1 W1 W1 W1 W1 W1 W1 W1 W1 W1 W1 W1 W1 W1 W1 W2 W2 W2 W2 W2 W2 W2 W2 W2 W2 W2` W2 W2 W2 J1 J1 J1 J1 J4 J4 J4 J2 J2 J2 J2 J2 J3 J3 J5 J5 J3 J3 D2 D2 D2 D3 D3 D3 D3 D1 D1 D1 D1 D1 D1 D1 D1 D1 D1 D1 D1 D1 D1 D1 D1 D1 D1 D1 D1 D1 D1 D1 D1 D1 D1 D1 D1 D1 D1 D1 D1 D1 D1 D1 D4 D4 D5 D5 W2 W2 LIBRARY BLOCK 15.24 SQ. M. D2 D2 D2 D2 D2 D2 D2 13 UP UP UP UP 543 6385 2963 1893 1803 6500 325 325 3000 1885 1885 6248 6250 5000 5000 1385 1385 5385 5500 1000 975 2000 1078 918 2273 3000 2770 1885 3385 1013 913 508 418 5770 1078 918 613 945 1033 385 3500 1920 850 593 963 4885 2000 673 1613 303 2500 925 1000 875 1000 1630 1500 1500 1200 1200 1200 1500 1000 1000 1200 1000 900 760 730 350 530 1500 1500 1500 1820 4308 772 900 913 1788 845 845 913 4288 2990 44730 44500 3500 3500 6000 8000 6000 6500 8000 3000 44500 44730 4000 15000 2000 11000 8000 4500 36615 36500 7000 7000 7000 7000 7000 1500 36615 36500 5875 2625 4500 5500 8000 5000 1000 4000 FINISHED DIMENSION OVERALL CENTRELINE DIMENTION CENTRELINE DIMENSION FINISHED DIMENSION OVERALL CENTRELINE DIMENTION CENTRELINE DIMENSION OVERALL CENTRELINE DIMENTION CENTRELINE DIMENSION D6 ENTRY GATE
3 4 6 8 9 10 13 1 2 4 6 7 8 11 600 2250 450 300 2500 500 RANDOM RUBBLE 150mm-450mm PACKING STONES FILLING IN WITH APPROVED MURRUM BROUGHT FROM OUTSIDE PLINTH BEAM OF CONCRETE M20/40 15 MM THICK EXPOSED BRICK FIRST CLASS INTERNAL MASONRY WALL 230 mm FIRST CLASS EXPOSED BRICK MASONRY WALL I E B 2500 500 1425 RANDOM RUBBLE 150mm-450mm PACKING STONES PLINTH PROTECTION 150mm RCC M20 FILLING IN WITH APPROVED MURRUM BROUGHT FROM OUTSIDE R.C.C. SLAB 150MM GI SHEET ROOFING OF 1M X 2M SHEETS WITH OVERLAP OF 150mm 230 mm FIRST CLASS EXPOSED BRICK MASONRY WALL RCC RAFT WALL 300mm THICKNESS STEEL BEAMS ISMB 250 I SECTION KOTA STONE FLOORING GREEN MIRROR POLISHED 300mm X 300mm OVER 20mm CM 1:6 D1 D1 D1 D1 J2 J1 A B

Staircase Detail

------13 16 18 19 22 23 11 14 16 17 19 20 935 1115 450 500 1204 600 2250 450 300 600 2250 450 300 2550 250 2800 1105 1115 280 500 STEEL BEAMS ISMB 250 SECTION 600mm RAFT SLAB IN CONCRETE M20/30 300 mm PCC BED IN CONCRETE M20/30 SCREEDING ANTI - TERMITE PRECONSTRUCTION TREATMENT DAMP-PROOFING LAYER 50mm PLINTH PROTECTION 150mm RCC M20 R.C.C. SLAB 150MM ANGLED PURLINS ISMC 100 WITH J - HOOK GI SHEET ROOFING OF 1M X 2M SHEETS WITH OVERLAP OF 150mm G.I. ROOF GUTTER 5mm, WITH 10mm BRACKETS RCC RAFT WALL 300mm THICKNESS 5 PANEL TIMBER LOUVERED WINDOWS 20mm THICK TEAKWOOD PANELS KOTA STONE FLOORING GREEN MIRROR POLISHED 300mm X 300mm OVER 20mm MORTAR OF CM 1:6 U S Q K X 2686 460 305 2810 370 450 2810 2540 250 1211 3700 890 473 300 mm PCC BED IN CONCRETE M20/30 600mm RAFT SLAB IN CONCRETE M20/30 SCREEDING ANTI - TERMITE PRECONSTRUCTION TREATMENT DAMP-PROOFING LAYER 50mm PLINTH BEAM OF CONCRETE M20/40 ANGLED PURLINS ISMC 100 WITH J - HOOK G.I. ROOF GUTTER 5mm, WITH 10mm BRACKETS 5000L SINTEX OVERHEAD WATER TANK FLOORING POLISHED MORTAR OF D1 D1 230mm EXPOSED BRICK JAALI J2 W2 W4 A' B' 26
1 2 3 4 5 6 7 8 9 10 11 12 13 14 15 16 +175 +350 +525 +875 +1050 +1225 +1400 +1575 +1750 +1925 +2100 +2275 +2450 +2625 +2800 +700 WELDED METAL L-PIECE 15mm THICK KOTA STONE 20mm SCREEDING 20mm TIMBER STEPS 20mm METAL RAILS 15mm SANDWICHED METAL BALUSTERS 15mm THICKNESS SCREW TO HOLD TIMBER STEPS 4 M10 SCREWS PER STEP METAL BASE PLATE 10mm M20 SCREW TO HOLD GUSSET PLATE TO RCC PLINTH 1200 175 1600 700 250 250 250 750 KOTA STONE FLOORING GREEN MIRROR POLISHED 300mm X 300mm STEEL COLUMN 100 I-SECTION 10mm THICK R.C.C. SLAB 150MM SCREEDING 25mm GUSSET PLATE 20mm THICK WITH 4 M20 BOLTS FOR HOLDING 100 I-SECTION STAIRCASE BEAM TIMBER HANDRAIL WITH GROOVES ON SIDE FOR GRIP EQ EQ EQ EQ EQ EQ EQ EQ EQ EQ EQ EQ EQ EQ 175 RCC SLAB 150mm STEEL STAIRCASE BEAM 100 I-SECTION 10mm THICK GROOVES FOR GRIP 4 GROOVES OF 7.5mm METAL BALUSTERS WELDED DIRECTLY TO STAIRCASE BEAM TIMBER HANDRAILS METAL BALUSTERS 1200mm IN HEIGHT STEEL COLUMN 100 I-SECTION 10mm THICK METAL BARS 10mm DIAMETER METAL BASE PLATE 10mm TIMBER HANDRAILS MID-LANDING MID-LANDING DETAIL 1 DETAIL 2 DETAIL 3 DETAIL 1 DETAIL 2 DETAIL 3

External wall section with details

60mm NATURAL 40mm LOUVERMETAL 10mm TEAK LOUVERS OF 30mm WIDE SHUTTER GROOVED WINDOW 100mm G.I. ROOF GUTTER 5mm, WITH 10mm BRACKETS METAL MESH I-SECTION BEAMS OF ISMB 250 FOR SUPPORTING TRUSS SYSTEMS METAL ANGLE 10mm THICK FOR BEAM SUPPORT 5 PANEL TIMBER LOUVERED WINDOWS 20mm THICK TEAKWOOD PANELS PLINTH BEAM CONCRETE M20/40 PCC BED 150mm CONCRETE M20/40 RANDOM RUBBLE 150mm-450mm PACKING STONES COMPACTED EARTH GROUND LINE 75mm THICK WITH 10mm MORTAR GUSSET 20mm THICK FOR ISMB 250 230 mm FIRST CLASS EXPOSED BRICK MASONRY WALL SKIRTING HEIGHT 115mm, MIRROR POLISHED AND MACHINE CUT 20MM THICK KOTA STONE 1mm DIAMETER WIRES 20mm X 20mm GRID EXCAVATION PIT LINE WITH 1200mm FROM RAFT WALL DETAIL 2 DETAIL 1 DETAIL 3 DETAIL 1 AT 1:10 DETAIL 2 AT 1:10 DETAIL 3 AT 1:10 TRUSS MEMBERS HOLLOW BOX SECTION ALL MEMBERS 100 x 100, 8 mm THICK ANGLED PURLINS ISMC 100 WITH J - HOOK ANTI - TERMITE PRECONSTRUCTION TREATMENT STONE COPING OVER CLASSROOM WALLS HAVING DIMENSIONS 250 MM WIDE 100 MM THICKNESS IN PIECES OF 600 MM LENGTH OVER A MORTAR BEDDING OF CM 1:6 600mm RAFT SLAB IN CONCRETE M20/30 WACKER OF 2 MICRON WATERPROOFING R.C.C. SKIRTING HEIGHT 115mm, MIRROR CUT 20MM THICK W1 W1 NATURAL 40mm 27 60mm PCC SILL NATURAL STONE LINTEL 40mm THICK LOUVER - SHUTTER HINGE METAL PIVOTS 10mm DIAMETER TEAK LOUVERS OF 20mm THICKNESS 30mm WIDE SHUTTER PIECE WITH GROOVED HANDLE WINDOW FRAME 100mm RCC LINTEL G.I. ROOF GUTTER 5mm, WITH 10mm BRACKETS METAL MESH I-SECTION BEAMS OF ISMB 250 FOR SUPPORTING TRUSS SYSTEMS METAL ANGLE 10mm THICK FOR BEAM SUPPORT 5 PANEL TIMBER LOUVERED WINDOWS 20mm THICK TEAKWOOD PANELS PLINTH BEAM CONCRETE M20/40 PCC BED 150mm CONCRETE M20/40 RANDOM RUBBLE 150mm-450mm PACKING STONES COMPACTED EARTH GROUND LINE 75mm THICK EXPOSED BRICK WITH 10mm MORTAR BEDDING OF CM 1:6 GUSSET PLATE 20mm THICK WITH 6 M10 BOLTS FOR ISMB 250 I-SECTION COLUMN 230 mm FIRST CLASS EXPOSED BRICK MASONRY WALL SKIRTING HEIGHT 115mm, MIRROR POLISHED AND MACHINE CUT 20MM THICK KOTA STONE 1mm DIAMETER WIRES 20mm X 20mm GRID G.L. EXCAVATION PIT LINE WITH 1200mm FROM RAFT WALL DETAIL 2 DETAIL 1 DETAIL 3 DETAIL 1 AT 1:10 DETAIL 2 AT 1:10 DETAIL 3 AT 1:10 TRUSS MEMBERS HOLLOW BOX SECTION ALL MEMBERS 100 x 100, 8 mm THICK ANGLED PURLINS ISMC 100 WITH J HOOK ANTI - TERMITE PRECONSTRUCTION TREATMENT STONE COPING OVER CLASSROOM WALLS HAVING DIMENSIONS 250 MM WIDE 100 MM THICKNESS IN PIECES OF 600 MM LENGTH OVER A MORTAR BEDDING OF CM 1:6 600mm RAFT SLAB IN CONCRETE M20/30 WACKER LAYER OF 2 MICRON THICK FOR WATERPROOFING PLINTH PROTECTION 150mm RCC M20 ANTI - TERMITE PRECONSTRUCTION TREATMENT 600mm RAFT SLAB IN CONCRETE M20/30 RCC RAFT WALL 300mm THICKNESS DAMP-PROOFING LAYER PCC BED 150mm CONCRETE M20/40 RANDOM RUBBLE 150mm-450mm PACKING STONES COMPACTED EARTH R.C.C. SLAB 150mm SKIRTING HEIGHT 115mm, MIRROR POLISHED AND MACHINE CUT 20MM THICK GREEN KOTA STONE W1 W1 NATURAL STONE SILL 40mm THICK
LEGEND FRESH WATER PIPE BLACK WATER PIPE GREY WATER PIPE A A' B B' GRANITE PARTITIONS FOR URINALS VITREOUS WHITE CHINAWARE URINAL LARGE FLAT BACK WALL HUNG URINAL SIZE 610 X 400 X 380MM 500mm X 500mm VENT OF FROSTED GLASS, PANELS INDIAN MAKE WHITE GLAZED VITREOUS CHINAWARE WALL HUNG EUROPEAN WATER CLOSET CISTERN 230 mm FIRST CLASS BRICK MASONRY WALL WACKER LAYER OF 2 MICRON THICK FOR WATERPROOFING ISI MARKED MAKE WHITE GLAZED VITREOUS CHINAWARE ORISSA WATER CLOSET OF 600MM X 455MM WITH BOX RIM INLET WITH P TRAP TILE DROP OF 15mm TILE DADO OF CERAMIC TILES 15mm 200mm X 300mm SCREEDING 25mm NAHANI TRAP 100mm MALE TOILET FEMALE TOILET START START START START ANTI SKID TILES 300 mm x 300 mm ANTI SKID TILES 300 mm x 300 mm 300 300 3510 300 300 635 1470 514 970 970 970 405 405 720 720 720 280 720 405 720 125 125 435 900 900 900 1210 1170 1170 900 900 1000 665 970 970 W2 W2 W2 W2 W2 W2 W2 W2 W2 W2 500 500 625 500 625 500 625 500 625 500 500 335 600 600 500 230 mm FIRST CLASS BRICK MASONRY WALL WATER PROOFING 6mm SCREEDING 30mm WACKER LAYER OF 2 MICRON THICK FOR WATERPROOFING PCC COPING OVER PARAPET WALLS HAVING DIMENSIONS 300 MM WIDE 50 MM THICKNESS OVER MORTAR BEDDING OF CM 1:6 R.C.C. SLAB 150MM INDIAN MAKE WHITE GLAZED VITREOUS CHINAWARE WALL HUNG EUROPEAN WATER CLOSET CISTERN 500mm X 500mm VENT OF FROSTED GLASS, PANELS ANTI SKID TILE FLOORING 15mm THICK OF 300mm X 300mm TILE DADO OF CERAMIC TILES 15mm 200mm X 300mm VITREOUS WHITE CHINAWARE URINAL LARGE FLAT BACK WALL HUNG URINAL SIZE 610 X 400 X 380MM HINDUSTAN PILKINGTON MAKE MIRRORS, 6MM THICK WITH PLAIN 8MM THICK PLYWOOD BACKING, 4NOS CP BRASS SCREWS. 50mm SCREEDING GRANITE PARTITIONS FOR URINALS RCC SILL 150mm SCREEDING 25mm A A' W2 W2 W2 W2 W2 W2 W2 28 Toilet Plan Toilet Section

Claims of Water

Settlement Studies

Semester 6

Kumbalangi, Kochi

How can we map the changing relationship between human and other-than-human relationships, in the context of ‘climate change’ in tropical monsoonal grounds?

How can we map a ‘settlement’ and its built forms as manifestations of changing relationships - monsoons, water, ground, canals, backwaters, vegetation, marine, humans, crops- and revise the notion of ‘built form’, ‘settlements’ and ‘climate change’?

The module took us to the edges of the city of Kochi, Kerala with its backwaters, coasts and fishing harbours. The sites of Kumbalangi and Chellanam are along the confluence of the Arabian sea with the Vembanad lake and the terrain is majorly composed of brackish water. The fabric of builtform in Kerala as a whole is interesting as there are few cues to differentiate what is truly ‘Urban’ and ‘Rural’.

The site is a thin strip of land built up by various bund segregating ponds and other smaller water bodies, all being surrounded by the large, vast backwaters.

Groupwork with Anika Pugalia, Chetasvi Patel, Gauri Shinde and Hrishikesh Chhaparwal

8 29
The Derive explains the various anchoring points in orienting our site, and the observations of various elements we made along the way.

The Rhythm shows the routine and close relationship between the water bodies, their entities as well as the landscape and its influence on the people who rely on them with their multiple interdependencies

CLOSED BACKWATER 1 2 3 4 5 6 7 8 9 10 11 12 0 1 2 3 4 5 6 7 8 9 10 11 12 13 14 15 16 17 18 19 20 21 22 23 24 PRAWNS & POKHALI RICE KARIMEEN LAND DISTRIBUTION DAILY PRAWNS & CRABS KARIMEEN MARKET TIDES SEASONAL Months WINTER SUMMER MONSOON WINTER Water is drained from the closed backwaters to prepare for the pokhali rice fields. During the monsoon season some fishermen work as taxi drivers while some work on the paddy fields. The fields are filled again to prepare for the prawn season and prawn stockings are added. During high tide the water slowly overflows into the backwaters. The net is attached to the bridge over the inlet/outlet to catch fish using the flow of water. Small quantity of fishes is caught during high tide. During low tide, the water rapidly flows back to the river. The net is attached to the bridge over the inlet/outlet to catch fish using the flow of water. Large quantity of fishes is caught during low tide. The land does not belong to anyone between June to December. It is open for anyone to fish. Fishing is done extensively during from November to April. The crabs are fed small fishes caught while fishing prawns.They are fed once every 2 days. The Assamese fishermen and fishermen working on the Chinese fishing nets do their individual fishing during the day. A light at the lure prawns. The Chinese fishing nets are used mainly during the night. The fishermen start preparing the nets by 6pm. It works on a half-an- hour cycle where the fishing nets are lifted after being dipped in the water for half-an-hour from 8pm to 4am. Before markets open, the shopkeeper visit these fishermen and a bidding takes place. The other way is to clean the fishes and export. The prices drop & hike according to the quality and health of the fish. Karimeen in the barrel nets are fed soya bean granules 2 times a day. Karimeen is caught is very small quantities while using the Chinese fishing nets. Fishing on water that is From April 14th to 30th the waters are opened to everyone to fish by showing permissions given by the Padshekharam. During the monsoons, the backwaters are not left 1 2 3 4 5 6 7 8 9 10 11 12 0 1 2 3 4 5 6 7 8 9 10 11 12 13 14 15 16 17 18 19 20 21 22 23 24 FISHING FESTIVALS PRAWNS & CRABS KARIMEEN MARKET TIDES WINTER SUMMER MONSOON WINTER DAILY SEASONAL Months The crabs are fed small fishes caught while fishing prawns.They are fed once every 2 days. The Assamese fishermen and fishermen working on the Chinese fishing nets do their individual fishing during the day. A light at the lure prawns. The Chinese fishing nets are used mainly during the night. The fishermen start preparing the nets by 6pm. It works on a half-an- hour cycle where the fishing nets are lifted after being dipped in the water for half-an-hour from 8pm to 4am. Men from Assam migrate chinese fishing nets in the night and do individual fishing during the day. During high tide the water slowly overflows bridge over the inlet/outlet to catch fish using the flow of water. Small quantity of fishes is caught during low tide. During low tide, the water rapidly flows back to the river. The net attached to the bridge over the inlet/outlet is flipped to the other side to catch fish using the flow of water. Large quantity of fishes is caught during low tide. On the occassion of Easter, the fishing activity increases. On the occassion of Onam, the fishing activity increases. On the occassion of Christmas, the fishing activity increases. Karimeen are lured by soya bean granules into the setup. The setup consists of concentric squares with bamboos at intervals to attach the net. Once a good quantity of fish enter the outer square, the nets are lowered to the water bed to trap them inside the setup. The net is then constricted to the inner square to create a high fish density area. They then catch fish using nets from the high density zone. The fishes caught are sent to the local market. A bidding takes place in the local market where the fishes are sold to the highest bidder. The fishing season starts in November and continues till April. The fishing activities are minimum. The backwater is left for the fishes to mature and breed. keep the bigger karimeens. has a metal structure attched to barrel with nets on the metal rods, segregating the fishes into cages. soya bean granules 3 times a day. OPEN BACKWATER 30
31

The Spatial affordance documents the built-form and its relationship with the water, and its changing patterns with its immediate environment

The built form of the site has been changing over the years in a constant effort to withstand evolving environmental conditions; this change and development of the built form are quite evident in the settlements. It is not only the environmental aspect that changes the characteristics of local built form, but also the economics of each settlement and its dependencies on its fishing industries.

The module gave a great perspective on the seemingly unrelated factors on livelihood, produce, economy, culture and community- and allowed us to move a step deeper into sensitising ourselves with climatic conditions, with its ever changing patterns, along with which we evolve our practices, routines and built environments.

32

Haji Ali Park & Market

Specialisation | Landscape Design Semester 7

Haji Ali, Mumbai

Mumbai’s new coastal road has resulted in the reclamation of about 274 acres of land, where new transport hubs, parks and other public infrastructure is planned to be built. This project has provided an opportunity to rethink the urban landscape while being more sensitive to the environment around us as the massive infrastructure created by the coastal road project is highly desensitised to its immediate surroundings.

The Haji Ali Dargah, along with its market has seen a stark change with construction of the interchange.

The reclaimed land provides an opportunity where the market can be revitalised, along with the creation of public parks and other infrastructure while incorporating smaller nuances to allow for a more sustainable ecosystem that has been affected by the coastal road. The project is 9.2 acres, or 400.000 sq. ft. in area and incorporates spaces for the market, a transit hub, viewing decks and revitalising a stormwater drain to sustain its immediate ecosystem.

The market takes a radial form around the central event space where cultural activities may spill out beyond the dargah, while the park has meandering spaces with spaces for seating scattered around.

Landscape projects like these helped familiarise myself with dealing with larger scales, and understand the nuances in designing such projects.

9 33
Master Plan
34
35
36 Transit Hub
Multi-level Deck
Market
Gazebos Naala and Reedbeds

Miscellaneous

Model Making

Rhino Sketchup

37
Tactical Interventions and Light Structures - Street Design Repair and

Laser-cut Models

- Housing
and Invisible spaces, Building Details 38
Retrofit
Visible

The face of the city varies with every passing moment, the busy junction by day, becomes a haven for the chai-walas on their cycles at night, selling cigarettes

That railway overbridge, by the market, is home to about 4 families, who eat, sleep and bathe there. crazy right?

Some complain about the conditions in the city, some wonder what the solutions are, some wonder why it is so, and some perhaps, wonder if there’s an issue at all?

Architecture shapes all lives and form

Turn static files into dynamic content formats.

Create a flipbook