PORTAFOLIO DE ARQUITECTURA

Page 1

andrea cárdenas

PORTAFOLIO

2024

...Vivienda multifamiliar en canal de Surco

...Vivienda multifamiliar en Madrid

...intervención urbana en Campamento

...intervención urbana en la Ermita del Santo

Andrea Cárdenas Dávila Pag. 2. CONTENIDO 01 02 04
04-05...
01...
02... 03... 04... 05...
01-02-03...
...arquitectura ...urbanismo
...Mediateca PUCP
Pag. 3. Portafolio 03 05

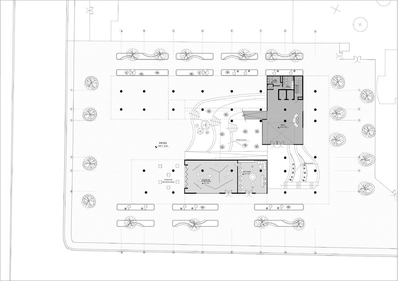
Mediateca PUCP

El edificio público diseñado es una mediateca dirigida hacia los estudiantes de la PUCP, como al público en general, para así dotar a la ciudad espacios de calidad.

El edificio se ubica en el campus universitario y está condicionado por la preexistencia prehisánica mediante el Camino Inca y la huaca Tres Palos, las

cuales ejercen un rol muy importante en el proyecto, ya que la plaza mayor está orientado hacia ella.

Además, la presencia del edificio constituye un hito que mejora la calidad de ciudad con espacios más seguros y no delimitados por muros ciegos y sin veredas.

Andrea Cárdenas Dávila Pag. 4. 01
4
Proyecto realizado en Taller
Pag. 5. Portafolio
fugado
Plot plan Corte Primer nivel
Andrea Cárdenas Dávila Pag. 6.
Pag. 7. Portafolio

02Vivienda multifamiliar en canal de Surco

Proyecto realizado en Taller 6

Para este proyecto, el eje central es la vivienda en relación con la ciudad.

La vivienda es el elemento fundamental para la conformación de la ciudad, es en esta relación donde se encuentran distintas formas de idear. Es impresindible entender que el habitar urbano y el doméstico son dos elementos inseparables para la vida cotidiano.

Un mejor espacio para habitar.

El proyecto esta situado cerca al canal Surco, el cual atraviesa distintos distritos limeños. A través del diseño, se desea revitavilizarlo y que forme parte del paisaje de la ciudad.

Andrea Cárdenas Dávila Pag. 8.
Pag. 9. Portafolio
Primer nivel
Planta de situación con vecinos

La plaza como espacio de encuentro en el barrio, de diferentes dinámicas de vivienda, iglesia y colegio.

Andrea Cárdenas Dávila Pag. 10.

Búsqueda de transición entre la vivienda y la calle, habiendo una relación mutua entre ambas.

Pag. 11. Portafolio

03

Vivienda multifamiliar en Madrid

Proyecto realizado en Taller 8 - Semestre de intercambio

Edificios de vivienda en el barrio de Fuencarral. La ordenación busca una transición entre la calle y el espacio verde, generando unas “grietas” que se ensanchan y angostan, enmarcando así las vistas. Se propone tanto vivienda multifamiliar donde hay mayor altura y vivienda unifamiliar frente al espacio verde para también transicionar desde una escala de ciudad hacia la del espacio público, así como con el mismo desnivel en el terreno.

Sobre el espacio público, las grietas permiten generar patios más íntimos para los vecinos y calles más públicas por donde atravesar. La ordenación busca proponer un juego entre espacios públicos íntimos y la vivienda, donde se puede interaccionar a distintas escalas para conseguir aportar en el barrio.

Andrea Cárdenas Dávila Pag. 12.
Pag. 13. Portafolio

TIPOLOGÍAS DE VIVIENDA

AXONOMETRIAS MULTIFAMILIAR 1 MULTIFAMILIAR 2 Planta baja Primera nivel Segundo nivel Tercer nivel Cuarto nivel Quinto nivel UNIFAMILIAR Esquema organizador-planta
Planta baja Axonometría Axonometría Planta a Planta b Planta c Planta d Esquema organizador-corte Esquema organizador-corte TIPO A- 4 PISOS BAJA b c d TIPO B- PISOS BAJA a b TIPO B TIPO A MULTIFAMILIAR 2 TIPO A MULTIFAMILIAR 1 MULTIFAMILIAR 2 TIPO B UNIFAMILIAR 0 10 20 Planta baja Primer nivel CIRCULACIÓN escalonamiento 0 2 5 0 2 5 0 2 5 0 2 5 Andrea Cárdenas Dávila Pag. 14. Tipologías de vivienda
Pag. 15. Portafolio Corte constructivo

Corte de la vía A-5 con intervención

04

to-Madrid

Proyecto urbano realizado en semestre de intercambio. Grupo con Alessandra Gonzales, Adrian Paez y Ariana Rijo.

La zona de Campamento, ubicado en Madrid, se caracteriza por actualmente ser una zona no consolidada en la ciudad, debido al desmantelamiento de cuarteles militares. A pesar de ello, es importante destacar la memoria del lugar, ya que fue un espacio donde muchas personas desarrollaron sus actividades y genera un recuerdo.

Por ello, la intervención urbana propone revitalizar la zona a partir de equipamientos, oficinas, viviendas y áreas verdes, donde se logre la ciudad “de los 15 minutos”. Así como, conectar Campamento con Madrid Centro a partir de un tranvía.

El proyecto urbano busca una propuesta que revitalice y consolide dicha zona de la ciudad.

Pag. 16.

ORGANIZACIÓN

(parques y equipamiento) TRANSPORTE

Paraderos Tranvía

LEYENDA

Vivienda unifamiliar

Vivienda multifamiliar

Centro cultural

Hitos

Mercado

Áreas verdes

Portafolio LEYENDA ORGANIZACIÓN TRANSPORTE

Fotomontaje de calle con tranvía

Fotomontaje de plaza

04

Intervención urbana en Campamento-Madrid

Proyecto urbano realizado en semestre de intercambio. Grupo con Alessandra Gonzales, Adrian Paez y Ariana Rijo.

En la intervención urbana, se propone diferentes tipos de viviendas tanto unifamiliares y multifamiliares, que se complementan como equipamientos como (supermercado, hospitales, centros deportivos, etc) y edificios de oficinas, con el fin de crear una nueva centralidad en la ciudad de Madrid, convirtiendo la zona en una consolidada.

Pag. 18.
Pag. 19. Portafolio

CORTE

Boulevard que conecta ambas plazas Recorridos libres en ambos frentes

Fotomontaje

05

Intervención urbana en la ErmitaMadrid

Proyecto urbano realizado en semestre de intercambio. Grupo con Alessandra Gonzales, Adrian Paez y Ariana Rijo.

La Ermita del Santo se encuentra en el distrito de La Latina en Madrid, es un barrio caracterizado por su cercanía al centro de la ciudad, pero sin ser caótico siendo como un barrio familiar y también cercano al río Manzanares (Madrid Río).

El ayuntamiento de Madrid recalificó el centro co mercial para crear torres de vivienda, sin embargo, esto amenaza las dinámicas de la ciudad, pudiendo aparecer procesos de gentrificación.

En este marco, la intervención urbana propone la re vitalización del centro comercial, dotando de equipa mientos que la zona carece y la mejora de espacios públicos. Asimismo, configurar las secciones urbanas de las calles hacia Madrid Río para un recorrido más amable con el peatón.

Andrea Cárdenas Dávila Pag. 20.
II I

ORGANIZACIÓN

Franja edificada

Franja espacio público

TRANSPORTE

Paraderos

Transporte público

LEYENDA

Usos conservados

Cine

Teatro

Centro comercial

Gimnasio

Usos nuevos

Supermercado

Centro de día

Centro deportivo

Feria

Mirador

II II II

Turn static files into dynamic content formats.

Create a flipbook
Issuu converts static files into: digital portfolios, online yearbooks, online catalogs, digital photo albums and more. Sign up and create your flipbook.
PORTAFOLIO DE ARQUITECTURA by a20202230 - Issuu