

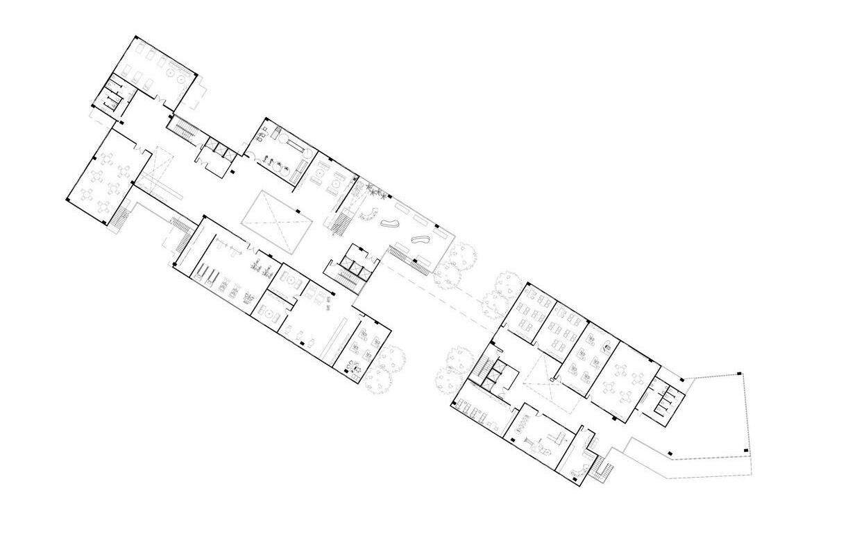
Portfolio


複合式工作場域

基地位置:高雄市鼓山區濱海二路、鼓波街、鼓南街之街廓
駁二、光榮碼頭等周邊區域所帶來的經濟活動,所衍生的辦公、商業活動 需求,高雄市政ˋ府透過公設財團法人台灣設計研究院(TDRI)、某品牌業
者的合作,以BOT 方式開發複合式工作場域。
永續港灣





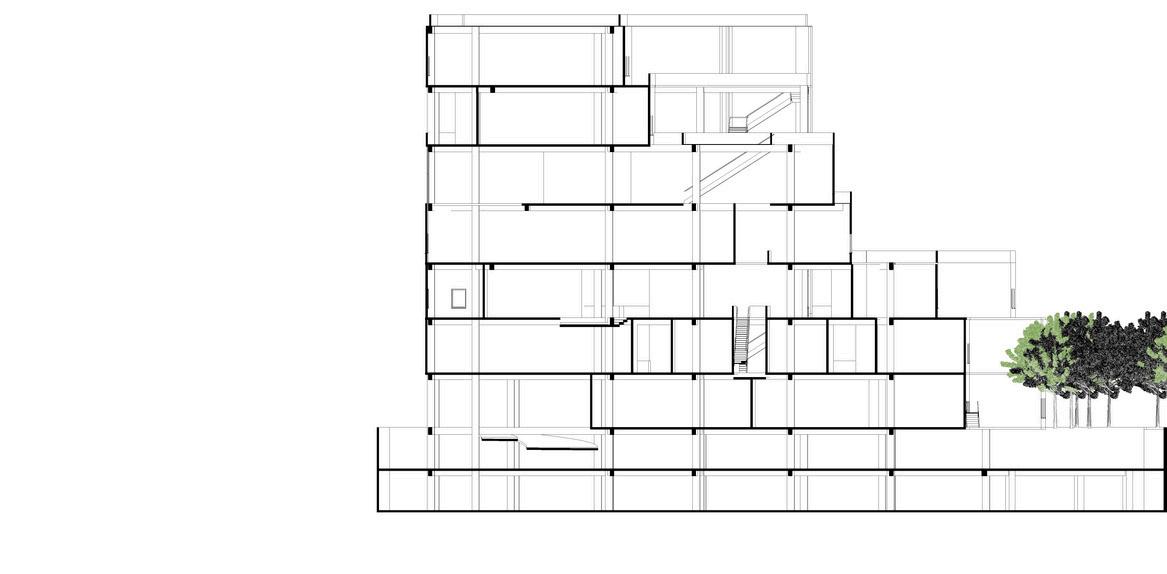
aa剖面圖
bb剖面圖
複合式工作場域







實驗社會住宅

基地位置: 高雄市鼓山區濱海二路、鼓波街、鼓南街、濱海 路88巷之
街廓
建築包含實體的「空間」與使用者的「生活」,近年國內少子高齡化的 趨 勢造成人口結構與家庭的型態的改變,如何詮釋「家庭」(居住者)、
「居住」
(生活)與「居住模式」(行為)間的關係,並落實照顧青年弱
勢、提供社區據
點、托嬰托幼與青年創業基地等功能,以因應未來社會的 發展趨勢。
浮島誌
作 品 描 述 : 結 合 廢 棄 物 再 利 用 與 環 保 材 料 科 技 應 用 , 形 成 港
灣 永 續 發 展 的 新 型 態 發 展 以 強 化 都 市 的 多 元 化 競 爭 力 , 利 用
模 矩 化 的 可 擴 充 式 單 元 , 針 對 住 宅 人 口 變 化 所 產 生 的 變 異 ,
去 因 應 居 住 空 間 受 限 或 著 空 閒 的 閒 置 空 間 。




以河流作為核心想法,開放空間呼應流水,各個住戶呼應上岸處,當人們 踏出家門口時,已經進入到社會的潮流中,希望能夠創造人們能夠在社會
實驗社會住宅







aa剖面圖
bb剖面圖










