Frida Pérez Portafolio Esp

Page 1

Arquitectura y diseño
La arquitectura no debe imitar la naturaleza, sino ser un eco de ella.

- Mies van der rohe

sobre mí

Arquitecta proactiva y orientada al detalle. Me considero una persona líder con habilidad para el trabajo en equipo y la toma de decisiones. Cuento con experiencia en desarrollo BIM y diseño arquitecónico principalmente. Actualmente busco un puesto que me permita desarrollarme como arquitecta, además de ayudarme a crecer en nuevas áreas a nivel profesional y personal.

EDUCACIÓN

2018 - 2023

2022 2021

Tec de Monterrey - Campus Querétaro

Egresada de Arquitectura (Promedio 93). Alumna con beca al talento académico.

Experiencia internacional - Madrid, España.

Semestre en la Universidad de Alcalá de Henares. Estudio de estructuras de madera y restauración arquitectónica.

Taller de Arquitectura Ciudadana (TAAC)

Diseño de pabellón en Tec de Monterrey Campus Qro. Proyecto de diseño participativo y regenerativo BIM. Intervención de edificio y área verde con baños inclusivos.

Experiencia laboral

Frida Valeria Pérez Anguiano

Querétaro, Qro. 24 años

Contacto

▪ fvpa.perez@gmail.com

▪ 441 110 0820

Software

▪ AutoCAD

▪ Archicad

▪ Revit

▪ Twinmotion

▪ Adobe Suite (Ai, Ps, Id)

▪ Paquetería Office

Habilidades

▪ Diseño

▪ Modelado BIM

▪ Trabajo en equipo

▪ Liderazgo

▪ Toma de decisiones

▪ Atención al cliente

Idiomas

Inglés TOEFL IBT (C1)

2024 - actual

Aspacia Architecture Studio

Arquitecto proyectista. Diseño arquitectónico y de interiores en proyecto residencial y de espacios comerciales.

2023 - 2024

Lycée Français International Jules Verne

Coordinadora de talleres. Logística de clases extracurriculares, control de personal, trato con alumnos y padres de familia.

2023 - actual

We-Dance Querétaro

Maestra de danza jazz y coreógrafa de presentación y competencias a nivel regional y nacional.

2022 - 2023

Prácticas Arquitectura

Diseño, levantamiento arquitectónico y digitalización de planos para colegio LFI en Querétaro. Diseño y supervisión de proyecto de ampliación y proyecto arquitectónico para nuevo edificio.

2021 - 2022

2020 - 2021

Lycée Français International Jules Verne

Maestra de inglés a nivel preescolar y secundaria.

On Campus Job Tec de Monterrey

Colaboración en áreas de atención al cliente y admisiones del Tec de Monterrey.

formación complementaria

Compañía de Danza Tec de Monterrey - Campus Querétaro

Bailarina de la compañía en estilos como jazz, contemporáneo y danza urbana. Competí como bailarina y coreógrafa a nivel nacional.

Grupo estudiantil Borregos Salvajes

Vicepresidenta de grupo estudiantil para equipos representativos culturales. Gestión de masterclasses con maestros nacionales y recaudación de fondos.

2015
2023 2020 - 2022
-

Proyectos Pabellón Tec

- Diseño participativo, diseño regenerativo (LBC), manejo BIM.

re-conectar - Modelo ciudad esponja, diseño regenerativo (LBC), diseño sustentable, manejo BIM.

bistrot marino - Rediseño de imagen y espacios interiores restaurante de mariscos.

4
5. 12. 20.

Pabellón Tec

2021-2022 · Tec de monterrey campus Qro

Proyecto de diseño participativo por el Taller de Arquitectura Ciudadana en el que participaron más de 400 miembros de la comunidad Tec. Este proyecto busca conectar las plazas principales del campus, además de proveer un espacio que permita el descanso, la socialización, la recreación y el trabajo colaborativo entre miembros de la comunidad. El pabellón Tec sigue los estándares de diseño del Living Building Challenge, por lo que es un espacio que promueve la regeneración del sitio, además de alinearse con la estrategia de sustenibilidad y cambio climático del ITESM 2025.

La primera fase de este proyecto fue construida en 2022 y ha tenido respuestas muy positivas por parte de la comunidad.

Equipo TAAC: Alejandra Rojas

Fedra Viveros

Frida Pérez

Gema Gerrero

Itzel Hernández

Karol Gutiérrez

Kevin Doniz

Mayra Landin

Marian Quiroz

María Herrera

Melissa Núñez

Naxhely Ramírez

Noemí Islas

Sofía Román

5

diagnóstico

Trabajo 10%

Familia 11%

Educación12.5%

Excelencia 12.5%

35% Comunidad

19% Innovación

Predio

Espacio público

Edificaciones

Barda perimetral

Rejas

Diagnóstico situación del campus.

6
Parque Tecnológico Reja interior Reja interior Puente peatonal Puente peatonal Barda perimetral

estrategias

Lugares favoritos Elementos de negación Circulaciones Espacio público Espacio semi-público

Isométrico conexiones en el campus

Vegetación original Poca permeabilidad Espacio aislado

Diagnóstico de espacios en el campus.

Vegetación original Material permeable Cuerpo de agua

Instalación re-configurable Espacio abierto conectado con otras plazas

Isométrico estrategias

7

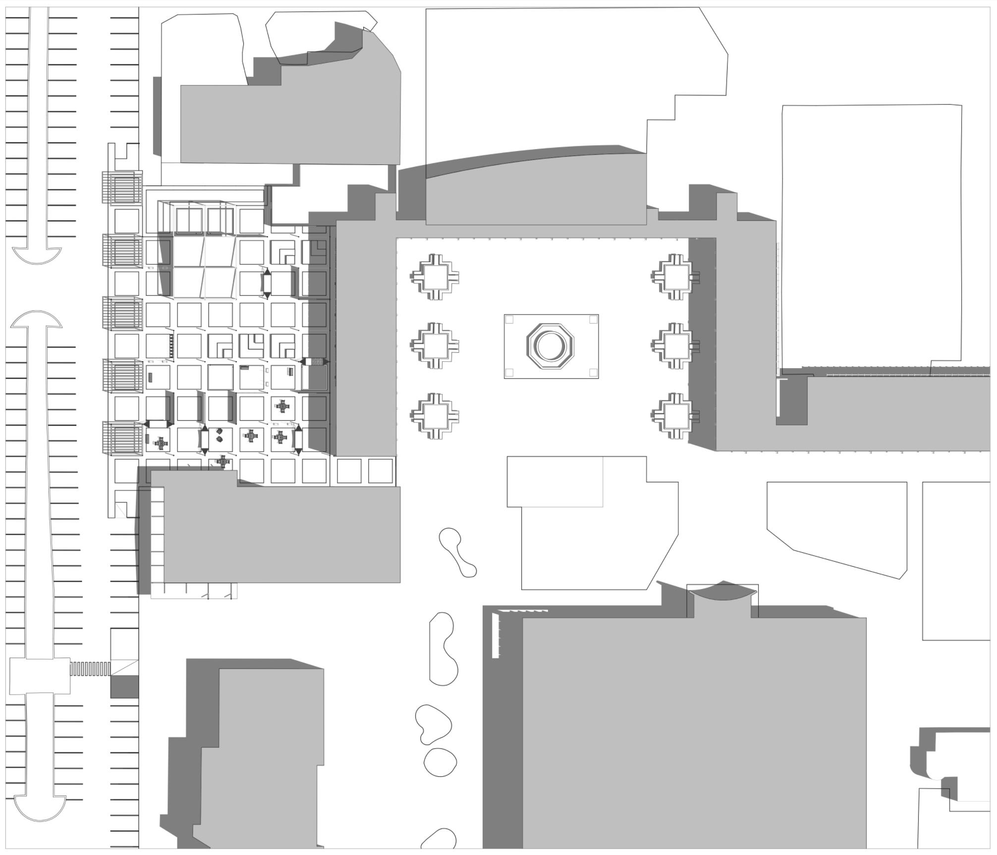
Propuesta

Isométrico conjunto

8
Planta de conjunto Isométrico proyecto Planta distribución Humedales Cubo Área libre Huertos Baños inclusivos Área de estudio

Propuesta

Movilidad no motorizada Circulación peatonal Accesibilidad Integración naturaleza Energía solar

Área de descanso Optimización de agua

Interacción social Materiales reutilizables Espacios abiertos

9
Belleza Equidad Agua Sitio Materiales Energía Salud y felicidad Living Building Challenge Sección transversal Sección longitudinal Elevación Este Elevación Sur

adaptabilidad

Contexto Paneles Cubiertas Columna Viga

Descanso Recreación Humedales

Cultural Área verde Libre Educativo Estanque

Configuraciones espacios

Configuraciones paneles

10 1. 2.

Pabellón tec

11
Vista frontal Vista trasera Zona comida Perfiles Zona estudio Lavabos

re-conectar

2023 · Reforma Agraria, Qro.

Proyecto de Fin de Carrera con un enfoque en el diseño regenerativo, el aprovechamiento del agua y la unión de la comunidad. Se diseñó un proyecto en la colonia de Reforma Agraria que responde a las necesidades físicas, económicas y sociales de la comunidad. La propuesta incluye una intervención en las calles que promueve la reinserción del agua a través del modelo de Ciudad Esponja, y un edificio comunitario que busca conectar a las personas con su entorno a través de servicios ecosistémicos y construcción sustentable, además de fomentar la interacción social.

12

Investigación

13
Áreas de oportunidad Reforma Agraria, 2023. Fotografías de visita a Reforma Agraria, elaboración propia, 2023. Mapa manzanas oportunidad y manzana elegida, 2023.

Estrategias

El CampestreTransporte público Edificio puente

Evapotranspiración Evapotranspiration

Humedal Infiltrar Infiltrate

Eco-Boulevard Evapotranspiration

Evapotranspiración

y dirigir Infiltrar Infiltrate

and distribute

Corte estrategias urbanas.

14
Slow
Detener
Calle Rubio Camellón central
Slow
Detener
Soak Inundar
and distribute
y dirigir Infiltrar Infiltrate
Intervención
Skinny-Streets Intervención camellón.
calle.

Proyecto

Predio en contexto y conexiones con calles importantes.

Propuesta de proyecto en contexto.

Programa del edificio por horarios.

Sitio del proyecto.

15

Edificio

Bodega/Instalaciones

Elevador

Bodega/Instalaciones

Elevador

Bodega/Instalaciones

Elevador

16
Planta -2 Planta Baja Planta Cubiertas Planta -1 Acceso Rampa/Escaleras Terraza Bazar Baños Bodega Centro info. Salones Usos Múltiples Ludoteca Baños Área Comercial Área Social Comedor Cocina Humedal Humedal Acceso Rampa Acceso Escaleras

Cortes 3d

17
Sección transversal 1 Sección longitudinal 1 Sección transversal 2 Sección longitudinal 2

Estructura y Sistemas

Detalles estructurales

18
Isométrico estructural Detalle losa Bubble Deck Detalle humedal Corte por fachada

Renders y maqueta

19
Corte longitudinal 1 Corte por fachada Edificio en contexto Fachada Vista desde planta baja Vista desde planta -2

bistrot marino

2023 · El marqués, Qro.

Proyecto de remodelación de restaurante de mariscos que surgió del cambio de administración y cambio de imagen del negocio. Bistrot Marino busca convertirse en un restaurante integral, dando servicio a familias por la tarde y por la noche funcionando como espacio de restaurante-bar.

El proyecto busca eficientar espacios, mejorar la ventilación e iluminación, ampliar la cocina y los servicios de baño, además de agregar un área de bar y área de música.

20

proyecto

21
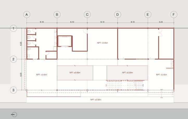
Х Х Х Х A B C E D 1 2 3 4 5 1 5 5 1 1 5 3 2 7 6 0 0 5 87 5 80 7 70 3 90 S-01 S-01 S0 2 S0 2
MARISQUERÍA Y BAR Bar Bodega Acceso Recepción Baños Cocina
distribución
Área de música
Planta

Propuesta

antes - después

22

Fachada y cortes

Fachada principal
MARISQUERÍA BAR
Corte transversal 1
23
Corte transversal 2
24 Contacto: fvpa.perez@gmail.com

Turn static files into dynamic content formats.

Create a flipbook
Issuu converts static files into: digital portfolios, online yearbooks, online catalogs, digital photo albums and more. Sign up and create your flipbook.