Akil Solomon Design Portfolio

Page 1


ABOUT ME

As a recent Bachelor of Architecture graduate, I am passionate about creating sustainable and human-centered spaces that connect people with their environment. My love for the outdoors informs my design approach, while music and photography inspire creativity and attention to detail. With experience in design development and visual communication, I bring a thoughtful and multidisciplinary perspective to every project.

Contact

(774)366-6699

akilsolomon2001@gmail.com

Education

THOMAS JEFFERSON UNIVERSITY

B.Arch

WORK EXPERIENCE

MICHAEL LAKE AND ASSOCIATES

Summer Architectural Intern | Summer 2024

Assisted project teams in developing construction documentation for residential and commercial projects, ensuring compliance with code and client specifications.

Contributed to drafting, detailing, and layout of architectural drawings using software such as AutoCAD, Revit, or similar tools.

Participated in site meetings with contractors, engineers, and clients, gaining firsthand experience in project coordination and construction phase problem solving.

Supported design development through document revisions based on feedback from senior architects and consultants.

JAMAICA COLLEGE

Pre-University 2020 - 2025 2018 - 2020

Highschool Diploma 2013 - 2018

Skills

ADOBE CREATIVE SUITE

RHINO 3D

REVIT

AUTOCAD

TWINMOTION

LUMION

ENSCAPE

MAYA 3D

ARCHICAD

CARIBBEAN INSTITUTE OF HEALTH RESEARCH

Summer Intern | 2022-2023

Case Study Aid I Data Organization Assisted in the preparation and analysis of a case study on Hydroxyurea, a novel treatment for sickle cell anemia.

SICKLE CELL UNIT I CARIBBEAN INSTITUTE OF HEALTH RESEARCH

Summer Intern | 2020-2021

Data Entry I Event Planning

Planned and organized awareness events for Sickle Cell Anemia Day

ACTIVITIES

& INVOLVEMENT

National Organization Of Minority Architecture Students I Jefferson Chapter

American Institute Of Architecture Students I Jefferson Chapter Black Student Union I Jefferson Chapter

Jamaica Symphony Orchestra I Viola First Chair

LYNNEWOOD STUDIOS.

KELLY DRIVE GRANDSTANDS.

SUMMIT CAMP.

19 01 25 33 TOWER OF UNITY.

LYNNEWOOD STUDIOS

Elkins Park, Philadelphia, PA

Design 10 Professor David Kratzer Spring 2025

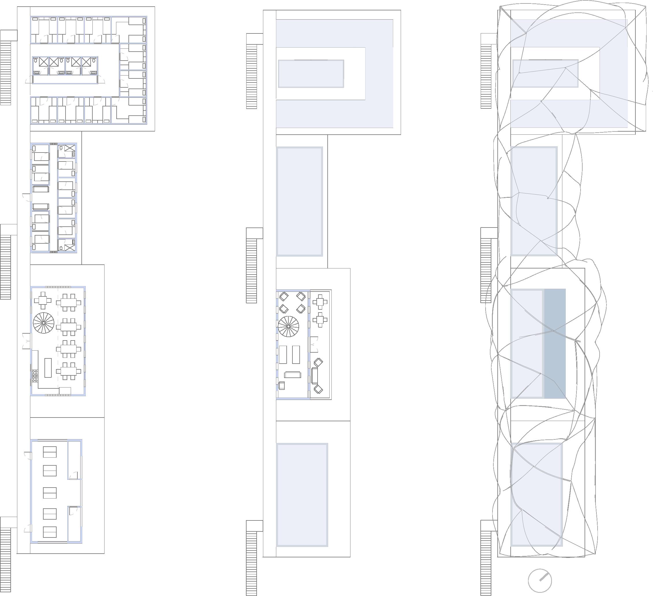
Lynnewood Hall, a historic gem with deep roots in the arts, is set to be reimagined as a vibrant hub for fashion and creativity. This all-in-one destination will foster artistic expression and community engagement through dynamic maker spaces, curated event venues, and immersive retail experiences. Designed to host marquee events such as a seasonal Fashion Week and an Art Basel-inspired showcase, the space will attract investors, artists, and visionaries alike. By breathing new life into Lynnewood Hall, this transformation will not only celebrate its artistic legacy but also position Elkins Park as a thriving cultural hotspot, driving diversity and economic growth into the local community.

The building’s form is derived from the order and structure of Lynnewood Hall to inform a new building footprint that pays homage to Lynnewood Hall.

A key theme of this design is spatial flexibility. For example, a fashion show isn’t confined to its formally programmed area, it can take place anywhere on site. The entire space becomes a set designer’s playground.

With the fashion design studios on the second story, the building creates an environment that fosters creativity in the arts.

These abstracted arches, inspired by neoclassical architecture, repeats and elongates itself, guiding the user through spaces, and also seperating them.

Studio Corridor
Main Hall

KELLY DRIVE GRANDSTANDS

Kelly Drive, Philadelphia, PA

Design 7 Professor Anton Germishuizen Fall 2023

Inspired by the structure and nature of a bird’s wing, we redesigned and repurposed the boat house row grandstands, not only to be a place to watch sports, but an area for community engagement of all forms through sustainable practices.

The building’s form is derived from the structure of a bird’s wing. Like its relationship to its kin, the feather like roof structure shelters the grandstands from the busy Kelly Drive and opens up to the life on the Schuykill River.

Standing Seam Zinc

Rigid Insulation

Plywood

Vapor Barrier

Acoustic Blanket

2x10 LVL Structural

2x4” Wood Slatting

3’ Glulam Beam

3 5/8” Brick

2” Air Gap

2”Rigid Insulation

3/4” Plywood

10” Batt Insulation

3/4” Plywood

1” Gypsum Board

2” Concrete Colummn

8” Concrete Masonry Block Rebar

1/2” Membrane Layer

3” Rigid Insulation

3/4” Gypsum Board

Water Proofing Membrane

2’ Concrete Footing

2x4” Blocking

10” Aluminium Mullion

1/2” ExteriorGlazing

1” Air Gap

1/2” InteriorGlazing

10” Aluminum Mullion

1/2” Interior Glazing

1” Air Gap

1/2” Exterior Glazing

Concrete Slab

Glulam Beam

Linx Connection

Concrete Foundation

SteelConnector Plate

Polycarbonate Roof Panelling

Glue Laminated Columns

2F

Equipped with a main ball room, bathrooms and smaller private viewing areas.

GF + Grand Stands

With sustainability as a primary design goal, the building uses locally sourced and environmentally friendly materials to create this grand pavilion.

SUMMIT CAMP

Greenland Ice Sheet, Greenland

Design 6 Professor Amy Kassler-Taub Spring 2023

Located on the Greenland Ice Sheet, Summit Camp is a research station for earth’s climate, with information dating as far back as 500 years. With the site being so isolated and within housed within an extreme climate, we have chosen to redesign the summit camp with a focus on modularity, viewfinding, and immisability. This enables outdoor activities within a controlled microclimate, fostering interaction and promoting overall health within the camp.

Each pod is prefabricated, expandable, and deployable, allowing for easy transportation as well as construction on site.

The PTFE pillows create an inner microclimate allowing scientists the ability to traverse the station without the need for heavy gear.

GREEN SHORE

Design 8+10 Professor Shajay Bhooshan Spring 2024

This project proposes an urban plan designed as a model for mitigating urban sprawl by concentrating housing, commerce, public services, and cultural amenities within a dense, mixed-use, and transit oriented framework. This framework promotes walkability, accessibility, and community life, supported by green infrastructure, renewable energy systems,and active public spaces.

Connectivity Urban Plan

Each district has its own height restrictions, growing from the coast and the park, towards the office district.

With sustainability as one of our pillars, each building typology has a multitude of greenspaces, from greenrooves, to sky gardens.

In promoting walkability, the urban fabric has an assortment of sky bridges and walkways, creating the seperation between foot and vehicle traffic. Additionally, this all-in-one strategy, is aimed at mitigating the effects of urban sprawl.

Green infrastructure, including scattered bioswales and rain gardens, helps absorb and filter stormwater runoff while also improving overall air quality.

TOWER OF UNITY

Isle of Dogs, London, UK

Design 9 Dr. Edgar Stach Fall 2024

This urban hub seamlessly bridges the gap between the isle of dogs and canary wharf through innovative urban planning and architecture. It blends modern skyscrapers with open green spaces, pedestrian friendly pathways, and community-focused infrastructure. Designed to enhance connectivity, the hub integrates residential, commercial, and cultural areas, fostering a harmonious blend of work, life, and leisure, while embracing the riverfront and enhancing access between these two vibrant districts.

Over the course of the semester, our design studio conducted research on London, UK, focusing on the threats posed by climate change. From this research, we created a graph illustrating the impact of various environmental hazards on the cityscape. Building on these findings, we developed a set of goals, objectives, strategies, and actions to address these challenges, each tailored through the lens of individual student projects.

Sky Garden Office

Turn static files into dynamic content formats.

Create a flipbook
Issuu converts static files into: digital portfolios, online yearbooks, online catalogs, digital photo albums and more. Sign up and create your flipbook.