Revista Mandu'a - #494 - Junio 2024

Page 1

INFORMACIÓN, OPINIÓN Y CULTURA AL SERVICIO DE LA

CONSTRUCCIÓN

LAS

SALES EN EL PAVIMENTO / VIVIENDA LUCE Y PABLO - MÍNIMO COMÚN ARQUITECTURA / GUÍAS DE PRECIOS

JUNIO 2024 Nº 494 AÑO 42 10.520 SUSCRIPTORES
Revista Mandu’a - 3
- Revista Mandu’a 4
Revista Mandu’a - 5
- Revista Mandu’a 6
Revista Mandu’a - 7

Editorial

Es necesario que los estudiantes construyan su propio poder.

Notas La sal en el pavimento.

Proyecto nacional Vivienda L&P.

Proyecto internacional Greenpeace Brasil.

Contacto

Ramón I. Cardozo c/ Andrés Gill Lambaré - Paraguay (021) 905 100 / (0981) 917 683 mandua@mandua.com.py www.mandua.com.py

EQUIPO - Gerencia: Estela Villalba. Dirección editorial: Yerutí Arza. Administración: Estela Villalba. Costeo: Carlos Gómez. Publicidad: Víctor Hugo Franco. Sofía Franco. Néstor Raimondo. Rubén Cabrera. Fundador: Mauri Arza. Mandu’a es la Revista de la construcción más leída del Paraguay. Mensualmente ofrece noticias, tendencias, notas técnicas y guías de precios de materiales, mano de obra, costeo de obra y proveedores de la construcción. La suscripción es gratuita para los profesionales de la construcción de todo el país.

Industria & innovación La Esencia del Cemento Portland.

Lámina Dyso Revestech.

Molduras de EPS de Multiplast.

Divisorias Sanitarias Kubox.

Guías de precios de la construcción.

INDICE 10 12 16 22 28 29 30 31 33 - Revista Mandu’a 8
Revista Mandu’a - 9

ES NECESARIO QUE LOS ESTUDIANTES CONSTRUYAN SU PROPIO PODER

Los jóvenes de los niveles secundario y universitario son los grandes ausentes del periodo postdictatorial al que se ha dado en llamar democrático. Sus esporádicas apariciones de protesta y reclamos no han pasado de ser

En estos 35 años las tradiciones de lucha y reivindicaciones no solo estrictamente vinculadas a los estudios sino también a los grandes temas nacionales que sí eran las características de los que poblaban las aulas en tiempos de la dictadura, han desaparecido. Recordemos tan solo a las facultades de Medicina e Ingeniería de la Universidad Nacional de Asunción (UNA) y de Filosofía de la Universidad Católica (UCA) cuyos centros de estudiantes lideraban acciones gremiales y antidictatoriales.

En los últimos años hubo movimientos estudiantiles de cierta magnitud ten la Capital, sus alrededores y en algunas cabeceras departamentales. El primero de ellos giró en torno al eslogan UNA no te calles que sacó a luz irregularidades de la UNA. Su epílogo fue el encarcelamiento y la condena del que era todopoderoso rector de la Nacional.

El fervor estudiantil de entonces, logrados parcialmente los objetivos, careció de voluntad y estructura que mantuviesen vivas la organización, los vínculos y los ideales que les permitiera continuar avanzando hacia un aspecto esencial para cambiar el país: la calidad de la educación.

El segundo eslabón apareció este año con las protestas en torno a la gratuidad de la enseñanza en las universidades públicas en peligro y el plan de Hambre Cero del gobierno que no era sino redireccionar rubros

ocurrido, las movilizaciones fueron neutralizadas por el poder con promesas que enfrían el entusiasmo, dan una falsa sensación de victoria y el tiempo las convierte en letras muertas.

Los estudiantes secundarios no se han diferenciado mucho de los universitarios. Sus planteamientos no han tenido fuerza para producir transformaciones. En una de sus movilizaciones lograron voltear a la única ministra de educación de verdadera valía del periodo democrático y luego no pasó a mayores: cayeron en la telaraña de la labia seductora de su sustituto que fungió de demagogo, no de autoridad, y la lucha fue llevada por el viento.

Valga este somero panorama acerca de los estudiantes para señalar la necesidad de que los alumnos secundarios y universitarios, tanto de en relación a sus estudios y a la vida del país al que pertenecen.

Ahora que está en proceso una reforma educativa es necesario que los estudiantes se organicen, se unan, construyan un poder sólo y planteen sus puntos de vista en relación a la educación de calidad que el Paraguay requiere para alcanzar un desarrollo que dé bienestar a todos.

EDITORIAL
- Revista Mandu’a 10

LA SAL EN EL PAVIMENTO

La siguiente nota, colaboración del Ing. Luis A. Caballero R., examina cómo la salinización de los suelos en el Chaco paraguayo afecta la durabilidad del pavimento. La investigación revela el impacto de las sales en las capas de suelo cemento y concreto asfáltico, y su papel en el deterioro de infraestructuras clave como la ruta Transchaco.

NOTAS
- Revista Mandu’a 12

La salinización de los suelos del Chaco paraguayo es un problema persistente y salina. Este acuífero atraviesa el Chaco en un cinturón de 50 a 75 km de ancho y 500 km de largo, causando el deterioro de la capa base de suelo cemento y afectando negativamente las carpetas de concreto asfáltico y

LA INFLUENCIA DE LAS SALES EN LA ESTRUCTURA DEL PAVIMENTO

La presencia de sales solubles y las variaciones climáticas juegan un papel crucial en la pérdida de cohesión

pérdida de cohesión impide la adecuada adherencia entre las capas de suelo cemento y los revestimientos asfálticos, como se demostró en la investigación. La cristalización de

cemento destruye su cohesión, transformándolo en un polvillo que anula la adherencia del riego de liga, lo cual causa corrimientos y desprendimientos de carpetas asfálticas.

PROBLEMAS EN LA RUTA N° 9 TRANSCHACO

El Ministerio de Obras Públicas y Comunicaciones (MOPC) ha pavimentado la ruta N° 9 Transchaco en una longitud de 764 km, desde Villa Hayes hasta Infante Rivarola en la frontera con Bolivia. Sin embargo, en los tramos km 176-km 326 y km 524-km 764, donde se presentaron corrimientos y desprendimientos de la carpeta de concreto asfáltico, respectivamente.

Revista Mandu’a - 13

NOTAS

METODOLOGÍA DE INVESTIGACIÓN

Para demostrar la presencia de sales en el pavimento, se realizaron muestreos de suelo y agua y se llevaron a cabo ensayos de laboratorio no convencionales.

1. MUESTREO DE MATERIALES

Las muestras de suelo y agua se obtuvieron en el tramo de la ruta

Transchaco “525+000 a 585+000”, donde ocurrieron los corrimientos y desprendimientos de la carpeta asfáltica.

2. ENSAYOS DE LABORATORIO NO CONVENCIONALES -

lar del Suelo Cemento

Este ensayo consiste en determinar la ganancia de masa que experimenta una probeta de suelo cemento de 5 cm de altura y 10 cm de diámetro por absorción capilar en intervalos de tiempo

2.2. Migración de Sales Solubles Totales

Se mide la ganancia de masa de una probeta de suelo cemento de 18 cm de altura y 10 cm de diámetro debido a la absorción capilar de sales solubles en

2.3. Cristalización Acelerada de Sales Solubles Totales

Este ensayo implica la repetición de ciclos donde las muestras son mantenidas en una solución salina y luego secadas, permitiendo la cristalización de la sal.

de Daño por Cristalización de Sales

Se utilizó el ensayo LCB (Laboratorio de Caminos de Barcelona) para aplicar

una probeta cilíndrica, permitiendo determinar la resistencia al corte. Los especímenes de ensayo se confeccionaron con probetas de suelo cemento adheridas a probetas de concreto asfáltico.

Imagen 1. Imagen 2. - Revista Mandu’a 14

CONCLUSIONES

El suelo cemento, como todo material constructivo, no es completamente impermeable. Las capas de suelo cemento, incluso cuando se ejecutan cumpliendo estrictamente los requisitos resistentes, pueden deteriorarse debido a la facilidad con la que los agentes agresivos ingresan y se mueven en su estructura porosa. La calidad del suelo cemento dependerá de los materiales utilizados (agua y suelo) y de las precauciones tomadas para evitar el ingreso de agentes agresivos.

El desprendimiento o corrimiento de la carpeta asfáltica es causado por la cristalización de sales solubles totales

to, lo cual pulveriza el material y causa la pérdida de adherencia del material bituminoso a la base deteriorada. En el

la tensión de corte es menor a 4 kg/cm², ocurre deslizamiento o desprendimiento de la carpeta asfáltica.

yen el contenido de sal de la base y el agua utilizada en la compactación de la base. Una fuente adicional de sal, importante a largo plazo, proviene de los niveles inferiores del pavimento. También se consideraron importantes el tipo de capa de imprimación aplicada a la base y el tiempo entre la base y la aplicación de la imprimación. La demora entre la imprimación y la aplicación de la carpeta asfáltica favorece el ascenso de la sal a la su-

Esta investigación resalta la importancia de considerar la salinización en el diseño y mantenimiento de pavimentos en áreas con suelos salinos, como el Chaco paraguayo, para garantizar la durabilidad y funcionalidad de las infraestructuras viales.

Imagen 1. La franja azul muestra la ubicación de la napa salina.

Imagen 2. Desprendimiento en el tramo Mcal Estigarribia – La Patria

Imagen 3. Probetas de suelo cemento.

Imagen 4. Probetas dobles, suelo cemento con concreto asfáltico.

-
-
Imagen 3. Imagen 4.
Revista Mandu’a - 15

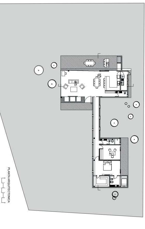
VIVIENDA L&P

Proyecto: Mínimo Común Arquitectura. Fotografías: Federico Cairoli. 200 m².

Año: 2021.

Ubicación: Mariano Roque Alonso.

- Revista Mandu’a

PROYECTO NACIONAL
16

Descripción elaborada por el equipo del proyecto.

Pablo y Luce son una pareja recién casada, remotamente para empresas en el exterior lo cual nos introduce a la ubicación del terreno, en la ciudad de Limpio, el barrio Surubi´i. En transporte particular son 45 minutos, las actividades cotidianas y sociales, pero manteniendo una condición suburbana, con amplios terrenos, vegetación y tranquilidad, el barrio viene en un auge edilicio regido por una normativa interna la cual condiciona el proyecto a la aprobación del consejo del barrio.

Los últimos debates dentro de nuestro universo de Mínimo Común se planteaban las condiciones de viviendas actuales y las principales técnicas constructivas ecológicas que están ganando popularidad en el espectro de la arquitectura paraguaya. Nosotros, manejábamos alternativas de adobe, el trabajo que estaba en proceso nos formó dentro de la materialidad, esa era una obra en el interior a 350km de la capital.

Las condiciones eran muy diferentes, ahora tendríamos más recursos disponibles. Queríamos experimentar con tapial, debido a los buenos resultados de colegas y amigos, una técnica con condiciones excelentes para el clima de nuestro país.

Al hacer las primeras pruebas, debido a que nunca habíamos trabajado de esa forma y nosotros somos nuestros propios constructores, nos empezamos a dar cuenta que los tiempos eran muy largos dentro del proceso constructivo. Necesitábamos más gente, pisones neumáticos, encofrados especiales,

cosas más para llevarlo a cabo. Esto resultó en un proceso de decepción ante la imposibilidad de realizar la obra de esa forma, porque los costos superaban el presupuesto, ade-

¿Sería lógico pensar que la arquitectura sostenible es solo para las personas con poder

condición de vida? Nosotros no estábamos dispuestos a renunciar a las cualidades de la tierra, queríamos poder construir para Luce y Pablo como para todos, lo que nos lleva a una nueva experimentación.

Nuestros maestros encofradistas tienen una habilidad sorprendente de trabajo. El señor Eusebio, de unos cuarenta largos años aparentes, lidera el equipo. Con él trabajan su padre, hermanos, amigos y cualquiera que les pueda seguir el ritmo, con descansos de rondas de tereré, su misión es arrasar la obra. Llegan, bajan puntales, tablas y arranca la sinfonía de sierras y martillos; y así hasta tener un hermoso entablillado de cielo listo para recibir toneladas de concreto que se encargarían ellos mismos de mezclar y vaciar.

La misión era similar: en lugar del techo cubriríamos el horizonte, unas paredes prismáticas de madera huecas por dentro servirían de encofrados. Con la habilidad de

Revista Mandu’a - 17
PROYECTO NACIONAL -
18
Revista Mandu’a

Eusebio y sus muchachos eso era cuestión de solo un par de horas para la artesanal tarea. Modulando cada pared en la medida de cortes estándar de madera comercial nos ahorraríamos aun más tiempo. 2,40 x 2,40 metros era la medida de piso a techo de cada módulo y el espesor debíamos determinar, pero sabíamos que podíamos hacerlo de 15 o 20 centímetros, que era lo ideal por el consumo de material.

El proyecto, con idas y vueltas desde su concepción consistía en una volumetría simple, sin muchos riesgos estructurales: una L sumergida entre la vegetación. El sol del oeste incide todas las tardes en lo más cerrado de la casa, y en las mañanas se iluminan el amplio estar, cocina y comedor. Pero lo más importante garantizar el descanso con las habitaciones frescas, y con la idea futura de agrandar la familia el confort debía estar garantizado. Las paredes de tierra protegerían los sectores íntimos, una losa huerta cultivada por sus propios dueños y apoyada

metálicos alimentaria al pequeño Agus.

Revista Mandu’a - 19
PROYECTO NACIONAL
20
- Revista Mandu’a

Después de muchos errores aprendimos la nueva técnica: Hicimos pruebas hasta lograr estabilizar la tierra que utilizaríamos, ensayos con probetas nos daban resistencias similares a las del ladrillo, los tiempos de cargado nos permitían cargar 2 módulos por día con un equipo chico de al hormigón al utilizar 10% de cemento en la mezcla. Hasta llegar a utilizar solo 5% como estabilizador, había opciones de otros estabilizadores con menor impacto, pero en el mercado local no eran de fácil acceso y para ser nuestro primer acercamiento tampoco estábamos para correr más riesgos. Había una familia que esperaba su hogar.

La larga tradición alfarera guaraní creadora del kambuchi, un cántaro moldeado en barro por las mujeres paraguayas para transportar el agua del ykua y mantenerla

de, en un acto de amor, ofrecer a los hombres para combatir el implacable calor, como reza una canción tradicional escrita por el gran Mauricio Cardozo Ocampo.

Al igual que nosotros, en el mismo acto, estábamos listos para ofrecer la casa nacida de la tradicional tierra roja guaraní, moldeada por nuestros artesanos a un costo razonable con la técnica que nosotros denominamos tierra vertida. Encontramos muchos ejemplos alrededor del mundo, pero en Paraguay nunca se hizo.

La Vivienda L&P se construyó de los sueños de una pareja iniciando su recorrido juntos, sus ganas de vivir en un espacio apto para el correcto desarrollo de sus funciones que utilizarán a lo largo de su

a cabo una casa única en su estilo, con barro y olor a tierra después de la lluvia.

GREENPEACE BRASIL

Proyecto: guaja.cc + facury. Arquitectos a cargo: Lucas Augusto Barbosa Durães, João Pedro P. Facury. Diseño de Iluminación: Denis Joelson + Nina Morelli . Ejecución de obra: Nix Engenharia.

Fotografías: Manuel Sá, José Henrique Paiva. 825 m².

Año: 2023.

Ubicación: São Paulo, Brasil.

PROYECTO INTERNACIONAL
22
- Revista Mandu’a

Descripción elaborada por el equipo del proyecto.

Alineado con el balcón público del acera suspendida en el Centro Histórico de São Paulo -, el proyecto de la Nueva Sede de Greenpeace Brasil se presenta como una vitrina de la institución para la mayor ciudad de América Latina.

Su inserción privilegiada se une a la arquitectura para invitar a los habitantes de la metrópoli a disfrutar de un espacio universalmente accesible, con una materialidad peculiar y una relevancia cultural única.

Revista Mandu’a - 23
PROYECTO INTERNACIONAL
Corte. Planta.
24
- Revista Mandu’a

Los muebles acogedores en su sencillez permiten una amplia apropiación del balcón - la frontera de la ciudad con los espacios de uso público de la sede.

Mientras que el Warehouse alberga producciones en diversas formas de la institución - sirviendo, por ejemplo, como escenario para talleres abiertos de carteles - las salas Flexible y Multiuso protegen múltiples eventos - no solo, sino también, clases, conferencias, reuniones, encuentros sociales y ceremonias diarias. Ambas ubicadas cerca de la fachada con el lazos y ampliar los intercambios de la organización con la sociedad.

Revista Mandu’a - 25

El movimiento de salir de un barrio de alta clase para ocupar un espacio

y simbólico - es, por sí mismo, un acto valiente alineado con una postura sostenible en un sentido amplio. La abundancia de infraestructura urbana - tanto en términos de movilidad y sus diversas modalidades como en la provisión de servicios en sus múltiples expresiones - favorece las actividades de la entidad, mientras que esta recupera y renueva el espacio. Greenpeace en Copan se posiciona como un fuerte aliado en el proceso de reocupación consciente y democrática del centro de una de las ciudades más importantes del país.

El programa está graduado en una escala de privacidad. Partiendo de lo más público a lo menos, el Warehouse, la Sala Multiuso, la Sala Flexible y la

desde el balcón de Copan que, con su ancho atípico - extremadamente continuación de la acera. Sus accesos y funciones son independientes del resto del programa, pudiendo abrirse al público siempre que sea necesario.

PROYECTO INTERNACIONAL - Revista Mandu’a 26

Los amplios ambientes, permeados por particiones móviles - como cortinas y puertas corredizas - apoyan diversas apropiacionesbilidad del proyecto permite la adaptación para usos aún no previstos, aumentando así la vida útil del espacio. Cabe destacar un eje infraestructural central proporcionalizando la integración entre ambientes de por actividades simultáneas divergentes.

El espacio también valora las marcas de mantenimiento de rastros de la antigua escalera presente en la losa superior. Se busca armonizar la valorización histórica con las demandas contemporáneas de uso. Así, se evidencian directrices de una arquitectura conscientemente silenciosa, enfocada principalmente en intervenciones infraestructurales, con el objetivo de la robustez necesaria para una ocupación a largo plazo y ambientalmente responsable.

Revista Mandu’a - 27

LA ESENCIA DEL CEMENTO PORTLAND

Desentrañando la química que sostiene nuestras construcciones.

En el mundo de la construcción, el cemento es un elemento esencial que

Sin embargo, pocos reconocen la compleja y vital química que se esconde tras este material. En una colaboración de Cementos Concepción S.A.E. (CECON), exploramos los compuestos principales del cemento y su papel fundamental en la creación de una infraestructura resistente.

El Silicato Tricálcico (C3S), también conocido como alita, constituye entre 50% y 70% del clinker. Es crucial en el proceso de fraguado y resistencia temprana del cemento. Su rápida hidratación y endurecimiento lo convierten en el motor inicial del fraguado, otorgando al cemento una solidez temprana imprescindible.

Por otro lado, el Silicato Dicálcico (C2S) contribuye al aumento de la resistencia en etapas posteriores, aportando fortaleza a largo plazo. Su hidratación y endurecimiento más lentos hacen que su efecto en la resistencia se

El Aluminato Tricálcico (C3A) y el Ferroaluminato Tetracálcico (C4AF) complementan la composición principal del clinker del cemento Portland. El primero libera calor en los primeros días de hidratación y contribuye a las resistencias iniciales, aunque en menor medida que el C3S. El segundo participa en menor medida en estas propiedades y contribuye al color gris característico del cemento.

La calidad de la materia prima es crucial en la química del cemento. Estas son molidas transforma en clinker en el horno. Esta transformación es donde nacen los compuestos cemento.

El conocimiento profundo de esta química permite la elaboración de morteros, carpetas y hormigones de excelentes prestaciones. La química del cemento es la base sobre la cual se levantan nuestras construcciones, asegurando su resistencia, durabilidad y calidad.

INDUSTRIA & INNOVACIÓN - Revista Mandu’a 28

LÁMINA DYSO REVESTECH

Protección y durabilidad extrema para suelos.

EDYSO REVESTECH, diseñada para ofrecer una desolidarización extrema y una protección anticracking superior en aplicaciones bajo cerámica en espacios interiores. Esta innovadora lámina destaca por su capacidad para soportar deformaciones y grietas de hasta 20 mm, garantizando la integridad del revestimiento cerámico al neutralizar las tensiones que se generan entre el soporte y la cerámica.

La lámina DYSO REVESTECH está compuesta por una capa de elastómero con estructura de célula abierta, lo que le permite absorber los movimientos horizontales del soporte.propileno, asegurando un óptimo agarre con el cemento cola C2 S1/S2, que se utiliza para su instalación como lámina adherida. Esta combinación de materiales y diseño no solo que también facilita una instalación segura y duradera.

Además de su uso en interiores, la lámina DYSO REVESTECH es apta para aplicaciones en exteriores, siempre y cuando se le añada la lámina de impermeabilización ECODRY120/80/50.

esté protegida contra la humedad, garantizando una larga vida útil del revestimiento cerámico en condiciones exteriores adversas.

EUREKA, con su compromiso con la innovación y la calidad, ofrece esta solución avanzada para proteger y prolongar la vida útil de sus revestimientos cerámicos, tanto en interiores como en exteriores. La lámina DYSO REVESTECH es especialmente útil en instalaciones de suelo radiante, donde las condiciones de temperatura y movimiento pueden comprometer la integridad de los materiales.

Para más información, contacte a través de WhatsApp al 0983 481 777, teléfono al 021 524 087, o visite la web www.eureka.com.py.

INDUSTRIA & INNOVACIÓN Revista Mandu’a - 29

INDUSTRIA & INNOVACIÓN

MOLDURAS DE EPS DE MULTIPLAST

Resaltando la estética y el valor de cada espacio.

Las molduras decorativas de EPS (poliestireno expandido) son una solución efectiva para mejorar la apariencia de

utiliza tanto en exteriores como en interiores, en uniones de paredes, techos y marcos de puertas y ventanas, ofreciendo una manera sencilla y económica de embellecer espacios.

Las molduras de EPS destacan por su variedad de estilos y diseños, permitiendo añadir un toque distintivo a recámaras, baños, pasillos, comedores, salas y cocinas. Además, son ideales para resaltar áreas exteriores de una casa, aportando un acabado elegante y atractivo.

Una de las principales ventajas de las molduras de EPS es su ligereza en comparación con las tradicionales molduras de hormigón. Esta característica facilita la instalación y reducebajo. Además, estas molduras son resistentes al daño causado por plagas domésticas, asegurando una larga durabilidad sin necesidad de mantenimiento frecuente.

Otro aspecto a tener en cuenta es que durante el avalúo de una vivienda, el costo de reposición de las molduras decorativas es considerado, lo que impacta positivamente en el valor total del inmueble. Este aspecto convierte a este producto en una inversión inteligente para aquellos que buscan mejorar tanto la estética como el valor de su propiedad.

MULTIPLAST SAIC, una empresa comprometida con la innovación y la calidad, ofrece una amplia gama de molduras de EPS, junto con soluciones aislantes y térmicas diseñadas para satisfacer las necesidades de sus clientes. Con un enfoque en estándares altos de calidad y efectividad, MULTIPLAST SAIC se dedica a añadir valor a cada proyecto, proporcionando productos que combinan funcionalidad y estilo.

Para más información sobre nuestras molduras de EPS y otras soluciones, contactar a través de Whatsapp al 0984 195 046 o llamar al 021 448 034.

- Revista Mandu’a 30

DIVISORIAS SANITARIAS KUBOX

Una solución sanitaria robusta, estética y adaptable.

En la evolución constante de los espacios públicos, la necesidad de soluciones sanitarias que combinen durabilidad, versatilidad y estética es crucial. Las divisorias sanitarias Kubox se presentan como una respuesta integral a estas demandas, ofreciendo una solución robusta y adaptable para una variedad de entornos. Compuestas por paneles laminados estructurados, las divisorias Kubox se apoyan en pedestales metálicos y utilizan materiales de primera calidad como Compac y Fiberboard. Esta elección asegura durabilidad, estabilidad y resistencia a los rigores del uso diario en espacios públicos.

Para garantizar una instalación sólida y segual suelo con tornillos de acero inoxidable. Este

uso continuo. Además, cada divisoria incorpora una viga de aluminio, añadiendo una capa extra de estabilidad estructural que es crucial en

Las divisorias sanitarias Kubox destacan también por su facilidad de mantenimiento. Los materiales utilizados son altamente resistentes a la humedad y a la limpieza frecuente, garantizando que se mantengan en óptimas condiciones con un mínimo esfuerzo. Este aspecto las convierte en una solución duradera para cualquier espacio público.

El diseño inteligente de las divisorias Kubox, combinado con materiales de alta calidad y opciones personalizables, las convierte en una elección preferida para arquitectos y diseñadores. Si busca mejorar sus instalaciones sanitarias, las divisorias Kubox representan una inversión que garantiza calidad y satisfacción a largo plazo.

Para más información, visitar el local de ShoppinGlass en Itapé 216 c/ Solar Guaraní, Lambaré, o llamar al teléfono (021) 906-951/2 - (021) 328 0572 - (0971) 543 246. También puede visitar la web de la empresa en www. shoppinglass.com.py.

INDUSTRIA & INNOVACIÓN
Revista Mandu’a - 31
- Revista Mandu’a 32
Mano de Obra Costeo de Obra Proyectos Modelo Mandu’a Bolsa de subcontratistas Mandu’ara 34 40 57 65 69 GUÍAS MANDU’A
GUÍAS Revista Mandu’a - 33
www.mandua.com.py

MANO DE OBRA

MANO DE OBRA

Trabajos preliminares

Demoliciones

De mampostería con recuperación

1De 0,45 m

2De 0,30 m

3De 0,15 m

De mampostería sin recuperación

1De 0,45 m

2De 0,30 m

3De 0,15 m

Demoliciones varias

1De techo de teja con recuperación

2De techo de teja sin recuperación

3De techo de chapa

4De techo bovedilla

5De cielorraso armado (desmontar)

6De losa de Hº Aº

7De piso/revoque/revestimiento

8De contrapiso (cuando no hay piso)

15.000

9.000

21.000

Otros trabajos

1Desmonte

2Desmonte

3Destape

4Destape de suelo vegetal

7Replanteo y marcación

8Retiro de tierra o acarreo hasta 50 m

9Carga de contenedorun160.000

10Carga de camiónun213.000

11Bandeja de protección, (armar) m² 30.000

12Montaje de torre para montacargasm79.000

13Desmontaje torre para montacargasm45.000

Excavaciones (sin acarreo)

1Para cimiento m³ 39.000

2Para zapata m³

3Para pozo ciego

5Excavaciones varias suelo blando

6Excavaciones varias suelo duro

9Sacar zócalom2.000

10Sacar azulejos m² 8.000

11Sacar artefactos sanitariosun39.000

12Sacar marcos y balancinesun34.400

13 Sacar mamparas (Durlock, Duratec, etc.)

14Sacar Aire Acondicionadoun85.000

14Desmontar electricidad (boca)un5.000

15Abrir vano en mampostería de 0,15 mm²26.000

16Abrir vano en mampostería de 0,30 m

Preparacion de obra

1 Limpieza de terreno (no incluye corte ni destronque de árboles)

Destronque de árboles

4000

1Árbol chicoun110.000

2Árbol medianoun352.000

3Árbol grandeun528.000

4Árbol extragrandeun726.000

Casilla de obrador

1Casilla habitable, baños y vestuarios

2Barraca para depósito

Vallados, cercos, alambrados

1Vallado de obra (armado)

2Vallado

3Tendido de alambre de púas (5 hilos)m11.000

4Colocación poste de hormigón armadoun17.000

5Colocación ángulo de metal cantoneram9.000

7Excav.

Estructuras de Hº armado

Fundación

1Zapata

2Viga de fundación 20x40 cm

3Tubulones Hº Ciclópeo con excavación m³ 360.000

4Tubulones Hº Aº con excavación m³

5Muro Pantalla de Hº Aº m³ 950.000

Pilotes

1Pilote Ø 40 cm,m61.000

2Pilotín manual Ø 20 cm,m31.000

3Desmochado pilote Ø 40 cm x unidadun132.000

4Cabezales de pilotes m³ 627.000

PILARES (sueltos, cuando no hay losa)

1Pilar hasta 30x30 cmm100.000

2Pilar x m3 m³ 950.000

3Pilar visto/viga vista m³ 913.000

4Pilar suelto x m3, altura hasta 6,00 m m³ 950.000

Vigas

1Viga hasta 30x50m110.000

2Viga hasta 30x50 m³ 850.000

- Revista Mandu’a 34
32.000
24.000
18.000
20.000
17.000
11.000
26.000
30.000
47.000
10.000
5.000
m²26.000
m² 39.000
m² 198.000
m² 84.000
m² 31.000
(desarmado) m² 11.000
de obra
suelo blando m³ 39.000
manual de
manual
suelo duro m³ 61.000
de
cm m² 14.000
de terreno h=20
m² 7.000
compactación manual m³ 44.000
5Relleno y
manual m³ 34.000
6Relleno y nivelación
m² 3.000
39.000
42.600
m³ 55.000
tubulones m³ 44.000
4Para
m³ 39.000
m³ 55.000
p/ submuración m³ 67.000
m³ 650.000
m³ 750.000

Losas

1Losa sola

2Losa + columna + viga m³ 800.000

3Losarap montaje y hormigonado m² 80.000

4Pre Losa montaje y hormigonado m² 30.000

Cadenas

1Cadena 13x30 PBm77.000

2Cadena 20x40 PBm79.000

ESCALERAS

1 Tramo compensado a=1.20 m c/ escalón un125.000

2Tramo recto a= 1.20 m cada escalón,un96.000

PISOS

1Piso rodillado espesor 12 cm

2Piso rodillado espesor 10 cm

3Piso rodillado espesor 08 cm

4 Piso allanado espesor 15 cm (Incluye Alquiler máquina)

5 Piso allanado espesor 12 cm (Incluye Alquiler máquina)

6 Piso allanado espesor 10 cm (Incluye Alquiler máquina)

7 Piso allanado espesor 08 cm (Incluye Alquiler máquina)

Fundaciones

1Cimiento

2Hormigón ciclópeo sin excavación

Mamposteria y muros

Nivelación con ladrillo común

1De

2De 0,30 m

3De 0,30 m armada

4De 0,45 m

Panderete

1De 0,07 - 0,10

Elevación 0,15 m con ladrillo común

1De 0,15 m

2De 0,15 m armada

3De 0,15 m,1 cara vista

4De 0,15 m,1 cara vista y lijada

5 De 0,15 m,1 cara vista con ladrillo laminado

Elevación 0,20 m con ladrillo común

1De 0,20 m

2De 0,20 m,1 cara vista y lijada

3 De 0,20 m,1 cara vista con ladrillo laminado

Elevación 0,30 m con ladrillo común

1De 0,30 m

2De 0,30 m armada

3De 0,30 m,1 cara vista

4 De 0,30 m,1 cara vista y lijada

5 De 0,30 m,1 cara vista con ladrillo laminado

6 De 0,30 m, 2 caras vistas con ladrillo laminado

Elevación 0,45 m con ladrillo común

1De

2De

Sardinel

1Sardinel con ladrillo comúnm46.000

2Sardinel con ladrillo laminadom46.000

Pilar

1Pilar 30x30 cm, ladrillo comúnm33.000

2Pilar 30x30 cm, ladrillo común vistom39.000

MANO DE OBRA

3Pilar 30x30 cm, ladrillo laminado vistom39.000

4 Pilar Ø 30 cm, premoldeado c/ armadura m60.000

5Pilar 40x40 cm, ladrillo comúnm39.000

5Pilar 40x40 cm, Visto con ladrillo comúnm53.000

Elevación con piedra 1Muro de piedra 0,40 m

2Muro de piedra 0,40 m 1 cara vista

Convoco 1Muro de ladrillo convocó 2 caras vistas

Elevación con ladrillos huecos

1De

Elevación estructural con ladrillo portante

4De

con bloques de hormigón

Servicios para mampostería

1Lijada de mampostería para visto

2Lijada de pilar o

3 Colocación de marco para puerta o ventana

Aislación hidrófuga

Horizontal sin asfalto (1:3), sin alisada

1De 0,15 mm5.000 2De 0,30 mm7.000

Horizontal en “U” con asfalto 1De 0,15 mm10.000 2De 0,30 mm15.000

Aislación Hidrófuga 1De losa/techo plano

2Rebaje de losa p/ baño o cocina

3Pintura asfáltica + trama sobre

Aislación vertical

Revista Mandu’a - 35
m³ 800.000
m² 35.000
32.000
30.000
85.000
m² 55.000
m² 46.000
m² 41.000
PBC sin excavación m³ 94.000
187.000
m² 39.000
0,15 m armada
m² 46.000
m² 53.000
m² 57.000
m m² 21.000
m² 30.000
m² 34.000
m² 39.000
m² 46.000
m² 48.000
m² 36.000
m² 44.000
m² 44.000
m² 46.000
m² 55.000
m² 60.000
m² 54.300
m² 61.000
m² 69.000
0,45 m m² 56.000
m² 64.000
0,45 m de submuración
m² 72.800
m² 85.000
de piedra m³ 131.000
de contención 0,50 m m³ 146.000
3Muro
4Muro
m² 33.000
0,10 m m² 22.000
0,15 m m² 24.000
0,15 m, 1 cara vista m² 28.000
0,20 m m² 34.000
m² 36.000
m² 37.000
0,30 m m² 39.000
0,30 m,
cara vista m² 41.000
2De
3De
4De
5De 0,20 m, 1 cara vista
6De 0,24 m
7De
8De
1
1De
m² 64.000 2De 0,20 m m² 70.000 3De 0,30 m m² 83.000 Elevación
1De 0,10 m m² 26.000 2De 0,15 m m² 26.000 3De
m² 33.000
0,30
m² 53.000
0,15 m
0,20 m
m
m² 61.000
5De 0,40 m
m² 3.000
para
m² 3.036
capitel
visto
un75.600
69.000
30.000
m² 16.000
base
base m² 16.000
asfáltica m² 15.000
4Asfalkote + velo sobre
5Membrana
1Azotada hidrófuga, pintura asfáltica m² 39.000 2Pintura asfáltica, trama m² 23.000
m² 23.000
3Azotada hidrófuga, pintura asfáltica
SERVICIO DE IMPERMEABILIZACIÓN TERRAZAS, PISCINAS,TANQUES, BAÑOS

Dinteles

1En mampostería c/ 2 varillas m 11.000

2Sobre aberturas c/4 varillas m 15.000

3Colocación de dintel prefabricado m 15.000

4Dintel zuncho de bloque m 31.000

5 m 15.000

Contrapisos (no incluye alisada)

1Apisonado de Hº cascotes 8 cm

2Apisonado de Hº cascotes 10 cm

3 Apisonado de Hº cascotes 10 cm, c/ pendiente

4Apisonado de Hº cascotes 20 cm

5Apisonado sobre losa Hº Aº e=7cm

26.000

14.000

6Apisonado sobre losa Hº Aº e=6cm m² 13.000

7Apisonado de Hº cascotes con varilla

8Hº Aº e=7cm

Revoque de paredes

Revoques

1Común, fratachado o peinado

2

21.000

6De ductos

7 De vigas de Hº Aº de 15x20 ó 20x30 cm (incluye azotada + aristas)

8 De vigas de Hº Aº de 20x40 ó 30x50 cm (incluye azotada + aristas) por cara

9Revoque de pilares 4 caras y aristas

30.000 5 peinado existente

6

7A la lona o bolseado

8Salpicado

9Base para revestidos

Azotadas hidrófugas para adherencia:

10Espesor = 1 cm x ladrillo

11Espesor = 0,5 cm x ladrillo

12Espesor = 0,5 cm x ladrillo en h=+ 5,00 m

13 Espesor = 1 cm x ladrillo en h=+ 5,00 m exterior

14Azotada p/ impermeable

Revoque de cielorrasos

1 Azotada para adherencia por losa de Hº Aº, 0,5 cm

5A 2 capas sin azotada

6 Azotada o base planchada de metal desplegado

Revoque de vigas/pilares/aristas

1Revoque de arista o canto

10.000

2Revoque de babetas o buñas m 15.000

3De mochetas con 2 aristas (0,15x0,15)

4De

5De

1 maderamen, aislante, caballete y bocateja

3 De teja española con tejuelita incluye: maderamen, aislante, caballete y bocateja

4 De teja española sobre machimbre: maderamen, aislante, caballete y bocateja

5De teja francesa sobre machimbre

6De

7De chapa galv. s/ estruc. de tirantes 2x6”

8

11 Bovedilla c/ tirantes 2x6”, tejuelitas y hormigón pobre

12De paja

13 Montaje de maderamen c/ tirantes 2x5” o 2x6” cepillados

14Montaje de vigas

15 Techo metálico (tinglado), preparación y montaje

16 Cabriadas de madera, preparación y montaje

17 Cabriadas de madera, y planchuelas preparación y montaje

Cielorrasos (incluye armazón de madera)

1De metal desplegado, sin revoque

2De machimbre de 1/2 x 3”

3De machimbre de 1 x 3”

4Cornisa

1De azulejo

2De azulejo, 10x10 cm

Revestidos

3De azulejo (Listel o faja) m 13.000

4De ladrillejo

5De ladrillejo (ladrillo cortado)

6De ladrillejo h= +5m

7Piedra lajón a escuadra

8Piedra roja rompecabeza

9Piedra blanca rompecabeza

10Piedra arenisca blanca o roja pulida en PB

11Piedra arenisca blanca o roja pulida en PA

12Piedra abuchada

13Piedra laja aserrada

14Piedra Wasmosy

15Empapelado

DE OBRA - Revista Mandu’a 36
MANO
m² 15.000
18.000
21.000
33.000
22.000
22.000 3
30.000 4
11.000
m² 30.000
m² 13.000
22.000
m² 22.000
10.000
7.000
10.000
13.000
10.000
2 m² 33.000
m² 42.000
m² 46.000
8.000
3
4
m² 42.000
13.000
m
m
21.000
m 24.000
goterón en alero
Aº m² 35.000
losa de Hº
m 21.000
m 37.000
m 46.000
m 39.000
m 33.000
10Revoque de pilares 3 caras y aristas
Techos
m² 85.000
m² 92.000
2Idem anterior con limatón
m² 79.000
m² 85.000
m² 79.000
m² 53.000
teja francesa vana
m² 26.000
m² 26.000
m² 39.000 10Colocación de machimbre sobre tirantes m² 30.000
9 acanalada autoportante
m² 85.000
m² 46.000
m² 33.000
m 47.000
m² 39.000
m 172.000
238.000
m
m² 37.000
m² 39.000
m² 44.000
ml
3.000
m² 32.000
m² 32.000
m² 45.000
m² 72.000
m² 49.000
m² 70.000
m² 37.000
m² 37.000
m² 67.000
m² 72.000
m² 60.000
32.000
m 100.000
m² 24.000

Sobre carpeta existente

1Cerámica esmaltada P I 5 m² 34.000

2Cerámica esmaltada en baño m² 31.000

3Cerámica esmaltada en escalónm39.000

4Cerámica porcellanato m² 37.000

5Piso calcareo m² 26.000

Carpeta o base

1Para alfombra o cerámica e=2cm m² 18.000

2Alisada de cemento e=3cm m² 24.000

3 Para alfombra o cerámica en escalones un18.000

4Regleado rústico m² s/c

5Alisada sobre contrapiso m² 7.500

6 Banquina p/ placard (contrapiso + carpeta hidrófuga) m33.000

7Baldosa calcárea o canto rodado m² 26.000

8Mosaico granítico m² 26.000

9Pulido de mosaico granítico

26.000

10Layota nacional o esmaltada m² 26.000

11Veredita calcárea m² 26.000

12Ladrillo común m² 21.000

13Tejuelita m² 22.000

14Baldosones de hormigón, 40x40 cm m² 26.000

15Piso de HºAº rodillado de 12 cmm²36.000

16Plancha de granito o mármol m² 44.000

17Plancha de mosaico granitico

18 Parquet a bastón roto o tipo colonial clavado

39.000

53.000

19Parquet de lapacho tarugado m² 59.000

20 Parquet de machimbre curupa’y, 1 x 3” pulido y lustrado m² 67.000

21 Piso de madera rasqueteado y encerado

22Alfombra multipiso

60.000

18.000

20Piso vinílico 30x30 m² 23.000

21 Piedra losa rompecabeza con junta tomada m² 39.000

22Piedra losa rectangular m² 39.000

23Piedra losa 30x30, 30x40 y 40x40 m² 39.000

24Piedra ardosia m² 39.000

25Piedra laja m² 39.000

26Piedra rústica roja Misiones m² 39.000

27Piedra triturada esparcida a mano m² 7.000

28Adoquín de piedra m² 42.000

Varios

1 Colocación tapa metálica en cámara de inspección un44.000

2 Colocación rejilla en cámara de inspección un44.000 Empedrado

1Empedrado, h=0,20 m sin cordón m² 17.000

2Empedrado, h=0,40 m sin cordón m² 28.000

MANO DE OBRA

3 Colocación de cordón Hº Prefabricado m13.000

Zócalos

1Cemento alisadom8.000

2Calcáreo o graníticom13.000

3Cerámicom13.000

4Layotam13.000

5Mármol o granito naturalm26.000

6Parquetm13.000

7Alfombram13.000

Desagües

Cloacal

1Caño PVC 40 mmm14.000

2Caño PVC 50 mmm14.000

3Caño PVC 100 mmm23.000

4Caño PVC 150 mmm31.000

5Caño material vidriado 4”m26.000

6Caño hº centrifugado 30 cmm26.000

7Caño hº centrifugado 40 cmm33.000

8Caño hº centrifugado 50 cmm34.000

9Caño hº centrifugado 60 cmm45.000

10Caño hº armado 80 cmm70.000

11Caño hº armado 100 cmm83.000

12Registro 20X20 cmun87.000

13Registro 30X30 cmun113.000

14Registro 40X40 cmun120.000

15Registro 50x50 cmun146.000

16Registro 60x60 cmun156.600

17Rejilla corrida 0,20 mm45.000

18Rejilla de piso sifonada de 15x15 cmun69.000

19Rejilla de patio 30x30 cmun66.000

20Boca desague abierta 30x30 cmun66.000

21Boca desague abierta 40x40 cmun66.000

22 Registro desengrasador con tapa de metal un121.000

23Cámara de drenaje 60x60 cmun132.000

24 Cámara séptica (1,00x1,60x1,20 m) con excavación un 990.500

25 Pozo absorvente (Ø: 1.50 m x altura 3,00 m) con excavación un 1.650.000

Desagües para baño

1Baño completo standardun317.000

2Baño completo con bañeraun380.000

3Baño de servicioun222.000

4Baño socialun159.000

5Para pileta de lavar y lavarropasun159.000

6 Para pileta de cocina (incluye desengrasador y caja sifonada) un126.000

Agua corriente

1 Caño PVC 1” (incluye excavación, colocación y protección) m16.000

2Idem anterior de 3/4m13.000

3Idem anterior de ½m8.000

4 Instalación de canilla de patio, + 5 ml de cañería un64.000 Instalación agua fría

1Para baño completoun

2Para baño de servicioun

3Para baño socialun

Revista Mandu’a - 37
Pisos
412.000
286.000
159.000

4Para pileta de lavarun 191.000

5Para pileta de cocinaun 126.000

Instalación agua caliente y fría

1Para pileta de cocinaun 254.000

2Para baño completoun 697.000

Colocación de artefactos

Sanitarios y Grifería

1Baño completo 115,500 x 4 un 462.000

2Baño de servicio 100.500 x 2 un 234.000

3Baño social 117.000 x 2 un 234.000

4Pileta de cocinaun 122.000

5Pileta de lavarun 122.000

6Bañera comúnun 314.000

7Bañera hidromasajeun 524.000

8 Accesorios de baño (jabonera, percha, etc) un 22.000

9Colocación de calefónun 175.000

9Colocación de ducha eléctricaun 33.000

Instalación eléctrica

1Boca de luzun53.000

Trabajo de Albañilería

1 Pilar de mampostería para medidor de 0,45x0,45x1,70 m no incluye cimiento ni nivelación un 480.000

2 Registro eléctrico c/ drenaje y tapa de 30x30x40 cm un 105.000

3Idem anterior 40x40x70 cmun 131.000

4Colocación caja aire acondicionadoun72.000

Puesto de medición provisorio 1

1Monofásico 12bocas

2Trifásico 14bocas

1Monofásico 14bocas

2Trifásico hasta 3A 18bocas

Tablero principal o seccional

1 Colocación de caja embutida en mampostería hasta 40x50 cm 3bocas

2 Disyuntor TM de corte principal o seccional o de circuito unipolar 2bocas

3Idem anterior tripolar 3bocas

4Instalación de interruptor diferencial 6bocas

Líneas subterráneas

(Incluye excavación a una profundidad de 0,50 m en con protección mecánica y cableado)

1Monofásica de 4 a 10 mmm7.000

2Trifásica de 4 a 10 mmm13.000

3Trifásica de 16 a 25 mmm21.000

Línea embutida en mampostería

(incluye colocación de electroducto y cableado)

1Monofásica de 4 mmm7.000

2Monofásica de 6 mmm7.000

3Monofásica de 10 mmm8.000

4Trifásica de 4 a 10 mmm11.000

5Trifásica de 16 a 25 mmm13.000

Líneas aéreas

1Monofásica de 4 a 10 mmm3.000

2Trifásica de 4 a 10 mmm7.000

3Trifásica de 16 a 25 mmm9.000

Electroductos embutidos en mampostería sin cableado

1De 5/8”m3.000

2De 1/2”m3.000

3De 3/4”m3.000

4De 1”m3.000

Lámparas y tomas de corriente (Embutidos en mampostería hasta 5m del tablero)

1Una lampara con su interruptor 1boca

2 Una lámp. c/ 2 llaves de comb. de escalera 2bocas

3Una Toma corriente 1bocas

4 Por llave de 4 vías o intermedia adicional 1boca

Circuitos independientes

1 Circuito para aire acondicionado sin montaje de aparato ni abertura de mampostería hasta 5 m del tablero (mismo que recorran cañerías con otros circuitos) 4bocas

2 Circuito p/ calefón o ducha eléctrica idem anterior 4bocas

3 Circuito monof. p/ motobomba c/ cable de 4mm hasta 5 m del tablero 4bocas

Colocaciones

1Aire acondicionadoun 230.000

2Ventilador de techoun 95.000

3 un16.200

4Apliques y arañasun16.200

Carpinteria de aluminio

Colocación de premarco de aluminio:

1Chico 1 m²un64.000

2Mediano 3m²un92.000

3Grande 4 m²un 125.000

4Extra grande 5 m²un 150.000

Carpintería de madera

Colocaciones de:

1De marco mayor de 1,00 mun

2De marco menor de 1,00 mun

placaun

4Puerta persiana o vidriera chicahoja 46.000

5Puerta tableroun 96.000

6 Puerta tablero principal incluye hoja, manijón y visor un 128.000

7 Ventana persiana o vidriera 0,65 x 1,00 mt hoja36.000

8Ventana balancínun40.000

9Contramarcom10.000

10Pergolado m² 83.000

Carpintería metálica

Colocaciones de:

1 De marco de chapa doblada de 0,80x2,10 m un66.000

2 De marco de chapa doblada de 1,50x1,20 m un 88.000

DE OBRA - Revista Mandu’a 38
MANO
111.000
83.000
3Puerta
92.000

3 De marco de chapa doblada con relleno un 88.000

4De marco metálico - ánguloun66.000

5 De guías metálicas y taparrollo p/ cortina de enrollar un 264.000

6De reja de hierro entre marcosun 44.000

7De reja de hierro aplicada a la paredun61.000

8Portón de hierro 1,00x1,50 mun 106.000

9 Balancín chico 40x40 cm sin revoque un44.000

10 Balancín mediano 1,00x1,50 m sin revoque un77.000

11 Balancín grande 2,00x1,80 m sin revoque un98.000

12Portón cochera de 3,00x1,50 mun185.000

13Baranda de escalerasm23.000

14Pasamanos,}m18.000

15Escalera metálicam61.000

16Puerta metálica corta fuegoun175.000

17Puerta metálica mosquiteraun106.000

18Tinglado, preparación y montaje m² 55.000

Pintura

Pintura de pared

1A la cal blanca m² 9.000

2A la cal color m² 11.000

3Al látex interior/exterior con enduido m² 24.000

4Al látex interior/exterior sin enduido m² 17.000

5 Al látex exterior con enduido en altura m² 29.000

6 Al látex exterior sin enduido en altura m² 19.000

7 Al esmalte sintético interior/ exterior con enduido m² 23.000

Repintado de pared

1Al látex interior o exterior

9.000

2 Al látex interior o exterior altura + de 5m m² 11.000

Enduído

1De pared m² 12.000

2De abertura de madera m² 15.000

Techo

1 Tejuelita a la cal y maderamem c/ esmalte sintético m² 17.000

2Tejuelón y maderamem barnizado m² 17.000

3 Tejuelita o tejuelón barnizado y maderamem con esmalte sintético m² 17.000

4Pintura de alero de 0,60 mm20.000

Cielorrasos

1 m² 13.000

2Al látex con enduido

3A la cal

4Barnizado de machimbre

Aberturas de madera

1Marco y hoja con esmalte sintético m² 26.000

2Marco y hoja con barniz m² 20.000

Aberturas metálicas

1 Marco y hoja c/ cromato y esmalte sintético m² 17.000

2 Rejas, barandas y balancines c/ cromato y esmalte sint m² 24.000

3Tejido de metal

Canaletas y bajadas

1 Con base p/ galvanizado y esmalte sintético m10.000

Ladrillo visto, hormigón y piedra

1 Limpieza, curado y siliconado o barnizado m² 15.000

2 Limpieza, curado y siliconado o barnizado en altura m² 17.000

3Limpieza, curado y pintura a la cal m² 12.000

4Pintura texturada m² 24.000 Pintura en silleta

1Hasta 30 m de altura m² 22.000

2Desde 30 a 70 m de altura m² 35.000 Varios

1Moldura doblem63.000

2Moldura sencillam49.000

3Estufa con boca 1,00 mun 1.849.000

4Parrilla con boca 1,00 m,un 1.980.000

5Colocación balaustre sencilloms/c 6 uns/c 7 uns/c 8 m2 3.000 Jornal de mercado

1Capataz - día 208,800h31.375 2 h26.000 3 h20.875

4Ayudante - día 94,000h14.875

Honorario técnicos

01Dibujanteh28.000

02Dibujante por lámina un418.000

03Calculistam2 20.000

04Cómputo métricom2 4.000

05Presupuesto de obram2 8.000

06Copias Plotter por láminaun11.000

Salario Mínimo

El salario mínimo mensual legal que rige desde el 1 de julio de 2023, según Decreto N.º 9584/23 es de Gs. 2.680.373. El documento establece un reajuste de 5,1 % respecto al salario anterior —ajustado por última vez un año atrás—, y el jornal mínimo (diario) en Gs. 103 091 para el sector privado.

El ajuste del salario mínimo en Paraguay, desde la promulgación de la Ley 5764/16, se establece sobre la base de la variación interanual del Índice de Precios al Consumidor (IPC) y su impacto en la economía nacional, al mes de junio de cada año.

MANO DE OBRA Revista Mandu’a - 39
27.000
10.000
15.000
m² 17.000

COSTEO DE OBRA

TRABAJOS PRELIMINARES

Relleno y Compactación

Tierra gorda,m31,0064.00064.000

Mano de obra,m31,0044.00044.000

Total por:m3 108.00

Cartel de Obra (de 1.40x2.80m con marco metálico y lona. A retirar y sin colocación)

Cartel de obra,un1,00450.000450.000

Total por:un 450.000

Vallado de Obra

Chapa cincalum Nº 28, un0,50109.00054.500 2.44x0,90,

Puntal de eucalipto pulg/10,06506.500

Clavo con cabeza de un0,40600240 plomo,

MO (armado),m21,0031.00031.000

MO (desarmado),m21,0011.00011.000

Total

ESTRUCTURAS DE HORMIGON ARMADO

Zapata fck=18 MPa

Cemento tipo 1,kg3001.100330.000

Arena lavada,m30,7065.00045.500

Piedra triturada de IV,tn1,40120.000168.000

Varilla conformada,kg6510.000650.000

Alambre negro de atar,kg0,3025.0007.500

Mano de obra,m31650.000650.000

Total por:m3 1.851.000

Columna fck=21 MPa

Cemento tipo 1,kg3001.100330.000

Arena lavada,m30,7065.00045.500

Piedra triturada de IV,tn1,40120.000168.000

Varilla conformada,kg9510.000950.000

Alambre negro de atar,kg0,4025.00010.000

Clavo 1” a 7”,kg0,4018.0007.200 kg3,5019.85069.475

Mano de obram31800.000800.000

Total por:m3 2.380.175

Viga fck=21MPa

Cemento tipo 1,kg3001.100330.000

Arena lavada,m30,7065.00045.500

Piedra triturada de IV,tn1,40120.000168.000

Varilla conformada,kg9010.000900.000

Alambre negro de atar,kg0,4025.00010.000

Clavo 1” a 7”,kg0,4018.0007.200

REOPLAST kg319.85059.550

Mano de obra,m31800.000800.000

Total por:m3 2.320.250

Losa fck=21MPa

Cemento tipo 1,kg3501.100385.000

Arena lavada,m30,7065.00045.500

Piedra triturada de IV,tn1,30120.000156.000

Varilla conformada,kg8010.000800.000

Alambre negro de atar,kg0,4025.00010.000

Clavo 1” a 7”,kg0,3018.0005.400

REOPLAST kg419.85079.400

Mano de obra,m31800.000800.000 Total

Encadenado Inferior 13x20 en PB

Cemento tipo 1,kg101.10011.000

Arena lavada, m3 0,02 265.000 1.300

Piedra triturada de IV,tn0,04120.0004.800

Varilla conformada,kg3,2010.00032.000

Alambre negro de atar,kg0,1025.0002.500

Clavo 1” a 7”,kg0,1018.0001.800

Mano de obra,160.000

Arena lavada,m30,0265.0001.300

Piedra triturada de IV,tn0,05120.0006.000

Varilla conformada,kg3,6010.00036.000

Alambre negro de atar,kg0,1025.0002.500

Clavo 1” a 7”,kg0,1018.0001.800

Piedra triturada de IV,tn0,13120.00015.600

Varilla conformada,kg4,0010.00040.000

Alambre negro de atar,kg0,1025.0002.500

Clavo 1” a 7”,kg0,1018.0001.800

COSTEO DE OBRA
por:m2 103.240
por:m3 2.281.300
Total por:ml
113.400 Encadenado 13x30 cm Cemento tipo 1,kg121.10013.200
Total por:ml 137.800 Encadenado 30x30 cm Cemento tipo 1, kg 271.100 29.700 Arena
Mano de obra,ml177.00077.000
lavada,m30,0665.0003.900
Mano de obra, 1 77.500 Total por:ml 171.000 p - Revista Mandu’a 40

Escalera de HºAº fck=21MPa15 escalones de 0.30x1.10m y 1 descanso

Cemento tipo 1,kg3501.100385.000

Arena lavada,m30,7065.00045.500

Piedra triturada de IV,tn1,40120.000168.000

Varilla conformada,kg11010.0001.100.000

Alambre negro de atar,kg525.000125.000

Clavo 1” a 7”,kg0,4018.0007.200

REOPLAST

kg419.85079.400

Mano de obra,C/ES17125.0002.125.000

Total por:total 4.035.100

Losa Rap h=12+5=17cm, luz hasta 4,70m (1:2:3,5)

Cemento tipo 1,kg22,81.10025.080

Arena lavada,m30,0465.0002.600

Piedra triturada de V,tn0,09120.00010.800

Varilla conformada,kg1,8010.00018.000

Alambre negro de atar,kg0,0625.0001.500

Viguetas y ladrillos,m2178.50078.500

Mano de obra,m2180.00080.000

Total por:m2

Losa Rap h=20+4=24cm, luz mayor a 4,70 m (1:2:3,5)

Cemento tipo 1,kg24,21.10026.620

Arena lavada,m30,0565.0003.250

Piedra triturada de V,tn0,11120.00012.600

Varilla conformada,kg1,8010.00018.000

Alambre negro de atar,kg0,0625.0001.500

Viguetas y ladrillos,m2185.50085.500

Mano de obra,m2180.00080.000

Total por:m2 227.470

Losa Listalosa

Cemento tipo 1,kg181.10019.800

Piedra triturada de V,tn0,08120.0009.600

Arena lavada,m30,0365.0002.145

Varilla conformada,kg1,8710.00018.700

Vigueta listalosa,m21125.000125.000

MO colocación un145.15545.155

Total por:m2

Cemento tipo 1,kg351.10038.500

Arena lavada de rio,m30,0765.0004.550

Piedra triturada de IV,tn0,13120.00015.600

Varilla conformada,kg510.00050.000

Varilla lisa,kg111.50011.500

Alambre negro de atar,kg0,4025.00010.000

Clavo 1” a 7”,kg0,4018.0007.200

REOPLAST kg0,3519.8506.948

SIKAFLEX Sellador de pomo0,3357.00018.810

juntas - 300ml, PAVIDUR Endurecedor kg1,237.3008.979 Mano de

FUNDACIONES

Cimiento PBC con cal (1/2:1:4)

Piedra bruta blanca,m31,20150.000180.000

Cemento tipo 1,kg461.10050.600

Cal triturada,kg301.22536.750

Arena lavada,m30,3065.00019.500 Mano de obra PBC,m3194.00094.000

excavación,m3139.00039.000

Cimiento PBC sin cal (1:12) m3 353.920

Cimiento de H° de Cascotes - Tierra Gorda

Tierra gorda,m30,6064.00038.400

Cemento tipo 1,kg801.10088.000

Cascotillo cerámico,m30,8099.50079.600

MO

Cimiento de H° de Cascotes - Arena Lavada

Arena lavada,m30,6065.00039.000

Cemento tipo 1,kg2001.100220.000

Cascotillo cerámico,m30,8099.50079.600

MO excavación,m31,0039.00039.000 Mano de obra PBC,1,0065.000

Total por:m3 442.600

Hormigón Ciclópeo (1:3:6)

Piedra bruta blanca,m30,40150.00060.000

Cemento tipo 1.kg225,1.100247.500

Arena lavada,m30,4065.00026.000

Piedra triturada de IV,tn1,05120.000126.000

Mano de obra,m31,00187.000187.000

MO excavación,m31,0039.00039.000 Total por:m3 685.500

MAMPOSTERIAS

De Nivelación

Con ladrillo común y junta de 2 cm

De 0.30 m de ancho (1:2:8) con cemento Tipo 1

Ladrillo común,un12270085.400

Cemento tipo 1,kg14,11.10015.510

Cal triturada,kg13,31.22516.293

Arena lavada,m30,1065.0006.500

Mano de obra,m21,0046.00046.000

Total por:m2 169.703

De 0.30 m armada (1:4) con cemento Tipo 1

Ladrillo común,un12270085.400

Cemento tipo 1,kg16,01.10017.600

216.480
220.400
Total
208.087
obra,m2136.00036.000
por:m2
MO
Total
por:m3 419.850
excavación,m31 39.000 Mano de obra PBC, 1 65.000 Total por:m3 310.000
COSTEO DE OBRA Revista Mandu’a - 41

COSTEO DE OBRA

Arena lavada,m30,1065.0006.500

Varilla conformada,kg1,6010.00016.000

Mano de obra,m21,0053.00053.000

Total por:m2 178.500

De 0.45 m de ancho (1:2:8) con cemento Tipo 1

Ladrillo común,un187700130.900

Cemento tipo 1,kg23,11.10025.410

Cal triturada,kg21,91.22526.828

Arena lavada,m30,1665.00010.400

Mano de obra,m21,0057.00057.000

Total por:m2 250.538

De Elevación

Con ladrllo común y junta de 2 cm

De 0.15 m (1:2:10) con cemento tipo 1

Ladrillo común,un6570045.500

Cemento tipo 1,kg5,741.1006.314

Cal triturada,kg5,531.2256.774

Arena lavada,m30,0565.0003.250

Mano de obra,m21,0030.00030.000

Total por:m2 91.838

De 0.15 m (1:2:10) con cemento tipo 1 - A la vista

Ladrillo común,un65,070045.500

Cemento tipo 1,kg5,741.1006.314

Cal triturada,kg5,531.2256.774

Arena lavada,m30,0565.0003.250

Mano de obra,m21,0039.00039.000

Total por:m2 100.838

De 0.20 m (1:2:10) con cemento tipo 1

Ladrillo común,un9570066.500

Cemento tipo 1,kg8,801.1009.680

Cal triturada,kg8,501.22510.413

Arena lavada,m30,0965.0005.850

Mano de obra,m2136.00036.000

De 0.20 m (1:2:10) con cemento tipo 1 - A la vista

Ladrillo común,un9570066.500

Cemento tipo 1,kg8,801.1009.680

Cal triturada,kg8,501.22510.413

Arena lavada,m30,0965.0005.850

Mano de obra,m2144.00044.000

Total por:m2 136.443

De 0.30 m (1:2:10) con cemento tipo 1

Ladrillo común,un12270085.400

Cemento tipo 1,kg11,81.10012.980

Cal triturada,kg11,41.22513.965

Arena lavada,m30,1065.0006.500

Mano de obra,m21,0046.00046.000

Total por:m2 164.845

De 0.07 m (1:2:10) con cemento tipo 1 y junta de 1.5 cm

Ladrillo común,un3070021.000

Cemento tipo 1,kg0,901.100990

Cal triturada,kg0,851.2251.041

Arena lavada,m30,0165.000520

Mano de obra,m21,0021.00021.000

Total por:m2

De Elevación

Con Ladrillos Cerámicos Huecos y junta de 1,5 cm

De 0.15 m (1:2:8) con cemento tipo 1

Ladrillo 6 tubos de 1ra, un201.29825.960 12x18x25 cm Ita Yby, Cemento tipo 1,kg1,801.1001.980

Cal triturada,kg1,701.2252.083

Arena lavada,m30,0165.000845

Mano de obra,m21,0024.00024.000

De 0.15 m (1:2:8) 1 cara vista con cemento tipo 1

Ladrillo 6 tubos de 1ra, un20,01.29825.960

12x18x25 cm Ita Yby, Cemento tipo 1,kg1,801.1001.980

Cal triturada,kg1,701.2252.083

Arena lavada,m30,0165.000650

De 0.20 m (1:2:8) m con cemento tipo 1

Ladrillo hueco un19,02.20041.800

18x18x25 Ita Yby Cemento tipo 1,kg2,801.1003.080

Cal triturada,kg2,701.2253.308

Arena lavada,m30,0265.0001.235 Mano de obra,m21,0034.00034.000

De 0.20 m (1:2:8) con cemento tipo 1

Ladrillo 6 tubos de 1ra, un41,01.17748.257

8x18x25 cm Ita Yby Cemento tipo 1,kg5,401.1005.940

Cal triturada, kg 5,10 1.225 6.248 Arena lavada,m30,04 65.000 2.405

Mano de obra,m21,0034.00034.000

De Elevación a la Vista

Con ladrilllo cerámico laminado y junta de 1,5 cm

De 0.15 m (1:2:8) con cemento tipo 1

Ladrillo de 1ra A, un45,01.26556.925

6x12x25 cm Ita Yby, Cemento tipo 1,kg5,601.1006.160

por:m2 128.443
Total
44.551
Total
54.868
por:m2
Total por:m2 58.673
Mano de obra,m21,0028.00028.000
Total
83.423
por:m2
Total por:m2 96.850
- Revista Mandu’a 42

Cal triturada,kg5,301.2256.493

Arena lavada,m30,0465.0002.470

Mano de obra,m21,0039.00039.000

Total por:m2 111.048

Elevaciones Varias

Sardinel de Ladrillos Comunes

Ladrillo común,un16,070011.200

Cemento tipo 1,kg2,101.1002.310

Cal triturada,kg0,901.2251.103

Arena lavada,m30,0165.000650

Mano de obra,ml1,0046.00046.000

Total por:ml 61.263

Sardinel de Ladrillos Laminados

Ladrillo laminado Ita Yby un14,01.26517.710 1ra A, 6x12x25 cm

Cemento tipo 1,kg2,101.1002.310

Cal triturada,kg0,901.2251.103

Arena lavada,m30,0165.000650

Mano de obra,ml1,0046.00046.000

Total por:ml

Ladrillo Convocó

Ladrillo convocó recto un25,02.64466.100 de 1ra, 19x19x10 cm Yoayu

Cemento tipo 1,kg8,001.1008.800

Cal triturada,kg4,001.2254.900

Arena lavada,m30,0565.0003.250

Mano de obra,m21,0033.00033.000

Total por:m2 116.050

Muro de Piedra Bruta de 30 cm (1/2:1:4)

Piedra bruta blanca, m3 0,30 150.000 45.000

Cemento tipo 1,kg12,01.10013.200

Cal triturada,kg14,01.22517.150

Arena lavada,m30,1065.0006.500

Mano de obra,m21,0072.00072.000

Total por:m2 153.850

Pilar de Ladrillo Común 30x30 (1:1:6)

Ladrillo común,un35,070024.500

Cemento tipo 1,kg10,01.10011.000

Cal triturada,kg4,001.2254.900

Arena lavada,m30,0365.0001.950

Mano de obra,ml1,0033.00033.000

Total por:ml 75.350

Pilar de Ladrillo Común 30x30 (1:1:6) - A la vista

Ladrillo comúnun35,070024.500

Cemento tipo 1,kg10,01.10011.000

Cal triturada,kg4,001.2254.900

Arena lavada,m30,0365.0001.950

Mano de obra,ml1,0039.00039.000

Total por:ml 81.350

Muralla de Ladrillo Común (e=0.15m, h=2.00m, con pilares de 0.30 x 0.30 cada 2.00m)

Cimiento PBC con cal,m30,12419.85050.382

Nivelación 0.30 m,m20,40169.70367.881

Aislación horizontal ml1,3018.84424.497 0,15 m con asfalto, Elevación de 0,15 m conm21,40100.838141.174 ladrillo común a la vista

Pilar de ladrillo común ml2,0075.350150.700 0.30x0.30 m a la vista, Total por:ml 434.634

AISLACION

Horizontal 0.30 con asfalto Cemento tipo 1,kg1,801.1001.980 Arena lavada,m30,0365.0001.950 Negrolin,lt1,0012.88812.888 Mano de obra,ml1,0015.00015.000 Total por:ml 31.818

Horizontal 0.15 con asfalto Cemento tipo 1,kg1,001.1001.100 Arena lavada,m30,0265.0001.300 Negrolin,lt0,5012.8886.444 Mano de obra,ml1,0010.00010.000 Total por:ml 18.844

Vertical con Panderete 0.15 m Ladrillo común,un27,070018.900 Cemento tipo 1,kg5,001.1005.500

Arena lavada,m30,3065.00019.500 Negrolin,lt2,0012.88825.776

Betocem hidrófugo,l0,256.0601.515 Mano de obra,m21,0035.50035.500 Total por:m2 106.691

De Losa con Piso de Tejuelita Prensada

Cascotillo cerámico,m30,0799.5006.965 Cemento tipo 1,kg10,01.10011.000 Cal triturada,kg5,001.2256.125 Arena lavada,m30,0765.0004.550 Membrana asfáltica 4 m21,1017.50019.250 mm Casarino, Bitumex,lt0,2512.8883.222

Tejuelita Yoayu de 1ra un 26,0 473 12.298 Mano de obra (piso),1,0010.000 Mano de obra m21,00 69.000 Total por:m2 142.410 SERVICIO DE IMPERMEABILIZACIÓN

67.773
TERRAZAS,
DE OBRA Revista Mandu’a - 43
PISCINAS,TANQUES, BAÑOS COSTEO

COSTEO DE OBRA

De Losa Para Baño

Cemento tipo 1,kg7,001.1007.700

Arena lavada,m30,0265.0001.300

Negrolin,lt1,5012.88819.332

Betocem hidrófugo,l0,256.0601.515

Mano de obra,m21,0030.00030.000

Total por:m2

DINTELES

De Varilla Sobre Abertura

Cemento tipo 1,kg3,001.1003.300

Arena lavada,m30,0565.0003.250

Varilla conformada,kg0,8010.0008.000

Mano de obra,1,00 5.000

Total por:ml 19.550

De Hormigón Prefabricado

Dintel 1m x 14cm,un1,0030.10030.100

Mano de obra,ml1,0015.00015.000

Total por:ml 45.100

CONTRAPISOS

De 7 cm (1/4:1:4:6)

Cemento tipo 1,kg4,001.1004.400

Cal triturada,kg5,001.2256.125

Arena lavada,m30,0365.0001.950

Cascotillo cerámico,m30,0799.5006.965

Mano de obra,m21,0015.00015.000

Total por:m2 34.440

De 10 cm (1/4:1:4:6)

Cemento tipo 1,kg5,001.1005.500

Cal triturada,kg6,001.2257.350

Arena lavada,m30,0465.0002.600

Cascotillo cerámico,m30,0999.5008.955

Mano de obra,m21,0018.00018.000 Total por:m2

De 20 cm en Losa Sanitaria

Cemento tipo 1,kg7,001.1007.700

Cal triturada,kg10,01.22512.250

Arena lavada,m30,0565.0003.250

Cascotillo cerámico,m30,0999.5008.955

Mano de obra,1,001 7.500

Total por:m2 49.655

REVOQUES

De Paredes

A 1 Capa, Espesor 1.5 cm (1:4:16) con hidrófugo

Cemento tipo 1,kg1,501.1001.650

Cal triturada,kg4,001.2254.900

Arena lavada,m30,0265.0001.300

Betocem hidrófugo,l0,256.0601.515

Mano de obra,m21,0022.00022.000

Total por: m2 31.365

A 1 Capa, Espesor 1.5 cm (1:4:16) s/ hidrófugo, m2 29.850

Salpicado (1:3)

Cemento tipo 1,kg3,001.1003.300

Arena lavada,m30,0165.000650

Ceresita hidrófugo,kg0,256.1501.538

Mano de obra,m21,0022.00022.000

Total por:m2 27.488

Azotada Impermeable (1:3), Espesor 0.5 cm

Cemento tipo 1,kg2,701.1002.970

Arena lavada,m30,0165.000650

Ceresita hidrófugo,kg0,306.1501.845

Mano de obra,m21,007.0007.000

Total por:m2 12.465

De Cielorrasos (1:4:12)

Cemento tipo 1,kg1,601.1001.760

Cal triturada,kg5,101.2256.248

Arena lavada,m30,0165.000650

MO azotada adherencia,m21,008.0008.000

MO revoque 1 capa ,m21,0033.00033.000

Total por:m2 49.658

TECHOS

Teja Española sobre Tejuelón c/ Madera de Ybyrapyta

Teja española Yoayuun28,01.80950.652

Tejuelón de 1ra Ita Ybyun10,02.28822.880

Tirante 2x5” pulg/20,03.70074.000

Viga 4x8” de ybyrapyta,pulg/3,805.00019.000

Liston de 1 1/2 x 2”,ml0,225.0001.100

Cemento tipo 1,kg1,301.1001.430

Cal triturada,kg2,601.2253.185

Arena lavada,m30,0365.0001.950

Clavo 2”,kg0,2518.0004.500

Bitumex,lt0,5012.8886.444

MO montaje viga,ml0,2047.0009.400

Mano de obra,m21,0085.00085.000

Total por:m2

Teja Española sobre Tejuelita

Teja de 1ra Yoayu,un28,01.80950.652

Tejuelita Ita Yby de 1ra un30,047314.190

Tirante 2x5” de pulg/20,03.70074.000

Alfajia de ybyrapyta ml4,0010.00040.000

Cemento tipo 1,kg1,301.1001.430

Cal triturada,kg2,601.2253.185

Arena lavada,m30,0365.0001.950

Clavo 2”,kg0,2518.0004.500

Negrolin,lt0,5012.8886.444

Mano de obra,m21,0079.00079.000

Total por:m2 275.351

Teja Francesa, Marsellesa o Romana s/ Machimbre

Teja francesa de 1ra A un16,02.72043.520

Yoayu

59.847
42.405
279.541
Machimbre de m21,0537.00038.850 - Revista Mandu’a 44

ybyrapyta de 1x3”, Tirante 2x5” Ybyrapyta pulg/m24,03.70088.800

Liston de cedro 1x2”,ml2,005.00010.000

Liston de cedro 1x1”,ml2,505.00012.500

Clavo,kg0,2518.0004.500

Negrolin,lt0,5012.8886.444

Alambre negro de atar,kg0,1025.0002.500

Mano de obra,m21,0079.00079.000

Total por:m2 286.114

Teja de Cemento Doble Romana King s/ Machimbre

Teja de cemento King,un10,07.50075.000

Machimbre de m21,0537.00038.850 ybyrapyta 1x3”,

Tirante de ybyrapyta pulg/24,03.70088.800

Liston de cedro 1x1”,ml2,505.00012.500

Liston de cedro 1x2”,ml2,005.00010.000

Negrolin,lt0,5012.8886.444

Mano de obra,m21,0079.00079.000

Total por:m2

Chapa N° 28 sobre Estructura de Caños Metálicos

Caño C 30x50 x1.20 mm, ml1,059.5009.975

Caño 20x30 x1.20 mm,ml1,056.1706.479

Tornillo autorroscable 2”un4,005002.000

Chapa Nº 28, 2.44x0,90 mun0,50109.00054.500

Electrodo,kg0,0532.0001.600

Mano de obra,m21,0026.00026.000

Total por:m2

Chapa N° 28 s/ Estructura de Varillas torsionadas

Varilla torsionada,kg6,0011.00066.000

Chapa Nº 28, 2.44x0,90 mun0,50109.00054.500

Gancho para tinglado,un3,001.0003.000

Electrodo, kg 0,07 32.000 2.240

Pintura antióxido,lt0,0535.2771.764

Mano de obra,m21,0070.00070.000

Total por:m2

Chapa de Fibrocemento Ondulada 6 mm

Chapa,un0,4096.00038.400

Tirante 2x5” de pulg/m5,003.70018.500

Clavo 2” a 7”,kg0,0318.000540

Mano de obra,m21,0026.00026.000

Total por:m2 83.440

Entrepiso de Madera

Tirante de ybyrapyta pulg/m20,03.70074.000

Machimbre ybyrapyta 1x3”m21,1037.00040.700

Clavo,kg0,2518.0004.500

Mano de obra,m21,0030.00030.000

Total por:m2 149.200

PISOS

Baldosa Calcárea

Baldosa base gris 20x20,m21,0540.00042.000

Cemento tipo 1,kg4,001.1004.400

Cal triturada,kg3,001.2253.675

Arena lavada,m30,0365.0001.950

Pastina base gris,kg0,206.0001.200

Mano de obra,m21,0026.00026.000 Total por:m2 79.225

Mosaico Granítico (base gris 30x30cm)

Mosaico granítico,m21,0563.00066.150

Cemento tipo 1,kg8,001.1008.800

Cal triturada,kg7,001.2258.575

Arena lavada,m30,0365.0001.950

Pastina base gris,kg0,756.0004.500

Mano de obra pulido,m21,0026.00026.000

Mano de obra,m21,0026.00026.000

Mosaico Graníto Lavado (para exterior 30x30cm)

Mosaico granito lavado,m21,0558.00060.900

Cemento tipo 1,kg8,001.1008.800 Cal triturada

Cerámica Esmaltada m21,0534.00035.700

Mezcla adhesiva,kg3,501.1984.193

Pastina base blanca,kg0,206.0001.200 Mano de obra,m21,0034.00034.000

por:m2

310.594
100.554
197.504
Total por:m2 141.975 Total por:m2 139.375 Mosaico Granítico (base blanca 30x30cm) m2 149.325
Arena
Pastina
Mano
Total por:m2 105.213
kg 2,50 1.225 3.063
lavada,m30,0365.0001.950
base gris,kg0,756.0004.500
de obra,m21,0026.00026.000
DE
Revista Mandu’a - 45
Total
75.093 COSTEO
OBRA

COSTEO DE OBRA

Ceramica 45x45cm

m21,0540.60042.630

Mezcla adhesiva,kg2,001.1982.396

Pastina base blanca,kg0,206.0001.200

Mano de obra,m21,0034.00034.000

Total por:m2 80.226

Porcelanato 60x60cm

Porcelanato,m21,05105.000110.250

Mezcla adhesiva,kg2,001.1982.396

Pastina base blanca,kg0,206.0001.200

Mano de obra,m21,0034.00034.000

Total por:m2 147.846

Layota 28x28cm

Layota de 1ra A Yoayu,un12,01.66619.992

Cemento tipo 1,kg4,001.1004.400

Cal triturada,kg3,001.2253.675

Arena lavada,m30,0365.0001.950

Mano de obra,m21,0026.00026.000

Total por:m2 56.017

Plancha para Revestido de Escalera

Plancha granítica base grisml5,00420.000 2.100.000

Mano de obra,un17,018.000306.000

Total por:gl 2.406.000

Piedra Losa Rompecabeza

Piedra losa blanca,m21,0535.00036.750

Cemento tipo 1,kg6,001.1006.600

Cal triturada,kg4,001.2254.900

Arena lavada,m30,0365.0001.950

Mano de obra,m21,0039.00039.000

Total por:m2 89.200

Piedra losa Blanca Cuadrada Pulida

Piedra losa blanca m21,0095.00095.000

cuadrada pulida, Cemento tipo 1,kg6,001.1006.600

Cal triturada,kg4,001.2254.900

Arena lavada,,m30,0365.0001.950

Mano de obra,m21,0039.00039.000

Total por:m2 147.450

Alisada de Cemento

Cemento tipo 1,kg10,01.10011.000

Arena lavada,m30,0165.000650

Oxido rojo,kg0,0225.000500

Mano de obra,m21,0024.00024.000

Total por:m2 36.150

Baldosones de Hormigón (40x40x3cm)

Baldosón de hormigón,m21,1037.00040.700

Cemento tipo 1,kg6,001.1006.600

Arena lavada,m30,0365.0001.950

Cal triturada,kg4,001.2254.900

Mano de obra,m21,0026.00026.000

Total por:m2

Carpeta para Piso Cerámico o Alfombra

Cemento tipo 1,kg5,001.1005.500

Arena lavada,m30,0265.0001.300

Betocem hidrófugo,l0,256.0601.515

Mano de obra,m21,0018.00018.000

Total por:m2 26.315

Alfombra (2mm sin carpeta)

Alfombra multipiso,m21,1013.00014.300

Cemento de contacto,lt0,2023.0004.600

Solvente 700 cc,un0,1012.0001.200

Mano de obra,m21,0018.00018.000

Total por:m2 38.100

Empedrado

Piedra bruta blanca,m30,20150.00030.000

Arena lavada,m30,1565.0009.750

Ripio de piedra,tn0,0770.0004.900

Mano de obra,m21,0017.00017.000

Total por:m2 61.650

Hormigón Armado 12 cm

Cemento tipo 1,kg35,01.10038.500

Arena lavada, m3 0,06 65.000 3.900

Piedra triturada de IV,tn0,20120.00024.000

Varilla conformada,kg8,0010.00080.000

Mano de obra,m21,0036.00036.000

Total por:m2 182.400

ZOCALOS

Cemento Alisado

Cemento tipo 1,kg1,001.1001.100

Arena lavada,m30,0165.000650

Mano de obra,ml1,008.0008.000

Total por:ml 9.750

Calcáreo Base Gris

Zócalo 10x25 cm,ml1,0519.00019.950

Cemento tipo 1,kg0,501.100550

Cal triturada,kg0,501.225613

Arena lavada,m30,0165.000650

Mano de obra,ml1,0013.00013.000

Total por:ml 34.763

Madera 3/4 x 3”, Zocalo de cedro,ml1,056.5006.825

Tarugo plástico Nº 8,un2,005.70011.400

Mano de obra,ml1,0013.00013.000

Total por:ml 31.225

Alfombra

Alfombra multipiso 2 m20,1013.0001.300

Mano de obra,ml1,0013.00013.000

Total por:m2 14.300

Cerámica Esmaltada m20,2034.0006.800

Mezcla adhesiva,kg0,301.198359

Mano de obra,ml1,0013.00013.000

Total por:ml 20.159

80.150
- Revista Mandu’a 46

Mosaico Granítico (base blanca pulido 10x30cm)

Zócalo granítico,m21,0530.00031.500

Cemento tipo 1,kg0,501.100550

Cal triturada,kg0,501.225613

Arena lavada,m30,0165.000650

Mano de obra pulido,m20,1026.0002,600

Mano de obra,ml1,0013.00013.000

Total por:ml 48.913

Mosaico Granitico (base gris pulido 10x30cm) ml 44.713

Layota 28x10cm

Zócalo de layota,un3,502.5308.855

Cemento tipo 1,kg0,501.100550

Cal triturada,kg0,501.225613

Arena lavada,m30,0165.000650

Mano de obra,ml1,0013.00013.000 Total por:ml

CIELORRASO

De machimbre c/ armazón de madera, no incluye corniza

Liston de cedro 1x2”,ml10,05.00050.000

Machimbre eucalipto ½ x 3”

Mano de obra,m21,0035.50035.500

Total por:m2 130.700

REVESTIDOS

“No incluye la base previa”

m21,0534.00035.700

Mezcla adhesiva,kg3,501.1984.193

Pastina base blanca,kg0,206.0001.200

Mano de obra,m21,0032.00032.000

Total por:m2 73.093

Porcelanato 60 x 60 cm

Porcelanato 60 x 60 cm,m21,05105.000110.250

Mezcla adhesiva,kg3,501.1984.193

Pastina base blanca,kg0,206.0001.200

Mano de obra,m21,0032.00032.000

Total por:m2 147.643

Piso Pared 31 x 31 cm

Forte Habana 31 x 31 cm,m21,0547.00049.350

Mezcla adhesiva,kg3,501.1984.193

Pastina base blanca,kg0,206.0001.200

Mano de obra,m21,0032.00032.000

Total por:m2 86.743

Ladrillejo

Ladrillejo de 1ra Yoayuun50,076538.250

Cemento tipo 1,kg5,001.1005.500

Arena lavada,m30,0265.0001.300

Mano de obra,1,00 15.000

Total por:m2 60.050

Piedra Laja Fina (1 a 2 cm de espesor) m21,0550.00052.500

Cemento tipo 1,kg3,001.1003.300

Cal triturada,kg2,501.2253.063

Arena lavada,m30,0265.0001.300

Boca Desagüe Abierta 20x20x20cm

Ladrillo común,un50,070035.000

Cemento tipo 1,kg5,001.1005.500

Arena lavada,m30,0465.0002.600

Cal triturada,kg5,001.2256.125

Rejilla de hierro 20x20cm un 1,00

Boca Desagüe Abierta 30x30x30cm

Ladrillo común,un65,070045.500

Cemento tipo 1,kg7,001.1007.700

Arena lavada,m30,0565.0003.250

Cal triturada,kg7,001.2258.575

Rejilla de hierro 30x30cmun1,0075.00075.000

de obra,un1,0079.30079.300

Boca Desagüe Abierta 40x40x40cm

Ladrillo común,un160700112.000

Cemento tipo 1,kg13,51.10014.850

Cal triturada,kg13,51.22516.538

Arena lavada,m30,0865.0005.200

Rejilla de hierro 40x40cm un1,00100.000100.000 Mano de obra,1,0060.000

Total por:un 308.588

Registro 30x30x30cm

Ladrillo común,un65,070045.500

Cemento tipo 1,kg7,001.1007.700

Arena lavada,m30,0565.0003.250

Cal triturada,kg7,001.2258.575

Tapa Hº 30x30x3 cm,un1,0035.00035.000

Mano de obra,un1,00113.000113.000

Total por:un 213.025

Registro 40x40x40cm

Ladrillo común,un160,700112.000

Cemento tipo 1,kg13,51.10014.850

Cal triturada,kg13,51.22516.538

Arena lavada,m30,0865.0005.200

Tapa Hº 40x40x3 cm.un1,0040.00040.000

Mano de obra,1,00120.000

Total por:un

Registro 60x60x50cm

308.588

Ladrillo común,un195,700136.500

Cemento tipo 1,kg14,01.10015.400

23.668
m2 1,10 37.000 40.700 Clavo kg 0,25 18.000 4.500
Mano de obra,m21,0045.00045.000 Total por:m2 105.163 DESAGÜE CLOACAL Y PLUVIAL
37.000 37.000 Mano
obra,un1,0079.30079.300 Total por:un 165.525
de
Mano
Total
por:un 219.325
Revista Mandu’a - 47
COSTEO DE OBRA

COSTEO DE OBRA

Cal triturada,kg14,01.22517.150

Arena lavada,m30,1065.0006.500

Tapa Hº 60x60x4 cm,un1,0085.00085.000

Mano de obra,un1,00156.600156.600

Total por:un 417.150

Caño PVC 40mm

Caño desagüe PVC,ml1,007.4507.450

Mano de obra,ml1,0014.00014.000

Total por:ml 21.450

Caño PVC 50mm

Caño desagüe PVC,ml1,0011.25011.250

Mano de obra,ml1,0014.00014.000

Total por:ml 25.250

Caño PVC 100mm

Caño desagüe PVC,ml1,0026.00026.000

Mano de obra,ml1,0023.00023.000

Total por:ml 49.000

Caño de Hormigón 50cm, Roto Comprimido

Caño de 50 cm,un1,00148.800148.800

Mano de obra,ml1,0034.00034.000

Total por:ml 182.800

Caño de Hormigón 60cm, Roto Comprimido

Caño de 60 cm,un1,00267.750267.750

Mano de obra,ml1,0045.00045.000

Total por:ml 312.750

Caño de 80cm Hº Aº Vibrado Simple - Macho/Hembra

Caño de 80 cm,un1,00399.500399.500

Mano de obra,ml1,0070.00070.000

Total por:ml 469.50

Pozo Ciego (Diámetro=1.50 m y h=3.00 m)

Ladrillo común,un1.100700770.000

Cemento tipo 1,kg1501.100165.000

Arena lavada,m30,5065.00032.500

Mano de obra,un1,00 1.650.0001.650.000

Total por:un 2.617.500

Cámara Séptica (1x1.60x1.20m)

Ladrillo común,un420700294.000

Cemento tipo 1,kg1001.100110.000

Cal triturada,kg501.22561.250

Arena lavada,m31,5065.00097.500

Varilla conformada,kg2,5010.00025.000

Mano de obra,un1,00990.500990.500

Total por:un 1.578.250

Rejilla de Piso Sifonada

Caja sifonada cuadradaun1,0072.00072.000 nº 25, 150x150x50mm

Mano de obra,un1,0069.00069.000

Total por:un 141.000

Desagüe Cloacal p/ Baño Completo (hasta el primer registro)

Caño 100 mm Titan,ml2,0014.00028.000

Caño de PVC 50 mm,ml2,0011.25022.500

Caño PVC 40 mm,ml4,007.45029.800

Codo 90º p/ desagüe 100mm un1,0011.15011.150

Codo 90º p/ desagüe , buje largo 40mm,un2,001.5503.100

Codo 45º p/ desagüe un2,001.6003.200 secundario 40mm, Caja sifonada

150x150x50mm,un2,0072.000144.000 c/ rejilla aluminio

Adhesivo 75 gr,un2,009.20018.400 Limpiador 200 cc,un1,0027.00027.000

Mano de obra,un1,00317.000317.000

Total por:un 604.150

Desagüe Cloacal p/ Baño de Servicio (hasta el primer registro)

Caño 100 mm,ml2,0014.00028.000

Caño PVC 50 mm,ml1,0011.25011.250

Caño PVC 40 mm,ml3,007.45022.350

Codo 90º p/ desagüe un1,0011.15011.150 primario 100mm, Codo 45º p/ desagüe un1,009.4509.450 primario 100mm,

Codo 45º p/ desagüe un1,004.0004.000 primario 50mm,

Codo 90º p/ desagüe un1,001.5501.550 secundario, buje largo 40mm

Codo 45º p/ desagüe un2,001.6003.200 secundario 40mm,

Ramal de reducción 45ºun1,0016.50016.500 simple p/ desagüe primario 100x50mm, Caja sifonada cuadrada un 1,00 72.000 72.000 nº 25, 150x150x50mm, Prolongador un1,007.9507.950 150x150mm p/ caja

Anillo de sellado p/ un3,005.00015.000 desagüe 100 mm, Anillo de sellado p/ desague 50mmun2,002.9005.800

Adhesivo 75 gr,un1,009.2009.200

Limpiador 200 cc,un1,0027.00027.000

Mano de obra,un1,00222.000222.000

Total por:un 466.400

Desagüe Cloacal Para Baño Social

(hasta el primer registro)

Caño 100 mm,ml2,0014.00028.000

Caño PVC 50 mm,ml1,0011.25011.250

Caño PVC 40 mm,ml2,007.45014.900

Codo 90º p/ desagüe un1,0011.15011.150 primario 100mm,

- Revista Mandu’a 48

Codo 45º p/ desagüe un1,009.4509.450 primario 100mm,

Codo 45º p/ desagüe un1,004.0004.000 primario 50mm,

Codo 90º p/ desagüe un1,001.5501.550 secundario, buje largo 40mm

Codo 45º p/ desagüe un2,001.6003.200 secundario 40mm,

Ramal de reducción 45ºun1,0016.50016.500 simple p/ desagüe primario 100x50mm, Caja sifonada cuadradaun1,0072.00072.000 nº 25, 150x150x50mm,

Anillo de sellado p/ un2,002.9005.800 desagüe 50 mm,

Anillo de sellado p/ un3,005.00015.000 desagüe 100 mm,

Adhesivo 75 gr,un1,009.2009.200

Limpiador 200 cc,un1,0027.00027.000

Mano de obra,un1,00159.000159.000

Total por:un 388.000

Desagüe para Pileta de Lavar y Lavarropas

Caño PVC 50 mm,ml2,0011.25022.500

Caño PVC 40 mm,ml3,007.45022.350

Codo 90º p/ desagüe un2,001.5503.100 secundario, buje largo 40mm

Codo 45º p/ desagüe un2,001.6003.200 secundario 40mm,

Caja sifonada cuadradaun1,0072.00072.000 nº 25, 150x150x50mm,

Adhesivo 75 gr,un0,509.2004.600

Limpiador 200 cc,un0,5027.00013.500

Mano de obra,un1,00159.000159.000

Total por:un 300.250

Desagüe para Pileta de Cocina

Caño PVC 50 mm,ml3,0011.25033.750

Codo 90º p/ desagüe un2,004.5009.000 primario 50mm,

Ramal de reducción 45ºun1,0016.50016.500 simple p/ desagüe primario 100x50mm,

Desengrasador redondo un1,0067.00067.000 nº 70, 250x172x50, Adhesivo 75 gr,un0,509.2004.600

Limpiador 200 cc,un0,5027.00013.500

Mano de obra,un1,00126.000126.000

Total por:un

AGUA CORRIENTE

Caño PVC de 1”

Caño PVC roscable,ml1,0027.85027.850

Mano de obra,ml1,0016.00016.000

Total por:ml

Caño PVC de 3/4”

Caño PVC roscable ml 1,00 12.850 12.850

Mano de obra,ml1,0013.00013.000

Total por:ml 25.850

Caño PVC de 1/2”

Caño PVC roscable,ml1,009.8509.850

Mano de obra,ml1,008.0008.000

Total por:ml 17.850

Instalación Agua Fría en Baño Completo

Caño 1/2” roscable,ml9,009.85088.650

Codo 90º roscable, 1/2”,un6,001.6609.960

Llave de paso de 1/2” un2,0087.700175.400

cromada FV Linea Clásica

Tapon roscable macho ½”un4,006902.760

Tee 3/4”x1/2” IPS,un4,003.40013.600

Adhesivo 75 gr,un0,609.2005.520 un2,009.60019.200

Mano de obra,un1,00412.000412.000 Total por:un 727.090

Instalación Agua Caliente y Fría en Baño

Completo

Caño de 1/2” p/ agua calienteml9,0010.35093.150

Caño 1/2” roscable,ml9,009.85088.650

Codo de 1/2” galvanizadoun24,07.700184.800

Curva transposición ½ x1/2un4,0018.00072.000

Tee de 1/2” galvanizadoun8,006.15049.200

Unión reducción 1/2x3/8 galv,un2,00 10.700 21.400

Alma doble 1/2” galv,un10,07.70077.000

Buje de 3/4x1/2” galv,un2,008.10016.200

Llave de paso de 1/2” un2,0087.700175.400 FV Linea Clásica, Tapón roscable macho ½”un9,006906.210

Sella rosca 90 cc IPS,un1,0045.90045.900 un5,009.60048.000

Mano de obra,un1,00697.000697.000

Total por:un 1.574.910

Instalacion Agua Caliente y Fría en Baño Completocon FV Allegro un 1.657.510

Instalación Agua Fría en Baño de Servicio

Caño 1/2” roscable,ml6,009.85059.100

Codo 90º roscable, 1/2”,un6,001.6609.960

Codo reducción 90º un1,003.3503.350 roscable, 3/4x1/2, Alma doble roscable un3,008752.625

Tee 90º p/ desagüe 40mm, un3,004.00012.000

Union sencilla roscable 1/2”un2,001.7003.400

Tubo bajada de un1,0013.50013.500 embutir p/ cisterna nº 4,

270.350
43.850
COSTEO DE OBRA Revista Mandu’a - 49

COSTEO DE OBRA

Tapón roscable macho ½” un 4,00 690 2.760

Llave de paso 1/2” un2,0058.000116.000 bronce sin campana,

Adhesivo 75gr,un0,409.2003.680

un1,009.6009.600

Mano de obra,un1,00286.000286.000

Total por:un 521.975

Instalación Agua Fría en Baño Social

Caño 1/2” roscable,ml4,009.85039.400

Codo 90º roscable, 1/2”,un6,001.6609.960

Alma doble roscable un4,008753.500

Tee 90º p/ desagüe un2,004.0008.000 secundario, 40mm,

Tapón roscable macho ½”un2,006901.380

Llave de paso 1/2” FV un1,0087.70087.700

Linea Clásica,

Adhesivo 75gr,un0,209.2001.840 un1,009.6009.600

Mano de obra,un1,00159.000159.000

Total por:un 320.380

Instalación Agua Fría en Baño Social - FV Allegro

Instalación Agua Fría p/ Pileta de Lavar y Lavarropas

Caño 1/2” roscable,ml3,009.85029.550

Codo 90º roscable, 1/2”,un3,001.6604.980

Tee 90º p/ desagüe un1,004.0004.000 secundario, 40mm,

Tapon roscable macho ½”un2,006901.380

Llave de paso de 3/4” un1,0084.00084.000 bronce sin campana,

Adhesivo 75gr,un0,209.2001.840 un1,009.6009.600

Mano de obra,un1,00191.000191.000

Total por:un

326.350

Instalación Agua Fría para Pileta de Cocina

Caño 1/2” roscable,ml2,009.85019.700

Codo 90º roscable, 1/2”,un3,001.6604.980

Tapón roscable macho ½”un1,00690690

Llave de paso 1/2” un1,0058.00058.000 bronce sin campana,

Adhesivo 75gr,un0,209.2001.840 un1,009.6009.600

Mano de obra,un1,00126.000126.000

Total por:un 220.810

Instalación Agua Caliente y Fría p/ Pileta de Cocina

Caño de 1/2” p/ agua calienteml6,0010.35062.100

Caño roscable 1/2”,ml6,009.85059.100

Codo de 1/2” galv,un6,007.70046.200

Tee 1/2” galv,un2,006.15012.300

Unión doble 1/2” galv,un2,0019.70039.400

Alma doble 1/2” galv,un4,007.70030.800

Llave de paso 1/2” FV cromoun2,0066.500133.000

Prolongador FV 1/2”x1 un1,0038.00038.000 cromo sin campana, Sellador p/ caño 125cc un0,4045.90018.360 un 2,00 9.600 19.200

Mano de obra,un1,00254.000254.000 Total por:un 712.460

COLOCACION DE ARTEFACTOS SANITARIOS

Baño Completo - Frío y Caliente - No incluye bañera

Juego con cisterna bajajuego 1,002.211.2502.211.250

Deca Ravena Crema, Griferia FV Linea Clásicajuego1,002.086.0002.086.000 (Ducha, bidet y lavatorio)

Termocalefón 80 lt,un1,001.650.0001.650.000

Soporte para calefón,par2,004.0408.080

Botiquin 44x58x11cm un1,00560.000560.000

Conexión cromada ½”x30un7,0037.000259.000

Prolongador 1/2x1 FV,un7,0038.000266.000

Roseta FV cromada,un7,006.40044.800

Enchufe de PVC un1,002.6632.663

Tornillo de bronce p/ un8,005.70045.600

Cemento blanco,kg1,005.5005.500

Masilla común,kg0,2513.0003.250

Mano de obra,un1,00462.000462.000

Total por:un 7.604.143

Baño Completo con Bañera Común

Instalación de baño un1,007.604.1437.604.143 completo sin bañera,

Bañera 1,60x0,70 m,un1,00968.000968.000

Mano de obra,un1,00314.000314.000

Total por:un 8.886.143

Baño Completo con Bañera Hidromasaje

Instalación de baño un1,007.604.1437.604.143 completo sin bañera,

Bañera hidro 1.70x0.70 mun1,007.746.0007.746.000

Mano de obra,un1,00524.000524.000

Total por:un 15.874.143

Baño Completo - Frío solo Juego p/ baño completojuego1,001.306.0001.306.000 c/ cisterna alta Deca Ravena

Tubo bajada de un1,0013.50013.500 embutir p/ cisterna nº 4, Botiquin 44x58x11cm un1,00560.000560.000, Ducha eléctrica Corona,un1,00127.500127.500

Brazo cromo p/ ducha 1/2x35 cm un1,0012.50012.500

Total por:un 361.680
- Revista Mandu’a 50

Sopapa cromo FV p/ lavatorio, un 2,00 66.700 133.400

Bajada p/ lavatorio,un2,0017.30034.600

Griferia FV p/ bidet agua fria un1,00370.000370.000

Canilla p/ lavatorio FV econo un1,0045.00045.000

Canilla 1/2” cromo p/un1,0030.00030.000 bajo ducha FV, Conexión cromada 1/2x3 cm, un 3,00 37.000 111.000

Enchufe de PVC un1,002.6632.663

Tornillo de bronce p/ un8,005.70045.600

Cemento blanco,kg2,005.50011.000

Mano de obra,un1,00462.000462.000

Total por:un 3.264.763

Baño de Servicio

Juego para baño con juego1,00490.000490.000 cisterna alta,

Tubo de bajada de un1,0013.50013.500 embutir p/ cisterna nº 4, Botiquín Astra,un1,00220.000220.000

Ducha eléctrica Corona,un1,00127.500127.500

Brazo cromado p/ ducha un1,0012.50012.500

Sopapa FV cromada p/ un1,0066.70066.700 lavatorio

Bajada p/ lavatorio,un1,0017.30017.300

Canilla p/ lavatorio FV un1,0045.00045.000

Canilla de 1/2” cromo un1,0030.00030.000 para bajo ducha FV,

Conexión cromo ½ x 30 cmun2,0037.00074.000

Enchufe de PVC un1,002.6632.663

Tornilo de bronce p/ un6,005.70034.200

Cemento blanco,kg1,005.5005.500

Mano de obra,un1,00234.000234.000

Total por:un 1.372.863

Baño Social - Standard

Juego para baño social juego1,001.113.8001.113.800 con cisterna alta Deca Ravena,

Canilla para lavatorio un1,00270.000270.000 Imperatriz,

Enchufe de PVC un1,002.6632.663

Conexión cromo 1/2x30 cm un2,0037.00074.000

Prolongador FV cromo ½ x1un2,0038.00076.000

Sopapa cromada FV un1,0066.70066.700 para lavatorio, Roseta FV cromada,un2,006.40012.800

Tornilo de bronce p/ un6,005.70034.200

Cemento blanco,kg0,505.5002.750

Masilla común,kg0,2513.0003.250

Mano de obra,un1,00234.000234.000

Total por:un 1.890.163

Baño Social - Superior Total por: un 2.530.183

Pileta de Cocina - Acero Inoxidable - Frío Solo Pileta 1 bacha,un1,00276.000276.000

Canilla FV pico móvil frío solo un1,00200.000200.000

Mano de obra,un1,00122.000122.000

Total por:un 598.000

Pileta de Cocina - Acero Inoxidable - Frío y Caliente

Pileta 2 bachas,un1,00485.000485.000

Griferia externa FV,un1,00850.000850.000

Mano de obra,un1,00122.000122.000

Total por:un 1.457.000

Pileta de Lavar y Lavarropas

Pileta granítica 1 bachaun1,0095.00095.000 1,20x0,60 m,

Canilla 1/2” bronce FV,un2,0049.00098.000

Sopapa p7 pileta granitoun1,0015.00015.000

Mano de obra,un1,00122.000122.000

Total por:un 330.000

Mesada de Granito para Cocina

Granito natural m22,28550.0001.254.000

Moldura pecho paloma,ml3,2050.000160.000

Zócalo de granito,m20,50550.000275.000

MO agujereado de piletaun1,0060.00060.000

MO colocación mesadaun3,8050.000190.000

MO colocación zócalo,ml5,0040.000200.000

Total por:un 2.139.000

Mesada de Mármol para Baño Social (0.70x0.60m)

Mármol blanco,m20,42680.000285.600

Moldura pecho paloma,ml1,9050.00095.000

Juego de soportes,juego1,0040.00040.000

Zócalo de mármol,m20,07620.00043.400

MO agujereado de piletaun1,0060.00060.000

MO colocación mesada un1,0050.00050.000

MO colocación zocaloml0,7040.00028.000

Total por:un 602.000

Mesada de Mármol para Baño Completo (1.00x0.60m)

Mármol blanco,m20,60680.000408.000

Moldura pecho paloma,ml2,2050.000110.000

Juego de soportes,juego1,0040.00040.000

Zócalo de mármol,m20,10620.00062.000

MO agujereado piletaun1,0060.00060.000

MO colocación mesadaun1,0050.00050.000

MO colocación zocaloml1,0040.00040.000

Total por:un

DE OBRA Revista Mandu’a - 51
770.000 COSTEO

COSTEO DE OBRA

INSTALACION ELECTRICA

Pilar de Mampostería 0.45x0.45x1.70m

No incluye cimiento y nivelación

Ladrillo común,un170,700119.000

Cemento tipo 1,kg30,01.10033.000

Cal triturada,kg60,01.22573.500

Arena lavada,m30,2565.00016.250

Revoque fratazado,m23,0622.00067.320

Mano de obra,un1,00480.000480.000

Total por:un 789.070

Registro eléctrico 30x30x70cm

Ladrillo común,un50,070035.000

Cemento tipo 1,kg6,001.1006.600

Cal triturada,kg12,01.22514.700

Arena lavada,m30,0565.0003.250

Tapa registro de metal,un1,0056.00056.000

Mano de obra,un1,00105.000105.000

Total por:un 220.550

Registro eléctrico 40x40x70cm

Ladrillo común,un67,070046.900

Cemento tipo 1,kg13,01.10014.300

Cal triturada,kg26,01.22531.850

Arena lavada,m30,0765.0004.550

Tapa registro de metal,un1,0072.80072.800

Mano de obra,un1,00131.000131.000

Total por:un 301.400

Puesto de Medición Provisorio

Monofásico con limitadora hasta 40 A

Nicho monofásico,un1,009.2409.240

Poste de caranday 6 m,un1,00120.000120.000

Curva galvanizada 1”,un4,0024.97099.880

Caño acero 3/4”x3m ml2,008.50017.000

Aislador roldana BT 72 x 72un4,002.90011.600

Bulón 3/8x4”,un4,009003.600

Pipeta de 1”,un2,001.2002.400

Jabalina de cobre 5/8 x 2mun1,0027.00027.000

Abrazadera p/ jabalina un1,003.0003.000

Caja precintable,un1,0014.50014.500

Disyuntor TM 1x10A un1,0016.50016.500

Cable de 4 mm,ml40,05.964238.560

Mano de obra,boca1,00636.000636.000

Total por:un 1.199.280

Trifásico con limitadora hasta 45 A

Nicho trifasicoun1,0010.01010.010

Poste de caranday 6 mtun1,00120.000120.000

Curva galvanizada 1 un4,0024.97099.880

Caño acero 1” x 3m ml2,0015.00030.000

Aislador roldana BT 72x72 un8,002.90023.200

Bulón 3/8x4”,un8,009007.200

Pipeta de 1”un2,001.2002.400

Jabalina cobre 5/8 x 2mun1,0027.00027.000

Abrazadera p/ jabalinaun1,003.0003.000

Caja precintable,un1,0014.50014.500

Disyuntor TM 3x30A un1,00110.000110.000

Cable de 4 mm,ml80,05.964477.120

Mano de obra,boca1,00742.000742.000

Total por:un 1.666.310

(Con línea subterránea o embutido en mampostería)

Monofásico c/ acometida 3m y limitadora hasta 40 A

Caño galvanizado un1,00500.000500.000

Curva galvanizada 1 un2,0024.97049.940

Cruceta monofasica 2”,un1,005.5005.500

Unión reducción galv. 2” a 1”, un1,009.5009.500

Aislador roldana BT 72x72un2,002.9005.800

Bulón 3/8x4”,un2,009001.800

Puerta ANDE un1,0010.00010.000

Fondo de madera monofasico un1,004.0004.000

Jabalina de cobre 5/8”x2mun1,0027.00027.000

Abrazadera p/ jabalina un1,003.0003.000

Caja precintable,un1,008.8508.850

Cable de 4 mm, ml 25,0 5.964 149.100

Disyuntor TM 1x10A un1,0016.50016.500

Mano de obra,un1,00742.000742.000

Total por:un 1.532.990

Monofásico c/ acometida 3m y limitadora hasta 40 A (Llaves europeas) un 1.548.060

Trifásico c/ acometida de 3m y limitadora hasta 45 A

Caño galv. 2 1/2”x6m,un1,00565.000565.000

Curva galvanizada 1 un2,0024.97049.940

Cruceta trifasica 2 1/2”,un1,0012.00012.000

Unión reducción galv.un1,0011.50011.500

2 1/2” a 1 1/4”,

Aislador roldana BT 72x72un4,002.90011.600

Bulón 3/8x4”,un4,009003.600

Puerta ANDE trifasica,un1,0012.00012.000

Fondo de madera trifasicoun1,004.0004.000

Jabalina de cobre 5/8” x 2un1,0027.00027.000

Abrazadera p/ jabalina un1,003.0003.000

Caja precintable un1,0014.50014.500

Cable de 6 mm,ml45,08.778395.010

Interruptor TM 3x20A un1,00151.250151.250

Mano de obra,un1,00954.000954.000

Total por:un 2.214.400

- Revista Mandu’a 52

Línea Subterránea

Monofásica con cable de 4 a 10mm

Caño negro plástico ml1,00750750

Cable de 4 mm,ml2,005.96411.928

Ladrillo común,un5,007003.500

Cemento tipo 1,kg0,501.100550

Mano de obra,un1,007.0007.000

Total por:ml 23.728

Trifásica con cable de 4 a 10mm

Caño negro plástico 1”,ml1,001.0001.000

Cable de 6 mm,ml4,008.77835.112

Ladrillo común,un5,007003.500

Cemento tipo 1,kg0,501.100550

Mano de obra,un1,0013.00013.000

Total por:ml 53.162

Línea Monofásica Embutida en Mampostería con Cable de 4 a 10 mm

Caño corrugado 5/8”,ml1,00350350

Cable de 4 mm,ml2,005.96411.928

Mano de obra,un1,007.0007.000

Total por:ml 19.278

Tablero Principal con 6 llaves TM

Caja p/ tablero principalun1,0080.00080.000

12 TM Steck,

Disyuntor TM 1x10A un5,0016.50082.500

Disyuntor TM 1x50A un1,0024.20024.200

MO colocación caja un1,00159.000159.000 embutida,

MO colocación llaves,6,00204.000

Total por:un 549.700

Tablero principal con 6 llaves TM (llaves europeas)

Total por:un 643.200

Bocas de Lámparas y Tomas de Corriente

(Incluye colocación de electroducto y cableado hasta 5m del tablero principal)

Una Lámpara con su Interruptor

Caja de llave plastica,un1,003.3003.300

Caja metálica conexiónun1,001.4001.400

Caño corrugado 3/4”,ml5,004002.000

Cable de 2 mm,ml11,03.12934.419

Llave unipolar + tapa,un1,007.7007.700

Cinta aisladora PVC 20mun0,015.00050

Mano de obra,un1,0053.00053.000

Total por:un 101.869

Un Tomacorriente un 101.869

Una Lámpara con 2 Llaves de Combinación

Caja de llave plástica,un2,003.3006.600

Caja metálica conexiónun1,001.4001.400

COSTEO DE OBRA

Caño corrugado 5/8”,ml5,003501.750

Cable de 1 mm,ml20,01.69833.960

Llave combinación + un2,0012.87025.740

Cinta aisladora PVC 20mun0,015.00050

Mano de obra,un1,00106.000106.000

Total por:un 175.500

Circuitos Independientes

(Hasta 5m del tablero principal en cañerías ya instaladas para otros circuitos)

Circuito para Calefón/AA/Ducha Eléctrica

Caja p7 llave TM unipolar un1,008.8508.850

Llave para calefón 25 un 1,00 27.720 27.720

Jabalina de cobre 5/8”x2mun1,0027.00027.000

Abrazadera p/ jabalinaun1,003.0003.000

Cable de 4 mm,ml13,05.96477.532

Cinta aisladora PVC 20mun0,015.00050

Mano de obra,un1,00212.000212.000

Total por:un 356.152

Línea Embutida para AA sin cableado

Caja para llave TM unipolarun1,008.8508.850

Tapa ciega cuadrada,un1,001.5001.500

Caño corrugado 3/4”,ml2,00400800 Mano de obra,2,00 4.734

Circuitos de Comunicación

(Incluye colocación de electroducto y cableado hasta 5m del tablero)

Línea de teléfono con su toma

Total por:un 153.873

Línea de Timbre con su pulsador

Caja de llave plástica,un1,003.3003.300

Caja metálica conexiónun1,001.4001.400

Caño corrugado 5/8”,ml10,03503.500

Cable de 1 mm,ml32,01.69854.336

Llave timbre + tapa,un1,0020.57020.570

Cinta aisladora PVC 20mun0,015.00050

Timbre chicharra un1,0019.00019.000

externa 220V, Mano de obra,un1,00106.000106.000

Total por:un 208.156

Toma para Antena de TV o Audio

Caño corrugado 5/8”,ml5,003501.750

Cable p/ TV 2x0,35 mmml6,004.39726.382

Caja de llave plastica,un1,003.3003.300

Toma TV cable + tapa,un1,0027.72027.720

Mano de obra,un1,00106.000106.000

Total por:un 165.152

Total
por:un 15.884
Revista Mandu’a - 53

COSTEO DE OBRA

CARPINTERIA DE MADERA

Marco Recto (de 0.15cm p/ puerta de 2.10m de alto)

De Ybyrapyta de 0.70 m de ancho

Marco de ybyrapyta,ml5,1055.000280.500

Tirafondo galv. 3/8x5”,un5,001.5007.500

Cemento tipo 1,kg1,001.1001.100

Arena lavada,m30,0165.000650

Mano de obra,un1,00111.000111.000

Total por:un 400.750

De Ybyrapyta de 0.80 m de ancho un 407.750

De Ybyrapyta de 1.50 m de ancho un 450.120

Marco Recto (de 0.15cm p/ ventana de 1.20m de alto)

De Ybyrapyta de 1.50 m de ancho

Marco de ybyrapyta,ml5,8055.000319.000

Tirafondo galv. 3/8x5”,un8,001.50012.000

Cemento tipo 1,kg1,001.1001.100

Arena lavada,m30,0165.000650

Mano de obra,un1,00111.000111.000

Total por:un

De Ybyrapyta de 2.00 m de ancho un

Puerta de 2.10 m de alto

Placa de eucalipto (0.80x2.10m)

Puerta placa,un1,00180.000180.000

Ficha 5 agujeros,par1,5010.00015.000

Tornillo 1x7,un30,01504.500

Cerradura externa c/ manija un1,00120.000 120.000

Mano de obra,c/hoja1,0092.00092.000

Total por:un 411.500

Placa c/ cerradura para baño (0.80 x 2.10m)

Puerta placa de eucaliptoun1,00180.000180.000

Ficha 5 agujeros,par1,5010.00015.000

Tornillo 1x7,un30,01504.500

Cerradura p/ baño c/manija un1,0045.00045.000

Mano de obra,c/hoja1,0092.00092.000

Total por:un 336.500

Tablero (0.80x2.10m)

Puerta tablero común,un1,00950.000950.000

Ficha 5 agujeros,par1,5010.00015.000

Tornillo 1x7,un30,01504.500

Cerradura externa c/ manijaun1,00120.000120.000

Mano de obra,c/hoja1,0096.00096.000

Total por:un 1.185.500

Tablero - Punta Diamante (0.80x2.10m)

Puerta de cedro c/ molduras un1,001.550.0001.550.000

Ficha 5 agujeros,par1,5010.00015.000

Tornillo 1x7,un30,01504.500

Cerradura p/ puerta de entrada un1,00190.000190.000

Mano de obra,c/hoja1,0096.00096.000

Total por:un

Vidriera Sencilla (1.50x2.10m - 3 hojas de abrir)

Puerta vidriera,m23,15300.000945.000

Ficha 5 agujeros,par3,0010.00030.000

Tornillo 1x7,un60,01509.000

Falleba de arrimar un1,0025.50025.500

Pasador 150 mm un2,0018.00036.000

Varilla p/ falleba 1.20 un2,0024.50049.000

Mano de obra,c/hoja3,0046.000138.000

Total por:un 1.232.500

Persiana (1.50x2.10m - 3 hojas de abrir)

Puerta (varilla 45 cm)m23,15450.0001.417.500

Ficha 5 agujerospar3,0010.00030.000

Tornillo 1x7,un60,01509.000

Falleba de arrimar un1,0025.50025.500

Pasador 150 mm un2,0018.00036.000

Varilla p/ falleba 1.20 un2,0024.50049.000

Mano de obra,c/hoja3,0046.000138.000

Total por:un 1.705.000

Ventana de 1.20 m de alto

Vidriera (1.50x1.20m - 3 hojas de abrir)

Ventana vidriera m21,80220.000396.000

Ficha 5 agujeros,par2,0010.00020.000

Ficha 3 agujeros, un 1,00 9.000 9.000

Tornillo 1x7,un52,01507.800

Falleba de arrimar un1,0025.50025.500

Pasador 150 mm un2,0018.00036.000

Varilla p/ falleba 1.20 un1,0024.50024.500

Mano de obra,c/hoja3,0036.000108.000

Total por:un 626.800

Vidriera (2.00x1.20m - 4 hojas de abrir)

Total por:un 841.600

Vidriera (1.00x0.80m)

Total por:un 324.000

Persiana (1.50x1.20m - 3 hojas de abrir) m21,80450.000810.000

Ficha 5 agujeros,par2,0010.00020.000

Ficha 3 agujeros,un1,009.0009.000

Tornillo 1x7,un52,01507.800

Falleba de arrimar un1,0025.50025.500

Pasador de 150 mm cromoun2,0018.00036.000

Varilla p/ falleba 1.20 un1,0024.50024.500

Mano de obra,c/hoja3,0036.000108.000

Total por:un 1.040.800

Persiana (2.00x1.20m - 4 hojas de abrir)

Total por:un 1.393.600

Colocación de Contramarco

Contramarco cedro 45 mmml1,006.0006.000

Clavo 1/2” o 3/4”,kg0,1025.0002.500

Mano de obra,ml1,0010.00010.000

Total por:ml 18.500

443.750
499.620
1.855.500
- Revista Mandu’a 54

CARPINTERIA METALICA

Balancín hasta 1 m2

Balancín fabricado con m21,00180.000180.000

ángulo de 5/8 y T 3/4x1/8”,

Cemento tipo 1,kg1,001.1001.100

Arena lavada,m30,0165.000650

Mano de obra,un1,0077.00077.000

Total por:un

Balancín más de 2 m2 , m2

Balancín de 0.60x0.60 m un

Balancín de 0.60x1.10 m un

Balancín de 1.00x0.80 m un

Puerta Metálica Tipo Reja (0.80x2.10 m)

Puerta, marco y herrajes,un1,00530.000530.000

Cemento tipo 1,kg1,501.1001.650

Arena lavada,m30,0265.0001.300

Mano de obra,un1,0066.00066.000

Total por:un 598.950

Cortina Metálica (2.40x2.60 m)

Total por:un 4.346.000

Reja de Hierro Artística Sencilla (1.50x1,20 m)

Reja artística sencilla,m21,80250.000450.000

Cemento tipo 1,kg3,001.1003.300

Arena lavada,m30,0165.000650

Mano de obra,un1,0044.00044.000

Total por:un 497.950

Baranda Metálica de Escalera ml 299.750

Portón Metálico (1.00x1.50 m)

Portón de rejas,m21,50280.000420.000

Cemento tipo 1,kg2,001.1002.200

Arena lavada,m30,0365.0001.950

Mano de obra,un1,00106.000106.000

Total por:un 530.150

Portón Cochera (3.00x2.00 m)

Portón con cerradura,m26,00270.0001.620.000

Cemento tipo 1,kg5,001.1005.500

Arena lavada,m30,0365.0001.950

Mano de obra,c/ hoja2,00200.000400.000

Total por:un 2.027.450

Portón Cochera (4.40x4.00 m)

Portón con cerradura,m217,6270.0004.752.000

Cemento tipo 1,kg10,01.10011.000

Arena lavada,m30,0565.0003.250

Mano de obra,c/ hoja2,00200.000400.000

Total por:un 5.166.250

Escalera Metálica Recta

Escalera metálica,un4,00330.0001.320.000

Cemento tipo 1,kg5,001.1005.500

Arena lavada, m3 0,05 65.000 3.250 Mano de obra,un1,00175.000175.000

Total por:un 1.503.750

PINTURAS

Pintura de Pared a la Cal

Cal triturada,kg0,501.225613

Coloranteun0,0511.500575

Fijador Inatix,lt0,604.8002.880

Lijas,un0,25750188

Mano de obra,m21,009.0009.000 Total por:m2 13.255

Pintura de Cielorraso a la Cal

Cal triturada,kg0,501.225613

Colorante 100 cc,un0,0511.500575

Fijador Inatix,lt0,604.8002.880 Lijas,un0,25750188

Mano de obra,m21,0010.00010.000

Al Látex Interior con Enduido Lijas,un0,25750188

Sellador acrilico ,lt0,057.777389

Látex para interior,lt0,3016.7145.014

Enduido

Tejuela o Tejuelón al Barniz

Tejuela a la Cal y Maderamen con Esmalte Sintético Cal triturada,kg0,201.225245

258.750
269.750
143.550
197.550
222.750
Total
por:m2 14.255
para interior,kg1,204.8405.808 Mano de obra,m21,0024.00024.000 Total por:m2 35.399 Al Látex Interior sin Enduido Total por:m2 22.591 Al
Total por:m2 35.975 Al Látex Exterior sin Enduido Total por:m2 22.591 Enduido Enduido para interior,kg1,204.8405.808 Lijas,un0,50750375 Mano de obra,m21,0012.00012.000 Total por:m2 18.183
Látex Exterior con Enduido Lijas,un0,25750188 Sellador acrilico lt0,057.777389 Látex para exterior,lt0,3016.7145.014 Enduido para exterior,kg1,205.3206.384 Mano de obra,m21,0024.00024.000
brillante,lt0,2536.9449.236 Mano de obra,m21,0017.00017.000 Total por:m2 26.870
Acido muriático,lt0,079.060634 Barniz sintético
Esmalte
Mano de obra,m21,0017.00017.000 Total por:m2
COSTEO DE OBRA Revista Mandu’a - 55
sintético lt0,3032.7509.825
27.070

COSTEO DE OBRA

Barnizado de Machimbre

Aceite de linaza,un0,2015.4003.080

Barniz sintético brillante,lt0,2536.9449.236

Mano de obra,m21,0015.00015.000

Total por:m2 27.316

Abertura de Madera con Esmalte

Aceite de linaza,un0,1515.4002.310

Esmalte sintético lt0,3032.7509.825

Aguarrás,un0,1012.2601.226

Lijas,un1,00750750

Mano de obra,m21,0024.00024.000

Total por:m2 38.111

Abertura de Madera con Barníz

Aceite de linaza,un0,1515.4002.310

Barníz sintético brillante,lt0,2536.9449.236

Lijas,un0,30750225

Mano de obra,m21,0020.00020.000

Total por:m2 31.771

Abertura Metálica con Esmalte Antióxido,lt0,1335.2774.410

Esmalte sintético lt0,3032.7509.825

Aguarrás,un0,1012.2601.226

Lijas,un1,00750750

Mano de obra,m21,0017.00017.000

Total por:m2 33.211

Canalata y Bajada con Esmalte Sintético

Antióxido,lt0,2035.2777.055

Esmalte sintético lt0,1032.7503.275

Aguarrás,un0,1012.2601.226

Lijas,un0,50750375

Mano de obra,ml1,0010.00010.000

Total por:ml 21.931

Tratamiento de Ladrillo Visto

Acido muriático,lt0,079.060634

Silicona,lt0,2010.5002.100

Mano de obra,m21,0015.00015.000

Total por:m2 17.734

VARIOS

Moldura Doble

Ladrillo común,un12,07008.400

Arena lavada,m30,1065.0006.500

Cemento tipo 1,kg12,01.10013.200

Cal triturada,kg20,01.22524.500

Mano de obra,ml1,0063.00063.000

Total por:ml 115.600

Moldura Sencilla

Cemento tipo 1,kg5,001.1005.500

Cal triturada,kg3,001.2253.675

Arena lavada,m30,0265.0001.300

Mano de obra,ml1,0049.00049.000

Total por:ml 59.475

Estufa (Boca de 1.00 m)

Ladrillo común,un620,700434.000

Ladrillo refractario,un80,06.148491.840

Cemento tipo 1,kg150,1.100165.000

Arena lavada,m31,0065.00065.000

Arena refractaria,kg3,003.0009.000

Varilla conformada,kg3,0010.00030.000

Mano de obra,un1,001.849.0001.849.000

Total por:un 3.043.840

Parrilla (boca de 1.00 m)

Ladrillo común,un750,700525.000

Cemento tipo 1,kg150,1.100165.000

Arena lavada,m31,0065.00065.000

Varilla conformada,kg6,0010.00060.000

Parrilla enlozada con un1,002.200.0002.200.000 carbonera y cenicero graduable,

Mano de obra,un1,001.980.0001.980.000

Total por:un 4.995.000

Balaustre Sencillo

Balaustre sencillo h=42 cmun5,004.84024.200

Ladrillo común,un12,07008.400

Varilla conformada,kg0,5010.0005.000

Cemento tipo 1,kg1,001.1001.100

Cal triturada,kg1,001.2251.225

Arena lavada,m30,0165.000650

Mano de obra,ml1,0016.00016.000

Total por:ml 56.575

Tanque de Agua en Fibra de Vidrio 1000 lt

Ladrillo común,un100,70070.000

Cemento tipo 1,kg12,01.10013.200

Cal triturada,kg10,01.22512.250

Arena lavada,m30,0565.0003.250

Dintel 1mx14cm,un2,0030.10060.200

Tanque Fibrac,un1,00767.000767.000

Mano de obra,un1,0085.00085.000

Total por:un 1.010.900

Tanque de Agua en Fibra de Vidrio 500 lt

Ladrillo común,un100,70070.000

Cemento tipo 1,kg12,01.10013.200

Cal triturada,kg10,01.22512.250

Arena lavada,m30,3065.00019.500

Piedra triturada de IV,tn0,30120.00036.000

Varilla conformada,kg3,0010.00030.000

Tanque Fibrac,un1,00460.000460.000

Mano de obra,un1,0075.00075.000

Total por:un 715.950

- Revista Mandu’a 56

PROYECTOS MANDU’A

Descripción general:

Todas las construcciones se realizan en Asunción o alrededores sobre un terreno seco con una capacidad portante de 3 Kg/cm2, que no requiere movimiento de suelo. El análisis de costo incluye los gastos generales (10%) y beneficio de la empresa (15%). Se excluyen los gastos complementarios correspondientes a los Honorarios Profesionales por Proyecto y Dirección de Obras. No se consideran los gastos por Permiso Municipal, de conexión y consumo por servicios de

agua y eléctricidad. Tampoco se considera el valor del predio. Los precios de materiales y de mano de obra corresponden a los publicados por nuestra revista, en cuya guía de costeo de obra se desarrolla cada uno de los ítems. Los precios de mano de obra se basan en consultas realizadas con contratistas y profesionales de construcción. No incluyen cargas sociales, seguro de accidentes, etc.

Casa Mandu’a - Vivienda Modelo 1

Descripción: Vivienda económica con una 2

Desarrollo de la Obra

• Fundación: Piedra bruta colocada. Nivelación: Mampostería de 0,30 con ladrillos comunes. • Aislación: Horizontal de muros realizada en cajón con asfalto sólido diluido en caliente. • Mampostería de elevación: Ladrillo hueco de 6 agujeros. En baños y paredes con instalación hidráulica, de ladrillo común. • Dinteles: Envarillado continuo de 2 varillas y de 4 varillas sobre aberturas. • Techo: Tejas españolas prensadas 1ª B, con tejuelones, maderamen de yvyrapyta, aislación con cartón asfáltico, con terminación de boca teja, mojinete y tapa doble. • Carpintería de madera: Marcos de yvyrapyta, aberturas de madera de guatambú, mueble de cocina revestido con laminado plástico. • Revestidos: Azulejos esmaltados lisos 15x15, en cocina, lavadero y baños, con una altura de 1,80 m. • Revoques: Base con azotada impermeable de 0,5 cm y revoque con aditivo hidrófugo, en interior a 1 capa y exterior en la faja perimetral de 0,50 m. Incluye vértice de mampostería y borde de aberturas. • Instalación eléctrica: Monofásica, llaves termomagnéticas brasileñas, Placas, picos de luz y tomas argentinas. Sin artefactos. • Instalación sanitaria: Cañería hidráulica de agua fría, cloacal y pluvial, de PVC. Loza de baño brasileña, con cisterna alta. Pileta de lavar de granito reconstituido.

MODELO 1 - VIVIENDA PLANILLA DE COSTOS

Nivelación 0.30 m

Aislación horizontal 0.15 con asfaltoml43 ,0018.844810.292

Elevación 0.15 m con ladrillo comúnm²20 ,0091.8381.836.765

Elevación 0.15 m con ladrillo hueco 6 tubos m²42 ,6054.8682.337.356

Elevación 0.15m con ladrillo hueco 6 tubos, 1 cara vistam²102 ,0058.6735.984.595 Sardinel con ladrillo común ml36 ,0061.2632.205.450

Pilar de ladrillo común 30 x 30 a la vista ml2 ,5081.350203.375

Dintel sobre aberturas / envarillado de mamposteria ml47 ,0019.550918.850

Techo: teja española, tejuelón, aislante, vigas y tirantes de yvyrapytam²94 ,00279.54126.276.854

Contrapiso de 10 cm con H° de cascotes m²65 , 0042.4052.756.325

Revoque 1 capa , 1.5 cm sin hidrófugo m²115 ,5029.8503.447.675

Revoque 1 capa con hidrófugo en exterioresm²111 ,0031.3653.481.515

Azotada impermeable 0.5 cmm²226 , 5012.4652.823.323

Azulejo 20 x 20 cmm²11 , 70147.6431.727.423

Baldosa calcárea base gris 20 x 20 cmm²61 , 5079.2254.872.338

Piso cerámico esmaltado 20 x 30 cmm²3 ,5075.093262.826

Carpeta para piso cerámicom²3 ,50 26.31592.103

Zócalo calcáreo base gris ml64 , 8034.7632.252.610 Desague cloacal global1 , 002.792.163 Instalación hidraúlica global1 , 001.760.175

Instalación desague pluvialglobal1 ,004.896.550

Colocación artefactos sanitarios y griferias global1 ,004.192.763

Instalación eléctricaglobal1 ,006.864.870

Carpintería metálica global1 ,00900.250

Carpintería de madera global1 ,009.813.150 Pinturas global1 ,009.886.015

Vidrios doble incoloro de 3 mm, colocado m²5 ,00550.000 111.063.164

PROYECTOS MANDU’A
BASICAUni.Cant. Costo UnitarioTotal Gs Replanteo
,703.100209.870 Cimiento
CONSTRUCCION
y marcaciónm²67
PBC (1:12)m³13 ,50353.9204.777.920
m²12
,55169.7032.129.766
Revista Mandu’a - 57

(0,8 %)111.063.164888.505

Imprevistos , mermas y roturas (3 %)111.063.1643.331.895 Costo

Dúplex Mandu’a Vivienda Modelo 2

CONSTRUCCION OPCIONAL

Cerca frontalUn1 ,002.272.633

VeredaUn1 ,003.620.400

Caminero de acceso Un1 ,00394.815

Pozo ciego 1.50 x 3.00 m Un1 ,002.617.500

Cámara séptica 1.00 x 1.60 x 1.20 mUn1 ,001.578.250

Mueble cocina Un1 ,006.550.000

Sardinel con ladrillo comúnml36 , 0061.2632.205.450

Limpieza y protección de sardinel ladrillo vistom²9 ,009.00081.000

Costo

Imprevistos , mermas y roturas (3%)19.320.048579.601

Descripción: Conjunto de 3 viviendas, cada una de 121,5 m2, con estructura de losa prefabricada con paredes portantes y disminuyendo pilares y zapatas.

Desarrollo de la Obra

• Fundación: De piedra bruta colocada, con encadenado inferior de HºAº y zapatas de Hº Aº como base de pilares.

Pileta de cocina de acero inoxidable, 1 bacha. Las canaletas y bajadas, de chapa galvanizada Nº 26. • Pintura: Interior y protección a base de silicona, previa limpieza con ácido muriático. Carpintería de madera y maderamen de techo al barniz. Carpintería metálica y canaletas con esmalte sintético.

• Estructura: Losa cerámica a la vista que se apoya en paredes portantes, con algunos pilares y vigas de HºAº. Nivelación y Dinteles sobre aberturas y techo. • Revestidos: Idem modelo 1. • Aislación: Horizontalidem modelo 1. De baño en planta alta con alisada e impermeabilizante de base asfáltica. • Mampostería de elevación: Ladrillo común en baños, área de servicio y pa-llo hueco de 6 agujeros en interiores y medianeras. • Carpintería de Madera: Marcos de yvyrapyta, aberturas de cedro, placard de guatambú, mueble de cocina revestido con laminado plástico. • Carpintería Metálica: Balancines de ángulos, rejas artísticas sencillas y portón de cochera de chapa doblada. • Pisos: Contrapiso de cascotes, baldosa calcárea de base gris en área de servicio, layota nacional en cochera y parrilla. Cerámica esmaltada sobre carpeta alisada de 30x30 en planta baja, área social, escalera y cocina. De 20x20 en baños. Veredita tipo ka’a. Alfombra de 5 mm sobre carpeta de base en planta alta. • Zócalos: Calcáreo, cerámica esmaltada, layotas, en su caso y madera donde lleva alfombra. • Revoques: Coazotado de adherencia en ladrillhidrófugo en exteriores y áreas húmedas. • Instalación eléctrica: Monofásica, llaves TM brasileñas, placas, picos de luz y tomas argentinas.

PROYECTOS MANDU’A
de obra básica 115.283.565 115.283.56528.820.891 Casa 1 Básica TOTAL144.104.456
de obra opcional 19.320.048
GSPor
Casa
Casa
CASA 1 ( BASICA+OPCIONAL)168.979.0172.495.997 - Revista Mandu’a 58
Costo de obra opcional 19.899.649 19.899.6494.974.912 Casa 1 opcional TOTAL24.874.561
1 básica 144.104.4562.128.574
1 opcional 24.874.561367.423

Replanteo y marcaciónm²90 ,003.100279.000 Zapatam³1 ,001.851.0001.851.000 Columnam³0 ,502.380.1751.190.088

Vigasm³0 ,652.320.2501.508.163

Encadenado inferior 13 x 20 cm en PBml55 ,0083.4004.587.000

Encadenado 13 x 30 cmml55 ,00137.8007.579.000

Escalera de H° A°total1 ,004.035.100

Losa rapm²35 ,00216.4807.576.800

Cimiento PBC colocada con cal ( 1/2 : 1 : 4 )m³17 ,60419.8507.389.360

Nivelación 0.30 m m²11 ,60169.7031.968.549

Elevación 0.15 ladrillo comúnm²52 ,0091.8384.775.589

Elevación 0.15 ladrillo hueco 6 tubosm²61 ,5054.8683.374.351

Elevación 0.20 ladrillo hueco m²43 ,0083.4233.587.168

Elevación 0.15 ladrillo laminado m²84 ,40111.0489.372.409

Sardinel con ladrillo comúnml5 ,5061.263336.944

Aislación horizontal 0.15 con hidrófugo y asfaltoml52 ,0018.844979.888

Aislación de losa para baño m²3 ,0059.847179.541

Dintel sobre aberturas / envarillado de manpostería ml18 ,0019.550351.900

PROYECTOS MANDU’A

Sin artefactos. • Instalación Sanitaria: Cañería para agua fría, cloacal y pluvial de PVC, para agua caliente de polipropileno, loza de baño brasileña, cisterna baja en baño social y en planta alta, alta en baño de servicio, pileta de lavar de granito reconstituido y de acero inoxidable de 2 bachas en la cocina. Canaletas y bajadas de chapa Nº 26. • Pintura: Mampostería a la vista con protección a base de silicona, previa limpieza con ácido muriático. Area de servicio y exteriores revocados a la cal con color. Paredes interiores al latex. Carpintería de madera, techo de tejas y losa con cerámica a la vista al barniz. Carpintería metálica y canaletas con esmalte sintético. os huecos, con azotada impermeable PLANILLA DE COSTOS CONSTRUCCIÓN BÁSICAUn.Cant.

Contrapiso de H° de cascotes 10 cmm²70 ,0042.4052.968.350

Contrapiso en losa sanitaria 20 cm m²2 ,5049.655124.138

Revoque 1 capa , 1.5 cm sin hidrófugom²240 ,0029.8507.164.000

Revoque 1 capa con hidrófugo en exterioresm²189 ,0031.3655.927.985

Azotada impermeable 0.5 cmm²189 ,0012.4652.355.885

Revoque de cielorraso a 1 capa m²15 ,0049.658744.863

Techo : teja española , tejuelón, vigas y tirantes m²93 ,00279.54125.997.313

Piso pared 32x57m²42 ,0073.0933.069.906

Baldosa calcárea base gris 20 x 20 cmm²10 ,5079.225831.863

Piso cerámico esmaltada 20 x 30m²62 ,5075.0934.693.313

Piso de layota 28 x 28 cmm²15 ,6056.017873.865

Piso de alfombra 4 mmm²24 ,0038.100914.400

Carpeta para piso cerámico m²86 ,5026.3152.276.248

Zócalo calcáreo base gris ml14 ,0034.763486.675

Zócalo de maderaml30 ,0031.225936.750

Zócalo de cerámica esmaltada ml34 ,0020.159685.420

Desague cloacal y pluvial global1 ,007.200.238

Agua corriente global1 ,003.530.675

Colocación artefactos sanitarios global1 ,0011.795.169

Instalación eléctrica global1 ,008.079.221

Carpintería de madera global1 ,0022.413.610

Carpintería metálica global1 ,003.162.350

Vidrios global1 ,00980.000

Pinturas global1 ,0014.466.480

Casa 2 básica 192.600.563

(0.8 %)192.600.5631.540.805

Imprevistos mermas y roturas (3%)192.600.5635.778.017

Costo de obra

Muralla de ladrillo común ml6 ,00434.6342.607.803

Revoque 1 capa con hidrófugo exteriores m²24 ,0031.365752.760

Contrapiso de H° de cascotes 10 cm m²33 ,8042.4051.433.289

Vereda cerámica vainilla m²28 ,0096.6792.707.012

Piso de layota 28 x 28m²5 ,7656.017322.658

Mueble de cocina ml4 ,151.200.0004.980.000

Alacena de cocina ml4 ,15850.0003.527.500

Placard Estándarm²14 ,001.450.00020.300.000

Verja de hierro sencilla un3 ,75220.000825.000

Portón de hierro 1.00 x 1.50 mun1 ,00530.150 Pozo ciego 1.50 x 3.00 m un1 ,002.617.500

Cámara séptica 1.00 x 1.60 x 1.20 mun1 ,001.578.250

Pintura a la cal con color m²24 ,0013.255318.120

Abertura metálica con esmalte m²10 ,5027.316286.818

Parrilla con boca un1 ,004.995.000

Casa mandua 2 opcional47.781.859

Imprevistos , mermas y roturas (3%)47.781.8591.433.456 Costo de obra

Planta Baja Planta Alta
Costo UnitarioTotal G.
199.919.38449.979.846 CASA
BASICA TOTAL249.899.230
Costo UnitarioTotal Gs.
básica199.919.384
2
CONSTRUCCIÓN OPCIONALUni.Cant.
49.215.31512.303.829 61.519.144 SUPERFICIE 121,50 m²GSPOR m² Casa 2 básica 249.899.2302.056.784 Casa 2 opcional 61.519.144506.330 Casa 2 BASICA+OPCIONAL311.418.3742.563.114 MODELO 2 / VIVIENDA DUPLEX, SUPERFICIE 121,50 m² Revista Mandu’a - 59
opcional49.215.315

Dúplex Mandu’a - Vivienda Modelo 3

Descripción: 2 viviendas iguales en Duplex, cada una de 150,3 m2

Sistema constructivo y materiales

Estructura: La losa prefabricada utilizada es de una marca del mercado, utilizada con el mismo criterio adoptado en el Modelo 2.

Desarrollo de la Obra

• Fundación: Idem modelo 2. • Estructura: Se utiliza el sistema Listalosa con cielorraso ranurado a la vista, sin revoque, que descansa sobre paredes portantes, reforzados con algunos pilares y vigas de Hº Aº. • Fundación, nivelación, aislación, mampostería, dinteles, techos, revoques, Instalación Sanitaria y Pintura: Idem al modelo 2. • Carpintería de Madera: Marcos de lapacho, aberturas, placards y mueble de cocina de cedro, éste último con puertas

• Carpintería Metálica: Balancines metálicos. Rejas artísticas y portón de cochera de chapa doblada y varillas. • Pisos: Contrapiso de Hº de cascotes, baldosa calcárea de base gris en área de servicio, layota nacional en cochera y parrilla. Granito reconstituído pulido de base gris en área social, estudio y planta alta, y en planchas en la escalera. Cerámica esmaltada sobre carpeta alisada en cocina y baños. Vereda de mosaicos de canto rodado de color 30x30. • Zócalos: Calcáreo, cerámica esmaltada, cerámica roja y granito reconstituido. • Revestidos: Azulejo esmaltado liso 20x30 en baños y cocina. De 15x15 en lavadero y baño de servicio. • Instalación Eléctrica: Monofásica, llaves TM europeas, placas, picos de luz y tomas de procedencia uruguaya. Sin artefactos.

PLANILLA DE COSTOS

C0NSTRUCCIÓN BÁSICAUNI.CANT.

Replanteo y marcación m²158 ,003.100489.800

Zapatam³0 ,801.851.0001.480.800

Pilar listalosa m²8 ,00127.5381.020.300

Viga listalosa m²18 ,40119.8222.204.729

Losa listalosam²47 ,50220.40010.469.000

Cálculo estructural para losaun1 ,00450.000450.000

Flete de viguetas un1 ,00150.000150.000

Escalera de H° A°Total1 ,004.035.1004.035.100

Cimiento PBC colocada con cal ( 1/2 :1:4 )m³15 ,40419.8506.465.690

Nivelación 0.30 m m²16 ,50169.7032.800.091

Elevación 0.15 ladrillo común m²109 ,5091.83810.056.288

Elevación 0.15 ladrillo huecom²80 ,8054.8684.433.294

Elevación 0.15 ladrillo laminado m²126 ,00111.04813.991.985

Sardinel con ladrillo comúnml5 ,5061.263336.944

Aislación horizontal 0.15 con hidrófugo y asfaltoml52 ,0018.844979.888

Aislación de losa para bañom²8 ,2059.847490.745

Dintel sobre aberturas / envarillado de manposteríaml32 ,0019.550625.600

Contrapiso de H° de cascotes 10 cmm²117 ,8042.4054.995.309

Contrapiso en losa sanitaria 20 cm m²6 ,8049.655337.654

Revoque 1 capa sin hidrófugo ( 1:4:16 ) interioresm²381 ,0029.85011.372.850

Revoque 1 capa con hidrófugo ( 1:4:16 ) exteriores m²126 ,0031.3653.951.990

Azotada impermeable 0.5 cmm²60 ,0012.465747.900

Revoque de cielorraso a 1 capa m²6 ,0049.658297.945

Techo : teja española , tejuelón, vigas y tirantes de Ybyrapytam²129 ,00279.54136.060.789

Piso pared Forte Havana 31x31m²26 ,0086.7432.255.318

Porcelanato 60x60m²19 ,00147.6432.805.217 m²14 ,0073.0931.023.302

Baldosa calcárea base gris 20x20 cmm²9 ,0079.225713.025

Mosaico granítico base gris m²78 ,00141.97511.074.050

Cerámica esmaltada 30 x 30 cmm²21 ,0080.2261.684.746

Carpeta para piso cerámico m²21 ,0026.421554.846

Piso de layota 28 x 28 cmm²14 ,8256.017830.172

Plancha granítica para revestido de escalera gl1 ,002.406.0002.406.000

Zócalo calcáreo base gris ml12 ,0034.763417.150

Zócalo granítico base gris ml88 ,0068.1135.993.900

Zócalo de cerámica esmaltadaml11 ,0020.159221.753

Zócalo layota 28 x 10 cmml4 ,5023.668106.504

Desagüe cloacal y pluvial global1 ,0011.678.725

Agua corriente global1 ,005.721.135

Colocación artefactos sanitarios global1 ,0026.421.082

Instalación eléctrica global1 ,0012.736.168

Carpintería de madera global1 ,00 32.847.150

Carpintería metálica global1 ,002.903.600 Vidrios global1 ,001.733.000 Pinturas global1 ,0027.723.563

Casa 3 básica

270.095.098 (0.8 %)270.095.0982.160.761

Imprevistos, mermas y roturas (3%)270.095.0988.102.853

Costo de obra básica280.358.712 (25 % )280.358.71270.089.678 Casa 3 básica TOTAL350.448.390

PROYECTOS MANDU’A
Costo UnitarioTotal Gs.
CONSTRUCCIÓN
unitarioTotal
ml23434.6349.996.576
OPCIONALUNI.CANT. Costo
Gs. Muralla de ladrillo común
- Revista Mandu’a 60
MODELO 3 / VIVIENDA DUPLEX, SUPERFICIE 150,30 m²

Revoque 1 capa con hidrófugo exteriores m²92 ,0031.3652.885.580

Contrapiso de H° de cascotes 10 cm m²42 ,0042.4051.781.010

Mosaico granito lavado para exterior base grism²42 ,00105.2134.418.925

Mueble de cocina ml6 ,001.250.0007.500.000

Placard standardm²15 ,601.200.00018.720.000

Verja de hierro sencilla un8 ,00 220.0001.760.000

Portón de hierro 1.00 x 1.50 mun1 ,00 530.150

Pozo ciego 1.50 x 3.00 m un1 ,002.617.500

Cámara séptica 1.00 x 1.60 x 1.20 mun1 ,001.578.250

Pintura a la cal con color m²92 ,0013.2551.219.460

Pintura abertura metálica con esmalte m²19 ,0033.211631.002

Parrilla con boca un1 ,004.995.000

Casa 3 opcional 58.633.453 Imprevistos, mermas y roturas (3%)58.633.4531.759.004

Costo de obra opcional60.392.457

Vivienda Modelo 4

Descripción:

que puede ampliarse a 3, comprende 2 departamentos en Planta Alta, cada uno de 60 m2 y con 2 dormitorios. En planta baja 2 salones comerciales de 34,30 m2 de área interior. Entrada vehicular cubierta.

Desarrollo de la obra

• Fundación: Se utilizan Zapatas de Hº Aº donde actúan cargas puntuales y bajo las paredes, vigas del mismo material. • Estructura: De Hº Aº tipo tradicional, las losas descansan sobre vigas y pilares del mismo ancho que las paredes. En planta alta se utiliza un encadenado general a la altura de asiento de tirantes. • Aislación, mampostería de elevación, dinteles, techo y carpintería de madera, pisos, zócalos, revestidos, revoques, instalación sanitaria: idem al modelo 2. • Carpintería Metálica: Cortina de enrollar de tablillas metálicas con puerta de escape. Balancines, portones de acceso peatonal y de cochera de chapa doblada. Baranda sencilla de escalera. • Instalación

Eléctrica: Idem. modelo 3. • Pintura: Paredes interiores y exteriores del frente y contrafrente al latex. Paredes exteriores medianeras y cielorraso a la cal. Abertura de madera, maderamen y tejuelones del techo al barniz. Carpintería metálica con esmalte sintético.

PROYECTOS MANDU’A
Planta Baja Planta Alta
% )60.392.45715.098.114 75.490.571 350.448.390 Casa 3 opcional TOTAL75.490.571 SUPERFICIE 150,50 m²GSPOR m² CASA 3 BÁSICA 350.448.3902.331.659 Casa
OPCIONAL 75.490.571502.266 CASA
BÁSICA+OPCIONAL425.490.5712.833.925 Revista Mandu’a - 61
(25
3
3

PROYECTOS MANDU’A

PLANILLA DE COSTOS

CONSTRUCCIÓN BÁSICAUNI.CANT.

Replanteo y marcaciónm²242 ,003.100750.200

Excavación para zapata m³27 ,0042.0001.134.000

Zapatam³8 , 051.851.00014.900.550

Columnam³4 ,022.380.1759.568.304

Vigasm³6 ,992.320.25016.218.548

Losam³12 ,392.281.30028.265.307

Encadenado 13 x 30 cmml97 ,20137.80013.394.160

Escalera de H° A°total1 ,204.035.1004.842.120

Nivelación 0.30 m m²21 ,81169.7033.701.212

Elevación 0.15 ladrillo comúnm²66 ,5091.8386.107.244

Elevación 0.15 ladrillo huecom²415 ,8054.86822.813.907

Elevación 0.20 ladrillo hueco m²198 ,8083.42616.584.393

Aislación horizontal 0.15 c/ hidrófugo y asfaltoml55 ,5018.8441.045.842

Aislación de losa para baño m²28 ,9059.8471.729.578

Dintel sobre aberturas / envarillado de manpostería ml35 ,0019.550684.250

Contrapiso de 7 cm m²107 ,0034.4403.685.080

Contrapiso de H° de cascotes 10 cmm²101 ,0042.4054.282.905

Contrapiso en losa sanitaria 20 cm m²24 ,5049.6551.216.548

Revoque 1 capa sin hidrófugo en interioresm²882 ,0029.85026.327.700

Revoque 1 capa con hidrófugo en exterioresm²480 ,0031.36515.055.200

Azotada impermeable 0.5 cmm²112 ,0012.4651.396.080

Revoque de cielorraso a 1 capam²117 ,0049.6585.809.928

Techo : teja española , tejuelón, vigas y tirantes Yvyrapytam²149 ,00279.54141.651.609

Azulejo 15 x 15 cmm²41 ,0073.0932.996.813

Baldosa calcárea base gris 20 x 20 cmm²66 ,0079.2255.228.850

Piso cerámica esmaltada 20 x 30m²154 ,7075.09311.616.887

Piso de layota 28 x 28 cmm²26 ,5056.0171.484.451

Carpeta para piso cerámico m²154 ,7026.3154.070.931

Zócalo calcáreo base gris ml54 ,0034.7631.877.175

Zócalo de cerámica esmaltada ml146 ,0020.1592.943.272

Zócalo de layota 28 x 10 cmml18 ,6023.668440.216

Desague cloacal y pluvial global11.728.188

Agua corriente global3.836.430

Colocación artefactos sanitarios global8.382.052

Instalación eléctrica global25.850.277

Carpintería de madera global31.249.640

Carpintería metálica global13.486.700

Vidrios global1.217.800

Pinturas global29.370.940

Casa Mandua 4 básica 396.945.283 (0.8 %)396.945.2833.175.562

Imprevistos, mermas y roturas (3%)396.945.28311.908.358

Costo de obra básica412.029.204 412.029.204103.007.301

Casa 4 Básica

Contrapiso de H° de cascotes 10 cmm²36 ,0042.4051.526.580

Vereda cerámica vainillam²36 ,0078.2752.817.900

Mueble de cocina bajo mesada ml3 ,001.200.0003.600.000

Alacena de cocinaml3 ,00850.0002.250.000

Placard

Planta Baja Planta Alta
Costo UnitarioTotal Gs.
TOTAL515.036.505 CONSTRUCCION OPCIONALUNI.CANT. Costo UnitarioTotal Gs.
,321.450.00023.664.000 Pozo
mun1 ,002.617.500
Casa Mandua
opcional 38.354.230 Imprevistos
mermas
roturas
%)global0,0338.354.2301.150.627 Costo de obra opcional39.504.857 39.504.8579.876.214 Casa 4 opcional TOTAL49.381.071 SUPERFICIE 236 m²GSPOR m² CASA 4 BASICA 515.036.5052.182.358 Casa 4 OPCIONAL 49.381.071209.242 CASA 4 BASICA+OPCIONAL564.417.5762.391.600 MODELO 4 / EDIFICIO PARA RENTA, SUPERFICIE 236 m² - Revista Mandu’a 62
stantardm²16
ciego 1.50 x 3.00
Cámara séptica 1.00 x 1.60 x1.20 mun1 ,001.578.250
4
,
y
(3

Descripción: Galpón tipo tinglado, con una 2

rio dos boxes de baño, para ducha e inodoro, respectivamente. Consta de patio posterior y retiro en el frente, cumpliendo la norma muconstruir.

La obra está prevista para un terreno plano y limpio de 12x30 m situado entre linderos.

Desarrollo de la Obra

• Fundación: Pilares asentados sobre zapatas de hormigón ciclópeo y cimiento corrido de P.B.C para asiento de paredes. • Estructura: Realizada con pilares de HºAº y vigas encadenadas conformando 2 anillos de unión. • Aislación, mampostería de elevación, dinteles, carpintería de Madera: Idem. modelo 1. • Techo: Tipo tinglado parabólico, estructura metálica reticulada fabricada de varillas torsionadas pintadas con antióxido. Cubierta de chapa galvanizada ondulada, aireada con extractores eólicos. • Carpintería Metálica:

“T”. Portones de chapa doblada en el acceso vehicular y la salida al patio. Escalera metálica recta de acceso al entrepiso de madera. • Pisos: En el patio del frente y dentro del depósito, donde pueden circular vehículos, el piso es de hormigón armado con juntas de dilatade base gris y cerámica esmaltada sobre una carpeta alisada, en baños y vestuarios. Vereda de baldosita calcárea tipo ka’a con ranuras antideslizantes. Contrapiso de hormigón de cascotes. • Zócalos: Revestidos: Azulejo esmaltado liso 15x15 en baños y vestuario. • Revoques: Sobre ladrillos huecos, azotada de adherencia con hidrófucomunes sólo este último. Las paredes perimetrales llevan revoque a un solo lado.

• Instalación Eléctrica: Trifásica, llaves termomagnéticas europeas, placas, picos

PLANILLA DE COSTOS

Replanteo y marcaciónm²268 ,803.100833.280 Columnam³6 ,002.380.17514.281.050

Encadenado 13 x 30 cmml168 ,00137.80023.150.400

Cimiento PBC con cal ( 1/2:4 )m³34 ,00419.85014.274.900

Hormigón ciclópeo ( 1:3:6 )m³4 ,32685.5002.961.360

Nivelación 0.30 m m²24 ,12169.7034.093.224

Elevación 0.15 ladrillo comun m²22 ,5091.8382.066.361

Elevación 0.20 con ladrillo hueco m²5 ,60128.443719.278

Elevación 0.30 con ladrillo huecom²4 ,50164.845741.803

Elevación 0.07 ladrillo huecom²5 ,0044.551222.756

Elevación 0.15 ladrillo hueco 6 tubos m²106 ,0054.8685.815.955

Elevación 0.20 ladrillo huecom²373 ,0083.42331.116.593

Aislación horizontal 0.15 con asfaltoml76 ,4018.8441.439.682

Dintel sobre aberturas / envarillado de manposterÍa ml24 ,0019.550469.200

Contrapiso de H° de cascotes 10 cmm²21 ,5042.405911.708

Revoque 1 capa , 1.5 cm sin hidrófugom²565 ,0029.85016.865.250

Azotada impermeable 0.5 cmm²480 ,0012.4655.983.200

Estructura para tinglado m²270 ,00197.50453.326.040

Extractor eólico + sombreroun3 ,00450.0001.350.000 Entrepiso de maderam²27 ,00149.2004.028.400 Azulejo 15 x 15 cmm²18 ,5073.0931.352.221 Baldosa calcárea base gris 20 x 20 cmm²16 ,5079.2251.307.213

PROYECTOS MANDU’A
-
UNI.CANT. Costo UnitarioTotal Gs.
CONSTRUCCION BASICA
Piso cerámico esmaltada 20 x 30m²8 ,8096.679850.775 Piso de hormigón armado 12 cmm²290 ,20182.40052.932.480 Carpeta para piso cerámico
,8026.421232.507 Zocalo calcáreo base gris ml16 ,0034.763556.200 Desague cloacal y pluvial global12.400.675 Agua corriente global1.899.755 Colocación artefactos sanitarios global3.263.026 Instalación eléctrica global11.179.330 Carpintería de madera global4.003.000 Carpintería metálica global13.903.850 Vidrios global2.488.000 Pinturas global20.649.635 Casa Mandua 5 basica 311.669.104 (0.8 %)311.669.1042.493.353 Imprevistos, mermas y roturas (3%)311.669.1049.350.073 Costo de obra básica323.512.530 323.512.53080.878.133 Casa 5 básica TOTAL404.390.663 CONSTRUCCI0N OPCIONALUNI.CANT. Costo UnitarioTotal Gs. Contrapiso de 10 cmm²36 ,0042.4051.526.580 MODELO 5 / GALPON TIPO TINGLADO, SUPERFICIE 268,80 m² Revista Mandu’a - 63
m²8

PROYECTOS MANDU’A

Vereda cerámica m²36 ,0078.2752.817.900

Pozo ciegoun1 ,002.617.500

Cámara séptica un1 ,001.578.250

Muralla de ladrillo comúnml30 ,00434.63413.039.013

Revoque a 1 capa comúnm²65 ,0029.8501.940.250

Pintura a la calm²65 ,0013.255861.575

Casa Mandua 5 opcional 24.381.068

Imprevistos , mermas y roturas (3 % )24.381.068731.432

Costo de obra opcional25.112.500

25.112.5006.278.125 casa 5 opcional TOTAL31.390.624

SUPERFICIE 268,80 m²GSPOR m²

CASA 5 BASICA

Casa 5 OPCIONAL

404.390.6631.504.430

31.390.624116.781

CASA 5 BASICA+OPCIONAL435.781.2871.621.210 - Revista Mandu’a

de luz y tomas uruguayos, sin artefactos. Instalación Sanitaria: Cañería hidráulica de agua fría, cloacal y pluvial, lozas de baño, canaletas y bajadas idem modelo 1.

el vestuario. • Pintura: Paredes revocadas, interiores o exteriores, a la cal. Paredes de ladrillo hueco a la vista con tratamiento correspondiente para el efecto. Carpintería de madera y entrepiso de machimbre pintadas con barniz. Carpintería metálica y caños de bajada con esmalte sintético.

64

* La Bolsa de Subcontratistas es una colaboración de la revista con los profesionales y trabajadores de la construcción, teniendo un pequeño costo los anuncios en recuadro. La calidad del servicio, así como la relación contractual, escapa a nuestro compromiso con los apreciados lectores.

Agrimensura

Aire acondicionado

Instalación / Reparación

Bracho, Javier 0981 879749 / 0985 464491

Brítez, Santiago0981 117524

González, Pedro644661 / 0982 450866

Maciel, Pablo0971 939890 / 0981 651205

Ojeda, Hugo623766 / 0981 868289

Solis, Gabriel0981 486233

Velázquez, Santiago0981 843738

Aislación térmica

Duarte, Eleno0983 338939

Marín, Dionisio0983 731450

Alambrados

Bentrom, Román991255

Riveros, Mario 0992 993007 / 0985 887621

Albañilería

Benítez, Ramón0982 370231

Bogarín, Lidio0971 947177

Bruno, Alejandro0994 314460

Cabral, Andrés0982 896561

Cáceres, Carlos0982 132349

Cazal, Alexis0981 343423

Esquivel, Rogelio0981 456697

Fernández, Antonio515629 / 0981 465940

Garcete, Palermo0981 965660

Gill, Enrique 642559 / 0981 303974

Giménez, Pablo0981 951645

Godoy, Eladio 0983 333622

González, Aníbal0985 222147

González, Benito0982 248256

Jara, Vidal0981 434787 / 0981 876489

Jiménez, Antonio514989 / 0981 660190

López, Osvaldo 0981 836904

Maidana, Sinforiano0983 380486

Marín, Dionisio0983 731450

Moreno, Ramón 0981 785546

Ocampos, Higinio0984 926892

Ortega, Mildesis 0984 369 652 / 0981 594 893

Paniagua, Derlis0981 182465

Peralta, Raúl0981 501323

Rando, Gerardo0985 766 650

Ramírez, Amado374276 / 0981 485609

Riveros, Carlos 0981 521771

Rojas, Juan0971 950157

Ruiz, Saturnino0984 273997

Sosa, Edgar0984 928914

Vera, Néstor0981 103889

Animación y perspectiva

Abbate, Alejandra0982 886227

González, Jorge0986 552 000 / 0991 880 133

Pérez, Rafael0981 476743

Aprobación de planos municipales

Benítez, Oscar0971 340345

Chaparro, Miguel0961 586457

Fernández, María0981 932043

Rolón, Oscar 0981 445601

Robledo, Gustavo0981 939512

Azulejos - colocación

Armando, José0995 639335

Benitez, Alfredo0981 520214

Benitez, Antonio0981 945353

Ferreira, Gustavo285663 / 0981 881211

Figueredo, Miguel0981 479221

Godoy, Eladio 0983 333622

González, Benito0982 248256

Jiménez, Antonio514989 / 0981 660190

Medina, Antonio0983 247516

Moragas, Carmelo0985 268 497 / 0981 547 754

Noguera, Higinio0981 564472

Ortíz, Vidal509475

Palacios, Leonardo0983 207676

Vázquez, Ever0981 655799

Canaletas

Altamirano, Vicente0981 851077

Arzamendia, Hugo0981 126471

Canto rodado (carga en obra)

Figueredo, Catalino0981 763438

Figueredo, Miguel0981 479221

Carpintería

Aquino, Miguel0986 858685

Bordón, Marcial0971 277041

Franco, Marcos0982 279166

Olmedo, Miguel0981 526079

Carpinteros de obra / techistas

Benítez, Aniano0984 478256

Cáceres, Carlos0982 132349

González, Aníbal0985 222147

Jara, Oscar 780642 / 0981 184687

Mora, Pascual0981 963459

Sosa, Carlos0992 299951 Valdovinos, Pedro0981 234113

Cascadas

Acevedo, Patricio 0981 412542

Aguilera, Gabriel0985 101795

Cepillado en obra

Jara, Oscar 780642 / 0981 184687

Circuito cerrado

Cabrera, Arnaldo0981 334508

Maciel, Pablo0981 651205

Colocación de aberturas

Franco, Marcos0982 279166

García, Juan0981 571424

Gill, Enrique 642559 / 0981 303974

Sosa , Carlos0992 299951

Colocación de empapelados

Coronel, Derlis295479 / 0981 154662

Coronel, Julián295479 / 0984 580876

Colocación de Losarap

Alarcón, Julio501130 /0983 367 697

Gill, Enrique 642559 / 0981 303974

Cielorrasos - Durlock/PVC/Yeso

Agüero, Benjamín0985 740977

Agüero, Jorge0985 417456

Bentolilla, Esteban480203 / 0981 385207

Careaga, Víctor373410 / 0971 936858

Colocación de Parquet

García, Juan0981 571424

Sosa, Carlos0992 299951

Colocación de Piedra revestidos / molduras

Aveiro, Gerónimo0985 242563

Figueredo, Miguel0981 479221

Martínez, Diego0984 560 841

Ortíz, Eduardo0971 379011

Quiñónez, Expédito0983 356501

Ríos, Francisco0981 417309

Rojas, Juan0971 950157

BOLSA DE SUBCONTRATISTAS Revista Mandu’a - 65

BOLSA DE SUBCONTRATISTAS

Colocacion de Pisos vinílicos / alfombras

Careaga, Víctor373410 / 0971 936858

Coronel, Derlis295479 / 0981 154662

Coronel, Julián295479 / 0984 580876

Pavón, César327 6331 / 0982 354987

Sánchez, Alberto443477 / 0981 503266

Cómputo métrico

Benítez, Oscar0971 340345

González, Jorge Arq 0986 552000 / 0991 880133

Nuñez, Andrea0982 170442

Russo, Walter Ing0991 789561

Vallejos S, Cristina Arq0982 975371 / 0981 561645

Constructores de obra

Acosta Riveros, Jorge A 0984 557649

Añazco, Carlos0981 457301

Benítez, Aniano0984 478256

Benítez, Juan751724 / 0981 488904

Benítez, Ramón0982 370231

Caballero, Oscar0972 131247

Cabral, Andrés0982 896 561

Cáceres, Carlos0982 132349

Cantero, Domingo0981 244946

Dávalos,Hermes0981 942718

Escobar, Gustavo0981 163551

Espinoza, Mauricio0982 781445

Fernández, Antonio515629 / 0981 465940

Ferreira, Wilfrido 0981 400128 / 0981 786614

Figueredo, Miguel0981 479221

Garcete, Palermo0981 965660

Gill, Enrique 642559 / 0981 303974

Giménez, Leonardo0981 530453

González, Aníbal0985 222147

González, Miguel H0961 889646

González, Rumildo0971 350004

Gutiérrez, De los Santos0981 390538

Hucedo, Carlos0982 178592

Jara, Vidal 0981 434787 / 0981 876489

Jiménez, Antonio514989 / 0981 660190

Maciel, Milciades0981 943482

Maidana,Sinforiano0983 380486

Meza, Esteban0992 383232

Moreno, Ramón0981 785546

Narváez, Arsenio0981 939452

Noguera, Higinio0981 564472

Ortiz Barrios, César642239 / 0983 358854

Ortíz, Vidal509475 / 0971 720887

Oviedo, Richard0981 291070

Paniagua, Derlis0981 182465

Quiñónez, Expedito0983 356501

Quiroga, Pedro0985 938774

Rando, Gerardo0985 766 650

Recalde, César 0981 170159

Riveros, Carlos0981 521771

Riveros, Mario0992 993007 / 0985 887621

Robledo,Gustavo0981 939512

Rodríguez, Buenaventura0972 509828

Rojas, Bernardo302692 / 0981 531143

Rojas, Juan0971 950157

Romero, Melchor0983 470631

Ruiz, Saturnino0984 273997

Sánchez, Benito0983 488540

Sánchez, Ricardo0981 145907

Sánchez, Yisenia0976 123426 / 0985 297794

Sosa, Edgar0984 928914

Valdovinos, Pedro0981 234113

Vega, Augusto310352 / 0971 972699

Velázquez, Jorge0983 507243

Velázquez, Santiago0981 843738

Vera, Néstor0981 103889

Contratistas de hormigón

Acosta Riveros, Jorge A 0984 557649

Arévalos, Guillermo752601 / 0981 485307

Benítez, Oscar0971 340345

Cabral, Andrés0982 896561

Esquivel, Rogelio0981 456697

Fernández, Antonio515629 / 0981 465940

Fernández, Silvino755284 / 0981 549523

Figueredo, Miguel0981 479221

Garcete, Palermo0981 965660

Giménez, Leonardo0981 530453

González, Aníbal0985 222147

González, Miguel H0961 889646

González, Rumildo0971 350004

Maidana, Sinforiano0983 380486

Meza, Esteban0992 383232

Ocampos, Higinio0984 926892

Olmedo, Julio0981 652772

Ortega, Mildesis0984 369652 / 0981 594893

Paniagua, Derlis0981 182465

Peralta, Raúl0981 501323

Recalde, César 0981 170159

Torres, Arístides 0981 865518

Velázquez, Santiago0981 843738

Vera, Néstor0981 103889

Cortinas

Aguilera, Gabriel0985 101795

Ayala, Ever0983 711979

Maldonado, María Estela0981 561631

Urbieta, Mónica0981 476743

Demolición

Caballero, Oscar0972 131247

Herrera, Cristino0981 976488 / 0984 894128

Vallejos, Cándido0991 233001

Villalba, Javier0985 491498

Destronque de árboles

Herrera, Cristino0981 976488 / 0984 894128

Vera, Néstor0981 103889

Dibujantes técnicos

Arnedo, Ana Arq0981 655014

Jacobo, Nora0971 534417

Maidana, María B.0991 988215

Martínez, Francisco0786 230619 / 0975 681680

Montiel, Gustavo586343 / 0982 488928

Rodriguez, Buenaventura0972 509828

Rolón, Manuel0986 909404

Rolón, Oscar 0981 445601

Digitalización de planos

Abbate, Alejandra0982 886227

Aponte, Andrea0971 190781

Arnedo, Ana Arq0981 655014

Arza, Andrea Arq0981 966786

Coronel, Renzo0971 362856 / 0986 656577

Escobar, Gustavo0981 163551

Ferreira, José0981 915492

González, Jorge0986 552 000 / 0991 880133

Maidana, María B.0991 988215

Montiel, Gustavo586343 / 0982 488928

Nuñez, Andrea0982 170442

Nuñez, Miguel0982 634026

Quintana, Jorge290680 / 0981 426037

Robledo, Gustavo0981 939512

Rolón, Manuel0986 909404

Rolón, Oscar 0981 445601

Sánchez, Yisenia0976 123426 / 0985 297794

Toledo, Milena0981 201561

Divisorias interiores / Mamparas

Bentolilla, Esteban480203 / 0981 385207

Careaga, Víctor373410 / 0971 936858

Pavón, César327 6331 / 0982 354987

Dorado a la hoja

Chávez, Ada0981 838274

Drenaje

Caballero, Rodrigo0981 257702

Velázquez, Santiago0981 843738

Electricistas

Aquino, Roberto521610/ 0971 313847

Benítez, Cándido0981 496207

Bracho, Javier0981 879749 0985 464491

Brítez, Santiago0981 117524

Cáceres, Isidro0981 927945

Chaparro, Miguel0961 586457

Castillo, Marco 0981 578068

Coronel, Derlis295479 / 0984 580876

Coronel, Julián295479 / 0981 154662

- Revista Mandu’a 66
Bentolilla, Esteban480203 / 0981 385207 Decoración y muebles

Delgadillo, Alberto0981 844429

Delgadillo, Francisco0982 335870

Díaz, Carlos572156 / 0982 464967

Duarte, Gustavo0983 191182

Esquivel, Rogelio0981 456697

Galarza, Ramón0981 230273

Garcete, Palermo0981 965660

Giménez, Carlos0981 741087

Giménez, Flaminio0971 227480 / 0983 841240

González, Pedro 644661 / 0982 450866

Hucedo, Carlos0982 178592

León, Cañete0983 800938 / 0981 561409

Maciel, Pablo0971 939890 / 0981 651205

Martínez, Gerardo0981 493190

Montanía, Ylber0981 474025

Núñez, Cayo0983 404670

Otello Roa, Félix780691 / 0972 822577

Paniagua, Derlis0981 182465

Parini, Fernando0983 657565

Ramírez, Dario0992 863100 / 0991 677208

Ramírez, Roberto944740 / 0981 494624

Rolón, Carlos0982 751296

Ruiz, Carlos0981 896430

Sanabria, Jorge0984 154375

Sartorio, Jorge 0981 939172

Solis, Gabriel0981 486233

Toñánez, Sebastián 0981 912516

Valenzuela, Luis0982 127968 / 0985 942676

Vallejos, Cándido0991 233001

Villaverde, Silvino0992 396855

Empedrados y adoquinados

Santacruz, Pablo Ing0981 105004

Fumigación

Herrera, Cristino0981 976488 / 0984 894128

Herrería / estructuras metálicas

Arzamendia, Hugo0981 126471

Bordón, Marcial0971 277041

Bracho, Javier0981 879749 / 0985 464491

Cazal, Mario0982 878501

Delvalle, Christian0981 853884

Garcete, Palermo0981 965660

Herrera, Edgar0982 272468

Maldonado, María Estela0981 561631

Orrego, Cándido0984 958981

Hojalatero

Cazal, Alexis0981 343423

Hornos, chimeneas, estufas, parrillas, tatacuá

Acevedo A., Patricio 0981 412542

Caballero, Rodrigo0981 257702

Vázquez, Ever0981 655799

Impermeabilización

Duarte, Eleno0983 338939

López, Ramón0981 569767

Marín, Dionisio0983 731450

Martínez, Braulio0981 193232

Ramírez, Amado374276 / 0981 485609

Velázquez, Santiago0981 843738

Jardineros

Aguilera, Gabriel0985 101795

Basualdo, Javier0982 311208

Duarte, Tomás0985 941909

Villaverde, Silvino0992 396855

Limpieza de patios

Bentrom, Román991255

Herrera, Cristino0981 976488 / 0984 894128

Riveros, Mario0985 887621

Mesadas de cocina / bañoMarmolería

Jimenez, Miguel Angel0981 541146

Montaje de transformadores y motores

Benítez, Genaro0981 496837

Díaz, Carlos572156 / 0982 464967

Mancuello, Fernando0991 201918

Morales, Gustavo0981 893881

Motoserrista

/ poda de árboles

Basualdo, Javier0982 311208

Bentrom, Román991255

Duarte, Tomás0985 941909

Riveros, Mario0992 993007 / 0985 887621

Muros verdes / jardines verticales

Arzamendia, Hugo0981 126471

Perforación de Pozo Artesiano

Escobar, Carlos644497/ 0971 357473

Pilotes

Ferrari , Fernando424827 / 0981 488666

Pintores

Amarilla, Ángel942329 / 0983 366647

Areco, Lucio0981 765896

Armando, José0995 639335

Ayala, Julio César0981 408638

Bogarín, Héctor0985 959921

Borja, Francisco0991 820078

Bruno, Alejandro0994 314460

Careaga, Víctor373410 / 0971 936858

Cazal, Alexis0981 343423

Garcete, Palermo0981 965660

Gauto, Miguel0981 938415

Giménez, Hernando 0981 419674

Giménez, José 0993 353888 / 0981 604638

Giménez, Leonardo0981 530453

Godoy, Pedro0981 596914

González, Aníbal0985 222147

Herrera, Edgar0982 272468

Ibarra, Jorge0961 842883

López, Ramón0981 569767

Marín, Dionisio0983 731450

Martínez, Diego0984 560 841

Medina, Germán0982 320250

Mereles, Néstor0985 653204

Miranda, Félix 0981 514763

Morínigo, Miguel973372 / 0981 474261

Noguera, Higinio0981 564472

Ojeda, Darío0971 223440

Oviedo, Richard0981 291070

Paniagua, Derlis0981 182465

Ramírez, Amado374276 / 0981 485609

Ramírez, Ladislao0981 766680

Reyes, Luis0981 231612

Riveros G., Carlos0981 521771

Riveros, Mario0992 993007 / 0985 887621

Rojas, Bernardo302692 / 0981 531143

Romero, Melchor0983 470631

Sosa, Edgar0984 928914

Vallejos, Cándido0991 233001

Pintura texturada

Arévalos, Alberto0971 208038

Giménez, Hernando0981 419674

López, Ramón0981 569767

Morínigo, Miguel973372 / 0981 474261

Piris, Crispín0982 360759

Piscinas - Construcción y reparación

Caballero, Rodrigo0981 257702

López, Enrique0972 215229 / 0982 301956

Martínez, Diego0984 560 841

Russo, Walter0991 789561

Urbieta, Mónica0981 476743

Piscinas - Limpieza y Mantenimiento

López, Enrique0972 215229 / 0982 301956

Moragas, Carmelo0985 268497

Moragas, Modesto0971 239680

Noguera, Higinio0981 564472

Piseros

Benítez, Alfredo0981 520214

Benitez, Antonio0981 945353

Bogarín, Lidio0971 947177

Bruno, Alejandro0994 314460

BOLSA DE SUBCONTRATISTAS Revista Mandu’a - 67

BOLSA DE SUBCONTRATISTAS

Caballero, Rodrigo0981 257702

Fernández, José0982 627836

Giménez, Leonardo0981 530453

Godoy, Eladio 0983 333622

González, Benito0982 248256

Jiménez, Antonio0981 660190

Maciel, Milciades0981 943482

Martínez, Diego0984 560 841

Medina, Antonio0983 247516

Moragas, Carmelo0985 268497

Noguera, Higinio0981 564472

Palacios, Leonardo0983 207676

Rando, Gerardo0985 766 650

Riveros, Carlos 0981 521771

Rojas, Juan0971 950157

Samaniego,Jorge0982 986 757 0994 759925

Pisos técnicos (sobre elevados)

Agüero, Benjamín0985 740977 Plomeros

Agüero, Benjamín0985 740977

Aguilera, Gabriel0985 101795

Alcaráz, Andrés0971 956096

Altamirano, Vicente0981 851077

Báez, Raimundo0981 609001

Bracho, Javier0985 464491

Caje, Rodolfo A.0984 234423

Cazal, Mario0982 878501

Chávez, Jorge0981 823284

Escobar, Carlos0971 357473

Fariña, Antonio0971 231175

Ferreira, Gustavo0981 881211

Garcete, Palermo0981 965660

Giménez, Pablo0981 951645

Herrera, Edgar0982 272468

Hucedo, Carlos0982 178592

López, Víctor M.0971 760390

Medina, Alfredo0981 468756

Medina, Germán0982 320250

Moragas, Carmelo0985 268497

Moragas, Victorino0981 892513

Noguera, Higinio0981 564472

Núñez, Cayo0983 404670

Ortiz, Vidal509475

Paniagua, Derlis0981 182465

Rando, Gerardo0985 766 650

Riveros G., Carlos0981 521771

Riveros, Mario0992 993007

Romero, Melchor0983 470631

Ruíz, Carlos0981 896430

Vallejos, Cándido0991 233001

Villalba, Javier0985 491498

Villaverde, Silvino0992 396855

Ploteo de planos

Coronel, Renzo0986 656577

Prevención contra incendios

Caje, Rodolfo A.0984 234423

Manchini, César0981 245725

Proyecto arquitectónico

Abbate, Alejandra0982 886227

Aponte, Andrea0971 190781

Arnedo, Ana Arq0981 655014

Coronel, Renzo0971 362856

Fernández, María Arq0981 932043

Martínez, Liz Arq0981 926697

Nuñez, Andrea0982 170442

Pérez, Rafael0981 476743

Pulidor de parquet

Fernández, José0982 627836

Caballero, Rodrigo0981 257702

Fernández, José0982 627836

Refrigeración / AA / heladeras

Brítez, Santiago0981 117524

Galarza, Ramón0981 230273

Hucedo, Carlos0982 178592

León, Cañete0983 800938

Ruiz, Carlos0981 896430

Sartorio, Jorge 0981 939172

Reparación / instalación de electrobombas para pozos

Escobar, Carlos644497 / 0971 357473

Moragas, Carmelo0985 268497

Restauración de muebles

Aparici, Mari0981 500065

Montanía, Higinio0981 530480

Retiro de escombros

Paredes, Oscar0981 486756

Revoque exterior en altura balancinero

Benítez, Silverio0982 787131 0971 681339

Seguridad industrial

Manchini, César0981 245725

Seguridad ocupacional

López, Angélica0981 129715

Mendoza, Ludwin0982 568046

Servicios informáticos Compra - Venta

Cabrera, Arnaldo0981 334508

Tasaciones urbanas y rurales

Sotomayor A, Edgar Arq0981 818880

Termocalefones - Instalación y mantenimiento

Moragas, Carmelo0985 268497 Moragas, Victorino0981 892513

Topógrafos

Guillén, Fabio0981 973903

Kuebler, Edwin0991 393727

López, Juan Manuel Ing0981 433805

Recalde, César 0981 170159

Trabajos en autocad

Ferreira, José0981 915492

Jacobo, Nora0971 534417

Maciel, Shirley0981 249598

Maidana, María B.0991 988215

Martínez, Liz Arq0981 926697

Montiel, Gustavo0982 488928

Navarro, Eduardo0972 265312

Quintana, Jorge0981 426037

Recalde, César 0981 170159

Robledo, Gustavo0981 939512

Toledo, Milena0981 201561

Ventilación industrial

Ojeda, Hugo0981 868289

Vidriero y polarizados

Laneri, Gabriel0981 787717

0981 454665

Vitrales

Astigarraga, M. Teresa0981 460109

- Revista Mandu’a 68
Rafael Brito de Lima / LV Obras

Mandu’ara

*Lista de precios de materiales y servicios de la construcción ordenada por orden alfabético. Los precios incluyen el I.V.A. Todos los valores incluidos en esta edición son meramente indicativos, siendo los mismos resultando de un análisis de los precios los vigentes en el mercado. Mandu’a no se hace responsable de los mismos. INDICE

69 - ABERTURAS

70 - ACOND. DE AIRE

70 - ALAMBRES

70 - ALQUILER Y VENTA DE EQUIPOS Y MÁQUINAS

74 - AISLANTES ACÚSTICOS

74 - AISLANTES TÉRMICOS

74 - ASCENSORES

74 - CAL

75 - CÁLCULO ESTRUCTURAL

76 - CARPINTERÍA DE ALUMINIO

76 - CEMENTO BLANCO

76 - CEMENTO GRIS

77 - CERÁMICA ROJA

77 - CERCO ELÉCTRICO

77 - CONDUCTORES ELÉCTRICOS

78 - CLIMATIZACIÓN

78 - CONSTRUCCIÓN EN SECO

78 - CORTINAS

78 - CHAPAS

Madera

Puerta placa

De 0,60 - 0,70 y 0,80 m

79 - CIELORRASOS

79 - CONTENEDORES

81 - DIVISORIAS

SANITARIAS

81 - DRENAJES

82 - ELECTRICIDAD

82 - ESTRUCTURAS

83 - ESTUDIO DE ARQ. & CONSTRUCCIÓN

83 - FERRETERÍA

83 - FUMIGACIONES

83 - FUNDACIONES

83 - GAVIONES

83 - HERRAMIENTAS

83 - HERRERÍA

84 - HERRAJES

84 - HIDRÓFUGOS

84 - HIERROS

84 - HORMIGÓN

85 - IMPERMEABILIZANTES

85 - LABORATORIO DE ENSAYOS

86 - LOSA PREFABRICADA

ABERTURAS

De cedroun350.000

De eucalipto/cupayun180.000

De 0,90 m

De cedro

un380.000

De eucaliptoun220.000

Puertas con cabezal recto

Tablero standard de eucaliptoun950.000

Vidriera cuadrille

Vidriera sencilla

m2450.000

m2350.000

m2300.000 Lisam2220.000

Tablero, punta diamante moldura c/ cedro de 1ram21.550.000

Ventanas

86 - MÁRMOL Y GRANITO

86 - MAMPARAS

87 - MALLA ELECTRO

SOLDADA

87 - MEMBRANAS

ASFÁLTICAS

87 - MEMBRANA LIQUIDA

87 - METAL DESPLEGADO

87 - PERFILES

87 - PIEDRAS

88 - PILOTES

88 - PINTURAS

89 - PISOS Y REVESTIMIENTOS

90 - PISOS SOBREELEVADOS

90 - PISOS VINÍLICOS

90 - PORTONES A CONTROL REMOTO

90 - PLANOS

91 - PUERTAS AUTOMÁTICAS

91 - REVESTIMIENTOS ACÚSTICOS

93 - SEGUROS

93 - SELLADORES

93 - TERMOCALEFONES

93 - TOPOGRAFÍA

93 - VARILLAS

93 - VIDRIOS

m2450.000

vidriera cuadrillem2350.000

vidriera sencillam2220.000 Marco de yvyrapyta : cepillado, lijado y con 1 rebaje

De 15 cm, rectoml55.000 Metálicas Puerta ciega 2.10m de alto De 0.80 mun530.000

MANDU’ARA
Revista Mandu’a - 69

De 0.90 mun560.000

Puerta placa 2.10m de alto

De 0.80 mun430.000

De 0.90 mun445.000

Ventana corrediza con reja 1.10m de alto

De 1.20 m anchoun500.000

De 150 m anchoun515.000

Ventana corrediza con reja 0.76m de alto

De 1.20 m anchoun460.000

De 150 m anchoun480.000

Ventana proyectante con reja 0.60 x 0.40mun160.000

Balancín 0.60 x 0.40mun105.000

ACONDICIONADORES DE AIRE

Tejido de Alambre Romboidal x m2

Postes de madera

Yvyrapyta - Altura 2,20 m

01De 2x3”un14.850

02De 3x3”un17.820

Postes de hormigón (ver rubro Prefabricados)

ALQUILER Y VENTA DE EQUIPOS Y MÁQUINAS

grun11.000

De 410 grun58.000

Adhesivo Epoxi aralbras

Estructural 4kgun118.000

Nautico 2kgun325.000

Liso

01Nº

MANDU’ARA ALAMBRES
17/15,
1000mun780.000
12,
01Acerado Nº
rollo
02Galvanizado Nº 9,
14kg17.000
20kg16.800
03Galvanizado Nº
atar
18kg18.000
04Negro de
De púa
rollo de 400un300.000
16,
Equipos por día 01Alisadora
02 Amoladora
cortadoras para cerámica de 9” (Bosch) 66.000 03 Andamio ER (alt. 1,50 largo 1.80 - ancho 1.10 mts ) 3.960 04 Andamio Acrow (alt. 1,85 largo 2.50 - ancho 1.20 mts ) 4.180 05Aparejo con roldana 22.000 06Balancín para trabajo en altura 38.500 07 Bomba de agua sumergible de 1 HP monofásica134.000 08 Bomba
HP monofásica176.000 09 Bomba
de 2 - 3 - 4 y 5 HP trifásica242.000 10Carretilla 37.500 11Carro cuna 29.150 12Cerco metálico - altura 2,10m - largo 2,40m 5.000 13Cinturón de seguridad de cuero o nylon 11.000 14Compresor de aire de 140 lt o 200 lt 550.000 15Cortadora de hormigón 310.000 16Escalera doble de madera (3-3.5-4-4.5 mts) 29.700 17Escalera extendible de aluminio 48.300 18 58.300 19Escalera para andamio 18.000 20Estabilizador para módulos3.125 21 Generador de corriente monofásica -5 y 6 KVA 198.000 22Hidrolavadora 110.000 23Hormigonera 90 lts monofásica66.000 24Hormigonera 130 lts monofásica88.000 25Hormigonera 400 lts monofásica137.500 26Hormigonera 400 lts trifásica137.500 27 Mangote para Hº 35 mm 55.000 28Martillete eléctrico de 11 kg. 198.000 29Martillete eléctrico de 16 kg. 230.000 30Martillete eléctrico de 30 kg. 330.000 31Motobomba de agua naftera 5 HP 149.600 32Motobomba de agua naftera 6,5 HP 149.600
80
de H° (Honda-Lifan)192.500
o
de agua sumergible de 1,5 o 2
de agua sumergible
ADHESIVOS Brascola/Casarino De
- Revista Mandu’a 70

33Policorte Maxicorte p/ disco de 12 “ 121.000

34Prolongador tipo industrial trifásico15.500

35Puntal metálico de 3 m

36Puntal metálico 4 mts

37Rodillo compactador

38Roto percutor especial Bosch

39Roto Percutor chico Bosch

40Rueda para andamio3.125

44Tablón

47Destornillador154.000

48Vibrador de Hº Aº con motor separado107.800

49Vibrador portatil c/ mangote de 35mm y 3,5 mts BOSCH

Máquinas

01Camión volquete eje sencillo, 5 Tnh150.000

02Camión volquete eje sencillo 10 Tnh300.000

03 Camión volquete hasta 15 Tnh450.000

04 Camión grúa con carreta hasta 8 tnh375.000

05Pala cargadorah325.000

06Retro palah275.000

07Minipala (BOBCAT)h200.000

08Minicargador c/ operadorh 165.000

09Montacarga trifásico de 3,5 y 5 HPh108.000

10Retro sobre orugah450.000

11Compactador pata de cabrah375.000

Calidadygarantíaentodosnuestrosservicios. Asesoramientoprofesionalpersonalizado. Excelenteatenciónalcliente.

Corochiré4065 c/Cap.JowVonSastrow (ZonaMultiplazaKm5) As.Py

MANDU’ARA
300
400
980.000
217.800
148.500
de madera p/ andamio 2.900
de metal p/ andamio 4.400
45Tablón
60.500
46Taladro Chico
88.000
RNNGE renta ALQUILERDEEQUIPOSPARALA CONSTRUCCIÓN AndamiosMartilleteVallados
(0987) 218 980 (021) 505 900 ® S.A.E. Maquinas Confiables SO9001 SYSTEM CERT FICATION Venta y Alquiler de Equipos para Obras Revista Mandu’a - 71
-
72
MANDU’ARA
Revista Mandu’a
MANDU’ARA Revista Mandu’a - 73

Pro

AISLANTES TÉRMICOS

Arcilla

MANDU’ARA AISLANTES ACÚSTICOS CASARINO
ASCENSORES ARENA Y TIERRA Arena lavada m³m³65.000 Arena lavada, carga de 5m³un325.000 Arena refractariakg2.750 Tierra gordam³64.000 Tierra gorda, carga de m³un320.000 CAL Inpacal 01 Cal hidratada azul, 20 kg un25.500 02 Cal triturada, 40 kg un45.000 03 Cal viva molida, 20 kg un24.500 MARSTA E.A.S. 021 421 031 - 021 482 268
Alpine 30mm - 49 x 49 cm42.500
Piramide 30mm - 49 x 49 cm49.000
Alpine 30mm - 61 x 61 cm141.398
Poliestireno Extruido 1,20m x 60cm88.000 Lana de roca s/alu 1,20m x 8m x 50mm530.000 Placa Ondusec 1,20m x 2,40m96.500 Espuma de Polietileno 20m2
alu 5 mm394.500 Doble alu 10 mm532.000 Aluminizado 5 mm125.000 Aluminizado 10 mm220.000 Poliestireno Extruido 1,20m x 60cm88.000
Pro
Premiun
Placa
Doble
Expandida
de 50lts - diametro 20mm74.500 3222 de 50lts - diametro 30mm 74.500 - Revista Mandu’a 74
2215

CÁLCULO ESTRUCTURAL

CAÑOS Y ACCESORIOS

PVC - Tubos de 6 m

Tubo liviano para desague (blanco)

De 40 mmun44.700

De 50 mmun67.500

De 75 mmun144.000

De 100 mmun155.000

De 150 mmun363.500

Tubo cloacal blanco

De 100 mmun84.000

De 150 mmun294.000

Tubo roscable blanco agua fría

De 1”un167.000

De 3/4”un77.000

De 1/2”un59.000

Tubo soldable p/ 10kg

De 32 mm,un57.000

De 25 mm,un30.000

De 20 mm,un21.000

Tubo para agua caliente, roscable, 4 capas

De 1/2”un62.000

CODOS PVC

Codo PVC para desagüe primario

De 50 mm x 45°un4.000

De 50 mm x 90°un4.500

De 100 mm x 45°un9.450

De 100 mm x 90°un11.150

Codo PVC para el desagüe secundario

De 40 mm x 45°un1.600

De 40 mm x 90° (buje largo)un1.550

Caja sifonada cuadrada con rejilla inox

100 x 100 x 50/40 mmun46.800

150 x 150 x 50 mmun72.000

150 x 185 x 75 mmun119.000

Accesorios PVC Alma doble roscable 1/2”un875

Anillo de sellado p/ desague 50mmun2.900

Anillo de sellado p/ desague 75mmun4.600

Anillo de sellado p/ desague 100mmun5.000

Buje largo reducción p/ desague 50x40 mm un2.450

Buje corto soldable 50x40 mmun4.170

Codo 90° roscable 1/2”un1.660

Codo reducción 90° roscable 3/4”x 1/2” un3.350

Desengrasador 250 mm salida 50un67.000

Desengrasador 250 mm salida 75un98.000

Prolongador p/desengrasador 250x200 mm un39.000

Prolongador p/caja sifonada 150x150 mmun7.950

Ramal Y 40 x 45 p/desague secundarioun6.000

Ramal “Y” 100x50 mm p/desagueun16.500

Ramal “Y” 100x100 mmun28.500

Tapon macho roscab p/desague secund de 1/2” un690

Tee roscable de 1/2”un2.600

Tee 3/4” a 1/2” IPSun3.400

Tee 40x40 mm x 90° p/ desague primario un4.000

Tee 50x50 mm x 90° p/ desague primario un7.100

Tee 100x100 mm x 90° desague primario un18.700

Tubo de descarga de EXTERNA p/cisternaun13.500

Tubo de descarga embutida ASTRA p/ cisterna un15.300

Tubo desague plástico Astra p/ lavatorioun14.000

Tubo descarga externa Astra p/ lavatorioun17.300

Union sencilla roscable 1/2”un1.700

Hierro galvanizado - caños de 6ml

De 1/2”un163.000

De 3/4” un214.000

De 1”un342.000

De 1 1/4”un392.000

De 1 1/2”,un482.000

De 2”un670.000

De 2 1/2”,un827.000

Accesorios hierro galvanizado

Alma doble 1/2”,un7.700

Alma doble 3/4”,un10.000

Buje 3/4” x 1/2”,un8.100

Buje 1/2” x3/8”,un7.740

Codo 1/2” x 90° MH,un7.700

Codo reducción 3/4”x 1/2”,un9.800

Curva transposición 1/2”x 1/2”un18.000

Tapón macho 1/2”,un7.000

Tee 1/2” x 90°,un6.150

Tee reducción 3/4” x 1/2”,un18.610

Unión doble plana 1/2”,un19.700

MANDU’ARA
Revista Mandu’a - 75

Unión reducción 1/2 x 3/8”un10.700

Unión sencilla 1/2”,un8.530

Columnas de hormigón para tendido

01De 6,00 m/150un479.799

02De 7,50 m/150un727.591

03De 7,50 m/200un727.591

04De 9,00 m/150un1.165.660

CARPINTERIA DE MADERA

Muebles de cocina

Alacena colgante con puertas placas lisas, revestido exterior con formica; herrajes y colocaciónml850.000 Idem anterior mueble bajo mesada

Alacena colgante con puertas placas lisas, revestido exterior en cedro interior en cupay, lustre natural herrajes y colocaciónml1.250.000

Placares

Con puertas placas lisas, exterior cedro, interior cupay, lustre natural, herrajes, interior revestido, cajones, estantes y colgadores , colocados

MANDU’ARA
CARPINTERÍA
ALUMINIO
DE
CEMENTO GRIS 01 Yguazú, 50 kg bls 55.000 CEMENTO BLANCO 01 Cemento blancokg5500
ml1.200.000
Idem anterior mueble bajo mesada ml1.500.000
ml1.450.000
- Revista Mandu’a 76

CERCO ELÉCTRICO

Cerco eléctrico de 4 hilos con hastes de hierro 5/8”

01 De alambre de 0,70 mm ml12.000

02 De cabo de acero de 1,6 mm ml24.000

Cerco de cuchillas galvanizadas colocado

01 Tipo medialuna ml38.000

02 Tipo circular 8 puntas diam. 30 cm ml44.000

03 Idem anterior de diam 45 cm ml49.000

04trol remoto, sirena, con instalación un850.000

CERÁMICA ROJA

CONDUCTORES ELÉCTRICOS

Aislación en PVC antillama 70oC

CABLES O CONDUCTORES INPACO Precios por metro IVA incluido

Sección mm2 Alambre PVC Cable PVC Inpacord 2 conductores

Inpaplomo 2 conductores Inpaplomo 3 conductores

0,509931.0521.0882.1462.5633.683 0,751.3881.4111.5082.9783.4214.988 1,00 1.6981.7801.8353.7324.5156.657 1,502.4322.5972.7435.0405.9638.926 2,003.1293.4033.5366.5897.78411.637 2,503.8894.0584.3818.1189.49214.208 4,005.9646.4346.80512.63614.25621.351 6,008.7789.3249.77818.46220.51930.963 10,0015.57315.48516.409-37.67756.627

MANDU’ARA
Revista Mandu’a - 77

EN SECO

CASARINO

01 Ondusec 1 x 2,4 m un96.500

02 Poliestireno Extruido - placa 0,60 x 1,20 m un88.000

03 Lana de roca s/ alu, 8 x 1,20 m x 50 mm un530.000

CORTINAS

Persianas & Cortinas

(021) 906 951/2 - (021) 328 0572/3

TEL.: 021 906 951 - CEL.: 0971 543 246

CEL 0971 543 246

CDE: 061 570 501

CHAPAS

Chapa Galvalume por metro

Chapa termoacústica en medidas estandar 01de 3,66 munU$S

Policarbonato

Metálicas

ZINC Aluminizada de 0,90 cm ancho (Cincalum)

Chapa Ondulada No 28

01De 8 pies (2.44m largo)un109.000

02De 12 pies (3.66m largo)un136.000

TEL.: 021 906 951

CEL.: 0971 543 246

(021) 906 951/2 (021) 328 0572/3

CDE: 061 570 501

CEL 0971 543 246

ventas5@mvaceros.com.py

MANDU’ARA CLIMATIZACIÓN CONSTRUCCIÓN
01Nº 29mU$S 3,22 02Nº 28mU$S 3,64 03Nº 27mU$S 4,32
m,unU$S 74,56 04de
93,21
55,92 02de 4,27 munU$S 65,25 03de 4,88
6,10 m,unU$S
88.000 02Mano de obra, colocaciónm2 66.000 03 Estructura metálica con caño 20x30” p/ montaje del policarbonato m2 99.000
01Alveolar 6 mmm2
+(595) 974 502 500 +(595) 986 174225 CALIDAD DE ACEROS PARA SUS OBRAS www.mvaceros.com.py CHAPAS TERMOACÚSTICAS CHAPAS TRAPEZOIDALES CHAPAS ONDULADAS CHAPAS COLONIALES ÁNGULOS PLANCHUELAS BABETAS FRONTAL Y LATERAL PLANCHUELAS VARILLAS IPN > UPN PERFILES PLEGADOS PARA PUERTAS ARTÍCULOS DE FERRETERÍA CAÑOS CHAPAS LISAS
- Revista Mandu’a 78

CIELORRASOS

Tabla y puntales para encofrado

Tabla de eucalipto de 1”pulg/m600

Puntal de eucalipto de 3x3”pulg/m650

Tirantesde ybyrapyta / kurupa’y

1,0 -1,9 mpulg/m2.800

2,0 -2,9 mpulg/m2.900

TEL.: 021 906 951

(021) 906 951/2

3,0 - 3,9 mpulg/m3.400

CEL.: 0971 543 246

(021) 328 0572/3

4,0 - 4,4 mpulg/m3.500

4,5 - 4,9 mpulg/m3.700

CEL 0971 543 246

CDE: 061 570 501

5,0 - 5,9 mpulg/m3.800

6,0 - 6,9 mpulg/m4.200

Machimbres

De eucalipto 1/2 x 3”m237.000

De pino 1/2 x 4” m239.000

De eucalipto 1 x 4”m275.000

CONTENEDORES

DEPOSITOS DE MADERA

Alfajias , cepilladas

Ybyrapyta hasta 2 m de largo ml10.000

Eucalipto hasta 2 m de largo ml7.000

Vigas pulg2/m - De ybyrapyta

1,0 - 1,9 mpulg/m4.500

2,0 - 2,9 mpulg/m4.500

3,0 - 3,9 mpulg/m4.700

4,0 - 4,9 mpulg/m5.000

5,0 - 5,9 mpulg/m5.500

6,0 - 6,9 mpulg/m

DEPÓSITOS DE MATERIALES

Ladrillos Ladrillo común Tobatí,un650

Prensado 3 agujeros Ita yvy de 1a, 5x11,5x23,5 cm un946 Laminado rústico Ita yvy de 1a, 5x11,5x23,5 cm un825

Laminado Yoayu de 1aun1265

MANDU’ARA
Revista Mandu’a - 79

Yoayu laminadito 5x11 x 23 cmun949

Prensado 3 agujeros Yoayu de 1a, 5x11,5x23,5 cm un1.044

Ladrillo hueco

De 6x12x25 cm, 2 caras vistas, 3 tubos, 52 un x m2,

Yoayu de 1ra A,un904

Ita Yvy de 1ra A,un1.012

Ita yvy de 1ra B,un792

De 8x18x25 cm, 6 tubos, 20 x m2

Ita Yvy de 1ra A,un1.177

De 12x18 x25 cm, 6 tubos, 19 o 28 un x m2

Ita yvy de 1ra Aun1.298

Ita Yvy de 1ra B un1.254

Yoayu de 1raun1.404

Yoayu de 1ra requemadoun1.278

De 18x18x25 cm, 9 tubos , 20 un x m2

Ita Yvy de 1ra Aun2.200

Ita Yvy de 1ra B un1.716

Ladrillo estructural

Ita Yvy 14x19x14 cmun1.661

Ita Yvy 14x19x29 cmun2.937

Ita Yvy 14x19x45 cmun4.543

Ladrillo sapp de 1a - H5- 12 un x m27x30x25 cm

Ita Yby un1.606

Yoayuun1.860

Ladrillo laminado recto - 6x12x25 cm, 52 un x m2

Irene 1ra Aun1.155

Yoayu laminadito 5x11x25 cmun949

Ladrillo laminado curvo, 15 un x ml

Irene de 1ra un1.950

Yoayu de 1ra Bun2.169

Ladrillo convoco, recto o inclinado 25un x m2

Ita Yvy 19x19x11 cmun2.013

Irene, 18x18x12 cmun2.650

Irene, 25x25x12 cmun4.555

Yoayu 19x19x10 cmun2.644

Ladrillejos 52 un x m2

Yoayu 1ra un765

Yoayu 2da un626

Ladrillo refractario 30 un x m2 , 6x12x25 cm

Ita Yvy de 1raun5.071

Yoayu 1ra un6.148

Ladrillo klinker 44 un x m2 , 10x20x3,5 cm

Ita Yvy de 1raun1.804

Yoayu 1ra un2.397

TEJAS

Teja española prensada de 1ra Yoayu-26 un x m2

De 1ra Aun1.809

De 1ra Bun1.682

De 1ra fogueadaun1.455

De 1ra requemadaun1.328 De 2daun1.328

De 1ra A extrusadaun1.303

Teja ROMANA o portuguesa YoayuDe 1ra Aun2.277

Tejuelones - 9 un x m2 Yoayu de 1ra

Yoayu de 1ra

Ita Yvy de 1ra

Ita Yvy de 1ra Bun2.046

Tejuelitas - 30 un x m2

Ita Yvy de 1ra Bun473

Yoayu 1ra Bun658

Layotas

De 18x18 cm, 28 un x m2

Yoayu 1raun582

De 30x30 cm, lisa, 10 un x m2un

Ita Yvy de 1ra un1.914

Ita Yvy de 1ra B un1.760

De 30x30 cm, rugosa, 12 un x m2un

Ita Yvy de 1ra un1.969

Ita Yvy de 1ra B un1.826

De 28x28 cm, lisa, 12 un x m2

Yoayu de 1ra Aun1.666 Yoayu de 1ra B

Ita Yvy de 1ra B un1.452

De 28x28 cm, rugosa, 12 un x m2

MANDU’ARA De 1ra Bun2.024
FRANCESA
De
Bun2.720 De 2DAun1.898
Bun2.321
Teja
Yoayu-
1ra
Aun2.574
Aun2.288
un1.540
un1.573
Ita Yvy de 1ra
- Revista Mandu’a 80

Yoayu de 1ra Aun1.666

Yoayu de 1ra B antideslizanteun1.540

Ita Yvy de 1ra un1639

Ita Yvy de 1ra B un1.518

Zocalos de layota de 1ra A -10 cm de ancho

Yoayu de 28 cmun2.530

Ita Yvy de 1ra - 28 cmun2.233

Ita Yvy de 1ra B- 28 cmun1.507

Varios

Plástico para techo 200 micrones m24.000

Pileta granÍtica - 1 bacha 1,00x0,50 mun95.000

Pileta granÍtica - 2 bacha 1,40x0,50 mun125.000

Cascotillo cerámicom3

Asfalto para aislación 3,6 ltun60.000

Poste de Karandayun120.000

DIVISORIAS SANITARIAS

DRENAJES

MANDU’ARA
CASARINO 01Manta geotextil 200 g (Casarino)m2 12.000 TEL.: 021 906 951 CEL.: 0971 543 246 CDE: 061 570 501 (021) 906 951/2 (021) 328 0572/3 CEL 0971 543 246 Revista Mandu’a - 81

ELECTRICIDAD

Columna de entrada (Materiales varios)

01Aislador roldana B.T. 72x72mm,un3.000

01Aislador retención 0,50un3.500

02Bulón p/ madera 3/8 x 3”un1.000

03Caño de acero ¾” x 3 m,un8.500

04Caño de acero 1” x 3 m,un15.000

05Caño galvanizado 2” x 5,8 m,un125.000

06Caño galvanizado 2 ½” x 5,8m,un210.000

07Cruceta p/ pre emsamblado 2” monofásicaun3.000

08Cruceta p/ pre emsamblado 2 ½” Trifásica.un3.500

09Curva galvanizada 1 ¼”,un8.500

10Fondo de madera monofásico,un6.000

11Fondo de madera trifásico,un6.000

12Tapa monofásica Ande,un8.500

13Tapa trifásica Ande,un10.000

14Unión reducción 2” x 1”,un9.500

15Unión reducción 2 ½” x 1 ¼”,un11.500

16Curva galvanizada 1”,un24.970

Cinta aisladora

01Cinta auto soldable 3M 19mm x 2 mtsun7.500

02Cinta aisladora Millión 19mm x 2 mtsun5.500

Tablero de embutir transparente

01Para 8 TM,un25.000

02Para 12 TM,un31.500

03Para 24 TM,un80.000

Llaves termo magnéticas

Unipolares

01Disyuntor TM 1x 10A, DINun8.000

02Disyuntor TM 1x 40A, DINun10.500

03Disyuntor TM 1x 50A, DINun10.500

Tripolares

01Disyuntor TM 3x 20A, DINun28.000

02Disyuntor TM 3x 32A, DINun28.000

03Disyuntor TM 3x 40A, DINun30.000

04Disyuntor TM 3x 63A, DINun30.000

Caño corrugado nacional

01De 1/2”,m290

02De 5/8”,m365

03De 3/4”,m465

04De 1”,m590

Caño plástico negro nacional (electroducto)

01De 3/4”,m890

02De 1”,m1.290

Varios

01Apliques desdeun80.000

02Arañas desdeun150.000

03Faroles desdeun100.000

05Caja de llave metal 4x2,un1.450

06Caja común americana p/ 1 TM,un8.850

07Caja común americana p/ 3 TM,un14.500

08Caja c/ riel Nº 1,un8.850

09Caja c/ riel Nº 3,un14.500

10Cinta nylon 30m (pasa cable),un19.800

11Jabalina cobre 5/8x2,00 m,un25.000

12Abrazadera p/jabalina 5/8 reforzado,un5.000

13Tapa ciega 4x4 llave doble blanca un2.000

14Tapa ciega p/ conexión blanca,un1.000

15Chicharra externa 220V Perlex,un12.500

16Interruptor diferencial 4x40A,un95.000

17Llave PANAN 25A p/ calefónun10.000

ESTRUCTURAS

TInglado Metálico

de HoAo

MANDU’ARA
conexión metal
04Caja de
3x3,un1.450
01Hasta 10 m de luz,m2 132.000 02De 10 m a 15 m de luz,m2 134.000 03De 15 m a 20 m de luz,m2 139.000 04De 20 m a 25 m de luz,m2 142.000 Tinglado
01Material + mano de obram2 280.000 - Revista Mandu’a 82

FERRETERÍA

01Balde albañil de plástico,un10.000

02Cemento de contacto,lt23.500

03Kerosene,lt10.000

04Masilla comúnkg15.000

05Solvente para cemento de contacto,lt15.000 Clavos

01Clavo con cabeza de plomo,un400

02Clavo de 2” a 5“,kg18.000

03Clavo 1/2’’ a 3/4’’kg25.000

FUMIGACIONES

01 Fenoina, insecticida y fungicida p/maderas (Casarino) LT. 32.000

GAVIONES

HERRAMIENTAS

HERRERÍA

Aberturas

Barandas de balcón

01De hierro sencilla 1,00m, pasamanos de 60x25mm en chapa doblada Nº14 colocación incluida dentro del radio urbano de Asunción

de hierro dibujada,

MANDU’ARA
ESTUDIO DE ARQUITECTURA & CONSTRUCCIÓN
m2 235.950 02Idem
m2 272.250 FUNDACIONES Revista Mandu’a - 83

Balancines sin colocación - A partir de 1 m2

01 Balancín fabricado con ángulo 5/8 y T 3/4x1/8, hoja de 0,20 m,

02 Balancín fabricado con ángulo 3/4 y T 7/8 x 1/8,

03Balancín

04Balancín

Cortinas metálicas de enrollar - A partir de 10 m2

01Fabricación y montaje de cortinas automatizadas con láminas de acero

02 Fabricación y montaje de cortinas manuales con láminas de acero galvanizado

03 Cubrerrollo de chapa N° 18 con puerta trampa

Escaleras

01Caracol diámetro 1,20 m, estructura de hierro con baranda, peldaños, con 1 mano antióxido y colocación incluida, por metro de altura,

02Escalera marinera

Parrilla

01Parrilla graduable de hierro enlozada con cenicero y carbonera de 1,20x0,50 m con tapa calor,

02 Campana de 1,20x0,60 m para parrilla con colocación,

03 Tubo de campana en chapa negra Nº 18,

Reja para ventana

01 Reja artística sencilla, con marco de ángulo de 3/4 x 1/8”, varilla de 10mm y dibujo rombo con planchuela de 3/4 x 3/16,

02Idem anterior reja artística dibujada, m2 253.000

Portones (ver Portón a control remoto)

HERRAJES

Varios

01Falleba de arrimar cromada,un25.500

02Ficha de 3 agujeros brasileña, reforzada,par9.000

03Ficha de 5 agujeros brasileña, reforzada,par10.000

04 Pasador a palanca de embutir cromado de 150 mm un18.000

05 Pasador a palanca de embutir cromado de 200 mm, un25.000

06Tirafondo galvanizado de 3/8x5”,un1.500

07Tornillo 1x7” caja de 144,un150

08Varilla de hierro para falleba de 1,20 m,un24.500

09Varilla de hierro para falleba de 1,50 m,un30.000

HIDRÓFUGOS

Pennsylvania

1Ceresita, 20 kg,kg6.150

Casarino

1De, 5 kgun29.500

HIERROS

HORMIGÓN

Hormigón Elaborado

* Comprende elaboración, transporte, bombeo, toma de muestras y rotura en laboratorio. Precios al contado

1Ho FCK 90m3680.000

2Ho FCK 120m3757.000

3Ho FCK 150m3787.000

4Ho FCK 180m3854.000

5Ho FCK 200m3874.000

6Ho FCK 210m3892.000

7Ho FCK 220m3899.000

8Ho FCK 240m3937.000

9Ho FCK 250m3947.000

13Ho FCK 280m3978.000

14Ho FCK 300m31.001.000

MANDU’ARA
m2 165.000
m2 231.000
cm, un 110.000
de 60x60
un 82.500
de 60x40 cm
m2 750.000
galvanizado
m2 650.000
ml 400.000
ml 858.000
ml 223.850
un 1.595.000
un 418.000
ml
78.650
198.000
m2
- Revista Mandu’a 84

IMPERMEABILIZANTES

Casarino

1Secomur (silicona transparente)Lt.16.000

2Emulsión asfáltica Novasfalt, 20 Lt.un225.000

3Tapagoteras 4 kgun137.000

HOJALATERIA

Chapa galvanizada

Canaleta embutida N° 24

Desarrollo 60 cm,ml145.000

Desarrollo 50 cm,ml110.000

Canaleta moldurada 40 cm

Chapa N° 24 ml90.000

Canaleta moldurada 33 cm

Chapa N° 26ml80.000

Chapa N° 28ml70.000

4Cementicio bi-componente, 25kg un240.000

LABORATORIO DE ENSAYOS

MANDU’ARA
Revista Mandu’a - 85

LOSA PREFABRICADA

Vigueta de Hº pretensado y ladrillo (Losa Rap)Puesto en obra

01De 0,50 a 4,80 m,m2

02De 4,90 a 5,90 m,m2

03De 6,00 a 7,60 m,m2

PreLosa pretensada y ladrillo Rap (PreRap 0,12x1,20 m) - Puesto en obra

01 Largo hasta 5,2 mm2

02Largo hasta 6,1 mm2 110.000

03Largo hasta 6,8 mm2 116.000

04Largo hasta 7,7 mm2 126.000

05Largo hasta 9,5 mm2 235.000

Vigueta de cerámica armada con cielo raso de hormigón visto incluido, a retirar de fábrica. (Listalosa)

Ancho = 20 cm / Altura = 10 cmm2 122.000

MÁRMOL Y GRANITO

Granito natural Espesor 2 cm

01Gris Corumbam2

02Verde Ubatubam2

03Amarillo, Oro, Doradom2

04Rojo, Negro, Lilam2

Mármol natural Espesor 2 cm 01Blanco veta

MAMPARAS

01Mampara ciegam2

MANDU’ARA
550.000
640.000
680.000
750.000
gris,m2 680.000
130.000
145.000
02Mampara vidriadam2
simple,un280.000
03Accesorios y herrajes p/ puerta
87.600
95.600
107.600
105.000
86
- Revista Mandu’a

TEL.: 021 906 951

(021) 906 951/2

CEL.: 0971 543 246

(021) 328 0572/3

CEL 0971 543 246

CDE: 061 570 501

MALLA ELECTRO SOLDADA

Garelli

1 De diámetro 4,2 mm, para cubrir 15 m2 un120.000

MALLA DE FIBRA DE VIDRIO

Casarino

Para refuerzo de revoques en rollo de 50 m²

5mm x 5mm x 75gr/m2373.000

5mm x 5mm x 110gr/m2426.500

10mm x 10mm x 110gr/m2426.500

3,17mm x 3,17mm x 55g/m2373.000

Tela tramada de poliester

P/ refuerzo de pintura y cementicios

Tela tramada 1m x 50m420.000

MEMBRANAS

Casarino

Casarino con Aluminio

ASFÁLTICAS

1De 3 mmm254.000

2De 4 mmm266.500

Casarino sin Aluminio

1De 4 mm60.500

2Bitumex base para membranaslt21.000

Super Flex con aluminio, Casarino

1De 36 kgm237.000

MEMBRANA LIQUIDA

01De 0,75 x 2,00 m,un13.000

PERFILES

PIEDRAS

Para fundaciones y hormigón

01Piedra bruta blancam3 150.000

02Piedra bruta blanca, carga 5 m3 un750.000

03Piedra triturada IVtn110.000

04Piedra triturada Vtn120.000

05Ripio, rojom3 70.000

06Ripio, negrotn95.000

Adoquin de Piedra

01Chico (130 un x m2, aprox)un1.300

02Mediano (90 un x m2, aprox)un1.300

03Grande (70 un x m2, aprox)un1.300

Piedra para borde de piscinas

01Borde Atérmico, 40x40cmml75.000

MANDU’ARA
Emacril Poliuretanico 770.000 Emacril Fibrado560.500
METAL DESPLEGADO
Ardosia 01
8 mm,m2 55.000 Revista Mandu’a - 87
Gris de

MANDU’ARA

PILOTES

PINTURAS

Para carpinteria

Barniz 3,6 l

1Mariner incoloro brillante, interior/exteriorun 121.000

2Mariner incoloro mate, interior/exteriorun133.000

3Penetrante secado rápido, 5 lt un 105.000

Para pared

LATEX para pared 21 kg

1Vinilatex interior blanco un133.000

2Vinilatex interior colorun160.000

3Vinilatex interior/exterior blancoun154.000

4Vinilatex interior/exterior colorun187.000

5Supercril interior/exterior blancoun 204.000

6Supercril interior/exterior color un280.000

7Supercril profesional lavable blancoun351.000

8Supercril profesional lavable colorun448.000

25 kg
2Exteriorun133.000 Para chapas 1 Bitumex 20 lt, impermeabilizante y anticorrosivo lt20.665 2 Alumitech 20 lt aislación térmica lt35.875 Membrana líquida para techos/terrazas/muros/chapas 1 un560.000 2 Emacril poliuretánico, blanco/rojo teja/ verde 20 kg un770.000
Enduído acrílico
1Interiorun121.000
Atacama 20lts escudo solar984.000 Alumitech 20lts 717.500
Negra de 10 mm,m2 65.000 03 Verde de 12 mmm2 75.000 Piedras para revestidos 01 m2 95.000 02 Laja gruesa (lajón), espesor 2 a 3 cm m2 95.000 03 Wasmosy, trabajadam2 65.000 Piedras para pisos
Losa blanca rompecabeza m2 33.000
roja cuadrada rústicam2 120.000 - Revista Mandu’a 88
SELLADORES Casarino
02
01
02Losa

PISOS Y REVESTIMIENTOS

Baldosas Calcáreas

Base Gris

01De 20x20, 15x30 o 25x25 cm,m2 40.000

03Zócalo 10x30 cmml19.000

Base Blanca

01 De 20x20, 15x30 o 25x25 cm, m2 40.000

03Zócalo 10x30 cmml20.000

Mosaico granítico para interior

Base Gris semi pulido

01De 30x30 cmm2 65.000

02De 40x40 cmm2 70.000

03Zócalo 10x30 cmml35.000

04Plancha o escalonesm2 400.000

Base Blanca semi pulido

01De 30x30 cmm2 75.000

02De 40x40 cmm2 80.000

03Zócalo 10x30 cmml40.000

04Plancha o escalonesm2 400.000

Mosaicos para exterior

Granito lavado

01De 30x30 cm, blancom2 58.000

02De 30x30 cm, negrom2 50.000

03Cargado en obra,m2 130.000

Mosaico granítico anti deslizante

01De 30x30 cm grism2 68.000

02De 40x40 cm grism2 73.000

03De 30x30 cm coloresm2 73.000

04De 40x40 cm coloresm2 80.000

Canto rodado

01De 30x30 cm, liso, amarillo/rojom2 40.000

02Zócalo 10x30 15x30 cmml20.000

03Cargado en obra,m2 110.000

Alto Tránsito - Antideslizante para exterior - Equipa

01De 30x30 cm, grism2 65.000

02De 40x40 cm, grism2 73.000

03De 30x30 cm, rojo ocrem2 68.000

04De 40x40 cm, rojo ocrem2 74.000

Vereditas

01 Vainilla 20x20, Ka’a, roja, negra, gris m2 40.000

Baldosones de Hormigón - Linea Gris

01De 40x40x2,5 cm,m2 37.000

02De 40x40x4 cm,m2 42.000

03De 40x40x4 cm, armadam2

04De 60x40x4 cm,m2

Bordes 40x40 cm

01Travertino o Naútico,ml93.500

02 Atérmico cargado in situml165.000

Varios

1Oxido rojo/amarillo,kg25.000

2Oxido negro/azul/verde,kg37.500

1Pastina griskg25.000

2Pastina blancakg37.500

Equipa

Piso Para Deck Ecológico Wpc

01Tabla 2,20 X 0,14mUn490.000.

02ColocaciónM280.000

03Cotonera De TerminaciónMl60.000

Ripado Para Revestido

01De 0,21 X 2,20 MUn180.000

02De 0,21 X 3 MUn250.000

Bordes atérmicos para Piscina

01De 40x40 (redondeado)ml60.000

02De 40x50 (pecho paloma)ml75.000

03Cargados en obraml85.000

04Baldosas atérmicas 40x40m2 60.000

MANDU’ARA
63.000
50.000
Revista Mandu’a - 89

PORTONES A CONTROL REMOTO

Incluye: motor, placa, mecanismo, accesorios, 2 x control remoto y colocación.

Para portón corredizo

01Hasta 3m de ancho, motor 1/4 HPun750.000

02Hasta 3 a 4,5m de ancho, motor 1/3 HPml1.200.000

03Hasta 4,5 a 6m de ancho, motor 1/2 HPun2.200.000

Para portón basculante

01Hasta 3m de ancho, motor 1/4 HPun980.000

02Hasta 3 a 4,5m de ancho, motor 1/3 HPml1.550.000

03Hasta 4,5 a 6m de ancho, motor 1/2 HPun1.850.000

Portones

PISOS SOBREELEVADOS

01

Portón fabricado en chapa plegada Nº 20 y caño cuadrado 30x30 con pasador portacandado, cerradura y 1 mano antióxido

02 Portón de reja fabricado en varilla cuadrada 3/8” y caño 30x30mm,

03Caja p/ portón basculante o corredizo,m2

04 Basculante en chapa Nº 20 lisa o plegada y caño 40x40mm,

05 Corredizo en chapa Nº 20 lisa o plegada y caño 40x40mm,

PLANOS

TEL.: 021 906 951

CEL.: 0971 543 246

(021) 906 951/2 (021) 328 0572/3

CDE: 061 570 501

CEL 0971 543 246

PISOS VINÍLICOS

TEL.: 021 906 951

CEL.: 0971 543 246

(021) 906 951/2 (021) 328 0572/3

CDE: 061 570 501

CEL 0971 543 246

MANDU’ARA
m2 242.000
m2 253.000
1.485.000
m2 258.500
m2 264.000 06Basculante de reja artística sencillam2 264.000 07Corredizo de reja artística sencillam2 286.000
- Revista Mandu’a 90

Hormigón pretensado, *Garelli puesto en obra Dinteles Garelli

De 10 x 18 cm , de 4,10 a 5 mml39.560

De 10 x15 cm, de 3,10 a 4 mml36.091

De 10 x 12 cm , de 2,10 a 3 mml32.984

De 10 x 10 cm, de 1 a 2 mml26.680

Postes Garelli

De 2,20 mun48.400

De 2,40 mun52.800

De 3,00 mun66.000

Tirantes 2 x 5” con cola de pato Garelli

De 1 mun35.000

De 2 mun70.000

De 3 mun105.000

De 4 mun146.000

De 5 mun182.000

Tirantes 2 x 5 recto Garelli

De 1,00 mun42.000

De 1,50 mun59.500

De 2,00 mun77.000

De 2,50 mun94.500

De 3,00 mun112.000

De 3,50 mun129.500

De 4,00 mun153.300 PREFABRICADOS DE HORMIGON

PUERTAS AUTOMÁTICAS

TEL.: 021 906 951 CEL.: 0971 543 246

061 570 501 (021) 906 951/2 (021) 328 0572/3

021 906 951

0971 543 246

0971 543 246

061 570 501 (021) 906 951/2 (021) 328 0572/3

SANITARIOS

MANDU’ARA
REVESTIMIENTOS ACÚSTICOS TEL.:
CDE:
CEL.:
CEL
CEL
CDE:
0971 543 246
Cerámicos Piso/Pared m234.000 m240.600 m242.600 Forte Havana white 31x31 cm, m244.400 Forte Havana white plus 31x31 cm, m247.000 m251.300 Porcelanato 60x60 cm, desdem2105.000 Revista Mandu’a - 91

Adhesivos para azulejos, ceramica y pisos

Pennsylvania impermeable.(B/20kg)kg1.198 kg2.575

Pastina

Pennsylvania univ.Siliconada castaño (1kg)kg9.702

Pennsylvania univ.Siliconada blanco (1kg)kg10.050

Piletas de acero inoxidable

Tramontina

De 0,80x0,50 m , 1 bacha, lado derechoun210.000

De 1,00x0,50x0,13 m , 1 bacha, lado derechoun276.000

De 1,00x0,50x0,13 m , 1 bacha centralun371.000

De 1,20 x 0,50x0,13m , 2 bachas,un485.000

Sopapa Astra,un Bañeras

De 1,60 x 0,70 x 0.40 m, acrílica,un1.400.000

De 1,70 x 0,70 x 0.40 m, acrílica,un1.600.000

De 1,80 x 0,80 m con hidro, ASTRAun9.200.000

De 1,70 m, italiana con hidro,un7.000.000

Botiquín

Astra embutido blanco A33-BR1un200.000

Astra de sobreponer, A34 - BR1un220.000

ASTRA 44 x 58 x 11 cm - colganteun560.000

Astra Brasilia LB12/S1un400.000 Grifería

Para baño

FV - Linea Allegro cromo

Ducha, 103/15,un1.050.000

Bidet , 295/15un884.000

Lavatorio, 207/15un765.000

FV - Clásica 20

Ducha, 103/20un811.000

Bidet, 293/20un639.000

Lavatorio, 207/20un636.000

FV - linea 61 - plus

Ducha, 103/61un958.000

Bidet, 295/61un829.000

Lavatorio, 207/61,un760.000

Llave de paso con campana de 1/2” FV

Línea clásica 479/20,un87.700

Linea 479/61,un120.000

Linea Allegro 479/15,un129.000

Para cocina / agua fria y caliente FV -

Embutida

Línea clásica, 403/20 jgo479.000

Externa

Línea clásica , 409/20jgo850.000

Línea 61, 409/61jgo935.000

Línea clásica , 416/20jgo

De mesada

Línea 61, 416/61jgo775.000

Línea clásica , 416/20 pico altojgo714.000

Llave de paso FV

De 1/2” , cromo sin campana 475/13, un66.500

De 1/2” , cromo con campana 479/20,un

De 3/4” , cromo sin campana 475/19, un101.000

De 3/4” , cromo con campana 479/20,un130.000

FV bronce 1/2” 471un58.000

FV bronce 3/4” 471un84.000

Para agua fría - Para lavatorio - canilla FV

cromo :

Pico alto 221un115.000 226/15un235.000 226/61,un271.000

Para bidet

Linea clásica FV 295/20un370.000

Para patio

Canilla FV 1/2”

Bronce 430, 1/2”un49.000

Cromo sin pico 432,un106.000

Bronce pico manguera 437 ,un124.500

Idem bronceun107.000

Varios

Adhesivo plástico p/ PVC , pomo 75 cc,un9.200

Idem anterior 850 cc,un62.600

Brazo metal p/ ducha eléctricaun12.500 un5.950 un9.600

Cisterna plastica (blanco y colores), un

Conexión cromo 1/2” x 0,40 cm, MH, FV,un40.800

Idem 1/2’ x 0,30 cm, MH,un37.000

Conexión plastica 0,30 mun7.000

Conexión plastica 0,40 mun7.500

Ducha electrica Lorenzzeti Maxi 5400 w,un127.500

Ducha teléfono DUCHAMATIC FV 119,un810.000

Enchufe de plástico externo p/ inodoroun

Pasta lubricante 400 gun29.700

Prolongador FV cromo 1/2 x1,un38.000

Prolongador FV cromo 1/2 x2,un46.500

Roseta FV cromo 1/2” - 452/13un6.400

Sellador p/ caño cuatricapa , 125 cc ,un45.900

Sella rosca , 125 cc un40.000

Solucion limpiadora , frasco 200 cc ,un27.000

Sopapa p/ pileta Astra un34.000

sopapa p/ lavatorio FV cromo 7/8” 246.01un66.700

Sopapa FV cromo p/ bañeraun164.000

Soporte gancho p/ calefónun2.150

Soporte con tarugo p/ calefónun9000

Tapa p/inodoro TPQ Orionun37.000

Tapa p/inodoro TPK Orionun75.000

Tarugo plástico 10 mmun675

Toallero aro cromo 162/33 FV,un117.409 un5.700

MANDU’ARA
- Revista Mandu’a 92

SELLADORES

Tapagoteras 1kgun40.500

Tapagoteras 4kgun140.000

Pu 40 multiuso 400gr Negro, Grisun37.000

PU universal 80grun14.000 un96.500 un98.500

TERMOCALEFONES

Termotanques de acero James

1 De 20 l

2 De 30 l

3 De 40 l

4 De 60 l - p 46

5 De 80 l - p 46

6 De

7 De

8 De

1 Alambrón 4,2 mm x 12 m, un20.000

2 Varilla conformada AP 420, kgs/ cotiz.

3 Varilla conformada AP 500, Kg10.000

4 Varilla torsionada, kgs/ cotiz.

5 Varilla lisa, kg11.500

VIDRIOS

Ventanas:

011,06 x 1,05510.000520.000 021,60 x 1,10810.000825.000 032,12 x 1,051.020.0001.040.000 Box Baño: 011,60 x 1,901.315.0001.340.000

Puerta Corrediza: 011,80 x 2,101.720.0001.760.000

Puerta Batiente: de 1 hoja, en vidrio templado 10mm, con 010,90 x 2,10 sin freno1.100.0001.150.000 020,90 x 2,10 con freno1.300.0001.350.000

MANDU’ARA
Casarino SEGUROS
1.065.750
1.212.750
1.359.750
1.617.000
1.837.500
l - horizontal 1.617.000
60
80 l - horizontal 1.837.500
l 2.094.750
110
TOPOGRAFÍA
VARILLAS
IncoloroColor
Revista Mandu’a - 93

TEL.: 021 906 951

(021) 906 951/2

CEL.: 0971 543 246

(021) 328 0572/3

CEL 0971 543 246

CDE: 061 570 501

ndu

Planta Industrial Gral. Marcial Samaniego casi Beatriz Benítez. Itaugua.

Industria Procesadora de Vidrios Templados

OFICINA COMERCIAL

Oscar Bottana 100 esq. Cacique Caracará. Asunción.

Tel. 0985 335000 - ventas@fineza.com.py

MANDU’ARA
- Revista
94
Mandu’a

Turn static files into dynamic content formats.

Create a flipbook
Issuu converts static files into: digital portfolios, online yearbooks, online catalogs, digital photo albums and more. Sign up and create your flipbook.