Revista Mandu'a - #500 - Enero 2025

Page 1


INFORMACIÓN, OPINIÓN Y CULTURA AL SERVICIO DE LA CONSTRUCCIÓN

PELIGROS EN LAS VÍAS: LOMADAS Y TACHONES / ENSAYO FOCUS - BAUEN / GUÍAS DE PRECIOS

Mandu’a es la Revista de la construcción más leída del Paraguay. Mensualmente ofrece noticias, tendencias, notas técnicas y guías de precios de materiales, mano de obra, costeo de obra y proveedores de la construcción.

La suscripción es gratuita para los profesionales de la construcción de todo el país.

Editorial

Castigo a trabajadores y premio a la corrupción del IPS

Notas

Peligros en las Vías: Lomadas y Tachones

Proyecto nacional

Ensayo Focus

Proyecto internacional Mercado Angkor

Industria & innovación Nueva Sucursal de MV Aceros

Itinerario 2025 de APROCONS

Pisos sobreelevados

SteelFloor

Guías de precios de la construcción

Contacto

Ramón I. Cardozo c/ Andrés Gill Lambaré - Paraguay (021) 905 100 / (0981) 917 683 mandua@mandua.com.py www.mandua.com.py

EQUIPO - Gerencia: Estela Villalba. Dirección editorial: Yerutí Arza. Administración: Estela Villalba. Costeo: Carlos Gómez. Publicidad: Víctor Hugo Franco. Sofía Franco. Néstor Raimondo. Rubén Cabrera. Impresión: Artes Gráficas Castillo S.A. - Fundador: Mauri Arza.

CASTIGO A TRABAJADORES Y PREMIO A LA CORRUPCIÓN DEL IPS

El nuevo año empieza mal para los aportantes del Instituto de Previsión Social (IPS) que van a jubilarse a partir de ahora: la ley aprobada por el Congreso a velocidad supersónica en los últimos días de sesiones ordinarias del Parlamento en diciembre pasado establece que el cálculo para establecer el monto jubilatorio se hará en base al promedio de aporte de los últimos diez años de trabajo.

El cambio es abismal porque hasta antes de la aprobación del instrumento legal ya vigente el promedio para saber cuánto es el haber jubilatorio de alguien que alcanzó la edad establecida y el tiempo de aporte requerido era de tres años.

Ese salto irracional, desmedido y absurdo, en realidad, es un asalto de cuello blanco a los sacrificados trabajadores que, con seguridad, recibirán menos dinero cuando se jubilen, consagra una gran injusticia puesto que a ellos se les medirá con un criterio diferente al de los que se han jubilado hasta el año pasado.

No sorprende, sin embargo, la medida apoyada por los sectores cartistas de las cámaras de Diputados y Senadores porque con demasiada frecuencia ellos han sido los canales de aprobación de normas que perjudican a los ciudadanos y premian, como en este caso al IPS, a administradores corruptos que han desangrado las arcas del seguro social obligatorio poniendo en peligro los ahorros destinados al pago de jubilaciones.

Con esa complicidad desvergonzada, los legisladores han vuelto a sacar sus mugrientas uñas para perjudicar a uno de los sectores más vulnerables de nuestro país: los trabajadores asalariados. Una vez más han actuado para dar oxígeno a una institución impregnada de corrupción y de falta de eficiencia para responder con eficacia a las necesidades de salud de los asegurados.

Las voces de protesta y los argumentos de los jubilados y escasos trabajadores organizados que han salido en defensa de los futuros jubilados, aunque con ingresos disminuidos a raíz de la ley que se acaba de aprobar, no han sido escuchados por los parlamentarios que, en tres días, a tambor batiente, han despachado favorablemente el injusto instrumento legal.

Es triste y lamentable que una institución de tan loables propósitos como el IPS llegue al punto de castigar a sus aportantes para cubrir su mala administración. Si bien es de los aportantes asalariados y sus empleadores, el Estado, a través de los gobiernos colorados de turno -sin aportar la cuota que la ley establece y, por lo tanto, le debe una fortuna al IPS- se ha apoderado de su administración para desfondarlo, corromperlo, hacerlo cada día más ineficiente. Y los legisladores ni han mencionado esa situación injusta.

Lo que ha ocurrido, además de reflejar la prepotencia de los que ejercen el poder, también ha desnudado la falta de fuerza de los trabajadores para defender sus intereses. El resultado está a la vista: el festín del IPS va a continuar aún por mucho tiempo, lamentablemente.

PELIGROS EN LAS VÍAS: LOMADAS Y TACHONES

En el transitar cotidiano, los conductores de Paraguay enfrentan un desafío constante: las irregularidades en las calles y carreteras. Estas no siempre responden a un diseño consciente, sino que suelen ser producto de una implementación anárquica que afecta tanto a la seguridad vial como a la economía de los usuarios. El análisis del Ing. Luis A. Caballero, explora los efectos de las lomadas y tachones en el país, destacando su incorrecto uso y las alternativas viables para una mejor gestión vial.

- Revista Mandu’a

En Paraguay, las lomadas y tachones se han convertido en herramientas de control vehicular mal diseñadas y peor ubicadas. Las lomadas son colocadas sin criterios técnicos y sin la debida señalización, generando sorpresa y daños a los conductores. Peor aún, los tachones, elementos destinados a la separación de carriles, han sido usados de forma transversal como reductores de velocidad, causando daños severos a los vehículos.

Ejemplos palpables de esta problemática se encuentran en tramos como Nueva Italia-Carapeguá, el bypass de Quiindy y avenidas clave de Villa Elisa y San Antonio. La utilización incorrecta de estas medidas no solo deteriora los vehículos, sino que también incrementa el malestar ciudadano y la frecuencia de reparaciones mecánicas.

FUNCIONES CORRECTAS Y MALAS PRÁCTICAS

Los dispositivos reductores de velocidad tienen como objetivos primordiales:

• Reducir la velocidad de los vehículos.

• Advertir sobre intersecciones o puntos conflictivos.

• Mejorar la seguridad vial.

• Desviar tráfico pesado de zonas no aptas para su circulación.

Sin embargo, para que estas funciones se cumplan, su diseño e instalación deben respetar principios técnicos. La ubicación adecuada, la señalización visible y el mantenimiento son esenciales para evitar efectos adversos.

UBICACIÓN Y DISEÑO DE LOMADAS

Las lomadas deben ser instaladas en vías locales o colectoras, evitando tramos interurbanos o aquellos con pendientes superiores al 5%. Además, es fundamental que exista una distancia de visibilidad suficiente para que los conductores puedan reaccionar adecuadamente.

La distancia entre lomadas también influye en la eficacia de estos dispositivos, debiendo ubicarse entre 80 y 200 metros, con una preferencia de 90 a 120 metros.

Otros criterios relevantes incluyen:

• La velocidad máxima permitida debe ser de 50 km/h o menos.

• Evitar la instalación en rutas de emergencia o transporte colectivo.

• Garantizar una intensidad media diaria vehicular entre 9.000 y 12.000 vehículos/día.

CARACTERÍSTICAS GEOMÉTRICAS

El perfil de una lomada influye directamente en su impacto sobre el tráfico. Diseños circulares, parabólicos o sinusoidales son preferidos, con alturas de hasta 6 cm y longitudes de 4 metros. Estas medidas permiten una reducción efectiva de la velocidad sin dañar vehículos ni incomodar excesivamente a los ocupantes. Además, la instalación debe incluir iluminación nocturna y señales retroreflectantes para garantizar visibilidad en todo momento.

EL USO INCORRECTO DE TACHONES

Los tachones, diseñados para separar carriles en sentido longitudinal, no deben emplearse como reductores de velocidad. Su aplicación transversal genera vibraciones innecesarias, aumenta el desgaste de la suspensión de los vehículos y pone en riesgo la seguridad de los ocupantes. Su uso en calles y avenidas paraguayas evidencia una falta de conocimiento técnico y un descuido hacia las buenas prácticas de ingeniería vial.

RECOMENDACIONES PARA UNA GESTIÓN EFICIENTE

La experiencia internacional ofrece soluciones que podrían ser adoptadas en Paraguay:

• Implementar radares y sistemas de monitoreo electrónico para controlar la velocidad de manera efectiva.

• Diseñar lomadas de acuerdo con estándares internacionales, asegurando su ubicación y señalización adecuada.

• Capacitar a los responsables municipales y nacionales en temas de ingeniería de tránsito.

• Establecer normativas claras para la instalación de elementos reductores de velocidad, con supervisión y evaluación periódica.

CONCLUSIÓN

Las lomadas y tachones mal diseñados no son solo una molestia para los conductores, sino también un reflejo de una gestión vial ineficaz. Adoptar medidas basadas en criterios técnicos y en experiencias internacionales podría transformar el panorama vial paraguayo, promoviendo seguridad y reduciendo costos para los usuarios. La correcta aplicación de estas herramientas es clave para una movilidad más segura y eficiente.

COLORES DE LA LINEA EUROPEA.

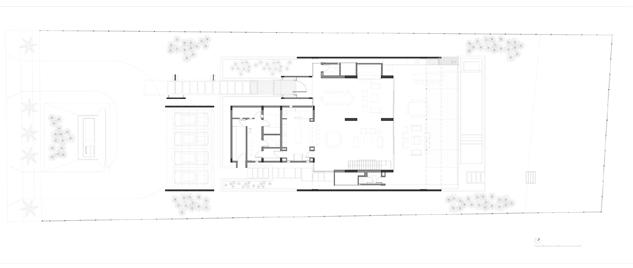
ENSAYO FOCUS

Proyecto: BAUEN.

Arquitectos a cargo: Aldo Cristaldo, René Sosa.

Equipo de diseño: Saúl Acosta.

Fotografías: Darío Mereles, Renato Duria.

Superficie: 657 m².

Año: 2024.

Ubicación: Villa Hayes.

- Revista Mandu’a

Descripción elaborada por el equipo del proyecto.

En el diseño y construcción de la Vivienda Ensayo Focus, ubicada en Villa Hayes, Chaco paraguayo, se buscó articular arquitectura con el paisaje tan particular que otorga la vera de un río.

El nombre ‘Focus’ proviene del latín y se refiere tanto al centro de interés como al hogar, entendido como un lugar de reunión y refugio. Este concepto se materializa en la vivienda que cuenta con extensos muros en los extremos laterales que enmarcan la mirada al Río Paraguay, destacando la ubicación privilegiada del emplazamiento territorial.

- Revista Mandu’a

La analogía con la palabra “focus” no solo se refiere a su significado etimológico, sino también a su sentido contemporáneo de concentración. La vivienda está enfocada y concentrada en lo mejor que el lugar tiene para ofrecer: la vista.

El diseño de la vivienda utiliza líneas limpias y materiales como el concreto expuesto y grandes ventanales, permitiendo la entrada abundante de luz natural y conectando el interior con el paisaje exterior. La planta baja está destinada a áreas sociales amplias y abiertas, incluyendo los servicios. Los ventanales permiten que las áreas sociales se extiendan hacia los espacios exteriores, creando una gran área para compartir que culmina en una piscina con vista al río, generando una imagen especular agua/agua.

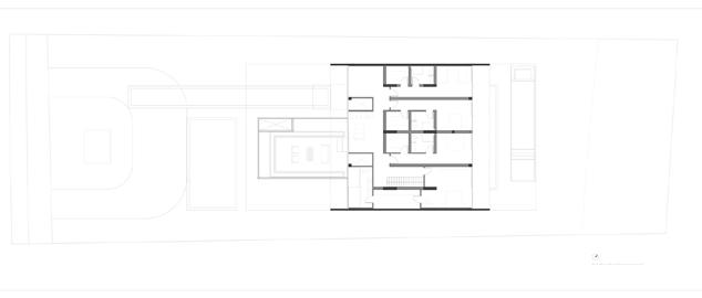
Planta Baja.
Planta Alta.
Corte Longitudinal.
- Revista Mandu’a

La planta alta alberga los dormitorios, cada uno con baño y vestidor, ofreciendo privacidad propia a esos espacios.

El volumen de esta vivienda solo se yergue para abrazar el horizonte que une cielo y agua, paisaje que lleva a la contemplación de la naturaleza de manera orgánica y natural.

(0982) 620 227 modular.comercial@tecnimet.com

(0986) 802 098 div.comercial@tecnimet.com

TECNIPANELES

-Paneles con núcleo de PIR -Núcleo de 40kg/m3 -Paneles Trapezoidales y machihembrados.

MERCADO ANGKOR

Proyecto: UAD Architects.

Arquitectos a cargo: Mengly Khuth, Visal Nuon.

Fotografías: Oudompheaktra Ang.

Superficie: 3.000 m².

Año: 2024.

Ubicación: Krong Siem Reap, Camboya.

- Revista Mandu’a

Descripción elaborada por el equipo del proyecto.

Situado en la Avenida Preah Sihanouk, que conecta la ruta norte que lleva a Angkor Wat, un sitio declarado Patrimonio de la Humanidad por la UNESCO, y el centro de Siem Reap, Angkor Market es un edificio de dos pisos de ladrillo rojo, rodeado de un siglo de patrimonio cultural como el Raffles Grand Hotel d’Angkor, el Museo Nacional de Angkor y el Amansara Resort.

Sección Longitudinal.

Sección Transversal.

Planta Baja.
Revista Mandu’a

El objetivo es activar un vacío en el tejido urbano y crear un nuevo punto de encuentro mientras se mantiene la armonía del vecindario existente. El mercado comprende tiendas de abarrotes, farmacias, papelerías y electrodomésticos que contribuyen a hacer que las experiencias de compra de las personas sean placenteras.

El mercado está ansioso por apoyar a los agricultores locales de la Montaña Kulen, donde el área tiene un significado histórico, y dedica su espacio a exhibir y vender frutas y verduras que son cultivadas localmente. Diseñado con la utilidad en mente, el proyecto tiene un estilo arquitectónico puro.

- Revista Mandu’a

Sus componentes principales incluyen concreto, metal y materiales de construcción tradicionales, incluyendo ladrillos rojos locales y azulejos khmer hechos a mano, todos los cuales fueron elegidos por su practicidad.

La fachada de ladrillo expuesto crea una apariencia atemporal, terrenal y natural para realzar el carácter arquitectónico circundante. Desde un punto de vista estructural, la estabilidad de las paredes de ladrillo depende únicamente de su forma ondulada y la unión de los ladrillos. Las palmeras están posicionadas a nivel de la calle, creando un vínculo visual con la fachada de ladrillo. A nivel del suelo, un gran espacio de entrada, con techos más altos a medida que se avanza, está cubierto de sombras delicadamente patrones creadas por la suave luz natural que filtra a través de la celosía y el jardín tropical.

Los arquitectos combinan color, luz, altura y otros factores para generar circulación y sensaciones al navegar. Los coloridos pisos de terrazo y los elementos de diseño crean una experiencia única para que los clientes localicen fácilmente los productos que necesitan. El uso de una mezcla de materiales cálidos y fríos para atraer la atención y la iluminación estratégica crea un ambiente que despierta la creatividad.

NUEVA SUCURSAL DE MV ACEROS

Expansión estratégica para impulsar la industria metalúrgica.

El pasado 22 de noviembre, MV Aceros S.A., reconocida empresa paraguaya dedicada a proveer productos y servicios al sector metalúrgico para la construcción civil, celebró la inauguración de su nueva sucursal en la ciudad de San Bernardino.

Este paso reafirma el compromiso de la empresa con la excelencia y la calidad que la caracterizan, ampliando su alcance para atender las necesidades de un mayor número de clientes en la región. La nueva sucursal, ubicada en la Av. Guillermo Naumann, ya está lista para recibir a profesionales y empresas del sector, ofreciendo un portafolio completo de productos y soluciones diseñados para impulsar proyectos de construcción y metalurgia.

Con una sólida trayectoria en el mercado, MV Aceros busca seguir fortaleciendo su presencia a nivel nacional, consolidándose como un aliado clave en el desarrollo de infraestructura en Paraguay.

Desde su fundación, la empresa ha destacado por su enfoque en la innovación, el servicio personalizado y la búsqueda constante de satisfacer las expectativas del sector de la construcción civil.

Para más información sobre los productos y servicios que ofrece MV Aceros, los interesados pueden visitar las nuevas instalaciones o contactar al +595 976 160241.

La inauguración de esta nueva sucursal marca un hito en el crecimiento de MV Aceros y simboliza su compromiso con la industria, al tiempo que brinda un soporte más accesible y eficiente a sus clientes en San Bernardino y alrededores.

ITINERARIO 2025 DE APROCONS

El evento que marca el rumbo de la infraestructura en Paraguay.

El pasado 3 de diciembre, el ITINERARIO 2025, organizado por la Asociación de Profesionales de la Construcción (APROCONS), reunió en el Salón

Bicentenario del Paseo La Galería a destacados referentes del sector público y privado bajo el tema “Construyendo con Grado de Inversión”.

Entre los oradores, la Ministra de Obras Públicas, Ing. Claudia Centurión, anunció que el presupuesto 2025 para obras públicas será de 972 millones de dólares, con una adición potencial de 400 millones de dólares provenientes de negociaciones con Itaipú. Resaltó proyectos como la duplicación del Tapé Tujá, el tramo del Aeropuerto Silvio Pettirossi a Mariano Roque Alonso, y un nuevo trayecto vial en Caaguazú.

Ing. Rodrigo Maluff, Viceministro de REDIEX, presentó las estrategias del organismo para atraer inversiones, mientras que el economista César Barreto, de DENDE, analizó los desafíos macroeconómicos y el impacto del grado de inversión en el sector.

Por su parte, el Chairman de Paracel S.A., Per Olofsson, destacó el progreso de su proyecto de inversión y su repercusión en Concepción. Finalmente, el abogado Carlos Vasconsellos, de Ferrere Abogados, abordó los cambios necesarios en las leyes de Alianzas Público-Privadas.

El éxito del evento se debió también al apoyo de sus auspiciantes: PERI Argentina, Luminotecnia, Ferropar, TK Elevadores, Eficon, SH Encofrados, VMA Siderúrgica, Proyec y AYC Mobiliario Urbano, que contribuyeron a crear un espacio propicio para el diálogo y la colaboración entre profesionales y empresarios del sector.

Este encuentro reafirma la importancia del trabajo conjunto para consolidar un Paraguay más competitivo y preparado para los desafíos del futuro.

INDUSTRIA & INNOVACIÓN

PISOS SOBREELEVADOS STEELFLOOR

La solución modular para espacios modernos y funcionales.

En un mundo donde la flexibilidad y la eficiencia son esenciales en edificios comerciales y oficinas, el sistema de pisos sobreelevados

SteelFloor se presenta como una solución innovadora que combina diseño y funcionalidad. Este sistema modular, instalado como un segundo nivel sobre el piso base, permite crear un espacio oculto para albergar redes y servicios, optimizando la estética y el uso del ambiente.

SteelFloor está compuesto por paneles de acero zincado con relleno cementicio, diseñados para garantizar durabilidad y resistencia. Su diseño modular permite un fácil acceso para mantenimiento, ofreciendo una solución adaptable a las necesidades cambiantes de las empresas modernas. Entre sus aplicaciones destacan la gestión de cableado eléctrico, redes de comunicación, sistemas de climatización y conductos de aire acondicionado.

Las características técnicas de SteelFloor lo convierten en un sistema robusto y versátil:

• Dimensiones: 600 x 600 mm

• Espesor: 35 mm

• Peso por panel: 12 kg

• Sistema completo: 35 kg/m²

• Acabado: Melamina con bordes de PVC negro

• Altura ajustable: Entre 15 y 30 cm

Cada panel combina funcionalidad y estética, con una estructura metálica resistente que garantiza estabilidad gracias a barras de arriostramiento. Además, su acabado melamínico asegura una larga vida útil con fácil mantenimiento.

Para más información, visite el local de ShoppinGlass en Itapé 216 c/ Solar Guaraní, Lambaré, o comuníquese al (021) 906-951/2, (021) 328 0572 o (0971) 543 246. También puede acceder a detalles adicionales en la web: www.shoppinglass.com.py.

MANO DE OBRA

Trabajos preliminares

1

Preparacion de obra

1 Limpieza de terreno (no incluye corte ni destronque de árboles)

Destronque de árboles 1 Árbol chico

3 Árbol grande

528.000 4 Árbol extragrande

(sueltos, cuando no hay losa)

Vigas

MANO DE OBRA

1

4 Pre Losa montaje y hormigonado

Cadenas

1 Cadena 13x30 PB m 77.000

2 Cadena 20x40 PB

ESCALERAS

1 Tramo compensado a=1.20 m c/ escalón

2 Tramo recto a= 1.20 m cada escalón,

1 Piso rodillado espesor 12 cm

2 Piso rodillado espesor 10 cm

3 Piso rodillado espesor 08 cm

4 Piso allanado espesor 15 cm (Incluye Alquiler máquina)

5 Piso allanado espesor 12 cm (Incluye Alquiler máquina)

6 Piso allanado espesor 10 cm (Incluye Alquiler máquina)

7 Piso allanado espesor 08 cm (Incluye Alquiler máquina)

Fundaciones

1 Cimiento PBC sin excavación

2 Hormigón ciclópeo sin excavación

y muros

1

3

cm, Visto con ladrillo común

con ladrillos huecos

1 En mampostería c/ 2 varillas m 11.000

2 Sobre aberturas c/4 varillas m 15.000

3 Colocación de dintel prefabricado m 15.000

4 Dintel zuncho de bloque m 31.000

5 Colocación de perfil de hierro m 15.000

Contrapisos (no incluye alisada)

1 Apisonado de Hº cascotes 8 cm m² 15.000

2 Apisonado de Hº cascotes 10 cm m² 18.000

3 Apisonado de Hº cascotes 10 cm, c/ pendiente m² 21.000

4 Apisonado de Hº cascotes 20 cm m² 26.000

5 Apisonado sobre losa Hº Aº e=7cm m² 14.000

6 Apisonado sobre losa Hº Aº e=6cm m² 13.000

7 Apisonado de Hº cascotes con varilla m² 21.000

8 Hº Aº e=7cm m² 33.000

Revoques

Revoque de paredes

1 Común, fratachado o peinado m² 22.000

2 Común, fratachado y filtrado

3 Común, fratachado y filtrado; h=+5.00 m

4 Común, fratachado o peinado; h=+5.00 m m² 30.000

5 Fino o filtrado sobre revoque peinado existente m² 11.000

6 A 2 capas (grueso + fino)

30.000

7 A la lona o bolseado m² 13.000

8 Salpicado

9 Base para revestidos

Azotadas hidrófugas para adherencia:

10 Espesor = 1 cm x ladrillo

11 Espesor = 0,5 cm x ladrillo

22.000

MANO DE OBRA

9 Revoque de pilares 4 caras y aristas m 39.000 10 Revoque de pilares 3 caras y aristas

Techos

1 De teja española con tejuelón; incluye: maderamen, aislante, caballete y bocateja

2 Idem anterior con limatón

3 De teja española con tejuelita incluye: maderamen, aislante, caballete y bocateja

4 De teja española sobre machimbre: maderamen, aislante, caballete y bocateja

5 De teja francesa sobre machimbre

6 De teja francesa vana

7 De chapa galv. s/ estruc. de tirantes 2x6”

8 De chapa de fibrocemento acanalada

9 De chapa de fibrocemento acanalada autoportante

Bovedilla c/ tirantes 2x6”, tejuelitas y hormigón pobre

13 Montaje de maderamen c/ tirantes 2x5” o 2x6” cepillados

14 Montaje de vigas

15 Techo metálico (tinglado), preparación y montaje

16 Cabriadas de madera, preparación y montaje

7.000

12 Espesor = 0,5 cm x ladrillo en h=+ 5,00 m m² 10.000

13 Espesor = 1 cm x ladrillo en h=+ 5,00 m exterior

14 Azotada p/ impermeable

Revoque de cielorrasos

1 Azotada para adherencia por losa de Hº Aº, 0,5 cm

2 A 1 capa fratazado y filtrado sin azotada

3 A 1 capa fratazado y filtrado con azotada

4 A 2 capas (grueso + fino),con azotada

5 A 2 capas sin azotada

6 Azotada o base planchada de metal desplegado

Revoque de vigas/pilares/aristas

1 Revoque de arista o canto

2 Revoque de babetas o buñas

3 De mochetas con 2 aristas (0,15x0,15)

4 De goterón en alero

5 De losa de Hº Aº

6 De ductos

7 De vigas de Hº Aº de 15x20 ó 20x30 cm (incluye azotada + aristas)

8 De vigas de Hº Aº de 20x40 ó 30x50 cm (incluye azotada + aristas) por cara

13.000

10.000

8.000

17 Cabriadas de madera, y planchuelas preparación y montaje

Cielorrasos (incluye armazón de madera)

1 De metal desplegado, sin revoque

2 De machimbre de 1/2 x 3”

3 De machimbre de 1 x 3”

Cornisa

Revestidos 1 De azulejo

De azulejo, 10x10 cm

De azulejo (Listel o faja)

De ladrillejo

De ladrillejo (ladrillo cortado)

13.000

15.000

21.000

46.000

De ladrillejo h= +5m

Piedra lajón a escuadra

8 Piedra roja rompecabeza

Piedra blanca rompecabeza

10 Piedra arenisca blanca o roja pulida en PB

11 Piedra arenisca blanca o roja pulida en PA

Piedra abuchada

Piedra laja aserrada

Piedra Wasmosy

Empapelado

Machimbre

MANO DE OBRA

Sobre carpeta existente

1 Cerámica esmaltada P I 5 m² 34.000

2 Cerámica esmaltada en baño m² 31.000

3 Cerámica esmaltada en escalón m 39.000

4 Cerámica porcellanato m² 37.000

5 Piso calcareo m² 26.000

Carpeta o base

1 Para alfombra o cerámica e=2cm m² 18.000

2 Alisada de cemento e=3cm m² 24.000

3 Para alfombra o cerámica en escalones un 18.000

4 Regleado rústico m² s/c

5 Alisada sobre contrapiso

7.500

6 Banquina p/ placard (contrapiso + carpeta hidrófuga) m 33.000

7 Baldosa calcárea o canto rodado m² 26.000

8 Mosaico granítico m² 26.000

9 Pulido de mosaico granítico

10 Layota nacional o esmaltada m² 26.000

11 Veredita calcárea m² 26.000

12 Ladrillo común

13 Tejuelita

14 Baldosones de hormigón, 40x40 cm

15 Piso de HºAº rodillado de 12 cm

16 Plancha de granito o mármol

17 Plancha de mosaico granitico

18 Parquet a bastón roto o tipo colonial clavado

53.000

19 Parquet de lapacho tarugado m² 59.000

20 Parquet de machimbre curupa’y, 1 x 3” pulido y lustrado m² 67.000

21 Piso de madera rasqueteado y encerado m² 60.000

22 Alfombra multipiso m² 18.000

20 Piso vinílico 30x30

21 Piedra losa rompecabeza con junta tomada

22 Piedra losa rectangular

23 Piedra losa 30x30, 30x40 y 40x40

24 Piedra ardosia

39.000

25 Piedra laja m² 39.000

26 Piedra rústica roja Misiones m² 39.000

27 Piedra triturada esparcida a mano m² 7.000

28 Adoquín de piedra

Varios

1 Colocación tapa metálica en cámara de inspección un 44.000

2 Colocación rejilla en cámara de inspección un 44.000

Empedrado

1 Empedrado, h=0,20 m sin cordón m² 17.000

2 Empedrado, h=0,40 m sin cordón m² 28.000

3 Colocación de cordón Hº Prefabricado m 13.000

1

2 Calcáreo o granítico m 13.000

3 Cerámico m 13.000

4 Layota m 13.000

5 Mármol o granito

Cámara séptica (1,00x1,60x1,20 m) con excavación

990.500 25 Pozo absorvente (Ø: 1.50 m x altura 3,00 m) con excavación

Desagües para baño

5 Para pileta de lavar y lavarropas un 159.000

6 Para pileta de cocina (incluye desengrasador y caja sifonada) un 126.000

Agua corriente

1 Caño PVC 1” (incluye excavación, colocación y protección) m 16.000

2 Idem anterior de 3/4 m 13.000

3 Idem anterior de ½ m 8.000

4 Instalación de canilla de patio, + 5 ml de cañería un 64.000 Instalación agua fría 1 Para baño completo un 412.000 2 Para baño de servicio un 286.000

3 Para baño social un 159.000 4 Para pileta de lavar un 191.000

5 Para pileta de cocina un 126.000

Instalación agua caliente y fría

1 Para pileta de cocina un 254.000

2 Para baño completo un 697.000

Colocación de artefactos

Sanitarios y Grifería

1 Baño completo 115,500 x 4 un 462.000

2 Baño de servicio 100.500 x 2 un 234.000

3 Baño social 117.000 x 2 un 234.000

4 Pileta de cocina un 122.000

5 Pileta de lavar un 122.000

6 Bañera común un 314.000

7 Bañera hidromasaje un 524.000

8 Accesorios de baño (jabonera, percha, etc) un 22.000

9 Colocación de calefón un 175.000

9 Colocación de ducha eléctrica un 33.000

Instalación eléctrica

1 Boca de luz un 53.000

Trabajo de Albañilería

1 Pilar de mampostería para medidor de 0,45x0,45x1,70 m no incluye cimiento ni nivelación un 480.000

2 Registro eléctrico c/ drenaje y tapa de 30x30x40 cm un 105.000

3 Idem anterior 40x40x70 cm un 131.000

4 Colocación caja aire acondicionado un 72.000

Puesto de medición provisorio 1

1 Monofásico 12 bocas

2 Trifásico 14 bocas

Puesto de medición definitivo 2

1 Monofásico 14 bocas

2 Trifásico hasta 3A 18 bocas

Tablero principal o seccional

1 Colocación de caja embutida en mampostería hasta 40x50 cm 3 bocas

2 Disyuntor TM de corte principal o seccional o de circuito unipolar 2 bocas

3 Idem anterior tripolar 3 bocas

4 Instalación de interruptor diferencial 6 bocas

Líneas subterráneas

(Incluye excavación a una profundidad de 0,50 m en tierra firme y sin piedra, instalación de eléctroducto con protección mecánica y cableado)

1 Monofásica de 4 a 10 mm m 7.000

2 Trifásica de 4 a 10 mm m 13.000

3 Trifásica de 16 a 25 mm m 21.000

Línea embutida en mampostería

(incluye colocación de electroducto y cableado)

1 Monofásica de 4 mm m 7.000

2 Monofásica de 6 mm m 7.000

3 Monofásica de 10 mm m 8.000

4 Trifásica de 4 a 10 mm m 11.000

5 Trifásica de 16 a 25 mm m 13.000

Líneas aéreas

1 Monofásica de 4 a 10 mm m 3.000

2 Trifásica de 4 a 10 mm m 7.000

MANO DE OBRA

3 Trifásica de 16 a 25 mm m 9.000

Electroductos embutidos en mampostería sin cableado

1 De 5/8” m 3.000

2 De 1/2” m 3.000

3 De 3/4” m 3.000

4 De 1” m 3.000

Lámparas y tomas de corriente (Embutidos en mampostería hasta 5m del tablero)

1 Una lampara con su interruptor 1 boca

2 Una lámp. c/ 2 llaves de comb. de escalera 2 bocas

3 Una Toma corriente 1 bocas

4 Por llave de 4 vías o intermedia adicional 1 boca

Circuitos independientes

1

Circuito para aire acondicionado sin montaje de aparato ni abertura de mampostería hasta 5 m del tablero (mismo que recorran cañerías con otros circuitos)

4 bocas

2 Circuito p/ calefón o ducha eléctrica idem anterior 4 bocas

3 Circuito monof. p/ motobomba c/ cable de 4mm hasta 5 m del tablero 4 bocas

Colocaciones

1 Aire acondicionado un 230.000

2 Ventilador de techo un 95.000

3 Tubo fluorecente doble un 16.200

4 Apliques y arañas un 16.200

Carpinteria de aluminio

Colocación de premarco de aluminio:

1 Chico 1 m² un 64.000

2 Mediano 3m² un 92.000

3 Grande 4 m² un 125.000

4 Extra grande 5 m² un 150.000

Carpintería de madera

Colocaciones de:

1 De marco mayor de 1,00 m un 111.000

2 De marco menor de 1,00 m un 83.000

3 Puerta placa un 92.000

4 Puerta persiana o vidriera chica hoja 46.000

5 Puerta tablero un 96.000

6 Puerta tablero principal incluye hoja, manijón y visor un 128.000

7 Ventana persiana o vidriera 0,65 x 1,00 mt hoja 36.000

8 Ventana balancín un 40.000

9 Contramarco m 10.000

10 Pergolado m² 83.000

Carpintería metálica

Colocaciones de:

1 De marco de chapa doblada de 0,80x2,10 m un 66.000

2 De marco de chapa doblada de 1,50x1,20 m un 88.000

3 De marco de chapa doblada con relleno un 88.000

4 De marco metálico - ángulo un 66.000

5 De guías metálicas y taparrollo p/ cortina de enrollar un 264.000

6 De reja de hierro entre marcos un 44.000

7 De reja de hierro aplicada a la pared un 61.000

8 Portón de hierro 1,00x1,50 m un 106.000

9 Balancín chico 40x40 cm sin revoque un 44.000

10 Balancín mediano 1,00x1,50 m sin revoque un 77.000

11 Balancín grande 2,00x1,80 m sin revoque un 98.000

12 Portón cochera de 3,00x1,50 m

13 Baranda de escaleras

14 Pasamanos,}

15 Escalera

16 Puerta metálica corta fuego

17 Puerta metálica mosquitera

18 Tinglado, preparación y montaje

Pintura de pared

1

2

3

4

5

6

1

2 De abertura de madera

1 Tejuelita a la cal y maderamem c/ esmalte sintético

2 Tejuelón y maderamem barnizado

3 Tejuelita o tejuelón barnizado y

4 Pintura de alero de 0,60 m

Cielorrasos

1 Al látex con fijador

2

3

17.000

2 Rejas, barandas y balancines

visto, hormigón y piedra 1 Limpieza, curado y siliconado o barnizado

2 Limpieza, curado y siliconado o barnizado en altura

y

técnicos

SALARIO MÍNIMO

DECRETO N° 1909/2024

POR EL CUAL SE DISPONE EL REAJUSTE DE LOS SUELDOS Y JORNALES MÍNIMOS DE TRABAJADORES DEL SECTOR PRIVADO.

Art. 1°, Dispónese el reajuste del salario mínimo legal del trabajador del sector privado en cuatro coma cuatro por ciento (4,4 IP/o) con relación al establecido según Decreto N° 9584 del 29 de junio de 2023, que regirá a partir del 1 de julio de 2024, en las actividades expresamente previstas, escalafonadas y las diversas no especificadas. Art. 2°.- Establécese el salario mínimo legal vigente a partir del 1 de julio de 2024 en dos millones setecientos noventa y ocho mil trescientos nueve guaraníes (G. 2.798.309.-) y el jornal mínimo en ciento siete mil seiscientos veintisiete guaraníes (G. 107.627.T), de conformidad con el artículo 10 de este decreto.

COSTEO DE OBRA

Losa fck=21MPa

COSTEO DE OBRA

TRABAJOS PRELIMINARES

Relleno y Compactación

Tierra gorda, m3

Mano de obra, m3 1,00 44.000 44.000

Total por: m3 108.00

Cartel de Obra (de 1.40x2.80m con marco metálico y lona. A retirar y sin colocación)

Cartel de obra, un

Vallado de Obra

Chapa cincalum Nº 28, un

2.44x0,90,

Puntal de eucalipto pulg/

Clavo con cabeza de un

plomo,

Encadenado Inferior 13x20 en PB

Cemento tipo 1, kg 10 1.100 11.000

Encadenado 13x30 cm

ESTRUCTURAS DE HORMIGON ARMADO

Zapata fck=18 MPa

Encadenado 30x30 cm

Columna fck=21 MPa

Cemento tipo 1,

triturada

Escalera de HºAº fck=21MPa15 escalones de 0.30x1.10m y 1 descanso

Viga fck=21MPa

COSTEO DE OBRA

Losa Rap h=12+5=17cm, luz hasta 4,70m (1:2:3,5)

Cemento tipo 1, kg 22,8 1.100 25.080

Arena lavada, m3 0,04 65.000 2.600

Piedra triturada de V, tn 0,09 120.000 10.800

Varilla conformada, kg 1,80 10.000 18.000

Alambre

Cimiento PBC sin cal (1:12) m3 353.920

Cimiento de H° de Cascotes - Tierra Gorda Tierra

Cimiento de H° de Cascotes -

Losa Rap h=20+4=24cm, luz mayor a 4,70 m (1:2:3,5)

Piedra

y ladrillos,

Losa Listalosa

Cemento tipo 1, kg 18 1.100 19.800

Piedra triturada de V,

Piso HºAº fck=21MPa - Tráfico ligero 10 cm

Cemento tipo 1, kg 35 1.100 38.500 Arena lavada de rio, m3

Varilla lisa, kg 1 11.500 11.500

Alambre negro de atar,

juntas - 300ml,

Hormigón Ciclópeo (1:3:6) Piedra

MAMPOSTERIAS

De Nivelación

Con ladrillo común y junta de 2 cm

De 0.30 m de ancho (1:2:8) con cemento Tipo 1

De 0.30 m armada (1:4) con cemento Tipo 1

FUNDACIONES

Cimiento PBC con cal (1/2:1:4)

De 0.45 m de ancho (1:2:8) con cemento Tipo 1

De Elevación

Con ladrllo común y junta de 2 cm

De 0.15 m (1:2:10) con cemento tipo 1

Ladrillo común, un 65

De 0.15 m (1:2:10) con cemento tipo 1 - A la vista

Ladrillo común, un

De 0.20 m (1:2:10) con cemento tipo 1

Ladrillo común, un

De 0.20 m (1:2:10) con cemento tipo 1 - A la vista

Ladrillo

De 0.30 m (1:2:10) con cemento tipo 1

Ladrillo

De 0.07 m (1:2:10) con cemento tipo 1 y junta de 1.5 cm

Ladrillo

Con Ladrillos Cerámicos Huecos y junta de 1,5 cm

De 0.15 m (1:2:8) con cemento tipo 1

Ladrillo 6 tubos de 1ra, un

12x18x25 cm Ita Yby,

De Elevación

De 0.15 m (1:2:8) 1 cara vista con cemento tipo 1

Ladrillo 6 tubos de 1ra, un 20,0 1.298 25.960 12x18x25 cm Ita Yby,

De 0.20 m (1:2:8) m con cemento tipo 1

Ladrillo hueco un

18x18x25 Ita Yby

De 0.20 m (1:2:8) con cemento tipo 1 Ladrillo 6 tubos de 1ra, un

8x18x25 cm Ita Yby

De Elevación a la Vista Con ladrilllo cerámico laminado y junta de 1,5

De 0.15 m (1:2:8) con cemento tipo 1

de 1ra A, un

6x12x25 cm Ita Yby, Cemento tipo 1,

Elevaciones Varias

Sardinel de Ladrillos Comunes

Ladrillo común, un 16,0

COSTEO DE OBRA

Sardinel de Ladrillos Laminados

Ladrillo laminado Ita Yby un 14,0 1.265 17.710

1ra A, 6x12x25 cm

Ladrillo Convocó

Ladrillo convocó recto un

de 1ra, 19x19x10 cm Yoayu Cemento tipo 1,

Muro de Piedra Bruta de 30 cm (1/2:1:4)

Piedra

Pilar de Ladrillo Común 30x30 (1:1:6)

Ladrillo común, un

Pilar de Ladrillo Común 30x30 (1:1:6) - A la vista

Ladrillo común un 35,0

AISLACION

Horizontal

Muralla de Ladrillo Común (e=0.15m, h=2.00m, con pilares de 0.30 x 0.30 cada 2.00m)

Horizontal 0.15 con asfalto Cemento tipo 1,

Vertical con Panderete 0.15 m

De Losa con Piso de Tejuelita Prensada

De Losa Para Baño

DINTELES

De Varilla Sobre Abertura

De Hormigón Prefabricado

COSTEO DE OBRA

CONTRAPISOS

De 7 cm (1/4:1:4:6)

Cemento tipo 1, kg 4,00 1.100 4.400 Cal triturada, kg 5,00 1.225 6.125 Arena lavada, m3 0,03 65.000 1.950 Cascotillo cerámico, m3 0,07 99.500 6.965 Mano de obra, m2 1,00 15.000 15.000

De 10 cm (1/4:1:4:6)

Cemento tipo

De 20 cm en Losa Sanitaria Cemento tipo 1,

TECHOS

Teja Española sobre Tejuelón c/ Madera de Ybyrapyta

Teja española Yoayu un

Tejuelón de 1ra Ita Yby un

Tirante 2x5” pulg/ 20,0

Viga 4x8” de ybyrapyta,pulg/

Liston de 1 1/2 x 2”, ml 0,22 5.000 1.100 Cemento tipo 1, kg 1,30 1.100

Teja Española sobre Tejuelita m2 275.351

Teja Francesa, Marsellesa o Romana

Machimbre

REVOQUES De Paredes

A 1 Capa, Espesor 1.5 cm (1:4:16) con hidrófugo

Cemento tipo 1, kg 1,50 1.100 1.650

Cal triturada, kg 4,00 1.225 4.900

Arena lavada, m3 0,02 65.000 1.300

Betocem hidrófugo, l 0,25 6.060 1.515 Mano de obra, m2 1,00 22.000 22.000 Total por: m2

A 1 Capa, Espesor 1.5 cm (1:4:16) s/ hidrófugo, m2 29.850

Salpicado (1:3)

Cemento tipo 1, kg 3,00 1.100 3.300

Arena lavada, m3 0,01 65.000 650

Ceresita hidrófugo, kg 0,25 6.150 1.538 Mano de obra, m2 1,00 22.000 22.000 Total por: m2

Azotada Impermeable (1:3), Espesor 0.5 cm

Cemento tipo 1, kg 2,70 1.100 2.970

Arena lavada, m3 0,01 65.000 650

Ceresita hidrófugo, kg 0,30 6.150 1.845

Mano de obra, m2 1,00 7.000 7.000

Total por: m2 12.465

De Cielorrasos (1:4:12)

Cemento

Chapa N° 28 s/ estructura de caños metálicos

Caño 30 x 50 x 1,20 mm ml

20 x 30

Chapa N° 28 s/ Estructura de Varillas torsionadas

COSTEO DE OBRA

Chapa de Fibrocemento Ondulada 6 mm Chapa, un 0,40 96.000 38.400

Tirante 2x5” de pulg/m 5,00 3.700 18.500 Clavo 2” a 7”, kg 0,03 18.000 540

TECHO METÁLICO CON CHAPA TRAPEZOIDAL

Separación entre correas 1,20 m

Varios incluye pintura, electrodo, aguarras, discos

Mosaico Graníto Lavado (para exterior 30x30cm)

Cerámica Esmaltada

TECHO METÁLICO CON CHAPA TERMOACUSTICA

Con cabriada de 40 x 12 cm. No incluye pilares.

Chapa con isopor 30 mm Galva/Marfil Econml

C 100x38 1.80mm

Entrepiso de Madera

Ceramica 45x45cm

Layota 28x28cm

PISOS

Baldosa Calcárea

Baldosa

Piedra Losa Rompecabeza

Mosaico Granítico (base gris 30x30cm)

Mosaico

Cemento tipo 1, kg 8,00 1.100 8.800 Cal triturada, kg 7,00 1.225 8.575 Arena lavada, m3 0,03 65.000 1.950

Pastina base gris, kg 0,75 6.000 4.500

Mano de obra pulido, m2 1,00 26.000 26.000

- Revista Mandu’a

Piedra losa Blanca Cuadrada Pulida

Piedra losa blanca m2

cuadrada pulida,

Alisada de Cemento

Baldosones de Hormigón (40x40x3cm)

Calcáreo Base Gris Zócalo 10x25 cm, ml

Carpeta para Piso Cerámico o Alfombra

Cemento

de obra, m2 1,00 18.000 18.000

Alfombra (2mm sin carpeta)

Alfombra multipiso, m2 1,10 13.000 14.300 Cemento de contacto, lt 0,20 23.000 4.600

Solvente 700 cc, un 0,10 12.000 1.200 Mano de obra, m2 1,00 18.000 18.000 Total por: m2 38.100

Empedrado

Piedra bruta blanca, m3 0,20 150.000 30.000

Arena lavada, m3 0,15 65.000 9.750

Ripio de piedra, tn 0,07 70.000 4.900

Mano de obra, m2 1,00 17.000 17.000

Total por: m2 61.650

Hormigón Armado 12 cm

Cemento tipo 1, kg 35,0 1.100 38.500

Arena lavada, m3 0,06 65.000 3.900

Piedra triturada de IV, tn 0,20 120.000 24.000 Varilla conformada, kg 8,00 10.000 80.000 Mano de obra, m2 1,00 36.000 36.000 Total por: m2 182.400

ZOCALOS

Cemento

Madera 3/4 x 3”, Zocalo de cedro, ml 1,05

Tarugo plástico Nº

Alfombra

Cerámica Esmaltada

Mosaico Granítico (base blanca pulido 10x30cm)

Layota 28x10cm

CIELORRASO

De machimbre c/ armazón de madera, no incluye corniza Liston de cedro 1x2”,

Machimbre

COSTEO DE OBRA

REVESTIDOS

“No incluye la base previa”

Piso Pared Cecafi

Cecafi 32 x57cm m2 1,05 34.000 35.700

Mezcla adhesiva, kg 3,50 1.198 4.193

Pastina base blanca, kg 0,20 6.000 1.200

Mano de obra, m2 1,00 32.000 32.000

Total por: m2 73.093

Porcelanato 60 x 60 cm

Porcelanato 60 x 60 cm, m2 1,05 105.000 110.250

Mezcla adhesiva, kg 3,50 1.198 4.193

Pastina base blanca, kg 0,20 6.000 1.200

Mano de obra, m2 1,00 32.000 32.000 Total por: m2 147.643

Piso Pared 31 x 31 cm

Forte Habana 31 x 31 cm,m2 1,05 47.000 49.350

Mezcla adhesiva, kg 3,50 1.198 4.193

Mano de obra, m2 1,00 32.000 32.000

Total por: m2 86.743

Ladrillejo

Ladrillejo

Piedra Laja Fina (1 a 2 cm de espesor)

Piedra laja fina, m2 1,05 50.000 52.500

Cemento tipo 1, kg 3,00 1.100 3.300 Cal triturada,

DESAGÜE CLOACAL Y PLUVIAL

Boca Desagüe Abierta 20x20x20cm

Ladrillo

Boca Desagüe Abierta 30x30x30cm Ladrillo

Boca Desagüe Abierta 40x40x40cm

Ladrillo

Registro 30x30x30cm Ladrillo

Registro 40x40x40cm

Registro 60x60x50cm

Caño

Caño

Caño de Hormigón 50cm, Roto Comprimido

Caño de Hormigón 60cm, Roto Comprimido

Caño

Caño de 80cm Hº Aº Vibrado Simple - Macho/Hembra

Caño de 80 cm, un 1,00 399.500 399.500

de obra,

Pozo Ciego (Diámetro=1.50 m y h=3.00 m)

Ladrillo común, un

Cámara Séptica (1x1.60x1.20m)

Ladrillo común, un

Rejilla de Piso Sifonada

Caja sifonada cuadrada un

nº 25, 150x150x50mm Mano de obra, un

Desagüe Cloacal p/ Baño Completo (hasta el primer registro)

Caño 100 mm Titan, ml 2,00 14.000 28.000

Caño de PVC 50 mm, ml 2,00 11.250 22.500

Caño PVC 40 mm, ml 4,00 7.450 29.800

Codo 90º p/ desagüe 100mm un 1,00 11.150 11.150

Codo 90º p/ desagüe , buje largo 40mm, un 2,00 1.550 3.100

Codo 45º p/ desagüe un 2,00 1.600 3.200 secundario 40mm,

Caja sifonada

150x150x50mm, un 2,00 72.000 144.000 c/ rejilla aluminio

Adhesivo 75 gr, un 2,00 9.200 18.400 Limpiador 200 cc, un 1,00 27.000 27.000

Mano de obra, un 1,00 317.000 317.000

Total por: un 604.150

Desagüe Cloacal p/ Baño de Servicio

(hasta el primer registro)

Caño 100 mm, ml 2,00 14.000 28.000

Caño PVC 50 mm, ml 1,00 11.250 11.250

Caño PVC 40 mm, ml 3,00 7.450 22.350

Codo 90º p/ desagüe un 1,00 11.150 11.150 primario 100mm,

Codo 45º p/ desagüe un 1,00

primario 100mm,

Codo 45º p/ desagüe un 1,00

primario 50mm,

Codo 90º p/ desagüe un 1,00 1.550 1.550

secundario, buje largo 40mm

Codo 45º p/ desagüe un 2,00 1.600 3.200 secundario 40mm, Ramal de reducción 45º un 1,00 16.500 16.500 simple p/ desagüe primario 100x50mm, Caja sifonada cuadrada un

nº 25, 150x150x50mm, Prolongador un 1,00 7.950 7.950 150x150mm p/ caja

Anillo de sellado p/ un 3,00 5.000 15.000 desagüe 100 mm, Anillo de sellado p/ desague 50mm un 2,00 2.900 5.800 Adhesivo 75 gr, un

Limpiador 200 cc, un

Mano de obra, un

Total por: un

Desagüe Cloacal Para Baño Social (hasta el primer registro)

Caño 100 mm, ml

Caño

Codo 90º p/ desagüe un

primario 100mm, Codo 45º p/ desagüe un

primario 100mm,

Codo 45º p/ desagüe un

primario 50mm,

Codo 90º p/ desagüe un

secundario, buje largo 40mm

Codo 45º p/ desagüe un 2,00

3.200 secundario 40mm,

Ramal de reducción 45º un

simple p/ desagüe primario 100x50mm, Caja sifonada cuadrada un

nº 25, 150x150x50mm, Anillo de sellado p/ un 2,00

desagüe 50 mm, Anillo de sellado p/ un 3,00 5.000 15.000 desagüe 100 mm, Adhesivo 75 gr, un

Limpiador 200 cc, un

Mano de obra, un

Total por: un 388.000

Desagüe para Pileta de Lavar y Lavarropas

Caño PVC 50 mm, ml 2,00 11.250 22.500

Caño PVC 40 mm, ml 3,00 7.450 22.350

Codo 90º p/ desagüe un 2,00 1.550 3.100 secundario, buje largo 40mm

Codo 45º p/ desagüe un 2,00 1.600 3.200 secundario 40mm,

COSTEO DE OBRA

Caja sifonada cuadrada un 1,00 72.000 72.000 nº 25, 150x150x50mm,

Adhesivo 75 gr, un 0,50 9.200 4.600

Limpiador 200 cc, un 0,50 27.000 13.500

Mano de obra, un 1,00 159.000 159.000

Total por: un 300.250

Desagüe para Pileta de Cocina

Caño PVC 50 mm, ml 3,00 11.250 33.750

Codo 90º p/ desagüe un 2,00 4.500 9.000 primario 50mm,

Ramal de reducción 45º un 1,00 16.500 16.500 simple p/ desagüe primario 100x50mm,

Desengrasador redondo un 1,00 67.000 67.000 nº 70, 250x172x50,

Adhesivo 75 gr, un 0,50 9.200 4.600

Limpiador 200 cc, un 0,50 27.000 13.500

Mano de obra, un 1,00 126.000 126.000

AGUA CORRIENTE

Caño PVC de 1”

Caño PVC roscable, ml 1,00 27.850 27.850

Mano de obra, ml 1,00 16.000 16.000

Total por: ml 43.850

Caño PVC de 3/4”

Caño PVC roscable ml 1,00 12.850 12.850

Mano de obra, ml 1,00 13.000 13.000

Total por: ml 25.850

Caño PVC de 1/2”

Caño PVC roscable, ml 1,00 9.850 9.850

Mano de obra, ml 1,00 8.000 8.000

Total por: ml 17.850

Instalación Agua Fría en Baño Completo

Caño 1/2” roscable, ml 9,00 9.850 88.650

Codo 90º roscable, 1/2”, un 6,00 1.660 9.960

Llave de paso de 1/2” un 2,00 87.700 175.400 cromada FV Linea Clásica

Tapon roscable macho ½”un 4,00 690 2.760

Tee 3/4”x1/2” IPS, un 4,00 3.400 13.600

Adhesivo 75 gr, un 0,60 9.200 5.520

Cinta teflon 18mmx25m, un 2,00 9.600 19.200

Mano de obra, un 1,00 412.000 412.000

Total por: un 727.090

Instalación Agua Caliente y Fría en Baño Completo

Caño de 1/2” p/ agua calienteml 9,00 10.350 93.150

Caño 1/2” roscable, ml 9,00

FV Linea Clásica,

Instalacion Agua Caliente y Fría en

Instalación Agua Fría en Baño de Servicio

Caño 1/2” roscable, ml

embutir p/ cisterna nº 4,

bronce sin campana, Adhesivo

Instalación Agua Fría en Baño Social Caño

Codo

secundario, 40mm,

Linea Clásica, Adhesivo

Instalación Agua Fría en Baño Social - FV Allegro

Instalación Agua Fría p/ Pileta de Lavar y Lavarropas

Codo 90º roscable, 1/2”, un 3,00 1.660 4.980

Tee 90º p/ desagüe un 1,00 4.000 4.000 secundario, 40mm, Tapon roscable macho ½”un 2,00 690 1.380

Llave de paso de 3/4” un 1,00 84.000 84.000 bronce sin campana,

Adhesivo 75gr, un 0,20 9.200 1.840 Cinta teflon 18mmx25m, un 1,00 9.600 9.600 Mano de obra, un 1,00

por: un

Instalación Agua Fría para Pileta de Cocina

Caño 1/2” roscable, ml 2,00 9.850 19.700

Codo 90º roscable, 1/2”, un 3,00 1.660 4.980 Tapón roscable macho ½”un 1,00 690 690

Llave de paso 1/2” un 1,00 58.000 58.000 bronce sin campana,

Adhesivo 75gr, un 0,20 9.200 1.840 Cinta teflón 18mmx25m, un 1,00 9.600 9.600

Mano de obra, un 1,00 126.000

un

Instalación Agua Caliente y Fría p/ Pileta de Cocina

Caño de 1/2” p/ agua calienteml 6,00 10.350 62.100

Caño roscable 1/2”, ml 6,00 9.850 59.100

Codo de 1/2” galv, un 6,00 7.700 46.200

Tee 1/2” galv, un 2,00 6.150 12.300

Unión doble 1/2” galv, un 2,00 19.700 39.400

Alma doble 1/2” galv, un 4,00 7.700 30.800

Llave de paso 1/2” FV cromoun 2,00 66.500 133.000

Prolongador FV 1/2”x1 un 1,00 38.000 38.000 cromo sin campana,

Sellador p/ caño 125cc un 0,40 45.900 18.360

Cinta teflón 18mmx25m, un 2,00 9.600 19.200

Mano de obra, un 1,00 254.000 254.000

Total por: un 712.460

COLOCACION DE ARTEFACTOS SANITARIOS

Baño Completo - Frío y Caliente - No incluye bañera

Juego con cisterna bajajuego 1,00 2.211.250 2.211.250

Deca Ravena Crema,

Griferia FV Linea Clásica juego 1,00

2.086.000 (Ducha, bidet y lavatorio)

Termocalefón 80 lt, un 1,00 1.650.000 1.650.000

Soporte para calefón, par

Prolongador 1/2x1

COSTEO DE OBRA

Baño Completo con Bañera Común

Instalación de baño un

7.604.143 completo sin bañera, Bañera 1,60x0,70 m, un

Baño Completo con Bañera Hidromasaje

Instalación de baño un 1,007.604.1437.604.143 completo sin bañera, Bañera

Baño Completo - Frío solo Juego p/ baño completo juego

c/ cisterna alta Deca Ravena Tubo bajada de un

embutir p/ cisterna nº 4, Botiquin 44x58x11cm

Canilla 1/2” cromo p/ un

fijar artefactos,

Baño de Servicio Juego para baño con juego

cisterna alta, Tubo de bajada de un

COSTEO DE OBRA

Bajada p/ lavatorio, un 1,00 17.300 17.300

Canilla p/ lavatorio FV un 1,00 45.000 45.000

Canilla de 1/2” cromo un 1,00 30.000 30.000 para bajo ducha FV,

Conexión cromo ½ x 30 cmun 2,00 37.000 74.000

Enchufe de PVC un 1,00 2.663 2.663

Tornilo de bronce p/ un 6,00 5.700 34.200 fijar artefactos, Cemento blanco, kg 1,00 5.500 5.500 Mano de obra, un 1,00 234.000 234.000

Baño Social - Standard

Juego para baño social juego 1,00 1.113.800 1.113.800 con cisterna alta Deca Ravena,

Canilla para lavatorio un 1,00

Prolongador FV cromo ½ x1 un 2,00

fijar artefactos,

Baño Social - Superior

Pileta de Cocina - Acero Inoxidable - Frío Solo

Pileta 1 bacha, un 1,00 276.000 276.000

Canilla FV pico móvil frío solo un 1,00 200.000 200.000

Mano de obra, un 1,00 122.000 122.000

Total por: un 598.000

Pileta de Cocina - Acero Inoxidable - Frío y Caliente

Pileta 2 bachas, un 1,00 485.000 485.000

Griferia externa FV, un 1,00 850.000 850.000

Mano de obra, un 1,00 122.000 122.000

Total por: un 1.457.000

Pileta de Lavar y Lavarropas

Pileta granítica 1 bacha un 1,00 95.000 95.000 1,20x0,60 m,

Canilla 1/2” bronce FV, un 2,00 49.000 98.000

Sopapa p7 pileta granito un

Mano de obra, un

Total por: un

Mesada de Granito para Cocina

Mesada de Mármol para Baño Social (0.70x0.60m)

Mesada de Mármol para Baño Completo (1.00x0.60m)

INSTALACION ELECTRICA

Pilar de Mampostería 0.45x0.45x1.70m

No incluye cimiento y nivelación

Registro eléctrico 30x30x70cm

Puesto de Medición Provisorio

Monofásico con limitadora hasta 40 A

COSTEO DE OBRA

Trifásico c/ acometida de 3m y limitadora hasta 45 A Caño galv. 2 1/2”x6m, un 1,00

trifasica 2 1/2”, un 1,00

2 1/2” a 1 1/4”, Aislador roldana

Trifásico con limitadora hasta 45 A

Jabalina cobre 5/8 x 2m un 1,00 27.000

de cobre 5/8” x 2un

p/ jabalina un

Línea Subterránea

Monofásica con cable de 4 a 10mm Caño negro plástico ml 1,00

Trifásica con cable de 4 a 10mm

Caño negro plástico 1”, ml

Puesto de Medición Definitivo

(Con línea subterránea o embutido en mampostería)

Monofásico c/ acometida 3m y limitadora hasta 40 A

Línea Monofásica Embutida en Mampostería con Cable de 4 a 10 mm

Caño corrugado 5/8”, ml

Tablero Principal con 6 llaves TM Caja p/ tablero principal un 1,00

12 TM Steck,

COSTEO DE OBRA

Disyuntor TM 1x10A un 5,00 16.500 82.500

Disyuntor TM 1x50A un 1,00 24.200 24.200 MO colocación caja un 1,00 159.000 159.000 embutida, MO colocación llaves, 6,00 204.000

Total por: un 549.700

Tablero principal con 6 llaves TM (llaves europeas)

Total por: un 643.200

Bocas de Lámparas y Tomas de Corriente

(Incluye colocación de electroducto y cableado hasta 5m del tablero principal)

Una Lámpara con su Interruptor

Caja

Caño

Una Lámpara con 2 Llaves de Combinación

Caja de llave plástica, un 2,00 3.300 6.600

Caja metálica

Cinta

Circuitos Independientes

(Hasta 5m del tablero principal en cañerías ya instaladas para otros circuitos)

Circuito para Calefón/AA/Ducha Eléctrica

Caja

Cable de 4 mm, ml 13,0 5.964 77.532 Cinta

Circuitos de Comunicación (Incluye colocación de electroducto y cableado hasta 5m del tablero)

Línea de teléfono con su toma

Total por: un 153.873

Línea de Timbre con su pulsador

Caja de llave plástica, un 1,00 3.300 3.300

Caja metálica conexión un 1,00 1.400 1.400

Caño corrugado 5/8”, ml 10,0 350 3.500

Timbre chicharra un 1,00

externa 220V,

Toma para Antena de TV o Audio

CARPINTERIA DE MADERA

Marco Recto (de 0.15cm p/ puerta de 2.10m de alto)

De Ybyrapyta de 0.70 m de ancho

Marco Recto (de 0.15cm p/ ventana de 1.20m de alto)

De Ybyrapyta de 1.50 m de ancho

Línea Embutida para AA sin cableado

Caja

Tapa ciega cuadrada,

Caño corrugado 3/4”,

Puerta de 2.10 m de alto

Placa de eucalipto (0.80x2.10m)

Puerta placa, un 1,00 180.000 180.000

Ficha 5 agujeros, par 1,50 10.000 15.000

Mano de obra, c/hoja

Total por: un

Placa c/ cerradura para baño (0.80 x 2.10m)

Puerta placa de eucalipto un 1,00 180.000 180.000

Ficha 5 agujeros, par 1,50 10.000 15.000

Tornillo

Tablero (0.80x2.10m)

Puerta tablero común, un 1,00 950.000 950.000

Ficha 5 agujeros, par 1,50 10.000 15.000

Tornillo 1x7, un 30,0 150 4.500

Ficha 3 agujeros, un 1,00 9.000 9.000

Tornillo 1x7, un 52,0 150 7.800

Falleba de arrimar un 1,00 25.500 25.500

Pasador 150 mm un 2,00 18.000 36.000

Varilla p/ falleba 1.20 un 1,00 24.500 24.500

Mano de obra, c/hoja 3,00 36.000 108.000 Total por: un 626.800

Vidriera (2.00x1.20m - 4 hojas de abrir)

Total por: un 841.600

Vidriera (1.00x0.80m)

Total por: un 324.000

Persiana (1.50x1.20m - 3 hojas de abrir)

Ventana persiana fija, m2 1,80 450.000 810.000 Ficha 5 agujeros, par 2,00 10.000 20.000 Ficha 3 agujeros, un 1,00 9.000 9.000

Tablero - Punta Diamante (0.80x2.10m)

Puerta de cedro c/ molduras un 1,00 1.550.000 1.550.000

Ficha 5 agujeros, par 1,50 10.000 15.000 Tornillo 1x7, un 30,0 150 4.500

Cerradura p/ puerta de entrada un 1,00

Vidriera Sencilla (1.50x2.10m - 3 hojas de abrir)

Puerta vidriera,

falleba 1.20 un 2,00 24.500 49.000 Mano de obra, c/hoja 3,00 46.000 138.000 Total por: un 1.232.500

Persiana (1.50x2.10m - 3 hojas de abrir)

Puerta (varilla 45 cm) m2 3,15 450.0001.417.500

Ficha 5 agujeros par 3,00 10.000 30.000

Tornillo 1x7, un 60,0 150 9.000

Falleba de arrimar un 1,00 25.500 25.500

Pasador 150 mm un 2,00 18.000 36.000

Varilla p/ falleba 1.20 un 2,00 24.500 49.000

Persiana (2.00x1.20m - 4 hojas de abrir) Total

1.393.600 Colocación de Contramarco

CARPINTERIA METALICA

Balancín hasta 1 m2

Balancín fabricado con m2 1,00 180.000 180.000

de 5/8 y T 3/4x1/8”,

Ventana de 1.20 m de alto

Vidriera (1.50x1.20m - 3 hojas de abrir) Ventana vidriera m2 1,80

5

Puerta Metálica Tipo Reja (0.80x2.10 m)

Puerta, marco y herrajes, un 1,00

COSTEO DE OBRA

Mano de obra, un 1,00 66.000 66.000

Total por: un 598.950

Cortina Metálica (2.40x2.60 m)

Total por: un 4.346.000

Reja de Hierro Artística Sencilla (1.50x1,20 m)

Reja artística sencilla, m2 1,80 250.000 450.000

Cemento tipo 1, kg 3,00 1.100 3.300

Arena

Mano

Baranda Metálica de Escalera ml 299.750

Portón Metálico (1.00x1.50 m)

Portón de rejas, m2 1,50 280.000 420.000

Cemento tipo 1, kg 2,00 1.100 2.200

Arena

Portón Cochera (3.00x2.00 m)

Portón con cerradura, m2 6,00 270.0001.620.000 Cemento tipo 1,

Al Látex Exterior con Enduido

Portón Cochera (4.40x4.00 m)

Portón

Tejuela o Tejuelón al Barniz

Escalera Metálica Recta

Tejuela a la Cal y Maderamen con Esmalte Sintético

PINTURAS

Pintura

Barnizado de Machimbre

Abertura de Madera con Esmalte

Abertura de Madera con Barníz Aceite

Abertura Metálica con Esmalte

y Bajada con Esmalte Sintético

COSTEO DE OBRA

Parrilla (boca de 1.00 m)

de Ladrillo Visto

Balaustre Sencillo

de Agua en Fibra de Vidrio

VARIOS

Moldura Doble

Tanque de Agua en Fibra de Vidrio

Moldura Sencilla Cemento tipo 1,

715.950

Estufa (Boca de 1.00 m) Ladrillo

PROYECTOS MANDU’A

Descripción general:

Todas las construcciones se realizan en Asunción o alrededores sobre un terreno seco con una capacidad portante de 3 Kg/cm2, que no requiere movimiento de suelo. El análisis de costo incluye los gastos generales (10%) y beneficio de la empresa (15%). Se excluyen los gastos complementarios correspondientes a los Honorarios Profesionales por Proyecto y Dirección de Obras. No se consideran los gastos por Permiso Municipal, de conexión y consumo por servicios de

agua y eléctricidad. Tampoco se considera el valor del predio. Los precios de materiales y de mano de obra corresponden a los publicados por nuestra revista, en cuya guía de costeo de obra se desarrolla cada uno de los ítems. Los precios de mano de obra se basan en consultas realizadas con contratistas y profesionales de construcción. No incluyen cargas sociales, seguro de accidentes, etc.

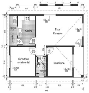
Casa Mandu’a - Vivienda Modelo 1

Descripción: Vivienda económica con una superficie de 67,7 m2

Desarrollo de la Obra

• Fundación: Piedra bruta colocada. Nivelación: Mampostería de 0,30 con ladrillos comunes. • Aislación: Horizontal de muros realizada en cajón con asfalto sólido diluido en caliente. • Mampostería de elevación: Ladrillo hueco de 6 agujeros. En baños y paredes con instalación hidráulica, de ladrillo común. • Dinteles: Envarillado continuo de 2 varillas y de 4 varillas sobre aberturas. • Techo: Tejas españolas prensadas 1ª B, con tejuelones, maderamen de yvyrapyta, aislación con cartón asfáltico, con terminación de boca teja, mojinete y tapa doble. • Carpintería de madera: Marcos de yvyrapyta, aberturas de madera de guatambú, mueble de cocina revestido con laminado plástico. • Revestidos: Azulejos esmaltados lisos 15x15, en cocina, lavadero y baños, con una altura de 1,80 m. • Revoques: Base con azotada impermeable de 0,5 cm y revoque con aditivo hidrófugo, en interior a 1 capa y exterior en la faja perimetral de 0,50 m. Incluye vértice de mampostería y borde de aberturas. • Instalación eléctrica: Monofásica, llaves termomagnéticas brasileñas, Placas, picos de luz y tomas argentinas. Sin artefactos. • Instalación sanitaria: Cañería hidráulica de agua fría, cloacal y pluvial, de PVC. Loza de baño brasileña, con cisterna alta. Pileta de lavar de granito reconstituido.

MODELO 1 - VIVIENDA PLANILLA DE COSTOS

Elevación 0.15 m con ladrillo hueco 6 tubos

Elevación 0.15m con ladrillo hueco 6 tubos, 1

Pilar de ladrillo común 30 x 30 a la vista

Dintel sobre aberturas / envarillado de mamposteria

Techo: teja española, tejuelón, aislante, vigas y tirantes de yvyrapyta

Contrapiso de 10 cm con H° de cascotes

Pileta de cocina de acero inoxidable, 1 bacha. Las canaletas y bajadas, de chapa galvanizada Nº 26. • Pintura: Interior y exterior a la cal con fijador y color. Mampostería a la vista con protección a base de silicona, previa limpieza con ácido muriático. Carpintería de madera y maderamen de techo al barniz. Carpintería metálica y canaletas con esmalte sintético. Limpieza

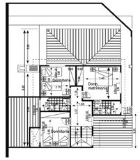
Dúplex Mandu’a Vivienda Modelo 2

Descripción: Conjunto de 3 viviendas, cada una de 121,5 m2, con estructura de losa prefabricada con paredes portantes y disminuyendo pilares y zapatas.

Desarrollo de la Obra

• Fundación: De piedra bruta colocada, con encadenado inferior de HºAº y zapatas de Hº Aº como base de pilares.

• Estructura: Losa cerámica a la vista que se apoya en paredes portantes, con algunos pilares y vigas de HºAº. Nivelación y Dinteles sobre aberturas y techo. • Revestidos: Idem modelo 1. • Aislación: Horizontal idem modelo 1. De baño en planta alta con alisada e impermeabilizante de base asfáltica. • Mampostería de elevación: Ladrillo laminado a la vista en fachada; ladrillo común en baños, área de servicio y paredes con instalación hidráulica; ladrillo hueco de 6 agujeros en interiores y medianeras. • Carpintería de Madera: Marcos de yvyrapyta, aberturas de cedro, placard de guatambú, mueble de cocina revestido con laminado plástico. • Carpintería Metálica: Balancines de ángulos, rejas artísticas sencillas y portón de cochera de chapa doblada. • Pisos: Contrapiso de cascotes, baldosa calcárea de base gris en área de servicio, layota nacional en cochera y parrilla. Cerámica esmaltada sobre carpeta alisada de 30x30 en planta baja, área social, escalera y cocina. De 20x20 en baños. Veredita tipo ka’a. Alfombra de 5 mm sobre carpeta de base en planta alta. • Zócalos: Calcáreo, cerámica esmaltada, layotas, en su caso y madera donde lleva alfombra. • Revoques: Común filtrado por ladrillos comunes con azotado de adherencia en ladrillhidrófugo en exteriores y áreas húmedas. • Instalación eléctrica: Monofásica, llaves TM brasileñas, placas, picos de luz y tomas argentinas.

PROYECTOS MANDU’A

PLANILLA DE COSTOS

Revoque 1 capa , 1.5

Revoque 1 capa con hidrófugo en

tejuelón, vigas y

Sin artefactos. • Instalación Sanitaria: Cañería para agua fría, cloacal y pluvial de PVC, para agua caliente de polipropileno, loza de baño brasileña, cisterna baja en baño social y en planta alta, alta en baño de servicio, pileta de lavar de granito reconstituido y de acero inoxidable de 2 bachas en la cocina. Canaletas y bajadas de chapa Nº 26. • Pintura: Mampostería a la vista con protección a base de silicona, previa limpieza con ácido muriático. Area de servicio y exteriores revocados a la cal con color. Paredes interiores al latex. Carpintería de madera, techo de tejas y losa con cerámica a la vista al barniz. Carpintería metálica y canaletas con esmalte sintético. os huecos, con azotada impermeable (0,5 cm) y común filtrado con aditivo .

Planta Baja
Planta Alta

Dúplex Mandu’a - Vivienda Modelo 3

Descripción: 2 viviendas iguales en Duplex, cada una de 150,3 m2

Sistema constructivo y materiales

Estructura: La losa prefabricada utilizada es de una marca del mercado, utilizada con el mismo criterio adoptado en el Modelo 2.

Desarrollo de la Obra

• Fundación: Idem modelo 2. • Estructura: Se utiliza el sistema Listalosa con cielorraso ranurado a la vista, sin revoque, que descansa sobre paredes portantes, reforzados con algunos pilares y vigas de Hº Aº. • Fundación, nivelación, aislación, mampostería, dinteles, techos, revoques, Instalación Sanitaria y

Pintura: Idem al modelo 2. • Carpintería de Madera: Marcos de lapacho, aberturas, placards y mueble de cocina de cedro, éste último con puertas tablero; mesada de granito natural.

• Carpintería Metálica: Balancines metálicos. Rejas artísticas y portón de cochera de chapa doblada y varillas. • Pisos: Contrapiso de Hº de cascotes, baldosa calcárea de base gris en área de servicio, layota nacional en cochera y parrilla. Granito reconstituído pulido de base gris en área social, estudio y planta alta, y en planchas en la escalera. Cerámica esmaltada sobre carpeta alisada en cocina y baños. Vereda de mosaicos de canto rodado de color 30x30. • Zócalos: Calcáreo, cerámica esmaltada, cerámica roja y granito reconstituido. • Revestidos: Azulejo esmaltado liso 20x30 en baños y cocina. De 15x15 en lavadero y baño de servicio. • Instalación Eléctrica: Monofásica, llaves TM europeas, placas, picos de luz y tomas de procedencia uruguaya. Sin artefactos.

PLANILLA DE COSTOS

MODELO 3 / VIVIENDA DUPLEX, SUPERFICIE 150,30 m²

Mosaico

Pozo ciego 1.50 x 3.00 m

Cámara séptica 1.00 x 1.60 x

Casa 3 opcional

Imprevistos, mermas y roturas (3%)

Costo

Gastos generales y beneficios

Edificio para la Renta Vivienda Modelo 4

Descripción: Edificio de 2 plantas que puede ampliarse a 3, comprende 2 departamentos en Planta Alta, cada uno de 60 m2 y con 2 dormitorios. En planta baja 2 salones comerciales de 34,30 m2 de área interior. Entrada vehicular cubierta.

Desarrollo de la obra

• Fundación: Se utilizan Zapatas de Hº Aº donde actúan cargas puntuales y bajo las paredes, vigas del mismo material. • Estructura: De Hº Aº tipo tradicional, las losas descansan sobre vigas y pilares del mismo ancho que las paredes. En planta alta se utiliza un encadenado general a la altura de asiento de tirantes. • Aislación, mampostería de elevación, dinteles, techo y carpintería de madera, pisos, zócalos, revestidos, revoques, instalación sanitaria: idem al modelo 2. • Carpintería Metálica: Cortina de enrollar de tablillas metálicas con puerta de escape. Balancines, portones de acceso peatonal y de cochera de chapa doblada. Baranda sencilla de escalera. • Instalación

Eléctrica: Idem. modelo 3. • Pintura: Paredes interiores y exteriores del frente y contrafrente al latex. Paredes exteriores medianeras y cielorraso a la cal. Abertura de madera, maderamen y tejuelones del techo al barniz. Carpintería metálica con esmalte sintético.

Planta Baja
Planta Alta

PLANILLA DE COSTOS

Revoque 1 capa sin hidrófugo en interiores

Revoque 1 capa con hidrófugo en exteriores

impermeable 0.5

Techo : teja española , tejuelón, vigas y tirantes Yvyrapyta

Casa Mandua 4 básica

Limpieza final y retiro de escombros (0.8 %)

Imprevistos, mermas y roturas (3%)

Planta Baja

Planta Alta

Galpón tipo tinglado - Vivienda Modelo 5

Descripción: Galpón tipo tinglado, con una superficie de 268,8 m2, con oficina y vestuario. La oficina incluye un baño privado y el vestuario dos boxes de baño, para ducha e inodoro, respectivamente. Consta de patio posterior y retiro en el frente, cumpliendo la norma municipal que exige un 25% de superficie sin construir.

La obra está prevista para un terreno plano y limpio de 12x30 m situado entre linderos.

Desarrollo de la Obra

MODELO 5 / GALPON TIPO TINGLADO,

• Fundación: Pilares asentados sobre zapatas de hormigón ciclópeo y cimiento corrido de P.B.C para asiento de paredes. • Estructura: Realizada con pilares de HºAº y vigas encadenadas conformando 2 anillos de unión. • Aislación, mampostería de elevación, dinteles, carpintería de Madera: Idem. modelo 1. • Techo: Tipo tinglado parabólico, estructura metálica reticulada fabricada de varillas torsionadas pintadas con antióxido. Cubierta de chapa galvanizada ondulada, aireada con extractores eólicos. • Carpintería Metálica: Balancines metálicos de ángulos y perfiles “T”. Portones de chapa doblada en el acceso vehicular y la salida al patio. Escalera metálica recta de acceso al entrepiso de madera. • Pisos: En el patio del frente y dentro del depósito, donde pueden circular vehículos, el piso es de hormigón armado con juntas de dilatación. En la oficina se utilizan baldosa calcárea de base gris y cerámica esmaltada sobre una carpeta alisada, en baños y vestuarios. Vereda de baldosita calcárea tipo ka’a con ranuras antideslizantes. Contrapiso de hormigón de cascotes. • Zócalos: Calcáreo en la oficina. • Revestidos: Azulejo esmaltado liso 15x15 en baños y vestuario. • Revoques: Sobre ladrillos huecos, azotada de adherencia con hidrófugo y revoque común filtrado y sobre ladrillos comunes sólo este último. Las paredes perimetrales llevan revoque a un solo lado. • Instalación Eléctrica: Trifásica, llaves termomagnéticas europeas, placas, picos PLANILLA

DE COSTOS

Casa Mandua 5 opcional

Imprevistos , mermas y roturas (3 % )

Costo de obra opcional

Gastos generales y beneficios 25%

5 opcional TOTAL

SUPERFICIE 268,80 m² GS POR m² CASA 5 BASICA

5

PROYECTOS MANDU’A

de luz y tomas uruguayos, sin artefactos. Instalación Sanitaria: Cañería hidráulica de agua fría, cloacal y pluvial, lozas de baño, canaletas y bajadas idem modelo 1. Cisterna baja en baño de oficina y alta en el vestuario. • Pintura: Paredes revocadas, interiores o exteriores, a la cal. Paredes de ladrillo hueco a la vista con tratamiento correspondiente para el efecto. Carpintería de madera y entrepiso de machimbre pintadas con barniz. Carpintería metálica y caños de bajada con esmalte sintético.

Bolsa de subcontratistas

* La Bolsa de Subcontratistas es una colaboración de la revista con los profesionales y trabajadores de la construcción, teniendo un pequeño costo los anuncios en recuadro. La calidad del servicio, así como la relación contractual, escapa a nuestro compromiso con los apreciados lectores.

Agrimensura

Aire acondicionado

Instalación / Reparación

Bracho, Javier 0981 879749 / 0985 464491

Brítez, Santiago 0981 117524

González, Pedro 644661 / 0982 450866

Maciel, Pablo 0971 939890 / 0981 651205

Ojeda, Hugo 623766 / 0981 868289

Solis, Gabriel 0981 486233

Velázquez, Santiago 0981 843738

Aislación térmica

Duarte, Eleno 0983 338939

Marín, Dionisio 0983 731450

Alambrados

Bentrom, Román 991255

Riveros, Mario 0992 993007 / 0985 887621

Albañilería

Julio Cristaldo

Cel.: 0986 188 514

Benítez, Ramón 0982 370231

Bogarín, Lidio 0971 947177

Bruno, Alejandro 0994 314460

Cabral, Andrés 0982 896561

Cáceres, Carlos 0982 132349

Cazal, Alexis 0981 343423

Esquivel, Rogelio 0981 456697

Fernández, Antonio 515629 / 0981 465940

Garcete, Palermo 0981 965660

Gill, Enrique 642559 / 0981 303974

Giménez, Pablo 0981 951645

Godoy, Eladio 0983 333622

González, Aníbal 0985 222147

González, Benito 0982 248256

Jara, Vidal 0981 434787 / 0981 876489

Jiménez, Antonio 514989 / 0981 660190

López, Osvaldo 0981 836904

Maidana, Sinforiano 0983 380486

Marín, Dionisio 0983 731450

Moreno, Ramón 0981 785546

Ocampos, Higinio 0984 926892

Ortega, Mildesis 0984 369 652 / 0981 594 893

Paniagua, Derlis 0981 182465

Peralta, Raúl 0981 501323

Rando, Gerardo 0985 766 650

Ramírez, Amado 374276 / 0981 485609

Riveros, Carlos 0981 521771

Rojas, Juan 0971 950157

Ruiz, Saturnino 0984 273997

Sosa, Edgar 0984 928914

Vera, Néstor 0981 103889

Animación y perspectiva

Abbate, Alejandra 0982 886227

González, Jorge 0986 552 000 / 0991 880 133

Pérez, Rafael 0981 476743

Aprobación de planos municipales

Benítez, Oscar 0971 340345

Chaparro, Miguel 0961 586457

Fernández, María 0981 932043

Rolón, Oscar 0981 445601

Robledo, Gustavo 0981 939512

Azulejos - colocación

Armando, José 0995 639335

Benitez, Alfredo 0981 520214

Benitez, Antonio 0981 945353

Ferreira, Gustavo 285663 / 0981 881211

Figueredo, Miguel 0981 479221

Godoy, Eladio 0983 333622

González, Benito 0982 248256

Jiménez, Antonio 514989 / 0981 660190

Medina, Antonio 0983 247516

Moragas, Carmelo 0985 268 497 / 0981 547 754

Noguera, Higinio 0981 564472

Ortíz, Vidal 509475

Palacios, Leonardo 0983 207676

Vázquez, Ever 0981 655799

Canaletas

Altamirano, Vicente 0981 851077

Arzamendia, Hugo 0981 126471

Canto rodado (carga en obra)

Figueredo, Catalino 0981 763438

Figueredo, Miguel 0981 479221

Carpintería

Aquino, Miguel 0986 858685

Bordón, Marcial 0971 277041

Franco, Marcos 0982 279166

Olmedo, Miguel 0981 526079

Carpinteros de obra / techistas

Benítez, Aniano 0984 478256

Cáceres, Carlos 0982 132349

González, Aníbal 0985 222147

Jara, Oscar 780642 / 0981 184687

Mora, Pascual 0981 963459

Sosa, Carlos 0992 299951

Valdovinos, Pedro 0981 234113 Cascadas

Acevedo, Patricio 0981 412542

Aguilera, Gabriel 0985 101795

Cepillado en obra

Jara, Oscar 780642 / 0981

cerrado

Colocación de empapelados

Coronel,

Colocación de Losarap

Alarcón, Julio 501130 /0983 367 697 Gill, Enrique 642559 / 0981 303974

Cielorrasos - Durlock/PVC/Yeso

Agüero, Benjamín 0985 740977

Agüero, Jorge 0985 417456

Bentolilla, Esteban 480203 / 0981 385207

Careaga, Víctor 373410 / 0971 936858

Colocación de Parquet

García, Juan 0981 571424

Sosa, Carlos 0992 299951

Colocación de Piedra revestidos / molduras

Aveiro, Gerónimo 0985 242563

Figueredo, Miguel 0981 479221

Martínez, Diego 0984 560 841

Ortíz, Eduardo 0971 379011

Quiñónez, Expédito 0983 356501

Ríos, Francisco 0981 417309

Rojas, Juan 0971 950157

Colocacion de Pisos vinílicos / alfombras

Careaga, Víctor 373410 / 0971 936858

Coronel, Derlis 295479 / 0981 154662

Coronel, Julián 295479 / 0984 580876

Pavón, César 327 6331 / 0982 354987

Sánchez, Alberto 443477 / 0981 503266

Cómputo métrico

Benítez, Oscar 0971 340345

González, Jorge Arq 0986 552000 / 0991 880133

Nuñez, Andrea 0982 170442

Russo, Walter Ing 0991 789561

Vallejos S, Cristina Arq 0982 975371 / 0981 561645

Constructores de obra

Acosta Riveros, Jorge A 0984 557649

Agüero, Teófilo 524755 / 0983 942516

Añazco, Carlos 0981 457301

Benítez, Aniano 0984 478256

Benítez, Juan 751724 / 0981 488904

Benítez, Ramón 0982 370231

Caballero, Oscar 0972 131247

Cabral, Andrés 0982 896 561

Cáceres, Carlos 0982 132349

Cantero, Domingo 0981 244946

Dávalos,Hermes 0981 942718

Escobar, Gustavo 0981 163551

Espinoza, Mauricio 0982 781445

Fernández, Antonio 515629 / 0981 465940

Ferreira, Wilfrido 0981 400128 / 0981 786614

Figueredo, Miguel 0981 479221

Garcete, Palermo 0981 965660

Gill, Enrique 642559 / 0981 303974

Giménez, Leonardo 0981 530453

González, Aníbal 0985 222147

González, Miguel H 0961 889646

González, Rumildo 0971 350004

Gutiérrez, De los Santos 0981 390538

Hucedo, Carlos 0982 178592

Jara, Vidal 0981 434787 / 0981 876489

Jiménez, Antonio 514989 / 0981 660190

Maciel, Milciades 0981 943482

Maidana,Sinforiano 0983 380486

Meza, Esteban 0992 383232

Moreno, Ramón 0981 785546

Narváez, Arsenio 0981 939452

Noguera, Higinio 0981 564472

Ortiz Barrios, César 642239 / 0983 358854

Ortíz, Vidal 509475 / 0971 720887

Oviedo, Richard 0981 291070

Paniagua, Derlis 0981 182465

Quiñónez, Expedito 0983 356501

Quiroga, Pedro 0985 938774

Rando, Gerardo 0985 766 650

Recalde, César 0981 170159

Riveros, Carlos 0981 521771

Riveros, Mario 0992 993007 / 0985 887621

Robledo,Gustavo 0981 939512

Rodríguez, Buenaventura 0972 509828

Rojas, Bernardo 302692 / 0981 531143

Rojas, Juan 0971 950157

Romero, Melchor 0983 470631

Ruiz, Saturnino 0984 273997

Sánchez, Benito 0983 488540

Sánchez, Ricardo 0981 145907

Sánchez, Yisenia 0976 123426 / 0985 297794

Sosa, Edgar 0984 928914

Valdovinos, Pedro 0981 234113

Vega, Augusto 310352 / 0971 972699

Velázquez, Jorge 0983 507243

Velázquez, Santiago 0981 843738

Vera, Néstor 0981 103889

Contratistas de hormigón

Acosta Riveros, Jorge A 0984 557649

Arévalos, Guillermo 752601 / 0981 485307

Benítez, Oscar 0971 340345

Cabral, Andrés 0982 896561

Esquivel, Rogelio 0981 456697

Fernández, Antonio 515629 / 0981 465940

Fernández, Silvino 755284 / 0981 549523

Figueredo, Miguel 0981 479221

Garcete, Palermo 0981 965660

Giménez, Leonardo 0981 530453

González, Aníbal 0985 222147

González, Miguel H 0961 889646

González, Rumildo 0971 350004

Maidana, Sinforiano 0983 380486

Meza, Esteban 0992 383232

Ocampos, Higinio 0984 926892

Olmedo, Julio 0981 652772

Ortega, Mildesis 0984 369652 / 0981 594893

Paniagua, Derlis 0981 182465

Peralta, Raúl 0981 501323

Recalde, César 0981 170159

Torres, Arístides 0981 865518

Velázquez, Santiago 0981 843738

Vera, Néstor 0981 103889

Cortinas

Aguilera, Gabriel 0985 101795

Ayala, Ever 0983 711979

Maldonado, María Estela 0981 561631

Urbieta, Mónica 0981 476743

Demolición

Caballero, Oscar 0972 131247

Herrera, Cristino 0981 976488 / 0984 894128

Vallejos, Cándido 0991 233001

Villalba, Javier 0985 491498

Destronque de árboles

Herrera, Cristino 0981 976488 / 0984 894128

Vera, Néstor 0981 103889

Dibujantes técnicos

Arnedo, Ana Arq 0981 655014

Jacobo, Nora 0971 534417

Maidana, María B. 0991 988215

Martínez, Francisco 0786 230619 / 0975 681680

Montiel, Gustavo 586343 / 0982 488928

Rodriguez, Buenaventura 0972 509828

Rolón, Manuel 0986 909404

Rolón, Oscar 0981 445601

Digitalización de planos

Abbate, Alejandra 0982 886227

Aponte, Andrea 0971 190781

Arnedo, Ana Arq 0981 655014

Arza, Andrea Arq 0981 966786

Coronel, Renzo 0971 362856 / 0986 656577

Escobar, Gustavo 0981 163551

Ferreira, José 0981 915492

González, Jorge 0986 552 000 / 0991 880133

Maidana, María B. 0991 988215

Montiel, Gustavo 586343 / 0982 488928

Nuñez, Andrea 0982 170442

Nuñez, Miguel 0982 634026

Quintana, Jorge 290680 / 0981 426037

Robledo, Gustavo 0981 939512

Rolón, Manuel 0986 909404

Rolón, Oscar 0981 445601

Sánchez, Yisenia 0976 123426 / 0985 297794

Toledo, Milena 0981 201561

Divisorias interiores / Mamparas

Bentolilla, Esteban 480203 / 0981 385207

Careaga, Víctor 373410 / 0971 936858

Pavón, César 327 6331 / 0982 354987

Dorado a la hoja

Chávez, Ada 0981 838274

Drenaje

Caballero, Rodrigo 0981 257702

Velázquez, Santiago 0981 843738

Electricistas

Aquino, Roberto 521610/ 0971 313847

Benítez, Cándido 0981 496207

Bracho, Javier 0981 879749 0985 464491

Brítez, Santiago 0981 117524

Cáceres, Isidro 0981 927945

Chaparro, Miguel 0961 586457

Castillo, Marco 0981 578068

Coronel, Derlis 295479 / 0984 580876

Coronel, Julián 295479 / 0981 154662 Ever Pereira 0983 460 494

Delgadillo, Alberto 0981 844429

Delgadillo, Francisco 0982 335870

Díaz, Carlos 572156 / 0982 464967

Duarte, Gustavo 0983 191182

Esquivel, Rogelio 0981 456697

Galarza, Ramón 0981 230273

Garcete, Palermo 0981 965660

Giménez, Carlos 0981 741087

Giménez, Flaminio 0971 227480 / 0983 841240

González, Pedro 644661 / 0982 450866

Hucedo, Carlos 0982 178592

León, Cañete 0983 800938 / 0981 561409

Maciel, Pablo 0971 939890 / 0981 651205

Martínez, Gerardo 0981 493190

Montanía, Ylber 0981 474025

Núñez, Cayo 0983 404670

Otello Roa, Félix 780691 / 0972 822577

Paniagua, Derlis 0981 182465

Parini, Fernando 0983 657565

Ramírez, Dario 0992 863100 / 0991 677208

Ramírez, Roberto 944740 / 0981 494624

Rolón, Carlos 0982 751296

Ruiz, Carlos 0981 896430

Sanabria, Jorge 0984 154375

Sartorio, Jorge 0981 939172

Solis, Gabriel 0981 486233

Toñánez, Sebastián 0981 912516

Valenzuela, Luis 0982 127968 / 0985 942676

Vallejos, Cándido 0991 233001

Villaverde, Silvino 0992 396855

Empedrados y adoquinados

Santacruz, Pablo Ing 0981 105004

Fumigación

Herrera, Cristino 0981 976488 / 0984 894128

Herrería / estructuras metálicas

Arzamendia, Hugo 0981 126471

Bordón, Marcial 0971 277041

Bracho, Javier 0981 879749 / 0985 464491

Cazal, Mario 0982 878501

Delvalle, Christian 0981 853884

Garcete, Palermo 0981 965660

Herrera, Edgar 0982 272468

Maldonado, María Estela 0981 561631

Orrego, Cándido 0984 958981

Hojalatero

Cazal, Alexis 0981 343423

Impermeabilización

Duarte, Eleno 0983 338939

López, Ramón 0981 569767

Marín, Dionisio 0983 731450

Martínez, Braulio 0981 193232

Ramírez, Amado 374276 / 0981 485609

Ruffinelli, Miguel 0981 449955

Velázquez, Santiago 0981 843738

Jardineros

Aguilera, Gabriel 0985 101795

Basualdo, Javier 0982 311208

Duarte, Tomás 0985 941909

Villaverde, Silvino 0992 396855

Limpieza de patios

Bentrom, Román 991255 Herrera, Cristino 0981 976488 / 0984 894128

Riveros, Mario 0985 887621

Mesadas de cocina / bañoMarmolería

Jimenez, Miguel Angel 0981 541146

Montaje de transformadores y motores

Benítez, Genaro 0981 496837

Díaz, Carlos 572156 / 0982 464967

Mancuello, Fernando 0991 201918

Morales, Gustavo 0981 893881

Motoserrista / poda de árboles

Basualdo, Javier 0982 311208

Bentrom, Román 991255

Duarte, Tomás 0985 941909

Riveros, Mario 0992 993007 / 0985 887621

Muros verdes / jardines verticales

Arzamendia,

Ángel

Bogarín, Héctor 0985 959921

Borja, Francisco 0991 820078

Bruno, Alejandro 0994 314460

Careaga, Víctor 373410 / 0971 936858

Cazal, Alexis 0981 343423

Garcete, Palermo 0981 965660

Gauto, Miguel 0981 938415

Giménez, Hernando 0981 419674

Giménez, José 0993 353888 / 0981 604638

Giménez, Leonardo 0981 530453

Godoy, Pedro 0981 596914

González, Aníbal 0985 222147

Herrera, Edgar 0982 272468

Ibarra, Jorge 0961 842883

López, Ramón 0981 569767

Marín, Dionisio 0983 731450

Martínez, Diego 0984 560 841

Medina, Germán 0982 320250

Mereles, Néstor 0985 653204

Miranda, Félix 0981 514763

Morínigo, Miguel 973372 / 0981 474261

Noguera, Higinio 0981 564472

Ojeda, Darío 0971 223440

Oviedo, Richard 0981 291070

Paniagua, Derlis 0981 182465

Ramírez, Amado 374276 / 0981 485609

Ramírez, Ladislao 0981 766680

Reyes, Luis 0981 231612

Riveros G., Carlos 0981 521771

Riveros, Mario 0992 993007 / 0985 887621

Rojas, Bernardo 302692 / 0981 531143

Romero, Melchor 0983 470631

Sosa, Edgar 0984 928914 Vallejos, Cándido 0991 233001

Pintura texturada

Arévalos, Alberto 0971 208038 Giménez, Hernando 0981 419674

López, Ramón 0981 569767

Piscinas - Construcción

y

Piscinas

- Limpieza y Mantenimiento

López,

Piseros

Caballero, Rodrigo 0981 257702

Fernández, José 0982 627836

Giménez, Leonardo 0981 530453

Godoy, Eladio 0983 333622

González, Benito 0982 248256

Jiménez, Antonio 0981 660190

Maciel, Milciades 0981 943482

Martínez, Diego 0984 560 841

Medina, Antonio 0983 247516

Moragas, Carmelo 0985 268497

Noguera, Higinio 0981 564472

Palacios, Leonardo 0983 207676

Rando, Gerardo 0985 766 650

Riveros, Carlos 0981 521771

Rojas, Juan 0971 950157

Samaniego,Jorge 0982 986 757 0994 759925

Pisos técnicos (sobre elevados)

Agüero, Benjamín 0985 740977

Plomeros

Agüero, Benjamín 0985 740977

Aguilera, Gabriel 0985 101795

Alcaráz, Andrés 0971 956096

Altamirano, Vicente 0981 851077

Báez, Raimundo 0981 609001

Bracho, Javier 0985 464491

Caje, Rodolfo A. 0984 234423

Cazal, Mario 0982 878501

Chávez, Jorge 0981 823284

Escobar, Carlos 0971 357473

Fariña, Antonio 0971 231175

Ferreira, Gustavo 0981 881211

Garcete, Palermo 0981 965660

Giménez, Pablo 0981 951645

Herrera, Edgar 0982 272468

Hucedo, Carlos 0982 178592

López, Víctor M. 0971 760390

Medina, Alfredo 0981 468756

Medina, Germán 0982 320250

Moragas, Carmelo 0985 268497

Moragas, Victorino 0981 892513

Noguera, Higinio 0981 564472

Núñez, Cayo 0983 404670

Ortiz, Vidal 509475

Paniagua, Derlis 0981 182465

Rando, Gerardo 0985 766 650 Riveros G., Carlos 0981 521771

Riveros, Mario 0992 993007

Romero, Melchor 0983 470631

Ruíz, Carlos 0981 896430

Vallejos, Cándido 0991 233001

Villalba, Javier 0985 491498

Villaverde, Silvino 0992 396855

Ploteo de planos

Coronel, Renzo 0986 656577

Prevención contra incendios

Caje, Rodolfo A. 0984 234423 Manchini, César 0981 245725

Proyecto arquitectónico

Abbate, Alejandra 0982 886227 Aponte, Andrea 0971 190781

Arnedo, Ana Arq 0981 655014

Coronel, Renzo 0971 362856

Fernández, María Arq 0981 932043

Martínez, Liz Arq 0981 926697

Nuñez, Andrea 0982 170442

Pérez, Rafael 0981 476743

Pulidor de parquet

Fernández, José 0982 627836

Pulidor de piso granítico y de H˚

Caballero, Rodrigo 0981 257702

Fernández, José 0982 627836

Refrigeración / AA / camaras frigorificas/heladeras

Brítez, Santiago 0981 117524

Galarza, Ramón 0981 230273

Hucedo, Carlos 0982 178592

León, Cañete 0983 800938

Ruiz, Carlos 0981 896430

Sartorio, Jorge 0981 939172

Reparación / instalación de electrobombas para pozos

Escobar, Carlos 644497 / 0971 357473 Moragas, Carmelo 0985 268497

Restauración de muebles

Aparici, Mari 0981 500065 Montanía, Higinio 0981 530480

Seguridad

Topógrafos

Guillén,

Quintana, Jorge 0981 426037

Recalde, César 0981 170159

Robledo, Gustavo 0981 939512

MANDU’ARA

Mandu’ara

*Lista de precios de materiales y servicios de la construcción ordenada por orden alfabético. Los precios incluyen el I.V.A. Todos los valores incluidos en esta edición son meramente indicativos, siendo los mismos resultando de un análisis de los precios los vigentes en el mercado. Mandu’a no se hace responsable de los mismos. INDICE

66 - ABERTURAS

67 - ACOND. DE AIRE

67 - ALAMBRES

67 - ALQUILER Y VENTA DE EQUIPOS Y MÁQUINAS

68 - AISLANTES ACÚSTICOS

71 - AISLANTES TÉRMICOS

71 - ASCENSORES

71 - BIODIGESTORES

71 - CAL

72 - CARPINTERÍA DE ALUMINIO

73 - CEMENTO BLANCO

73 - CEMENTO GRIS

73 - CERÁMICA ROJA

74 - CERCO ELÉCTRICO

74 - CONSTRUCCIÓN EN SECO

74 - CORTINAS

74 - CHAPAS

75 - CIELORRASOS

75 - CONTENEDORES

78 - DIVISORIAS SANITARIAS

78 - DRENAJES

79 - ELECTRICIDAD

ABERTURAS

79 - ESTRUCTURAS

79 - ESTUDIO DE IMPACTO AMBIENTAL

80 - FALLA DE PAVIMENTOS

80 - FERRETERÍA

80 - FUMIGACIONES

80 - GAVIONES

80 - HERRERÍA

81 - HERRAJES

81 - HIDRÓFUGOS

81 - HIERROS

81 - HORMIGÓN

82 - IMPERMEABILIZANTES

82 - LABORATORIO DE ENSAYOS

82 - LOSA PREFABRICADA

82 - MÁRMOL Y GRANITO

83 - MAMPARAS

83 - MALLA ELECTRO SOLDADA

83 - MEMBRANAS ASFÁLTICAS

83 - OBRADORES

83 - PERFILES

83 - PERFORACIÓN DE POZOS

84 - PIEDRAS

Madera

Puerta placa

De 0,60 - 0,70 y 0,80 m

De cedro

De eucalipto/cupay

84 - PILOTES

84 - PINTURAS

85 - PISOS Y REVESTIMIENTOS

86 - PISOS SOBREELEVADOS

86 - PISOS VINÍLICOS

86 - PORTONES A CONTROL

86 - REMOTO

87 - PREVENCIÓN

DE INCENDIOS

88 - PUERTAS AUTOMÁTICAS

89 - SELLADORES

89 - TERMINACIONES

89 - TOPOGRAFÍA

90 - VARILLAS

90 - VIDRIOS

Marco de yvyrapyta : cepillado, lijado y con 1 rebaje

ADHESIVOS

Brascola/Casarino

ALAMBRES

Liso

01 Acerado Nº 17/15, rollo 1000m un 780.000

02 Galvanizado Nº 9, 12, 14 kg 17.000

03 Galvanizado Nº 20 kg 16.800

04 Negro de atar Nº 18 kg 18.000

De púa

01 Nº 16, rollo de 400 un 300.000

Tejido de Alambre Romboidal x m2

Postes de madera

Yvyrapyta - Altura 2,20 m

01 De 2x3” un 14.850

02 De 3x3” un 17.820

Postes de hormigón (ver rubro Prefabricados)

ALQUILER Y VENTA DE EQUIPOS Y MÁQUINAS

Equipos

01 Alisadora de H° (Honda-Lifan)

02 Amoladora o cortadoras para cerámica de 9” (Bosch)

03 Andamio ER (alt. 1,50 largo 1.80 - ancho 1.10 mts )

04 Andamio Acrow (alt. 1,85 largo 2.50 - ancho 1.20 mts )

Aparejo con roldana

01

06

AISLANTES ACÚSTICOS

Premiun Alpine 30mm - 61 x 61 cm

Placa Poliestireno Extruido 1,20m x 60cm

Lana

Panel

Calidad y garantía en todos nuestros servicios

Asesoramiento profesional personalizado

Excelente atención al cliente

Corochiré 4065 c/Cap. Jow Von Sastrow (Zona Multiplaza Km 5) As. Py

Andamios Martillete Vallados

Poliestireno Extruido 1,20m x 60 cm x 25mm

Arcilla Expandida

Diámetro 20mm

Bolsa de 50 lt.

Bolsa de 25 lt.

Bolsa de 2 lt.

Diámetro 30mm

Bolsa de

MANDU’ARA

CAÑOS Y ACCESORIOS

PVC - Tubos de 6 m

Tubo liviano para desague (blanco)

De 40 mm un 44.700

De 50 mm un 67.500

De 75 mm un 144.000

De 100 mm un 155.000

De 150 mm un 363.500

Tubo cloacal blanco

De 100 mm un 84.000

De 150 mm un 294.000

Tubo roscable blanco agua fría

De 1” un 167.000

De 3/4” un 77.000

De 1/2” un 59.000

Tubo soldable p/ 10kg

De 32 mm, un 57.000

De 25 mm, un 30.000

De 20 mm, un 21.000

Tubo para agua caliente, roscable, 4 capas

De 1/2” un 62.000

CODOS PVC

Codo PVC para desagüe primario

De 50 mm x 45° un 4.000

De 50 mm x 90° un 4.500

De 100 mm x 45° un 9.450

De 100 mm x 90° un 11.150

Codo PVC para el desagüe secundario

De 40 mm x 45° un

De 40 mm x 90° (buje largo) un

Caja sifonada cuadrada con rejilla inox

Anillo de sellado p/ desague 75mm un 4.600

Anillo de sellado p/ desague 100mm un 5.000

Buje largo reducción p/ desague 50x40 mm un 2.450

Buje corto soldable 50x40 mm un 4.170 Codo

Ramal “Y” 100x100 mm un 28.500

Tapon macho roscab p/desague secund de 1/2” un 690

Tee roscable de 1/2” un 2.600

Tee 3/4” a 1/2” IPS un 3.400

Tee 40x40 mm x 90° p/ desague primario un 4.000

Tee 50x50 mm x 90° p/ desague primario un 7.100

Tee 100x100 mm x 90° desague primario un 18.700

Tubo de descarga de EXTERNA p/cisterna un 13.500

Tubo de descarga embutida ASTRA p/ cisterna un 15.300

Tubo desague plástico Astra p/ lavatorio un 14.000

Tubo descarga externa Astra p/ lavatorio un 17.300

Union sencilla roscable 1/2” un 1.700

Hierro galvanizado - caños de 6ml

De 1/2” un 163.000

De 3/4” un 214.000

De 1” un 342.000

De 1 1/4” un 392.000

De 1 1/2”, un 482.000

De 2” un 670.000

De 2 1/2”, un 827.000

PLANTA INDUSTRIAL

Virgen del Rosario 563 c/ Beatríz Benítez, Itauguá.

OFICINA COMERCIAL

Óscar Bottana 100 esq.

Cacique Cara Cará, Asunción Tel.: 0985 335 000 ventas@fineza.com.py

CARPINTERIA DE PVC

CERÁMICA ROJA

CERCO ELÉCTRICO

Cerco eléctrico de 4 hilos con hastes de hierro 5/8”

CORTINAS

Cerco de cuchillas

CHAPAS

TECNIPANELES

-Paneles con núcleo de PIR

(0986) 802 098 div.comercial@tecnimet.com

-Núcleo de 40kg/m3

-Paneles con núcleo de PIR

-Paneles Trapezoidales y machihembrados.

(0986) 802 098 div.comercial@tecnimet.com

Policarbonato

01 Alveolar 6 mm

02 Mano de obra, colocación

-Paneles con núcleo de PIR -Núcleo de 40kg/m3

-Paneles Trapezoidales y machihembrados.

-Núcleo de 40kg/m3

-Paneles Trapezoidales y machihembrados.

div.comercial@tecnimet.com

03 Estructura metálica con caño 20x30” p/ montaje del policarbonato

Metálicas

ZINC Aluminizada de 0,90 cm ancho (Cincalum)

Chapa Ondulada No 28

01 De 8 pies (2.44m largo)

02 De 12 pies (3.66m largo)

TEL.: 021 906

+(595) 974 502 500

+(595) 986 174225

CHAPAS TERMOACÚSTICAS

CHAPAS TRAPEZOIDALES

CHAPAS ONDULADAS

CHAPAS COLONIALES

CHAPAS LISAS

CALIDAD DE ACEROS PARA SUS OBRAS

www.mvaceros.com.py

ventas5@mvaceros.com.py

CAÑOS

ÁNGULOS PLANCHUELAS

BABETAS FRONTAL Y LATERAL PLANCHUELAS VARILLAS IPN > UPN PERFILES

PLEGADOS PARA PUERTAS ARTÍCULOS DE FERRETERÍA

CIELORRASOS

TEL.: 021 906 951

CEL.: 0971 543 246

CEL 0971 543 246

CDE: 061 570 501 (021) 906 951/2 (021) 328 0572/3

DEPOSITOS DE MADERA

, cepilladas

MANDU’ARA

6,0 - 6,9 m pulg/m

Tabla y puntales para encofrado

Tabla de eucalipto de 1” pulg/m 600

Puntal de eucalipto de 3x3” pulg/m 650

Tirantesde ybyrapyta / kurupa’y

1,0 -1,9 m pulg/m 2.800

2,0 -2,9 m pulg/m 2.900

3,0 - 3,9 m pulg/m 3.400

4,0 - 4,4 m pulg/m 3.500

4,5 - 4,9 m pulg/m 3.700

5,0 - 5,9 m pulg/m 3.800

6,0 - 6,9 m pulg/m 4.200

Machimbres De eucalipto 1/2 x 3”

De pino 1/2 x 4”

DEPÓSITOS DE MATERIALES

Ladrillos

Ladrillo común

Tobatí, un 650

Prensado 3 agujeros Ita yvy de 1a, 5x11,5x23,5 cm un 946

Laminado rústico Ita yvy de 1a, 5x11,5x23,5 cm un 825

Laminado Yoayu de 1a un 1265

Yoayu laminadito 5x11 x 23 cm un 949

Prensado 3 agujeros Yoayu de 1a, 5x11,5x23,5 cm un 1.044

Ladrillo hueco

De 6x12x25 cm, 2 caras vistas, 3 tubos, 52 un x m2,

Yoayu de 1ra A, un 904

Ita Yvy de 1ra A, un 1.012

Ita yvy de 1ra B, un 792

De 8x18x25 cm, 6 tubos, 20 x m2

Ita Yvy de 1ra A, un 1.177

De 12x18 x25 cm, 6 tubos, 19 o 28 un x m2

Ita yvy de 1ra A un 1.298

Ita Yvy de 1ra B un 1.254

Yoayu de 1ra un 1.404

Yoayu de 1ra requemado un 1.278

De 18x18x25 cm, 9 tubos , 20 un x m2

Ita Yvy de 1ra A un 2.200

Ita Yvy de 1ra B un 1.716

Ladrillo estructural

Ita Yvy 14x19x14 cm un 1.661

Ita Yvy 14x19x29 cm un 2.937

Ita Yvy 14x19x45 cm un 4.543

Ladrillo sapp de 1a - H5- 12 un x m27x30x25 cm

Ita Yby un 1.606

Yoayu un 1.860

Ladrillo laminado recto - 6x12x25 cm, 52 un x m2

Irene 1ra A un 1.155

Yoayu laminadito 5x11x25 cm un 949

Ladrillo laminado curvo, 15 un x ml

Irene de 1ra un 1.950

Yoayu de 1ra B un 2.169

Ladrillo convoco, recto o inclinado 25un x m2

Ita Yvy 19x19x11 cm un 2.013

Irene, 18x18x12 cm un 2.650

Irene, 25x25x12 cm un 4.555

Yoayu 19x19x10 cm un 2.644

Ladrillejos 52 un x m2

Yoayu 1ra un 765

Yoayu 2da un 626

Ladrillo refractario 30 un x m2 , 6x12x25 cm

Ita Yvy de 1ra un 5.071

Yoayu 1ra un 6.148

Ladrillo klinker 44 un x m2 , 10x20x3,5 cm

Ita Yvy de 1ra un 1.804

Yoayu 1ra un 2.397

TEJAS

Teja española prensada de 1ra

Yoayu-26 un x m2

De 1ra A un 1.809

De 1ra B un 1.682

De 1ra fogueada un 1.455

De 1ra requemada un 1.328

De 2da un 1.328

De 1ra A extrusada un 1.303

Teja ROMANA o portuguesa Yoayu-

De 1ra A un 2.277

De 1ra B un 2.024

Teja FRANCESA YoayuDe 1ra B un 2.720 De 2DA un 1.898

Tejuelones - 9 un x m2

Yoayu de 1ra A un 2.574

Yoayu de 1ra B un 2.321

Ita Yvy de 1ra A un 2.288

Ita Yvy de 1ra B un 2.046

Tejuelitas - 30 un x m2

Ita Yvy de 1ra B un 473

Yoayu 1ra B un 658

Layotas

De 18x18 cm, 28 un x m2

Yoayu 1ra un 582

De 30x30 cm, lisa, 10 un x m2 un

Ita Yvy de 1ra un 1.914

Ita Yvy de 1ra B un 1.760

De 30x30 cm, rugosa, 12 un x m2 un

Ita Yvy de 1ra un 1.969

Ita Yvy de 1ra B un 1.826

De 28x28 cm, lisa, 12 un x m2

Yoayu de 1ra A un 1.666 Yoayu de 1ra B

Yvy de 1ra

Ita Yvy de 1ra B un 1.452

De 28x28 cm, rugosa, 12 un x m2

Yoayu de 1ra A un 1.666 Yoayu de 1ra B antideslizante un 1.540

Ita Yvy de 1ra un 1639

Ita Yvy de 1ra B un 1.518

Zocalos de layota de 1ra A -10 cm de ancho

Yoayu de 28 cm un 2.530 Ita Yvy de 1ra - 28 cm

2.233 Ita Yvy de 1ra B- 28 cm un 1.507

Varios

Plástico para techo 200 micrones m2 4.000

Pileta granÍtica - 1 bacha 1,00x0,50 m un 95.000

Pileta granÍtica - 2 bacha 1,40x0,50 m un 125.000

Cascotillo cerámico m3

Asfalto para aislación 3,6 lt un 60.000

Poste de Karanday un 120.000

DIVISORIAS SANITARIAS

TEL.: 021 906 951

(021) 906 951/2

CEL.: 0971 543 246

(021) 328 0572/3

CEL 0971 543 246

CDE: 061 570 501

CASARINO

DRENAJES

01 Manta geotextil 200 g (Casarino) m2 12.000

ELECTRICIDAD

Columna de entrada (Materiales varios)

01 Aislador roldana B.T. 72x72mm, un 3.000

01 Aislador retención 0,50 un 3.500

02 Bulón p/ madera 3/8 x 3” un 1.000

03 Caño de acero ¾” x 3 m, un 8.500

04 Caño de acero 1” x 3 m, un 15.000

05 Caño galvanizado 2” x 5,8 m, un 125.000

06 Caño galvanizado 2 ½” x 5,8m, un 210.000

07 Cruceta p/ pre emsamblado 2” monofásica un 3.000

08 Cruceta p/ pre emsamblado 2 ½” Trifásica. un 3.500

09 Curva galvanizada 1 ¼”, un 8.500

10 Fondo de madera monofásico, un 6.000

11 Fondo de madera trifásico, un 6.000

12 Tapa monofásica Ande, un 8.500

13 Tapa trifásica Ande, un 10.000

14 Unión reducción 2” x 1”, un 9.500

15 Unión reducción 2 ½” x 1 ¼”, un 11.500

16 Curva galvanizada 1”, un 24.970

Cinta aisladora

01 Cinta auto soldable 3M 19mm x 2 mts un 7.500

02 Cinta aisladora Millión 19mm x 2 mts un 5.500

Tablero de embutir transparente

01 Para 8 TM, un 25.000

02 Para 12 TM, un 31.500

03 Para 24 TM, un 80.000

Llaves termo magnéticas

Unipolares

01 Disyuntor TM 1x 10A, DIN un 8.000

02 Disyuntor TM 1x 40A, DIN un 10.500

03 Disyuntor TM 1x 50A, DIN un 10.500 Tripolares

01 Disyuntor TM 3x 20A, DIN un 28.000

02 Disyuntor TM 3x 32A, DIN un 28.000

03 Disyuntor TM 3x 40A, DIN un 30.000

04 Disyuntor TM 3x 63A, DIN un 30.000

Caño corrugado nacional

01 De 1/2”, m 290

02 De 5/8”, m 365

03 De 3/4”, m 465

04 De 1”, m 590

Caño plástico negro nacional (electroducto)

01 De 3/4”, m 890

02 De 1”, m 1.290

Varios

01 Apliques desde un 80.000

02 Arañas desde un 150.000

03 Faroles desde un 100.000

04 Caja de conexión metal 3x3, un 1.450

ESTRUCTURAS

TInglado Metálico

01 Hasta 10 m de luz,

02 De 10 m a 15 m de luz,

03 De 15 m a 20 m de luz,

de HoAo

ESTUDIO DE IMPACTO AMBIENTAL

FALLA DE PAVIMENTOS

FERRETERÍA

01 Balde albañil de plástico, un 10.000

02 Cemento de contacto, lt 23.500

03 Kerosene, lt 10.000

04 Masilla común kg 15.000

05 Solvente para cemento de contacto, lt 15.000

FUMIGACIONES

01 Fenoina, insecticida y fungicida p/maderas (Casarino) LT. 32.000

HERRERÍA

Aberturas

Barandas de balcón

01 De hierro sencilla 1,00m, pasamanos de 60x25mm en chapa doblada Nº14 colocación incluida dentro del radio urbano de Asunción

Balancines sin colocación - A partir de 1 m2

Balancín fabricado con ángulo 5/8 y T 3/4x1/8, hoja de 0,20 m,

Balancín fabricado con ángulo 3/4 y T 7/8 x 1/8,

metálicas de enrollar - A partir de 10 m2

Cubrerrollo de chapa N° 18 con puerta

Escaleras 01 Caracol diámetro 1,20 m, estructura de hierro con baranda, peldaños, con 1 mano antióxido y colocación incluida, por metro de altura,

Reja para ventana

01 Reja artística sencilla, con marco de ángulo de 3/4 x 1/8”, varilla de 10mm y dibujo rombo con planchuela de 3/4 x 3/16, m2 198.000 02 Idem anterior reja artística dibujada, m2

Portones (ver Portón a control remoto)

HERRAJES

Varios

01 Falleba de arrimar cromada, un 25.500

02 Ficha de 3 agujeros brasileña, reforzada, par 9.000

03 Ficha de 5 agujeros brasileña, reforzada, par 10.000

04 Pasador a palanca de embutir cromado de 150 mm un 18.000

05 Pasador a palanca de embutir cromado de 200 mm, un 25.000

06 Tirafondo galvanizado de 3/8x5”, un 1.500

07 Tornillo 1x7” caja de 144, un 150

08 Varilla de hierro para falleba de 1,20 m, un 24.500

09 Varilla de hierro para falleba de 1,50 m, un 30.000

HIDRÓFUGOS

Pennsylvania

1 Ceresita, 20 kg, kg 6.150 Casarino

1 De, 5 kg un 29.500

HIERROS

HORMIGÓN

Hormigón Elaborado

* Comprende elaboración, transporte, bombeo, toma de muestras y rotura en laboratorio. Precios al contado

HOJALATERIA

Chapa galvanizada

Canaleta embutida N° 24

60 cm,

50 cm,

moldurada 40 cm

N° 24

Canaleta moldurada 33 cm

N° 26

N° 28

IMPERMEABILIZANTES

Casarino

1

3

LABORATORIO DE ENSAYOS

LOSA PREFABRICADA

Vigueta de Hº pretensado y ladrillo (Losa Rap)Puesto en obra

Vigueta de cerámica armada con cielo raso de hormigón visto incluido, a retirar de fábrica. (Listalosa)

MÁRMOL Y GRANITO

PreLosa pretensada y ladrillo Rap (PreRap 0,12x1,20 m) - Puesto en obra

MAMPARAS

01 Mampara ciega

02 Mampara vidriada

03 Accesorios y herrajes p/ puerta simple, un 280.000

autoadhesivas

(021) 906 951/2

TEL.: 021 906 951

(021) 328 0572/3

CEL.: 0971 543 246

CEL 0971 543 246

CDE: 061 570 501

MALLA ELECTRO SOLDADA

Garelli

1 De diámetro 4,2 mm, para cubrir 15 m2 un

MALLA DE FIBRA DE VIDRIO

Casarino

Para refuerzo de revoques en rollo de 50 m²

5mm x 5mm x 75gr/m2

5mm x 5mm x 110gr/m2

10mm x 10mm x 110gr/m2

3,17mm x 3,17mm x

Tela tramada de poliester

P/ refuerzo de pintura y cementicios

Tela tramada 1m x 50m

MEMBRANAS ASFÁLTICAS

Casarino

Casarino con Aluminio rollo de 10 m

1 De 3

2 De 4 mm

Casarino sin Aluminio rollo de 10 m

1

2

3

4

PIEDRAS

Para fundaciones y hormigón

01 Piedra bruta blanca m3 150.000

02 Piedra bruta blanca, carga 5 m3 un 750.000

03 Piedra triturada IV tn 110.000

04 Piedra triturada V tn 120.000

05 Ripio, rojo m3 70.000

06 Ripio, negro tn

Adoquin de Piedra

01

02 Mediano (90 un x m2, aprox) un 1.300 03 Grande (70 un x m2, aprox) un 1.300

Piedra para borde de piscinas

01 Borde Atérmico,

Piedras para revestidos

PILOTES

PINTURAS

Para

Para

Tiza Pai Puku para pintura

Tiza Pai Puku para pintura

Tiza Pai Puku para pintura

Tiza Pai Puku para pintura

MEJOR QUE LA IMPORTADA Y MUCHO MAS BARATA

MEJOR QUE LA IMPORTADA Y MUCHO MAS BARATA

MEJOR QUE LA IMPORTADA Y MUCHO MAS BARATA

MEJOR QUE LA IMPORTADA Y MUCHO MAS BARATA

Baldosones de Hormigón - Linea Gris

de Hormigón -

01

Pai Puku S.A. - Yrendague 136

Pai Puku S.A. - Yrendague 136

Pai Puku S.A. - Yrendague 136

Pai Puku S.A. - Yrendague 136

M. Roque Alonso - TEL: (021) 752507, WSP: (0981) 112549

M. Roque Alonso - TEL: (021) 752507, WSP: (0981) 112549

M. Roque Alonso - TEL: (021) 752507, WSP: (0981) 112549

M. Roque Alonso - TEL: (021) 752507, WSP: (0981) 112549

Varios

PISOS Y REVESTIMIENTOS

PISOS Y REVESTIMIENTOS

Baldosas Calcáreas

Baldosas Calcáreas

Base Gris

Base Gris

01 De 20x20, 15x30 o 25x25 cm,

03 Zócalo 10x30 cm

Base Blanca

01 De 20x20, 15x30 o 25x25 cm,

03 Zócalo 10x30 cm

Equipa

Piso Para Deck Ecológico WPC 01

Mosaico granítico para interior

Mosaico granítico para interior

Base Gris semi pulido

01 De 30x30 cm

Base Gris semi pulido 01

Plancha o escalones

Plancha o escalones

Base Blanca semi pulido

01 De 30x30 cm

75.000 02 De 40x40 cm

80.000 03 Zócalo 10x30 cm

04 Plancha o escalones

Mosaicos para exterior

Granito lavado

Mosaicos para exterior Granito lavado

01 De 30x30 cm, blanco

01

02 De 30x30 cm, negro

03 Cargado en obra,

03 Cargado en obra,

Mosaico granítico anti deslizante 01 De 30x30 cm gris

Mosaico granítico anti deslizante 01 De 30x30

De

Canto rodado

01 De 30x30 cm, liso, amarillo/rojo

Alto Tránsito - Antideslizante para exterior - Equipa 01 De 30x30 cm,

Ripado Para Revestido

Para Revestido

01 De 0,21 X 2,20 M

02 De 0,21 X 3 M un

Bordes atérmicos para Piscina

PERFILES WPC

Largo: 3.00 mt

01 De 50

PISOS SOBREELEVADOS

TEL.: 021 906 951

(021) 906 951/2

CEL.: 0971 543 246

(021) 328 0572/3

CDE: 061 570 501

CEL 0971 543 246

PISOS VINÍLICOS

TEL.: 021 906 951

CEL.: 0971 543 246

(021) 906 951/2 (021) 328 0572/3

CDE: 061 570 501

CEL 0971 543 246

PORTONES A CONTROL

REMOTO

Incluye: motor, placa, mecanismo, accesorios, 2 x control remoto y colocación.

Para portón corredizo

Para portón basculante

Portón fabricado en chapa plegada Nº 20 y caño cuadrado 30x30 con pasador portacandado, cerradura y 1 mano antióxido

Portón de reja fabricado en varilla cuadrada 3/8” y caño 30x30mm,

Hormigón pretensado, *Garelli puesto en obra

Dinteles Garelli

De 10 x 10

Postes Garelli De

Tirantes 2 x 5” con cola de pato Garelli De

Tirantes 2 x 5 recto Garelli

PUERTAS AUTOMÁTICAS

De 1,70 m, italiana con hidro, un 7.000.000

Botiquín

Astra embutido blanco A33-BR1 un 200.000

Astra de sobreponer, A34 - BR1 un 220.000

ASTRA 44 x 58 x 11 cm - colgante un 560.000

Astra Brasilia LB12/S1 un 400.000

Grifería

Para baño

TEL.: 021 906 951

FV - Linea Allegro cromo

CEL.: 0971 543 246

(021) 328 0572/3

CEL 0971 543 246

CDE: 061 570 501 (021) 906 951/2

REVESTIMIENTOS ACÚSTICOS

Ducha, 103/15, un 1.050.000

Bidet , 295/15 un 884.000

Lavatorio, 207/15 un 765.000

FV - Clásica 20

Ducha, 103/20 un 811.000

Bidet, 293/20 un 639.000

Lavatorio, 207/20 un 636.000

FV - linea 61 - plus Ducha, 103/61 un 958.000

Bidet, 295/61 un 829.000

Lavatorio, 207/61, un 760.000

Llave de paso con campana de 1/2” FV

Línea clásica 479/20, un 87.700

Linea 479/61, un 120.000

TEL.: 021 906 951

(021) 906 951/2

Linea Allegro 479/15, un 129.000

CEL.: 0971 543 246

(021) 328 0572/3

CEL 0971 543 246

CDE: 061 570 501

SANITARIOS

Cerámicos Piso/Pared

Cecafi 32x57 cm, Tellus Alba m2 34.000

Cecafi 45x45 cm, Provence m2 40.600

Cecafi 45x45 cm, Estocolmo m2 42.600

Forte Havana white 31x31 cm, m2 44.400

Forte Havana white plus 31x31 cm, m2 47.000

Cecafi 38x75 cm, Catena beige

Porcelanato 60x60 cm, desde

Adhesivos para azulejos, ceramica y pisos

51.300

Pennsylvania impermeable.(B/20kg) kg 1.198

Pennsylvania porcelanato flexible.(B/20kg) kg 2.575

Pastina

Pennsylvania univ.Siliconada castaño (1kg) kg 9.702

Pennsylvania univ.Siliconada blanco (1kg) kg 10.050

Piletas de acero inoxidable

Tramontina

De 0,80x0,50 m , 1 bacha, lado derecho un 210.000

De 1,00x0,50x0,13 m , 1 bacha, lado derecho un 276.000

De 1,00x0,50x0,13 m , 1 bacha central un 371.000

De 1,20 x 0,50x0,13m , 2 bachas, un 485.000

Sopapa Astra, un Bañeras

De 1,60 x 0,70 x 0.40 m, acrílica, un 1.400.000

De 1,70 x 0,70 x 0.40 m, acrílica, un 1.600.000

De 1,80 x 0,80 m con hidro, ASTRA un 9.200.000

Para cocina / agua fria y caliente FVEmbutida

Línea clásica, 403/20 jgo 479.000

Externa

Línea clásica , 409/20 jgo 850.000

Línea 61, 409/61 jgo 935.000

Línea clásica , 416/20 jgo

De mesada

Línea 61, 416/61 jgo 775.000

Línea clásica , 416/20 pico alto jgo 714.000

Llave de paso FV

De 1/2” , cromo sin campana 475/13, un 66.500

De 1/2” , cromo con campana 479/20, un

De 3/4” , cromo sin campana 475/19, un 101.000

De 3/4” , cromo con campana 479/20, un 130.000

FV bronce 1/2” 471 un 58.000

FV bronce 3/4” 471 un 84.000

Para agua fría - Para lavatorio - canilla FV

cromo : Pico alto 221 un 115.000

226/15 un 235.000

226/61, un 271.000

Para bidet

Linea clásica FV 295/20 un 370.000

Para patio

Canilla FV 1/2”

Bronce 430, 1/2” un 49.000

Cromo sin pico 432, un 106.000

Bronce pico manguera 437 , un 124.500

Idem bronce un 107.000

Varios

Adhesivo plástico p/ PVC , pomo 75 cc, un 9.200

Idem anterior 850 cc, un 62.600

Brazo metal p/ ducha eléctrica un 12.500

Cinta teflon 3/4 x 25 m, un 5.950

Cinta teflon 3/4 x 50 m, un 9.600

Cisterna plastica (blanco y colores), un

Conexión cromo 1/2” x 0,40 cm, MH, FV, un 40.800

Idem 1/2’ x 0,30 cm, MH, un 37.000

Conexión plastica 0,30 m un 7.000

Conexión plastica 0,40 m un 7.500

Ducha electrica Lorenzzeti Maxi 5400 w, un 127.500

Ducha teléfono DUCHAMATIC FV 119, un 810.000

Enchufe de plástico externo p/ inodoro un

Pasta lubricante 400 g un 29.700

Prolongador FV cromo 1/2 x1, un 38.000

Prolongador FV cromo 1/2 x2, un 46.500

Roseta FV cromo 1/2” - 452/13 un 6.400

Sellador p/ caño cuatricapa , 125 cc , un 45.900

Sella rosca , 125 cc un 40.000

Solucion limpiadora , frasco 200 cc , un 27.000

Sopapa p/ pileta Astra un 34.000

sopapa p/ lavatorio FV cromo 7/8” 246.01 un 66.700

Sopapa FV cromo p/ bañera un 164.000

Soporte gancho p/ calefón un 2.150

Soporte con tarugo p/ calefón un 9000

Tapa p/inodoro TPQ Orion un 37.000

Tapa p/inodoro TPK Orion un 75.000

Tarugo plástico 10 mm un 675

Toallero aro cromo 162/33 FV, un 117.409

Tornillo de bronce p/ fijar artefactos un 5.700

SELLADORES

Casarino

Tapagoteras 1kg un 40.500

Tapagoteras 4kg un 140.000

Pu 40 multiuso 400gr Negro, Gris un 30.000

PU universal 80gr un 14.000

Mapeflex MS Crystal Transparente un 101.000

TOPOGRAFÍA

MANDU’ARA

VARILLAS

1 Alambrón 4,2 mm x 12 m, un 20.000

2 Varilla conformada AP 420, kg s/ cotiz.

3 Varilla conformada AP 500, Kg 10.000

4 Varilla torsionada, kg s/ cotiz.

5 Varilla lisa, kg 11.500

VIDRIOS

TERMINACIÓN DE

PLANTA INDUSTRIAL

Virgen del Rosario 563 c/ Beatríz Benítez, Itauguá.

OFICINA COMERCIAL

Óscar Bottana 100 esq.

Cacique Cara Cará, Asunción Tel.: 0985 335 000 ventas@fineza.com.py

Turn static files into dynamic content formats.

Create a flipbook
Issuu converts static files into: digital portfolios, online yearbooks, online catalogs, digital photo albums and more. Sign up and create your flipbook.