Revista Mandu'a - #498 - Noviembre 2024

Page 1


INFORMACIÓN, OPINIÓN Y CULTURA AL SERVICIO DE LA CONSTRUCCIÓN

EL PAVIMENTO RIGIDO / LAPACHO ROGA - PM INGENIERIA SRL / GUÍAS DE PRECIOS

COLORES DE LA LINEA EUROPEA.

Mandu’a es la Revista de la construcción más leída del Paraguay. Mensualmente ofrece noticias, tendencias, notas técnicas y guías de precios de materiales, mano de obra, costeo de obra y proveedores de la construcción. La suscripción es gratuita para los profesionales de la construcción de todo el país.

Editorial

Israel y Palestina deben vivir en Paz

Notas

El Pavimento Rígido

Proyecto nacional

Lapacho Roga

Proyecto internacional

CHCW House

Contacto

Ramón I. Cardozo c/ Andrés Gill Lambaré - Paraguay (021) 905 100 / (0981) 917 683 mandua@mandua.com.py www.mandua.com.py

Industria & innovación 7mo Congreso Alconpat Paraguay 2024

Producción de Hormigón para Rascacielos

Capacitación Técnica de Operadores en Proyec

Toldos Versátiles Butterfly®

Guías de precios de la construcción

EQUIPO - Gerencia: Estela Villalba. Dirección editorial: Yerutí Arza. Administración: Estela Villalba. Costeo: Carlos Gómez. Publicidad: Víctor Hugo Franco. Sofía Franco. Néstor Raimondo. Rubén Cabrera. Impresión: Artes Gráficas Castillo S.A. - Fundador: Mauri Arza.

ISRAEL Y PALESTINA DEBEN VIVIR EN PAZ

Ninguna guerra, en cualquier lugar del mundo, por “justificada” que fuere, es conveniente para los países en directa pugna ni para los que, colateralmente, reciben su impacto.

Los principales afectados por las acciones bélicas que conllevan muertes, destrucción de infraestructura física, escasez de alimentos, huidas a otros países, miedo e incertidumbre constantes son los ciudadanos que sufren las nefastas consecuencias de los enfrentamientos.

La actual guerra entre Israel y Palestina -entiéndase más bien el grupo terrorista o independentista, depende de qué óptica se lo mire, Hamás- vuelve a poner ante los ojos de la humanidad el terrible flagelo de muerte y destrucción ratificando el dicho del comediante latino Plauto ratificado por Hobbes en la frase homo homini lupus: el hombre es un lobo para su semejante.

La disputa palestino-israelí no es nueva. En los últimos años ha recrudecido con episodios de violencia más o menos intensos entre ambos bandos. Son vecinos belicosos que siembran sangre en aras de sus pretensiones vinculadas a la posesión de un territorio.

El punto culminante de la lucha que encendió la mecha de la guerra total en curso se dio el 7 de octubre de 2023 cuando militantes de Hamás entraron sorpresivamente a Israel y mataron a más de mil personas. Esa circunstancia dio pie para que el agredido reaccionara con sus poderosos medios bélicos para ingresar a Gaza y causar muertes y daños sin precedentes. Los palestinos estiman que los muertos de la confrontación, en su mayor parte civiles, ascienden a más de 40.000.

Es obvio que la reacción de Israel es desmedida y no acorde a herederos de un pueblo que tanto sufrió en la Alemania nazi, solo por citar un hito de su calvario en la diáspora. No se ciñó solamente a acciones punitivas para “cobrar” el daño que le ocasionaron sus atacantes, sino que fue mucho más lejos alegando que su propósito es acabar con Hamás eliminando a sus líderes y combatientes. El problema de este planteamiento es que la principal afectada por la lucha es la población civil obligada a desplazarse, bombardeada, hambrienta, enferma y temerosa.

La guerra no se circunscribe a esos dos bandos porque los palestinos cuentan con el apoyo directo de Irán, el Hezbollah del Líbano-cuyo gobierno, curiosamente, se mantiene al margen- y los hutíes de Yemen, y del lado de Israel, Estados Unidos. La Unión Europea, que sigue de su lado, aunque con reticencia, no se anima a apartarse. España es la única crítica que apoya a Palestina.

Volviendo a que ninguna guerra conviene a la salud de la humanidad y mucho menos a quienes sufren el impacto directo de la crueldad bélica, es hora de un cese del fuego entre los que combaten directa e indirectamente para sentarse a conversar y llegar a un acuerdo de paz duradero.

Tanto Palestina como Israel tienen derecho a territorios en los que puedan vivir en paz y bienestar.

45 añ

NOTAS EL PAVIMENTO RIGIDO

Prof. Ing. Luis A. Caballero

El desarrollo de infraestructuras viales es esencial para el crecimiento económico, ya que facilita el transporte, conectando regiones y promoviendo el comercio. En Paraguay, el pavimento rígido ha generado debates por su alto costo inicial. En la siguiente nota, el Prof. Ing. Luis A. Caballero, docente de Pavimento Rígido en la FIUNA, aborda los aspectos clave del diseño, construcción y mantenimiento de este tipo de pavimento, así como los desafíos que enfrenta en el país.

El desarrollo de infraestructuras viales es un pilar clave para el crecimiento económico y social de cualquier país. Las carreteras no solo permiten el transporte de personas y mercancías, sino que también conectan regiones, mejoran la accesibilidad y estimulan el comercio. En Paraguay, el pavimento rígido ha sido un tema de debate debido a su alta inversión inicial y la necesidad de una correcta planificación y mantenimiento. En esta colaboración del Prof. Ing. Luis A. Caballero, docente de Pavimento Rígido en la FIUNA, exploramos los aspectos más relevantes del diseño, construcción y mantenimiento del pavimento rígido, así como los desafíos que enfrenta este tipo de infraestructura en nuestro país.

1. INTRODUCCIÓN AL PAVIMENTO

RÍGIDO Y SU RELEVANCIA

El pavimento rígido se caracteriza por su resistencia y durabilidad, lo que lo convierte en una opción preferida para carreteras de tráfico pesado. Sin embargo, su elevado costo de inversión inicial, principalmente debido al espesor de la losa de concreto, ha limitado su adopción en proyectos de larga extensión en Paraguay y otras regiones. Por ejemplo, en Argentina, de los 28,000 km de red pavimentada, solo 1,000 km corresponden a pavimento rígido. En Estados Unidos, la proporción es mucho mayor, con 700,000 km de pavimento rígido en una red de 14 millones de kilómetros. En Paraguay, algunos proyectos emblemáticos han utilizado este tipo de pavimento, pero la falta de un adecuado mantenimiento ha resultado en fallos prematuros, como el caso de la Ruta 4, donde 15 km de pavimento fueron destruidos por la falta de sellado en las juntas.

El pavimento rígido es recomendado en carreteras con tráfico pesado, cuando el número de repeticiones de ejes equivalentes (ESALs) supera los 6 E07.

Sin embargo, la correcta ejecución y mantenimiento de este tipo de pavimento son críticos para garantizar su vida útil. Cualquier fallo en el diseño o en la construcción puede acelerar su deterioro.

2. EXIGENCIAS DEL PAVIMENTO RÍGIDO

El éxito de un pavimento rígido depende de varios factores, pero uno de los más críticos es la preparación adecuada de la subrasante. Esta capa debe ser capaz de soportar las cargas generadas por el tráfico vehicular. Los problemas típicos que causan el deterioro de este tipo de pavimentos incluyen un mal diseño, asentamiento de la subrasante, problemas de drenaje, fatiga del concreto por cargas repetitivas, y una incorrecta modulación y espesor de las placas.

En Paraguay, la supervisión por parte del Ministerio de Obras Públicas y Comunicaciones (MOPC) es esencial para asegurar la calidad en la construcción de pavimentos rígidos. Tanto la supervisión como la fiscalización deben trabajar conjuntamente para proporcionar la información necesaria sobre la ejecución, rehabilitación y mantenimiento de las carreteras, con el objetivo de ofrecer a los usuarios un medio de transporte seguro y eficiente. Además, el MOPC debe fomentar la innovación en los materiales utilizados y en las técnicas de construcción para mejorar la durabilidad del pavimento rígido en el país.

3. FACTORES CRÍTICOS PARA LA PAVIMENTACIÓN CON CONCRETO

La subrasante es la base sobre la que se asienta todo el sistema de pavimento, por lo que su preparación adecuada es fundamental. La estabilidad y uniformidad de esta capa afectan tanto al desempeño del pavimento como al proceso de construcción. Una subrasante estable provee el soporte necesario para el pavimento y facilita una plataforma constructiva adecuada. El diseño del pavimento comienza con una correcta identificación y evaluación de la subrasante, que debe ser capaz de soportar las solicitaciones durante el ciclo de vida del pavimento.

El correcto diseño y construcción de las juntas es crucial para evitar la fisuración aleatoria en las losas. Estas juntas permiten que el pavimento se expanda y contraiga sin causar daños estructurales. En pavimentos rígidos, la fisuración aleatoria es un signo temprano de deterioro, y a menudo se produce por un aserrado poco profundo de las juntas o por realizarlo de manera tardía. También es común que las fisuras aparezcan cuando los pasadores no están alineados correctamente o si están mal adheridos al concreto, lo que reduce la efectividad de las juntas y puede afectar la capacidad de carga del pavimento.

Componentes

El curado adecuado del concreto es un paso crítico que a menudo se pasa por alto. Mantener un ambiente húmedo adecuado y una temperatura controlada en el concreto recién colocado es esencial para evitar fisuración por retracción plástica y garantizar la durabilidad a largo plazo. El curado debe aplicarse inmediatamente después de que el agua superficial del concreto haya desaparecido tras el proceso de texturizado. En condiciones de altas temperaturas, el tiempo de aplicación del curado es aún más crítico para evitar que el concreto se agriete antes de alcanzar su resistencia total.

CONCLUSIÓN

El pavimento rígido ofrece una opción duradera y resistente para las carreteras paraguayas, especialmente en aquellas que soportan tráfico pesado. No obstante, su éxito depende no solo de la inversión inicial, sino también de un adecuado diseño, construcción y mantenimiento. Paraguay puede aprender de los errores cometidos en el pasado, como el caso de la Ruta 4, y garantizar la durabilidad de este tipo de pavimento con una supervisión efectiva, la correcta preparación de la subrasante, el uso adecuado de juntas y un curado adecuado. La inversión en innovación y calidad de materiales también será clave para mejorar el rendimiento y la sostenibilidad de las infraestructuras viales en el país.

Construcción de pavimento rígido en la ruta PY4.

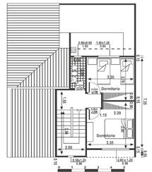
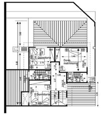
LAPACHO ROGA

Proyecto: PM Ingeniería SRL.

Arquitectos a cargo: Juan José Ardissone, Mariela Troche.

Fotografías: José Antonio Santacruz.

Superficie: 350 m².

Año: 2022.

Ubicación: Asunción.

Descripción elaborada por el equipo del proyecto.

“Cada paso que se da para reducir el consumo energético y, por ende, el impacto ambiental a lo largo del ciclo de vida de un edificio es un avance en la dirección correcta”.

En el corazón de la ciudad de Asunción, en el barrio Virgen del Huerto, se encuentra “Lapacho Roga” (Hogar del Lapacho), una vivienda diseñada con criterios de sostenibilidad que ha logrado obtener la certificación EDGE, convirtiéndose en la primera edificación en Asunción en alcanzar este reconocimiento.

EDGE (Excellence in Design for Greater Efficiencies) es una certificación de construcción sostenible creada por la Corporación Financiera Internacional (IFC), miembro del Grupo Banco Mundial, con el objetivo de promover el diseño ecológico y generar ahorros en los consumos de energía y agua en cualquier tipo de construcciones, tanto nuevas como existentes. Esta certificación valida el compromiso con los más altos estándares de eficiencia en energía, agua y materiales.

Desde las primeras fases del proyecto, se contempló la obtención de la certificación EDGE, una meta que se discutió en las reuniones iniciales con los arquitectos. La vivienda fue diseñada en forma de L, rodeando el patio central, lo que permite que la mayoría de los espacios cuenten con una iluminación natural óptima y una vista agradable hacia el área verde. Las ventanas que dan al patio son amplias, mientras que las que miran hacia la calle son más pequeñas, garantizando así la privacidad de los habitantes.

Para optimizar el ahorro energético, se analizaron cuidadosamente las orientaciones y dimensiones de las aberturas, evitando la acumulación de calor y enfrentando el intenso calor de los veranos.

Para controlar la incidencia solar, se instalaron persianas exteriores motorizadas con lamas de aluminio que pueden regularse en función de la cantidad de luz solar. Estas lamas giran en ángulos de 0° a 180°, bloqueando los rayos solares cuando es necesario y permitiendo la entrada de luz natural.

Se incorporaron aislantes en el techo y las paredes para mejorar el comportamiento térmico de la vivienda. En ambos casos, se utilizaron planchas de poliestireno expandido (isopor): en el techo, colocadas sobre la losa, y en las paredes mediante paneles 3D. Además, se instalaron sistemas de climatización e iluminación eficientes que contribuyen a un bajo consumo energético.

Para reducir el consumo de agua, se instalaron griferías de bajo flujo en los lavamanos, la cocina y las duchas, obteniéndose flujos de litros por minuto inferiores a los convencionales. Todos los inodoros están equipados con cisternas de doble descarga, lo que optimiza el consumo de agua.

Asimismo, se seleccionaron materiales de construcción con baja energía embebida y de origen regional. Se rescataron maderas de la edificación anterior y se reutilizaron en la nueva construcción para los pisos, la escalera y una puerta.

Gracias a estas medidas, Lapacho Roga logró la certificación EDGE Advanced, alcanzando un ahorro del 47% en energía, 29% en agua y una reducción del 53% en energía embebida en los materiales, superando ampliamente los requisitos. Todos los profesionales involucrados en el proyecto, son paraguayos, lo que evidencia el talento local para desarrollar obras con certificaciones internacionales.

El nombre “Lapacho Roga” se debe a la presencia de numerosos árboles de lapacho en el terreno y la vereda adyacente, donde se encuentran seis ejemplares que alcanzan alturas de entre 6 y 10 metros. Estos árboles fueron conservados y cuidados durante todo el proceso constructivo, integrando de manera armoniosa la naturaleza tanto en el interior como en el exterior de la vivienda.

(0982) 620 227 modular.comercial@tecnimet.com

(0986) 802 098 div.comercial@tecnimet.com

TECNIPANELES

-Paneles con núcleo de PIR -Núcleo de 40kg/m3 -Paneles Trapezoidales y machihembrados.

CHCW HOUSE

Proyecto: Plan:b arquitectos.

Arquitectos Responsables: Felipe Mesa, Federico Mesa.

Equipo De Trabajo: Carlos Blanco, Laura Kate Correa, Verónica Mesa, Helinton Ramírez, Juan José Villegas.

Constructor: Dairo Ateortua

Fotografías: Artefacto.

Superficie: 600 m².

Año: 2024.

Ubicación: Medellín, Colombia.

Descripción elaborada por el equipo del proyecto.

Este encargo consistió en renovar y adaptar una casa tradicional de dos pisos del barrio Provenza en Medellín, para transformarla en espacios comunes de trabajo (co-working), y en pequeños apartamentos que comparten servicios (co-housing).

La casa, que ya había sido transformada años atrás en las oficinas de una empresa inmobiliaria local, tenía una estructura estable de muros portantes, pisos, cubiertas y cielos en madera que decidimos renovar y mantener.

Sección Longitudinal.

Segundo Piso.

Primer Piso.

En el primer nivel revitalizamos el antejardín, propusimos un nuevo vestíbulo manteniendo la escalera existente y localizamos las zonas compartidas de trabajo, salones privados y baños compartidos. En el segundo nivel, diseñamos cuatro apartamentos con diferentes tamaños e iluminación natural a las fachadas principales o a patios interiores.

Estos espacios comparten zonas de trabajo, y de lavandería. Concentramos la nueva intervención en el patio trasero existente, cubriéndolo con una cubierta translucida a triple altura y un cielorraso en listones de caña, evitando tocar los muros de la casa.

De esta manera, generamos nuevas plataformas de actividad, expandimos los espacios del coworking y conectamos los apartamentos con las zonas comunes por medio de un puente semiprivado.

Al interior del patio propusimos una nueva escalera, articulando de manera delicada los nuevos espacios con la estructura de la casa existente. Mantuvimos los tonos y colores principales de la casa existente: muros claros y tonos marrón, introduciendo nuevos materiales en gamas similares. Propusimos una nueva iluminación cálida, articulada a la iluminación natural controlada en todos los espacios.

7MO CONGRESO ALCONPAT PARAGUAY 2024

Innovación y Tecnología en la Construcción.

La Asociación Latinoamericana de Control de Calidad, Patología y Recuperación de la Construcción (Alconpat Paraguay) celebró exitosamente el 7mo Congreso Alconpat Paraguay 2024 los días 11 y 12 de octubre. El evento, dirigido a ingenieros, arquitectos, técnicos de empresas constructoras y productoras de hormigón, así como a estudiantes avanzados de Arquitectura e Ingeniería Civil, combinó conferencias magistrales y sesiones científicas en el Crown Plaza Hotel de Asunción, con talleres prácticos en el Campus Santa Librada de la Universidad Católica.

El congreso abordó la temática “Aplicación de tecnologías actuales e innovadoras en construcciones antiguas, recientes y en curso”, destacando el uso de georadar, fotogrametría, impresión 3D en hormigones sostenibles, y la cura de carbono para concretos. Estos temas fueron expuestos por reconocidos expertos nacionales e internacionales, como el Dr. Mario

Ocampo, especialista en patología de la construcción, y la Arq. Laura Fernández, experta en materiales sostenibles.

Se presentaron investigaciones locales en construcción, lideradas por el Ing. Carlos Benítez, fomentando el intercambio de conocimientos y las últimas tendencias en el sector.

El congreso contó con el patrocinio de ITAIPU Binacional, además del apoyo de importantes empresas como PREMIX S.A., PENETRON Brasil, SYPEC S.A., Pennsylvania S.A., y PERI Argentina. También se firmaron convenios con universidades y entidades públicas para facilitar la participación de estudiantes y profesionales.

Con más de 120 asistentes, el evento fue valorado como un éxito tanto por los organizadores como por los participantes, consolidándose como un espacio clave para la actualización y la innovación en el ámbito de la construcción en Paraguay.

PRODUCCIÓN DE HORMIGÓN PARA RASCACIELOS INDUSTRIA & INNOVACIÓN

La Experiencia de CECON en Paraguay.

La construcción de rascacielos plantea retos técnicos significativos, especialmente en el manejo y control del hormigón. CECON SAE, como líder en la producción de cemento y hormigón en Paraguay, ha desarrollado soluciones avanzadas para asegurar el cumplimiento de los estrictos requisitos de estos proyectos.

El diseño de mezclas de hormigón especializado, como los autocompactantes y masivos, es crucial para garantizar fluidez, trabajabilidad y resistencia a largo plazo. En CECON, ajustamos nuestras fórmulas para cada proyecto, asegurando una óptima compactación y bombeabilidad, incluso en estructuras de difícil acceso.

Uno de los mayores desafíos en la producción de hormigón masivo es controlar el calor generado durante el fraguado, que puede causar fisuras. Para prevenir esto, CECON utiliza técnicas de modelado térmico que simulan el comportamiento del hormigón y permiten

ajustar variables y tiempos de colocación, evitando problemas de fisuración térmica.

El cumplimiento de normativas a nivel internacional, como el ACI 318 y el CIRSOC 201, es esencial para garantizar la seguridad estructural. CECON implementa un riguroso control estadístico de la resistencia del hormigón, asegurando que los productos cumplan con las especificaciones del proyecto y mantengan un desempeño confiable.

En cuanto a la precisión en la producción, CECON verifica regularmente la humedad de los agregados y calibra las básculas constantemente, garantizando exactitud en la dosificación de los materiales y consistencia en cada mezcla de hormigón.

La participación de CECON en la construcción de los edificios más emblemáticos de Asunción y Gran Asunción refleja su compromiso con la calidad y la innovación, superando los desafíos técnicos y garantizando productos de alta durabilidad y seguridad.

CAPACITACIÓN TÉCNICA DE OPERADORES EN PROYEC

Mejorando la Productividad en Obra.

El pasado 28 de septiembre de 2024, Proyec Línea Liviana, en el marco de su alianza con Elite Construction Partner, llevó a cabo una capacitación técnica para los operadores de la constructora JAM.

El evento se realizó en las oficinas de Proyec y estuvo dirigido por el Gerente Técnico, Francisco González, quien lideró una serie de talleres prácticos enfocados en el uso eficiente de equipos de compactación y demolición.

El objetivo principal de estas capacitaciones es proporcionar a los operadores, ingenieros y arquitectos residentes las herramientas necesarias para optimizar el rendimiento de las máquinas, asegurando su correcta operación, mantenimiento y almacenamiento. Con más de 37 años de experiencia en el sector, Proyec no solo comparte su conocimiento técnico, sino también su vasta trayectoria en la industria de la construcción.

Estas jornadas prácticas son parte de un esfuerzo continuo por parte de Proyec para apoyar a sus clientes en la mejora de su productividad y rentabilidad. Al capacitar a los operadores en el uso adecuado de los equipos, se busca minimizar los tiempos de inactividad y reducir los imprevistos en obra, lo que a su vez incrementa el valor de cada equipo adquirido.

Esta iniciativa refuerza el compromiso de Proyec de brindar un servicio integral a sus clientes, apoyándolos en todas las etapas del proceso constructivo y asegurando que sus equipos funcionen al máximo de su capacidad. La alianza con Elite Construction Partner es un claro ejemplo de cómo la colaboración estratégica puede mejorar la eficiencia y el rendimiento en proyectos de construcción de gran escala.

TOLDOS VERSÁTILES BUTTERFLY ®️

Estilo y Protección para todas las temporadas.

Con la llegada de la primavera y el verano, los toldos versátiles de Butterfly® son la solución ideal para disfrutar al aire libre sin sacrificar confort ni estilo. Ofrecen protección contra los rayos solares y se adaptan a diversas aplicaciones, como terrazas, balcones y quinchos, brindando una experiencia confortable y elegante.

TOLDOS VERTICALES BUTTERFLY®️:

Perfectos para quinchos, galerías y terrazas. Su sistema permite ajustar el toldo en diversas posiciones, protegiendo los espacios del sol y mejorando la estética.

TOLDO DE PUNTO RECTO:

Una opción práctica para ventanas y balcones. De fácil instalación en techos o paredes, es ideal para quienes buscan simplicidad y funcionalidad.

TOLDO EXTENSIBLE O DE BRAZOS INVISIBLES:

Con brazos ocultos bajo la lona, este toldo es perfecto para terrazas. Fabricado en aluminio templado y disponible en varios colores, garantiza durabilidad y un diseño moderno.

BENEFICIOS CLAVE:

Protección eficaz contra el sol y la intemperie.

Versatilidad para adaptarse a distintas necesidades.

Diseño elegante y materiales duraderos. Estos toldos son ideales para espacios residenciales y comerciales.

CONTACTO:

Visita ShoppinGlass en Itapé 216 c/ Solar Guaraní, Lambaré, o comunícate al (021) 906-951/2, (021) 328 0572 o al WhatsApp (0971) 543 246. Más información en www.butterfly.com.py.

www.mandua.com.py

MANO DE OBRA

MANO DE OBRA

Trabajos preliminares

Demoliciones

De mampostería con recuperación

1 De 0,45 m

2 De 0,30 m

3 De 0,15 m

De mampostería sin recuperación

1 De 0,45 m

2 De 0,30 m

3 De 0,15 m

Demoliciones varias

1 De techo de teja con recuperación

2 De techo de teja sin recuperación

3 De techo de chapa

4 De techo bovedilla

5 De cielorraso armado (desmontar)

6 De losa de Hº Aº

7 De piso/revoque/revestimiento

8 De contrapiso (cuando no hay piso)

9 Sacar zócalo

10 Sacar azulejos

Sacar artefactos sanitarios

Sacar marcos y balancines

13 Sacar mamparas (Durlock, Duratec, etc.)

14 Sacar Aire Acondicionado un 85.000

14 Desmontar electricidad (boca) un 5.000

Abrir

16 Abrir vano en mampostería de 0,30

Preparacion de obra

1 Limpieza de terreno (no incluye corte ni destronque de árboles)

Destronque de árboles

4000

1 Árbol chico un 110.000

2 Árbol mediano un 352.000

3 Árbol grande un 528.000

4 Árbol extragrande un 726.000

Casilla de obrador

1 Casilla habitable, baños y vestuarios

2 Barraca para depósito

Vallados, cercos, alambrados

1 Vallado de obra (armado)

2 Vallado de obra (desarmado)

3 Tendido de alambre de púas (5 hilos) m

4 Colocación poste de hormigón armado un

Colocación

(sueltos, cuando no hay losa)

visto/viga vista m³ 913.000 4 Pilar suelto x m3, altura hasta 6,00 m

1 Losa sola

2 Losa + columna + viga

3 Losarap montaje y hormigonado

4 Pre Losa montaje y hormigonado

Cadenas

1 Cadena 13x30 PB m 77.000

2 Cadena 20x40 PB m

ESCALERAS

1 Tramo compensado a=1.20 m c/ escalón

2 Tramo recto a= 1.20 m cada escalón, un

PISOS

1 Piso rodillado espesor 12 cm

2 Piso rodillado espesor 10 cm

3 Piso rodillado espesor 08 cm

4 Piso allanado espesor 15 cm (Incluye Alquiler máquina)

5 Piso allanado espesor 12 cm (Incluye Alquiler máquina)

6 Piso allanado espesor 10 cm (Incluye Alquiler máquina)

7 Piso allanado espesor 08 cm (Incluye Alquiler máquina)

Fundaciones

1 Cimiento PBC sin excavación

2 Hormigón ciclópeo sin excavación

Mamposteria y muros

Nivelación con ladrillo común

1 De 0,15 m

2 De 0,30

3 De 0,30 m

4 De 0,45

Panderete

1 De 0,07 - 0,10 m

Elevación 0,15 m con ladrillo común

1 De 0,15 m

2 De 0,15 m armada

3 De 0,15 m,1 cara vista

4 De 0,15 m,1 cara vista y lijada

5 De 0,15 m,1 cara vista con ladrillo laminado

Elevación 0,20 m con ladrillo común

1 De 0,20

2 De 0,20 m,1 cara vista y lijada

3 De 0,20 m,1 cara vista con ladrillo laminado

Elevación 0,30 m con ladrillo común

1 De

2 De

De

4 De

5 De 0,30

6 De

5 Pilar 40x40 cm, ladrillo común

5 Pilar 40x40 cm, Visto con ladrillo común m

con piedra

Muro de piedra 0,40 m 1 cara vista

Muro de ladrillo convocó 2 caras vistas

con ladrillos huecos

estructural con ladrillo portante

con bloques de hormigón

para mampostería

Aislación hidrófuga Horizontal sin asfalto (1:3), sin alisada

De 0,15 m

De 0,30 m

Horizontal en “U” con asfalto

De 0,15 m

De 0,30 m

Aislación Hidrófuga

MANO DE OBRA

Dinteles

1 En mampostería c/ 2 varillas m 11.000

2 Sobre aberturas c/4 varillas m 15.000

3 Colocación de dintel prefabricado m 15.000

4 Dintel zuncho de bloque m 31.000

5 Colocación de perfil de hierro m 15.000 Contrapisos (no incluye alisada)

1 Apisonado de Hº cascotes 8 cm

2 Apisonado de Hº cascotes 10 cm

3 Apisonado de Hº cascotes 10 cm, c/ pendiente

4 Apisonado de Hº cascotes 20 cm

26.000

5 Apisonado sobre losa Hº Aº e=7cm m² 14.000

6 Apisonado sobre losa Hº Aº e=6cm m² 13.000

7 Apisonado de Hº cascotes con varilla

8 Hº Aº e=7cm

Revoque de paredes

Revoques

1 Común, fratachado o peinado

2 Común, fratachado y filtrado

3 Común, fratachado y filtrado; h=+5.00

4 Común, fratachado o peinado; h=+5.00 m

5 Fino o filtrado sobre revoque peinado existente

6 A 2 capas (grueso + fino)

7 A la lona o bolseado

8 Salpicado

9 Base para revestidos

30.000

13.000

22.000

22.000 Azotadas hidrófugas para adherencia:

10 Espesor = 1 cm x ladrillo

11 Espesor = 0,5 cm x ladrillo

12 Espesor = 0,5 cm x ladrillo en h=+ 5,00 m

13 Espesor = 1 cm x ladrillo en h=+ 5,00 m exterior

14 Azotada p/ impermeable

Revoque de cielorrasos

1 Azotada para adherencia por losa de Hº Aº, 0,5 cm

7.000

10.000

8.000

2 A 1 capa fratazado y filtrado sin azotada m² 33.000

3 A 1 capa fratazado y filtrado con azotada

4 A 2 capas (grueso + fino),con azotada

5 A 2 capas sin azotada

6 Azotada o base planchada de metal desplegado

Revoque de vigas/pilares/aristas

1 Revoque de arista o canto

42.000

9 Revoque de pilares 4 caras y aristas

1 De teja española con tejuelón; incluye: maderamen, aislante, caballete y bocateja

2 Idem anterior con limatón

3 De teja española con tejuelita incluye: maderamen, aislante, caballete y bocateja

4 De teja española sobre machimbre: maderamen, aislante, caballete y bocateja

5 De teja francesa sobre machimbre

6 De teja francesa vana

7 De chapa galv. s/ estruc. de tirantes 2x6”

8 De chapa de fibrocemento acanalada

9 De chapa de fibrocemento acanalada autoportante

Montaje de maderamen c/ tirantes 2x5” o 2x6” cepillados

14 Montaje de vigas

15 Techo metálico (tinglado), preparación y montaje

16 Cabriadas de madera, preparación y montaje

17 Cabriadas de madera, y planchuelas preparación y montaje

Cielorrasos (incluye armazón de madera)

1 De metal desplegado, sin revoque

10.000

2 Revoque de babetas o buñas m 15.000

3 De mochetas con 2 aristas (0,15x0,15) m 21.000

4 De goterón en alero

5 De losa de Hº Aº

6 De ductos m 21.000

7 De vigas de Hº Aº de 15x20 ó 20x30 cm (incluye azotada + aristas)

8 De vigas de Hº Aº de 20x40 ó 30x50 cm (incluye azotada + aristas) por cara m 46.000

De ladrillejo (ladrillo cortado)

De ladrillejo h= +5m

Piedra lajón a escuadra

8 Piedra roja rompecabeza

9 Piedra blanca rompecabeza

10 Piedra arenisca blanca o roja pulida en

11 Piedra arenisca blanca o roja pulida en

Piedra abuchada

Piedra laja aserrada

Piedra Wasmosy

Empapelado

Machimbre

Sobre carpeta existente

1 Cerámica esmaltada P I 5

2 Cerámica esmaltada en baño m² 31.000

3 Cerámica esmaltada en escalón m 39.000

4 Cerámica porcellanato

5 Piso calcareo m² 26.000

Carpeta o base

1 Para alfombra o cerámica e=2cm

2 Alisada de cemento e=3cm

3 Para alfombra o cerámica en escalones un 18.000

4 Regleado rústico

5 Alisada sobre contrapiso

6 Banquina p/ placard (contrapiso + carpeta hidrófuga)

7 Baldosa calcárea o canto rodado

8 Mosaico granítico

9 Pulido de mosaico granítico

10 Layota nacional o esmaltada

11 Veredita calcárea

12 Ladrillo común

13 Tejuelita

14 Baldosones de hormigón, 40x40 cm

15 Piso de HºAº rodillado de 12 cm

16 Plancha de granito o mármol

17 Plancha de mosaico granitico

18 Parquet a bastón roto o tipo colonial clavado

19 Parquet de lapacho tarugado

s/c

7.500

2 Calcáreo o granítico m 13.000 3 Cerámico m 13.000 4 Layota m 13.000 5 Mármol

20 Parquet de machimbre curupa’y, 1 x 3” pulido y lustrado m² 67.000

21 Piso de madera rasqueteado y encerado

60.000

22 Alfombra multipiso m² 18.000

20 Piso vinílico 30x30

21 Piedra losa rompecabeza con junta tomada

22 Piedra losa rectangular

23 Piedra losa 30x30, 30x40 y 40x40

24 Piedra ardosia

25 Piedra laja

39.000

26 Piedra rústica roja Misiones m² 39.000

27 Piedra triturada esparcida a mano m² 7.000

28 Adoquín de piedra

Varios

1 Colocación tapa metálica en cámara de inspección un 44.000

2 Colocación rejilla en cámara de inspección un 44.000

Empedrado

1 Empedrado, h=0,20 m sin cordón m² 17.000

2 Empedrado, h=0,40 m sin cordón m² 28.000

3 Colocación de cordón Hº Prefabricado m 13.000 Zócalos

1

24 Cámara séptica (1,00x1,60x1,20 m) con excavación un 990.500

25 Pozo absorvente (Ø: 1.50 m x altura 3,00 m) con excavación un 1.650.000

Desagües para baño

2 Baño completo con bañera un 380.000 3 Baño de servicio un 222.000

4 Baño social un 159.000

5 Para pileta de lavar y lavarropas un 159.000

6 Para pileta de cocina (incluye desengrasador y caja sifonada) un 126.000

Agua corriente

1 Caño PVC 1” (incluye excavación, colocación y protección) m 16.000

2 Idem anterior de 3/4 m 13.000 3 Idem anterior de ½

8.000 4 Instalación de canilla de patio, + 5 ml de cañería

Para baño de servicio

MANO DE OBRA

5 Para pileta de cocina un 126.000

Instalación agua caliente y fría

1 Para pileta de cocina un 254.000

2 Para baño completo un 697.000 Colocación de artefactos

Sanitarios y Grifería

1 Baño completo 115,500 x 4 un 462.000

2 Baño de servicio 100.500 x 2 un 234.000

3 Baño social 117.000 x 2 un 234.000

4 Pileta de cocina un 122.000

5 Pileta de lavar un 122.000

6 Bañera común un 314.000

7 Bañera hidromasaje un 524.000

8 Accesorios de baño (jabonera, percha, etc) un 22.000

9 Colocación de calefón un 175.000

9 Colocación de ducha eléctrica un 33.000

Instalación eléctrica

1 Boca de luz un 53.000

Trabajo de Albañilería

1 Pilar de mampostería para medidor de 0,45x0,45x1,70 m no incluye cimiento ni nivelación un 480.000

2 Registro eléctrico c/ drenaje y tapa de 30x30x40 cm un 105.000

3 Idem anterior 40x40x70 cm un 131.000

4 Colocación caja aire acondicionado un 72.000

Puesto de medición provisorio 1

1 Monofásico 12 bocas

2 Trifásico 14 bocas

Puesto de medición definitivo 2

1 Monofásico 14 bocas

2 Trifásico hasta 3A 18 bocas

Tablero principal o seccional

1 Colocación de caja embutida en mampostería hasta 40x50 cm 3 bocas

2 Disyuntor TM de corte principal o seccional o de circuito unipolar 2 bocas

3 Idem anterior tripolar 3 bocas

4 Instalación de interruptor diferencial 6 bocas

Líneas subterráneas

(Incluye excavación a una profundidad de 0,50 m en tierra firme y sin piedra, instalación de eléctroducto con protección mecánica y cableado)

1 Monofásica de 4 a 10 mm m 7.000

2 Trifásica de 4 a 10 mm m 13.000

3 Trifásica de 16 a 25 mm m 21.000

Línea embutida en mampostería (incluye colocación de electroducto y cableado)

1 Monofásica de 4 mm m 7.000

2 Monofásica de 6 mm m 7.000

3 Monofásica de 10 mm m 8.000

4 Trifásica de 4 a 10 mm m 11.000

5 Trifásica de 16 a 25 mm m 13.000

Líneas aéreas

1 Monofásica de 4 a 10 mm m 3.000

2 Trifásica de 4 a 10 mm m 7.000

3 Trifásica de 16 a 25 mm m 9.000

Electroductos embutidos en mampostería sin cableado

1 De 5/8” m 3.000

2 De 1/2” m 3.000

3 De 3/4” m 3.000

4 De 1” m 3.000

Lámparas y tomas de corriente (Embutidos en mampostería hasta 5m del tablero)

1 Una lampara con su interruptor 1 boca

2 Una lámp. c/ 2 llaves de comb. de escalera 2 bocas

3 Una Toma corriente 1 bocas

4 Por llave de 4 vías o intermedia adicional 1 boca

Circuitos independientes

1

Circuito para aire acondicionado sin montaje de aparato ni abertura de mampostería hasta 5 m del tablero (mismo que recorran cañerías con otros circuitos)

bocas

2 Circuito p/ calefón o ducha eléctrica idem anterior 4 bocas

3 Circuito monof. p/ motobomba c/ cable de 4mm hasta 5 m del tablero 4 bocas

Colocaciones

1 Aire acondicionado un

2 Ventilador de techo un

3 Tubo fluorecente doble un 16.200

4 Apliques y arañas un 16.200 Carpinteria de aluminio Colocación de premarco de aluminio:

1 Chico 1 m² un 64.000

2 Mediano 3m² un 92.000

3 Grande 4 m² un 125.000

4 Extra grande 5 m² un 150.000

Carpintería de madera

Colocaciones de:

1 De marco mayor de 1,00 m un

2 De marco menor de 1,00 m un 83.000

3 Puerta placa un 92.000

4 Puerta persiana o vidriera chica hoja 46.000

5 Puerta tablero un 96.000

6 Puerta tablero principal incluye hoja, manijón y visor un 128.000

7 Ventana persiana o vidriera 0,65 x 1,00 mt hoja 36.000

8 Ventana balancín un 40.000

9 Contramarco m 10.000 10 Pergolado m²

Carpintería metálica

Colocaciones de:

1 De marco de chapa doblada de 0,80x2,10 m un 66.000

2 De marco de chapa doblada de 1,50x1,20 m un 88.000

3 De marco de chapa doblada con relleno un 88.000

4 De marco metálico - ángulo un 66.000

5 De guías metálicas y taparrollo p/ cortina de enrollar un 264.000

6 De reja de hierro entre marcos un 44.000

7 De reja de hierro aplicada a la pared un

8 Portón de hierro 1,00x1,50 m un

9 Balancín chico 40x40 cm sin revoque un 44.000

10 Balancín mediano 1,00x1,50 m sin revoque un 77.000

11 Balancín grande 2,00x1,80 m sin revoque un 98.000

12 Portón cochera de 3,00x1,50 m

13 Baranda de escaleras

14 Pasamanos,}

15 Escalera

16 Puerta metálica corta fuego

17 Puerta metálica mosquitera

18 Tinglado, preparación y montaje

Pintura

Pintura de pared

1 A la cal blanca

2

3

4

5

6

7 Al esmalte sintético

1

2

1 De pared

2 De abertura de madera

1 Tejuelita a la cal y maderamem c/ esmalte sintético

2 Tejuelón y maderamem barnizado

3 Tejuelita o tejuelón barnizado y maderamem con esmalte sintético

17.000

4 Pintura de alero de 0,60 m m 20.000

Cielorrasos

1 Al látex con fijador sin enduido

2

3

4 Barnizado de machimbre

Aberturas de madera

1 Marco y hoja con esmalte

2

1 Marco y hoja c/ cromato y esmalte sintético

2 Rejas, barandas y balancines

1 Con base p/ galvanizado y esmalte sintético

Ladrillo visto, hormigón y piedra

1 Limpieza, curado y siliconado o barnizado

2 Limpieza, curado y siliconado o barnizado en altura m² 17.000

3 Limpieza, curado y pintura a la cal m²

en silleta

Moldura doble

Varios

Parrilla con boca 1,00 m,

1.980.000 5 Colocación balaustre sencillo m s/c

6 Tanque de fibra de vidrio

Jornal de mercado

Honorario técnicos

Dibujante

SALARIO MÍNIMO

DECRETO N° 1909/2024

POR EL CUAL SE DISPONE EL REAJUSTE DE LOS SUELDOS Y JORNALES MÍNIMOS DE TRABAJADORES DEL SECTOR PRIVADO.

Art. 1°, Dispónese el reajuste del salario mínimo legal del trabajador del sector privado en cuatro coma cuatro por ciento (4,4 IP/o) con relación al establecido según Decreto N° 9584 del 29 de junio de 2023, que regirá a partir del 1 de julio de 2024, en las actividades expresamente previstas, escalafonadas y las diversas no especificadas. Art. 2°.- Establécese el salario mínimo legal vigente a partir del 1 de julio de 2024 en dos millones setecientos noventa y ocho mil trescientos nueve guaraníes (G. 2.798.309.-) y el jornal mínimo en ciento siete mil seiscientos veintisiete guaraníes (G. 107.627.T), de conformidad con el artículo 10 de este decreto.

Losa fck=21MPa

COSTEO DE OBRA

TRABAJOS PRELIMINARES

Relleno y Compactación

Tierra gorda, m3

Mano de obra, m3 1,00

Total por: m3

Cartel de Obra (de 1.40x2.80m con marco metálico y lona. A retirar y sin colocación)

Cartel de obra, un

por: un

Vallado de Obra

Chapa cincalum Nº 28, un

2.44x0,90,

Puntal de eucalipto pulg/

Clavo con cabeza de un

plomo,

Encadenado Inferior 13x20 en PB

Encadenado 13x30 cm

ESTRUCTURAS DE HORMIGON ARMADO

Zapata fck=18 MPa

Encadenado 30x30 cm

Columna fck=21 MPa

Escalera de HºAº fck=21MPa15 escalones de 0.30x1.10m y 1 descanso

Losa Rap h=12+5=17cm, luz hasta 4,70m (1:2:3,5) Cemento tipo 1,

Losa Rap h=20+4=24cm, luz mayor a 4,70 m (1:2:3,5) Cemento

Cimiento PBC sin cal (1:12) m3

Cimiento de H° de Cascotes - Arena Lavada

Losa Listalosa

Cemento

Piso

MAMPOSTERIAS

De Nivelación

Con ladrillo común y junta de 2 cm

De 0.30 m de ancho (1:2:8) con cemento Tipo 1

juntas - 300ml,

FUNDACIONES

Cimiento PBC

De 0.30 m armada (1:4) con cemento Tipo 1 Ladrillo común, un

De 0.45 m de ancho (1:2:8) con cemento Tipo 1

COSTEO DE OBRA

De Elevación

Con ladrllo común y junta de 2 cm

De 0.15 m (1:2:10) con cemento tipo 1

Ladrillo

De 0.15 m (1:2:10) con cemento tipo 1 - A la vista Ladrillo

Con Ladrillos Cerámicos Huecos y junta de 1,5 cm

De 0.15 m (1:2:8) con cemento tipo 1

Ladrillo 6 tubos de 1ra, un

12x18x25 cm Ita Yby,

De 0.20 m (1:2:10) con cemento tipo 1 Ladrillo

De 0.15 m (1:2:8) 1 cara vista con cemento tipo 1

Ladrillo 6 tubos de 1ra, un

12x18x25 cm Ita Yby,

De 0.20 m (1:2:10) con cemento tipo 1 - A la vista Ladrillo

De 0.20 m (1:2:8) m con cemento tipo 1

Ladrillo hueco un

18x18x25 Ita Yby

De 0.20 m (1:2:8) con cemento tipo 1

Ladrillo 6 tubos de 1ra, un

8x18x25 cm Ita Yby

De 0.30 m (1:2:10) con cemento tipo 1

De 0.15 m (1:2:8) con cemento tipo 1

Ladrillo de 1ra A, un

6x12x25 cm Ita Yby,

De 0.07 m (1:2:10) con cemento tipo 1 y junta de 1.5 cm Ladrillo

Elevaciones Varias

Sardinel de Ladrillos Comunes

Ladrillo común, un

De Elevación

Sardinel de Ladrillos Laminados

Ladrillo laminado Ita Yby un 14,0

1ra A, 6x12x25 cm Cemento tipo 1,

Ladrillo Convocó

Ladrillo

de 1ra, 19x19x10 cm Yoayu

Muro de Piedra Bruta de 30 cm (1/2:1:4)

AISLACION

Horizontal

Pilar de Ladrillo Común 30x30 (1:1:6) Ladrillo

Horizontal 0.15 con asfalto Cemento tipo 1,

Vertical con Panderete 0.15 m

Pilar de Ladrillo Común 30x30 (1:1:6) - A la vista

De Losa con Piso de Tejuelita Prensada

Muralla de Ladrillo Común (e=0.15m, h=2.00m, con pilares de 0.30 x 0.30 cada 2.00m)

De Losa Para Baño

DINTELES

De Varilla Sobre Abertura

De Hormigón Prefabricado

COSTEO DE OBRA

CONTRAPISOS

De 7 cm (1/4:1:4:6)

De 10 cm (1/4:1:4:6)

De 20 cm en Losa Sanitaria

TECHOS

Teja Española sobre Tejuelón c/ Madera de Ybyrapyta

Teja

REVOQUES

De Paredes

A 1 Capa, Espesor 1.5 cm (1:4:16) con hidrófugo

Cemento

A 1 Capa, Espesor 1.5 cm (1:4:16) s/ hidrófugo, m2 29.850

Salpicado (1:3)

Cemento tipo 1, kg 3,00 1.100 3.300

Arena lavada, m3 0,01 65.000 650

Ceresita hidrófugo, kg 0,25

Azotada Impermeable (1:3), Espesor 0.5 cm

Cemento tipo 1, kg 2,70

Chapa N° 28 s/ estructura de caños metálicos

Chapa N° 28 s/ Estructura de Varillas torsionadas Varilla

De Cielorrasos (1:4:12)

Chapa de Fibrocemento Ondulada 6 mm

Mosaico Graníto Lavado (para exterior 30x30cm)

TECHO METÁLICO CON CHAPA TRAPEZOIDAL

Separación entre correas 1,20 m

Varios incluye pintura, electrodo, aguarras, discos Chapa trapezoidal N°27 0.40 mm 1.05 x 1 (ancho util 0.98)

Ángulo de 1 1/4

Cerámica Esmaltada

TECHO METÁLICO CON CHAPA TERMOACUSTICA

Con cabriada de 40 x 12 cm. No incluye pilares.

Chapa con isopor 30 mm Galva/Marfil Econml

Perfil C 100x38 1.80mm

Entrepiso de Madera

Tirante de ybyrapyta

PISOS

Baldosa Calcárea

Baldosa

Mosaico Granítico (base gris 30x30cm) Mosaico

Ceramica 45x45cm

Pastina base gris, kg 0,75 6.000 4.500

Layota 28x28cm

Plancha para Revestido de Escalera

Piedra Losa Rompecabeza

COSTEO DE OBRA

Piedra losa Blanca Cuadrada Pulida

Calcáreo Base Gris

Alisada de Cemento

Baldosones de Hormigón (40x40x3cm)

Baldosón

Carpeta para Piso Cerámico o Alfombra

Madera 3/4 x 3”,

Alfombra

Cerámica Esmaltada

Mosaico Granítico (base blanca pulido 10x30cm)

Alfombra (2mm sin carpeta)

Alfombra multipiso, m2 1,10

Empedrado

Piedra bruta blanca, m3 0,20 150.000 30.000 Arena lavada, m3 0,15 65.000 9.750 Ripio de piedra, tn 0,07 70.000 4.900 Mano de obra,

Hormigón Armado

ZOCALOS

Layota 28x10cm

CIELORRASO

De machimbre c/ armazón de madera, no incluye corniza Liston de cedro 1x2”,

Machimbre

Boca Desagüe Abierta 40x40x40cm

REVESTIDOS

“No incluye la base previa”

Piso Pared Cecafi Cecafi 32 x57cm

Porcelanato 60 x 60 cm

Registro 30x30x30cm

Ladrillo

Piso Pared 31 x 31 cm

Forte Habana 31 x 31

Registro 40x40x40cm

Ladrillejo Ladrillejo de 1ra Yoayu

Registro 60x60x50cm

Piedra Laja Fina (1 a 2 cm de espesor)

Piedra laja fina, m2

DESAGÜE CLOACAL Y PLUVIAL

Boca Desagüe Abierta 20x20x20cm Ladrillo

Caño

Caño PVC

Boca Desagüe Abierta 30x30x30cm Ladrillo

Caño de Hormigón 50cm, Roto Comprimido

Caño de Hormigón 60cm, Roto Comprimido

COSTEO DE OBRA

Caño de 80cm Hº Aº Vibrado Simple - Macho/Hembra

Caño de 80 cm, un 1,00 399.500 399.500

Mano de obra,

Pozo Ciego (Diámetro=1.50 m y h=3.00 m)

Ladrillo común,

Cámara Séptica (1x1.60x1.20m)

Ladrillo común,

Rejilla de Piso Sifonada

Caja sifonada cuadrada

nº 25, 150x150x50mm

Desagüe Cloacal p/ Baño Completo (hasta el primer registro)

Caño

Caño de PVC 50 mm, ml 2,00 11.250 22.500

Caño PVC 40 mm, ml 4,00 7.450

Codo 90º p/ desagüe 100mm un 1,00 11.150 11.150

Codo 90º p/ desagüe , buje largo 40mm, un 2,00 1.550 3.100

Codo 45º p/ desagüe un 2,00 1.600 3.200 secundario 40mm,

Caja sifonada

150x150x50mm, un 2,00

c/ rejilla aluminio

Adhesivo 75 gr, un 2,00 9.200

Mano de obra, un

Desagüe Cloacal p/ Baño de Servicio

(hasta el primer registro)

Caño 100 mm, ml 2,00 14.000 28.000

Caño PVC 50 mm, ml 1,00 11.250 11.250

Caño PVC 40 mm, ml 3,00 7.450 22.350

Codo 90º p/ desagüe un 1,00

primario 100mm,

Codo 45º p/ desagüe un

primario 100mm,

Codo 45º p/ desagüe un

primario 50mm,

Codo 90º p/ desagüe un 1,00

secundario, buje largo 40mm

Codo 45º p/ desagüe un 2,00 1.600 3.200 secundario 40mm, Ramal de reducción 45º un

simple p/ desagüe primario 100x50mm, Caja sifonada cuadrada un

nº 25, 150x150x50mm, Prolongador un 1,00

150x150mm p/ caja

Anillo de sellado p/ un 3,00 5.000 15.000 desagüe 100 mm,

Anillo de sellado p/ desague 50mm un 2,00 2.900 5.800 Adhesivo 75

Desagüe Cloacal Para Baño Social (hasta el primer registro) Caño

primario 100mm,

Codo

primario 100mm,

Codo 45º p/ desagüe un

primario 50mm,

Codo 90º p/ desagüe un

secundario, buje largo 40mm

Codo 45º p/ desagüe un

secundario 40mm, Ramal de reducción

simple p/ desagüe primario 100x50mm, Caja sifonada cuadrada un

nº 25, 150x150x50mm, Anillo de sellado p/ un

desagüe 50 mm, Anillo de sellado p/ un 3,00

desagüe 100 mm, Adhesivo 75

Desagüe para Pileta de Lavar y Lavarropas

Caño

Caño PVC 40 mm, ml 3,00 7.450 22.350

Codo 90º p/ desagüe un 2,00 1.550 3.100 secundario, buje largo 40mm

Codo 45º p/ desagüe un

1.600 3.200 secundario 40mm,

Caja sifonada cuadrada un 1,00

nº 25, 150x150x50mm,

Adhesivo 75 gr, un 0,50 9.200 4.600 Limpiador 200 cc, un 0,50 27.000 13.500

Mano de obra, un 1,00 159.000 159.000

Total por: un 300.250

Desagüe para Pileta de Cocina

Caño PVC 50 mm, ml 3,00 11.250 33.750

Codo 90º p/ desagüe un 2,00 4.500 9.000 primario 50mm,

Ramal de reducción 45º un 1,00 16.500 16.500 simple p/ desagüe primario 100x50mm,

Desengrasador redondo un 1,00

67.000 nº 70, 250x172x50,

Adhesivo 75 gr, un

AGUA CORRIENTE

Caño PVC de 1”

Caño PVC roscable, ml 1,00 27.850 27.850

de obra, ml

Caño PVC de 3/4”

Caño PVC roscable ml 1,00 12.850 12.850

Mano de obra, ml 1,00 13.000 13.000 Total por: ml 25.850

Caño PVC de 1/2”

Caño PVC roscable, ml 1,00 9.850 9.850

Mano de obra, ml 1,00 8.000 8.000

Total por: ml 17.850

Instalación Agua Fría en Baño Completo

Caño 1/2” roscable, ml 9,00 9.850 88.650

Codo 90º roscable, 1/2”, un 6,00 1.660 9.960

Llave de paso de 1/2” un 2,00 87.700 175.400 cromada FV Linea Clásica

Tapon roscable macho ½”un 4,00 690 2.760

Tee 3/4”x1/2” IPS, un 4,00 3.400 13.600

Adhesivo 75 gr, un 0,60 9.200 5.520

Cinta teflon 18mmx25m, un 2,00 9.600 19.200

Mano de obra, un 1,00 412.000 412.000

Total por: un 727.090

Instalación Agua Caliente y Fría en Baño Completo

Linea Clásica,

Instalación Agua Fría en Baño de Servicio Caño 1/2” roscable, ml

bajada de un

embutir p/ cisterna nº 4,

bronce sin campana, Adhesivo 75gr, un

Instalación Agua Fría en Baño Social

secundario, 40mm,

Linea Clásica, Adhesivo

Agua Fría en Baño Social -

Instalación Agua Fría p/ Pileta de Lavar y Lavarropas Caño

COSTEO DE OBRA

Codo 90º roscable, 1/2”, un 3,00 1.660 4.980

Tee 90º p/ desagüe un 1,00 4.000 4.000 secundario, 40mm,

Tapon roscable macho ½”un 2,00 690 1.380

Llave de paso de 3/4” un 1,00 84.000 84.000 bronce sin campana,

Instalación Agua Fría para Pileta de Cocina

Caño 1/2” roscable, ml 2,00 9.850

Codo 90º roscable, 1/2”, un 3,00

bronce

Instalación Agua Caliente y Fría p/ Pileta de Cocina

Caño de 1/2” p/ agua calienteml 6,00

Codo de 1/2” galv, un 6,00 7.700

Tee 1/2” galv, un 2,00 6.150 12.300

Unión doble 1/2” galv, un 2,00

Alma doble 1/2” galv, un 4,00 7.700 30.800

Llave de paso 1/2” FV cromoun 2,00 66.500 133.000

Prolongador FV 1/2”x1 un 1,00 38.000 38.000 cromo sin campana,

Sellador p/ caño 125cc un 0,40 45.900 18.360

Cinta teflón 18mmx25m, un 2,00 9.600 19.200

Mano de obra, un 1,00 254.000 254.000

Total por: un 712.460

COLOCACION DE ARTEFACTOS SANITARIOS

Baño Completo - Frío y Caliente - No incluye bañera

Juego con cisterna bajajuego 1,00 2.211.250 2.211.250

Deca Ravena Crema,

Griferia FV Linea Clásica juego 1,00 2.086.000 2.086.000 (Ducha, bidet y lavatorio)

Termocalefón 80 lt, un 1,00 1.650.000 1.650.000

Soporte para calefón, par 2,00

½”x30un

Prolongador

Baño Completo con Bañera Común

Instalación de baño un

7.604.143 completo sin bañera, Bañera 1,60x0,70

Baño Completo con Bañera Hidromasaje

Instalación de baño un

Baño Completo - Frío solo

c/ cisterna alta Deca Ravena

bajo ducha FV, Conexión cromada

fijar artefactos, Cemento blanco,

Total por: un 3.264.763

Baño de Servicio

Juego para baño con juego

cisterna alta,

Tubo de bajada de un 1,00

13.500 embutir p/ cisterna nº 4,

Sopapa FV cromada p/ un

lavatorio

Bajada p/ lavatorio,

Canilla p/ lavatorio FV

Canilla de 1/2” cromo un 1,00

para bajo ducha FV, Conexión cromo ½ x 30 cmun

fijar artefactos,

Baño Social - Standard

Juego para baño social juego 1,00

con cisterna alta Deca Ravena,

Canilla para lavatorio

Imperatriz,

fijar artefactos, Cemento

Baño Social - Superior

Pileta de Cocina - Acero Inoxidable - Frío Solo

Pileta 1 bacha, un 1,00 276.000 276.000

Canilla FV pico móvil frío solo un 1,00

Mano de obra, un 1,00

Pileta de Cocina - Acero Inoxidable - Frío y Caliente

Pileta 2 bachas, un

Pileta de Lavar y Lavarropas

Pileta granítica 1 bacha un 1,00 95.000 95.000 1,20x0,60 m,

Canilla 1/2” bronce FV, un 2,00 49.000 98.000

Sopapa p7 pileta granito un

Mesada de Granito para Cocina

Mesada de Mármol para Baño Social (0.70x0.60m)

Mesada de Mármol para Baño Completo (1.00x0.60m)

INSTALACION ELECTRICA

Pilar de Mampostería 0.45x0.45x1.70m

No incluye cimiento y nivelación

Total por: un

Registro eléctrico 30x30x70cm

común, un

Total por: un

Registro eléctrico 40x40x70cm

COSTEO DE OBRA

Puesto de Medición Provisorio

Monofásico con limitadora hasta 40 A Nicho monofásico, un 1,00 9.240 9.240 Poste de

Trifásico c/ acometida de 3m y limitadora hasta 45 A

Trifásico con limitadora hasta 45 A

Puesto de Medición Definitivo (Con línea subterránea o embutido en mampostería)

Monofásico c/ acometida 3m y limitadora hasta 40 A

Línea Subterránea

Monofásica con cable de 4 a 10mm

Trifásica con cable de 4 a 10mm

Línea Monofásica Embutida en Mampostería con Cable de 4 a 10 mm Caño

Tablero Principal con 6 llaves TM

12 TM Steck,

Tablero principal con 6 llaves TM (llaves europeas) Total por: un

Bocas de Lámparas y Tomas de Corriente

(Incluye colocación de electroducto y cableado hasta 5m del tablero principal)

Una Lámpara con su Interruptor

Caño

Una Lámpara con 2 Llaves de Combinación

Caja de llave plástica, un 2,00

Caja metálica conexión un

Caño

Cinta

Circuitos Independientes

(Hasta 5m del tablero principal en cañerías ya instaladas para otros circuitos)

Circuito para Calefón/AA/Ducha Eléctrica

Caja p7 llave TM unipolar un

Llave para calefón 25 un 1,00

Cable de 4 mm, ml 13,0

Cinta aisladora

Línea Embutida para AA sin cableado

Caja para llave

Circuitos de Comunicación (Incluye colocación de electroducto y cableado hasta 5m del tablero)

Línea de teléfono con su toma

Total por: un 153.873

Línea de Timbre con su pulsador

Toma para Antena de TV o Audio

CARPINTERIA DE MADERA

Marco Recto (de 0.15cm p/ puerta de 2.10m de alto)

De Ybyrapyta de 0.70 m de ancho

Ybyrapyta de 1.50 m de ancho un

Marco Recto (de 0.15cm p/ ventana de 1.20m de alto)

De Ybyrapyta de 1.50 m de ancho

Puerta de 2.10 m de alto

Placa de eucalipto (0.80x2.10m)

Puerta placa, un 1,00 180.000 180.000

Ficha 5 agujeros, par 1,50 10.000 15.000 Tornillo 1x7, un 30,0 150 4.500

COSTEO DE OBRA

Mano de obra, c/hoja 1,00

Total por: un 411.500

Placa c/ cerradura para baño (0.80 x 2.10m)

Puerta placa de eucalipto un 1,00 180.000 180.000

Ficha 5 agujeros, par 1,50 10.000 15.000

Tornillo 1x7,

Tablero (0.80x2.10m)

Puerta tablero común, un 1,00

Ficha

Tornillo

Cerradura

Tablero - Punta Diamante (0.80x2.10m)

Puerta de cedro c/ molduras un 1,00 1.550.000 1.550.000

Ficha 5 agujeros, par 1,50 10.000 15.000

Tornillo 1x7, un 30,0

Vidriera Sencilla (1.50x2.10m - 3 hojas de abrir)

Puerta vidriera, m2 3,15 300.000 945.000

Ficha 5 agujeros, par 3,00 10.000 30.000

Tornillo 1x7, un 60,0 150 9.000

Falleba de arrimar un

Mano de obra, c/hoja 3,00 46.000 138.000 Total por: un 1.232.500

Persiana (1.50x2.10m - 3 hojas de abrir)

Puerta (varilla 45 cm) m2 3,15 450.0001.417.500

Ficha 5 agujeros par 3,00 10.000 30.000

Tornillo 1x7, un 60,0 150 9.000

Falleba de arrimar un 1,00 25.500 25.500

Pasador 150 mm un 2,00 18.000 36.000

Varilla p/ falleba 1.20 un 2,00 24.500 49.000

Mano de obra, c/hoja 3,00 46.000 138.000

Total por: un 1.705.000

Ventana de 1.20 m de alto

Vidriera (1.50x1.20m - 3 hojas de abrir)

Ventana vidriera m2 1,80 220.000 396.000

Ficha 5 agujeros, par 2,00 10.000 20.000

Ficha 3 agujeros, un 1,00 9.000 9.000

Tornillo 1x7, un 52,0 150 7.800

Falleba de arrimar un 1,00 25.500 25.500

Pasador 150 mm un 2,00 18.000 36.000

Varilla p/ falleba 1.20 un 1,00 24.500 24.500

Mano de obra, c/hoja

Vidriera (2.00x1.20m - 4 hojas de abrir)

Total por: un 841.600

Vidriera (1.00x0.80m) Total por: un 324.000

Persiana (1.50x1.20m - 3 hojas de abrir)

Ventana persiana fija, m2 1,80 450.000 810.000 Ficha 5 agujeros, par 2,00 10.000 20.000

Ficha 3 agujeros, un 1,00 9.000 9.000

(2.00x1.20m - 4 hojas de abrir)

CARPINTERIA METALICA

Balancín hasta 1 m2 Balancín fabricado con m2

de 5/8 y T 3/4x1/8”,

Puerta Metálica Tipo Reja (0.80x2.10 m) Puerta, marco y herrajes, un 1,00

Mano

Cortina Metálica (2.40x2.60 m)

Total por: un 4.346.000

Reja de Hierro Artística Sencilla (1.50x1,20 m)

Reja

Baranda Metálica de Escalera ml

Portón Metálico (1.00x1.50 m)

Portón

Arena

Al

Portón Cochera (3.00x2.00 m)

Portón

Portón Cochera (4.40x4.00 m)

Portón

Escalera Metálica Recta Escalera

PINTURAS

Pintura de Pared a la

Tejuela a la Cal y Maderamen con Esmalte Sintético

de Machimbre

Abertura de Madera con Esmalte

COSTEO DE OBRA

Abertura de Madera con Barníz Aceite

Parrilla (boca de 1.00 m) Ladrillo

Abertura Metálica con Esmalte

VARIOS

y Bajada con Esmalte Sintético

Balaustre Sencillo

de Ladrillo Visto

Moldura Doble

Tanque de Agua en Fibra de Vidrio 500 lt

Moldura Sencilla

Estufa (Boca de 1.00 m)

Ladrillo

PROYECTOS MANDU’A

Descripción general:

Todas las construcciones se realizan en Asunción o alrededores sobre un terreno seco con una capacidad portante de 3 Kg/cm2, que no requiere movimiento de suelo. El análisis de costo incluye los gastos generales (10%) y beneficio de la empresa (15%). Se excluyen los gastos complementarios correspondientes a los Honorarios Profesionales por Proyecto y Dirección de Obras. No se consideran los gastos por Permiso Municipal, de conexión y consumo por servicios de

agua y eléctricidad. Tampoco se considera el valor del predio. Los precios de materiales y de mano de obra corresponden a los publicados por nuestra revista, en cuya guía de costeo de obra se desarrolla cada uno de los ítems. Los precios de mano de obra se basan en consultas realizadas con contratistas y profesionales de construcción. No incluyen cargas sociales, seguro de accidentes, etc.

Casa Mandu’a - Vivienda Modelo 1

Descripción: Vivienda económica con una superficie de 67,7 m2

Desarrollo de la Obra

• Fundación: Piedra bruta colocada. Nivelación: Mampostería de 0,30 con ladrillos comunes. • Aislación: Horizontal de muros realizada en cajón con asfalto sólido diluido en caliente. • Mampostería de elevación: Ladrillo hueco de 6 agujeros. En baños y paredes con instalación hidráulica, de ladrillo común. • Dinteles: Envarillado continuo de 2 varillas y de 4 varillas sobre aberturas. • Techo: Tejas españolas prensadas 1ª B, con tejuelones, maderamen de yvyrapyta, aislación con cartón asfáltico, con terminación de boca teja, mojinete y tapa doble. • Carpintería de madera: Marcos de yvyrapyta, aberturas de madera de guatambú, mueble de cocina revestido con laminado plástico. • Revestidos: Azulejos esmaltados lisos 15x15, en cocina, lavadero y baños, con una altura de 1,80 m. • Revoques: Base con azotada impermeable de 0,5 cm y revoque con aditivo hidrófugo, en interior a 1 capa y exterior en la faja perimetral de 0,50 m. Incluye vértice de mampostería y borde de aberturas. • Instalación eléctrica: Monofásica, llaves termomagnéticas brasileñas, Placas, picos de luz y tomas argentinas. Sin artefactos. • Instalación sanitaria: Cañería hidráulica de agua fría, cloacal y pluvial, de PVC. Loza de baño brasileña, con cisterna alta. Pileta de lavar de granito reconstituido.

MODELO 1 - VIVIENDA PLANILLA DE COSTOS

0.15 m con ladrillo hueco 6

Elevación 0.15m con ladrillo hueco 6 tubos, 1

Pilar de ladrillo común 30 x 30 a la vista

sobre aberturas / envarillado de mamposteria

Techo: teja española, tejuelón, aislante, vigas y

de 10 cm con H° de cascotes

Limpieza final y retiro de escombros

Imprevistos , mermas y roturas (3 %)

Pileta de cocina de acero inoxidable, 1 bacha. Las canaletas y bajadas, de chapa galvanizada Nº 26. • Pintura: Interior y exterior a la cal con fijador y color. Mampostería a la vista con protección a base de silicona, previa limpieza con ácido muriático. Carpintería de madera y maderamen de techo al barniz. Carpintería metálica y canaletas con esmalte sintético.

Dúplex Mandu’a Vivienda Modelo 2

Descripción: Conjunto de 3 viviendas, cada una de 121,5 m2, con estructura de losa prefabricada con paredes portantes y disminuyendo pilares y zapatas.

Desarrollo de la Obra

• Fundación: De piedra bruta colocada, con encadenado inferior de HºAº y zapatas de Hº Aº como base de pilares.

• Estructura: Losa cerámica a la vista que se apoya en paredes portantes, con algunos pilares y vigas de HºAº. Nivelación y Dinteles sobre aberturas y techo. • Revestidos: Idem modelo 1. • Aislación: Horizontal idem modelo 1. De baño en planta alta con alisada e impermeabilizante de base asfáltica. • Mampostería de elevación: Ladrillo laminado a la vista en fachada; ladrillo común en baños, área de servicio y paredes con instalación hidráulica; ladrillo hueco de 6 agujeros en interiores y medianeras. • Carpintería de Madera: Marcos de yvyrapyta, aberturas de cedro, placard de guatambú, mueble de cocina revestido con laminado plástico. • Carpintería Metálica: Balancines de ángulos, rejas artísticas sencillas y portón de cochera de chapa doblada. • Pisos: Contrapiso de cascotes, baldosa calcárea de base gris en área de servicio, layota nacional en cochera y parrilla. Cerámica esmaltada sobre carpeta alisada de 30x30 en planta baja, área social, escalera y cocina. De 20x20 en baños. Veredita tipo ka’a. Alfombra de 5 mm sobre carpeta de base en planta alta. • Zócalos: Calcáreo, cerámica esmaltada, layotas, en su caso y madera donde lleva alfombra. • Revoques: Común filtrado por ladrillos comunes con azotado de adherencia en ladrillhidrófugo en exteriores y áreas húmedas. • Instalación eléctrica: Monofásica, llaves TM brasileñas, placas, picos de luz y tomas argentinas.

PROYECTOS MANDU’A

PLANILLA DE COSTOS

Cimiento PBC colocada con cal ( 1/2 : 1 : 4 )

con ladrillo común

Aislación horizontal 0.15 con

Dintel sobre aberturas / envarillado de manpostería

de H° de

Contrapiso en losa sanitaria 20

Revoque 1 capa , 1.5 cm sin hidrófugo

Revoque 1 capa con hidrófugo en exteriores

de cielorraso a 1

Techo : teja española , tejuelón, vigas y tirantes

Baldosa calcárea base gris 20 x 20 cm

y roturas (3%)

Sin artefactos. • Instalación Sanitaria: Cañería para agua fría, cloacal y pluvial de PVC, para agua caliente de polipropileno, loza de baño brasileña, cisterna baja en baño social y en planta alta, alta en baño de servicio, pileta de lavar de granito reconstituido y de acero inoxidable de 2 bachas en la cocina. Canaletas y bajadas de chapa Nº 26. • Pintura: Mampostería a la vista con protección a base de silicona, previa limpieza con ácido muriático. Area de servicio y exteriores revocados a la cal con color. Paredes interiores al latex. Carpintería de madera, techo de tejas y losa con cerámica a la vista al barniz. Carpintería metálica y canaletas con esmalte sintético. os huecos, con azotada impermeable (0,5 cm) y común filtrado con aditivo .

Planta Baja
Planta Alta

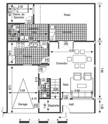
Dúplex Mandu’a - Vivienda Modelo 3

Descripción: 2 viviendas iguales en Duplex, cada una de 150,3 m2

Sistema constructivo y materiales

Estructura: La losa prefabricada utilizada es de una marca del mercado, utilizada con el mismo criterio adoptado en el Modelo 2.

Desarrollo de la Obra

• Fundación: Idem modelo 2. • Estructura: Se utiliza el sistema Listalosa con cielorraso ranurado a la vista, sin revoque, que descansa sobre paredes portantes, reforzados con algunos pilares y vigas de Hº Aº. • Fundación, nivelación, aislación, mampostería, dinteles, techos, revoques, Instalación Sanitaria y

Pintura: Idem al modelo 2. • Carpintería de Madera: Marcos de lapacho, aberturas, placards y mueble de cocina de cedro, éste último con puertas tablero; mesada de granito natural.

• Carpintería Metálica: Balancines metálicos. Rejas artísticas y portón de cochera de chapa doblada y varillas. • Pisos: Contrapiso de Hº de cascotes, baldosa calcárea de base gris en área de servicio, layota nacional en cochera y parrilla. Granito reconstituído pulido de base gris en área social, estudio y planta alta, y en planchas en la escalera. Cerámica esmaltada sobre carpeta alisada en cocina y baños. Vereda de mosaicos de canto rodado de color 30x30. • Zócalos: Calcáreo, cerámica esmaltada, cerámica roja y granito reconstituido. • Revestidos: Azulejo esmaltado liso 20x30 en baños y cocina. De 15x15 en lavadero y baño de servicio. • Instalación Eléctrica: Monofásica, llaves TM europeas, placas, picos de luz y tomas de procedencia uruguaya. Sin artefactos.

PLANILLA DE COSTOS

MODELO 3 / VIVIENDA DUPLEX, SUPERFICIE 150,30 m²

Cámara

Imprevistos,

Gastos

Edificio para la Renta Vivienda Modelo 4

Descripción: Edificio de 2 plantas que puede ampliarse a 3, comprende 2 departamentos en Planta Alta, cada uno de 60 m2 y con 2 dormitorios. En planta baja 2 salones comerciales de 34,30 m2 de área interior. Entrada vehicular cubierta. Desarrollo de la obra

• Fundación: Se utilizan Zapatas de Hº Aº donde actúan cargas puntuales y bajo las paredes, vigas del mismo material. • Estructura: De Hº Aº tipo tradicional, las losas descansan sobre vigas y pilares del mismo ancho que las paredes. En planta alta se utiliza un encadenado general a la altura de asiento de tirantes. • Aislación, mampostería de elevación, dinteles, techo y carpintería de madera, pisos, zócalos, revestidos, revoques, instalación sanitaria: idem al modelo 2. • Carpintería Metálica: Cortina de enrollar de tablillas metálicas con puerta de escape. Balancines, portones de acceso peatonal y de cochera de chapa doblada. Baranda sencilla de escalera. • Instalación

Eléctrica: Idem. modelo 3. • Pintura: Paredes interiores y exteriores del frente y contrafrente al latex. Paredes exteriores medianeras y cielorraso a la cal. Abertura de madera, maderamen y tejuelones del techo al barniz. Carpintería metálica con esmalte sintético.

Planta Baja
Planta Alta

PROYECTOS MANDU’A

PLANILLA DE COSTOS

Techo : teja española , tejuelón, vigas y tirantes Yvyrapyta

Casa Mandua 4 básica

Limpieza final y retiro de escombros (0.8 %)

Planta Baja
Planta Alta

Galpón tipo tinglado - Vivienda Modelo 5

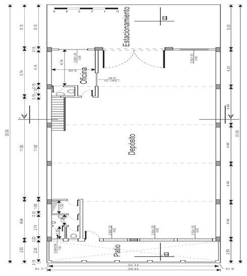
Descripción: Galpón tipo tinglado, con una superficie de 268,8 m2, con oficina y vestuario. La oficina incluye un baño privado y el vestuario dos boxes de baño, para ducha e inodoro, respectivamente. Consta de patio posterior y retiro en el frente, cumpliendo la norma municipal que exige un 25% de superficie sin construir.

La obra está prevista para un terreno plano y limpio de 12x30 m situado entre linderos.

Desarrollo de la Obra

• Fundación: Pilares asentados sobre zapatas de hormigón ciclópeo y cimiento corrido de P.B.C para asiento de paredes. • Estructura: Realizada con pilares de HºAº y vigas encadenadas conformando 2 anillos de unión. • Aislación, mampostería de elevación, dinteles, carpintería de Madera: Idem. modelo 1. • Techo: Tipo tinglado parabólico, estructura metálica reticulada fabricada de varillas torsionadas pintadas con antióxido. Cubierta de chapa galvanizada ondulada, aireada con extractores eólicos. • Carpintería Metálica: Balancines metálicos de ángulos y perfiles “T”. Portones de chapa doblada en el acceso vehicular y la salida al patio. Escalera metálica recta de acceso al entrepiso de madera. • Pisos: En el patio del frente y dentro del depósito, donde pueden circular vehículos, el piso es de hormigón armado con juntas de dilatación. En la oficina se utilizan baldosa calcárea de base gris y cerámica esmaltada sobre una carpeta alisada, en baños y vestuarios. Vereda de baldosita calcárea tipo ka’a con ranuras antideslizantes. Contrapiso de hormigón de cascotes. • Zócalos: Calcáreo en la oficina. • Revestidos: Azulejo esmaltado liso 15x15 en baños y vestuario. • Revoques: Sobre ladrillos huecos, azotada de adherencia con hidrófugo y revoque común filtrado y sobre ladrillos comunes sólo este último. Las paredes perimetrales llevan revoque a un solo lado.

MODELO 5 / GALPON TIPO TINGLADO,

• Instalación Eléctrica: Trifásica, llaves termomagnéticas europeas, placas, picos PLANILLA DE

COSTOS

PROYECTOS MANDU’A

de luz y tomas uruguayos, sin artefactos. Instalación Sanitaria: Cañería hidráulica de agua fría, cloacal y pluvial, lozas de baño, canaletas y bajadas idem modelo 1. Cisterna baja en baño de oficina y alta en el vestuario. • Pintura: Paredes revocadas, interiores o exteriores, a la cal. Paredes de ladrillo hueco a la vista con tratamiento correspondiente para el efecto. Carpintería de madera y entrepiso de machimbre pintadas con barniz. Carpintería metálica y caños de bajada con esmalte sintético.

Bolsa de subcontratistas

* La Bolsa de Subcontratistas es una colaboración de la revista con los profesionales y trabajadores de la construcción, teniendo un pequeño costo los anuncios en recuadro. La calidad del servicio, así como la relación contractual, escapa a nuestro compromiso con los apreciados lectores.

Agrimensura

Aire acondicionado

Instalación / Reparación

Bracho, Javier 0981 879749 / 0985 464491

Brítez, Santiago 0981 117524

González, Pedro 644661 / 0982 450866

Maciel, Pablo 0971 939890 / 0981 651205

Ojeda, Hugo 623766 / 0981 868289

Solis, Gabriel 0981 486233

Velázquez, Santiago 0981 843738

Aislación térmica

Duarte, Eleno 0983 338939

Marín, Dionisio 0983 731450

Alambrados

Bentrom, Román 991255

Riveros, Mario 0992 993007 / 0985 887621

Albañilería

Julio Cristaldo Cel.: 0986 188 514

Benítez, Ramón 0982 370231

Bogarín, Lidio 0971 947177

Bruno, Alejandro 0994 314460

Cabral, Andrés 0982 896561

Cáceres, Carlos 0982 132349

Cazal, Alexis 0981 343423

Esquivel, Rogelio 0981 456697

Fernández, Antonio 515629 / 0981 465940

Garcete, Palermo 0981 965660

Gill, Enrique 642559 / 0981 303974

Giménez, Pablo 0981 951645

Godoy, Eladio 0983 333622

González, Aníbal 0985 222147

González, Benito 0982 248256

Jara, Vidal 0981 434787 / 0981 876489

Jiménez, Antonio 514989 / 0981 660190

López, Osvaldo 0981 836904

Maidana, Sinforiano 0983 380486

Marín, Dionisio 0983 731450

Moreno, Ramón 0981 785546

Ocampos, Higinio 0984 926892

Ortega, Mildesis 0984 369 652 / 0981 594 893

Paniagua, Derlis 0981 182465

Peralta, Raúl 0981 501323

Rando, Gerardo 0985 766 650

Ramírez, Amado 374276 / 0981 485609

Riveros, Carlos 0981 521771

Rojas, Juan 0971 950157

Ruiz, Saturnino 0984 273997

Sosa, Edgar 0984 928914

Vera, Néstor 0981 103889

Animación y perspectiva

Abbate, Alejandra 0982 886227

González, Jorge 0986 552 000 / 0991 880 133

Pérez, Rafael 0981 476743

Aprobación de planos municipales

Benítez, Oscar 0971 340345

Chaparro, Miguel 0961 586457

Fernández, María 0981 932043

Rolón, Oscar 0981 445601

Robledo, Gustavo 0981 939512

Azulejos - colocación

Armando, José 0995 639335

Benitez, Alfredo 0981 520214

Benitez, Antonio 0981 945353

Ferreira, Gustavo 285663 / 0981 881211

Figueredo, Miguel 0981 479221

Godoy, Eladio 0983 333622

González, Benito 0982 248256

Jiménez, Antonio 514989 / 0981 660190

Medina, Antonio 0983 247516

Moragas, Carmelo 0985 268 497 / 0981 547 754

Noguera, Higinio 0981 564472

Ortíz, Vidal 509475

Palacios, Leonardo 0983 207676

Vázquez, Ever 0981 655799

Canaletas

Altamirano, Vicente 0981 851077

Arzamendia, Hugo 0981 126471

Canto rodado (carga en obra)

Figueredo, Catalino 0981 763438

Figueredo, Miguel 0981 479221

Carpintería

Aquino, Miguel 0986 858685

Bordón, Marcial 0971 277041

Franco, Marcos 0982 279166

Olmedo, Miguel 0981 526079

Carpinteros

de obra / techistas

Benítez, Aniano 0984 478256

Cáceres, Carlos 0982 132349

González, Aníbal 0985 222147

Jara, Oscar 780642 / 0981 184687

Mora, Pascual 0981 963459

Sosa, Carlos 0992 299951

Valdovinos, Pedro 0981 234113 Cascadas

Acevedo, Patricio 0981 412542

Aguilera, Gabriel 0985 101795

Cepillado en obra

Jara, Oscar 780642 / 0981 184687

Circuito cerrado

Cabrera, Arnaldo

Colocación de aberturas

Franco, Marcos 0982 279166

García, Juan 0981 571424 Gill, Enrique 642559 / 0981 303974

Sosa , Carlos 0992 299951

Colocación de empapelados

Coronel, Derlis 295479 / 0981 154662

Coronel, Julián 295479 / 0984 580876

Colocación de Losarap

Alarcón, Julio 501130 /0983 367 697

Gill, Enrique 642559 / 0981 303974

Cielorrasos - Durlock/PVC/Yeso

Agüero, Benjamín 0985 740977

Agüero, Jorge 0985 417456

Bentolilla, Esteban 480203 / 0981 385207

Careaga, Víctor 373410 / 0971 936858

Colocación de Parquet

García, Juan 0981 571424

Sosa, Carlos 0992 299951

Colocación de Piedra revestidos / molduras

Aveiro, Gerónimo 0985 242563

Figueredo, Miguel 0981 479221

Martínez, Diego 0984 560 841

Ortíz, Eduardo 0971 379011

Quiñónez, Expédito 0983 356501

Ríos, Francisco 0981 417309

Rojas, Juan 0971 950157

BOLSA DE SUBCONTRATISTAS

Colocacion de Pisos vinílicos / alfombras

Careaga, Víctor 373410 / 0971 936858

Coronel, Derlis 295479 / 0981 154662

Coronel, Julián 295479 / 0984 580876

Pavón, César 327 6331 / 0982 354987

Sánchez, Alberto 443477 / 0981 503266

Cómputo métrico

Benítez, Oscar 0971 340345

González, Jorge Arq 0986 552000 / 0991 880133

Nuñez, Andrea 0982 170442

Russo, Walter Ing 0991 789561

Vallejos S, Cristina Arq 0982 975371 / 0981 561645

Constructores de obra

Acosta Riveros, Jorge A 0984 557649

Agüero, Teófilo 524755 / 0983 942516

Añazco, Carlos 0981 457301

Benítez, Aniano 0984 478256

Benítez, Juan 751724 / 0981 488904

Benítez, Ramón 0982 370231

Caballero, Oscar 0972 131247

Cabral, Andrés 0982 896 561

Cáceres, Carlos 0982 132349

Cantero, Domingo 0981 244946

Dávalos,Hermes 0981 942718

Escobar, Gustavo 0981 163551

Espinoza, Mauricio 0982 781445

Fernández, Antonio 515629 / 0981 465940

Ferreira, Wilfrido 0981 400128 / 0981 786614

Figueredo, Miguel 0981 479221

Garcete, Palermo 0981 965660

Gill, Enrique 642559 / 0981 303974

Giménez, Leonardo 0981 530453

González, Aníbal 0985 222147

González, Miguel H 0961 889646

González, Rumildo 0971 350004

Gutiérrez, De los Santos 0981 390538

Hucedo, Carlos 0982 178592

Jara, Vidal 0981 434787 / 0981 876489

Jiménez, Antonio 514989 / 0981 660190

Maciel, Milciades 0981 943482

Maidana,Sinforiano 0983 380486

Meza, Esteban 0992 383232

Moreno, Ramón 0981 785546

Narváez, Arsenio 0981 939452

Noguera, Higinio 0981 564472

Ortiz Barrios, César 642239 / 0983 358854

Ortíz, Vidal 509475 / 0971 720887

Oviedo, Richard 0981 291070

Paniagua, Derlis 0981 182465

Quiñónez, Expedito 0983 356501

Quiroga, Pedro 0985 938774

Rando, Gerardo 0985 766 650

Recalde, César 0981 170159

Riveros, Carlos 0981 521771

Riveros, Mario 0992 993007 / 0985 887621

Robledo,Gustavo 0981 939512

Rodríguez, Buenaventura 0972 509828

Rojas, Bernardo 302692 / 0981 531143

Rojas, Juan 0971 950157

Romero, Melchor 0983 470631

Ruiz, Saturnino 0984 273997

Sánchez, Benito 0983 488540

Sánchez, Ricardo 0981 145907

Sánchez, Yisenia 0976 123426 / 0985 297794

Sosa, Edgar 0984 928914

Valdovinos, Pedro 0981 234113

Vega, Augusto 310352 / 0971 972699

Velázquez, Jorge 0983 507243

Velázquez, Santiago 0981 843738

Vera, Néstor 0981 103889

Contratistas de hormigón

Acosta Riveros, Jorge A 0984 557649

Arévalos, Guillermo 752601 / 0981 485307

Benítez, Oscar 0971 340345

Cabral, Andrés 0982 896561

Esquivel, Rogelio 0981 456697

Fernández, Antonio 515629 / 0981 465940

Fernández, Silvino 755284 / 0981 549523

Figueredo, Miguel 0981 479221

Garcete, Palermo 0981 965660

Giménez, Leonardo 0981 530453

González, Aníbal 0985 222147

González, Miguel H 0961 889646

González, Rumildo 0971 350004

Maidana, Sinforiano 0983 380486

Meza, Esteban 0992 383232

Ocampos, Higinio 0984 926892

Olmedo, Julio 0981 652772

Ortega, Mildesis 0984 369652 / 0981 594893

Paniagua, Derlis 0981 182465

Peralta, Raúl 0981 501323

Recalde, César 0981 170159

Torres, Arístides 0981 865518

Velázquez, Santiago 0981 843738

Vera, Néstor 0981 103889

Cortinas

Aguilera, Gabriel 0985 101795

Ayala, Ever 0983 711979

Maldonado, María Estela 0981 561631

Urbieta, Mónica 0981 476743

Demolición

Caballero, Oscar 0972 131247

Herrera, Cristino 0981 976488 / 0984 894128

Vallejos, Cándido 0991 233001

Villalba, Javier 0985 491498

Destronque de árboles

Herrera, Cristino 0981 976488 / 0984 894128

Vera, Néstor 0981 103889

Dibujantes técnicos

Arnedo, Ana Arq 0981 655014

Jacobo, Nora 0971 534417

Maidana, María B. 0991 988215

Martínez, Francisco 0786 230619 / 0975 681680

Montiel, Gustavo 586343 / 0982 488928

Rodriguez, Buenaventura 0972 509828

Rolón, Manuel 0986 909404

Rolón, Oscar 0981 445601

Digitalización de planos

Abbate, Alejandra 0982 886227

Aponte, Andrea 0971 190781

Arnedo, Ana Arq 0981 655014

Arza, Andrea Arq 0981 966786

Coronel, Renzo 0971 362856 / 0986 656577

Escobar, Gustavo 0981 163551

Ferreira, José 0981 915492

González, Jorge 0986 552 000 / 0991 880133

Maidana, María B. 0991 988215

Montiel, Gustavo 586343 / 0982 488928

Nuñez, Andrea 0982 170442

Nuñez, Miguel 0982 634026

Quintana, Jorge 290680 / 0981 426037

Robledo, Gustavo 0981 939512

Rolón, Manuel 0986 909404

Rolón, Oscar 0981 445601

Sánchez, Yisenia 0976 123426 / 0985 297794

Toledo, Milena 0981 201561

Divisorias interiores / Mamparas

Bentolilla, Esteban 480203 / 0981 385207

Careaga, Víctor 373410 / 0971 936858

Pavón, César 327 6331 / 0982 354987

Dorado a la hoja

Chávez, Ada 0981 838274

Drenaje

Caballero, Rodrigo 0981 257702

Velázquez, Santiago 0981 843738

Electricistas

Aquino, Roberto 521610/ 0971 313847

Benítez, Cándido 0981 496207

Bracho, Javier 0981 879749 0985 464491

Brítez, Santiago 0981 117524

Cáceres, Isidro 0981 927945

Chaparro, Miguel 0961 586457

Castillo, Marco 0981 578068

Coronel, Derlis 295479 / 0984 580876

Coronel, Julián 295479 / 0981 154662 Ever Pereira 0983 460 494

Delgadillo, Alberto 0981 844429

Delgadillo, Francisco 0982 335870

Díaz, Carlos 572156 / 0982 464967

Duarte, Gustavo 0983 191182

Esquivel, Rogelio 0981 456697

Galarza, Ramón 0981 230273

Garcete, Palermo 0981 965660

Giménez, Carlos 0981 741087

Giménez, Flaminio 0971 227480 / 0983 841240

González, Pedro 644661 / 0982 450866

Hucedo, Carlos 0982 178592

León, Cañete 0983 800938 / 0981 561409

Maciel, Pablo 0971 939890 / 0981 651205

Martínez, Gerardo 0981 493190

Montanía, Ylber 0981 474025

Núñez, Cayo 0983 404670

Otello Roa, Félix 780691 / 0972 822577

Paniagua, Derlis 0981 182465

Parini, Fernando 0983 657565

Ramírez, Dario 0992 863100 / 0991 677208

Ramírez, Roberto 944740 / 0981 494624

Rolón, Carlos 0982 751296

Ruiz, Carlos 0981 896430

Sanabria, Jorge 0984 154375

Sartorio, Jorge 0981 939172

Solis, Gabriel 0981 486233

Toñánez, Sebastián 0981 912516

Valenzuela, Luis 0982 127968 / 0985 942676

Vallejos, Cándido 0991 233001

Villaverde, Silvino 0992 396855

Empedrados y adoquinados

Santacruz, Pablo Ing 0981 105004

Fumigación

Herrera, Cristino 0981 976488 / 0984 894128

Herrería / estructuras metálicas

Arzamendia, Hugo 0981 126471

Bordón, Marcial 0971 277041

Bracho, Javier 0981 879749 / 0985 464491

Cazal, Mario 0982 878501

Delvalle, Christian 0981 853884

Garcete, Palermo 0981 965660

Herrera, Edgar 0982 272468

Maldonado, María Estela 0981 561631

Orrego, Cándido 0984 958981

Hojalatero

Cazal, Alexis 0981 343423

Impermeabilización

Duarte, Eleno 0983 338939

López, Ramón 0981 569767

Marín, Dionisio 0983 731450

Martínez, Braulio 0981 193232

Ramírez, Amado 374276 / 0981 485609

Ruffinelli, Miguel 0981 449955

Velázquez, Santiago 0981 843738

Jardineros

Aguilera, Gabriel 0985 101795

Basualdo, Javier 0982 311208

Duarte, Tomás 0985 941909

Villaverde, Silvino 0992 396855

Limpieza

de patios

Bentrom, Román 991255 Herrera, Cristino 0981 976488 / 0984 894128

Riveros, Mario 0985 887621

Mesadas de cocina / bañoMarmolería

Jimenez, Miguel Angel 0981 541146

Montaje de transformadores y motores

Benítez, Genaro 0981 496837

Díaz, Carlos 572156 / 0982 464967

Mancuello, Fernando 0991 201918 Morales, Gustavo 0981 893881

Motoserrista

/ poda de árboles

Basualdo, Javier 0982 311208

Bentrom, Román 991255

Duarte, Tomás 0985 941909

Riveros, Mario 0992 993007 / 0985 887621

Muros verdes / jardines verticales

Arzamendia,

Pintores

Amarilla, Ángel 942329 /

Lucio

Armando, José

Bogarín, Héctor 0985 959921

Borja, Francisco 0991 820078

Bruno, Alejandro 0994 314460

Careaga, Víctor 373410 / 0971 936858

Cazal, Alexis 0981 343423

Garcete, Palermo 0981 965660

Gauto, Miguel 0981 938415

Giménez, Hernando 0981 419674

Giménez, José 0993 353888 / 0981 604638

Giménez, Leonardo 0981 530453

Godoy, Pedro 0981 596914

González, Aníbal 0985 222147

Herrera, Edgar 0982 272468

Ibarra, Jorge 0961 842883

López, Ramón 0981 569767

Marín, Dionisio 0983 731450

Martínez, Diego 0984 560 841

Medina, Germán 0982 320250

Mereles, Néstor 0985 653204

Miranda, Félix 0981 514763

Morínigo, Miguel 973372 / 0981 474261

Noguera, Higinio 0981 564472

Ojeda, Darío 0971 223440

Oviedo, Richard 0981 291070

Paniagua, Derlis 0981 182465

Ramírez, Amado 374276 / 0981 485609

Ramírez, Ladislao 0981 766680

Reyes, Luis 0981 231612

Riveros G., Carlos 0981 521771

Riveros, Mario 0992 993007 / 0985 887621

Rojas, Bernardo 302692 / 0981 531143

Romero, Melchor 0983 470631

Sosa, Edgar 0984 928914

Vallejos, Cándido 0991 233001

Pintura texturada

Arévalos, Alberto 0971 208038

Giménez, Hernando 0981 419674

López, Ramón 0981 569767

Morínigo, Miguel 973372 / 0981 474261

Piris, Crispín 0982 360759

Piscinas - Construcción

y reparación

López,

Martínez, Diego 0984 560 841

Russo, Walter 0991 789561

Urbieta, Mónica 0981 476743

Piscinas

- Limpieza y Mantenimiento

López,

Moragas,

Noguera,

Piseros

Benítez,

Bogarín, Lidio 0971 947177

Bruno, Alejandro 0994 314460

Caballero, Rodrigo 0981 257702

Fernández, José 0982 627836

Giménez, Leonardo 0981 530453

Godoy, Eladio 0983 333622

González, Benito 0982 248256

Jiménez, Antonio 0981 660190

Maciel, Milciades 0981 943482

Martínez, Diego 0984 560 841

Medina, Antonio 0983 247516

Moragas, Carmelo 0985 268497

Noguera, Higinio 0981 564472

Palacios, Leonardo 0983 207676

Rando, Gerardo 0985 766 650

Riveros, Carlos 0981 521771

Rojas, Juan 0971 950157

Samaniego,Jorge 0982 986 757 0994 759925

Pisos técnicos (sobre elevados)

Agüero, Benjamín 0985 740977

Plomeros

Agüero, Benjamín 0985 740977

Aguilera, Gabriel 0985 101795

Alcaráz, Andrés 0971 956096

Altamirano, Vicente 0981 851077

Báez, Raimundo 0981 609001

Bracho, Javier 0985 464491

Caje, Rodolfo A. 0984 234423

Cazal, Mario 0982 878501

Chávez, Jorge 0981 823284

Escobar, Carlos 0971 357473

Fariña, Antonio 0971 231175

Ferreira, Gustavo 0981 881211

Garcete, Palermo 0981 965660

Giménez, Pablo 0981 951645

Herrera, Edgar 0982 272468

Hucedo, Carlos 0982 178592

López, Víctor M. 0971 760390

Medina, Alfredo 0981 468756

Medina, Germán 0982 320250

Moragas, Carmelo 0985 268497

Moragas, Victorino 0981 892513

Noguera, Higinio 0981 564472

Núñez, Cayo 0983 404670

Ortiz, Vidal 509475

Paniagua, Derlis 0981 182465

Rando, Gerardo 0985 766 650

Riveros G., Carlos 0981 521771

Riveros, Mario 0992 993007

Romero, Melchor 0983 470631

Ruíz, Carlos 0981 896430

Vallejos, Cándido 0991 233001

Villalba, Javier 0985 491498

Villaverde, Silvino 0992 396855

Ploteo de planos

Coronel, Renzo 0986 656577

Caje, Rodolfo A. 0984 234423

Manchini, César 0981 245725

Proyecto arquitectónico

Abbate, Alejandra 0982 886227

Aponte, Andrea 0971 190781

Arnedo, Ana Arq 0981 655014

Coronel, Renzo 0971 362856

Fernández, María Arq 0981 932043

Martínez, Liz Arq 0981 926697

Nuñez, Andrea 0982 170442

Pérez, Rafael 0981 476743

Pulidor de parquet

Fernández, José 0982 627836

Pulidor de piso granítico y de H˚

Caballero, Rodrigo 0981 257702 Fernández, José 0982 627836

Refrigeración / AA / camaras frigorificas/heladeras

Brítez, Santiago 0981 117524

Galarza, Ramón 0981 230273

Hucedo, Carlos 0982 178592

León, Cañete 0983 800938

Ruiz, Carlos 0981 896430

Sartorio, Jorge 0981 939172

Reparación / instalación de electrobombas para pozos

Escobar, Carlos 644497 / 0971 357473 Moragas, Carmelo 0985 268497

Restauración de muebles

Aparici, Mari 0981 500065 Montanía, Higinio 0981 530480

Seguridad

Seguridad

López,

Topógrafos

Guillén,

Trabajos

Ferreira,

Jacobo,

Montiel,

Navarro,

Quintana,

Recalde, César

Robledo,

Ventilación

*Lista de precios de materiales y servicios de la construcción ordenada por orden alfabético. Los precios incluyen el I.V.A. Todos los valores incluidos en esta edición son meramente indicativos, siendo los mismos resultando de un análisis de los precios los vigentes en el mercado. Mandu’a no se hace responsable de los mismos. INDICE

69 - ABERTURAS

70 - ACONDICIONADORES DE AIRE

70 - ALAMBRES

70 - ALQUILER Y VENTA DE EQUIPOS Y MÁQUINAS

74 - AISLANTES ACÚSTICOS

74 - AISLANTES TÉRMICOS

74 - ASCENSORES

74 - BIODIGESTORES

74 - CAL

75 - CÁLCULO ESTRUCTURAL

75 - CARPINTERÍA DE ALUMINIO

76 - CEMENTO BLANCO

76 - CEMENTO GRIS

77 - CERÁMICA ROJA

77 - CERCO ELÉCTRICO

77 - CONDUCTORES ELÉCTRICOS

78 - CONSTRUCCIÓN EN SECO

78 - CORTINAS

78 - CHAPAS

78 - CIELORRASOS

79 - CONTENEDORES

ABERTURAS

82 - DIVISORIAS SANITARIAS

82 - DRENAJES

82 - ELECTRICIDAD

83 - ESTRUCTURAS

83 - ESTUDIO DE IMPACTO AMBIENTAL

83 - FALLA DE PAVIMENTOS

83 - FERRETERÍA

83 - FUMIGACIONES

83 - FUNDACIONES

84 - GAVIONES

84 - HERRERÍA

84 - HERRAJES

84 - HIDRÓFUGOS

85 - HIERROS

85 - HORMIGÓN

85 - IMPERMEABILIZANTES

86 - LABORATORIO DE ENSAYOS

86 - LOSA PREFABRICADA

86 - MÁRMOL Y GRANITO

86 - MAMPARAS

86 - MALLA ELECTRO SOLDADA

87 - MEMBRANAS ASFÁLTICAS

87 - MEMBRANA LIQUIDA

Madera

Puerta placa

De 0,60 - 0,70 y 0,80 m

De cedro

Puertas con cabezal recto Tablero

Vidriera cuadrille

Vidriera sencilla

Tablero, punta diamante moldura c/ cedro de 1ra

Ventanas Persiana

87 - OBRADORES

87 - PERFILES

87 - PERFORACIÓN DE POZOS

87 - PIEDRAS

88 - PILOTES

88 - PINTURAS

89 - PISOS Y REVESTIMIENTOS

90 - PISOS SOBREELEVADOS

90 - PISOS VINÍLICOS

90 - PORTONES A CONTROL

90 - REMOTO

91 - PREVENCIÓN

DE INCENDIOS

91 - PUERTAS AUTOMÁTICAS

91 - REVESTIMIENTOS

ACÚSTICOS

93 - SELLADORES

93 - TERMOCALEFONES

93 - TOPOGRAFÍA

93 - SEGUROS

93 - VARILLAS

93 - VIDRIOS

15 cm, recto

Puerta ciega 2.10m de alto

De 0.90 m un

Puerta placa 2.10m de alto

De 0.80 m

De 0.90 m

Ventana corrediza con reja 1.10m de alto De 1.20 m ancho

Ventana corrediza con reja 0.76m de alto De 1.20 m ancho

150 m ancho

Ventana proyectante con reja 0.60 x 0.40m un

Balancín 0.60 x 0.40m un 105.000

Marco de yvyrapyta : cepillado, lijado y con 1 rebaje

ADHESIVOS

Brascola/Casarino Brascoflex

ALAMBRES

Liso

01 Acerado Nº 17/15, rollo 1000m un 780.000

02 Galvanizado Nº 9, 12, 14 kg 17.000

03 Galvanizado Nº 20 kg 16.800

04 Negro de atar Nº 18 kg 18.000

De púa

01 Nº 16, rollo de 400 un 300.000

Tejido de Alambre Romboidal x m2

Postes de madera

Yvyrapyta - Altura 2,20 m

01 De 2x3” un 14.850

02 De 3x3” un 17.820

Postes de hormigón (ver rubro Prefabricados) ALQUILER Y VENTA DE EQUIPOS Y MÁQUINAS

Equipos por día

01 Alisadora de H° (Honda-Lifan)

02 Amoladora o cortadoras para cerámica de 9” (Bosch)

03 Andamio ER (alt. 1,50 largo 1.80 - ancho 1.10 mts )

04 Andamio Acrow (alt. 1,85 largo 2.50 - ancho 1.20 mts )

05 Aparejo con roldana

Máquinas

01

RNNGE renta R

Calidad y garantía en todos nuestros servicios Asesoramiento profesional personalizado

Andamios Martillete Vallados

Arcilla Expandida

CÁLCULO ESTRUCTURAL

CAÑOS Y ACCESORIOS

PVC - Tubos de 6 m

Tubo liviano para desague (blanco)

De 40 mm un 44.700

De 50 mm un 67.500

De 75 mm un 144.000

De 100 mm un 155.000

De 150 mm un 363.500

Tubo cloacal blanco

De 100 mm un 84.000

De 150 mm un

Tubo roscable blanco agua fría

De 1” un

De 3/4” un

De 1/2” un

Tubo soldable p/ 10kg

De 32 mm, un

De 25 mm, un

De 20 mm, un

Tubo para agua caliente, roscable, 4 capas

De 1/2” un

CODOS PVC

Codo PVC para desagüe primario

De 50 mm x 45° un

De 50 mm x 90° un

De 100 mm x 45° un

De 100 mm x 90° un

Codo PVC para el desagüe secundario

De 40 mm x 45° un

De 40 mm x 90° (buje largo) un

Caja sifonada cuadrada con rejilla inox

100 x 100 x 50/40 mm un

150 x 150 x 50 mm un

150 x 185 x 75 mm un

Accesorios PVC

Alma doble roscable 1/2” un

“Y” 100x100 mm un

Tapon macho roscab p/desague secund de 1/2” un 690

Tee roscable de 1/2” un 2.600

Tee 3/4” a 1/2” IPS un 3.400

CARPINTERIA DE PVC

CEMENTO BLANCO

01 Cemento blanco kg 5500

CEMENTO GRIS

01 Yguazú, 50 kg bls 55.000

CERCO ELÉCTRICO

Cerco eléctrico de 4 hilos con hastes de hierro 5/8”

01 De alambre de 0,70 mm ml 12.000

02 De cabo de acero de 1,6 mm ml 24.000

Cerco de cuchillas galvanizadas colocado

01 Tipo medialuna

02 Tipo circular 8 puntas diam. 30

04 Electrificador: incluye central, batería, control remoto, sirena, con instalación

CERÁMICA ROJA

CONDUCTORES ELÉCTRICOS

Conductores flexibles con hilos de cobre electrolítico blando Aislación en PVC antillama 70oC

EN SECO

CASARINO

01 Ondusec 1 x 2,4 m un 02 Poliestireno Extruido - placa 0,60 x 1,20 m un

03 Lana de roca s/ alu, 8 x 1,20 m x 50 mm un

CORTINAS

ZINC Aluminizada de 0,90 cm ancho (Cincalum)

Chapa Ondulada No 28

CHAPAS

Chapa

6,0 - 6,9 m pulg/m

Tabla y puntales para encofrado

Tabla de eucalipto de 1” pulg/m 600

Puntal de eucalipto de 3x3” pulg/m 650

Tirantesde ybyrapyta / kurupa’y

TEL.: 021 906 951

(021) 906 951/2

CEL.: 0971 543 246

(021) 328 0572/3

1,0 -1,9 m pulg/m 2.800 2,0 -2,9 m pulg/m 2.900

CEL 0971 543 246

CDE: 061 570 501

CONTENEDORES

DEPOSITOS DE MADERA

Alfajias , cepilladas

3,0 - 3,9 m pulg/m 3.400 4,0 - 4,4 m pulg/m 3.500

4,5 - 4,9 m pulg/m 3.700 5,0 - 5,9 m pulg/m 3.800

6,0 - 6,9 m pulg/m 4.200

Machimbres De eucalipto 1/2 x 3”

pino 1/2 x 4”

eucalipto 1 x 4”

Ybyrapyta hasta 2 m de largo ml 10.000

Eucalipto hasta 2 m de largo ml 7.000

Vigas pulg2/m - De ybyrapyta

1,0 - 1,9 m pulg/m 4.500

2,0 - 2,9 m pulg/m 4.500

3,0 - 3,9 m pulg/m 4.700

4,0 - 4,9 m pulg/m 5.000

5,0 - 5,9 m pulg/m 5.500

DEPÓSITOS DE MATERIALES

Ladrillos

Ladrillo común Tobatí, un 650

Prensado 3 agujeros Ita yvy de 1a, 5x11,5x23,5 cm un 946

Laminado rústico Ita yvy de 1a, 5x11,5x23,5 cm un 825

- Revista Mandu’a

Laminado Yoayu de 1a un 1265

Yoayu laminadito 5x11 x 23 cm un 949

Prensado 3 agujeros Yoayu de 1a, 5x11,5x23,5 cm un 1.044

Ladrillo hueco

De 6x12x25 cm, 2 caras vistas, 3 tubos, 52 un x m2,

Yoayu de 1ra A, un 904

Ita Yvy de 1ra A, un 1.012

Ita yvy de 1ra B, un 792

De 8x18x25 cm, 6 tubos, 20 x m2

Ita Yvy de 1ra A, un 1.177

De 12x18 x25 cm, 6 tubos, 19 o 28 un x m2

Ita yvy de 1ra A un 1.298

Ita Yvy de 1ra B un 1.254 Yoayu de 1ra un 1.404

Yoayu de 1ra requemado un 1.278

De 18x18x25 cm, 9 tubos , 20 un x m2

Ita Yvy de 1ra A

de 1ra B

Ladrillo estructural

Ladrillo laminado recto - 6x12x25 cm, 52

laminadito 5x11x25 cm

Ladrillo laminado curvo, 15 un x ml

Irene de 1ra

Ladrillo convoco, recto o inclinado 25un x m2

Yvy 19x19x11 cm

18x18x12 cm un 2.650

Irene, 25x25x12 cm

Yoayu 19x19x10 cm

Ladrillejos 52 un x m2

Yoayu 1ra un 765

Yoayu 2da un 626

Ladrillo refractario 30 un x m2 , 6x12x25 cm

Ita Yvy de 1ra un 5.071

1ra

Ladrillo klinker 44 un x m2 , 10x20x3,5 cm

Ita Yvy de 1ra un 1.804

Yoayu 1ra un 2.397

TEJAS

Teja española prensada de 1ra

Yoayu-26 un x m2

1ra

De 1ra fogueada

Teja ROMANA o portuguesa Yoayu-

De 1ra A un 2.277

De 1ra B un 2.024

Teja FRANCESA YoayuDe 1ra B un 2.720

De 2DA un 1.898

Tejuelones - 9 un x m2

Yoayu de 1ra A un 2.574

Yoayu de 1ra B un 2.321

Ita Yvy de 1ra A un 2.288

Ita Yvy de 1ra B un 2.046

Tejuelitas - 30 un x m2

Ita Yvy de 1ra B un 473

Yoayu 1ra B un 658

Layotas

De 18x18 cm, 28 un x m2

Yoayu 1ra un 582

De 30x30 cm, lisa, 10 un x m2 un

Ita Yvy de 1ra un 1.914

Ita Yvy de 1ra B un 1.760

De 30x30 cm, rugosa, 12 un x m2 un

Ita Yvy de 1ra un 1.969

Ita Yvy de 1ra B

De 28x28 cm, lisa, 12 un x m2

Yoayu de 1ra A un 1.666

Yoayu de 1ra B un 1.540

Ita Yvy de 1ra un 1.573

Ita Yvy de 1ra B un 1.452

De 28x28 cm, rugosa, 12 un x m2

Yoayu de 1ra A un 1.666

Yoayu de 1ra B antideslizante un 1.540

Ita Yvy de 1ra un 1639

Ita Yvy de 1ra B un 1.518

Zocalos de layota de 1ra A -10 cm de ancho

Yoayu de 28 cm un 2.530

Ita Yvy de 1ra - 28 cm un 2.233

Pileta granÍtica - 1 bacha 1,00x0,50 m un 95.000 Pileta granÍtica - 2 bacha 1,40x0,50 m un 125.000 Cascotillo cerámico m3

Asfalto para aislación 3,6 lt un 60.000

Poste de Karanday un 120.000

Ita Yvy de 1ra B- 28 cm un 1.507 Varios Plástico para techo 200 micrones m2 4.000

DIVISORIAS SANITARIAS

ELECTRICIDAD

Columna de entrada (Materiales varios)

01 Aislador roldana B.T. 72x72mm, un 3.000

01 Aislador retención 0,50 un 3.500

02 Bulón p/ madera 3/8 x 3” un 1.000

03 Caño de acero ¾” x 3 m, un 8.500

04 Caño de acero 1” x 3 m, un 15.000

05 Caño galvanizado 2” x 5,8 m, un 125.000

06 Caño galvanizado 2 ½” x 5,8m, un 210.000

07 Cruceta p/ pre emsamblado 2” monofásica un 3.000

08 Cruceta p/ pre emsamblado 2 ½” Trifásica. un 3.500

09 Curva galvanizada 1 ¼”, un 8.500

10 Fondo de madera monofásico, un 6.000

11 Fondo de madera trifásico, un 6.000

12 Tapa monofásica Ande, un 8.500

13 Tapa trifásica Ande, un 10.000 14 Unión reducción 2” x 1”, un 9.500

15 Unión reducción 2 ½” x 1 ¼”, un 11.500

16 Curva galvanizada 1”, un 24.970

Cinta aisladora

01 Cinta auto soldable 3M 19mm x 2 mts un 7.500 02 Cinta aisladora Millión 19mm x 2 mts un 5.500

TEL.: 021 906 951

CEL.: 0971 543 246

CEL 0971 543 246

CDE: 061 570 501 (021) 906 951/2 (021) 328 0572/3

DRENAJES

01 Manta geotextil 200 g (Casarino) m2 12.000

Tablero de embutir transparente

01 Para 8 TM, un 25.000

02 Para 12 TM, un 31.500 03 Para 24 TM, un 80.000

Llaves termo magnéticas

Unipolares

01 Disyuntor TM 1x 10A, DIN un 8.000

Disyuntor TM 1x 40A, DIN un 10.500 03 Disyuntor TM 1x 50A, DIN un 10.500

Tripolares

01 Disyuntor TM 3x 20A, DIN un 28.000 02 Disyuntor TM 3x 32A, DIN un 28.000

03 Disyuntor TM 3x 40A, DIN un 30.000 04 Disyuntor TM 3x 63A, DIN un 30.000

Caño corrugado nacional

De 1/2”,

De 5/8”,

Caño plástico negro nacional (electroducto)

De 3/4”,

ESTRUCTURAS

TInglado Metálico

01 Hasta 10 m de luz,

02 De 10 m a 15 m de luz,

03 De 15 m a 20 m de luz,

04 De 20 m a 25 m de luz,

Tinglado de HoAo

FALLA DE PAVIMENTOS

FERRETERÍA

01 Balde albañil de plástico, un 10.000

02 Cemento de contacto, lt 23.500

03 Kerosene, lt 10.000

04 Masilla común kg 15.000

05 Solvente para cemento de contacto, lt 15.000

FUMIGACIONES

01 Fenoina, insecticida y fungicida p/maderas (Casarino) LT. 32.000

FUNDACIONES

GAVIONES

HERRERÍA

Aberturas

Barandas de balcón

01 De hierro sencilla 1,00m, pasamanos de 60x25mm en chapa doblada Nº14 colocación incluida dentro del radio urbano de Asunción

02

Balancines sin colocación - A partir de 1 m2

01 Balancín fabricado con ángulo 5/8 y T 3/4x1/8, hoja de 0,20 m,

02 Balancín fabricado con ángulo 3/4 y T 7/8 x 1/8,

03 Balancín de 60x60 cm,

04 Balancín de 60x40 cm

Cortinas metálicas de enrollar - A partir de 10 m2

01 Fabricación y montaje de cortinas automatizadas con láminas de acero galvanizado

02 Fabricación y montaje de cortinas manuales con láminas de acero

03 Cubrerrollo de chapa N° 18 con puerta trampa

Escaleras

01 Caracol diámetro 1,20 m, estructura de hierro con baranda, peldaños, con 1 mano antióxido y colocación incluida, por metro de altura,

02

Parrilla

01 Parrilla graduable de hierro enlozada con cenicero y carbonera de 1,20x0,50 m con tapa calor,

02 Campana de 1,20x0,60 m para parrilla con colocación,

03

Reja para ventana

01 Reja artística sencilla, con marco de ángulo de 3/4 x 1/8”, varilla de 10mm y dibujo rombo con planchuela de 3/4 x 3/16, m2

02 Idem anterior reja artística dibujada, m2

Portones (ver Portón a control remoto)

HERRAJES

Varios

01 Falleba de arrimar cromada, un 25.500

02 Ficha de 3 agujeros brasileña, reforzada, par 9.000

03 Ficha de 5 agujeros brasileña, reforzada, par 10.000

04 Pasador a palanca de embutir cromado de 150 mm un 18.000

05 Pasador a palanca de embutir cromado de 200 mm, un 25.000

06 Tirafondo galvanizado de 3/8x5”, un 1.500

07 Tornillo 1x7” caja de 144, un 150

08 Varilla de hierro para falleba de 1,20 m, un 24.500

09 Varilla de hierro para falleba de 1,50 m, un 30.000

HIDRÓFUGOS

HIERROS

HORMIGÓN

Hormigón Elaborado

* Comprende elaboración, transporte, bombeo, toma de muestras y rotura en laboratorio. Precios al contado

1

2

3

4

5

6

7

8

9

HOJALATERIA

Chapa galvanizada Canaleta embutida N° 24

Desarrollo 60

Desarrollo 50 cm,

Canaleta moldurada 40 cm

Chapa N° 24

Canaleta moldurada 33 cm

Chapa N° 26

Chapa N° 28

IMPERMEABILIZANTES

LOSA PREFABRICADA

Vigueta de Hº pretensado y ladrillo (Losa Rap)Puesto en obra

Y GRANITO

PreLosa pretensada y ladrillo Rap (PreRap 0,12x1,20 m) - Puesto en obra

01 Largo hasta 5,2 m

02 Largo hasta 6,1 m

03 Largo hasta 6,8

Largo hasta 9,5 m

Vigueta de cerámica armada con cielo raso de hormigón visto incluido, a retirar de fábrica. (Listalosa)

Ancho = 20 cm / Altura = 10 cm m2 122.000

MALLA DE FIBRA DE VIDRIO

Casarino

Para refuerzo de revoques en rollo de 50 m²

x 5mm x

x 5mm x 110gr/m2

x 10mm x 110gr/m2

3,17mm x 3,17mm x 55g/m2

Tela tramada de poliester

P/ refuerzo de pintura y cementicios

Tela tramada 1m x 50m

MEMBRANAS ASFÁLTICAS

Casarino

Casarino con Aluminio

1 De 3 mm

2 De 4 mm

Casarino sin Aluminio

1 De 4 mm

2

Super Flex con aluminio, Casarino

1 De 36

MEMBRANA LIQUIDA

03 Verde

Piedras para revestidos

01 Laja fina, espesor 1 a 2 cm

02 Laja gruesa (lajón), espesor 2 a 3 cm

Piedras para pisos

01 Losa blanca rompecabeza

PINTURAS

Para carpinteria

Barniz 3,6 l

Para pared LATEX para pared 21 kg

Para chapas

PILOTES

SELLADORES Casarino

Puku S.A. - Yrendague 136 M. Roque Alonso - TEL: (021) 752507, WSP: (0981) 112549

PISOS Y REVESTIMIENTOS

Baldosas Calcáreas

Base Gris

01 De 20x20, 15x30 o 25x25 cm,

03 Zócalo 10x30 cm

Base Blanca

01 De 20x20, 15x30 o 25x25 cm,

03 Zócalo 10x30 cm

Mosaico granítico para interior

Base Gris semi pulido

01 De

Mosaicos para exterior

Granito lavado

01 De 30x30 cm, blanco

Mosaico granítico anti deslizante

01 De 30x30 cm gris

02 De

Canto rodado

01 De 30x30 cm, liso, amarillo/rojo

02 Zócalo 10x30 15x30 cm

03 Cargado en obra,

Alto Tránsito - Antideslizante para exterior - Equipa

01 De 30x30 cm, gris

02 De 40x40

Vereditas

01 Vainilla 20x20, Ka’a, roja, negra, gris

Baldosones de Hormigón - Linea Gris 01

Equipa

Piso Para Deck Ecológico Wpc

01 Tabla 2,20 X 0,14m Un490.000.

Ripado Para Revestido

01 De 0,21 X 2,20 M Un180.000

02 De 0,21 X 3 M Un250.000

Bordes atérmicos para Piscina

01 De 40x40 (redondeado) ml 60.000

02 De 40x50 (pecho paloma) ml 75.000

03 Cargados en obra ml

PISOS SOBREELEVADOS

PISOS VINÍLICOS

TEL.: 021 906 951

CEL.: 0971 543 246

(021) 906 951/2 (021) 328 0572/3

CDE: 061 570 501

CEL 0971 543 246

TEL.: 021 906 951

(021) 906 951/2

CEL.: 0971 543 246

(021) 328 0572/3

CDE: 061 570 501

CEL 0971 543 246

PORTONES A CONTROL REMOTO

Incluye: motor, placa, mecanismo, accesorios, 2 x control remoto y colocación.

Para portón corredizo

01

Para portón basculante

Portones

01 Portón fabricado en chapa plegada Nº 20 y caño cuadrado 30x30 con pasador portacandado, cerradura y 1 mano

Corredizo en chapa Nº 20 lisa o plegada y caño 40x40mm,

Basculante de reja artística sencilla

07 Corredizo de reja artística sencilla

Hormigón pretensado, *Garelli puesto en obra Dinteles Garelli

De

De

Postes Garelli

Tirantes 2 x 5” con cola de pato Garelli De

Tirantes 2 x 5 recto Garelli De 1,00

PREVENCIÓN DE INCENDIOS

PUERTAS AUTOMÁTICAS

MANDU’ARA

SANITARIOS

Cerámicos Piso/Pared

Cecafi 32x57 cm, Tellus Alba m2 34.000

Cecafi 45x45 cm, Provence m2 40.600

Cecafi 45x45 cm, Estocolmo m2 42.600

Forte Havana white 31x31 cm, m2 44.400

Forte Havana white plus 31x31 cm, m2 47.000

Cecafi 38x75 cm, Catena beige m2 51.300

Porcelanato 60x60 cm, desde m2 105.000

Adhesivos para azulejos, ceramica y pisos

Pennsylvania impermeable.(B/20kg) kg 1.198

Pennsylvania porcelanato flexible.(B/20kg) kg 2.575

Pastina

Pennsylvania univ.Siliconada castaño (1kg) kg 9.702

Pennsylvania univ.Siliconada blanco (1kg) kg 10.050

Piletas de acero inoxidable

Tramontina

De 0,80x0,50 m , 1 bacha, lado derecho un 210.000

De 1,00x0,50x0,13 m , 1 bacha, lado derecho un 276.000

De 1,00x0,50x0,13 m , 1 bacha central un 371.000

De 1,20 x 0,50x0,13m , 2 bachas, un 485.000

Sopapa Astra, un Bañeras

De 1,60 x 0,70 x 0.40 m, acrílica, un 1.400.000

De 1,70 x 0,70 x 0.40 m, acrílica, un 1.600.000

De 1,80 x 0,80 m con hidro, ASTRA un 9.200.000

De 1,70 m, italiana con hidro, un 7.000.000

Botiquín

Astra embutido blanco A33-BR1 un 200.000

Astra de sobreponer, A34 - BR1 un 220.000

ASTRA 44 x 58 x 11 cm - colgante un 560.000

Astra Brasilia LB12/S1 un 400.000

Grifería

Para baño

FV - Linea Allegro cromo

Ducha, 103/15, un 1.050.000

Bidet , 295/15 un 884.000

Lavatorio, 207/15 un 765.000

FV - Clásica 20

Ducha, 103/20 un 811.000

Bidet, 293/20 un 639.000

Lavatorio, 207/20 un 636.000

FV - linea 61 - plus

Ducha, 103/61 un 958.000

Bidet, 295/61 un 829.000

Lavatorio, 207/61, un 760.000

Llave de paso con campana de 1/2” FV

Línea clásica 479/20, un 87.700

Linea 479/61, un 120.000

Linea Allegro 479/15, un 129.000

Para cocina / agua fria y caliente FVEmbutida

Línea clásica, 403/20 jgo 479.000

Externa

Línea clásica , 409/20 jgo 850.000

Línea 61, 409/61 jgo 935.000

Línea clásica , 416/20 jgo

De mesada

Línea 61, 416/61 jgo 775.000

Línea clásica , 416/20 pico alto jgo 714.000

Llave de paso FV

De 1/2” , cromo sin campana 475/13, un 66.500

De 1/2” , cromo con campana 479/20, un De 3/4” , cromo sin campana 475/19, un 101.000

De 3/4” , cromo con campana 479/20, un 130.000

FV bronce 1/2” 471 un 58.000

FV bronce 3/4” 471 un 84.000

Para agua fría - Para lavatorio - canilla FV

cromo : Pico alto 221 un 115.000 226/15 un 235.000 226/61, un 271.000

Para bidet

Linea clásica FV 295/20 un 370.000

Para patio

Canilla FV 1/2”

Bronce 430, 1/2” un 49.000

Cromo sin pico 432, un 106.000

Bronce pico manguera 437 , un 124.500

Idem bronce un 107.000

Varios

Adhesivo plástico p/ PVC , pomo 75 cc, un 9.200

Idem anterior 850 cc, un 62.600

Brazo metal p/ ducha eléctrica un 12.500

Cinta teflon 3/4 x 25 m, un 5.950

Cinta teflon 3/4 x 50 m, un 9.600

Cisterna plastica (blanco y colores), un

Conexión cromo 1/2” x 0,40 cm, MH, FV, un 40.800

Idem 1/2’ x 0,30 cm, MH, un 37.000

Conexión plastica 0,30 m un 7.000

Conexión plastica 0,40 m un 7.500

Ducha electrica Lorenzzeti Maxi 5400 w, un 127.500

Ducha teléfono DUCHAMATIC FV 119, un 810.000

Enchufe de plástico externo p/ inodoro un

Pasta lubricante 400 g un 29.700

Prolongador FV cromo 1/2 x1, un 38.000

Prolongador FV cromo 1/2 x2, un 46.500

Roseta FV cromo 1/2” - 452/13 un 6.400

Sellador p/ caño cuatricapa , 125 cc , un 45.900

Sella rosca , 125 cc un 40.000

Solucion limpiadora , frasco 200 cc , un 27.000

Sopapa p/ pileta Astra un 34.000

sopapa p/ lavatorio FV cromo 7/8” 246.01 un 66.700

Sopapa FV cromo p/ bañera un 164.000

Soporte gancho p/ calefón un 2.150

Soporte con tarugo p/ calefón un 9000

Tapa p/inodoro TPQ Orion un 37.000

Tapa p/inodoro TPK Orion un 75.000

Tarugo plástico 10 mm un 675

Toallero aro cromo 162/33 FV, un 117.409

Tornillo de bronce p/ fijar artefactos un 5.700

Tapagoteras

un

SEGUROS

TERMOCALEFONES

Termotanques de acero James

1 De 20 l

2 De 30 l

3 De 40 l

4 De 60 l - p 46

TOPOGRAFÍA

VARILLAS

1 Alambrón 4,2 mm x 12 m, 20.000

2 Varilla conformada AP 420, s/ cotiz.

3 Varilla conformada AP 500, 10.000

4 Varilla torsionada, s/ cotiz.

5 Varilla lisa, 11.500

VARILLAS

1 Alambrón 4,2 mm x 12 m, un 20.000

2 Varilla conformada AP 420, kg s/ cotiz.

3 Varilla conformada AP 500, Kg 10.000

4 Varilla torsionada, kg s/ cotiz.

5 Varilla lisa, kg 11.500

VIDRIOS

Turn static files into dynamic content formats.

Create a flipbook
Issuu converts static files into: digital portfolios, online yearbooks, online catalogs, digital photo albums and more. Sign up and create your flipbook.