A SYDA GULNAAZ
ARCHITECTURAL
F O L I O
Selected Works 2023 - 2025 P O R T

![]()
A SYDA GULNAAZ
F O L I O
Selected Works 2023 - 2025 P O R T

aa.gulnaaz2003@gmail.com
+91 8919264612 in 13 August 2003 www.linkedin.com/in/syda-gulnaaz-791876215
Electronic city, Bengaluru, 560100 Karnataka, India
Hello, I'm Syda Gulnaaz, a fourth-year architecture student at Vellore Institute of Technology with a strong background in art. My journey from the art world to architecture has given me a unique perspective that combines creative thinking with commitment to design. Proficient in tools like AutoCAD, SketchUp, Revit, and Photoshop I'm eager to contribute my artistic flair to the field of architecture. My passion lies in creating visually appealing yet environmentally responsible spaces. Seeking an internship to deepen my understanding of sustainable architecture and interior design I am excited to bring my skills in design, collaboration, and communication to a dynamic team. I look forward to the opportunity to contribute to innovative and eco-friendly projects that make a positive impact on communities and the environment.
2021 - Present B ARCH
Vellore Institute of Technology , Vellore, Tamil Nadu
2019-2021
Sri Chaitanya Techno School, Bengaluru, Karnataka
2016-2019
Mount Litera Zee High School, Hyderabad, Telangana
SOFTWARE SKILLS
2D
Autodesk Auto CAD
3D
Sketch Up
Autodesk REVIT mcneel rhinoceros
OTHER SKILLS
Skteching
Model making
Hand Drafting
3D printing
CNC & Laser cutting
Poster making
LANGUAGES
ENGLISH - Proficient
HINDI - Proficient
URDU - Native
TAMIL - Native
KANNADA - Proficient
TELUGU - Proficient
POST PRODUCTION
Adobe Photoshop Canva
RENDER
Twin Motion Enscape




2024
Intern at Sobha Ltd.
2024
Design Intern at Phooldaan
2023
Graphic Design Intern at A&G Tech
Workshop - Build India Education
Autodesk Auto CAD
BIM, Revit
2025
Solar Decathalon India
2023
HUDCO- Nasa India
2024
Public Relations Head
Arch i Tech club, VIT
2024
Events team member
NASA India
2024
Student Co-ordinator
ZMECH Conference
2023
Design Team Member
Nature's club, VIT






MISCELLANEOUS
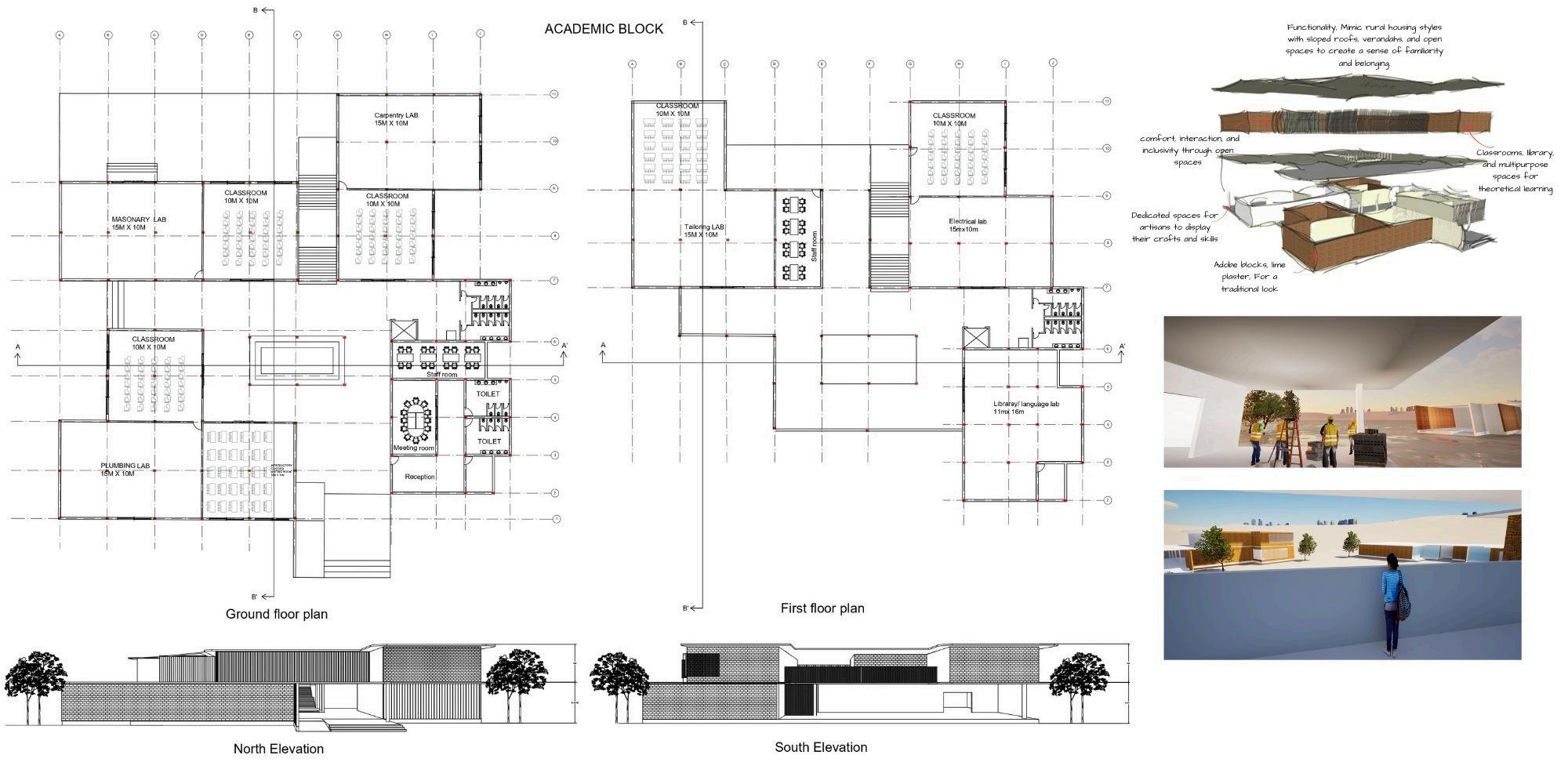
Location: Kanchipuram, Tamil Nadu
Semester: 5th Semester – Institutional Design
Thari is a textile museum located in Kanchipuram, Tamil Nadu, designed as part of my 5th semester institutional design project. The museum aims to preserve and showcase the rich handloom heritage of South India, with a special focus on the silk weaving traditions of Kanchipuram. Rooted in cultural sensitivity, the design blends traditional architectural elements with modern spatial experiences, creating an immersive journey through the world of textiles. Key spaces such as live weaving courtyards, exhibition galleries, artisan workshops, and archives are thoughtfully integrated to celebrate the stories, techniques, and people behind the craft Through climate-responsive design, earthy materials, and interactive spaces, Thari becomes a living archive that honors the past while inspiring future generations.













Location: Pimpri, Chinchwad, India
Semester: 6th Semester – Working drawing semester

Project 1 focuses on the detailed examination of an existing residential building within a 500sqm area. The primary objective is to conduct a thorough technical analysis, including drafting technical drawing details, and comprehensively understand the structural and architectural aspects of the building. By meticulously studying the building, the project aims to gain insights into various technical details such as construction materials, structural integrity, building systems, and spatial arrangements.








Project Title: Solasta – A Luxury mixed-use residential
Location: Vellore, Tamil Nadu
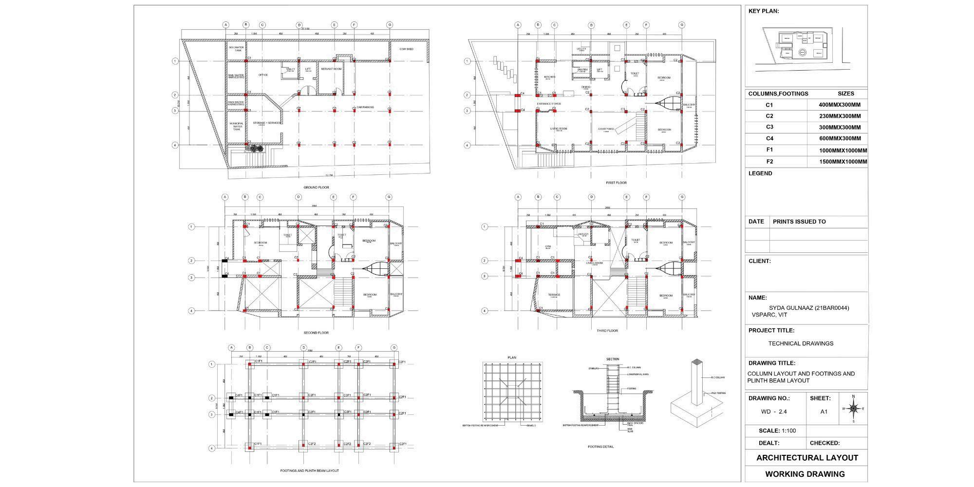
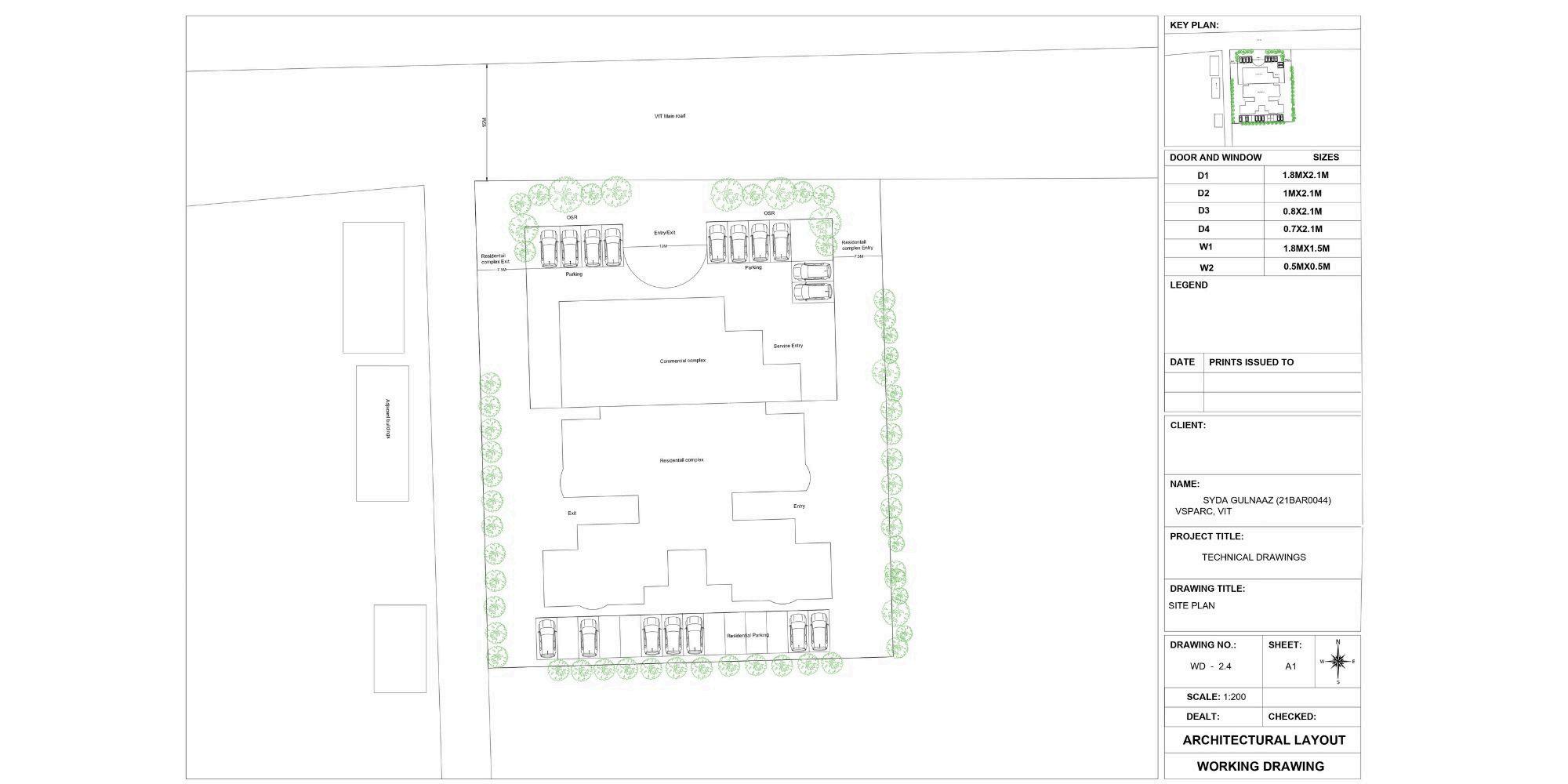
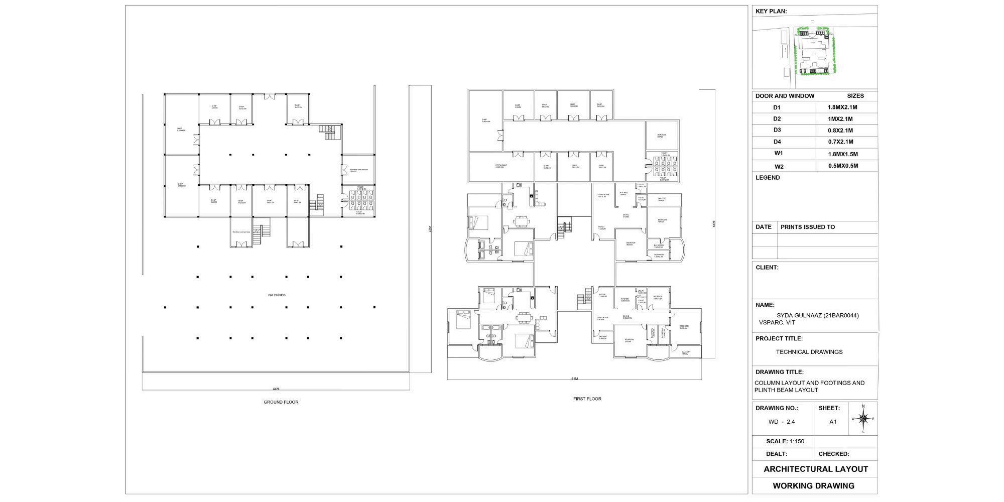
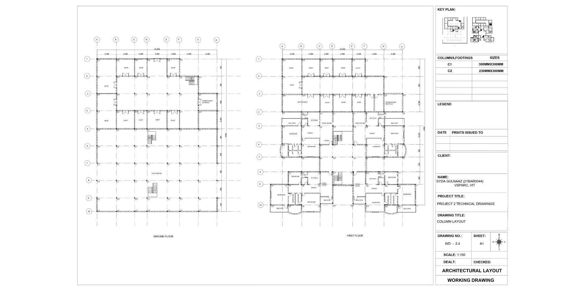
Semester: 6th Semester – Working drawing semester

Solasta is a luxury mixed-use development located in Vellore, designed as part of my 6th semester Working Drawings Studio. The project combines high-end residential apartments with premium commercial spaces, aiming to create a vibrant, self-sustained urban lifestyle. The name Solasta, meaning “luminous,” reflects the project’s vision of refined living with a radiant spatial experience. This semester focused on translating design intent into technical clarity through detailed architectural drawings, including floor plans, sections, elevations, joinery details, wall sections, and basic service layouts ensuring buildability while maintaining the elegance and functionality of a luxury development.





























































Location: Arani, Tamil Nadu
Semester: 8th Semester – Urban Design

The proposed Arani Bus Terminal is envisioned as a high-capacity transit hub that redefines the commuter experience through efficient spatial planning and context-responsive architecture. Strategically positioned within the urban fabric of Arani, the terminal is designed to accommodate 75 bus bays and manage over 500 bus movements daily. The design employs zoning principles to separate arrival and departure areas, organize pedestrian circulation corridors, and integrate commercial and service zones. Prioritizing modularity and future scalability, the built form adopts a grid-based structural layout supported by passive ventilation systems and green landscape buffers. The design ensures a balance between functionality and user comfort through shaded waiting areas, intuitive wayfinding, barrier-free access, and a streamlined vehicular-pedestrian interface establishing the terminal as a key civic landmark that supports the evolving mobility needs of the town.









