Final internship portfolio- Isha Muskaan

Page 1

ALL RENDERS DONE BY

THE 3D
MD W2 SD2 SD1 W4 SD3 V1 W3 D2 D1 D2a D2a D3 W6a SD4 W5 D2a W1 LIFT 5'0"x5'0" DECK LVL + 2'0" LVL +0'6" FENCE LVL +0'6" LVL +0'6" LVL +0'6" 4 3 2 1 5 6 7 11 12 DOWN UP 4 3 2 1 5 6 7 8 9 10 11 12 DOWN LAP POOL (3' to 4' gradual slope) DECK LVL + 2'6" WASHING AREA 1 2 3 LIGHT WELL LVL +2'0" LVL + 2'6" HARDSCAPE LVL + 2'0" FOYER SLIDING GATE C1 C2 C2 C9 C10 C10 C11 C9 C1 C4 C5 C6 C8 10'6"x15'3" WET KITCHEN 8'7"x15'3" DRY KITCHEN 12'9"x15'3" DINING 7'0"x7'0" POOJA ENTRANCE PORCH 5'9"x8'1" LAUNDRY ROOM 5'9"x5'4" POWDER ROOM 16'0"x24'0" FORMAL LIVING TV SPACE DECK CAR LIFT (12' X 20') SHOE SPACE WITH SEATING DUCT ROAD LVL +/0'0" WASH AREA GROUND FLOOR PLAN DUCT FIRST FLOOR SLAB To be confirmed A' A B' B C C' D D' ISMB 200 ISMB 200 ISMB 200 ISMB 200 ISMB 200 ISMB 200 ISMB 200 E' E 300 300 300 300 300 300 300 300 300 300 300 300 1200 1200 300 300 300 300 300 300 300 300 300 300 300 1 2 3 4 5 6 7 8 10 11 12 13 UP A 4800 2110 12 mm STRINGER BEAM 3mm GROOVING 12mm GLASS RAILING PROJECT NO DRAWN : CHECKED : DATE : SCALE : N.T.S ISSUE : FOR REVIEW DRAWING DESCRIPTION NAME : OWNER / AUTHORIZED REPRESENTATIVE PROJECT DESCRIPTION Note : This drawing is copyright. It is the property of C U B E Architects & interior designers and is not to be reproduced copied handed over to a third party or used for any purposeother than for which it as been loaned. #29 , 1ST FLOOR , LANGFORD ROAD , BANGALORE - 560027 PHONE - 080 - 22274666 ; GROUND FLOOR DRAWING DRAWING NO REV SUGUNA RAMAIAH HOSPITAL RESIDENCE N Dr. RAVINDRA DATE REVISIONS REV NO. DRAWN CHECKED RAV/PLA CUBE/ARC/RES/206 Isha Ar. SANDEEP 29.02.2024 R1
FIRST FLOOR PLAN 1300 BALCONY 150 BEDROOM SECTION AA' 400 300 450 1870 600 300 300 SECTION BB' SECOND FLOOR SLAB SUNKEN SLAB WARDROBE 12'3"x10'3" TOILET BALCONY 6'0"x13'0" 15'0"x20'0" GRANDMA'S BEDROOM 12'0"x14'8" HELPER'S BEDROOM 8'6"x6'2" PANTRY TOILET LVL + 13'6" TV UNIT COURTYARD DRESSER 11'9"x13'6" WALK-IN WARDROBE 11'0"x6'3" QUILT STORAGE DUCT TOILET ROAD 20'0"x18'0" PARENT'S BEDROOM RCC WALL LIFT 5'0"x5'0" UP 1 2 3 4 5 6 7 8 9 10 11 12 13 14 15 16 17 18 19 20 21 22 23 24 25 W4 W7 W8 V2 V2 W10 W11 TD2 W9 A' B B DUCT 90 90 90 810 261 899 643 643 750 150 90 90 90 2392 1262 2482 A' A B' B C C' D D' 305 230 PROJECT NO DRAWN : CHECKED : DATE : SCALE : N.T.S ISSUE : FOR REVIEW DRAWING DESCRIPTION NAME : OWNER / AUTHORIZED REPRESENTATIVE PROJECT DESCRIPTION Note : This drawing is copyright. It is the property of C U B E Architects & interior designers and is not to be reproduced copied handed over to a third party or used for any purposeother than for which it as been loaned. #29 , 1ST FLOOR , LANGFORD ROAD , BANGALORE - 560027 PHONE - 080 - 22274666 ; FIRST FLOOR DRAWING DRAWING NO REV SUGUNA RAMAIAH HOSPITAL RESIDENCE N Dr. RAVINDRA DATE REVISIONS REV NO. DRAWN CHECKED RAV/PLA CUBE/ARC/RES/206 Isha Ar. SANDEEP 29.02.2024 R1

SECOND FLOOR

ROAD BALCONY 5'10"x20'4" 16'6"x20'0" DAUGHTER'S BEDROOM LVL + 25'6" WALK-IN WARDROBE 15'6"x10'0" TOILET 20'0"x18'0" SON'S BEDROOM 12'3"x9'7" TOILET COURTYARD BELOW WALK-IN WARDROBE 14'3"x17'6" AV ROOM W14
PLAN CENTRAL MIRROR COURT YARD COURTYARD 12'3"x8'0" LIFT 5'0"x5'0" FW2 UP 1 2 3 4 5 6 7 8 9 10 11 12 13 14 15 16 17 18 19 20 21 22 23 24 25 W11 W13 W13 TD1 DUCT COURTYARD 10'x5' GLASS BLOCKS PARTITION TO BE CONFIRMED AS PER THE MEETING ON 01.03.2024 DUCT A' A B' B C C' D D' B' B PROJECT NO DRAWN : CHECKED : DATE : SCALE : N.T.S ISSUE : FOR REVIEW DRAWING DESCRIPTION NAME : OWNER / AUTHORIZED REPRESENTATIVE PROJECT DESCRIPTION Note : This drawing is copyright. It is the property of C U B E Architects & interior designers and is not to be reproduced copied handed over to a third party or used for any purposeother than for which it as been loaned. #29 , 1ST FLOOR , LANGFORD ROAD , BANGALORE - 560027 PHONE - 080 - 22274666 ; SECOND FLOOR DRAWING DRAWING NO REV SUGUNA RAMAIAH HOSPITAL RESIDENCE N Dr. RAVINDRA DATE REVISIONS REV NO. DRAWN CHECKED RAV/PLA CUBE/ARC/RES/206 Isha Ar. SANDEEP 29.02.2024 R1
ROAD SPACE FOR ROOF GARDEN LVL + 37'6" TERRACE
LIFT 5'0"x5'0" DN 1 2 3 4 5 6 7 8 9 10 11 12 13 14 15 16 17 18 19 20 21 22 23 24 25 SKYLIGHT @ 2' LOWER LVL SKYLIGHT SKYLIGHT SKYLIGHT A' A B' B C C' D D' B' B PROJECT NO DRAWN : CHECKED : DATE : SCALE : N.T.S ISSUE : FOR REVIEW DRAWING DESCRIPTION NAME : OWNER / AUTHORIZED REPRESENTATIVE PROJECT DESCRIPTION Note : This drawing is copyright. It is the property of C U B E Architects & interior designers and is not to be reproduced copied handed over to a third party or used for any purposeother than for which it as been loaned. #29 , 1ST FLOOR , LANGFORD ROAD , BANGALORE - 560027 PHONE - 080 - 22274666 TERRACE FLOOR DRAWING DRAWING NO REV SUGUNA RAMAIAH HOSPITAL RESIDENCE N Dr. RAVINDRA DATE REVISIONS REV NO. DRAWN CHECKED RAV/PLA CUBE/ARC/RES/206 Isha Ar. SANDEEP 29.02.2024 R1
FLOOR PLAN
ROAD (12' 20') 10' A A' B' B C C' D D' B' B 3300 3750 3750 3750 +750MM PLINTH LVL -3300 M BASEMENT LVL +4500MM FF SLAB LVL +8250MM SF SLAB LVL +12000MM TERRACE SLAB LVL +15750MM TERRACE ROOF LVL 3750 SECTION AA' 3520 3740 3750 300 300 #29, FIRST FLOOR, LANGFORD ROAD PURPOSE OF ISSUE FOR REVIEW REV.REC NTS Note : This drawing is copyright. It is the property of C U B E Architects & interior designers and is not to be reproduced copied handed over to a third party or used for any purpose other than for which it as been loaned. DRAWING TITLE SECTION DRAWINGS CHECKED BY Ar. TEJAS DRAWING NO. CUBE DW/RAM/01 PROJECT NO. CUBE/ARC/RES/196 PROPOSED RESIDENTIAL BUILDING FOR SUGUNA RAMAIAH HOSPITAL'S RESIDENCE GROUND FLOOR PLAN KEY PLAN (12' 20') 10' A A' B' C C' D D' B' B 3750 3750 3750 +750MM PLINTH LVL -3300 M BASEMENT LVL +4500MM FF SLAB LVL +8250MM SF SLAB LVL +12000MM TERRACE SLAB LVL +15750MM TERRACE ROOF LVL 3750 SECTION BB' BANGALORE 560027 PURPOSE OF ISSUE FOR REVIEW REV.REC SCALE NTS Note : This drawing is copyright. It is the property of C U B E Architects & interior designers and is not to be reproduced copied handed over to a third party or used for any purpose other than for which it as been loaned. 18.04.2024 DRAWING TITLE SECTION DRAWINGS CHECKED BY Ar. TEJAS ISHA DRAWING NO. CUBE DW/RAM/01 PROJECT NO. CUBE/ARC/RES/196 PROPOSED RESIDENTIAL BUILDING FOR SUGUNA RAMAIAH HOSPITAL'S RESIDENCE GROUND FLOOR PLAN KEY PLAN
ROAD (12' 20') 10' A A' B' B C C' D D' B' B 3750 3750 3750 M +8250MM SF SLAB LVL TERRACE ROOF LVL 3750 SECTION CC' #29, FIRST FLOOR, LANGFORD ROAD PURPOSE OF ISSUE FOR REVIEW REV.REC NTS Note : This drawing is copyright. It is the property of C U B E Architects & interior designers and is not to be reproduced copied handed over to a third party or used for any purpose other than for which it as been loaned. DRAWING TITLE SECTION DRAWINGS CHECKED BY Ar. TEJAS DRAWING NO. CUBE DW/RAM/01 PROJECT NO. CUBE/ARC/RES/196 PROPOSED RESIDENTIAL BUILDING FOR SUGUNA RAMAIAH HOSPITAL'S RESIDENCE GROUND FLOOR PLAN KEY PLAN (12' 20') 10' A A' B' C C' D D' B' B 3750 3750 3750 +750MM -3300 M SF SLAB LVL +12000MM TERRACE ROOF LVL 3750 3300 SECTION DD' HELPER'S BATHROOM BATHROOM 3750 3750 PLINTH LVL +4500MM +8250MM SF SLAB LVL POOJA ROOM D3 MD FIXED GLASS FOYER BASEMENT TERRACE +15750MM ROOF SON'S BEDROOM ELECTRICAL BEAM B10 4200 CLEAR BEAM B10 230X450 AS GIVEN 4200 W13 3750 3750 -3300MM BASEMENT SECTION EE' BANGALORE 560027 PURPOSE OF ISSUE FOR REVIEW REV.REC SCALE NTS Note : This drawing is copyright. It is the property of C U B E Architects & interior designers and is not to be reproduced copied handed over to a third party or used for any purpose other than for which it as been loaned. 18.04.2024 DRAWING TITLE SECTION DRAWINGS CHECKED BY Ar. TEJAS ISHA DRAWING NO. CUBE DW/RAM/01 PROJECT NO. CUBE/ARC/RES/196 PROPOSED RESIDENTIAL BUILDING FOR SUGUNA RAMAIAH HOSPITAL'S RESIDENCE GROUND FLOOR PLAN KEY PLAN
10'6"x15'3" WET KITCHEN 8'7"x15'3" DRY KITCHEN 12'9"x15'3" DINING 7'0"x7'0" POOJA ENTRANCE PORCH 5'9"x8'1" LAUNDRY ROOM 5'9"x5'4" POWDER ROOM 16'0"x24'0" FORMAL LIVING DECK CAR LIFT (12' X 20') DUCT ROAD LVL +/- 0'0" MD W2 SD2 SD1 W4 SD3 V1 W3 D2 D1 D2a D2a D3 W6a SD4 W5 D2a W1 SLIDING GATE C1 C2 C2 C9 C10 C10 C11 C9 C1 C4 C5 C6 C8 WASH AREA 3751 405 2058 3645 1545 1542 3080 2675 310 1309 910 1733 680 2105 1645 425 1733 3329 661 3299 230 2377 6179 6715 2415 2124 6753 2140 379 3000 431 1790 650 559 2191 800 1730 150 200 518 515 695 150 2186 881 150 211 651 1726 1930 1700 1540 1700 1150 1770 679 1151 DUCT 1685 332 450 SCHEDULE FOR OPENINGS- DOORS GROUND FLOOR OPENING SIZE(lxh) TYPE LINTEL LOCATION NOS BEDROOM 1000 X 3150 D1 SINGLE DOOR 1 800 X 3150 D2 SINGLE DOOR TOILETS 2 MD DOUBLE DOOR FOYER 2733 X 4000 4000 1 DOUBLE DOOR 2140 X 3150 D3 POOJA ROOM 1 SCHEDULE FOR OPENINGS-WINDOWS GROUND FLOOR OPENING SIZE(lxh) TYPE LINTEL SILL LOCATION POOJA FIXED WINDOW FFL FFL 2140 X 4500 W2 W3 W13 FIXED WINDOW FIXED WINDOW STAIRCASE- MIDLANDING TO FIRST FLOOR STAIRCASE-UNDER THE LANDING SD1 SD2 4875 X 3150 4282 X 3150 SLIDING DOOR AND FIXED WINDOW SLIDING DOOR AND FIXED WINDOW FORMAL LIVING FORMAL LIVING NOS 1 1 1 1 1 4500 FFL T.B.D. T.B.D T.B.D. T.B.D T.B.D. T.B.D. W5 TILT AND TURN & FIXED WINDOW 1200 3000 X 1950 WET KITCHEN 1 W6a 1 900 X 1500 CASEMENT WINDOW 2400 900 1500 600 X 1650 V1 HIT &MESH AND FIXED WINDOW POWDER ROOM 1 FFL FFL SD3 SD4 SLIDING DOOR AND FIXED WINDOW DINING DINING 1 1 4005 X 3150 4644 X 3150 SLIDING DOOR AND FIXED WINDOW LEGEND 115mm WALL 230mm WALL UTILITY BEAM BOTTOM BEAM BOTTOM BEAM BOTTOM BEAM BOTTOM BEAM BOTTOM BEAM BOTTOM BEAM BOTTOM BEAM BOTTOM 3150 D2a 2 800 X 2400 SINGLE DOOR 2400 LAUNDRY ROOM & WASH AREA W1 TILT AND FIXED WINDOW FORMAL LIVING 1200 X 3150 1 FFL BEAM BOTTOM 449 PROJECT NO DRAWN : CHECKED : DATE : SCALE : N.T.S ISSUE : FOR REVIEW DRAWING DESCRIPTION NAME : OWNER / AUTHORIZED REPRESENTATIVE PROJECT DESCRIPTION Note : This drawing is copyright. It is the property of C U B E Architects & interior designers and is not to be reproduced copied handed over to a third party or used for any purposeother than for which it as been loaned. #29 , 1ST FLOOR , LANGFORD ROAD , BANGALORE - 560027 PHONE - 080 - 22274666 ; GROUND FLOOR MASONRY DRAWING NO REV SUGUNA RAMAIAH HOSPITAL RESIDENCE N Dr. RAVINDRA DATE REVISIONS REV NO. DRAWN CHECKED RAV/PLA CUBE/ARC/RES/206 Isha Ar. SANDEEP 29.02.2024 R1
12'3"x10'3" TOILET BALCONY 6'0"x13'0" 15'0"x20'0" GRANDMA'S BEDROOM 12'0"x14'8" HELPER'S BEDROOM 8'6"x6'2" PANTRY COURTYARD 11'9"x13'6" WALK-IN WARDROBE 11'0"x6'3" QUILT STORAGE DUCT TOILET FIRST FLOOR PLAN 15926 22454 26797 ROAD 15385 20'0"x18'0" PARENT'S BEDROOM RCC WALL W4 W7 W8 V2 V2 W10 W11 TD2 W9 1300 BALCONY BEDROOM 150 SECTION AA' 400 300 150 450 115mm WALL TOILET 2769 3751 993 300 300 1582 1475 1391 643 880 1869 785 1707 305 1007 303 3984 1835 680 2541 1640 1870 1784 987 2337 3796 1146 1245 1276 2291 150 305 137 628 1477 1118 888 1085 1200 2597 2482 2677 1789 2517 2360 3568 2360 1700 5628 1700 1215 2360 1602 535 1220 2572 377 3117 449 3768 150 2720 857 2130 2130 150 729 377 962 677 3080 1146 230 1540 1760 D1 D1 D1 D1 GD2 GD4 GD3 SCHEDULE FOR OPENINGS FIRST FLOOR OPENING SIZE(lxh) TYPE LINTEL SILL LOCATION TILT AND TURN& FIXED WINDOW 1523 X 3150 836 X3150 800 X 3150 W7 W8 W9 FIXED WINDOW W10 762 X 3150 1500 X 3150 W11 TD1 TD2 V2 3664 X 3150 2135 X 3150 900 X 1500 TILT AND FIXED WINDOW TILT AND TURN & FIXED WINDOW TILT AND FIXED WINDOW SLIDING DOOR AND FIXED WINDOW FFL SLIDING DOOR AND FIXED WINDOW HIT &MESH AND FIXED WINDOW 1650 PARENT'S BEDROOM PARENT'S BEDROOM HELPER'S BEDROOM HELPER'S BEDROOM GRANDMA'S BEDROOM PARENT'S BEDROOM GRANDMA'S BEDROOM GRANDMA'S & HELPER'S BEDROOM NOS 1 1 1 1 1 1 1 2 FFL FFL FFL FFL FFL FFL BEAM BOTTOM BEAM BOTTOM BEAM BOTTOM BEAM BOTTOM BEAM BOTTOM BEAM BOTTOM BEAM BOTTOM BEAM BOTTOM FIXED GLASS FIXED GLASS LIFT 5'0"x5'0" 1 4 5 6 7 9 10 11 12 13 14 15 16 17 18 19 20 21 22 23 24 25 UP SHEAR WALL 115 230 SEE BELOW 11'3"x9'8" 7'0"x7'0" POOJA SEE BELOW 10'3"x9'2" FOYER CUT OUT WALL LEGEND FIRST FLOOR (4 1/2") 230mm WALL (9") A A' SECOND FLOOR SLAB SCHEDULE FOR OPENINGS- DOORS FIRST FLOOR OPENING SIZE(lxh) TYPE LINTEL LOCATION NOS BEDROOM 1000 X 2400 D1 SINGLE DOOR 4 GD 2300 X 2400 OPENABLE GLASS DOOR WALK-IN WARDROBES & TOILETS 4 2400 2400 C11 SEE BELOW 1931 2482 C5 C6 C6 C4 C10 C10 C9 C02 C09 230 305 150 230 230 230 230 500 1530 500 150 150 2130 1912 2015 2567 2402 1720 150 115 3682 763 1345 1869 250 230 2307 1870 1300 658 230 230 528 BEAM 230X450MM AT 14' HEIGHT 528 PROJECT NO DRAWN : CHECKED : DATE : SCALE : N.T.S ISSUE : FOR REVIEW DRAWING DESCRIPTION NAME : OWNER / AUTHORIZED REPRESENTATIVE PROJECT DESCRIPTION Note : This drawing is copyright. It is the property of C U B E Architects & interior designers and is not to be reproduced copied handed over to a third party or used for any purposeother than for which it as been loaned. #29 , 1ST FLOOR , LANGFORD ROAD , BANGALORE - 560027 PHONE - 080 - 22274666 ; FIRST FLOOR MASONRY DRAWING DRAWING NO REV SUGUNA RAMAIAH HOSPITAL RESIDENCE N Dr. RAVINDRA DATE REVISIONS REV NO. DRAWN CHECKED RAV/PLA CUBE/ARC/RES/206 Isha Ar. SANDEEP 29.02.2024 R1
ROAD BALCONY 5'10"x20'4" 16'6"x20'0" DAUGHTER'S BEDROOM 15'8"x9'7" WALK-IN WARDROBE 15'6"x10'0" TOILET 20'0"x18'0" SON'S BEDROOM 12'3"x9'7" TOILET COURTYARD BELOW 11'9"x13'6" WALK-IN WARDROBE 14'3"x17'6" AV ROOM W14
FLOOR PLAN GLASS BLOCKS PARTITION COURT YARD COURTYARD 12'3"x8'0" FW2 W11 TD1 COURTYARD 10'x5' 2136 1978 2720 3568 2360 1784 2015 1215 1700 5628 1700 535 1625 2130 533 2651 2363 4440 3751 1543 1046 1092 1360 2859 305 4755 533 4867 305 1464 3379 605 2732 2545 678 4986 3120 4380 1345 490 2362 1982 2848 1270 3080 1146 1700 1540 1931 1760 1120 2130 305 1235 1175 2089 D1 D1 GD4 GD4 GD5 LIFT 5'0"x5'0" 1 4 5 7 8 10 11 12 13 14 15 16 17 18 19 20 21 22 23 24 25 UP 115 230 CUT OUT SEE BELOW SCHEDULE FOR OPENINGS- DOORS SECOND FLOOR OPENING SIZE(lxh) LINTEL TYPE LOCATION NOS BEDROOM D1 SINGLE DOOR 2 GD OPENABLE GLASS DOOR 3 WALK-IN WARDROBES & TOILETS 1000 X 2400 2300 X 2400 2400 2400 115mm WALL SHEAR WALL WALL THICKNESS LEGEND FIRST FLOOR (4 1/2") 230mm WALL (9") THIRD FLOOR SLAB SCHEDULE FOR OPENINGS SECOND FLOOR OPENING SIZE(lxh) TYPE LINTEL SILL LOCATION TILT WINDOW AND FIXED WINDOW 1500 X 3150 900 X 3150 W11 W13 AV ROOM FW2 TD1 5149 X 5791 3650 X 3150 FIXED WINDOW SLIDING DOOR AND FIXED WINDOW T.B.D COURTYARD FROM BELOW TILT AND TURN & FIXED WINDOW SON'S BEDROOM NOS 2 2 1 2 SON'S & DAUGHTER'S BEDROOM FFL BEAM BOTTOM FFL BEAM BOTTOM FFL BEAM BOTTOM 1841 X 3150 W14 TILT AND TURN & FIXED WINDOW DAUGHTER'S BEDROOM 1 FFL BEAM BOTTOM T.B.D PROJECT NO DRAWN : CHECKED : DATE : SCALE : N.T.S ISSUE : FOR REVIEW DRAWING DESCRIPTION NAME : OWNER / AUTHORIZED REPRESENTATIVE PROJECT DESCRIPTION Note : This drawing is copyright. It is the property of C U B E Architects & interior designers and is not to be reproduced copied handed over to a third party or used for any purposeother than for which it as been loaned. #29 , 1ST FLOOR , LANGFORD ROAD , BANGALORE - 560027 PHONE - 080 - 22274666 ; SECOND MASONRY DRAWING DRAWING NO REV SUGUNA RAMAIAH HOSPITAL RESIDENCE N Dr. RAVINDRA DATE REVISIONS REV NO. DRAWN CHECKED RAV/PLA CUBE/ARC/RES/206 Isha Ar. SANDEEP 29.02.2024 R1
SECOND
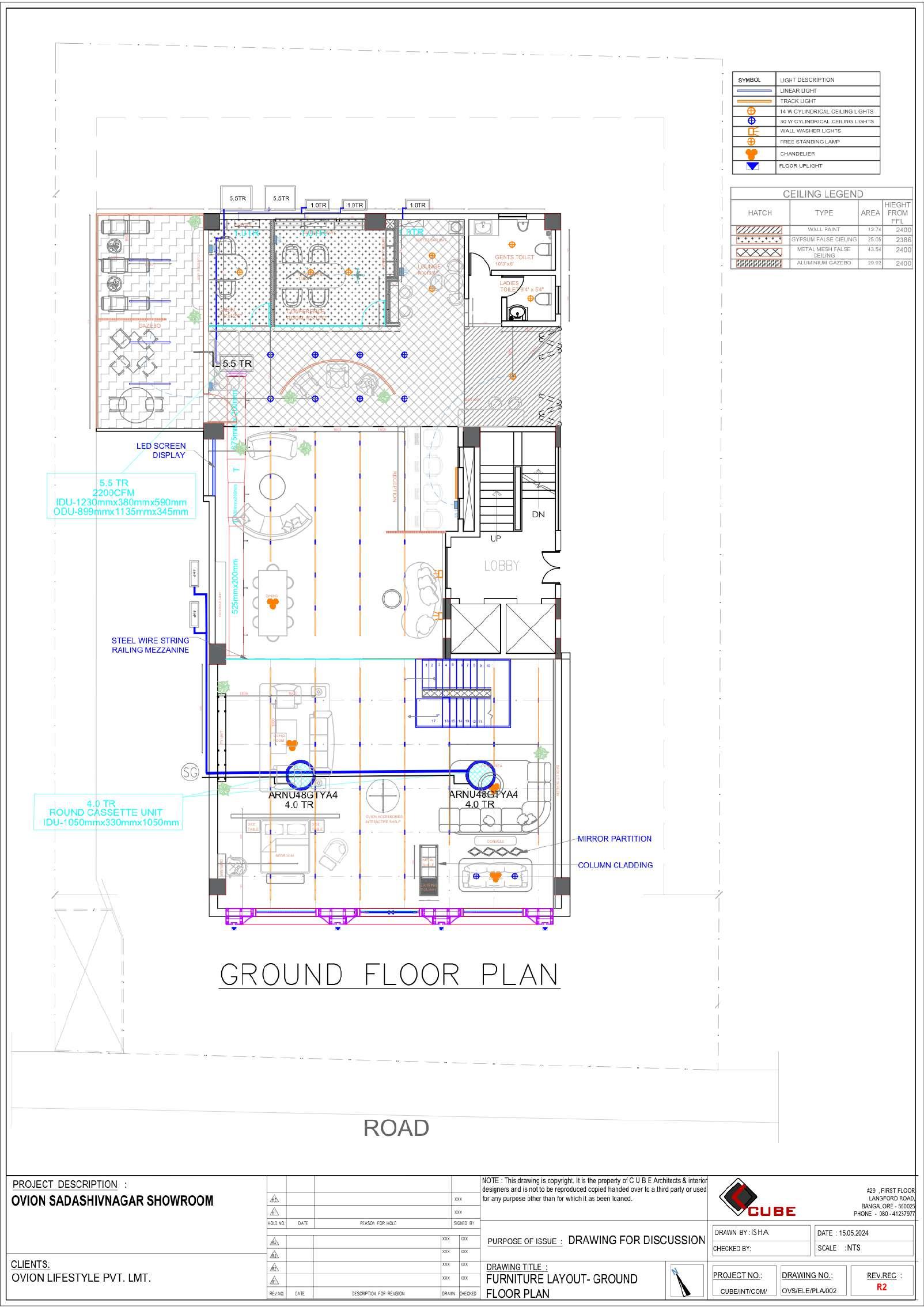
ROAD LEGEND 15W Spot light (concealed) ceiling light Magnetic Track Lighting Switchboard 9W Mirror light Fan Interior wall light Ceiling suspended linear light MD W2 SD2 SD1 W4 SD3 V1 W3 D2 D1 D2a D2a D3 W6a SD4 W5 D2a W1 DECK LVL + 2'0" LVL +0'6" FENCE LVL +0'6" LVL +0'6" LVL +0'6" 4 3 2 1 5 6 7 8 9 11 12 DOWN UP 4 3 2 1 5 6 7 8 9 10 11 12 DOWN LAP POOL (3' to 4' gradual slope) DECK LVL + 2'6" WASHING AREA 1 2 3 LIGHT WELL LVL +2'0" LVL + 2'6" HARDSCAPE LVL + 2'0" UP 1 2 3 4 5 6 7 8 9 10 11 12 13 14 15 16 17 18 19 20 21 22 23 24 25 FOYER SLIDING GATE C1 C2 C2 C9 C10 C10 C11 C9 C4 C5 C6 C8 10'6"x15'3" WET KITCHEN 8'7"x15'3" DRY KITCHEN 12'9"x15'3" DINING 7'0"x7'0" POOJA ENTRANCE PORCH 5'9"x8'1" LAUNDRY ROOM POWDER ROOM TV SPACE SHOE SPACE WITH SEATING DUCT ROAD LVL +/- 0'0" DUCT LIFT 1.5X1.5 8M TK GLD Profile lighting Chandelier for double hieght Chandelier with fan 1x40W Wall mounting light fixture Footlamp LIVING ROOM SKIRTING LEVEL SOCKETS PROVISION FOR CENTRALISED VACCUUM SYSTEM FLOOR POINTS FOR RECLINER LANDLINE PROVISION INTERCOM PROVISION FOR KITCHEN AND SERVANTS' QUARTERS HOME AUTOMATION & SECURITY SYSTEM LEGENDS & SYMBOLS 3M Jayanagar 8th Block, Bangalore-560 082 Security, Comfort, Luxury... Dimesion Digital Controlls Pvt. Ltd. Note 1. Required 3nos CAT6 from each TV point to Network Rack 2. Required 5 Wires to be drawn from Curtain Motors to Digilux 4M-C Switch Board 3. CAT 6 Wire to be drawn from Each AC to IR Controller/ Digilux Switch Board 4. 7 Nos of CAT 6 wires to be left from HTR console to network rack 3M 8M 4M 4M Soundbar 85" TV TATA SKY BLURAY 1. Soundbar Dimension W x D X H (1200 160 71 mm) Subwoofer Dimension W D H (380 380 214 mm). Soundbar Layout Wireless Sub Woofer 8M STRIP LIGHTING @300MM FROM FFL 4M STRIP LIGHT BELOW KITCHEN CABINET 3 CIRCUITS REQUIRED HYBEC PRO CONCEALED TRACK LIGHT 3 CIRCUITS REQUIRED 25MM CONCEALED PROFILE LIGHT 3 CIRCUITS REQUIRED HYBEC PRO CONCEALED TRACK LIGHT VDC 8M 4M-CM 4M-CM RISE 12NO 25MMØ CONDUITS TO UPPER FLOOR LED STRIP BELOW STAIRCASE@300MM FROM FFL PROJECT NO DRAWN : CHECKED : DATE : SCALE : N.T.S ISSUE : FOR REVIEW DRAWING DESCRIPTION NAME : OWNER / AUTHORIZED REPRESENTATIVE PROJECT DESCRIPTION Note : This drawing is copyright. It is the property of C U B E Architects & interior designers and is not to be reproduced copied handed over to a third party or used for any purposeother than for which it as been loaned. #29 , 1ST FLOOR , LANGFORD ROAD , BANGALORE - 560027 PHONE - 080 - 22274666 ; GROUND FLOOR ELECTRICAL DRAWING DRAWING NO REV SUGUNA RAMAIAH HOSPITAL RESIDENCE N Dr. RAVINDRA DATE REVISIONS REV NO. DRAWN CHECKED RAV/PLA CUBE/ARC/RES/206 Isha Ar. SANDEEP 03.03.2024 R1
1000 2400 800 2400 Flush type 70mm door frame(3S1) Clear opening as per site 1000x2400mm 55mm thk shutter thickness FFL IN 1000 clear opening 900 70 70 OUT IN 2435 1070 900 LEGEND GROUP F01 TYPE SINGLE DOOR FRAME FLUSH- 70 mm THK (3S1) SHUTTER 55mm FINISH UNPOLISHED 900 870 2435 800 clear opening 730 70 70 LEGEND GROUP F01 TYPE SINGLE DOOR FRAME FLUSH- 70 mm THK (3S1) SHUTTER 55mm FINISH UNPOLISHED Flush type 70mm door frame(3S1) Clear opening as per site 800x2400mm 55mm thk shutter thickness Door lock Door handle Door lock Door handle LEGEND GROUP F01 TYPE SINGLE DOOR FRAME FLUSH- 70 mm THK (3S1) SHUTTER 55mm FINISH UNPOLISHED 800 2400 900 870 2435 Flush type 70mm door frame(3S1) Clear opening as per site 800x2400mm 55mm thk shutter thickness Door lock Door handle 800 clear opening 702 70 70 230 115 34mm ply to fix the frame 2400 2140 2435 1200 2140 clear opening 70 70 355 355 1150 70 70 34mm ply to fix the frame 34mm ply to fix the frame 230 12mm glass door Fixed glass 355 70 1150 70 355 1113 1113 70 70 70 Clear opening as per site 2140x2400mm Flush type 70mm door frame(3S1) Door knob FFL OUT IN OUT LEGEND GROUP F01 TYPE DOUBLE DOOR FRAME FLUSH- 70 mm THK (3S1) SHUTTER 55mm FINISH UNPOLISHED Fixed glass D1 GROUND FLOOR SERVICE DOOR ELEVATION PLAN D2 GROUND FLOOR LAUNDRY ROOM ELEVATION PLAN D2 GROUND FLOOR PANTRY ROOM ELEVATION OUT IN OUT IN D3 GROUND FLOOR POOJA ROOM ELEVATION FFL OUT 1000 2400 Flush type 70mm door frame(3S1) Clear opening as per site 1000x2400mm 55mm thk shutter thickness FFL OUT 2435 1070 900 LEGEND GROUP F01 TYPE SINGLE DOOR FRAME FLUSH- 70 mm THK (3S1) SHUTTER 55mm FINISH UNPOLISHED Door lock Door handle D1 FIRST FLOOR HELPER'S ROOM DOOR ELEVATION 1000 clear opening 900 55 115 OUT IN 70 70 PLAN 34mm ply to fix the frame FIRST FLOOR PARENT'S ROOM DOOR FIRST FLOOR GRANDMA'S ROOM DOOR 1000 2400 Flush type 70mm door frame(3S1) Clear opening as per site 1000x2400mm 55mm thk shutter thickness 1070 2435 FFL OUT Door lock Door handle LEGEND GROUP F01 TYPE SINGLE DOOR FRAME FLUSH- 70 mm THK (3S1) SHUTTER 55mm FINISH UNPOLISHED 1000 clear opening 900 55 115 70 70 34mm ply to fix the frame D1 ELEVATION FIRST FLOOR PANTRY DOOR 1000 2400 Flush type 70mm door frame(3S1) Clear opening as per site 1000x2400mm 55mm thk shutter thickness FFL OUT 2435 1070 900 LEGEND GROUP F01 TYPE SINGLE DOOR FRAME FLUSH- 70 mm THK (3S1) SHUTTER 55mm FINISH UNPOLISHED Door lock Door handle D1 ELEVATION SECOND FLOOR SON'S ROOM DOOR SECOND FLOOR DAUGHTER'S ROOM DOOR 1000 clear opening 900 55 70 70 OUT IN 230 PLAN 34 1095 2400 Flush type 70mm door frame(3S1) Clear opening as per site 1200x2400mm 55mm thk shutter thickness FFL OUT 2435 1235 900 Door lock Door handle D4 TERRACE FLOOR ELEVATION PLAN 70 70 34mm ply to fix the frame 1200 clear opening 1095 230 LEGEND GROUP F01 TYPE SINGLE DOOR FRAME FLUSH- 70 mm THK (3S1) SHUTTER 55mm FINISH UNPOLISHED PLAN PLAN PLAN 70mm thk threshold 230 FFL OUT OUT IN OUT IN 70mm thk threshold NO. OF DOORS 1 NO. OF DOORS 1 NO. OF DOORS 1 NO. OF DOORS 1 NO. OF DOORS 4 NO. OF DOORS 1 NO. OF DOORS 1 NO. OF DOORS 1 70mm thk threshold 55mm thk shutter thickness 55mm thk shutter thickness 55mm thk shutter thickness 55mm thk shutter thickness 55mm thk shutter thickness 55mm thk shutter thickness 55mm thk shutter thickness 70mm thk threshold 3000 2803 4235 1430 70 1430 1095 Clear opening as per site 2733x4200mm 2663 4200 Door lock Door handle 55mm thk shutter thickness Fixed glass Fixed glass 330 330 897 897 2733 clear opening 230 OUT 34mm ply to fix the frame Fixed glass 55 1793 330 330 70 70 PLAN IN FFL OUT LEGEND GROUP F01 TYPE DOUBLE DOOR FRAME FLUSH- 70 mm THK (3S1) SHUTTER 55mm FINISH UNPOLISHED MD GROUND FLOOR MAIN DOOR ELEVATION 55mm teak wood shutter 897 897 70mm thk threshold NO. OF DOORS 1 SCHEDULE FOR OPENINGS- DOORS GROUND FLOOR OPENING SIZE(lxh) TYPE LINTEL LOCATION NOS WET KITCHEN 1000 X 2400 D1 SINGLE DOOR 1 2400 800 X 2400 D2 SINGLE DOOR POWDER ROOM LAUNDRY ROOM 2 MD DOUBLE DOOR MAIN ENTRANCE 2733 X 4200 1 DOUBLE DOOR 2160 X 2400 D3 POOJA ROOM 1 FIRST FLOOR OPENING SIZE(lxh) TYPE LINTEL LOCATION NOS BEDROOM 1000 X 2400 D1 SINGLE DOOR 4 SECOND FLOOR OPENING SIZE(lxh) TYPE LINTEL LOCATION NOS BEDROOM D1 SINGLE DOOR 2 2400 2400 2400 1000 X 2400 2400 TERRACE FLOOR OPENING SIZE(lxh) TYPE LINTEL LOCATION NOS TERRACE D4 SINGLE DOOR 1 1200 X 2400 2400 4200 PROJECT NO DRAWN : CHECKED : DATE : SCALE : N.T.S ISSUE : FOR REVIEW DRAWING DESCRIPTION NAME : OWNER / AUTHORIZED REPRESENTATIVE PROJECT DESCRIPTION Note : This drawing is copyright. It is the property of C U B E Architects & interior designers and is not to be reproduced copied handed over to a third party or used for any purposeother than for which it as been loaned. #29 , 1ST FLOOR , LANGFORD ROAD , BANGALORE - 560027 PHONE - 080 - 22274666 TS TEAK DOOR DRAWINGS DRAWING NO REV SUGUNA RAMAIAH HOSPITAL RESIDENCE N Dr. RAVINDRA DATE REVISIONS REV NO. DRAWN CHECKED RAV/PLA CUBE/ARC/RES/206 Isha Ar. SANDEEP 26.03.2024 R0

GROUND FLOOR WINDOWS

FIXED WINDOW CASEMENT WINDOW FIXED WINDOW 1200 3150 1850 70 725 505 1060 70mm thk frame Clear opening as per site 1200x3150mm OUT IN OUT IN 70mm thk frame fixed glass 10mm thick rod (window grill) 70 70 70 70 35 70mm thk frame mesh shutter glass shutter 10mm thick rod (window grill) 1200 1060 1200 ELEVATION PLAN @2500mm PLAN @1800mm 230 230 OUT FIXED WINDOW FIXED WINDOWCASEMENT WINDOW CASEMENT WINDOW 1950 715 1430 3000 715 1200 3150 70mm thk frame Clear opening as per site 3000x1950mm OUT IN OUT IN 70 70 70mm thk frame fixed glass 10mm thick rod (window grill) 70 70 70 70 70 70 35 35 70mm thk frame mesh shutter glass shutter 10mm thick rod (window grill) 3000 3000 715 1430 715 ELEVATION PLAN @2500mm PLAN @1800mm 230 230 OUT FIXED WINDOW 900 1650 70 1496 3150 70mm thk frame Clear opening as per site 900x1650mm OUT IN OUT IN 70 70 70 70 35 fixed glass 70mm thk frame 10mm thick rod (window grill) 70mm thk frame mesh shutter glass shutter 10mm thick rod (window grill) 760 900 900 760 ELEVATION PLAN @2500mm PLAN @1800mm 230 230 OUT FIXED WINDOW 600 1500 70 1650 3150 70mm thk frame Clear opening as per site 600x1500mm OUT IN OUT IN 70 70 70 70 35 70mm thk frame 10mm thick rod (window grill) fixed glass 70mm thk frame mesh shutter glass shutter 10mm thick rod (window grill) 460 460 600 600 ELEVATION PLAN @2500mm PLAN @1800mm 230 230 OUT W1 W5 W6a V1 LEGEND GROUP W1 TYPE TEAK- TILT AND FIXED WINDOW FRAME FLUSH- 70 mm THK (3S1) SHUTTER 8mm GLASS SHUTTER FINISH UNPOLISHED NO. OF DOORS 1 LEGEND GROUP W5 TYPE TILT,TURN & FIXED WINDOW FRAME FLUSH- 70 mm THK SHUTTER 8mm GLASS SHUTTER FINISH UNPOLISHED NO. OF DOORS 1 LEGEND GROUP W6a TYPE CASEMENT WINDOW FRAME FLUSH- 70 mm THK SHUTTER 8mm GLASS SHUTTER FINISH UNPOLISHED NO. OF DOORS 1 LEGEND GROUP F01 TYPE SINGLE DOOR FRAME FLUSH- 70 mm THK (3S1) SHUTTER 8mm GLASS SHUTTER FINISH UNPOLISHED NO. OF DOORS 1 W1 W5 W6a V1 OUTSIDE THE POWDER ROOM WET KITCHEN LAUNDRY ROOM POWDER ROOM ELEVATION GROUND LVL FIXED WINDOW FIXED SLIDING WINDOW SLIDING WINDOW FIXED FIXED WINDOW FIXED WINDOW SLIDING WINDOW SLIDING WINDOW 4875 2295 3150 2381 70 1157 4282 2054 1009 1009 750 70 3150 1157 2350 2054 ELEVATION ELEVATION IN IN OUT OUT 785 70 70 70 70 70 70 70 70 4875 2350 2350 1157 1157 4282 1009 1009 2054 230 230 230 230 70mm thk frame fixed glass 70mm thk frame fixed glass 70mm thk frame glass sliding shutter mesh sliding shutter 70mm thk frame glass sliding shutter mesh sliding shutter PLAN @2500mm PLAN @2500mm Clear opening as per site 800x3150mm Clear opening as per site 800x3150mm frame SD2 SD1 FIXED WINDOW FIXED WINDOW SLIDING WINDOW SLIDING WINDOW SLIDING WINDOW SLIDING WINDOW FIXED WINDOW FIXED WINDOW FIXED WINDOW 4644 2322 2322 1949 1949 ELEVATION ELEVATION IN IN OUT OUT 3150 2295 785 939 939 1912 3150 2295 785 1108 1108 70 70 70 70 70 70 70 4005 4005 1949 1949 939 939 1108 1108 4644 4644 2322 2322 2322 230 230 230 230 70mm thk frame fixed glass 70mm thk frame fixed glass 70mm thk frame glass sliding shutter mesh sliding shutter 70mm thk frame glass sliding shutter mesh sliding shutter PLAN @2500mm PLAN @2500mm Clear opening as per site 800x3150mm Clear opening as per site 800x3150mm frame OUT OUT SD4 LEGEND LEGEND LEGEND LEGEND SD2 FORMAL LIVING FORMAL LIVING DINING DINING ELEVATION GROUND LVL SCHEDULE FOR OPENINGS-WINDOWS GROUND FLOOR OPENING SIZE(lxh) TYPE LINTEL SILL LOCATION POOJA FIXED WINDOW FFL FFL W2 W3 W4 FIXED WINDOW FIXED WINDOW STAIRCASE- MIDLANDING TO FIRST FLOOR STAIRCASE-UNDER THE LANDING SD1 SD2 4875 X 3150 4282 X 3150 SLIDING DOOR AND FIXED WINDOW SLIDING DOOR AND FIXED WINDOW FORMAL LIVING FORMAL LIVING NOS 1 1 1 1 1 FFL T.B.D. T.B.D T.B.D. T.B.D T.B.D. T.B.D. W5 TILT AND TURN & FIXED WINDOW 1200 3000 X 1950 WET KITCHEN 1 W6a 1 900 X 1500 CASEMENT WINDOW 2400 900 1500 600 X 1650 V1 HIT &MESH AND FIXED WINDOW POWDER ROOM 1 FFL FFL SD3 SD4 SLIDING DOOR AND FIXED WINDOW DINING DINING 1 1 4005 X 3150 4644 X 3150 SLIDING DOOR AND FIXED WINDOW UTILITY BEAM BOTTOM BEAM BOTTOM BEAM BOTTOM BEAM BOTTOM BEAM BOTTOM BEAM BOTTOM OUTSIDE POWDER ROOM 1200 X 3150 W1 1 FFL TILT WINDOW AND FIXED WINDOW BEAM BOTTOM T.B.D. T.B.D. PROJECT NO DRAWN : CHECKED : DATE : SCALE : N.T.S ISSUE : FOR REVIEW DRAWING DESCRIPTION NAME : OWNER / AUTHORIZED REPRESENTATIVE PROJECT DESCRIPTION Note : This drawing is copyright. It is the property of C U B E Architects & interior designers and is not to be reproduced copied handed over to a third party or used for any purposeother than for which it as been loaned. #29 , 1ST FLOOR , LANGFORD ROAD , BANGALORE - 560027 PHONE - 080 - 22274666 ; TS TEAK WINDOW DRAWINGS- GROUND FLOOR DRAWING NO REV SUGUNA RAMAIAH HOSPITAL RESIDENCE N Dr. RAVINDRA DATE REVISIONS REV NO. DRAWN CHECKED RAV/PLA CUBE/ARC/RES/206 Isha Ar. SANDEEP 26.03.2024 R0

FIRST FLOOR WINDOWS

FIXED WINDOW 900 1500 70 555 875 OUT IN OUT IN 900 900 760 760 1650 Clear opening as per site 900x1500mm 70mm thk frame 70 70 70 70 70mm thk frame mesh shutter glass shutter 70mm thk frame fixed glass ELEVATION PLAN @2000mm 10mm thick rod (window grill) 10mm thick rod (window grill) PLAN @2500mm 230 230 V2 TOILET GRANDMA'S BEDROOM HELPER BEDROOM -2 NOS SILL LVL OUT FIXED WINDOW FIXED WINDOW CASEMENT WINDOW CASEMENT WINDOW CASEMENT WINDOW FIXED WINDOW FIXED WINDOW FIXED WINDOW FIXED WINDOW CASEMENT WINDOW 1523 3150 715 1800 836 3150 2295 1800 70 800 3150 1800 495 656 656 230 Clear opening as per site 1523x3150mm 70mm thk frame 785 696 660 Clear opening as per site 800x3150mm 785 1523 656 656 230 836 836 686 800 800 660 OUT IN OUT IN OUT IN OUT IN OUT IN OUT IN 70mm thk frame 70mm thk frame mesh shutter glass shutter 35 70 70 70 230 70 70 70 70 70 70 70mm thk frame 1523 836 fixed glass 70mm thk frame fixed glass 70mm thk frame fixed glass 70mm thk frame mesh shutter glass shutter ELEVATION PLAN @1500mm PLAN @2500mm ELEVATION PLAN @2500mm 10mm thick rod (window grill) 10mm thick rod (window grill) 10mm thick rod (window grill) 10mm thick rod (window grill) 10mm thick rod (window grill) PLAN @1500mm 230 230 W9 HELPERS BEDROOM BBM LINTEL LVL OUT OUT OUT FIXED WINDOW FIXED WINDOW CASEMENT WINDOW 762 3150 1800 70 785 495 762 762 622 622 OUT IN OUT IN Clear opening as per site 762x3150mm 70mm thk frame 70 70 70 70 70mm thk frame mesh shutter glass shutter 70mm thk frame fixed glass ELEVATION PLAN @2500mm 10mm thick rod (window grill) 10mm thick rod (window grill) PLAN @1500mm 230 230 W10 HELPERS BEDROOM OUT W7 W8 LEGEND GROUP V2 TYPE HIT,MESH & FIXED WINDOW FRAME FLUSH- 70 mm THK SHUTTER 8mm GLASS SHUTTER FINISH UNPOLISHED NO.OF WINDOWS 2 LEGEND GROUP W7 TYPE TILT AND FIXED WINDOW FRAME FLUSH- 70 mm THK SHUTTER 8mm GLASS SHUTTER FINISH UNPOLISHED NO.OF WINDOWS 1 LEGEND GROUP W8 TYPE TILT & FIXED WINDOW FRAME FLUSH- 70 mm THK SHUTTER 8mm GLASS SHUTTER FINISH UNPOLISHED NO. OF WINDOWS 1 LEGEND GROUP W9 TYPE TILT,TURN & FIXED WINDOW FRAME FLUSH- 70 mm THK SHUTTER 8mm GLASS SHUTTER FINISH UNPOLISHED NO. OF WINDOWS 1 LEGEND GROUP W10 TYPE TILT & FIXED WINDOW FRAME FLUSH- 70 mm THK SHUTTER 8mm GLASS SHUTTER FINISH UNPOLISHED NO. OF WINDOWS 1 W7 W8 W9 W10 PARENT'S BEDROOM V2 ELEVATION GROUND LVL FIXED WINDOW 1500 3150 2295 2295 645 645 785 1360 1500 1500 OUT IN OUT IN 645 645 Clear opening as per site 1500x3150mm 70mm thk frame 70 70 70 70 70 70mm thk meshframeshutter glass shutter 70mm thk frame fixed glass ELEVATION PLAN @2500mm 10mm thick rod (window grill) 10mm thick rod (window grill) PLAN @1500mm 230 230 W11 GRANDMA'S BEDROOM OUT FIXED WINDOW SLIDING WINDOW SLIDING WINDOW 2135 715 70 3150 997 997 70mm thk frame Clear opening as per site 2134x3150mm 70 70 70 70 70 2135 2135 997 997 OUT IN OUT IN 70mm thk frame fixed glass 70mm thk frame glass sliding shutter mesh sliding shutter PLAN @1500mm PLAN @2500mm ELEVATION 230 230 OUT FIXED WINDOW FIXED WINDOW SLIDING WINDOW SLIDING WINDOW 4771 2295 2295 3150 2351 2351 2316 2316 70mm thk frame Clear opening as per site 4771x3150mm 70 70 70 70 70 70 4771 2316 2316 OUT IN OUT IN 70mm thk frame fixed glass 70mm thk frame glass sliding shutter mesh sliding shutter PLAN @1500mm PLAN @2500mm ELEVATION 230 230 4771 785 OUT TD2 TD3 W11 TD2 TD3 GRANDMA'S BEDROOM PARENT'S BEDROOM LEGEND GROUP W11 TYPE TILT,TURN & FIXED WINDOW FRAME FLUSH- 70 mm THK SHUTTER 8mm GLASS SHUTTER FINISH UNPOLISHED NO. OF WINDOWS LEGEND TYPE SLIDING DOOR & FRAME FLUSH- 70 mm THK 8mm GLASS SLIDING SHUTTER FINISH UNPOLISHED NO. OF 1 LEGEND TYPE SLIDING DOOR & FRAME FLUSH- 70 mm THK 8mm GLASS SLIDING SHUTTER FINISH UNPOLISHED NO. OF 1 SCHEDULE FOR OPENINGS FIRST FLOOR OPENING SIZE(lxh) TYPE LINTEL SILL LOCATION 1523 X 3150 836 X3150 800 X 3150 W7 W8 W9 FIXED WINDOW W10 762 X 3150 1500 X 3150 W11 TD3 TD2 4771 X 3150 2135 X 3150 TILT AND FIXED WINDOW TILT AND TURN & FIXED WINDOW TILT AND FIXED WINDOW TILT AND TURN& FIXED WINDOW SLIDING DOOR AND FIXED WINDOW SLIDING DOOR AND FIXED WINDOW PARENT'S BEDROOM PARENT'S BEDROOM HELPER'S BEDROOM HELPER'S BEDROOM GRANDMA'S BEDROOM PARENT'S BEDROOM GRANDMA'S BEDROOM NOS 1 1 1 1 1 1 1 FFL FFL FFL FFL FFL FFL FFL BEAM BOTTOM BEAM BOTTOM BEAM BOTTOM BEAM BOTTOM BEAM BOTTOM BEAM BOTTOM BEAM BOTTOM V2 900 X 1500 HIT &MESH AND FIXED WINDOW 1650 GRANDMA'S & HELPER'S BEDROOM 2 BEAM BOTTOM PROJECT NO DRAWN : CHECKED : DATE : SCALE : N.T.S ISSUE : FOR REVIEW DRAWING DESCRIPTION NAME : OWNER / AUTHORIZED REPRESENTATIVE PROJECT DESCRIPTION Note : This drawing is copyright. It is the property of C U B E Architects & interior designers and is not to be reproduced copied handed over to a third party or used for any purposeother than for which it as been loaned. #29 , 1ST FLOOR , LANGFORD ROAD , BANGALORE - 560027 PHONE - 080 - 22274666 ; TS TEAK WINDOW DRAWINGS- FIRST FLOOR DRAWING NO REV SUGUNA RAMAIAH HOSPITAL RESIDENCE N Dr. RAVINDRA DATE REVISIONS REV NO. DRAWN CHECKED RAV/PLA CUBE/ARC/RES/206 Isha Ar. SANDEEP 26.03.2024 R0

SECOND FLOOR WINDOWS

FIXED WINDOW 1500 3150 2295 2295 645 645 785 1360 1500 1500 OUT IN OUT IN 645 645 Clear opening as per site 1500x3150mm 70mm thk frame 70 70 70 70 70 70mm thk frame mesh shutter glass shutter 70mm thk frame fixed glass ELEVATION PLAN @2500mm 10mm thick rod (window grill) 10mm thick rod (window grill) PLAN @1500mm 230 230 W11 OUT CASEMENT WINDOW FIXED WINDOW FIXED WINDOW 900 760 3150 70 1800 ELEVATION 635 715 70mm thk frame Clear opening as per site 900x3150mm OUT IN OUT IN 70mm thk frame 10mm thick rod (window grill) fixed glass 70mm thk frame mesh shutter glass shutter 10mm thick rod (window grill) 70 70 70 70 900 35 900 760 PLAN @2500mm PLAN @1500mm 230 230 OUT W11 W13 SON'S BEDROOM DAUGHTER'S BEDROOM W13 AV ROOM -2 NOS LEGEND GROUP W11 TYPE TILT,TURN& FIXED WINDOW FRAME FLUSH- 70 mm THK SHUTTER 8mm GLASS SHUTTER FINISH UNPOLISHED NO.OF WINDOWS 2 LEGEND GROUP W11 TYPE TILT,TURN& FIXED WINDOW FRAME FLUSH- 70 mm THK SHUTTER 8mm GLASS SHUTTER FINISH UNPOLISHED NO.OF WINDOWS 2 ELEVATION GROUND LVL SCHEDULE FOR OPENINGS SECOND FLOOR OPENING SIZE(lxh) TYPE LINTEL SILL LOCATION TILT WINDOW AND FIXED WINDOW 1500 X 3150 900 X 3150 W11 W13 AV ROOM FW2 TD1 3650 X 3150 FIXED WINDOW SLIDING DOOR AND FIXED WINDOW T.B.D COURTYARD FROM BELOW TILT AND TURN & FIXED WINDOW SON'S BEDROOM NOS 2 2 1 2 SON'S & DAUGHTER'S BEDROOM FFL BEAM BOTTOM FFL BEAM BOTTOM FFL BEAM BOTTOM 1841 X 3150 W14 TILT AND TURN & FIXED WINDOW DAUGHTER'S BEDROOM 1 FFL BEAM BOTTOM T.B.D T.B.D FIXED WINDOW SLIDING WINDOW SLIDING WINDOW FIXED WINDOW FIXED WINDOW 3650 3150 70 1790 860 860 1720 1790 70mm thk frame Clear opening as per site 3650x3150mm 70 70 70 70 70 70 3650 860 860 1720 3650 OUT IN OUT IN 70mm thk frame fixed glass 70mm thk frame glass sliding shutter mesh sliding shutter PLAN @1500mm PLAN @2500mm ELEVATION 230 230 70 785 OUT 1841 2295 FIXED WINDOW ELEVATION 815 815 70mm thk frame Clear opening as per site 1841x3150mm OUT IN OUT IN 70mm thk frame 10mm thick rod (window grill) fixed glass 70mm thk frame mesh shutter glass shutter 10mm thick rod (window grill) 75 70 70 70 70 1841 35 35 1841 815 815 PLAN @2500mm PLAN @1500mm 230 230 785 OUT TD1 W14 TD1 W14 DAUGHTER'S BEDROOM SON'S BEDROOM DAUGHTER'S BEDROOM LEGEND GROUP W14 TYPE TILT,TURN& FIXED WINDOW FRAME FLUSH- 70 mm THK SHUTTER 8mm GLASS SHUTTER FINISH UNPOLISHED NO.OF WINDOWS 1 LEGEND GROUP TD1 TYPE SLIDING DOOR & FIXED WINDOW FRAME FLUSH- 70 mm THK SHUTTER 8mm GLASS SLIDING SHUTTER FINISH UNPOLISHED NO. OF WINDOWS 1 PROJECT NO DRAWN : CHECKED : DATE : SCALE : N.T.S ISSUE : FOR REVIEW DRAWING DESCRIPTION NAME : OWNER / AUTHORIZED REPRESENTATIVE PROJECT DESCRIPTION Note : This drawing is copyright. It is the property of C U B E Architects & interior designers and is not to be reproduced copied handed over to a third party or used for any purposeother than for which it as been loaned. #29 , 1ST FLOOR , LANGFORD ROAD , BANGALORE - 560027 PHONE - 080 - 22274666 ; TS TEAK WINDOW DRAWINGS- SECOND FLOOR DRAWING NO REV SUGUNA RAMAIAH HOSPITAL RESIDENCE N Dr. RAVINDRA DATE REVISIONS REV NO. DRAWN CHECKED RAV/PLA CUBE/ARC/RES/206 Isha Ar. SANDEEP 26.03.2024 R0
300X12mm STRINGER BEAM 1950 3750 3750 3750 E 300 300 300 300 300 300 300 300 300 300 300 300 1200 1200 300 300 300 300 300 300 300 300 300 300 300 1 2 3 4 5 6 7 8 9 10 11 12 13 14 15 16 17 18 19 20 21 22 23 24 25 UP A 4800 2110 12 mm STRINGER BEAM 1 2 3 4 5 6 7 8 9 10 11 12 13 14 15 16 17 18 19 20 21 22 23 24 25 1 2 3 4 5 6 7 8 9 10 11 12 13 14 15 16 17 18 19 20 21 22 23 24 25 40 41 42 43 44 45 46 47 48 49 50 65 66 67 68 69 70 71 72 73 74 75 51 52 53 54 55 56 57 58 59 60 61 62 63 64 26 27 28 29 30 31 32 33 34 35 36 37 38 39 GLASS RAILING ATTACHED TO THE STRINGER WITH PATCH FITTINGS 150mm thk RCC SLAB 300MM MS C-CHANNEL BELOW THE LANDING FOR SUPPORT 25mm thk WOODEN PLANKS SUPPORTED WITH MS ANGLE CLEATS 8mm MS FLAT BASEPLATE FOR SUPPORT 75mm ALUMINIUM FRAME 12mm thk FIXED TEMPERED GLASS 12mm FIXED GLASS GLASS RAILING ATTACHED TO THE STRINGER WITH PATCH FITTINGS PATCH FITTINGS TO ATTACH THE GLASS RAILING 12mm thk STRINGER BEAM ATTACHED ON THE SIDES 8mm thk MS ANGLE CLEATS ATTACHED TO THE WOODEN PLANKS WITH SCREWS MID-LANDING +6'7 LVL MID-LANDING +19'1" LVL SECOND FLOOR +25' LVL MID-LANDING +31'7" LVL TERRACE FLOOR +37'6" LVL GROUND LVL FIRST FLOOR +12'6 LVL MID-LANDING +6'7 LVL MID-LANDING +19'1" LVL SECOND FLOOR +25' LVL MID-LANDING +31'7" LVL TERRACE FLOOR +37'6" LVL GROUND LVL FIRST FLOOR +12'6 LVL 3750 1950 1650 1950 1650 1949 1650 230 X 600 BEAM 1200 600 F 26 150 1950 300 600 150 150 150 150 150 150 150 150 150 150 1200 1000 134 1000 300 5030 B 27 28 29 30 31 32 33 34 35 36 37 38 39 150 12 mm STRINGER BEAM PROVIDED IN THE SIDES 3mm GROOVING FOR GRIP 12mm GLASS RAILING ATTACHED TO THE STRINGER BEAM WITH PATCH FITTINGS 12mm thk FIXED TEMPERED GLASS 75mm thk ALUMINIUM FRAME A PLAN SECTION A-A' ELEVATION A D C 12mm STRINGER BEAM 12mm thk GLASS RAILING 25mm thk WOODEN PLANKS 3mm thk GROOVES FOR METAL GRIP DETAIL C DETAIL D 300 300 1000 150 150 300 25mm thk WOODEN PLANK 300 X 12mm STRINGER BEAM BOLTS PROVIDED TO ATTACH THE MS ANGLE CLEATS TO THE WOODEN PLANK 8mm thk MS ANGLE CLEAT ATTACHED TO THE WOODEN PLANK 24 25 DETAIL E 150mm RCC SLAB 230 X 600 BEAM 8mm BASEPLATE SCREWED TO THE RCC SLAB 12mm STRINGER ATTACHED TO A 8mm BASEPLATE BASEPLATE SCREWED TO THE RCC 25mm thk WOODEN GLASS RAILING FIXED WITH PATCH FITTINGS PATCH FITTINGS TO ATTACH RAILING TO THE SLAB DETAIL 12mm thk STRINGER BEAM 8mm BASEPLATE SCREWED TO THE RCC SLAB 25mm thk WOODEN PLANK 200 300 DETAIL F GLASS RAILING ATTACHED TO THE STRINGER BEAM WITH PATCH FITTINGS PATCH FITTING TO ATTACH THE GLASS RAILING TO THE STRINGER BEAM 12mm thk STRINGER BEAM 8mm thk MS ANGLE CLEAT ATTACHED TO THE WOODEN PLANK DETAIL B 300MM MS
BELOW THE LANDING FOR SUPPORT 75mm ALUMINIUM FRAME 12mm thk FIXED TEMPERED GLASS 300X12mm STRINGER BEAM DETAIL A 8mm MS FLAT BASEPLATE FOR SUPPORT 25mm thk WOODEN PLANK 8mm thk MS ANGLE CLEAT ATTACHED TO THE WOODEN PLANK PROJECT NO DRAWN : CHECKED : DATE : SCALE : N.T.S ISSUE : FOR REVIEW DRAWING DESCRIPTION NAME : OWNER / AUTHORIZED REPRESENTATIVE PROJECT DESCRIPTION Note : This drawing is copyright. It is the property of C U B E Architects & interior designers and is not to be reproduced copied handed over to a third party or used for any purposeother than for which it as been loaned. #29 , 1ST FLOOR , LANGFORD ROAD , BANGALORE - 560027 PHONE - 080 - 22274666 ; STAIRCASE DETAIL DRAWING DRAWING NO REV SUGUNA RAMAIAH HOSPITAL RESIDENCE N Dr. RAVINDRA DATE REVISIONS REV NO. DRAWN CHECKED RAV/PLA CUBE/ARC/RES/206 Isha Ar. SANDEEP 26.02.2024 R0
C-CHANNEL

ALL 3D RENDERS DONE BY THE 3D VISUALISER

#29 , FIRST FLOOR LANGFORD ROAD, BANGALORE - 560025 PHONE 080 - 41237977 N PURPOSE OF ISSUE : FOR DISCUSSION PROJECT DESCRIPTION : CLIENTS: TYPICAL BASEMENT PLAN DRAWING TITLE : INSPIRA BUILDERS APARTMENT INSPIRA BUILDERS NOTE : This drawing is copyright. It is the property of C U B E Architects & interior designers and is not to be reproduced copied handed over to a third party or used for any purpose other than for which it as been loaned. CHECKED BY: AR.SANDEEP PROJECT NO.: DRAWING NO.: REV.REC : DRAWN BY : ISHA MUSKAAN SCALE NTS DATE : 16.03.2024 R0 CUBE/ARC/RES/239 ISP/SC/PLA/002
#29 FIRST FLOOR LANGFORD ROAD, BANGALORE - 560025 PHONE - 080 - 41237977 N PURPOSE OF ISSUE : FOR DISCUSSION PROJECT DESCRIPTION : CLIENTS: TYPICAL FLOOR PLAN GROUND, FIRST AND SECOND FLOOR DRAWING TITLE : INSPIRA BUILDERS APARTMENT INSPIRA BUILDERS NOTE : This drawing is copyright. It is the property of C U B E Architects & interior designers and is not to be reproduced copied handed over to a third party or used for any purpose other than for which it as been loaned. CHECKED BY: AR.SANDEEP PROJECT NO.: DRAWING NO.: REV.REC : DRAWN BY : ISHA MUSKAAN SCALE : NTS DATE 16.03.2024 R0 CUBE/ARC/RES/239 ISP/SC/PLA/002
#29 FIRST FLOOR LANGFORD ROAD, BANGALORE - 560025 PHONE - 080 - 41237977 N PURPOSE OF ISSUE : FOR DISCUSSION PROJECT DESCRIPTION : CLIENTS: THIRD FLOOR DUPLEX PLAN DRAWING TITLE : INSPIRA BUILDERS APARTMENT INSPIRA BUILDERS NOTE : This drawing is copyright. It is the property of C U B E Architects & interior designers and is not to be reproduced copied handed over to a third party or used for any purpose other than for which it as been loaned. CHECKED BY: AR.SANDEEP PROJECT NO.: DRAWING NO.: REV.REC : DRAWN BY ISHA MUSKAAN SCALE NTS DATE 16.03.2024 R0 CUBE/ARC/RES/239 ISP/SC/PLA/002
#29 FIRST FLOOR LANGFORD ROAD, BANGALORE - 560025 PHONE - 080 - 41237977 N PURPOSE OF ISSUE : FOR DISCUSSION PROJECT DESCRIPTION : CLIENTS: FOURTH FLOOR DUPLEX PLAN DRAWING TITLE : INSPIRA BUILDERS APARTMENT INSPIRA BUILDERS NOTE : This drawing is copyright. It is the property of C U B E Architects & interior designers and is not to be reproduced copied handed over to a third party or used for any purpose other than for which it as been loaned. CHECKED BY: AR.SANDEEP PROJECT NO.: DRAWING NO.: REV.REC : DRAWN BY ISHA MUSKAAN SCALE NTS DATE 16.03.2024 R0 CUBE/ARC/RES/239 ISP/SC/PLA/002
#29 , FIRST FLOOR LANGFORD ROAD, BANGALORE - 560025 PHONE 080 - 41237977 N PURPOSE OF ISSUE : FOR DISCUSSION PROJECT DESCRIPTION : CLIENTS: TERRACE FLOOR PLAN DRAWING TITLE : INSPIRA BUILDERS APARTMENT INSPIRA BUILDERS NOTE : This drawing is copyright. It is the property of C U B E Architects & interior designers and is not to be reproduced copied handed over to a third party or used for any purpose other than for which it as been loaned. CHECKED BY: AR.SANDEEP PROJECT NO.: DRAWING NO.: REV.REC : DRAWN BY : ISHA MUSKAAN SCALE NTS DATE : 16.03.2024 R0 CUBE/ARC/RES/239 ISP/SC/PLA/002
UP LIFT 5'0"X5'6" 9 METER ROAD 12'0"WIDEDRIVEWAY 12'0"WIDEDRIVEWAY 1 2 3 4 5 16 15 14 13 12 11 9 8 7 ENTRY/EXIT 6 10 N A B C D E F G H I J 1 2 3 4 5 6 7 8 9 10 11 12 13 14 #29 FIRST FLOOR LANGFORD ROAD, BANGALORE - 560025 PHONE - 080 - 41237977 N PURPOSE OF ISSUE : FOR DISCUSSION PROJECT DESCRIPTION : CLIENTS: COLUMN GRID DRAWING DRAWING TITLE : INSPIRA BUILDERS APARTMENT INSPIRA BUILDERS NOTE : This drawing is copyright. It is the property of C U B E Architects & interior designers and is not to be reproduced copied handed over to a third party or used for any purpose other than for which it as been loaned. CHECKED BY: AR.SANDEEP PROJECT NO.: DRAWING NO.: REV.REC : DRAWN BY : ISHA MUSKAAN SCALE NTS DATE 14.05.2024 R0 CUBE/ARC/RES/239 ISP/SC/PLA/002
UP LIVING&DINING 15'0"X32'0" 14'6"KITCHEN X13'0" MASTERBEDROOM 15'0"X14'0" MASTERBEDROOM 19'6"X14'6" 14'6"BEDROOM1 X10'4" 5'0"TOILETX10'0" 6'7"WALK-IN X8'2" 9'2"TOILET X5'7" 11'1"BALCONY X5'0" 8'8"BALCONY X5'0" 15'6"BALCONY X5'0" 14'6"UTILITYX5'6" ENTRY&FOYER 6'0"X4'6" 9'2"TOILET X5'7" ENTRY&FOYER 6'0"X4'6" LIVING&DINING 15'0"X26'6" 9'3"KITCHEN X11'7" 7'0"WALK-IN X5'8" 14'6"BEDROOM1 X10'2" 5'0"TOILETX6'10" 7'3"UTILITY X9'9" 4'9"BALCONY X9'0" 17'4"BALCONY X4'6" 8'1"TOILET X5'8" 5'6"LIFTX5'0" 11'0"BALCONY X20'0" 17'0"BEDROOM1 X12'6" 5'0"WALK-IN X8'0" 6'0"TOILETX10'6" N 9 METER ROAD A B C D E F G H I J 1 2 3 4 5 6 7 8 9 10 11 12 13 14 WALL LEGEND HATCH TYPE 6" SHEER WALL 6" WALL #29 FIRST FLOOR LANGFORD ROAD, BANGALORE - 560025 PHONE - 080 - 41237977 N PURPOSE OF ISSUE : FOR DISCUSSION PROJECT DESCRIPTION : CLIENTS: TYPICAL FLOOR PLAN DRAWING TITLE : INSPIRA BUILDERS APARTMENT INSPIRA BUILDERS NOTE : This drawing is copyright. It is the property of C U B E Architects & interior designers and is not to be reproduced copied handed over to a third party or used for any purpose other than for which it as been loaned. CHECKED BY: AR.SANDEEP PROJECT NO.: DRAWING NO.: REV.REC : DRAWN BY : ISHA MUSKAAN SCALE NTS DATE 14.05.2024 R0 CUBE/ARC/RES/239 ISP/SC/PLA/002
UP 14'6"KITCHEN X13'0" 12'0"BEDROOM2 X11'2" MASTERBEDROOM 15'0"X14'0" MASTERBEDROOM 19'6"X14'6" 5'0"TOILET X5'0" 6'7"WALK-IN X8'2" 9'2"TOILET X5'7" 11'1"BALCONY X5'0" 8'8"BALCONY X5'0" 15'6"BALCONY X5'0" 14'6"UTILITYX5'6" ENTRY&FOYER 6'0"X4'6" 9'2"TOILET X5'7" ENTRY&FOYER 6'0"X4'6" LIVING&DINING 15'0"X26'6" 9'3"KITCHEN X11'7" 7'0"WALK-IN X5'8" 5'0"TOILETX6'10" 7'3"UTILITY X9'9" 4'9"BALCONY X9'0" 17'4"BALCONY X4'6" 8'1"TOILET X5'8" 5'6"LIFTX5'0" 17'0"BEDROOM1 X12'6" 11'0"BALCONY X20'0" 6'0"TOILETX10'6" LIVING&DINING 15'0"X32'0" UP UP 9 METER ROAD 5'0"WALK-IN X8'0" N A B C D E F G H I J 1 2 3 4 5 6 7 8 9 10 11 12 13 14 WALL LEGEND HATCH TYPE 6" SHEER WALL 6" WALL #29 FIRST FLOOR LANGFORD ROAD, BANGALORE - 560025 PHONE - 080 - 41237977 N PURPOSE OF ISSUE : FOR DISCUSSION PROJECT DESCRIPTION : CLIENTS: THIRD FLOOR PLAN- DUPLEX (LVL 1) DRAWING TITLE : INSPIRA BUILDERS APARTMENT INSPIRA BUILDERS NOTE : This drawing is copyright. It is the property of C U B E Architects & interior designers and is not to be reproduced copied handed over to a third party or used for any purpose other than for which it as been loaned. CHECKED BY: AR.SANDEEP PROJECT NO.: DRAWING NO.: REV.REC : DRAWN BY : ISHA MUSKAAN SCALE NTS DATE 14.05.2024 R0 CUBE/ARC/RES/239 ISP/SC/PLA/002
N UP 12'0"BEDROOM2 X11'2" MASTERBEDROOM 15'0"X14'0" MASTERBEDROOM 19'6"X14'6" 6'7"WALK-IN X8'2" 9'2"TOILET X5'7" 11'1"BALCONY X5'0" 8'8"BALCONY X5'0" 9'2"TOILET X5'7" 12'0"STOREX4'6" 7'0"WALK-IN X5'8" 10'0"TOILETX6'10" 4'9"BALCONY X9'0" 8'1"TOILET X5'8" 5'6"LIFTX5'0" 17'0"BEDROOM1 X12'6" 5'0"WALK-IN X8'0" 6'0"TOILETX10'6" FAMILYLIVING 15'0"X12'0" 5'0"TOILETX10'0" 13'0"BALCONY X14'9" FAMILYLIVING 14'0"X16'0" 12'0"STOREX4'6" 15'2"BALCONY X11'2" 14'5"BEDROOM3 X13'0" CUTOUTBELOW CUTOUTBELOW DN DN 11'0"BALCONY X20'0" 9 METER ROAD A B C D E F G H I J 1 2 3 4 5 6 7 8 9 10 11 12 13 14 WALL LEGEND HATCH TYPE 6" SHEER WALL 6" WALL #29 FIRST FLOOR LANGFORD ROAD, BANGALORE - 560025 PHONE - 080 - 41237977 N PURPOSE OF ISSUE : FOR DISCUSSION PROJECT DESCRIPTION : CLIENTS: FOURTH FLOOR PLAN- DUPLEX (LVL 2) DRAWING TITLE : INSPIRA BUILDERS APARTMENT INSPIRA BUILDERS NOTE : This drawing is copyright. It is the property of C U B E Architects & interior designers and is not to be reproduced copied handed over to a third party or used for any purpose other than for which it as been loaned. CHECKED BY: AR.SANDEEP PROJECT NO.: DRAWING NO.: REV.REC : DRAWN BY : ISHA MUSKAAN SCALE : NTS DATE : 14.05.2024 R0 CUBE/ARC/RES/239 ISP/SC/PLA/002

ALL 3D RENDERS DONE BY THE 3D VISUALISER

BRASS STRIP 50MM TH RECESSED ARCH RECESSED ARCH 12MM TH METAL ROD GRILL AS PER DESIGN 50MM TH METAL WINDOW FRAME MS BOX SECTION FROM 100X100MM 3547 611 544 600 150 150 311 1814 304 305 5750 5750 EXISITNG PLINTH 305 5750 BRASS BEADING WITH 50MM NICHE RECESSED ARCH GLASS DOOR BRASS STRIP 50MM BRASS FRAMEWORK 50 MM METAL FRAMEWORK ALUMINIUM FRAMEWORK 50MM 50 EQ EQ EQ 4096 4096 4096 2613 3176 4028 4729 5750 1235 1226 3025 2094 3078 3015 1235 1226 2094 2100 R1209 R1451 R1570 R1365 R1451 R1554 3572 2939 2769 1295 305 1295 1033 4595 601 1895 315 594 R1365 R1451 1278 1255 1326 252 1226 939 939 2917 2768 3571 3571 2938 2766 ARCH 1 ARCH 2 ARCH 3 16MM TH GLASS FIXED MS BOX SECTION FROM 75 X100MM BRASS STRIP 50MM TH 3569 4774 601 2770 2570 601 3570 2770 2570 4772 601 2770 2570 3569 4771 13120 1830 480 600 480 480 4861 3660 601 2861 400 400 2660 400 400 400 400 400 2860 601 600 600 600 601 400 2860 400 602 3650 3650 4861 4523 4260 400 2879 ARCH 1 ARCH 2 ARCH 3 B A 2.50 5.36 24.27 24.15 13.01 15.98 5.86 3.70 91 89° 0.23 3.32 89° 91° BASEMENT PROFILE BELOW DN 3.32 2.50 12.61 400 488 400 162 175 400 319 MS BOX SECTION 75X100 MM 20MM TH BOARD 50MM WIDE BRASS STRIP WITH COVE LIGHTING RECESSED ARCH 396 488 488 400 162 200 262 200 400 300 MS BOX SECTION 75X100 MM RECESSED ARCH 50MM WIDE BRASS STRIP WITH COVE LIGHTING 75 CHECKED BY Ar. Sandeep PURPOSE OF ISSUE : FOR DISCUSSION PROJECT DESCRIPTION DRAWING NO. DRAWN BY ISHA MUSKAAN SCALE N.T.S #29 FIRST FLOOR ,LANGFORD ROAD, BEHIND OTIS ELEVATORS OFFICE, BENGALURU 560027 PHONE-080 41237977 FAX-080 41237977 E-Mail-cube@cubearchitects.net OVION SADASHIVNAGAR REV.REC BANGALORE ERODE DATE 27-02-24 N PROJECT NO. CUBE/ARC/COMM/ R1 DRAWING TITLE CLIENTS: Mr.KIRAN FRONT ELEVATION DETAIL CUBE/ARC/ELE/01 PLAN FRONT ELEVATION CROSS-SECTION AA'
RENDERS A A' DETAIL @ B DETAIL @ A
CONCEPTUAL
EWC WASH BASIN FD FT FLOOR DROP WB FLOOR TRAP (110 Ø X 75 Ø OUTLET) LEGEND HF HEALTH FAUCET FOR EWC Tr TOWEL RING SH SHOWER TR TOWEL ROD SOIL PIPE 110 Ø PVC WASTE PIPE 75 Ø PVC CWS COLD WATER SUPPLY MR MIRROR HWS HOT WATER SUPPLY SD SOAP DISH FWS FLUSH WATER SUPPLY PH PAPER HOLDER WATER CLOSET ( WALL MOUNTED WITH CONCEALED FLUSH TANK) BALL VALVE HWR HOT WATER RETURN PRM PUMP RISING MAIN DRAINAGE LAYOUT A B C D 75MM DIA PVC WASTE PIPE 110MM DIA PVC SOIL PIPE A B C D WATER SUPPLY LAYOUT PEX GENTS TOILET 10'3"x6' LADIES TOILET 9'4" x 5'4" STARTING TILE STARTING TILE Black Granite tile TOILET LAYOUT FLOOR TILE DRAWING AREA OF TILES: 61 sqft. AREA OF TILES: 32 sqft. GENTS TOILET 10'3"x6' A B C D 2251 LADIES TOILET 9'4" x 5'4" A B C D 1961 849 810 1002 600 750 1002 600 1451 2341 1856 820 2251 1200 A B C D 75MM DIA PVC WASTE PIPE 110MM DIA PVC SOIL PIPE A B C D GENTS TOILET 10'3"x6' LADIES TOILET 9'4" x 5'4" GENTS TOILET 10'3"x6' LADIES TOILET 9'4" x 5'4" 1200 600 600 600 COLUMN 3509 601 WALL "A" WALL "B" WALL "C" WALL "D" WALL "A" WALL "B" WALL "C" WALL "D" 2100 650 1000 1200 1560 9001450 1100 900 2100 1950 1650 450 1100 GENTS TOILET ELEVATION 10'3"x6'0" LADIES TOILET ELEVATION 9'4" x 5'4" 600 600 550 950 440 1200 600 1200 175 175 10MM TILE SKIRTING MOISTURE PROOF FALSE CEILING @175mm DROP FROM CEILING 450 MOISTURE PROOF FALSE CEILING @175mm DROP FROM CEILING 1950 600 x 600 COLUMN 600 x 600 COLUMN 800 100 650 450 10mm TILE SKIRTING 900 1200 900 WALLS TO BE PAINTED IN SHADENP YO 1233 D SUNBAKED WALLS TO BE PAINTED IN SHADENP N 1865 P WALL ARTE UP DN UP CONFERENCE KEY PLAN TILE PATTERN FOR FLOORING TILE QUANTITY REQUIREDGENT'S TOILET61 SFT LADIES TOILET32 SFT TOTAL144 SFT. NOTE : CHECKED BY PURPOSE OF ISSUE Discussion. DRAWING TITLE PROJECT DESCRIPTION : DRAWING NO. DRAWN BY ISHA SCALE N.T.S CLIENTS: #29 , FIRST FLOOR ,LANGFORD ROAD, BEHIND OTIS ELEVATORS OFFICE, BENGALURU 560027 PHONE-080 22274666 E-Mail-cube@cubearchitects.net OVION SADASHIVNAGAR SHOWROOM REV.REC : TOILET DETAIL DRAWING BANGALORE ERODE DATE 19 .04.2024 PROJECT NO. CUBE/INT/RES/108 CUBE/INT/PLA/001 OVION LIFESTYLE PVT. LMT.
DN GENTS TOILET ROAD LED SCREEN DISPLAY 3200 2400 243 843 884 300 100 293 293 428 428 241 850 1750 375 413 413 25mm ALUMINIUM ROD ALUMINIUM CYLINDERS BACKING 25 15mm METAL SHELF 15mm METAL SHELF 243 630 PULL OUT FINISHED IN METAL MATT TV A A' 300 25 25 300 100 2400 300 40mmX40mm Box channel FFL TEXTURED PAINT BACK WALL 300 293 293 428 428 241 243 PULL OUT #29 FIRST FLOOR LANGFORD ROAD, BANGALORE 560025 PHONE - 080 - 41237977 N PURPOSE OF ISSUE : DRAWING FOR DISCUSSION PROJECT DESCRIPTION : CLIENTS: CONFERENCE ROOM DETAIL DRAWING TITLE : OVION SADASHIVNAGAR SHOWROOM OVION LIFESTYLE PVT. LMT. NOTE : This drawing is copyright. It is the property of C U B E Architects & interior designers and is not to be reproduced copied handed over to a third party or used for any purpose other than for which it as been loaned. CHECKED BY: PROJECT NO.: DRAWING NO.: REV.REC : DRAWN BY ISHA SCALE : NTS DATE : 08.05.2024 00 CUBE/INT/COM/ OVS/ELE/PLA/002 KEY PLAN PLAN ELEVATION SECTION A-A' REFERENCE IMAGE
ALL 3D RENDERS DONE BY THE 3D VISUALISER

THIRD, FOURTH FLOOR

LIFT
LIFT DISPLAY AREA ENTRY PANTRY 1950x2200 GODOWN DISPLAY AREA DISPLAY AREA ROLLING SHUTTER CABLE RAILING FEMALE TOILET 1525X1800 MALE TOILET 1525X1800 HAND WASH 3150X1530 HAND WASH 3150X1520 HAND DRYER COIR MAT
UP AREA: 4406 SQ FEET OFFICE SPACE
TYPICAL PLAN-FIRST, SECOND,
BUILT
AREA STATEMENT ENTRY 49 sqm. GODOWN 207 sqm. DISPLAY AREA 1 119 sqm. DISPLAY AREA 2 206 sqm. OFFICE SPACE 24 sqm. SPACE AREA CHECKED BY Ar. SANDEEP PURPOSE OF ISSUE FOR DISCUSSION PROJECT DESCRIPTION DRAWING NO. DRAWN BY S M YASHASHWINI SCALE N.T.S #29 FIRST FLOOR ,LANGFORD ROAD, BEHIND OTIS ELEVATORS OFFICE, BENGALURU 560027 PHONE-080 41237977 FAX-080 41237977 E-Mail-cube@cubearchitects.net MYSORE ROAD REV.REC BANGALORE ERODE DATE 22.12.2023 N PROJECT NO. CUBE/ARC/COMM/53 CUBE/ARC/NEGATE 03 DRAWING TITLE CLIENTS: Mr.PATEL AREA STATEMENT

LOBBY

FRONT DESK

LIFT
+1.0 M LVL 3950 +1.170 M LVL 3 1200 LOW PLANT BED CEMENT TILES 600x1200 MOROCCAN TILES 300x300 START START +0.500 LVL 200MM FROM ROAD LVL TRUCK ENTRY GATE FOOTPATH 2-WHEELER PARKING (16 NOS.) GROUND FLOOR PLAN BUILT UP AREA: 4505 SQ FEET 600 1200 CEMENT TILES 600x1200 MOROCCAN TILES 300x300 300 300 CHECKED BY Ar. SANDEEP PURPOSE OF ISSUE FOR DISCUSSION PROJECT DESCRIPTION : DRAWING NO. DRAWN BY S M YASHASHWINI SCALE N.T.S #29 FIRST FLOOR ,LANGFORD ROAD, BEHIND OTIS ELEVATORS OFFICE, BENGALURU 560027 PHONE-080 41237977 FAX-080 41237977 E-Mail-cube@cubearchitects.net MYSORE ROAD REV.REC BANGALORE I ERODE DATE 22.12.2023 N PROJECT NO. CUBE/ARC/COMM/53 CUBE/ARC/NEGATE 03 DRAWING TITLE CLIENTS: Mr.PATEL FLOOR TILES DRAWING
PUJA
AH AH A1H OFFICE OFFICE LOUNGE Accountant's Office 3826 50mm THK GLASS PARTITION 200 3003 129.89 Sqm 155.25 Sqm 103.75 Sqm 550 600 1204 1148 600 625 2300 1200 100mm THK BISON BOARD WALL 750 2986 900 2861 3398 3048 3186 2118 530 1200 1070 520 1026 1212 900 2310 1301 2410 900 2253 3220 501 1204 844 38 A B D 2801 3962 4512 2801 3196 3042 3210 SCHEDULE FOR OPENINGSDOORS OFFICE OPENING SIZE(lxh) TYPE LINTEL LOCATION NOS D1 900 2400 GLASS DOOR 2 ALL OFFICES SILHIEGHT2400 GLASS PARTITION FULL HIEGHT ALL PARTITIONS--D2 750 2400 WPC DOOR2400 STORAGE C 100mm THK. BISON BOARD WALL ELEVATION A 3000 600 50 2350 3211 50 851 50 1080 50 1080 50 ELEVATION B ELEVATION C ELEVATION D 3448 3000 650 2300 2118 650 2303 3000 50 3826 50 969 40 1049 50 50 1068 50 1065 50 1115 50 3000 50 801 50 925 50 925 50 925 50 50 550 50 2350 50 GLASS ALUMINIUM PARTITION TRANSFORMER CHECKED BY Ar. Sandeep PURPOSE OF ISSUE G.F.C PROJECT DESCRIPTION DRAWING NO. DRAWN BY ISHA MUSKAAN SCALE N.T.S #29 FIRST FLOOR ,LANGFORD ROAD, BEHIND OTIS ELEVATORS OFFICE, BENGALURU 560027 PHONE-080 41237977 FAX-080 41237977 E-Mail-cube@cubearchitects.net MYSORE ROAD COMMERCIAL REV.REC BANGALORE ERODE DATE 12.02.2024 N PROJECT NO. CUBE/ARC/COMM/53 R0 DRAWING TITLE CLIENTS: Mr.PATEL GROUND FLOOR OFFICE LAYOUT & INTERNAL PARTITION ELEVATIONS CUBE/ARC/PLA/08 KEY PLAN
SCHEDULE FOR OPENINGSDOORS OFFICE OPENING SIZE(lxh) TYPE LINTEL LOCATION NOS D1 900 X 2400 WOOD & GLASS 3 ALL OFFICES SILAH AH A1H OFFICE OFFICE PASSAGE SHELF Accountant's Office 3387 3564 3452 2150 2886 50 118 50 200mm THK BLOCK WALL 50mm THK GLASS PARTITION HIEGHT2400 3868 200 600 3300 900 GLASS PARTITION FULL HIEGHT ALL PARTITIONS--3051 900 900 129.89 Sqm 155.25 Sqm 103.75 Sqm 2800 550 600 3950 3182 600 625 2802 +0.40 M LVL RAIN WATER DRAINAGE LINE TOILET LIFT UP LIFT +0.40 M LVL TRANSFORMER 4 5 8 9 10 11 12 13 12 14 15 16 2-WHEELER D.G 3900x1400 UP GROUND FLOOR PLAN AH AH AH AH AH A1H LOBBY OFFICE PASSAGE Discussion Table PAINT BOOTH DISPLAY DISPLAY Material Bay Office OFFICE LAYOUT CHECKED BY Ar. Sandeep PURPOSE OF ISSUE FOR DISCUSSION PROJECT DESCRIPTION DRAWING NO. DRAWN BY Isha Muskaan SCALE N.T.S #29 FIRST FLOOR ,LANGFORD ROAD, BEHIND OTIS ELEVATORS OFFICE, BENGALURU 560027 PHONE-080 41237977 FAX-080 41237977 E-Mail-cube@cubearchitects.net MYSORE ROAD REV.REC BANGALORE ERODE DATE 29.01.2024 N PROJECT NO. CUBE/ARC/COMM/53 CUBE/ARC/PLA/OFFICE PLAN R01 DRAWING TITLE CLIENTS: Mr.PATEL OFFICE LAYOUT

ALL 3D RENDERS DONE BY THE 3D VISUALISER

BEDROOM (5250 X 4300) DINING (6200 X 3000) KITCHEN (3500 X 4300) UTILITY (1800 X 4300) LIVING (6200 X 5000) BEDROOM (4800 X 4300) TOILET (2100 X 2600) TOILET (2400 X 2400) TOILET (2400 X 2100) BEDROOM (5250 X 4300) DN UP 3900 1000 2600 1000 3300 450 4900 250 2600 1300 2400 1100 900 4400 900 600 900 2675 450 2175 900 100 1000 3300 1000 250 2200 1500 1300 4000 1300 800 700 800 500 200 2100 2300 500 4050 450 3450 450 900 4400 900 450 1250 1200 1550 250 600 2300 600 4300 1800 600 3500 600 600 900 200 250 650 3000 900 600 1000 250 5850 2700 100 800 1500 1300 250 1850 2000 6800 2000 4500 3000 6200 300 300 300 300 300 300 300 300 300 300 300 300 300 300 300 300 300 300 A B C D E 3 4 8 5 1 7 4150 [13'-7 1/2"] 2600 [8'-6 1/2"] 6400 [21'] 4100 [13'-5 1/2"] 2250 [7'-4 1/2"] 2150 [7'-0 1/2"] 2350 [7'-8 1/2"] 2650 [8'-8 1/2"] 1850 [6'-1"] 6 850 [2'-9 1/2"] 2 1200 [3'-11"] W4 W5 V1 W1 W1 W2 MD SD SD W3 D1 D2 D1 D2 D1 D2 1300 BALCONY (6800 X 2000) 1 2 3 4 5 6 1 2 3 4 5 6 7 8 9 10 11 12 13 1244.250M LVL GF SSL GALVALUME SHEET 10MM Z PURLINS GLASS WOOL FOR INSULATION 150MM C-CHANNEL 50X100MM BOX SECTION ALUMINIUM GUTTER 300MM I-SECTION CORRUGATED SHEET SKYLIGHT GALVALUME SHEET GALVALUME SHEET FLOOR PLAN ROOF PLAN ROOF SECTION 1244 3600 419 672 4050 7050 7050 6450 GALVALUME SHEET 10MM Z PURLINS GLASS WOOL FOR INSULATION 150MM C-CHANNEL 50X100MM BOX SECTION ALUMINIUM GUTTER 300MM I-SECTION CORRUGATED SHEET ROOF DETAIL #29 , FIRST FLOOR LANGFORD ROAD, BANGALORE - 560025 PHONE - 080 - 41237977 N PURPOSE OF ISSUE : FOR DISCUSSION PROJECT DESCRIPTION : CLIENTS: ROOF DETAIL DRAWING TITLE : VILLA DEVELOPMENT @ BROOKSWOOD ESTATE BROOKSWOOD ESTATE NOTE : This drawing is copyright. It is the property of C U B E Architects & interior designers and is not to be reproduced copied handed over to a third party or used for any purpose other than for which it as been loaned. CHECKED BY: AR.YASHASWINI PROJECT NO.: DRAWING NO.: REV.REC : DRAWN BY : ISHA MUSKAAN SCALE NTS DATE 14.03.2024 R0 CUBE/ARC/RES/239 ISP/SC/PLA/002

ALL 3D RENDERS DONE BY THE 3D VISUALISER

DECK LIVING & DINING INFORMAL SEATING DECK STEP DOWN 660MM SECTION AA' PODIUM BEHIND +1230.48 M +1230.63 M +1230.48 M +1231.13 M +1231.288 M +1231.10 M +1232.45 M LOWER LVL DECK LOWER LVL SSL PODIUM LVL UPPER LVL DECK UPPER LVL SSL ROAD 2688.74 [8'-10"] PUFF SHEET OPAQUE ROOFING PUFF SHEET OPAQUE ROOFING 2697.70 [8'-10"] 2632.94 [8'-8"] +1227.552 M +1229.014 M +1230.018 M +1231.528 M 154.23 [6"] RAMP SITE SPOT LEVELS +1235.00 M Road Level D E F C B A 1710.00 [5'-7"] 3170.00 [10'-5"] 4375.00 [14'-4"] 3175.00 [10'-5"] 1700.00 [5'-7"] 14130.00 [46'-4"] UPPER LEVEL PLAN [17'-10"] [13'-1"] 5335.00 1 D C B A 4 10 [10'-11"] [2'-4"] [8'-3"] [8'-3"] [11'-7"] [14'-7"] [10'-7"] 1700.00 [47'-1"] [4'-4"] CHECKED BY Ar. Sandeep PURPOSE OF ISSUE FOR REVIEW DRAWING TITLE PROJECT DESCRIPTION DRAWING NO. DRAWN BY Isha SCALE N.T.S CLIENTS: #29 FIRST FLOOR ,LANGFORD ROAD, BEHIND OTIS ELEVATORS OFFICE, BENGALURU 560027 PHONE-080 22274666 E-Mail-cube@cubearchitects.net VILLA DEVELOPMENT @ BROOKWOODS ESTATE REV.REC C08SECTION BANGALORE ERODE DATE 04 .01.2023 PROJECT NO. CUBE/RES/ CUBE/C08/SEC/001 00 BROOKWOODS ESTATE

THANK YOU

Turn static files into dynamic content formats.

Create a flipbook
Issuu converts static files into: digital portfolios, online yearbooks, online catalogs, digital photo albums and more. Sign up and create your flipbook.