TVI

Page 1

AVANCE PROYECTO AFINAL VANCE PROYECTO FINAL DDISTRITODELARAOS-YAUYOS ISTRITODELARAOS-YAUYOS G7

INTEGRANTES

ALVARDO MORON MONICA MARIAJOSE U19209773

CHUCO ARROYO

ANYELA BRIGITH U19210258

FLORA MARGARITA

COAGUILA VASQUEZ

U19221565

AMES LÓPEZ, ANDREA

U19210350

TODOS....100%

TALLER DE DISEÑO ARQUITECTONICO

ARQ. PUENTE SARRIN,KATYA PAOLA

ARQ.SALDIVAR ANTUNEZ DE MAYOLO,SILVIA LILIANA

VI UNIDAD I - 2022 CATEDRA

ÍNDICE

TOMA DE PARTIDO PROGRAMA ARQUITECTONICO ORGANIGRAMA ARQUITECTONICO MATRIZ DE RELACIONES ESPACIALES 001 1 002 2 003 3 004 4 0ZONIFICACION 05 5 0FLUJOGRAMA 06 6

DATOS GENERALES

UBICACIÓN, TOP OLEAMIENTO Y VIENTOS El PROYECTO TURISTICO esta a 3498 m.s.n.m. Laraos se encuentra a una altitud de 3310 m.s.n.m. Sus andenes tiene una altitud de más de 5000 m.s.n.m. COORDENADAS :12°20′49″S 75°47′08″O A N A L I S I S Se ubica en... ubicación geográfica Perú yauyos laraos Limites NORTE: Dist. Alis Sur: Dist. Huantan ESTE: Provincia HuancayoOESTE: Dist. Carania y Miraflores ANÀLISIS La topografía en el lugar es... temperatura máxima: 19°C temperatura mínima: -2 °C. tiene un sistema de andenes para la agricultura El clima es mayormente frio con luz solar 3.940 m 3489 m 3711 m ALUVIONES: durante 4 meses (Dic embre a Marzo) PENDIENTES: pendientes muy pronunciadas (+ 50°) DESLIZ: por las pendientes y precip taciones, suelen haber deslices ANÀLISIS
A N A L I S I S Vientos predominantes... Mayor frecuencia viene de Este Del 15 de marzo al 3 de noviembre Mayor frecuencia de Sur Del 3 de noviembre al 15 de marzo, La salida del sol más temprana es a las 05:31 La puesta del sol más temprana es a las 17:48 En Laraos, la duración del día no varía considerablemente durante el año Vientos predominantes Asoleamiento...

CONCEPTO- LAND ART

TOMA DE PARTIDO CONCEPTO+ LAND ART

MANANTIAL DE LAUMA

AGUA

PIEDRA

Camino Muros

Se ramifica, creando distintos caminos

PRINCIPIOS ORDENADORES

Continuidad

CONCEPTO Formal

Pauta Quiebre

Se busca que la arquitectura cumpla un rol social, y con ello una integración con los usuarios

Sentido / Orientación

La idea parte en integrar exitosamente el proyecto con su entorno, ello mediante el uso de la forma del Manantial. El proyecto se regirá en base a los principiosordenadores identificados en la forma como también el land art propuesto pero de manera más abstracta y en su materialidad.

Ramificar la corriente del agua en el terreno formando lagunas

Camino

Distribución

Espacios

Geometrización

Esca eras

Estructura

Cascada

Usar el Manantial Lauma en el terreno a modo de ejes

Ejes ordenadores

=

Tiene usos diferentes debido a sus variaciones en tamaños y formas.

Plantear puntos anteriores Corriente + Manantial Lauma

Ramificar y geometrizar la corriente del agualsiguiendo os ejes del Manantial

I D E A R E C T O R A + C O N C E P T O P L A N T E M I E N T O E N E L T E R R E N O
I D E A R E C T O R A + C O N C E P T O 1 1A 1B 1C MANANTIAL LAUMA 1A 1B 1C CASCADA / CAIDA DE AGUA ESCALERAS FORMA DEL MANANTIAL 2 2a 2b 2c ALZADO SEGUN ELEVACION PROPUESTA ELEVACION LAND ART PIEDRA MANANTIAL

N

In S&N Resort

N

INTERNACIONAL C O
C E P T U A L I Z A C I O N Y R E F E R E
T E S

CASA

PUKAYAKU LODGE NACIONAL C O N C E P T U A L I Z A C I O N Y R E F E R E N T E S

O N C E P T U A L I Z A C I O N Y R E F E R E N T E S

In S&N Resort

CHINA BEIJING DISTRITO DE FANGSHAN IN S&N RESORT INTERNACIONAL C

DATOS GENERALES:

CONCEPCIÓN DE LA CONSTRUCCIÓN EMPLAZAMIENTO

Aprovecha y se conecta la arquitectura con el contexto del sitio.

Montañas Rio MATERIALES

Está ubicada en West Dharma Village, distrito de Fangshan,Beijing. Construido en un área de 1700 m² , rodeado de montañas y árboles, además de que un rio pasa por el centro de la ciudad. Donde se convive muy íntimamente con la naturaleza y con el contexto que lo rodea.

Fue construido con la idea de que las personas consigan escapar de las rutinas urbanas y puedan relajarse, en un contexto natural y tranquilo, ofreciendo un toque de Zen y representando una tierra ficticia de paz.

El uso de estos materiales dialoga con la imagen de las casas tradicionales del sur de China y con el entorno.

Piedra: Integra orgánicamente el edificio con el entorno del sitio

Ladrillo: Base sólida del edificio

Tejado: Crea un ambiente sutil y tranquilo.

El distrito de Laraos y en lo que queremos enfocar el proyecto respecto de la ubicación y los materiales, guarda una estrecha realación con este proyecto, dado que ambos se encuentra ubicados en un lugares empinados, además de estar rodeado de la naturaleza y que su material predominante es la piedra, además de que sus techos son de 2 aguas.

C O N C E P T U A L I Z A C I O N Y R E F E R E N T E S

CASA PUKAYAKU LODGE

NACIONAL

C O N C E P T U A L I Z A C I Ó N Y R E F E R E N T E S

DATOS GENERALES DEL REFERENTE

Ancash

PROVINCIA DISTRITO

Huaylas Caraz

Pukayaku Lodge se ubica en Caraz Mishi RumiBarrio de Shocsha de Caraz a la distancia de 14 minutos del centro.

CONCEPCIÓN DE LA CONSTRUCCIÓN

El hotel fue construido con la idea de crear una relación con su entorno, integrar, con ayuda de sus elementos naturales, y generar una conexión.

IMAGEN DE LA ZONA
DEPARTAMENTO:

EMPLAZAMIENTO

:

Aprovecha y conecta con las zonas naturales de su entorno

LUGARES TURISTICOS

Hotel

Tumshukaiko

Punta Winchus

Catedral De Piedra

Arco

Museo Municipal de Caraz

Pendientes / vertientes

MATERIALIDAD

Río Llulán

Bosques y vegetación

Laguna Grande Cathedral Canon del Pato

San Juan Mountain

Los ambientes y habitaciones fueron concebidos con materiales propios de del lugar.

Los muros son de concreto con terminaciones de ladrillo y piedra. Los techos de madera con tejas.

El referente nacional se enfoca en integrarse a su topografía, aprovechar la vista al río y la variedad de materiales de su entorno; estando todo ello relacionado con lo propuesto para el proyecto.

ANALISIS ESPACIAL

ACCESIBILIDAD

Su ingreso se da por un desvío de la carretera la Laguna Parón.

La mayor transitabilidad se da por caminata de entre 5 a 20 min.

Carretera

La Laguna Parón

Desvío

IMAGEN DE LA ZONA
C O N C E P T U A L I Z A C I Ó N Y R E F E R E N T E S

E S T R A T E G I A

MATERIALIDAD

E S T R A T E G I A
Balcones de madera Muros de adobe ,piedra y ladrillo construcción de techo 2 aguas recolección de agua de lluvias Camino de piedra acompañado con canaletas

NORMATIVA

PROGRAMA ARQUITECTÓNICO

-

N O R M A S

R N E

M

N

E

U

NORMA A.030 HOSPEDAJE

REQUISITOS MÍNIMOS

INGRESO DE HUÉSPEDES (PARA USO EXCLUSIVO DE LOS HUÉSPEDES, SEPARADO DEL INGRESO DE SERVICIO)

RECEPCIÓN Y CONSEJERÍA

REQUISITOS MÍNIMOS 3 ***

ASCENSORES

ASCENSORES DE USO PÚBLICO

ASCENSOR DE SERVICIO DISTINTO A LOS DE USO PÚBLICO

ALIMENTACIÓN ELÉCTRICA Y EMERGENCIA

ESTACIONAMIENTO

HABITACIONES (NÚMERO MÍNIMO)

HABITACIONES (ÁREA MÍNIMA EN M2)

DOBLE SUITE (SALA INTEGRADA AL DORMITORIO) SUITE (SALA SEPARADA DEL DORMITORIO)

SERVICIOS HIGIÉNICOS (DENTRO DE LA HABITACIÓN) TIPO

ÁREA MÍNIMA

CLOSET - GUARDARROPA (DENTRO DE LA HABITACIÓN)

SERVICIOS Y EQUIPOS (TODAS LAS HABITACIONES)

SISTEMA DE VENTILACIÓN

AGUA FRÍA Y CALIENTE SISTEMA DE COMUNICACIÓN TELEFÓNICO

BAÑO PRIVADO (CON LAVATORIO, INODORO Y DUCHA)

ESTACIONAMIENTO PRIVADO Y CERRADO (% POR EL N° DE HABITACIONES)

ESTACIONAMIENTO FRONTAL

SERVICIOS BÁSICOS DE EMERGENCIA

AMBIENTES SEPARADOS PARA EQUIPOS DE GENERACIÓN DE ENERGÍA ELÉCTRICA

OBLIGATORIO A PARTIR DE 4 PLANTASOBLIGATORIO

20 % OBLIGATORIO

OBLIGATORIO

OBLIGATORIO OBLIGATORIO PARA TINASDUCHAS HABITACIÓN

SERVICIOS HIGIÉNICOS DE USO PÚBLICO

OBLIGATORIO

DIFERENCIADOS POR SEXO CONTAR MÍNIMO 1 LAVATORIO 1 INODORO

SERVICIOS DE TELÉFONO PÚBLICO OBLIGATORIO

ZONA DE MANTENIMIENTO DEPOSITO OBLIGATORIO OFICIOS(S)

OBLIGATORIO

3 ***
1
OBLIGATORIO COCINA OBLIGATORIO COMEDOR OBLIGATORIO BAR OBLIGATORIO CAFETERÍA -
20
SIMPLE
11 14 24 26
1
4
OBLIGATORIO
-
-
I
C
T
R

DECRETO NRO 001 - MINCETUR REH

B. REQUISITOS MÍNIMOS OBLIGATORIOS DE EQUIPAMIENTO

REQUISITOS

GENERALES

CUSTODIA DE ALORES (INDIVIDUAL EN LA HABITACIÓN O CAJA FUERTE COMÚN)

INTERNET

HABITACIONES

FRIGOBAR

OBLIGATORIO

OBLIGATORIO

OBLIGATORIO

TELEVISOR OBLIGATORIO

TELEFONO CON CUMINACIÓN NACIONAL E INTERNACIONAL OBLIGATORIO

C. REQUISITOS MÍNIMOS OBLIGATORIOS DE SERVICIO

GENERALES

LIMPIEZA DIARIA DE HABITACIONES Y DE TODOS LOS AMBIENTES DEL HOTEL

OBLIGATORIO

SERVICIO DE LAVADO Y PLANCHADO OBLIGATORIO

SERVICIO DE LLAMADAS, MENSAJES INTERNOS Y CONTRATACIÓN DE TAXIS

SERVICIO DE CUSTORIS DE EQUIPAJE

OBLIGATORIO

OBLIGATORIO

PRIMEROS AUXILIOS BOTIQUIN

HABITACIONES

CAMBIO REGULAR DE SÁBANAS Y TOALLAS OBLIGATORIO

3 ***
REQUISITOS 3 ***
N O R M A S R N E M I N C E T U R

N O R M A SR N EM I N C E T U R

NORMA A.120 ACCESIBILIDAD UNIVERSAL

CONDICIONES GENERALES

ART. 4.- SE DEBERAN CREAR AMBIENTES Y RUTAS ACCESIBLES QUE PERMITAN EL DESPLAZAMIENTO Y LA ATENCIÓN DE

LAS PERSONAS CON DISCAPACIDAD, EN LAS MISMAS CONDICIONES QUE EL PÚBLICO EN GENERAL

ART. 5.- EN LAS ÁREAS DE ACCESO A LAS EDIFICACIONES DEBERÁ CUMPLIRSE CON LO SIGUIENTE:

LOS PISOS DE LOS ACCESOS DEBERAN ESTAR FIJOS, UNIFORMES Y TENER UNA SUPERFICIE CON MATERIALES

ANTIDESLIZANTES

LOS PASOS Y CONTRAPASOS DE LAS GRADAS DE LAS ESCALREAS, TENDRAN DIMENSIONES UNIFORMES.

ART. 6.- LOS INGRESOS Y CIRCULACIONES DE USO PUBLICO DEBERA CUMPLIRSE LO SIGUIENTE:

EL INGRESO A LA EDIFICACION DEBERA SER ACCESIBLE DESDE LA ACERA CORRESPONDIENTE EN CASO DE EXISTIR

DIFERENCIA DE NIVEL, ADEMÁS DE LA ESCALERA DE ACCESO DEBE EXISTIR UNA RAMPA.

LOS PASADIZOS DE ANCHO MENOR A 1.50 M.

ART. 12.- EL MOBILIARIO DE LAS ZONAS DE ATENCIÓN DEBERÁ CUMPLIR CON LOS SIGUIENTES REQUISITOS:

SE HABILITARA POR LO MENOS UNA DE LASDE 0. VENTANILLAS DE ATENCIÓN AL PÚBLICO, MOSTRADORES O CAJAS

REGISTRADORAS CON UN ANCHO DE 80 CM. Y UNA ALTURA MÁXIMA DE 80 CM.

LOS ASIENTOS PARA ESPERA TENDRAN UNA ALTURA NO MAYOR DE 45 CM Y UNA PROFUNDIDAD NO MENOR A 50 CM.

ART. 15. EN LAS EDIFICACIONES CUYO NÚMERO DE OCUPANTES DEMANDE SERVICIOS HIGIÉNICOS POR LO MENOS 1 INODORO, 1 LAVADERO Y 1 URINARIO DEBERÁN CUMPLIR CON LOS REQUISITOS PARA PERSONAS CON DISCAPACIDAD DE LOS MISMOS.

ART. 16. LOS ESTACIONAMIENTOS DE USO PÚBLICO DEBERÁN CUMPLIR LAS SIGUIENTES CONDICIONES:

NÚMERO TOTAL DE ESTACIONAMIENTOS ESTACIONAMIENTOS ACCESIBLES REQUERIDOS

DE 0 A 5 ESTACIONAMIENTOS DE 6 A 20 ESTACIONAMIENTOS NINGUNO 01

CONDICIONES SEGUN TIPO DE EDIFICACIÓN

ART. 19.- LAS EDIFICACIONES DE HOSPEDAJE DEBERÁN CUMPLIR CON LOS SIGUIENTES REQUISITOS:

DEBERÁN EXISTIR HABITACIONES ACCESIBLES A RAZON DE 1 POR LAS PRIMERAS 25, Y EL 2% DEL NÚMERO TOTAL. A

PARTIR DE 26, LAS FRACCIONES SE REDONDENAN AL ENTERO MÁS CERCANO. LAS HABITACIONES ACCESIBLES DEBERÁN SER SIMILARES A LAS DEMÁS HABITACIONES SEGÚN CATEGORÍA. EN LAS HABITACIONES ACCESIBLES SE DEBEN PROVEER DE ALARMAS VISUALES Y SONORAS, INSTRUMENTOS DE NOTIFICACIÓN Y TELÉFONOS CON LUZ.

ESCALERAS / RAMPAS

NORMA A.070 COMERCIO

ART. 8 . - CALCULO DEL NUMERO DE OCUPANTES

CLASIFICACIÓN

LOCALES DE EXPENDIO DE COMIDAS Y BEBIDAS

COEFICIENTE

RESTAURANTE, CAFETERÍA (COCINA) 9.3 M2 POR PERSONA

RESTAURANTE, CAFETERÍA (ÁREA DE MESAS) 1.5 M2 POR PERSONA

LOCALES DE ENTRETENIMIENTO Y/O RECREO

PARQUES DE DIVERSIÓN Y/O RECREO, SALA DE JUEGOS 4.0 M2 POR

LOCALES DE SERVICIOS PERSONALES

SPA, BAÑO TURCO, SAUNA, BAÑO DE VAPOR 3.4 M2 POR PERSONA

GIMNASIO, FISICOCULTURISMO (ÁREA CON MÁQUINAS) 4.6 M2 POR PERSONA

ART. 16 SERVICIOS HIGIÉNICOS

16.5 Restaurantes / Cafetería

N° DE EMPLEADOS HOMBRES MUJERES

DE 1 HASTA 5 EMPLEADOS 1L, 1U, 1I

DE 6 HASTA 20 EMPLEADOS

1L, 1U, 1I 1L, 1I

DE 20 HASTA 60 EMPLEADOS 2L, 2U, 2I 2L, 2I

DE 60 HASTA 150 EMPLEADOS 3L, 3U, 3 I 3L, 3I

POR CADA 300 EMPLEADOS ADICIONALES 1L, 1U, 1I 1L, 1I

N° DE PERSONAS HOMBRES MUJERES

DE 1 HASTA 16 PERSONAS (PÚBLICO) NO REQUIERE

DE 17 HASTA 50 PERSONAS (PÚBLICO) 1L, 1U, 1I 1L, 1I

DE 51 HASTA 100 PERSONAS (PÚBLICO) 2L, 2U, 2I 2L, 2I

POR CADA 200 PERSONA ADICIONALES 1L, 1U, 1I 1L, 1I

16.8 ENTRETENIMIENTO Y/O RECREO

N° DE EMPLEADOS HOMBRES MUJERES

DE 1 HASTA 6 EMPLEADOS

DE 7 HASTA 25 EMPLEADOS

POR CADA

EMPLEADOS ADICIONALES

N° DE PERSONAS HOMBRES MUJERES

DE 1 HASTA 50 PERSONAS (PÚBLICO)

POR CADA

ART. 17 ESTACIONAMIENTOS

17.2 Dotación de estacionamientos

CLASIFICACIÓN PERSONAL ADM. PARA PÚBLICO

LOCALES DE EXPENDIO DE COMIDAS Y BEBIDAS

RESTAURANTE, CAFETERÍA (COCINA)

LOCALES DE ENTRETENIMIENTO Y/O RECREO

PARQUES DE DIVERSIÓN Y/O RECREO, SALA DE JUEGOS

LOCALES DE SERVICIOS PERSONALES

SPA, BAÑO TURCO, SAUNA, BAÑO DE VAPOR

1 est. c/ 20 personas

1 est. c/ 25 personas

1 est. c/ 15 Gpersonas IMNASIO, FISICOCULTURISMO (ÁREA CON MÁQUINAS)

1L, 1U, 1I
1L, 1U, 1I 1L, 1I
50
1L, 1U, 1I 1L, 1I
1L, 1U, 1I 1L, 1I
100 PERSONA ADICIONALES 1L, 1U, 1I 1L, 1I
N O R M A S R N E M I N C E T U R

PROGRAMA ARQUITECTONICO

ARQUITECTONICO

HALL DE INGRESO

RECEPCION - -

DEPOSITO DE MALETAS

RECEPCION

. HH. PUBLICOS

ADMINISTRATIVA

OFICINAS ADMINISTRATIVA

HOMBRES

DISCAPACITADOS

TÓPICO - -

OFICINA DE GERENCIA + SS.HH

SECRETARIA + SALA DE ESPERA -

SS.HH HOMBRES

MUJERES

1I

1I

19.5 19.5

11.1 11.1

15.5 39.2MUJERES

150.4 150.4 357.4

14.5

9.2

89.3 89.3

47.9 47.9

45.8 45.8

4.9 239.6

CUARTO DE LIMPIEZA - 2.3

45.1 45.1 252.6

5.8

CIRCULACIÓN - 35.9 35.9

SALA DE REUNIONES

OFICINA DE LOGISTICA

33.8 33.8

34.6 34.6

44.4 44.4

PROGRAMA
- LAUMA RESORT 3*** ZONA AMBIENTES SUBAMBIENTES INDICE M2 CANTIDAD ÁREA PARCIAL ÁREA M2 ÁREA TOTAL M2
1
1
1
SS
3L, 3I, 3U 1
3L, 3I 1
1L, 1I 1
LOBBY 1
2
1
1
1L,
1
SS.HH
1L,
1
1
1
OFICINA 2
P R O G R A M A A R Q U I T E C T O N I C O

HABITACIONES

HABITACIONES SIMPLES

PROGRAMA ARQUITECTONICO

DORMITORIO

CLOSETBAÑO TERRAZA -

HABITACIONES DOBLES DORMITORIO

27.04 216.32 CLOSET -

HABITACIONES PARA DISCAPACITADOS

ZONA DE ALOJAMIENTO

SUITES

BAÑO

38.2 76.4 TERRAZA

22.94 183.52 710

DORMITORIO 1 + CLOSET + SS.HH -

DORMITORIO 2 + CLOSET CLOSETBAÑO SALATERRAZA

ESTAR TV

KITCHENET

DORMITORIO 1 + CLOSET + SS.HH

BUNGALOWS BUNGALOWS

DORMITORIO 2 + CLOSET BAÑO TERRAZA

38.96 233.76

83.46 333.84 333.84

- LAUMA RESORT 3*** ZONA AMBIENTES SUBAMBIENTES INDICE M2 CANTIDAD ÁREA PARCIAL ÁREA M2 ÁREA TOTAL M2
8
8
2
6
4
P R O G R A M A A R Q U I T E C T O N I C O

SERVICIOS

RESTAURANTE

LOUNGE

SOCIAL

SERVICIOS

HOMBRES

PROGRAMA ARQUITECTONICO - LAUMA RESORT 3*** ZONA AMBIENTES SUBAMBIENTES INDICE M2 CANTIDAD ÁREA PARCIAL ÁREA M2 ÁREA TOTAL M2
COMPLEMENTARIOS
RECEPCION 1 20 20 465.6 ÁREA DE MESAS 1 137.5 137.5 COCINA - 1 83.9 123.9 CUARTO DE LIMPIEZA - 1 7 CAMARA FRIA - 1 6.5 VESTUARIO MIXTO 1 6.5 ALMACEN 1 20 SS. HH. HOMBRES 3L, 3I, 3U 1 15.5 39.2SS. HH. MUJERES 3L, 3I 1 14.5 SS. HH. DISCAPACITADOS 1L, 1I 1 9.2 TERRAZA 1 65 65 ÁREA DE BUFFET 1 20 80
ÁREA
HALL 1 6 6 269 ÁREA DE MESAS 1 120 120 ÁREA DE MUEBLES - 1 70 70 BARRA DE ATENCION - 1 20 20 SALA DE JUEGOS 1 SS.HH PUBLICO
2L, 2I, 2U 1 18 36 MUJERES 2L, 2I 1 18
GENERALES BODEGA DE LICORES - 1 10 10 ALMACEN 1 7 7 P R O G R A M A A R Q U I T E C T O N I C O

SERVICIOS

HIDROMASAJES

-

HUMADA

PROGRAMA ARQUITECTONICO - LAUMA RESORT 3*** ZONA AMBIENTES SUBAMBIENTES INDICE M2 CANTIDAD ÁREA PARCIAL ÁREA M2 ÁREA TOTAL M2
COMPLEMENTARIOS SUM KITCHENET 1 12.3 12.3 325.6 ALMACEN - 1 13.2 13.2 SS HH 1 43.1 43.1 BOLETERIA - - 11.6 11.6 1 245.4 245.4 SPA
GIMNASIO RECEPCION RECEPCION + ORIENTACION - 1 20 65.1 440.7 DIRECCION + SS.HH. 1 45.1
SAUNA + MASAJES JACCUZI CON HIDROMASAJE - 1 96.4 209.3 CAMARA
1 30 CAMARA SECA - 1 30 DUCHA TIBIA + VESTIDORES 1 52.9 GIMNASIO ÁREA DE MAQUINAS - 1 127.1 127.1 SS. HH. HOMBRES 3L, 3I, 3U 1 15.5 39.2MUJERES 3L, 3I 1 14.5 DISCAPACITADOS 1L, 1I 9.2 P R O G R A M A A R Q U I T E C T O N I C O

RECREATIVO

PISCINA

PLAZAS + PUNTO DE ENCUENTRO

HH + VESTIDORES

HOMBRES

ESTACIONAMIENTO

SALA DE MANTENIMIENTO

CUARTO DE MAQUINAS -

SALA DE PERSONAL

SERVICIO

-

11.5 11.5

37.5

32.7 32.7 CUARTO DE BASURA -

ALMACEN GENERAL -

8.6

AREA DE CARGA Y DESCARGA

20.2 20.2

54.3 LAVANDERIA PLANCHADO

LIMPIA

PERSONAL

VESTIDORES

PROGRAMA ARQUITECTONICO - LAUMA RESORT 3*** ZONA AMBIENTES SUBAMBIENTES INDICE M2 CANTIDAD ÁREA PARCIAL ÁREA M2 ÁREA TOTAL M2
- 1 162 162 1258.5 MIRADOR 1 369.7 369.7
1 664.9 664.9 SS.
2L, 2U, 2I 1 30.95 61.9 MUJERES 2L, 2I 1 30.95
HUESPEDES 1 420.5 686.3 900 SERVICIO 1 265.8
-
1 11 11
1
1
20
1
- 1
8.6
- 1 54.3
1
ROPA
SS.HH
+
HOMBRE - 2L, 2I 1 27.7 55.4 MUJERES 2L, 2I 1 27.7 ÁREA TECHADA 5313.24 ÁREA DE CIRCULACIÓN 2472.53 ÁREA DEL TERRENO 7785.77 P R O G R A M A A R Q U I T E C T O N I C O

DIAGRAMAS DEL PROYECTO

MA D I A G R A M A S D E L P R O Y E Y O

D I A G R A M A S D E L P R O Y E C T O

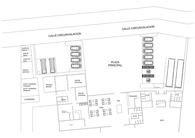
ORGANIGRAMA DENTRO DEL TERRENO

GIMNASIO

HABITACIONES

LEYENDA

ORDENADOR

PLAZA DISTRIBUCION
INGRESO PRINCIPAL ESTACIONAMIENTO PRIVADO ESTACIONAMIENTO SERVICIO PLAZA DE INGRESO HALL INGRESO SUM RESTAURANTE PUNTO DE ENCUENTRO MIRADOR PRIVADO ADMINISTRACION LOUNGE SALA DE JUEGOS PISCINA SPA -
HABITACIONES
BUNGALOWS TÓPICO RECEPCION DEPÓSITO MALETAS INGRESO PERSONAL ZONA DEL PERSONAL CARGA Y DESCARGA ALMACEN GENERAL CUARTO DE BASURA CUARTO DE MAQUINAS SALA DE MANTENIM.
EJE
ZONA PRIVADA ZONA COMÚN ZONA SERVICIO LINGRESOS IMPIEZA LAVANDERIA

ORGANIGRAMA EXTERNO

D I A G R A M S D E L P R O Y E C T O
PLAZA PRINCIPAL ALAMEDA POSTA MEDICA IGLESIA COLISEO ANDENES BOULEVARD LAUMA RESORT MIRADOR PÚBLICO MIRADOR PRIVADO PLAZA DE CONTEMPLACION Y ESPARCIMIENTO LAGUNA COCHAPAMPA ESTADIO PLANTA DE LECHE BIOHUERTO

D I A G R A M A S D E L P R O Y E C T O

FLUJOGRAMA

INGRESO

GIMNASIO

LOUNGE KARAOKE

CANCHA MULTIPLE PISCINA

HABITACIONES

LEYENDA

ORDENADOR

PLAZA DISTRIBUCION INGRESO PRINCIPAL ESTACIONAMIENTO PRIVADO ESTACIONAMIENTO SERVICIO PLAZA DE INGRESO HALL INGRESO SUM RESTAURANTE PUNTO DE ENCUENTRO MIRADOR PRIVADO ADMINISTRACION
SALA DE JUEGOS
SPA
HABITACIONES
BUNGALOWS TÓPICO RECEPCION DEPÓSITO MALETAS
PERSONAL ZONA DEL PERSONAL CARGA Y DESCARGA ALMACEN GENERAL CUARTO DE BASURA CUARTO DE MAQUINAS SALA DE MANTENIM.
EJE
ZONA PRIVADA ZONA COMÚN ZONA SERVICIO LINGRESOS IMPIEZA LAVANDERIA

Zonificación

Zonificación general

Servicio

Ingreso P. Servicio

Ingreso huespedes

Estacionamiento servicio

servicios complementarios

Recreación

Estacionamiento huespedes

Recepción Administración

servicios complementarios

I A G R A M S D E L P R O Y E C T O

Habitaciones suits

Habitaciones Mirador

Habitaciones suits

Bungalow

Habitaciones Bungalow

D

D I A G R A M A S D E L P R O Y E C

CIRCULACION
T O LEYENDA: INGRESO Huéspedes P. Servicio CIRCULACIÓN Huéspedes Personal Vehicular general Autos Buses Vehicular P. servicio Área de carga y descarga Personal Mixto Visitantes
PENDIENTE DEL TERRENO X PENDIENTE % = Y / X * 100 = (34.6 / 70) * 100 =0.4942857143 * 100 = 49.43% = 49 % PENDIENTE Y Y: 34.6 m X: 70 m D I A G R A M S D E L P R O Y E C T O

ANÁLISIS ANTROPOMÉTRICO

N A L I S

S A N

R O P O M É T R I C O

Antropometría y Ergonométrica

Habitación simple

Referencia

Dormitorio

Mobiliario

Habitación:

Baño:

Propuesta

Habitación simple

Referencia

Dormitorio simple

amplia

Mobiliario

Habitación:

televisor

Baño:

terraza

Baño Dormitorio Baño
Dormitor
o c oset Terraza A
I
T
1 cama , 1 closet , televisor
inodoro, lavabo , ducha
simple de área mínima , para una persona
1 cama (2 plazas), 1 closet ,
inodoro, lavabo , ducha
área
Áreas mínimas según RNE

IMAGENES

IMAGENES DE REFERENCIA

Zona actividad E F G H I c F A E La dimensión humana en los espacios internos La dimensión humana en los espacios internos 30 5 42 7 30.5 101.6 45 7 76.2
DE REFERENCIA

P

Antropometría y Ergonométrica

R

PROPUESTA Habitación simple

INGRESO A N A L I S I S A N T R O
O M É T
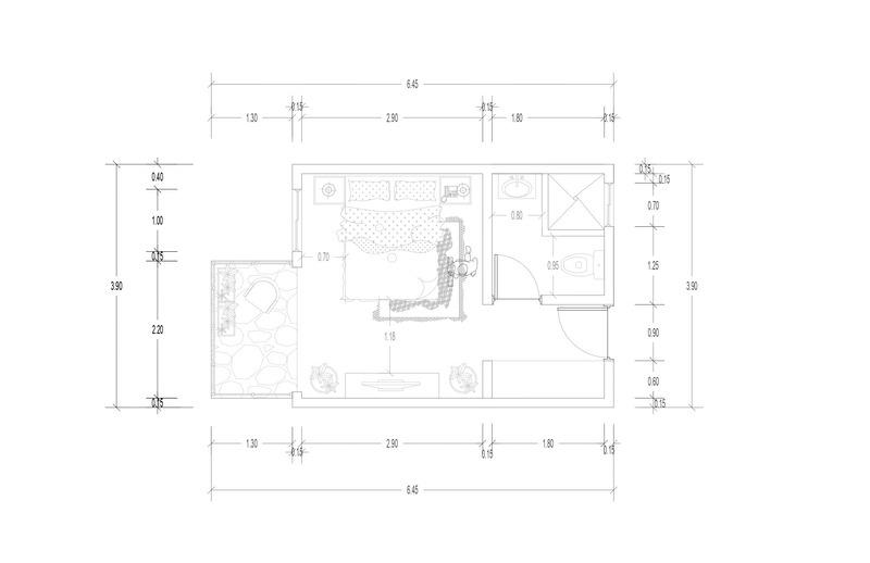
I C O CONDICIONES AMBIENTALES Iluminación y ventilación natural con orientación a la mejor visual AFORO 2 personas EQUIPOS Y MOBILIARIO cama con veladores, televisor, inodoro, lavamanos, ducha, closet ÁREA Y ALTURA área: 22 90 m2 altura max: 3 00m
A N A L I S I S A N T R O P O M É T R I C O

S A N

R O P O M É

R

Antropometría y Ergonométrica

Habitación doble

Referencia

Dormitorio

Mobiliario

Habitación:

Baño:

Habitación doble

Referencia

Dormitorio

Mobiliario

Habitación:

Baño:

2 cama ( 1 plaza) , 1 closet , televisor
inodoro, lavabo , ducha
simple de área mínima , para una persona
2 cama (1 plaza), 1 closet , televisor
inodoro, lavabo , ducha terraza
simple área amplia Áreas mínimas según RNE Propuesta
A N A L I S I
T
T
I C O

IMAGENES DE REFERENCIA

IMAGENES DE REFERENCIA

A N A L I S I S A N T R O P O M É T R I C O

N

R

P O M É

R

Antropometría y Ergonométrica

PROPUESTA

Habitación doble INGRESO A N A L I S I S A
T
O
T
I C O CONDICIONES AMBIENTALES Iluminación y ventilación natural con orientación a la mejor visual AFORO 2 personas EQUIPOS Y MOBILIARIO cama con velador, televisor, inodoro, lavamanos, ducha, closet ÁREA Y ALTURA área: 27 00 m2 altura max: 2 98m
A N A L I S I S A N T R O P O M É T R I C O

S

S A N

R O P O M É

R

Antropometría y Ergonométrica

Habitación suit

Referencia

Dormitorio

Mobiliario

Habitación:

Baño:

kitchen sala

Habitación suite

Referencia

Suite

Mobiliario

hotelería

Habitación: 1 cama

televisor

ducha sala terraza

Baño: inodoro, lavabo

Dormitorio close Baño terraza Entrada
1 cama , 1 closet , televisor
inodoro, lavabo , ducha
simple de área mínima , hotelería
, 1 closet ,
,
,
Áreas mínimas según RNE Propuesta
A N A L I
I
T
T
I C O

IMAGENES DE REFERENCIA

A N A L I S I S A N T R O P O M É T R I C O

N

R

P O M É T R I C

Antropometría y Ergonométrica

PROPUESTA Habitación suite

INGRESO A N A L I S I S A
T
O
O CONDICIONES AMBIENTALES Iluminación y ventilación natural con orientación a la mejor visual AFORO 2 personas EQUIPOS Y MOBILIARIO cama con veladores, televisor, inodoro, lavamanos, ducha, closet, sillones, mesa de centro ÁREA Y ALTURA área: 40 95 m2 altura max: 3 00 m
A N A L I S I S A N T R O P O M É T R I C O

N A

S

S A N T R O P O M É

R

C

Antropometría y Ergonométrica

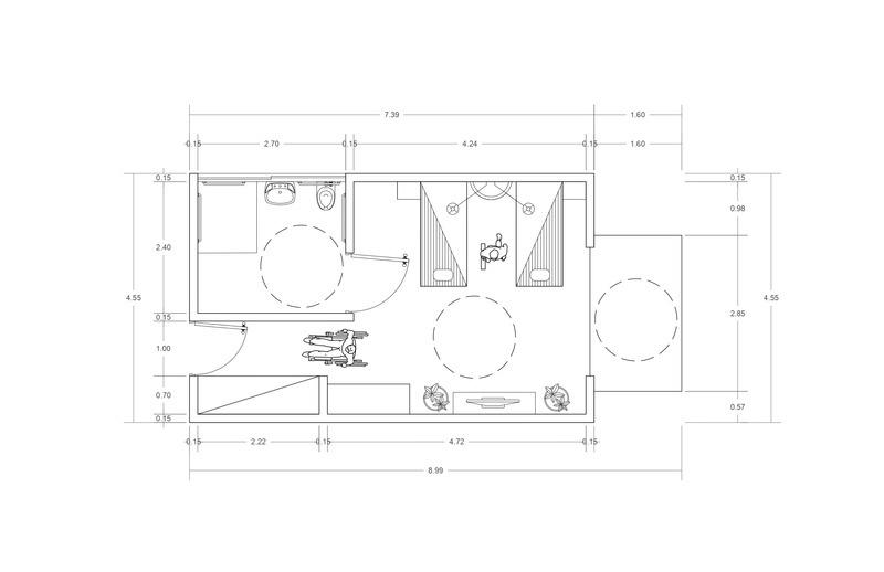
PROPUESTA Habitación para personas con discapacidad

INGRESO A
L I
I
T
I
O CONDICIONES AMBIENTALES Iluminación y ventilación natural con orientación a la mejor visual AFORO 2 personas EQUIPOS Y MOBILIARIO camas con veladores, televisor, inodoro, lavamanos, ducha, closet ÁREA Y ALTURA área: 38 m2 altura max: 3 00 m
A N A L I S I S A N T R O P O M É T R I C O

A N A L I S I S A N T R O P O M É T R I C O

Antropome

PROPUESTA Bungalows familiar

CONDICIONES

INGRESO
AMBIENTALES Iluminación y ventilación natural con orientación a la mejor visual AFORO 4 personas EQUIPOS Y MOBILIARIO camas con veladores, televisor, sillones, mesa, inodoro, lavamanos, ducha, closet ÁREA Y ALTURA área: 84 m2 altura max: 3.00 m
A N A L I S I S A N T R O P O M É T R I C O

A N A L I S I S A N T R O P O M É T R I C O

Antropometría y Ergonométrica

REGLAMENTO

Buses

Autos

PROPUESTA

A N A L I S I S A N T R O P O M É T R I C O INGRESO
Estacionamiento exterior Huéspedes Estacionamiento exterior P. servicio carga y descarga

RENDERS

Se hace este planteamiento inicial de la tipología y volumen a emplear, como también el ingreso mediante la plaza

D I A G R A M S D E L P R O Y E C T O
MASTER PLAN Tema laraos , yauyos -Peru Lugar Reserva Paisajística Determinado ¡Muchas gracias! POR SU ATENCIÒN

Turn static files into dynamic content formats.

Create a flipbook
Issuu converts static files into: digital portfolios, online yearbooks, online catalogs, digital photo albums and more. Sign up and create your flipbook.